A Simple Strengthening Method for Preventing Collapsed of Vulnerable Masonry Infills
Abstract
1. Introduction
2. Experimental Program
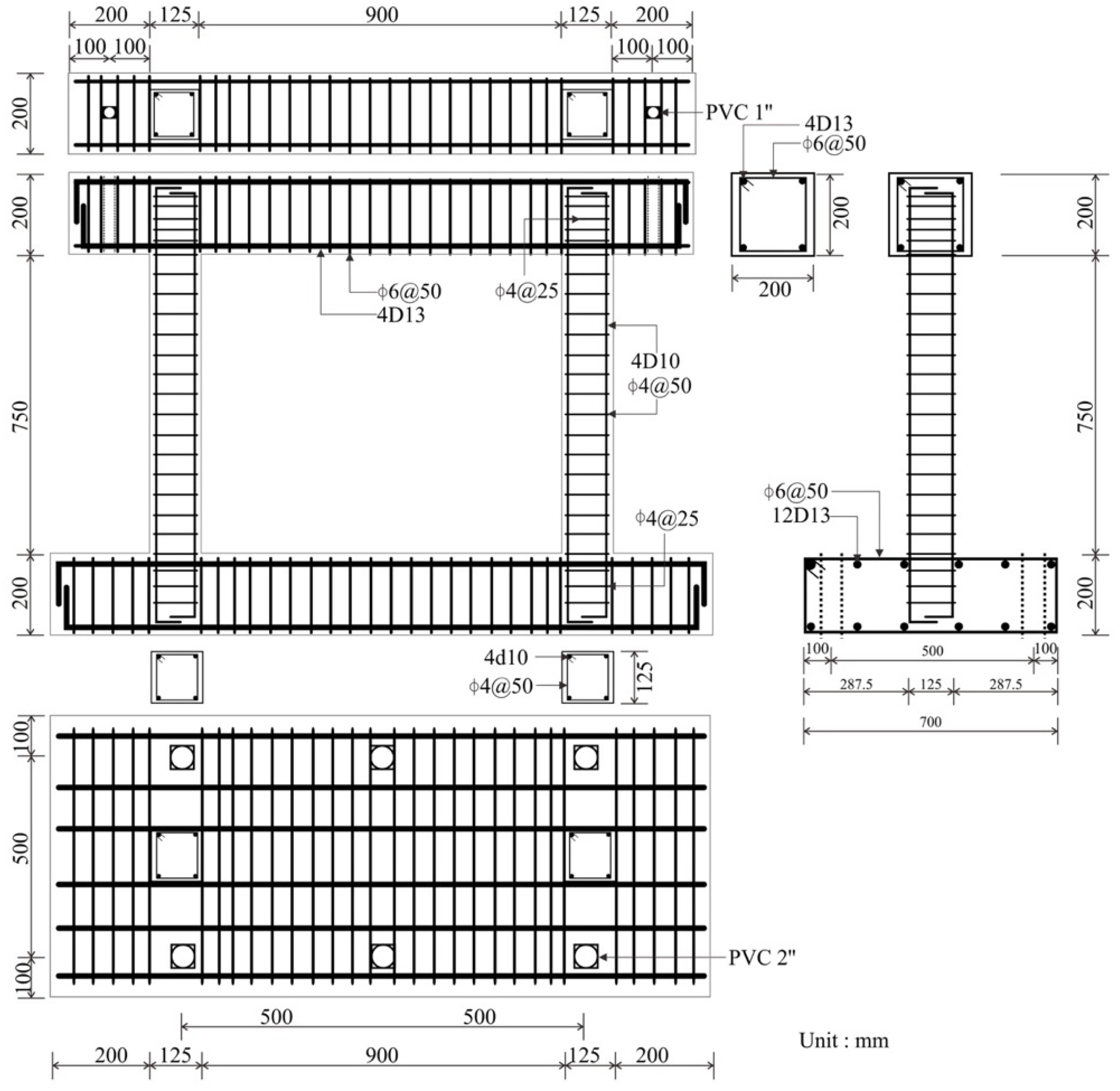
2.1. Test Specimens
2.2. Material Properties
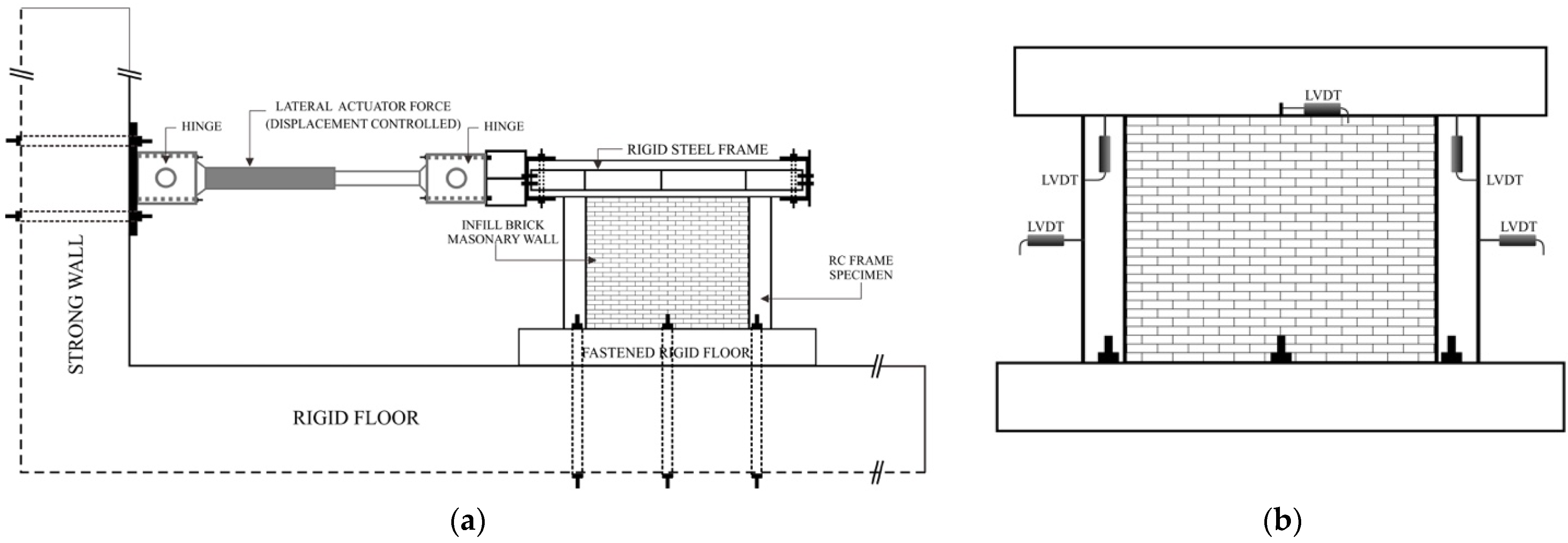
2.3. Experimental Setup and Testing Procedure
3. Test Results and Discussion
3.1. The Failure Mechanism of the Specimens
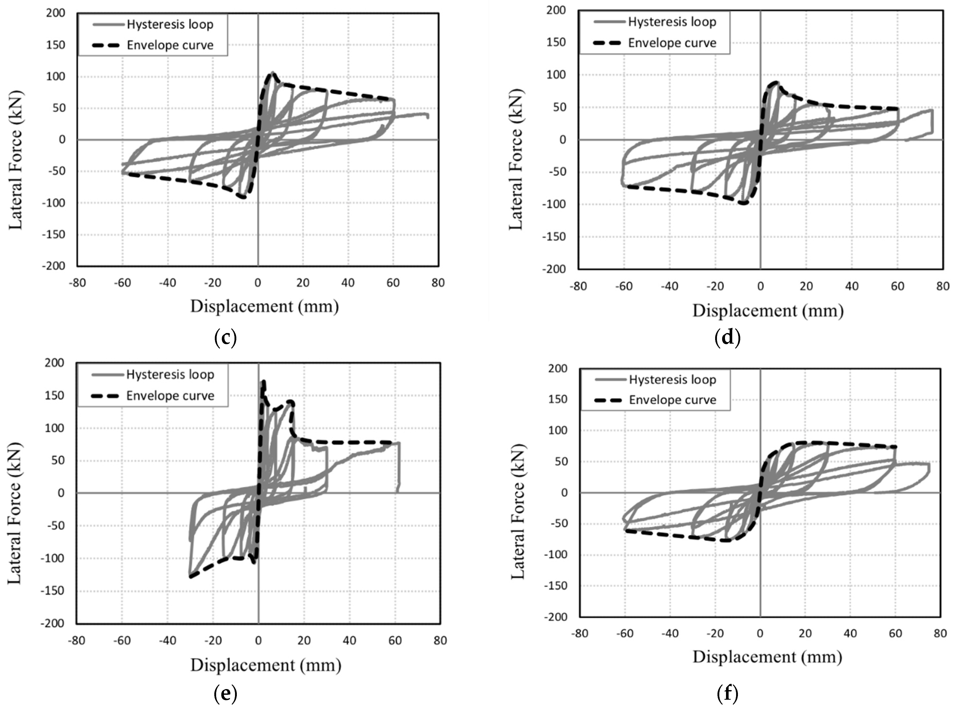
3.2. Performance Evaluation
3.3. Deformation Capacity
3.4. Stiffness Degradation
3.5. Energy Dissipation
4. Conclusions
- Strengthening the infill successfully improved the specimens’ lateral strength, secant stiffness, deformation capacity, and energy dissipation.
- Although the lateral of the IFSM–PW specimen was slightly increased, the lateral strength was maintained during plastic deformation. The plastic stretch film as a material for strengthening the infill made the infill more ductile compared to the infill without strengthening.
- Unlike the IFSM–PW specimen, other specimens showed a significant increase in their secant stiffness, although it suddenly dropped after yielding.
- The deformation capacity of the specimens with strengthened infills was increased. Due to high stiffness after strengthening using FRP on the infill of the IFSM–FRP specimen, the deformation capacity was only slightly increased.
- Strengthening the infill improved the energy dissipation of the specimens. The strengthening in the IFSM–PW specimen resulted in the best performance in energy dissipation.
- It can be concluded that strengthening using the plastic stretch film material is low cost and is feasible for application even by unskilled local laborers.
Author Contributions
Funding
Data Availability Statement
Acknowledgments
Conflicts of Interest
References
- Maidiawati; Sanada, Y. Investigation and analysis of buildings damaged during the September 2007 Sumatra, Indonesia Earthquakes. J. Asian Archit. Build. Eng. 2008, 7, 371–378. [Google Scholar] [CrossRef]
- Maidiawati; Sanada, Y.; Konishi, D.; Tanjung, J. Seismic performance of nonstructural brick walls used in Indonesian R/C Buildings. J. Asian Archit. Build. Eng. 2011, 10, 203–210. [Google Scholar] [CrossRef]
- Haach, V.G.; Vasconcelos, G.; Lourenco, P.B. Experimental analysis of reinforced concrete block masonry walls subjected to in-plane cyclic loading. J. Struct. Eng. 2010, 136, 452–462. [Google Scholar] [CrossRef]
- Cavaleri, L.; Trapani, F.D. Cyclic response of masonry infilled RC frames: Experimental results and simplified modeling. Soil Dyn. Earthq. Eng. 2014, 65, 224–242. [Google Scholar] [CrossRef]
- Tarque, N.; Candido, L.; Spacone, E. Masonry infilled frame structures: State-of-the-art review of numerical modelling. J. Earthq. Struct. 2015, 8, 733–759. [Google Scholar]
- Li, S.; Shan, S.; Zhai, C.; Xie, L. Experimental and numerical study on progressive collapse process of RC frames with full-height infill walls. Eng. Fail. Anal. 2016, 59, 57–68. [Google Scholar] [CrossRef]
- Tanjung, J.; Maidiawati; Nugroho, F. Experimental investigation of the seismic performance of the R/C frames with reinforced masonry infills. AIP Conf. Proc. 2017, 1892, 020009. [Google Scholar]
- Dautaj, A.D.; Kadiri, Q.; Kabashi, N. Experimental study on the contribution of masonry infill in the behavior of RC frame under seismic loading. J. Eng. Struct. 2018, 165, 27–37. [Google Scholar] [CrossRef]
- Dautaj, A.D.; Muriqi, A.; Cene, K.; Burbuqe, S. Shear resistance of masonry panel in infilled RC frames. Int. J. Adv. Struct. Eng. 2019, 11, 165–177. [Google Scholar] [CrossRef]
- Tanjung, J.; Maidiawati; Alfajri, A. Effect of brick masonry infills to seismic capacity of Indonesia multi-story RC building. Int. J. GEOMATE 2019, 16, 42–48. [Google Scholar] [CrossRef]
- Maidiawati; Tanjung, J.; Sanada, Y.; Nugroho, F.; Wardi, S. Seismic analysis of damaged buildings based on post-earthquake investigation of the 2018 Palu earthquake. Int. J. GEOMATE 2020, 18, 116–122. [Google Scholar] [CrossRef]
- Maidiawati; Tanjung, J. The seismic responses of RC frames infilled with full and partial masonry walls under cyclic lateral load. IOP Conf. Ser. Earth Environ. Sci. 2020, 708, 012079. [Google Scholar] [CrossRef]
- Cheng, S.; Zhu, Y.; Zhang, W. Seismic performance of RC frames strengthened by RC infill walls. Adv. Struct. Eng. 2021, 24, 2267–2281. [Google Scholar] [CrossRef]
- Wang, F.; Zhao, K.; Zhang, J.; Yan, K. Influence of different types of infill walls on the hysteretic performance of reinforced concrete frames. Buildings 2021, 11, 310. [Google Scholar] [CrossRef]
- Hashemi, A.; Mosalam, K.M. Shake-table experiment on reinforced concrete structure containing masonry infill wall. Earthquake Engng Struct. Dyn. 2006, 35, 1827–1852. [Google Scholar] [CrossRef]
- Lourenco, P.B.; Leite, J.M.; Pereira, M.F.P.; Costa, A.C.; Candeias, P.X.; Mendes, N. Shaking table testing for masonry infill walls: Unreinforced versus reinforced solutions. Earthquake Eng. Struct. Dyn. 2016, 45, 2241–2260. [Google Scholar]
- Climent, A.B.; Marquez, A.R.; Pujol, S. Seismic strengthening of low-rise reinforced concrete frame structures with masonry infill walls: Shaking-table test. Eng. Struct. 2018, 165, 142–151. [Google Scholar] [CrossRef]
- Maidiawati; Sanada, Y. R/C frame–infill interaction model and its application to Indonesian buildings. Earthquake Eng. Struct. Dyn. 2017, 46, 221–241. [Google Scholar] [CrossRef]
- Holmes, M. Steel frames with brickwork and concrete infilling. Proc. Inst. Civ. Eng. 1961, 19, 473–478. [Google Scholar] [CrossRef]
- Smith, B.S. Methods for predicting the lateral stiffness and strength of multi-storey infilled frames. Build. Sci. 1967, 2, 247–257. [Google Scholar] [CrossRef]
- Smith, B.S.; Carter, C. A method of analysis for infilled frames. Proc. Inst. Civ. Eng. 1969, 44, 31–48. [Google Scholar]
- Mainstone, R.J. On the stiffness and strength of infilled frames. Proc. Inst. Civ. Eng. 1971, 49, 57–90. [Google Scholar]
- Leuchars, J.M.; Scrivener, J.C. Masonry infill panels subjected to cyclic in-plane loading. Bull. N. Zld. Natl. Soc. Earthq. Eng. 1976, 9, 122–131. [Google Scholar] [CrossRef]
- Paulay, T.; Priestley, M.J.N. Seismic Design of Reinforced Concrete and Masonry Buildings; John Wiley & Sons: New York, NY, USA, 1992. [Google Scholar]
- Noh, N.M.; Liberatore, L.; Mollaioli, F.; Tesfamariam, S. Modelling of masonry infilled frames subjected to cyclic load: State of the art review and modelling with OpenSees. Eng. Struct. 2017, 150, 599–621. [Google Scholar]
- Pan, X.; Yan, J.; Wang, Z.; Zou, C. Numerical modeling and seismic evaluation of masonry-infilled reinforced concrete frames retrofitted with carbon fiber-reinforced polymer wraps. Adv. Struct. Eng. 2018, 21, 1526–1541. [Google Scholar] [CrossRef]
- Asteris, P.G. Lateral stiffness of brick masonry infilled plane frames. ASCE J. Struct. Eng. 2003, 129, 1071–1079. [Google Scholar] [CrossRef]
- Asteris, P.G. Finite Element Micro-Modeling of infilled frames. Elect. J. Struct. Eng. 2008, 8, 1–11. [Google Scholar]
- Asteris, P.G.; Cotsovos, D.M.; Chrysostomou, C.Z.; Mohebkhah, A.; Al-Chaar, G.K. Mathematical micromodeling of infilled frames: State of the art. J. Eng. Struct. 2013, 56, 1905–1921. [Google Scholar] [CrossRef]
- Mohyeddin, A.; Goldsworthy, H.M.; Gad, E.F. Sensitivity analysis of nonlinear behavior of infill-frames under in-plane and out-of-plane loading. Adv. Struct. Eng. 2013, 16, 1729–1747. [Google Scholar] [CrossRef]
- Vicente, R.S.; Rodrigues, H.; Varum, H.; Costa, A.; Silva, J.A.R.M. Performance of masonry enclosure walls: Lessons learned from recent earthquakes. Earthq. Eng. Eng. Vib. 2012, 11, 23–34. [Google Scholar] [CrossRef]
- Porto, F.; Guidi, G.; Verlato, N.; Modena, C. Effectiveness of plasters and textile reinforced mortars for strengthening clay masonry infill walls subjected to combined in-plane/out-of-plane actions. Mauerwerk 2015, 19, 334–354. [Google Scholar]
- Koutas, L.; Triantafillou, T.C.; Bousias, S.N. Analytical modeling of masonry-infilled rc frames retrofitted with textile-reinforced mortar. J. Compos. Constr. 2015, 19, 1–14. [Google Scholar] [CrossRef]
- Akhoundi, F.; Vasconcelos, G.; Lourenco, P. In-plane behavior of infills using glass fiber shear connectors in textile reinforced mortar (TRM) technique. Int. J. Struct. Glass Adv. Mater. Res. 2018, 2, 1–14. [Google Scholar] [CrossRef][Green Version]
- Padalu, P.K.V.R.; Singh, Y.; Das, S. Cyclic two-way out-of-plane testing of unreinforced masonry walls retrofitted using composite materials. Constr. Build. Mater. 2020, 238, 117784. [Google Scholar] [CrossRef]
- Altin, S.; Anil, O.; Kara, M.E.; Kopraman, Y. Comparison of seismic performance of RC frames strengthened with four different techniques. Adv. Struct. Eng. 2012, 15, 343–357. [Google Scholar] [CrossRef]
- Leeanansaksiri, A.; Panyakapo, P.; Ruangrassamee, A. Seismic capacity of masonry infilled RC frame strengthening with expanded metal ferrocement. Eng. Struct. 2018, 159, 110–127. [Google Scholar] [CrossRef]
- Coccia, S.; Carlo, F.D.; Imperatore, S. Masonry walls retrofitted with vertical FRP rebars. Buildings 2020, 10, 72. [Google Scholar] [CrossRef]
- Tanjung, J.; Ismail, F.A.; Maidiawati; Putra, R. A Simple method for strengthening the brick masonry infilled in the reinforced concrete frame structure. Int. J. GEOMATE 2020, 18, 118–123. [Google Scholar] [CrossRef]
- Furtado, A.; Rodrigues, H.; Arede, A.; Varum, H. Experimental test on strengthening strategies for masonry infillwall: A literature review. Constr. Build. Mater. 2020, 262, 120520. [Google Scholar] [CrossRef]
- FEMA 461. Interim Testing Protocols for Determining the Seismic Performance Characteristic of Structural and Nonstructural Component; Applied Technology Council: Redwood City, CA, USA, 2007; pp. 21–25. [Google Scholar]














| Peak Strength | Deformation Capacity | |||
|---|---|---|---|---|
| Name of Specimens | Vmax (kN) | Displacement (mm) | Lateral Strength (kN) | Displacement (mm) |
| IFSW | 93.59 | 6.43 | 75.8 | 8.49 |
| IFSM-P | 106.33 | 6.54 | 88.98 | 10.62 |
| IFSM-S | 97.80 | 7.29 | 80.46 | 29.01 |
| IFSM-A | 114.95 | 7.68 | 96.82 | 29.92 |
| IFSM-FRP | 171.40 | 2.01 | 128.51 | 7.47 |
| IFSM-PW | 80.61 | 28.12 | 74.30 | 60.0 |
Publisher’s Note: MDPI stays neutral with regard to jurisdictional claims in published maps and institutional affiliations. |
© 2022 by the authors. Licensee MDPI, Basel, Switzerland. This article is an open access article distributed under the terms and conditions of the Creative Commons Attribution (CC BY) license (https://creativecommons.org/licenses/by/4.0/).
Share and Cite
Maidiawati; Tanjung, J.; Mohamed Nazri, F.; Hayati, Y.; Masrilayanti. A Simple Strengthening Method for Preventing Collapsed of Vulnerable Masonry Infills. Buildings 2022, 12, 1496. https://doi.org/10.3390/buildings12101496
Maidiawati, Tanjung J, Mohamed Nazri F, Hayati Y, Masrilayanti. A Simple Strengthening Method for Preventing Collapsed of Vulnerable Masonry Infills. Buildings. 2022; 12(10):1496. https://doi.org/10.3390/buildings12101496
Chicago/Turabian StyleMaidiawati, Jafril Tanjung, Fadzli Mohamed Nazri, Yulia Hayati, and Masrilayanti. 2022. "A Simple Strengthening Method for Preventing Collapsed of Vulnerable Masonry Infills" Buildings 12, no. 10: 1496. https://doi.org/10.3390/buildings12101496
APA StyleMaidiawati, Tanjung, J., Mohamed Nazri, F., Hayati, Y., & Masrilayanti. (2022). A Simple Strengthening Method for Preventing Collapsed of Vulnerable Masonry Infills. Buildings, 12(10), 1496. https://doi.org/10.3390/buildings12101496

