BIM-Based Energy Analysis and Sustainability Assessment—Application to Portuguese Buildings
Abstract
1. Introduction
- Environment—due to resources use and carbon emissions;
- Society—due to indoor environmental comfort;
- Economy—due to energy cost and its impact on household income.
2. Literature Review
2.1. Buildings Energy Performance
2.2. BIM and BEM
2.3. Building Sustainability Assessment
2.3.1. Overview
2.3.2. BIM Integration
2.3.3. SBToolPT-H
- —case study normalised result for P7;
- PENR—case study result for P7;
- PENR*—national best practice for P7;
- PENR∗—national conventional practice for P7.
- —case study normalised result for P8;
- PER—case study result for P8;
- PER*—national best practice for P8;
- PER∗—national conventional practice for P8.
3. Materials and Methods
- RQ1: Can BIM enhance and optimise Portuguese buildings energy efficiency and buildings thermal project?
- RQ2: Is the BIM-based method reliable and according to the Portuguese standards?
- RQ3: Can the results be used for sustainability assessments?
4. BIM Model for Energy Simulation
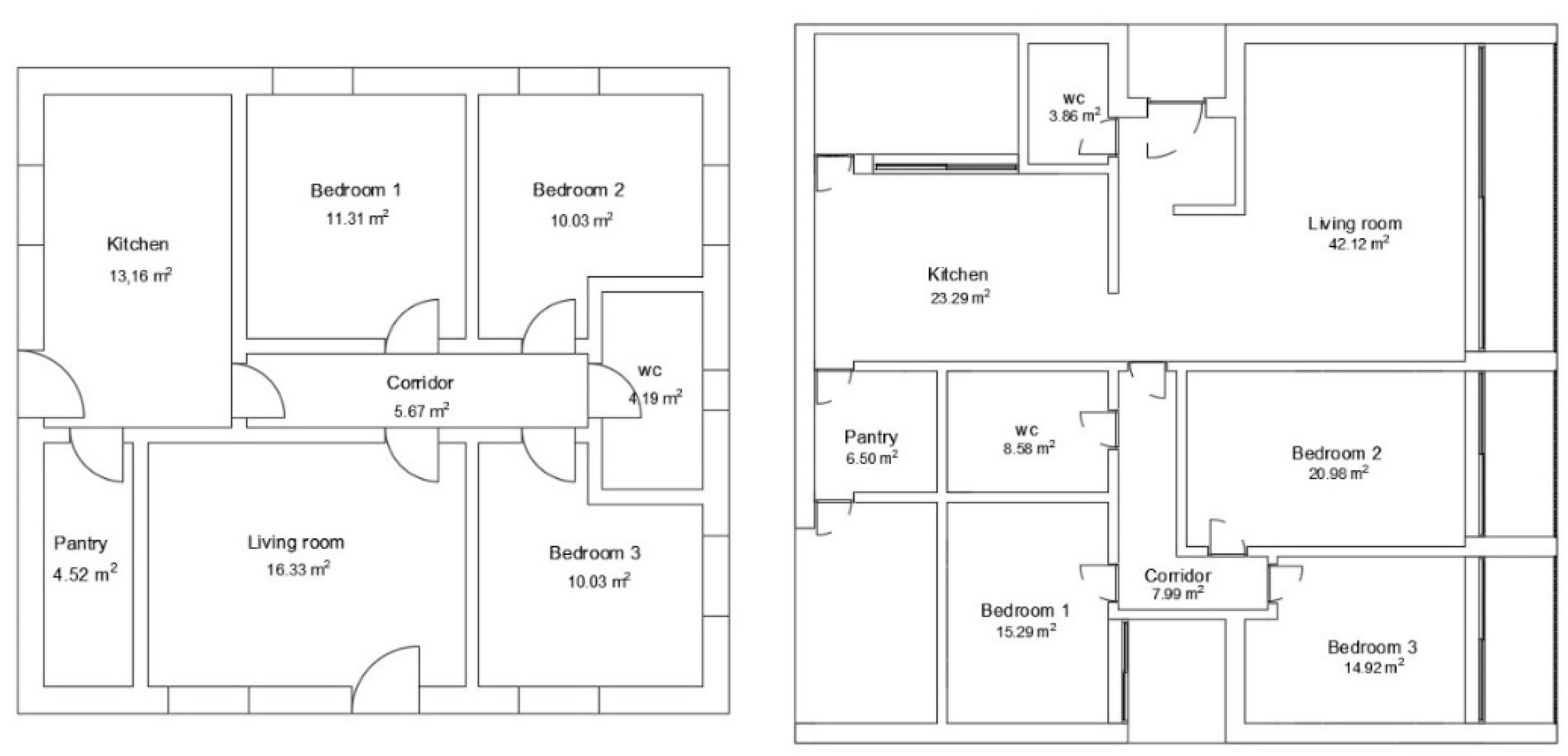
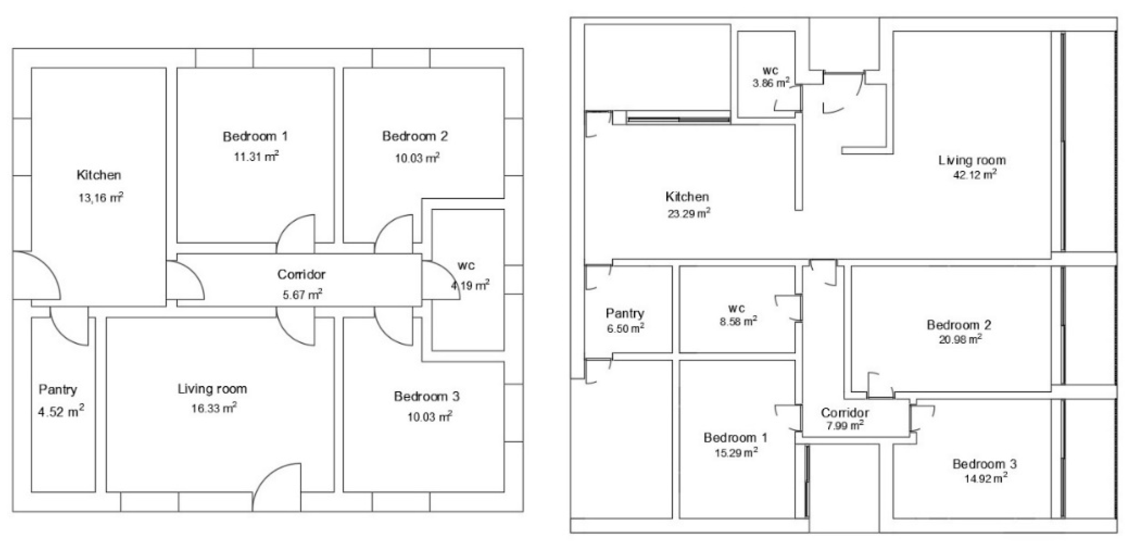
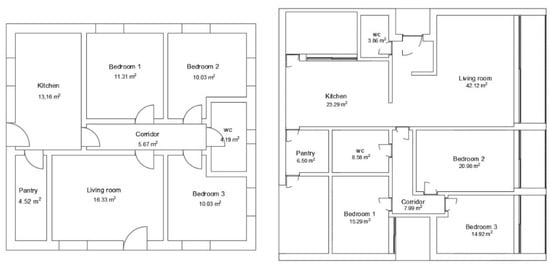
4.1. Building Modelling
4.2. IFC Upload Using Open BIM Collaboration Add-In
4.3. Building Envelope, Systems and Thermal Bridges
5. Results and Discussion
5.1. BIM-Based Energy Simulation
- Ntc—building primary energy (PE) needs (kWhPE/(m2.year));
- Nic—building heating needs (kWh/(m2.year));
- Nvc—building cooling needs (kWh/(m2.year));
- Nac—building DHW needs (kWh/(m2.year));
- fpui—conversion factor to convert the final heating energy into PE;
- fpuv—conversion factor to convert the final cooling energy into PE;
- fpua—conversion factor to convert the final DHW energy into PE;
- ηi—heating system effieicny;
- ηv—cooling sysrem efficiency;
- ηa—DHW system efficiency;
- Eren—renewable energy produced for electric use (kWh/year);
- Esolar—renewable energy produced for DHW use (kWh/year);
- Ap—total net floor area (m2).
5.2. BIM-Based Energy Simulation Validation
5.3. Sustainability Assessment
5.3.1. Parameter 7
5.3.2. Parameter 8
- —national conventional practice for P8;
- —building DHW needs (kWh/year);
- —building total net area (m2).
6. Conclusions
Author Contributions
Funding
Institutional Review Board Statement
Informed Consent Statement
Conflicts of Interest
Appendix A
| Dimension | Category | Parameters | Category Weight (%) | Dimension Weight (%) |
|---|---|---|---|---|
| Environment | C1—Climate change and outdoor air quality | P1—Construction materials embodied environmental impact | 12 | 40 |
| C2—Land use and biodiversity | P2—Urban density | 19 | ||
| P3—Soil sealing index of the development | ||||
| P4—Use of precontaminated land | ||||
| P5—Use of native plants | ||||
| P6—Heat-island effect | ||||
| C3—Energy Efficiency | P7—Nonrenewable primary energy consumption | 39 | ||
| P8—In situ energy production from renewables | ||||
| C4—Materials and waste management | P9—Materials and products reused | 22 | ||
| P10—Use of materials with recycled content | ||||
| P11—Use of certified organic materials | ||||
| P12—Use of cement substitutes in concrete | ||||
| P13—Waste management during operation | ||||
| C5—Water efficiency | P14—Water consumption | 8 | ||
| P15—Reuse of grey and rainwater | ||||
| Social | C6—Occupant’s health and comfort | P16—Natural ventilation efficiency | 60 | 30 |
| P17—Indoor air quality | ||||
| P18—Thermal comfort | ||||
| P19—Natural lighting performance | ||||
| P20—Acoustic comfort | ||||
| C7—Accessibilities | P21—Accessibility to public transport | 30 | ||
| P22—Accessibility to urban amenities | ||||
| C8—Education and awareness of sustainability | P23—Occupant’s awareness and education regarding sustainability issues | 10 | ||
| Economic | C9—Life cycle costs | P24—Capital costs | 100 | 30 |
| P25—Operation costs |
References
- Horta, R.M.C. Construção Sustentável de Edifícios de Balanço Energético Quase Zero (Sustainable Construction of Nearly Zero-Energy Buildings). Master’s Thesis, Faculdade de Ciências e Tecnologia, Universidade Nova de Lisboa, Lisboa, Portugal, 2012. [Google Scholar]
- Ruparathna, R.; Hewage, K.; Sadiq, R. Improving the energy efficiency of the existing building stock: A critical review of commercial and institutional buildings. Renew. Sustain. Energy Rev. 2016, 53, 1032–1045. [Google Scholar] [CrossRef]
- Santos, R.; Costa, A.A.; Silvestre, J.D.; Pyl, L. Integration of LCA and LCC analysis within a BIM-based environment. Autom. Constr. 2019, 103, 127–149. [Google Scholar] [CrossRef]
- Santos, R.; Costa, A.A.; Silvestre, J.D.; Pyl, L. Informetric analysis and review of literature on the role of BIM in sustainable construction. Autom. Constr. 2019, 103, 221–234. [Google Scholar] [CrossRef]
- Soust-Verdaguer, B.; Llatas, C.; García-Martínez, A. Critical review of bim-based LCA method to buildings. Energy Build. 2017, 136, 110–120. [Google Scholar] [CrossRef]
- Chong, A.; Xu, W.; Chao, S.; Ngo, N.T. Continuous-time Bayesian calibration of energy models using BIM and energy data. Energy Build. 2019, 194, 177–190. [Google Scholar] [CrossRef]
- Gao, H.; Koch, C.; Wu, Y. Building information modelling based building energy modelling: A review. Appl. Energy. 2019, 238, 320–343. [Google Scholar] [CrossRef]
- Edwards, R.E.; Lou, E.; Bataw, A.; Kamaruzzaman, S.N.; Johnson, C. Sustainability-led design: Feasibility of incorporating whole-life cycle energy assessment into BIM for refurbishment projects. J. Build. Eng. 2019, 24, 100697. [Google Scholar] [CrossRef]
- Bragança, L.; Mateus, R.; Koukkari, H. Building Sustainability Assessment. Sustainability 2010, 2, 2010–2023. [Google Scholar] [CrossRef]
- Andriamamonjy, A.; Saelens, D.; Klein, R. A combined scientometric and conventional literature review to grasp the entire BIM knowledge and its integration with energy simulation. J. Build. Eng. 2019, 22, 513–527. [Google Scholar] [CrossRef]
- Ryu, H.-S.; Park, K.-S.; Ryu, H.-S.; Park, K.-S. A Study on the LEED Energy Simulation Process Using BIM. Sustainability 2016, 8, 138. [Google Scholar] [CrossRef]
- Dong, Y.H.; Ng, S.T. A life cycle assessment model for evaluating the environmental impacts of building construction in Hong Kong. Build. Environ. 2015, 89, 183–191. [Google Scholar] [CrossRef]
- Wen, T.J.; Siong, H.C.; Noor, Z.Z. Assessment of embodied energy and global warming potential of building construction using life cycle analysis approach: Case studies of residential buildings in Iskandar Malaysia. Energy Build. 2015, 93, 295–302. [Google Scholar] [CrossRef]
- Li, Y.; Chen, X.; Wang, X.; Xu, Y.; Chen, P.-H. A review of studies on green building assessment methods by comparative analysis. Energy Build. 2017, 146, 152–159. [Google Scholar] [CrossRef]
- European Comission. Climate Strategies and Amp Targets. Available online: https://ec.europa.eu/clima/policies/strategies_en (accessed on 27 December 2018).
- C of the EU European Parliament. Directive 2010/31/EU of the European Parliament and of the Council of 19 May 2010 on the energy performance of buildings (recast). Off. J. Eur. Union 2010, 153, 13–35. [Google Scholar]
- MEE. Regulamento dos Edifícios de Habitação-REH (Residential Buildings Regulation). Decreto-Lei no 159/2013; Série I; Diário da República: Lisboa, Portugal, 2013. [Google Scholar]
- Observatório da Energia, DGEG, and ADENE, Energia em Números 2020. Lisboa. 2020. Available online: https://www.dgeg.gov.pt/media/43zf5nvd/energia-em-números-edição-2020.pdf (accessed on 21 October 2020).
- Montiel-Santiago, F.J.; Hermoso-Orzáez, M.J.; Terrados-Cepeda, J. Sustainability and Energy Efficiency: BIM 6D. Study of the BIM Methodology Applied to Hospital Buildings. Value of Interior Lighting and Daylight in Energy Simulation. Sustainability 2020, 12, 5731. [Google Scholar] [CrossRef]
- Reizgevičius, M.; Ustinovičius, L.; Cibulskienė, D.; Kutut, V.; Nazarko, L. Promoting Sustainability through Investment in Building Information Modeling (BIM) Technologies: A Design Company Perspective. Sustainability 2018, 10, 600. [Google Scholar] [CrossRef]
- Succar, B. Building information modelling framework: A research and delivery foundation for industry stakeholders. Autom. Constr. 2009, 18, 357–375. [Google Scholar] [CrossRef]
- Merschbrock, C.; Munkvold, B.E. Effective digital collaboration in the construction industry-A case study of BIM deployment in a hospital construction project. Comput. Ind. 2015, 73, 1–7. [Google Scholar] [CrossRef]
- AIA. AIA Document G202-2013, Digital Practice Documents, E Series; Project Building Information Modeling Protocol Form; AIA Trust: Washington, DC, USA, 2013. [Google Scholar]
- JWong, K.-W.; Kuan, K.-L. Implementing ‘BEAM Plus’ for BIM-based sustainability analysis. Autom. Constr. 2014, 44, 163–175. [Google Scholar] [CrossRef]
- Najjar, M.; Figueiredo, K.; Palumbo, M.; Haddad, A. Integration of BIM and LCA: Evaluating the environmental impacts of building materials at an early stage of designing a typical office building. J. Build. Eng. 2017, 14, 115–126. [Google Scholar] [CrossRef]
- Zhang, L.; Chu, Z.; He, Q.; Zhai, P. Investigating the Constraints to Buidling Information Modeling (BIM) Applications for Sustainable Building Projects: A Case of China. Sustainability 2019, 11, 1896. [Google Scholar] [CrossRef]
- Carvalho, J.P.; Bragança, L.; Mateus, R. Optimising building sustainability assessment using BIM. Autom. Constr. 2019, 102, 170–182. [Google Scholar] [CrossRef]
- Krygiel, E.; Nies, B. Green BIM: Successful Sustainable Design with Building Information Modelling; John Wiley & Sons: Indianaplois, IN, USA, 2008. [Google Scholar]
- Ansah, M.K.; Chen, X.; Yang, H.; Lu, L.; Lam, P.T.I. A review and outlook for integrated BIM application in green building assessment. Sustain. Cities Soc. 2019, 48, 101576. [Google Scholar] [CrossRef]
- Pezeshki, Z.; Soleimani, A.; Darabi, A. Application of BEM and using BIM database for BEM: A review. J. Build. Eng. 2019, 23, 1–17. [Google Scholar] [CrossRef]
- Kamel, E.; Memari, A.M. Review of BIM’s application in energy simulation: Tools, issues, and solutions. Autom. Constr. 2019, 97, 164–180. [Google Scholar] [CrossRef]
- Shalabi, F.; Turkan, Y. Bim-energy simulation approach for detecting building spaces with faults and problematic behaviour. J. Inf. Technol. Constr. 2020, 25, 342–360. [Google Scholar] [CrossRef]
- Farzaneh, A.; Monfet, D.; Forgues, D. Review of using Building Information Modeling for building energy modeling during the design process. J. Build. Eng. 2019, 23, 127–135. [Google Scholar] [CrossRef]
- Aksamija, A. BIM-Based Building Performance Analysis: Evaluation and Simulation of Design Decisions. In Proceedings of the 17th ACEEE Summer Study on Energy Efficiency in Buildings, Online Event, 12–17 August 2012. [Google Scholar]
- Azhar, S.; Brown, J. BIM for Sustainability Analyses. Int. J. Constr. Educ. Res. 2009, 5, 276–292. [Google Scholar] [CrossRef]
- Lu, Y.; Wu, Z.; Chang, R.; Li, Y. Building Information Modeling (BIM) for green buildings: A critical review and future directions. Autom. Constr. 2017, 83, 134–148. [Google Scholar] [CrossRef]
- Carvalho, J.P.; Bragança, L.; Mateus, R. A Systematic Review of the Role of BIM in Building Sustainability Assessment Methods. Appl. Sci. 2020, 10, 4444. [Google Scholar] [CrossRef]
- Eleftheriadis, S.; Mumovic, D.; Greening, P. Life cycle energy efficiency in building structures: A review of current developments and future outlooks based on BIM capabilities. Renew. Sustain. Energy Rev. 2017, 67, 811–825. [Google Scholar] [CrossRef]
- Gourlis, G.; Kovacic, I. Building Information Modelling for analysis of energy efficient industrial buildings—A case study. Renew. Sustain. Energy Rev. 2017, 68, 953–963. [Google Scholar] [CrossRef]
- Abanda, F.H.; Byers, L. An investigation of the impact of building orientation on energy consumption in a domestic building using emerging BIM (Building Information Modelling). Energy 2016, 97, 517–527. [Google Scholar] [CrossRef]
- Carvalho, J.P.; Silva, S.M.; Mateus, R. Using BIM to streamline the energy renovation processes of residential buildings during the early design stages. In Proceedings of the International Conference on Sustainable Housing Planning, Management and Usability, Porto, Portugal, 16–18 November 2016; Available online: http://repositorium.sdum.uminho.pt/handle/1822/43388 (accessed on 13 March 2019).
- Olawumi, T.O.; Chan, D.W.M. Identifying and prioritizing the benefits of integrating BIM and sustainability practices in construction projects: A Delphi survey of international experts. Sustain. Cities Soc. 2018, 40, 16–27. [Google Scholar] [CrossRef]
- Kim, H.; Shen, Z.; Kim, I.; Kim, K.; Stumpf, A.; Yu, J. BIM IFC information mapping to building energy analysis (BEA) model with manually extended material information. Autom. Constr. 2016, 68, 183–193. [Google Scholar] [CrossRef]
- Reinhart, C.F.; Davila, C.C. Urban building energy modelling—A review of a nascent field. Build. Environ. 2016, 97, 196–202. [Google Scholar] [CrossRef]
- Reeves, T.; Olbina, S.; Issa, R.R.A. Guidelines for using building information modeling for energy analysis of buildings. Buildings 2015, 5, 1361–1388. [Google Scholar] [CrossRef]
- Ardda, N.; Mateus, R.; Bragança, L. Methodology to Identify and Prioritise the Social Aspects to Be Considered in the Design of More Sustainable Residential Buildings—Application to a Developing Country. Buildings 2018, 8, 130. [Google Scholar] [CrossRef]
- Awadh, O. Sustainability and green building rating systems: LEED, BREEAM, GSAS and Estidama critical analysis. J. Build. Eng. 2017, 11, 25–29. [Google Scholar] [CrossRef]
- Mateus, R.; Bragança, L. Sustainability assessment and rating of buildings: Developing the methodology SBToolPT–H. Build. Environ. 2011, 46, 1962–1971. [Google Scholar] [CrossRef]
- Varma, C.R.S.; Palaniappan, S. Comparision of green building rating schemes used in North America, Europe and Asia. Habitat Int. 2019, 89, 101989. [Google Scholar] [CrossRef]
- Wong, J.K.W.; Zhou, J. Enhancing environmental sustainability over building life cycles through green BIM: A review. Autom. Constr. 2015, 57, 156–165. [Google Scholar] [CrossRef]
- Alyami, S.H.; Rezgui, Y. Sustainable building assessment tool development approach. Sustain. Cities Soc. 2012, 5, 52–62. [Google Scholar] [CrossRef]
- Kamaruzzaman, S.N.; Salleh, H.; Lou, E.C.W.; Edwards, R.; Wong, P.F. Assessment Schemes for Sustainability Design through BIM: Lessons Learnt. MATEC Web Conf. 2016, 66, 00080. [Google Scholar] [CrossRef]
- Zhang, D.; Zhang, J.; Guo, J.; Xiong, H. A Semantic and Social Approach for Real-Time Green Building Rating in BIM-Based Design. Sustainability 2019, 11, 3973. [Google Scholar] [CrossRef]
- Ade, R.; Rehm, M. The unwritten history of green building rating tools: A personal view from some of the ‘founding fathers’. Build. Res. Inf. 2020, 48, 1–17. [Google Scholar] [CrossRef]
- Raouf, A.M.I.; Al-Ghamdi, S.G. Building information modelling and green buildings: Challenges and opportunities. Archit. Eng. Des. Manag. 2019, 15, 1–28. [Google Scholar] [CrossRef]
- Haapio, A.; Viitaniemi, P. A critical review of building environmental assessment tools. Environ. Impact Assess. Rev. 2008, 28, 469–482. [Google Scholar] [CrossRef]
- Santos, R.; Costa, A.A.; Silvestre, J.D.; Vandenbergh, T.; Pyl, L. BIM-based life cycle assessment and life cycle costing of an office building in Western Europe. Build. Environ. 2020, 169, 106568. [Google Scholar] [CrossRef]
- Caetano, N.S.; Carvalho, R.R.; Franco, F.R.; Afonso, C.A.R.; Felgueiras, C. Sustainable engineering labs-A Portuguese perspective. Energy Procedia. 2018, 153, 455–460. [Google Scholar] [CrossRef]
- Ferreira, J.; Pinheiro, M.D.; de Brito, J. Portuguese sustainable construction assessment tools benchmarked with BREEAM and LEED: An energy analysis. Energy Build. 2014, 69, 451–463. [Google Scholar] [CrossRef]
- Pires, S.M.; Fidélis, T. Local sustainability indicators in Portugal: Assessing implementation and use in governance contexts. J. Clean. Prod. 2015, 86, 289–300. [Google Scholar] [CrossRef]
- Bragança, L. SBTool Urban: Instrumento Para a Promoção da Sustentabilidade Urbana. 2017. Available online: http://civil.uminho.pt/urbenere/wp-content/uploads/2018/05/E28-SINGEURB-2017.pdf (accessed on 28 December 2018).
- Castro, M.d.; Mateus, R.; Bragança, L. Development of a healthcare building sustainability assessment method–Proposed structure and system of weights for the Portuguese context. J. Clean. Prod. 2017, 148, 555–570. [Google Scholar] [CrossRef]
- Azhar, S.; Carlton, W.A.; Olsen, D.; Ahmad, I. Building information modeling for sustainable design and LEED® rating analysis. Autom. Constr. 2011, 20, 217–224. [Google Scholar] [CrossRef]
- Jalaei, F.; Jrade, A. Integrating building information modeling (BIM) and LEED system at the conceptual design stage of sustainable buildings. Sustain. Cities Soc. 2015, 18, 95–107. [Google Scholar] [CrossRef]
- Marzouk, M.; Azab, S.; Metawie, M. BIM-based approach for optimizing life cycle costs of sustainable buildings. J. Clean. Prod. 2018, 188, 217–226. [Google Scholar] [CrossRef]
- Salgueiro, I.B.; Ferries, B. An ‘Environmental BIM’ Approach for the Architectural Schematic Design Stage. Int. J. Archit. Comput. 2015, 13, 299–312. [Google Scholar] [CrossRef]
- Li, J.; Li, N.; Afsari, K.; Peng, J.; Wu, Z.; Cui, H. Integration of Building Information Modeling and Web Service Application Programming Interface for assessing building surroundings in early design stages. Build. Environ. 2019, 153, 91–100. [Google Scholar] [CrossRef]
- Ilhan, B.; Yaman, H. Green building assessment tool (GBAT) for integrated BIM-based design decisions. Autom. Constr. 2016, 70, 26–37. [Google Scholar] [CrossRef]
- Oti, A.H.; Tizani, W.; Abanda, F.H.; Jaly-Zada, A.; Tah, J.H.M. Structural sustainability appraisal in BIM. Autom. Constr. 2016, 69, 44–58. [Google Scholar] [CrossRef]
- Gandhi, S.; Jupp, J. BIM and Australian Green Star Building Certification. In Proceedings of the 2014 International Conference on Computing in Civil and Building Engineering, Orlando, FL, USA, 23–25 June 2014; pp. 275–282. [Google Scholar] [CrossRef]
- GhaffarianHoseini, A.; Doan, D.T.; Naismith, N.; Tookey, J.; GhaffarianHoseini, A. Amplifying the practicality of contemporary building information modelling (BIM) implementations for New Zealand green building certification (Green Star). Eng. Constr. Archit. Manag. 2017, 24, 696–714. [Google Scholar] [CrossRef]
- Carvalho, J.P.; Bragança, L.; Mateus, R. Sustainable building design: Analysing the feasibility of BIM platforms to support practical building sustainability assessment. Comput. Ind. 2021, 127, 103400. [Google Scholar] [CrossRef]
- El-Diraby, T.; Krijnen, T.; Papagelis, M. BIM-based collaborative design and socio-technical analytics of green buildings. Autom. Constr. 2017, 82, 59–74. [Google Scholar] [CrossRef]
- Chong, H.-Y.; Lee, C.-Y.; Wang, X. A mixed review of the adoption of Building Information Modelling (BIM) for sustainability. J. Clean. Prod. 2017, 142, 4114–4126. [Google Scholar] [CrossRef]
- Liu, Z.; Osmani, M.; Demian, P.; Baldwin, A. A BIM-aided construction waste minimisation framework. Autom. Constr. 2015, 59, 1–23. [Google Scholar] [CrossRef]
- Larsson, N. SB Method and SBTool for 2011-Overview. Available online: http://www.iisbe.org/system/files/private/NilsLarsson_NewSBToolGenericFramework.pdf (accessed on 11 December 2018).
- Vonka, M.; Hajek, P.; Lupisek, A. SBToolCZ: Sustainability rating system in the Czech Republic. Int. J. Sustain. Build. Technol. Urban. Dev. 2013, 4, 46–52. [Google Scholar] [CrossRef]
- Castro, M.d.; Mateus, R.; Serôdio, F.; Bragança, L. Development of Benchmarks for Operating Costs and Resources Consumption to be Used in Healthcare Building Sustainability Assessment Methods. Sustainability 2015, 7, 13222–13248. [Google Scholar] [CrossRef]
- IteCons and University of Coimbra, Plataforma para a Eficiência Energética de Edifícios. Available online: http://www.itecons.uc.pt/p3e/index.php (accessed on 19 November 2020).
- Mateus, R.; Silva, S.M.; de Almeida, M.G. Environmental and cost life cycle analysis of the impact of using solar systems in energy renovation of Southern European single-family buildings. Renew. Energy 2019, 137, 82–92. [Google Scholar] [CrossRef]
- INE and LNEC, O Parque Habitacional e a sua Reabilitação-Análise e Evolução: 2001–2011 (Housing Stock and Rehabilitation–Analysis and Evolution: 2001–2011). Lisboa. 2013. Available online: https://www.ine.pt/xportal/xmain?xpid=INE&xpgid=ine_publicacoes&PUBLICACOESpub_boui=165231362&PUBLICACOEStema=00&PUBLICACOESmodo=2 (accessed on 11 May 2021).
- Sousa, J.; Bragança, L.; Almeida, M.; Silva, P. Research on the Portuguese Building Stock and Its Impacts on Energy Consumption–An Average U-Value Approach. Arch. Civ. Eng. 2013, 59, 523–546. [Google Scholar] [CrossRef]
- Luís Matias e Pina dos Santos. Coeficientes de Transmissão Térmica de Elementos da Envolvente dos Edifícios (Heat Transfer Coefficients from Building Envolope Elements); Laboratório Nacional de Engenharia Civil (LENC): Lisboa, Portugal, 2009. [Google Scholar]
- Ministério do Ambiente, Ordenamento do Território e Energia-Direção-Geral de Energia e Geologia. Despacho no 15793-K/2013 Diário da República no 234/2013, 3o Suplemento, Série II; Ministério do Ambiente: Lisboa, Portugal, 2013.
- Ministério do Ambiente, Ordenamento do Território e Energia. Portaria 379-A/2015, 2015-10-22-DRE. Available online: https://dre.pt/web/guest/pesquisa/-/search/70789581/details/normal?l=1 (accessed on 19 November 2020).


| Qualitative Level | Quantitative Value |
|---|---|
| A+ | |
| A | |
| B | |
| C | |
| D | |
| E |
| Element | Existing Building | New Building | |
|---|---|---|---|
| Reference Model | Optimised Model | ||
| Exterior walls | Simple brick wall (15 cm) U = 1.69 W/(m2K) | Double brick wall (15 + 11) with XPS insulation (6 cm) in the middle U = 0.40 W/(m2K) | Double brick wall (15 + 11) with XPS insulation (5 cm) in the air cavity (2 cm) U = 0.38 W/(m2K) |
| Interior walls | Simple brick wall (11 cm) U = 1.78 W/(m2K) | ||
| Floor slab | Lightweight block and beam slab (20 cm) and wooden floor finishing (3 cm) U = 1.60 W/(m2K) | Lightweight block and beam slab (20 cm), with interior XPS insulation (7 cm) and wooden floor finishing (3 cm) U = 0.34 W/(m2K) | Lightweight block and beam slab (25 cm), with interior XPS insulation (4 cm) and wooden floor finishing (3 cm) U = 0.30 W/(m2K) |
| Roof slab | Lightweight block and beam slab (25 cm) U = 2.02 W/(m2K) | Lightweight block and beam slab (25 cm), with exterior XPS insulation (8.5 cm) and waterproof membrane U = 0.35 W/(m2K) | Lightweight block and beam slab (25 cm), with exterior XPS insulation (8.5 cm), waterproof membrane and gravel (5 cm) U = 0.35 W/(m2K) |
| Sloped roof | Lightweight block and beam slab (25 cm) with ceramic tile U = 2.02 W/(m2K) | Lightweight block and beam slab (25 cm) with ceramic tile U = 2.02 W/(m2K) | - |
| Windows–glass | Single glass 6 mm (Solar factor 0.85) U = 2.50 W/(m2K) | Double-glass 6 mm + 4 mm (Solar factor 0.78) U = 1.50 W/(m2K) | |
| Windows–frame | Wooden frame (w/ exterior shutter) U = 2.50 W/(m2K) | Aluminium frame with thermal break (w/ exterior shutter) U = 1.50 W/(m2K) | |
| Exterior doors | French wooden door U = 1.50 W/(m2K) | ||
| Interior doors | Wooden light door U = 2.50 W/(m2K) | ||
| Successfully Transmitted | Not Transmitted |
|---|---|
| Building geometry | Building location |
| Building orientation | Material characteristics |
| Walls and floors thickness | Compartment’s height |
| Opening’s identity, size and location | Building energy system |
| Compartment’s area | |
| Compartment’s identity |
| Energy Needs | Existing Building | New Building | ||
|---|---|---|---|---|
| Reference Model | Optimised Model | |||
| Nic kWh/(m2·year) | 201.21 | 38.61 | 27.12 | |
| Limit value | Ni kWh/(m2·year) | 49.00 | 68.07 | |
| Nvc kWh/(m2·year) | 4.98 | 4.35 | 7.91 | |
| Limit value | Nv kWh/(m2·year) | 9.15 | 9.15 | |
| Ntc kWhPE/(m2·year) | 518.29 | 111.26 | 80.17 | |
| Limit value | Nt kWhPE/(m2·year) | 165.79 | 195.61 | |
| Qa (kWh/year) | 2139.85 | |||
| Nac kWh/(m2·year) | 28.56 | |||
| Reference Model | Difference (%) | Optimised Model | Difference (%) | |||
|---|---|---|---|---|---|---|
| Cypetherm REH | REH Spreadsheet | Cypetherm REH | REH Spreadsheet | |||
| Nic | 201.21 | 200.68 | 0.26 | 38.61 | 38.54 | 0.18 |
| Ni | 49.00 | 45.97 | 6.18 | 49.00 | 45.97 | 6.18 |
| Nvc | 4.98 | 4.61 | 7.43 | 4.35 | 4.35 | 0.00 |
| Nv | 9.15 | 9.13 | 0.22 | 9.15 | 9.13 | 0.22 |
| Nac | 28.56 | 28.56 | 0.00 | 28.56 | 28.56 | 0.00 |
| Ntc | 518.29 | 516.66 | 0.32 | 111.26 | 111.08 | 0.16 |
| Nt | 165.79 | 158.18 | 4.59 | 165.79 | 158.18 | 4.59 |
| New Building | Difference (%) | ||
|---|---|---|---|
| Cypetherm REH | REH Spreadsheet | ||
| Nic | 27.12 | 26.78 | 1.27 |
| Ni | 68.07 | 65.36 | 4.14 |
| Nvc | 7.91 | 7.91 | 0.00 |
| Nv | 9.15 | 9.13 | 0.22 |
| Nac | 28.56 | 28.56 | 0.00 |
| Ntc | 80.17 | 81.11 | 1.17 |
| Nt | 195.61 | 189.61 | 3.16 |
| Cypetherm REH | REH Spreadsheet | |
|---|---|---|
| Effective glazed area facing south (m2) | 6.75 | 6.75 |
| × | × | |
| Average south radiation (kWh/m2·month) | 130.00 | 130.00 |
| × | × | |
| Heating season duration (months) | 6.23 | 6.23 |
| = | = | |
| Gross solar gains (kWh/year) | 5466.83 | 5472.29 |
| Qualitative Level | Quantitative Value | P7 | P8 | ||||
|---|---|---|---|---|---|---|---|
| Existing Building | New Building | Existing Building | New Building | ||||
| Reference | Optimised | Reference | Optimised | ||||
| A+ | |||||||
| A | X | ||||||
| B | X | ||||||
| C | |||||||
| D | X | X | X | ||||
| E | X | ||||||
Publisher’s Note: MDPI stays neutral with regard to jurisdictional claims in published maps and institutional affiliations. |
© 2021 by the authors. Licensee MDPI, Basel, Switzerland. This article is an open access article distributed under the terms and conditions of the Creative Commons Attribution (CC BY) license (https://creativecommons.org/licenses/by/4.0/).
Share and Cite
Carvalho, J.P.; Almeida, M.; Bragança, L.; Mateus, R. BIM-Based Energy Analysis and Sustainability Assessment—Application to Portuguese Buildings. Buildings 2021, 11, 246. https://doi.org/10.3390/buildings11060246
Carvalho JP, Almeida M, Bragança L, Mateus R. BIM-Based Energy Analysis and Sustainability Assessment—Application to Portuguese Buildings. Buildings. 2021; 11(6):246. https://doi.org/10.3390/buildings11060246
Chicago/Turabian StyleCarvalho, José Pedro, Manuela Almeida, Luís Bragança, and Ricardo Mateus. 2021. "BIM-Based Energy Analysis and Sustainability Assessment—Application to Portuguese Buildings" Buildings 11, no. 6: 246. https://doi.org/10.3390/buildings11060246
APA StyleCarvalho, J. P., Almeida, M., Bragança, L., & Mateus, R. (2021). BIM-Based Energy Analysis and Sustainability Assessment—Application to Portuguese Buildings. Buildings, 11(6), 246. https://doi.org/10.3390/buildings11060246

