Abstract
This article addresses the question of collective housing from the standpoint of two key notions in the contemporary architectural debate: care and the commons. With this objective in mind, a series of analytical parameters are put forward. The aim is to contribute to broadening and qualifying our understanding of the production and management of the collective habitat. As an illustration of each of the ideas expounded in this this paper, insightful examples of recent Spanish architecture are specifically selected and commented, as well as two case studies chosen to elaborate upon their particularities. They all share the fact of being projects, partly or wholly, designed by women, a matter which has had particular relevance in the creation of more sensitive, diverse and integration of built environments. At a time of acute health, economic and social crisis, as well as isolation and insecurity, more than ever, there is an urgent need for inspirational new ways of living and thinking in common.
1. Introduction
The domestic realm plays an intrinsic role in a wide range of socioeconomic structures, interests, and discourses having a variety of far-reaching consequences, from implications to daily life to major environmental costs [1]. Rather than a private question, home is a permeable space of great political complexity. It is the product of, among other factors, cultural norms, class rituals, and changing lifestyles. Housing is also the result of multi-layered legislations enforcing regulations and building codes, as well as of advertising and commercial practices informing uses and esthetics [2]. The design and construction of collective housing depend on a variety of technologies which, far from being politically neutral, configure a “contested territory” [3] (p. 86), where multifaceted networks of interacting agents and controversies intertwine. Thus, giving thought to the architecture of housing is a collective task, a common responsibility demanding broader perspectives and new conceptual frameworks to envisage major challenges and obstacles to both the right to shelter and the right to the city as central, interwoven concerns.
In times of ecological devastation, the conjunction of the COVID-19 pandemic and the climate crisis have exposed the magnitude of such challenges, particularly the lack of spatial quality and the insensitive material culture of our current housing models, as well as their energy inefficiency and social inequality, which are, in turn, also interrelated aspects. Therefore, re-imagining better futures implies, first, to recognize the extent of the problems we face by understanding the tentacular nature of the practices involved; then, rethinking the architecture that we need to live together in terms of the interdependence and eco-dependence of human and non-human actors, urban and natural environments. Building more livable futures entails an “ecology of practices” [4] as a new tool for thinking up alternative policies and ways of organization and cooperation for communities where roles—such as producer/product—are not always assigned nor fixed. This requires expanding the framework for theorization, criticism, and action plans of collective housing, as well as the extension of the scope and the broadening of the idea itself of inhabiting.
2. Objective, Methods, Scope
The aim of this paper is to broaden notions of collective housing by bringing together ideas, approaches to, and experiences of care and the commons from political, economic and socio-cultural discourses into architecture. As we will try to demonstrate, necessary broadening, which is both a conceptual task and a situated practice, requires a discussion of the idea of extension itself.
To do so, etymology is a useful point of departure, a first method for the analysis, since it helps situate the main ideas and keywords of such a discussion.
Beginning with “extension”, “to extend”, from Anglo-French estendre, derives from the Latin word extendere, which is composed of the prefix ex, “out”, and tendere, “to stretch”. It evolved into a synonym for “increase, make longer/broader, prolong, continue and lengthen”, both in space and in time. Also, its contemporary meaning has endured as a synonym for “amplify”, from the Latin amplificare, “to enlarge”, which is related to amplus, “large, spacious, abundant”, a term derived from the lexeme plus, which simply means “more”, or “in addition to”.
In architecture, the question of “adding more”, as an aspiration and a possibility, as a value but also as a source of potential conflicts, pertains equally to both the quantitative and the qualitative, the tangible and the intangible. In the specific case of collective housing, this article examines what we need or wish for most, particularly, what those necessary or desirable things may contribute to accomplishing better dwellings and better architecture for more inclusive futures.
A second method to deal with such challenges is a historical and historiographical investigation. That is, the establishment of a framework that helps visualize the extent to which some of the most significant theoretical and practical contributions in the recent history of collective housing have understood that the role of architecture is not always to solve specific problems but also to present them in a different way that allows us to envisage new tools and approaches in order to cope with emerging issues in the field.
A third method is the analysis of two local case studies in Alicante and Murcia, Spain, whose contributions to the architecture of collective housing and to its relationship with the city can be explained through a combination of the nine ideas set forth in the section below, all of them illustrated by contemporary cases of recent Spanish housing projects created by women architects.
The aim of the following two sections—respectively, Section 3 as an exercise in conceptualizing such a comprehensive framework for the examination of current challenges and opportunities of housing; and Section 4 as the discussion of the two case studies selected as representative of the current situation in the Southeast of Spain—is thus to mobilize and expand ideas of the care and the commons into a more wide-ranging discourse on the architecture of collective housing. In order to achieve a more livable built environment, there is an urgent need for us to consider what has been neglected or forgotten so far and to develop new attitudes that incorporate the ethos of living and thinking in common. In this sense, the “care for thinking” is essentially a “matter of care” [5], a care for speculating [6], communicating [7], and building together.
Therefore, this article aims to engage the idea of extension, which is formal (the aforesaid physical and conceptual nature of space [8]) with the idea of the common, which is political, through the notion of care as the most sensitive form of reciprocity, that is, “the co-activity” defining “the basis of the political obligation” of what is truly common, as Christian Laval and Pierre Dardot have described [9] (p. 28). It is no accident that the words “mutual” and “common” share the same Latin root munus, the exchangeable gift.
Finally, the conclusions are drawn as a precipitate from the most significant notions detected in the theoretical development of disciplinary and extra-disciplinary discussions that can contribute most to this matter, as well as the experiential analysis of the case studies provided by this research paper, whose selection and relevance is further explained at the beginning of Section 4.
3. Culture of Care and the Common Space
We need to establish a starting point as to what we understand as architecture, aware, as we are, of the complex relationship it has with language [7], and that the very idea or architecture, as well as the meaning of the large words we use to think it collectively—domesticity, function, nature, space, type, etc.—have been constantly changing over time. For example, the notion that underlies the “aggressive”—according to Kenneth Frampton [10] (p. 55)—yet technologically driven definition of the house as “a machine for living in” [11] (p. 4), i.e., the artifact, is not an invention of Le Corbusier. It is there, at least, in the oldest source of architectural treatises, Vitruvius, and his understanding of architecture as the “art of building” [12], which has been continuously adopted throughout the majority of its founding modern histories [13].
Yet, from a wider, contemporary perspective, we understand architecture as a series of socio-spatial, material, and symbolic assemblages [14] connecting the private and the public realms through multiple cross-scale relationships, which interweave buildings with cities and cities with the infrastructures [15] and territories giving them support [16]. Architecture, and particularly that of collective housing, involves a complex knot of conflicting agents, interests, policies, and technological forces, which shape our habitat and have a significant impact on the construction of subjectivities [16]. According to Andrés Jaque, architecture is the result of a form of “transmaterial” production, a “processes developed through the coordination of different material media (the built environment, the biology of beings, online interaction)”. This concept is the basis of Jaque’s research and design projects, which help us “rethink daily life as the trans-enactment of heterogeneous technologies, materialities, performativities and practices” [17] (p. 14). Similarly, it should be emphasized that to extend architecture is not only connected with expanding that which is built, that is, a problem of physical nature, but also as Rem Koolhaas intimates in his discussion of scale [18], a conceptual matter.
It seems evident that more construction does not necessarily mean more architecture, as has been shown by the developmental growth and expansion of our cities [19]. What is more, the qualitative nature of the notion “extending architecture” may also be applied to the elimination of excesses of all types, where space is freed through reclassification. We can also speak of architecture achieved through reduction or simplification, a position taken by n’UNDO’s think tank and technical office [20]. A surgical procedure which, in view of the subject at hand, may be beneficial, as we will further elaborate.
There are also other ways of decoding Le Corbusier’s formula. It is enough to underline the verb “living”, as Viollet-le-Duc alludes to in his Histoire de l’habitation humaine [21], and not the noun “machine”, in which, moreover, lies the unquestionable provocation intended by its author. From this point of view, that of human habitation, architecture acquires a philosophical, moral, and even metaphysical dimension. Heidegger [22] establishes the condition of the inhabitant as pertaining to the human being, who inhabits that which is built, which leads us to take, at least, two circumstances into account: one physical-utopian and the other anthropological.
The physical-utopian circumstance is referred to in the paradise lost and yearned for, a recurrent metaphor both in Islamic culture and in the Western tradition—where it has numerous biblical connotations—and to which Semper alludes in his beautiful formula of the “tiny world” [23] (p. 13). The anthropological is paramount to Classical treatises, from Rome onwards, with constant references to the forms and figure of the human body, which, incidentally, is always masculine and Caucasian. In this Western tradition, as Joel Sanders states, from Vitruvius to Le Corbusier, in their attempt to legitimize the principles of design practice, architects turned architecture and masculinity into mutually reinforcing ideologies [24]. This is also Palladio’s proposal of “uno intiero e ben finito corpo” (a whole and well finished body) [25] (I-1 pp. 6–7). To be happy in your own skin and enjoy a welcoming environment are also two of the most fundamental aspirations of architecture throughout time and place, giving us the definitions that we are most interested in here: architecture conceived as a second skin (or third if, according to Hundertwasser [26], we consider our clothing) and a new Eden regained.
It should be said, that in the middle of the Anthropocene [27] or, rather, Anthrobscene [28], this alluded to and longed for well-being does not and cannot solely refer to the human, but it also calls, on a horizontal plane, to the non-human [29], to other entities beyond the human existence, with which it is necessary to make a new natural contract [30]. In such a way that, as Alicia Puleo proposes, the slogan of the French Revolution should be reformulated to “liberty, equality and sustainability”, giving rise to an “enlightened ecofeminism” [31] (p. 39). We share Andrea Díaz’s view [32] that this interpretation of ecofeminism is especially successful and useful when formulating effective strategies to work on a fairer future. In Puleo’s own explanation, it must be understood as an ethical-political reflection on the relationship between humans and nature. Although there is a diversity of insightful approaches and lines of actions pertaining to ecofeminism, such as those put forth by Ariel Salleh [33], Mary Mellor [34], Bina Agarwal [35], or Maria Mies and Vandana Shiva [36], we engage here with two of the main aspects that characterize Puleo’s critical ecofeminism. Firstly, her discourse obliges us to underline that the said earthly paradise banishes violence as a source of alienation. Yet, Puleo’s proposal does not shy away from conflict as an opportunity for exercising critical spirit and discussion, as for her, the longed-for well-being is not a defense of self-absorption but a sine qua non condition for the compassion of which this author speaks. Secondly, it “fosters the universalization” of the values associated with care for “humans and nature” [31] (p. 42).
The culture of care, which Carol Gilligan [37] had, already in 1982, elevated to the “ethic of care”, is intimately and directly related to one of the two definitions which, in its origins, includes the German word bauen, which means “to build” in the sense of to erect, to construct, but also “to cherish and protect, to preserve and care for” [22] (p. 349). This way of understanding building, not to produce but to cultivate and to foster growth, leads us to the “dwelling” which, paraphrasing Heidegger, adds up to constructing, sheltering and caring.
Izaskun Chinchilla has devoted her latest book, La ciudad de los cuidados (City of Care) [38], to characterizing caring architecture, whose properties point to this qualitative and positive extension, which we seek to explore in this paper. To do so, first, we suggest a series of valuable examples of collective housing by Spanish women architects, which illustrate the parameters of our analysis, and then, we propose two more cases-studies for deeper discussion.
We must also emphasize the condition of “care” as inextricably linked to an urgent global change of paradigm of which architecture must be a reflection. Indeed, it is important to remember that etymologically, not by chance, the word “care” is itself the result of a conceptual inversion. The origin of this term, in Old English caru, meant “sorrow, grief”, and also “concern, anxiety”. Its current meaning derives from a reaction to counteract these negative feelings, “to not care”, which eventually evolved to its opposite meaning, “attention with a view to safety or protection”. The English word and its main sense—that of inward grief—is not connected with Latin cura, care. Significantly, in Spanish, the word for care, cuidar, comes from Latin cogitare, which means “to think”. Thus, this allows us to reformulate the incorporeal, and thus uninvolved, Cartesian vision “I think, therefore I am” to “I care, therefore I build” or, even “I inhabit, therefore I am satisfied”, free and at peace.
Returning to architecture, what is important is the inhabited space which gives it its meaning. “A home is not a house”, proclaims Reyner Banham [39] and isolates himself naked inside a bubble. A house, however, must be a home. Chinchilla, for her part, also insists on this idea in her project “hogar sin casa” (“home without a house”) [38] (p. 137) in which, taking away the need to construct private second residences, the use of this space is made available to the citizens as a whole. To inhabit is a necessary, although perhaps not sufficient, condition of all architecture. Only by living in it in common can we understand and enjoy it fully.
Within this conceptual framework, the idea of extending architecture is concerned with, on the one hand, ways of inhabiting—the house, the city, the planet—based on mutual care. All of which suggests a different rhythm to the interplay with respect to space and time, with its delays and pauses. Those material and symbolic elements of architecture that care for people and the environment should be considered. Our survival depends on them. Architecture relates to both the supports and those activities, beyond the purely domestic, which allow people to live and cohabit in habitats which foster their self-fulfillment and their relations with others. To inhabit, then, is, both in ontological and entropic terms, to interchange with. It requires of architecture a physical condition, which implies design and production (efficient solutions which minimize their impact) and, also, maintenance (the efficacy of policies and economies), and other social condition, which lead to the forging of emotional ties and resilience.
On the other hand, we cannot imagine an extension of architecture without considering the common, that is to say, that which emerges somewhere between the private and the public and, thus, is the result of an equal balance, an even dialogue. The common, staying true to its etymology—munus, which is simultaneously what must be actively fulfilled (a task, a function, a commission, etc.) and the gift that we are obliged to repay in exchange for that obligation [9]—it is, as Marina Garcés reminds us [40] (p. 125), “that which articulates the empty space of the community”, the debt or the moral responsibility that we are obliged to contribute to the other members of our community.
In view of this, the following presentation is a conceptual and political agenda consisting of a series of ideas or idées-force (driving ideas, ideas in action—to reinterpret Fouillée’s theories [41]), exemplified by collective housing projects that are not particularly media-friendly or are apart from the hegemonic and geographically canonical discourse. This selection of cases pays special attention to those partially or wholly undertaken by Spanish women architects, which aim to sustain and illustrate the following reflections:
To facilitate the provision of care, we need:
- More free time, or the necessity of restful peace and quiet;
- More empty space after disposing of unnecessary obstacles;
- More ways of inhabiting and becoming involved;
- More inhabitants determined and with the will to inhabit.
3.1. More Free Time, or the Necessity of Restful Peace and Quiet
Space and time are concepts that correspond to each other. Haste, for example, which supposes a lack of time, “narrows” the space, as demonstrated by the rapids of a river caused by a narrowing of the landscape where the river passes; or the so-called musical stretti (literally meaning narrows) of a fugue, known as such because the entry of the voices in counterpoint pile up on and overlap with each other. In the case of the river, it is the space which is narrowed; in that of the music, it is time, but in both cases the consequence is a velocity that accelerates events.
Online culture, in that it rewards and insists on the dominance of “now” and “real time”, is a contradiction of the sense and sensibilities of space. To linger, to pause, however, dilates and prolongs the sensation of time, expanding our Bergsonian perception of time [42], holding it back. Even though this is merely an illusion, it is fundamental for the social psychology of space. Architecture in combination with time contributes to this therapy, whose imaginary character makes it no less efficient. Care is interlaced with rest, which means relaxation and support, in both a literal (base, fundament) and metaphorical (assistance, stimulation) sense.
Far from achieving their objective of connection and interconnection, the technologies of simultaneous presence have not reduced the working day, neither have they contributed to saving time, which we can devote to other aspects of life and other ways of living together. On the contrary, the unstoppable advance of digitalization, first, gave rise to a new social contract in which the increasingly vulnerable classes rendered their talent and dedication to a market that has greatly profited from their vocation [43]; and, then later, with the backdrop of the COVID-19 pandemic it renegotiated flexibility in terms of complete availability. Thus, in the isolation and fragmentation of our homes, we are subject to the threat of an absolute control, which can always disconnect us at will, as Slavoj Žižek reminds us [44].
It is here where architecture must decide how to react in order to overrun this controlled space with a new design logic, which allows us “to smooth, collapse, or expel the stratified mechanizations of lived time” [45] (p. 5). According to Jill Stoner, here “emerges the sense of the political with which minor architectures are concerned. As conflict rises up, it reformulates collapsed time back into an undifferentiated stream. Fluid time (and its attendant space) surrounds and overwhelms the management of lived time; it is a contestation to management” [45] (p. 5).
The winning project at Europan-Spain 7 in La Unión (Murcia), by Gálvez + Wieczorek (2003), is representative of this discourse, in that it puts forward a series of spatial experiences that seek to make human desires and collective imagination habitable. In order to do this, the creators propose that notions such as silence and rest become categories that define the habitation of the living space (Figure 1).
Figure 1.
Fabric of Happiness, Europan 7, La Unión, Murcia, Spain. Drawing: Gálvez + Wieczorek.
3.2. More Empty Space after Disposing of Unnecessary Obstacles
One efficient and non-aggressive way of expanding space is to clear it of barriers and obstacles, emptying it out. “Fewer” things “is more” space (we understand this as referring to objects, but above all, pointless divisions and partitions). Some of the lessons learnt from modernity are still valid in this respect. If to this empty space (il vuoto) of which Bruno Zevi spoke [46] in his defense of modern architecture, we add transparency—physical, social and political—which can extend inhabitable space, we gain a wider range of angles of sight. Because, in fact, the empty and quantifiable space of modernity [47], with its radical detachment from all that is outside architecture, as Pier Vittorio Aureli states [48] (p. 46), “precisely reflects that which one cannot see: the generic space of interchange and reproduction”, which is typical of capitalist logic.
Many years hence, Amos Rapoport [49] declared that the primary quality of space is quantity, but let us not fall into the trap of fantasizing about limitless space. Architectural space is limited by the material elements that define it both in terms of quantity and quality. Since Bruno Zevi [46] and particularly after Aldo van Eyck put forth his “in-between” notion in 1962 [50]—an idea later appropriated by Herman Hertzberger [51] and more recently explored successfully by Atelier Bow-Wow [52]—the conceptual achievements of spatialism have favored a very fertile poetry of vacuum and concavity, but also one which is achieved only when the space becomes perceivable. Neither time nor space, when considered as absolutes, are the concern of architecture but of philosophy and science [53].
Caring architecture requires both material and immaterial design and production. Yet, it always bears in mind that more matter means more deterioration [54,55]. In line with the Heideggerian “to build” polysemy, the immaterial nature of care—diversity, trust, networks of affection—is inextricably linked to material technologies, which are the basis of the dwelling. Frequently, the architect acts as an intermediary between the desires, resources, as well as life patterns of the inhabitants, and the way in which these things occur in space and in time. The architect brings their expert knowledge, which interprets a series of immaterial demands in terms of spatial, material and symbolic culture [56]. For this reason, production must be reduced to the essential minimum in terms of achieving the maximum potential. Not only as a guarantee of minimizing consumption of resources, but also of the determinism related to the production of modern space. In this sense, if we invert Joseph Raphson’s axiom to read, “Action is pure space”, as Jill Stoner proposes, “then then we encounter architecture’s back door. Yet there is no arrival; instead, this door is an exit toward uncertainty” [45] (p. 15). The possibility of not having a clear objective has been little explored in architecture—beyond a resistance to convention or to following a well-travelled path—however, sometimes it is not necessary to know where one is going, it is enough to know where one does not wish to go [57].
Peris + Toral Arquitectes’s projects of collective housing for elderly people in Barcelona (2008–2017) and social housing in Ibiza—currently under construction—exemplify this search for essentiality, for fluid and interrelated spaces, open to promising transformations and consequently different appropriations. In the first of these cases, the building’s natural organization around a central core facilitates the sharing of spaces for common uses, whereas, in the second one, the sequence of communicating rooms makes the domestic easily reconfigurable (Figure 2).
Figure 2.
Mixed-use housing complex for elderly people in Barcelona (a) and social housing complex in Ibiza, Spain (b). Drawings: Peris + Toral Arquitectes.
3.3. More Ways of Inhabiting and Becoming Involved
For several decades now, debate has opened up on the capacity of architecture to accommodate and even promote new ways of inhabiting [58,59]. Architectural practices are capable of fostering or hindering multiple, alternative ways of experiencing domesticity, beyond and sometimes in resistance to the traditional structures of modernity, which conceived the inhabitant as being within a homogeneous series of spatial, social, and gender categories. The idea of the houses that we live in being machines had been rendered obsolete even before the first post-modern debates on new family, affective, or identity models began to put their focus on the specific user rather than a generic customer [60]. As Marina Otero writes, “The ruins of modernity along with the new technologies have engendered other forms of homogeneity, control, and exclusion, but also a series of collective human and non-human assemblages where the categories of subject and object are dissolved; archiurbanisms of conflict and of affections, of disputes and dissidence, of fear and eroticism” [61] (p. 13), online/offline domesticity, in sum, as a political arena, as defended by Jaque [62].
Moreover, there are many diverse Spanish proposals and research studies that address the question of an “expanded and increased domesticity” [63] (p. 85) through new relationships of functional interdependence, through devices and technology which connect the dwelling both to its immediate surrounding and to the wider network of services and infrastructures. Among them, Anna Puigjnaer’s Kitchenless City, which explores the model of shared housing, or the projects set out by María Langarita and Víctor Navarro in Barcelona (2015) and Málaga (2017), where they proposed the creation of new ways of inhabiting from the starting point of social cohesion and urban diversity, as well as strategies that go beyond the limits of construction (Figure 3).
Figure 3.
European-Spain 13 proposal: In Movement, Barcelona (a) and Green Block collective housing project in Málaga, Spain (b). Drawings: Langarita Navarro Arquitectos.
Once again, primum vivere (first living), that is, life itself, has surpassed the discipline, deinde philosophari (then thinking), and it has been filled with innovative, creative, affective, and sympathetic ways to understand the act of living together, intimately and collectively—also with non-human inhabitants. Extending architecture in the above sense, aimed at widening its gaze, and incorporating new angles of sight, like those that gender perspective brings in order to nurture and favor, through our homes, new and diverse ways of life, among which is vegetation—largely forgotten, falsely justified, or reduced to mere ornament by architecture, and yet vital for our future on this planet. For this reason, these new ways of inhabiting and cohabiting, of living in common, add up to real extension as they mean living in places which are kinder, more comfortable, and more inclusive, as elaborated later, for instance, in the discussion of the first case study (Section 4.1). Consequently, this extension cannot limit itself to merely being an architectural redesigning of our dwellings, but also it must seek to be an authentic paradigmatic cultural shift. In order to achieve this, “caring speculation” [64], as an alternative design strategy suggested by ecofeminism, allows us to unveil the invisible, to reveal the contents of the black boxes that oversee our lives and, to ask ourselves “what would happen if...”, to rethink that which exists “so that other narratives and other futures may emerge” [64] (p. 381). Among them, one in which the architecture of our dwellings converts them into the vital hubs of our network and economies of care, allowing us to immerse ourselves in and enjoy the world around us, no longer as the universal space of modernity but as a place which offers a true physical and metaphysical mix similar to that which sustains the symbiotic relationship of plants that support life on Earth [65].
There, precisely, understanding the need for architecture to overrule its own institutionalism and interweave itself into new ways of political and social action, which surpass the logic of formal design, is where architecture becomes more vulnerable, but also, more relevant.
3.4. More Inhabitants Determined and with the Will to Inhabit
Extended architecture is not that in which the most possible people can fit, but that in which the biggest diversity of them feels comfortable. As opposed to architecture designed and built with segregation in mind, that which expands its horizons welcomes complexity, difference, and the mix of people, which does not end up in conflict but in enrichment and a variety of sensibilities and experiences. The gender perspective is wholly pertinent to this aspect as it brings with it a viewpoint where the other, the others, the minorities, those excluded from the hegemonic discourses, become the focus of attention on which the alternatives may be built.
We should ask ourselves if architecture can be extended, in terms of the superior quality of built objects [66], to all the strata and tiers of society. The answer would be yes, if, as with other material and spiritual goods, adequate conditions were in place for a fair and equal distribution of economic and cultural wealth. However, with the understanding that economic power without an adequate system of cultural values does not guarantee architectural quality. And further to this, there is no doubt that architecture must and can well assume the shape of an economic—which is the opposite of cheap—construction and, more importantly, without the need to aestheticize precariousness. There are good examples of it, not at all Elemental, it must be said, as their essential cause is always of a cultural nature.
In this context, the idea of extending architecture concerns, on the one hand, as we have seen, ways of inhabiting and the reciprocal relationship between space and time. On the other, it is not possible to conceive this expansion without counting on that which is common, which, as the historian and architect Reinhold Martin points out [67], must not be confused with that which is public. On this point, it should be remembered also that both the private and the public indicate who is the owner of something: an individual or various people in the first case, and the state or other administration in the second. Over and above ownership, which, of course, we have to consider, however, stands use and usage, this is what brings us to distinguish between single ownership (belonging to an individual) and the common (to several individuals).
Common things, according to Roman law, and by their very nature, do not belong to anybody and their use is common to all; they play a special role in the quality of architecture as the environment and the basis of individual and shared life. The common, itself, points to an idea of free association, without an a priori or previous categorization, in order to undertake a collective activity orientated towards the future; this is the point of connection, invoking a constructive horizon. It is a type of community production that guarantees the participation of those affected in the decision-making and which in the words of architect and philosopher Jorge León Casero [68], is not “merely a simple form of collective management which is more or less minority or isolated, but a new civilizing project completely apart from the ownership logic that has dominated Western civilization for the last two thousand years”. Marina Garcés [40], starting from what we have learned from critical thought and the social movements of the last two decades, calls on us to discover the “common world” in which we are already immersed and the possibilities that open up when we share what separates us. In this way, she ratifies the current strength of feminism and its ever-stronger alliance with ecology—the abovementioned ecofeminism—defended among others by Yayo Herrero [69], and with different forms of anticapitalism.
As an illustration of this point, we highlight Casanova + Hernandez Architects’ project in Groningen (2001–2012) (Figure 4). This is a work that examines the integration of diverse types of inhabitant, including those with disability, by way of a hybrid—residential and healthcare—program that is distributed and mixed through the housing building made up of different typologies and requirements depending on who inhabits them. The project is a search for social interaction within collective living space based on protection. Consequently, its exterior, which is rather neutral, is far from the usual image of a hospital that one would imagine.
Figure 4.
Hybrid apartment tower in Groningen, Netherlands (a) and diagram of integration of health, care, and housing within the apartment block (b). Photo: Christian Ritcher. Drawings: Casanova + Hernandez Arquitectos.
In order to nurture and strengthen the emergence of the common in architecture, we need:
- More shared space instead of merely flexible types;
- More crossed gazes;
- More urban culture to facilitate exchange;
- More balance, definitively;
- And fewer (false) utopias.
3.5. More Shared Space Instead of Merely Flexible Types
The problem of extension is, as is the case of freedom, your own ends where another’s begins, a problem of limits or, looked at another way, of balance: How far does it go? Extending without “occupying” the common would be a more than justifiable objective to consider. This leads us to the practice of sharing, facilitating, through architecture, at least three types of spaces: common areas, such as hallways, doorways, stairs, patios, roofs, etc.; transition areas [70], such as porticos, porches or the traditional Japanese engawa; and polyvalent and/or multi-use spaces, both outside and inside the dwelling itself.
On the most radical edge of this, as Josep Maria Montaner points out, the search for new systems that are as flexible as possible, could even lead to “the negation of any typological structure, breaking it up into totally free floor layouts”, where use is facilitated by systems of objects, as previously proposed by Ábalos & Herreros [71] (p. 78).
On this point, we need to lay emphasis on the fact that adaptability and versatility are not synonymous with flexibility. The meaning of the latter is sometimes overly associated with precariousness and insecurity, but even so, as Oliver Wainwright warns, the seductive myth of flexibility and the dream of endlessly adaptable modular systems still have an intoxicating hold on architects. Wainwright criticizes the alleged flexibility and lack of quality of, among other increasingly small contemporary spaces, the new workplaces promoted by tech companies, the growing industry of ‘co-living’ housing developments, and fashionable pile’em-high micro-homes. All of them are “marketed as a mechanism of freedom, liberating the user from the shackles of fixed surroundings”, and yet they have precisely the opposite effect. “The culture of ‘hot-desking’ is merely a means of cramming ever more workers into ever smaller spaces, while homes with ‘flexible’ interiors serve to disguise the relentless eradication of space standards” [72] (p. 79). Again, affordable cannot and should not mean cheap.
In a context closer to home, the complex of apartments for young and first-time renters by Blanca Lleó in Barcelona (2005–2006) opts for a series of shared community spaces, among which a day care center and a kindergarten complete the program of the building. It is a volume perforated with open spaces, terraces, covered patios, and intermediate areas between the private and the public (Figure 5).
Figure 5.
Mare de Deu housing block, Barcelona, Spain, by Blanca Lleó. © Blanca Lleó.
3.6. More Crossed Gazes
Extension is a question of horizons, both visual and mental. In the case of the first, we have already referred to the extension produced by empty space and transparency, through which the space is expanded beyond its limits. In the case of the second, this is a theme that entwines the inhabitants with their habits, more especially, in the way they inhabit beyond the particular type of habitation. It is no accident that we speak of “broadening our horizons”. Reasons and emotions are also factors we should consider.
It is worth remembering that in Japanese landscaping vernacular, the expression shakkei exists, which refers to the background landscape, which prolongs the depth of a framed vantage point in a garden. This borrowed panorama takes advantage, if that were possible, of the apparently limitless open space, restricted only by the horizon.
The intergenerational housing project in Poblenou, Barcelona, by Renau Bartumeus (2004–2008), is comprised of a series of articulated and differentiated pieces that seek to provide solutions to the spatial constraints of the urban context in which it is built (Figure 6). The project interacts by connecting with the nearby streets and public spaces, seeking continuities and a dialogue with the scale of the city. These women architects generate a vast interior empty space divided into two parts: one more public intended for younger people, and the other more private intended for the more elderly. These exterior spaces are complemented by other interior community spaces that lead up to wide corridors. These, in turn, allow access to the living units, which make the most of the views and orientations.
Figure 6.
Social housing complex for elderly and young people, Barcelona, Spain, by Renau Bartumeus. © 2016 by renau bartumeus arquitectes.
3.7. More Urban Culture to Facilitate Exchange
When considering the extension of architecture, the lessons learnt from urban morphology and its capacity to respond to changing lifestyles—via its relationship with space types—can be very useful. This means concepts of “extension” (to grow in an orderly fashion) or of “interior refurbishment” (change, normally realigning and refreshing), with all their benefits, successful experiences, and also their historic fiascoes. The dialectics between the public and the private produce a whole sophistry from this discourse, which touches, on occasion, upon contradictions such as the notion of “private cities” [73] (p. 85), which are closed and suburbanized.
Whatever the case, it would not be unfitting to think through the proposals put forward by the slow cities crusade [74], such as the “15-minute cities” concept and its improvement of quality of life, to which compact, dense, and prone to socialization types, such as courtyard housing, typical of the Mediterranean urban fabric and culture, can contribute. The evidence is there, once again, that slow mobility, based on the pedestrian nature of the citizen, the act of going slowly, is capable of extending, if not in reality, in the perception and the experience of urban space.
Hartmut Rosa [75] is a scholar of acceleration in contemporary society, who speaks of the “dynamic stability” imposed by modernity as a cultural superstructure. This is related to the social alienation created by movement, which generates a syndrome of dislocation and a loss of roots. Similarly, people are constantly moving and no longer belong to a place. Many just live through their screens. They lose contact with their existential and physical space. The reality is that to stabilize the current system means an acceptation of the productive dynamics associated with indefinite growth. It is also true that the developmental, extractive system works all on its own. It is conservative because it entails what Habermas [76] calls “the exhaustion of utopian energy”. Today’s utopia may well be, perhaps, the idea of “serene de-growth” [77,78].
One representative example might be the work of Carmen Espegel in Lavapiés, Madrid (2001–2004), who took advantage of the circumstances imposed by the urban landscape to successfully transform and adapt the characteristic corrala—or patio of typical neighborhood dwellings (Figure 7). The building designed for the rehousing of local residents adapts to the topography of the street and the identity of the neighborhood, increasing the possibilities of its inhabitants by creating a progression of transition space: the street, the patio, the walkway, and the stairs.
Figure 7.
Rehousing complex in Madrid, Spain, (a) and its corrala (patio) (b) by Carmen Espegel. Photos: Ángel Baltanás, María Domínguez Lino.
3.8. More Balance, Definitively
It makes no sense to speak of any strategies of extending architecture without considering the tension between the private and the public. The possibility of success and continuity of any adopted solution lies in the successful balancing of these two factors.
Another equilibrium that is essential to achieve is that of the horizontal (the floor plan) and the vertical (the height). The first is limited. The second might be unlimited. Yet, when the idea of extension tempts us to take flight, to erect cantilevers, high and wide, private and privileged, in detriment to the horizontal common floor space, conflict arises.
Something similar happens when we mount air-conditioning systems with exterior condenser units. In this case, the façade becomes an energy boundary between the private and the public, which guarantees individual comfort at the expense of loss of common environmental quality [55].
When buildings rise and expand, the urban landscape around shrinks. The population grows so the area per inhabitant decreases [79]. The joies essentielles (essential joys) of the surrounding area are also decreased: less sunshine, less air, less light, less greenery for all, all for the benefit of the few. Their privileges override the well-being of the community. The pedestrian on the street loses what the private property owner gains.
Finding inspired solutions to the numerous and diverse challenges and conflicts of collective housing is thus a major concern to professionals and stakeholders in architecture, civil engineering, urban planning, landscape design, and urban ecology. Therefore, it is a matter of balance between expert and non-expert “situated knowledges” [80]. Inhabitant’s satisfaction vis-à-vis their built environment is consequential not only in terms of indoor comfort parameters and the quality of nearby facilities and amenities but also through confident, constructive relationships with neighbors, which can be facilitated by means of an integrated, balanced design.
The balance between public and private space is seen as a primordial aspect in two housing projects in Coslada, Madrid, by Temperaturas Extremas Office.
The first one (2004–2006) shows a concern for generating transition spaces, which enables relations between neighbors (Figure 8a). They are spaces that lack hierarchy and are open to multiple possibilities of use where habitability and sociability meet.
Figure 8.
Public housing complex in Coslada (a) and public housing complex and offices, commercial premises, and parking spaces in Coslada, Madrid, Spain (b) by Temperaturas Extremas Office (Amann, Cánovas, Maruri). Photo: David Frutos.
The second (2005–2012) is a hybrid complex, composed of 118 dwellings, commercial units, offices, and parking facilities (Figure 8b). The architects propose a public space on the ground floor, which leads through a series of strategically located series of stairs and elevators to a large, elevated plaza. This forms the nucleus of the project, by way of the lobby of the four residential blocks, which connect common areas and the access to the complex.
3.9. And Fewer (False) Utopias
The current environmental and health crisis has destroyed the city as we knew it, turning it into a hostile, unhealthy, and dangerous place, or simply a place that has been emptied out of all its activity. To emigrate to spaces that we believe are unpolluted—although fewer and fewer of such places exist in what is left of the world [81]—to seek the promise of a new life in nature is simply equally as irresponsible as trying to solve the world’s problems by turning to the life of a hermit. In these times of epoché, of the suspension of sociability [82], of hyperreality, and “destructive plasticity” [83], only coexistence can save us from the complete dismantling of life.
As an illustration of this idea, which necessarily implies learning to confront disputed values, managing conflicts, and forging alliances, we want to put forward the case of the regeneration of the degraded Aeropuerto neighborhood, in Madrid, by Mireya Reguart and José Luis Delgado (Figure 9). This is a project, currently in process, which seeks to re-establish the citizen values and identity of the neighborhood by way of the rehabilitation of its housing units and open spaces. In order to do this, they have faced numerous problems and difficulties, among which: the necessity that, while the work continues, its inhabitants are able to still live in their homes, and this along with the management of grants and subsidies by the architects or the financing that the construction company must assume until public finance is made effective. It is, thus, an example of ambitious and implicated architecture carried out from the standpoint of social responsibility demonstrated by the architects who make the most of the scarce resources they have at hand. The optimal, Jaque reminds us, is always worse than the available [62].
Figure 9.
Barajas urban regeneration and integrated rehabilitation project (a) and neighbors (b), Madrid, Spain. Courtesy of Mireya Reguart and José Luis Delgado.
4. Two Local Case Studies
In this section, we discuss two specific case studies and, in order to do this, we also move the focus towards more peripheral areas such as the southwestern regions of Spain. The two cases are complementary examples of public collective housing. One is comprised of a single building, whose small-scale contrasts with the other, a large urban complex. We also offer a contrast between a built project, a verifiable result, and a failed intervention, of which what particularly interests us is the negotiation process between the parties. The first is an example of caring architecture, being also the work of a small team composed of two women architects; the second is the result of a multidisciplinary work carried out by several collectives, which is chosen as an example of the many complications, obstacles and risks involved in claiming the commons. Both of them are exciting projects, one due to its success and the other as an eloquent failure.
4.1. Cared for and Caring Architecture by Women Architects: The Plaza de América Building
The award-winning Plaza de América building in Alicante, Spain (2005–2008), designed by women architects Carmen Pérez Molpeceres and Consuelo Argüelles Álvarez, is an excellent example of care-centered architecture. It comprises 72 intergenerational housing units that are organized in two lineal four-floor blocks with a north-south orientation aligned with the square that gives the project its name (Figure 10). They are rented accommodation for elderly people, but a percentage of which (around 20%) are reserved for young people who commit contractually to providing services to the community.
Figure 10.
Plaza de America’s urban context, Alicante, Spain. Drawing: Authors.
Architecture creates here a community space that upholds the idea of aging with dignity [84] and independence but not without company, retiring but still with the prospect of being involved. This form of intergenerational mix is also an opportunity to facilitate social sustainability, as in exchange for their cooperation, tenants benefit from affordable rental rates and support in case of payment difficulties.
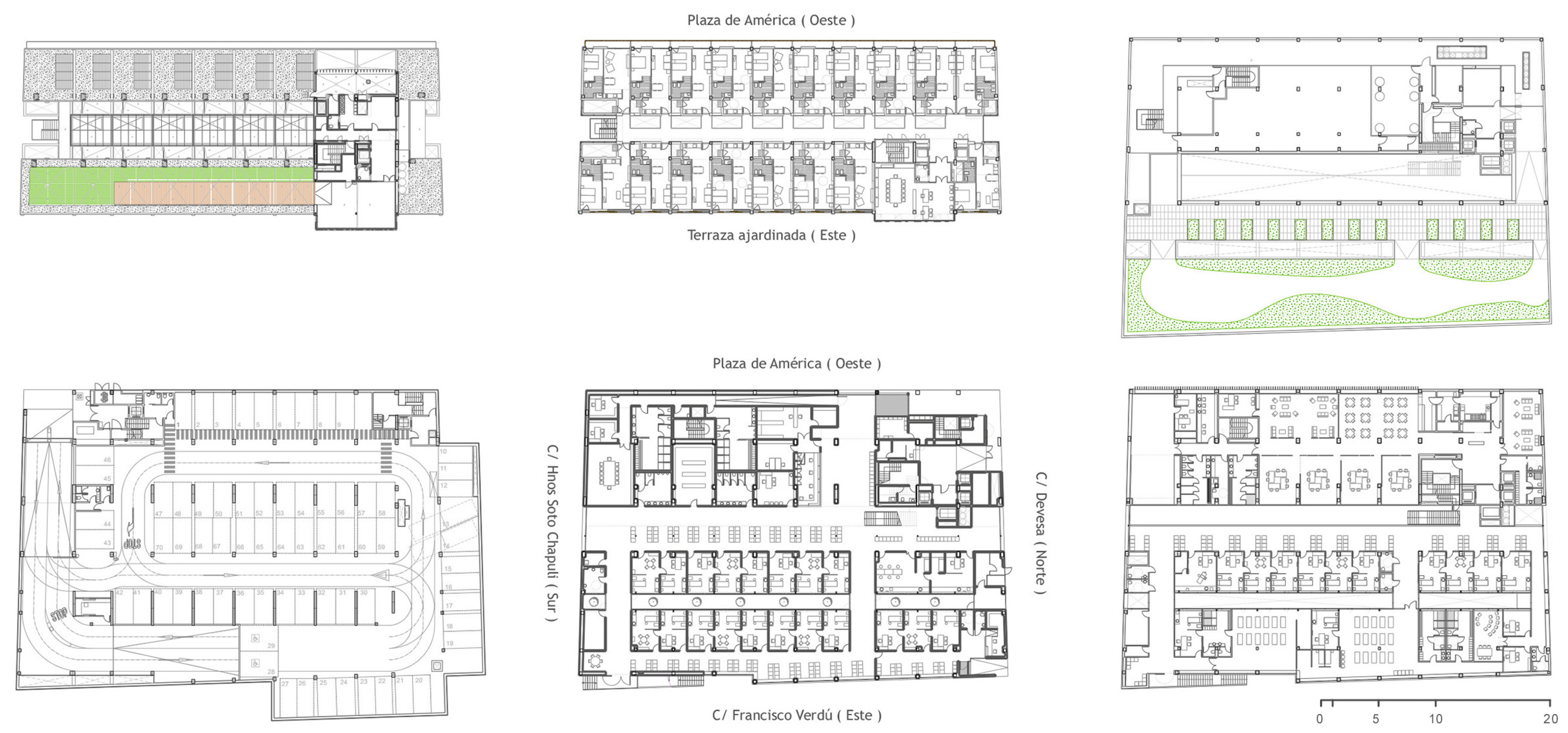
Each dwelling has a useable surface area of 40 m2 and they are designed for single occupation or for couples (Figure 11). All of them are exterior and their façades are protected from the sun by wooden adjustable trellises (Figure 12). Between each row of apartments runs a perforated interior street that allows access to and onto which the interior units open, thus guaranteeing cross-ventilation, which is essential for ambient thermal comfort at this latitude and with this orientation [85].
Figure 11.
Plaza de América building: floor plans. Clockwise from upper left corner: seventh floor (sun deck and common facilities); levels 3–6 (typical housing unit floor plan); second floor (services, gardens and urban orchard); first floor (community health center and day care center); ground floor (community health center and main access); −1, −2 & −3 basement levels (parking). Courtesy of Carmen Pérez Molpeceres and Consuelo Argüelles Álvarez.
Figure 12.
Plaza de América building’s main façade looking towards Plaza de América Square (a) and rear façade (b). Courtesy of Patronato Municipal de la Vivienda de Alicante.
The residential layout is complemented by collective areas that house spaces that foster community life: common areas, laundry, covered patio, sun deck, terrace garden, and vegetable patches. Between the blocks of apartments and the rest of the program, a technical area contains the building services and underlines, with its deep shade, only interrupted by its visible pillars, the transition to the community part of the complex, given that these intergenerational buildings also accommodate adjacent facilities, specifically, an outpatient public health center, a day care center for the elderly and public rotation parking spaces.
These collective facilities take up all the ground space area, which has been divided, by function, practically in half, along a north-south axis, on whose west side are located the residential units. The health center is on the ground floor, which it fully occupies with the exception of the entrances, and on the east side it also occupies the first floor. The delicacy of its construction can be fully appreciated when seen in sections (Figure 13): The consulting rooms surround a small gardened, two-story central patio, so that all the free space created up to the perimeter takes in the waiting rooms, whose interiors are filled with natural light. The day care center is on the first floor, in the half on the west side, and is also set out along a central axis, which gives access to the different rooms whose moveable partitions allow a wide variety of lay outs.
Figure 13.
Cross-section diagram of the Plaza de América building (from bottom to top: −1, −2 & −3 basement levels: parking; ground floor: community health center and main access; first floor: community health center and day care center; second floor: services, gardens and urban orchard; levels 3 to 6: dwellings and collective areas; seventh floor: sun deck and common facilities) and typical housing unit floorplan. Courtesy of Carmen Pérez Molpeceres and Consuelo Argüelles Álvarez.
In her characterization of caring architecture, Izaskun Chinchilla states that the primary feature should be “to contribute in a conscious and planned way to constructing models and exceptions which assist the navigation and orientation of the city” [38] (p. 52).
The Plaza de América building is exactly this. It has become a reference for its surroundings, something to which it undoubtedly qualifies and, as such, it is an aid to orientation. An aspect contemplated in the Set for the Introduction of Gender Perspective into the Urban Process [86]. All of this by virtue of an exact exercise of composition, which understands that public and community space, apart from referencing a mode of property and use, needs its own coherent and consistent formalization, materialization, and expression. Therefore, this architecture, in spite of the anodyne urban context—except for the design quality of the square itself [85]—convincingly resolves the problem of intertwining the scales of both the dwelling and the city (Figure 10). It achieves this by wrapping the vertical volume of the residential section in a continuous warm, caring, and unitary skin in the façade that looks onto the square (Figure 14). Its opposite side, less preoccupied with its position in its urban milieu, allows a game of variations on a theme thanks to the movement of wooden trellises as desired by the residents. In such a way that, as far as the square is concerned, rigor is prioritized, while in the back street, what reigns is the freedom that it provides (Figure 12b).
Figure 14.
Detail of Plaza de América building’s main façade with some of its inhabitants, 2020. Courtesy of Rafa Arjones, Diario Información.
In this way, Chinchilla states that caring architecture should “balance the public and private interests in the city” [38] (p. 52) which, in this particular case, means establishing a hiatus between the two. This is perceived as a space between the dwellings and the common areas of the program, which houses the general services, the garden terrace, and the day care center’s community orchards. The solution delicately attends to the scale of the pedestrian on the street in that it offers to their perception an image that does not overwhelm them but, instead, guides and accompanies them. Moreover, it also possesses its recognized cult references, to the pioneering Lever House in Manhattan by SOM (1952) and also a nod to Le Corbusier’s Unité d’Habitation in Marseille (1946–52), with its treatment of the rooftop terraces, the use of vertical slats in the gaps around the day center, and the display of the structural lattice in the eastern façade. The carpentry pieces on the health center are a lesson in construction in line with masters of modern architecture like J. P. P. Oud.
What is more, this architecture is “permeable, it allows a connection between public and private activities” [38] (p. 52), an interweaving of these aspects which occurs at every scale of the Plaza de América building. Firstly, on the residential floors with their community rooms—television and music on the third floor, workshops and playrooms on the fourth, lecture and computer rooms on the fifth, coordination on the sixth, laundry on the seventh—whose volumes appear salient on the façade. Secondly, in the communal spaces on the roofs—terrace garden and urban orchards on the health center’s roof and solarium atop the residential block—and finally, with the incorporation into the building of the collective facilities and features. Essential points in this porosity are the entrances to the building. On the main corner, the building politely stands back from the official alignment, creating two porticoes: a larger one which gives access to the health center from the square and a smaller one for entrance to the day care center and the residential housing from the street. All of this means that “it has the sufficient quality, attention to detail and singularity to be considered as a commendable common achievement for the community which uses it, and a significant contribution to the construction of identity” [38] (p. 52).
This last characteristic of caring architecture here acquires a dimension that is highly relevant. Not only is it “from the outside” a true city construction, embellishing, as it does, the square that it stands on, but it, in itself, is also built as a small town, or, rather, a village, like those which probably the majority of its inhabitants come from and whose kindly nature they undoubtedly treasure in the memory. A village with its houses, all the same but open to appropriation by their occupants, who personalize them placing flowerpots at the entrances; with its streets, areas for relaxation and meeting, whose perforations also allow lines of sight and conversations to cross from floor to floor, like a real neighborhood; and with its parks (gardens and vegetable patches), its squares (terraces), facilities, and fixtures: a lively and livable tiny world indeed (Figure 15).
Figure 15.
Plaza de América building’s interior street during the COVID-19 pandemic, 2020. Courtesy of Rafa Arjones, Diario Información.
This shared life [87] is the real theme of this architecture, to which it gives service, and that which explains its beauty which maintains and cares for it, which is the sum of all that the architects have put into the work and the project. Everything has been thought through right up to the smallest detail. Accessibility, of course, with several adapted housing units, but also the use of materials (few, but of quality and elegant) and color, which plays an essential role of orientation as each housing floor has its own tone for the walls of the common areas and the doors [85].
This is exactly an architecture of care and a form of caring for architecture, and treated with exactitude, full of the essential joys (sun, space, greenery...) but without harshness, kindly and luminous, clear and simple, but not basic. Architecture that takes great care of the quality and detail of which Chinchilla speaks [38], in virtue of which its inhabitants feel pride in their surroundings, which cultivates a sense of belonging that identifies them. The inhabitants also become guardians for each other [88] because they see, listen to, pass, and greet each other in every space of the complex… and, if not, they make it their business to find out what is going on with the neighbor. Company does not only alleviate loneliness, but it also combats sadness and fear. The peace and tranquility that come from knowing that you will get assistance when necessary, dignify life, and, at the same time, give it a meaning, in an exercise of fairness and co-responsibility between everyone, young and old. They look out for their neighbors, which makes them feel useful and encourages them to be attentive and active [89].
Evidence that architecture can cooperate in stimulating healthy and sustainable attitudes is that none of the neighbors in the Plaza de América building have been infected during the lockdown due to the COVID-19 pandemic. Architecture, as a true ecosystem, has helped define their immunity—the “exception”, another word whose root is related to common [9]—by devising protective structures, both physical and social, which have turned the a priori fragile and complex living conditions of its inhabitants into strong shielding connections. If we consider that residences for the elderly have been a terrible focus of loss of life during this health crisis, it seems evident that, in this case, architecture’s capacity to care, despite the cruel imposition of noli me tangere, has made the difference.
4.2. Promise and Failure of the Commons: La Paz Housing Complex in Murcia, Spain
As an effort to circumvent the over- and mis-use of terms that allow for critical thinking about collectivity, Amica Dall and Giles Smith’s insightful essay/entry “Commons” to the 2019 glossary-structured issue of AA Files [90] (p. 44) problematizes the word “common”, both its usage as a noun or adjective and its shift to a verb, as too centered on the human and the social. For this reason, in order to engage with a more comprehensive reality and difficult multilateral problems such as atmospheric degradation, biodiversity loos, economic inequality, etc., they propose to speak of “commons-systems”, that is, complex, dynamic, and unstable organizations made of three parts: “a group of actors (usually people), a thing or set of things (usually not people), and a set of interconnected practices which structure the network of relationships between and sometimes within the two” [90] (p. 44).
Building upon Garrett Hardin’s 1968 Science paper, The Tragedy of the Commons [91], and David Harvey’s criticism of Hardin’s now infamous narrative [92] and Elinor Ostrom’s classic Governing the Commons [93], Dall and Smith resort to some of the latter author’s robust concepts and cases—such as language—to illustrate the principle that commons-systems are always and can only be collective.
Yet, as these authors warn, relationships embedded in commons-systems are not always good. Commons-systems, which, like any other system of governance, depend on “how well are they calibrated, how loose, brittle or capable of evolution they are” [90] (p. 44). They can and usually fail, particularly when instead of fostering networks of solidarity, they are divisive or violent.
We can extrapolate the very same to the city, as a commons-system of physical, social, and political contingencies, where architecture conceived from the standpoint of the common [94] has as much possibility of success as of failure. From these we can and must learn as, in effect, the common does not resolve the differences, it merely contains them, allowing their public expression and reflection [90].
An ill-fated example of the citizen debate on how far the common may reach in a significant urban housing development and its social background was the mobilization, around the beginning of the 21st century, to think up collective ways of regenerating the Barrio de La Paz in Murcia and, in this sense, expand possibilities and expectations as a whole community rather than as an “individualized commodity” that is sold and bought in the market [92] (p. 104) (Figure 16).
Figure 16.
Taller Murcia 2.0, La Paz, Murcia, Spain, working on site (2006). Courtesy of former COAMU President Francisco Camino.
Designed and constructed (1960–1962) by the Valencian architect Vicente Valls [95], this neighborhood shares many of its characteristics with other Francoist public housing programs of the time, as they were frequently developed in scarcely urbanized areas and badly connected to other parts of the city. The complex also responds to the formal models of Spanish modernism and despite its modest materials and budgetary limits, it was conceived as a solvent unitary design where the presence of vegetation and pedestrian space partially made up for the lack of other resources.
With the later urban expansion, its previously peripheral location became more central, the site being now a dark object of desire for property developers. When ownership of the dwellings and their management was transferred from the state to the regional Government, the different corresponding public bodies (national, regional, municipal) washed their hands of the problems of the neighborhood and the families who lived in it. Devoid of tertiary activity and detached from the rest of the city, physical and social deterioration grew worse and worse over the years. Marginalization, unemployment, drugs and neighborhood conflicts have increased when, among other incomprehensible acts, the City Hall authorized the demolition of the neighborhood children’s nursery, its only public facility, leaving the neighborhood’s women in an even more vulnerable condition.
Meanwhile, the regional Government began an anomalous process of privatization of the dwellings that favored the emergence of a sole promoter backed by the City Hall. This modified the floor area ratio (FAR) in an equally irregular way, multiplying it by six, but handing over the benefits of its capital gains to the investors in an urban project that was as megalomaniacal as it was inopportune. This paved the way for the diaspora and gentrification of the neighborhood. In order to pull this off, a stellar architect was brought in and a whole series of advertising campaigns, which, with the help of the uncritical local press, spread false promises of habitability and sustainability.
Faced with this situation, a skeptical neighborhood association turned to the local Institute of Architects (COAMU), an institution which is well established in the city, in order to seek advice and ideas that might help to recuperate the neighborhood with actions planned from the bottom up and that were endorsed by renowned precedents [96].
In 2005, the COAMU organized, together with the neighbors who were resisting the plundering of their own neighborhood, multiple forums of citizen discussion to which they invited numerous European intellectuals and experts. Additionally, an international multidisciplinary competition was announced [59] with the aim of debating proposals which addressed the neighborhood’s problems and undo the official narrative of miraculous solutions.
In 2006, the team that won the competition, the local office Xpiral, joined forces with the rest of the participants and forged an alliance to develop a far-reaching joint proposal. The format chosen was the workshop Taller Murcia 2.0, which produced a masterplan, “La Ciudad Maclada” (Interconnected City), provided by Xpiral and Colectivo Baquía, a civil association which included the other participants and neighbors committed to the cause. The discussions that led up to this plan of action were open to all citizens, as they sought to throw light on the decisions that are taken behind closed doors in the offices of technicians and politicians, giving transparency to the collective process of urban generation and regeneration [97].
The abovementioned masterplan proposed an urban model which, starting with design of a set of more inclusive and sustainable mobility strategies to connect the area with the rest of the city, reimagined the neighborhood as part of its new centrality (Figure 17). The blocks and buildings left out of the original project were integrated into the pedestrian tapestry of an urban park that made the existing vegetation the base of a new network of cultural and sporting facilities in surroundings with improved environmental quality based on the capacity of trees to produce oxygen, retain rainwater, and soften the local extreme summer temperatures (Figure 18).
Figure 17.
La Ciudad Maclada masterplan, La Paz, Murcia. Mobility strategies: green, bike, and pedestrian lanes connecting the neighborhood to the city. Drawing: Xpiral & Colectivo Baquía.
Figure 18.
La Ciudad Maclada masterplan, La Paz, Murcia. Drawing: Xpiral & Colectivo Baquía.
Given the small surface area of the original dwellings—around 50 m2—and the low quality of the material and conservation of its building enclosures, an integral strategy of extension was proposed—of up to 20%—and the rehabilitation of power sources in the neighborhood dwellings based on low-cost industrial products similar to those used by Lacaton & Vassal in Cité Manifeste (Mulhouse, 2005) (Figure 19). The proposal also focused on including locally sourced and recycled materials, local companies to supply and manufacture them, as well as on creating a Mediterranean landscape with vegetal species such as orange tree, carob trees, fig trees, and river plants.
Figure 19.
La Ciudad Maclada, La Paz, Murcia. Diagram of additional building skins, green terraces, and energy-capturing devices like photo-voltaic trees. Shown here is the largest and most complex block, being proposed as a theoretical model for adaptation to more modest solutions. Drawing: Xpiral and Colectivo Baquía.
The most interesting thing, however, in this and successive reinterpretations of the masterplan, was the design of its management. The creation of a public consortium was proposed, which would guarantee that the neighbors could actively participate in their proposals as instigators of the activity of the neighborhood [98].
Equally important was the proposal of creative and flexible financing strategies that mobilized and expanded notions of the common beyond ideas of the private and the public. Among them was to limit the capacity of development conferred on the neighborhood, given that the incomprehensible increase of FAR approved by the City Hall, if applied, would generate serious urban inequalities, particularly, an undesirable increase in the height of the buildings in a limited space. In order to avoid this, the sale of the superfluous FAR to other would be permitted. This would allow the neighbors, with this additional source of income, the opportunity to improve their dwellings and promote, in accordance with their priorities, new facilities, being able to transfer the excess in building rights to other parts of the city, where necessary. The notion put forward of enzymatic and rhizomatic town planning, which catalyzes and integrates its actions from the starting point of its own autonomy and scalability (Figure 19), would allow block by block the transformation of the area, to pool experiences and learn in common to solve collective problems, producing, moreover, knowledge and results that are as diverse as the neighborhood itself.
After the financial crisis of 2008, private development was temporarily stopped in its tracks (Figure 20). The problems in La Paz, however, have not gone away. On the contrary, they have worsened with increased job insecurity among its inhabitants, which has meant that they are once again easy prey for old and new private agents. Surprisingly, as if nothing has been learnt over all these years, the indolence, negligence, and harassment on the part of the three layers of government involved, has allowed the return of the same plan to get rich from public and common-use land [99] in a violent exercise, which prioritizes “short term needs and desires against the long term needs of wider collectives” [90] (p. 45).
Figure 20.
Existing billboard announcing Ricardo Bofill’s controversial project for Barrio de la Paz: “Do you like this city? It’s Murcia”. Photo: Authors, 2021.
5. For Further Thought…
Collective housing, especially that which is linked to programs and policies of public housing, has been at the very center of disciplinary debates as an essential concern of modernism. As Josep Maria Montaner argues, during a large part of the 20th century, “it was one of the essential motors of the evolution of architecture and of cities” [100] (p. 13), and the most talented architects devoted their energy to it. In this sense, Le Corbusier’s vision of architecture as a necessary step towards a better future, as well as his conviction that the housing question was “at the root of the social unrest” [11] (p. 8) of his time are still pertinent. Nevertheless, architecture’s commitment to collective housing, while a necessary condition, has not been enough. It is of course a fundamental theme, to which notable buildings have contributed; it is sufficient to recall the distinguished proposals of the latest EU Mies van der Rohe Awards, from deFlat restauration in Amsterdam and Lacaton & Vassal’s Grand Parc Bordeaux to the most recent nomination of La Borda Co-Housing project in Barcelona [101]. Yet, the issue of collective housing, because of its many difficulties and implications beyond the discipline itself, is far from being resolved by architecture alone; architects have learnt indeed that they cannot plan all the contingencies of people’s lives from their drawing boards [102], nor manage the uncertainties of future.
At the height of World War II, urban planner and housing expert Catherine Bauer already remarked that collective housing has three intertwined aspects to be considered: “as a vital industry in terms of its efficiency, stability and effective consumer’s market; as a prime social problem” and “as a major element in the physical structure and quality of cites”. Progress in these three categories, she further explained, was not always synchronized [103] (p. 18). Soon afterwards, Bauer explained that real evolution was only achieved when all agents involved in the production of housing recognized—even if reluctantly—“The responsibility they all hold in the life of the community and the need for official action and regulation in favor of the public interest” [104] (p. 242). And that only occurs, adds Bauer, in times of authentic social emergency, those in which citizens finally realize that responsibility “for the environment, for their cities, for their homes” lies with all areas of government and, “hence, with they themselves” [104] (p. 247). That is, when it becomes a common concern.
In effect, only by thinking in common can we assume the ideas set out in this research article. Partly, due to their intrinsic complexity and partly because this investigation interweaves dialectic relationships whose synthesis is a difficult and delicate balance. A weighing up and a series of nuances which require that beyond addressing the problems and challenges of contemporary housing from the standpoint of the public-private dichotomy, it is reimagined as a common, instead of a commodity. Indeed, “just as there is no such thing as ‘a private’, only things held-in-private, there isn’t ‘a common’, only things-held-in common” [90] (p. 45). In truth, as Manuel Borja-Villel expertly argues, the common is not a mere extension of the individual, but something that never comes to an end: “the common is only developed through the other and by the other in the common place, in the fact of being-in-common” [105] (p. 1).
More than ever, the emergencies and isolation of these months show that the notion of collective housing, beyond the success or failure of particular cases, must be extended by way of proposals that, above all, favor cohabitation and care and, in this way, truly feeling part of a community, we are capable of constructing and devoting our enthusiasm to a new collective project. If, as Sara Ahmed [106] (p. 18) writes, emotions are impressions upon or made by others, ideas or bodies, individual or collective, and this association is contingent—“it involves contact”—then the challenge that faces the architecture of today is that which Álex Grijelmo reminds us, “‘transmission’ and ‘contact’ “are from their origins twin ideas, kindred spirits of vocabulary” [107] and, just as contact transmits the virus, it also transmits the emotions that nourish our ideas [108].
Re-imaging the architecture of collective housing as a common project is essentially a relational process moving from the center of that which is established and apparently well known to the uncertainties and opportunities of its margins. Limits and limitations usually reveal themselves as the true places of contact with otherness. Then, “thinking with care” and “care for thinking”, to rephrase María Puig de la Bellacasa [5], become the two sides of a vital requisite for fully living in interdependent worlds where the extension of thought, that is, thinking otherwise, is a critical imperative. One that necessitates a broad vision of caring (“thinking-with, dissenting-within and thinking-for” [109]) in order to be ready for and open to the unexpected [110].
Author Contributions
Conceptualization, M.-E.G.-M., J.P.-M. and A.G.-D.; formal analysis, M.-E.G.-M., J.P.-M. and A.G.-D.; funding acquisition, M.-E.G.-M., J.P.-M. and A.G.-D.; investigation, M.-E.G.-M., J.P.-M. and A.G.-D.; methodology, M.-E.G.-M., J.P.-M. and A.G.-D.; resources, A.G.-D.; supervision, M.-E.G.-M. and J.P.-M.; validation, M.-E.G.-M., J.P.-M. and A.G.-D.; visualization, A.G.-D.; writing—original draft, M.-E.G.-M. and A.G.-D.; writing—review & editing, J.P.-M. All authors have read and agreed to the published version of the manuscript.
Funding
This research was partially funded by the Ministry of Science, Innovation and Universities, Spanish Government. Research Project Title: Women in Spanish (Post)Modern Architecture Culture, 1965–2000. Grant number: PGC2018-095905-A-I00. It has also benefited from a grant given by the “Cátedra de Arquitectura Sostenible”, University of Alicante and Conselleria d’Habitatge i Arquitectura Bioclimàtica de la Generalitat Valenciana (Valencia Regional Government, Spain).
Institutional Review Board Statement
Not applicable.
Informed Consent Statement
Not applicable.
Data Availability Statement
Data sharing is not applicable to this article.
Conflicts of Interest
The authors have no conflicting interests to declare.
References
- Lavagna, M.; Baldassarri, C.; Campioli, A.; Giorgi, S.; Dalla Valle, A.; Castellani, V.; Sala, S. Benchmarks for Environmental Impact of Housing in Europe: Definition of Archetypes and LCA of the Residential Building Stock. Build. Environ. 2018, 145, 260–275. [Google Scholar] [CrossRef]
- Parra-Martínez, J.; Gutiérrez-Mozo, M.E.; Gilsanz-Díaz, A. Queering California Modernism: Architectural Figurations and Media Exposure of Gay Domesticity in the Roosevelt Era. Archit. Hist. 2020, 8, 14. [Google Scholar] [CrossRef]
- Latour, B.; Yaneva, A. Give me a Gun and I will Make All Buildings Move: An ANT’s View of Architecture. In Explorations in Architecture: Teaching, Design, Research; Geiser, R., Ed.; Birkhäuser: Basel, Switzerland, 2008; pp. 80–89. [Google Scholar]
- Stengers, I. Introductory Notes on an Ecology of Practices. Cult. Stud. Rev. 2005, 11, 183–196. [Google Scholar] [CrossRef]
- Puig de la Bellacasa, M. Matters of Care: Speculative Ethics in More Than Human Worlds; University of Minnesota Press: Minneapolis, MN, USA, 2017. [Google Scholar]
- Haraway, D. Staying with the Trouble. Making Kin in the Chthulucene; Duke University Press: Durham, NC, USA, 2016. [Google Scholar]
- Forty, A. Words and Buildings. A Vocabulary of Modern Architecture; Thames and Hudson: London, UK, 2019. [Google Scholar]
- Lefebvre, H. The Production of Space; Wiley-Blackwell: Oxford, UK, 1991. [Google Scholar]
- Laval, C.; Dardot, P. Común. Ensayo Sobre la Revolución en el Siglo XXI; Gedisa: Barcelona, Spain, 2015. [Google Scholar]
- Frampton, K. Le Corbusier; Akal: Madrid, Spain, 2000. [Google Scholar]
- Le Corbusier. Towards a New Architecture; Dover Publications: New York, NY, USA, 1931. [Google Scholar]
- Vitruvius, M. Ten Books on Architecture; Cambridge University Press: Cambridge, UK, 2001. [Google Scholar]
- Choisy, A. Histoire de l’architecture (Éd. 1899); Hachette and BNF: Paris, France, 2016. [Google Scholar]
- Farías, I.; Bender, T. Urban Assemblages: How Actor-Network Theory Changes Urban Studies; Routledge: London, UK, 2012. [Google Scholar]
- Easterlling, K. Extrastatecraft: The Power of Infrastructure Space; Verso: London, UK, 2016. [Google Scholar]
- Parra-Martínez, J.; Gutiérrez-Mozo, M.E.; Gilsanz-Díaz, A. Inclusive Higher Education and the Built Environment. A Research and Teaching Agenda for Gender Mainstreaming in Architecture Studies. Sustainability 2021, 13, 2565. [Google Scholar] [CrossRef]
- Jaque, A. Transmaterial; ARQ Ediciones: Santiago, Chile, 2017. [Google Scholar]
- OMA; Koolhaas, R.; Mau, B. S,M,L,XL; The Monacelli Press: New York, NY, USA, 1995. [Google Scholar]
- Hayden, D. A Field Guide to Sprawl; WW Norton & Co.: New York, NY, USA, 2004. [Google Scholar]
- n’UNDO (Coord.). Vacío, Sustracción y Silencio. Resta y Renuncia en el Proceso Creativo; Asimétricas: Madrid, Spain, 2017. [Google Scholar]
- Viollet-Le-Duc, E.E. Histoire de L’habitation humaine depuis les Temps Préhistoriques Jusqu’à nos Jours; Hetzel: Paris, France, 1875. [Google Scholar]
- Heidegger, M. Building Dwelling Thinking. In Basic Writings: Martin Heidegger; Krell, D.F., Ed.; Routledge: London, UK, 1999; pp. 347–363. [Google Scholar]
- Frampton, K. Studies in Tectonic Culture. The Poetics of Construction in Nineteenth and Twentieth Century Architecture; The MIT Press: Cambridge, MA, USA, 1995. [Google Scholar]
- Sanders, J. (Ed.) Stud: Architectures of Masculinity; Princeton Architectural Press: New York, NY, USA, 1996. [Google Scholar]
- Palladio, A. I Quattro Libri Dell’architettura; Domenico de’Franceschi: Venice, Italy, 1570. [Google Scholar]
- Restany, P. Hundertwasser, el Pintor Rey Con Sus Cinco Pieles; Taschen: Köln, Germany, 2001. [Google Scholar]
- Crutzen, P.J.; Stoermer, E.F. The “Anthropocene”. Glob. Chang. Newsl. 2000, 41, 17–18. [Google Scholar]
- Parikka, J. The Anthrobscene; University of Minnesota Press: Minneapolis, MN, USA, 2014. [Google Scholar]
- Haraway, D. When Species Meet; University of Minnesota Press: Minneapolis, MN, USA, 2008. [Google Scholar]
- Serres, M. El Contrato Natural; Pre-textos: Valencia, Spain, 2004. [Google Scholar]
- Puleo, A.H. Libertad, igualdad, sostenibilidad. Por un ecofeminismo ilustrado. Isegoría 2008, 38, 39–59. [Google Scholar] [CrossRef]
- Díaz Estévez, A. Ecofeminismo: Poniendo el cuidado en el centro. Ene 2019, 13, 4. Available online: http://ene-enfermeria.org/ojs/index.php/ENE/article/view/1072 (accessed on 27 March 2021).
- Salleh, A. Ecofeminism as Politics: Nature, Marx and the Postmodern; Zed Books: London, UK, 2017. [Google Scholar]
- Mellor, M. Feminismo y Ecología; Siglo XXI Editora Iberoamericana: Mexico City, Mexico, 2000. [Google Scholar]
- Agarwal, B. El debate sobre género y medio ambiente: Lecciones de la India. In Miradas al Futuro; Vázquez García, V., Velázquez Gutiérrez, M., Eds.; PUEG/CRIM/CP: Mexico City, Mexico, 2004; pp. 239–285. [Google Scholar]
- Mies, M.; Shiva, V. Ecofeminism; Zed Books: London, UK, 2014. [Google Scholar]
- Gilligan, C. La Moral y la Teoría: Psicología del Desarrollo Femenino; Fondo de Cultura Econónica: Mexico City, Mexico, 1985. [Google Scholar]
- Chinchilla, I. La Ciudad de los Cuidados. Salud, Economía y Medioambiente; Catarata: Madrid, Spain, 2020. [Google Scholar]
- Banham, R. A Home is not a House. Art Am. 1965, 2, 70–79. [Google Scholar]
- Garcés, M. Un Mundo Común; Bellaterra: Barcelona, Spain, 2013. [Google Scholar]
- Mallet, A.; Monier, J.-C. Alfred Fouillée: L’idée-force de la démocratie; Michalon-Le bien common: Paris, France, 2015. [Google Scholar]
- Bergson, H. Obras escogidas; Aguilar: Madrid, Spain, 1963. [Google Scholar]
- Zafra, R. El Entusiasmo. Precariedad y Trabajo Creativo en la era Digital; Anagrama: Barcelona, Spain, 2017. [Google Scholar]
- Žižek, S. Pandemic Covid-19 Shakes the World; OR Books: New York, NY, USA, 2020. [Google Scholar]
- Stoner, J. Toward a Minor Architecture; The MIT Press: Cambridge, MA, USA, 2012. [Google Scholar]
- Zevi, B. Saber ver la arquitectura. Ensayo Sobre la Interpretación Espacial de la Arquitectura; Poseidón: Barcelona, Spain, 1991. [Google Scholar]
- Betsky, A. Making it Modern. The History of Modernism in Architecture and Design; Actar: Barcelona, Spain, 2016. [Google Scholar]
- Aureli, P.V. La Posibilidad de una Arquitectura Absoluta; Puente Editores: Barcelona, Spain, 2019. [Google Scholar]
- Rapoport, A. Aspectos de la Calidad del Entorno; La Gaya Ciencia: Barcelona, Spain, 1974. [Google Scholar]
- Van Eyck, A. Aldo van Eyck: Writings. In The Child, the City and the Artist; Ligtelijn, V., Strauven, F., Eds.; SUN Publishers: Amsterdam, The Netherlands, 2008; Volume 2. [Google Scholar]
- Hertzberger, H. Lessons for Students in Architecture; 010 Publishers: Rotterdam, The Netherlands, 1991. [Google Scholar]
- Atelier Bow-Wow. Comunalidad Arquitectónica: Una introducción/Architectural Commonalities: An Introduction; ARQ Ediciones: Santiago, Chile, 2015. [Google Scholar]
- Canales, J. El Físico y el Filósofo; Arpa: Barcelona, Spain, 2020. [Google Scholar]
- Lynch, K. Wasting Away. An Exploration of Waste. What It Is, How It Happens, Why We Fear It, How to Do It Well; Sierra Club Books: San Francisco, CA, USA, 1990. [Google Scholar]
- De Retes, F.; Parra-Martínez, J. Entropy City. Scenarios and Strategies for Sustainability in the 21st Century City. In Workshop for Social Innovation and the Development of Sustainable Architectural Services and Products; Torres Nadal, J.M., Ed.; CENDEAC: Murcia, Spain, 2010; pp. 114–127. [Google Scholar]
- Antonopoulou, E.; Chondros, C.; Koutsari, M. Hacia la producción de bienes comunes del diseño: Una cuestión de escala y reconfiguración. ARQ 2014, 91, 54–63. [Google Scholar] [CrossRef]
- Gilsanz-Díaz, A.; Gutiérrez-Mozo, M.E.; Parra-Martínez, J. Black Mountain College: Una agenda irresistible. ARQ 2020, 105, 114–127. [Google Scholar] [CrossRef]
- Melgarejo, M. (Ed.) Nuevos Modos de Habitar = New Ways of Housing; Colegio Oficial de Arquitectos de la Comunidad Valenciana: Valencia, Spain, 1996. [Google Scholar]
- Montaner, J.M.; Muxí Martínez, Z. Habitar el Presente.Vivienda en España: Sociedad, Ciudad, Tecnología y Recursos; Ministerio de la Vivienda: Madrid, Spain, 2006. [Google Scholar]
- Cupers, K. Use Matters: An Alternative History of Architecture; Routledge: London, UK, 2013. [Google Scholar]
- Otero, M. Optimismo crítico y válvulas antirretorno. In Mies y la Gata Niebla. Ensayos Sobre Arquitectura y Cosmopolítica; Jaque, A., Ed.; Puente Editores: Barcelona, Spain, 2019; pp. 10–13. [Google Scholar]
- Jaque, A. Políticas del día a día. In Mies y la Gata Niebla. Ensayos Sobre Arquitectura y Cosmopolítica; Jaque, A., Ed.; Puente Editores: Barcelona, Spain, 2019; pp. 17–35. [Google Scholar]
- Amann, A. La vivienda desde el género: Hacia una nueva domesticidad expandida. In Perspectivas de Género en la Arquitectura, Segundo Encuentro; Pérez-Moreno, L.C., Ed.; Abada: Madrid, Spain, 2019; pp. 71–102. [Google Scholar]
- Calvillo, N. Especulación atenta. In Post-Arcadia. ¿Qué arte para qué naturaleza? Mesa del Castillo, M., Nieto, E., Eds.; CENDAC: Murcia, Spain, 2020; pp. 377–395. [Google Scholar]
- Coccia, E. La vida de las Plantas. Una Metafísica de la Mixtura; Miño y Dávila editores: Buenos Aires, Argentina, 2017. [Google Scholar]
- Gracia, F. Espacio común e indigencia arquitectónica. Teatro Maritt. 2020, 8, 11–19. [Google Scholar]
- Martin, R. Mediators: Aesthetics, Politics and the City; University of Minnesota Press: Minneapolis, MN, USA, 2014. [Google Scholar]
- León Casero, J. Público NO es común. El Salto 1 October 2019. Available online: https://www.elsaltodiario.com/el-rumor-de-las-multitudes/publico-no-es-comun (accessed on 1 February 2021).
- Herrero, Y.; Pascual, M.; González Reyes, M. La Vida en el Centro. Voces y Relatos Ecofeministas; Libros en acción: Madrid, Spain, 2019. [Google Scholar]
- Moya, L. Espacios de transición. Ciudad Y Territ. Estud. Territ. 2009, 41, 559–570. [Google Scholar]
- Montaner, J.M. Tipologías de vivienda colectiva pde promoción privada para el siglo XXI. Tres casos de estudio: Flexibilidad, agrupación y sostenibilidad. In Vivienda Colectiva de Promoción Privada; Palomares Figueres, M., Parra-Martínez, J., Eds.; Colegio Oficial de Arquitectos de la Comunidad Valenciana: Valencia, Spain, 2006; pp. 78–89. [Google Scholar]
- Wainwright, O. Flexibility. AA Files 2019, 76, 77–83. [Google Scholar]
- Muxí, Z. La Arquitectura de la Ciudad Global; Nobuko: Buenos Aires, Argentina, 2009. [Google Scholar]
- Knox, P.L. Creating ordinary places: Slow cities in a fast world. J.Urban Des. 2005, 10, 1–11. [Google Scholar] [CrossRef]
- Rosa, H. Alienación y Aceleración: Hacia Una Teoría Crítica de la Temporalidad en la Modernidad Tardía; Katz: Madrid, Spain, 2016. [Google Scholar]
- Habermas, J. La crisis del Estado de Bienestar y el agotamiento de las energías utópicas. In Ensayos Políticos; Penín Sula: Barcelona, Spain, 1988; pp. 113–134. [Google Scholar]
- Latouche, S. Pequeño Tratado del Decrecimiento Sereno; Icaria: Barcelona, Spain, 2009. [Google Scholar]
- Ridoux, N. Menos es Más. Introducción a la Filosofía del Decrecimiento; Los libros del Lince: Barcelona, Spain, 2009. [Google Scholar]
- Davis, M. Planet of Slums; Verso: London, UK, 2007. [Google Scholar]
- Haraway, D. Situated Knowledges: The Science Question in Feminism and the Privilege of Partial Perspective. In Simians, Cyborgs, and Women: The Reinvention of Nature; Haraway, D., Ed.; Routledge: New York, NY, USA, 1991; pp. 183–201. [Google Scholar]
- Danowski, D.; Viveiros de Castro, E. ¿Hay Mundo por Venir? Ensayo Sobre los Miedos y los Fines; Caja Negra: Buenos Aires, Argentina, 2019. [Google Scholar]
- Malabou, C. To Quarantine from Quarantine: Rousseau, Robinson Crusoe, and “I”. Citical Inq. 2020, 47, S2. Available online: https://critinq.wordpress.com/2020/03/23/to-quarantine-from-quarantine-rousseau-robinson-crusoe-and-i/ (accessed on 12 December 2020).
- Malabou, C. Ontology of the Accident: An Essay on Destructive Plasticity; Polity: Cambridge, UK, 2012. [Google Scholar]
- Jaque, A.; Moho, A. All Age City. In Workshop for Social Innovation and the Development of Sustainable Architectural Services and Products; Torres Nadal, J.M., Ed.; CENDEAC: Murcia, Spain, 2010; pp. 44–57. [Google Scholar]
- García Doménech, S.; Martí Ciriquián, P. Arquitectura intergeneracional y espacio público. ARQ 2014, 86, 62–69. [Google Scholar] [CrossRef]
- Azara, S.; Gil, M.V. Set Para Introducir la Perspectiva de Género en el Proceso Urbano; Conselleria de Vivienda, Obras Públicas y Vertebración del Territorio de la Generalitat Valenciana: Valencia, Spain, 2017; Available online: http://www.habitatge.gva.es/documents/20558636/0/SET_cas_link.pdf/0cf2c19d-e679-4c10-810a-fea0dd4fb484 (accessed on 6 February 2021).
- Laborda Yneva, J. Compartir la vida. Feminismo/s 2011, 17, 331–334. [Google Scholar] [CrossRef]
- Arnau Amo, J.; Gutiérrez-Mozo, M.E. El otro. Ega. Rev. De Expresión Gráfica Arquit. 2010, 15, 66–72. [Google Scholar] [CrossRef]
- Gutiérrez-Mozo, M.E. Urbanismo con perspectiva de género y de generación. In IV Encuentro Regional de Investigación, II Seminario de Mercociudades: Gestión Urbana, XXII Jornadas de Investigación; Universidad de Buenos Aires: Buenos Aires, Argentina, 2007; pp. 42–49. [Google Scholar]
- Dall, A.; Smith, G. Commons. AA Files 2019, 76, 40–45. [Google Scholar]
- Hardin, G. Tragedy of the Commons. Science 1968, 162, 1243–1248. [Google Scholar]
- Harvey, D. Future of the Commons. Radic. Hist. Rev. 2011, 109, 101–107. [Google Scholar] [CrossRef]
- Ostrom, E. Governing the Commons. The Evolution of Institutions for Collective Actions; University of Cambridge Press: Cambridge, UK, 1990. [Google Scholar]
- Díaz, F. Defendiendo un espacio común. ARQ 2014, 91, 12–13. [Google Scholar] [CrossRef]
- Parra-Martínez, J. Vicente Valls Abad. Via Arquit. 2005, 138–143. Available online: https://www.via-arquitectura.net/04_prem/04p-138.htm (accessed on 19 January 2021).
- Velázquez, I. Trinitat Nova. Un ejemplo de remodelación de abajo arriba. In La Ciudad es la Solución. FOUR/IV Foro de Urbanismo; Moho, A., Parra-Martínez, J., Eds.; CSCAE and Colegio Oficial de Arquitectos de Murcia: Murcia, Spain, 2009; pp. 114–119. [Google Scholar]
- Peña Galiano, J. La experiencia de Murcia 2.0. La Ciudad Maclada. In La Ciudad es la Solución. FOUR/IV Foro de Urbanismo; Moho, A., Parra-Martínez, J., Eds.; CSCAE and Colegio Oficial de Arquitectos de Murcia: Murcia, Spain, 2009; pp. 120–127. [Google Scholar]
- Xpiral; Colectivo Baquía. Murcia 2.0. La Ciudad Maclada. In XIV Premios de Arquitectura de la Región de Murcia; Moho Arquitectos, Ed.; Consejería de Obras Públicas, Vivienda y Transporte: Murcia, Spain, 2007; pp. 230–237. [Google Scholar]
- Agamben, G. Means without Ends. Notes on Politics; University of Minnesota Press: Minneapolis, MN, USA, 2000. [Google Scholar]
- Montaner, J.M. La Arquitectura de la Vivienda Colectiva. Políticas y Proyectos en la Ciudad Contemporánea; Editorial Reverté: Barcelona, Spain, 2015. [Google Scholar]
- Avilla-Royo, R.; Jacoby, S.; Bilbao, I. The Building as a Home: Housing Cooperatives in Barcelona. Buildings 2021, 11, 137. [Google Scholar] [CrossRef]
- Faura, R. La disolución del objeto. In Cultura en tensión. Seis Propuestas Para Reapropiarnos de la Cultura; Oliveras, J., Ed.; Rayo Verde: Barcelona, Spain, 2016; pp. 33–62. [Google Scholar]
- Bauer, C. Housing: A memorandum. Calif. Arts Archit. 1943, 60, 18–19. [Google Scholar]
- Bauer, C. Historia de la vivienda en los Estados Unidos. Nuestra Arquit. 1947, 19, 238–247. [Google Scholar]
- Borja-Villel, M. Hacia una nueva institucionalidad. Carta 2011, 2, 1–2. [Google Scholar]
- Ahmed, S. The Cultural Politics of Emotions; Edinburgh University Press: Edinburgh, UK, 2004. [Google Scholar]
- Grijelmo, Á. Ya lo Decían las Palabras. El País 22 January 2021. Available online: https://elpais.com/ideas/2021-01-22/ya-lo-decian-las-palabras.html (accessed on 31 January 2021).
- Mora Teruel, F. ¿Qué es una emoción? Arbor 2013, 189, 004. [Google Scholar] [CrossRef]
- Puig de la Bellacasa, M. “Nothing Comes without Its World”: Thinking with Care. Sociol. Rev. 2012, 60, 197–216. [Google Scholar] [CrossRef]
- Haraway, D. Modest_Witness@Second_Millennium. FemaleMan©_Meets_OncoMouse™: Feminism and Technoscience; Routledge: New York, NY, USA, 1997. [Google Scholar]
Publisher’s Note: MDPI stays neutral with regard to jurisdictional claims in published maps and institutional affiliations. |
© 2021 by the authors. Licensee MDPI, Basel, Switzerland. This article is an open access article distributed under the terms and conditions of the Creative Commons Attribution (CC BY) license (https://creativecommons.org/licenses/by/4.0/).



















