Cyclic Performance of End-Plate Biaxial Moment Connection with HSS Columns
Abstract
1. Introduction
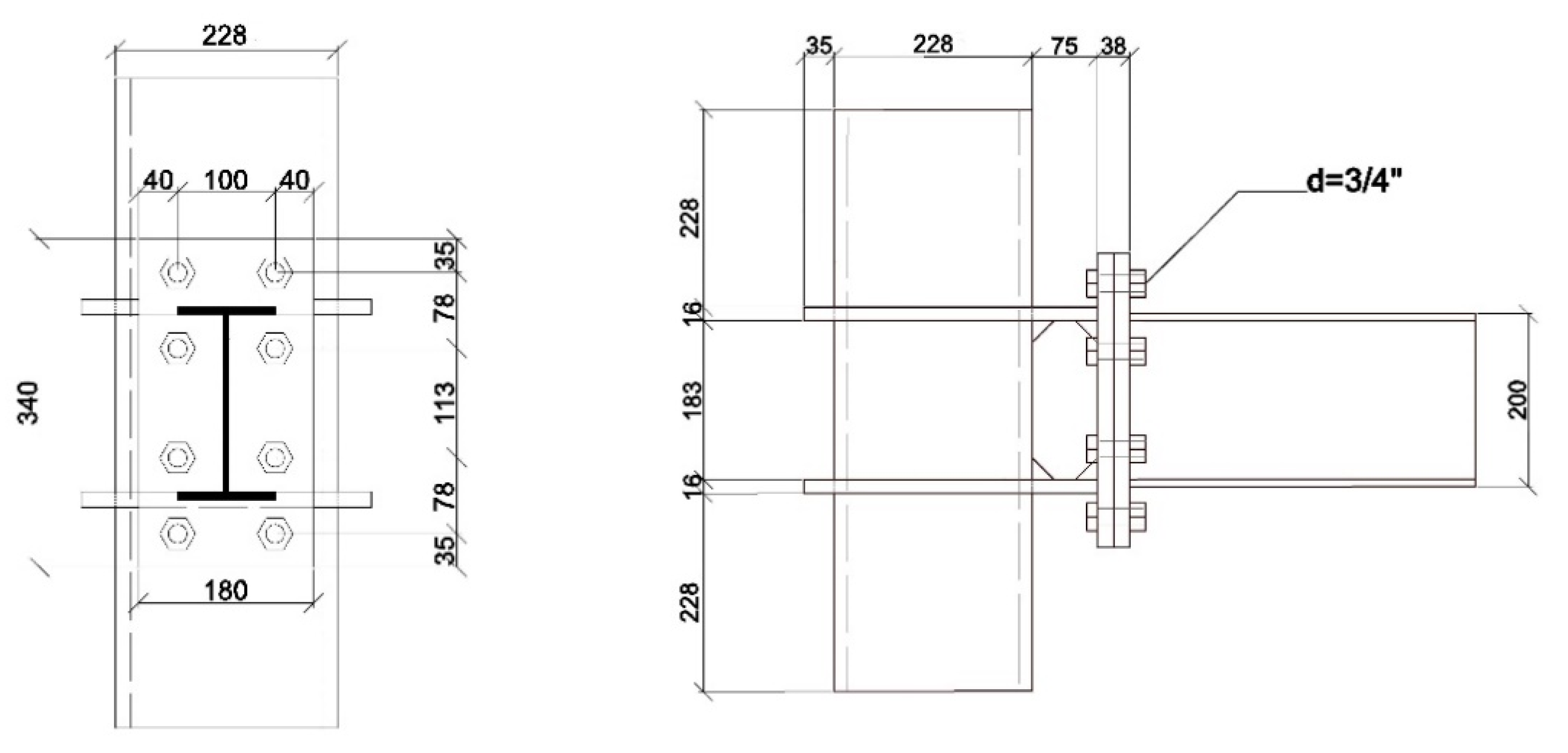
2. Finite Element (FE) Modeling
2.1. Boundary Conditions, Element Type and Loading
2.2. Material Property
- ε = normal strain obtained from uniaxial tensile test.
- σ = normal stress obtained from uniaxial tensile test.
- = real normal strain.
- = real normal stress.
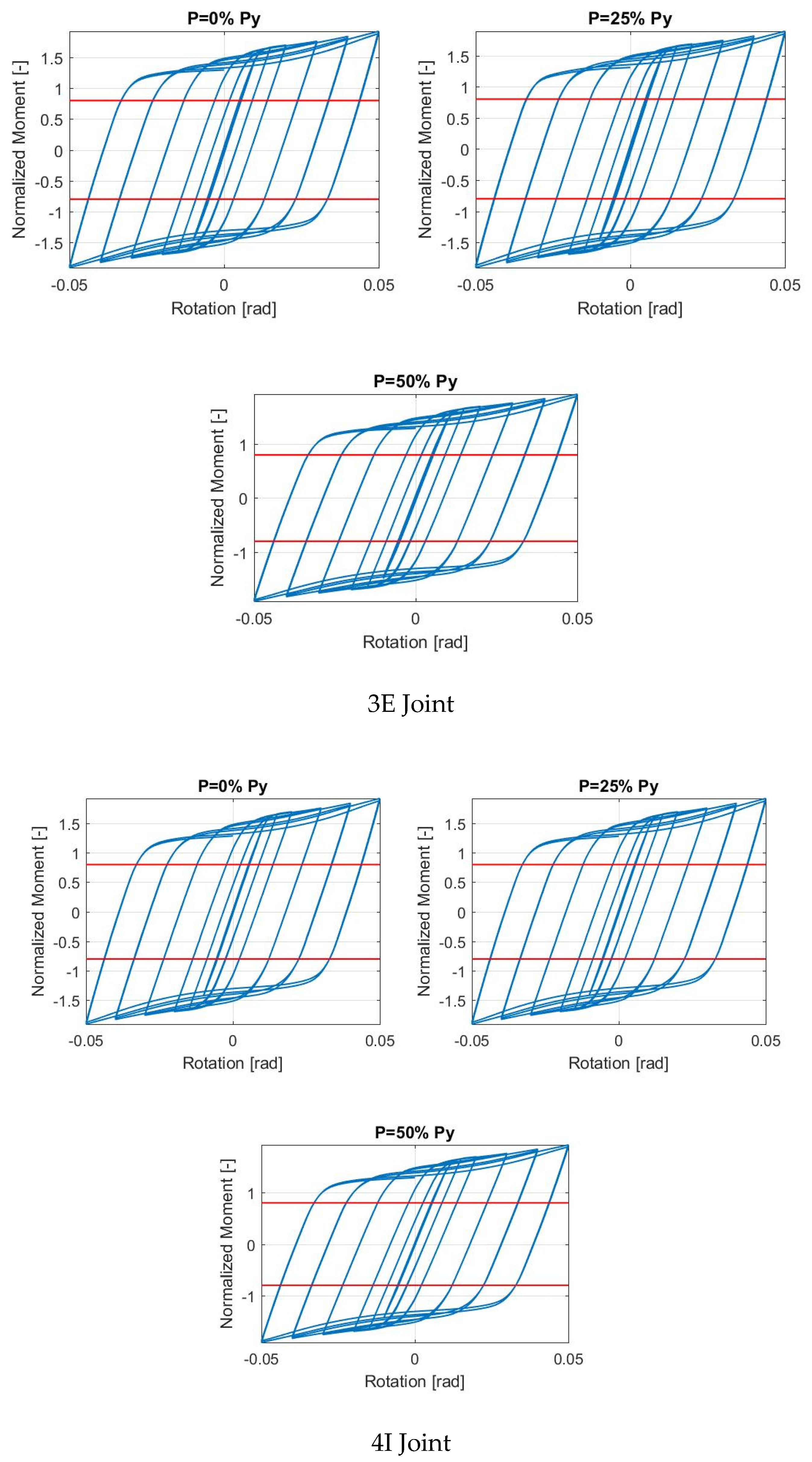
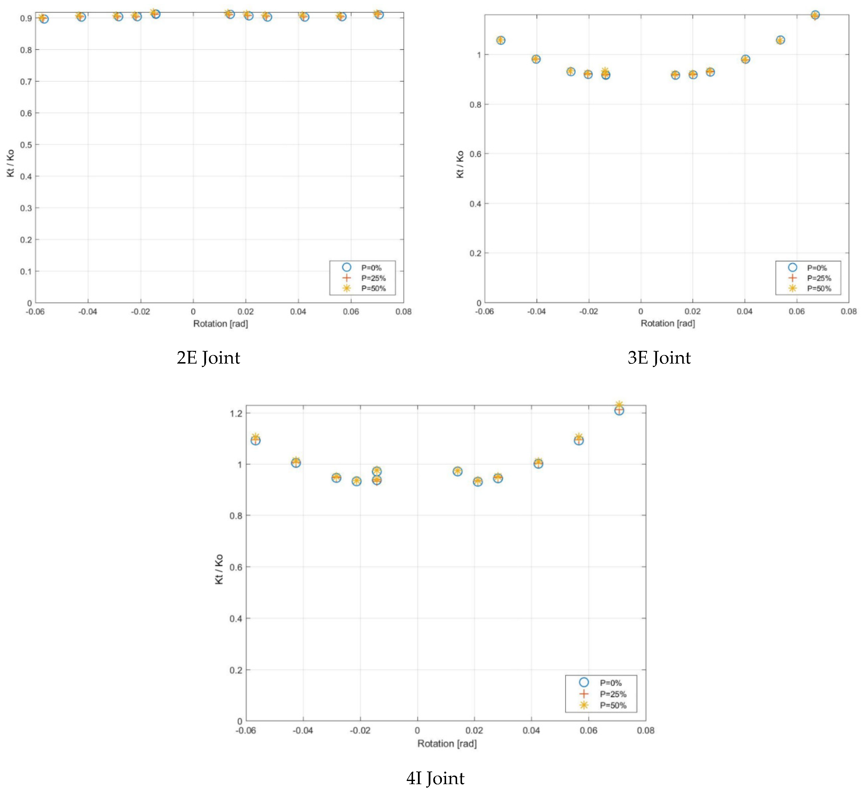
3. Results
4. Conclusions
- (1)
- The failure modes were mainly concentrated in the beams which complies with the requirements established in AISC seismic provisions. A combined failure mode is not obtained in either joint. A moment resistance and drift greater than 0.8 Mp and 4%, respectively, is achieved in 2D and 3D joints.
- (2)
- The axial load is not critical for the EP-HSS moment connection. However, it affects the resistance of the columns due to the increased stresses in the wall of tubular columns.
- (3)
- Compared with 2D joints, 3D joints can reach higher deformations even when a similar number of beams is used. Therefore, 3D effect in joints shall be considered and bidirectional effect is critical in the seismic response of joints.
- (4)
- The pattern of dissipated energy and equivalent damping is similar in 2D and 3D joints, however, due to number of beams, the 3D joint dissipates more than 2D joints. A degradation of stiffness in joints is not obtained, because of the confinement provided by the external diaphragms to the column panel. Additionally, vertical and horizontal diaphragms allow one to resist the expected moment of the beam without damage in the column.
Author Contributions
Funding
Conflicts of Interest
References
- Sherman, D.R. Designing with structural tubing. Eng. J. Aisc 1996, 33, 101–109. [Google Scholar]
- FEMA-355D. State of the Art Report on Connection Performance; Federal Emergency Management Agency: Washington, DC, USA, 2000.
- Okazaki, T.; Lignos, D.; Midorikawa, M.; Ricles, J.; Love, J. Damage to Steel Buildings Observed After the 2011 Tohoku Earthquake. Earthq. Spectra 2013, 29, 219–243. [Google Scholar] [CrossRef]
- Eslami, M.; Namba, H.; Kodur, V.; Mhamid, M.; Morovat, M. Seismic behavior of composite beam connected to HSS column with large width-to-thickness ratio. Eng. Struct. 2019, 183, 423–442. [Google Scholar] [CrossRef]
- Fadden, M. Cyclic Bending Behavior of Hollow Structural Sections and Their Application in Seismic Moment Frame Systems. Ph.D. Thesis, University of Michigan, Ann Arbor, MI, USA, 2013. [Google Scholar]
- Fadden, M.; McCormick, J. Finite element model of the cyclic bending behavior of hollow structural section beam members. J. Constr. Steel Res. 2014, 94, 64–75. [Google Scholar] [CrossRef]
- Fadden, M.; McCormick, J. HSS-to-HSS seismic moment connection performance and design. J. Constr. Steel Res. 2014, 101, 373–384. [Google Scholar] [CrossRef]
- Rezaeian, A.; Jamal-Omidi, M.; Shahidi, F. Seismic behavior of ConXL rigid connection in box-columns not filled with concrete. J. Constr. Steel Res. 2014, 97, 79–104. [Google Scholar] [CrossRef]
- Saleh, A.; Zahrai, S.; Mirghaderi, S. Experimental study on innovative tubular web RBS connections in steel MRFs with typical shallow beams. Struct. Eng. Mech. Int. J. 2016, 57, 785–808. [Google Scholar] [CrossRef][Green Version]
- Yang, C.; Yang, J.F.; Su, M.S.; Liu, C.Z. Numerical study on seismic behaviors of ConXL biaxial moment connection. J. Constr. Steel Res. 2016, 121, 185–201. [Google Scholar] [CrossRef]
- Liu, X.; Yang, Z.; Wang, H.; Pu, S.; Chai, S.; Wu, L. Seismic performance of H-section beam to HSS column connection in prefabricated structures. J. Constr. Steel Res. 2017, 138, 1–16. [Google Scholar] [CrossRef]
- Nuñez, E.; Torres, R.; Herrera, R. Seismic performance of moment connections in steel moment frames with HSS columns. Steel Compos. Struct. 2017, 25, 271–286. [Google Scholar]
- ANSI/AISC 358-16. Prequalified Connections for Special and Intermediate Steel Moment Frames for Seismic Applications; American Institute of Steel Construction: Chicago, IL, USA, 2016. [Google Scholar]
- Gallegos, M.; Nuñez, E.; Herrera, R. Numerical Study on Cyclic Response of End-Plate Biaxial Moment Connection in Box Columns. Metals 2020, 10, 523. [Google Scholar] [CrossRef]
- Tahir, M.; Mohammadhosseini, H.; Ngian, S.; Kori, M. I-beam to square hollow column blind bolted moment connection: Experimental and numerical study. J. Constr. Steel Res. 2018, 148, 383–398. [Google Scholar] [CrossRef]
- Ye, J.; Mohammad, S.; Hajirasouliha, I. Seismic performance of cold-formed steel bolted moment connections with bolting friction-slip mechanism. J. Constr. Steel Res. 2019, 156, 122–136. [Google Scholar] [CrossRef]
- Jiang, J.; Chen, S. Experimental and numerical study of double-through plate connections to CFST column. J. Constr. Steel Res. 2019, 153, 385–394. [Google Scholar] [CrossRef]
- Liu, X.; Yang, Z.; Cui, F.; Zhan, X.; Yu, C.; Jiang, Z. Seismic performance of bolted connection of H-beam to HSS-column with web end-plate. J. Constr. Steel Res. 2019, 156, 167–181. [Google Scholar] [CrossRef]
- ANSI/AISC 341-16. Seismic Provisions for Structural Steel Buildings; American Institute of Steel Construction: Chicago, IL, USA, 2016. [Google Scholar]
- Lichtemberg, R. Desempeño Sísmico de Conexiones Tipo EP-HSS Considerando Carga Axial y Flexion Biaxial. Master’s Thesis, University of Chile, Santiago, Chile, 2019. Thesis to Obtain the Degree of Master of Science in Earthquake Engineering. (In Spanish). [Google Scholar]
- ANSYS Multiphysics 17.2; ANSYS Inc.: Canonsburg, PA, USA, 2017.
- Moura, P.; Carvalho, H.; Figueiredo, L.; Aires, P.; Bártolo, R. Unitary model for the analysis of bolted connections using the finite element method. Eng. Fail. Anal. 2019, 104, 308–320. [Google Scholar]
- D’Aniello, M.; Cassiano, D.; Landolfo, R. Simplified criteria for finite element modelling of European preloadable bolts. Steel Compos. Struct. 2017, 24, 643–658. [Google Scholar]
- Kim, T.S.; Kuwamura, H. Finite element modeling of bolted connections in thin-walled stainless steel plates under static shear. Thin-Walled Struct. 2007, 45, 407–421. [Google Scholar] [CrossRef]
- Chopra, A.K. Dynamics of Structures: Theory and Applications to Earthquake Engineering; Prentice-Hall: Englewood Cliffs, NJ, USA, 2007. [Google Scholar]




























| Joint | SC/WB |
|---|---|
| 1E | 4.53 |
| 2I | 2.26 |
| 2E | 3.59 |
| 3E | 1.79 |
| 4I | 1.32 |
| No. | No. of Cycles | Drift Angle (θ) [rad] |
|---|---|---|
| 1 | 6 | 0.00375 |
| 2 | 6 | 0.005 |
| 3 | 6 | 0.0075 |
| 4 | 4 | 0.01 |
| 5 | 2 | 0.015 |
| 6 | 2 | 0.02 |
| 7 | 2 | 0.03 |
| 8 | 2 | 0.04 |
| 9 | 2 | 0.05 |
| Element | Yield Stress [MPa] | Yield Strain | Ultimate Stress [MPa] | Ultimate Strain |
|---|---|---|---|---|
| Beam, Stiffeners, End-plates | 380 | 0.0018 | 575 | 0.20 |
| Column | 496 | 0.0025 | 597 | 0.01 |
| Bolt | 634 | 0.0036 | 848 | 0.14 |
| Joint | P/Py [%] | Max. Load [kN] | Max. Rotation [rad] | Dissipated Energy [kJ] |
|---|---|---|---|---|
| Test 1 | 0 | 65.26 | 0.06 | 9.6 |
| Test 2 | 0 | 71.9 | 0.05 | 11 |
| Test 3 | 0 | 70.7 | 0.05 | 11.9 |
| 1E | 0 | 45.43 | 0.05 | 13.8 |
| 25 | 45.33 | 0.05 | 13.8 | |
| 50 | 44.72 | 0.049 | 13.1 | |
| 2I | 0 | 91.24 | 0.05 | 25.8 |
| 25 | 91.21 | 0.05 | 25.8 | |
| 50 | 91.22 | 0.05 | 25.8 | |
| 2E | 0 | 60.97 | 0.071 | 26.2 |
| 25 | 60.88 | 0.07 | 26.2 | |
| 50 | 60.75 | 0.07 | 26.2 | |
| 3E | 0 | 102.18 | 0.067 | 39 |
| 25 | 100.30 | 0.067 | 39 | |
| 50 | 102.13 | 0.067 | 39 | |
| 4I | 0 | 129.28 | 0.071 | 50.8 |
| 25 | 129.24 | 0.071 | 50.8 | |
| 50 | 129.36 | 0.071 | 50.8 |
Publisher’s Note: MDPI stays neutral with regard to jurisdictional claims in published maps and institutional affiliations. |
© 2020 by the authors. Licensee MDPI, Basel, Switzerland. This article is an open access article distributed under the terms and conditions of the Creative Commons Attribution (CC BY) license (http://creativecommons.org/licenses/by/4.0/).
Share and Cite
Nuñez, E.; Lichtemberg, R.; Herrera, R. Cyclic Performance of End-Plate Biaxial Moment Connection with HSS Columns. Metals 2020, 10, 1556. https://doi.org/10.3390/met10111556
Nuñez E, Lichtemberg R, Herrera R. Cyclic Performance of End-Plate Biaxial Moment Connection with HSS Columns. Metals. 2020; 10(11):1556. https://doi.org/10.3390/met10111556
Chicago/Turabian StyleNuñez, Eduardo, Roberto Lichtemberg, and Ricardo Herrera. 2020. "Cyclic Performance of End-Plate Biaxial Moment Connection with HSS Columns" Metals 10, no. 11: 1556. https://doi.org/10.3390/met10111556
APA StyleNuñez, E., Lichtemberg, R., & Herrera, R. (2020). Cyclic Performance of End-Plate Biaxial Moment Connection with HSS Columns. Metals, 10(11), 1556. https://doi.org/10.3390/met10111556

