Parameter Optimization on the Forced Ventilation of Symmetric Tunnel Construction Based on the Super-Short Bench-Cut Method
Abstract
:1. Introduction
2. The Engineering Situation and Ventilation Calculation
3. The Numerical Simulation Validation
4. The Numerical Model and Related Parameters Calculation
4.1. Establishment of the Numerical Model
4.2. Calculating Operating Conditions
4.3. Setting Boundary Conditions
5. Analysis of the Numerical Simulation Results
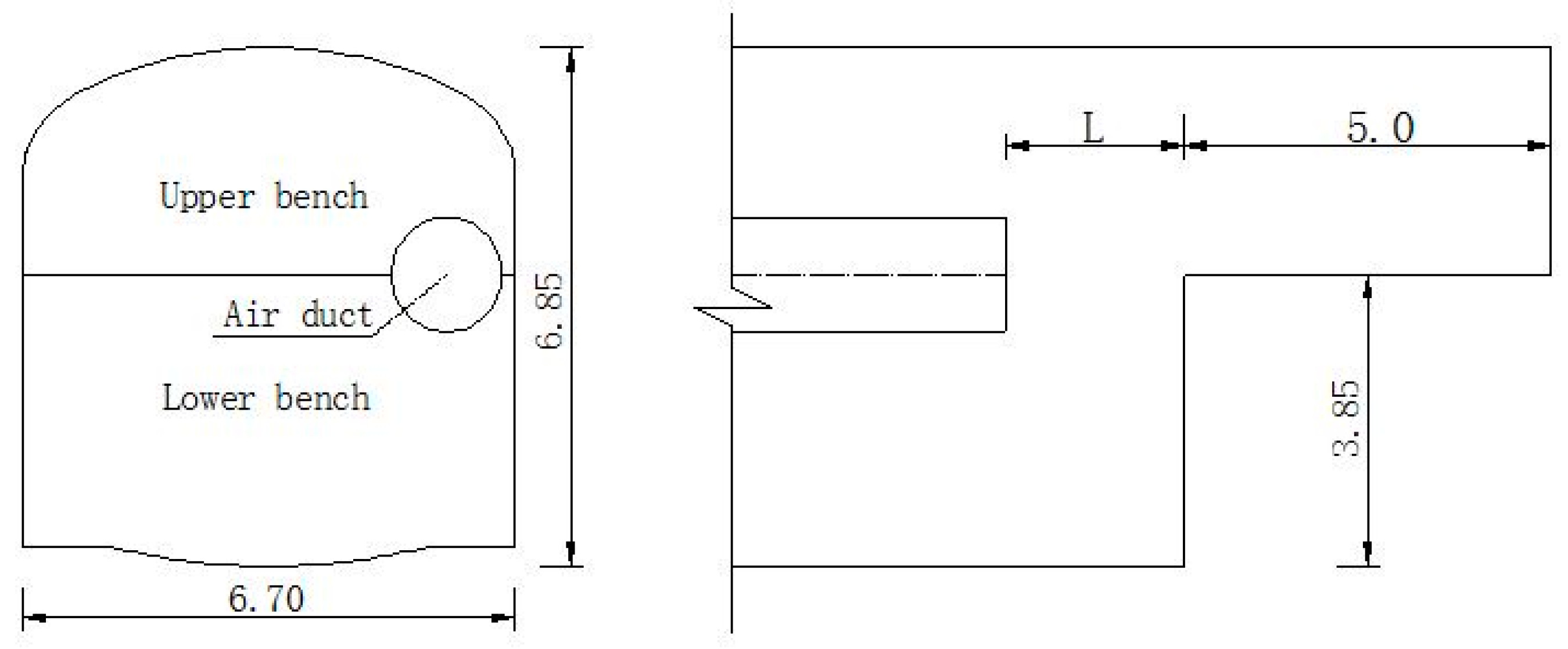
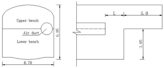
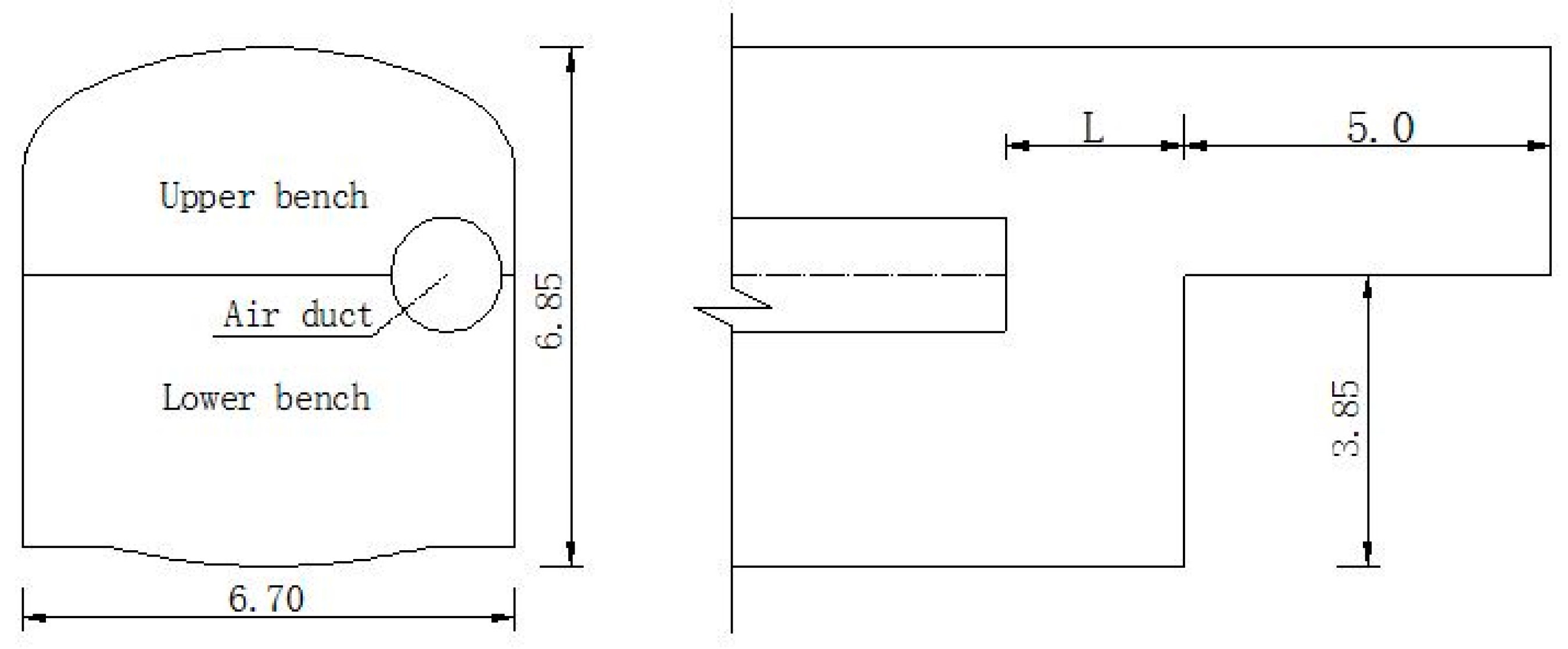
5.1. The Influence of the Distance between the Orifice and the Tunnel Face on the Wind Velocity Flow Field
- When L is 5 m, the wind velocity flow field in the upper bench is very uniform without backflow. This is because, with the close distance between the air duct and the tunnel face of the lower bench, the air sent by the air duct tends to have a downward trend and clings to the tunnel face without an obvious backflow. However, the uniformity of the airflow field behind the tunnel face is significantly poor.
- When L is 8 m, the wind velocity flow field in the upper step is relatively uniform without backflow. At this moment, the distance between the orifice and tunnel face is far and the differential flow field of the lower step improves largely without backflow. The uniformity of the air flow field in the upper and lower tunnel faces is good.
- When L is 10 m and 12 m, the backflow appears below the upper tunnel face. When L = 10 m, the ground behind the lower tunnel face appears to be an obvious vortex area and when the distance between the air duct and tunnel face increases to 12 m, the vortex area enlarges and new vortex areas appear behind it.
- Calculation results show that when the distance between the orifice and tunnel face is 8 m, the wind velocity flow field near the upper and lower tunnel face is the most uniform without obvious backflow.
5.2. The Influence of the Air Duct Diameter on the Wind Velocity Flow Field
- After comparing the distribution of the wind velocity flow field in the tunnel when the value of air duct diameter is different, as shown in Figure 4, it is clear that when D is 1.0 m, 1.1 m and 1.2 m, due to the large velocity when the pipe diameter is small, a lot of energy is rebounded after touching the wall, leading to a less than ideal ventilation effect occurring in the corner of the wall.
- When the air duct diameter is 1.6 m and 1.8 m, due to the further reduction of the velocity of the orifice, an obvious backflow appears at the tunnel face of the upper step near the ground. The ventilation effect is also not ideal at this moment.
- When the air duct diameter is 1.4 m, there is not only obstructed ventilation in the corner because of the large velocity when the air duct diameter is small, but the backflow is also prevented from forming near the tunnel face when the air duct diameter is large.
6. Conclusions
- After obtaining the related parameters in the first stage of the construction ventilation from a tunnel in the northwestern area of China, a numerical model was established to achieve the simulated value of the velocity of each measuring point and compare them with the measured values found in order to ascertain whether the numerical simulation applied in this study was entirely feasible.
- The ventilation effect is better when the wind pipe is arranged on one side of the tunnel wall (an asymmetrical layout), although the space in the tunnel is axisymmetric.
- When the air duct diameter is 1 m, the calculation results are as follows: when the distance between the air duct and tunnel face is 5 m, the uniformity of the air flow field near the tunnel face is poor compared to when the distance between them is 8 m, even though there are no obvious vortex zones. However, when the distance is 10 m or 12 m, vortex zones appear in the tunnel. Thus, it is more reasonable when the distance between the air duct and the tunnel face is 8 m.
- When the distance between the air duct and the tunnel face is 8 m and the air duct diameter is less than or equal to 1.2 m, the velocity is high as the pipe diameter is small and a large amount of energy is rebounded after touching the wall, which leads to the non-ideal ventilation effect outputting from the corner of the wall. However, when the pipe diameter is more than or equal to 1.6 m, the upper tunnel face near the ground appears to show more obvious backflow for the small velocity of the orifice.
- When the air duct is 1.4 m and the distance between the orifice and tunnel face is 8 m, there is no obvious backflow in the tunnel and the uniformity of wind velocity flow field is good, which can be regarded as the best combination for application in practical engineering.
- We can obtain better ventilation effect when the distance between the nozzle of the ventilator and the tunnel face is 6 m–9 m and the wind speed of the nozzle is 6 m/s–8 m/s. In practical engineering, the wind speed and the required air volume should be taken into consideration to determine the diameter of the ventilator.
Author Contributions
Conflicts of Interest
References
- Tan, X.; Chen, S.; Zhou, Z. Air Quality Field Testing in Tunnel Construction with the Drilling and Blasting Method. Chin. J. Undergr. Space Eng. 2016, 12, 567–572. [Google Scholar]
- Peng, P.; Fang, Y.; Zhou, C.Y.; Chen, X.G. Effect Analysis and Parameter Optimization of Forced Ventilation during Tunneling; Railway Standard Design: Beijing, China, 2014. [Google Scholar]
- Fang, Y.; Peng, P.; Zhao, Z.; Zhou, C.Y. Numerical Simulation of the Effect of Outlet Position of Air Duct on the Construction Ventilation of the Tunnel. Chin. J. Undergr. Space Eng. 2014, 10, 468–473. [Google Scholar]
- Oka, Y.; Oka, H. Velocity and temperature attenuation of a ceiling-jet along a horizontal tunnel with a flat ceiling and natural ventilation. Tunn. Undergr. Space Technol. 2016, 56, 79–89. [Google Scholar] [CrossRef]
- Wesely, R. Airflow at heading faces with forcing auxiliary ventilation. In Proceedings of the 3rd International Mine Ventilation Congress, Harrogate, UK, 13–19 June 1984; pp. 73–82. [Google Scholar]
- Zhang, H.; Chen S, G.; Chen, L. A Study on Large Power Jet Ventilation Technology in Long Tunnel Construction. Appl. Mech. Mater. 2011, 94, 1800–1804. [Google Scholar] [CrossRef]
- Zhang, H.; Fang, L.; Sun, J.; Zhou, Z. CFD Analysis of Tunnel Construction Ventilation Effect Based on Typical Wall Roughness Model; China Railway Science: Beijing, China, 2016. [Google Scholar]
- Fang, Y.; Fan, J.; Kenneally, B.; Mooney, M. Air flow behavior and gas dispersion in the recirculation ventilation system of a twin-tunnel construction. Tunn. Undergr. Space Technol. 2016, 58, 30–39. [Google Scholar] [CrossRef]
- Mirhedayatian, M.; Jelodar M, J.; Adnani, S.; Akbarnejad, M.; Saen, R.F. A new approach for prioritization in fuzzy AHP with an application for selecting the best tunnel ventilation system. Int. J. Adv. Manuf. Technol. 2013, 68, 2589–2599. [Google Scholar] [CrossRef]
- Liu D, W.; Tang, Y.; Li, B.; Peng, W.-D. Numerical simulation and test analysis of construction ventilation air duct optimization in gas tunnel. China J. Highw. Transp. 2015, 28, 98–103. [Google Scholar]
- Wang, X.; Zhen, L.; Yang, A.; Zhang, A. Simulation for Construction Ventilation Two-Phase Flow in Diversion Tunnel Considering Heat Exchange. J. Tianjin Univ. 2013, 46, 322–327. [Google Scholar]
- He, K.; Ye, M.; Li, Y.; Chen, J. Characteristic Research on Construction Ventilation Flow Field of Cross Tunnel. J. Sichuan Univ. 2014, 46, 20–25. [Google Scholar]
- Zhang X, J.; Zhou C, Y.; Fu, Y.P.; Fang, Y. Construction Ventilation of Tongluoshan Expressway Tunnel. Adv. Mater. Res. 2013, 838–841, 1234–1239. [Google Scholar] [CrossRef]
- Wang, X.; Zhang, Z.; Zhou, Z.; Chen, H. Numerical simulation of TBM construction ventilation in a long diversion tunnel. Tunn. Undergr. Space Technol. 2011, 26, 560–572. [Google Scholar] [CrossRef]
- Zolfani, S.H.; Esfahani, M.H.; Bitarafan, M.; Zavadskas, E.K.; Arefi, S.L. Developing a new hybrid MCDM method for selection of the optimal alternative of mechanical longitudinal ventilation of tunnel pollutants during automobile accidents. Transport 2013, 28, 89–96. [Google Scholar] [CrossRef]
- Wang, X.Y.; Spearpoint, M.J.; Fleischmann, C.M. Investigation of the effect of tunnel ventilation on crib fires through small-scale experiments. Fire Saf. J. 2017, 88, 45–55. [Google Scholar] [CrossRef]
- Zhang, Q.; Guo, X.; Trussoni, E.; Astore, G.; Xu, S.; Grasso, P. Theoretical analysis on plane fire plume in a longitudinally ventilated tunnel. Tunn. Undergr. Space Technol. 2012, 30, 124–131. [Google Scholar] [CrossRef]
- Cardillo, L.; Corsini, A.; Delibra, G.; Rispoli, F.; Sheard, A.G. A numerical investigation into the aerodynamic effect of pressure pulses on a tunnel ventilation fan. Proc. Inst. Mech. Eng. Part A J. Power Energy 2014, 228, 285–294. [Google Scholar] [CrossRef]
- Fouladgar, M.M.; Yazdani-Chamzini, A.; Zavadskas, E.K. Risk evaluation of tunneling projects. Arch. Civ. Mech. Eng. 2012, 12, 1–12. [Google Scholar] [CrossRef]








© 2018 by the authors. Licensee MDPI, Basel, Switzerland. This article is an open access article distributed under the terms and conditions of the Creative Commons Attribution (CC BY) license (http://creativecommons.org/licenses/by/4.0/).
Share and Cite
Niu, X.; Zhang, D.; Su, J.; Guo, H. Parameter Optimization on the Forced Ventilation of Symmetric Tunnel Construction Based on the Super-Short Bench-Cut Method. Symmetry 2018, 10, 49. https://doi.org/10.3390/sym10020049
Niu X, Zhang D, Su J, Guo H. Parameter Optimization on the Forced Ventilation of Symmetric Tunnel Construction Based on the Super-Short Bench-Cut Method. Symmetry. 2018; 10(2):49. https://doi.org/10.3390/sym10020049
Chicago/Turabian StyleNiu, Xiaokai, Dingli Zhang, Jie Su, and Hong Guo. 2018. "Parameter Optimization on the Forced Ventilation of Symmetric Tunnel Construction Based on the Super-Short Bench-Cut Method" Symmetry 10, no. 2: 49. https://doi.org/10.3390/sym10020049
APA StyleNiu, X., Zhang, D., Su, J., & Guo, H. (2018). Parameter Optimization on the Forced Ventilation of Symmetric Tunnel Construction Based on the Super-Short Bench-Cut Method. Symmetry, 10(2), 49. https://doi.org/10.3390/sym10020049
