Registration of Objects for 3D Cadastre: An Integrated Approach
Abstract
1. Introduction
1.1. 3D Cadastres and 3D Land Administration
1.2. Research Rationale, Objectives and Introduction of Following Sections
2. Traditional Cadastre and 3D Cadastre in Poland
2.1. Cadastral Objects in Poland—Present State
2.2. 3D Cadastres in Poland
3. Materials and Methods
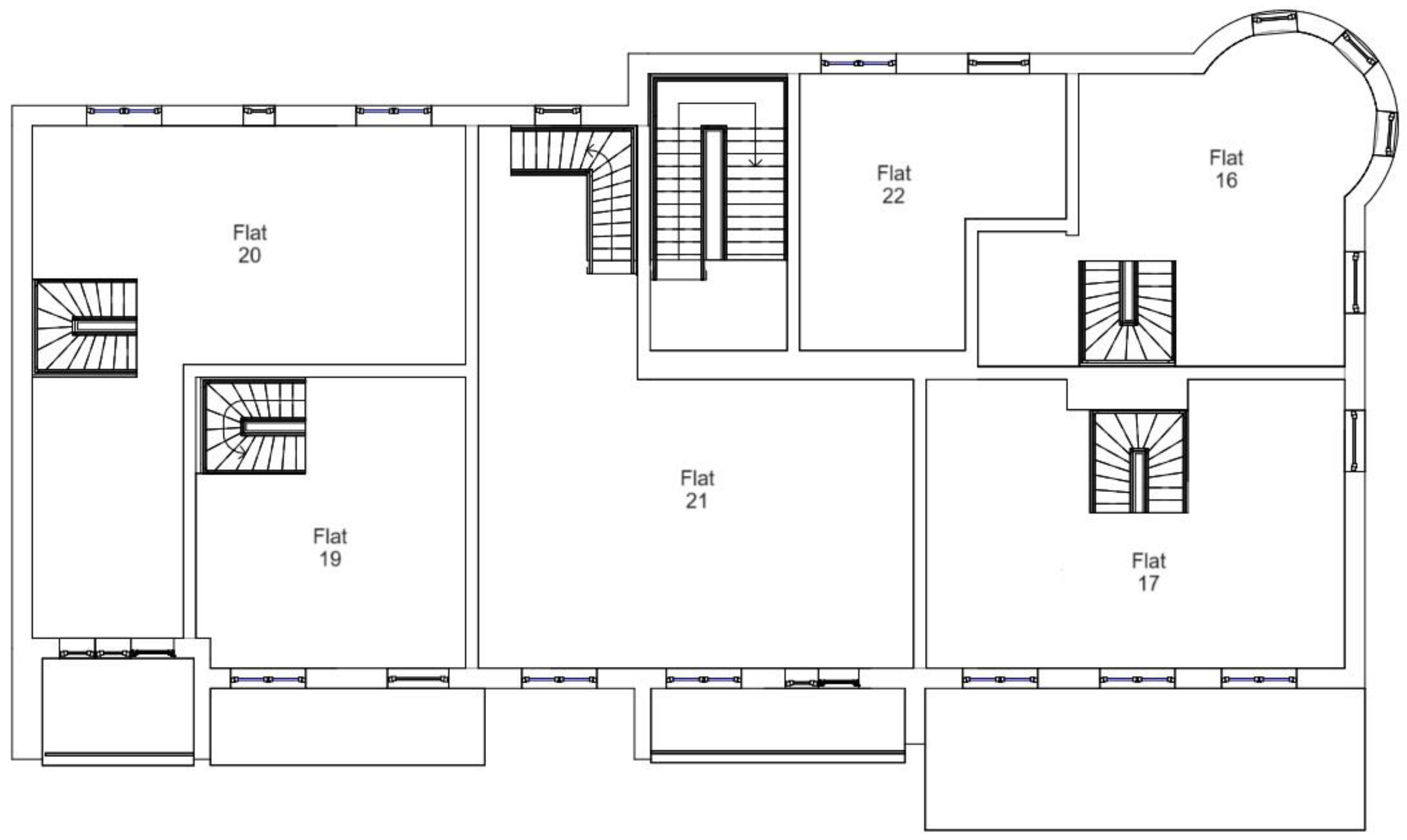
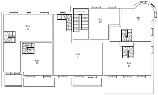
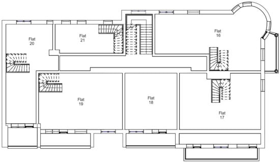
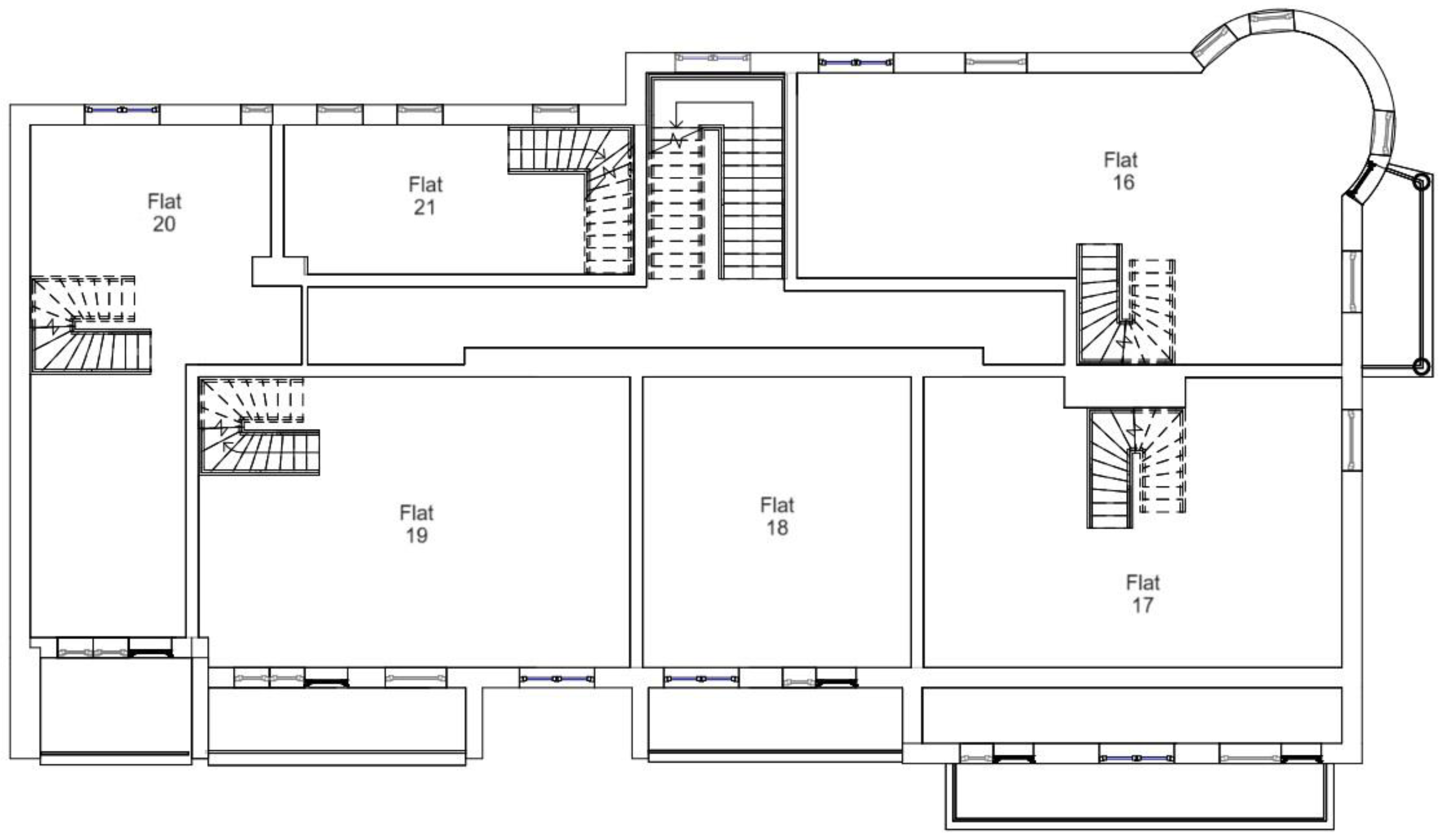
4. Results
4.1. Creation of 3D Model
4.2. UML Modelling
- Not Known (NK = 0);
- Surveying Measurements (SM = 1);
- Photogrammetric Measurements (PM = 2);
- Laser Scanning (LS = 3);
- Technical Documentation (TD = 4);
- Administrative Decision (AD = 5);
- Legal Decision (LD = 6);
- Other Source (OS = 10).
5. Discussion
6. Conclusions and Future Work
Supplementary Materials
Author Contributions
Funding
Data Availability Statement
Acknowledgments
Conflicts of Interest
References
- Enemark, S. Cadastre in a Changing World: Issues and directions. Technology 2015, 9, 11. [Google Scholar]
- Kaufmann, J.; Steudler, D. A vision for a future cadastral system. Sci. Res. 1998, 167, 173. [Google Scholar]
- FIG Joint Commission 3 and 7 Working Group on 3D Land Administration. International Workshop on 3D Cadastres, 28–30 November 2001. Available online: https://gdmc.nl/3DCadastres/workshop2001/ (accessed on 12 July 2024).
- Oosterom, P.; Stoter, J.; Ploeger, H.; Thompson, R.; Karki, S. World-wide inventory of the status of 3D Cadastres in 2010 and expectations for 2014. In Proceedings of the FIG Working Week: Bridging the Gap Between Cultures, Marrakech, Morocco, 18–22 May 2011. [Google Scholar]
- Oosterom, P.; Stoter, J.; Ploeger, H.; Lemmen, C.; Thompson, R.; Karki, S. Initial Analysis of the Second FIG 3D Cadastres Questionnaire: Status in 2014 and Expectations for 2018. In Proceedings of the 4th International Workshop on 3D Cadastres, Dubai, United Arab Emirates, 9–11 November 2014. [Google Scholar]
- Oosterom, P.; Shnaidman, A.; Rahman, A.A.; Karki, S.; Lemmen, C.; Ploeger, H. Analysis of the Third FIG 3D Cadastres Questionnaire: Status in 2018 and Expectations for 2022. In Proceedings of the FIG WorkingWeek 2019: Geospatial Information for a Smarter Life and Environmental Resilience, Hanoi, Vietnam, 22–26 April 2019. [Google Scholar]
- Bydłosz, J. Kataster wielowymiarowy i uwarunkowania jego implementacji w Polsce (The multi-dimensional cadastre and its implementation conditions in Poland). Rocz. Geomatyki Ann. Geomat. 2012, 10, 47–54. [Google Scholar]
- Bydłosz, J.; Bieda, A. Developing a UML Model for the 3D Cadastre in Poland. Land 2020, 9, 466. [Google Scholar] [CrossRef]
- Bydłosz, J. Kataster 3D w Polsce i na świecie—3D cadastre in Poland and around the world. In Prawo Własności Warstwowej: Zagadnienia Wybrane; Jaworski, J., Szmulik, B., Eds.; Instytut De Republica: Warsaw, Poland, 2022; pp. 255–279. [Google Scholar]
- Van Oosterom, P.J.; Bennett, R.; Koeva, M.N.; Lemmen, C.H.J. 3D land administration for 3D land uses. Land Use Policy 2020, 98, 104665. [Google Scholar] [CrossRef]
- Thompson, R.; van Oosterom, P. Analysing 3D Land Administration developments and plans from 2010 to 2026. In Proceedings of the 11th International Workshop on the Land Administration Domain Model and 3D Land Administration, Gävle, Sweden, 11–13 October 2023. [Google Scholar]
- ISO 19152:2012; Geographic Information–Land Administration Domain Model (LADM). International Organization for Standardization: Geneva, Switzerland, 2012.
- Kalogianni, E.; Janečka, K.; Kalantari, M.; Dimopoulou, E.; Bydłosz, J.; Radulović, A.; Vučić, N.; Sladić, D.; Govedarica, M.; Lemmen, C.; et al. Methodology for the development of LADM country profiles. Land Use Policy 2021, 105, 105380. [Google Scholar] [CrossRef]
- Cemellini, B.; van Oosterom, P.; Thompson, R.; de Vries, M. Design, development and usability testing of an LADM compliant 3D Cadastral prototype system. Land Use Policy 2020, 98, 104418. [Google Scholar] [CrossRef]
- Flego, V.; Roić, M.; Benasić, I. LADM extensions to maritime domain in multi-register environment-Case study Croatia. Land Use Policy 2021, 102, 105247. [Google Scholar] [CrossRef]
- Petronijević, M.; Višnjevac, N.; Praščević, N.; Bajat, B. The extension of IFC for supporting 3D cadastre LADM geometry. ISPRS Int. J. Geo-Inf. 2021, 10, 297. [Google Scholar] [CrossRef]
- Rajabifard, A.; Atazadeh, B.; Kalantari, M.; Olfat, H.; Shojaei, D.; Badiee, F. Design and development of an LADM-driven 3D Land administration system: Lessons learned in Malaysia. Land Use Policy 2021, 102, 105252. [Google Scholar] [CrossRef]
- Gürsoy Sürmeneli, H.; Alkan, M. Towards standardisation of Turkish cadastral system using LADM with 3D cadastre. Surv. Rev. 2021, 53, 543–558. [Google Scholar] [CrossRef]
- Thompson, R.; van Oosterom, P. Bi-temporal foundation for LADM v2: Fusing event and state based modelling of Land administration data 2D and 3D. Land Use Policy 2021, 102, 105246. [Google Scholar] [CrossRef]
- Zulkifli, N.A.; Rahman, A.A.; Bernad, S.C. Design and implementation of 3D strata objects registration based on LADM–A case study in Malaysia. Land Use Policy 2021, 108, 105497. [Google Scholar] [CrossRef]
- Buuveibaatar, M.; Lee, K.; Lee, W. Implementation of the LADM-Based Cadastral Model for Mongolia towards Transition to a 3D Cadastre. Land 2022, 11, 2014. [Google Scholar] [CrossRef]
- Kara, A.; Lemmen, C.; van Oosterom, P.; Kalogianni, E.; Alattas, A.; Indrajit, A. Design of the new structure and capabilities of LADM edition II including 3D aspects. Land Use Policy 2024, 137, 107003. [Google Scholar] [CrossRef]
- Vučić, N.; Vranić, S.; Sutherland, M.; van Oosterom, P. Registration of apartments and office spaces in 3D land administration–A case study in Croatia. Land Use Policy 2024, 142, 107187. [Google Scholar] [CrossRef]
- Jaljolie, R.; Riekkinen, K.; Dalyot, S. A topological-based approach for determining spatial relationships of complex volumetric parcels in land administration systems. Land Use Policy 2021, 109, 105637. [Google Scholar] [CrossRef]
- Seipel, S.; Andrée, M.; Larsson, K.; Paasch, J.M.; Paulsson, J. Visualization of 3D property data and assessment of the impact of rendering attributes. J. Geovis. Spat. Anal. 2020, 4, 23. [Google Scholar] [CrossRef]
- Paasch, J.M.; Paulsson, J. 3D property research from a legal perspective revisited. Land 2021, 10, 494. [Google Scholar] [CrossRef]
- Guler, D.; Yomralioglu, T. Reviewing the literature on the tripartite cycle containing digital building permit, 3D city modeling, and 3D property ownership. Land Use Policy 2022, 121, 106337. [Google Scholar] [CrossRef]
- Sun, J.; Paasch, J.M.; Paulsson, J.; Tarandi, V.; Harrie, L. A BIM-based approach to design a lifecycle 3D property formation process: A Swedish case study. Land Use Policy 2023, 131, 106712. [Google Scholar] [CrossRef]
- Alattas, A.; Kalogianni, E.; Alzahrani, T.; Zlatanova, S.; van Oosterom, P. Mapping private, common, and exclusive common spaces in buildings from BIM/IFC to LADM. A case study from Saudi Arabia. Land Use Policy 2021, 104, 105355. [Google Scholar] [CrossRef]
- Hajji, R.; El Asri, H.; Ez-Zriouli, C. Upgrading to 3D cadastre in Morocco: Lessons learned from benchmarking of international 3D cadastral systems. Land Use Policy 2023, 128, 106605. [Google Scholar] [CrossRef]
- Gkeli, M.; Potsiou, C. 3D crowdsourced parametric cadastral mapping: Pathways integrating BIM/IFC, crowdsourced data and LADM. Land Use Policy 2023, 131, 106713. [Google Scholar] [CrossRef]
- Andritsou, D.; Alexiou, C.; Potsiou, C. BIM, 3D Cadastral Data and AI for Weather Conditions Simulation and Energy Consumption Monitoring. Land 2024, 13, 880. [Google Scholar] [CrossRef]
- Saeidian, B.; Rajabifard, A.; Atazadeh, B.; Kalantari, M. Underground Land Administration from 2D to 3D: Critical Challenges and Future Research Directions. Land 2021, 10, 1101. [Google Scholar] [CrossRef]
- Saeidian, B.; Rajabifard, A.; Atazadeh, B.; Kalantari, M. Extending CityGML 3.0 to support 3D underground land administration. Int. Arch. Photogramm. Remote Sens. Spat. Inf. Sci. 2022, 48, 125–132. [Google Scholar] [CrossRef]
- Buda, A.S.; Frenț, A.P.; Nistor, S.; Suba, N.S. Possibilities of Registering Natural Underground Cavities into the National Integrated Information System of Cadastre and Land Registry. J. Appl. Eng. Sci. 2023, 13, 53–56. [Google Scholar] [CrossRef]
- Ramlakhan, R.; Kalogianni, E.; van Oosterom, P.; Atazadeh, B. Modelling the legal spaces of 3D underground objects in 3D land administration systems. Land Use Policy 2023, 127, 106537. [Google Scholar] [CrossRef]
- Grzelka, K.; Bieda, A.; Bydłosz, J.; Kondak, A. Visual perception of property rights in 3D. ISPRS Int. J. Geo-Inf. 2023, 12, 164. [Google Scholar] [CrossRef]
- Wang, L.; Zhou, X.; Shen, J.; Zhou, S. Geovisualization: An optimization algorithm of viewpoint generation for 3D cadastral property units. J. Geogr. Syst. 2024, 26, 91–116. [Google Scholar] [CrossRef]
- Višnjevac, N.; Šoškić, M.; Mihajlović, R. Towards Quality Management Procedures in 3D Cadastre. ISPRS Int. J. Geo-Inf. 2024, 13, 160. [Google Scholar] [CrossRef]
- Rutzinger, M.; Oude Elberink, S.P.; Vosselman, G. Automatic extraction of vertical walls from mobile and airborne laser scanning data. In Laser Scanning’ 09; Bretar, F., Pierrot-Deseilligny, M., Vosselman, G., Eds.; ISPRS International Society for Photogrammetry and Remote Sensing: Paris, France, 2009; pp. 7–11. [Google Scholar]
- Pouliot, J.; Vasseur, M. Terrestrial lidar capabilities for 3D data acquisition (indoor and outdoor) in the context of cadastral modelling: A comparative analysis for apartment units. In Proceedings of the 4th International Workshop on 3D Cadastres, Dubai, United Arab Emirates, 9–11 November 2014. [Google Scholar]
- Sejm of the Republic of Poland. Act of 17 May 1989—Law on Geodesy and Cartography (Journal of Laws No. 30, Item 163, as Amended). Available online: http://isap.sejm.gov.pl/isap.nsf/download.xsp/WDU19890300163/U/D19890163Lj.pdf (accessed on 2 July 2024).
- Sejm of the Republic of Poland. Notice of the Minister of Development and Technology of 29 January 2024 on the Publication of the Consolidated Text of the Regulation of the Minister of Development, Labour and Technology on Land and Building Cadastre (Journal of Laws from 2024, Item 219). Available online: https://isap.sejm.gov.pl/isap.nsf/download.xsp/WDU20240000219/O/D20240219.pdf (accessed on 2 July 2024).
- Sejm of the Republic of Poland. Act of 24 June 1994 on the Ownership of Premises—Consolidated Text. (Journal of Laws from 2020, Item 532). Available online: https://isap.sejm.gov.pl/isap.nsf/download.xsp/WDU20200000532/U/D20200532Lj.pdf (accessed on 2 July 2024).
- Bydłosz, J. Przyszłe obiekty katastru 3D w Polsce—Future objects of 3D cadastre in Poland. Acta Sci. Pol. Adm. Locorum 2017, 16, 231–237. [Google Scholar]
- Bieda, A.; Bydłosz, J.; Warchoł, A.; Balawejder, M. Historical underground structures as 3D cadastral objects. Remote Sens. 2020, 12, 1547. [Google Scholar] [CrossRef]
- Bydłosz, J. Evolution of UML application schemes in the Polish cadastral system in the context of legal changes. In Proceedings of the 11th International FIG Land Administration Domain Model/3D Land Administration Workshop, Gävle, Sweden, 11–13 October 2023. [Google Scholar]
- Karabin, M.; Kitsakis, D.; Koeva, M.; Navratil, G.; Paasch, J.; Paulsson, J.; Vučić, N.; Janečka, K.; Lisec, A. Layer approach to ownership in 3D cadastre in the case of underground tunnels. Land Use Policy 2020, 98, 104464. [Google Scholar] [CrossRef]
- Palczewska, A.; Białek, K.; Ostapiuk, J. Inwestycje nad i pod Gruntem—Zalety Własności Warstwowej (Above and Below Ground Developments—The Advantages of Layered Ownership). Rzeczpospolita. 6 September 2024. Available online: https://pro.rp.pl/biznes/art41065641-inwestycje-nad-i-pod-gruntem-zalety-wlasnosci-warstwowej (accessed on 24 October 2024).












Disclaimer/Publisher’s Note: The statements, opinions and data contained in all publications are solely those of the individual author(s) and contributor(s) and not of MDPI and/or the editor(s). MDPI and/or the editor(s) disclaim responsibility for any injury to people or property resulting from any ideas, methods, instructions or products referred to in the content. |
© 2024 by the authors. Licensee MDPI, Basel, Switzerland. This article is an open access article distributed under the terms and conditions of the Creative Commons Attribution (CC BY) license (https://creativecommons.org/licenses/by/4.0/).
Share and Cite
Grzelka, K.; Pargieła, K.; Jasińska, A.; Warchoł, A.; Bydłosz, J. Registration of Objects for 3D Cadastre: An Integrated Approach. Land 2024, 13, 2070. https://doi.org/10.3390/land13122070
Grzelka K, Pargieła K, Jasińska A, Warchoł A, Bydłosz J. Registration of Objects for 3D Cadastre: An Integrated Approach. Land. 2024; 13(12):2070. https://doi.org/10.3390/land13122070
Chicago/Turabian StyleGrzelka, Kornelia, Karolina Pargieła, Aleksandra Jasińska, Artur Warchoł, and Jarosław Bydłosz. 2024. "Registration of Objects for 3D Cadastre: An Integrated Approach" Land 13, no. 12: 2070. https://doi.org/10.3390/land13122070
APA StyleGrzelka, K., Pargieła, K., Jasińska, A., Warchoł, A., & Bydłosz, J. (2024). Registration of Objects for 3D Cadastre: An Integrated Approach. Land, 13(12), 2070. https://doi.org/10.3390/land13122070

