Morphology of Warsaw City Structure Using Urban Indexes and GIS Tools
Abstract
:1. Introduction
1.1. Types of Urban Standards and Indexes
- density standards, building intensity, building coverage, etc.
- resource protection standards
- standards for open spaces
- ecological standards
- standards of urban and urban-architectural design, e.g., the size of plots, the maximum height of buildings, building proportions.
1.2. Structure of the Article
- Introduction with a review of the literature on the methods of describing the spatial structure of the city and selected classifications of urban indicators;
- The methodological context in which two methods of space description were introduced, based on the gradation of buildings, which were the basis for constructing the original GIS tool based on both of them. This part presents the purpose of the work in more detail.
- Section 3 presents the spatial scope of the study, the process of obtaining the necessary spatial data for analyses, the detailed process of building the tool in the GIS environment, and a description of selected urban indicators.
- In the results, the first part describes the relationships between the values of indicators and the allocation of building quarters to the transect zone. Then, based on these relationships, a transect urban cross-section for Warsaw is presented. The second part of this chapter shows the effect of the GIS tool used to describe a selected part of the city of Warsaw.
- The last chapter presents a summary and an assessment of the tool’s operation in terms of its usefulness in urban planners’ work.
2. Methodological Context
2.1. Transect and Spacemate—Similarities and Differences
2.2. GIS as a Spatial Structure Analysis Tool
2.3. Research Purposes
3. Materials and Methods
3.1. Description of Study Area
3.2. Data Collection—Source of Data
3.3. Data Processing and Analysis/Creation of a Model Builder in GIS
- the so-called special zones—industrial and production areas, technical infrastructure, areas with buildings and large-area commercial facilities;
- natural or partially natural zones—forests, parks, waters, protected areas, areas not impacted too much by man, but also the areas of allotments;
- public zones—areas with public facilities—schools, kindergartens, hospitals, churches, buildings with a cultural function;
- communication zones—roads, road, rail and air transport.
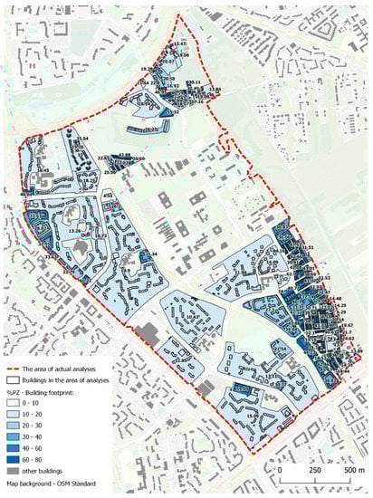
3.3.1. Percentage of Building Coverage in a Quarter
- %PZ—percentage of building coverage of a quarter
- PZ—built-up area
- PQ—surface area of the quarter
- n—number of the quarter
- k—number of buildings in the n-quarter
3.3.2. Building Density in a Quarter
- INT—building density
- PC—total area of the building
- PZ—built-up area
- lk—number of above-ground stories of the building
- PQ—surface area of the quarter
- n—number of the quarter
- k—number of buildings in the n-quarter
3.3.3. Weighted Average Number of Stories
- sr.l.k.—weighted average number of stories
- PC—total area of the building
- PZ—built-up area
- n—number of the quarter
- k—number of buildings in the n-quarter
3.3.4. Maximum Elevation of Buildings
- maxHn—the maximum value of the number of stories in this area around the TOD point
- (H1, H2, H3, … Hk)—a set of possible values for the number of stories in a given area around the TOD point
3.3.5. Predominant Age of Buildings
4. Results
4.1. Study of the Correlation between the Values of Urban Indexes and Transect Zones
- low-rise buildings—up to 12 m high, corresponding to an average of four stories,
- medium-high buildings—12–25 m/4–8 stories,
- tall buildings—25–55 m/8–18 stories,
- high-rise buildings—over 55 m, i.e., over 18 stories.
4.2. The Spatial Structure of Ursynów in Transect Zones
5. Conclusions
Funding
Institutional Review Board Statement
Informed Consent Statement
Data Availability Statement
Conflicts of Interest
Appendix A






References
- Słownik Języka Polskiego. Available online: https://sjp.pl/struktura (accessed on 1 May 2021).
- Solarek, K. Struktura Przestrzenna Strefy Podmiejskiej Warszawy; Oficyna Wydawnicza Politechniki Warszawskiej: Warsaw, Poland, 2013; p. 26. [Google Scholar]
- Sumień, T. Forma Miasta Kontekst i Anatomia; CPBR Instytut Gospodarki Przestrzennej i Komunalnej: Warsaw, Poland, 1992; p. 38. [Google Scholar]
- Liszewski, S. Geografia Urbanistyczna; Wydawnictwo Naukowe PWN: Warsaw, Poland, 2012. [Google Scholar]
- Fiedorowicz, J. Kształtowanie struktury przestrzennej miasta zrównoważonego. Zesz. Nauk. Archit. Politech. Śląska 2012, 51, 117–132. [Google Scholar]
- Słownik Języka Polskiego. Available online: https://sjp.pl/strefa (accessed on 1 May 2021).
- Podolak, S., XV. Podstawowe Pojęcia i Definicje. In Gospodarka Przestrzenna Gmin. Poradnik, t.III; Podolak, S., Ed.; IGPiK O/Kraków, Llewelyn-Davis: London, UK; Fundusz Współpracy: Brytyjski Fundusz “Konw-How”: Kraków, Poland, 1998; p. 300. [Google Scholar]
- Drzazga, D. Systemowe Uwarunkowania Planowania Przestrzennego Jako Instrumentu Osiągania Sustensywnego Rozwoju; Wydawnictwo Uniwersytetu Łódzkiego: Łódź, Poland, 2018; pp. 234–242. [Google Scholar]
- Zuziak, Z.K. Strefowanie Przez Standardy w Planach Miejscowych Zagospodarowania Przestrzennego. In Człowiek i Środowisko. Gospodarka Przestrzenna i Komunalna; Instytut Gospodarki Przestrzennej i Komunalnej: Warsaw, Poland, 1998; Volume 22, No 1–2; pp. 87–88. [Google Scholar]
- Podolak, S., XV. Podstawowe Pojęcia i Definicje. In Gospodarka Przestrzenna Gmin. Poradnik, t.III; Podolak, S., Ed.; IGPiK O/Kraków, Llewelyn-Davis: London, UK; Fundusz Współpracy: Brytyjski Fundusz “Konw-How”: Kraków, Poland, 1998; p. 301. [Google Scholar]
- Grudziński, A. Standard urbanistyczny zabudowy mieszkaniowej. In Człowiek i Środowisko. Gospodarka Przestrzenna i Komunalna; Instytut Gospodarki Przestrzennej i Komunalnej: Warsaw, Poland, 1998; Volume 22, No 1–2; pp. 95–96. [Google Scholar]
- Dąbrowska-Milewska, G. Standardy urbanistyczne dla terenów mieszkaniowych—Wybrane zagadnienia. In Architecturae et Artibus; Oficyna Wydawnicza Politechniki Białostockiej: Białystok, Poland, 2010; pp. 17–31. [Google Scholar]
- Ziobrowski, Z. Urbanistyczne Wymiary Miast; Instytut Rozwoju Miast: Kraków, Poland, 2012. [Google Scholar]
- Waibel, M.; Eckert, R.; Bose, M.; Martin, V. Housing for Low-Income Groups in Ho Chi Minh City between Re-Integration and Fragmentation Approaches to Adequate Urban Typologies and Spatial Strategies. ASIEN Ger. J. Contemp. Asia 2007, 103, 59–78. [Google Scholar]
- UrbiumetOrbi Blog, Relation between Building Typologies & Density. Available online: https://urbiumetorbi.wordpress.com/2015/07/10/building-typologies-and-density-by-richard-rogers (accessed on 20 October 2021).
- Berghauser Pont, M.B.; Haupt, P. Spacemate: The Spatial Logic of Urban Density; Delft University Press: Delft, The Netherlands, 2004. [Google Scholar]
- Berghauser Pont, M.B.; Haupt, P. The relation between urban form and density. J. Urban Morphol. 2007, 11, 62–64. [Google Scholar]
- Berghauser Pont, M.B.; Haupt, P. Space Matrix: Space, Density and Urban Form; NAi.: Rotterdam, The Netherlands, 2010. [Google Scholar]
- Center for Applied Transect Studies. Available online: https://transect.org/index.html (accessed on 28 August 2021).
- Domińczak, M. Nowa Urbanistyka. In Metodyka i Zasady Projektowania Według SmartCode; Wydawnictwo Politechniki Łódzkiej: Łódź, Poland, 2020. [Google Scholar]
- Talen, E. Help for Urban Planning: The Transect Strategy. J. Urban Plan. 2002, 7, 293–312. [Google Scholar] [CrossRef]
- Center for Applied Transect Studies. Available online: https://transect.org/codes.html (accessed on 28 August 2021).
- Solarek, K. Urban Design in Town Planning; Oficyna Wydawnicza Politechniki Warszawskiej: Warsaw, Poland, 2019. [Google Scholar]
- Lotfi, S.; Sholeh, M.; Tabrizi, T. The Application of Transect as a Tool for Urban Landscape Zoning and the Redefinition of the Built Environment Formal Hierarchy. Urban Plan. Knowl. 2019, 2, 95–113. [Google Scholar] [CrossRef]
- Brower, S. The Sectors of the Transect. J. Urban Des. 2002, 7, 313–320. [Google Scholar] [CrossRef]
- Wadduwage, S.; Millington, A.; Crossman, N.D.; Sandhu, H. Agricultural Land Fragmentation at Urban Fringes: An Application of Urban-To-Rural Gradient Analysis in Adelaide. Land 2017, 6, 28. [Google Scholar] [CrossRef] [Green Version]
- Vizzari, M.; Sigura, M. Landscape sequences along the urban–rural–natural gradient: A novel geospatial approach for identification and analysis. Landsc. Urban Plan. 2015, 140, 42–55. [Google Scholar] [CrossRef]
- Zhang, Y.; Liu, C. Parametric Modeling for Form-Based Planning in Dense Urban Environments. Sustainability 2019, 11, 5678. [Google Scholar] [CrossRef] [Green Version]
- Talen, E. SmartCode Justice. Places 2006, 18. Available online: https://placesjournal.org/assets/legacy/pdfs/smartcode-justice.pdf (accessed on 20 December 2021).
- Duany, A.; Talen, E. Transect Planning. J. Am. Plan. Assoc. 2002, 68, 245–266. [Google Scholar] [CrossRef]
- Stylianidis, E.; Karanikolas, N.; Kaimaris, D. A GIS for urban sustainability indicators on spatial planning. Int. J. Sustain. Dev. Plan. 2012, 7, 1–13. [Google Scholar] [CrossRef]
- Szylar, M.; Cegielska, K.; Kukulska-Kozieł, A. Application of gis tools for spatial planning analysis. Pr. Studia Geogr. 2019, 63, 81–99. [Google Scholar]
- Gotlib, D.; Olszewski, R.; Iwaniak, A. GIS, Obszary Zastosowań; Wydawnictwo Naukowe PWN: Warsaw, Poland, 2007. [Google Scholar]
- Kraak, M.J.; Ormeling, F. Cartography. In Visualization of Geospatial Data, 4th ed.; CRC Press: Boca Raton, FL, USA, 2021. [Google Scholar]
- Fogel, P. Wspomaganie procesu tworzenia polityki przestrzennej w gminie poprzez wykorzystanie prostych analiz GIS. In Acta Universitatis Lodziensis. Folia Geographica Socio-Oeconomica; Wydawnictwo Uniwersytetu Łódzkiego: Łódź, Poland, 2013; Volume 14. [Google Scholar]
- Głowacka, A.; Pluta, M. The application of GIS in spatial planning. Geomat. Landmanag. Landsc. 2016, 3, 49–56. [Google Scholar] [CrossRef]
- Mondal, B.; Das, D.N.; Bhatta, B. Integrating cellular automata and Markov techniques to generate urban development potential surface: A study on Kolkata agglomeration. Geocarto Int. 2016, 32, 401–419. [Google Scholar] [CrossRef]
- Cegielska, K.; Salata, T.; Szylar, M.; Kudas, D. Ocena potencjału inwestycyjnego gminy Skała przy wykorzystaniu narzędzi GIS, EPISTEME. Czas. Nauk.-Kult. 2016, 30, 349–363. [Google Scholar]
- Musiaka, Ł.; Nalej, M. Application of GIS Tools in the Measurement Analysis of Urban Spatial Layouts Using the Square Grid Method. ISPRS Int. J. Geo-Inf. 2021, 10, 558. [Google Scholar] [CrossRef]
- Solarek, K.; Jachimowicz, A.M. A land capacity analysis method using GIS tools, as exemplified by the City of Warsaw, Poland. In Spaces of Dialog for Places of Dignity: Fostering the European Dimension of Planning; Freitas, C., Fonseca, I., Eds.; Universidade de Lisboa: Lisbon, Portugal, 2017; pp. 2707–2718. ISBN 978-989-99801-3-6. [Google Scholar]
- Murshed, S.M.; Duval, A.; Koch, A.; Rode, P. Impact of Urban Morphology on Energy Consumption of Vertical Mobility in Asian Cities—A Comparative Analysis with 3D City Models. Urban Sci. 2019, 3, 4. [Google Scholar] [CrossRef] [Green Version]
- Jachimowicz, A.M. Baza Danych Przestrzennych Jako Narzędzie Działań Partycypacyjnych na Terenie Miasta Warszawy. In Rola Partycypacji Społecznej w Kształtowaniu Miast; Mirecka, M., Ed.; Oficyna Wydawnicza Politechniki Warszawskiej: Warsaw, Poland, 2021. [Google Scholar]
- Duany, A. Transect Urbanism: Readings in Human Ecology; ORO Editions: Novato, CA, USA, 2020. [Google Scholar]
- ESRI. Available online: https://www.esri.com/en-us/what-is-gis/overview (accessed on 1 May 2021).
- Główny Urząd Geodezji i Kratografii. Available online: http://www.gugik.gov.pl/projekty/zsin-faza-i/dane-egib (accessed on 30 April 2021).
- Miasto Stołeczne Warszawa, Dane do Pobrania. Available online: https://mapa.um.warszawa.pl/BGIK/ (accessed on 1 May 2021).
- OpenStreetMap. Available online: https://www.openstreetmap.org/about (accessed on 1 May 2021).
- Geoportal Infrastruktury Informacji Przestrzennej. Available online: https://www.geoportal.gov.pl/dane/baza-danych-obiektow-topograficznych-bdot (accessed on 1 May 2021).
- Rozporządzenie Ministra Infrastruktury z Dnia 12 Kwietnia 2002 r. w Sprawie Warunków Technicznych, Jakim Powinny Odpowiadać Budynki i Ich Usytuowanie. Dz.U.2019.0.1065. Available online: http://isap.sejm.gov.pl/isap.nsf/download.xsp/WDU20190001065/O/D20191065.pdf (accessed on 4 April 2021).
- Jania, M. Struktura urbanistyczna Smart City. Przestrz. Urban. Archit. 2017, 2, 57–83. [Google Scholar] [CrossRef] [Green Version]











| Quantitative Urban Index | Required Layers with Spatial Data | Required Attributes | Data Source |
|---|---|---|---|
| Percentage of building coverage | Buildings | Building area, building age | Own study based on EGiB |
| Quarters | Area of the quarter, the dominant function in the quarter | Own study based on EGiB (layer developed as part of the work on the analysis of the absorptive capacity of the city of Warsaw) 1 | |
| Building density | Buildings | Building area, number of stories, building age | Own study based on EGiB |
| Quarters | Area of the quarter, the dominant function in the quarter | Own study based on EGiB (layer developed as part of the work on the analysis of the absorptive capacity of the city of Warsaw) | |
| Maximum elevation in the quarter | Buildings | Number of stories | EGiB/BDOT10k |
| Weighted average number of stories | Buildings | Building area, number of stories | EGiB/BDOT10k |
| Predominant age of buildings | Buildings | Year of construction | Own study based on EGiB (layer developed under a grant) |
Publisher’s Note: MDPI stays neutral with regard to jurisdictional claims in published maps and institutional affiliations. |
© 2022 by the author. Licensee MDPI, Basel, Switzerland. This article is an open access article distributed under the terms and conditions of the Creative Commons Attribution (CC BY) license (https://creativecommons.org/licenses/by/4.0/).
Share and Cite
Jachimowicz, A.M. Morphology of Warsaw City Structure Using Urban Indexes and GIS Tools. Land 2022, 11, 135. https://doi.org/10.3390/land11010135
Jachimowicz AM. Morphology of Warsaw City Structure Using Urban Indexes and GIS Tools. Land. 2022; 11(1):135. https://doi.org/10.3390/land11010135
Chicago/Turabian StyleJachimowicz, Anna Małgorzata. 2022. "Morphology of Warsaw City Structure Using Urban Indexes and GIS Tools" Land 11, no. 1: 135. https://doi.org/10.3390/land11010135
APA StyleJachimowicz, A. M. (2022). Morphology of Warsaw City Structure Using Urban Indexes and GIS Tools. Land, 11(1), 135. https://doi.org/10.3390/land11010135

