Abstract
The water engineering achievements of the Inca at Machu Picchu, when defined in technical terms common to modern engineers, demonstrate that the Inca were masterful planners, designers, and constructors. They demonstrated their technical skills through the planning, design, and construction of water supply, fountains, terraces, foundations, walls, and trails. The site of Machu Picchu was a difficult place to build, with high precipitation, steep terrain, and challenging access. Nonetheless, the Inca had the uncanny ability to plan public works and infrastructure in a manner that fit this problematic site and lasted for centuries.
1. Introduction
It was in the 1913 issue of National Geographic magazine that Hiram Bingham first announced to the world that the “Inca were good engineers” [1]. History Professor Bingham came to this conclusion after his 1912 clearing and mapping of Machu Picchu.
Started in A.D. 1430–1450 as a royal estate of the emperor Pachacuti, the Machu Picchu site was an unlikely place to build what would become, 550 years later, South America’s most well-known archaeological site (Figure 1).
Figure 1.
The Machu Picchu site is abutted by the mountains of Machu Picchu and Huayna Picchu.
When we think of Machu Picchu, we picture its perfectly battered walls and intricately carved temples, huacas, and niches. While these features, alone, are a testament to the engineering skills of the Inca craftspeople, this article explores the water-related infrastructure of Machu Picchu and the remarkable ingenuity and foresight that it demonstrates.
Machu Picchu is an unlikely place to construct a royal estate due to its remoteness, geologic faults, water availability, and landslide potential. Built on a ridge between the two mountains of Machu Picchu and Huayna Picchu to house a resident population of 300 and a peak population of 1000, the Inca engineers worked with nature to create a community with a reliable water supply, good storm drainage, flat areas for agriculture, and building foundations that would meet the challenges of steep, unstable slopes and high rainfall. They constructed a remarkable road system, which would connect Machu Picchu with the outside world, not only via Cusco, but also downstream to the Vilcabamba region.
An analysis of the Inca civil engineering achievements at Machu Picchu, ranging from their use of hydrologic and hydraulic principles to their erosion control and soil stewardship, makes it clear that they adopted technologies from other peoples and the earlier empires of Wari and Tiwanaku [2]. Then, as now in the twenty-first century, technology transfer was a key component to successful engineering achievements.
While Machu Picchu is judged to have been mostly abandoned by A.D. 1540, final abandonment did not happen until A.D. 1572 [3]. The site sat alone and isolated, except for a few Quechua Indians, until Bingham made his discovery in 1911 [4].
2. Materials and Methods
Andean archaeologist Alfredo Valencia Zegarra and I led a team of water engineers and hydrologists from Wright Paleohydrological Institute, who conducted approximately eight site visits to Machu Picchu over a six-year period. Our goal was to use our professional expertise as a basis for examining the remains of this ancient site to (1) document the site from an engineering, hydrological, and hydraulic perspective, and (2) develop a theory of what the designers and builders of the site knew about engineering, hydrology, and hydraulics. The team used photographic documentation, measurements, notes, excavations, interviews with experts, laboratory testing, ice core data, and outside research to develop a picture of what the Inca knew. Some of this was accomplished by what we call “reverse engineering,” the process of evaluating existing systems to determine the principles that were used in their design. A series of papers on these topics was developed, which served as the basis for detailed mapping and a book, Machu Picchu: A Civil Engineering Marvel [5]. This article provides an overview of the team’s findings.
3. Results
3.1. The Physical Setting
The ridge-top site of Machu Picchu, at an elevation of 2430 m, lies between two regional geologic faults (Figure 2), and is a steep 450 m above the Urubamba River. These faults formed a graben upon which Machu Picchu was built, and which relates to the up thrusted twin peaks of Huayna Picchu and Machu Picchu to the north and south at 13°9′ south of the Equator in the headwaters of the Amazon River basin. Machu Picchu experienced moderate temperature variations and high annual rainfall of approximately 2000 mm, as shown in Table 1 [5].
Figure 2.
Machu Picchu lies between two faults. (Reproduced from Machu Picchu: A Civil Engineering Marvel [5], with permission from ASCE, the publisher.)
Table 1.
Estimated annual precipitation at Machu Picchu by decade based on comparison of modern climatological data at Machu Picchu to data from the Quelccaya ice cap [6], located approximately 250 km southeast of Machu Picchu. Average annual precipitation at Machu Picchu was estimated at 1960 mm. (Reproduced from Machu Picchu: A Civil Engineering Marvel [5], with permission from the American Society of Civil Engineers [ASCE], the publisher.)
The rainfall, typical ground slopes of 50 percent, local faulting, and soils that are prone to landslides presented the Inca engineers with many challenges to overcome. Overcome them they did, for Bingham’s 1912 photographs and descriptions show Machu Picchu to have been nearly free of damaging landslides and failed foundations after 340 years. It is known, however, that the Inca did experience some failures such as a large earth slide near the Main Drain (Figure 3 shows the layout of Machu Picchu and key features such as the Main Drain).
Figure 3.
Site map showing layout and key features of Machu Picchu site.
3.2. Water Supply Canal
The Machu Picchu geologic fault caused fracturing and crushing of the adjacent hard granite rock, which in turn resulted in a natural spring water source on the north slope of Machu Picchu Mountain. [5]. The Inca, using a clever groundwater interception structure (Figure 4), carefully developed this spring, which then fed a long domestic water supply canal (Figure 5). The canal traversed the steep mountainside on a narrow terrace formed by a sturdy and well-founded wall—in some places, 4 m in height. The canal, 749 m in length, was built at an engineered slope with a typical hydraulic cross-section of 13 cm × 12 cm, making it capable of handling up to 300 L per minute. The measured spring yield is 23 to 125 L per minute, as shown in Figure 6.
Figure 4.
Cross-section of the Inca Spring collection system, which enhanced the domestic water supply for Machu Picchu. The yield of the spring was maximized by a permeable stone wall set into the steep hillside and a collection trench, which in turn fed the canal shown below (Reproduced from Machu Picchu: A Civil Engineering Marvel [5], with permission from ASCE, the publisher.)
Figure 5.
The canal at Machu Picchu runs past grain storehouses on a finely constructed terrace.
Figure 6.
Variations of Inca Spring flow by season. The green bars indicate average precipitation while the squares represent average seasonal measurements of spring flow. The dotted line shows interpolated spring flow, representing a lag time of several months. Based on interpretations of Quelccaya ice cap data [6], modern precipitation data correspond closely with estimated precipitation during the period of Machu Picchu occupation. (Reproduced from Machu Picchu: A Civil Engineering Marvel [5], with permission from ASCE, the publisher.).
The Inca engineers were in the process of constructing a branch canal off the main canal at the time of abandonment, which would have taken advantage of the excess capacity of the main canal.
3.3. Fountains
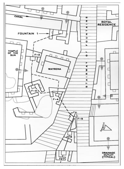
The Inca canal delivered its water supply by gravity to Fountain #1 at an elevation of 2437 m, which then defined the location of the entrance to the Royal Residence, allowing the emperor to have first use of the pure spring water. Here, the Temple of the Sun, the Sacred Fountain, and the Wayrona were also built. Additionally, incorporated into the special complex were Fountains #2 through #6 (Figure 7).
Figure 7.
Map of canal and fountains showing relationship to Royal Residence. Fountain #3 (F-3) is the Sacred Fountain. (Reproduced from Machu Picchu: A Civil Engineering Marvel [5], with permission from ASCE, the publisher.)
Downhill, another ten fountains were constructed in series for domestic water supply purposes with the last fountain being a private water supply accessible only from the Temple of the Condor. The remaining water was then carried in a buried conduit and then an open channel for discharge as waste into the Main Drain (a.k.a. Dry Moat) (Figure 8).
Figure 8.
The main drain or “dry moat” was the route for wastewater to exit the Machu Picchu site. The wastewater flowed to the rainforest below, where lush vegetation minimized the erosive potential of the drainage.
The fountains of Machu Picchu are well engineered for the volume and flow of water provided by the Inca Canal. The approach channels were carefully carved to create a jet that would allow for the filling of Inca water vessels called aryballos (Figure 9). The hydraulic design of the fountains allowed for reasonable operation for a flow of between 10 and 100 L per minute. At flows of more than 100 L per minute, a control orifice in Fountain #4 would reject excess water for overflow down the granite stairway of the fountains [5].
Figure 9.
Inca engineers designed water jets that were sized perfectly for the range of flows (a) and which allowed for clay Inca water jugs known as aryballos (b) to easily be filled.
3.4. Agricultural Terraces
The numerous agricultural terraces at Machu Picchu total 4.9 ha in area and were built to withstand the ravages of gravity and time. This is made clear by photographs Hiram Bingham took of Machu Picchu in 1912 that showed intact walls. The longevity of the agricultural terraces was due in part to advanced drainage design that incorporated adequately sloped surfaces, good subsurface drainage, and a remarkable network of surface drains. Another aspect of the terrace construction that assured stability was the carefully-thought-out wall foundations that resisted both settlement and sliding.
The terraces had an annual nutrient-producing capability of some 172,000,000 kJ of nutrients—enough to furnish annual sustenance to approximately 55 people. Therefore, it is assumed that food was imported from the floodplain of the Urubamba River below and perhaps from outlying terraced areas such as Intipata [5].
3.5. Drainage, Erosion Control, and Soil Stewardship
Nowhere are the fruits of good drainage, erosion control, and soil stewardship more evident than at Machu Picchu. The terraces were found by Bingham to be free from erosion and sedimentation even after nearly 400 years of lying unattended because the Inca engineers were as good at engineering substructure as they were at engineering the beautiful walls for which they are known. Narrow, steep terraces climb up every possible slope, including the Intiwatana pyramid and the crown of Huayna Picchu, to keep soil in its place and erosion at bay. Figure 10 shows the typical subsurface drainage employed in the fill between the terrace walls.
Figure 10.
Good subsurface drainage in the agricultural terraces ensured that much of the rainfall percolated down into the permeable zone. (Reproduced from Machu Picchu: A Civil Engineering Marvel [5], with permission from ASCE, the publisher.)
With nearly 2000 mm in annual precipitation, it was imperative that extensive storm drainage engineering be incorporated not only into the agricultural terraces, but also that urban drainage be planned and engineered throughout the ridge-top royal estate. To this effect, there were a total of 129 formal drainage outlets incorporated into the urban sector wall construction. These are not ordinary wall holes, but carefully planned and adequately sized structural openings established at just the right elevation to drain interior floor surfaces.
Runoff from thatched roofs and compacted urban surfaces was high, and for that reason a relatively safe set of drainage criteria was used that accounted for the high rainfall amounts. By examining the size and pattern of drainage outlets at Machu Picchu, it was possible to define the empirical hydraulic criteria used by Inca engineers, as shown in Table 2 [5].
Table 2.
Urban surface runoff criteria 1 for wall drainage outlets. (Reproduced from Machu Picchu: A Civil Engineering Marvel [5], with permission from ASCE, the publisher.)
The masterful engineering of Machu Picchu is not only what is visible to the eye, but also the 60 percent of the building effort that lies underground in the form of foundations and subsurface drainage.
3.6. Inca Trail
In an empire that stretched nearly 4000 km from north to south, and crossed mountain ranges higher than the alps, the Inca built a road system that was a wonder of the ancient world. They had the design skills, labor forces, and organizational capacity to build a trail system that represented not just routes for travel from one place to the next, but a stunning achievement in road development.
The Inca Trail is a well-constructed road with carefully placed stones. A roadway network as grand as the Inca Trail system needed supporting infrastructure in the form of terraces and culverts to manage unstable hillsides and provide drainage. The outside walls of these terraces, even the highest ones, are distinctive in that they are often vertical, without the sloping pitch of typical Inca architecture. Stations to house military guards to control trail use were placed at regular intervals.
My team and I studied the Inca Trail system extending from the hub of Machu Picchu, including the well-known trail hiked by many tourists from the Kilometer 88 Railroad Stop to Machu Picchu, and the long-buried East Flank trail from Machu Picchu to the left bank of the Urubamba River. There, the trail linked with the trail that took ancient runners, military personnel, and Inca travelers down into the Amazon basin [7].
The Inca Trails features many of the same hallmarks of modern road systems: tambos (overnight rest stops), fountains (cafes), and grade-controlled paths that allowed for good drainage and comfortable travel. Terraces are integrated for erosion control and to form flat land surfaces for farming. Finely built granite stairways are provided where the terrain is steep. Many sets of convenient “flying stairways” allowed the field workers ready movement from one terrace level to another without having to return to the access staircases.
During our East Flank excavations, we unearthed two ceremonial fountains, which sprang into life and flowed again after the debris was removed (Figure 11). To assure that the two ceremonial fountains would not overflow during periods of excessive water yield, a hydraulic bifurcation was built upstream of the upper fountain so that excess water would be diverted into a stone-formed conduit for discharge to an adjacent drainage channel. This is evidence that the Inca engineers understood the fundamental mechanics of water flow, and that they had the ability to enhance the hydraulic operation of the fountains to account for periods of low flow.
Figure 11.
This long-buried fountain along the Inca Trail still operated after centuries of neglect. This photograph was taken a year after it was uncovered during East Flank trail clearing.
4. Discussion
Inca design standards were relatively uniform. The building construction details at Machu Picchu demonstrate consistent engineering that followed Imperial Inca standards. Building groups, individual buildings, entrances, and niches at Machu Picchu help tell a story of centralized authority. Building designs that are thousands of miles apart have been well documented by Inca scholars as to shape, style, and spacing. The uniform batter of Inca walls helped to ensure stability. The placement of stone in a course to avoid planes of weakness also contributed to soundness and longevity, but the Inca investment in geotechnical site preparation and foundations was the most important reason why the public works construction has endured.
The Inca transportation system included paved trails, stone stairways, tunnels, retaining walls, and hanging bridges over rivers and gulches for which abutments still exist. Then, high above the trails, the Inca built storehouses for foodstuffs, so that a traveling military legion or the local people would did not go hungry.
The ultimate testaments to the sound engineering of Machu Picchu are that the site has withstood the moist elements of Peru for 550 years and that many of its features—canals, fountains, walls, terraces, and drainage systems—still function as designed. The Inca did not have a written language and they left behind no designs or plans to demonstrate their engineering skills. The remaining structures at Machu Picchu and the insight that not all things that are constructed do last, inform my judgement that the Inca knew what they were doing.
5. Conclusions
The water engineering work at Machu Picchu, ranging from the Inca Spring and canal, to the fountains and drainage, to the engineering of the trail system, represents extensive Inca knowledge of the fundamentals of hydrology and hydraulics. The design of the spring collection works and canals shows that the Inca knew how to efficiently maximize their water supply. They also understood the volume and variability of the water supply, in that the Inca canal provided the proper grade and capacity for the volume of water. The Inca created fountains that were not only beautiful, but provided jetted water streams for filling water vessels and an overflow system to address higher volumes of flow. The Inca also understood good drainage and erosion control practices, as demonstrated by the longevity of Machu Picchu despite annual average precipitation of approximately 2000 mm. The Inca trails further demonstrated their builders’ understanding of drainage, erosion control, and water supply. All of this was accomplished in a challenging location with steep, unstable slopes and high rainfall. In short, the Inca engineers knew how to build public works and infrastructure in a manner that fit this difficult site and lasted for centuries.
Funding
This research received no external funding.
Conflicts of Interest
The author declares no conflict of interest.
References
- Bingham, H. In the Wonderland of Peru. Natl. Geogr. Mag. 1913, 23, 387–574. [Google Scholar]
- McEwan, G.F. The Incas: New Perspectives; Norton & Company, Inc.: New York, NY, USA, 2008. [Google Scholar]
- Rowe, J.H.; UC Berkeley, Berkeley, CA, USA. Personal communication, 1997.
- Bingham, H. Machu Picchu A Citadel of the Incas; Yale University Press: New Haven, CT, USA, 1930. [Google Scholar]
- Wright, K.R.; Valencia Zegarra, A. Machu Picchu: A Civil Engineering Marvel; ASCE Press: Reston, VA, USA, 2000. [Google Scholar]
- Thompson, L.G.; Moseley-Thompson, E.; Morales, B.M. One half millennia of tropical climate variability as recorded in the stratigraphy of the Quelccaya ice cap, Peru. Geophys. Monogr. 1989, 55, 15–31. [Google Scholar]
- Wright, K.R.; Wright, R.M. The Inka Trails near Machu Picchu. The Great Inka Road: Engineering an Empire; Matos Mendieta, R., Barreiro, J., Eds.; Smithsonian Books: Washington, DC, USA; New York, NY, USA, 2015. [Google Scholar]
Publisher’s Note: MDPI stays neutral with regard to jurisdictional claims in published maps and institutional affiliations. |
© 2021 by the author. Licensee MDPI, Basel, Switzerland. This article is an open access article distributed under the terms and conditions of the Creative Commons Attribution (CC BY) license (https://creativecommons.org/licenses/by/4.0/).










