Seismic Performance of Recycled Aggregate Geopolymer Concrete-Filled Double Skin Tubular Columns with Internal Steel and External FRP Tube
Abstract
1. Introduction
2. Materials and Method
2.1. Materials
2.1.1. Recycled Aggregate Geopolymer Concrete
2.1.2. Steel Tube
2.1.3. Glass-FRP Tube
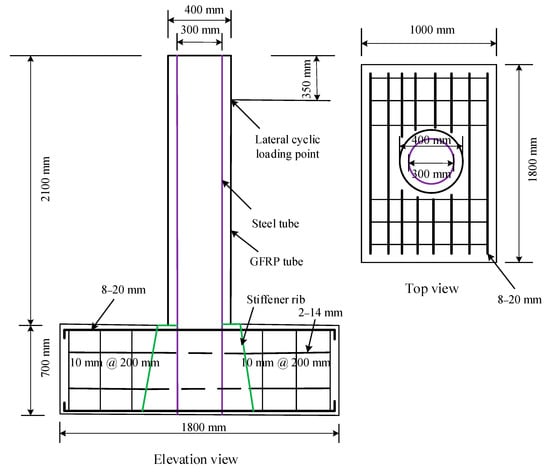
2.2. Manufacturing of Specimens
2.3. Testing Preparation
2.4. Load Mechanism of Specimens
3. Results and Discussion
3.1. Failure of Specimens
3.2. Skeleton Curves
3.3. Hysteretic Loops
3.4. Strain Circulation in GLT
3.5. Ductility
3.6. Cumulative Failure of Specimens
3.7. Dissipation of Energy Capacity
3.8. Stiffness and Axial Capacity
4. Conclusions
- The horizontal load capacity of FGSTCs was 16.9% greater than that of equivalents having natural aggregate. The energy loss of the FGSTCs was 24.5% higher than that of their natural aggregate equivalents. As a result, FGSTCs have a higher axial load-carrying capacity and greater energy loss because of these characteristics. FGSTCs may have a 16.9% lower cumulative failure rate than their natural aggregate counterparts.
- The FGSTCs had rounded hysteretic loops, and their skeleton graphs showed a significant ameliorate in horizontal deformations before the specimens reached their greatest parallel loads. The FGSTCs’ ductility levels ameliorated from 7.1 to 9.7, and their maximum rotations ameliorated from 0.035 to 0.059, which were two to three times higher than the required value for seismic structural specimens, which should be 0.020. The above findings indicate a common seismic appearance of FGSTCs that is controlled by the exterior GLT and the inward STT.
- As the curvature ameliorated, the RAGC replacement proportion, accumulative failure, and ductility of FGSTCs all decreased somewhat, whereas energy dissipation and elastic stiffness ameliorated slightly. The axial load-carrying capacity of the specimen did not affect the RCA substitution rate. Ductility, curvature, accumulative failure, and energy dissipation were all commonly affected when the compression load proportion was ameliorated. The steel ratio, rather than the axial load-carrying capacity, played a larger role in widening the transverse deformation of the FGSTCs.
- The hoop and axial strains of FRP enhanced most rapidly in the compression zones of the specimens and were reduced by increasing the specimen height. Before beginning the FRP cracking process, the hoop and axial stresses versus lateral deformation graphs at comparable column heights on the compressive face and tensile face would be symmetric on the ascending compressive face. The compressive face of the GLT in an FGSTC produced an insufficient engagement to carry the axial capacity while the tension face demonstrated limited engagement; as a result, the main responsibility of the STT in an FGSTC was to handle the tensile loads. In seismic zones, this investigation recommends the adoption of an efficient, lightweight, sustainable, and durable double-skin-tubed compression member.
Author Contributions
Funding
Institutional Review Board Statement
Data Availability Statement
Acknowledgments
Conflicts of Interest
References
- McGinnis, M.J.; Davis, M.; De La Rosa, A.; Weldon, B.D.; Kurama, Y.C. Quantified sustainability of recycled concrete aggregates. Mag. Concr. Res. 2017, 69, 1203–1211. [Google Scholar] [CrossRef]
- Coelho, A.; de Brito, J. Influence of construction and demolition waste management on the environmental impact of buildings. Waste Manag. 2012, 32, 532–541. [Google Scholar] [CrossRef] [PubMed]
- Azúa, G.; González, M.; Arroyo, P.; Kurama, Y. Recycled coarse aggregates from precast plant and building demolitions: Environmental and economic modeling through stochastic simulations. J. Clean. Prod. 2018, 210, 1425–1434. [Google Scholar] [CrossRef]
- Xiao, J.; Wang, C.; Ding, T.; Akbarnezhad, A. A recycled aggregate concrete high-rise building: Structural performance and embodied carbon footprint. J. Clean. Prod. 2018, 199, 868–881. [Google Scholar] [CrossRef]
- Silva, R.V.; De Brito, J.; Dhir, R.K. Fresh-state performance of recycled aggregate con-crete: A review. Constr. Build. Mater. 2018, 178, 19–31. [Google Scholar] [CrossRef]
- Ma, H.; Xue, J.; Zhang, X. Seismic performance of steel-reinforced recycled concrete columns under low cyclic loads. Constr. Build. Mater. 2013, 48, 229–237. [Google Scholar] [CrossRef]
- Alhazmi, H.; Shah, S.A.R.; Anwar, M.K.; Raza, A.; Ullah, M.K.; Iqbal, F. Utilization of Polymer Concrete Composites for a Circular Economy: A Comparative Review for Assessment of Recycling and Waste Utilization. Polymers 2021, 13, 2135. [Google Scholar] [CrossRef]
- Rashedi, A.; Marzouki, R.; Raza, A.; Rawi, N.F.M.; Naveen, J. Mechanical, Fracture, and Microstructural Assessment of Carbon-Fiber-Reinforced Geopolymer Composites Containing Na2O. Polymers 2021, 13, 3852. [Google Scholar] [CrossRef]
- Raza, A.; Rashedi, A.; Rafique, U.; Hossain, N.; Akinyemi, B.; Naveen, J. On the Structural Performance of Recycled Aggregate Concrete Columns with Glass Fiber-Reinforced Composite Bars and Hoops. Polymers 2021, 13, 1508. [Google Scholar] [CrossRef]
- Alrshoudi, F.; Abdus Samad, U.; Alothman, O.Y. Evaluation of the Effect of Recycled Polypropylene as Fine Aggregate Replacement on the Strength Performance and Chloride Penetration of Mortars. Polymers 2022, 14, 2806. [Google Scholar] [CrossRef]
- Gao, C.; Fu, Q.; Huang, L.; Yan, L.; Gu, G. Jute Fiber-Reinforced Polymer Tube-Confined Sisal Fiber-Reinforced Recycled Aggregate Concrete Waste. Polymers 2022, 14, 1260. [Google Scholar] [CrossRef] [PubMed]
- Saafi, M.; Toutanji, H.; Li, Z. Behavior of concrete columns confined with fiber reinforced polymer tubes. Mater. J. 1999, 96, 500–509. [Google Scholar]
- Zeng, J.; Lin, G.; Teng, J.; Li, L. Behavior of large-scale FRP-confined rectangular RC columns under axial compression. Eng. Struct. 2018, 174, 629–645. [Google Scholar] [CrossRef]
- Xue, B.; Gong, J. Study on steel reinforced concrete-filled GFRP tubular column under compression. Thin-Walled Struct. 2016, 106, 1–8. [Google Scholar] [CrossRef]
- Jiang, C.; Wu, Y.-F. Axial strength of eccentrically loaded FRP-confined short concrete columns. Polymers 2020, 12, 1261. [Google Scholar] [CrossRef] [PubMed]
- Lee, K.S.; Lee, B.Y.; Seo, S.Y. A seismic strengthening technique for reinforced concrete columns using sprayed FRP. Polymers 2016, 8, 107. [Google Scholar] [CrossRef] [PubMed]
- Napoli, A.; Realfonzo, R. RC columns strengthened with novel CFRP systems: An experimental study. Polymers 2015, 7, 2044–2060. [Google Scholar] [CrossRef]
- Raza, A.; Shah, S.A.R.; Alhazmi, H.; Abrar, M.; Razzaq, S. Strength Profile Pattern of FRP-Reinforced Concrete Structures: A Performance Analysis through Finite Element Analysis and Empirical Modeling Technique. Polymers 2021, 13, 1265. [Google Scholar] [CrossRef]
- Yooprasertchai, E.; Dithaem, R.; Arnamwong, T.; Sahamitmongkol, R.; Jadekittichoke, J.; Joyklad, P.; Hussain, Q. Remediation of Punching Shear Failure Using Glass Fiber Reinforced Polymer (GFRP) Rods. Polymers 2021, 13, 2369. [Google Scholar] [CrossRef]
- Zeng, J.-J.; Lv, J.-F.; Lin, G.; Guo, Y.-C.; Li, L.-J. Compressive behavior of double-tube concrete columns with an outer square FRP tube and an inner circular high-strength steel tube. Constr. Build. Mater. 2018, 184, 668–680. [Google Scholar] [CrossRef]
- Pessiki, S.; Harries, K.A.; Kestner, J.T.; Sause, R.; Ricles, J.M. Axial behavior of reinforced concrete columns confined with FRP jackets. J. Compos. Constr. 2001, 5, 237–245. [Google Scholar] [CrossRef]
- Muflikhun, M.A.; Yokozeki, T. Steel plate cold commercial-carbon fiber reinforced plastics hybrid laminates for automotive applications: Curing perspective with thermal residual effect. J. Mater. Res. Technol. 2021, 14, 2700–2714. [Google Scholar] [CrossRef]
- Muflikhun, M.A.; Yokozeki, T. Experimental and numerical analysis of CFRP-SPCC hybrid laminates for automotive and structural applications with cost analysis assessment. Compos. Struct. 2021, 263, 113707. [Google Scholar] [CrossRef]
- Khakimova, R.; Castro, S.G.; Wilckens, D.; Rohwer, K.; Degenhardt, R. Buckling of axially compressed CFRP cylinders with and without additional lateral load: Experimental and numerical investigation. Thin-Walled Struct. 2017, 119, 178–189. [Google Scholar] [CrossRef]
- Teng, J.G.; Zhao, J.; Yu, T.; Li, L.-J.; Guo, Y. Behavior of FRP-confined compound concrete containing recycled concrete lumps. J. Compos. Constr. 2016, 20, 04015038. [Google Scholar] [CrossRef]
- Xian, G.; Guo, R.; Li, C.; Wang, Y. Mechanical performance evolution and life prediction of prestressed cfrp plate exposed to hygrothermal and freeze-thaw environments. Compos. Struct. 2022, 293, 115719. [Google Scholar] [CrossRef]
- Abed, F.; Mehaini, Z.; Oucif, C.; Abdul–Latif, A.; Baleh, R. Quasi-static and dynamic response of GFRP and BFRP bars under compression. Compos. Part C Open Access 2020, 2, 100034. [Google Scholar] [CrossRef]
- Li, C.; Xian, G.; Li, H. Effect of postcuring immersed in water under hydraulic pressure on fatigue performance of large-diameter pultruded carbon/glass hybrid rod. Fatigue Fract. Eng. Mater. Struct. 2019, 42, 1148–1160. [Google Scholar] [CrossRef]
- Hadi, M.N.; Ahmad, J.; Yu, T. Tests of geopolymer concrete columns with basalt-fibre-reinforced-polymer bars and tubes. Proc. Inst. Civ. Eng.-Struct. Build. 2022, 175, 1–41. [Google Scholar] [CrossRef]
- Danda, U.K. Experimental study on reinforced geopolymer concrete columns using GGBS. Mater. Today Proc. 2020, 33, 632–636. [Google Scholar] [CrossRef]
- Hassan, A.; Arif, M.; Shariq, M. Use of geopolymer concrete for a cleaner and sustainable environment–A review of mechanical properties and microstructure. J. Clean. Prod. 2019, 223, 704–728. [Google Scholar] [CrossRef]
- Saranya, P.; Nagarajan, P.; Shashikala, A. Behaviour of GGBS-dolomite geopolymer concrete short column under axial loading. J. Build. Eng. 2020, 30, 101232. [Google Scholar] [CrossRef]
- Maranan, G.; Manalo, A.C.; Benmokrane, B.; Karunasena, W.; Mendis, P. Behavior of concentrically loaded geopolymer-concrete circular columns reinforced longitudinally and transversely with GFRP bars. Eng. Struct. 2016, 117, 422–436. [Google Scholar] [CrossRef]
- Prabhu, G.G.; Sundarraja, M.; Kim, Y.Y. Compressive behavior of circular CFST columns externally reinforced using CFRp composites. Thin-Walled Struct. 2015, 87, 139–148. [Google Scholar] [CrossRef]
- Teng, J.; Xiao, Q.; Yu, T.; Lam, L. Three-dimensional finite element analysis of reinforced concrete columns with FRP and/or steel confinement. Eng. Struct. 2015, 97, 15–28. [Google Scholar] [CrossRef]
- Long, Y.-L.; Li, W.-T.; Dai, J.-G.; Gardner, L. Experimental study of concrete-filled CHS stub columns with inner FRP tubes. Thin-Walled Struct. 2018, 122, 606–621. [Google Scholar] [CrossRef]
- Huang, C.; Chen, T.; Wang, X. Compressive characteristics of damaged circular hollow section (CHS) steel columns repaired by CFRP or grout jacketing. Thin-Walled Struct. 2017, 119, 635–645. [Google Scholar] [CrossRef]
- Yu, T.; Zhang, B.; Cao, Y.; Teng, J. Behavior of hybrid FRP-concrete-steel double-skin tubular columns subjected to cyclic axial compression. Thin-Walled Struct. 2012, 61, 196–203. [Google Scholar] [CrossRef]
- Teng, J.G.; Yu, T.; Wong, Y.; Dong, S. Hybrid FRP–concrete–steel tubular columns: Concept and behavior. Constr. Build. Mater. 2007, 21, 846–854. [Google Scholar] [CrossRef]
- Abdelkarim, O.I.; ElGawady, M.A. Behavior of hollow FRP–concrete–steel columns under static cyclic axial compressive loading. Eng. Struct. 2016, 123, 77–88. [Google Scholar] [CrossRef]
- Wu, B.; Zhao, X.-Y.; Zhang, J.-S.; Yang, Y. Cyclic testing of thin-walled circular steel tubular columns filled with demolished concrete blocks and fresh concrete. Thin-Walled Struct. 2013, 66, 50–61. [Google Scholar]
- Amraei, M.; Jiao, H.; Zhao, X.-L.; Tong, L.-W. Fatigue testing of butt-welded high strength square hollow sections strengthened with CFRP. Thin-Walled Struct. 2017, 120, 260–268. [Google Scholar] [CrossRef]
- Muflikhun, M.A.; Fiedler, B. Failure Prediction and Surface Characterization of GFRP Laminates: A Study of Stepwise Loading. Polymers 2022, 14, 4322. [Google Scholar] [CrossRef] [PubMed]
- Ozbakkaloglu, T.; Idris, Y. Seismic behavior of FRP-high-strength concrete–steel double-skin tubular columns. J. Struct. Eng. 2014, 140, 04014019. [Google Scholar] [CrossRef]
- Han, L.-H.; Tao, Z.; Liao, F.-Y.; Xu, Y. Tests on cyclic performance of FRP–concrete–steel double-skin tubular columns. Thin-Walled Struct. 2010, 48, 430–439. [Google Scholar] [CrossRef]
- Abdelkarim, O.I.; ElGawady, M.A.; Gheni, A.; Anumolu, S.; Abdulazeez, M. Seismic performance of innovative hollow-core FRP–concrete–steel bridge columns. J. Bridge Eng. 2017, 22, 04016120. [Google Scholar] [CrossRef]
- Zhang, B.; Teng, J.; Yu, T. Experimental behavior of hybrid FRP–concrete–steel double-skin tubular columns under combined axial compression and cyclic lateral loading. Eng. Struct. 2015, 99, 214–231. [Google Scholar] [CrossRef]
- Xu, J.; Wang, Y.; Ren, R.; Wu, Z.; Ozbakkaloglu, T. Performance evaluation of recycled aggregate concrete-filled steel tubes under different loading conditions: Database analysis and modelling. J. Build. Eng. 2020, 30, 101308. [Google Scholar] [CrossRef]
- Yang, Y.-F.; Zhu, L.-T. Recycled aggregate concrete filled steel SHS beam-columns subjected to cyclic loading. Steel Compos. Struct. 2009, 9, 19–38. [Google Scholar] [CrossRef]
- Yu, T.; Hu, Y.; Teng, J.G. Cyclic lateral response of FRP-confined circular concrete-filled steel tubular columns. J. Constr. Steel Res. 2016, 124, 12–22. [Google Scholar] [CrossRef]
- Kanyilmaz, A.; Brambilla, G.; Chiarelli, G.P.; Castiglioni, C.A. Assessment of the seismic behaviour of braced steel storage racking systems by means of full scale push over tests. Thin-Walled Struct. 2016, 107, 138–155. [Google Scholar] [CrossRef]
- Li, Y.; Zhao, X.; Singh, R.R.; Al-Saadi, S. Tests on seawater and sea sand concrete-filled CFRP, BFRP and stainless steel tubular stub columns. Thin-Walled Struct. 2016, 108, 163–184. [Google Scholar] [CrossRef]
- Yan, L.; Chouw, N.; Jayaraman, K. Flax fibre and its composites–A review. Compos. Part B Eng. 2014, 56, 296–317. [Google Scholar] [CrossRef]
- ASTM C143/C143M-15; Standard Test Method for Slump of Hydraulic-Cement Concrete. U.A.I.: West Conshohocken, PA, USA, 2015.
- ASTM C807-13; Standard Test Method for Time of Setting of Hydraulic Cement Mortar by Modified Vicat Needle. U.A.I.: West Conshohocken, PA, USA, 2013.
- Tu, Y.-Q.; Shen, Y.-F.; Zeng, Y.-G.; Ma, L.-Y. Hysteretic behavior of multi-cell T-Shaped concrete-filled steel tubular columns. Thin-Walled Struct. 2014, 85, 106–116. [Google Scholar] [CrossRef]
- Nie, J.-G.; Wang, Y.-H.; Fan, J.-S. Experimental research on concrete filled steel tube columns under combined compression-bending-torsion cyclic load. Thin-Walled Struct. 2013, 67, 1–14. [Google Scholar] [CrossRef]
- Zhang, X.; Wang, F. Life-cycle assessment and control measures for carbon emissions of typical buildings in China. Build. Environ. 2015, 86, 89–97. [Google Scholar] [CrossRef]
- Park, Y.-J.; Ang, A.H.-S. Mechanistic seismic damage model for reinforced concrete. J. Struct. Eng. 1985, 111, 722–739. [Google Scholar] [CrossRef]
- Li, H.; Xianguo, Y. Comparative study of Kratzig and Park-Ang damage index models. China Civ. Eng. J. 2010, 12, 1–6. (In Chinese) [Google Scholar]
- Chen, Z.; Liang, Y.; Zhao, X.; Zhou, J. Investigation on Hysteretic Behavior of Embedded PVC Pipe Confined Reinforced High Strength Concrete Columns. Materials 2020, 13, 737. [Google Scholar] [CrossRef]
















| Parameter | Value | Parameter | Value |
|---|---|---|---|
| Specific gravity | 2.22 | Apparent density | 2587 kg/m3 |
| Los Angeles abrasion | 44.5% | Bulk density | 1238 kg/m3 |
| Water absorption at 24 h | 6.7% | Minimum size | 4.75 mm |
| 10% fine value | 137 | Maximum size | 12 mm |
| Ingredient | RAGC-0 | RAGC-50 | RAGC-100 |
|---|---|---|---|
| Water | 126 | 126 | 126 |
| Sand | 650 | 650 | 650 |
| Natural coarse aggregates | 1168 | 584 | 0 |
| RCA | 0 | 392 | 784 |
| Superplasticizer | 20 | 20 | 20 |
| Fly ash | 245 | 245 | 245 |
| GGBS | 166 | 166 | 166 |
| Na2SiO3 | 108 | 108 | 108 |
| NaOH solution | 39 | 39 | 39 |
| Sr. No. | (mm) | (MPa) | (mm) | (MPa) | (%) | (GPa) | (%) |
|---|---|---|---|---|---|---|---|
| 1 | 300 | 318 | 8 | 482 | 0.181 | 210 | 26.1 |
| 2 | 300 | 366 | 10 | 465 | 0.237 | 210 | 22.3 |
| Sample ID | (%) | (%) | (mm) | (MPa) | (MPa) | (%) | ||
|---|---|---|---|---|---|---|---|---|
| RAGC0-0.2-STT8 | 0 | 3.04 | 0.2 | 8 | 37.5 | 36.9 | 32.5 | 0.265 |
| RAGC50-0.2-STT8 | 50 | 3.04 | 0.2 | 8 | 37.5 | 33.8 | 30.7 | 0.285 |
| RAGC100-0.2-STT8 | 100 | 3.04 | 0.2 | 8 | 37.5 | 32.2 | 28.9 | 0.318 |
| RAGC50-0.2-STT10 | 50 | 3.81 | 0.2 | 10 | 30.0 | 36.8 | 31.4 | 0.278 |
| RAGC50-0.4-STT8 | 50 | 3.04 | 0.4 | 8 | 37.5 | 35.7 | 34.6 | 0.332 |
| Specimen | (kN) | (mm) | (kN) | (mm) | (kN) | (mm) | ||
|---|---|---|---|---|---|---|---|---|
| RAGC0-0.2-STT8 | 214 | 37 | 141 | 9 | 187 | 84 | 9.3 | 0.051 |
| −236 | −86 | −136 | −10 | −233 | −98 | 9.8 | 0.059 | |
| RAGC50-0.2-STT8 | 220 | 33 | 149 | 8 | 187 | 71 | 8.9 | 0.043 |
| −284 | −96 | −172 | −11 | −284 | −96 | 8.7 | 0.058 | |
| RAGC100-0.2-STT8 | 250 | 38 | 163 | 10 | 223 | 74 | 7.4 | 0.045 |
| −206 | −59 | −126 | −8 | −204 | −74 | 9.3 | 0.045 | |
| RAGC50-0.4-STT8 | 288 | 19 | 234 | 8 | 245 | 57 | 7.1 | 0.035 |
| −264 | −47 | −192 | −9 | −240 | −65 | 7.2 | 0.039 | |
| RAGC50-0.2-STT10 | 249 | 69 | 159 | 9 | 236 | 87 | 9.7 | 0.053 |
| −279 | −77 | −161 | −10 | −277 | −87 | 8.7 | 0.053 |
Publisher’s Note: MDPI stays neutral with regard to jurisdictional claims in published maps and institutional affiliations. |
© 2022 by the authors. Licensee MDPI, Basel, Switzerland. This article is an open access article distributed under the terms and conditions of the Creative Commons Attribution (CC BY) license (https://creativecommons.org/licenses/by/4.0/).
Share and Cite
Alashker, Y.; Raza, A. Seismic Performance of Recycled Aggregate Geopolymer Concrete-Filled Double Skin Tubular Columns with Internal Steel and External FRP Tube. Polymers 2022, 14, 5204. https://doi.org/10.3390/polym14235204
Alashker Y, Raza A. Seismic Performance of Recycled Aggregate Geopolymer Concrete-Filled Double Skin Tubular Columns with Internal Steel and External FRP Tube. Polymers. 2022; 14(23):5204. https://doi.org/10.3390/polym14235204
Chicago/Turabian StyleAlashker, Yasser, and Ali Raza. 2022. "Seismic Performance of Recycled Aggregate Geopolymer Concrete-Filled Double Skin Tubular Columns with Internal Steel and External FRP Tube" Polymers 14, no. 23: 5204. https://doi.org/10.3390/polym14235204
APA StyleAlashker, Y., & Raza, A. (2022). Seismic Performance of Recycled Aggregate Geopolymer Concrete-Filled Double Skin Tubular Columns with Internal Steel and External FRP Tube. Polymers, 14(23), 5204. https://doi.org/10.3390/polym14235204

