Low-Frequency Band Gap Expansion of Acoustic Metamaterials Based on Multi-Mode Coupling Effect
Abstract
1. Introduction
2. Formation of Band Gaps via Multi-Mode Coupling Effect
3. Analysis of Influencing Factors and Order Increase
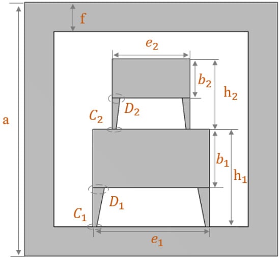
3.1. Analysis of Influencing Factors
3.2. Effects of Locally Resonant Unit Order Increase
4. Validation of Vibration Reduction with Acoustic Metamaterials
5. Conclusions
- (1)
- The bandgaps of multi-mode coupling acoustic metamaterials are calculated using the finite element method. Analysis of various vibrational modes within the band structure reveals that the bandgap formation mechanism arises from the coupling between the acoustic metamaterial and flexural waves in the substrate plate; notably, stronger coupling interactions lead to wider bandgaps.
- (2)
- The influence of structural design parameters on the bandgaps of multi-mode coupling acoustic metamaterials was investigated. To achieve broader bandgaps, increasing the mass of the oscillators or enlarging the width of the cantilever beams can be considered; however, the latter tends to shift the bandgap toward higher frequencies. To promote the convergence of two bandgaps within the low-frequency domain, it is necessary to reduce the width of either the first- or second-order cantilever beams or, alternatively, increase the mass of the first- or second-order oscillators.
- (3)
- As the order of the multi-mode acoustic superstructure increases, both the number of band gaps and the total band gap width increase accordingly.
- (4)
- The attenuation regions observed in experimentally measured vibration frequency response functions closely match the bandgap frequencies predicted by simulations. This effectively validates the presence of multiple low-frequency bandgaps in the multi-mode acoustic metamaterials, thereby achieving broadband vibration attenuation at low frequencies.
Author Contributions
Funding
Data Availability Statement
Acknowledgments
Conflicts of Interest
References
- Broner, N. The effects of low frequency noise on people—A review. J. Sound Vib. 1978, 58, 483–500. [Google Scholar] [CrossRef]
- Araújo Alves, J.; Neto Paiva, F.; Torres Silva, L.; Remoaldo, P. Low-frequency noise and its main effects on human health—A review of the literature between 2016 and 2019. Appl. Sci. 2020, 10, 5205. [Google Scholar] [CrossRef]
- Panda, K.C. Dealing with noise and vibration in automotive industry. Procedia Eng. 2016, 144, 1167–1174. [Google Scholar] [CrossRef]
- Iwabuki, H.; Fukada, S.; Osafune, T.; Shimura, M.; Sasaki, E. Contribution of large-vehicle vibration and bridge vibration to low-frequency noise generation characteristics. Appl. Acoust. 2019, 155, 150–166. [Google Scholar] [CrossRef]
- Hazra, S.; Reddy, J.K. A review paper on recent research of noise and vibration in electric vehicle powertrain mounting system. SAE Int. J. Veh. Dyn. Stab. NVH 2021, 6, 3–22. [Google Scholar] [CrossRef]
- Liao, Y.; Huang, H.; Chang, G.; Luo, D.; Xu, C.; Wu, Y.; Tang, J. Research on low-frequency noise control of automobiles based on acoustic metamaterial. Materials 2022, 15, 3261. [Google Scholar] [CrossRef]
- Hodgdon, K.K.; Atchley, A.A.; Bernhard, R.J. Low Frequency Noise Study; Partnership for Air Transportation Noise and Emissions Reduction: Cambridge, MA, USA, 2007. [Google Scholar]
- Zhao, Y.; Wang, X. A review of low-frequency active vibration control of seat suspension systems. Appl. Sci. 2019, 9, 3326. [Google Scholar] [CrossRef]
- Ye, S.; Hou, L.; Zhang, P.; Bu, X.; Xiang, J.; Tang, H.; Lin, J. Transfer path analysis and its application in low-frequency vibration reduction of steering wheel of a passenger vehicle. Appl. Acoust. 2020, 157, 107021. [Google Scholar] [CrossRef]
- Chen, D.; Li, Y.; Gong, Y.; Li, X.; Ouyang, W.; Li, X. Low frequency vibration isolation characteristics and intelligent design method of hull grillage metastructures. Mar. Struct. 2024, 94, 103572. [Google Scholar] [CrossRef]
- Yang, M.; Chen, S.; Fu, C.; Sheng, P. Optimal sound-absorbing structures. Mater. Horiz. 2017, 4, 673–680. [Google Scholar] [CrossRef]
- Huang, S.; Li, Y.; Zhu, J.; Tsai, D.P. Sound-absorbing materials. Phys. Rev. Appl. 2023, 20, 010501. [Google Scholar] [CrossRef]
- Mei, J.; Ma, G.; Yang, M.; Yang, Z.; Wen, W.; Sheng, P. Dark acoustic metamaterials as super absorbers for low-frequency sound. Nat. Commun. 2012, 3, 756. [Google Scholar] [CrossRef]
- Slagle, A.C.; Fuller, C.R. Low frequency noise reduction using poro-elastic acoustic metamaterials. In Proceedings of the 21st AIAA/CEAS Aeroacoustics Conference, Dallas, TX, USA; 2015; p. 3113. [Google Scholar]
- Lee, S.; Ahn, C.H.; Lee, J.W. Vibro-acoustic metamaterial for longitudinal vibration suppression in a low frequency range. Int. J. Mech. Sci. 2018, 144, 223–234. [Google Scholar] [CrossRef]
- Ning, S.; Yang, F.; Luo, C.; Liu, Z.; Zhuang, Z. Low-frequency tunable locally resonant band gaps in acoustic metamaterials through large deformation. Extrem. Mech. Lett. 2020, 35, 100623. [Google Scholar] [CrossRef]
- Gao, N.; Zhang, Z.; Deng, J.; Guo, X.; Cheng, B.; Hou, H. Acoustic metamaterials for noise reduction: A review. Adv. Mater. Technol. 2022, 7, 2100698. [Google Scholar] [CrossRef]
- Wu, L.; Zhai, Z.; Zhao, X.; Tian, X.; Li, D.; Wang, Q.; Jiang, H. Modular design for acoustic metamaterials: Low-frequency noise attenuation. Adv. Funct. Mater. 2022, 32, 2105712. [Google Scholar] [CrossRef]
- Khelif, A.; Adibi, A. Phononic Crystals; Springer: Berlin/Heidelberg, Germany, 2015; Volume 10, ISBN 978-1461493921. [Google Scholar]
- Lu, M.-H.; Feng, L.; Chen, Y.-F. Phononic crystals and acoustic metamaterials. Mater. Today 2009, 12, 34–42. [Google Scholar] [CrossRef]
- Bouckaert, L.P.; Smoluchowski, R.; Wigner, E. Theory of Brillouin zones and symmetry properties of wave functions in crystals. Phys. Rev. 1936, 50, 58. [Google Scholar] [CrossRef]
- Kushwaha, M.S.; Halevi, P.; Dobrzynski, L.; Djafari-Rouhani, B. Acoustic band structure of periodic elastic composites. Phys. Rev. Lett. 1993, 71, 2022. [Google Scholar] [CrossRef]
- Vasseur, J.O.; Deymier, P.; Frantziskonis, G.; Hong, G.; Djafari-Rouhani, B.; Dobrzynski, L. Experimental evidence for the existence of absolute acoustic band gaps in two-dimensional periodic composite media. J. Phys. Condens. Matter 1998, 10, 6051. [Google Scholar] [CrossRef]
- Lu, Y.-q.; Zhu, Y.-y.; Chen, Y.-f.; Zhu, S.-n.; Ming, N.-b.; Feng, Y.-J. Optical properties of an ionic-type phononic crystal. Science 1999, 284, 1822–1824. [Google Scholar] [CrossRef] [PubMed]
- Tanaka, Y.; Tamura, S.-i. Acoustic stop bands of surface and bulk modes in two-dimensional phononic lattices consisting of aluminum and a polymer. Phys. Rev. B 1999, 60, 13294. [Google Scholar] [CrossRef][Green Version]
- Liu, Z.; Zhang, X.; Mao, Y.; Zhu, Y.Y.; Yang, Z.; Chan, C.T.; Sheng, P. Locally resonant sonic materials. Science 2000, 289, 1734–1736. [Google Scholar] [CrossRef] [PubMed]
- Page, J.; Sukhovich, A.; Yang, S.; Cowan, M.; Van Der Biest, F.; Tourin, A.; Fink, M.; Liu, Z.; Chan, C.; Sheng, P. Phononic crystals. Phys. Status Solidi (B) 2004, 241, 3454–3462. [Google Scholar] [CrossRef]
- Wang, G.; Wen, X.; Wen, J.; Shao, L.; Liu, Y. Two-dimensional locally resonant phononic crystals with binary structures. Phys. Rev. Lett. 2004, 93, 154302. [Google Scholar] [CrossRef]
- Wang, G.; Wan, S.; Hong, J.; Liu, S.; Li, X. Analysis of flexural and torsional vibration band gaps in phononic crystal beam. J. Vib. Control 2023, 29, 4814–4827. [Google Scholar] [CrossRef]
- Khelif, A.; Aoubiza, B.; Mohammadi, S.; Adibi, A.; Laude, V. Complete band gaps in two-dimensional phononic crystal slabs. Phys. Rev. E—Stat. Nonlinear Soft Matter Phys. 2006, 74, 046610. [Google Scholar] [CrossRef]
- Wu, Y.; Yan, W.; Wen, G.; He, Y.; Deng, S.; Ding, W. Design and Application of a Lightweight Plate-Type Acoustic Metamaterial for Vehicle Interior Low-Frequency Noise Reduction. Crystals 2024, 14, 957. [Google Scholar] [CrossRef]
- D’Alessandro, L.; Belloni, E.; Ardito, R.; Corigliano, A.; Braghin, F. Modeling and experimental verification of an ultra-wide bandgap in 3D phononic crystal. Appl. Phys. Lett. 2016, 109, 221907. [Google Scholar] [CrossRef]
- Xiao, Y.; Wen, J. Closed-form formulas for bandgap estimation and design of metastructures undergoing longitudinal or torsional vibration. J. Sound Vib. 2020, 485, 115578. [Google Scholar] [CrossRef]
- Xiao, Y.; Wen, J.; Wen, X. Broadband locally resonant beams containing multiple periodic arrays of attached resonators. Phys. Lett. A 2012, 376, 1384–1390. [Google Scholar] [CrossRef]
- Deng, S.; He, Y.; Wu, Y.; Ding, W. A locally resonant metamaterial beam with tunable electromagnetic stiffness based on the electromechanical analogy network. Smart Mater. Struct. 2024, 33, 055052. [Google Scholar] [CrossRef]
- Krushynska, A.; Bosia, F.; Miniaci, M.; Pugno, N. Spider web-structured labyrinthine acoustic metamaterials for low-frequency sound control. New J. Phys. 2017, 19, 105001. [Google Scholar] [CrossRef]
- Gao, N.; Lu, K. An underwater metamaterial for broadband acoustic absorption at low frequency. Appl. Acoust. 2020, 169, 107500. [Google Scholar] [CrossRef]
- Laude, V.; Achaoui, Y.; Benchabane, S.; Khelif, A. Evanescent Bloch waves and the complex band structure of phononic crystals. Phys. Rev. B—Condens. Matter Mater. Phys. 2009, 80, 092301. [Google Scholar] [CrossRef]

















Disclaimer/Publisher’s Note: The statements, opinions and data contained in all publications are solely those of the individual author(s) and contributor(s) and not of MDPI and/or the editor(s). MDPI and/or the editor(s) disclaim responsibility for any injury to people or property resulting from any ideas, methods, instructions or products referred to in the content. |
© 2025 by the authors. Licensee MDPI, Basel, Switzerland. This article is an open access article distributed under the terms and conditions of the Creative Commons Attribution (CC BY) license (https://creativecommons.org/licenses/by/4.0/).
Share and Cite
Wu, Y.; Wu, Z.; Yan, W.; Deng, S.; Zuo, F.; Yang, M.; Ding, W. Low-Frequency Band Gap Expansion of Acoustic Metamaterials Based on Multi-Mode Coupling Effect. Crystals 2025, 15, 764. https://doi.org/10.3390/cryst15090764
Wu Y, Wu Z, Yan W, Deng S, Zuo F, Yang M, Ding W. Low-Frequency Band Gap Expansion of Acoustic Metamaterials Based on Multi-Mode Coupling Effect. Crystals. 2025; 15(9):764. https://doi.org/10.3390/cryst15090764
Chicago/Turabian StyleWu, Yudong, Zhiyuan Wu, Wang Yan, Shiqi Deng, Fangjun Zuo, Mingliang Yang, and Weiping Ding. 2025. "Low-Frequency Band Gap Expansion of Acoustic Metamaterials Based on Multi-Mode Coupling Effect" Crystals 15, no. 9: 764. https://doi.org/10.3390/cryst15090764
APA StyleWu, Y., Wu, Z., Yan, W., Deng, S., Zuo, F., Yang, M., & Ding, W. (2025). Low-Frequency Band Gap Expansion of Acoustic Metamaterials Based on Multi-Mode Coupling Effect. Crystals, 15(9), 764. https://doi.org/10.3390/cryst15090764

