Next Article in Journal
Preparation, Characterization of Graphitic Carbon Nitride Photo-Catalytic Nanocomposites and Their Application in Wastewater Remediation: A Review
Next Article in Special Issue
The Relationship between Compressive Strength and Pore Structure of the High Water Grouting Material
Previous Article in Journal
Aging Behavior of Al- and Ga- Stabilized Li7La3Zr2O12 Garnet-Type, Solid-State Electrolyte Based on Powder and Single Crystal X-ray Diffraction
Previous Article in Special Issue
Action Time-Effect and Mechanism of Low-Calcium Fly Ash in Cement-Based Composites
 
 
Font Type:
Arial Georgia Verdana
Font Size:
Aa Aa Aa
Line Spacing:
Column Width:
Background:
Article

Permeation Characteristics and Surface Accumulation of Chloride in Different Zones of Concrete along Altitude in Marine Environments

1
Jiangsu Key Laboratory of Environmental Impact and Structural Safety in Engineering, China University of Mining and Technology, Xuzhou 221116, China
2
School of Mechanics and Civil Engineering, China University of Mining and Technology, Xuzhou 221116, China
3
State Key Laboratory for Geomechanics and Deep Underground Engineering, China University of Mining and Technology, Xuzhou 221116, China
*
Author to whom correspondence should be addressed.
Crystals 2021, 11(7), 722; https://doi.org/10.3390/cryst11070722
Submission received: 22 April 2021 / Revised: 2 June 2021 / Accepted: 15 June 2021 / Published: 23 June 2021

Abstract

:
The accumulation characteristics of surface chloride in concrete in different zones are different in the marine environment. A series of laboratory experiments were conducted to investigate the surface chloride and permeation characteristics of concrete in a simulated marine environment. The experimental results indicated that the surface chloride and chloride profiles of concrete in different zones of marine environment decreased in the following order: tidal zone > splash zone > submerged zone > atmospheric zone. The width of the ascent zone of Cl concentration at tidal and splash zones was far less than that of the influential depth of moisture transport (IDMT), and the range of convection zone was dependent on the IDMT. Cl at splash and tidal zones penetrated into concrete as a bulk liquid by non-saturated permeation driven by a humidity gradient. The change of chloride profiles in concrete along the altitudinal gradient was consistent with that of the cyclic water absorption amount (CWAA). The transport rate of chloride was the highest at the highest point of the tide.

1. Introduction

The durability of concrete structures in marine environments remains a longstanding challenge mainly due to the complex chloride-induced corrosion of steel bars [1]. Chloride ions penetrate into concrete, largely affecting the durability of marine concrete structures [2]. During the corrosion process, four exposure zones can be introduced, including the submerged, tidal, splash, and atmospheric zone, depending on the height of structural elements relative to sea level [3,4]. The penetration mechanisms of chlorides in different zones are different due to the influences of environmental conditions.
Prince O’Neill Iqbal et al. [5] found that the chloride content millimeters inside the outer concrete surface is anomalously increased under wetting and drying cycles, the surface chloride right at the exposed surface is not the maximum of the chloride content, and the maximum value is at a certain depth from the surface of the concrete. The maximum concentration of Cl is usually located within the concrete cover, according to the measurement result. Therefore, the length of the Cl concentration increase zone can be determined using the Cl concentration distribution curve. This length is used to represent the depth affected by the convective zone [6]. According to the estimate based on Cl concentration distribution, the length of the Cl concentration increase zone is very small under wetting and drying cycles, which is much smaller than the thickness of concrete cover. Therefore, some researchers consider that the influence of wetting and drying cycles on the diffusion model accuracy is negligible. Although it is accepted that chloride ions in a cyclic wetting and drying environment are transported by capillary absorption, related models are still based on Fick’s second law [7].
However, it is questionable that the convection zone be identified by the ascend zone of Cl concentration because when the concrete surface makes contact with salt solution, the pores located within a certain depth will be all filled with water in a very short time. Thus, there exist gradients of moisture within the near surface concrete. Chloride solution transports into concrete by means of non-saturated permeation driven by humidity gradient, while its transportation into deeper areas is by means of slow diffusion, where there is no humidity gradient. Kefei Li [8] suggested the depth of moisture gradients within the near surface concrete be defined as the influential depth of moisture transport (IDMT). Based on the mechanism analysis, the boundary of non-diffusion zone in the surface layer in concrete should be determined by IDMT instead of the depth of Cl concentration increase zone on the concrete surface.
Ji Yongsheng et al. [9] reported that chloride ions are carried by water into the surface layer of concrete mainly by capillary absorption and convection under wet and dry cycles (such as tidal and splash zones in marine environments), and in deeper concrete regions the diffusion is the primary transport of chloride ions. Based on the mechanism of mass transport, the boundary of convective zone in the surface layer in concrete can be determined by the influential depth of moisture transport (IDMT).
The boundary of the non-diffusion zone largely determines the corrosion scope. The influence of Cl transport in the convective zone can be avoided based on the modified Fick’s laws of diffusion under the conditions of the much narrower non-diffusion zone compared to concrete cover. However, another rate model should be developed based on its transport mechanism under the conditions of a large convective zone.
The IDMTs in concrete in different zones are different [10]. The IDMTs in splash and tidal zones are larger. The depth varies with the elevated altitude and the maximum value appears at the top water line of tidal zone, which is the key zone to be considered in the durability design of marine structures. The most severe exposure condition occurs in the tidal zone [11]. The degrees of corrosion of concrete structures in the marine environment largely vary with the exposure zone.
This paper explores the relationship between chloride profiles and the moisture distributions within concrete in various zones along altitudinal gradients in marine environments. Several concrete columns were exposed in the atmosphere and submerged in tidal zones of a simulated marine environment for three years. Chloride ion ingress profiles were determined. The orders of surface chloride and permeation characteristics in concrete in different zones in the marine environment were studied. Based on our previous results [10], the regional scope of convection zone was discussed.

2. Methods and Materials

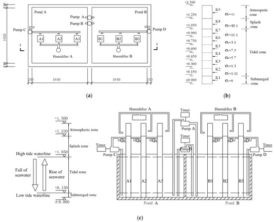
A complex test system was designed to simulate the ocean tidal processes. It mainly comprised two water ponds with 1.1 m height, four water pumps, four clock controllers and two air humidifiers. The whole simulation test system is shown in Figure 1.

2.1. Determination of Tidal Effect

In reality, the tidal effect changes with the time of the day. For a full day tide, the duration of a cycle is assumed to be 24 hours. The rise or fall of the water level in the pools was achieved by water intake and water discharge systems to simulate the ebb and flow of the ocean. Because the powers of the pumps are relatively large and the volumes of the ponds are too small, an intermittent working system was adopted. During the tests, the water pump was on and off periodically as follows. Pump A was on during 9:00–9:04, 11:00–11:04, 13:00–13:04, 15:00–15:04, 17:00–17:04, 19:00–19:04; Pump B was on during 21:00–21:04, 23:00–23:04, 01:00–01:04, 03:00–03:04, 05:00–05:04, 07:00–07:04. The cycle was repeated every 24 h, and the corresponding water elevation in Ponds A and B are shown in Figure 2. Figure 1b shows the corresponding waterline Li on the column surface when the intermittent system worked.

2.2. Designs of Splash Zone and Atmospheric Zone

In a real marine environment, the splash zone of concrete is a result of the splash of ocean waves. For the tests herein, this splash effect was simulated by pouring water onto the concrete surface in a splash zone automatically by a water pump every time the water level in Pond A (or B) reached its peak height. The corresponding frequency was 1 time per 60 seconds and the duration was 30 minutes.
Two humidifiers were employed to supply air-borne salt-moisturized air to the atmospheric zone. Salt (NaCl) was added into water at a mass concentration of 5%. The water was the same as that pumped into the ponds. The outlet of the humidifier was maintained 20 cm away from the concrete surface. Make-up solution was added once a week to maintain stable peaks and valleys of the tide. The solution was replaced every month to attempt to maintain a relatively stable chloride concentration in the ponds.
The division of submerged, tidal, splash and atmospheric zones are illustrated in Figure 1c.

2.3. Species

Three groups of concrete columns with different sizes were arranged: Groups A and C (250 mm × 200 mm × 1500 mm) and Group B (100 mm × 100 mm × 1500 mm). Groups A and B were used to study the variations of moisture distribution in concrete in different zones along the altitudinal gradient and the cyclic water absorption amount (CWAA) in splash and tidal zones in our previous study [10]. Group C was used to investigate chloride ion ingress profiles in various zones.

2.4. Concrete Powder Samples

Concrete powder samples were taken at the end of the nth cycle and the beginning of the (n+1)th cycle after 3 years, when the water level in Pond A was at its peak and that in Pond B was at its valley. At this moment, samples were taken by drilling at the atmospheric zone K9 and splash zone K8 in Pond A and tidal zone K2 in Pond B. As shown in Figure 1b, powder samples were taken at the depths of 0–5, 5–10, 10–15, 15–20, 20–25, 25–30, 30–40, 40–50, and 50–60 mm. Immediately after the samples were taken out of the concrete, holes left on the concrete were filled up with cement paste mixed with a micro expansion agent and accelerating agent. Same sampling depths, techniques and treatments were applied throughout the research project.
During the (n+1)th cycle, the water level in Pond A dropped gradually and the corresponding water level in Pond B rose gradually. Since both ponds were geometrically identical, the dropping rate of the water level in Pond A was the same as the rising rate in Pond B. While the water level in Pond A dropped from L7 to L6 (See Figure 1b), the water level in Pond B rose from L1 to L2. At this moment, powder samples were taken from the concrete in Pond A at K7 and Pond B at K3.
As it proceeded, the water level in Pond A dropped from L6 to L5, to L4, to L3 and to L2, and the corresponding water level in Pond B rose from L2 to L3, to L4, to L5 and to L6, respectively. Samples were taken accordingly at each tidal zones in Pond A (K6–K2) and, correspondingly, in Pond B (K4–K7).
When the water level in Pond A reached its lowest level, L1, the water level in Pond B reached its highest level of L7 during the (n+1)th cycle; samples were taken from Pond B in splash zone, K8, and atmospheric zone, K9. After the holes were sealed in Pond B, Pond A was drained and powder samples were taken from Pond A at submerged zone K1.
At the end of the (n+1)th cycle, the water level in Pond A reached its peak again, and that in Pond B dropped to its bottom. Pond B was then drained, and powder samples were taken from the columns in Pond B at its submerged zone K1. The tidal circulation system worked again after the concrete powder samples were made.

3. Results and Discussion

3.1. Visual Inspection

In the exposure test, the part of concrete columns in the atmospheric zone were not affected. The surface of concrete in splash and tide zones was wet at the beginning of the ebb tide, and with the increase in drying time, the surface of concrete then became dry. After one year, some white crystals precipitated on the concrete surface at the high tide of tidal zone and the crystals were washed out from the concrete surface in the next rising tide. The crystallization zone became wider and wider with the increase in the number of wet and dry cycles. The visual observation results of crystals precipitated and washed out at the surface of the concrete columns after three years are shown in Figure 3. Some white crystals were formed at the whole splash zone and the top half of tidal zone. In the submerged zone, slight mosses and some small barnacles were observed on the concrete surface. These marine growths might function as a physical barrier to provide a sealing layer against chloride ingress.

3.2. Chloride Profiles

3.2.1. Submerged Zone

The Cl distribution profiles in concrete in the submerged zone at different depths are displayed in Figure 4. The amount of chloride ions in concrete decreased gradually from the outside to the inside due to chloride inward invasion from the concrete surface. At the beginning of the transport experiments, the chloride concentration on concrete surface gradually increased and became stable after three months. The underwater parts of concrete columns were in persistent contact with seawater. Due to the constant concentration of chloride ions in sea water, the concentration of chloride ions (Cs) on concrete surface was gradually close to that in seawater (C0).
It can be concluded from the uniform moisture distribution in the submerged zone [10] that there is neither a moisture gradient nor water flow for the entire concrete and that Cl is transported from the concrete surface (region of higher concentration) to its interior (region of lower concentration) under the action of concentration gradient, as shown in Figure 5. Therefore, diffusion is the only dominant mechanism of chloride ion transport and is determined by Fick’s law of diffusion.

3.2.2. Atmospheric Zone

Cl concentration profiles of the concrete column in the atmospheric zone are displayed in Figure 6. Cl concentration profiles in the atmospheric zone were similar to those in the submerged zone due to chloride inward invasion from the concrete surface. The difference between them was that chloride was accumulated on the concrete surface in a marine atmosphere. Furthermore, the concentration profiles of chloride ions in the atmospheric zone were far lower than those in the submerged zone.
Concrete in the atmospheric zone was in direct contact with marine aerosols other than seawater, so concrete was unsaturated. Unlike the results in our previous report [10], there was no obvious moisture gradient in the zone of concrete surface cover, so the transport of chloride into concrete in the atmospheric zone was also mainly driven by the concentration gradient and defined by Fick’s second law. Diffusion of chloride ions could never happen until a continuous water phase was formed in capillary pores of concrete to form a diffusion path [12]. Therefore, in the case of unsaturated concrete in the atmospheric zone, the diffusion process was hindered since the capillary pores decreased and the continuous pore solution was disconnected [13]. The diffusion coefficient of chloride ions was a function of saturation degree [14]. The larger the moisture content was, the faster the diffusion rate was. The moisture content in the atmospheric zone was significantly lower than that in the submerged zone, so the concentration profiles in the atmospheric zone were also slower.

3.2.3. Tidal Zone

The distribution profiles of chloride ions in concrete at different locations of the tidal zone are shown in Figure 7. The content of chloride ions gradually declined from the inside to the outside at each position in concrete in the tidal zone.
The transport mechanism is interpreted as follows. As long as there was a Cl concentration gradient, the driving force for diffusion existed. The higher the moisture content was, the faster the diffusion rate was. Concrete in the submerged zone was water-saturated, but the moisture content in concrete in the tidal zone was lower than that in the submerged zone. The diffusion mechanism is interpreted as follows. The concentration profiles of chloride ions in the tidal zone should be lower than that in the submerged zone. Compared with the experiment results in Figure 6, it shows that the Cl content for any depth in the concrete specimens which are of the same stage is obviously higher than that of the corresponding depth at the submerged zone. According to experimental results in the previous study [10], moisture contents changed greatly during the drying and wetting circles within the surface layer of the tidal zone. Therefore, in this area, chloride profiles strongly depended on the moisture fluctuation in the concrete cover. Moreover, as shown in Figure 7, the variation of chloride concentration profiles with the height was significant and the chloride transport was accelerated dramatically with the increase in altitude.

3.2.4. Splash Zone

Cl concentration profiles of the concrete column in the splash zone are shown in Figure 8. In the testing results in our previous study [10], in this zone the transport mechanism was the same to that in the tidal zone, but its concentration profile was slower than that at the peak of the tide zone. The main reason was that both the width of IDMT and the surface Cl accumulation rate in the splash zone were less than those at the high tide of the tidal zone.
The CWAA (Iwi) is the water absorption amount in a circle. It is defined and the calculation formula is given in [10]. The CWAA (Iwi) had a direct influence on the degree that chlorides entered concrete through cyclic wetting and drying. The larger the CWAA was, the faster the permeation of chloride ions into concrete. Figure 9a shows the variation of the CWAA with altitude [10]. As shown in Figure 9b, the chloride content distribution profiles on the surface of reinforcement in concrete along elevated altitude gradually changed with time from t1 to t3. The variation trend of chloride permeation along the altitudinal gradient was consistent with that of CWAA in the splash and tidal zones (Figure 9). In the area where the splash zone met with the tidal zone, the concentration profile of chlorides was the highest and the penetration rate of chlorides was also the highest. Therefore, these zones were the key points to be considered in the durability design of concrete structures.

3.3. Ascent Zone of Chloride Concentration Profile

There was an ascent zone of chloride concentration at the concrete surface layer, and it was named the "conviction zone" by some researchers [15,16]. The ascent zone of chloride concentration was so small that they believed that it could be neglected compared with the concrete cover. However, no ascent zones of chloride concentration were found in the tidal or splash zone (Figure 7 and Figure 8). In order to confirm the existence of the ascent zone of chloride concentration, chloride profiles at the position of K7 were measured four times during the drying phase. The measurement results are shown in Figure 10.
Chloride profiles were constantly changed from t1 to t4 during the drying phase. At the beginning of the drying phase, there was an ascent zone in chloride concentration profiles from the concrete surface, and the corresponding surface chloride concentration was 0.41%. The chloride ion concentration at a depth of about 6mm reached a maximum value of about 0.60%. In the drying phase, the chloride profile at the area more than 15 mm did not change significantly. However, the surface chloride ion concentration gradually increased and the peak of chloride profiles rose slightly. After 12 hours, the peak of chloride profiles approached the concrete surface, and the ascent zone completely disappeared (as shown in curve t3 in Figure 10). The surface chloride concentration still increased until the end of the drying phase (as shown in curve t4 shown in Figure 10).

3.4. Chloride Concentration on the Concrete Surface

The surface chloride concentration reflects the severity of external chloride attack and is one of the most important parameters in the quantitative design of the durability of concrete structures in marine environments. The main driving force of chloride ion transport into concrete was the surface chloride concentration [17], and the higher the chloride ion concentration on the concrete surface was, the faster the rate of chloride transport into concrete. In most previous studies, the constant value of surface chloride ions were used to solve Fick’s second law for the purpose of evaluating chloride ion transport in concrete. However, it was different for different concrete zones along elevation in the marine chloride environment because the chloride ions accumulated in some zones of the concrete surface and gradually increased.

3.4.1. Submerged Zone

The chloride concentration was variational in the surface layer (0–2 mm) of the different concrete zones (Figure 11 and Figure 12). The chloride concentration on the concrete surface in the submerged zone in seawater remained unchanged and the chloride concentration in the pore solution was equal to that in seawater.

3.4.2. Tidal and Splash Zones

Concrete powder was sampled from surface concrete (0–2 mm) at the end of the drying period after chloride crystals of the concrete surface were gently brushed with a wire brush. The chloride concentrations on the concrete surface were analyzed with RCT-500. The variations of chloride concentrations are shown in Figure 11 and Figure 12.
The surface chloride concentrations at 30 days at the position of K2 (low tide), the position of K7 (high tide), and the position of K8 (splash zone) were respectively 0.18%, 0.30%, and 0.25%, which were much larger than those in the submerged zone. The chloride accumulation rate of the surface chloride rose gradually along the altitudinal gradient from the low tide (Figure 11). After one year, some white crystals precipitated on the surface of concrete at the high tide of tidal zone, and the surface chloride concentration peaked and remained unchanged. The crystallization zone became wider and wider with the increase in the number of wet and dry cycles. The surface chloride concentrations at the position K8 after 1.5 years, at the position K6 after 2 years, and at the position K5 after 2.5 years reached the same maximum value as that at the high tide of tidal zone. The surface chlorides at the positions of K2, K3 and K4 were still slowly growing at the end of the test (three years). The cumulative rate of surface chlorides in the splash zone was slightly less than that at the position of K7. The change in the cumulative rate of surface chlorides in the splash zone along the altitudinal gradient was not investigated because only one sampling point was set in the zone.

3.4.3. Atmospheric Zone

In the atmospheric zone, concrete never directly contacted seawater, so the surface chloride concentration was much lower than that in the submerged zone. There was a large quantity of sea salt aerosol particles (SSA) in the atmosphere of the marine environment [18,19], which is the phenomenon of the seawater aerosol from the breaking sea waves being carried into the air by the wind (Figure 13). When a moving SSA particle on the wind flow collided with concrete, it adhered to the surface of the concrete. The salt solution was adsorbed on the surface layer of concrete and a stain was left on the concrete surface. According to the literature [18,19,20], the size of SSA particles should be several micrometers to ten micrometers. SSA particles were so small that the accumulation of surface chlorides on the concrete surface was a slow process. The accumulation process of SSA particles on surface of concrete in the atmospheric zone is shown in Figure 14. Furthermore, surface chlorides in the atmospheric zone were much smaller than those at other zones and linearly grew over time (Figure 15).
Based on the above results, the accumulation of surface chlorides in different zones could be predicted (Figure 15). The surface chloride concentration in the submerged zone was constant and was represented by linear C1. The accumulation rate of surface chlorides in the atmospheric zone was the slowest and linearly increased, represented by line C2. When concrete in the splash and tidal zones was in contact with seawater for the first time, the surface chloride concentration reached the value C0, which was the same as that in the submerged zone, then increased to the maximum Csmax with the increase in the number of wet and dry cycles, and subsequently remained stable, represented by the fold line C3.
The accumulation of surface chlorides in splash and tidal zones was the consequence of concrete pore water evaporation during the drying phase of wetting and drying cycles. Pore water carried salts to the surface. As water evaporated, salts were left behind, thus forming a fluffy sediment. Therefore, the accumulation rate of surface chloride largely determined the CWAA. The larger CWAA corresponded to the larger accumulation rate of surface chlorides and shorter accumulation time before reaching the maximum value (Figure 16). It is necessary to further investigate the accumulation mechanism of surface chlorides in splash and tidal zones.

3.5. Definition of the Convective Zone

Concrete surface contacted seawater during the flood tide and all the pores within a certain depth were filled with water in just a moment. Therefore, there was a moisture gradient in the concrete near the surface. In the zone of IDMT, chloride solution penetrated into connected pores of concrete by means of non-saturated permeation driven by the humidity gradient. Therefore, the permeability of chlorides in the submerged zone was much lower than that in the splash and tidal zones.
A lot of crystalized chlorides precipitated in pores during the drying phase of the last cycle. Salt crystals were gradually dissolved in seawater and penetrated into concrete, and most of them penetrated deeply into the internal concrete to form the bulk liquid. In addition, salt crystals in the concrete surface layer were dissolved and diluted by seawater, so the concentration of chloride ions in the pore water of the concrete surface layer substantially reduced within a short period. The concentration of chloride ions in the concrete absolute surface decreased to the concentration C0, which was the same as that in the submerged zone. Thus, in the concrete surface layer, an ascent zone of chloride concentration occurred. The concentration of chloride ions in pore water in the concrete surface was higher than that in seawater, so some of the chloride ions driven by the concentration gradient reversely diffused into concrete surface. The maximum Ca of chloride profiles gradually declined under the influence of the dissolution of salt crystals and reverse diffusion of chloride ions, and the peak of chloride profiles moved inward.
The direction of reverse diffusion was opposite to that of the pore fluid which flowed inward, and the flow of the pore fluid in the influential range of the moisture distribution was the principal driving force. It could be predicted that the influencing depth of the moisture distribution was not the same as the range of ascent zone of Cl concentration, although both were caused by wetting and drying cycles. The above test results indicated that the maximum influencing depth of moisture distribution was as much as 30 mm in the marine tidal zone. The width of the ascent zone of Cl concentration was only about 5 mm, thus proving that the width of ascent zone of Cl concentration was far less than the influencing depth of the moisture distribution. The conviction zone was dependent on the influencing depth of the moisture distribution, including the back-diffusion zone and inward unsaturated seepage zone.
Pure water in concrete pores was drawn towards the surface, which had a lower relative humidity during the drying phase after ebb tide and brought some chloride ions to the concrete surface. Thus, pure water was drawn towards the surface after ebb tide and then evaporated and crystalized chlorides. The evaporation emptied the pores and resulted in further sorption in the next flood tide, which in turn caused an increase in the chloride concentration in concrete.

4. Conclusions

The conclusions in this study are as follows:
Surface chloride concentrations in different zones of the marine environment decreased in the following order: tidal zone > splash zone > submerged zone > atmospheric zone. The surface chloride concentration in the submerged zone did not vary with time. The accumulation rate of surface chlorides in the atmospheric zone was the slowest and linearly increased. The surface chloride concentration in splash and tidal zones increased to the maximum Ca with the increase in the number of wet and dry cycles and subsequently remained stable, and the accumulation rate corresponded to the cyclic water absorption amount.
The permeation characteristics of chloride ions into concrete in different zones of the marine environment decreased according in the following order: tidal zone > splash zone > submerged zone > atmospheric zone. There was neither a moisture gradient nor water flow in concrete in the submerged and atmospheric zones, and Cl transported into concrete under the driving force of the concentration gradient. Concrete in the atmospheric zone was unsaturated, so the concentration profile of the chloride ions was much slower than that in the submerged zone. Cl in the splash and tidal zones penetrated into the interconnecting pores in concrete as bulk liquid by means of non-saturated permeation driven by the humidity gradient in the zone of IDMT under wetting and drying cycles. The variation trend of chloride permeation characteristics along the altitudinal gradient was consistent with that of CWAA. The concentration profile of chloride was the highest in the area where the tidal zone met the splash zone (the peak of the tide zone).
The width of ascent zone of Cl concentration in tidal and splash zones was far less than the influencing depth of the moisture distribution. The range of the conviction zone was dependent on the influencing depth of moisture distribution which included the back-diffusion zone and inward unsaturated penetration zone.

Author Contributions

Conceptualization, Y.J. and H.C.; methodology, Y.J.; data curation, Z.Z.; writing—review and editing, Z.M.; formal analysis, H.C.; investigation, X.H.; writing—original draft preparation, H.C. All authors have read and agreed to the published version of the manuscript.

Funding

This research was funded by State key R & D Program of China (2019YFE0118500,2019YFC1904304) and the National Natural Science Foundation of China (51972337) and the pre-research project of SMCE (LTKY201706), and the Fundamental Research Funds for the Central Universities (2018XKQYMS19).

Data Availability Statement

Not applicable.

Conflicts of Interest

The authors declare no conflict of interest.

References

  1. Guzmán, S.; Gálvez, J.C.; Sancho, J.M. Cover cracking of reinforced concrete due to rebar corrosion induced by chloride penetration. Cem. Concr. Res. 2011, 41, 893–902. [Google Scholar] [CrossRef] [Green Version]
  2. Ferdous, W.; Manalo, A.; Wong, H.S.; Abousnina, R.; AlAjarmeh, O.S.; Zhuge, Y.; Schubel, P. Optimal design for epoxy polymer concrete based on mechanical properties and durability aspects. Constr. Build. Mater. 2020, 232, 117229. [Google Scholar] [CrossRef]
  3. Roy, S.K.; Chye, L.K.; Northwood, D.O. Chloride ingress in concrete as measured by field exposure tests in the atmospheric, tidal and submerged zones of a tropical marine environment. Cem. Concr. Res. 1993, 23, 1289–1306. [Google Scholar] [CrossRef]
  4. Villain, G.; Sbartaï, Z.M.; Dérobert, X.; Garnier, V.; Balayssac, J.P. Durability diagnosis of a concrete structure in a tidal zone by combining NDT methods: Laboratory tests and case study. Constr. Build. Mater. 2012, 37, 893–903. [Google Scholar] [CrossRef]
  5. Prince, O.I.; Tetsuya, I. Modeling of chloride transport coupled with enhanced moisture conductivity in concrete exposed to marine environment. Cem. Concr. Res. 2009, 39, 329–339. [Google Scholar]
  6. Da Costa, A.; Fenaux, M.; Fernández, J.; Sánchez, E.; Moragues, A. Modelling of chloride penetration into non-saturated concrete: Case study application for real marine offshore structures. Constr. Build. Mater. 2013, 43, 217–224. [Google Scholar] [CrossRef] [Green Version]
  7. Shen, X.H.; Liu, Q.F.; Hu, Z.; Jiang, W.Q.; Lin, X.; Hou, D.; Hao, P. Combine ingress of chloride and carbonation in marine-exposed concrete under unsaturated environment: A numerical study. Ocean. Eng. 2019, 189, 106350. [Google Scholar] [CrossRef]
  8. Li, K.F.; Li, C.Q.; Chen, Z.Y. Influential depth of moisture transport in concrete subject to drying-wetting cycles. Cem. Concr. Compos. 2009, 31, 693–698. [Google Scholar] [CrossRef]
  9. Ji, Y.S.; Tan, Z.C.; Yuan, Y.S. Chloride ion ingress in concrete exposed to a cyclic wetting and drying environment. Trans. ASABE 2009, 52, 239–245. [Google Scholar] [CrossRef]
  10. Zhang, L.L.; Ji, Y.S.; Gao, F.R.; Liu, L.L.; Li, J. Experimental research and mechanism analysis on chloride ingress in different zone concrete along altitude in marine environment. Part 1. Moisture distribution. Constr. Build. Mater. 2018, 180, 629–642. [Google Scholar] [CrossRef]
  11. Liu, Q.-F.; Hu, Z.; Lu, X.-Y.; Yang, J.; Azim, I.; Sun, W. Prediction of Chloride Distribution for Offshore Concrete Based on Statistical Analysis. Materials 2020, 13, 174. [Google Scholar] [CrossRef] [PubMed] [Green Version]
  12. Delagrave, A.; Marchaud, J.; Samson, E. Prediction of Diffusion Coefficients in Cement-Based Materials on The Basis of Migration Experiments. Cem. Concr. Res. 1996, 26, 1831–1842. [Google Scholar] [CrossRef]
  13. Saetta, A.V.; Scotta, R.V.; Vitaliani, R.V. Analysis of chloride diffusion into partially saturated concrete. ACI Mater. J. 1993, 90, 441–451. [Google Scholar]
  14. McCarter, W.J.; Chrisp, T.M.; Butler, A.; Basheer, P.A.M. Near-surface sensors for conduction monitoring of cover-zone concrete. Constr. Build. Mater. 2001, 15, 115–124. [Google Scholar] [CrossRef]
  15. Ann, K.Y.; Ahn, J.H.; Ryou, J.S. The importance of chloride content at the concrete surface in assessing the time to corrosion of steel in concrete structures. Constr. Build. Mater. 2009, 23, 239–245. [Google Scholar] [CrossRef]
  16. Lin, G.; Liu, Y.H.; Xiang, Z.H. Numerical modeling for predicting service life of reinforced concrete structures exposed to chloride environments. Cem. Concr. Compos. 2010, 32, 571–579. [Google Scholar] [CrossRef]
  17. ACI Committee 365. ACI 365.1R-00-Service-Life Prediction-State-of-the-Art Report. Available online: http://civilwares.free.fr/ACI/MCP04/3651r_00.pdf.2020 (accessed on 20 April 2021).
  18. Mustafa, M.A.; Yusof, K.M. Atmospheric chloride penetration into concrete in semitropical marine environment. Cem. Concr. Res. 1994, 24, 661–670. [Google Scholar] [CrossRef]
  19. Chen, Y.S.; Chiu, H.J.; Chan, Y.W.; Chang, Y.C.; Yang, C.C. The correlation between air-borne salt and chlorides cumulated on concrete surface in the marine atmosphere zone in North Taiwan. J. Mar. Sci. Technol. 2013, 21, 24–34. [Google Scholar]
  20. Xu, J.; Peng, C.; Wan, L.; Wu, Q.; She, W. Effect of crack self-healing on concrete diffusivity: Meso-scale dynamics simulation study. ASCE J. Mater. Civ. Eng. 2020, 32, 04020149. [Google Scholar] [CrossRef]
Figure 1. Experimental system simulating a marine environment [10] (a) Plane layout, (b) Waterlines and points of taking power on column and (c) Vertical layout.
Figure 1. Experimental system simulating a marine environment [10] (a) Plane layout, (b) Waterlines and points of taking power on column and (c) Vertical layout.
Crystals 11 00722 g001
Figure 2. Regulation of flood and ebb tides in pools.
Figure 2. Regulation of flood and ebb tides in pools.
Crystals 11 00722 g002
Figure 3. Crystals precipitated and washed out at the surface of the concrete (a) At the beginning of the drying phase and (b) In the end of the drying phase.
Figure 3. Crystals precipitated and washed out at the surface of the concrete (a) At the beginning of the drying phase and (b) In the end of the drying phase.
Crystals 11 00722 g003
Figure 4. Cl concentration profiles in the submerged zone (d denotes days and y denotes years).
Figure 4. Cl concentration profiles in the submerged zone (d denotes days and y denotes years).
Crystals 11 00722 g004
Figure 5. Schematic diagram of chloride diffusion into saturated concrete.
Figure 5. Schematic diagram of chloride diffusion into saturated concrete.
Crystals 11 00722 g005
Figure 6. Cl concentration profiles in the atmospheric zone (d denotes days and y denotes years).
Figure 6. Cl concentration profiles in the atmospheric zone (d denotes days and y denotes years).
Crystals 11 00722 g006
Figure 7. Cl concentration distribution of the cross section of concrete at different positions: (a) K2, (b) K3, (c) K4, (d) K5, (e) K6, and (f) K7 in the tidal zone (d denotes days and y denotes years).
Figure 7. Cl concentration distribution of the cross section of concrete at different positions: (a) K2, (b) K3, (c) K4, (d) K5, (e) K6, and (f) K7 in the tidal zone (d denotes days and y denotes years).
Crystals 11 00722 g007aCrystals 11 00722 g007b
Figure 8. Cl concentration profiles in the splash zone (d denotes days and y denotes years).
Figure 8. Cl concentration profiles in the splash zone (d denotes days and y denotes years).
Crystals 11 00722 g008
Figure 9. Correlation of chloride permeation characteristics with the cyclic water absorption amount along elevated altitude (a) Variation of the CWAA with altitude and (b) Cl distribution profiles along elevated altitude.
Figure 9. Correlation of chloride permeation characteristics with the cyclic water absorption amount along elevated altitude (a) Variation of the CWAA with altitude and (b) Cl distribution profiles along elevated altitude.
Crystals 11 00722 g009
Figure 10. Variations of the ascent zone of chloride concentration profiles during the drying phase.
Figure 10. Variations of the ascent zone of chloride concentration profiles during the drying phase.
Crystals 11 00722 g010
Figure 11. Variations of surface chloride contents with time under different exposure conditions.
Figure 11. Variations of surface chloride contents with time under different exposure conditions.
Crystals 11 00722 g011
Figure 12. Variations of surface chloride contents with respect to the height.
Figure 12. Variations of surface chloride contents with respect to the height.
Crystals 11 00722 g012
Figure 13. Sea salt aerosol particles (SSA) in the atmosphere of the marine environment.
Figure 13. Sea salt aerosol particles (SSA) in the atmosphere of the marine environment.
Crystals 11 00722 g013
Figure 14. Accumulation of surface chlorides in the atmospheric zone (a) The early stage, (b) The advanced stage and (c) The final stage.
Figure 14. Accumulation of surface chlorides in the atmospheric zone (a) The early stage, (b) The advanced stage and (c) The final stage.
Crystals 11 00722 g014
Figure 15. Accumulation rate model of surface chlorides in different zones in the marine environment.
Figure 15. Accumulation rate model of surface chlorides in different zones in the marine environment.
Crystals 11 00722 g015
Figure 16. Correlation of cyclic water absorption amount (CWAA) with accumulation time of surface chlorides before reaching the maximum value (a) Cyclic water absorption amount (CWAA) and (b) Accumulation time of maximum surface chlorides.
Figure 16. Correlation of cyclic water absorption amount (CWAA) with accumulation time of surface chlorides before reaching the maximum value (a) Cyclic water absorption amount (CWAA) and (b) Accumulation time of maximum surface chlorides.
Crystals 11 00722 g016
Publisher’s Note: MDPI stays neutral with regard to jurisdictional claims in published maps and institutional affiliations.

Share and Cite

MDPI and ACS Style

Chang, H.; Zhang, Z.; Ma, Z.; Ji, Y.; Huang, X. Permeation Characteristics and Surface Accumulation of Chloride in Different Zones of Concrete along Altitude in Marine Environments. Crystals 2021, 11, 722. https://doi.org/10.3390/cryst11070722

AMA Style

Chang H, Zhang Z, Ma Z, Ji Y, Huang X. Permeation Characteristics and Surface Accumulation of Chloride in Different Zones of Concrete along Altitude in Marine Environments. Crystals. 2021; 11(7):722. https://doi.org/10.3390/cryst11070722

Chicago/Turabian Style

Chang, Hong, Zhicheng Zhang, Zhanguo Ma, Yongsheng Ji, and Xinshuo Huang. 2021. "Permeation Characteristics and Surface Accumulation of Chloride in Different Zones of Concrete along Altitude in Marine Environments" Crystals 11, no. 7: 722. https://doi.org/10.3390/cryst11070722

APA Style

Chang, H., Zhang, Z., Ma, Z., Ji, Y., & Huang, X. (2021). Permeation Characteristics and Surface Accumulation of Chloride in Different Zones of Concrete along Altitude in Marine Environments. Crystals, 11(7), 722. https://doi.org/10.3390/cryst11070722

Note that from the first issue of 2016, this journal uses article numbers instead of page numbers. See further details here.

Article Metrics

Back to TopTop