Abstract
This study aims to use the vernacular climatic strategies (VCS) of traditional dwellings in Bushehr, in the common residential buildings of this southern Iranian city (which is characterized by its hot and humid climate), and provide answers to the following question: What effects do VCS have in terms of energy consumption in these buildings? This study has been conducted at three levels. At the first level, three context-based climatic solutions including shading, natural ventilation, and insulation of external walls and roofs were identified and selected based on bibliographic study. At the second level, a case study reflecting the current typology of common residential buildings in Bushehr city was selected. A combination of the mentioned climatic solutions was used in the baseline case to create a developed model. Based on the space layout of the developed model and some design criteria, a series of proposed models was also created and modeled. The selected case study building was also used to establish a local weather station at a height of 12 m based on the roof, collecting local climate data which were then used for simulation to improve simulation accuracy. Finally, all models were simulated with the use of Design Builder software under natural ventilation conditions during moderate climatic periods of the year while split air-conditioning systems were used during hot and humid periods. The results showed reductions of 16% in energy consumption and 22% in CO2 emissions for the developed model, and reductions of 24–26% in energy consumption and 32–34% in CO2 emissions for the proposed models, as compared with the baseline model. Furthermore, all proposed models achieved lower annual energy consumption when compared with a selection of international sustainable low energy standards and domestic energy performance references for the Middle East region. Further studies are also recommended, and there is potential for combining VCS with other solutions such as on-site renewable energies.
1. Introduction
Energy crisis and climatic change are the biggest challenges facing the world today [1]. The adverse effects of climate change such as increased risk of flood, super storms, and drought may result in global mass migration and conflicts [2]. Hence, a drastic reduction in global CO2 emissions is required, which is achievable by ensuring the use of sustainable, cleaner energy and a reduction in current global energy demand through improved energy efficiency [2]. It is generally acknowledged that the building sector accounts for about one-third of total energy consumption worldwide [3] leading to a significant proportion of greenhouse gas emissions [4]. Due to population growth, increased urbanization, and improvements of living standards, most energy-consuming buildings will be located in urban centers of the developing world. The depletion of energy resources and the risk of climate change require a sustainable development path based on renewable sources of energy and energy efficiency [5]. Iran, as a developing country with gross domestic product per capita of 17,251 Int$ in 2015, has building energy demands of 41% [6]. Heating and cooling are the greatest sources of energy consumption in the building sector in Iran, representing 61% of total energy consumed [7]. Bushehr city, which is located in a hot and humid region of Iran, has some of the most severe weather conditions in the country, and it seems that energy savings in the residential buildings of this city are very difficult due to the severe weather conditions and the thermal preferences of residents towards using air-conditioning systems during all seasons. According to the statistics from the meteorological calendar of Iran (from 1951 to 2000), the average minimum temperature of the coldest month in Bushehr was 10.1 °C and the average maximum temperature of the hottest month was 38.1 °C. The highest temperatures are in July and August, and the lowest temperatures are in January and February. In 2012, this small city had the greatest domestic electricity demands in the country [8]. Therefore, it is necessary to pay more attention to energy efficiency in the building sector using renewable energies and passive design strategies for heating, cooling, and ventilation [9].
Vernacular buildings, either individually or as whole settlements, are the best examples of the harmony between human behavior, buildings, and the natural environment [10]. They contain inherent, unwritten information about how to optimize the energy performance of buildings at a low cost using local materials. Over the course of time, vernacular dwellings have evolved to respond to challenges of climate, building materials, and cultural expectations in a given place [11]. Besides this, it seems that this design is the result of hundreds of years of optimization in order to provide a comfortable shelter in the local climate using available materials and known construction technologies [12]. This architectural style takes into account climatic and energy-conserving features, providing enhanced thermal comfort. In the modern context, vernacular architecture can provide solutions for a number of problems like degradation of environment quality, indiscriminate depletion of resources, greenhouse gas emissions, high energy usage, and deforestation, etc. However, presently this architectural style is on the verge of extinction as it has been abandoned by people in order to follow the so-called modern conventional architectural style [13]. Several studies have proven that better thermal performance can be achieved by passive measures of vernacular architecture [14,15,16,17]. Revisiting traditional buildings with satisfactory climate adaptation is considered necessary for inspiring climate-responsive building designs [18]. Liu et al. [19], and Chandel et al. [20,21,22] suggested that it is important to adopt indigenous design and construction styles or to opt for more flexible modern construction systems which incorporate features of traditional architecture and passive solar techniques [21]. The adaption of these features can lead to better amalgamation of vernacular techniques in modern houses to improve energy efficiency, cost effectiveness, and sustainability [21] as shown by Chandel and Sarkar [23] and Foruzanmehr and Vellinga [24]. Achieving optimal efficiency in building solutions requires deep study; here, traditional climate-responsive buildings seem to provide good patterns to follow. It must be acknowledged that prior to the Industrial Revolution, man was more familiar with the concept of sustainability [25]. Studies and experiences have proven that the vernacular architecture of our ancestors was an appropriate source to study and that solutions should be reused in designing buildings [26]. Vernacular dwellings of Iran have a significant relationship with local climate [27]. Therefore, applying vernacular strategies in hot and humid regions of Iran as a model for designing contemporary houses for such climates can lead to optimal energy consumption and improved levels of comfort [28].
The patterns of vernacular dwellings in hot and humid areas use maximum shading and natural ventilation for high temperature and relative humidity adjustment [29]. The most appropriate strategy for buildings in this climatic condition is to address the ventilation and solar heat gain issues [30]. More than half of the electricity consumed by buildings in this climatic condition is for the operation of air conditioning systems [31]. Air conditioning has been widely utilized in this climatic condition to achieve occupant comfort due to the good control of the air temperature and humidity. To reduce the high electricity level consumed by air conditioning, it is of paramount importance to incorporate appropriate passive cooling strategies in buildings [30]. Buildings in hot and humid climates normally encompass large overhangs to shade façades, as well as plentiful openings to allow air movement to occur. Other effective means to reduce solar heat gain include orientation of the longer façade to face the north and south directions (to avoid direct sunlight), reducing the building´s contact with the ground by applying a raised floor, using low thermal capacity building materials, and implementing open plan concepts to reduce trapped indoor heat [30].
Bushehr city (as shown in Figure 1) is the capital of the Bushehr Province in Iran, which is located on the northern side of the Persian Gulf shore. It is a hot and humid region of Iran [32]. Bushehr is considered the most important port near the Persian Gulf border. Although in recent years many transformations have occurred in this city and its urban public spaces, its vernacular fabric is unique and has been formed based on its climate position [26]. Vernacular residents in this region used some climate-adapted solutions to protect their buildings from the harsh outside climate. They built their houses based on minimum sunlight penetration and the optimal usage of wind currents with several solutions. Climatic solutions in Bushehr vernacular architecture include: orientation of buildings with consideration of wind flow direction for the maximum use of the gentle cool breezes, central organization of spaces for creating proper ventilation, the existence of windows toward the central courtyard and toward alleys for producing transverse ventilation, use of vernacular elements for shading like Shenashir (in Figure 2), use of materials with low heat capacity for adaptability to hot and humid climates, and use of rooftops at nights for the maximum use of the wind draft [26]. The ground floors of these vernacular dwellings were used in the relatively colder seasons, January and February, to prevent cold winds through winter spaces, and along with the winter spaces, there were also other service spaces such as kitchens, storage areas, and bathrooms. The first floors in these dwellings were also used for better enjoyment of coastal breezes and the dominant winds as summer spaces in the moderate and warm seasons, from April to November. The roof spaces were also used in the afternoons and nights in moderate and warm seasons to benefit from the fresh air and cool breezes of the evening. Therefore, the residents of these buildings, at different times of year, changed their location in accordance with the climate conditions for thermal adaptation and to find a better location in the house in terms of comfort, experiencing a wider range of temperatures. They thus had complete control over the openings as they opened them for natural ventilation. In addition, they changed their clothing, activities, and even foods according to the seasons and used season-appropriate clothes, food, and drinks. A typical traditional architectural pattern is presented in the old district of Bushehr city, as shown in Figure 2.
Figure 1.
(a) Areas of District 1; (b) Districts of Bushehr City; (c) Old city structure (Source: Google Maps).
Figure 2.
Nowzari edifice—an example of traditional dwellings in Bushehr city; (a) Interior space; (b) shading device (Shenashir) in Northern elevation; (c) open space (central courtyard) (Source: author).
In contrast to climate-responsive buildings, there are common residential buildings, which are similar in design and components in all different climates of Iran in terms of interior and exterior characteristics and how they communicate with the environment. No attention is paid to climatic and environmental conditions. These buildings look the same in any climate, are not compatible with their environment, and do not adapt to environmental conditions [28]. Figure 3 shows an example of these buildings. Since some of the most important aspects for reaching sustainability and sustainable development in cities are adaptability to climate conditions and reduction of energy consumption, climatic design, which is seen in the vernacular architecture of Bushehr, could be a good method for preventing excessive energy consumption and air pollution [26].
Figure 3.
An example of common residential buildings in Bushehr city; (a) location of the case study (building 1) in zone 1, district 1; (b) first floor plan of the case study; (c,d) Southern and Northern view in Design Builder software (Source: author).
The aim of this study is to use vernacular climatic strategies in existing and proposed residential buildings of Bushehr city and analyze the impact of these solutions on energy consumption and CO2 emissions with the use of Design Builder software.
The paper will present the impact of context-based climatic solutions on improving the energy efficiency of mid-rise apartment buildings which can fill the research gap in the hot–humid climate of Iran. Furthermore, it contributes to the existing state of art in this area, as most studies on domestic buildings use low-rise houses as case studies.
2. Literature Review
Many studies have been carried out on domestic buildings and the passive strategies used in them in hot–humid regions, where the role of passive techniques on improving thermal comfort and energy consumption have been specifically mentioned. Some of these works are presented in this section.
Several studies, which were carried out in different countries such as the United Arab Emirates, Mexico, Malaysia, Sri Lanka, Saudi Arabia, Taiwan, and India, focused on the role of passive strategies in improving thermal comfort and energy consumption in low-rise residential buildings. Radhi [33] discussed issues related to the potential impact of global warming on air-conditioning energy use in the hot climate of the United Arab Emirates. The city of Al-Ain was chosen for this study. Simulation studies and energy analysis were employed to investigate the energy consumption of buildings and the most effective measures to cope with this impact under different climate scenarios. The simulation results showed that energy design measures such as thermal insulation and thermal mass are important in order to cope with global warming. Meanwhile, window areas and glazing systems are beneficial and sensitive to climate change, and shading devices are moderate as CO2 emission-savers for buildings and are insensitive to global warming. Aldossary et al. [34] analyzed and discussed domestic energy consumption patterns in the city of Jeddah, characterized by its hot and humid climate and its geographical location in a global region renowned for its high energy consumption and carbon emission rates. The selected case studies involve three typical houses and three typical flats with the objective of analyzing their average domestic energy consumption based on: (1) monthly electricity bills; (2) user behavior captured through interviews with the selected properties’ occupants; and (3) detailed energy modelling and simulation using integrated environmental solutions-virtual environment (IES-VE) software. Resulting high energy consumption patterns are then discussed, focusing on building design (form and fabric) and user behavior. Based on the identified design weaknesses, regionally replicable energy retrofitting solutions (including shading devices, domestic renewable energy sources, and efficient glazing) are explored and simulated in IES-VE, suggesting energy consumption reduction in a range of 21–37%. Oropeza-Perez and Østergaard [35] showed the potential of natural ventilation as a passive cooling method within the residential sector of countries which are located in warm conditions, using Mexico as a case study. Their results indicated that for hot–dry conditions, buildings with high heat capacity combined with natural ventilation achieve the lowest indoor temperature, whereas under hot–humid conditions, night ventilation combined with low heat capacity buildings presents the best results. Thereafter, an average aggregated saving potential of 4.2 TWh for 2008 is estimated, corresponding to 54.4% of the Mexican electric cooling demand for the same year. Taleb [36] tested the usefulness of applying selected passive cooling strategies to improve thermal performance and to reduce energy consumption of residential buildings in hot, arid climate settings, namely in Dubai, United Arab Emirates. One case building was selected and eight passive cooling strategies were applied. Energy simulation software—namely integrated environmental solutions (IES)—was used to assess the performance of the building. Solar shading performance was also assessed using Sun Cast Analysis, as a part of the IES software. Energy reduction was achieved due to both the harnessing of natural ventilation and the minimization of heat gain in line with applying good shading devices alongside the use of double glazing. Additionally, green roofing proved its potential by acting as effective roof insulation. The study revealed several significant findings, including that the total annual energy consumption of a residential building in Dubai may be reduced by up to 23.6% when a building uses passive cooling strategies. Toe and Kubota [37] investigated vernacular passive cooling techniques and their potential application for improving indoor thermal comfort of naturally ventilated, modern brick terraced houses in Malaysia. Field measurements were conducted in two traditional timber Malay houses and two traditional masonry Chinese shop houses to examine their indoor thermal environments. Potential passive cooling techniques for the existing terraced houses including night ventilation, roof or ceiling insulation, window and wall shading, the small courtyard concept, and microclimate modification and/or urban heat island mitigation were discussed. Rajapaksha et al. [38] investigated the potential of a courtyard for passive cooling in a single-story high mass building in the warm, humid climate of Sri Lanka. The implications of this study on architectural design give useful guidelines for designing naturally ventilated high mass residential buildings with internal courtyards in warm, humid climates. They concluded that the potential of courtyards to act as means for passive cooling can be correlated with building composition in terms of airflow rates and patterns. Sadeghifam et al. [39] examined energy saving in building elements such as walls, floors, windows, roofs, and ceilings and how the integration of such optimized elements in conjunction with effective air quality factor could contribute towards an ultimate energy efficient design. A typical two-story terraced house in Kuala Lumpur, Malaysia was chosen to model energy usage by means of dynamic building simulation. A case study was modeled using Revit Architecture software and analyzed using energy analysis software. Their results indicated that in residential buildings in tropical regions, changing ceilings and ceiling materials are the most effective way to reduce energy consumption; moreover, wall materials and inside temperatures represented the next levels of significant factors, respectively. Aldossary et al. [40] focused on the domestic sector to: (1) establish levels of energy reduction, informed by leading standards (such as Passivhaus in Germany), that can be achieved taking into account the complex local socio-cultural context and environmental factors; and (2) propose a low energy reference definition with a view to encouraging energy retrofitting programs and enforcing domestic low carbon interventions. An energy simulation environment was employed to simulate and analyze the energy consumption patterns of three proposed low-carbon prototype houses that reflect current house typology and space layout in Saudi Arabia. The three proposed homes offer a reduction in energy consumption of up to 71.6%, compared with similar houses. Based on these findings, they proposed a domestic energy performance reference with energy consumption ranging between 77 kWh/m2 and 98 kWh/m2. Hong et al. [41] used the morphing method to produce future hourly weather years for use in building simulations based on the predicted values provided by a general circulation model (GCM). The adaptive comfort model was used to identify the air conditioning operation status during the hours of occupation of a mixed-mode typical residential building to determine cooling energy use. Annual cooling energy use in the past and in three future time periods—the 2020s, the 2050s, and the 2080s—were dynamically simulated with Energy Plus. The simulations revealed increases in cooling energy of 31%, 59%, and 82% in the three time periods, respectively. Five passive design strategies for building remodeling were proposed, and their potential for mitigating the increases in cooling energy usage was discussed. They found that although no individual strategy can maintain the cooling energy usage at current levels, the combination of improving the thermal insulation of exterior walls and roofs, enhancing the solar heat gain coefficient (SHGC) of the glazing, and adding overhang shading can achieve that goal. The combination of these passive design strategies as an adaptation measure to counter climate change could neutralize the increases in cooling energy usage due to the effects of global warming in the context of the hot and humid weather of Taiwan. Chandel et al. [21] reviewed and identified energy-efficient vernacular architecture features affecting indoor thermal comfort conditions for adaptation in modern architecture to suit present-day lifestyles. The main features identified are: built mass design, orientation with respect to sun, space planning, openings, sunspace provision, construction techniques, and building and roof materials. In addition, the current status of use of earth as a building material and adaptations of vernacular architecture for improving energy efficiency in modern context were presented along with a case study of the vernacular architecture of a location in Himachal Pradesh, India. Hazbei et al. [42] investigated underground shelters in the hot and semi-humid city of Dezful in southwest Iran. This type of underground shelter, known as Shavadoon, is considered a passive energy strategy to seek temperature comfort using the annual temperature stability of the earth and natural ventilation. This study was conducted in a traditional house that was used to test the accuracy of a numerical simulation of the temperature and air flow within the Shavadoon spaces. Temperature contours, streamlines, and other related findings are reported. Their results showed that space conditioning costs could be cut and adequate comfort could be derived using such passive heating and cooling systems.
The works of Hirano et al. [43], Haggag and Elmasry [44], and Pellegrino et al. [45] are focused on mid-rise residential buildings. Hirano et al. [43] explored the effects that porous residential buildings have on natural ventilation performance and, consequently, the cooling load reduction in hot and humid regions of Japan. Two residential building models, namely a model with a void ratio of 0%, and a ‘‘porous’’ model with a void ratio of 50%, are evaluated using computational fluid dynamics (CFD) analysis and a thermal and airflow network analysis. They concluded that the porous residential building model (a model with a void ratio of 50%) is effective in enhancing the natural ventilation performance and, consequently, in reducing the cooling load in hot and humid regions. Haggag and Elmasry [44] investigated passive strategies for reducing energy consumption in contemporary building design and construction in the United Arab Emirates (UAE). Four techniques were examined in the study: natural ventilation, thermal mass, shading strategy, and green walls, and they were illustrated in three case studies: Masdar City, Madinat Jumeirah, and Liwa International School in the cities of Abu Dhabi, Dubai, and Al Ain, respectively. The design and performance of these projects are analyzed and evaluated, with emphasis on passive and sustainable strategies. Pellegrino et al. [45] compared low-cost strategies to improve the quality of existing building stocks, with special regard to a widespread Indian residential typology. A dynamic energy model of this particular local building typology was simulated with Energy Plus software and validated by comparing it with some original in situ measures, recorded in hourly steps. The validated model was used to simulate a selection of low-cost and technically simple interventions, whose effects on the energy performance and indoor comfort were compared to the baseline case study. Their results showed that combined solutions can be really effective in reducing strong discomfort and energy demand for air conditioning, with savings ranging from 35% to 76%.
In addition, the works of Cheung et al. [46], Prajongsan and Sharples [47], and Mirrahimi et al. [48] focused on high-rise residential buildings. Cheung et al. [46] examined six strategies, including insulation and thermal mass, color of external walls, glazing systems, window areas, shading, and combining passive thermal design strategies for lowering the energy consumption of high-rise apartment buildings in Hong Kong. Their results showed that the energy savings for high-rise apartments in a hot and humid climate can be as great as in other climates. The simulation results for the six passive design strategies indicated that for a predominantly night-occupied apartment, the strategies for improving the thermal performance of an external wall are more effective than those for windows. Their results also showed that a saving of 31.4% in annual required cooling energy and 36.8% in peak cooling load for the BASECASE apartment can be achieved. Prajongsan and Sharples [47] described a computational fluid dynamics analysis of the potential use of ventilation shafts in tall residential buildings in Bangkok to enhance natural ventilation and to improve thermal comfort (and thereby reduce air conditioning energy consumption). The study focused on a room with single-sided ventilation (i.e. openings in just one external wall). A ventilation shaft located at the rear of a room can raise the average air velocity across the room by greatly increasing the pressure difference between the room’s window and the shaft’s exhaust at the roof level. A hypothetical room in a 25-story residential building in Bangkok was devised to represent a typical residential unit in Bangkok. Air velocities in the predefined occupied areas of the room without and with a ventilation shaft (called reference and test room respectively) were assessed using the CFD package in the Design Builder modelling software, and the comfort hours during summer in both rooms were calculated based on the room’s operative temperature after they had been moderated by the elevated air velocities. Their results indicated that average air velocities in the reference room were very low and insufficient to produce any cooling effect, regardless of external wind conditions, whereas air velocities in the test room were greatly enhanced compared to the reference room. The percentage of comfort hours during the summer rose from 38% in the reference room to 56% in the test room, suggesting that approximately 2700 kWh of air conditioning energy savings could be achieved in the room by employing the proposed ventilation shaft. Mirrahimi et al. [48] investigated the effect of building envelopes on energy consumption and thermal performance of high-rise buildings in the tropical Malaysian climate. Their results showed that a strong relationship exists between various building components such as shading devices, external walls, external roofs, external glazing and insulation, and the reduction of energy consumption, as well as cooling in buildings. Furthermore, energy usage is also affected significantly by shape, including building length, width, and height.
Haase and Amato [49] investigated the impact of building location and climate and orientation on thermal comfort in buildings. With the help of dynamic computer simulations, the different hourly weather data were analyzed. A detailed analysis was conducted to evaluate the potential for improving thermal comfort. Detailed results were given in sample graphics and tables in the study. They mentioned that, in a tropical climate, the improvement in comfort by natural ventilation (NV) ranged between 9% and 41% (Kuala Lumpur in April). For a subtropical climate the improvements vary between 3% and 14%. In a temperate climate, the improvements vary between 8% and 56%. Their results showed that NV has good potential in tropical and temperate climates but not in subtropical climates. In particular, in Hong Kong it seems to be very difficult to apply NV. Their results also showed that in the hottest period (summer) in particular, the potential for comfort improvement is rather small and the design of climate-responsive building envelopes should take this into consideration. Chen et al. [50] conducted a comprehensive literature review on simulation-based approaches to optimize passively designed buildings. Based on existing research methods, modelling experiments on a generic building are conducted to integrate robust variance-based sensitivity analyses with an early-stage design optimization process. Proposed mixed-mode ventilation and lighting dimming control algorithms are applied to the Energy Plus model to simulate the total lighting and cooling energy demands by incorporating the related design criteria in a local green building assessment scheme. The non-dominated sorting genetic algorithm (NSGA-II) is then coupled with the modelling experiment to obtain the Pareto frontier as well as the final optimum solution. Different settings of NSGA-II are also investigated to improve the computational efficiency without jeopardizing the optimization productivity. Furthermore, the sensitivity of optimum design solutions to external environmental parameters in hot and humid areas are explored. Findings from this study will guide decision-makers through a holistic optimization process to fulfill energy-saving targets in a passively designed green building. Ghaffarianhoseini et al. [51] evaluated the ability of unshaded courtyards for providing thermally comfortable outdoor spaces according to different design configurations and scenarios, including the orientations, height, and albedo of wall enclosures, and use of vegetation. The software ENVI-met was used as a tool for simulating the thermal performance of courtyards in the hot and humid climate of Kuala Lumpur, Malaysia. The predicted mean vote (PMV) index and the number of hours per day that a courtyard could be enjoyed once the proposed design suggestions were implemented were assessed. Likewise, the physiologically equivalent temperature (PET) index allowed for further exploration of the thermal comfort conditions of courtyards. As a result, guidelines were proposed in order to optimize the design of courtyards towards enhancing their thermal performance characteristics. In particular, the study showed that, according to design parameters such as the building height ratio and an abundance in the amount of vegetation in the courtyard, an acceptable level of thermal comfort for the tropics can be achieved and may be enjoyed by its users for long periods during the daytime, including at noon. The study of Beccali et al. [52] reviewed some models evaluating thermo hygrometric comfort in naturally ventilated buildings, based on adaptive approaches. In this study there was a focus on Mozambican building traditions, and a case study was proposed where, through the recovery of old Mozambican traditions, a new, energy-autonomous healthcare facility was designed with a great use of natural ventilation.
A comprehensive literature review illustrates that most of the existing literature emphasizes the potential of passive techniques for improving thermal comfort and energy efficiency in contemporary residential buildings in different countries. However, none of these research works have investigated the potential of vernacular climatic strategies for improving energy efficiency of mid-rise apartment buildings in the hot–humid climate of Iran. Therefore, this study goes further to fill this gap through developing a baseline case based on understanding the impact of context-based climatic solutions like shading, natural ventilation, and insulation of external walls and roofs on the energy efficiency of residential buildings in the hot–humid climate of Iran.
3. Research Methodology
Three types of research methodologies were employed as follows:
3.1. Library Study
A library study was carried out on the potential of passive cooling techniques to improve the energy efficiency of domestic buildings in the hot–humid climate of different countries. Based on the library studies, three types of vernacular climatic strategies, including shading, natural ventilation, and insulation of external walls and roofs, were identified and selected for improving energy efficiency in residential buildings of the hot–humid climate of Iran.
3.2. Field Survey
3.2.1. Selection of the Case Study
A field survey was conducted in different districts of Bushehr city in order to identify the residential buildings that reflect current house typology and space layout. According to this and statistics from Bushehr municipality, the most diffused typology of Bushehr are 3–4 story apartment buildings (mid-rise) with total areas of 600 to 700 m2. That is why this study focuses on this particular typology. As shown in Figure 3, a detached 3-story building, built in 2014, was identified as a case study. It is located in BagheZahra area (zone 1), District 1 (28°57′17″ N; 50°50′57″ E). The building envelope of the modeled baseline case (Building 1) is described in Table 1. As reported, no wall or roof insulation is present in the existing building. Furthermore, no shading system is installed, and original windows are single-glass, with aluminum frames and no thermal break. During this study, only the first floor of the baseline case (including two flats) was occupied, and each flat was occupied by a family of two adults. Thus, actual energy consumption of the first floor was used for the validation of the baseline model.
Table 1.
Physical properties of the baseline model (Building 1) and the developed model (Building 1a).
3.2.2. Presentation of the Developed Model
Based on the space layout of the baseline case (building 1), a developed model (as shown in Figure 4) was created and a combination of the vernacular climatic strategies (VCS) were employed as follows: shading with overhangs and side fins for the south and north elevation, natural ventilation enhancement with changing windows dimensions, and space layout and thermal insulation of external walls and the roof. The building envelope of the developed model (building 1a) is also described in Table 1.
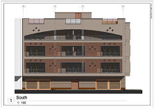
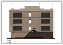
Figure 4.
The developed model (building 1a); (a) first floor plan; (b,c) Southern and Northern view in Design Builder software (Source: author).
3.2.3. Presentation of the Proposed Models
Based on the space layout of the developed model and design criteria presented in Table 2, nine proposed models (including building b1, …, building j1 in Figure 5a) were also designed and modeled in nine different positions for the BagheZahra area, District 1. Table 3 shows an example of the proposed models in position 7. Area description of the models has been presented in Table 4.
Table 2.
Design criteria of the proposed models.
Figure 5.
(a) Different positions for the proposed models; (b) Part of the current status (Source: author).
Table 3.
An example of the proposed models in position 7 (Source: author).
Table 4.
Area description of the models.
Thermal Insulation
The reference heat transfer coefficient in the proposed models is 794.45 w/k which is greater than the heat transfer coefficient of the building design, which is 534.06 w/k. Therefore, the construction materials and insulations of the external walls and roof are in accordance with Chapter 19 of the National Building Code in terms of thermal insulation.
Natural Ventilation Enhancement
The suitable dimensions for windows are determined according to necessary airflow velocity and operative temperature for thermal comfort in naturally ventilated spaces. Based on the simulations, the best time for using natural ventilation in Bushehr is from March to April and from November to December. Accordingly, 30 March 2016 was selected as a date, and the natural ventilation was examined on this day using three CFD models. According to Table 5, at 50% relative humidity, for a person with the clothing level of 0.5 clo and a metabolic rate of 1 Met, taking into account the range of operative temperature and airflow velocity in the three models, the best results were observed in the second and third models, which means that the dimensions of the windows and space layout were suitable for natural ventilation enhancement in the developed and proposed models.
Table 5.
Internal computational fluid dynamics (CFD) on 30 March at 6 p.m.
Shading Devices
In this study, shading devices were designed based on the shading mask method [53]. Figure 6 shows overheated period on sun-path diagram and yearly shading chart of Bushehr. Since the dimensions of the southern windows were 2 × 3 m, the suitable depth for overhangs was 1 m. The dimensions of the northern windows were 1 × 2 m and therefore, suitable dimensions for side fins were 0.5 × 1 m. For the eastern and western elevations, given the penetration of solar radiation, suitable porous shells were designed.
Figure 6.
(a) Sun-path diagram of Bushehr; (b) yearly shading chart of Bushehr (Source: author).
3.2.4. Weather Data File Creation
The accuracy of the energy simulation is generally as good as the quality of input data available used for the thermal model [54,55]. Therefore, simulation accuracy depends on various dynamic input parameters such as occupancy characteristics and weather data, both of which are difficult to replicate in modeling to match the real building, especially at the design stage. The choice of weather data used for the simulation has a considerable impact on the results [56]. Generally, the weather data employed in building simulation models contain hourly records of the core weather variables (like temperature, relative humidity, wind speed, and solar radiation) at a location in close proximity to the model building [57]. That is why the selected case study (Building 1) was also used for establishing a local weather station at a height of 12 m. This station was based on the roof and collected local climate data which were then used for simulation to improve simulation accuracy. Short-term local climatic data were collected by automatic data loggers (Figure 7) over the course of a year with the specifications listed in Table 6.
Figure 7.
Measuring equipment; (a) wind data logger; (b) temperature and humidity data logger; (c) local weather station on the roof top of building 1.
Table 6.
Specifications of measuring equipment.
In this study, given the economic budget and the accuracy of the results, climatic parameters including outside dry-bulb temperature, relative humidity, and wind speed were recorded at one-hour intervals for three consecutive days per month. The selected days (in Table 7) were similar in terms of weather conditions and the days before the measurement were also similar to the measurement days. Since the weather data file of Bushehr was not available, Meteonorm software (V.7) was used for this purpose and a new *.epw file was created. Then, the recorded values were entered into this weather data file. This specific meteorological file, covering the three consecutive days per month of in situ measurements, was used for simulation of the models. Regarding solar radiation, the existing values from the primary weather data file, tolerating an error of up to 4%, were used.
Table 7.
Measurement dates.
3.3. Simulation
Design Builder software (V.5) was chosen for the purpose of this study based on its established energy performance assessment capability compared with similar energy simulation tools. A comparison between anticipated energy use and actual energy consumption (in Figure 8) as shown on the gathered official bills was done to validate the baseline model (Building 1). The actual energy consumption values on the first floor of Building 1 per year calculated using electricity and gas bills and through simulations were 34,327 kWh and 32,367.15 kWh, respectively, which shows a difference of −6.05% between the actual energy consumption and the simulated consumption. This is within the allowable percentage error.
Figure 8.
Actual and simulated energy consumption on first floor of Building 1 (Baseline case).
In the simulation of the models, the heating, cooling, and natural ventilation set points were 18 °C, 25 °C, and 24 °C, respectively, and the models were used constantly over a week. It is assumed that during very hot periods of the year, when air-conditioning systems are active, thermal comfort is fully provided and discomfort hours come close to zero. However, during moderate times of the year, when natural ventilation is preferable, there was the possibility that thermal comfort was not fully provided by natural ventilation, and discomfort hours increased. In this manner, and taking into consideration other features of the models in simulation like the construction materials, orientation, openings, and number of occupants and type of activity and clothing, energy consumption, CO2 emissions, and other features of the models were simulated and compared. The simulation was first done over a year (annual) and, then, short-term intervals of three consecutive days per month, covering a total of 36 days per year or 10% of a year, were extracted from the annual simulation. Figure 9 shows an example of this process for the baseline model (Building 1).
Figure 9.
Total energy consumption in the baseline model (Building 1).
In this study, since the local climate data for three consecutive days per month were used in the weather data file, the simulation results within 36 days/10% of a year will be accurate and reliable. Thus, instead of annual results, the simulation results within 36 days will be discussed for the models. Figure 10 shows the research process diagram.
Figure 10.
Research process.
4. Results and Discussion
A combination of vernacular climatic strategies including shading, natural ventilation, and insulation of external walls and roof were employed in the developed and proposed models. All models were simulated under natural ventilation conditions in moderate periods of the year (from March to April and from October to November) and air-conditioning systems (split air conditioner) were used during hot and humid periods (from May to September). The results of the simulation provide heat loss and gain (originating from solar gain, general lighting, occupancy, fabric, and ventilation), total system loads (including sensible cooling, total cooling and heating), discomfort hours, energy consumption, and CO2 emission for each model.
4.1. Heat Loss and Gain
4.1.1. Internal Gains
According to Figure 11, in the comparison of Building 1 with Building 1a, given the equal amount of heat generated by general lighting and the insignificant difference in heat generated by occupancy in the two buildings, the total amount of heat generated by the solar gain, occupancy, and general lighting over the selected days (36 days) was reduced from 6777.8 Wh/m2 in Building 1 to 4479.06 Wh/m2 in Building 1a. In addition, in the proposed models, given better day lighting, the equal amount of heat generated by general lighting, and the insignificant difference of heat generated by occupancy, the total amount of heat generated by solar gain, occupancy, and general lighting over the selected days varied from 4312.08 Wh/m2 to 5518.08 Wh/m2, showing a reduction of 1259.72 Wh/m2 to 2465.72 Wh/m2 in comparison with Building 1. This showed a reduction of 20% in total internal gain in Building 1a and from 10 to 22% in the proposed models in comparison with Building 1.
Figure 11.
Internal heat gain in interior spaces over the selected days.
As shown in Figure 12, the total sensible cooling over the selected days was −10196.18 Wh/m2 in Building 1 and −3563.87 Wh/m2 in Building 1a, showing a reduction of 6632.31 Wh/m2 in Building 1a. Sensible heating was excluded due to its insignificant values. In the proposed models, the total sensible cooling varied from −4374.16 Wh/m2 to −4935.01 Wh/m2, showing a reduction from 5261.17 Wh/m2 to 5822.02 Wh/m2 in comparison with Building 1. Sensible heating values were excluded due to insignificance. This showed a reduction of 48% for zone sensible cooling in Building 1a and a reduction of 34–40% in the proposed models, as compared with Building 1.
Figure 12.
Total sensible cooling over the selected days.
4.1.2. Fabric and Ventilation
The total heat exchange from the external walls and roof of Building 1 over the selected days without thermal insulation was 4396.45 Wh/m2 and 1546.04 Wh/m2, respectively, which was reduced to 601.42 Wh/m2 and 310.8 Wh/m2 in Building 1a after applying 7 cm and 10 cm of thermal insulation in the external walls and roof. This revealed a reduction of 76% and 66% in the walls and the roof, respectively, in Building 1a. Besides this, in the proposed models, the total heat exchange from external walls and roofs varied from 210.52 Wh/m2 to 273.25 Wh/m2 and 387.63 Wh/m2 to 418.84 Wh/m2, which showed reductions of 4123.2 Wh/m2 to 4185.93 Wh/m2 and 1127.2 Wh/m2 to 1158.41 Wh/m2, respectively, in comparison with Building 1. This showed a reduction of 88–90% for walls and 58–60% for roofs in comparison with Building 1 (Figure 13). The total heat exchange values from ceilings, floors, partitions, and glazing were excluded as they were insignificant.
Figure 13.
Total heat exchange by fabric and ventilation over the selected days.
Besides this, dissipation of warm air by natural ventilation from Building 1 over the selected days was −1227.84 Wh/m2, which was increased to −1495.7 Wh/m2 in Building 1a after the improvement in space layout and window dimensions. This showed an increase of 10% in Building 1a. In the proposed models, the dissipation of warm air by natural ventilation varied from −878.43 Wh/m2 to −1445.23 Wh/m2, showing a total increase of 8%.
Figure 14 shows total system loads including sensible cooling, total cooling, and zone heating over the selected days. According to this Figure, the total cooling load was −10,500.2 Wh/m2 in Building 1 and −3784.7 Wh/m2 in Building 1a, showing a reduction of −6715.5 Wh/m2 in Building 1a, which represents a 48% reduction in this building. In addition, in the proposed models, the total cooling loads varied from −4553.24 Wh/m2 to −5143.17 Wh/m2, showing a reduction of 5357.03 Wh/m2 to 5946.96 Wh/m2 in comparison to Building 1. This showed a reduction of 34–40% in the proposed models. Zone heating was excluded due to its insignificant values.
Figure 14.
Total system loads over the selected days.
4.2. Discomfort Hours, Energy Consumption and CO2 Emissions
Now, given the total system loads in each model, it could be expected that the thermal comfort would improve in Building 1a and the proposed models and cooling energy consumption would decrease. Figure 15 shows that the total number of discomfort hours over the selected days in Building 1 was 392.3, which was reduced to 124.09 h in Building 1a. This means a reduction of 52% in Building 1a. In addition, total discomfort hours in the proposed models varied from 301.16 to 388.89 h, showing a reduction of 3.41 to 91.14 h in comparison with Building 1. This means a reduction from 0% to 14% in the proposed models.
Figure 15.
Discomfort hours over the selected days.
Figure 16 shows total energy consumption over the selected days in each model. Heating energy consumption was excluded due to its insignificant values. Accordingly, given the equality of energy consumption for general lighting and domestic hot water in Buildings 1 and 1a, the total energy consumption was 12,737.59 Wh/m2 in Building 1 and 9044.71 Wh/m2 in Building 1a, showing a reduction of 3692.88 Wh/m2 in Building 1a. In addition, given the equality of energy consumption for general lighting and domestic hot water in the proposed models, the total energy consumption varied from 7543.8 Wh/m2 to 7873.36 Wh/m2 in the proposed models, showing a reduction of 4864.23 Wh/m2 to 5193.79 Wh/m2 in comparison with Building 1. As a result of the reduction in total energy consumption in the developed and proposed models, the CO2 emissions were reduced by 2260.84 kg in Building 1a and by 2948.53 kg to 3147.49 kg in the proposed models in comparison with Building 1 (Figure 17). The results showed a 16% reduction in total energy consumption and a 22% reduction in CO2 emissions of the developed model. In addition, a reduction of 24–26% was also observed in total energy consumption and 32–34% in CO2 emissions of the proposed models.
Figure 16.
Total energy consumption over the selected days; (a) proposed models; (b) baseline and developed models.
Figure 17.
CO2 emissions over the selected days; (a) proposed models; (b) baseline and developed models.
As shown in Table 8, both the developed and proposed models show better thermal performance and lower energy consumption in comparison with the baseline model. While internal gains (particularly solar gains from exterior windows) and heat gains (from walls and roofs) have a significant impact on total energy consumption over the selected days, natural ventilation has a significant impact on reducing discomfort hours in moderate periods of the year. The developed model shows a better performance in terms of thermal comfort hours in comparison with the proposed models, while the proposed models show better results for total energy consumption and CO2 emissions.
Table 8.
Summary of the simulation results in the models.
As a result, the proposed models were more energy efficient and effective in terms of environmental protection in comparison with the developed model, since the reductions in energy consumption and CO2 emissions were 8–10% and 10–12% greater than in the developed model, respectively. The maximum reductions in energy consumption and CO2 emissions were observed in buildings c1, d1, and b1, located in positions 2, 3, and 1 (in Table 9), respectively, while minimum reductions were observed in buildings h1, e1, and j1, located in positions 7, 4, and 9, respectively. Furthermore, the reduction in energy consumption of the proposed models was greater than 50 kWh/m2 per year in comparison with the baseline model. For an apartment flat assumed to measure 100 m2 in Bushehr city, a reduction in energy consumption of over 5000 kWh will be achieved.
Table 9.
Proposed models in different positions.
The results of this study on the potential of vernacular climatic strategies for improving thermal comfort in residential buildings of hot and humid climates of Iran were similar to those of Toe and Kubota [37] for improving thermal comfort in residential buildings of Malaysia by using vernacular passive cooling techniques. The results of Prajongsan and Sharples [47] to enhance natural ventilation and to improve thermal comfort in residential buildings of Bangkok, and the results of Haase and Amato [49] for improving comfort by natural ventilation in residential buildings in Malaysia, matched approximately with the results of this study.
The reduction in sensible cooling loads as a result of employing vernacular climatic strategies in the developed and proposed models in this study was greater than that found in the works of Taleb [36] in the United Arab Emirates, who used eight solutions, including shading, natural ventilation and insulation, and Hirano et al. [43] in Japan, who used natural ventilation for reducing sensible cooling loads in porous apartment buildings.
Besides this, the results of this study in reducing energy consumption with a combination of climatic solutions such as shading, natural ventilation, and insulation of external walls and roofs were similar to the works of Hong et al. [18] in Taiwan, and were better than the results of Taleb [36] in the United Arab Emirates, who used similar solutions.
Many developed countries have established a standard of energy use based on their needs and local climate conditions [40]. At present, seven European Member States have adopted a working definition of a low energy house. These definitions are most often applied to new houses, but also cover existing houses and can usually apply to both residential and non-residential buildings [40]. Furthermore, Aldossary et al. [40] proposed three low energy prototype houses (low-rise) that reflect current house typology and space layout in Saudi Arabia. Based on their findings, a domestic energy performance reference was proposed with energy consumption ranging from 77 kWh/m2 to 98 kWh/m2 for Saudi Arabia and the wider Middle East region.
This study benchmarks the findings and the energy patterns for housing design according to international low energy consumption standards [58] and a domestic energy performance reference which was proposed by Aldossary et al. [40] for Saudi Arabia and the wider Middle East region. Figure 18 compares annual energy consumption in kWh/m2 for the developed and proposed models with a selection of international sustainable low energy standard references, and those of Saudi Arabia and the wider Middle East region. All proposed models achieve lower energy consumption when compared with the Passivhaus standard in Germany and the low energy house in the Czech Republic. Besides this, the annual energy consumption of the developed and proposed models ranges between 77.9 kWh/m2 and 92.3 kWh/m2, which is within the energy performance reference for the Middle East region.
Figure 18.
Benchmarking energy consumption with some international standards and Middle East region references.
5. Conclusions
The work on improving the energy efficiency in an existing residential building in Bushehr city via dynamic simulation models highlighted the research gap with respect to the hot–humid climate of Iran and domestic buildings. Also, since considerable studies have focused on the impact of passive techniques on improving energy efficiency in low-rise houses, this article presents the impact of context-based climatic solutions on improving energy efficiency in an existing domestic structure using a mid-rise apartment building as a case study. The results of this study show that the use of vernacular climatic strategies or VCS, including a combination of shading, natural ventilation, and insulation of external walls and roofs in mid-rise apartment buildings in the hot–humid climate of Iran, can considerably improve energy consumption and reduce CO2 emissions in these buildings. For this study, reductions of 16% for the developed model and 24–26% for the proposed models were obtained for energy consumption, and reductions of 22% for the developed model and 32–34% for the proposed models were obtained for the CO2 emissions. Furthermore, all models achieved lower annual energy consumption when compared with a selection of international sustainable low energy standards and domestic energy performance references for the Middle East. Another unique and significant contribution of this study lies in the strong potential to replicate these strategies across the city of Bushehr and beyond. However, the study is limited in its use of three climatic solutions to improve energy efficiency in mid-rise apartment buildings. Thus, further studies should be done with respect to potential combinations of VCS with other solutions such as on-site renewable energy.
Supplementary Materials
The supplementary materials, including local climate data, weather data file, simulation models, and figures are published online alongside the manuscript.
Acknowledgments
This article is part of an unpublished Ph.D. thesis entitled “The Effect of Passive Techniques on Reducing Energy Consumption in Hot and Humid Regions: The Case Study of Vernacular Cooling Methods in Common Residential Buildings of Bushehr City” which was completed at Art University of Isfahan in 2017. The research was financially supported by Art University of Isfahan. We would like to thank the Municipality and the Cultural Heritage Organization of Bushehr for their cooperation in providing the required statistics and drawings.
Author Contributions
Amin Mohammadi, Mahmoud Reza Saghafi, and Mansoureh Tahbaz conceived and designed the project; Amin Mohammadi performed the measurements; Amin Mohammadi and Farshad Nasrollahi performed simulations and analyzed the data; Amin Mohammadi wrote the paper; Mahmoud Reza Saghafi and Mansoureh Tahbaz reviewed the paper.
Conflicts of Interest
The authors declare no conflict of interest.
References
- Pérez-Lombard, L.; Ortiz, J.; Pout, C. A review on buildings energy consumption information. Energy Build. 2008, 40, 394–398. [Google Scholar] [CrossRef]
- King, D.; Browne, J.; Layard, R.; O’Donnell, G.; Rees, M.; Stern, N.; Turner, A. A Global Apollo Programme to Combat Climate Change. Centre for Economic Performance, London School of Economics and Political Science. Available online: http://cep.lse.ac.uk/pubs/download/special/Global_Apollo_Programme_Report.pdf (accessed on 9 October 2015).
- Rubio-Bellido, C.; Pulido-Arcas, J.A.; Cabeza-Lainez, J.M. Adaptation Strategies and Resilience to Climate Change of Historic Dwellings. Sustainability 2015, 7, 3695–3713. [Google Scholar] [CrossRef]
- Nguyen, A.T.; Tran, Q.B.; Tran, D.Q.; Reiter, S. An investigation on climate responsive design strategies of vernacular housing in Vietnam. Build. Environ. 2010, 46, 2088–2106. [Google Scholar] [CrossRef]
- Hennicke, P.; Bodach, S. Energierevolution Effizienzsteigerung und Erneuerbare Energien als Globale Herausforderung; Oekom-Verl: München, Germany, 2010. [Google Scholar]
- The World Bank IBRD. IDA. CO2 Emissions (Metric Tons Per Capita). Available online: http://data.worldbank.org/indicator/EN.ATM.CO2E.PC (accessed on 16 May 2015).
- Brebbia, C.A.; Beriatos, E. Sustainable Development and Planning V. Available online: https://www.witpress.com/books/978-1-84564-544-1 (accessed on 1 October 2017).
- Brahmand Zadeh, D.; Rezaei Ghahroodi, Z. Investigating the trend of changes in power consumption in different sectors during the period from 2001 to 2012. Srtc-amar 2014, 2, 29–33. [Google Scholar]
- Soflaei, F.; Shokouhian, M.; Abraveshdar, H.; Alipour, A. The impact of courtyard design variants on shading performance in hot- arid climates of Iran. Energy Build. 2017, 143, 71–83. [Google Scholar] [CrossRef]
- Engin, N.; Vural, N.; Vural, S.; Sumerkan, M.R. Climatic effect in the formation of vernacular houses in the Eastern Black Sea region. Build. Environ. 2007, 42, 960–969. [Google Scholar] [CrossRef]
- Zhai, Z.J.; Previtali, J.M. Ancient vernacular architecture: Characteristics categorization and energy performance evaluation. Energy Build. 2010, 42, 357–365. [Google Scholar] [CrossRef]
- Bodach, S.; Lang, W.; Hamhaber, J. Climate responsive building design strategies of vernacular architecture in Nepal. Energy Build. 2014, 81, 227–242. [Google Scholar] [CrossRef]
- Kairamo, Maija. Vernacular architecture and its adaptation to the needs of modern life: The situation in Finland. 1975. Available online: http://www.international.icomos.org/monumentum/vol15-16/vol15-16_9.pdf (accessed on 12 April 2015).
- Borong, L.; Gang, T.; Peng, W.; Ling, S.; Yingxin, Z.; Guangkui, Z. Study on the thermal performance of the Chinese traditional vernacular dwellings in Summer. Energy Build. 2004, 36, 73–79. [Google Scholar] [CrossRef]
- Dili, A.S.; Naseer, M.A.; Varghese, T.Z. Passive environment control system of Kerala vernacular residential architecture for a comfortable indoor environment: A qualitative and quantitative analyses. Energy Build. 2010, 42, 917–927. [Google Scholar] [CrossRef]
- Dili, A.S.; Naseer, M.A.; Varghese, T.Z. Passive control methods for a comfortable indoor environment: Comparative investigation of traditional and modern architecture of Kerala in summer. Energy Build. 2011, 43, 653–664. [Google Scholar] [CrossRef]
- Priya, R.S.; Sundarraja, M.C.; Radhakrishnan, S.; Vijayalakshmi, L. Solar passive techniques in the vernacular buildings of coastal regions in Nagapattinam, TamilNadu-India—A qualitative and quantitative analysis. Energy Build. 2012, 49, 50–61. [Google Scholar] [CrossRef]
- Xu, H.; Huang, Q.; Liu, G.; Zhang, Q. A quantitative study of the climate-responsive design strategies of ancient timber-frame halls in northern China based on field measurements. Energy Build. 2016, 133, 306–320. [Google Scholar] [CrossRef]
- Liu, J.; Hu, R.; Wang, R.; Yang, L. Regeneration of vernacular architecture: New rammed earth houses on the upper reaches of the Yangtze River. Front. Energy Power Eng. China 2010, 4, 93–99. [Google Scholar] [CrossRef]
- Chandel, S.S.; Aggarwal, R.K. Performance evaluation of a passive solar building in Western Himalayas. Renew. Energy 2008, 33, 2166–2173. [Google Scholar] [CrossRef]
- Chandel, S.S.; Sharma, V.; Marwah, B.M. Review of energy efficient features in vernacular architecture for improving indoor thermal comfort conditions. Renew. Sustain. Energy Rev. 2016, 65, 459–477. [Google Scholar] [CrossRef]
- Chandel, S.S. Strategy for the promotion of passive solar housing technology in Western Himalayas (December 2006). Int. Energy J. 2006, 7, 273–277. [Google Scholar]
- Chandel, S.S.; Sarkar, A. Performance assessment of a passive solar building for thermal comfort and energy saving in a hilly terrain of India. Energy Build. 2015, 86, 873–885. [Google Scholar] [CrossRef]
- Foruzanmehr, A.; Vellinga, M. Vernacular architecture: Questions of comfort and practicability. Build. Res. Inf. 2011, 39, 274–285. [Google Scholar] [CrossRef]
- Khalili, M.; Amindeldar, S. Traditional solutions in low energy buildings of hot-arid regions of Iran. Sustain. Cities Soc. 2014, 13, 171–181. [Google Scholar] [CrossRef]
- Motealleh, P.; Zolfaghari, M.; Parsaee, M. Investigating climate responsive solutions in vernacular architecture of Bushehr city. Hous. Build. Natl. Res. Cent. (HBRC) 2016. [Google Scholar] [CrossRef]
- Tahbaz, M.; Jalilian, S. Challenge of Vernacular Architecture and Modern Life Style—Case Study in Iran. In Proceedings of the 25th Conference on Passive and Low Energy Architecture, Dublin, Ireland, 22–24 October 2008; University College Dublin: Dublin, Ireland, 2008. [Google Scholar]
- Nikghadam, N. Climatic Patterns of Functional Spaces in Vernacular Houses of Bushehr (By Grounded Theory). Sci. J. NAZAR Res. Cent. (Nrc) Art Archit. Urban. 2015, 12, 77–90. [Google Scholar]
- Nikghadam, N. The effect of wind and sun on modulating the heating conditions of Bushehr houses Case Study: Golshan House. Iran. J. Archit. Urban. 2016, 7, 29–46. [Google Scholar]
- Mohammad Yusoff, W.F.; Mohamed, M.F. Building Energy Efficiency in Hot and Humid Climate. In Encyclopedia of Sustainable Technologies; Elsevier: Amsterdam, The Netherlands, 2017; pp. 159–168. [Google Scholar]
- Saidur, R. Energy consumption, energy savings, and emission analysis in Malaysian office buildings. Energy Policy 2009, 37, 4104–4113. [Google Scholar] [CrossRef]
- Ghobadian, V. Climatic Analysis of the Traditional Iranian Buildings; Tehran University: Tehran, Iran, 1998. [Google Scholar]
- Radhi, H. Evaluating the potential impact of global warming on the UAE residential buildings—A contribution to reduce the CO2 emissions. Build. Environ. 2009, 44, 2451–2462. [Google Scholar] [CrossRef]
- Aldossary, N.A.; Rezgui, Y.; Kwan, A. Domestic energy consumption patterns in a hot and humid climate: A multiple-case study analysis. Appl. Energy 2014, 114, 353–365. [Google Scholar] [CrossRef]
- Oropeza-Perez, I.; Østergaard, P.A. Energy saving potential of utilizing natural ventilation under warm conditions—A case study of Mexico. Appl. Energy 2014, 130, 20–32. [Google Scholar] [CrossRef]
- Taleb, H.M. Using passive cooling strategies to improve thermal performance and reduce energy consumption of residential buildings in U.A.E. buildings. Front. Archit. Res. 2014, 3, 154–165. [Google Scholar] [CrossRef]
- Toe, D.H.C.; Kubota, T. Comparative assessment of vernacular passive cooling techniques for improving indoor thermal comfort of modern terraced houses in hot–humid climate of Malaysia. Sol. Energy 2015, 114, 229–258. [Google Scholar] [CrossRef]
- Rajapaksha, I.; Nagai, H.; Okumiya, M. A ventilated courtyard as a passive cooling strategy in the warm humid tropics. Renew. Energy 2003, 28, 1755–1778. [Google Scholar] [CrossRef]
- Sadeghifam, A.N.; Zahraee, S.M.; Meynagh, M.M.; Kiani, I. Combined use of design of experiment and dynamic building simulation in assessment of energy efficiency in tropical residential buildings. Energy Build. 2015, 86, 525–533. [Google Scholar] [CrossRef]
- Aldossary, N.A.; Rezgui, Y.; Kwan, A. Establishing domestic low energy consumption reference levels for Saudi Arabia and the Wider Middle Eastern Region. Sustain. Cities Soc. 2017, 28, 265–276. [Google Scholar] [CrossRef]
- Huang, K.-T.; Hwang, R.-L. Future trends of residential building cooling energy and passive adaptation measures to counteract climate change: The case of Taiwan. Appl. Energy 2016, 184, 1230–1240. [Google Scholar] [CrossRef]
- Hazbei, M.; Nematollahi, O.; Behnia, M.; Adib, Z. Reduction of energy consumption using passive architecture in hot and humid climates. Tunn. Undergr. Space Technol. 2015, 47, 16–27. [Google Scholar] [CrossRef]
- Hirano, T.; Kato, S.; Murakami, S.; Ikaga, T.; Shiraishi, Y. A study on a porous residential building model in hot and humid regions: Part 1—The natural ventilation performance and the cooling load reduction effect of the building model. Build. Environ. 2006, 41, 21–32. [Google Scholar] [CrossRef]
- Haggag, M.; Elmasry, S. Integrating Passive Cooling Techniques for Sustaiable Building Performance in hot climates with Refrence to UAE. In Sustainable Development and Planning V; Brebbia, C., Beriatos, Ē., Eds.; WIT Press: Southampton, UK, 2011. [Google Scholar]
- Pellegrino, M.; Simonetti, M.; Chiesa, G. Reducing thermal discomfort and energy consumption of Indian residential buildings: Model validation by in-field measurements and simulation of low-cost interventions. Energy Build. 2016, 113, 145–158. [Google Scholar] [CrossRef]
- Cheung, C.K.; Fuller, R.J.; Luther, M.B. Energy-efficient envelope design for high-rise apartments. Energy Build. 2005, 37, 37–48. [Google Scholar] [CrossRef]
- Prajongsan, P.; Sharples, S. Enhancing natural ventilation, thermal comfort and energy savings in high-rise residential buildings in Bangkok through the use of ventilation shafts. Build. Environ. 2012, 50, 104–113. [Google Scholar] [CrossRef]
- Mirrahimi, S.; Mohamed, M.F.; Haw, L.C.; Ibrahim, N.L.N.; Yusoff, W.F.M.; Aflaki, A. The effect of building envelope on the thermal comfort and energy saving for high-rise buildings in hot–humid climate. Renew. Sustain. Energy Rev. 2016, 53, 1508–1519. [Google Scholar] [CrossRef]
- Haase, M.; Amato, A. An investigation of the potential for natural ventilation and building orientation to achieve thermal comfort in warm and humid climates. Sol. Energy 2009, 83, 389–399. [Google Scholar] [CrossRef]
- Chen, X.; Yang, H.; Zhang, W. Simulation-based approach to optimize passively designed buildings: A case study on a typical architectural form in hot and humid climates. Renew. Sustain. Energy Rev. 2017. [Google Scholar] [CrossRef]
- Ghaffarianhoseini, A.; Berardi, U.; Ghaffarianhoseini, A. Thermal performance characteristics of unshaded courtyards in hot and humid climates. Build. Environ. 2015, 87, 154–168. [Google Scholar] [CrossRef]
- Beccali, M.; Strazzeri, V.; Germanà, M.L.; Melluso, V.; Galatioto, A. Vernacular and bioclimatic architecture and indoor thermal comfort implications in hot-humid climates: An overview. Renew. Sustain. Energy Rev. 2017. [Google Scholar] [CrossRef]
- Mohammadi, A.; Ayatollahi, S.M.H. Designing a model shading device for Bushehr city. SOFFEH 2011, 21, 43–54. [Google Scholar]
- Rodríguez, G.C.; Andrés, A.C.; Muñoz, F.D.; López, J.M.C.; Zhang, Y. Uncertainties and sensitivity analysis in building energy simulation using macroparameters. Energy Build. 2013, 67, 79–87. [Google Scholar] [CrossRef]
- Babaei, T.; Abdi, H.; Lim, C.P.; Nahavandi, S. A study and a directory of energy consumption data sets of buildings. Energy Build. 2015, 94, 91–99. [Google Scholar] [CrossRef]
- Rotimi, A.; Bahadori-Jahromi, A.; Mylona, A.; Godfrey, P.; Cook, D. Estimation and Validation of Energy Consumption in UK Existing Hotel Building Using Dynamic Simulation Software. Sustainability 2017, 9, 1391. [Google Scholar] [CrossRef]
- Eames, M.E. An update of the UK’s design summer years: Probabilistic design summer years for enhanced overheating risk analysis in building design. Build. Serv. Eng. Res. Technol. 2016, 37, 503–522. [Google Scholar] [CrossRef]
- Jensen, O.M.; Wittchen, K.B.; Thomsen, K.E.; Dyrbøl, S.; Albæk, T.; Eriksen, K.E.; Wilberforce, R.; Baes, M.; Levy, M.; Delpino, E. Towards Very Low Energy Buildings: Energy Saving and CO2 Emission Reduction by Changing European Building Regulations to Very Low Energy Standards, 1st ed.; SBI Forlag: Hørsholm, Denmark, 2009. [Google Scholar]
© 2017 by the authors. Licensee MDPI, Basel, Switzerland. This article is an open access article distributed under the terms and conditions of the Creative Commons Attribution (CC BY) license (http://creativecommons.org/licenses/by/4.0/).
























