Energy Performance and Thermal Comfort of a High Efficiency House: RhOME for denCity, Winner of Solar Decathlon Europe 2014
Abstract
:1. Introduction
- (1)
- Architecture: Assess design coherence, flexibility and maximization of space, technologies and bioclimatic strategies;
- (2)
- Energy Efficiency: Consider excellence in systems and house design, while looking for reduction of energy consumption;
- (3)
- Comfort Conditions: Consider the capacity for providing interior comfort through the control of temperature, humidity, acoustic, lighting and quality of interior air;
- (4)
- Communication & Social Awareness: Assess the team’s capacity to find creative, effective and efficient ways of transmitting ideas that define the teams’ and projects’ own identity;
- (5)
- Innovation: Estimate the innovative aspects of houses in preceding contests, focusing on changes that impact value, performance or efficiency;
- (6)
- Engineering & Construction: Evaluate functionality of the house structure, envelope, electricity, plumbing and solar system;
- (7)
- Electrical Energy Balance: Measure the houses’ electrical energy self-sufficiency and efficiency and assessment of their energy balance;
- (8)
- House Functioning: Evaluate the functionality and efficiency of a set of appliances that must comply with the demanding standards of present-day society;
- (9)
- Urban design, Transportation & Affordability: Evaluate the relevance of the housing unit’s grouping proposal and regional positioning, with regard for social and urban contexts of the project;
- (10)
- Sustainability: Measure the team’s reactivity to environmental issues, including its efforts to attain a maximum reduction of negative environmental impact.
2. Case Study
| Name | Nation | (1) Arch. | (2) En. Eff. | (3) Comfort | (4) Com. | (5) Innov. | (6) Eng. | (7) Elec. | (8) Funct. | (9) Urban Des. | (10) Sust. | Pen. | Bonus | Tot |
|---|---|---|---|---|---|---|---|---|---|---|---|---|---|---|
| Philéas | FRA | 102.00 | 80.00 | 101.82 | 52.00 | 62.39 | 70.40 | 79.80 | 107.34 | 96.00 | 74.00 | 0.00 | 14.00 | 839.75 |
| Ressò | SPA | 120.00 | 73.47 | 84.30 | 54.00 | 75.00 | 64.00 | 68.57 | 80.02 | 105.88 | 44.00 | 0.00 | 7.00 | 776.24 |
| EFdeN | ROU | 54.00 | 40.82 | 48.37 | 0.00 | 32.17 | 56.00 | 22.81 | 48.32 | 0.00 | 44.00 | 0.00 | 2.00 | 348.49 |
| RenaiHouse | JPN | 111.60 | 32.65 | 102.17 | 65.00 | 56.20 | 76.00 | 93.19 | 95.10 | 93.18 | 44.00 | 0.00 | 5.00 | 774.09 |
| Home with a skin | NLD | 90.00 | 78.37 | 94.47 | 80.00 | 60.89 | 52.00 | 80.47 | 103.97 | 96.00 | 80.00 | 0.30 | 22.00 | 837.87 |
| Embrace | DNK | 78.00 | 71.84 | 99.23 | 64.00 | 59.81 | 69.90 | 79.22 | 90.66 | 101.65 | 68.00 | 2.00 | 0.00 | 780.31 |
| Casa Fenix | CHL/FRA | 78.00 | 71.84 | 68.48 | 73.00 | 65.08 | 72.00 | 89.62 | 87.70 | 96.00 | 76.00 | 0.30 | 25.00 | 802.42 |
| Techstyle Haus | USA/GER | 78.00 | 71.84 | 107.02 | 67.00 | 51.12 | 52.00 | 19.72 | 102.35 | 49.41 | 52.00 | 0.00 | 7.00 | 657.46 |
| Adaptive House | THA | 72.00 | 32.65 | 76.41 | 44.00 | 46.17 | 48.00 | 34.01 | 73.87 | 28.24 | 56.00 | 3.20 | 0.00 | 508.15 |
| Your+ | CHE | 90.00 | 65.31 | 107.59 | 76.00 | 58.06 | 60.00 | 63.33 | 107.75 | 84.71 | 68.00 | 0.00 | 24.00 | 804.75 |
| CASA | MEX | 102.00 | 61.22 | 67.26 | 60.00 | 63.95 | 80.00 | 76.50 | 60.30 | 112.94 | 74.00 | 2.00 | 4.00 | 760.17 |
| OnTop | GER | 90.00 | 73.47 | 104.81 | 59.00 | 55.26 | 60.00 | 83.62 | 102.34 | 84.71 | 60.00 | 1.50 | 22.00 | 793.71 |
| Liv-Lib' | FRA | 54.00 | 32.65 | 55.91 | 0.00 | 33.08 | 0.00 | 22.02 | 41.97 | 21.18 | 16.00 | 8.00 | 0.00 | 268.81 |
| Symbcity | SPA | 66.00 | 76.73 | 103.40 | 71.00 | 52.51 | 32.00 | 53.21 | 63.68 | 81.88 | 48.00 | 0.00 | 2.00 | 650.41 |
| Maison Reciprocity | USA/FRA | 90.00 | 65.31 | 94.29 | 71.00 | 57.67 | 52.00 | 101.75 | 91.02 | 81.88 | 56.00 | 0.00 | 16.00 | 776.92 |
| RoofTop | GER | 111.60 | 73.47 | 96.26 | 56.00 | 64.31 | 70.40 | 77.42 | 104.14 | 98.82 | 56.00 | 2.00 | 17.00 | 823.42 |
| Rhome for DenCity | ITA | 114.00 | 73.47 | 107.40 | 61.00 | 71.81 | 67.20 | 58.41 | 108.60 | 84.71 | 70.00 | 0.00 | 24.00 | 840.60 |
| H Naught | IND | 54.00 | 32.65 | 48.70 | 0.00 | 47.00 | 56.00 | 63.50 | 67.10 | 42.35 | 48.00 | 7.00 | 0.00 | 452.30 |
| Tropika | CRI | 66.00 | 65.31 | 52.57 | 55.00 | 54.06 | 69.60 | 15.00 | 70.44 | 74.82 | 64.00 | 4.00 | 6.00 | 588.80 |
| Orchid House | TWN | 102.00 | 76.73 | 77.05 | 62.00 | 72.25 | 71.20 | 28.70 | 92.72 | 120.00 | 64.00 | 4.50 | 10.00 | 772.15 |
| Maximum Value | 120 | 80 | 120 | 80 | 80 | 80 | 120 | 120 | 120 | 80 | ||||




| Opaque Component | Thickness (cm) | Thermal Transmittance (W/m2K) |
|---|---|---|
| Roof | 39.3 | 0.122 |
| Floor | 46.8 | 0.100 |
| External wall | 39.9 | 0.123 |
| Internal wall | 39.3 | 0.125 |
Passive Solutions



3. House Energy Performance
3.1. Plant Feasibility
Results and Discussion

| Type of Fuel | Fuel Mix | Fuel Consumption (MWh) | Greenhouse Gases Emission Per MWh (ton CO2/MWh) | Greenhouse Gas Emission (ton CO2) |
|---|---|---|---|---|
| Natural gas | 12.8% | 31 | 0.197 | 6.1 |
| Electrical energy | 87.2% | 210 | 0.374 | 78.6 |
| Total | 100% | 241 | 0.351 | 84.7 |
| Type of Fuel | Fuel Mix | Fuel Consumption (MWh) | Greenhouse Gases Emission per MWh (ton CO2/MWh) | Greenhouse Gas Emission (ton CO2) |
|---|---|---|---|---|
| Biomass | 13.9% | 34 | 0.007 | 0.2 |
| Solar energy | 18.2% | 44 | 0.000 | 0.0 |
| Electrical energy | 67.8% | 163 | 0.374 | 61.0 |
| Total | 100% | 240 | 0.255 | 61.2 |
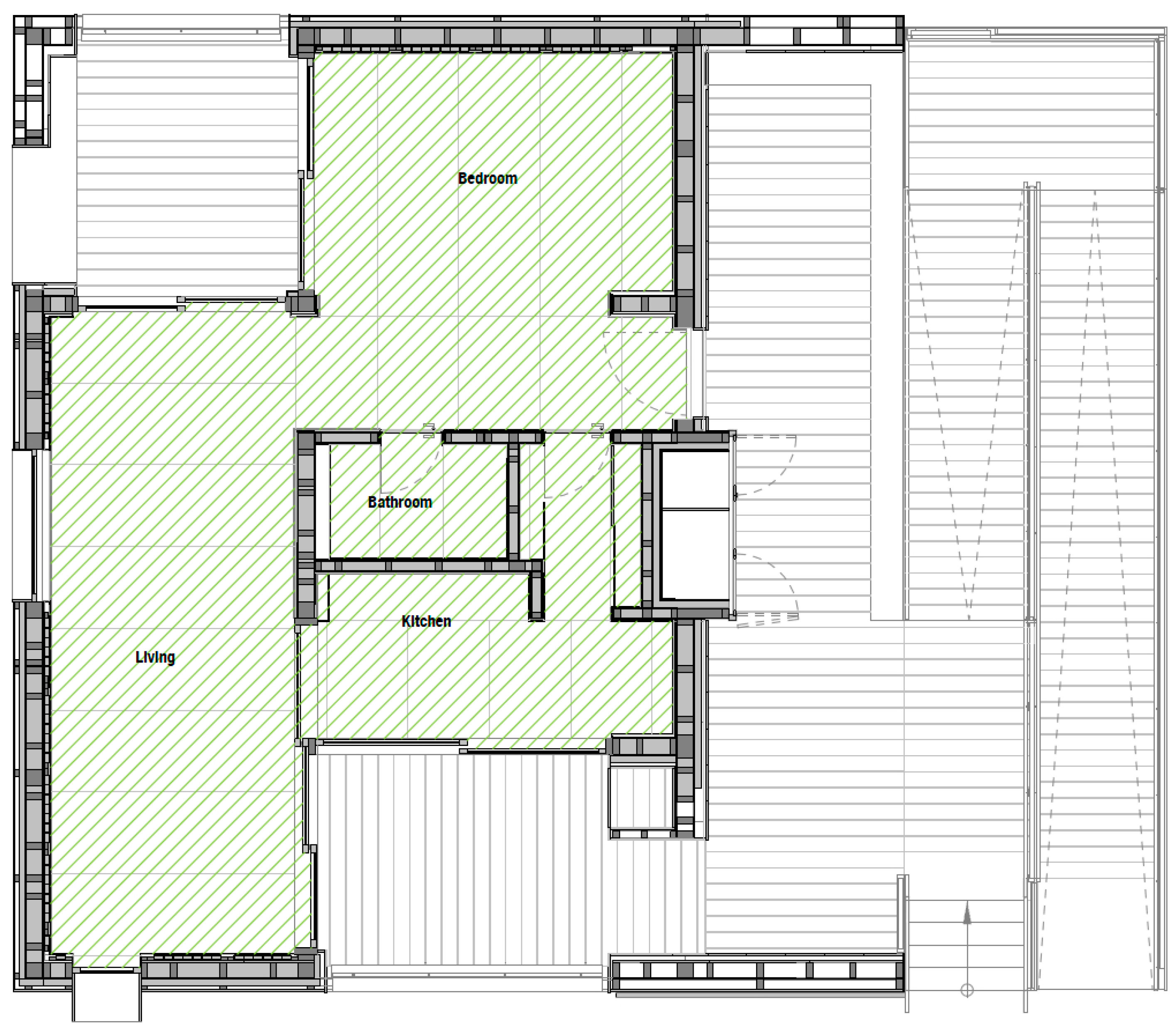
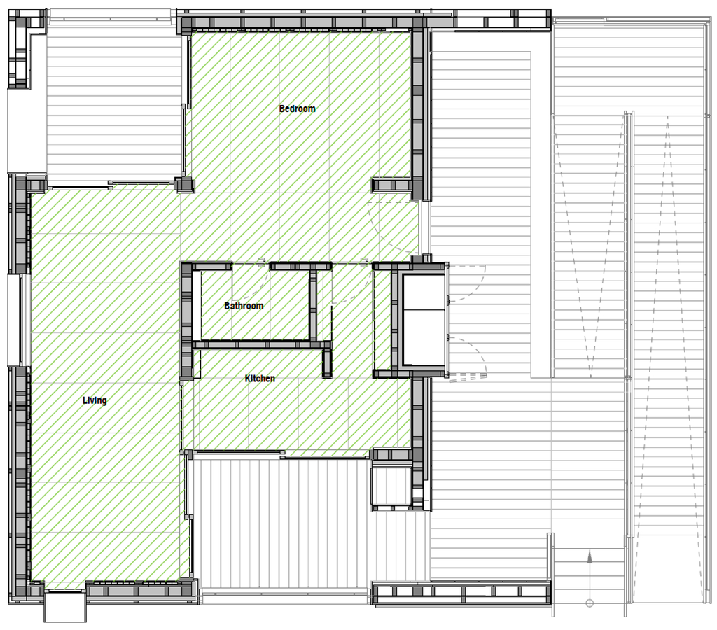
3.2. Thermal Comfort Model



Results and Discussions

| Rooms | Summer | Winter | ||
|---|---|---|---|---|
| Velocity (m/s) | Temperature (°C) | Velocity (m/s) | Temperature (°C) | |
| Living Room | 0.12 | 25.0 | 0.15 | 20.6 |
| Kitchen | 0.07 | 25.2 | 0.13 | 20.5 |
| Bedroom | 0.05 | 25.4 | 0.12 | 20.2 |

4. Conclusions
Acknowledgments
Author Contributions
Conflicts of Interest
References
- Kjärstad, J.; Johnsson, F. Resources and future supply of oil. Energy Policy 2009, 37, 441–464. [Google Scholar] [CrossRef]
- Kamal, W. Improving energy efficiency—The cost-effective way to mitigate global warming. Energy Convers. Manag. 1997, 38, 39–59. [Google Scholar] [CrossRef]
- Ürge-Vorsatz, D.; Eyre, N.; Graham, P.; Harvey, D.; Hertwich, E.; Jiang, Y.; Kornevall, C.; Majumdar, M.; McMahon, J.E.; Mirasgedis, S.; et al. Chapter 10—Energy End-Use: Building. In Global Energy Assessment—Toward a Sustainable Future; Cambridge University Press: Cambridge, UK, 2012; pp. 649–760. [Google Scholar]
- Lior, N. Energy resources and use: The present situation and possible paths to the future. Energy 1997, 33, 842–857. [Google Scholar] [CrossRef]
- Directive 2010/31/EU of the European Parliament and of the Council of 19 May 2010 on the energy performance of buildings (recast). Available online: http://www.buildup.eu/sites/default/files/content/EPBD2010_31_EN.pdf (accessed on 15 July 2015).
- Voss, K.; Musall, E.; Lichtmeß, M. From low energy to net zero energy buildings—Status and perspectives. J. Green Build. 2011, 6, 46–57. [Google Scholar] [CrossRef]
- King, R.J.; Warner, C. Solar decathlon: Energy we can live with. In Proceedings of the 3rd World Conference on Photovoltaic Energy Conversion IEEE, Osaka, Japan, 11–18 May 2003; Volume 3, pp. 2139–2142.
- Wang, N.; Esram, T.; Martinez, L.A.; McCulley, M.T. A marketable all-electric solar house: A report of a Solar Decathlon project. Renew Energy 2009, 34, 2860–2871. [Google Scholar] [CrossRef]
- Warner, C.L.; Wassmer, M.R. Solar decathlon 2005 e PV system strategies and results. In Proceedings of the 4rd World Conference on Photovoltaic Energy Conversion IEEE, Waikoloa, HI, USA, 7–12 May 2006; Volume 34, pp. 2272–2276.
- Warner, C.L.; King, R.; Nahan, R.; Eastment, M. Solar decathlon: Collegiate challenge to build the future. In Proceedings of the 29th IEEE Photovoltaic Specialists Conference, New Orleans, LA, USA, 19–24 May 2002; pp. 44–48.
- Hayter, S.; Nahan, R.; Stafford, B.; Warner, C.; Hancock, E.; Howard, R. Solar Decathlon 2002: The Event in Review; U.S. Dept. of Energy, Energy Efficiency and Renewable Energy: Washington, DC, USA, 2004.
- Peng, C.; Huang, L.; Liu, J.; Huang, Y. Energy performance evaluation of a marketable net-zero-energy house: Solark I at Solar Decathlon China 2013. Renew. Energy 2004, 81, 136–149. [Google Scholar] [CrossRef]
- Solar Decathlon Europe 2014. Available online: http://www.solardecathlon2014.fr/en/ (accessed on 15 July 2015).
- RhOME for Dencity. Available online: http://www.rhomefordencity.it/SDE/ (accessed on 15 July 2015).
- De Lieto Vollaro, R.; Calvesi, M.; Battista, G.; Evangelisti, L.; Botta, F. Calculation model for optimization design of low impact energy systems for buildings. Energy Procedia 2014, 48, 1459–1467. [Google Scholar] [CrossRef]
- De Lieto Vollaro, R.; Evangelisti, L.; Battista, G.; Gori, P.; Guattari, C.; Fanchiotti, A. Bus for urban public transport: Energy performance optimization. Energy Procedia 2014, 45, 731–738. [Google Scholar] [CrossRef]
- Peruzzi, L.; Salata, F.; de Lieto Vollaro, A.; de Lieto Vollaro, R. The reliability of technological systems with high energy efficiency in residential buildings. Energy Build. 2014, 68, 19–24. [Google Scholar] [CrossRef]
- Battista, G.; Evangelisti, L.; Guattari, C.; Basilicata, C.; de Lieto Vollaro, R. Buildings Energy Efficiency: Interventions Analysis under a Smart Cities Approach. Sustainability 2014, 6, 4694–4705. [Google Scholar] [CrossRef]
- De Lieto Vollaro, R.; Evangelisti, L.; Carnielo, E.; Battista, G.; Gori, P.; Guattari, C.; Fanchiotti, A. An Integrated Approach for an Historical Buildings Energy Analysis in a Smart Cities Perspective. Energy Procedia 2014, 45, 372–378. [Google Scholar] [CrossRef]
- Evangelisti, L.; Battista, G.; Guattari, C.; Basilicata, C.; de Lieto Vollaro, R. Analysis of Two Models for Evaluating the Energy Performance of Different Buildings. Sustainability 2014, 6, 5311–5321. [Google Scholar] [CrossRef]
- De Lieto Vollaro, R.; Guattari, C.; Evangelisti, L.; Battista, G.; Carnielo, E.; Gori, P. Building energy performance analysis: A case study. Energy Build. 2015, 87, 87–94. [Google Scholar] [CrossRef]
- Zinzi, M.; Carnielo, E.; Federici, A. Preliminary studies of a cool roofs’ energy-rating system in Italy. Adv. Build. Energy Res. 2014, 8, 84–96. [Google Scholar] [CrossRef]
- Zinzi, M.; Carnielo, E.; Agnoli, S. Characterization and assessment of cool coloured solar protection devices for Mediterranean residential buildings application. Energy Build. 2012, 50, 111–119. [Google Scholar] [CrossRef]
- Carnielo, E.; Zinzi, M. Optical and thermal characterisation of cool asphalts to mitigate urban temperatures and building cooling demand. Build. Environ. 2013, 60, 56–65. [Google Scholar] [CrossRef]
- Salata, F.; de Lieto Vollaro, A.; de Lieto Vollaro, R.; Davoli, M. Plant reliability in hospital facilities. Energy Procedia 2014, 45, 1195–1204. [Google Scholar] [CrossRef]
- Coppi, M.; Quintino, A.; Salata, F. Numerical study of a vertical channel heated from below to enhance natural ventilation in a residential building. Int. J. Vent. 2013, 12, 41–49. [Google Scholar]
- Salata, F.; de Lieto Vollaro, A.; de Lieto Vollaro, R.; Mancieri, L. Method for energy optimization with reliability analysis of a trigeneration and teleheating system on urban scale: A case study. Energy Build. 2015, 86, 118–136. [Google Scholar] [CrossRef]
- Salata, F.; Golasi, I.; de Lieto Vollaro, A.; de Lieto Vollaro, R. How high albedo and traditional buildings’ materials and vegetation affect the quality of urban microclimate. A case study. Energy Build. 2015, 99, 32–49. [Google Scholar] [CrossRef]
- Evangelisti, L.; Battista, G.; Guattari, C.; Basilicata, C.; de Lieto Vollaro, R. Influence of the Thermal Inertia in the European Simplified Procedures for the Assessment of Buildings’ Energy Performance. Sustainability 2014, 6, 4514–4524. [Google Scholar] [CrossRef]
- Salata, F.; de Lieto Vollaro, A.; de Lieto Vollaro, R. A case study of technical and economic comparison among energy production systems in a complex of historic buildings in Rome. Energy Procedia 2014, 45, 482–491. [Google Scholar] [CrossRef]
- Bottillo, S.; de Lieto Vollaro, A.; Galli, G.; Vallati, A. CFD modeling of the impact of solar radiation in a tridimensional urban canyon at different wind conditions. Sol. Energy 2014, 102, 212–222. [Google Scholar] [CrossRef]
- Bottillo, S.; de Lieto Vollaro, A.; Galli, G.; Vallati, A. Fluid dynamic and heat transfer parameters in an urban canyon. Sol. Energy 2014, 99, 1–10. [Google Scholar] [CrossRef]
- De Lieto Vollaro, A.; de Simone, G.; Romagnoli, R.; Vallati, A.; Bottillo, S. Numerical Study of Urban Canyon Microclimate Related to Geometrical Parameters. Sustainability 2014, 6, 7894–7905. [Google Scholar] [CrossRef]
- De Lieto Vollaro, R.; Vallati, A.; Bottillo, S. Differents Methods to Estimate the Mean Radiant Temperature in an Urban Canyon. Adv. Mater. Sci. Eng. 2013, 650, 647–651. [Google Scholar] [CrossRef]
- UNI 10339—Air systems for thermal comfort (In Italian: Impianti aeraulici a fini di benessere). Available online: http://www.repertoriosalute.it/wp-content/uploads/2015/03/UNI-10339-impianti-aeraulici.pdf (accessed on 16 July 2015).
- Pagliaroli, T.; Camussi, R. Wall pressure fluctuations in rectangular partial enclosures. J. Sound Vib. 2015, 341, 116–137. [Google Scholar] [CrossRef]
© 2015 by the authors; licensee MDPI, Basel, Switzerland. This article is an open access article distributed under the terms and conditions of the Creative Commons Attribution license (http://creativecommons.org/licenses/by/4.0/).
Share and Cite
Battista, G.; Carnielo, E.; Evangelisti, L.; Frascarolo, M.; Vollaro, R.D.L. Energy Performance and Thermal Comfort of a High Efficiency House: RhOME for denCity, Winner of Solar Decathlon Europe 2014. Sustainability 2015, 7, 9681-9695. https://doi.org/10.3390/su7079681
Battista G, Carnielo E, Evangelisti L, Frascarolo M, Vollaro RDL. Energy Performance and Thermal Comfort of a High Efficiency House: RhOME for denCity, Winner of Solar Decathlon Europe 2014. Sustainability. 2015; 7(7):9681-9695. https://doi.org/10.3390/su7079681
Chicago/Turabian StyleBattista, Gabriele, Emiliano Carnielo, Luca Evangelisti, Marco Frascarolo, and Roberto De Lieto Vollaro. 2015. "Energy Performance and Thermal Comfort of a High Efficiency House: RhOME for denCity, Winner of Solar Decathlon Europe 2014" Sustainability 7, no. 7: 9681-9695. https://doi.org/10.3390/su7079681
APA StyleBattista, G., Carnielo, E., Evangelisti, L., Frascarolo, M., & Vollaro, R. D. L. (2015). Energy Performance and Thermal Comfort of a High Efficiency House: RhOME for denCity, Winner of Solar Decathlon Europe 2014. Sustainability, 7(7), 9681-9695. https://doi.org/10.3390/su7079681

