Architectural Sustainability Through Adaptive Reuse: Design Challenges and Opportunities in the Transformation of Mid-to-Late 20th Century Hotel Buildings in Poland
Abstract
1. Introduction
1.1. The Overview
1.2. Adaptive Reuse Feasibility
1.3. Characteristics of Mid-to-Late 20th Century Hotels in Poland
1.4. Aim of the Research
- To what extent can mid-to-late 20th century Polish hotels be adapted to new functions, considering spatial, structural and installation factors?
- What scope of intervention is required to implement new uses?
- Can adaptive reuse be considered sustainable, especially using ‘low-tech’ architectural strategies?
- What are the environmental benefits of adaptive reuse in the fields of ecological, socio-cultural, functional or economic aspects?
2. Methods
3. Materials
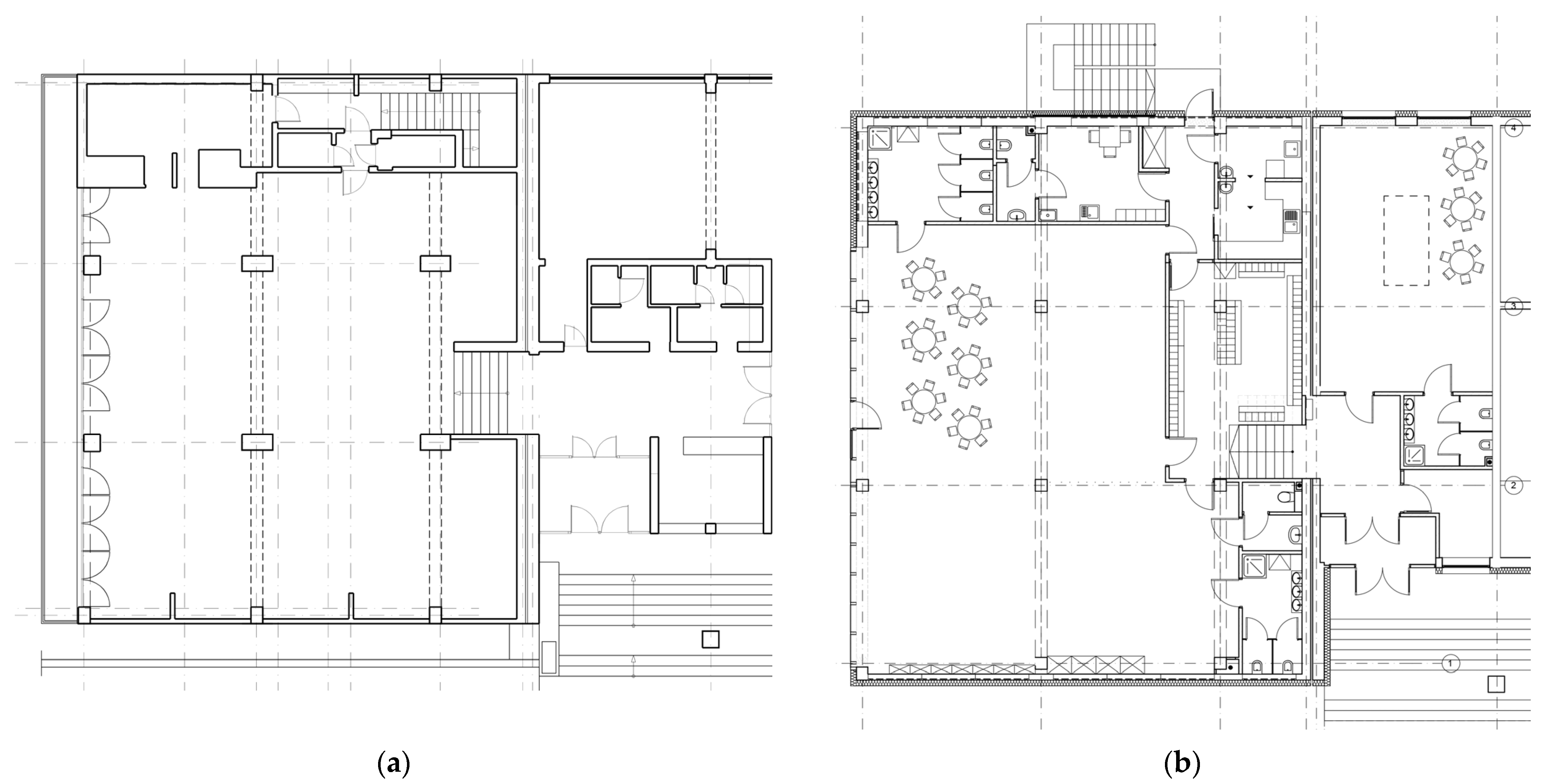
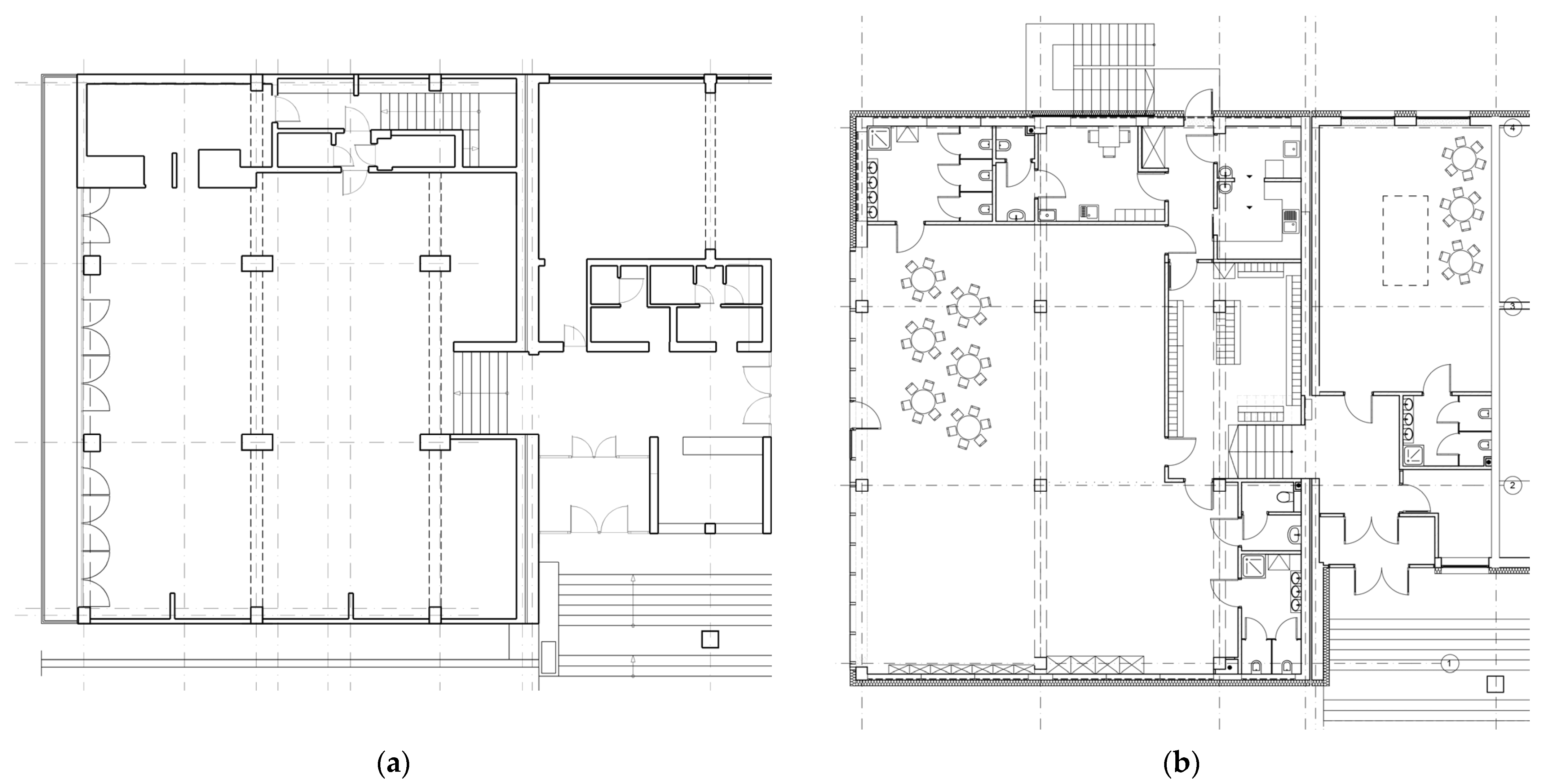
4. Urban and Architectural Characteristics
4.1. Preferable Locations
4.2. Formal and Functional Typology
4.3. Structural Typology
5. Results
5.1. Environmental and Ecological Sustainability
5.1.1. Operational Energy Performance
5.1.2. Material Circularity
5.1.3. Embodied Carbon Retention
- The new function can be fitted into the existing structural grid, which is difficult in typical hotel superstructures with dense load-bearing walls between every or every second room;
- Functional requirements are compatible with available storey heights, which is challenging given relatively low ceilings (Polish regulations usually require a minimum net height of 2.5 m);
- The predicted live loads are compatible with the existing structure. In Poland, hotels designed to PN-82/B-02003 [46] typically assumed 1.5 kN/m2 for guest rooms and bathrooms, while current Eurocode 1 (PN-EN 1991-1-1) [47] recommends 1.5–2.0 kN/m2 for rooms in residential, hospital and hotel buildings, 2.0–3.0 kN/m2 for offices, and 3.0–4.0 kN/m2 for areas with fixed seating such as conference or lecture rooms.
5.2. Socio-Cultural Sustainability
5.2.1. Heritage Value Retention, Urban Identity and Placemaking
- Replacing deteriorated parts and reconstructing them in original form,
- Preserving key elements of the ground floor, mezzanine, and basement, including the entrance hall, mosaic, decorative ceilings, and former ORBIS office,
- Reconstructing façades and architectural details such as window divisions, proportions, articulation, and color scheme,
5.2.2. Accessibility
5.3. Spatial Flexibility and Adaptability
5.4. Process-Related Sustainability
5.4.1. Design Innovation
5.4.2. Monitoring and Evaluation
6. Discussion and Conclusions
Author Contributions
Funding
Institutional Review Board Statement
Informed Consent Statement
Data Availability Statement
Acknowledgments
Conflicts of Interest
References
- Lehman, H. The Polish Growth Miracle: Outcome of Persistent Reform Efforts. IZA Policy Pap. 2012, 40, 1–44. [Google Scholar] [CrossRef]
- World Bank Group’s GDP Statistics (Current US$). Available online: https://data.worldbank.org/indicator/NY.GDP.MKTP.CD (accessed on 16 August 2025).
- World Economic Outlook Database. Groups and Aggregates Information (Last Updated: April 2025). Available online: https://www.imf.org/en/Publications/WEO/weo-database/2023/October/groups-and-aggregates (accessed on 16 August 2025).
- Thomsen, A.; Van der Flier, K. Understanding obsolescence: A conceptual model for buildings. Build. Res. Inf. 2011, 39, 352–362. [Google Scholar] [CrossRef]
- Stone, S. UnDoing Buildings. Adaptive Reuse and Cultural Memory, 1st ed.; Routledge: New York, NY, USA, 2019. [Google Scholar] [CrossRef]
- Zheng, B.; Masrabaye, F. Sustainable brownfield redevelopment and planning: Bibliometric and visual analysis. Heliyon 2023, 9, e13280. [Google Scholar] [CrossRef]
- Zhang, L.; Wang, Y.; Ding, Q.; Shi, Y. Current Status and Prospects of Ecological Restoration and Brownfield Reuse Research Based on Bibliometric Analysis: A Literature Review. Land 2025, 14, 1185. [Google Scholar] [CrossRef]
- Ballice, G.; Paykoc, E. Re-architecture of existing building stock with sustainable approach: The analysis of the City of Izmir. J. Environ. Prot. Ecol. 2014, 15, 1610–1618. Available online: https://www.researchgate.net/publication/291486155 (accessed on 14 July 2025).
- Fisher-Gewirtzman, D. Adaptive Reuse Architecture Documentation and Analysis. J. Archit. Eng. Technol. 2016, 5, 1000172. Available online: https://www.researchgate.net/publication/309519831 (accessed on 15 July 2025).
- Wong, L. Adaptive Reuse. Extending the Lives of Buildings, 1st ed.; Birkhäuser: Berlin, Germany, 2024. [Google Scholar]
- Lanz, F.; Pendlebury, J. Adaptive reuse: A critical review. J. Archit. 2022, 27, 441–462. [Google Scholar] [CrossRef]
- Brania, N. Adaptation of Office Buildings for Residential Purposes as a Response to Problems in the Real Estate Market; Wydawnictwo Uniwersytetu Ekonomicznego we Wrocławiu: Wrocław, Poland, 2023; pp. 72–81. [Google Scholar] [CrossRef]
- Takva, Y.; Takva, Ç.; İlerisoy, Z.Y. Sustainable Adaptive Reuse Strategy Evaluation for Cultural Heritage Buildings. Int. J. Built Environ. Sustain. 2023, 10, 25–37. [Google Scholar] [CrossRef]
- Tam, V.W.Y.; Hao, J.J.L. Adaptive reuse in sustainable development. Int. J. Constr. Manag. 2019, 19, 509–521. [Google Scholar] [CrossRef]
- Wong, L. Adaptive Reuse in Architecture. In A Typological Index, 1st ed.; Birkhäuser: Berlin, Germany, 2023. [Google Scholar]
- Foster, G. Circular economy strategies for adaptive reuse of cultural heritage buildings to reduce environmental impacts. Resour. Conserv. Recycl. 2020, 152, 104507. [Google Scholar] [CrossRef]
- Bragança, L.; Mateus, R.; Koukkari, H. Building Sustainability Assessment. Sustainability 2010, 2, 2010–2023. [Google Scholar] [CrossRef]
- Ming, H.; Świerzawski, J. Assessing the environmental benefits of adaptive reuse in historical buildings. A case study of a life cycle assessment approach. Sustain. Environ. Int. J. Environ. Health Sustain. 2024, 10, 2375439. [Google Scholar] [CrossRef]
- Tabak, P.; Sirel, A. Adaptive Reuse as a Tool for Sustainability: Tate Modern and Bilgi University Cases. In Proceedings of the International Conference on Contemporary Affairs in Architecture and Urbanism—ICCAUA, Analya, Turkey, 11–13 May 2022. [Google Scholar] [CrossRef]
- Yalçınkaya, Ş. Iconic Buildings in Urban Sustainability. Eskişeh. Tech. Univ. J. Sci. Technol. A—Appl. Sci. Eng. 2020, 21, 282–293. [Google Scholar] [CrossRef]
- Sowińska-Heim, J. Adaptive Reuse of Architectural Heritage and Its Role in the Post-Disaster Reconstruction of Urban Identity: Post-Communist Łódź. Sustainability 2020, 12, 8054. [Google Scholar] [CrossRef]
- Cukrownia Żnin: A Sugar Factory Turned into a Hotel. Available online: https://www.cyrilzammit.com/design-diary/cukrownia-znin-a-sugar-factory-turned-into-a-hotel (accessed on 12 August 2025).
- Kapera, I.; Cziomer, M.; Wolak, G. Hotele historyczne: Uwarunkowania rozwoju, znaczenie w turystyce i przykłady z Krakowa. Tur. Rozw. Reg. 2024, 22, 65–76. [Google Scholar] [CrossRef]
- Ziemkiewicz, T. Conservation Issues of Post-War Modernist Architecture in Poland. Archit. Urban. 2021, 55, 182–197. [Google Scholar] [CrossRef]
- Karczmarczyk, S.; Bereza, W.; Bubula, Ł.; Kowalcze, R.; Stężowski, P.; Oleś, K. Ekspertyza Konstrukcyjno-Budowlana Dotycząca Możliwości Adaptacji Istniejącego Układu Nośnego Budynku Dawnego Hotelu “Cracovia” Do Funkcji Muzealnych (Structural and Construction Expertise Concerning the Possibility of Adapting the Existing Load-Bearing Structure of the Former “Cracovia” Hotel Building for Museum Use), Kraków, Poland. 2020. Available online: https://sarp.krakow.pl/2023/05/04/hotel-cracovia/ (accessed on 3 August 2025).
- Council of Europe. Convention for the Protection of the Architectural Heritage of Europe, Granada, Spain. 1985. Available online: https://rm.coe.int/168007a087 (accessed on 26 August 2025).
- Council of Europe. Framework Convention on the Value of Cultural Heritage for Society, Faro, Portugal. 2005. Available online: https://rm.coe.int/1680083746 (accessed on 26 August 2025).
- UNESCO. Recommendation on the Historic Urban Landscape, Paris, France. 2011. Available online: https://whc.unesco.org/en/hul/ (accessed on 26 August 2025).
- Sołtysik, M.J. (Ed.) Modernizm w Europie—Modernizm w Gdyni. Architektura Budynków Usług Społecznych w Europie Środkowej i Wschodniej XX Wieku (Modernism in Europe—Modernism in Gdynia. Architecture of Public Services Buildings in Central and Eastern Europe of the 20th Century); Urząd Miasta Gdyni, Wydział Architektury Politechniki Gdańskiej: Gdańsk, Poland, 2024; Available online: https://www.gdynia.pl/modernizm/cykl-modernizm-w-europie-modernizm-w-gdyni,7219/nr-9-architektura-budynkow-uslug-spolecznych-w-europie-srodkowej-i-wschodniej-xx-wieku-pl-eng,589999 (accessed on 26 August 2025).
- Lewicki, J. Ocena wartości zabytków epoki modernizmu. Przeszłość—Teraźniejszość—Przyszłość (Assessment of the value of modernist-era monuments. Past—Present—Future). Wiad. Konserw. 2017, 49, 38–50. Available online: https://repozytorium.biblos.pk.edu.pl/redo/resources/28484/file/suwFiles/LewickiJ_OcenaWartosci.pdf (accessed on 26 August 2025).
- The Former Hotel Sudety Has Disappeared from the Landscape. Available online: https://jeleniagora.naszemiasto.pl/dawny-hotel-sudety-znika-z-krajobrazu-zobacz-zdjecia-z-rozbiorki-i-archiwalne-z-wnetrza/ar/c1p2-27719467 (accessed on 20 August 2025).
- Ciarkowski, B. Function resulting from the form—Adapting the post-war modernist architecture for new functional programs. Prot. Cult. Herit. 2020, 9, 15–28. Available online: https://www.researchgate.net/publication/347482343 (accessed on 20 August 2025). [CrossRef]
- Carrero, R.; Malvárez, G.; Navas, F.; Tejada, M. Negative impacts of abandoned urbanisation projects in the Spanish coast and its regulation in the Law. J. Coast. Res. Spec. Issue 2009, 56, 1120–1124. Available online: https://www.jstor.org/stable/25737961 (accessed on 20 August 2025).
- Szafer, T.P. Nowa Architektura Polska Diariusz Lat 1966–1970 (New Polish Architecture, Diary of the Years 1966–1970), 1st ed.; Wydawnictwo Arkady: Warsaw, Poland, 1972. [Google Scholar]
- Szafer, T.P. Polska Architektura Współczesna; Wydawnictwo Interpress: Warsaw, Poland, 1977. [Google Scholar]
- Charytonow, E. Projektowanie Architektoniczne (Architectural Design), 4th ed.; Wydawnictwa Szkolne i Pedagogiczne: Warsaw, Poland, 1980. [Google Scholar]
- Szafer, T.P. Nowa Architektura Polska, Diariusz Lat 1971–1975 (New Polish Architecture, Diary of the Years 1971–1975), 1st ed.; Wydawnictwo Arkady: Warsaw, Poland, 1979. [Google Scholar]
- Design Documentation for the Redevelopment of the Stobrawa Hotel into Apartments; Stobrawa sp.z o.o.: Kluczbork, Poland, 2022.
- Rumieńczyk, B. Hotel Forum—Relikt Przeszłości, Wyspa Wolności Czy Urzędniczy Pat? (Hotel Forum—A Relic of the Past, an Island of Freedom, or a Bureaucratic Stalemate?). Available online: https://wiadomosci.onet.pl/tylko-w-onecie/hotel-forum-relikt-przeszlosci-wyspa-wolnosci-czy-urzedniczy-pat/gcjf5m (accessed on 30 September 2025).
- Białkiewicz, J.J. Controversies around protection of postwar modernism in Cracow upon the example of the Forum hotel. Wiad. Konserw.—J. Herit. Conserv. 2016, 47, 95–105. Available online: https://yadda.icm.edu.pl/baztech/element/bwmeta1.element.baztech-1b0f6010-22bf-433b-a1cb-99019ca6f7f3 (accessed on 1 October 2025).
- Architectural Design Documentation for the Redevelopment of the BRDA Hotel into a Residential Building with Commercial Spaces on the Ground Floor and First Floor; Con-Project sp. z.o.o.: Bydgoszcz, Poland, 2020.
- PN-EN ISO 6946:2017-10; Building Components and Building Elements—Thermal Resistance and Thermal Transmittance—Calculation Methods. PKN: Warsaw, Poland, 2020.
- Millard, W.B. Longevity and Sustainability of Curtain Walls. Archit. Rec. 2024, 212, 120–121. Available online: https://glifos.unis.edu.gt/digital/tesis/REVISTAS/AR/2024/2024005.pdf (accessed on 14 August 2025).
- Świerzawski, J.; Kleszcz, J.; Hu, M.; Kmiecik, P. Quantifying the Environmental Benefit of Adaptive Reuse: A Case Study in Poland. In Proceedings of the ACSA 112th Annual Meeting: Disrupters on the Edge, Vancouver, BC, Canada, 14–16 March 2024; pp. 291–297. [Google Scholar] [CrossRef]
- London Energy Transformation Initiative (LETI). LETI Climate Emergency Design Guide: How New Buildings Can Meet UK Climate Change Targets, London, Great Britain. 2020. Available online: https://www.levittbernstein.co.uk/site/assets/files/3494/leti-climate-emergency-design-guide.pdf (accessed on 14 August 2025).
- PN-82/B-02003; Loads on Building Structures—Technological Variable Loads—Variable Actions During Exploitation and Assembling. PKN: Warsaw, Poland, 1982. Available online: https://arch.pg.edu.pl/documents/175777/69365302/Norma%20PN-82-B-02003%20Obci%C4%85%C5%BCenia-zmienne-technologiczne.pdf (accessed on 25 August 2025).
- PN-EN 1991-1-1:2004; Eurocode 1—Actions on Structures—Part 1-1: General Actions—Densities, Self-Weight, Imposed Loads for Buildings. PKN: Warsaw, Poland, 2004. Available online: https://www.phd.eng.br/wp-content/uploads/2015/12/en.1991.1.1.2002.pdf (accessed on 25 August 2025).
- Ciarkowski, B. Unwanted heritage and its cultural potential. Values of modernist architecture from the times of the Polish People’s Republic. Maz. Stud. Reg. 2017, 22, 71–83. [Google Scholar] [CrossRef]
- Decision of the Małopolska Regional Monument Conservator in Kraków, Dated 4 November 2016, Concerning the Entry of a Cultural Property into the Register of Immovable Monuments, Reference Number: L.dz.OZKr.5140.A.58.2015.DW19. Available online: https://sarp.krakow.pl/2023/05/04/hotel-cracovia/ (accessed on 3 August 2025).
- Resolution No. 2/22/2022 of the Provincial Council for the Protection of Monuments at the Małopolska Regional Monument Conservator, Dated 28 April 2022, Concerning the Plans to Adapt the Former “Cracovia” Hotel in Kraków for Museum Purposes. Available online: https://sarp.krakow.pl/2023/05/04/hotel-cracovia/ (accessed on 3 August 2025).
- Błądek, Z. Hotele Bez Barier; Wydawnictwo Palladium Architekci—Błądek, Manikowski: Poznań, Poland, 2003. [Google Scholar]
- Kowalski, K. Włącznik 2.0. Projektowanie Bez Barier, 1st ed.; Fundacja Integracja: Warsaw, Poland, 2024; Available online: https://integracja.org/wp-content/uploads/2024/03/wlacznik_2_0_dostepny-.pdf (accessed on 11 August 2024).
- Błądek, Z. (Ed.) Nowoczesne Hotelarstwo. Od Projektowania Do Wyposażenia, (Modern Hotel Industry. From Design to Equipment), 2nd ed.; Oficyna Wydawniczo-Poligraficzna “Adam”: Warsaw, Poland, 2013. [Google Scholar]
- Staehr, E.R.; Stevik, T.K.; Houck, L.D. Adaptability in the Building Process: A Multifaceted Perspective Across the Life Cycle of a Building. Buildings 2025, 15, 1119. [Google Scholar] [CrossRef]
- Oliver Heckmann, O.; Budig, M.; Amanda Ng Qi Boon, A.; Hudert, M. Advancing Flexibility and Circular Design by Evaluative Computational Tools. In Proceedings of the Responsive Cities: Disrupting Through Circular Design Symposium 2019, Barcelona, Spain, 15–16 November 2019; pp. 132–145. Available online: https://www.researchgate.net/publication/341852510 (accessed on 15 October 2025).
- Ahmed, M.; Abel-Rahman, A.; Ali, A.; Suzuki, M. Double Skin Façade: The State of Art on Building Energy Efficiency. J. Clean Energy Technol. 2016, 4, 84–89. [Google Scholar] [CrossRef]
- LEED v5—Building Design and Construction (BD+C): New Construction and Major Renovations. Available online: https://www.usgbc.org/credits (accessed on 25 August 2025).

















| Sustainability Aspect Problem Group | Problem Area Within the Group | Adopted Analysis Methodology |
|---|---|---|
| Environmental and ecological | Operational energy performance | Case study calculations of thermal characteristics of external partitions in relation to compliance with current regulations. |
| Material circularity | Identification of reusable components; evaluation of degradation and refurbishment potential; review of construction technologies and life-cycle considerations. | |
| Embodied carbon retention | Life-cycle analysis (LCA)-oriented review of preserved vs. replaced structural components; quantitative assessment of retained structural mass and carbon retention implications. | |
| Socio-cultural sustainability | Heritage value retention, urban identity and placemaking | Overall heritage value assessment; architectural analysis of form, materials and identity; review of case studies. |
| Accessibility | Comparative analysis of historical and current building regulations; identification of problematic areas and possible solutions; evaluation of compliance with accessibility guidelines. | |
| Spatial flexibility and adaptability | Structural-system analysis using archival plans and surveys; assessment of modularity and span dimensions; case-study evaluation of adaptations; analysis of functional compatibility with new uses. | |
| Process-related sustainability | Design innovation | Legal-policy review; comparison of institutional constraints vs. enabling instruments; assessment of institutional implications for feasibility and permitting. |
| Monitoring and evaluation | Comparative review of certification and multi-criteria evaluation systems (e.g., LEED v5) and their applicability to renovations vs. new builds. | |
| Case (Name) | Location | Construction Time | Intervention Type | Current Use |
|---|---|---|---|---|
| BRDA | Bydgoszcz | 1972 | Adaptive reuse | Residential + services |
| STOBRAWA | Kluczbork | 1972 | Adaptive reuse | Residential + services |
| CRACOVIA | Kraków | 1965 | Adaptive reuse (planned) | Vacant (proposed cultural) |
| FORUM | Kraków | 1977 | None | Vacant |
| METROPOL | Warsaw | 1965 | Minor renovation | Hotel |
| MERKURY | Poznań | 1964 | Minor renovation | Hotel |
| SKANPOL | Kołobrzeg | 1967 | Minor renovation | Hotel |
| HELIOS | Toruń | 1972 | Minor renovation | Hotel |
| POLONEZ | Poznań | 1974 | Minor renovation | Student hotel |
| WIENIAWA | Wrocław | 1976 | Minor renovation | Hotel |
| IKAR | Poznań | 1982 | Minor renovation | Hotel |
| Workers’ hotel | Opole | 1970s | Adaptive reuse | Art center |
| Before Adaptive Reuse | After Adaptive Reuse | ||
|---|---|---|---|
| Assumptions | Wall type: Layer 1 thickness: Layer 2 thickness: Layer 1 material: Layer 2 material: Material 1 thermal conductivity: Material 2 thermal conductivity: | single-layer d = 0.24 m - aerated concrete from 1970s - λ = 0.18 W/(m·K) - | double-layer d1 = 0.24 m d2 = 0.18 m aerated concrete polystyrene λ1 = 0.8 W/(m·K) λ2 = 0.040 W/(m·K) |
| Calculations | Layer 1 thermal resistance [m2K/W]: | ||
| Layer 2 thermal resistance [m2K/W]: | - | ||
| Total thermal resistance [m2K/W] 1: | |||
| Total heat transfer coefficient [W/m2K]: |
| Before Adaptive Reuse | After Adaptive Reuse | ||
|---|---|---|---|
| Assumptions | Total heat transfer coefficient [W/m2K]: External wall area [m2]: | U1 = 0.67 A1 = 4660.98 | U2 = 0.17 A2 = 4891.35 |
| Calculations | Heat loss through all walls [W/K]: |
| Before Adaptive Reuse | After Adaptive Reuse | ||
|---|---|---|---|
| Assumptions | Window type: Total heat transfer coefficient [W/m2K]: External windows area [m2]: | Wooden windows U1 = 2.80 A1 = 1538.03 | PVC windows U2 = 0.90 A2 = 1519.7 |
| Calculations | Heat loss through all walls [W/K]: |
| V 1 [m3] | GWP 2 [kg × CO2e/m3] | CF 3 [kg CO2e] | ||
|---|---|---|---|---|
| 1. Newly designed reinforced concrete walls | Concrete | 50 | 208 | 10,400 |
| Steel | 0.64 | 3900 | 2500 | |
| 2. Newly designed walls made of silicate blocks | 94 | 210 | 19,740 | |
| 3. Newly designed walls made of ceramic blocks | 146 | 60 | 8760 | |
| 4. Thermal insulation | 880 | 44 | 38,720 | |
| Total CF: | 80,120 | |||
| V 1 [m3] | GWP 2 [kg × CO2e/m3] | CF 3 [kg CO2e] | ||
|---|---|---|---|---|
| A1. Demolition of existing reinforced concrete walls and ceilings | 5500 | 13.44 | 73,920 | |
| A2. Replacement of demolished reinforced concrete walls and ceilings with new ones | Concrete | 5500 | 208 | 1,144,000 |
| Steel | 70.5 | 3900 | 275,000 | |
| B1. Demolition of existing aerated concrete walls | 765 | 5.77 | 4414.05 | |
| B2. Replacement of demolished aerated concrete walls with new ones | 765 | 147 | 112,455 | |
| 1. Newly designed reinforced concrete walls | Concrete | 10,400 | 208 | 10,400 |
| Steel | 2500 | 3900 | 2500 | |
| 2. Newly designed walls made of silicate blocks | 94 | 19,740 | 19,740 | |
| 3. Newly designed walls made of ceramic blocks | 146 | 8760 | 8760 | |
| 4. Thermal insulation | 880 | 38,720 | 38,720 | |
| Total CF: | 1,689,909 | |||
| Recurring Issue | BRDA | STOBRAWA | CRACOVIA | Overall Relevance |
|---|---|---|---|---|
| Heritage protection constraints | Moderate | Minor | Major | Major challenge |
| Public perception of modernist heritage | Minor | Minor | Major | Moderate challenge |
| Loss/degradation of original interior elements | Moderate | Minor | Major | Moderate challenge |
| Potential for symbolic placemaking | High | Moderate | High | Major opportunity |
| Recurring Issue | BRDA | STOBRAWA | CRACOVIA | Overall Relevance |
|---|---|---|---|---|
| Raised ground floor/stepped entrance | Minor | Major | Major | Major challenge |
| Narrow structural module limiting maneuvering spaces | Moderate | Moderate | Major | Moderate |
| Narrow corridors and door widths | Moderate | Moderate | Major | Major challenge |
| Credit No. 1 | Credit Name 1 | Classification 2 | Supporting Comment |
|---|---|---|---|
| LTc1 | Sensitive Land Protection | + | The previously developed land is favorable. |
| LTc3 | Compact and Connected Development | + | With fewer vacant central plots available, centrally located hotels undergoing conversion or adaptation are more likely to achieve higher scores. |
| EAc3 | Enhanced Energy Efficiency | − | Ability to design buildings that minimize energy use is somewhat limited in existing structures. |
| EAc4 | Renewable Energy | − | Local energy sources require spatial and technical conditions that are often difficult to meet in existing buildings. |
| MRc1 | Building and Materials Reuse | + | The maximum score is attainable only in conversions of existing buildings. New constructions can earn only 2 of the 3 points, and only when material reuse is widely applied. |
| MRc2 | Reduce Embodied Carbon | + | Using the existing building fabric reduces construction work—and thus transport, production, and raw material extraction—helping lower carbon dioxide emissions. |
| MRc3 | Low-Emitting Materials | − | In the past, less attention was paid to material toxicity, so retaining old building elements may risk releasing harmful substances into the environment. |
| MRc4 | Building Product Selection and Procurement | − | The use of existing building fabric limits the choice of building materials, taking into account the emissions of volatile organic compounds by these products. |
| EQc1 | Enhanced Air Quality | − | The design and installation of a high-performance ventilation system is likely to be more complicated in adaptations and renovations of the existing rigid-structure hotels. |
| EQc2 | Occupant Experience | − | With pre-existing conditions, different-ranging difficulties might occur in relation to occupant well-being when introducing new functions to existing structures. |
| EQc3 | Accessibility and Inclusion | − | Some characteristic features of the analyzed hotels can create difficulties with easy access to the building. |
| EQc5 | Air Quality Testing and Monitoring | − | Using existing building fabric may lead to higher emissions of volatile organic compounds than in new buildings. |
| Problem Area | Baseline Condition (Pre-Adaptation) | Post-Adaptation Outcome | Direction of Change 1 |
|---|---|---|---|
| Operational Energy performance | High transmission losses due to uninsulated walls and outdated glazing | Significantly reduced transmission losses through added insulation and new windows | Improved |
| Material circularity | Materials partially deteriorated and of low-quality | Partial retention of structure and selected components | Partially achieved |
| Embodied carbon retention | High embodied carbon in structural elements | Major retention of load-bearing structure | Strongly improved |
| Heritage value retention, urban identity and placemaking | Architectural value present but underused and degraded | Certain formal and spatial features preserved and reactivated | Partially improved |
| Accessibility | Non-compliant with contemporary accessibility standards | Adaptation in line with investment capabilities | Improved |
| Spatial flexibility and adaptability | Rigid layout, limited ceiling heights, constrained circulation | Selective removal of partitions, compatible functions introduced | Partially improved |
| Design innovation | Limited by original construction logic | Constraints used as design drivers (transfer slabs, façade strategies) | Improved |
| Monitoring and evaluation | Construction prior to sustainability-related concerns | Increased potential for selected credits, limitations remain | Not applicable |
Disclaimer/Publisher’s Note: The statements, opinions and data contained in all publications are solely those of the individual author(s) and contributor(s) and not of MDPI and/or the editor(s). MDPI and/or the editor(s) disclaim responsibility for any injury to people or property resulting from any ideas, methods, instructions or products referred to in the content. |
© 2025 by the authors. Licensee MDPI, Basel, Switzerland. This article is an open access article distributed under the terms and conditions of the Creative Commons Attribution (CC BY) license.
Share and Cite
Duliński, W.; Taczalska-Ryniak, A.; Zawada-Pęgiel, K.; Bystroń, M. Architectural Sustainability Through Adaptive Reuse: Design Challenges and Opportunities in the Transformation of Mid-to-Late 20th Century Hotel Buildings in Poland. Sustainability 2026, 18, 119. https://doi.org/10.3390/su18010119
Duliński W, Taczalska-Ryniak A, Zawada-Pęgiel K, Bystroń M. Architectural Sustainability Through Adaptive Reuse: Design Challenges and Opportunities in the Transformation of Mid-to-Late 20th Century Hotel Buildings in Poland. Sustainability. 2026; 18(1):119. https://doi.org/10.3390/su18010119
Chicago/Turabian StyleDuliński, Wojciech, Anna Taczalska-Ryniak, Katarzyna Zawada-Pęgiel, and Marek Bystroń. 2026. "Architectural Sustainability Through Adaptive Reuse: Design Challenges and Opportunities in the Transformation of Mid-to-Late 20th Century Hotel Buildings in Poland" Sustainability 18, no. 1: 119. https://doi.org/10.3390/su18010119
APA StyleDuliński, W., Taczalska-Ryniak, A., Zawada-Pęgiel, K., & Bystroń, M. (2026). Architectural Sustainability Through Adaptive Reuse: Design Challenges and Opportunities in the Transformation of Mid-to-Late 20th Century Hotel Buildings in Poland. Sustainability, 18(1), 119. https://doi.org/10.3390/su18010119

