Impact of Roof Configurations on Indoor Condensation in High-Humidity Environments
Abstract
1. Introduction
1.1. Adverse Impacts of Moisture and Condensation on Indoor Environments
1.2. Causes of Condensation
1.3. Condensation Prevention Measures
1.4. Limitations of Passive Approaches in Condensation Prevention Research
2. Methods and Data
2.1. Condensation Verification Procedure
2.2. Simulation Scenario Parameters
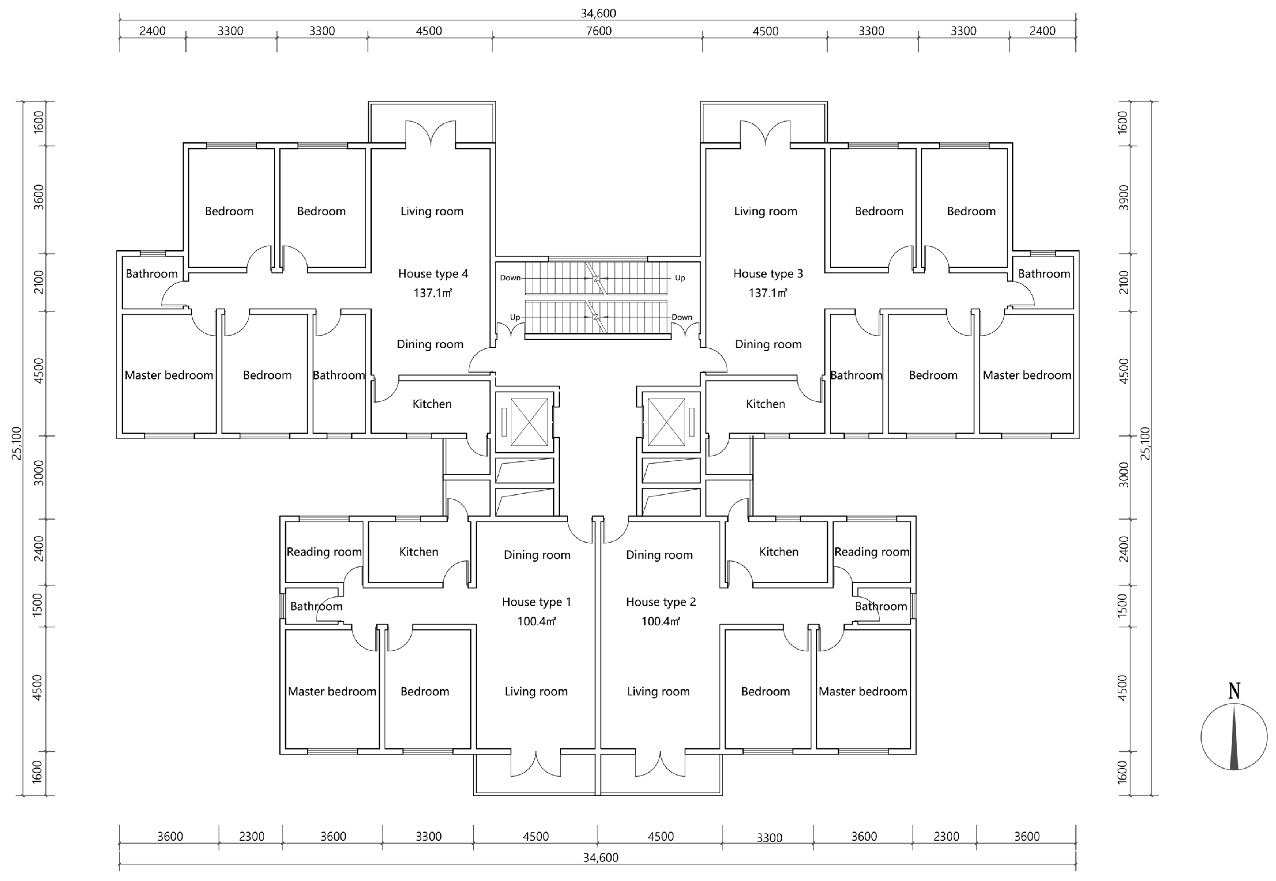
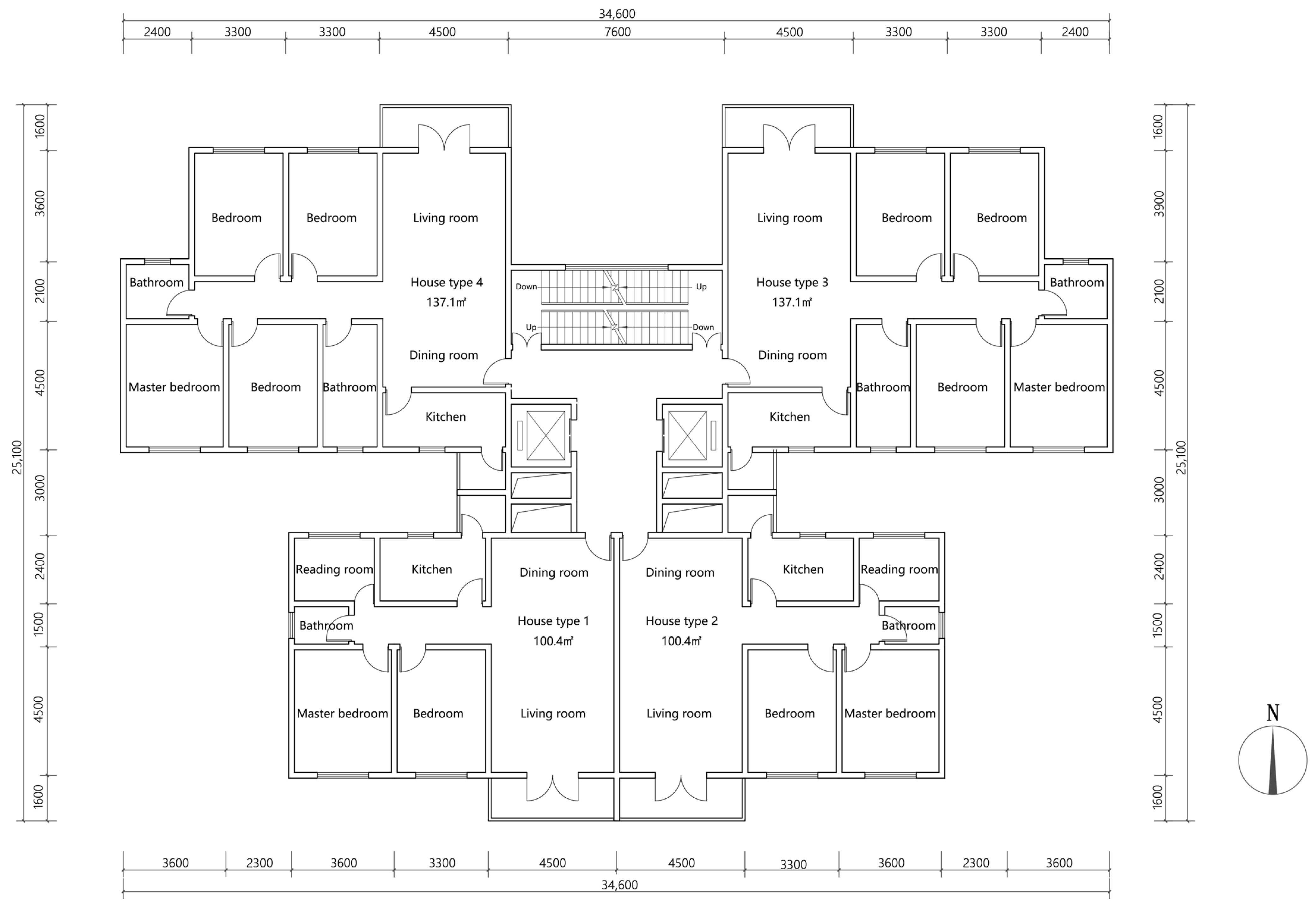
2.2.1. Base Building Model
2.2.2. Occupant Activity and Envelope Parameters
2.2.3. Roof Model
2.2.4. Plant Parameters
2.2.5. Meteorological Parameters
2.3. Software
3. Results
3.1. The Influence of Roof Form on Indoor Air Relative Humidity
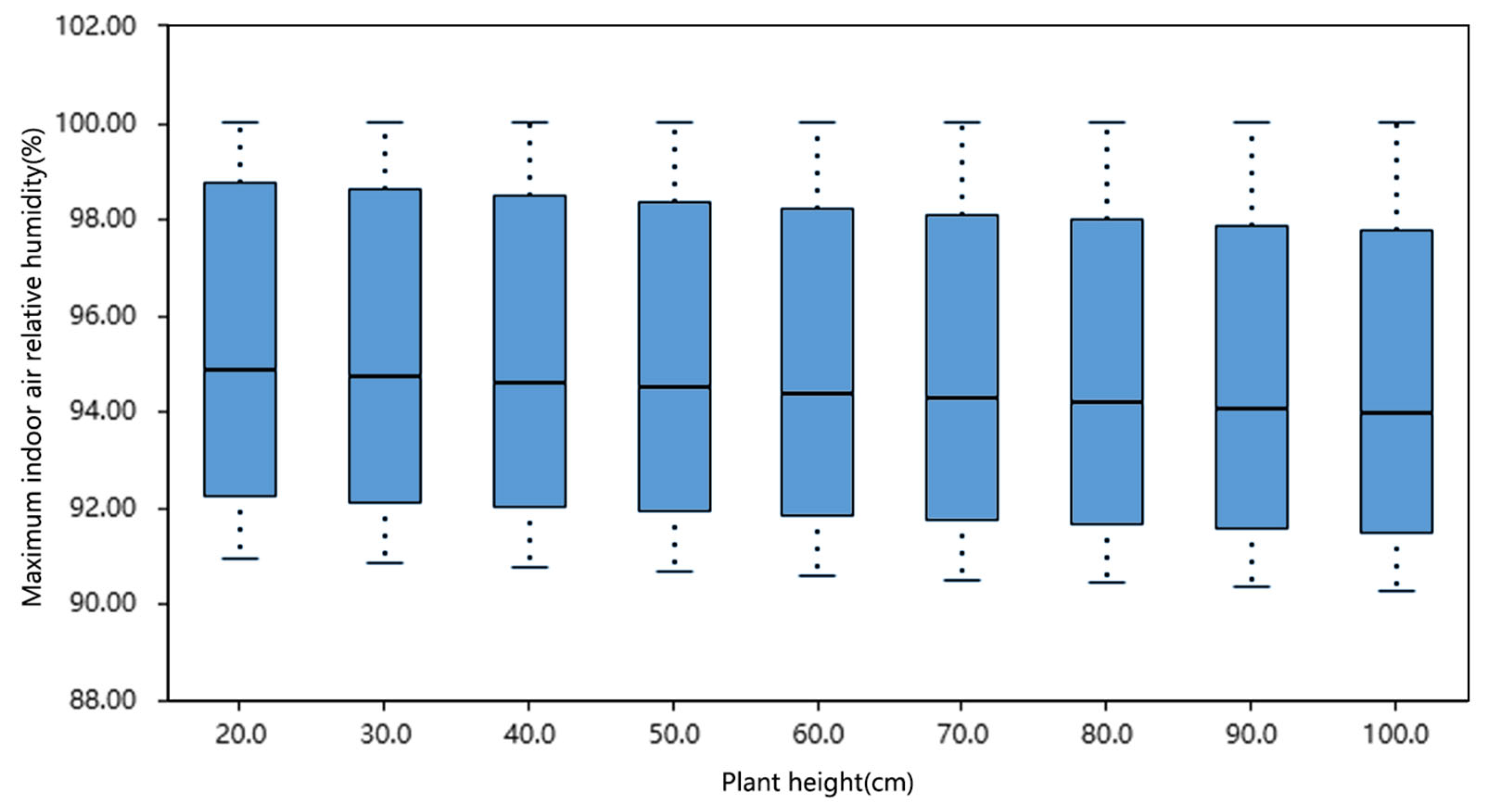
3.2. Influence of Plant Height on Indoor Relative Humidity
3.3. Influence of Soil Thickness on Indoor Relative Humidity
3.4. Influence of Plant Species on Indoor Relative Humidity
3.5. Element Analysis
4. Conclusions and Discussion
4.1. Significance of the Study
4.2. Limitations of the Study
- Due to software constraints, the maximum plant height allowed in the simulation was limited to 1 m. In reality, many tree species exceed this height, making it difficult to accurately assess the impact of taller vegetation on indoor environmental conditions. Although the leaf area index (LAI) exhibits similar limitations, the upper boundary for LAI in the simulation was set at 5. In practice, LAI typically ranges from 0.5 to 5.0 [48,70]. Moreover, the current findings indicate that a smaller LAI is beneficial for controlling indoor humidity. Therefore, the upper bound of LAI used in this study has only a limited impact on the overall results and conclusions.
- This study primarily relies on numerical simulations conducted using the HAMT model in EnergyPlus. To enhance the credibility of the results, we referred to multiple field studies conducted in different climatic contexts, which consistently corroborate the trends observed in our simulations [70,71,72,73,74]. This comparative approach demonstrates the reliability of the findings while also revealing the significant role of soil thickness and vegetation in regulating indoor temperature and humidity.
4.3. Discussion
Author Contributions
Funding
Institutional Review Board Statement
Informed Consent Statement
Data Availability Statement
Acknowledgments
Conflicts of Interest
References
- Wolkoff, P. Indoor Air Humidity, Air Quality, and Health—An Overview. Int. J. Hyg. Environ. Health 2018, 221, 376–390. [Google Scholar] [CrossRef] [PubMed]
- Desai, S.; Manapragada, N.V.S.K.; Shukla, A.K.; Pignatta, G. Mould-Growth Study in Building Materials Exposed to Warm and Humid Climate Using Heat and Mass Transfer (HAMT) EnergyPlus Simulation Method. Sustainability 2022, 14, 8292. [Google Scholar] [CrossRef]
- Arlian, L.G.; Neal, J.S.; Morgan, M.S.; Vyszenski-Moher, D.L.; Rapp, C.M.; Alexander, A.K. Reducing Relative Humidity Is a Practical Way to Control Dust Mites and Their Allergens in Homes in Temperate Climates. J. Allergy Clin. Immunol. 2001, 107, 99–104. [Google Scholar] [CrossRef]
- Bornehag, C.G.; Sundell, J.; Bonini, S.; Custovic, A.; Malmberg, P.; Skerfving, S.; Sigsgaard, T.; Verhoeff, A. Dampness in Buildings as a Risk Factor for Health Effects, EUROEXPO: A Multidisciplinary Review of the Literature (1998–2000) on Dampness and Mite Exposure in Buildings and Health effects. Indoor Air 2004, 14, 243–257. [Google Scholar] [CrossRef]
- Adan, O.C.; Samson, R.A. (Eds.) Fundamentals of Mold Growth in Indoor Environments and Strategies for Healthy Living; Wageningen Acadaemic Publishers: Wageningen, The Netherlands, 2011; pp. 245–266. [Google Scholar]
- You, S.; Li, W.; Ye, T.; Hu, F.; Zheng, W. Study on Moisture Condensation on the Interior Surface of Buildings in High Humidity Climate. Build. Environ. 2017, 125, 39–48. [Google Scholar] [CrossRef]
- Sulaiman, S.J.; Badran, A. Moisture and Condensation in Residential Buildings in a Relatively Dry Region. Int. J. Vent. 2010, 8, 313–324. [Google Scholar] [CrossRef]
- Craven, C.; Garber-Slaght, R. Exterior Insulation Envelope Retrofits in Cold Climates: Implications for Moisture Control. HVAC&R Res. 2014, 20, 384–394. [Google Scholar] [CrossRef]
- Lucas, F.; Adelard, L.; Garde, F.; Boyer, H. Study of Moisture in Buildings for Hot Humid Climates. Energy Build. 2002, 34, 345–355. [Google Scholar] [CrossRef]
- Guo, M.; Mai, G.; Gao, J.; Kong, S.; Huang, C. Characteristics of the Weather during “Huinantian” in Zhaoqing City in Spring. Guangdong Meteorol. 2013, 35, 27–31. [Google Scholar] [CrossRef]
- Li, Q.; Wu, Y.; Cao, C.; Chen, S.; Xu, W.; Gao, H. Discussion on Weather Forecasting for “Huinantian” in Shenzhen. J. Trop. Meteorol. 2014, 30, 971–976. [Google Scholar] [CrossRef]
- Zhang, D.; Wang, Y.; Feng, Y.; Fang, Y. Analysis and Forecast of the “Huinantian” Phenomenon in Guangdong. Meteorol. Sci. Technol. 2014, 42, 302–308. [Google Scholar] [CrossRef]
- Luo, X.; Gu, M.; Zhong, L.; Lin, Z. Analysis of the Causes of Typical “Huinantian” Phenomena in Guangxi in Recent Years. In Proceedings of the 2017 China-ASEAN Disaster Prevention and Mitigation and Sustainable Development Forum-Meteorology Session, Nanning, China, 13 September 2017; pp. 77–92. [Google Scholar]
- Chen, F.; Li, M.; Wu, W. Analysis of the Circulation Background of “Huinantian” Phenomenon in Late Winter and Early Spring of 2010—A Case Study of Huizhou City. Trop. Geogr. 2011, 31, 570–574+603. [Google Scholar] [CrossRef]
- Gu, M. Analysis of the Meteorological Factors During the “Huinantian” Weather in Nanning from February to April. Meteorol. Res. Appl. 2015, 36, 21–25+30. [Google Scholar] [CrossRef]
- Ding, Z.; Yu, X.; Ma, Z.; Wu, W.; Zhang, L.; Yu, D.Y.W.; Cheng, D.H.K. On-Site Measurement and Simulation Investigation on Condensation Dehumidification and Desiccant Dehumidification in Hong Kong. Energy Build. 2022, 254, 111560. [Google Scholar] [CrossRef]
- Li, J.; Calautit, J.; Jimenez-Bescos, C.; Song, W.; Riffat, S.; Chen, Q. Climate-Adaptive Windcatcher Natural Ventilation Integrated with Passive and Low-Energy Technologies: A Review of Current and Future Developments. Build. Environ. 2025, 284, 113436. [Google Scholar] [CrossRef]
- Galvin, R. Solving Mould and Condensation Problems: A Dehumidifier Trial in a Suburban House in Britain. Energy Build. 2010, 42, 2118–2123. [Google Scholar] [CrossRef]
- Aziz, A.A.; Sumiyoshi, D.; Akashi, Y. Low Cost Humidity Controlled Air-Conditioning System for Building Energy Savings in Tropical Climate. J. Build. Eng. 2017, 11, 9–16. [Google Scholar] [CrossRef]
- Chen, X.; Riffat, S.; Bai, H.; Zheng, X.; Reay, D. Recent Progress in Liquid Desiccant Dehumidification and Air-Conditioning: A Review. Energy Built Environ. 2020, 1, 106–130. [Google Scholar] [CrossRef]
- Chen, L.; Chen, S.H.; Liu, L.; Zhang, B. Experimental Investigation of Precooling Desiccant-Wheel Air-Conditioning System in a High-Temperature and High-Humidity Environment. Int. J. Refrig. 2018, 95, 83–92. [Google Scholar] [CrossRef]
- Tian, S.; Su, X.; Li, H.; Huang, Y. Using a Coupled Heat Pump Desiccant Wheel System to Improve Indoor Humidity Environment of nZEB in Shanghai: Analysis and Optimization. Build. Environ. 2021, 206, 108391. [Google Scholar] [CrossRef]
- Katejanekarn, T.; Kumar, S. Performance of a Solar-Regenerated Liquid Desiccant Ventilation Pre-Conditioning System. Energy Build. 2008, 40, 1252–1267. [Google Scholar] [CrossRef]
- Klõšeiko, P.; Arumägi, E.; Kalamees, T. Hygrothermal Performance of Internally Insulated Brick Wall in Cold Climate: A Case Study in a Historical School Building. J. Build. Phys. 2015, 38, 444–464. [Google Scholar] [CrossRef]
- Chae, Y.; Kim, S.H. Selection of Retrofit Measures for Reasonable Energy and Hygrothermal Performances of Modern Heritage Building under Dry Cold and Hot Humid Climate: A Case of Modern Heritage School in Korea. Case Stud. Therm. Eng. 2022, 36, 102243. [Google Scholar] [CrossRef]
- Richman, R.; Pressnail, K.D.; O’Malley, L.; Liebenow, N. The Reduced Gradient Approach (RGA): An Alternate Method to Optimizing Humidity Conditions in House Museums in Cold Climates. Int. J. Archit. Herit. 2010, 5, 48–59. [Google Scholar] [CrossRef]
- Janssens, A.; Hens, H. Interstitial Condensation Due to Air Leakage: A Sensitivity Analysis. J. Therm. Envel. Build. Sci. 2003, 27, 15–29. [Google Scholar] [CrossRef]
- Lee, J.H.; Yeo, M.S. Condensation Control to Cope with Occupancy Activity and Effectively Mitigate Condensation in Unheated Spaces by Real-Time Sensor Control Strategy. Sustainability 2020, 12, 4033. [Google Scholar] [CrossRef]
- Woo, D.-O.; Junghans, L. Framework for Model Predictive Control (MPC)-Based Surface Condensation Prevention for Thermo-Active Building Systems (TABS). Energy Build. 2020, 215, 109898. [Google Scholar] [CrossRef]
- Dorokhov, V.; Pintelin, N. Control of Temperature and Humidity Conditions of Church Buildings-Architectural Monuments as a Method of Preservation. IOP Conf. Ser. Mater. Sci. Eng. 2018, 463, 032076. [Google Scholar] [CrossRef]
- Seppänen, O.; Fisk, W.J. Some Quantitative Relations between Indoor Environmental Quality and Work Performance or Health. HVAC&R Res. 2006, 12, 957–973. [Google Scholar] [CrossRef]
- Korjenic, A.; Teblick, H.; Bednar, T. Increasing the Indoor Humidity Levels in Buildings with Ventilation Systems: Simulation Aided Design in Case of Passive Houses. Build. Simul. 2010, 3, 295–310. [Google Scholar] [CrossRef]
- Qin, M.; Hou, P.; Wu, Z.; Wang, J. Precise Humidity Control Materials for Autonomous Regulation of Indoor Moisture. Build. Environ. 2020, 169, 106581. [Google Scholar] [CrossRef]
- Jaffal, I.; Ouldboukhitine, S.-E.; Belarbi, R. A Comprehensive Study of the Impact of Green Roofs on Building Energy Performance. Renew. Energy 2012, 43, 157–164. [Google Scholar] [CrossRef]
- Jim, C.Y. Assessing Climate-Adaptation Effect of Extensive Tropical Green Roofs in Cities. Landsc. Urban Plan. 2015, 138, 54–70. [Google Scholar] [CrossRef]
- Jim, C.Y. Passive Warming of Indoor Space Induced by Tropical Green Roof in Winter. Energy 2014, 68, 272–282. [Google Scholar] [CrossRef]
- Wu, S. Study on the Thermal Environment of Residential Areas in Foshan City. New Archit. 2019, 183, 94–96. [Google Scholar] [CrossRef]
- GB 55038-2025; Residential Project Specifications. Ministry of Housing and Urban-Rural Development of the People’s Republic of China: Beijing, China, 2025.
- Wu, Z. Evaluation Method for Residential Ventilation Effectiveness. Master’s Thesis, Xi’an University of Architecture and Technology, Xi’an, China, 2009. [Google Scholar]
- GB 50176-2016; Thermal Design Code for Civil Building. China Architecture & Building Press: Beijing, China, 2016.
- GB 50009-2012; Load Code for the Design of Building Structures. China Architecture & Building Press: Beijing, China, 2012.
- Zheng, K.; Fang, Y.; Wei, R.; Liu, N. Survey and Analysis of Garden Roof Plants in Guangzhou Area. Mod. Hortic. 2021, 44, 170–171. [Google Scholar] [CrossRef]
- Wang, L. Suitability Evaluation of Four Types of Roof Greening Plants and Substrate Formulas in Guangzhou Area. Master’s Thesis, Gansu Agricultural University, Lanzhou, China, 2011. [Google Scholar]
- Feng, C. Energy Balance Study of Bermuda Grass Vegetative Roofs. Master’s Thesis, South China University of Technology, Guangzhou, China, 2011. [Google Scholar]
- Ke, F.; Weng, S.; Su, Z. Study on the Leaf Area Index Measurement Method of Urban Greenery Tree Species—A Case Study of Ficus Microcarpa. Fujian For. Sci. Technol. 2011, 38, 88–91+95. [Google Scholar] [CrossRef]
- Zhao, S.; He, Y. Energy Saving Study of Roof Plants in Wuhan. Build. Energy Effic. 2018, 46, 40–43+60. [Google Scholar] [CrossRef]
- Zhuang, D.; Kong, B.; Wang, X.; Sun, X. Study on the Leaf Area Index of Lawns and Ground Cover Plants. Shandong For. Sci. Technol. 2014, 44, 72–73. [Google Scholar] [CrossRef]
- Sailor, D.J. A Green Roof Model for Building Energy Simulation Programs. Energy Build. 2008, 40, 1466–1478. [Google Scholar] [CrossRef]
- Vera, S.; Pinto, C.; Tabares-Velasco, P.C.; Bustamante, W. A Critical Review of Heat and Mass Transfer in Vegetative Roof Models Used in Building Energy and Urban Environment Simulation Tools. Appl. Energy 2018, 232, 752–764. [Google Scholar] [CrossRef]
- Kämpf, J.H.; Robinson, D. A Simplified Thermal Model to Support Analysis of Urban Resource Flows. Energy Build. 2007, 39, 445–453. [Google Scholar] [CrossRef]
- Neymark, J.; Judkoff, R.; Knabe, G.; Le, H.-T.; Dürig, M.; Glass, A.; Zweifel, G. Applying the Building Energy Simulation Test (BESTEST) Diagnostic Method to Verification of Space Conditioning Equipment Models Used in Whole-Building Energy Simulation Programs. Energy Build. 2002, 34, 917–931. [Google Scholar] [CrossRef]
- Henninger, R.H.; Witte, M.J.; Crawley, D.B. Experience Testing EnergyPlus with the IEA HVAC BESTest E100-E200 Series. In Proceedings of the Eighth International IBPSA Conference, Eindhoven, The Netherlands, 11–14 August 2003. [Google Scholar]
- Crawley, D.B.; Hand, J.W.; Kummert, M.; Griffith, B.T. Contrasting the Capabilities of Building Energy Performance Simulation Programs. Build. Environ. 2008, 43, 661–673. [Google Scholar] [CrossRef]
- Qin, M.; Yang, J. Evaluation of Different Thermal Models in EnergyPlus for Calculating Moisture Effects on Building Energy Consumption in Different Climate Conditions. Build. Simul. 2016, 9, 15–25. [Google Scholar] [CrossRef]
- Flechas, G.M.; Salonvaara, M.; Tabares-Velasco, P.C. Validation and Moisture Content Sensitivity Analysis of Cross-Laminated Timber Wall Assemblies in EnergyPlus. J. Build. Eng. 2025, 108, 112852. [Google Scholar] [CrossRef]
- Tuller, M.; Or, D.; Dudley, L.M. Adsorption and Capillary Condensation in Porous Media: Liquid Retention and Interfacial Configurations in Angular Pores. Water Resour. Res. 1999, 35, 1949–1964. [Google Scholar] [CrossRef]
- Chen, C.; Arthur, E.; Zhou, H.; Wang, X.; Shang, J.; Hu, K.; Ren, T. A New Model for Soil Water Vapor Sorption Isotherms Considering Adsorption and Condensation. Soil Sci. Soc. Am. J. 2021, 85, 195–206. [Google Scholar] [CrossRef]
- Tokunaga, T.K. Hydraulic Properties of Adsorbed Water Films in Unsaturated Porous Media. Water Resour. Res. 2009, 45, 2009WR007734. [Google Scholar] [CrossRef]
- Amer, A.M. Soil Moisture Adsorption Capacity and Specific Surface Area in Relation to Water Vapor Pressure in Arid and Tropical Soils. Eurasian J. Soil Sci. (EJSS) 2019, 8, 289–297. [Google Scholar] [CrossRef]
- Zhang, Q.; Wang, H.; Wang, Z.; Xie, H.; Chen, T.; Guan, S. Experimental Study of Water Vapor Adsorption on Bare Soil and Gravel Surfaces in an Arid Region of Ningxia, China. Water 2024, 16, 984. [Google Scholar] [CrossRef]
- Ochsner, T.E.; Horton, R.; Ren, T. A New Perspective on Soil Thermal Properties. Soil Sci. Soc. Am. J. 2001, 65, 1641–1647. [Google Scholar] [CrossRef]
- Monteith, J.; Unsworth, M. Principles of Environmental Physics: Plants, Animals, and the Atmosphere, 4th ed.; Academic Press: Oxford, UK, 2013; pp. 179–198. [Google Scholar]
- Chen, H.; Wei, Y.; Huang, J.J. Widespread Increase in Plant Transpiration Driven by Global Greening. Glob. Planet. Change 2024, 235, 104395. [Google Scholar] [CrossRef]
- Baldocchi, D.; Meyers, T. On Using Eco-Physiological, Micrometeorological and Biogeochemical Theory to Evaluate Carbon Dioxide, Water Vapor and Trace Gas Fluxes over Vegetation: A Perspective. Agric. For. Meteorol. 1998, 90, 1–25. [Google Scholar] [CrossRef]
- Xu, Z.; Man, X.; Cai, T.; Shang, Y. How Potential Evapotranspiration Regulates the Response of Canopy Transpiration to Soil Moisture and Leaf Area Index of the Boreal Larch Forest in China. Forests 2022, 13, 571. [Google Scholar] [CrossRef]
- Jin, Z.; You, Q.; Zuo, Z.; Li, M.; Sun, G.; Pepin, N.; Wang, L. Weakening Amplification of Grassland Greening to Transpiration Fraction of Evapotranspiration over the Tibetan Plateau during 2001-2020. Agric. For. Meteorol. 2023, 341, 109661. [Google Scholar] [CrossRef]
- Getter, K.L.; Rowe, D.B. The Role of Extensive Green Roofs in Sustainable Development. HortScience 2006, 41, 1276–1285. [Google Scholar] [CrossRef]
- Körner, O.; Challa, H. Process-Based Humidity Control Regime for Greenhouse Crops. Comput. Electron. Agric. 2003, 39, 173–192. [Google Scholar] [CrossRef]
- Wu, S.; Mo, W. Study on the Mechanism of Indoor Condensation Influenced by Residential Room Parameters. Build. Energy Effic. 2023, 51, 87–95. [Google Scholar] [CrossRef]
- Voyde, E.; Fassman, E.; Simcock, R. Hydrology of an Extensive Living Roof under Sub-Tropical Climate Conditions in Auckland, New Zealand. J. Hydrol. 2010, 394, 384–395. [Google Scholar] [CrossRef]
- Teemusk, A.; Mander, Ü. Greenroof Potential to Reduce Temperature Fluctuations of a Roof Membrane: A Case Study from Estonia. Build. Environ. 2009, 44, 643–650. [Google Scholar] [CrossRef]
- Peng, L.; Jim, C. Green-Roof Effects on Neighborhood Microclimate and Human Thermal Sensation. Energies 2013, 6, 598–618. [Google Scholar] [CrossRef]
- Peng, M.; Yang, Z. Cooling and Humidity Enhancement Effects of Green Roofs on Outdoor Microclimate. J. Civ. Environ. Eng. 2019, 41, 165–173. [Google Scholar] [CrossRef]
- Lazzarin, R.M.; Castellotti, F.; Busato, F. Experimental Measurements and Numerical Modelling of a Green Roof. Energy Build. 2005, 37, 1260–1267. [Google Scholar] [CrossRef]
- Moody, S.S.; Sailor, D.J. Development and Application of a Building Energy Performance Metric for Green Roof Systems. Energy Build. 2013, 60, 262–269. [Google Scholar] [CrossRef]
- Costanzo, V.; Evola, G.; Marletta, L. Energy Savings in Buildings or UHI Mitigation? Comparison between Green Roofs and Cool Roofs. Energy Build. 2016, 114, 247–255. [Google Scholar] [CrossRef]
- Taleghani, M.; Tenpierik, M.; van den Dobbelsteen, A.; Sailor, D.J. Heat Mitigation Strategies in Winter and Summer: Field Measurements in Temperate Climates. Build. Environ. 2014, 81, 309–319. [Google Scholar] [CrossRef]
- Theodosiou, T.G. Summer Period Analysis of the Performance of a Planted Roof as a Passive Cooling Technique. Energy Build. 2003, 35, 909–917. [Google Scholar] [CrossRef]
- Lin, B.-S.; Yu, C.-C.; Su, A.-T.; Lin, Y.-J. Impact of Climatic Conditions on the Thermal Effectiveness of an Extensive Green Roof. Build. Environ. 2013, 67, 26–33. [Google Scholar] [CrossRef]
- Zeng, C.; Bai, X.; Sun, L.; Zhang, Y.; Yuan, Y. Optimal Parameters of Green Roofs in Representative Cities of Four Climate Zones in China: A Simulation Study. Energy Build. 2017, 150, 118–131. [Google Scholar] [CrossRef]
- William, R.; Goodwell, A.; Richardson, M.; Le, P.V.V.; Kumar, P.; Stillwell, A.S. An environmental cost-benefit analysis of alternative green roofing strategies. Ecol. Eng. 2016, 95, 1–9. [Google Scholar] [CrossRef]
- Shafique, M.; Xue, X.; Luo, X. An overview of carbon sequestration of green roofs in urban areas. Urban For. Urban Green. 2020, 47, 126515. [Google Scholar] [CrossRef]
- Saadatian, O.; Sopian, K.; Salleh, E.; Lim, C.H.; Riffat, S.; Saadatian, E.; Toudeshki, A.; Sulaiman, M.Y. A review of energy aspects of green roofs. Renew. Sustain. Energy Rev. 2013, 23, 155–168. [Google Scholar] [CrossRef]










| Number | Dimensions | Function | Layout |
|---|---|---|---|
| Room 1 | ![]() | Single Bedroom, Kitchen | ![]() |
| Room 2 | ![]() | Bedroom, Study Room | ![]() |
| Room 3 | ![]() | Master Bedroom, Bedroom | ![]() |
| Room 4 | ![]() | Master Bedroom | ![]() |
| Room 5 | ![]() | Master Bedroom, Living Room | ![]() |
| Room 6 | ![]() | Living Room | ![]() |
| Room 7 | ![]() | Living Room | ![]() |
| Room 8 | ![]() | Living Room, Living and Dining Area | ![]() |
| Time | Activity |
|---|---|
| 6:30–8:00 | Cooking/Breakfast |
| 8:00–11:00 | Indoor Activities |
| 11:00–13:00 | Cooking/Lunch |
| 13:00–14:30 | Afternoon Rest |
| 14:30–17:30 | Indoor Activities |
| 17:30–19:30 | Cooking/Dinner |
| 19:30–21:00 | Indoor Activities |
| 21:00–22:00 | Bathing |
| 22:00–6:30 | Sleeping |
| Room Function | Appliance Power (W) | Lighting Power (W) | Occupant Count (Persons) | Air Change Rate (ACH) |
|---|---|---|---|---|
| Living Room | 160 | 45 | 2 | 10 |
| Bedroom | 160 | 45 | 2 | 10 |
| Kitchen | 850 | 30 | 1 | 10 |
| Bathroom | 20 | 10 | 1 | 10 |
| Component | Material Name (Out-to-In/Top-to-Bottom) | Thickness (mm) | Density (kg/m3) | Specific Heat [J/(kg·K)] | Thermal Conductivity [W/(m·K)] |
|---|---|---|---|---|---|
| Exterior Wall | Paint | 20 | 1858 | 837 | 0.6918 |
| Cement mortar | 20 | 1858 | 837 | 0.6918 | |
| Aerated concrete block | 200 | 700 | 1050 | 0.18 | |
| Mortar | 20 | 1858 | 837 | 0.6918 | |
| Interior Wall | Paint | 20 | 1858 | 837 | 0.6918 |
| ALC panel (Autoclaved aerated concrete) | 100 | 500 | 1130 | 0.13 | |
| Paint | 20 | 1858 | 837 | 0.6918 | |
| Ground Floor | Ceramic tile | 10 | 2300 | 840 | 1.3 |
| Cement mortar | 35 | 1858 | 837 | 0.6918 | |
| Concrete | 100 | 2243 | 837 | 1.7296 | |
| Compacted soil | - | ||||
| Floor Slab | Ceramic tile | 10 | 2300 | 840 | 1.3 |
| Cement mortar | 35 | 1858 | 837 | 0.6918 | |
| Reinforced concrete | 100 | 2243 | 837 | 1.7296 | |
| Cement mortar | 20 | 1858 | 837 | 0.6918 | |
| Mortar | 20 | 1858 | 837 | 0.6918 | |
| Doors/Windows | Aluminum single-glazing | 6 | 2500 | 840 | 0.76 |
| Layer Position | Material Name (Outer to Inner) | Thickness (mm) | Density (kg/m3) | Specific Heat [J/(kg·K)] | Thermal Conductivity [W/(m·K)] | |
|---|---|---|---|---|---|---|
| Conventional Roof Assembly | Cement mortar | 25 | 1858 | 837 | 0.6918 | |
| Fine aggregate concrete | 40 | 2243 | 837 | 1.7296 | ||
| XPS board (Extruded Polystyrene insulation) | 30 | 800 | 1090 | 0.16 | ||
| Cement mortar | 20 | 1858 | 837 | 0.6918 | ||
| Cement mortar | 20 | 1858 | 837 | 0.6918 | ||
| Masonry mortar | 20 | 1858 | 837 | 0.6918 | ||
| Thicken the roof | Cement mortar | 25 | 1858 | 837 | 0.6918 | |
| Fine aggregate concrete | 40 | 2243 | 837 | 1.7296 | ||
| XPS board (Extruded polystyrene insulation) | 30 | 800 | 1090 | 0.16 | ||
| Cement mortar | 20 | 1858 | 837 | 0.6918 | ||
| Reinforced concrete | 200 | 2243 | 837 | 1.7296 | ||
| Cement mortar | 20 | 1858 | 837 | 0.6918 | ||
| Masonry mortar | 20 | 1858 | 837 | 0.6918 | ||
| Green the roof | Growing substrate | Inorganic growing medium | 700 | 1100 | 1200 | 0.35 |
| Filter layer | Non-woven geotextile | 2 | — | — | — | |
| water retention layer | Drainage composite board | 1 | — | — | — | |
| Protection layer | Fine aggregate concrete | 40 | 2243 | 837 | 1.7296 | |
| Separation layer | Polyethylene membrane | 0.4 | — | — | — | |
| Root barrier | Polymer-modified asphalt waterproofing membrane | 4 | 900 | 1600 | 0.23 | |
| Leveling layer | Cement mortar | 20 | 1858 | 837 | 0.6918 | |
| Slope formation layer | Lightweight aggregate concrete (LAC) | 30 | 1280 | 840 | 0.53 | |
| Reinforced concrete roof deck | Reinforced concrete | 200 | 2243 | 837 | 1.7296 | |
| Category | (a) Standard Roof | (b) Thickened Roof | (c) Green Roof |
|---|---|---|---|
| General Structural Schematic Diagram | ![]() | ![]() | ![]() |
| Category | Scientific Name | Family | Biological Characteristics | Leaf Emissivity (%) | Plant Height(m) | Leaf Area Index (LAI) | Leaf Reflectance (%) | Minimum Stomatal Resistance (s/m) |
|---|---|---|---|---|---|---|---|---|
| Arbor | Ficus microcarpa | Moraceae | Light-loving, moderately salt-tolerant | 0.92 | 1 | 2.2 | 0.08 | 150 |
| Magnolia grandiflora | Magnoliaceae | Prefers warm, humid climates | 0.92 | 1 | 3.15 | 0.08 | 150 | |
| Shrub | Hibiscus mutabilis | Malvaceae | Light-demanding, thrives in acidic, fertile soil | 0.92 | 1 | 1.85 | 0.08 | 150 |
| Rosa chinensis | Rosaceae | Prefers warm, sunny, well-ventilated environments | 0.92 | 1 | 2.41 | 0.08 | 150 | |
| Ground Cover | Hemerocallis fulva | Liliaceae | Neutral, light-preferred, shade-tolerant. Hardy, cold/drought-resistant | 0.92 | 1 | 5 | 0.08 | 150 |
| Zoysia matrella | Poaceae | Light-preferred with shade tolerance, highly adaptable | 0.92 | 0.2 | 5 | 0.08 | 150 | |
| Sedum lineare | Crassulaceae | Soil-indifferent, drought/cold/heat-resistant | 0.83 | 0.1 | 2.9 | 0.17 | 150 |
| Model | Computational Principle | Performance in ASHRAE 140/BESTEST Tests | Advantages | Limitations | References |
|---|---|---|---|---|---|
| CTF (Conduction Transfer Function) | Frequency-domain conduction functions; heat transfer only. | Heating load results highly consistent with reference solutions; reliable for heat transfer. | Fast; minimal parameters; widely used in EnergyPlus. | Ignores moisture migration; cannot simulate condensation. | [51,52,53] |
| EMPD (Effective Moisture Penetration Depth) | Semi-empirical moisture model with effective depth. | Reasonable for heat loads; less accurate for long-term moisture storage/release. | Captures some humidity effects with low computational demand. | Strongly parameter-dependent; deviations in dynamic humidity. | [49,54] |
| HAMT (Heat and Moisture Transfer) | Finite-difference, coupled heat–moisture diffusion. | Best agreement with measurements; superior to CTF and EMPD. | Accurate heat–moisture coupling; suitable for condensation/humidity risk analysis. | Requires extensive parameters; high computational cost; timestep-sensitive. | [50,53,54,55] |
| Plant Height (cm) | 20 | 30 | 40 | 50 | 60 | 70 | 80 | 90 | 100 |
|---|---|---|---|---|---|---|---|---|---|
| Maximum indoor air relative humidity (%) | 97.7155 | 97.5715 | 97.442 | 97.3204 | 97.2039 | 97.0907 | 96.9802 | 96.8735 | 96.7719 |
| Maximum Indoor Air Relative Humidity (%) | Correlation Coefficient | p-Value | Sample Size |
|---|---|---|---|
| Plant height (cm) | −0.071 | 0.467 | 108 |
| Soil Thickness/cm | Maximum Indoor Air Relative Humidity/% (Exemplified by Master Bedrooms in 30-Story Apartment, Unit Type 2) |
|---|---|
| 15 | 100 |
| 20 | 100 |
| 25 | 98.6612 |
| 30 | 97.3204 |
| 35 | 96.121 |
| 40 | 95.0267 |
| 45 | 93.9598 |
| 50 | 93.2015 |
| 55 | 92.4392 |
| 60 | 91.7599 |
| 65 | 91.184 |
| 70 | 90.6736 |
| Maximum Indoor Air Relative Humidity (%) | Correlation Coefficient | p-Value | Sample Size |
|---|---|---|---|
| Plant height (cm) | −0.987 ** | 0.000 | 108 |
| Category | Scientific Name | Soil Depth (cm) | Max Indoor RH (%) 1 | Category (h) | Min Soil Depth (cm) | Max Indoor RH (%) 1 | Category (h) |
|---|---|---|---|---|---|---|---|
| Arbor | Ficus microcarpa | 70 | 90.10 | 0 | 60 | 91.15 | 0 |
| Magnolia grandiflora | 70 | 90.17 | 0 | 60 | 91.22 | 0 | |
| Shrub | Hibiscus mutabilis | 70 | 90.08 | 0 | 30 | 96.67 | 11 |
| Rosa chinensis | 70 | 90.12 | 0 | 30 | 96.67 | 11 | |
| Ground Cover | Hemerocallis fulva | 70 | 90.26 | 0 | 15 | 100.00 | 47 |
| Zoysia matrella | 70 | 90.94 | 0 | 15 | 100.00 | 55 | |
| Sedum lineare | 70 | 90.81 | 0 | 15 | 100.00 | 53 |
| Average | Standard Deviation (SD) | Maximum Indoor Air Relative Humidity (%) | Plant Species | Leaf Emissivity (%) | Leaf Area Index (LAI) | Leaf Reflectance (%) | Plant Height (cm) | Soil Thickness (cm) | |
|---|---|---|---|---|---|---|---|---|---|
| Maximum indoor air relative humidity (%) | 94.778 | 3.368 | 1 | ||||||
| Plant species | 6.661 | 1.168 | 0.164 | 1 | |||||
| Leaf emissivity (%) | 0.919 | 0.011 | −0.024 | 0.623 ** | 1 | ||||
| Leaf area index (LAI) | 4.799 | 0.696 | 0.180 * | 0.877 ** | 0.351 ** | 1 | |||
| Leaf reflectance (%) | 0.081 | 0.011 | 0.024 | −0.623 ** | −1.000 ** | −0.351 ** | 1 | ||
| Plant height (cm) | 62.419 | 28.324 | −0.136 | −0.083 | 0.238 ** | −0.231 ** | −0.238 ** | 1 | |
| Soil thickness (cm) | 43.387 | 18.174 | −0.988 ** | −0.170 | 0.006 | −0.176 | −0.006 | 0.065 | 1 |
| Model Type | R2 | Residual Sum of Squares (RSS) | Number of Parameters |
|---|---|---|---|
| Logarithmic Model | 0.967 | 46.362 | 2 |
| Exponential Model | 0.978 | 30.250 | 2 |
| Cubic Polynomial Model | 0.989 | 15.550 | 4 |
| Exponential Decay Model | 0.978 | 30.250 | 2 |
| Quadratic Polynomial Model | 0.986 | 18.915 | 3 |
| Linear Regression | 0.975 | 34.230 | 1 |
| R2 | Adjusted R2 | Standard Error (SE) | AIC | BIC | Effective Sample Size |
|---|---|---|---|---|---|
| 0.986 | 0.986 | 0.395 | 124.735 | 133.196 | 124 |
| Sum of Squares (SS) | Degrees of Freedom (df) | Mean Square (MS) | F | p | |
|---|---|---|---|---|---|
| Regression | 1376.002 | 2 | 688.001 | 4401.214 | 0.000 ** |
| Residual | 18.915 | 121 | 0.156 | ||
| Total | 1394.917 | 123 |
| Roof Type | Condensation Reduction Benefit (h) | Cost (¥/m2) | Runoff Reduction | Carbon Reduction Benefits | Energy Savings | SDGs Goals | |
|---|---|---|---|---|---|---|---|
| Standard Roof | None | 350–450 | None | None | Low | SDGs 3 Health | ★ |
| SDG 6 Water | ★ | ||||||
| SDG 7 Energy | ★ | ||||||
| SDG 11 Sustainable Cities | ★★ | ||||||
| SDG 13 Climate Action | ★ | ||||||
| Thickened Roof | 47–61 | 500–600 | Low (limited effect) | Limited (mainly through insulation) | Moderate (≈5–15%) | SDGs 3 Health | ★★ |
| SDG 6 Water | ★★ | ||||||
| SDG 7 Energy | ★★ | ||||||
| SDG 11 Sustainable Cities | ★★~★★★ | ||||||
| SDG 13 Climate Action | ★★ | ||||||
| Green Roof | 249–287 | 800–1200 (depending on soil/vegetation depth) | High (up to 70–100% reduction) | 2–5 kg C/m2·yr | 2–35% (compared to standard roof) | SDGs 3 Health | ★★★ |
| SDG 6 Water | ★★★ | ||||||
| SDG 7 Energy | ★★~★★★ | ||||||
| SDG 11 Sustainable Cities | ★★★ | ||||||
| SDG 13 Climate Action | ★★★ | ||||||
Disclaimer/Publisher’s Note: The statements, opinions and data contained in all publications are solely those of the individual author(s) and contributor(s) and not of MDPI and/or the editor(s). MDPI and/or the editor(s) disclaim responsibility for any injury to people or property resulting from any ideas, methods, instructions or products referred to in the content. |
© 2025 by the authors. Licensee MDPI, Basel, Switzerland. This article is an open access article distributed under the terms and conditions of the Creative Commons Attribution (CC BY) license (https://creativecommons.org/licenses/by/4.0/).
Share and Cite
Wu, S.; Xu, K.; Mo, W.; Sun, B.; Wang, B. Impact of Roof Configurations on Indoor Condensation in High-Humidity Environments. Sustainability 2025, 17, 9112. https://doi.org/10.3390/su17209112
Wu S, Xu K, Mo W, Sun B, Wang B. Impact of Roof Configurations on Indoor Condensation in High-Humidity Environments. Sustainability. 2025; 17(20):9112. https://doi.org/10.3390/su17209112
Chicago/Turabian StyleWu, Shanglin, Ke Xu, Wei Mo, Bingjie Sun, and Bing Wang. 2025. "Impact of Roof Configurations on Indoor Condensation in High-Humidity Environments" Sustainability 17, no. 20: 9112. https://doi.org/10.3390/su17209112
APA StyleWu, S., Xu, K., Mo, W., Sun, B., & Wang, B. (2025). Impact of Roof Configurations on Indoor Condensation in High-Humidity Environments. Sustainability, 17(20), 9112. https://doi.org/10.3390/su17209112




















