Green Cores as Architectural and Environmental Anchors: A Performance-Based Framework for Residential Refurbishment in Novi Sad, Serbia
Abstract
1. Introduction
2. Literature Review
3. Methodology
Workflow Steps
- 1.
- Inquiry for researchThe study begins with an inquiry into the potential of integrating vegetated green cores within compact residential apartments. This step frames the scope of research, identifies performance objectives and defines the parameters for intervention.
- 2.
- Formulation of design and record-trackingBaseline documentation and spatial diagnosis are conducted using Building Information Modeling (BIM) and Computer-Aided Design (CAD). Diagnostic simulations such as solar path analysis, daylight factor (DF) mapping and airflow studies quantify the environmental limitations of the pre-intervention model. This baseline dataset forms the empirical control against which subsequent modifications are compared [17].
- 3.
- Case study
- Architectural reconfiguration and green core integrationThe apartment is spatially reconfigured to embed a vegetated green core. The core functions as an infrastructural anchor, redistributing circulation flows while enhancing daylight access, ventilation and programmatic clarity. Parametric design tools are used to evaluate different positions and configurations of the green core [18].
- Environmental systems embeddingControlled-environment systems—including PAR-calibrated LED lighting, automated irrigation and microclimate control devices—are embedded within the architectural fabric. IoT-enabled monitoring provides real-time feedback for adaptive regulation of light, moisture and airflow, ensuring the ecological viability of the green core [19].
- Performance analysisFollowing the architectural and infrastructural reconfiguration, environmental performance is evaluated using simulation-driven workflows. Daylight analysis is conducted through Radiance-based engines and EnergyPlus dynamic simulations. Plant viability is cross-referenced with photosynthetically active radiation (PAR) thresholds to ensure both pre- and post-intervention models, allowing an understanding of the impact. The multi-metric approach positions the interventions within a quantifiable environmental framework.
- 4.
- Comparative evaluation and validationThe final step involves a systematic comparison between baseline and post-intervention scenarios. Quantitative metrics such as improvements in DF, reductions in peak indoor temperatures and increased ACH are complemented by qualitative architectural criteria including spatial efficiency, programmatic legibility and experiential quality. Validation extends to ecological performance with assessments of plant growth, water use efficiency and other cooling potential. Where possible, results are benchmarked against sustainability standards (e.g., WELL Building Standard, LEED) to situate findings within broader architectural discourse. This comparative evaluation confirms whether the integration of a green core within a compact apartment can generate both measurable environmental benefits and architectural value, supporting the generalizability of the methodology for wider urban housing applications [20].
- 5.
- Discussion of resultsThe findings are contextualized through visualization outputs (e.g., heatmaps of daylight performance) and qualitative analysis of spatial legibility and user experience. This step highlights both the environmental and architectural implications of the green core intervention.
- 6.
- Assessment and generalizationThe methodology concludes by assessing the broader applicability of the findings. The generalization stage evaluates how lessons from the study can inform wider strategies for embedding green infrastructural systems in compact urban housing, situating the outcomes within broader sustainable design discourse.

4. Results
4.1. Case Study and Pre-Intervention Assessment
4.2. Architectural Reconfiguration and Green Core Design
- Daylight axis analysis to determine solar-rich internal zones;
- Wall-to-floor ratio constraints to ensure buildability and spatial coherence;
- Circulation mapping to minimize redundant corridor space.
4.3. Environmental Systems Embedding
4.4. Environmental Simulation and Performance Analysis
4.5. Comparative Performance Evaluation
- The functional viability of the green core as an environmental system;
- The added value of architectural intervention versus technological add-on;
- The scalability and reproducibility of the strategy for similar typologies.
5. Discussion and Generalization with Broader Implications
5.1. Typological Adaptability
5.2. Climatic and Environmental Transferability
5.3. Socio-Cultural Generalization
5.4. Urban- and Block-Scale Implications
5.5. Temporal and Policy Dimensions
6. Conclusions
Author Contributions
Funding
Institutional Review Board Statement
Informed Consent Statement
Data Availability Statement
Conflicts of Interest
Abbreviations
| ACH | Air Changes per Hour |
| BIM | Building Information Modeling |
| CAD | Computer-Aided Design |
| CEA | Controlled Environment Agriculture |
| DF | Daylight Factor |
| IWBI | International WELL Building Institute |
| PAR | Photosynthetically Active Radiation |
References
- Kellert, S.R.; Heerwagen, J.; Mador, M. Biophilic Design: The Theory, Science and Practice of Bringing Buildings to Life; Wiley: Hoboken, NJ, USA, 2008. [Google Scholar]
- International WELL Building Institute (IWBI). WELL Building Standard v2 IWBI; IWBI: New York, NY, USA, 2020. [Google Scholar]
- Lee, S.; Kim, Y. A framework of biophilic urbanism for improving climate change adaptability in urban environments. Urban For. Urban Green. 2021, 61, 127104. [Google Scholar] [CrossRef]
- Nitu, M.A.; Gocer, O.; Wijesooriya, N.; Vijapur, D.; Candido, C. A Biophilic Design Approach for Improved Energy Performance in Retrofitting Residential Projects. Sustainability 2022, 14, 3776. [Google Scholar] [CrossRef]
- Khan, A.Z.; Allacker, K. Architecture and Sustainability: Critical Perspectives for Integrated Design: Generating Sustainability Concepts from Architectural Perspectives; Acco: Leuven, Belgium, 2015. [Google Scholar]
- Assimakopoulos, M.-N.; De Masi, R.F.; de Rossi, F.; Papadaki, D.; Ruggiero, S. Green Wall Design Approach Towards Energy Performance and Indoor Comfort Improvement: A Case Study in Athens. Sustainability 2020, 12, 3772. [Google Scholar] [CrossRef]
- Yang, Y.; Hu, K.; Liu, Y.; Wang, Z.; Dong, K.; Lv, P.; Shi, X. Optimisation of Building Green Performances Using Vertical Greening Systems: A Case Study in Changzhou, China. Sustainability 2023, 15, 4494. [Google Scholar] [CrossRef]
- Massa, G.D.; Kim, H.H.; Wheeler, R.M.; Mitchell, C.A. Plant Productivity in Response to LED Lighting. HortScience 2008, 43, 1951–1956. [Google Scholar] [CrossRef]
- Pennisi, G.; Blasioli, S.; Cellini, A.; Maia, L.; Crepaldi, A.; Braschi, I.; Spinelli, F.; Nicola, S.; Fernandez, J.A.; Stanghellini, C.; et al. Unraveling the role of red:Blue LED lights on resource use efficiency and nutritional properties of indoor grown sweet basil. Front. Plant Sci. 2019, 10, 305. [Google Scholar] [CrossRef]
- Thomaier, S.; Specht, K.; Henckel, D.; Dierich, A.; Siebert, R.; Freisinger, U.B.; Sawicka, M. Farming in and on urban buildings: Present practice and specific novelties of Zero-Acreage Farming (ZFarming). Renew. Agric. Food Syst. 2015, 30, 43–54. [Google Scholar] [CrossRef]
- Mitchell, C.A. History of Controlled Environment Horticulture: Indoor Farming and Its Key Technologies. HortScience 2022, 57, 247–256. [Google Scholar] [CrossRef]
- Kozai, T.; Niu, G.; Takagaki, M. Plant Factory: An Indoor Vertical Farming System for Efficient Quality Food Production; Academic Press: Cambridge, UK, 2015; Available online: https://books.google.com/books?id=z-C7DwAAQBAJ (accessed on 21 March 2025).
- Barles, S. Society, energy and materials: The contribution of urban metabolism studies to sustainable urban development issues. J. Environ. Plan. Manag. 2010, 53, 439–455. [Google Scholar] [CrossRef]
- Xue, Y.; Liu, W. A Study on Parametric Design Method for Optimization of Daylight in Commercial Building’s Atrium in Cold Regions. Sustainability 2022, 14, 7667. [Google Scholar] [CrossRef]
- Zheng, L.; He, H.; Song, W. Application of Light-emitting Diodes and the Effect of Light Quality on Horticultural Crops: A Review. HortScience 2019, 54, 1656–1661. [Google Scholar] [CrossRef]
- Reinhart, C. Urban building energy modeling—A review of a nascent field. Build. Environ. 2016, 97, 196–202. [Google Scholar] [CrossRef]
- Vafaie, F.; Remøy, H.; Gruis, V. Adaptive reuse of heritage buildings; a systematic literature review of success factors. Habitat Int. 2023, 142, 102926. [Google Scholar] [CrossRef]
- Lisboa, Y.; Santos, L.; Lobato, E.; Fonseca, W.; Silva, K.; Rodrigues, I.; Silva, M. Design and Implementation of a Sustainable IoT Embedded System for Monitoring Temperature and Humidity in Photovoltaic Power Plants in the Amazon. Sustainability 2025, 17, 2347. [Google Scholar] [CrossRef]
- Kim, S.-C.; Hong, P.; Lee, T.; Lee, A.; Park, S.-H. Determining Strategic Priorities for Smart City Development: Case Studies of South Korean and International Smart Cities. Sustainability 2022, 14, 10001. [Google Scholar] [CrossRef]
- Alrajhi, A.A.; Alsahli, A.S.; Alhelal, I.M.; Rihan, H.Z.; Fuller, M.P.; Alsadon, A.A.; Ibrahim, A.A. The Effect of LED Light Spectra on the Growth, Yield and Nutritional Value of Red and Green Lettuce (Lactuca sativa). Plants 2023, 12, 463. [Google Scholar] [CrossRef]
- Mohamed, S.J.; Rihan, H.Z.; Aljafer, N.; Fuller, M.P. The Impact of Light Spectrum and Intensity on the Growth, Physiology, and Antioxidant Activity of Lettuce (Lactuca sativa L.). Plants 2021, 10, 2162. [Google Scholar] [CrossRef]
- Wey, L.T.; Bombelli, P.; Chen, X.; Lawrence, J.M.; Rabideau, C.M.; Rowden, S.J.L.; Zhang, J.Z.; Howe, C.J. The Development of Biophotovoltaic Systems for Power Generation and Biological Analysis. ChemElectroChem 2019, 6, 5375. [Google Scholar] [CrossRef]
- Hoang, A.T.; Hoang, A.T.; Nižetić, S.; Papadopoulos, A.M.; Le, A.T.; Kumar, S.; Hadiyanto, H.; Pham, V.V. Microbial fuel cells for bioelectricity production from waste as sustainable prospect of future energy sector. Chemosphere 2022, 287, 132285. [Google Scholar] [CrossRef] [PubMed]
- EN 17037; Daylight in Buildings. European Committee for Standardization (CEN): Brussels, Belgium, 2018.
- Shao, G.; Li, F.; Tang, L. Multidisciplinary perspectives on sustainable development. Int. J. Sustain. Dev. World Ecol. 2011, 18, 187–189. [Google Scholar] [CrossRef]
- Nguyen, C.N.; Muttil, N.; Tariq, M.A.U.R.; Ng, A.W.M. Quantifying the Benefits and Ecosystem Services Provided by Green Roofs—A Review. Water 2022, 14, 68. [Google Scholar] [CrossRef]
- Bosco Verticale (Vertical Forest) by Boeri Studio. Available online: https://visuall.net/2011/10/12/bosco-verticale-vertical-forest-by-stefano-boeri-architetti/ (accessed on 27 August 2025).
- Bringslimark, T.; Hartig, T.; Patil, G.G. The psychological benefits of indoor plants: A critical review of the experimental literature. J. Environ. Psychol. 2009, 29, 422–433. [Google Scholar] [CrossRef]
- Wong, N.H.; Tan, A.Y.K.; Chen, Y.; Sekar, K.; Tan, P.Y.; Chan, D.; Chiang, K.; Wong, N.C. Thermal Evaluation of Vertical Greenery Systems for Building Walls. Build. Environ. 2010, 45, 663–672. [Google Scholar] [CrossRef]
- Semeraro, T.; Scarano, A.; Buccolieri, R.; Santino, A.; Aarrevaara, E. Planning of Urban Green Spaces: An Ecological Perspective on Human Benefits. Land 2021, 10, 105. [Google Scholar] [CrossRef]









| Block Image | Building Image |
|---|---|
![]() | ![]() |
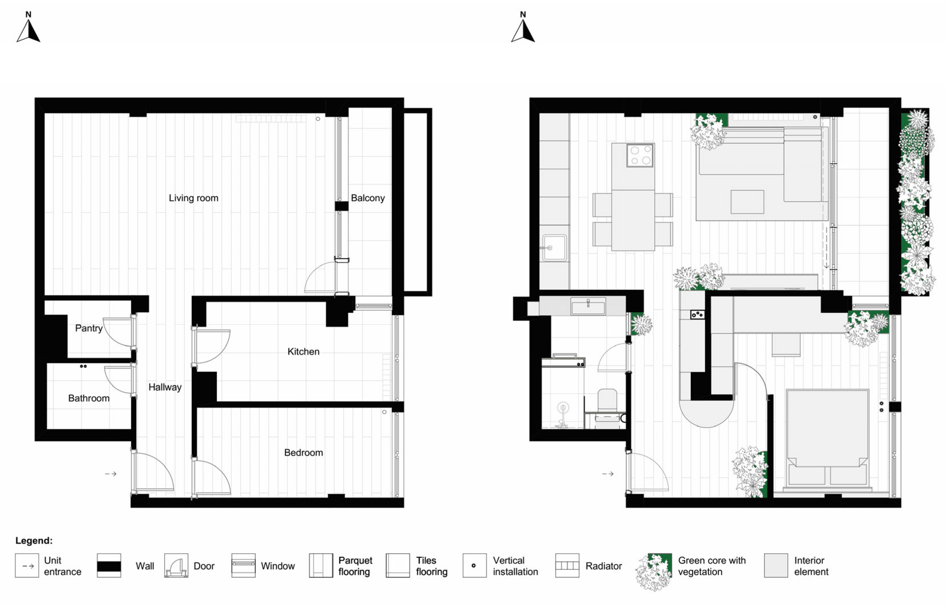
| Pre Apartment Image | Post Apartment Image |
|---|---|
![]() | ![]() |
| Green Core Function | Terrace | Living Room | Dining Room | Kitchen | Bedroom | Corridor | Bathroom |
|---|---|---|---|---|---|---|---|
| Visual privacy buffer | • | ◦ | ◦ | ◦ | • | • | • |
| Sound absorption (acoustic buffer) | • | • | ◦ | ◦ | • | ◦ | ◦ |
| Solar shading (passive cooling) | • | • | ◦ | ◦ | • | ◦ | ◦ |
| Thermal buffering (draft reduction) | ◦ | • | ◦ | ◦ | • | ◦ | • |
| Natural ventilation enhancer | • | • | • | ◦ | • | • | |
| Indoor air quality (oxygenation) | ◦ | • | • | • | • | • | • |
| Spatial softening (Experimental zone shift) | • | • | • | ◦ | • | • | • |
| Circulation transition node | • | • | • | ◦ | • | ||
| Microclimate for desk/work zone | • | ||||||
| Humidity regulation (Passive moisture) | ◦ | ◦ | • | • | • | • | |
| Seasonal adaptation element (deciduous effect) | • | • | ◦ | ◦ | • | ||
| Fragrance/sensory interface | • | • | • | • | • | • | • |
| First impression/psychological anchor | • |
| Design Parameter | General Rationale | Architectural Function |
|---|---|---|
| Wall-to-Floor Ratio (≤0.85) | Lower ratios minimize envelope surface relative to usable area, reducing heat loss, material use and construction costs. | Ensures spatial compactness, energy efficiency and formal clarity of the plan. |
| Circulation Area (≤10% GFA) | Excessive circulation decreases net-to-gross efficiency and adds thermal bridging. Reduction improves energy and spatial performance. | Maximizes functional program area while transforming circulation into multifunctional space. |
| Daylight Path Alignment | Orienting the main spatial axis properly according to the sun movement reduces artificial lighting and enhances circadian rhythm support. | Integrates passive lighting into spatial organization and strengthens orientation within the plan. |
| Core or Central Zone Dimensioning | The spatial anchor allows flexibility for social, environmental and other functions. | Establishes a central infrastructural volume which organizes adjacencies, anchors the layout and enhances environmental mediation. |
| Adjacency to Multiple Zones (≥3) | Multi-zonal adjacency increases cross-utilization of shared resources (light, ventilation, etc.). | Creates a spatial node that ties private, semi-private and public zones into a coherent whole. |
| Ceiling height (≥2.6) | Increased vertical dimension enhances daylight penetration, air stratification and perceived spaciousness. | Supports bioclimatic performance (thermal buoyancy, air exchange) and enriches spatial hierarchy. |
| Window-to-Wall Ratio (20–40%) | Optimized WWR reduces artificial lighting demand while limiting heat gain/loss, as proven by daylight and energy simulations. | Balances visual comfort, energy efficiency and façade articulation. |
| Full-Height Openings to Exterior | Maximizes solar penetration, supports stack and cross-ventilation. | Extends interior programs into outdoor zones, transforming balconies into climatic and social extensions of the dwelling. |
| Transparent or Semi-Transparent Partitions | Internal glazing or permeable divisions redistribute daylight, promote air movement and maintain acoustic separation. | Enhances spatial depth, allows shared light in secondary spaces and supports flexible adaptation over time. |
| Daylight Access for all Rooms | Reducing artificial lighting and creation of healthier environment. | Ensures even marginal spaces contribute to overall sustainability, reducing reliance on mechanical systems. |
| Multifunctional circulation | Embedding additional program eliminates dead space and reduces embodied energy by avoiding additional furniture. | Converts circulation into multifunctional infrastructure, reinforcing compactness. |
| Vertical Envelope Exposure | Vertical exposure by increasing room volume without footprint expansion, improving air stratification and natural convection. | Enhances spatial perception, air quality and adaptive potential for future retrofits. |
| Category | Architect 1 Pre/Post | Architect 2 Pre/Post | Architect 3 Pre/Post | Architect 4 Pre/Post | Architect 5 Pre/Post |
|---|---|---|---|---|---|
| Esthetic value | 6/9 (+3) | 7/10 (+3) | 6/8 (+2) | 7/9 (+2) | 8/9 (+1) |
| Sustainability | 3/9 (+6) | 2/9 (+8) | 5/10 (+5) | 5/9 (+4) | 4/8 (+4) |
| Economic feasibility | 5/4 (−1) | 6/4 (−2) | 5/5 (0) | 7/4 (−3) | 6/3 (−3) |
| Structural quality | 6/7 (+1) | 7/9 (+2) | 7/8 (+1) | 7/7 (0) | 5/7 (+2) |
| Contemporaneity | 6/10 (+4) | 6/9 (+3) | 5/8 (+3) | 5/10 (+5) | 4/10 (+6) |
| Overall impression | 7/10 (+3) | 6/10 (+4) | 7/9 (+2) | 7/10 (+3) | 5/10 (+5) |
| Condition (Pre-Intervention) | Simulation Evidence and Environmental Impact | Architectural Intervention Strategy | Expected Performance Outcome |
|---|---|---|---|
| Daylight factor (DF) < 2% in living/dining/bedroom zones | Radiance analysis < 2 DF, insufficient daylight, reliance on artificial lighting | Reorient partitions and place glazed openings | DF increase to 2–5% reduced lighting energy demand |
| DF = 0 in hallway/bathroom/pantry | Simulation confirms 0% daylight penetration | Introducing glass doors and translucent partitions to diffuse light | Artificial lighting reduced by 30% in mentioned zones |
| Annual illuminance < 1000 lux in more than 30% of unit | Climate-based daylight simulation showed < 1000 lux threshold across large areas | Open cross-visibility corridors and compact unit reorganization | More than 70% floor area achieves target illuminance |
| Direct sunlight exposure at terrace glazing | Overexposure zones in Radiance indicate glare and overheating risk | Full height openings for more light penetration and green core as thermal buffer | Reduced glare risk, optimized daylight autonomy, indoor temperature reduction in peak hours |
| Thermal losses near perimeter walls in winter | Simulation shows surface temperature < 16 °C | Introducing layer wall and semi-enclosed buffer zones | Increased mean radiant temperature with improved comfort |
| Air Change Rate (ACH) < 0.3 in enclosed rooms | CFD shows stagnant zones with <0.3 ACH | Open floorplan organization | Improved indoor air quality, 0.5–0.8 ACH achieved |
| Functional space efficiency < 0.65 (usable vs. gross) | Spatial efficiency index below optimal benchmark | Create multifunctional spaces such as storage along corridor and multiuse partitions | Efficiency (>0.75) and comfort increase |
| Visual privacy compromised from one space to another | Room simulation showing positive direct visibility and light penetration | Introducing green cores on the threshold | Maintains daylight while resolving privacy conflict |
| Excessive daylight contrast (>3:1 ratio between adjacent zones) | Daylight maps reveal high luminance contrast | Opening floorplan to form more compact organization and positioning semi-transparent partitions | Balanced illuminance across zones, reduced eye strain (enhanced comfort) |
| Poor acoustic absorption in hard-surfaced rooms | Acoustic simulation shows reverberation times (>0.8 s) | Implementation of layered cores and partition cavities | Improved acoustic comfort |
| Low environmental satisfaction (WELL v2 indicators < 50% | Post-occupancy baseline scores low | Adaptive zoning + transparency strategies | WELL comfort indicators raised toward 70% |
Disclaimer/Publisher’s Note: The statements, opinions and data contained in all publications are solely those of the individual author(s) and contributor(s) and not of MDPI and/or the editor(s). MDPI and/or the editor(s) disclaim responsibility for any injury to people or property resulting from any ideas, methods, instructions or products referred to in the content. |
© 2025 by the authors. Licensee MDPI, Basel, Switzerland. This article is an open access article distributed under the terms and conditions of the Creative Commons Attribution (CC BY) license (https://creativecommons.org/licenses/by/4.0/).
Share and Cite
Mihajlovic, M.; Atanackovic Jelicic, J.; Rapaic, M. Green Cores as Architectural and Environmental Anchors: A Performance-Based Framework for Residential Refurbishment in Novi Sad, Serbia. Sustainability 2025, 17, 8864. https://doi.org/10.3390/su17198864
Mihajlovic M, Atanackovic Jelicic J, Rapaic M. Green Cores as Architectural and Environmental Anchors: A Performance-Based Framework for Residential Refurbishment in Novi Sad, Serbia. Sustainability. 2025; 17(19):8864. https://doi.org/10.3390/su17198864
Chicago/Turabian StyleMihajlovic, Marko, Jelena Atanackovic Jelicic, and Milan Rapaic. 2025. "Green Cores as Architectural and Environmental Anchors: A Performance-Based Framework for Residential Refurbishment in Novi Sad, Serbia" Sustainability 17, no. 19: 8864. https://doi.org/10.3390/su17198864
APA StyleMihajlovic, M., Atanackovic Jelicic, J., & Rapaic, M. (2025). Green Cores as Architectural and Environmental Anchors: A Performance-Based Framework for Residential Refurbishment in Novi Sad, Serbia. Sustainability, 17(19), 8864. https://doi.org/10.3390/su17198864





