Structural Design and Analysis of a Super-High Building in Nanjing, China
Abstract
:1. Introduction
2. Project Profile and Design Analysis Process
2.1. Project Profile
2.2. Design Analysis Process
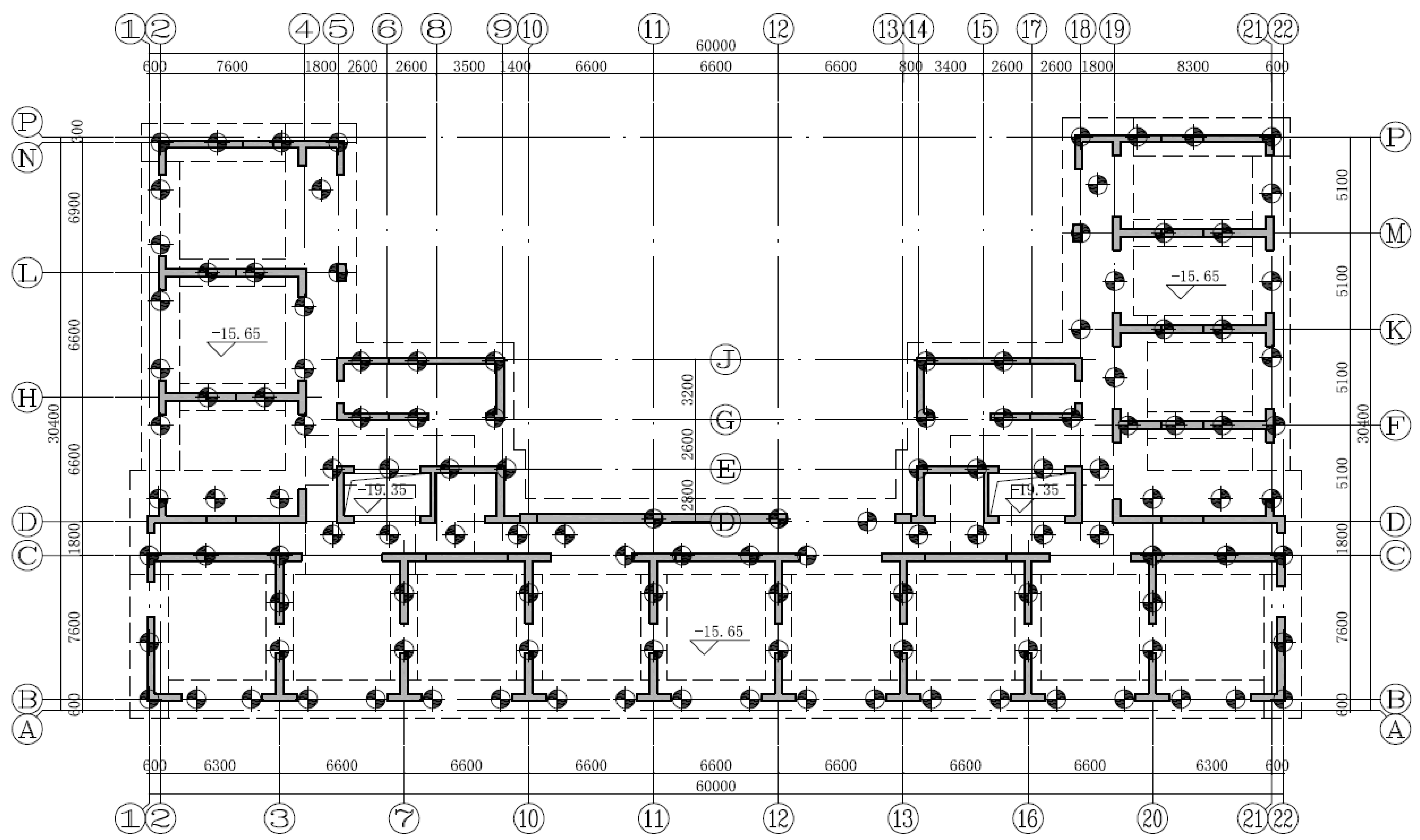
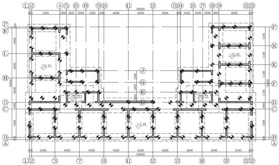
3. Foundation Design Analysis
4. Main Structure Analysis
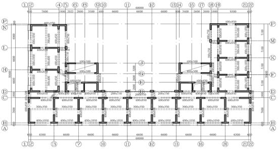
4.1. Underground Structure
4.2. Aboveground Structure
4.3. Structural Overrun Analysis
5. Analysis of Frequent Earthquakes
5.1. Calculation Software and Model Based on the Mode-Superposition Response Spectrum Method
5.2. Analysis of the Calculation Results Based on the Vibration Mode Decomposition Response Spectrum Method
5.2.1. Mass of the Structure
5.2.2. Vibration Mode and Period
5.2.3. Displacement under Earthquake Action
5.2.4. Shear-Weight Ratio and Shear-Bearing Capacity of the Floor
5.2.5. Interlayer Stiffness and Stiffness-to-Gravity Ratio
5.3. Elastic Time-History Analysis under Frequent Earthquake Action
6. Performance-Based Design of the Structure
6.1. Performance Design Objective
6.2. Performance-Based Design Method
6.2.1. Examination of Equivalent Elasticity of the Component
6.2.2. Elastoplastic Analysis Method and Evaluation Criterion
- (1)
- Constitutive relationship of the materials used in structures
- (2)
- Component model
- (3)
- Overall model
- (4)
- Damping model
- (5)
- Seismic motion acceleration time history
6.3. Analysis under Fortified Earthquake Conditions Based on Performance Objectives
6.4. Dynamic Elastoplastic Analysis under Rare Earthquake Action Based on Performance Objectives
7. Discussion
8. Conclusions
Author Contributions
Funding
Institutional Review Board Statement
Informed Consent Statement
Data Availability Statement
Conflicts of Interest
References
- Choi, Y.; Hajyalikhani, P.; Chao, S.H. Seismic performance of innovative reinforced concrete coupling beam-double-beam coupling beam. ACI Struct. J. 2018, 115, 113–125. [Google Scholar]
- Almasabha, G.; Tarawneh, A.; Saleh, E.; Alajarmeh, O. Data-driven flexural stiffness model of FRP-reinforced concrete slender columns. J. Compos. Constr. 2022, 26, 04022024. [Google Scholar] [CrossRef]
- GB 50011-2010; Code for Seismic Design of Buildings. China Construction Industry Press: Beijing, China, 2010.
- JGJ 3-2010; Technical Regulations for Concrete Structures of High-rise Buildings. China Construction Industry Press: Beijing, China, 2011.
- GB50068-2018; Uniform Standard for Structural Reliability Design of Buildings. China Construction Industry Press: Beijing, China, 2018.
- Cao, X.Y.; Feng, D.C.; Beer, M. Consistent seismic hazard and fragility analysis considering combined capacity-demand uncertainties via probability density evolution method. Struct. Saf. 2023, 103, 102330. [Google Scholar] [CrossRef]
- Almasabha, G.; Chao, S.H. A new reinforcing configuration for achieving high-ductility and high-strength rectangular squat structural walls. ACI Struct. J. 2023, 120, 253–268. [Google Scholar]
- Technical Points for a Special Review of Seismic Protection of Super-High-Rise Building Projects: Building Quality [2015]; No. 67; Ministry of Housing and Urban-Rural Development of the People’s Republic of China: Beijing, China, 2015.
- Buitrago, M.; Calderón, P.A.; Moragues, J.J.; Alvarado, Y.A.; Adam, J.M. Load limiters on temporary shoring structures: Tests on a full-scale building structure under construction. J. Struct. Eng. 2021, 147, 04020345. [Google Scholar] [CrossRef]
- Su, J. Rules for Review of Seismic Provisions of Housing Construction Projects in Jiangsu Province, 2nd ed.; No. 302; China Construction Industry Press: Beijing, China, 2016. [Google Scholar]
- Cao, X.-Y.; Shen, D.; Feng, D.-C.; Wang, C.-L.; Qu, Z.; Wu, G. Seismic retrofitting of existing frame buildings through externally attached sub-structures: State of the art review and future perspectives. J. Build. Eng. 2022, 57, 104904. [Google Scholar] [CrossRef]
- De-La-Colina, J.; Valdes-Gonzalez, J. Forced-vibration tests of a reinforced concrete four-story building structure. J. Struct. Eng. 2021, 147, 04721004. [Google Scholar] [CrossRef]
- Wang, L.P.; Luo, W.W.; Liu, S.W.; Zhang, W.; Jiang, L.; Yang, S. Experimental study on the force mechanism and seismic performance of RC beam-column nodes considering the beam axial restraint effect. Eng. Mech. 2020, 37, 10. [Google Scholar] [CrossRef]
- Takagi, J.; Wada, A. High-performance seismic-resistant structures for advanced cities and societies. Engineering 2019, 5, 9–21. [Google Scholar] [CrossRef]
- Li, S.; Slomski, E.M.; Melz, T. Numerical uncertainty analysis of active and passive structures in the structural design phase. Procedia Eng. 2017, 199, 1240–1245. [Google Scholar] [CrossRef]
- Lin, P.-C.; Tsai, K.-C.; Wu, A.-C.; Chuang, M.-C.; Li, C.-H.; Wang, K.-J. Seismic design and experiment of single and coupled corner gusset connections in a full-scale two-story buckling-restrained braced frame. Earthq. Eng. Struct. Dyn. 2015, 44, 2177–2198. [Google Scholar] [CrossRef]
- Hu, S.Y.; Luo, J. Uncertainty quantification for structural optimal design based on evidence theory. J. Shanghai Jiaotong Univ. 2015, 20, 338–343. [Google Scholar] [CrossRef]
- Liu, J.F. Analysis of the causes of typical torsional irregularities and improvement measures. Build. Struct. 2020, S01, 7. [Google Scholar]
- Zand, J.P.; Sabouri, J.; Katebi, J.; Nouri, M. A new time-domain robust anti-windup PID control scheme for vibration suppression of building structure. Eng. Struct. 2021, 244, 112819. [Google Scholar] [CrossRef]
- GB 50010-2020; Code for Design of Concrete Structures. China Construction Industry Press: Beijing, China, 2020.
- Luo, K.H.; Bao, H.E.; Zuo, Q. Analysis of RC frame structures’ seismic design and control factors under different fortification intensities. J. Build. Struct. 2021, 42, 128–136. [Google Scholar]
- Buitrago, M.; Bertolesi, E.; Sagaseta, J.; Calderón, P.A.; Adam, J.M. Robustness of RC building structures with infill masonry walls: Tests on a purpose-built structure. Eng. Struct. 2021, 226, 111384. [Google Scholar] [CrossRef]













| Operating Condition | Anti-Overturning Moment Mr (kN.m) | Overturning Moment Mov (kN.m) | Ratio Mr/Mov | Zero Stress Zone (%) |
|---|---|---|---|---|
| EX | 2.20 × 107 | 1.19 × 106 | 18.56 | 0.00 |
| EY | 8.59 × 106 | 1.19 × 106 | 7.23 | 0.00 |
| WX | 2.32 × 107 | 4.29 × 105 | 54.08 | 0.00 |
| WY | 9.03 × 106 | 8.72 × 105 | 10.35 | 0.00 |
| Structural Type | Shear Wall Structure | The Number of Vibration Modes in the Present Calculation | 21 |
|---|---|---|---|
| Periodic reduction coefficient | 0.90 | Whether the accidental eccentricity is considered in torsional irregularity? | Yes |
| Damping ratio of the structure under frequent earthquakes | 0.05 | Live load in wall column design | Deduction |
| Whether the bidirectional seismic action is considered? | Yes | Whether P-∆ effect is considered? | No |
| Live load transferred to the foundation | Deduction | Whether vertical earthquake action is considered? | No |
| Seismic grade of the shear wall (the framework) | Class 1 |
| Vibration Mode | SATWE | MIDAS | SATWE/ MIDAS | Notes | |||
|---|---|---|---|---|---|---|---|
| Period | Torsion Coefficient | Period | Torsion Coefficient | ||||
| 1 | 2.88 | 0.03 | 2.76 | 0.03 | 1.05 | Y-axis translation | |
| 2 | 2.62 | 0.21 | 2.53 | 0.12 | 1.04 | X-axis translation | |
| 3 | 2.17 | 0.76 | 2.05 | 0.84 | 1.06 | Torsion | |
| 4 | 0.91 | 0.04 | 0.85 | 0.04 | 1.07 | Y-axis translation | |
| 5 | 0.81 | 0.03 | 0.77 | 0.00 | 1.05 | X-axis translation | |
| 6 | 0.76 | 0.93 | 0.69 | 0.93 | 1.09 | Torsion | |
| 7 | 0.47 | 0.06 | 0.44 | 0.09 | 1.07 | Y-axis translation | |
| 8 | 0.42 | 0.63 | 0.39 | 0.22 | 1.07 | Torsion (X-axis translation) | |
| 9 | 0.40 | 0.31 | 0.36 | 0.60 | 1.10 | X-axis translation (torsion) | |
| 10 | 0.30 | 0.08 | 0.28 | 0.13 | 1.08 | Y-axis translation | |
| Tt/T1 | 0.75 | 0.74 | <0.90 | ||||
| T2/T1 | 0.83 | 0.81 | <0.90 | ||||
| Effective mass participation coefficient | X-direction | 96.01% | 95.82% | ≥90% | |||
| Y-direction | 95.73% | 95.55% | |||||
| Time-History Curve | The Shear Force of the Bottom along the X-Direction (kN) | The Shear Force of the Bottom along the Y-Direction (kN) | ||||
|---|---|---|---|---|---|---|
| Using Time-History Analysis | Using the Response Spectrum Method | Ratio | Using Time-History Analysis | Using the Response Spectrum Method | Ratio | |
| RH2 | 10,370.44 | 10,953.65 | 0.95 | 12,728.47 | 11,369.68 | 1.12 |
| TH108 | 13,575.91 | 1.24 | 10,377.76 | 0.91 | ||
| TH4 | 8551.01 | 0.78 | 10,008.82 | 0.88 | ||
| Mean | 10,832.45 | 0.99 | 11,038.35 | 0.97 | ||
| Level of Earthquake Motion | Vertical Components in the Bottom Reinforcement Region | Vertical Components in the Transition Layer | Other Vertical Components | Energy-Dissipating Components | Possibility of Continuing Using | Calculation Method |
|---|---|---|---|---|---|---|
| Fortified earthquake | Minor damage | Minor damage | Minor damage | Overall slight damage and partly moderate damage | Can continue to use after general repair | Equivalent elasticity |
| Rare earthquake | Minor damage | Moderate damage to some components | Moderate damage to some components | Overall moderate damage and partly severe damage | Can continue to use after repair or strengthening | Elastoplasiticity |
| Parameter | Elastic Design for Medium Earthquake | Unyielding Design for Medium Earthquake | |
|---|---|---|---|
| Analysis condition | Medium earthquake influence coefficient α | 0.23 | 0.23 |
| Seismic array internal force adjustment coefficient | 1.00 | 1.00 | |
| Partial safety factor for action | Same as the elastic analysis under frequent earthquake action | 1.00 | |
| Partial safety factor for the material | Same as the elastic analysis under frequent earthquake action | 1.00 | |
| Seismic bearing capacity adjustment coefficient | Same as the elastic analysis under frequent earthquake action | 1.00 | |
| Material strength | Using the design value | Using the standard value | |
| Calculation method | Elastic calculation | Elastic calculation | |
| Damping ratio | 0.06 | 0.06 | |
| Beam stiffness deduction coefficient | 0.40 | 0.40 | |
| Working Condition | Main Direction | Type | Maximum Top Displacement | Maximum Interlayer Displacement Angle | Number of Layers Corresponding to the Maximum Displacement Angle |
|---|---|---|---|---|---|
| RH2-x | The main direction along X-axis | Elastoplasticity | 0.26 | 1/422 | 28 |
| TH109-x | The main direction along X-axis | Elastoplasticity | 0.32 | 1/333 | 24 |
| TH4-x | The main direction along X-axis | Elastoplasticity | 0.26 | 1/422 | 23 |
| RH2-y | The main direction along Y-axis | Elastoplasticity | 0.22 | 1/382 | 23 |
| TH109--y | The main direction along Y-axis | Elastoplasticity | 0.24 | 1/422 | 13 |
| TH4-y | The main direction along Y-axis | Elastoplasticity | 0.32 | 1/312 | 22 |
Disclaimer/Publisher’s Note: The statements, opinions and data contained in all publications are solely those of the individual author(s) and contributor(s) and not of MDPI and/or the editor(s). MDPI and/or the editor(s) disclaim responsibility for any injury to people or property resulting from any ideas, methods, instructions or products referred to in the content. |
© 2023 by the authors. Licensee MDPI, Basel, Switzerland. This article is an open access article distributed under the terms and conditions of the Creative Commons Attribution (CC BY) license (https://creativecommons.org/licenses/by/4.0/).
Share and Cite
Liang, Q.; Wu, J.; Lu, G.; Hu, J. Structural Design and Analysis of a Super-High Building in Nanjing, China. Sustainability 2023, 15, 6521. https://doi.org/10.3390/su15086521
Liang Q, Wu J, Lu G, Hu J. Structural Design and Analysis of a Super-High Building in Nanjing, China. Sustainability. 2023; 15(8):6521. https://doi.org/10.3390/su15086521
Chicago/Turabian StyleLiang, Qianqian, Jie Wu, Guijuan Lu, and Jun Hu. 2023. "Structural Design and Analysis of a Super-High Building in Nanjing, China" Sustainability 15, no. 8: 6521. https://doi.org/10.3390/su15086521
APA StyleLiang, Q., Wu, J., Lu, G., & Hu, J. (2023). Structural Design and Analysis of a Super-High Building in Nanjing, China. Sustainability, 15(8), 6521. https://doi.org/10.3390/su15086521

