Next Article in Journal
Decarbonization in Higher Education Institutions as a Way to Achieve a Green Campus: A Literature Review
Next Article in Special Issue
Medical Gas Systems Maintainability Risks in Healthcare Facilities: A Design Optimization Approach
Previous Article in Journal
Managing Sustainable Megaprojects along China’s New Silk Roads
Previous Article in Special Issue
A Comprehensive Review on the Integration of Antimicrobial Technologies onto Various Surfaces of the Built Environment
 
 
Font Type:
Arial Georgia Verdana
Font Size:
Aa Aa Aa
Line Spacing:
Column Width:
Background:
Article

Indoor Air Quality and Smoking Control in Healthcare Environments in Northern China

1
Innovation Institute for Sustainable Maritime Architecture Research and Technology (iSMART), Qingdao University of Technology, Qingdao 266033, China
2
Shandong Engineering Research Center of City Information Modeling, Qingdao 266033, China
3
College of Architecture and Urban Planning, Qingdao University of Technology, Qingdao 266033, China
4
Department of Urban Planning and Design, Xi’an Jiaotong-Liverpool University, Suzhou 215123, China
*
Author to whom correspondence should be addressed.
Sustainability 2023, 15(5), 4041; https://doi.org/10.3390/su15054041
Submission received: 23 December 2022 / Revised: 15 February 2023 / Accepted: 20 February 2023 / Published: 23 February 2023
(This article belongs to the Special Issue Post COVID-19 Pandemic: A Reconsideration for the Built Environment)

Abstract

Background: Air pollution has adverse effects on human health, while people experience regular contact with air pollutants in a high concentration via inhalation and ingestion. Nowadays, the average person spends more than 90% of their lifetime inside both private and public buildings, and this figure can reach close to 100% for the sick or elderly who cannot take care of themselves. Attention should be paid to indoor air quality (IAQ), especially for certain groups in specific places. Purpose: This study intends to investigate indoor air quality in a large general hospital in Northern China, where people desire clean air for good nursing, and then propose solutions to any air pollution present. Methods: Some influential factors related to air pollution, including PM2.5 and PM10, were measured in winter. Observations were applied to indicate that the smoking behaviors of medical staff were an important contributor to air pollution. Experimental measurements were designed to test the concentration of airborne nicotine. Questionnaire surveys and follow-up interviews were conducted to understand attitudes towards smoking behaviors and offer design strategies. Results: The scopes of 24 h mean concentrations of PM2.5 (10.2~57.8 µg/m3, 17.5~45.5 µg/m3, and 20.5~91.1 µg/m3) and PM10 (17.7~81.8 µg/m3, 13.0~83.8 µg/m3, and 31.7~188.1 µg/m3) exceeded relevant guideline values, and the airborne nicotine concentrations (1.29 µg/m3 and 1.62 µg/m3) confirmed that smoking behaviors occurred in the consulting room. Conclusions: To control tobacco to ensure good indoor air quality, smoking behaviors should be managed instead of forbidden. This will also provide greater satisfaction to medical staff. Smoking behavior management requires a comprehensive consideration based on ambient conditions and psychological demands. As there is a lack of specific requirements in relevant design regulations that are tailored to ensure the environmental satisfaction of medical staff, the findings from this study can be used as evidence to inform the design of healthcare environments for public health in future.

1. Introduction

The air people breathe everyday contains more than 900 chemicals, biological materials, and particles, some of which (in high concentrations) may lead to air pollution, resulting in adverse effects on human health [1,2,3]. According to previous surveys, air pollutants were divided into four categories, including gaseous pollutants (e.g., SO2, NOX, CO, ozone, and volatile organic compounds), persistent organic pollutants (e.g., dioxins), heavy metals (e.g., lead and mercury), and particulate matters [4]. Of these, particulate matters (PMs) consist of complex and varying mixtures of particles that are suspended in the air in different sizes [5]. These suspended particles are produced by a wide variety of natural and anthropogenic activities, and they are identified among the primary air pollutants in cities. This is especially true of PM2.5 (inhalable particles with diameters less than or equal to 2.5 µm) and PM10 (inhalable particles with diameters less than or equal to 10µm) [6,7].
Modern science indicates that PMs are usually highly toxic to humans, and high exposure to PMs causes morbidity problems, including skin allergies, asthma symptoms, lung cancer, respiratory infections, birth defects, heart attacks, and premature death [8,9,10,11,12,13,14]. These particles penetrate and accumulate in the tracheobronchial and alveolar regions of the human body via inhalation and ingestion. In recent years, PMs have become the main contributors to public health risks [15]. However, staying indoors may not be any safer. Studies suggested that indoor air quality (IAQ) closely correlates with outdoor pollution levels, particularly in urban areas [3,16]. Indoor and outdoor air is constantly circulating through the openings and gaps of buildings, and indoor air quality is thereby affected by outdoor air pollutants [17]. Moreover, some human activities (e.g., smoking, cleaning, hand-washing in the sink, pedestrian movement, and nebulization therapy) can produce indoor air pollutants [18,19]. According to statistics, the average person spends more than 90% of their lifetime inside both private and public buildings, and this figure can reach close to 100% for sick or elderly people who cannot take care of themselves [20,21]. It is necessary to pay close attention to indoor air quality, especially for certain groups in specific places.
Hospitals are an important setting for medical activities among patients, their families and visitors, and medical staff. Patients—especially those who just finished surgeries or lived in wards for a long time—are generally sensitive to physical environments as they have weaker physical and psychological states compared with normal healthy people (e.g., low immunity, anorexia, sleep deprivation, and negative emotions) [22]. They desire good treatments and nursing care from all angles. Medical staff, including doctors, nurses, and caregivers, also have certain characteristics and special job requirements. Hospitals’ 24/7 operation means that some of them are frequently overloaded with work. Demanding work schedules and relatively enclosed environments may exhaust them both physically and mentally. All these circumstances mean that healthcare environments should require great attention to guarantee healthy indoor air and protect people who have to stay indoors against hospital-acquired infections (HAIs) and occupational diseases [23].
To control air pollutants, especially PMs, in healthcare environments within the limits of acceptability, researchers have made great efforts to explore good strategies. Leung and Chan [24] suggested several remedial interventions (e.g., mechanical ventilation, filtration, differential pressure control, directional airflow control, ultraviolet germicidal irradiation disinfection, and administration strategies) for the dilution and removal of pollutants from hospitals. Salonen et al. [25] indicated that efficient ventilation combined with low-emission building materials were the key factors for fine air quality. According to some researchers, air filtration devices are a good choice. Salvati et al. [26] used a horizontal unidirectional filtered air-flow system to control air pollutants, which further reduced the infection rates of patients after total hip and knee replacements. Another case conducted by Guo et al. [27] demonstrated that high-efficiency particulate air purifiers could decrease the concentrations of PMs in the air, which led to an improvement in the cardiovascular health of older people. Moreover, Hoseinzadeh et al. [28] believed that good hospital administration—for example, periodical pollutant evaluation—could create a healing environment with clean indoor air. Little previous research, however, focused on the relationship between indoor air pollutant control, user behavior management, and user demands.
This research aims to evaluate the indoor air quality of healthcare environments by measuring some influential factors (i.e., PM2.5 and PM10) in a typical general hospital located in a city in Northern China. Based on a series of field investigations conducted in winter, the user behaviors that could produce air pollutants were difficult to strictly forbid because special psychological demands (i.e., smoking) were identified. The objective of this research is to propose some design strategies for behavior management and satisfaction improvement based on the discussion of relevant design regulations, which are tailored to hospitals. All findings from this research can be used as evidence that can inform the design of healthcare environments, which can further contribute to public health in future.

2. Methods

2.1. Study Design

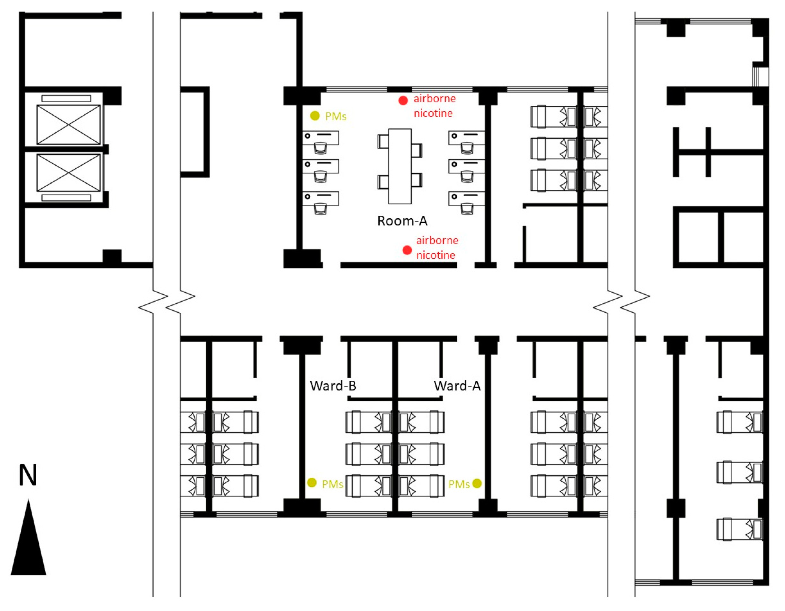
This research was conducted based on a series of field investigations, including measurements, observations, questionnaire surveys, and interviews, in a typical general hospital that was built in 2017 and is located in the central urban area of a city in the north of China (i.e., Binzhou, a city in Shandong Province) (Figure 1). The floor area of this hospital was around 300,000 m2 (3,229,173.12 ft2). Notably, all field investigations were conducted in the respiratory department of this hospital, where clean indoor air is much more important for patients who have unhealthy respiratory systems. This department includes 30 wards with 80 sickbeds for inpatients and 2 consulting rooms for 18 doctors and nurses.
Four steps were involved in total (Figure 2). Measurements (Step 1) and observations (Step 2) were, respectively, designed to evaluate indoor air quality and identify target user behaviors that would produce air pollutants (i.e., PM2.5 and PM10 in this research) in a qualitative way. Questionnaire surveys (Step 3) aimed to understand the attitudes of hospital users about indoor air quality in healthcare environments, and in-depth interviews (Step 4) followed to further explore relevant solutions and design strategies of smoking control.

2.2. Measurements

The measurements can be divided into two phases. The first phase measured the concentrations of PMs, including PM2.5 and PM10, in different places. Three measuring devices were installed in Ward-A, Ward-B, and Room-A (Figure 3). Both wards faced south and the consulting room faced north (Table 1). The measurements lasted from 15 November 2020, when winter began and central heating systems were turned on in the north of China, to 15 March 2021, according to statutory requirements. During this period, outdoor air was heavily polluted because of the coal combustion for heating systems. After the measurements were taken, all results were compared to the guideline values from the World Health Organization (WHO), Standards for Indoor Air Quality GB/T18883-2002, and Assessment Standard for Healthy Building T/ASC02-2021. HARWEST A2 (Model: A2; Manufacturer: Hanwei Electronics Group Corporation; Location: Room-A) was selected as the measuring device in this research according to the recommendation of governmental standards and relevant studies, and they operated 24 h a day during this measurement period (Figure 4).
The second phase was conducted after the observations. Smoking behaviors of medical staff in consulting rooms were found to be some of the most important contributors to indoor air pollutants. Based on previous studies, smoking may produce a large number of PMs, and PM2.5 can generally be defined as a reliable indicator of tobacco smoke [29,30]. To support the judgment from the observations, the concentration of airborne nicotine was measured. Two passive diffusion-based sampler devices that contained filters with sodium bisulfates were installed in Room-A for 7 days (22 March 2021~28 March 2021), and gas chromatography/mass spectrometry was applied for the experimental analysis of airborne nicotine concentrations (Figure 3) [31,32].

2.3. Observations

The observations were conducted to identify some differences between consulting rooms and wards that could produce air pollutants in hospitals. Based on the results of the first-phase measurements, the researchers tried to provide a judgment for the phenomenon: the concentrations of PMs in Room-A were higher than those in Ward-A and Ward-B, which meant that the consulting room had worse air quality compared with the wards. Observations lasted for one week (15 March 2021~21 March 2021).

2.4. Questionnaire Surveys

Questionnaire surveys were applied to understand the attitudes of users about indoor air quality in hospitals. The convenience sampling method was applied to the surveys. Two questions were prepared: Question 1.1—“Please rate your satisfaction with the indoor air quality in this hospital (Table 2)” and Question 1.2—“Please rate the importance of smoke-free hospitals (Table 3)”. This step lasted for 7 days (21 February 2022~27 February 2022). During this period, questionnaires were distributed in the respiratory department to the people who agreed to respond to the questionnaires. A five-point Likert-type scale method was used for the descriptive statistics of these two questions.

2.5. Interviews

Finally, to understand why some medical staff members smoked at work and their special user demands, in-depth interviews were conducted. In accordance with the convenience sampling method, 9 representatives of hospital users, including 4 doctors, 2 nurses, and 3 inpatients, were invited to share their understanding of smoking behaviors and smoking control. All interviewees were recruited randomly. They answered two questions individually, and each interview lasted 15 min (28 February 2022~2 March 2022):
  • Question 2.1: Do you smoke at work in your office (for medical staff)/Do you think some doctors or nurses smoke at work in their office (for inpatients)?
  • Question 2.2: What do you think is the appropriate method of smoking control for medical staff to achieve good indoor air quality in hospitals, and why?
The grounded theory was applied to summarize the key words from the records of interviewees. The results were compared to the requirements in relevant design regulations about healthcare environments in China to provide solutions for smoking control.

3. Results

3.1. Concentrations of PM2.5 and PM10

According to the measurements, the values of the concentrations of PM2.5 and PM10 cannot completely meet the requirements of the WHO guidelines, Standards for Indoor Air Quality GB/T18883-2002, or Assessment Standard for Healthy Budling T/ASC02-2021 (Table 4). The scopes of 24 h mean that the concentrations of PM2.5 and PM10 in the three rooms may exceed the guideline values (Table 5). Each of the wards was in a similar situation, including 24 h mean values and extreme values. The highest minute mean values of PM2.5 and PM10 in wards were 208.0µg/m3 and 200.0µg/m3, respectively. However, the maximum concentrations of PMs were all generated in the consulting room, including the 24 h mean values (i.e., 20.5~91.1 µg/m3 for PM2.5 and 31.7~188.1 µg/m3 for PM10), highest minute mean values (i.e., 590.4 µg/m3 for PM2.5 and 998.4 µg/m3 for PM10), and lowest minute mean values (i.e., 7.4 µg/m3 for PM2.5 and 7.4 µg/m3 for PM10).
The measurement period lasted 121 days. Taking the Assessment Standard for Healthy Building as a reference standard (i.e., 37.5 µg/m3 and 75 µg/m3), Ward-A had 13 days (10.7%) and four days (3.3%), during which the 24 h mean values of concentrations of PM2.5 and PM10 were unqualified. Similarly, Ward-B had six days (5.0%) and five days (4.1%), while Room-A had 53 days (43.8%) and 64 days (52.9%) (Figure 5).

3.2. Smoking Behaviors and Concentrations of Airborne Nicotine

All values from the first-phase measurements mean that the indoor air quality of consulting rooms is worse than that in the wards. According to the reading of PMs, this creates a question: why are the values of air pollutant concentrations in Room-A higher than those in Ward-A and Ward-B, as there is only a corridor between them?
Based on the observations, it can be observed that patients and medical staff display different behaviors when they are in their own places. There is more walking in consulting rooms because of nurses’ regular ward rounding and patient visits. This may affect the measurements of PMs. Smoking behaviors, which have been defined as an important contributor to air pollution, occur only in consulting rooms instead of wards during the observation period. Some doctors and nurses smoke at work. These smokers would like to stand around an open window with a crack, and thus, to expel the smoke and the smell outdoors and reduce the negative influence on others in the room. However, during winter, the wind would blow in because of the temperature difference between outdoors and indoors. This self-deception air-purification method keeps the air pollutants inside. The frequency of such behavior was 0.24/person/day based on the observations. In terms of wards, patients need thermal comfort. Therefore, they do not like to have windows open during occupancy in winter. Moreover, because of mutual supervision, smokers would be warned or stopped by patients or their families when someone in the ward tried to put a cigarette in their mouth. They would have to go to outdoors, no matter how cold it was, to smoke.
According to the analysis of the experimental measurements, the average values of airborne nicotine concentrations in Point-A and Point-B were 1.29 µg/m3 and 1.62 µg/m3, respectively. Compared with the findings in some previous studies (a survey conducted by Teng et al. [33] shows that airborne nicotine was easy to find in the lobbies, corridors, and male bathrooms of hospitals in Hangzhou, a city in Zhejiang Province, China, with concentration scopes between 0.13 µg/m3 and 0.21 µg/m3. Stillman et al. [34] tested the airborne nicotine in hospitals in Beijing, the capital of China, and found that the median value of concentrations from air samples was 0.17 µg/m3.), such results confirm that smoking behaviors occurred in this consulting room during the second-phase measurements. The results also partially explain the phenomenon of air pollutant concentrations of PMs in Room-A being higher than those in Ward-A and Ward-B.

3.3. Consultations of Surveys and Interviews

For questionnaire surveys, 97 participants from the respiratory department answered the questions, including 16 medical staff members and 81 patients. There were 93 usable questionnaires (16 for medical staff members and 77 for patients), and the response rate was 95.88%. As there were 18 doctors and nurses in the respiratory department, the attitudes of the samples were a good representation of the medical staff group (i.e., 88.9%). For the group of patients, there were 80 sickbeds in the department, but the number of inpatients during the survey period was unavailable. This situation affected the representativeness of the results.
The statistical results show that hospital users might not be satisfied with the indoor air quality (Table 6). For Question 1.1, the mean value of satisfaction is 2.89, which means participants’ attitudes are “slightly satisfied”. The mean value of medical staff’s satisfaction is 2.44, which is a little lower than patients’ satisfaction (i.e., 2.89). In terms of the importance of smoke-free hospitals in the second question, the mean value of participants is 4.03 (i.e., “very important”), and medical staff’s is 4.56 (i.e., “very important”), while patients’ is 3.92 (i.e., “moderately important”).
The interviews intend to further explore some solutions for smoking control based on participants’ attitudes towards indoor smoking behaviors and smoke-free hospitals. For Question 2.1, interviewees, including all participants of patients and medical staff, believe that some medical staff members engage in smoking behaviors at work. Three doctors admitted they smoked furtively in the consulting room during working hours, even though it was forbidden by hospital administration. One patient indicated that one of the nurses always smelled strongly of cigarettes when this nurse approached her during ward rounding. Another patient said she knocked on the door of the consulting room once and when the door was opened she could smell the tobacco clearly from outside the room. In her opinion, it was extremely bad for indoor air quality and the recovery of patients who had respiratory diseases, and she believed that this situation should be immediately corrected.
In terms of the second question, all patient interviewees (3/9) guessed that medical staff might not have enough time to go out for a rest. Moreover, they believed that smoking was not a good habit and it was necessary to persuade medical staff who were smokers to quit smoking. In brief, according to the patients, hospital administration should be stricter about smoking control and a smoke-free hospital development to ensure a comfortable healthcare environment with good indoor air quality. The rest of the interviewees (6/9), however, had different opinions. Three interviewees who were medical staff and smokers, argued that smoking was also an important form of decompression. They were busy at work and smoking could effectively clear their mind and give them a short break. After that, they were able to focus on work and reduce errors. They knew smoking in consulting rooms could negatively affect indoor air quality, and they knew where public smoking areas were, but there were still some issues. On the one hand, these areas were outdoors (Figure 6). In winter, it was very cold, and they had to put on thick clothes and walk for a few minutes to smoke, which further decreased their limited break time. On the other hand, medical staff needed privacy. Being in a smoking room with patients would lead to unnecessary chatter. One doctor indicated that sometimes some patients who knew him would surround him to talk about something—for example, their diseases. Once, a patient who did not even smoke followed this doctor from the ward to this smoking area to discuss his condition. Medical staff were in urgent need of a quiet moment during busy working hours, which could improve their work efficiency to a certain extent. Other medical staff interviewees also expressed their understanding for such demands of medical staff smokers and proposed a separate nearby enclosed smoking room for smoking control in hospitals.

4. Discussion

The measurement results demonstrate that the respiratory department of the selected hospital does not have an acceptable indoor air quality. The scopes of particulate matter concentrations (i.e., PM2.5 and PM10) were unable to completely meet the guideline values of any relevant standard or regulation during the measurement period, which means that the design of healthcare environments should considered reducing public health risks.
Many issues can cause indoor air pollution—for example, ambient air quality. In general, the quality of ambient air is not good in winter because of central heating systems in the north of China and coal combustion. Other emission sources (e.g., traffic sources, industrial emission, various dusts, and biomass burning) and unfavorable meteorological conditions (e.g., low boundary layer height and weak vertical diffusion) are also major causes of air pollution. These determine indoor air quality to a great extent. In terms of these causes, regional co-ordination is needed from the perspective of government management. The 24 h mean concentrations of PMs during the measurement period are listed based on the statistics of the local air quality in Binzhou, and this illustrates that the air has been polluted (Figure 7). Since outdoor and indoor air is circulating constantly, it is not easy to maintain good indoor air quality for healthcare environments when outdoor air is filled with pollutants. The comparison between the concentrations of indoor and outdoor PMs demonstrates that the respiratory department has relatively better air quality in terms of PMs, but a similarity cannot be found in the tendencies of data (for the concentration of outdoor PMs, there were some lost data from several days, which might have affected the integrity of tendencies).
Moreover, human activities can also produce air pollutants. In this research, the smoking behaviors of medical staff have been explored as the object of study, and all results of measurements prove that such behaviors can be viewed as one reason why the indoor air in the selected hospital is not up to standard. However, to control smoking behaviors, certain behaviors being blindly forbidden by hospital administration may not be the perfect method for the present, when hospital administration is not always in place. First of all, it is necessary to create a smoke-free healthcare environment. There is overwhelming evidence provided by previous studies that environmental tobacco smoke (ETS), even in small concentrations, can cause diseases and impact human health [35,36]. Smoke-free hospital policies have been carried out in most areas of the world. Based on this research, however, it has been determined that such policies have occasional failures under certain circumstances; some medical staff members smoke furtively in consulting rooms. Previous studies have indicated that medical staff have relatively high smoking rates. A survey conducted by Abdullah et al. [37] shows that in China the smoking rates in male and female doctors were 26%~61% and 0%~19%, respectively. Moreover, the smoking cessation rate of the medical staff group is relatively low. According to Belettsioti-Stika et al. [38], only 23% of nurse smokers among the samples of their study expressed a desire to quit smoking. Additionally, 7.6% of medical staff smokers have a lifetime smoking problems [39].
On the one hand, medical staff are a group that has a deep understandings of the risks of smoking for human health. They are supposed to recommend public education to help others quit smoking. On the other hand, some of them have long-term smoking habits and even smoke at work. According to the medical staff, smokers in the interview view smoking is a “decompression” mode that can reduce negative emotions resulting from work stress, and thereby improve their work efficiency. This view is also supported by other studies—smokers like to choose smoking, their habitual behaviors, to deal with stress, even though there is little evidence that supports the efficacy of smoking as a decompression technique [40]. In fact, smoking can be viewed as a way in which some medical staff members choose to respond to anxiety. This situation is a reflection of how stressful work is for medical staff.
Considering these factors, it is necessary to find good solutions to reduce the work stress of medical staff and improve the satisfaction of patients, medical staff, smokers, and non-smokers in hospitals in the meantime. Medical-staff-orientated smoking rooms can be viewed as an effective solution for the present. These rooms should be designed as a separate, enclosed, and warm space near medical staff’s office based on medical staff’s characteristics and special user demands. On the one hand, this will provide a quick way for medical staff smokers to address the demands of smoking and rest. Their privacy can be protected and their break time can be saved. On the other hand, smoking can be relatively well-controlled in hospitals, which can contribute to the satisfaction of patients and other non-smokers with indoor air quality in partial public spaces and the development of smoke-free hospitals. The ventilation systems in these rooms provide centralized processing for indoor PMs and airborne nicotine from smoking. Such solutions, of course, may not reduce tobacco consumption in hospitals and may even encourage smoking behaviors. This improvement in indoor air quality and the comprehensive environmental satisfaction of hospital users will mean ignoring the health of medical staff who are smokers. Therefore, this is only a temporary solution for the hospitals in which administration is not effective enough. It is necessary to continue to provide support (e.g., nicotine replacement treatment and counselling) to medical staff smokers and help them quit smoking.
The findings of this research reflect that the satisfaction of medical staff is not given full consideration during the design process. An example would be the design regulation Evaluation Standard for Green Hospital Building GB/T51153-2015, published in 2015 and put into practice in 2016 to inform the design of healthcare environments towards sustainability. In this regulation, clear requirements are listed to achieve good indoor air quality: the concentrations of air pollutants should meet the relevant requirements in the Standards for Indoor Air Quality GB/T18883-2002, and monitoring systems should be installed in dense-occupancy areas with the linkage control of central ventilation systems. In addition, some design strategies that consider patients’ satisfaction are also included; for example, outdoor landscape, indoor color, and public resting areas. No strategies are tailored to medical staff based on their special user demands. A similar situation also occurs in other design regulations (e.g., Code for Design of General Hospital GB51039-2014). Medical staff can be defined as long-term users of hospitals, compared to patients who will not stay for long once they have fully recovered. Special job requirements affect the physical and psychological health of medical staff, and they can, therefore, be defined as a certain group in a specific place. It is necessary to pay attention to their user demands during the design process, as improving the satisfaction of medical staff, even though only a small fraction of hospital users, can increase their work efficiency and well-being, which will further ensure public health in healthcare environments.
This research has some limitations. First, all field investigations were conducted in one hospital, and the convenience sampling method was used for the surveys and interviews. These may lead to sampling bias, which means that the representativeness of the attitudes of hospital users (i.e., indoor air quality and smoking behaviors) and the validity of the findings will be affected. Second, due to the COVID-19 pandemic, the hospital administration was changing the requirements for the entry of researchers all the time. All field investigations lasted almost one and a half years (15 November 2020~2 March 2022), and there were no overlaps between the periods of each step in the field investigations. This may reduce the coherence and consistency of this research, which further affects the accuracy of the findings. Third, for the measurements of airborne nicotine, there was no discussion about the distinction between second-hand smoke and third-hand smoke (second-hand smoke can be defined as the environmental tobacco smoke that is exhaled by smokers after smoking, and third-hand smoke is the smoke embedded in walls, carpets, furnishings, and clothing that can leach out [41]. It is likely that the airborne nicotine in consulting rooms was caused by the daily breathing of medical staff smokers) or the distinction between traditional cigarettes and e-cigarettes (they may produce different nicotine concentrations during use).

5. Conclusions

Based on a series of field investigations, this research found that hospital users are exposed to excessive indoor air pollutants. PM2.5 and PM10, which are highly toxic to humans, have been evaluated in this study, and all results show that these pollutants are not up to standard based on relevant design regulations. This research identifies that the smoking behaviors of medical staff in consulting rooms are an important contributor to air pollution that negatively affects the indoor air quality of hospitals and human health. Based on the summarized results of questionnaire surveys and interviews, it was determined that the smoking behaviors of medical staff should be managed instead of being forbidden by hospital administration. At the present stage, it is necessary to find a balance between smoking control and the satisfaction of medical staff smokers, as smoke-free hospital policies and hospital administration are not always in place. The solution is to provide a separate, enclosed, and nearby smoking room for medical staff. This will improve medical staff’s satisfaction and provide a smoke-free hospital for patients. According to relevant design regulations for hospitals, medical staff’s satisfaction and well-being are easy to ignore during the design process; therefore, their various user demands, combined with ambient conditions, should be included in a healthcare environment design as a type of building information for the satisfaction of users and for public health. In future work, more on-site measurements and interviews will be conducted in different hospitals to provide test–retest research to ensure the reliability of relevant findings, which can be used as evidence to inform the design of healthcare environments towards public health protection for hospitals.

Author Contributions

Conceptualization, Q.B. and Z.P.; methodology, Q.B. and Z.P.; investigation, S.Z., K.S., and P.G.; data curation, S.Z., K.S., and R.L.; writing—original draft preparation, S.Z. and K.S.; writing—review and editing, Q.B. All authors have read and agreed to the published version of the manuscript.

Funding

This research was funded by the National Natural Science Foundation of China (NSFC) (grant number 51908300) and the Natural Science Foundation of Shandong Province (grant number ZR2022QE280).

Institutional Review Board Statement

The study was conducted in accordance with the Declaration of Helsinki, and approved by the Research Ethics Committee of Innovation Institute for Sustainable Maritime Architecture Research and Technology (protocol code 2020-11-01-01 and 1 November 2020).

Informed Consent Statement

Informed consent was obtained from all subjects involved in the study. Written informed consent has been obtained from the patients to publish this paper.

Acknowledgments

The authors would like to thank all participants, including the patients, doctors, nurses, and administrators who supported data collection, and Yiping Zhang who contacted the hospital for field investigations.

Conflicts of Interest

The authors declare no conflict of interest.

References

  1. Jones, A.P. Indoor air quality and health. Atmos. Environ. 1999, 33, 4535–4564. [Google Scholar] [CrossRef]
  2. Spengler, J.D.; Sexton, K. Indoor air pollution: A public health perspective. Science 1983, 221, 9–17. [Google Scholar] [CrossRef]
  3. Peng, Z.; Deng, W.; Tenorio, R. Investigation of indoor air quality and the identification of influential factors at primary schools in the north of China. Sustainability 2017, 9, 1180. [Google Scholar] [CrossRef]
  4. Kampa, M.; Castanas, E. Human health effects of air pollution. Environ. Pollut. 2008, 151, 362–367. [Google Scholar] [CrossRef]
  5. Poschl, U. Atmospheric aerosols: Composition, transformation, climate, and health effects. Angew. Chem. Int. Ed. 2005, 44, 7520–7540. [Google Scholar] [CrossRef]
  6. He, K.; Huo, H.; Zhang, Q. Urban air pollution in China: Current status, characteristics, and progress. Annu. Rev. Environ. Resour. 2002, 27, 397. [Google Scholar] [CrossRef]
  7. Monn, C.H.; Fuchs, A.; Hogger, D.; Junker, M.; Kogelschatz, D.; Roth, N.; Wanner, H.U. Particulate matter less than 10µm (PM10) and fine particles less than 2.5µm (PM2.5): Relationships between indoor, outdoor, and personal concentrations. Sci. Total Environ. 1997, 208, 15–21. [Google Scholar] [CrossRef]
  8. Lin, C.; Li, Y.; Lau, A.K.H.; Deng, X.; Tse, T.K.T.; Fung, J.C.H.; Li, C.; Li, Z.; Lu, X.; Zhang, X.; et al. Estimation of long-term population exposure to PM2.5 for dense urban areas using 1-km MODIS data. Remote Sens. Environ. 2016, 179, 13–22. [Google Scholar] [CrossRef]
  9. Karakocak, B.B.; Patel, S.; Ravi, N.; Biswas, P. Investigating the effects of stove emissions on ocular and cancer cells. Sci. Rep. 2019, 9, 1870. [Google Scholar] [CrossRef]
  10. Kurt, O.K.; Zhang, J.; Pinkerton, K.E. Pulmonary health effects of air pollution. Curr. Opin. Pulm. Med. 2016, 22, 138–143. [Google Scholar] [CrossRef]
  11. Pope III, C.A.; Dockery, D.W. Health effects of fine particulate air pollution: Lines that connect. J. Air Waste Manag. Assoc. 2006, 56, 709–742. [Google Scholar] [CrossRef]
  12. Dockery, D.W.; Pope, C.A.; Xu, X.; Spengler, J.D.; Ware, J.H.; Fay, M.E.; Ferris, B.G., Jr.; Speizer, F.E. An association between air pollution and mortality in six US cities. N. Engl. J. Med. 1993, 329, 1753–1759. [Google Scholar] [CrossRef]
  13. Peters, A.; Pope III, C.A. Cardiopulmonary mortality and air pollution. Lancet 2002, 360, 1184–1185. [Google Scholar] [CrossRef]
  14. Pinkerton, K.E.; Joad, J.P. Influence of air pollution on respiratory health during perinatal development. Clin. Exp. Pharmacol. Physiol. 2006, 33, 269–272. [Google Scholar] [CrossRef]
  15. Tena, A.F.; Clara, P.C. Deposition of inhaled particles in the lungs. Arch. De Bronconeumol. 2012, 48, 240–246. [Google Scholar] [CrossRef]
  16. Li, W.M.; Lee, S.C.; Chan, L.Y. Indoor air quality at nine shopping malls in Hong Kong. Sci. Total Environ. 2001, 273, 27–40. [Google Scholar] [CrossRef]
  17. Nero, A.V. Controlling indoor air pollution. Sci. Am. 1998, 258, 42–49. [Google Scholar] [CrossRef]
  18. Du, W.; Wang, G. Indoor air pollution was nonnegligible during COVID-19 lockdown. Aerosol Air Qual. Res. 2020, 20, 1851–1855. [Google Scholar] [CrossRef]
  19. Pereira, M.L.; Knibbs, L.D.; He, C.; Grzybowski, P.; Johnson, G.R.; Huffman, J.A.; Bell, S.C.; Wainwright, C.E.; Matte, D.L.; Dominski, F.H.; et al. Sources and dynamics of fluorescent particles in hospitals. Indoor Air 2017, 27, 988–1000. [Google Scholar] [CrossRef]
  20. Hoppe, P.; Martinac, I. Indoor climate and air quality. Int. J. Biometeorol. 1998, 42, 1–7. [Google Scholar] [CrossRef]
  21. Cincinelli, A.; Martellini, T. Indoor air quality and health. Int. J. Environ. Res. Public Health 2017, 14, 1286. [Google Scholar] [CrossRef]
  22. Hall, J.A.; Feldstein, M.; Fretwell, M.D.; Rowe, J.W.; Epstein, A.M. Older patients’ health status and satiafaction with medical care in an HMO population. Med. Care 1990, 28, 261–270. [Google Scholar] [CrossRef]
  23. Gola, M.; Settimo, G.; Capolongo, S. Indoor air quality in inpatient environments: A systematic review on factors that influence chemical pollution in inpatient wards. J. Healthc. Eng. 2019, 2019, 8358306. [Google Scholar] [CrossRef]
  24. Leung, M.; Chan, A.H. Control and management of hospital indoor air quality. Med. Sci. Monit. Int. Med. J. Exp. Clin. Res. 2006, 12, SR17–SR23. [Google Scholar]
  25. Spengler, J.D.; Samet, J.M.; McCarthy, J.F. Indoor Air Quality Handbook; The McGraw-Hill Companies: New York, NY, USA, 2001. [Google Scholar]
  26. Salvati, E.A.; Robinson, R.P.; Zeno, S.M.; Koslin, B.L.; Brause, B.D.; Wilson Jr, P.D. Infection rates after 3175 total hip and total knee replacements performed with and without a horizontal unidirectional filtered air-flow system. J. Bone Jt. Surg. 1982, 64, 525–535. [Google Scholar] [CrossRef]
  27. Guo, M.; Du, C.; Li, B.; Yao, R.; Tang, Y.; Jiang, Y.; Liu, H.; Su, H.; Zhou, Y.; Wang, L.; et al. Reducing particulates in indoor air can improve the circulation and cardiorespiratory health of old people: A randomized, double-blind crossover trial of air filtration. Sci. Total Environ. 2021, 798, 149248. [Google Scholar] [CrossRef]
  28. Hoseinzadeh, E.; Samarghandie, M.R.; Ghiasian, S.A.; Alikhani, M.Y.; Roshanaie, G. Evaluation of bioaerosols in five educational hospitals wards air in Hamedan, during 2011–2012. Jundishapur J. Microbiol. 2013, 6, e10704. [Google Scholar] [CrossRef]
  29. Phillips, K.; Bentley, M.C.; Howard, D.A.; Alvan, G. Assessment of environmental tobacco smoke and respirable suspended particle exposures for nonsmokers in Kuala Lumpur using personal monitoring. J. Expo. Anal. Environ. Epidemiol. 1998, 8, 519–542. [Google Scholar]
  30. Drago, G.; Perrino, C.; Canepari, S.; Ruggieri, S.; L’Abbate, L.; Longo, V.; Colombo, P.; Frasca, D.; Balzan, M.; Cuttitta, G.; et al. on behalf of the RESPIRA Collaborative Project Group. Relationship between domestic smoking and metals and rare earth elements concentration in indoor PM2.5. Environ. Res. 2018, 165, 71–80. [Google Scholar] [CrossRef]
  31. Sureda, X.; Fu, M.; Lopez, M.J.; Martinez-Sanchez, J.M.; Carabasa, E.; Salto, E.; Martinez, C.; Nebot, M.; Fernandez, E. Second-hand smoke in hospitals in Catalonia (2009): A cross-sectional study measuring PM2.5 and vapor-phase nicotine. Environ. Res. 2010, 110, 750–755. [Google Scholar] [CrossRef]
  32. Fu, M.; Martinez-Sanchez, J.M.; Galan, I.; Perez-Rios, M.; Sureda, X.; Lopez, M.J.; Schinaffino, A.; Moncada, A.; Montes, A.; Nebot, M.; et al. Variability in the correlation between nicotine and PM2.5 as airborne markers of second-hand smoke exposure. Environ. Res. 2013, 127, 49–55. [Google Scholar] [CrossRef]
  33. Teng, W.; Zhu, X.; Wang, J.; Zhang, Y.; Jin, S. A study on nicotine exposure level in the public in Hangzhou city. Zhejiang Prev. Med. 2012, 24. 1–3+9. [Google Scholar]
  34. Stillman, F.; Navas-Acien, A.; Ma, J.; Ma, S.; Avila-Tang, E.; Breysse, P.; Gonghuan, Y.; Samet, J. Second-hand tobacco smoke in public places in urban and rural China. Tob. Control. 2007, 16, 229–234. [Google Scholar] [CrossRef]
  35. International Agency for Research on Cancer; World Health Organization. Evaluating the Effectiveness of Smoke-free Policies; World Health Organization: Geneva, Switzerland, 2009. [Google Scholar]
  36. World Health Organization. WHO Framework Convention on Tobacco Control; World Health Organization: Geneva, Switzerland, 2009. [Google Scholar]
  37. Abdullah, A.S.; Oiming, F.; Pun, V.; Stillman, F.A.; Samet, J.M. A review of tobacco smoking and smoking cessation practices among physicians in China: 1987–2010. Tob. Control 2013, 22, 9–14. [Google Scholar] [CrossRef]
  38. Belettsioti-Stika, P.; Scriven, A. Smoking among Greek nurses and their readiness to quit. Int. Nurs. Rev. 2006, 53, 150–156. [Google Scholar] [CrossRef]
  39. An, F.; Xiang, Y.; Yu, L.; Ding, Y.; Ungvari, G.; Chan, S.; Yu, D.; Lai, K.; Qi, Y.; Zeng, J.; et al. Prevalence of nurses’ smoking habits in psychiatric and general hospitals in China. Arch. Psychiatr. Nurs. 2014, 28, 119–122. [Google Scholar] [CrossRef]
  40. Meule, A.; Reichenberger, J.; Blechert, J. Smoking, stress eating, and body weight: The moderating role of perceived stress. Subst. Use Misuse 2018, 53, 2152–2156. [Google Scholar] [CrossRef]
  41. Borujeni, E.T.; Yaghmaian, K.; Naddafi, K.; Hassanvand, M.S.; Naderi, M. Identification and determination of the volatile organics of third-hand smoke from different cigarettes and clothing fabrics. J. Environ. Health Sci. Eng. 2022, 20, 53–63. [Google Scholar] [CrossRef]
Figure 1. Location of the selected hospital.
Figure 1. Location of the selected hospital.
Sustainability 15 04041 g001
Figure 2. Scheme of the study design.
Figure 2. Scheme of the study design.
Sustainability 15 04041 g002
Figure 3. Layout of the respiratory department and measuring device locations.
Figure 3. Layout of the respiratory department and measuring device locations.
Sustainability 15 04041 g003
Figure 4. HARWEST A2.
Figure 4. HARWEST A2.
Sustainability 15 04041 g004
Figure 5. Rates of each room when the 24 h mean values of concentrations of PMs are unqualified.
Figure 5. Rates of each room when the 24 h mean values of concentrations of PMs are unqualified.
Sustainability 15 04041 g005
Figure 6. Public smoking areas in the selected hospital.
Figure 6. Public smoking areas in the selected hospital.
Sustainability 15 04041 g006
Figure 7. The comparison between the indoor and outdoor 24 h mean concentrations of PM2.5 and PM10 (15 November 2020~15 March 2021). Source: https://www.aqistudy.cn (accessed on 15 June 2021).
Figure 7. The comparison between the indoor and outdoor 24 h mean concentrations of PM2.5 and PM10 (15 November 2020~15 March 2021). Source: https://www.aqistudy.cn (accessed on 15 June 2021).
Sustainability 15 04041 g007
Table 1. Characteristics of the wards and consulting room.
Table 1. Characteristics of the wards and consulting room.
RoomWard-AWard-BRoom-A
Size28.5 m2 (306.77 ft2)28.5 m2 (306.77 ft2)59.2 m2 (637.23 ft2)
Number of occupants339
Height2.8 m (9.19 ft)2.8 m (9.19 ft)2.8 m (9.19 ft)
Window typeDouble glazedDouble glazedDouble glazed
Table 2. Question 1.1—levels of satisfaction.
Table 2. Question 1.1—levels of satisfaction.
Not at All
Satisfied
Slightly
Satisfied
Moderately
Satisfied
Very
Satisfied
Extremely
Satisfied
Please rate your satisfaction with the indoor air quality in this hospital
(Not at all satisfied—1; Slightly satisfied—2; Moderately satisfied—3; Very satisfied—4; Extremely satisfied—5).
Table 3. Question 1.2—levels of importance.
Table 3. Question 1.2—levels of importance.
Not at all
Important
Slightly
Important
Moderately
Important
Very
Important
Extremely
Important
Please rate the importance of smoke-free hospitals
(Not at all important—1; Slightly important—2; Moderately important—3; Very important—4; Extremely important—5).
Table 4. Values of PM2.5 and PM10.
Table 4. Values of PM2.5 and PM10.
RoomPM2.5 Concentration (µg/m3)PM10 Concentration (µg/m3)
24 h MeanMinute Mean (Highest)Minute Mean (Lowest)24 h MeanMinute Mean (Highest)Minute Mean (Lowest)
Ward-A10.2~57.8199.83.617.7~81.8208.04.0
Ward-B17.5~45.5192.46.013.0~83.8200.07.6
Room-A20.5~91.1590.47.431.7~188.1998.47.4
Table 5. Guideline values of PM2.5 and PM10 in relevant design regulations.
Table 5. Guideline values of PM2.5 and PM10 in relevant design regulations.
StandardPM2.5 Concentration (µg/m3) PM10 Concentration (µg/m3)
24 h MeanAnnual Mean24 h MeanAnnual Mean
WHO Guidelines25105020
Standards for Indoor Air Quality GB/T18883-2002--150-
Assessment Standard for Healthy Building T/ASC02-202137.5357570
Table 6. Results of questionnaire surveys.
Table 6. Results of questionnaire surveys.
Satisfaction with Indoor Air QualityImportance of Smoke-Free Hospitals
Mean ValueAttitudeMean ValueAttitude
Patients2.89Slightly satisfied4.03Very important
Medical staff2.44Slightly satisfied4.56Very important
Disclaimer/Publisher’s Note: The statements, opinions and data contained in all publications are solely those of the individual author(s) and contributor(s) and not of MDPI and/or the editor(s). MDPI and/or the editor(s) disclaim responsibility for any injury to people or property resulting from any ideas, methods, instructions or products referred to in the content.

Share and Cite

MDPI and ACS Style

Zhang, S.; Song, K.; Ban, Q.; Gong, P.; Li, R.; Peng, Z. Indoor Air Quality and Smoking Control in Healthcare Environments in Northern China. Sustainability 2023, 15, 4041. https://doi.org/10.3390/su15054041

AMA Style

Zhang S, Song K, Ban Q, Gong P, Li R, Peng Z. Indoor Air Quality and Smoking Control in Healthcare Environments in Northern China. Sustainability. 2023; 15(5):4041. https://doi.org/10.3390/su15054041

Chicago/Turabian Style

Zhang, Shuya, Kexin Song, Qichao Ban, Puyue Gong, Ruisi Li, and Zhen Peng. 2023. "Indoor Air Quality and Smoking Control in Healthcare Environments in Northern China" Sustainability 15, no. 5: 4041. https://doi.org/10.3390/su15054041

APA Style

Zhang, S., Song, K., Ban, Q., Gong, P., Li, R., & Peng, Z. (2023). Indoor Air Quality and Smoking Control in Healthcare Environments in Northern China. Sustainability, 15(5), 4041. https://doi.org/10.3390/su15054041

Note that from the first issue of 2016, this journal uses article numbers instead of page numbers. See further details here.

Article Metrics

Back to TopTop