Abstract
This research presents the development of a sustainable technical project developed by a group of 1st year baccalaureate students in the subject of technical drawing. This project is developed within the methodological framework established by UNESCO in 2017, which describes the key competences for sustainability. Through the project method applied to the teaching–learning process, students achieved subject-specific competences and five key competences for sustainability, as well as a high level of ownership of sustainability knowledge. In each of the phases, the participants used ecodesign to design an educational space that complies with the three areas of sustainability: environmental, social, and economic. To do this, they used technical tools and ICT programmes and computer aided design, which have improved their digital competence. At the end of the experience, the participants elaborated a questionnaire on the degree of appropriation of knowledge in the field of sustainability. The results show an acquisition of competence in sustainability by the students, an improvement of responsible creativity, as well as a good level of appropriation of knowledge in the field of sustainability.
1. Introduction
With the promulgation of the Sustainable Development Goals (SDGs) on 25 September 2015 by the United Nations (UN), a new impetus for sustainability was born. The 17 goals constitute a universal call to action to end poverty, protect the planet, and improve the lives and prospects of people around the world [1]. Against this backdrop of change, UNESCO, the UN organization specializing in education, has been tasked with coordinating and leading the 2030 Agenda for Education. It is the organization itself that establishes that it is vitally important today more than ever to commit to methodologies for change, focused on the learner, using transformative pedagogies that promote sustainable awareness among students at the same time as they attain key competencies for sustainability. All of this requires an urgent need to change the way students think and act in order to transform lifestyles and thus form new citizens of sustainability [2]. This research describes a technical project inspired by the ecodesign of spaces, using the project method through a transformative pedagogy oriented to action as established by UNESCO in 2017; a participatory learning that allows students to mobilize for Sustainable Development.
One of the first studies related to education and architecture was collected in the monograph Architecture 63, whose conclusions state that it is important to connect architecture and urban planning with education, research, and the latest artistic, scientific, and political discoveries in order to avoid isolating technicians in a virtual world far from social needs. Since then, the innovations and studies of these binomials (Architecture-Education and Engineering-Education) have reached the present day [3] p. (165–180). Education is in constant development, and just as there are new methodologies in learning, the educational space needs to be rethought and also restructured, because classrooms are themselves schools where students not only learn, but also communicate with others. Social is one of the areas of sustainable development along with environment and economy. Therefore, architecture and technology can be an educational tool through the ecological design of school spaces, which is very important in the development of all kinds of activities [4]. Therefore, the classroom is an important part of the teaching–learning process and, for this reason, it must be built and organized to meet the needs of the teacher and the students. But not only the space, but also its architectural characteristics, as the orientation, seating capacity, sunlight, among other things, depend on them [5].
Therefore, spaces must be versatile, flexible, and they must comply with a series of requirements set by the educational community, such as the possibility of dividing the classroom structure with partitions, curtains, sliding doors to adapt to the needs of the students, especially those with special educational needs, always a place adapted to the characteristics of the students and following the principles of inclusion in the classroom [6].
The most representative educational spaces as far as education is concerned during the 19th century fall into three categories: the technological dimension, the physical dimension, and the environmental dimension. All of them are important and related to each other (see Figure 1).
Figure 1.
Relation of educational spaces and dimensions.
1.1. Technological Dimension
We live in an age in which information creates a multitude of social interactions, so there is a technological dimension to the educational space that uses ICT in classroom. [7]. The knowledge society is one that produces social transformation and provides a digital revolution based on media and their dissemination. Therefore, ICT is attached to the area of educational planning and training. This also refers to the organization and the area of work [8]. Furthermore, we live in a society that is constantly changing. This comes from the convergence of three technological areas: information technology, telecommunications, and computational thinking [9].
1.2. Physical Dimension
The physical dimension is one of the factors that facilitate learning. For several years, psychologists, architects, teachers, and other professionals have been interested in studying school spaces [5]. Spaces help to prepare the teaching and learning context and enable the creation of environments suitable for the development of students’ skills, stimulating them and favoring their autonomy. Not only classrooms, but also other areas of the school that are part of the common spaces, such as corridors, foyers, and even staircases that can be used for exhibitions, are important and create environments that inspire creativity. In addition, it is very positive for students to see their ideas and work displayed both inside and outside the classroom as they feel supported and encouraged by other members of the school [10].
1.3. Environmental Dimension
The environmental dimension responds to needs that are not as obvious as those mentioned above, as it goes beyond them. Here, we will analyze factors such as light, temperature, materials, and even the sound of the classroom.
- -
- The visual factor emphasizes the lighting of the space, taking into account all its parts, as well as the color of the classroom.
- -
- The acoustic factor is very important, as the most common form of communication in teaching is verbal. One of the drawbacks in the transmission of information is noise, which sometimes hinders understanding and interaction between students and teachers, so it is important to have a good design and organization of the space.
- -
- The thermal factor, which is formed by air conditioning and ventilation or air renewal, affects the behavior of those who are in the space in a positive and negative way [11]. These systems are usually centralized, which does not allow them to be manipulated by the teacher and students, so that if the temperature is too high, it can make the environment tense, creating anxiety and stress during the lesson, or on the other hand, if the temperature is too low, it can make it difficult for students to pay attention and reduce the teaching–learning process.
Light is an essential element in the design of educational spaces. Therefore, the project developed by the students in this experience includes a solar study of their own design to maximize natural light in the choice and orientation of the space to be transformed. However, given that we live surrounded by buildings, we rarely find ourselves in front of natural spaces. Therefore, it is very important to consider this factor when designing classrooms, as it affects the visual performance and sensory stimulation of students [12].
Space is not only a place, but also a tool in education. The latest studies in this field show that the spaces currently available in educational centers do not have an affinity with the new emerging methodologies; for example, with the arrival of the digital whiteboard, it was observed that very few classrooms had a good arrangement for placing them and that they were visible to the students, as on many occasions, there was not enough space or their vision was affected by the distance between the students, the entry of sunlight, and the reflection produced by the classroom lights.
The field of architecture has always been associated with urban planning as if it were a financial and technical instrument. However, nowadays, this science is being used as an instrument of cultural transmission that requires a dialogue between architects and clients, and in this case, teachers, designing educational centers and taking into account urban ecology and the geography in which the relevant spaces are located. For it is space that will help in the development of new 21st century pedagogies. The aim of this dialogue is that the economic investment to be made during the construction of schools breaks with the traditional style and optimizes the use of space according to current educational needs, since the educational system is governed by the fulfilment of objectives and for this, spaces that meet expectations are needed [13]. Ecodesign will therefore allow educating towards Sustainable Development, as is the case in ecocities, which educate society towards sustainability.
Education for Sustainable Development (ESD) is essential to achieve the other SDGs, and therefore, SDG 4 Quality Education is the goal on which the other SDGs hinge. ESD achieves its purpose by transforming society in a way that integrates with it a specific learning content that addresses key sustainability issues. Learning environments or spaces are important as ESD aims to make teaching and learning interactive, allowing for exploratory learning that is action-oriented. Therefore, rethinking physical learning environments can infuse the educational community, and consequently, students to act in favor of sustainability.
This social transformation enables a transition to greener economies and societies, as long as it equips students with skills for green jobs, motivates people to adopt sustainable lifestyles, and enables students to take active roles in society, getting them to address problems themselves, contributing to a more just, peaceful, tolerant, inclusive, safe, and sustainable world [14].
The aim is to achieve a microclimate that stimulates learning, creating comfortable and familiar environments. This microclimate takes place in various local spaces that are suffering an environmental crisis as a result of the country’s economic model. If we look back to the 1970s, the Spanish economy was based on the accumulation of goods from nature, leaving future conditions uncertain; hence, today there are numerous natural disasters in areas that should never have been built. This situation has led to environmental problems for future generations who will have more problems than their ancestors in meeting their needs [15].
It is for these new generations that ESD and educational spaces must work together. It is intended that the union of these respond to the immediate problems of the affected generations by providing them wellbeing. Building these sustainable spaces for education is a collective task as it affects the surrounding community and therefore, it is important to be aware of their needs and concerns in order to provide spaces where they not only educate and learn, but also grow as sustainable and civic-minded people. In order to provide these new generations with the necessary knowledge for their correct social development, it is necessary for them to know about environmental education, which is defined as follows: Environmental education is an integral part of the education system, should be problem-oriented and interdisciplinary in nature. It should aim to establish a sense of values, contribute to the collective well-being, and be concerned with the well-being of human beings [16].
The aim of this paper is to describe a technical project supported by the ecodesign of a space within the school by applying the project method that has allowed students to achieve key competences for sustainability as well as a high level of appropriation of knowledge in both technical drawing and sustainability. This working method fosters motivation by awakening students’ interest in the subjects [17].
Project Method
Since the beginning, human beings have had to look for multiple solutions in order to tackle all the problems and situations that have developed, all with the aim of improving the wellbeing and quality of life of the population. Technical projects have always been related to this event and the search for solutions, as it has been considered that the real learning and understanding of concepts is achieved through involvement, contact with objects, and the observation of consequences.
A technical project arises from the need to achieve an objective and, to this end, various activities or tasks are designed to help achieve it. In the educational field, the proposal and realization of these projects by students is supported by the achievement of a series of objectives that are of interest to the student, thus obtaining their involvement in the activity. Finally, students are motivated to carry out the tasks and also to review and learn the didactic content necessary for the development of the project [18].
In the project method, the students are the main actors in their learning. This is because the teacher acts only as a facilitator, while the students, together with the group, are in charge of identifying and testing the problems that arise in the development of the technical project. Students use their prior knowledge as a baseline and build new knowledge from their interactions with people and their environment. The project method can be used in a single discipline or in several disciplines in a cross-disciplinary way and is intended to impart “non-disciplinary” learning, a term that combines key competences and cross-cutting elements. It is a methodology that requires good prior planning on the part of teachers, as each project requires well-defined steps and a series of activities to help students acquire the necessary knowledge [19].
This methodology of classroom work, created by Kilpatrick in 1918, has been a reference for other authors; in the book E-activities, Cabero, J, Llorente, M, and Salinas, J affirm that for Kilpatrick, the project method was a previously determined activity whose dominant intention is a real purpose that orients the procedures and confers them a motivation. In order to achieve an adequate acquisition of competences, these requirements must be present in the project method:
- -
- Interdisciplinary nature.
- -
- Project-oriented learning.
- -
- Forms of autonomous learning.
- -
- Team-based learning.
- -
- Media-assisted learning.
It is an educational method with very clear sequential steps aimed at solving everyday problems of the world through the design and construction of technical objects, spaces by means of models, etc. [20].
Thus, the central idea of project-based learning is that real world, everyday problems engage students’ interest and provoke serious thinking as students acquire and apply new knowledge in a problem-solving context. The teacher plays the role of facilitator, working with students to formulate questions, structuring meaningful tasks, coaching both knowledge development and social skills, and carefully evaluating what students have learned from the experience [21]. This assertion implies that teachers have the necessary skills and knowledge to implement project-based learning and meet the learning objectives [22].
This research describes the technical project carried out by the students that will allow them to work on both competences: the specific competences described in Royal Decree 243/2022, of 5 April, which establishes the organization and minimum teaching of the baccalaureate and the key competences for sustainability promoted by UNESCO in 2017 [2,3,4,5,6,7,8,9,10,11,12,13,14,15,16,17,18,19,20,21,22,23].
In Order ECD/65/2015, of 21st January, which describes the relationships between competences, contents, and assessment criteria for primary education, compulsory secondary education, and baccalaureate, it is understood that key competences are those that all people need for their personal fulfilment and development, as well as for active citizenship, social inclusion, and employment [24]. This term has been analyzed over time by various authors; for Rodriguez, J., they are those that students must have developed throughout their educational journey in order to achieve personal fulfilment, exercise active citizenship, enter adult life satisfactorily, and be able to initiate permanent and significant learning.
In this way, students must know how to apply knowledge in a real context, understand what they have learnt, and have the ability to integrate the different learning, relate it, and use it in a practical way in the possible situations or contexts they have to face on a daily basis [25].
In our case, five competences of each type have been worked on, as shown in Table 1 and Table 2 below.
Table 1.
Key competences for sustainability.
Table 2.
Specific competences in technical drawing.
The subject of technical drawing is essential for students who are going to study a degree in the scientific-technological branch; degrees such as Architecture, Civil or Industrial are just some examples of higher studies whose teaching load in areas linked to technical drawing are more than evident; therefore, previous, solid and well-planned training is necessary in the two years of baccalaureate, prior to the access of these students to these university degrees. However, on occasions, certain university teachers in the area come up against certain difficulties related to the training of students entering these degrees such as:
- -
- The area of technical drawing should include content directly related to computer-aided design.
- -
- Students belong to the technological era and sometimes feel disappointed when their expectations are not met, as traditional methodologies offer them visually unattractive content [26]. Therefore, in this educational experience, we offer an attractive project and the use of ICT as we will see in the Materials and Methods section of the research. ICT is essential in today’s teaching and educational spaces and also has its own role and is no less important. Classrooms are places where students spend most of their day, interacting with their peers and teachers, growing and forming into adults ready for the future, so students are going to work in groups in the classroom. Computer-aided design (CAD) is vital in order to be able to offer an exact and attractive vision of the projected whole. Moreover, its importance in the study of graphic expression in engineering and in ecodesign is vital as it fosters the acquisition of digital competences as well as an improvement of the students’ spatial skills. Other research studies follow this line of work. The spatial perception offered by ICT helps reasoning in many fields and when making diagrams, graphs, or sketches [27].
2. Materials and Methods
In this section, we first describe the development of the technical project divided by stages, then we provided a questionnaire that gave us information on the level of appropriation of knowledge on sustainability. Figure 2 shows the stages of the ecodesign of the project.
Figure 2.
Ecodesign project stages.
The project was to redesign, using ICT, a space for coexistence in the school, which, at the students’ choice, turned out to be the school’s technical drawing room. This project was supported by ecourban measures throughout its development, from the conception of the idea to the materialization of the final model; the participants took into account the three dimensions of sustainability: economic, social, and environmental.
The selection of the space to be redesigned materialized once the students had completed the stage of analyzing the center’s spaces. They studied the possibilities of the computer room, pavilion, and library, among other rooms.
The environment in which students interact has a great impact on their quality of life, so it is essential to adapt it to stimulate and motivate their multiple intelligences. One of the determining factors in this process is luminosity, as it is an element of vital importance for human beings. This aspect was therefore decisive in the choice of the space to be redesigned [28]. What captivated the students in their choice was the orientation in the north-eastern part of the school. With sunrise from the east and sunset from the west, they were able to observe more natural light throughout the day, which would allow for less energy consumption of artificial light and a better use of natural light, as well as a better use of passive solar energy. Sunlight causes an increase in cognitive capacity through the secretion of serotonin, improving the mood and resulting in greater concentration in students. In contrast, artificial light or even a lack of light forces the brain to work harder on a task, thus influencing poor performance and causing negative moods in students [29]. For this purpose, the students carried out a solar study with the Revit programme as shown in Figure 3.
Figure 3.
Solar study of the area of action.
The choice of space also allowed them to design a natural area that was connected to the classroom but at the same time received direct sunlight. Nowadays, students no longer relate to the natural environment in the same way as they did years ago; as they live in the city, they have lost that experiential part. The students have opted for the creation of an environment in contact with nature that allows for psychosocial and physical development. Contact with nature allows for a sense of freedom and mobility, leading to an increase in creativity and improved performance [30].
To start working on the ecodesign, once the area of action had been chosen, they drew up freehand sketches on which they noted the necessary details, dimensions, spaces, gaps in the façade, among others. To improve their digital competence, the students designed the space to be remodeled with Photoshop CC 2021. See Figure 4.
Figure 4.
Hand-drawn sketch of the classroom to be redesigned (a) and the current state of the area of action in photoshop (b).
Figure 5 shows the current floor plan with the annotations, elements, and dimensions noted by the students. To draw these plans, the students used a square, a square and a compass.
Figure 5.
Plan of the current state of the classroom drawn up by the students.
In order to develop the design, the pupils brainstormed sketches in which they expressed their needs. From a social and environmental point of view, they devised the structure of their classroom, the green area, the distribution of multidisciplinary spaces, the design of the windows, tables, etc. and Figure 6 shows these sketches.
Figure 6.
Sketch of the students’ ideas.
They spent time defining and rethinking the different spaces, geometries, and utilities of both the “Chill out” windows and the furniture so that they would be fully functional, ergonomic, and efficient. More visual details of the final design of the windows, all of which are ergonomic, is attached. The windows connect the classroom with the outside. The design includes folding tables at a height of 1.25 m above the floor with dimensions of 1 × 1 m. They also have a folding leg that allows the table-top to be folded up when not in use (see Figure 7).
Figure 7.
Ergonomic study of the windows (a) and details of the windows (b).
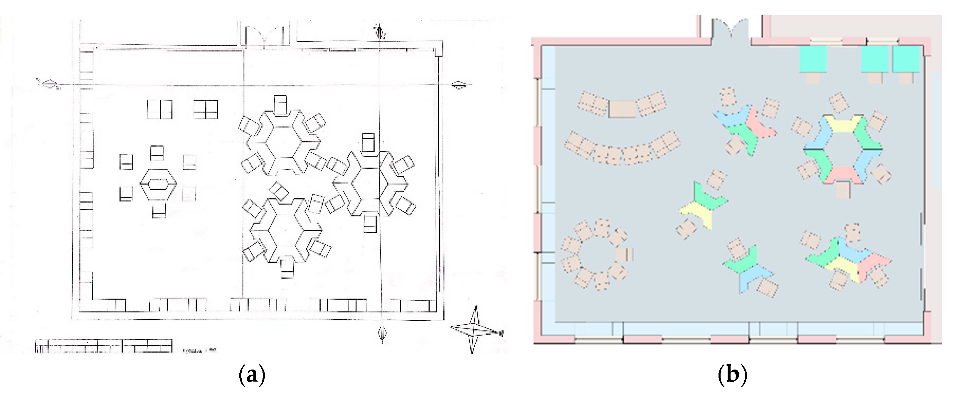
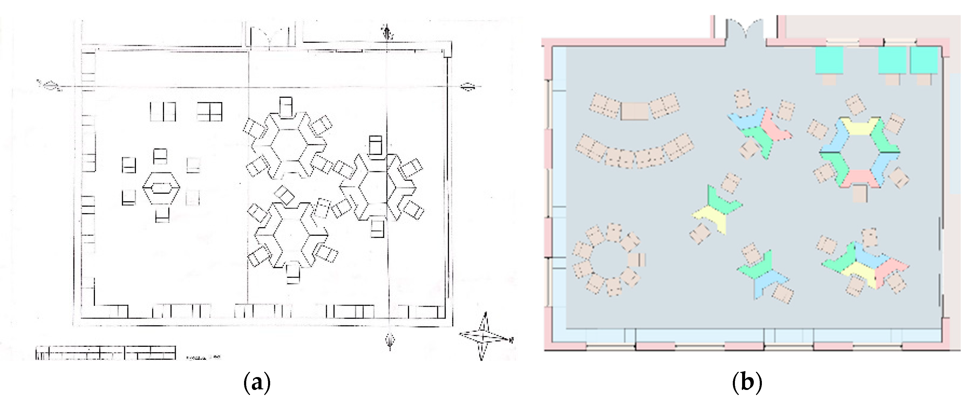
The drawing plan attached in Figure 8 shows the layout of the designed furniture, windows, and access door. The students used technical drawing tools and produced a graphic scale. They defined the final design of the projected floor plan using CAD. The classroom includes adaptable furniture, stackable and attachable bamboo seats; 75 cm high multi-position tables with a half-hexagon shape and an interior opening that allows both arms to rest on. They also have adjustable legs designed for group work for the smallest children or for those who require a lower table height. Its hexagonal shape allows several of them to join and create meeting spaces with different distributions.
Figure 8.
Proposed design in plan, graphic scale (a) and CAD design (b).
Finally, the students focused on the design of the outdoor space, an environment in which they could develop their social relations. Figure 9 shows the final design of the outdoor area. To elaborate the design, they used Photoshop. The terrace has an organic shape to create contrast with the interior polygonal shapes, it is made by means of tangencies between circles, representing the perfection of the circle and to break with the traditional. This space houses a natural environment with a wall of vegetation that descends to the end of the building. On the other hand, on the platform, we find pots and plants on the wooden floor and a relaxing space with armchairs under the hexagonal windows that allows contact with the natural environment.
Figure 9.
Final design of the outdoor terrace.
After the end of the project, the students completed a questionnaire, the results of which made it possible to determine their level of attention to sustainability. The instrument is content-valid, reliable, and affordable for monitoring and evaluating students’ environmental and sustainability perception [31]. Of the three parts of the questionnaire, the so-called “knowledge appropriation” part was used, as the other two parts were aimed at students with a university profile. The eight items of the questionnaire provided information on students’ training in sustainability, their direct application, knowledge of terms, objectives, and application in the social sphere.
The eight items are as follows:
- Do you know the condition of the environment in your locality?
- Do you think it is important to take into account the effect on the environment in your daily activities?
- Are you concerned about caring for the environment in your community?
- Do you know the term sustainability?
- Are you contributing with your actions to the care of the environment?
- Do you know the objectives of sustainability?
- Have you participated in events on sustainability issues for the benefit of your community?
- Have you observed your community’s actions on sustainability?
Therefore, the study variable from the questionnaire is the students’ appropriation of knowledge in sustainability.
By means of a non-random sampling, 10 students from the 1st year baccalaureate in the subject of technical drawing were selected who were interested in taking part in an educational competition for which they prepared the project presented in the research. The students answered each question using a non-comparative scale, a semantic differential scaling. For the rating scale, seven items were used with the two-point labels “a little” and “a lot” as shown in Table 3.
Table 3.
Bipolar labels.
The statistical analysis was carried out from a univariate approach studying the mean, standard deviation, median, and interquartile range. Ratings 1, 2, and 3 are understood as negative and 5, 6, and 7 as positive. Rating 4 will be neutral and therefore a positive rating in the students’ answers would imply an adequate appropriation of knowledge in sustainability.
3. Results and Discussion
As a result of the research, we can establish that students achieved five key competences promulgated by UNESCO in 2017 and five specific competences listed in Royal Decree 243/2022, of 5 April, which establishes the organization and minimum teaching of the baccalaureate from the Ministry of Education and Vocational Training.
We can therefore affirm that this experience has made it possible to establish a link between the competences specific to the subject of technical drawing and the key competences established by UNESCO, which it considers necessary for training future citizens of sustainability.
As Table 4 shows, the mean for each of the questions is between 5.000 and 6.000, with a coefficient of variation ranging between 13.46% and 21.39%, so we obtain a moderate dispersion around the central value.
Table 4.
Descriptive statistics.
Analyzing the students’ responses after completing the questionnaire, a good level of sustainability competence is evident, as most of the participants obtained results that indicated a good level of sustainability knowledge after using ecodesign to project an educational space in its three dimensions (technological, physical, and environmental), strengthening the Architecture-Education and Engineering-Education binomials.
Through this technical project, the Engineering-Education and Architecture-Education binomials have been strengthened in the development and redesign of an educational space that has fostered the students’ responsible creativity by working on the curricular contents of technical drawing and achieving some key competences for sustainability established by UNESCO in 2017. The work stages elaborated by the students using the project method, using various computer programmes and computer-aided design software, which have allowed them to improve their digital competence, have been presented. This type of experience in the classroom encourages students’ re-sponsored creativity and improves their sustainable awareness, thus following the roadmap set out in SDG 4 Quality Education [32]. Taking Finland as an example, which is one of the pioneering countries in modern education, we can see how technicians and pedagogues work together. Perhaps the problem is that the rest of the less advanced countries have not managed to see that the spatial dimension in which technicians and teachers meet is the same and that they need to work together in order for today’s educational centers to meet the expectations of education in the 21st century [33]. With responsible architecture and engineering in mind to help achieve educational projects, an interaction between education and both must be facilitated, one that has as its main foundation the creation of an educational quality of life. To this end, architecture and engineering must be seen as a social instrument of cultural transmission, rather than a mere technical instrument.
We could say that architecture and engineering are closely linked to education since the acquisition of knowledge also depends on the place where they are taught. This is why these sciences affect school performance, students’ motivation, and their cognitive, socio-emotional, and behavioral skills. Moreover, the introduction of this subject in schools would facilitate a participatory construction on the part of educational agents, since, for example, students would be able to give their opinions, thus stimulating their judgement and making them aware of the importance of architecture in their daily lives. Students tend to develop feelings of esteem towards their educational centers, as they form part of their emotional and social development for many years of their lives, so the quality of education is related to the space and this must inspire wellbeing so that the educational community feels that they belong to the institution and increase their motivation [34].
This is why ESD must be considered as a very important factor in relation to education and its spaces as both schools and universities need to consider the architectural space in order to meet the needs of individuals. Furthermore, educational centers are social centers where, as the word itself indicates, the educational community socializes and interacts. Even though many educational centers have been created years ago, they should be subject to any kind of restructuring as society advances, and with it, the new generations and their needs which are covered in part by the use of innovative pedagogies that must be applied in places where their total practice is productive and beneficial [35]. The infrastructure of an educational institution must take to the limit the development potential of students and teachers, since this space is merely the tool that gives character and expression to the center [36]. The learner, according to the holistic approach of Moles and Rohmer’s psychology of space, establishes a direct relationship between the quality of the space, the material of the space, and learning; we could then affirm that the educational space as a physical place can facilitate ESD [37]. Sustainability in this globalized society requires integrating the processes of rational use of resources into daily life that impact society, on the efficiency of economic, social, technological, and service management, with an entrepreneurial culture that builds models that help to institutionalize knowledge [38].
Certain limitations have been found in the present study. A larger sample of students involved in the project would have allowed us to obtain more far-reaching results. It would be advisable to carry out a similar experience with the same students at a later time and check if there are significant differences in the direct observation notes made in relation to motivation and interest in the experience as well as in the results of the questionnaire. The students showed a lot of interest; however, the sample was not random and therefore, in future research, it would be interesting to carry out a simple random sampling to determine the students who would participate in the new project. As final conclusions and with the results obtained, working methodologies will be used in future similar projects with a larger sample of pupils and working on other key competences for sustainability, which would allow us to carry out a comparative study in both investigations.
Author Contributions
Conceptualization, F.L.R.; methodology, F.L.R., F.D.C.V. and G.M.M.; software, F.L.R. and F.D.C.V.; validation, F.D.C.V.; formal analysis, F.L.R. and G.M.M.; investigation, F.L.R. and F.D.C.V.; resources, F.D.C.V. and G.M.M.; data curation, G.M.M.; writing—original draft preparation, F.L.R. and F.D.C.V.; writing—review and editing, F.D.C.V.; visualization, G.M.M.; supervision, F.L.R. and F.D.C.V.; project administration, G.M.M. All authors have read and agreed to the published version of the manuscript.
Funding
This research received no external funding.
Institutional Review Board Statement
Not applicable.
Informed Consent Statement
Informed consent was obtained from all subjects involved in the study.
Conflicts of Interest
The authors declare no conflict of interest.
References
- Ministry of Social Rights and Agenda 2030. 2022. Available online: https://www.mdsocialesa2030.gob.es/agenda2030/conoce_la_agenda.htm (accessed on 20 September 2022).
- UNESCO. Education for the Sustainable Development Goals: Learning Objectives. 2017. Available online: https://unesdoc.unesco.org/ark:/48223/pf0000252423 (accessed on 28 September 2022).
- Saura, M.; Muntañola, J.; Méndez, S.; Beltran Borras, J. From the education of the architect to the architecture of education: An essential dialogue. Bordón 2016, 68, 165–180. [Google Scholar]
- López, C.P.; Gutiérrez, C.L. Space as a facilitator of learning: An experience in initial teacher training. Pulse J. Educ. 2002, 25, 133–146. [Google Scholar]
- Laorden, C. Family, School and Coexistence; Fundei: Madrid, Spain, 2001. [Google Scholar]
- Casalderrey, M. Space and Play; Praxis: Madrid, Spain, 2000. [Google Scholar]
- Aguilar, M. Learning and Information and Communication Technologies: Towards new educational scenarios. Lat. Am. J. Soc. Sci. Child. Youth 2012, 10, 801–811. [Google Scholar]
- Krüger, K. The concept of the knowledge society. Bibliogr. J. Geogr. Soc. Sci. XI 2006, 11, 1–14. [Google Scholar]
- Chaparro, F. Knowledge, learning and social capital as an engine of development. Inf. Sci. 2001, 30, 19–31. [Google Scholar]
- Rodríguez, F. School Architecture in Cantabria: Analysis of school architecture in the municipality of Castro Urdiales. Hist. Educ. 2012, 31, 377–380. [Google Scholar]
- Amann, B. Education for sustainable development (ESD) and school architecture. Space as a reactive of the pedagogical model. Bordón 2016, 68, 145–163. [Google Scholar]
- Barkmann, C.; Wessolowski, N.; Schulte-Markwort, M. Applicability and efficacy of variable light in schools. Physiol. Behav. 2012, 105, 621–627. [Google Scholar] [CrossRef] [PubMed]
- Lippman, P. Can the Physical Environment Have an Impact on the Learning Environment? CELE Exchange 2010/13; OECD Publishing: Paris, France, 2010. [Google Scholar]
- UNESCO Education Strategy 2014–2021. Available online: https://unesdoc.unesco.org/ark:/48223/pf0000231288 (accessed on 20 October 2022).
- Alió;, M. Towards Urban Environmental Reform; Contributions from the Methodology of Municipal Eco-Audits; Editions of University of Barcelona; University of Barcelona: Barcelona, Spain, 1997; Volume 154. [Google Scholar]
- UNESCO. Links Between the Global Initiatives in Education. In for Sustainable Development in Action; Technical Paper 1; UNESCO: London, UK, 2005. [Google Scholar]
- Ricoy, M.; Couto, M. Demotivation in Mathematics among High School Secondary. Electron. J. Educ. Res. 2018, 20, 69–79. [Google Scholar]
- Miraba, J.; García, X.; Rojas, N.; Puig, N.; Artiles, P. The project method, its application in the discipline of Medical Informatics. Edumecentro 2012, 4, 116–124. [Google Scholar]
- Karlin, M.; Viani, N. Project-Based Learning; Jackson Education Service District: Medford, OR, USA, 2001. [Google Scholar]
- Cabero, J.; Llorente, M.; Salinas, J. E-Activities. A Basic Reference for Internet Training; MAD S.L, Spain: Madrid, Spain, 2006. [Google Scholar]
- David, J. Aprendizaje basado en proyectos. Educ. Liderazgo 2008, 65, 80. [Google Scholar]
- Amo, D.; Zorro, P.; Fonseca, D.; Poyatos, C. Systematic review on what analysis and learning methodologies are applied in primary and secondary education in learning robotic sensors. Sensors 2021, 21, 153. [Google Scholar] [CrossRef] [PubMed]
- Royal Decree 243/2022, of 5 April, Establishing the Organisation and Minimum Teaching of the Baccalaureate; Ministerio de Educación y Formación Profesional “BOE” Núm. 82, de 06 de Abril de 2022 Reference: BOE-A-2022-5521; Official State Gazette: Madrid, Spain, 2022; pp. 79–80.
- Order ECD/65/2015, of 21st January, Which Describes the Relationships between the Competences, Contents and Assessment Criteria of Primary Education, Compulsory Secondary Education and Baccalaureate; Boletín Oficial del Estado, 25, 29 January 2015; Official State Gazette: Madrid, Spain, 2015; pp. 6986–7003.
- Rodríguez, J.; Cruz, P. From basic competences to key competences in Early Childhood Education. Comparison and updating of competencies in the curriculum. Purp. Represent. 2020, 8, e366. [Google Scholar]
- Navarro, R.; Saorín, J.L.; Contero, M.; Conesa, J. Sketch Drawing and Spatial Vision: Learning and Assessment in Engineering Education through New Technologies. Paper Presented at the XII International Congress on Educational Innovation. 2004. Available online: http://www.regeo.uji.es/publicaciones/NSCC04.pdf (accessed on 28 October 2022).
- Del Cerro, F.; Morales, G. Augmented reality as a tool for improving special intelligence in secondary school students. J. Distance Educ. 2017, 54. Available online: https://revistas.um.es/red/article/view/298831 (accessed on 27 December 2022).
- Vaquer, I.M. Neuroarchitecture in education. An approach to the state of the question. Dr. J. UMH 2017, 3, 6. [Google Scholar]
- Barbosa-Camargo, M.A. Britalia Educational Equipment. Neuroarchitecture Applied to the Design of an Educational Institution. Available online: https://repository.ucatolica.edu.co/bitstreams/b402a1f0-28cf-4297-a7da-890e6c2fe863/download (accessed on 27 December 2022).
- Bastidas-Jiménez, C.S. Biophilia in Architecture, an Environment for Well-Being; Catholic University of Colombia: Bogotá, Colombia, 2021. [Google Scholar]
- Martínez-Valdés, M.G.; Juárez-Hernández, L.G. Design and validation of an instrument to assess sustainability training in higher education students. REDIECH J. Educ. Res. 2019, 10, 37–54. [Google Scholar]
- Del Cerro, F.; Lozano, F. A case study of teaching STEM subjects through ecourbanism supported by advanced design tools, in the 2030 horizon of sustainable development goals (SDGs). J. Distance Educ. 2018, 18, 58. [Google Scholar]
- Muntañola, J.; Saura, M. On the Search of the Research Core of Architecture. Ideas Reflect. Archit. Urban Des. Educ. 2005, 28, 148–151. [Google Scholar]
- De Paz, S. Architecture and Education. Available online: https://www.interempresas.net/Construccion/Articulos/244535-Arquitectura-y-educacion.html (accessed on 11 November 2022).
- Sennett, R. Flesh and Stone: The Body and the City in Western Civilization; Norton & Company: New York, NY, USA, 1996. [Google Scholar]
- Perkins, B.; Kliment, S.A. Building Type Basics: Elementary and Secondary Schools; John Wiley & Sons Inc.: New York, NY, USA, 2001. [Google Scholar]
- Moles, A.; Rohmer, E. Psychologie de l’espace; L’Harmattan: Paris, France, 1998. [Google Scholar]
- Carro-Suárez, J.; Reyes-Guerra, B.; Rosano-Ortega, G.; Garnica-González, J.; Pérez-Armendáriz, B. Sustainable development model for the ceramic tile industry. Int. J. Environ. Pollut. 2017, 33, 131–139. [Google Scholar]
Disclaimer/Publisher’s Note: The statements, opinions and data contained in all publications are solely those of the individual author(s) and contributor(s) and not of MDPI and/or the editor(s). MDPI and/or the editor(s) disclaim responsibility for any injury to people or property resulting from any ideas, methods, instructions or products referred to in the content. |
© 2023 by the authors. Licensee MDPI, Basel, Switzerland. This article is an open access article distributed under the terms and conditions of the Creative Commons Attribution (CC BY) license (https://creativecommons.org/licenses/by/4.0/).








