Next Article in Journal
Life Cycle Costing Implementation in Green Public Procurement: A Case Study from the Greek Public Sector
Next Article in Special Issue
Noise Isolation System for Indoor Industrial Ventilation
Previous Article in Journal
Evaluation of Real-Time Perception of Deformation State of Host Rocks in Coal Mine Roadways in Dusty Environment
Previous Article in Special Issue
Estimation of Indoor Temperature Increments in Summers Using Heat-Flow Sensors to Assess the Impact of Roof Slab Insulation Methods
 
 
Font Type:
Arial Georgia Verdana
Font Size:
Aa Aa Aa
Line Spacing:
Column Width:
Background:
Article

Overlooked Impacts of Urban Environments on the Air Quality in Naturally Ventilated Schools Amid the COVID-19 Pandemic

1
Faculty of Architecture, University of Ljubljana, Zoisova Street 12, 1000 Ljubljana, Slovenia
2
Faculty of Health Sciences, University of Ljubljana, Zdravstvena pot 5, 1000 Ljubljana, Slovenia
*
Author to whom correspondence should be addressed.
Sustainability 2023, 15(3), 2796; https://doi.org/10.3390/su15032796
Submission received: 28 December 2022 / Revised: 24 January 2023 / Accepted: 25 January 2023 / Published: 3 February 2023
(This article belongs to the Special Issue Sustainability and Indoor Environmental Quality)

Abstract

The density, form, and dimensions of urban morphology are important for healthy living conditions in cities, especially if they are related to the climate and air pollution. Morphology and environmental conditions determine the relationship between open and built space, the width of street spaces, the aerodynamic characteristics of wind currents, albedo, and the retention of pollutants, as well as determining the radiative exchange with the atmosphere. Studies on the COVID-19 pandemic have focused on the assumption of a possible relationship between the spread of the SARS-CoV-2 virus and the presence and concentration of airborne particulate matter (PM10 and PM2.5). This paper focuses on the research of indoor air quality (IAQ) in two schools with naturally ventilated classrooms in Ljubljana, Slovenia. The presence of particulate matter (PM2.5 and PM10) and the concentration of CO2 were studied, along with other microclimatic conditions, e.g., ambient temperature, relative humidity, air pressure, and wind conditions. These were compared and assessed via analysis of variance (ANOVA) and Duncan’s post hoc test. The main concern was to see how effective different ventilation strategies are, as well as how the openings in the classroom impact the concentrations of CO2 relative to the concentrations of PM2.5 and PM10 particles as a side effect of these ventilation strategies. The inconsistent application of recommended COVID-19 ventilation strategies suggests that IAQ in naturally ventilated classrooms is highly determined by individual perceptions of indoor air quality. The results also suggest that the IAQ is significantly affected by the schools’ urban environment; however, this is not considered within the national COVID-19 ventilation recommendations. Future ventilation guidelines for pandemics should also include the urban environment as a risk factor for inadequate IAQ, instead of focusing solely on pathogen characteristics.

1. Introduction

As SARS-CoV-2 infections spread around the world in 2020, the pandemic forced governments and regulatory institutions to declare a crisis and implement dramatic measures to combat the spread of the virus, with impacts on society and the economy [1,2]. With each new variant of mutation, the number of viral infections fluctuated, causing changes in the restrictions on public life to control the pandemic. These restrictions fell onto the school system, and so the schools had to adapt to the new recommendations and protocols that were developed by the national health institutions [3], to try to ensure a safe environment in classrooms. The scope of these restrictions varied temporally and regionally; however, all covered measures of preventing infections with similar respiratory viruses causing severe acute respiratory syndrome (SARS). These included the mandatory use of masks, maintaining social distance between pupils and staff, protocols of cleaning and disinfection, ensuring the hygiene of hands and coughing, and providing appropriate ventilation [4]. In Spain, natural ventilation was prioritised over mechanical ventilation, and special measures were applied to the use of mechanical ventilation [5]. The recommendations for controlling a SARS outbreak indoors suggested ventilating at least at the beginning and the end of each class, during the break and, if possible, during the class as well. The effectiveness of these measures in schools was proven [6], although not all schools ventilated their classrooms in the same manner. Early on during the outbreak of COVID-19, as new health measures were implemented in schools, studies focused on the assumption of a possible relationship between the spread of the SARS-CoV-2 virus and the presence and concentration of airborne particulate matter (PM10 and PM2.5) [7]. The rapid spread of the virus in the Italian city of Bergamo in 2020 prompted researchers to first look into the possibility of measuring PM10 particles as early indicators of transmission of the SARS-CoV-2 virus [8]. The deposition of viruses and bacteria has already been proven to be associated with aerosols and particle matter, particularly those greater than 0.7 μm in size [9], as viruses and bacteria are usually not dispersed in the air as free particles [10,11]. In a similar way to how CO2 can be considered to be an indicator of indoor pollution [12,13], PM can be used to indicate the potential spread of COVID-19 in the air, and high levels should trigger remedial action to reduce the risk of infection [14]. Comparably, Lelieveld et al. [15] found aerosolised particles to effectively transmit COVID-19 in indoor environments. A study investigating the IAQ in primary school classrooms [16] found that closing windows and doors could only partially prevent outdoor PM2.5 from infiltrating indoors, as the indoor concentrations of PM2.5 fell to only 60–70% of the comparative outdoor concentrations. Many issues can impede adequate ventilation in classrooms.

1.1. Characteristics of Urban Environments

The form and dimensions of urban settlements are important to the climate and air pollution in cities at different scales. Their size, centrality versus polycentricity, radiality versus linearity, and dispersion versus densification can be considered. These are the variables that influence the overall climate [17]. On a smaller scale, we can consider the elements of an urban area, which usually include the land cover and the morphology and materiality of any built area. Morphology determines the relationship between open and built space, the width of street spaces, the aerodynamic characteristics of wind currents, albedo, and the retention of pollutants, as well as the radiative exchange with the atmosphere [17]. Within a city, the density, location, and type of pollution sources vary considerably from one place to another, both at the city scale and within individual districts and neighbourhoods. There is a mix of activities, land uses, and changes in the number of streets and traffic density. Developed urban space is therefore highly heterogeneous, but fundamentally it is generally the case that pollutant levels within the street canyon tend to be higher than those on the back side of the street [18]. Residential neighbourhoods and quiet residential areas with small numbers of commercial activities, parks, and allotments form what we consider the urban background (UB). These areas are kept away from major roads and other major sources of traffic pollutants. The second type of urban space is marked by major roads or heavily trafficked arterial roads that cross densely built urban areas and create road corridors or urban canyons (UCs). This type of space is characterised by dense and slow traffic, due to the density of the network and a large number of junctions and car parks where traffic is slowed to a stop. An important characteristic of road corridors is the reduced self-cleaning capacity of the atmosphere and, thus, higher expected concentrations of primary pollutants [17]. A space along wide open streets can be considered as the third type of urban space (US). This is again characterised by the busier road categories, although the self-cleaning capacity is better due to the wider road profile [19]. Our study considers two of these kinds of urban areas—the UB and the UC, which are most different from one another.

1.2. The Methods of Ventilation in Classrooms

Studies on the transmission of the SARS-CoV-2 virus have shown that a good indoor ventilation system is crucial to limit pathogen transmission indoors where many people gather [20,21,22]. Some school buildings are equipped with mechanical ventilation systems, some rely entirely on natural ventilation, and others have a combination of the two. Although mechanical ventilation systems enable the possibility of zero-energy buildings and filtration of indoor and outdoor air, studies on air quality in educational environments have shown adverse effects if not maintained correctly [5], and this may not be the first choice of the pupils [23]. Ventilation techniques could be considered appropriate if they help to reduce the airborne transmission of the SARS-CoV-2 virus and airborne particles containing small microdroplets. This encompasses the provision of sufficient air exchange, particle filtration, and air disinfection, while avoiding air recirculation. Other requirements also need to be considered apart from the ventilation rate, including the control of temperature, relative humidity, and airflow distribution and direction [24]. The systems of ventilation and the method of their use enable considerable differences in how the virus spreads indoors [24]. Particularly in schools limited to natural ventilation, these differences are most noticeable, where the ventilation time is voluntary and limited to the performance of the thermal building envelope and the thermal comfort of pupils [25,26]. In these cases, the success of high air-exchange rates is highly dependent on the occupants and how they perceive and respond to the quality of indoor and outdoor air, as well as their thermal comfort and concerns over energy savings [27], as they have complete control and allow or limit the ventilation time and the rate of air exchange [28]. The measures to contain the spread of COVID-19 infections affect this behaviour, as the teachers, who are primarily responsible for ventilating the classrooms, are obliged to follow the protocol. The Centers for Disease Control and Prevention (CDC) listed specific ventilation strategies to combat the spread of COVID-19 in US school classrooms [29], following the ASHRAE Standard 62.1 [20], as follows:
Improving the air exchange between indoor and outdoor air;
Ensuring that heating, ventilation, and air conditioning (HVAC) settings are maximising ventilation;
Filtering and/or cleaning the air.
The CDC mentioned that a directional airflow proved effective in environments that require a higher level of protection and to remove air particles and airborne contaminants from indoor environments, suggesting window-mounted fans to supplement open windows in existing natural ventilation in classrooms [29]. Similar standards of ventilation strategies in schools were implemented in Slovenia and were in place while our study was taking place. The Slovenian National Institute of Public Health (NIPH) advised the schools to follow the recommendation of keeping at least a 1.5 m distance between pupils whenever possible [4]. For this reason, some classrooms reduced the number of workspaces in classrooms or kept them less occupied, with some pupils attending remotely from home, leaving some spaces in the classroom empty. The ventilation recommendations varied for each facility according to the type of ventilation (mechanical, natural, or hybrid) and the different parameters to be considered (e.g., different window sizes, volume and number of occupants in the room, different amounts of viruses shed, the difference in temperature and relative humidity of indoor and outdoor air, etc.) [4]. Subsequently, each school was required to establish its own ventilation plan, which should specify the method of ventilation, along with the time, frequency, and duration, for each room and classroom. Each classroom was to be thoroughly ventilated before and after class each day [4], while it was advised to open windows during class as well if possible—at least at the middle and end of each school period. The conduct of classes was to be adapted to criteria in such a way as to allow regular ventilation of the premises following the ventilation plan. All windows in each room were to be opened wide for 3–5 minutes in winter, 10–20 minutes in the warm part of the year, and all the time during breaks, at a minimum.
Our study focuses on two primary schools and the ventilation of their classrooms, evaluating how each adapted to the COVID-19 pandemic’s conditions and restrictions. Measurements of IAQ were taken in each school during the winter seasons of 2021 and 2022. This was so that we could observe the effects of different ventilation strategies at the times when the epidemiological situation was worse, with the following research aims:
To evaluate how the COVID-19 ventilation strategies were followed at different IAQ based on PM2.5 and PM10 values;
To analyse the effects of ventilation strategies in the classrooms on the IAQ by measuring the concentration of CO2;
To compare the locations of each school within their urban environment with respect to the results of the air quality measurements.
The inconsistent application of the recommended COVID-19 ventilation strategies suggests that IAQ in naturally ventilated classrooms is highly determined by individual perceptions of IAQ. The results also suggest that IAQ was significantly affected by the urban environment and the characteristics of each location.

2. Materials and Methods

The study was conducted at two urban locations with different spatial properties inside two primary schools, found in the city centre of Ljubljana, Slovenia. For the first case study location (1), the Ledina school was selected, as the surrounding space most resembled the road corridor of an urban canyon (UC). The case study of the second location (2) closely matched a space of quiet residential areas, most similar to the urban background (UB) described previously, for which the Poljane primary school was selected. Both areas were developed during the early 20th century following an urban plan (Ljubljana regulatory plan) made by the architect Max Fabiani in 1895 [30]. Before the development, these areas were known to be mostly flat and fertile agricultural land. As described, the distinct characteristics of these two urban environments were key in choosing the schools for our case study. The measurements at location 1 were taken on the days from 20 to 22 December 2021. The second measurements, at location 2, were on the days from 11 to 13 January 2022. They started between 7:00 and 9:00 before the arrival of the first pupils and ended between 13:00 and 15:00 or after the end of the last school period, including extended school hours, when the last pupil left the classroom. Both sessions during this period saw exclusively calm and dry weather, with low outdoor temperatures. Both schools (UC and UB) had central heating systems with hot-water radiators as terminal units placed beneath the window recess.
While the pandemic was still declared, the government measures on hygiene criteria during COVID-19 [4] were in place. The occupants needed to wear masks during class. The measures to contain the spread of COVID-19 in schools at the time required the windows and doors to be opened at certain time intervals. However, these guidelines were followed to varying degrees, as sometimes the windows were open slightly for the duration of the entire class. On other occasions, the windows were opened in such a way as to allow for maximum ventilation and were closed again quickly. The guidelines of ventilation [4] were followed in both of our study cases during the measurements; however, the ventilation time of the opened windows was shorter than 2 minutes, as the outside temperatures were uncomfortably low during the winter months. In agreement with the head teacher and the class teacher on duty, the classrooms were to be ventilated as was usual for each classroom at that time, and the condition of the windows and doors (i.e., whether they were open or closed) was recorded for each measurement interval. Each day, the experiment began 10 minutes before the pupils entered the room, before the class started. Indoor measurements were recorded at intervals of 10 minutes, and in the outdoor areas data were collected every 30 minutes. The measurement points in the schools were located in representative classrooms, where the number of pupils remained constant for the duration of the study—23 pupils at location 1 and 16 pupils at location 2. This was because the space of the representative classroom was used by a single class throughout the school day. Measurements were taken throughout the day, and each school day consisted of classes with short breaks, as well as a longer lunch break. They day concluded with the last period, after which the measurements ended minutes after the last student left the classroom. In addition to the children, there were two adults present: the teacher and the measurement operator. During the experiment, the pupils attended a variety of classes and lessons and were able to interact with one another, at times also leaving their workstations.
The results of the IAQ measurements in the classrooms were interpreted to assess the hypothesis that the pandemic status affected each of the case study schools and classrooms differently. According to the standard SIST EN 15251:2006 [31], we measured CO2 to determine IAQ, as CO2 levels have been accepted as a suitable indicator of IAQ, because they show how the air has been inhaled and exhaled, and can therefore be related to the respiratory risk of infection [3,28,32]. In addition, CO2 has been associated with the transmission of other pollutants, such as bioaerosols, particulate matter (PM), and total volatile organic compounds (TVOC) [33]. The probability of this relationship has been linked through the Wells–Riley equation, and it has been extensively used for quantitative infection risk assessment of respiratory infectious diseases in indoor premises [34]. A study of CO2 and aerosol concentrations [35] discovered that adequate ventilation was promoted by opening windows and doors according to official recommendations; however, 26% of surveyed classrooms were still found to exceed the recommended CO2 concentration threshold established by the World Health Organization (WHO). In addition, the indoor aerosol concentrations substantially exceeded the recommended limits of 8 h of exposure in 32% of the surveyed classrooms. Altogether, we measured the ambient conditions, air temperature, relative humidity, and the pollutants CO2 and TVOC or air particles. These have an impact on the concentration and wellbeing of the occupants, and air is influenced by the air exchange, particularly in classrooms with natural ventilation [33]. Inside the classrooms of the associated locations 1 and 2, the air quality measurements were taken in the zone of inhalation at the height of a seated child.
The windows and doors (Figure 1) were opened under different scenarios of natural ventilation used, which varied between the two classrooms. These are listed as follows: d0/w0—doors and windows closed; d0/w1—doors closed, and windows only tilted open; d0/w2—doors closed and windows turned open; d1/w2—doors and windows turned open. The exception of d0/w0/w2 represents a timeframe when the windows were alternating between open and closed within 10 minutes. Measurements of air temperature and relative humidity were recorded at a height of 0.1 and 1.1 m from the floor [36,37]. The gauges were placed a minimum of 3 m away from the window and at least 1 m away from the nearest pupil [5,35], as shown in Figures 3 and 5. This approach provides a realistic assessment of pupils’ exposure to inadequate indoor environmental conditions. The latter is complemented by data from automatic measuring stations that monitor not only temperature and humidity, but also precipitation, wind, and cloud cover. These data were collected by the Slovenian Environment Agency (SEA) service from the nearest weather station in Ljubljana, 1.2 km away from the study locations. The measurement of the CO2 concentration, temperature, and relative humidity were all carried out using the Testo 315-3 sensors as a control, while the concentrations of PM2.5 and PM10 were measured using the HP-5800D sensor.
The reference methods for the sampling and measurement of PM2.5 were the SIST EN 12341:2014 (standard gravimetric method), SIST EN 14902:2005 (measurement of arsenic, cadmium, nickel, and lead in PM10), SIST EN 15549:2008 (for polycyclic aromatic hydrocarbons), SIST-TP CEN/TR 16269:2011 (for the measurement of anions and cations), and SIST-TP CEN/TR 16243:2011 (for the measurement of elemental and organic carbon). All monitoring equipment was calibrated. The statistical analysis was carried out using R software version 4.1.1. (Bell Laboratories, Murray Hill, NJ, USA). One-way ANOVA and Duncan’s test were used to determine the significant differences at a significance level of p < 0.05.

2.1. Case Study Location 1: Urban Canyon

The school building of location 1 has three storeys, with a height of 22.1 m. It was built in 1889, with four stories and classrooms directly facing the street, and two streets facing the southern and the eastern sides of the building (Figure 2a). The character of its location can be considered particularly urban in the city context, as it creates the frontage of its corresponding urban street canyon. The structure is made of concrete, reinforced concrete, and bricks. On the ground floor, there is a kitchen with a dining room, a small sports hall, and lower-level classrooms. On the first floor, there are classrooms for first- and second-grade pupils, while the upper floors are dedicated to the classrooms of older pupils. The measurements were carried out in classroom 1 on the first floor, which is intended for pupils in the 5th grade, aged 9 to 10 years (Figure 2b). The windows are facing the southern side at a height of 6.9 m. The street profile of the road consists of a patch of grass and a two-way road with pavement on each side. Tall, mature, deciduous trees are planted on the lawn in front of the school, reaching the height of the fourth floor.
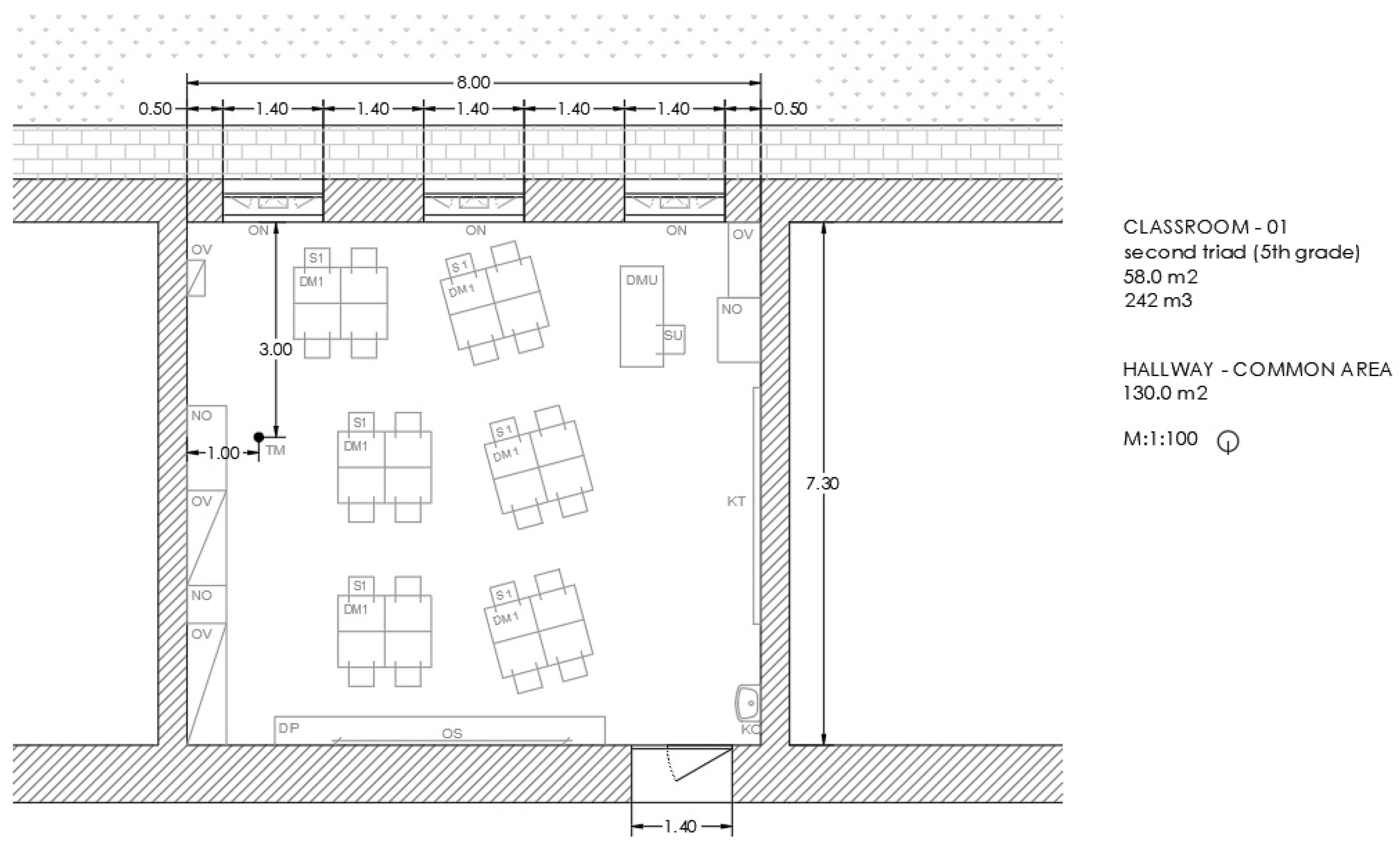
The classroom has a square floor area of 58.0 m2, or 2.41 m2 net area per pupil (Figure 3). It features three window alcoves, each with a radiator heater and a windowsill above. In the upper part, there are window blinds, which were raised at the time of the measurements. The windows open via two sashes in the bottom row and the top row on a tilt. The windows that open to the stile provide a total of 2.52 m2 of open area. The windows opening on the upright side provide a total of 1.35 m2 of open area. At the time of the measurements, two windows were fully opened at every school hour. A window was also kept open at the teacher’s seat at all times. The windows were then closed quickly, in less than one minute, because of the winter temperatures outside. The door was only opened during breaks; however, the children stayed in their classroom, leaving only during sports education and following the last lesson. The absence of students for sports class occurred on 22 December 2021, from 12:00 to 13:00, and on 11 January 2022, from 11:00 to 12:00. The classroom had 6 groups of desks with space for 24 pupils, each sitting 0.5 m from one another (Figure 3). The door to the classroom opens into a common room or corridor connected to the main core of the building and a staircase. The ceiling is 4.15 m high, and the room has a volume of 240.7 m3, or 10.03 m3 per pupil. The classroom has wooden parquet flooring and plastered brick walls. At the time of the measurements, the occupancy of the classroom fluctuated between 22 and 24 pupils.

2.2. Case Study Location 2: Urban Background

The school building of location 2, on the other hand, is only two stories in height, at 9.9 m, and marks one of the quieter and greener locations in the city. The school is separated between three buildings, with the newest wing built in 1976, where the measurements were carried out. The structure is made of reinforced concrete. Similar to the UC school, the first floor has classrooms for first- and second-grade pupils, while the upper floor is dedicated to the classrooms of older pupils. It is set in a quiet urban background but remains within the innermost urban ring, close to the old town (Figure 4a). Due to the urban morphology surrounding the school, the nearby local street does not have the character of a street canyon, with two-way infrequent traffic and a speed limit of 30 km/h. The surrounding space is open and airy. The view from classroom 2, where the measurements were taken, opens out into this area, along with all the windows in the classroom (Figure 4b).
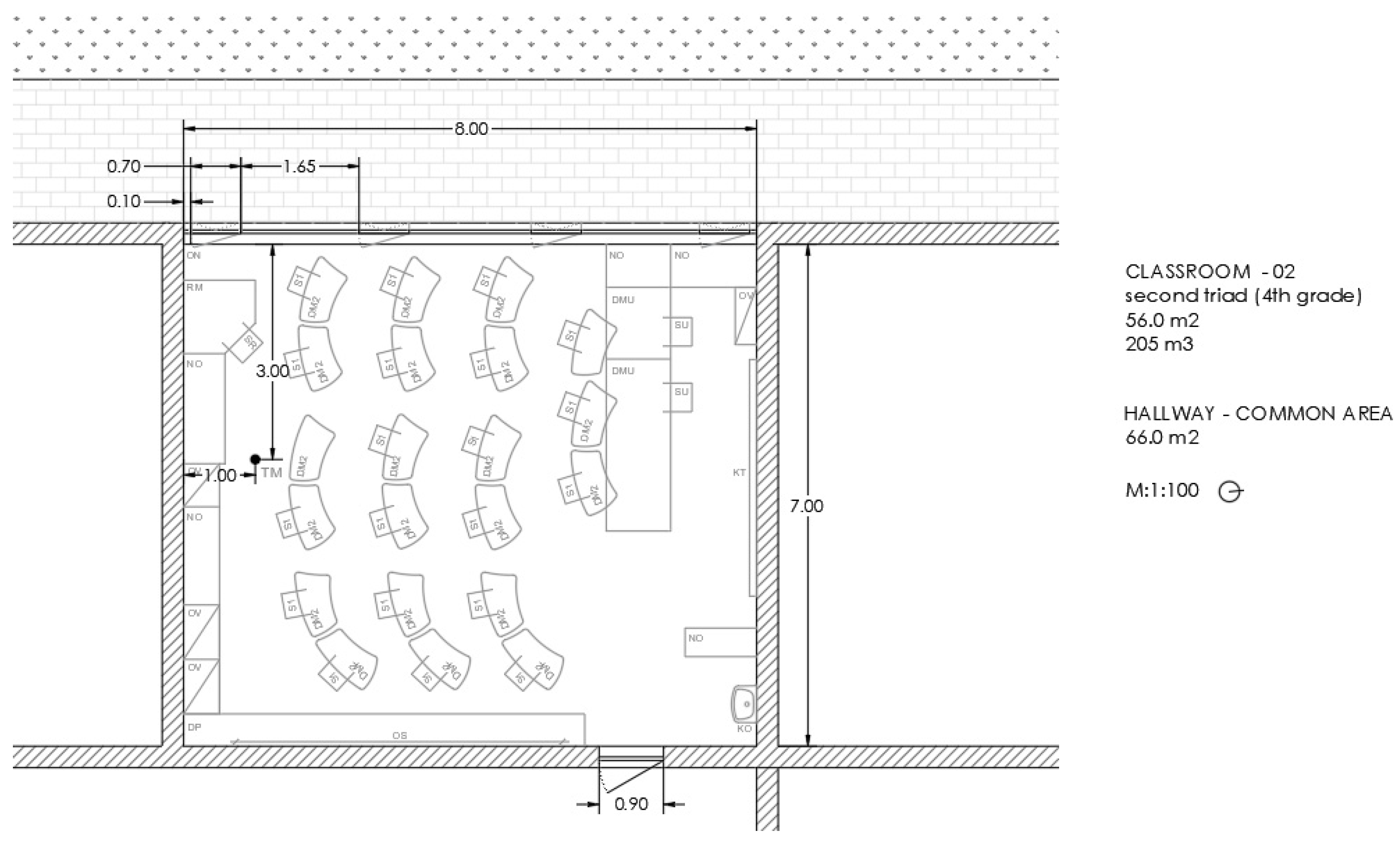
The ground rises by 0.8 m to the level of the path, which carries alternating one-way traffic within the width of the intervention route. The extension, which houses the classroom, has a ground floor and a first floor, topping at 8.8 m. Tall, mature, deciduous trees are planted on the lawn on the south side of the school. The classroom floor measures 56.0 m2, or 2.6 m2 of net floor area per pupil (Figure 4). It has linoleum flooring and plastered concrete walls. At the time of the measurements, ventilation was carried out exclusively by opening all windows at the same time. The windows were opened for less than one minute and then closed simultaneously. The door was only opened during breaks; however, the pupils stayed in their classrooms. The classroom had 6 groups of desks with space for 21 pupils, each sitting 1 m from one another (Figure 5).
The door to the classroom opens onto a common room or corridor, which is connected to the main core of the building and the staircase. The ceiling is 3.65 m high, and the room has a volume of 205 m3, or 9.76 m3 per pupil. At the time of the measurements, the occupancy of the classroom fluctuated between 16 and 18 pupils. The teacher and the measurement operator were present in the room at all times for both study cases. Further description of case study locations 1 and 2 is given in Table 1.

3. Results

The average data for the three consecutive days at the two school locations (UC and UB) are shown in Figure 6, which presents the data taken for both the CO2 and PM2.5, for a total of 34 datasets. The upper side of the figure shows the different scenarios of natural ventilation used, while the labels on the x-axis represent school timetable events, such as the start and end of the class. The outdoor conditions of temperature, relative humidity, and air pressure were comparable in both cases. During the experiment, the average wind velocity was slow, with an average of 1.4 ms−1 in a southeasterly direction for both study areas, as recorded by the closest SEA weather station.
Figure 6a illustrates the data taken at the UC school at location 1. During this time, the outside temperature remained between −4 °C and 2 °C, with high relative humidity of 85%. The winter temperatures proved to be a cause for discomfort among the pupils (as reported by them at the time of the study); however, this did not affect the strict ventilation policy held in place at the time of the COVID-19 pandemic. For this reason, the temperature fell below 20 °C inside the classroom on all three days of the experiment for five data samples. The measurements started at 8:00, and the first pupils started entering the classroom (a); doors and windows were opened during this time. A total of 24 pupils were present at the time of the experiment. From the figure (Figure 6a), it can be seen that the PM2.5 showed a rise in concentration up to the point of the start of class, as the windows and doors were closed (b). The CO2 concentration increased by 1000 ppm during the same interval. Labels (c) and (d) correspond to the time of the first class break, during which the windows were turned open and the CO2 concentration sharply decreased. In contrast, the PM2.5 concentration rose above 40 µgm−3 during I/O air exchange and settled around this level, falling to just 35 µgm−3 at the 11:00 mark (e). At this time, only a window at the teacher’s position was tilted open. This was followed once more by a class break, during which the pupils stayed in class but were free to move around and play inside the class. The windows were turned open and the PM2.5 concentration increased until the class started again, at which point the windows stayed open in the tilt position (f). Before and after the last class (g), the windows and door were opened fully, and a steady increase in PM2.5 concentration was detected, along with a steady decline in CO2 concentration. These levels remained at 700 ppm until the last student left the classroom. The PM2.5 concentration reached 63 µgm−3.
The data from the second part of the case study, at the UB school, are presented in Figure 6b, which shows comparatively dissimilar data from those of Figure 6a, yet the general pattern of datasets for the CO2 and PM2.5 concentrations seem to be inversely presented. As with the first part of the study, the measurements began at 8:00 (a), and class started at 8:30. Before that, only the teacher was present, and the windows were turned open. As the pupils entered the classroom—of whom 18 were present during the experiment—and the class started, the CO2 concentration rose steadily, reaching an average peak concentration of 2250 ppm (b), at which point the break started and the windows and doors were fully opened. What stands out in this figure (Figure 6b) is the rapid decrease in CO2 concentration, falling under 1500 ppm in less than five minutes. Subsequently, the PM2.5 concentration increased to a daily peak at 35 µgm−3 (c)—still below the daily average of the measurements in the UC classroom. The PM2.5 concentration then settled around 25 µgm−3 as the windows and doors were opened again, until the class ended at around 13:00 (e). The CO2 concentration persisted at high values (over 2000 ppm), as the windows were opened for short periods (i.e., under a minute). The levels fell once more after the windows were turned open for a longer time and the pupils began leaving the class. The experiment concluded at 13:40 (f), after the last student left the classroom.
In both case studies, the PM2.5 concentration exceeded the standard set by the World Health Organization, set at 25 µgm−3 [8]. The UC school, however, exhibited higher average values for 25 of the 34 datasets, as the location was more exposed to traffic pollutants. This did not seem to affect the behaviour of opening windows and doors, as the COVID-19 protocol and recommendations on the question of natural ventilation seemed to have overruled any personal discomfort over low temperatures, noise levels, or pollutants. The teacher of classroom 1, who mandated the opening of the windows and door, strictly adhered to the guidelines of the NIPH [4] and used cross-ventilation before and after each class and during breaks, by turn opening the windows and the door simultaneously. Additionally, one window was always opened in the tilt position. This resulted in lower CO2 concentration values overall, with the average not exceeding 1500 ppm in classroom 1. The classroom at the UB school showed higher CO2 concentration values and lower PM2.5 concentrations. As per the ventilation protocol, the classroom was cross-ventilated before and after each day, although not during breaks. When the CO2 concentration exceeded 2000–2500 ppm, the windows were turned open. The findings suggest that this method was not shown to be effective enough in ensuring appropriate I/O air exchange. Conversely, the PM2.5 concentration remained relatively stable. The UB school showed lower outdoor PM2.5 values, meaning that the indoor values could not have reached concentrations as high as at the UC the school. Regardless, the cross-ventilation in classroom 2 was not used as much as it could have been, which was contrary to our expectations. To further analyse the results of the measurements, a statistical analysis was applied using the R software tool and ANOVA, where the dependent variables were defined as the indoor pollutant concentrations, while the independent variables were the number of persons and the outdoor pollutant concentrations of CO2 and PM2.5.
Considering the variance between the two locations, significant differences (p < 0.0001*) were observed for the PM2.5 levels (Table 2). This suggests that air pollutants outside (i.e., the school’s urban environment) may be a contributing factor. The temperature and relative humidity values in the outdoor air showed no statistical differences (Figure 7). The same can be said about the PM10 levels for both the indoor (IAQ) (Table 3) and outdoor (OAQ) (Table 2) air quality for both case studies.
The weak association of PM10 data between the UC and UB locations is not surprising, as several other sources suggest that this is influenced by pollutants of indoor origin [39,40,41]. Significant differences (p < 0.0001) were observed for the CO2 and PM2.5 levels, as well as for relative humidity, meaning that the differences in IAQ between classrooms 1 and 2 were statistically significant. A possible explanation for these results can be found in the differences in adherence to the COVID-19 health protocols between the two classrooms. It is not clear how significant of a difference this would present in the UC school’s usual operation; however, the above-average PM2.5 levels and low temperatures suggest that this is not a sustainable way for a normal classroom to operate in the future. The ANOVA showed another statistical significance in relative humidity (φ), following the variance of opening windows and the suspected difference in I/O exchange. As described in the Introduction, the higher CO2 concentration detected in classroom 2 would indicate a lower I/O exchange and, indirectly, a possibility of a greater risk of spreading SARS viruses or COVID-19 infections, as the TVOC particles are suspended in the room for a longer time (although the presence of these does not directly imply a greater probability of infection, as the transmission only takes place through human-produced bioaerosols).

4. Discussion

This study supports the evidence from other studies [5,42] demonstrating natural ventilation to be effective in ensuring appropriate air exchange in classrooms, especially when using a cross-ventilation approach, i.e., with both windows opened in a turn style and doors that lead to a central hallway or common area, or to the other side of the building. The drawback is obvious in the winter months, when the outside temperatures reach uncomfortable levels, which prevent the windows from being opened at all times. Outdoor pollutants such as high PM2.5 concentrations also affect personal choices in keeping with the ventilation protocols. Our study cases show that even at the peak of the COVID-19 pandemic, public fear and national health recommendations did not ensure adequate ventilation in classrooms. Howsoever the classrooms were still left to be ventilated through subjective actions suggests that other methods should be considered. Adequate ventilation in the classroom before and after class did restore the pollutant levels to match the outdoor and ambient levels.
Rigid COVID-19 measures resulted in cross-ventilation in the classroom even in cases when this might have not been the best practice under normal circumstances in controlled, healthy environments—such as with freezing temperatures or high concentrations of PM2.5 and other pollutants. In the context of COVID-19 measures, this study demonstrates that outdoor air pollution is a greater contributor to lower IAQ in classrooms, with CO2 levels posing a lesser concern. This finding supports those of Salthammer T. [26] regarding the concern for particle-phase pollutants emitted from vehicles in urban environments. Nevertheless, the real contribution from outdoor pollutant sources cannot be accurately estimated, due to the scope of the experiment and the variables that we covered, which should be considered. Overall, we can conclude that COVID-19 regulations succeeded in reducing the presence of TVOC and CO2 emissions, with a better air-exchange rate. The observed difference at the UC and UB locations supports the findings of Aurora Monge-Barrio et al. [5]. Still, this can be said only when the regulations were followed adequately. Furthermore, relying on absolute CO2 concentration as the sole indicator of airborne transmission risk is not supported [42].
In the first scenario, the UC school, located within the city centre, was shown to be more exposed to local traffic pollutants. This resulted in higher PM2.5 levels, as the COVID-19 regulations did not take outdoor pollutants into account. Scenario B, with a location in the UB, performed more favourably in this regard. The less-frequented location allowed for more frequent ventilation, with more unfiltered and unprocessed air entering the school. The windows were also allowed to be turned open for a longer time.
Smaller profiled roads with few lanes accommodate a reduced amount of traffic and can contribute to limiting traffic-related PM emissions, as does a smaller density of commercial and other activities. More open spaces allow for environments with higher wind velocities, providing a greater chance of removing low-emitted pollutants [17,43,44]. Thus, even the UB school location can be considered valuable within the limits of the inner-city area, as the natural ventilation scenarios are influenced by the pollutants present outdoors. These offer a better chance of making schools with naturally ventilated spaces a more viable solution with better IAQ prospects in urban environments.

Study Limitations and Future Research

This study was limited to two case studies and two types of urban area. Therefore, it would be necessary to evaluate its applicability to a greater number of schools in each of the aforementioned urban environment types to achieve representativeness within a larger sample. Likewise, future research should account for indoor sources of PM10 and set up measuring points throughout the classroom at various positions, to determine the distribution of pollutants and solid particles. The authors suggest further development of this methodology—not only as an observational study, but as an experiment with controlled variables of ventilation—to determine the differences in performance and the effects on IAQ.
Despite its limitations, our case study can suggest future considerations for a post-COVID-19 scenario with a stable health situation, so as to reconsider standards for naturally ventilated schools on a national level that reflect the unique IAQ conditions of schools.

5. Conclusions

Our study demonstrates that the window-opening and -closing regime followed by individuals affects the final exposure of the children to pollutants. An individual’s impression of indoor air quality has a significant impact on the inconsistent adherence to COVID-19 ventilation strategy guidelines for IAQ in natural ventilation in classrooms. Our findings also imply that the urban setting of the schools had affected the IAQ, while this was not considered in the national COVID-19 ventilation recommendations. For future pandemic ventilation guidelines, not only should pathogen characteristics be taken into the account, the holistic environmental impact should also be included. Furthermore, measures at the beginning of an urban planning phase should be implemented. The type of urban background environment should be accounted for in the master plan. Moreover, the existing UB environment that surrounds sensitive public services—such as health facilities and educational institutions—requires protection in further development. These exclusive areas can be considered to be beneficial even when they might not have been developed to their full economic potential. Additionally, the ventilation and air-cleaning concepts will need to be considered further in the future SARS control guidelines for schools.

Author Contributions

Conceptualisation, K.L., A.F. and R.F..; methodology, K.L. and R.F.; software, K.L.; formal analysis, K.L. and R.F.; data collection, K.L.; writing—original draft preparation, K.L.; writing—review and editing, A.F. and R.F.; visualisation, K.L.; supervision, A.F. and R.F. All authors have read and agreed to the published version of the manuscript.

Funding

This research was funded by the Slovenian Research Agency (ARRS) through the Young Researchers Programme and the Research Program “Sustainable planning for the quality living space” (P5-0068).

Institutional Review Board Statement

This study did not require ethical approval.

Informed Consent Statement

Informed consent was obtained from all subjects involved in the study.

Conflicts of Interest

The authors declare no conflict of interest.

References

  1. Cheng, C.; Barceló, J.; Hartnett, A.S.; Kubinec, R.; Messerschmidt, L. COVID-19 Government Response Event Dataset (CoronaNet v.1.0). Nat. Hum. Behav. 2020, 4, 756–768. [Google Scholar] [CrossRef] [PubMed]
  2. Imtyaz, A.; Haleem, A.; Javaid, M. Analysing governmental response to the COVID-19 pandemic. J. Oral Biol. Craniofacial Res. 2020, 10, 504–513. [Google Scholar] [CrossRef] [PubMed]
  3. Meiss, A.; Jimeno-Merino, H.; Poza-Casado, I.; Llorente-Álvarez, A.; Padilla-Marcos, M.Á. Indoor Air Quality in Naturally Ventilated Classrooms. Lessons Learned from a Case Study in a COVID-19 Scenario. Sustainability 2021, 13, 8446. [Google Scholar] [CrossRef]
  4. NIJZ. Higienska Priporočila za Preprečevanje Širjenja Sars-Cov-2 Pri Izvajanju Pouka V Osnovni Šoli. Nijz. 2021. Available online: https://www.nijz.si/sites/www.nijz.si/files/uploaded/sola_osnovne_sole_hig_ukrepi_poslano_26082021_3.pdf (accessed on 13 May 2022).
  5. Monge-Barrio, A.; Bes-Rastrollo, M.; Dorregaray-Oyaregui, S.; González-Martínez, P.; Martin-Calvo, N.; López-Hernández, D.; Arriazu-Ramos, A.; Sánchez-Ostiz, A. Encouraging natural ventilation to improve indoor environmental conditions at schools. Case studies in the north of Spain before and during COVID. Energy Build. 2022, 254, 111567. [Google Scholar] [CrossRef]
  6. Glasziou, P.P.; Michie, S.; Fretheim, A. Public Health Measures for COVID-19. BMJ 2021, 375, n2729. [Google Scholar] [CrossRef] [PubMed]
  7. Setti, L.; Passarini, F.; Gennaro, G.D.; Barbieri, P.; Licen, S.; Perrone, M.G.; Piazzalunga, A.; Borelli, M.; Palmisani, J.; Gilio, A.D.; et al. Potential role of particulate matter in the spreading of COVID-19 in Northern Italy: First observational study based on initial epidemic diffusion. BMJ Open 2020, 10, e039338. [Google Scholar] [CrossRef]
  8. Setti, L.; Passarini, F.; De Gennaro, G.; Barbieri, P.; Pallavicini, A.; Ruscio, M.; Piscitelli, P.; Colao, A.; Miani, A. Searching for SARS-COV-2 on Particulate Matter: A Possible Early Indicator of COVID-19 Epidemic Recurrence. Int. J. Environ. Res. Public Health 2020, 17, 2986. [Google Scholar] [CrossRef]
  9. Reche, I.; D’Orta, G.; Mladenov, N.; Winget, D.M.; Suttle, C.A. Deposition rates of viruses and bacteria above the atmospheric boundary layer. ISME J. 2018, 14, 1154–1162. [Google Scholar] [CrossRef]
  10. Yamaguchi, N.; Ichijo, T.; Sakotani, A.; Baba, T.; Nasu, M. Global dispersion of bacterial cells on Asian dust. Sci. Rep. 2012, 2, 525. [Google Scholar] [CrossRef]
  11. Aller, J.Y.; Kuznetsova, M.R.; Jahns, C.J.; Kemp, P.F. The sea surface microlayer as a source of viral and bacterial enrichment in marine aerosols. J. Aerosol Sci. 2005, 36, 801–812. [Google Scholar] [CrossRef]
  12. ASHRAE. 62.1-2019|ASHRAE Store. Available online: https://www.techstreet.com/ashrae/standards/ashrae-62-1-2019?product_id=2088533 (accessed on 16 July 2022).
  13. Dovjak, M.; Kukec, A. Creating Healthy and Sustainable Buildings: An Assessment of Health Risk Factors; Springer International Publishing: Cham, Switzerland, 2019. [Google Scholar] [CrossRef]
  14. Bhagat, R.K.; Davies Wykes, M.S.; Dalziel, S.B.; Linden, P.F. Effects of ventilation on the indoor spread of COVID-19. J. Fluid Mech. 2020, 903, F1. [Google Scholar] [CrossRef] [PubMed]
  15. Lelieveld, J.; Helleis, F.; Borrmann, S.; Cheng, Y.; Drewnick, F.; Haug, G.; Klimach, T.; Sciare, J.; Su, H.; Pöschl, U. Model Calculations of Aerosol Transmission and Infection Risk of COVID-19 in Indoor Environments. Int. J. Environ. Res. Public Health 2020, 17, 8114. [Google Scholar] [CrossRef] [PubMed]
  16. Hou, Y.; Liu, J.; Li, J. Investigation of Indoor Air Quality in Primary School Classrooms. Procedia Eng. 2015, 121, 830–837. [Google Scholar] [CrossRef]
  17. Oke, T.R.; Mills, G.; Christen, A.; Voogt, J.A. Urban Climates; Cambridge University Press: Cambridge, MA, USA, 2017. [Google Scholar] [CrossRef]
  18. Lavtižar, K. Ocena izpostavljenosti prometnim onesnaževalom glede na mrežo osnovnih šol in prometnic z uporabo geostatistične analize. Urbani Izziv 2022, 14, 42–50. Available online: https://www.urbaniizziv.si/povzetek_S?id=86&id_k=S&idc=5 (accessed on 18 June 2022).
  19. Onesnaženost Zraka v Ljubljani: Koncentracije Dušikovih Oksidov, Ozona, Benzena in Črnega Ogljika v Letih 2013 in 2014; Ljubljana University Press, Faculty of Arts: Ljubljana, Slovenia, 2018. [CrossRef]
  20. Qian, H.; Miao, T.; Liu, L.; Zheng, X.; Luo, D.; Li, Y. Indoor transmission of SARS-CoV-2. Indoor Air 2021, 31, 639–645. [Google Scholar] [CrossRef]
  21. Elsaid, A.M.; Mohamed, H.A.; Abdelaziz, G.B.; Ahmed, M.S. A critical review of heating, ventilation, and air conditioning (HVAC) systems within the context of a global SARS-CoV-2 epidemic. Process Saf. Environ. Prot. 2021, 155, 230–261. [Google Scholar] [CrossRef]
  22. Coyle, J.P.; Derk, R.C.; Lindsley, W.G.; Boots, T.; Blachere, F.M.; Reynolds, J.S.; McKinney, W.G.; Sinsel, E.W.; Lemons, A.R.; Beezhold, D.H.; et al. Reduction of exposure to simulated respiratory aerosols using ventilation, physical distancing, and universal masking. Indoor Air 2022, 32, e12987. [Google Scholar] [CrossRef]
  23. Auer, T.; Vohlidka, P.; Zettelmeier, C. The Right Amount of Technology in School Buildings. Sustainability 2020, 12, 1134. [Google Scholar] [CrossRef]
  24. Morawska, L.; Tang, J.W.; Bahnfleth, W.; Bluyssen, P.M.; Boerstra, A.; Buonanno, G.; Cao, J.; Dancer, S.; Floto, A.; Franchimon, F.; et al. How can airborne transmission of COVID-19 indoors be minimised? Environ. Int. 2020, 142, 105832. [Google Scholar] [CrossRef]
  25. Bernardo, H.; Antunes, C.H.; Gaspar, A.; Pereira, L.D.; da Silva, M.G. An approach for energy performance and indoor climate assessment in a Portuguese school building. Sustain. Cities Soc. 2017, 30, 184–194. [Google Scholar] [CrossRef]
  26. Salthammer, T.; Uhde, E.; Schripp, T.; Schieweck, A.; Morawska, L.; Mazaheri, M.; Clifford, S.; He, C.; Buonanno, G.; Querol, X.; et al. Children’s well-being at schools: Impact of climatic conditions and air pollution. Environ. Int. 2016, 94, 196–210. [Google Scholar] [CrossRef]
  27. Domínguez-Amarillo, S.; Fernández-Agüera, J.; Cesteros-García, S.; González-Lezcano, R.A. Bad Air Can Also Kill: Residential Indoor Air Quality and Pollutant Exposure Risk during the COVID-19 Crisis. Int. J. Environ. Res. Public Health 2020, 17, 7183. [Google Scholar] [CrossRef]
  28. Chillon, S.A.; Millan, M.; Aramendia, I.; Fernandez-Gamiz, U.; Zulueta, E.; Mendaza-Sagastizabal, X. Natural Ventilation Characterization in a Classroom under Different Scenarios. Int. J. Environ. Res. Public Health 2021, 18, 5425. [Google Scholar] [CrossRef]
  29. CDC. Community, Work, and School. Centers for Disease Control and Prevention. Available online: https://www.cdc.gov/coronavirus/2019-ncov/community/schools-childcare/ventilation.html (accessed on 11 February 2020).
  30. Divjak, M.Š. Urbanistično načrtovanje strateškega prostorskega razvoja Ljubljane. Urbani Izziv 2008, 19, 11–24. Available online: https://www.jstor.org/stable/24920782 (accessed on 18 June 2022). [CrossRef]
  31. ISO 17772-1:2017; ISO. Available online: https://www.iso.org/cms/render/live/en/sites/isoorg/contents/data/standard/06/04/60498.html (accessed on 20 August 2022).
  32. Dinh, T.-V.; Lee, J.-Y.; Ahn, J.-W.; Kim, J.-C. Development of a Wide-Range Non-Dispersive Infrared Analyzer for the Continuous Measurement of CO2 in Indoor Environments. Atmosphere 2020, 11, 1024. [Google Scholar] [CrossRef]
  33. Becerra, J.A.; Lizana, J.; Gil, M.; Barrios-Padura, A.; Blondeau, P.; Chacartegui, R. Identification of potential indoor air pollutants in schools. J. Clean. Prod. 2020, 242, 118420. [Google Scholar] [CrossRef]
  34. Sze To, G.N.; Chao, C.Y.H. Review and comparison between the Wells–Riley and dose-response approaches to risk assessment of infectious respiratory diseases. Indoor Air 2010, 20, 2–16. [Google Scholar] [CrossRef]
  35. Villanueva, F.; Notario, A.; Cabañas, B.; Martín, P.; Salgado, S.; Gabriel, M.F. Assessment of CO2 and aerosol (PM2.5, PM10, UFP) concentrations during the reopening of schools in the COVID-19 pandemic: The case of a metropolitan area in Central-Southern Spain. Environ. Res. 2021, 197, 111092. [Google Scholar] [CrossRef]
  36. Yang Razali, N.Y.; Latif, M.T.; Dominick, D.; Mohamad, N.; Sulaiman, F.R.; Srithawirat, T. Concentration of particulate matter, CO and CO2 in selected schools in Malaysia. Build. Environ. 2015, 87, 108–116. [Google Scholar] [CrossRef]
  37. Zhang, D.; Ding, E.; Bluyssen, P.M. Guidance to assess ventilation performance of a classroom based on CO2 monitoring. Indoor Built Environ. 2022, 31, 1107–1126. [Google Scholar] [CrossRef]
  38. World Health Organization. WHO Guidelines for Indoor Air Quality: Selected Pollutants; WHO: Geneva, Switzerland, 2010. [Google Scholar]
  39. Alves, C.A.; Urban, R.C.; Pegas, P.N.; Nunes, T. Indoor/Outdoor Relationships between PM10 and Associated Organic Compounds in a Primary School. Aerosol Air Qual. Res. 2014, 14, 86–98. [Google Scholar] [CrossRef]
  40. Morawska, L.; Ayoko, G.A.; Bae, G.N.; Buonanno, G.; Chao, C.Y.H.; Clifford, S.; Fu, S.C.; Hänninen, O.; He, C.; Isaxon, C.; et al. Airborne particles in indoor environment of homes, schools, offices and aged care facilities: The main routes of exposure. Environ. Int. 2017, 108, 75–83. [Google Scholar] [CrossRef]
  41. Zwoździak, A.; Sówka, I.; Krupińska, B.; Zwoździak, J.; Nych, A. Infiltration or indoor sources as determinants of the elemental composition of particulate matter inside a school in Wrocław, Poland? Build. Environ. 2013, 66, 173–180. [Google Scholar] [CrossRef]
  42. Stabile, L.; Pacitto, A.; Mikszewski, A.; Morawska, L.; Buonanno, G. Ventilation procedures to minimize the airborne transmission of viruses in classrooms. Build. Environ. 2021, 202, 108042. [Google Scholar] [CrossRef]
  43. Fu, X.; Liu, J.; Ban-Weiss, G.A.; Zhang, J.; Huang, X.; Ouyang, B.; Popoola, O.; Tao, S. Effects of canyon geometry on the distribution of traffic-related air pollution in a large urban area: Implications of a multi-canyon air pollution dispersion model. Atmos. Environ. 2017, 165, 111–121. [Google Scholar] [CrossRef]
  44. Vardoulakis, S.; Gonzalez-Flesca, N.; Fisher, B.E.A. Assessment of traffic-related air pollution in two street canyons in Paris: Implications for exposure studies. Atmos. Environ. 2002, 15, 1025–1039. [Google Scholar] [CrossRef]
Figure 1. A schematic diagram of the classroom 1 and 2 setups with the following natural ventilation options: open doors with closed windows, closed doors with open windows, oropen doors with open windows.
Figure 1. A schematic diagram of the classroom 1 and 2 setups with the following natural ventilation options: open doors with closed windows, closed doors with open windows, oropen doors with open windows.
Sustainability 15 02796 g001
Figure 2. (a) Location 1 within the city centre and school ground area. The location of the classroom is marked with a dot (source: Google Earth, 28 April 2022). (b) School floor plan.
Figure 2. (a) Location 1 within the city centre and school ground area. The location of the classroom is marked with a dot (source: Google Earth, 28 April 2022). (b) School floor plan.
Sustainability 15 02796 g002
Figure 3. Floor plan of classroom 1 (No 43), UC primary school. Legend: TM—measurement point, DM1—single-seat work desk, DMU—teacher’s desk with computer, S1—school chair with backrest, SU—teacher’s chair with backrest, KO—sink, NP—a low movable cupboard with shelves, NO—a low cupboard with shelves, MT—magnetic whiteboard, KT—chalkboard, OV—a high cupboard with shelves, OS—wall bracket for hanging pictures, ON—window niche.
Figure 3. Floor plan of classroom 1 (No 43), UC primary school. Legend: TM—measurement point, DM1—single-seat work desk, DMU—teacher’s desk with computer, S1—school chair with backrest, SU—teacher’s chair with backrest, KO—sink, NP—a low movable cupboard with shelves, NO—a low cupboard with shelves, MT—magnetic whiteboard, KT—chalkboard, OV—a high cupboard with shelves, OS—wall bracket for hanging pictures, ON—window niche.
Sustainability 15 02796 g003
Figure 4. (a) Location 2 within the city centre and school ground area. The location of the classroom is marked with a dot (source: Google Earth, 28 April 2022). (b) School floor plan.
Figure 4. (a) Location 2 within the city centre and school ground area. The location of the classroom is marked with a dot (source: Google Earth, 28 April 2022). (b) School floor plan.
Sustainability 15 02796 g004
Figure 5. Floor plan of classroom 2 (No 43), UB primary school. Legend: TM—measurement point, DM1—single-seat work desk, DMU—teacher’s desk with computer, S1—school chair with backrest, SU—teacher’s chair with backrest, KO—sink, NP—a low movable cupboard with shelves, NO—a low cupboard with shelves, MT—magnetic whiteboard, KT—chalkboard, OV—a high cupboard with shelves, OS—wall bracket for hanging pictures, ON—window niche.
Figure 5. Floor plan of classroom 2 (No 43), UB primary school. Legend: TM—measurement point, DM1—single-seat work desk, DMU—teacher’s desk with computer, S1—school chair with backrest, SU—teacher’s chair with backrest, KO—sink, NP—a low movable cupboard with shelves, NO—a low cupboard with shelves, MT—magnetic whiteboard, KT—chalkboard, OV—a high cupboard with shelves, OS—wall bracket for hanging pictures, ON—window niche.
Sustainability 15 02796 g005
Figure 6. Measured pollutants as CO2 (ppm) and PM2.5 (µgm−3) in 34 datasets. Dashed lines correspond to safe levels of CO2 (UL RS, 42/02, 105/02, 110/02—ZGO-1 in 61/17—GZ) and PM2.5 [38] for the 24 h of exposure time. (a) Data for the days 20 to 22 December 2021 in classroom 1. (b) Averaged data for the days 11 to 13 January 2022 in classroom 2. Legend: CO2 (ppm), PM10 (µgm−3), PM2.5 (µgm−3), d0/w0—doors and windows closed, d0/w1—doors closed, and windows only tilted open, d0/w2—doors closed and windows turned open, d1/w2—doors and windows turned open.
Figure 6. Measured pollutants as CO2 (ppm) and PM2.5 (µgm−3) in 34 datasets. Dashed lines correspond to safe levels of CO2 (UL RS, 42/02, 105/02, 110/02—ZGO-1 in 61/17—GZ) and PM2.5 [38] for the 24 h of exposure time. (a) Data for the days 20 to 22 December 2021 in classroom 1. (b) Averaged data for the days 11 to 13 January 2022 in classroom 2. Legend: CO2 (ppm), PM10 (µgm−3), PM2.5 (µgm−3), d0/w0—doors and windows closed, d0/w1—doors closed, and windows only tilted open, d0/w2—doors closed and windows turned open, d1/w2—doors and windows turned open.
Sustainability 15 02796 g006
Figure 7. (a) Measured temperature (Ta) and relative humidity (φ) in 34 datasets. (a) Data for the days 20 to 22 December 2021 in classroom 1. (b) Averaged data for the days 11 to 13 January 2022 in classroom 2. Legend: Ta (°C), φ (%),/w0—doors and windows closed, d0/w1—doors closed, windows only tilted open, d0/w2—doors closed and windows turned open, d1/w2—doors and windows turned open.
Figure 7. (a) Measured temperature (Ta) and relative humidity (φ) in 34 datasets. (a) Data for the days 20 to 22 December 2021 in classroom 1. (b) Averaged data for the days 11 to 13 January 2022 in classroom 2. Legend: Ta (°C), φ (%),/w0—doors and windows closed, d0/w1—doors closed, windows only tilted open, d0/w2—doors closed and windows turned open, d1/w2—doors and windows turned open.
Sustainability 15 02796 g007
Table 1. Description of case study locations 1 and 2.
Table 1. Description of case study locations 1 and 2.
School Location12
Location typeUCUB
Floor count42
Year of construction18891959
Number of enrolled pupils672560
Road categoryLC—local LC—local
Net area (m2)58.056.0
Net area/pupil (m2)2.413.1
Volume (m3)240.7205
Volume/pupil (m3)10.039.76
Occupancy2318
The total area of open windows partially opened (m2)0.751.4
The total area of open windows fully opened (m2)6.754.2
Table 2. Average values and variance in exterior values for the two locations of the UC and UB schools; * p < 0.0001; average values with the same number are not statistically significant.
Table 2. Average values and variance in exterior values for the two locations of the UC and UB schools; * p < 0.0001; average values with the same number are not statistically significant.
TP (School Location)
OAQ (Out)
x - (Mean)StdMinMaxF-Valuep-Value
CO2UC544.7247.31480.00630.000.673n.s.
UB500.2931.12460.00620.00
PM2.5UC58.3026.9916.80100.902.6620.0023 *
UB45.3716.5319.3081.50
PM10UC51.3025.1013.8094.803.285 0.0229 *
UB39.1015.3822.3070.50
TaUC−0.781.72−4.602.1024.51 <0.0000 ***
UB0.992.53−2.906.30
φ UC47.387.6831.1066.400.816n.s.
UB48.384.2735.7056.00
Legend: CO2 (ppm), PM10 (µgm−3), PM2.5 (µgm−3), Ta (°C), φ (%), 0‘***’, 0.01‘*’, 0.05‘.’, 0.1‘ ’.
Table 3. Average values and variance in interior values for the UC school (location 1) and UB school (location 2) classrooms; * p < 0.0001; average values with the same number are not statistically significant.
Table 3. Average values and variance in interior values for the UC school (location 1) and UB school (location 2) classrooms; * p < 0.0001; average values with the same number are not statistically significant.
TP (School Location)
IAQ (in)
x - (Mean)StdMinMaxF-Valuep-Value
CO2UC992.51280.50550.001710.0085.86<0.0001 * (<2 × 10−16)
UB1879.32737.00510.003540.00
PM2.5UC42.0322.3110.4090.7051.55 <0.0001 * (<2 × 10−16)
UB21.7716.809.0051.40
PM10UC50.1221.2413.2091.8022.761.42 × 10−13 ***
UB37.1714.8312.0064.00
TaUC21.771.7514.7025.4017.79 7.9 × 10−11 ***
UB21.591.3613.1025.60
φ UC28.263.4222.8039.30146.2<0.0001 * (<2 × 10−16)
UB40.106.3927.3056.60
Legend: CO2 (ppm), PM10 (µgm−3), PM2.5 (µgm−3), Ta (°C), φ (%), 0‘***’,’, 0.01‘*’, 0.05‘.’, 0.1‘ ’.
Disclaimer/Publisher’s Note: The statements, opinions and data contained in all publications are solely those of the individual author(s) and contributor(s) and not of MDPI and/or the editor(s). MDPI and/or the editor(s) disclaim responsibility for any injury to people or property resulting from any ideas, methods, instructions or products referred to in the content.

Share and Cite

MDPI and ACS Style

Lavtižar, K.; Fikfak, A.; Fink, R. Overlooked Impacts of Urban Environments on the Air Quality in Naturally Ventilated Schools Amid the COVID-19 Pandemic. Sustainability 2023, 15, 2796. https://doi.org/10.3390/su15032796

AMA Style

Lavtižar K, Fikfak A, Fink R. Overlooked Impacts of Urban Environments on the Air Quality in Naturally Ventilated Schools Amid the COVID-19 Pandemic. Sustainability. 2023; 15(3):2796. https://doi.org/10.3390/su15032796

Chicago/Turabian Style

Lavtižar, Kristijan, Alenka Fikfak, and Rok Fink. 2023. "Overlooked Impacts of Urban Environments on the Air Quality in Naturally Ventilated Schools Amid the COVID-19 Pandemic" Sustainability 15, no. 3: 2796. https://doi.org/10.3390/su15032796

APA Style

Lavtižar, K., Fikfak, A., & Fink, R. (2023). Overlooked Impacts of Urban Environments on the Air Quality in Naturally Ventilated Schools Amid the COVID-19 Pandemic. Sustainability, 15(3), 2796. https://doi.org/10.3390/su15032796

Note that from the first issue of 2016, this journal uses article numbers instead of page numbers. See further details here.

Article Metrics

Back to TopTop