Next Article in Journal
Relationship of Sense of Coherence to Healthy Behavior in Taekwon-Do Athletes
Previous Article in Journal
The Influencing Factors of the Carbon Trading Price: A Case of China against a “Double Carbon” Background
 
 
Font Type:
Arial Georgia Verdana
Font Size:
Aa Aa Aa
Line Spacing:
Column Width:
Background:
Article

Combining CAD Modeling and Simulation of Energy Performance Data for the Retrofit of Public Buildings

by
Konstantinos Sofias
1,
Zoe Kanetaki
1,
Constantinos Stergiou
1 and
Sébastien Jacques
2,*
1
Department of Mechanical Engineering, University of West Attica, 12241 Athens, Greece
2
University of Tours, CEDEX 1, 37020 Tours, France
*
Author to whom correspondence should be addressed.
Sustainability 2023, 15(3), 2211; https://doi.org/10.3390/su15032211
Submission received: 21 December 2022 / Revised: 19 January 2023 / Accepted: 23 January 2023 / Published: 25 January 2023

Abstract

The retrofit of the most energy-intensive buildings represents an opportunity to improve their energy efficiency or to reduce their energy demand. This paper proposes combining computer-aided design (CAD) modeling and the use of energy efficiency software to build a methodology for calculating, visualizing and analyzing building parameters in order to provide retrofit scenarios. Five retrofit scenarios were implemented using the energy software, including the initial operating cost, capital cost and payback period to be evaluated. At the same time, a three-dimensional CAD model was created to perform daylighting and shading simulations to visualize and design the role of building orientation under actual use conditions. These retrofit scenarios were evaluated individually and then combined to examine their performance in terms of cost-effectiveness and energy efficiency. The simulation results show the importance of the building’s orientation, as this directly affects the thermal properties of the walls and openings, as well as the daylighting areas. The simulation results were also used to define the parameters that affect the interoperability of the retrofit solutions. Finally, in addition to the significant reduction in calculation time, the coupling of the CAD software with the energy efficiency software allowed access to information that was not available at the outset.

1. Introduction

The global energy sector is facing increasing challenges, including reducing the environmental impact of buildings, which is now inextricably linked to the pollution resulting from the indiscriminate use of non-renewable energy sources [1,2,3]. Many buildings in the European Union (EU) still do not meet the energy efficiency standards required to move to a sustainable consumption pattern [4,5]. Specific measures must therefore be taken to meet these challenges, proposing intervention scenarios aimed at massive and adequate use of renewable energy sources.
Although innovative technologies and energy efficiency solutions are widely available today, a multidisciplinary approach is essential to describe intervention scenarios in existing building structures [6]. These scenarios should not only propose measures to improve energy efficiency, but should also reveal the most effective combinations to remedy the energy degradation of existing buildings. The optimization of the renovation of a building consists in determining the optimal distribution of the measures to be taken, after having taken into account a technical and financial study, as well as a depreciation plan of the interventions to be carried out in the structure of the building and, in particular, its mechanical installations of heating and air conditioning.
A first assumption would be to realize that demolishing an existing building and replacing it with a new energy-efficient building is not a sustainable practice [7]. Thus, the optimization procedure we propose here consists first in selecting, simulating and evaluating the most efficient interventions in terms of energy costs, while minimizing the intrusion and interruption of the building operation. According to numerous in-depth studies on the key phases of building renovation [8,9,10], and as shown in Figure 1, there are five stages of intervention in the renovation of an existing building. The first phase consists of a preliminary approach to the project. The second phase is the energy audit and in-situ data acquisition. The third phase is the evaluation of the potential of each intervention, while the fourth phase is dedicated to the implementation of the renovation solutions, which are finally validated by the results in the fifth phase [11].
Numerous studies already provide tools and context for reducing energy consumption around the world [3,4,5,6,7,8,9,10,11,12,13,14]. Retrofitting existing structures can significantly reduce energy consumption and greenhouse gas emissions worldwide.
The authors of [15] reviewed eighteen retrofit tools and classified them into three categories: retrofit assessment, financial assessment, and knowledge transfer. These tools aim to infer the best energy retrofit options based on input data. This research identified key strategies for achieving sustainability in the building sector while reducing operating costs.
In [16], the authors propose a comprehensive process on how to improve the energy efficiency of institutional buildings in a tropical climate with various retrofit measures such as wall insulation, higher setpoint temperature, occupancy sensors, etc.
In [17], the study implemented the retrofit of a school building in Wuhan, China. Using an energy comfort optimization model, the authors evaluated energy demands and thermal comfort and concluded that the most sensitive elements of a structure are the exterior walls, the roof, heat transmission through windows, and the window-to-wall ratio (WWR).
The authors of [18] studied the intervention of passive design to explore all alternatives to improve the thermal comfort and cooling energy required in an existing building. They then proposed a building energy simulation tool coupled with daylight simulations to improve thermal and visual comfort.
The authors of [19] focused on the disparity in energy consumption between linear fluorescent fixtures and tubular light-emitting diode (LED) lamp prototypes. In doing so, they describe the financial benefits and determine the path to sustainability.
In [20], the authors studied the energy saving potential of an existing Kazakh-German educational building. The authors explain that choosing optimal retrofit alternatives in non-domestic buildings is a difficult task. Therefore, they propose a machine learning approach to indicate optional interventions.
In [21], the researchers focus on the disproportionate energy consumption of buildings that are not renovated. Specifically, they propose an Excel file approach for easy modification of the acquired data.
The authors of [22,23] detail the three categories of load forecasting, namely short term, medium term and long term. They conclude that residential buildings are much more difficult in terms of load forecasting than school buildings and supermarkets. For the purposes of this study, and as discussed below, load forecasting will be limited to school buildings.
With respect to school building renovation, the authors of [22,23] highlight the importance of large renovation projects associated with resource efficiency and operational cost reduction goals, where the perceived costs of interventions could discourage professionals from achieving the goals set in LEED (Leadership in Energy and Environmental Design) rating systems.
From a legislative point of view, in order to meet its commitments on energy efficiency in buildings, Greece issued the Energy Performance of Buildings Regulation, known as KENAK, which came into force on 1 October 2010. KENAK was specifically accepted as part of a legislative framework for the full implementation of L3661/2008, which incorporated the Directive into its legal structure. In order to improve energy efficiency, save energy and protect the environment, KENAK now incorporates the idea of integrated energy design in building construction. The results of the calculations are listed in the software reports, in accordance with the objectives of “TEE-KENAK” [24].
Finally, in [25], the authors performed a comparative study between ten school buildings in Greece, located in different regions of the country. They then proposed an energy monitoring system that evaluates the initial calculations by measuring the normal operation of the introduced systems. Using an annual time series of average hourly values for heating loads and available solar radiation, the system operation was mathematically modeled.
This literature review raises the following three research questions (RQ), which will be answered in the remainder of this paper:
  • RQ1: Which combination of energy retrofit scenarios is the most cost-effective and energy efficient?
  • RQ2: What are the parameters that affect the interoperability of retrofit solutions?
  • RQ3: How can computer-aided design (CAD) modeling coupled with energy efficiency software contribute to building retrofit solutions?
This paper focuses on an experimental study based on a holistic approach to the sustainable renovation of the least energy efficient buildings. This research was motivated in particular by recent developments in the world, starting with the COVID-19 pandemic, followed by the energy crisis caused by the war in Ukraine. In accordance with the United Nations Development Program’s Sustainable Development Goal 7, which sets the goal of clean and affordable energy, all people should have access to affordable, reliable, and sustainable energy sources.
The contribution of this paper lies primarily in the speed and accessibility of the results. The proposed methodology then provides a solid technical perspective on energy improvement strategies while not wasting effort reinventing already tested and approved practices. In addition, this research is motivated by the need to explore low-cost estimating solutions that can be performed by people with basic skills, thus limiting the required workload. The software tools used were a commonly recognized three-dimensional computer-aided design modeler (AutoCAD) coupled with a low-cost certified energy efficiency calculator program (TEE-KENAK). Finally, the practical details of the renovation scenarios are presented in a way that everyone can understand immediately. Calculation time and effort is saved because all components included in both software packages can be easily exported, modified and converted into other retrofit scenarios.
This work is therefore part of this framework and we summarize more precisely our contributions on the following two points:
Combining CAD modeling and energy performance data simulation to evaluate and compare retrofit solutions for public buildings;
Determining the most feasible solutions in terms of cost and disruption.
The remainder of the paper is organized as follows. Section 2 presents the methodology used. The main results obtained will be presented in Section 3 and discussed in Section 4. The proposed discussion will provide specific answers to the three research questions previously stated. The main conclusions and research perspectives will be presented in Section 5.

2. Materials and Methods

2.1. General Description of the Proposed Method

As shown in Figure 2, the methodology we propose is composed of the following stages.
After collecting the important information about the building under study (see ➀ in Figure 2), the methodology starts with the estimation of its energy demand (see ➁ in Figure 2).
Today’s designers, engineers, and builders depend on energy sufficiency simulation software for completing a retrofitting project and managing any uncertainty or risk that may develop throughout their assessment [26]. The energy demand and operational costs of the studied building were estimated using TEE-KENAK, a CAD software developed by the National Observatory of Athens and certified by the Technical Chamber of Greece in Athens, Greece, to be compliant with the European Energy Performance of Buildings Directive (EPBD).
Based on the applicable national requirements, European standards, and instructions of the technical committees, this software tool implements the necessary algorithms for the calculation of the energy performance of buildings in Greece in accordance with ISO standards [27,28]. The TEE-KENAK software has been selected as the cheapest program on the market and at the same time certified for its reliable results. Once preliminary data such as geometric features and measurements of the building envelope, material properties or orientation are collected, they become inputs to the software in the form of separate features. Note at this point that the software includes separate “masks” or screens for each category of built materials (walls, openings, floors, rooves) where all the distinct geometries are classified according to the orientation criterion, calculated from their deviation from north. For each of these features, variables such as dimensions, thermal behavior coefficients calculated from the initial year of construction, and solar reflection coefficients are recorded. Additional screens in the software contain information about the heating and cooling system, the artificial lighting system and the presence or absence of automation systems. Once all the data is entered, the building can be simulated in the TEE-KENAK software, creating a baseline for existing energy efficiency. The software then builds a model of an “ideal” building in terms of thermal behavior. Once all the data has been entered, the software tool compares the “ideal” building (same dimensions as the building under study, same geometric characteristics) with the buildings under study, and issues an energy class category (from A to G, where A indicates that the building has an excellent energy performance and G indicates that the building is a real energy sink) [29].
Subsequently, as indicated in ➂ of Figure 2, it is necessary to design the shape of the building and its particularities. In order to visually design the shape of the building and determine its “weak points” in terms of orientation, sun penetration and shading requirements, a three-dimensional model was created in AutoCAD software. This software was chosen because it is one of the most popular in the computer-aided design industry, where basic three-dimensional CAD skills are needed to quickly create a model for shading simulations. Geometric shapes and dimensions of the building envelope are applied, using basic software commands to create the building model. Neighboring buildings are also modeled to calculate their shading effect on the building under study. Once the geographical location is defined (latitude and longitude of the building location), sunlight simulations were performed for selected periods. Simulating the shading of the building facades can provide valuable information to determine the weakness of certain facades and help propose retrofit solutions in terms of building form and geometry. It should be noted that, according to [30,31,32], building geometry is not considered important for the thermal performance of older structures, due to the potential application of newer, higher quality building fabrics with increased thermal insulation and reduced air leakage when applying retrofit solutions.
The methodology continues with the coupling of the results of the two software packages, namely TEE-KENAK for the energy efficiency part and AutoCAD for the mechanical CAD part. As shown in Figure 3, the following five criteria were considered in assessing the percentage contribution of each of the two software packages used:
  • The number of input data.
  • The ease of access for the acquisition of these data (similar for both software).
  • Ease of use and automation of data entry. Specifically, several data can be automatically inserted in both software programs: for TEE-KENAK, variables such as U -value (thermal behavior coefficient) and solar reflectivity are automatically defined once the year of construction of the building is registered. For AutoCAD, once the geographical location is selected on the map, variables such as longitude and latitude that define the solar angles are automatically set.
  • The workload (in terms of working hours) required to complete the two models.
  • The contribution of each software output to the proposal and evaluation of the retrofit solutions.
Once the energy efficiency class is calculated, a copy of the existing building can be created. This copy of the building is a model that serves as a reference for developing retrofit scenarios. By changing the inputs of energy-intensive variables to more energy-efficient ones, improvements are made. In addition, the building copy model contains a new field for financial values. The consideration of financial values is of great importance in describing the simulation process. To this end, we can classify the types of inputs into two units of measurement. The first unit, expressed in euros/m2, refers to renovation scenarios that are expressed per unit area (i.e., insulation, windows and solar panels). In many studies, solar panels are discussed on the basis of their nominal power, but the TEE-KENAK software receives the data measured per area. We should note that the above cost includes transportation, materials and labor. Furthermore, the entries are separated by entities, which means that the user can insert financial values for each wall or window individually. If we were to illustrate this procedure, a comment would be made on the difference in costs between wall insulation and roof insulation: despite the fact that the materials used are almost the same, the difference in labor is significant and lies in the use of scaffolding for the first case. The second unit, expressed in euros/unit, applies to lighting systems and heat pumps. Once again, it should be pointed out that the inserted cost must include all the costs of the installation procedure; these costs include the value-added tax (VAT). Most of these financial values are set by the official subsidy guidance valid for the funding of the European Unit programs by country. For values that are not set by official grant documents, current market prices are set.
The last stage (see ➃ in Figure 2) of the proposed methodology is to assess the retrofit solutions that have been pre-identified. Proposing solutions that should harmonize cost effectively greener current materials to modern technology practices forms the basis for efficient methods for retrofitting older structures [33]. Multiple copies of buildings can be created in the software, representing model renovation scenarios for separate improvements or any combination of them. The following five criteria were used to decide on retrofit [34]:
  • Amortization schedule: shorter amortization period and payback period.
  • Cost of the investment.
  • Operational cost per year (annual savings).
  • Short time frame for the implementation of retrofit solutions.
  • Static behavior and structural adequacy.
Therefore, the proposed study is based on the following main energy efficiency solutions: thermal insulation of the building envelope, replacement of windows with triple-glazed aluminum windows, improvement of the heating, ventilation and air conditioning system by installing heat pumps, replacement of old light fixtures with LED lamps and installation of photovoltaic systems.
One factor that may limit the renovation solutions available is the continuity of the building’s operation. Indeed, since we are dealing with a school building, operating with short vacation periods for ten months a year, all work would have to take place during the remaining two months of the summer vacation. Another important factor that limited our proposals was the structural adequacy of the building. In particular, due to its age, the scenarios applied should not interfere with structural adequacy issues. Planted green rooves and water rooves were eliminated from the renovation scenarios due to their additional weight that would not be supported by the building structure.
With different combinations of improvements, the results can be exported for the energy class achieved and the payback time of each solution.

2.2. Description of the Case Study

The audited building is the Limenas High School, which is located on the island of Thassos, at the northern end of the eastern Aegean Sea, in Greece. The construction of the building was completed in 1976, at a time when Greece was under a dictatorship, hence the lack of significant data on the building.
At the time, the construction quality of the buildings was poor and little attention was paid to the energy efficiency of the building envelope, resulting in high energy consumption. Since the building studied here is very old, consuming 170.2 kWh/m2 and producing 64.3 kg/m2 of CO2 emissions, its energy performance diagnostic (EPD) label, G, is the lowest on the EPD scale.
The Limenas High School has an area of 2166.0 m2 and a total volume of 7542.1 m3. It has three floors, the third being the smallest. The walls are single-wall masonry with no insulation, resulting in an overall average heat transfer rate, also known as the U -value, of 3.16 W/m2K. We recall here that the U -value should be as low as possible for heat transfer through the system under study to be slow or difficult. Regarding the building envelope, the windows installed are single glazed, without thermal break and of obsolete technology. These facts translate into an average U -value of 6.06 W/m2K for the windows. It should be noted that the air leakage from the windows is disproportionate with 1450.52 m3/h.
For the calculation of shading, the use of CAD tools is essential. As shown in Figure 4, the shading angles were calculated by creating a two-dimensional model of the building facade, which reduces the calculation time and the margin of error.
As for the heating system, it consists of uninsulated steel pipes and steel radiators (AKAN type steel radiator panels) powered by an old diesel boiler with a nominal capacity of 581.5 kW.
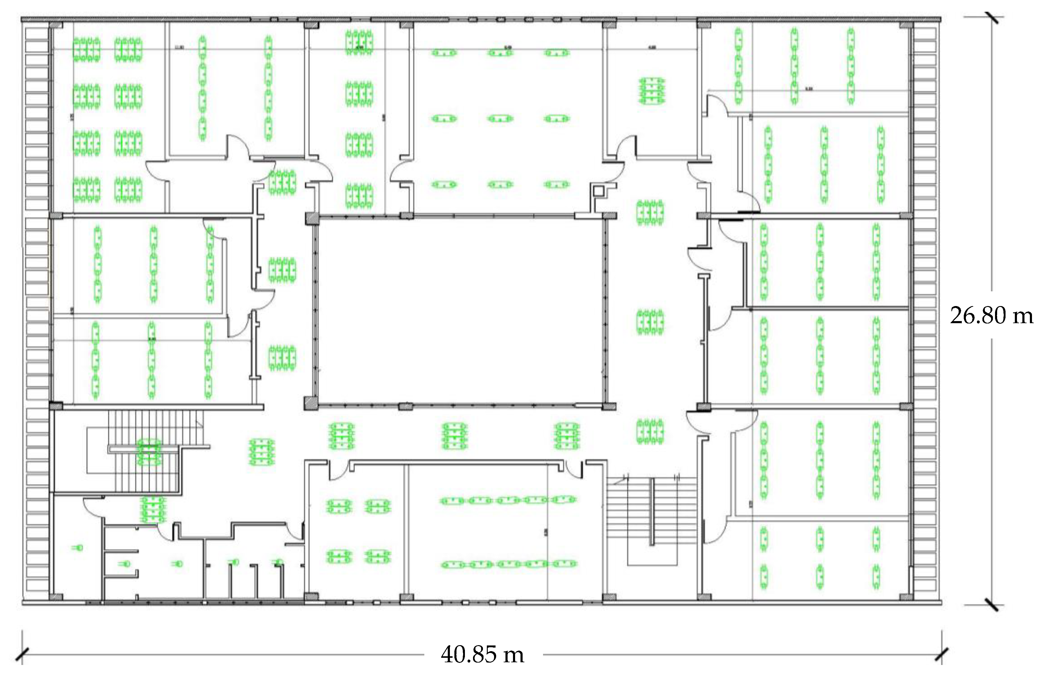
The existing lighting, shown in green in Figure 5, consists primarily of fluorescent tube fixtures that produce a combined output of 24.16 kW. Despite this relatively low combined power, these luminaires are very uncomfortable for users in many rooms of the building because their light output is largely insufficient.
Finally, it is worth mentioning the orientation of the building (see Figure 6 and Table 1), which plays a major role in the calculations performed by the TEE-KENAK software.
The use of CAD software is also implemented for the calculation of daylighting zones, which we will note in the following DZ. The accurate determination of these zones is essential since sensors can be placed to control artificial lighting and combine it with natural light to preserve the required lighting conditions while minimizing the building’s consumption. DZs depend on the orientation, openings and dimensions of the building, and are calculated using a combination of engineering data and the CAD software itself. To calculate the DZ, four parameters are taken into account, the most important being the width of the opening ( W O ) and the height ( H O ). This is followed by the depth ( L D Z ) and width ( W D Z ) of the DZ. These two quantities are calculated using equations (1) and (2).
L D Z = 2.5 × H O
W D Z = W O + L D Z 2
By way of illustration, as shown in Figure 7, the DZ of the teaching area is represented by a “wedge” shape calculated by a triangular profile; a profile determined by adding the width of the opening (i.e., 4.00 m) and half the height of the openings.
Some important considerations were made in designing the DZ. In particular, in small areas, the width of the opening is 0.75 m, hence the expected width of the DZ is 1.625 m. Using the CAD software, we can directly observe that this width is not possible because it is surrounded by walls. In all cases where this happens, the width is calculated from the CAD dimensions between the walls.
Finally, to be complete in the description of this case study, it is necessary to define the prediction of load profiles [22]. The operating hours of school buildings in Greece are governed by technical instructions issued by the Greek Ministry of Environment [29]. Specifically, it is estimated that a school building operates for 1560 h per year. In addition, it is also assumed that the heating system is turned on for 1144 h per year. Currently, the most important loads come from lighting. The TEE-KENAK software offers an additional option, called Net-metering, to enter the photovoltaic mask (i.e., the inclusion of a photovoltaic system in the building under study), referring, of course, to the regulations in force for its use. The net metering is then defined, which allows the additional energy produced by the photovoltaic system to be stored on the electrical grid. The net metering is associated with the notion of energy credit in kWh corresponding to the energy produced by the solar panels, but not consumed. When the solar panels produce more electricity than they consume during the day, the excess is fed back into the grid. When the electricity consumption is higher than the solar panels’ production, either at night or on cloudy days, the energy is taken from the grid. Thus, the additional energy produced in summer due to high solar radiation can be used in winter, for example, for heating and hot water consumption, when the photovoltaic production is insufficient. The excess energy is carried over to the next bill and the total bill is checked every three years. If the third year’s bill shows an energy deficit, the beneficiary pays the difference. The use of photovoltaic energy is a fantastic incentive for individuals and organizations to increase their electricity consumption, including the use of electric vehicles for commuting, the use of heat pumps for heating, cooling and hot water use, thus further reducing the carbon footprint. Finally, from a financial perspective, companies can increase their competitiveness through lower energy costs.
Most consumers in the European and American electrical markets are equipped with advanced metering infrastructure, enabling the introduction of time-varying power tariffing. [35] This is not the case in Greece; hence the load profile of a building is only taken into consideration when there is interest in the use of renewable energy sources (RES) [22].
The link between peak load optimization and Net-Metering is the fact that the energy supplier charges extra when a certain amount of energy is taken from the grid, while the simultaneous supply from the solar system does not match this taken energy. This problem can be mitigated by the use of batteries. At this point, a brief overview of energy storage systems (ESS) and their relationship to PV will be given, although batteries are not implemented in this case study and the topic will not be analyzed in depth. Batteries are connected to the PV grid to absorb excess energy. By storing this energy, it is possible to avoid drawing energy from the grid, further reducing operating costs. To get the most out of a solar system with storage, the load profiles of the buildings must be taken into account in order to size the battery pack accordingly. There are many studies on energy demand optimization, some of which implement accurate load prediction and propose energy management systems to moderate peak demand [36].

2.3. Description of the Retrofit Scenarios and Relevance of 3D CAD Modeling

With the case study defined, it is now time to define the following five retrofit scenarios (RS) that we selected:
  • RS1: Thermal insulation of the building envelope. It is unequivocal that insulation has a major impact on the energy efficiency of buildings. For this case study, the installation of extruded polystyrene is proposed to cover the entire building envelope, resulting in an average U -value of 0.4 W/m2K.
  • RS2: The windows should be replaced with modern triple-glazed aluminum windows with thermal breaks. In this way, the average U -value will be considerably reduced to an average of 1.50 W/m2K.
  • RS3: For the heating system, a combination of two heat pumps with a nominal thermal output of 106 kW and an electrical output of 39.2 kW each is proposed.
  • RS4: Replacing the old lighting with new low power LED lamps. The total power will be 2.3 kW, which is a 90% reduction of the installed power compared to the existing one.
  • RS5: Installation of the photovoltaic (PV) modules. The sizing of the PV generator depends on parameters that will be discussed in Section 3.1.
Finally, it is also a question of showing how 3D CAD modeling is involved in each of these scenarios and its relevance.
We have previously seen that daylight and shading play an important role in determining the thermal properties of building structures; especially for existing buildings where shape and volume modifications are not applicable. In order to visualize and design the shape of the building, a three-dimensional solid model was created using Autodesk’s AutoCAD application (educational version). As shown in Figure 8 and Figure 9, the model was to be sampled and represented the walls as solids with an additive operation. Each wall unit was extracted from the two-dimensional model and extruded, which allowed the actual height of the building facades to be measured. The openings were then represented by the void created after the extruded wall units were matched. The neighboring building was also modeled to demonstrate its shading on the opposite building facade.
After creating the three-dimensional model, a real daylight simulation took place. The solid model was positioned at its real geographical location where the following information was defined, depending on the location:
Time zone: (GMT+02:00) Athens, Beirut, Istanbul, Minsk.
Latitude: 40.7771; Direction Latitude: North.
Longitude: 24.702; Direction Longitude: East.
As shown in Figure 10 and Figure 11, the next step was to initialize the simulation of the sun’s path on two specific days of the year: The summer equinox (21 June) and the winter equinox (21 December). For these two dates, a simulation of the angle of the sun was made at three times of the day: 9:00 am, 12:00 am and 3 pm.

3. Simulation Settings and Main Results

3.1. Simulation Settings

As a first step, sunlight simulations were performed on the site where the building is located. The neighboring buildings were also modeled to visualize their contribution to the shading of the Limenas High School building. From these sunlight simulations, it was observed that:
During the summer period, natural shadows are generally absent at mid-day. The northern facade has a minimal shadow in the early morning. Due to the use of the building, which we recall here is for school use and operates from 15 September to 11 June, the lack of shade does not seem to be a determining factor.
On the contrary, during the winter equinox, the northern facades of the buildings are almost completely shaded, which can reduce the thermal properties of walls and openings. It is therefore advisable to intervene by insulating the walls and openings with appropriate materials.
The contribution of neighboring buildings to the total shading of the building studied here can be observed during the summer equinox at 9 am and 3 pm, especially by casting their shadows onto the eastern facades of the Limenas High School building.
For the dimensioning of the PV system, the main loads of the building have to be taken into account. These are calculated because a school building’s work hours are predefined and the building loads are within the range of our data. As mentioned in Section 2.2, the implementation of the net metering method makes the prediction of the exact load profile optional, whereas with the potential use of ESS, an exact load profile is required. The simulation results detailed below are based on the following three strategies:
The first strategy is the installation of solar panels on the existing building without the adoption of other retrofit solutions. The system consists of 48 PV modules of 550 Wp (watt peak) each, for a total installed power of 26.4 kWp. This PV system is expected to produce approximately 37,690 kWh/year.
The second strategy consists of using a solar PV system and replacing the existing energy-intensive lighting fixtures. The PV system is composed of 18 solar panels of 550 Wp each, for a nominal installed power of 9.9 kWp, guaranteeing an annual electricity production of about 14,250 kWh/year.
The last strategy consists of the use of low-energy LED lamps, as well as the modernization of the heating system. For the latter, the installation of two heat pumps (each with a nominal power of 39.2 kW), powered by a solar PV generator, is proposed. In this case, the PV system consists of 118 solar panels of 550 Wp each, for a total installed capacity of 64.9 kWp. It is then estimated that the electricity production of such a system is about 93,285 kWh/year.
For the estimation of the annual electricity production by the PV system and for each of the above scenarios, we assumed that the solar modules are oriented to the south with a tilt angle of 30°. To be even more precise, taking into account for example the technology of the solar panels and the weather conditions (temperature, wind speed, etc.), adequate software tools can be used. These tools tend to develop worldwide as the use of PV grows, especially as more and more commercial and residential users invest in solar energy systems. These software tools enable the sizing, simulation, analysis, and troubleshooting of PV systems, from preliminary energy efficiency and cost-effectiveness assessments to the development of project documentation [37].

3.2. Main Simulation Results

Figure 12 presents, in the form of a bar graph, the impact of each of the five retrofit scenarios (RS1, RS2, RS3, RS4, and RS5) listed in Section 2.3; scenarios that were studied individually.
This bar graph clearly shows that the initial capital cost of window replacement is a key variable. The initial capital cost of window replacement is disproportionately high. This is because the WWR is 29%, which means that there are a large number of openings to replace. The histogram in Figure 11 also shows that the most attractive solution in terms of payback time is the installation of heat pumps. Finally, the results show that the highest energy class is achieved by insulating the building envelope.
We then simulated all of the two-by-two combinations of the retrofit solutions listed in Section 2.3. The results and impact of each of the combinations are shown in the bar chart in Figure 13.
Compared to Figure 12, Figure 13 shows a large reduction in operating costs for some of the combinations. Furthermore, it is clear that the most interesting solution is the combination of heat pumps and PV modules. This specific combination is a sustainable solution because the consumption created by the heat pumps is covered by the production of the PV generator, making it a green alternative. Another interesting result is the huge difference in terms of initial cost, between the Window-Insulation scenario and the above-mentioned scenario. We can deduce that the same energy class is achieved with a difference of about 200,000 €. Finally, an interesting solution is the combination of heat pump and LEDs, despite the fact that the energy class only amounts to E, the payback time and the cost of the initial investment make it an immediate and attractive solution for mitigating operating costs.
The drawback of Figure 13 is that the energy classes of the retrofit solutions combined two-by-two are not satisfactory. To increase them, we then combined the previous retrofit solutions three-by-three. Figure 14 shows the results obtained in the form of a bar graph.
Figure 14 clearly shows that, at this stage, the most energy efficient solution is the combination of heat pumps, insulation and photovoltaics. The energy class achieved by this solution is B+ and the payback period is 8.1 years.
If the simulation strategy is taken further by combining four renovation solutions, only two possible solutions appear. In particular, Figure 15 shows that the A+ energy class can be achieved, but the initial investment cost is almost twice as high. It should be noted that replacing the windows significantly increases the initial investment costs in all scenarios.
All these results should make us wonder about the PV part in particular. Figure 13 shows that the combination of a heat pump and a PV system is more expensive than the combination of insulation and a PV system. This is due to the fact that the PV is sized in each scenario according to the electricity consumption. In other words, the combination of a heat pump and a PV system increases the initial cost, but reduces the payback period. Such combinations should be embraced because they provide a sustainable future by producing and consuming green energy from renewable energy sources (RES). Another interesting statistical result is that the combination of all retrofit solutions (see Figure 16) is cheaper and more feasible than the combination of four upgrades when both combinations provide an energy class of A+.
This occurs for the reasons mentioned above; the difference between the two 4-combination scenarios is the lack of LED lights. However, the old lighting system consumes 10 times more energy than LEDs, making oversizing the PV system a necessary evil.

4. Discussion

The first step is to provide some evidence for the answer to research question RQ1 (i.e., which combination of energy retrofit scenarios is the most cost-effective and energy efficient?). As has been made clear in all the simulation results that have been presented (see Section 3.2), the answer to RQ1 cannot be unique, and we propose to provide some elements of response with respect to all the combinations that have been tested. Under the single response scenario, the heat pump installation is the most energy and cost efficient. For the two-by-two combination of retrofit scenarios, the installation of heat pumps combined with PV modules is unequivocally the most attractive solution. Thirdly, the three-by-three answer would be the combination of heat pumps, insulation and photovoltaic panels, as already mentioned. Finally, in the case of the four-by-four combination, the most interesting solution is the combination of heat pumps, insulation, photovoltaics and LEDs.
For the use of solar panels in retrofit solutions, the simultaneity factor is an important element to take into account when calculating the payback time. Since the operation of a school building is predefined, the installed loads can be predicted and optimized. It is important that a solar system be future-proof. In addition, the system should be designed to be coupled with energy storage systems, power optimizers, etc. The use of battery energy storage systems (BESS) improves the reliability and quality of the power supply, allowing the use of cleaner and more efficient power sources. This also reduces the power drawn from the grid, which also helps to lower operating costs, while power optimizers reduce losses due to shading. Finally, as explained by the authors of [38,39], it is important to evaluate the size of the battery pack and the estimated gains compared to the initial investment cost.
One of the most important findings of this research is that window replacement has an inordinate initial capital cost. This is due to the WWR. In terms of energy efficiency, 19% of windows face north, 16% face south, 26% face east and 38% face west. The highest percentage of openings should be south-facing if this were a passive building, but it is not. Additionally, this percentage could be changed to reduce building envelope losses, nevertheless, the building also has a daylighting percentage of 59%. Changing the WWR would affect the daylighting and therefore the artificial lighting required for the building. All data indicate that all improvements are interconnected, thus answering research question RQ2 (i.e., what are the parameters that affect the interoperability of retrofit solutions?).
Finally, for research question RQ3 (i.e., how can CAD modeling coupled with energy efficiency software contribute to building retrofit solutions?), coupling the CAD software with the energy efficiency software saved a lot of computational time, as it revealed ideas that were translated into inputs. In addition, we were able to access information that was not initially available, but more importantly, we were able to design the current shape and geometry of the building, which allowed us to take a space-centric approach to potential energy efficiency additions to the building envelope, such as installing exterior bioclimatic metal shades for shading control.
In this study, the methodology implemented lead to limitations mainly related to the building envelope, since it is an existing building that has been in constant operation for three decades. As mentioned in Section 2.2, the building studied was built at a time when there were few, if any, regulations and no architectural plans. Thus, the data acquired during the audit could not be cross-checked. In order to be precise about the U -value of the walls, it is necessary to take a sample, using a core drill. In this way, one can be sure of the layers included in the wall, and thus of their exact properties. Moreover, some variables, such as the precise percentage of age of the reinforced concrete, were estimated by consulting the tables of national regulations. Finally, due to confidentiality issues, we were not able to access the actual electrical bills for the building. The recording of electricity and heating bills was not implemented by the TEE-KENAK software, which may lead to some limitations, such as for the PV sizing method which could not be as accurate as we had hoped.
A comment on government-subsidized programs is in order. Greece has taken steps to combat the energy crisis by introducing subsidy programs for energy improvements. By joining such programs, the rehabilitation of old buildings can be made possible halfway through the repayment period [40]. According to the European Commission’s initiative and, in particular, Greece’s recovery and resilience plan (RRP) and the emphasis on “green transition”, significant investments are needed to upgrade the energy of private and public buildings [41]. Reforms and investments will make Greece more resilient, sustainable, and ready for the opportunities and challenges of green and digital transformation. A dynamic convergence of reforms and investments will address Greece’s unique challenges and demonstrate the transformative effects of the plan. The Greek authorities have worked with national and regional social partners and stakeholders to develop the plan, while maintaining close communication with the Commission [41,42]. 37.5% of the plan will support climate goals, including interventions in the building sector [41]: Greece’s task, in terms of climate and environmental policies, is to reduce its conventional dependence on solid fossil fuels while increasing the share of renewable energy sources in energy supply. Significant investments are also needed to increase the energy efficiency of private and public buildings. Thus, it is estimated that the strategy will generate jobs and thus promote economic expansion, following the implementation of the rehabilitation work.

5. Conclusions

In this paper, a methodology, based on the combination of CAD modeling (AUTOCAD) and simulation (TEE-KENAK) of energy performance data, was implemented to define, evaluate and compare renovation solutions for public buildings in real-life situations. This study was conducted on a school building located in Greece.
The proposed approach resulted in the selection of the following five retrofit solutions: (RS1) Thermal insulation of the building envelope; (RS2) Use of triple-glazed aluminum windows with thermal breaks; (RS3) Use of heat pumps for the heating system; (RS4) Use of LED lamps; and (RS5) Use of PV modules. The objective was not only to evaluate each solution individually, but also to combine them (two-by-two, three-by-three, four-by-four, and all) to optimize the building’s energy class, while minimizing costs (initial investment costs and operating costs) and payback period. The results of the simulation show that, among the individual renovation solutions, the RS1 solution achieves the best energy class of the building (class D) and pays back the investment in seven years. The combination of the two retrofit solutions show that the best energy class (class C) is obtained by combining either RS1 and RS2 or RS3 and RS5. The second solution is to be preferred because it allows amortizing the operations in a little more than six years instead of thirteen. Combining the retrofit solutions three-by-three, there are three options for achieving building class B+: RS1, RS2 and RS4; RS1, RS2 and RS5; and RS1, RS3 and RS5. The third option is the most attractive because it allows for a payback period of just over eight years. By combining the retrofit solutions four-by-four, it is possible to achieve A+ class by combining RS1, RS2, RS3 and RS5. However, this takes almost 14 years to pay off. By combining RS1, RS3, RS4 and RS5, this payback period is almost halved. On the other hand, the energy class obtained in this case is B+. Finally, the combination of all retrofit solutions results in an A+ rating and a payback period of just over 12 years.
The use of CAD is inevitably associated with the term energy audit because it offers both accuracy and speed. Of all the retrofit solutions discussed in all the simulations, the most influential was the installation of PV modules. These technologies should be encouraged and prioritized when renovating a building, as they pave the way for a sustainable and CO2-free future.
Achieving long-term sustainability requires managing the built environment that hosts human activity [43,44]. The benefits of this study are directly reflected in society: by applying retrofit interventions to public buildings for educational use, citizens increase their sense of environmental awareness [34]. The quality of life of the young population is also improved, as sustainable measures are put into practice at an early age.
The results of this study can be generalized and considered for buildings in most Mediterranean countries with similar climate and sun exposure. In Greece, most of the school buildings were originally constructed in the same period as the studied building. The methodology applied in this study can help in decision making, based on a software procedure that includes inputs from the data available in the building permit file, coupled with a basic and non-detailed simulation process of a solid CAD model. As a result, sustainable interventions are proposed, leading to a manageable business plan where interventions are not considered individually, but as the result of their optimal combination.
Future work could consist of energy audits in buildings with similar characteristics such as initial year of construction, materials, thermal system, function and location in terms of daylighting. This will allow us to compare the differences between heating systems, windows and orientation, and to discuss the variation of the parameters involved, with the aim of improving their energy behavior.

Author Contributions

Conceptualization, Z.K.; Formal analysis, Z.K. and S.J.; Investigation, K.S.; Methodology, Z.K. and S.J.; Project administration, C.S. and S.J.; Resources, C.S.; Software, K.S. and Z.K.; Supervision, Z.K.; Validation, K.S.; Writing—original draft, K.S.; Writing—review & editing, Z.K., C.S. and S.J. All authors have read and agreed to the published version of the manuscript.

Funding

This research received no external funding.

Institutional Review Board Statement

Not applicable.

Informed Consent Statement

Not applicable.

Data Availability Statement

Not applicable.

Acknowledgments

These research activities are currently supported by the University of West Attica and more particularly by its Department of Mechanical Engineering, as well as by the University of Tours.

Conflicts of Interest

The authors declare no conflict of interest.

Abbreviations

BESSBattery energy storage system
CADComputer-aided design
EPBDEuropean energy performance of buildings directive
EPDEnergy performance diagnostic
ESSEnergy storage system
EUEuropean Union
ISOInternational Organization for Standardization
LEDLight-emitting diode
LEEDLeadership in energy and environmental design
PVPhotovoltaics
RESRenewable energy sources
RRPRecovery and resilience plan
RSRetrofit solution
VATValue-added tax
WWRWindow-to-wall ratio

References

  1. Bhuiyan, M.R.A. Overcome the Future Environmental Challenges through Sustainable and Renewable Energy Resources. Micro Nano Lett. 2022, 17, 402–416. [Google Scholar] [CrossRef]
  2. Solaymani, S. A Review on Energy and Renewable Energy Policies in Iran. Sustainability 2021, 13, 7328. [Google Scholar] [CrossRef]
  3. Deshmukh, M.K.G.; Sameeroddin, M.; Abdul, D.; Abdul Sattar, M. Renewable Energy in the 21st Century: A Review. Mater. Today Proc. 2021, in press. [Google Scholar] [CrossRef]
  4. Bertoldi, P. Policies for Energy Conservation and Sufficiency: Review of Existing Policies and Recommendations for New and Effective Policies in OECD Countries. Energy Build. 2022, 264, 112075. [Google Scholar] [CrossRef]
  5. Vérez, D.; Borri, E.; Cabeza, L.F. Trends in Research on Energy Efficiency in Appliances and Correlations with Energy Policies. Energies 2022, 15, 3047. [Google Scholar] [CrossRef]
  6. Li, X.; Arbabi, H.; Bennett, G.; Oreszczyn, T.; Densley Tingley, D. Net Zero by 2050: Investigating Carbon-Budget Compliant Retrofit Measures for the English Housing Stock. Renew. Sustain. Energy Rev. 2022, 161, 112384. [Google Scholar] [CrossRef]
  7. Belleri, A.; Marini, A. Does Seismic Risk Affect the Environmental Impact of Existing Buildings? Energy Build. 2016, 110, 149–158. [Google Scholar] [CrossRef]
  8. Sequeira, M.M.; Gouveia, J.P. A Sequential Multi-Staged Approach for Developing Digital One-Stop Shops to Support Energy Renovations of Residential Buildings. Energies 2022, 15, 5389. [Google Scholar] [CrossRef]
  9. Sáez-de-Guinoa, A.; Zambrana-Vasquez, D.; Fernández, V.; Bartolomé, C. Circular Economy in the European Construction Sector: A Review of Strategies for Implementation in Building Renovation. Energies 2022, 15, 4747. [Google Scholar] [CrossRef]
  10. Li, B.; Pan, Y.; Li, L.; Kong, M. Life Cycle Carbon Emission Assessment of Building Refurbishment: A Case Study of Zero-Carbon Pavilion in Shanghai Yangpu Riverside. Appl. Sci. 2022, 12, 9989. [Google Scholar] [CrossRef]
  11. Ma, Z.; Cooper, P.; Daly, D.; Ledo, L. Existing Building Retrofits: Methodology and State-of-the-Art. Energy Build. 2012, 55, 889–902. [Google Scholar] [CrossRef]
  12. Kamel, E.; Memari, A. Residential Building Envelope Energy Retrofit Methods, Simulation Tools, and Example Projects: A Review of the Literature. Buildings 2022, 12, 954. [Google Scholar] [CrossRef]
  13. Maghsoudi Nia, E.; Qian, Q.K.; Visscher, H.J. Analysis of Occupant Behaviours in Energy Efficiency Retrofitting Projects. Land 2022, 11, 1944. [Google Scholar] [CrossRef]
  14. Nair, G.; Verde, L.; Olofsson, T. A Review on Technical Challenges and Possibilities on Energy Efficient Retrofit Measures in Heritage Buildings. Energies 2022, 15, 7472. [Google Scholar] [CrossRef]
  15. Gonzalez-Caceres, A.; Rabani, M.; Wegertseder Martínez, P.A. A Systematic Review of Retrofitting Tools for Residential Buildings. IOP Conf. Ser. Earth Environ. Sci. 2019, 294, 012035. [Google Scholar] [CrossRef]
  16. Lu, Y.; Li, P.; Lee, Y.P.; Song, X. An Integrated Decision-Making Framework for Existing Building Retrofits Based on Energy Simulation and Cost-Benefit Analysis. J. Build. Eng. 2021, 43, 103200. [Google Scholar] [CrossRef]
  17. Li, Q.; Zhang, L.; Zhang, L.; Wu, X. Optimizing Energy Efficiency and Thermal Comfort in Building Green Retrofit. Energy 2021, 237, 121509. [Google Scholar] [CrossRef]
  18. Rabani, M.; Bayera Madessa, H.; Nord, N. Building Retrofitting through Coupling of Building Energy Simulation-Optimization Tool with CFD and Daylight Programs. Energies 2021, 14, 2180. [Google Scholar] [CrossRef]
  19. Roy, S.; Krames, M. Active Power Control of Retrofit LED Tube Lamps for Achieving Entitled Energy Savings in View of the EU Ban on Mercury. Sustainability 2022, 14, 10062. [Google Scholar] [CrossRef]
  20. Dyussembekova, N.; Temirgaliyeva, N.; Umyshev, D.; Shavdinova, M.; Schuett, R.; Bektalieva, D. Assessment of Energy Efficiency Measures’ Impact on Energy Performance in the Educational Building of Kazakh-German University in Almaty. Sustainability 2022, 14, 9813. [Google Scholar] [CrossRef]
  21. Seyedzadeh, S.; Pour Rahimian, F.; Oliver, S.; Rodriguez, S.; Glesk, I. Machine Learning Modelling for Predicting Non-Domestic Buildings Energy Performance: A Model to Support Deep Energy Retrofit Decision-Making. Appl. Energy 2020, 279, 115908. [Google Scholar] [CrossRef]
  22. Groß, A.; Lenders, A.; Schwenker, F.; Braun, D.A.; Fischer, D. Comparison of Short-Term Electrical Load Forecasting Methods for Different Building Types. Energy Inform. 2021, 4, 13. [Google Scholar] [CrossRef]
  23. Elkhapery, B.; Kianmehr, P.; Doczy, R. Benefits of Retrofitting School Buildings in Accordance to LEED V4. J. Build. Eng. 2021, 33, 101798. [Google Scholar] [CrossRef]
  24. Kanteraki, A.E.; Kyriakopoulos, G.L.; Zamparas, M.; Kapsalis, V.C.; Makridis, S.S.; Mihalakakou, G. Investigating Thermal Performance of Residential Buildings in Marmari Region, South Evia, Greece. Challenges 2020, 11, 5. [Google Scholar] [CrossRef]
  25. Katsaprakakis, D.A.; Zidianakis, G. Upgrading Energy Efficiency For School BuildingsIn Greece. Procedia Environ. Sci. 2017, 38, 248–255. [Google Scholar] [CrossRef]
  26. Attia, S.; Hamdy, M.; O’Brien, W.; Carlucci, S. Assessing Gaps and Needs for Integrating Building Performance Optimization Tools in Net Zero Energy Buildings Design. Energy Build. 2013, 60, 110–124. [Google Scholar] [CrossRef]
  27. ISO 15927-4:2005(En), Hygrothermal Performance of Buildings—Calculation and Presentation of Climatic Data—Part 4: Hourly Data for Assessing the Annual Energy Use for Heating and Cooling. Available online: https://www.iso.org/obp/ui/#iso:std:iso:15927:-4:ed-1:v1:en (accessed on 8 January 2023).
  28. ISO 13790:2008(En), Energy Performance of Buildings—Calculation of Energy Use for Space Heating and Cooling. Available online: https://www.iso.org/obp/ui/#iso:std:iso:13790:ed-2:v1:en (accessed on 8 January 2023).
  29. Technical Chamber of Greece. TEE KENAK 1.29.1.19: Software Inspection and Certification of Energy Buildings, Study of Energy Efficiency Boiler Inspection/Heating Installations and Facilities Air Conditioning-Manual; Technical Chamber of Greece Publications: Athens, Greece, 2012. [Google Scholar]
  30. Fernandes, M.S.; Rodrigues, E.; Gaspar, A.R.; Costa, J.J.; Gomes, Á. The Impact of Thermal Transmittance Variation on Building Design in the Mediterranean Region. Appl. Energy 2019, 239, 581–597. [Google Scholar] [CrossRef]
  31. Rodrigues, E.; Amaral, A.R.; Gaspar, A.R.; Gomes, Á. How Reliable Are Geometry-Based Building Indices as Thermal Performance Indicators? Energy Convers. Manag. 2015, 101, 561–578. [Google Scholar] [CrossRef]
  32. Vanhoutteghem, L.; Svendsen, S. Modern Insulation Requirements Change the Rules of Architectural Design in Low-Energy Homes. Renew. Energy 2014, 72, 301–310. [Google Scholar] [CrossRef]
  33. Cost-Effective Energy Efficient Building Retrofitting—1st Edition. Available online: https://www.elsevier.com/books/cost-effective-energy-efficient-building-retrofitting/pacheco-torgal/978-0-08-101128-7 (accessed on 8 January 2023).
  34. Pardo-Bosch, F.; Cervera, C.; Ysa, T. Key Aspects of Building Retrofitting: Strategizing Sustainable Cities. J. Environ. Manage. 2019, 248, 109247. [Google Scholar] [CrossRef]
  35. Gambardella, C.; Pahle, M. Time-Varying Electricity Pricing and Consumer Heterogeneity: Welfare and Distributional Effects with Variable Renewable Supply. Energy Econ. 2018, 76, 257–273. [Google Scholar] [CrossRef]
  36. Bissey, S.; Jacques, S.; Le Bunetel, J.-C. The Fuzzy Logic Method to Efficiently Optimize Electricity Consumption in Individual Housing. Energies 2017, 10, 1701. [Google Scholar] [CrossRef]
  37. Jacques, S.; Bissey, S. New Software Package for Teaching and Learning the Basics of Photovoltaic System Sizing. WSEAS Trans. Adv. Eng. Educ. 2015, 12, 10. [Google Scholar]
  38. Garimella, N.; Nair, N.-K.C. Assessment of Battery Energy Storage Systems for Small-Scale Renewable Energy Integration. In Proceedings of the TENCON 2009—2009 IEEE Region 10 Conference, Singapore, 23–26 January 2009; pp. 1–6. [Google Scholar]
  39. Dascalu, A.; Sharkh, S.; Cruden, A.; Stevenson, P. Performance of a Hybrid Battery Energy Storage System. Energy Rep. 2022, 8, 1–7. [Google Scholar] [CrossRef]
  40. Financing Agreement for the National Recovery and Resilience Plan Greece 2.0 Project Signed 2021. Available online: https://greece20.gov.gr/en/financing-agreement-for-the-national-recovery-and-resilience-plan-greece-2-0-project-signed/ (accessed on 8 January 2023).
  41. Greece’s Recovery and Resilience Plan. Available online: https://commission.europa.eu/business-economy-euro/economic-recovery/recovery-and-resilience-facility/greeces-recovery-and-resilience-plan_en (accessed on 15 January 2023).
  42. Commission Endorses Greece’s Plan. Available online: https://ec.europa.eu/commission/presscorner/detail/en/ip_21_3022 (accessed on 15 January 2023).
  43. Ahn, Y.H.; Pearce, A.R.; Wang, Y.; Wang, G. Drivers and Barriers of Sustainable Design and Construction: The Perception of Green Building Experience. Int. J. Sustain. Build. Technol. Urban Dev. 2013, 4, 35–45. [Google Scholar] [CrossRef]
  44. Ahn, Y.H.; Pearce, A.R. Green Construction: Contractor Experiences, Expectations, and Perceptions. J. Green Build. 2007, 2, 106–122. [Google Scholar] [CrossRef]
Figure 1. The five key steps to optimizing the energy renovation of buildings.
Figure 1. The five key steps to optimizing the energy renovation of buildings.
Sustainability 15 02211 g001
Figure 2. Input data and proposed methodology.
Figure 2. Input data and proposed methodology.
Sustainability 15 02211 g002
Figure 3. Contribution criteria of the input data of the two software packages used.
Figure 3. Contribution criteria of the input data of the two software packages used.
Sustainability 15 02211 g003
Figure 4. 2D CAD model of the building for shading calculations based on typical openings.
Figure 4. 2D CAD model of the building for shading calculations based on typical openings.
Sustainability 15 02211 g004
Figure 5. Existing light fixtures (in green) in the building studied.
Figure 5. Existing light fixtures (in green) in the building studied.
Sustainability 15 02211 g005
Figure 6. Orientation angles and daylight zones.
Figure 6. Orientation angles and daylight zones.
Sustainability 15 02211 g006
Figure 7. Illustration of the daylight zone calculation performed in a typical area.
Figure 7. Illustration of the daylight zone calculation performed in a typical area.
Sustainability 15 02211 g007
Figure 8. Two-dimensional drawing of the East façade and view of the three-dimensional model.
Figure 8. Two-dimensional drawing of the East façade and view of the three-dimensional model.
Sustainability 15 02211 g008
Figure 9. Views of the model in three dimensions.
Figure 9. Views of the model in three dimensions.
Sustainability 15 02211 g009
Figure 10. Simulation of shadows at the summer equinox at 9 am, 12 pm and 3 pm.
Figure 10. Simulation of shadows at the summer equinox at 9 am, 12 pm and 3 pm.
Sustainability 15 02211 g010
Figure 11. Simulation of shadows at the winter equinox at 9 am, 12 pm and 3 pm.
Figure 11. Simulation of shadows at the winter equinox at 9 am, 12 pm and 3 pm.
Sustainability 15 02211 g011
Figure 12. Impact of each energy retrofit scenario individually.
Figure 12. Impact of each energy retrofit scenario individually.
Sustainability 15 02211 g012
Figure 13. Two-by-two combinations of the retrofit solutions.
Figure 13. Two-by-two combinations of the retrofit solutions.
Sustainability 15 02211 g013
Figure 14. Combination of three retrofit solutions.
Figure 14. Combination of three retrofit solutions.
Sustainability 15 02211 g014
Figure 15. Combination of four retrofit solutions.
Figure 15. Combination of four retrofit solutions.
Sustainability 15 02211 g015
Figure 16. Combination of all retrofit solutions.
Figure 16. Combination of all retrofit solutions.
Sustainability 15 02211 g016
Table 1. Orientation of the existing building.
Table 1. Orientation of the existing building.
Angle (γ)Degrees (o)
Northern view349
Western view259
Eastern view79
Southern view169
Disclaimer/Publisher’s Note: The statements, opinions and data contained in all publications are solely those of the individual author(s) and contributor(s) and not of MDPI and/or the editor(s). MDPI and/or the editor(s) disclaim responsibility for any injury to people or property resulting from any ideas, methods, instructions or products referred to in the content.

Share and Cite

MDPI and ACS Style

Sofias, K.; Kanetaki, Z.; Stergiou, C.; Jacques, S. Combining CAD Modeling and Simulation of Energy Performance Data for the Retrofit of Public Buildings. Sustainability 2023, 15, 2211. https://doi.org/10.3390/su15032211

AMA Style

Sofias K, Kanetaki Z, Stergiou C, Jacques S. Combining CAD Modeling and Simulation of Energy Performance Data for the Retrofit of Public Buildings. Sustainability. 2023; 15(3):2211. https://doi.org/10.3390/su15032211

Chicago/Turabian Style

Sofias, Konstantinos, Zoe Kanetaki, Constantinos Stergiou, and Sébastien Jacques. 2023. "Combining CAD Modeling and Simulation of Energy Performance Data for the Retrofit of Public Buildings" Sustainability 15, no. 3: 2211. https://doi.org/10.3390/su15032211

APA Style

Sofias, K., Kanetaki, Z., Stergiou, C., & Jacques, S. (2023). Combining CAD Modeling and Simulation of Energy Performance Data for the Retrofit of Public Buildings. Sustainability, 15(3), 2211. https://doi.org/10.3390/su15032211

Note that from the first issue of 2016, this journal uses article numbers instead of page numbers. See further details here.

Article Metrics

Back to TopTop