Next Article in Journal
A Novel Deformation Extraction Approach for Sub-Band InSAR and Its Application in Large-Scale Surface Mining Subsidence Monitoring
Next Article in Special Issue
Urban Regeneration and Touristification in the Sardinian Capital City of Cagliari, Italy
Previous Article in Journal
Numerical Investigation and Prediction of Side-By-Side Tunneling Effects on Buried Pipelines
Previous Article in Special Issue
Innovative Rammed Earth Construction Approach to Sustainable Rural Development in Southwest China
 
 
Font Type:
Arial Georgia Verdana
Font Size:
Aa Aa Aa
Line Spacing:
Column Width:
Background:
Article

Promoting Sustainable and Resilient Constructive Patterns in Vulnerable Communities: Habitat for Humanity’s Sustainable Housing Prototypes in El Salvador

by
Rosa Ana Jiménez-Expósito
1,*,
Antonio Serrano-Jiménez
2,
Pablo Fernández-Ans
3,
Gianluca Stasi
4,
Carmen Díaz-López
1,2 and
Ángela Barrios-Padura
1
1
Department of Building Construction I, University of Seville, 41004 Sevilla, Spain
2
Department of Building Construction, University of Granada, 18071 Granada, Spain
3
Research Department, Rehabilita-Energía, 41011 Seville, Spain
4
Research Department, CTRL+Z Arquitectura, 41003 Seville, Spain
*
Author to whom correspondence should be addressed.
Sustainability 2023, 15(1), 352; https://doi.org/10.3390/su15010352
Submission received: 8 November 2022 / Revised: 12 December 2022 / Accepted: 17 December 2022 / Published: 26 December 2022

Abstract

The global challenges regarding sustainability and the guarantee of minimum habitability requirements have led to the transformation of construction practices, where research has failed to achieve sufficient dissemination and findings. The purpose of this research is to promote sustainable and resilient patterns in construction in vulnerable neighbourhoods in emerging countries by disseminating techniques and mechanisms through in situ transfer workshops and by raising awareness of the environmental importance of construction. Regarding materials and methods, this paper contributes innovative insights by combining training workshops and awareness-raising sessions to promote both environmental education and sustainable and optimised habits in construction. These methods are applied and tested in a real case study in El Salvador. Subsequent to carrying out a multi-disciplinary assessment analysis, the outcomes and results have led to the design of prototypes that have obtained a global EDGE certificate on sustainable construction and efficient use of resources once the users’ testimonies, weaknesses, and strengths have been addressed. The conclusions indicate that families, volunteers, and technical workers need to be trained by promoting environmental awareness in social housing and establishing a plan for dissemination to communicate across universities and public and private institutions in order to replicate guidelines across American dry-corridor countries.

1. Introduction

The global challenge of addressing the urgent need for social housing by ensuring habitability requirements, along with introducing sustainable practices in developing countries, is covered and recognised in various global and national reports, plans, and public policies [1,2]. The Guide for Conducting a Housing Sector Profile and the Global Housing Strategy of UN-Habitat, highlight the importance of the housing sector in the Gross Domestic Product (GDP). In the last decade, this stands at 3.2% in El Salvador as a representative emerging country. These reports highlight the role of construction in the generation of jobs, the cost of a home for a family, and the contribution of construction to the increase in greenhouse gas emissions and the consumption of material resources [3,4].
According to the State of Housing in Central America 2016, the quantitative housing deficit in El Salvador is approximately 191,000 units, in addition to the further deficit in terms of safety, comfort, and habitability conditions [5]. The Ministry of Housing from El Salvador lacks the economic capacity to respond to this deficit, and private agents and Non-Governmental Organisations (NGOs) aim to address it through the implementation of new housing prototypes [6]. These urban guidelines are also aligned with the Five-Year Development Plan 2014–2019, which urges all institutions to adopt the sustainability approach in construction techniques, whose strategy involves reversing the environmental deterioration generated by vulnerability and reducing the risk of disasters, along with addressing most of the Sustainable Development Goals (SDG) [6,7].
An initial research question of this study arises: How could low-cost housing construction patterns in emerging countries improve by guaranteeing basic habitability conditions and ensuring efficient communication and coordination between agents?
The cooperation projects carried out seek to introduce sustainable criteria into the construction techniques of social housing and to certify it by using the EDGE system. However, there is currently a lack of research on the use of sustainable materials for construction and only limited production of technologies, materials, and construction systems in these developing countries [8,9]. Faced with these challenges and, consequently, with this research gap, the Housing Sector in El Salvador demands methodological mechanisms and strategies that enable the academic training of housing construction to be strengthened as a transversal discipline by introducing research into new technologies, innovation and promoting coordination between universities, government, companies, and NGOs in the training of families [10]. Under these circumstances, “Habitat for Humanity El Salvador” emerges as a representative NGO in this context that solves the established challenges and meets the aims of the research group [11,12].
The main aim of the research is to foster the sustainability and resilience of vulnerable communities through the construction of sustainable housing prototypes by promoting environmental awareness of the population and of the different cooperation agents through the implementation of technology transfer workshops. For its demonstration, testing, and application, a real experience in an in situ case study is carried out in El Salvador in collaboration with the NGO Habitat for Humanity El Salvador. This research has been led by the PAIDI TEP-954 In-Fact research group, which belongs to the Higher Technical School of Architecture of the University of Seville [13]. Indeed, critical reflections on the experience of the components of the research group in the field of international cooperation for development formed the starting point of this research. In this way, conversations began with Habitat Humanity El Salvador, whose outstanding work in the country involves improving the sustainability of its interventions in the field of Social Housing.

2. Literature Review and Justification

A review of related research reveals that recent studies promote sustainability in the various areas of the built environment: in residential buildings, rural communities [14], schools [15], and other building uses. These studies lead to the readjustment of action strategies based on several alternatives, which are valued and weighted from the sustainability of resources, expenses, and user satisfaction, as stated by Mjörnell et al. [16]. However, it is necessary to carry out research studies that are specifically adapted to the socio-economic circumstances that vulnerable neighbourhoods present in order to be able to employ integrated urban renovation, which is especially needed in developing countries, as argued in the study by Mercader-Moyano et al. [17]. At the same time, advances and findings in research must be attained that focus on promoting and establishing environmental skills in society through teaching and education plans, which would enable the incorporation of guidelines of a more sustainable and eco-efficient nature into construction and resource management, as developed by Álvarez-García et al. [18] and Naukkarinen et al. [19].
The concept of urban regeneration goes beyond the concept of urban renovation and includes a system of changes and transformations in current cities that provide a response to the functional crisis of the city, where the increasing obsolescence of its buildings and the risk of poverty poses a crucial problem for the population [20,21]. Urban strategies presented by a variety of countries consider it essential to adapt to the specific socio-economic circumstances existing in each context of application [22,23].
Several recent studies have evaluated the urban regeneration process and have taken into account the real perspectives of its occupants and the socio-economic impact of various rehabilitation strategies [24,25]. Other studies, such as that developed by Singh et al. [26], have generated new action protocols for low-cost housing in emerging economies that include social demands from residents through participatory surveys. More recently, Monzón and López-Mesa [27] and Femenias et al. [28] have highlighted the need to implement tools and methods that introduce multi-disciplinary indicators to support the decision-making process in building construction and renovation.
Regarding decision-making, sustainable construction, and the educative dissemination of constructive techniques, Alberg Mosgaard et al. [29] analysed the influence of the promoters and the agents involved in construction projects using three different scenarios to identify and select the ideology that represents the most successful interventions. In addition, Invidiata et al. [30] proposed a multi-criteria decision-making method combined with interviews to help select the best action strategies in building rehabilitation. Moreover, Riera Pérez et al. [31] developed a sustainability assessment communication plan under three scenarios based on environmental goals for existing neighbourhoods.
Both the management of the built environment from a sustainable construction approach and the educational implications in its social dissemination are research topics that imply the way to adjust the methodological mechanisms that serve to promote sustainable decision-making strategies in construction, as stated in Kamari et al. [32]. These two research trends need to provide contributions that promote comfortable, safe, and efficient housing environments for the most vulnerable social sectors of these emerging countries while ensuring the minimum required habitability conditions [33,34].
Based on this review of the literature and by analysing current policies on social and low-cost housing in emerging countries such as El Salvador, it is determined as an urgent priority that the lines of research should be focused on the development of new low-cost housing prototypes that would ensure the population’s access to safe, healthy, efficient, and comfortable housing. Likewise, it is considered essential to implement training actions and awareness-raising sessions to promote environmental awareness in the communities and promote sustainable practices in the area of social housing in El Salvador and to include the necessary parameters to obtain the EDGE certificate as an innovative element [35].
A main insight from the literature review reveals that it is essential that members of the work team that undertakes these interventions come from both the scientific field and the field of development cooperation since the former provides methodologies and rigour in the various stages while the latter supply in-depth knowledge of these vulnerable contexts from different families [36,37].
The implications of the literature review, therefore, state that a multi-disciplinary team is essential to ensure the success of interventions in social housing in emerging countries [38]. In the same way, the dissemination of the research results is crucial, both in the scientific field and in the context of international development cooperation, for the impact of the interventions to be increased and to serve as an example to other entities in the social housing sector in vulnerable communities [39,40].
The methodology proposed contains an element of innovation in that its aim is to become standardised and replicable since it allows the introduction of scientific methods into cooperation interventions while incorporating the strategies and dissemination sessions in development cooperation to guarantee the feasibility of actions in accordance with the unique characteristics of vulnerable contexts and communities [41,42].

3. Materials and Methods

The research has been carried out in different stages, beginning with the identification of needs and demands of the population, local institutions, and cooperation agents. Subsequently, a second phase of design of the housing prototypes follows the criteria of the EDGE certification program, which also responds to the needs and demands collected. In a third stage, the housing prototypes are built, thereby obtaining the EDGE certificate, and continues with a fourth stage of monitoring and evaluation of the prototypes and conducting interviews and surveys to ascertain the degree of satisfaction held by the beneficiary families, which enables improvements to be made in subsequent interventions.
The methodology presented below is intended to be standardised and made replicable for other locations and geographic and socio-economic contexts, whereby the methodology itself, or the sequence of actions, are highlighted and exclusively described in order to strengthen the main insights of the methodology phases and enhance their development within the case in El Salvador. This is divided into 5 phases, as shown below:
  • PHASE 1: IDENTIFICATION OF NEEDS AND DEMANDS
Based on the guidelines established in the funded project, the work was divided into 3 stages:
  • Stage 1: Documentary research
Work began with documental and research work, in which the political, economic, and social situation of the country was studied in depth in order to understand the multi-dimensional context. Likewise, the work of Hábitat NGO was analysed related to the construction projects carried out and their scope, strategies, and goals in the short and long term, as were more purely architectural issues in terms of its housing models, construction details, programs used, infrastructure systems, and other information related to architecture. Likewise, the technical construction and housing regulations were reviewed, both locally and internationally, which can be applied to this type of housing. Finally, a review was made of the available bibliography on the country’s traditional architecture and the passive and bioclimatic initiatives carried out for their improvement.
  • Stage 2: Site visits
In the second stage, two members of the research group from the University of Seville travelled to El Salvador with the constant accompaniment of Habitat for Humanity. The professionalism of the entire Habitat for Humanity El Salvador team was key, with major support from both the population and the municipalities, universities, ministries, and other institutions. Likewise, visits were made to the beneficiary communities of the social interest housing programs of Habitat for Humanity El Salvador (Figure 1 and Figure 2). In these visits, the research members were able to learn first-hand about the lifestyles of Salvadoran families, typologies, modifications over time, and the strengths and weaknesses of the buildings (Figure 3 and Figure 4).
  • Stage 3: Specification of action lines
After carrying out the visits in El Salvador, all the information was collected, and the work team focused on creating a motivation tree, which described the effects and causes in a graphical map along with the main aim and the subsequent particular actions, as a methodological output of the research.
Based on this map, the research team was able to adjust and promote the following lines of research:
Action line 1: Improvement of the architectural typologies of social interest housing generated by Habitat for Humanity El Salvador through the design and implementation of safe, comfortable, healthy, and sustainable housing prototypes
Action line 2: Generation of more sustainable and efficient architectural solutions certified with the EDGE certification program endorsed by the World Bank.
Action line 3: Training, education, and raising of awareness of vulnerable communities and cooperation agents in terms of sustainable and efficient design, construction, use, and maintenance of housing, as well as an improvement in environmental awareness.
Action line 4: Evaluation of all actions and the drawing of conclusions and disseminating results both in the scientific field and in the context of international cooperation for development.
  • PHASE 2: DESIGN OF SUSTAINABLE HOUSING PROTOTYPES, TRAINING WORKSHOPS, AND AWARENESS ACTIONS
Based on the action lines established in the first phase, the work team advanced to the second phase thanks to the financial funding provided to carry out the aforementioned research project. Within the framework of this project, improved housing prototypes were designed under sustainability criteria which met the steps and requirements of the EDGE certification program (Figure 5). Due to the situation caused by the COVID-19 pandemic and the passage of storm Amanda, which caused serious damage in El Salvador, the project had to be carried out virtually for a period of time, which produced complex situations.
In this way, the advantages and disadvantages of the implementation of cooperation projects were revealed since it was impossible to carry out the designed training and awareness workshops physically, and therefore, a Virtual Learning Classroom was created where various training sessions were carried out for technicians, builders, volunteers, and the university. Online awareness campaigns were also carried out for beneficiary families.
The training provided and the awareness-raising focused on the area of sustainable building, diagnosis and technical improvements, impact assessment, calculations, and good practices in design, construction management, and maintenance of housing. New conclusions and improvements could be drawn from this project that were then taken into account in the subsequent project.
Regarding the activities related to the design of the new sustainable housing prototypes, it was possible to carry these out online through regular meetings between the counterparts and the work team. The research team developed a diagnosis of the efficiency of the housing prototypes, the proposed construction process, and the creation of a catalogue of architectural proposals of a more sustainable nature that sought efficiency in the areas of:
The functionality of the prototypes and their adaptation to Salvadoran ways of life.
Structural safety, by analysing the behaviour of house owners in the event of earthquakes and tropical storms and by proposing reinforcements.
Accessibility, by verifying the removal of architectural barriers.
The management of resources and waste for a reduction in the volume of construction materials, for the implementation of devices, to reduce the consumption of drinking water and recycling of grey water, and for rainwater harvesting and storage for various uses.
Energy consumption for lighting and interior thermal conditioning through bioclimatic architectural resources and the improvement of façade and roof elements (Figure 6).
Health, through the reconfiguration of the prototypes to guarantee the reduction of environmental humidity, the proposal of devices and resources to prevent infestations by insects and rodents, the proposal of the reconfiguration of windows and doors to guarantee suitable interior lighting for basic activities of daily life according to the families’ profile, and the possession of ventilation elements to facilitate the evacuation of toxins and to prevent unhealthy environments.
The construction of the immediate exterior environment that prevents the flooding of gardens by avoiding the implementation of hard paving that causes the generation of a heat island and by recommending areas for growing food and managing domestic waste.
Economic costs, through analysing the cost/benefit ratio and proposing financing systems.
Two prototypes of sustainable housing of social interest were chosen based on the diagnosis, demands, and needs collected both from Habitat for Humanity El Salvador and from the communities via the results obtained after the environmental, economic, and procedural evaluation of the various housing models designed and according to the parameters required by the EDGE certification program. These prototypes implied no major changes of those currently carried out by the entity, but they did include technical improvements in both design and materials, which enabled their efficiency, sustainability, and comfort to be improved.
  • PHASE 3: CONSTRUCTION OF 2 SUSTAINABLE HOUSING PROTOTYPES: TRAINING WORKSHOPS AND AWARENESS-RAISING ACTIONS
Once the design phase had been completed, it was necessary to continue with a third phase in which the prototypes were built in different climatic regions in accordance with the needs of the beneficiary families (Figure 7). To this end, in 2021, funding was obtained from the AACID (Andalusian Agency for International Development Cooperation) to carry out the project entitled “Resilient Communities in El Salvador: access for all people to safe, healthy, efficient, and comfortable housing”. This phase is divided into 6 stages:
Stage 1: Analysis and selection of the plots and the contextual characteristics on which the housing prototypes would be built, together with the selection of the families to benefit from the housing prototypes.
Stage 2: Drafting of the projects for two housing prototypes in two different climatic zones. These designs were adjusted to the particular conditions of the lots and to the needs and characteristics of the beneficiary families. This phase includes obtaining construction licenses.
Stage 3: Construction of the prototypes by the staff of Habitat for Humanity El Salvador. Consultancy is carried out on the construction of the two houses by the Seville work team, who travelled to El Salvador to supervise the work and to monitor the EDGE certification process.
Stage 4: Obtaining the EDGE certification of the prototypes after completion of the work.
Stage 5: Implementation of awareness sessions and training workshops for both families and staff of Habitat for Humanity El Salvador.
Stage 6: Meetings of the work team of the University of Seville with the many local institutions (Ministry of Housing, City Halls, Salvadoran Institute of Construction, Salvadoran Association of Engineers and Architects, and Universities) for the dissemination of the project, its objectives, and its scope.
  • PHASE 4: MONITORING AND ASSESSMENT
The motivation of this phase involves monitoring the dwellings in order to collect the results that verify improvement in the efficiency and comfort of the sustainable housing prototypes designed. This phase is divided into the following stages:
Stage 1: Monitoring of parameters. To this end, monitoring equipment is installed in the housing prototypes built and in other existing dwellings in the area in order to verify and quantify the improvements produced. This monitoring produces results for several months, and the families play a key role in the care and monitoring of the equipment.
Stage 2: Interviews with families. Surveys and interviews are carried out with the families, which lead to a quantitative and qualitative analysis of the degree of satisfaction with the sustainable prototypes they inhabit, thereby detecting their strengths and weaknesses.
Stage 3: With the results obtained from the monitoring and interviews, an overall assessment is carried out to demonstrate that the newly designed and recently built prototypes have improved the degree of indoor comfort, efficiency, and sustainability patterns and have been approved through satisfaction levels from the occupants.
  • PHASE 5: DISSEMINATION OF RESULTS, CONCLUSIONS, AND IMPLICATIONS
This final phase focuses on the dissemination of the results, conclusions, and implications. For this phase, the work team obtained funding in 2022 from the Office of Development Cooperation of the University of Seville to carry out the project entitled “Knowledge transfer workshops and results obtained in the project: Sustainable and resilient communities in El Salvador: access for all people to safe, healthy, efficient, and comfortable housing”. The objective of this phase is to transmit the experience and knowledge generated throughout the investigation to policy-makers and to promulgate the implications and conclusions generated from the process, both in the scientific field and in the contexts of development cooperation in matters of sustainable social interest housing.
In this way, awareness-raising conferences and workshops will be held at the Higher Technical School of Architecture of the University of Seville in order to present the results of the research and increase its degree of impact in the educational field. Likewise, in El Salvador, dissemination will be carried out during the trips made by the team to said country through meetings with the various public and private institutions related to the field of sustainable social interest housing.

4. Results and Discussion

The sustainable housing prototypes have been very well received by the counterpart entity and the country’s public and private institutions. This is a highly valued initiative among the staff of Habitat for Humanity El Salvador, who are highly motivated to bring their housing catalogue closer to models of a more sustainable nature, thereby fulfiling particular actions from the main aim of the research (Figure 8). The increase in costs and the technical improvements introduced have turned out to be viable both in their design and construction.
Throughout the entire project, including its methodological phases and its application in El Salvador, certain preliminary results and conclusions (set out below) have already been attained, although it has not yet been possible to collect all the results since the dwellings remain under construction at the time of writing this document. It will be necessary to collect the data resulting from the monitoring, as well as from the interviews and surveys of the beneficiary families after having inhabited the sustainable prototype dwellings for a time.
As uncovered in Phase 1, the beneficiary families have a good disposition towards the sustainability of the prototypes they are going to inhabit, and their testimonies will be of great relevance for the evaluation of the degree of comfort and suitability of the design. The training they will receive in the use and maintenance of homes towards more sustainable habits will hold the key to increasing the impact of the intervention and promoting environmental awareness in their communities. The families have welcomed the proposal and have been willing to contribute to the research for the good of their community. The leading role that these families will acquire is considered essential to foster the spirit of change: they are presented in their communities as success stories in which they themselves will share their experiences with the rest of the families.
As insights from Phase 2, once the research team was a beneficiary in the competitive call of the Identification Project with the title: “Identification of projects for the evaluation of the management of the construction of new construction and rehabilitation of dwellings in vulnerable areas of El Salvador and the strengthening of the capacities of the local population and development cooperation agents in appropriate construction techniques”, then two members of the team travelled to El Salvador. These members were to learn personally about the activities of the NGO Habitat for Humanity El Salvador, its social housing programs, and the needs and demands of both the entity itself and of the beneficiary families and local institutions. This made it possible to better identify the shortcomings in terms of research and sustainability that exist in the development of low-cost social housing prototypes appropriate to the socio-economic, cultural, and climatic conditions of these countries.
During this visit, it was possible to understand the operation of Habitat for Humanity El Salvador, its mission, and its values. This NGO, well established in El Salvador, belongs to the global NGO Habitat for Humanity International. Habitat for Humanity El Salvador builds suitable and accessible housing for the country’s low-income populations thanks to private funding obtained from national and international donors.
This entity has a guide of proposals for housing models that can be adjusted to the needs of families and that fulfil both national and international construction standards. In addition to building housing, the entity has Housing Access Services, in which beneficiary families are provided with financial, construction, risk management, and community management education. The methodology employed for the construction of the houses is based on mutual help; that is, the owners of the houses support the construction under the advice of qualified masons and supervisors and with the help of volunteers.
The volunteers in this NGO constitute a key factor. Every year brigades of volunteers arrive to carry out the work on-site and accompany the families selflessly, under the advice of qualified masons and technicians. During the visit, several meetings were held with the technical and construction staff (Figure 1), the coordinators of the national and international volunteering areas, accounting, and administration. During the course of these meetings and visits, favourable and critical points were detected, requests were collected, problems were identified, and future lines of work were established that would be nuanced during the sessions. Likewise, the team travelled to different towns to meet the beneficiary families of the programs of this entity and to view in situ the different housing prototypes, both inhabited and under construction (Figure 2).
As implications from Phase 2 and Phase 3, subsequent to the visit, the work team was able to focus its efforts on drawing conclusions based on the information collected regarding the needs and demands and on contrasting them with the information collected in the documentary stage, and extracting the opportunities for research and development in this research area in order to establish the main lines of work that would be addressed in subsequent projects. Hence, subsequent projects undertaken by the research team arose in response to the established lines of action in an effort to promote sustainability and resilience in vulnerable communities, and to comply with Phase 5 regarding the dissemination of results, conclusions, and implications, as laid out by Alberg Mosgaard et al. [29] and Riera et al. [31].
As the final discussion from the process, the EDGE certification features as one of the demands and is one of the innovative elements to be highlighted in the field of affordable housing since there are no known experiences that have been widely publicised in this sector beyond that developed by Kamari et al. [32] and Shooshtarian et al. [34]. For this reason, it has been well received by public and private institutions in the social housing sector and will serve as a model to be followed by other interventions. In this respect, it has been possible to detect that the EDGE certification can be attained with the introduction of certain technical improvements in the projects in order to gain access to an even more demanding certification. In short, the incorporation of the EDGE tool has proven to be a useful contribution that provides greater rigour to the development of the process since it is a globally standardised evaluation and qualification tool and, consequently, unveils the process of sustainable renovation [43].
Lastly, the training given in the various sectors is crucial for raising environmental awareness in the communities and for the promotion of sustainable practices among the different cooperation agents (Figure 9). Since the beginning of the research, the components of Habitat for Humanity El Salvador have been attending a variety of training sessions in which they have expanded their knowledge both in the field of bioclimatic design and sustainable construction applied to the context of El Salvador and also in efficient on-site management and the EDGE certification program. Not only are technical and construction personnel trained but also the different components of the entity (administration, volunteers, human resources, accounting staff) with the aim of promoting this environmental awareness at all levels, as already launched by Díaz-López et al. [15] and García-González et al. [44].

5. Conclusions

This paper contributes innovative methodological insights through different stages by combining training workshops focused on different agents involved in low-income housing prototypes and through awareness-raising sessions to nurture environmental education and promote sustainable habits in Construction. The research involves a methodological contribution and a sequence of phases established by working with the NGO Habitat for Humanity El Salvador, beneficiary families, and local public and private institutions for the inclusion of improvements in basic social housing prototypes in response to the results obtained in interviews conducted with beneficiary families and staff of the NGO, applied in the case study of El Salvador.
A discussion of the implications of this study has generated insights and important observations regarding the cultural values and the new needs and ways of living of the Salvadoran population as a developing country. New training actions will be planned to teach sustainable construction techniques to various social sectors in accordance with the conclusions drawn in this project. Finally, its testing and application on a variety of prototypes have generated a range of insights and implications for policy-makers and other Development Cooperation organisations that will enable the dissemination of the results obtained and of the conclusions drawn both in the context of development cooperation and in the scientific field.
In the findings and conclusions of this research, which forms part of a Ph.D. thesis, it is verified that the EDGE certificate demonstrates and validates the usefulness of the improvements introduced, for which new lines of action may prove to be more demanding in future interventions. The economic cost involved in the improvements introduced in the sustainable prototypes has turned out to be affordable and viable by the families and the NGO in a way that guarantees their replicability in other parts of the country. The communities and families have shown full willingness and satisfaction in collaborating in the monitoring and evaluation stage and in sharing their experiences in sustainable housing both with the work team and with dissemination among their communities.
From the implications generated in the course of the different projects carried out by the members of the team, questions arose regarding both the procedures and the management of social interest housing projects in the context of development cooperation. There were numerous issues that the team set out to address, including those concerning the sustainability of social interest housing designs, efficient onsite management, the qualifications and experience of the different actors involved in the cooperation sector, the promotion of environmental awareness in the communities, the empowerment of beneficiary families in the efficient use and maintenance of housing, the promotion of sustainable architecture with guarantees, and the dissemination of results in the scientific field.
As the main findings from the five phases, the methodology used during the research has proved to constitute a key instrument for the involvement, training, and empowerment of the various agents of cooperation in the field of social housing in the country, thereby serving as a boost for this type of sustainable construction, which improves sustainability and the resilience of vulnerable communities. Furthermore, another key outcome is based on the assumption that, although organising the different actors is not an easy task, it does present a key mechanism when the aim is to improve the environmental awareness of communities and promote sustainable practices in the field of housing.
This research has provided innovative mechanisms for new synergies and future lines of action between a regional entity and public and private administrations, which enable the interventions carried out in El Salvador to be extrapolated to other locations of the Central American dry corridor that have similar climatic, cultural, and socio-economic characteristics, such as Guatemala and Honduras, wherein Habitat for Humanity International has offices. It is expected that this research will lay the foundations for action in the form of new financing, collaboration, and future projects that will allow the TEP-954 In-Fact research team of the University of Seville to continue advancing in this line of work. Thus, as future studies, it is necessary to recognise that Habitat for Humanity El Salvador has shown its desire to include sustainable housing prototypes in its housing catalogue, and to contribute to the replication of the experience in various locations across the country with the necessary adaptations in accordance with the needs of the families involved and the characteristics of the specific context.
The specific insights of this research, while still fulfiling the identified research gaps, cover three main factors: 1. Design and building of innovative housing prototypes that are sustainable and adapted to the conditions of the context and the needs of the families selected; 2. Assessment and certification in the EDGE Program of innovative low-income prototype housing under sustainability criteria and eco-efficient construction patterns; 3. Improvement of the capacities of the population from El Salvador, as well as of cooperation agents and institutional and social actors, in terms of sustainable construction and environmental awareness.
The dissemination of these research results constitutes a fundamental tool to raise awareness among the various public and private institutions in the country regarding the need to promote sustainable interventions in housing with a viable and eco-efficient approach whose results are quantifiable and with the guarantees that offer official certification.
Finally, with respect to the limitations herein and future lines of research, we advocate that training, both online and presential, continues to be carried out, as should the implementation of surveys and interviews conducted with communities and users. At this early stage, the first results and implications of the process have been revealed, which provide the reader with a useful sample of the progress, conclusions, and main contributions of this integrated and multi-dimensional research. Likewise, dissemination in the scientific field is essential since sustainable construction in developing countries and the methodologies of teaching society must be replicable, with the possibility of improvements and adaptations to specific geographical contexts. It is equally important to encourage the major interest shown by the university community in the field of development cooperation and in issues related to sustainability and environmental protection.

Author Contributions

Conceptualisation: R.A.J.-E., A.S.-J. and Á.B.-P.; methodology: R.A.J.-E. and Á.B.-P.; software: R.A.J.-E., P.F.-A. and G.S.; validation: R.A.J.-E., A.S.-J. and Á.B.-P.; formal analysis: R.A.J.-E.; investigation: R.A.J.-E., C.D.-L. and A.S.-J.; resources: R.A.J.-E., P.F.-A. and G.S.; data curation: R.A.J.-E.; writing (original draft preparation): R.A.J.-E. and A.S.-J.; writing (review and editing): R.A.J.-E. and A.S.-J.; visualisation, R.A.J.-E., P.F.-A. and Á.B.-P.; supervision: R.A.J.-E., A.S.-J. and Á.B.-P.; project administration, C.D.-L. and Á.B.-P.; funding acquisition, Á.B.-P. All authors have read and agreed to the published version of the manuscript.

Funding

This research was funded by the University of Seville, grant numbers US-AYP/18/2022 and US-2020UI003, through the project “Sustainable and resilient communities in El Salvador: access for all people to safe, healthy, efficient and comfortable housing” and the grant number US-d07/2019 through the project “Identification of projects for the evaluation of the management of the construction of new works and housing rehabilitation in vulnerable areas of El Salvador and the strengthening of the capacities of the local population and the agents of development cooperation in appropriate construction techniques”.

Institutional Review Board Statement

All subjects gave their informed consent for inclusion before they participated in the study. The study was conducted according to the guidelines of the Declaration of Helsinki and approved by the Institutional Review Board of “Agencia Andaluza de Cooperación Internacional para el Desarrollo (AACID)—2020UI003” from the Andalusian Government.

Informed Consent Statement

All subjects gave their informed consent for inclusion before they participated in the study.

Data Availability Statement

Not applicable.

Acknowledgments

This work was supported through funds, materials, and measuring equipment as part of the Cooperation project “Sustainable and resilient communities in El Salvador: access for all people to safe, healthy, efficient and comfortable housing” (US: AYP/18/2022 and US: 2020UI003) and “Sustainable and resilient communities in El Salvador: access for all people to safe, healthy, efficient and comfortable housing” and the project “Identification of projects for the evaluation of the management of the construction of new works and housing rehabilitation in vulnerable areas of El Salvador and the strengthening of the capacities of the local population and the agents of development cooperation in appropriate construction techniques” (US-d07/2019) through the development of Ph.D. studies of the corresponding author. Additionally, this research received support from the following research projects “Eco-efficiency in educational centres: Innovation, Rehabilitation and regeneration” (FEDER-US-15547), and “(Re)programa-tool: Digital tool for optimised decision-making in housing renovation strategies” (Andalusian Government—US.20-06) national research project, within the ERDF 2014-2020 funds and regulations for the Andalusian region. This research was also made possible thanks to the financial support of the Andalusian Government through a postdoctoral contract (POSTDOC_21_00575) granted to one of the authors.

Conflicts of Interest

The authors declare there to be no conflict of interest.

References

  1. Alba-Rodríguez, M.D.; Rubio-Bellido, C.; Tristancho-Carvajal, M.; Castaño-Rosa, R.; Marrero, M. Present and Future Energy Poverty, a Holistic Approach: A Case Study in Seville, Spain. Sustainability 2021, 13, 7866. [Google Scholar] [CrossRef]
  2. Mercader-Moyano, P.; Morat, O.; Serrano-Jiménez, A. Urban and Social Vulnerability Assessment in the Built Environment: An Interdisciplinary Index-Methodology towards Feasible Planning and Policy-Making under a Crisis Context. Sustain. Cities Soc. 2021, 73, 103082. [Google Scholar] [CrossRef]
  3. OECD GDP. Available online: https://data.oecd.org/gdp/gross-domestic-product-gdp.htm (accessed on 1 December 2022).
  4. United Nations. Governance Assessment Framework: For Metropolitan, Territorial and Regional Management. Available online: https://unhabitat.org/sites/default/files/2020/10/gaf-mtr.pdf (accessed on 4 December 2022).
  5. Fernández-Portero, C.; Alarcón, D.; Barrios-Padura, Á. Psychosocial Indicators of Habitability Conditions and Satisfaction with Life among Older People/Indicadores Psicosociales de Las Condiciones de Habitabilidad y Satisfacción Vital En Personas Mayores. Psyecology 2017, 9, 152–176. [Google Scholar] [CrossRef]
  6. Government of El Salvador 5 Years Plan of Development 2014–2019. Available online: www.aecid.sv (accessed on 6 December 2022).
  7. GBCe. European Agenda for Sustainable Buildings; GBCe: Madrid, Spain, 2020. [Google Scholar]
  8. Serrano-Jimenez, A.; Barrios-Padura, A.; Molina-Huelva, M. Towards a Feasible Strategy in Mediterranean Building Renovation through a Multidisciplinary Approach. Sustain. Cities Soc. 2017, 32, 532–546. [Google Scholar] [CrossRef]
  9. Serrano-Jiménez, A.; Díaz-López, C.; Verichev, K.; Barrios-Padura, Á. Providing a Feasible Energy Retrofitting Technique Based on Polyurethane Foam Injection to Improve Windows Performance in the Building Stock. Energy Build. 2023, 278, 112595. [Google Scholar] [CrossRef]
  10. Bibri, S.E.; Krogstie, J. Smart Sustainable Cities of the Future: An Extensive Interdisciplinary Literature Review. Sustain. Cities Soc. 2017, 31, 183–212. [Google Scholar] [CrossRef]
  11. United Nations Human Settlements Programme. United Nations—Habitat Global Report on Human Settlements 2007—Enhacing Urban Safety and Security; United Nations Human Settlements Programme: Nairobi, Kenya, 2007; ISBN 978-1-84407-475-4. [Google Scholar]
  12. Jensen, P.A.; Maslesa, E. Value Based Building Renovation—A Tool for Decision-Making and Evaluation. Build. Environ. 2015, 92, 1–9. [Google Scholar] [CrossRef]
  13. Seville, U. of Research Group—TEP 954 In-Fact. Available online: https://grupo.us.es/infact/ (accessed on 5 December 2022).
  14. Feu Gelis, J.; Torrent Font, A. The Ideal Type of Innovative School That Promotes Sustainability: The Case of Rural Communities in Catalonia. Sustainability 2021, 13, 5875. [Google Scholar] [CrossRef]
  15. Díaz-López, C.; Serrano-Jiménez, A.; Lizana, J.; López-García, E.; Molina-Huelva, M.; Barrios-Padura, Á. Passive Action Strategies in Schools: A Scientific Mapping towards Eco-Efficiency in Educational Buildings. J. Build. Eng. 2022, 45, 103598. [Google Scholar] [CrossRef]
  16. Mjörnell, K.; Boss, A.; Lindahl, M.; Molnar, S. A Tool to Evaluate Different Renovation Alternatives with Regard to Sustainability. Sustainability 2014, 6, 4227–4245. [Google Scholar] [CrossRef]
  17. Mercader-moyano, P.; Morat, O.; Muñoz-González, C. Housing evalutation methodology in a situation of social poverty to guarantee sustainable cities: The satisfaction dimension for the case of mexico. Sustainability 2021, 12, 11199. [Google Scholar] [CrossRef]
  18. Alvarez-García, O.; Sureda-Negre, J.; Comas-Forgas, R. Assessing Environmental Competencies of Primary Education Pre-Service Teachers in Spain: A Comparative Study between Two Universities. Int. J. Sustain. High. Educ. 2018, 19, 15–31. [Google Scholar] [CrossRef]
  19. Naukkarinen, J.; Jouhkimo, L. Toward Integrated and Inclusive Education for Sustainability with School–University Cooperation. Sustainability 2021, 13, 12486. [Google Scholar] [CrossRef]
  20. Fernández-Valderrama, L.; Martíin-Mariscal, A.; Ureta-Muñoz, C. Rehabilitación Urbana Integrada: Un Proceso Complejo Pero Ineludible. 2017. Available online: www.cicconstruccion.com (accessed on 10 December 2022).
  21. Martín-Consuegra, F.; Alonso, C.; Frutos, B. La Regeneración Urbana Integrada y La Declaración de Toledo. Inf. La Construcción 2015, 67, nt002. [Google Scholar] [CrossRef]
  22. Agost-Felip, R.; Ruá, M.J.; Kouidmi, F. An Inclusive Model for Assessing Age-Friendly Urban Environments in Vulnerable Areas. Sustainability 2021, 13, 8352. [Google Scholar] [CrossRef]
  23. Nematchoua, M.K.; Ricciardi, P.; Buratti, C. Adaptive Approach of Thermal Comfort and Correlation between Experimental Data and Mathematical Model in Some Schools and Traditional Buildings of Madagascar under Natural Ventilation. Sustain. Cities Soc. 2018, 41, 666–678. [Google Scholar] [CrossRef]
  24. Tadeu, S.F.; Alexandre, R.F.; Tadeu, A.J.; Antunes, C.H.; Simões, N.A.; da Silva, P.P. A Comparison between Cost Optimality and Return on Investment for Energy Retrofit in Buildings-A Real Options Perspective. Sustain. Cities Soc. 2016, 21, 12–25. [Google Scholar] [CrossRef]
  25. Santangelo, A.; Tondelli, S. Occupant Behaviour and Building Renovation of the Social Housing Stock: Current and Future Challenges. Energy Build. 2017, 145, 276–283. [Google Scholar] [CrossRef]
  26. Singh, M.K.; Mahapatra, S.; Teller, J. An Analysis on Energy Efficiency Initiatives in the Building Stock of Liege, Belgium. Energy Policy 2013, 62, 729–741. [Google Scholar] [CrossRef]
  27. Monzón, M.; López-Mesa, B. Buildings Performance Indicators to Prioritise Multi-Family Housing Renovations. Sustain. Cities Soc. 2018, 38, 109–122. [Google Scholar] [CrossRef]
  28. Femenías, P.; Mjörnell, K.; Thuvander, L. Rethinking Deep Renovation: The Perspective of Rental Housing in Sweden. J. Clean. Prod. 2018, 195, 1457–1467. [Google Scholar] [CrossRef]
  29. Alberg Mosgaard, M.; Kerndrup, S.; Riisgaard, H. Stakeholder Constellations in Energy Renovation of a Danish Hotel. J. Clean. Prod. 2016, 135, 836–846. [Google Scholar] [CrossRef]
  30. Invidiata, A.; Lavagna, M.; Ghisi, E. Selecting Design Strategies Using Multi-Criteria Decision Making to Improve the Sustainability of Buildings. Build. Environ. 2018, 139, 58–68. [Google Scholar] [CrossRef]
  31. Riera Pérez, M.G.; Laprise, M.; Rey, E. Fostering Sustainable Urban Renewal at the Neighborhood Scale with a Spatial Decision Support System. Sustain. Cities Soc. 2018, 38, 440–451. [Google Scholar] [CrossRef]
  32. Kamari, A.; Corrao, R.; Kirkegaard, P.H. Sustainability Focused Decision-Making in Building Renovation. Int. J. Sustain. Built Environ. 2017, 6, 330–350. [Google Scholar] [CrossRef]
  33. Serrano-Jiménez, A.; Blandón-González, B.; Barrios-Padura, Á. Towards a Built Environment without Physical Barriers: An Accessibility Assessment Procedure and Action Protocol for Social Housing Occupied by the Elderly. Sustain. Cities Soc. 2022, 76, 103456. [Google Scholar] [CrossRef]
  34. Shooshtarian, S.; Rajagopalan, P.; Sagoo, A. A Comprehensive Review of Thermal Adaptive Strategies in Outdoor Spaces. Sustain. Cities Soc. 2018, 41, 647–665. [Google Scholar] [CrossRef]
  35. Intternational Finance Corporation IFC EDGE Certificate. Available online: https://edgebuildings.com/ (accessed on 4 December 2022).
  36. Poortinga, W.; Calve, T.; Jones, N.; Lannon, S.; Rees, T.; Rodgers, S.E.; Lyons, R.A.; Johnson, R. Neighborhood Quality and Attachment: Validation of the Revised Residential Environment Assessment Tool. Environ. Behav. 2017, 49, 255–282. [Google Scholar] [CrossRef]
  37. Gade, A.N.; Jensen, R.L.; Larsen, T.S.; Nissen, S.B.; Andresen, I. Value-Based Decision Making in the Pre-Design Stage of Sustainable Building Renovation Projects–Exploring Two Methods for Weighting Criteria. Int. J. Constr. Manag. 2021, 21, 648–663. [Google Scholar] [CrossRef]
  38. Alawneh, R.; Ghazali, F.; Ali, H.; Sadullah, A.F. A Novel Framework for Integrating United Nations Sustainable Development Goals into Sustainable Non-Residential Building Assessment and Management in Jordan. Sustain. Cities Soc. 2019, 49, 101612. [Google Scholar] [CrossRef]
  39. Heatwole-Shank, K.S.; Cutchin, M.P. Processes of Developing “Community Livability” in Older Age. J. Aging Stud. 2016, 39, 66–72. [Google Scholar] [CrossRef] [PubMed]
  40. Akkar Ercan, M. Challenges and Conflicts in Achieving Sustainable Communities in Historic Neighbourhoods of Istanbul. Habitat Int. 2011, 35, 295–306. [Google Scholar] [CrossRef]
  41. Napoli, G.; Bottero, M.; Ciulla, G.; Dell’Anna, F.; Figueira, J.R.; Greco, S. Supporting Public Decision Process in Buildings Energy Retrofitting Operations: The Application of a Multiple Criteria Decision Aiding Model to a Case Study in Southern Italy. Sustain. Cities Soc. 2020, 60, 102214. [Google Scholar] [CrossRef]
  42. Baek, C.; Park, S. Policy Measures to Overcome Barriers to Energy Renovation of Existing Buildings. Renew. Sustain. Energy Rev. 2012, 16, 3939–3947. [Google Scholar] [CrossRef]
  43. Thuvander, L.; Femenías, P.; Mjörnell, K.; Meiling, P. Unveiling the Process of Sustainable Renovation. Sustainability 2012, 4, 1188–1213. [Google Scholar] [CrossRef]
  44. García-gonzález, J.A.; Palencia, S.G.; Ondoño, I.S. Characterization of Environmental Education in Spanish Geography Textbooks. Sustainability 2021, 13, 1159. [Google Scholar] [CrossRef]
Figure 1. Visit to the headquarters and agencies of Habitat for Humanity El Salvador.
Figure 1. Visit to the headquarters and agencies of Habitat for Humanity El Salvador.
Sustainability 15 00352 g001
Figure 2. Visit to the interior of the Habitat NGO pilot homes.
Figure 2. Visit to the interior of the Habitat NGO pilot homes.
Sustainability 15 00352 g002
Figure 3. Visit to the exterior of the dwellings.
Figure 3. Visit to the exterior of the dwellings.
Sustainability 15 00352 g003
Figure 4. Visits to the works in progress of extension and improvement of the houses.
Figure 4. Visits to the works in progress of extension and improvement of the houses.
Sustainability 15 00352 g004
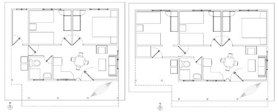
Figure 5. Improved housing prototype designs under sustainability criteria.
Figure 5. Improved housing prototype designs under sustainability criteria.
Sustainability 15 00352 g005
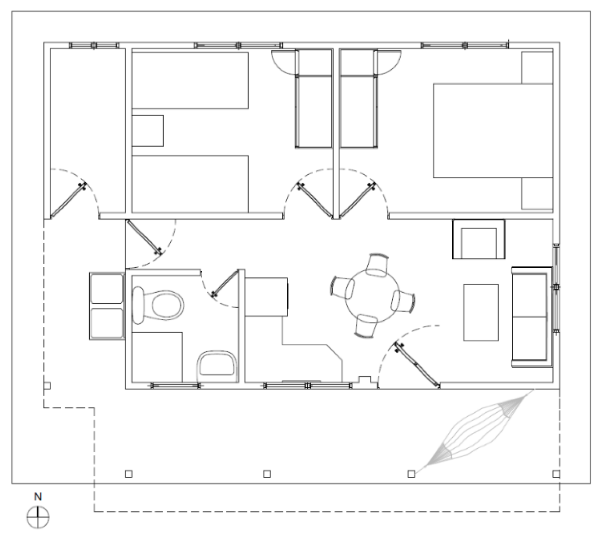
Figure 6. Environmental and sun path analysis of the designed prototype.
Figure 6. Environmental and sun path analysis of the designed prototype.
Sustainability 15 00352 g006
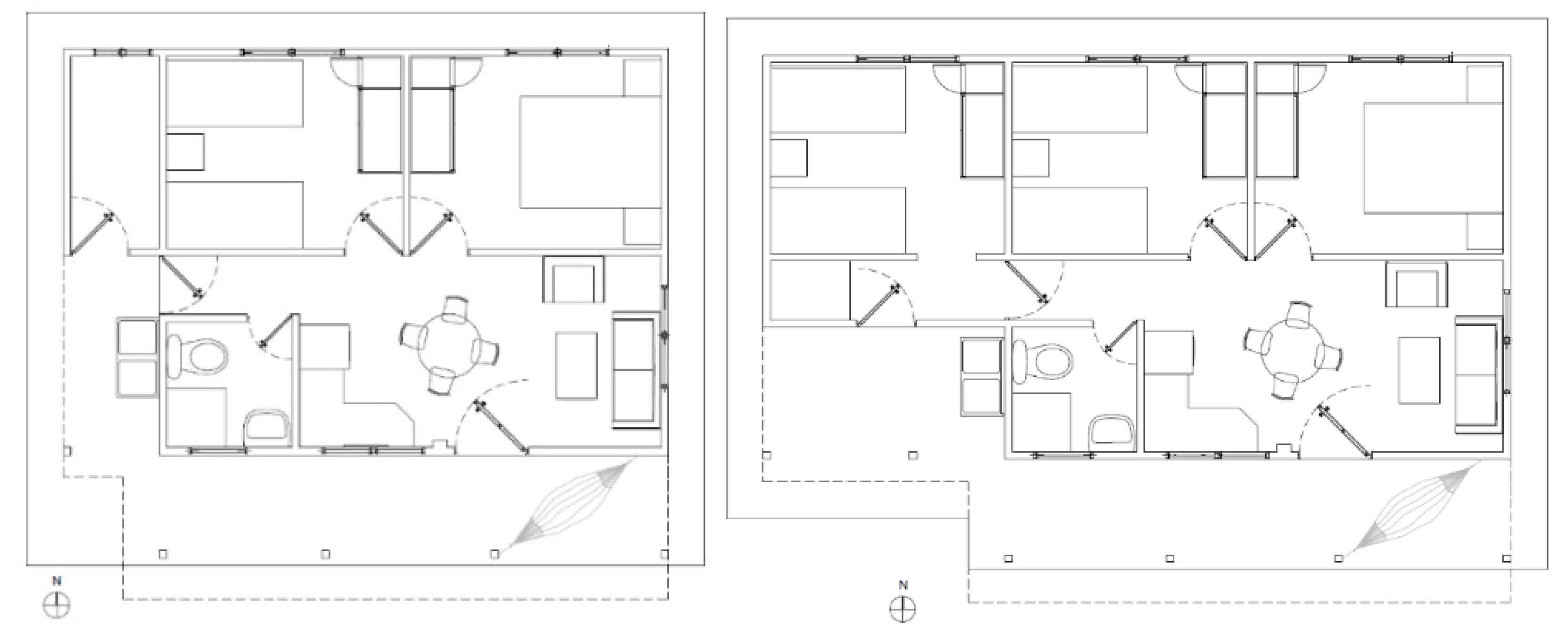
Figure 7. Construction of the prototypes in Jocoaitique and La Palma.
Figure 7. Construction of the prototypes in Jocoaitique and La Palma.
Sustainability 15 00352 g007
Figure 8. Gap, aim, and actions addressed in a research summary map.
Figure 8. Gap, aim, and actions addressed in a research summary map.
Sustainability 15 00352 g008
Figure 9. Capture of an outline from the teaching plan and the floor plan of the prototype.
Figure 9. Capture of an outline from the teaching plan and the floor plan of the prototype.
Sustainability 15 00352 g009aSustainability 15 00352 g009b
Disclaimer/Publisher’s Note: The statements, opinions and data contained in all publications are solely those of the individual author(s) and contributor(s) and not of MDPI and/or the editor(s). MDPI and/or the editor(s) disclaim responsibility for any injury to people or property resulting from any ideas, methods, instructions or products referred to in the content.

Share and Cite

MDPI and ACS Style

Jiménez-Expósito, R.A.; Serrano-Jiménez, A.; Fernández-Ans, P.; Stasi, G.; Díaz-López, C.; Barrios-Padura, Á. Promoting Sustainable and Resilient Constructive Patterns in Vulnerable Communities: Habitat for Humanity’s Sustainable Housing Prototypes in El Salvador. Sustainability 2023, 15, 352. https://doi.org/10.3390/su15010352

AMA Style

Jiménez-Expósito RA, Serrano-Jiménez A, Fernández-Ans P, Stasi G, Díaz-López C, Barrios-Padura Á. Promoting Sustainable and Resilient Constructive Patterns in Vulnerable Communities: Habitat for Humanity’s Sustainable Housing Prototypes in El Salvador. Sustainability. 2023; 15(1):352. https://doi.org/10.3390/su15010352

Chicago/Turabian Style

Jiménez-Expósito, Rosa Ana, Antonio Serrano-Jiménez, Pablo Fernández-Ans, Gianluca Stasi, Carmen Díaz-López, and Ángela Barrios-Padura. 2023. "Promoting Sustainable and Resilient Constructive Patterns in Vulnerable Communities: Habitat for Humanity’s Sustainable Housing Prototypes in El Salvador" Sustainability 15, no. 1: 352. https://doi.org/10.3390/su15010352

APA Style

Jiménez-Expósito, R. A., Serrano-Jiménez, A., Fernández-Ans, P., Stasi, G., Díaz-López, C., & Barrios-Padura, Á. (2023). Promoting Sustainable and Resilient Constructive Patterns in Vulnerable Communities: Habitat for Humanity’s Sustainable Housing Prototypes in El Salvador. Sustainability, 15(1), 352. https://doi.org/10.3390/su15010352

Note that from the first issue of 2016, this journal uses article numbers instead of page numbers. See further details here.

Article Metrics

Back to TopTop