Enhancing the Energy Efficiency of Buildings by Shading with PV Panels in Semi-Arid Climate Zone
Abstract
1. Introduction
2. Methodology
2.1. Research Area and Climate Zone
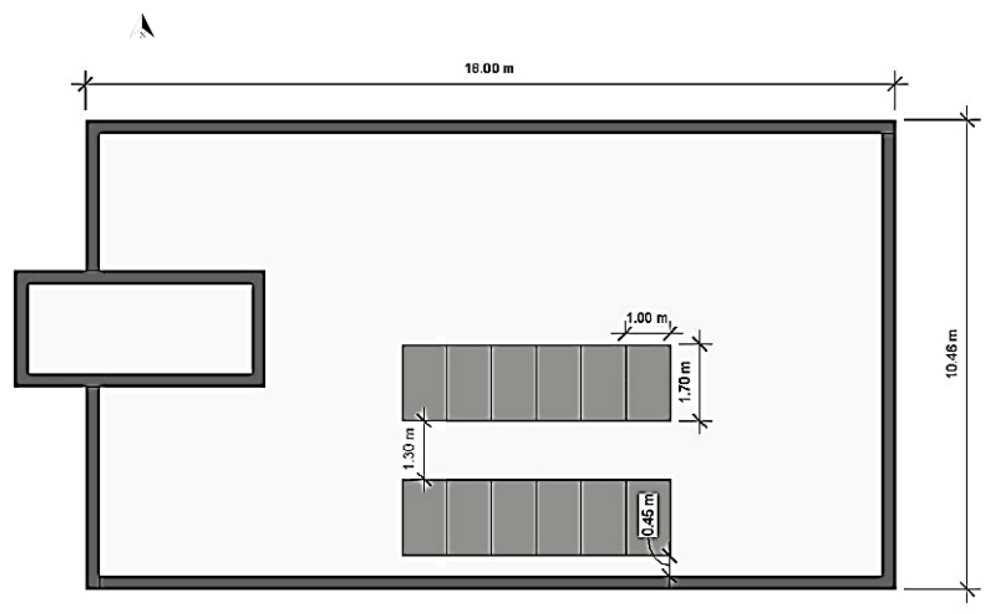
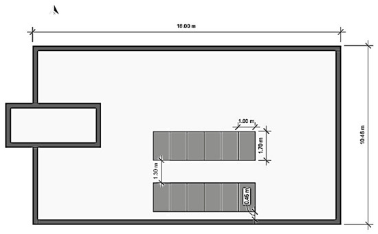
2.2. Description of the Prototypical Base Model
2.3. Modeling and Simulation Procedure
- Modelling the baseline house using Revit software.
- PV panels were constructed in the IES-VE program, as topographical shading.
- The input of weather data by choosing the weathering profile of the specified location-Mafraq city.
- Input data that includes heating and cooling setpoints at 20 °C and 26 °C, respectively; the heating and cooling systems were chosen as the split system for cooling while central heating with radiators was chosen for heating, and an occupancy schedule was determined too.
- A vast number of simulation processes were performed to generate applicable results for heating and cooling loads. Moreover, the Apache simulation tool was used in the IESVE program results.
- The data results were in kWh
- The data were managed and plotted in the Excel software as figures with heating and cooling bars in kWh through the whole year for Mafraq city.
2.4. Photovoltaics Specifications and Integration with the Building Rooftop
2.5. Solar Energy Analysis before PV Installation
2.6. Characteristics of PV Solar Panels
3. Results and Discussion
3.1. Base Building
3.1.1. Cooling Load
3.1.2. Heating Load
3.2. The Improved Procedure
3.2.1. Cooling Load
3.2.2. Heating Load
3.3. Solar Energy Analysis after PV Installation
4. Total Energy Involved in the PV System
5. Validation
6. Conclusions
- The total energy consumption of a baseline model was calculated to be 7578.5 kWh/year, with the heating load accounting for 4132.9 kWh/year and the cooling load accounting for 3445.6 kWh/year.
- The data demonstrated a 4.85% increase in heating demand through the roof in the winter, increasing the equivalent electrical demand for interior heating.
- During the cooling months, a 5.54% decrease in cooling demand was evident, reducing the energy consumption for inside cooling.
- The results underscore the purpose of this work and can be used as the basis for suggestions to energy officials, the construction industry, and consumers. A rooftop solar panel also gives a deeper understanding of the HVAC energy demand fluctuation in facilities, which is important in the current construction situation.
- The idea that lies behind the importance of this research is to study the indirect effect of installing PV panels on rooftops, as this effect contributes to the total energy consumption of the buildings regardless of their type.
7. Limitations and Future Works
Author Contributions
Funding
Institutional Review Board Statement
Informed Consent Statement
Data Availability Statement
Acknowledgments
Conflicts of Interest
Nomenclature
| Metric | Imperical |
| Meter—M | Foot—F |
| Kg·m2/s2 | Joule—J |
| Kelvin—K | Celsius—C |
| Kg·m/s2 | Newton—N |
| Kg·m2/s3 | Watt—W |
References
- Albatayneh, A.; Albadaineh, R.; Juaidi, A.; Abdallah, R.; Montoya, M.D.; Manzano-Agugliaro, F. Rooftop photovoltaic system as a shading device for uninsulated buildings. Energy Rep. 2022, 8, 4223–4232. [Google Scholar] [CrossRef]
- Ali, H.; Hashlamun, R. Envelope retrofitting strategies for public school buildings in Jordan. J. Build. Eng. 2019, 25, 100819. [Google Scholar] [CrossRef]
- International Energy Agency and Organisation for Economic Co-operation and Development. Transition to Sustainable Buildings: Strategies and Opportunities to 2050; OECD/IEA: Paris, France, 2013. [Google Scholar]
- Yang, L.; Yan, H.; Lam, J.C. Thermal comfort and building energy consumption implications—A review. Appl. Energy 2014, 115, 164–173. [Google Scholar] [CrossRef]
- Elnaklah, R.; Alnuaimi, A.; Alotaibi, B.S.; Topriska, E.; Walker, I.; Natarajan, S. Thermal comfort standards in the Middle East: Current and future challenges. Build. Environ. 2021, 200, 107899. [Google Scholar] [CrossRef]
- Al-Ghussain, L.; Abubaker, A.M.; Darwish Ahmad, A. Superposition of Renewable-Energy Supply from Multiple Sites Maximizes Demand-Matching: Towards 100% Renewable Grids in 2050. Appl. Energy 2021, 284, 116402. [Google Scholar] [CrossRef]
- International Renewable Energy Agency. Renewables Readiness Assessment: The Hashemite Kingdom of Jordan; International Renewable Energy Agency: Abu Dhabi, United Arab Emirates, 2021. [Google Scholar]
- Attia, S.; Al-Khuraissat, M. Life Cycle Costing for a Near Zero Energy Building in Jordan: Initial Study. Available online: http://www.jeaconf.org/UploadedFiles/Document/0695e0f8-6a90-47c5-b5b0-07f86dca48c8.pdf (accessed on 1 July 2022).
- 4th National Energy Efficiency Action Plan (2020–2022); The Government of the Republic of Macedonia: Skopje, Macedonia, 2021.
- Awad, J.; Abd-Rabo, L. Daylight and Energy Performance Optimization in Hot—Arid Regions: Application and adaptation guide for designers in the UAE. Procedia Manuf. 2020, 44, 237–244. [Google Scholar] [CrossRef]
- Zubair, M.; Bilal Awan, A.; Al-Ahmadi, A.; Ahmed, G.A.K. NPC based design optimization for a net zero office building in hot climates with pv panels as shading device. Energies 2018, 11, 1391. [Google Scholar] [CrossRef]
- Asfour, O.S. Integration of Photovoltaics into Gaza Strip Residential Buildings: A Comparison between Roof and Façade Installation. Int. J. Sustain. Energy 2013, 2. [Google Scholar] [CrossRef]
- Jaber, S.; Hawa, A.A. Optimal Design of PV System in Passive Residential Building in Mediterranean Climate. Jordan J. Mech. Ind. Eng. 2016, 10, 39–49. [Google Scholar]
- Kaboré, M.; Bozonnet, E.; Salagnac, P.; Abadie, M. Indexes for passive building design in urban context—Indoor and outdoor cooling potentials. Energy Build. 2018, 173, 315–325. [Google Scholar] [CrossRef]
- Brown, K.E.; Baniassadi, A.; Pham, J.V.; Sailor, D.J.; Phelan, P.E. Effects of Rooftop Photovoltaics on Building Cooling Demand and Sensible Heat Flux into the Environment for an Installation on a White Roof. ASME J. Eng. Sustain. Build. Cities 2020, 1, 021001. [Google Scholar] [CrossRef]
- Zhao, W.; Elmozughi, A.F.; Oztekin, A.; Neti, S. Heat transfer analysis of encapsulated phase change material for thermal energy storage. Int. J. Heat Mass Transf. 2013, 63, 323–335. [Google Scholar] [CrossRef]
- Köse Murathan, E.; Manioğlu, G. Evaluation of phase change materials used in building components for conservation of energy in buildings in hot dry climatic regions. Renew. Energy 2020, 162, 1919–1930. [Google Scholar] [CrossRef]
- Khdair, A.I.; Abu Rumman, G.; Basha, M. Developing building enhanced with PCM to reduce energy consumption. J. Build. Eng. 2022, 48, 103923. [Google Scholar] [CrossRef]
- Abd, M.; Al-Busoul, A.; Al-Busoul, M. Engineering & Technology (IJRRSET) A Journal Established in Early 2000 as National Journal and Upgraded to International Journal in 2013 and Is in Existence for the Last 10 Years. It Is Run by Retired Professors from NIT, International Journal on Recent Researches in Science. Available online: https://www.researchgate.net/publication/329153172 (accessed on 1 July 2022).
- Ali, H.H.; Abu Al-Rub, F.A.; Shboul, B.; al Moumani, H. Evaluation of near-net-zero-energy building strategies: A case study on residential buildings in Jordan. Int. J. Energy Econ. Policy 2020, 10, 325–336. [Google Scholar] [CrossRef]
- El-Darwish, I.; Gomaa, M. Retrofitting strategy for building envelopes to achieve energy efficiency. Alex. Eng. J. 2017, 56, 579–589. [Google Scholar] [CrossRef]
- Alshare, A.; Tashtoush, B.; Altarazi, S.; El-Khalil, H. Energy and economic analysis of a 5 MW photo-voltaic system in northern Jordan. Case Stud. Therm. Eng. 2020, 21, 100722. [Google Scholar] [CrossRef]
- Hammad, R.N.S. Photovoltaic System to Save Energy in Jordan: A Case Study on a Semi-detached House. J. Energy Power Eng. 2019, 13. [Google Scholar] [CrossRef][Green Version]
- Albatayneh, A. Optimisation of building envelope parameters in a semi-arid and warm Mediterranean climate zone. Energy Rep. 2021, 7, 2081–2093. [Google Scholar] [CrossRef]
- MoEnv The National Climate Change Adaptation Plan of Jordan—Ministry of Environment 2021. Available online: http://www.moenv.gov.Jo/Ebv4.0/Root_storage/Ar/Eb_list_page/Final_draft_nap-2021.pdf (accessed on 31 May 2022).
- Environmental and Social Management Framework Building Resilience to Cope with Climate Change in Jordan Through Improving Water Use Efficiency in the Agriculture Sector (BRCCJ); Food and Agriculture Organization of the United Nations: Rome, Italy, 2020.
- Jordan Climate (2022) Select.jo. Available online: https://select.jo/jordan-climate/ (accessed on 16 June 2022).
- Worldwide Weather Forecasts and Climate Information. Available online: https://weather-and-climate.com/ (accessed on 16 June 2022).
- Jordanian National Building Council. Thermal Insulation Code, 2nd ed.; Jordanian National Building Council: Amman, Jordan, 2009. [Google Scholar]
- Tartarini, F.; Schiavon, S.; Cheung, T.; Hoyt, T. CBE Thermal Comfort Tool: Online tool for thermal comfort calculations and visualizations. SoftwareX 2020, 12, 100563. [Google Scholar] [CrossRef]
- Alrwashdeh, S.S.; Alsaraireh, F.M.; Saraireh, M.A. Solar radiation map of Jordan governorates. Int. J. Eng. Technol. 2018, 7, 1664. [Google Scholar] [CrossRef]
- Sqour, S.; Rjoub, A.; Tarrad, M.; Sqour, S.M. Development and Trends of Urban Growth in Mafraq City, Jor-dan Islamic architecture View project Rehabiltation and landscaping of Alhusniat landfill in mafraq jordan View project Development and Trends of Urban Growth in Mafraq City, Jordan. Archit. Res. 2016, 6, 116–122. [Google Scholar] [CrossRef]
- Albatayneh, A.; Jaradat, M.; Al-Omary, M.; Zaquot, M. Evaluation of coupling pv and air conditioning vs. Solar cooling systems—Case study from Jordan. Appl. Sci. 2021, 11, 511. [Google Scholar] [CrossRef]
- Kirimtat, A.; Koyunbaba, B.K.; Chatzikonstantinou, I.; Sariyildiz, S. Review of simulation modeling for shading devices in buildings. Renew. Sustain. Energy Rev. 2016, 53, 23–49. [Google Scholar] [CrossRef]
- ASHRAE Standard 140-2017; Standard Method of Test for the Evaluation of Building Energy Analysis. American Society of Heating, Refrigerating and Air-Conditioning Engineers (ASHRAE): Atlanta, GA, USA, 2020.
- ISO E. 7730: 2005; Ergonomics of the Thermal Environment. Analytical Determination and Interpretation of Thermal Comfort Using Calculation of the PMV and PPD Indices and Local Thermal Comfort Criteria. CEN (European Committee for Standardization): Geneva, Switzerland, 2005.
- Al-Atrash, F.; Hellwig, R.T.; Wagner, A. Personal control over indoor climate in office buildings in a Mediterranean climate-Amman, Jordan. In Proceedings of the 10th Windsor Conference: Rethinking Comfort Cumberland Lodge, Windsor, UK, 12 April 2018; pp. 12–15. [Google Scholar]
- Albatayneh, A.; Juaidi, A.; Abdallah, R.; Manzano-Agugliaro, F. Influence of the advancement in the LED lighting technologies on the optimum windows-to-wall ratio of Jordanians residential buildings. Energies 2021, 14, 5446. [Google Scholar] [CrossRef]
- Albatayneh, A.; Jaradat, M.; AlKhatib, M.B.; Abdallah, R.; Juaidi, A.; Manzano-Agugliaro, F. The significance of the adaptive thermal comfort practice over the structure retrofits to sustain indoor thermal comfort. Energies 2021, 14, 2946. [Google Scholar] [CrossRef]
- Shadrina, A. Framework for the Transfer of Building Materials Data between the BIM and Thermal Simulation Software. Master’s Thesis, Vienna University of Technology, Vienna, Austria, 2015. [Google Scholar]
- Al-Doury, R.R.J.; Ibrahim, T.K.; Salem, T. Opportunity of Improving the Thermal Performance of a High-Performance University Building Based on Revit Software Development of Novel Surfaces for Heat Transfer Augmentation View Project Coal-Fired Power Plants View Project. 2020. Available online: https://www.researchgate.net/publication/344372806 (accessed on 16 June 2022).
- Wang, D.; Qi, T.; Liu, Y.; Wang, Y.; Fan, J.; Wang, Y.; Du, H. A method for evaluating both shading and power generation effects of rooftop solar PV panels for different climate zones of China. Sol. Energy 2020, 205, 432–445. [Google Scholar] [CrossRef]
- Dominguez, A.; Kleissl, J.; Luvall, J.C. Effects of solar photovoltaic panels on roof heat transfer. Sol. Energy 2011, 85, 2244–2255. [Google Scholar] [CrossRef]
- Sheikh, Y.A.; Maqbool, M.U.; Butt, A.D.; Bhatti, A.R.; Awan, A.B.; Paracha, K.N.; Khan, M.M. Impact of rooftop photovoltaic on energy demand of a building in a hot semi-arid climate. J. Renew. Sustain. Energy 2021, 13, 065101. [Google Scholar] [CrossRef]
- AbuGrain, M.Y.; Alibaba, H.Z. Optimizing existing multistory building designs towards net-zero energy. Sustainability 2017, 9, 399. [Google Scholar] [CrossRef]
- Polo López, C.S.; Lucchi, E.; Leonardi, E.; Durante, A.; Schmidt, A.; Curtis, R. Risk-benefit assessment scheme for renewable solar solutions in traditional and historic buildings. Sustainability 2021, 13, 5246. [Google Scholar] [CrossRef]
- Albatayneh, A.; Alterman, D.; Page, A.; Moghtaderi, B. Renewable energy systems to enhance buildings thermal performance and decrease construction costs. Energy Procedia 2018, 152, 312–317. [Google Scholar] [CrossRef]
- Albatayneh, A.; Alterman, D.; Page, A. Adaptation the use of CFD modelling for building thermal simulation. In Proceedings of the 2018 International Conference on Software Engineering and Information Management, Casablanca, Morocco, 4–6 January 2018; pp. 68–72. [Google Scholar]
- Albatayneh, A.; Alterman, D.; Page, A.; Moghtaderi, B. The significance of sky temperature in the assessment of the thermal performance of buildings. Appl. Sci. 2020, 10, 8057. [Google Scholar] [CrossRef]
- Albatayneh, A.; Alterman, D.; Page, A.; Moghtaderi, B. Alternative method to the replication of wind effects into the buildings thermal simulation. Buildings 2020, 10, 237. [Google Scholar] [CrossRef]
- Lucchi, E.; Schito, E. Challenges and Opportunities for the Integration of Photovoltaic Modules in Heritage Buildings Through Dynamic Building Energy Simulations. In International Conference Florence Heri-Tech: The Future of Heritage Science and Technologies; Springer: Cham, Switzerland, 2023; pp. 180–194. [Google Scholar] [CrossRef]










| The Constructed Element | Construction Layers | Thickness (m) | Thermal Transmittance (U-Value) | Insulation (R-Value) | Thermal Conductivity (K-Value) |
|---|---|---|---|---|---|
| Roof | Reinforced concrete, mortar, sand, and gravel; structural low-density concrete, roofing tiles; bitumen layers; and plastering | 0.36 | 2.04 W/m2·K | 0.49 K·m2/W | 0.73 W/K ·m |
| Floor | Reinforced concrete with gravel and a soil layer covered by mortar and ceramic flooring tiles. | 0.225 | 1.2827 W/m2·K | 0.78 K·m2/W | 0.29 W/K ·m |
| Exterior walls | stone, reinforced concrete, thermal barrier; a layer of plastering and a layer of aerated brick blocks | 0.40 | 0.28 W/m2·K | 3.57 K·m2/W | 0.12 W/K·m |
| Interior walls | masonry blocks with gypsum board plastering on both sides | 0.125 | 1.87 W/m2·K | 0.54 K·m2/W | 0.23 W/K·m |
| Glazing | Double glazing of 6 mm is used and 13 mm air (thermal barrier). | 0.025 | 2.7834 W/m2·K | 0.36 K·m2/W | 0.070 W/K·m |
| Frame | The glazing of external windows was encased in a thermally fractured frame made of aluminum. | 2.98 W/m2·K | 0.34 K·m2/W | 0.015 W/K·m |
| Software Used | Before the Installation of PV Panels | After the Installation of PV Panels | ||||||
|---|---|---|---|---|---|---|---|---|
| Heating/Cooling Loads | Heating Load before (kWh/Year) | Heating Load before (kWh/m2/Year) | Cooling Load before (kWh/Year) | Cooling Load before (kWh/m2/Year) | Heating Load after (kWh/Year) | Heating Load after (kWh/m2/Year) | Cooling Load after (kWh/Year) | Cooling Load after (kWh/m2/Year) |
| IES-VE | 4530 | 25 | 1290 | 7 | 4720 | 26 | 1130 | 6.3 |
| Design-builder | 3540 | 20 | 1420 | 7.9 | 3930 | 22 | 1350 | 7.5 |
Publisher’s Note: MDPI stays neutral with regard to jurisdictional claims in published maps and institutional affiliations. |
© 2022 by the authors. Licensee MDPI, Basel, Switzerland. This article is an open access article distributed under the terms and conditions of the Creative Commons Attribution (CC BY) license (https://creativecommons.org/licenses/by/4.0/).
Share and Cite
Albatayneh, A.; Albadaineh, R.; Juaidi, A.; Abdallah, R.; Zabalo, A.; Manzano-Agugliaro, F. Enhancing the Energy Efficiency of Buildings by Shading with PV Panels in Semi-Arid Climate Zone. Sustainability 2022, 14, 17040. https://doi.org/10.3390/su142417040
Albatayneh A, Albadaineh R, Juaidi A, Abdallah R, Zabalo A, Manzano-Agugliaro F. Enhancing the Energy Efficiency of Buildings by Shading with PV Panels in Semi-Arid Climate Zone. Sustainability. 2022; 14(24):17040. https://doi.org/10.3390/su142417040
Chicago/Turabian StyleAlbatayneh, Aiman, Renad Albadaineh, Adel Juaidi, Ramez Abdallah, Alberto Zabalo, and Francisco Manzano-Agugliaro. 2022. "Enhancing the Energy Efficiency of Buildings by Shading with PV Panels in Semi-Arid Climate Zone" Sustainability 14, no. 24: 17040. https://doi.org/10.3390/su142417040
APA StyleAlbatayneh, A., Albadaineh, R., Juaidi, A., Abdallah, R., Zabalo, A., & Manzano-Agugliaro, F. (2022). Enhancing the Energy Efficiency of Buildings by Shading with PV Panels in Semi-Arid Climate Zone. Sustainability, 14(24), 17040. https://doi.org/10.3390/su142417040

