Impact of Phase Change Materials on Cooling Demand of an Educational Facility in Cairo, Egypt
Abstract
1. Introduction
2. Materials and Methods
2.1. Weather Data for the Case Study
2.2. Building Components
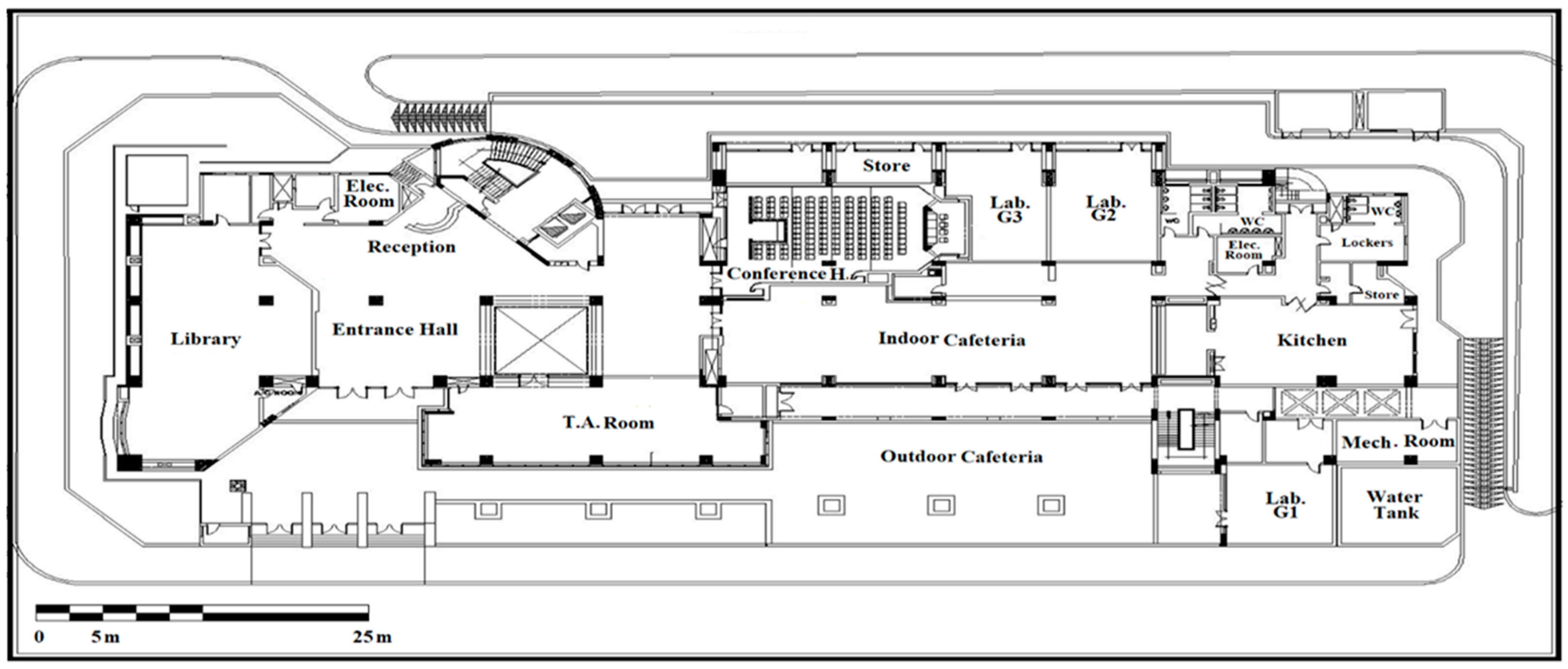
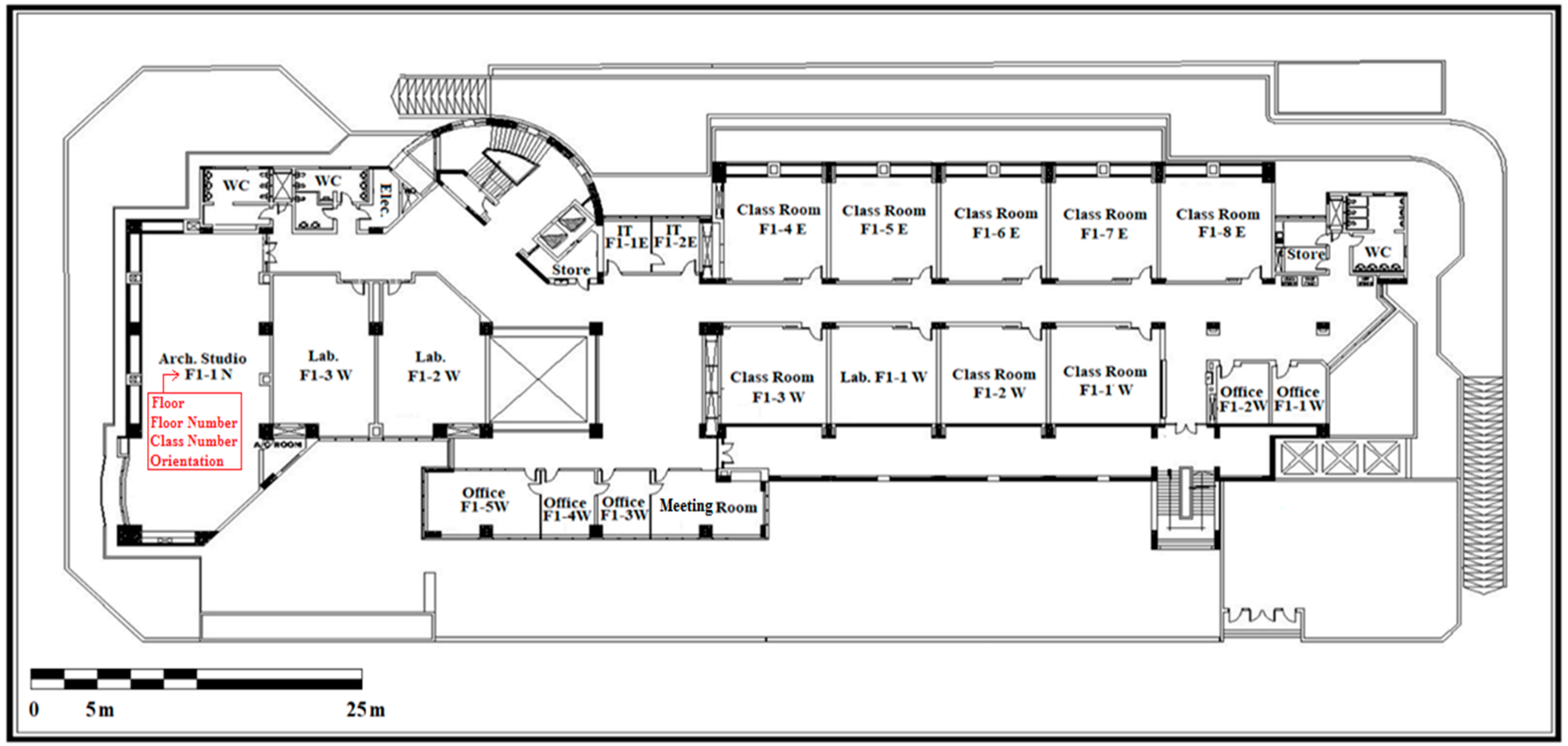
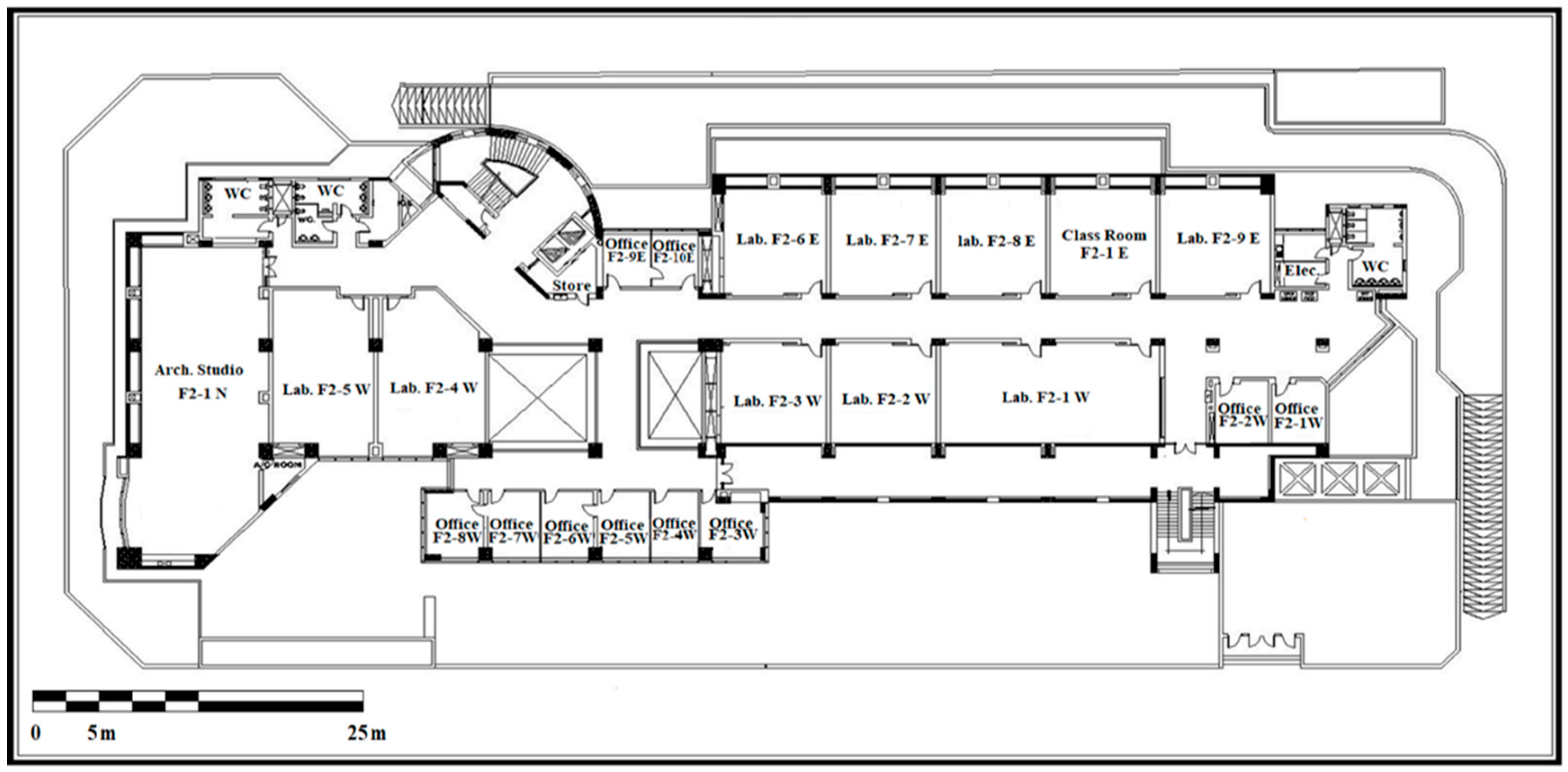
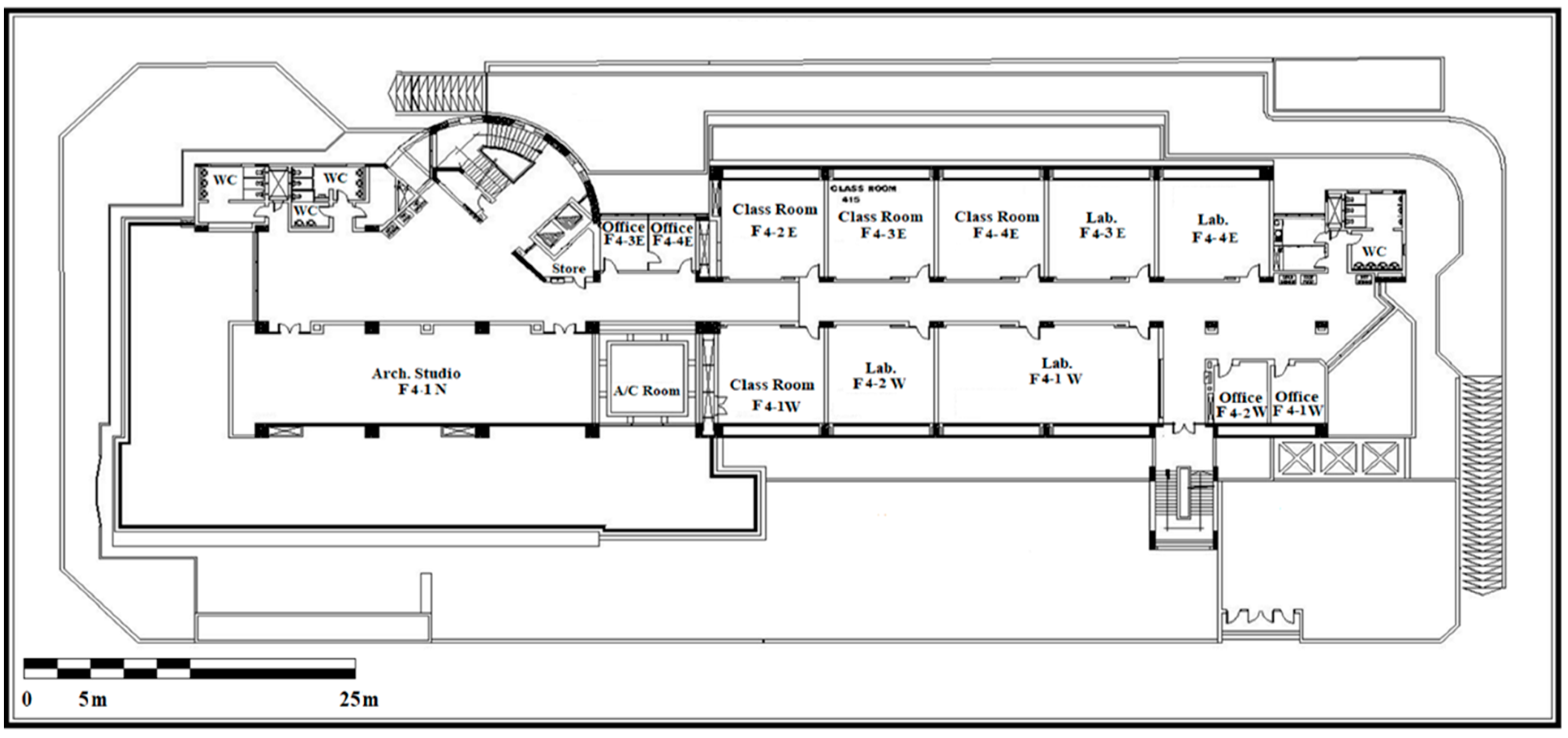
2.3. Model Data and Occupancy
2.4. Material Used
3. Results and Discussion
3.1. Model Evaluation and Validation
Model Validation
3.2. Cooling Demand Efficiency and CO2 Emissions
4. Conclusions
5. Recommendation and Future Work
Author Contributions
Funding
Institutional Review Board Statement
Informed Consent Statement
Data Availability Statement
Conflicts of Interest
Abbreviations
| PCM | Phase Change Material |
| ASHRAE | American Society of Heating, Refrigerating and Air-Conditioning Engineers |
| AASTMT | Arab Academy for Science, Technology and Maritime Transport |
| CO2 | Carbon Dioxide |
| GHGs | Greenhouse Gases |
| °C | Degree(s) Celsius |
| TMY | Typical Meteorological Year |
| DB | Design Builder |
| G | Ground |
| F | Floor |
| ECP | Egyptian Code of Practice |
| ac/h | Air Changes Per Hour |
| kWh | Kilowatt-hour |
| RMSE | Root Mean Square Error |
References
- Where does Our Electricity Come From? World Nuclear Association. Available online: https://www.world-nuclear.org/nuclear-essentials/where-does-our-electricity-come-from.aspx (accessed on 10 November 2022).
- Waqas, A.; Ud Din, Z. Phase change material (PCM) storage for free cooling of buildings—A review. Renew. Sustain. Energy Rev. 2013, 18, 607–625. [Google Scholar] [CrossRef]
- Nitu, M.A.; Gocer, O.; Wijesooriya, N.; Vijapur, D.; Candido, C. A Biophilic Design Approach for Improved Energy Performance in Retrofitting Residential Projects. Sustainability 2022, 14, 3776. [Google Scholar] [CrossRef]
- Egypt|Economic Indicators, Historic Data & Forecasts|CEIC. Available online: https://www.ceicdata.com/datapage/en/country/egypt (accessed on 10 November 2022).
- Monforti-Ferrario, F.; Oreggioni, G.; Schaaf, E.; Guizzardi, D.; Olivier, J.G.J.; Solazzo, E.; Lo Vullo, E.; Crippa, M.; Muntean, M.; Joint Research Centre (European Commission); et al. Fossil CO2 and GHG Emissions of All World Countries: 2019 Report; LU: Publications Office of the European Union: Luxembourg, 2019. [Google Scholar] [CrossRef]
- Solomon, S. Intergovernmental Panel on Climate Change, and Intergovernmental Panel on Climate Change. In Climate Change 2007: The Physical Science Basis: Contribution of Working Group I to the Fourth Assessment Report of the Intergovernmental Panel on Climate Change; Cambridge University Press: Cambridge, NY, USA, 2007. [Google Scholar]
- Al-Sallal, K.A. Comparison between polystyrene and fiberglass roof insulation in warm and cold climates. Renew. Energy 2003, 28, 603–611. [Google Scholar] [CrossRef]
- Hill, C.; Norton, A.; Dibdiakova, J. A comparison of the environmental impacts of different categories of insulation materials. Energy Build. 2018, 162, 12–20. [Google Scholar] [CrossRef]
- Makaveckas, T.; Bliūdžius, R.; Burlingis, A. Determination of the impact of environmental temperature on the thermal conductivity of polyisocyanurate (PIR) foam products. J. Build. Eng. 2021, 41, 102447. [Google Scholar] [CrossRef]
- Miskinis, K.; Dikavicius, V.; Buska, A.; Banionis, K. Influence of EPS, mineral wool and plaster layers on sound and thermal insulation of a wall: A case study. Appl. Acoust. 2018, 137, 62–68. [Google Scholar] [CrossRef]
- Prakash, D. Transient analysis and improvement of indoor thermal comfort for an air-conditioned room with thermal insulations. Ain Shams Eng. J. 2015, 6, 947–956. [Google Scholar] [CrossRef]
- Fornés, I.V.; Vaičiukynienė, D.; Nizevičienė, D.; Tamošaitis, G.; Pupeikis, D. The improvement of the thermal and acoustic insulation properties of phosphogypsum specimens by adding waste wood fibre. Constr. Build. Mater. 2022, 331, 127341. [Google Scholar] [CrossRef]
- Yilmaz, E.; Aykanat, B.; Çomak, B. Environmental life cycle assessment of rockwool filled aluminum sandwich facade panels in Turkey. J. Build. Eng. 2022, 50, 104234. [Google Scholar] [CrossRef]
- Du, K.; Calautit, J.; Wang, Z.; Wu, Y.; Liu, H. A review of the applications of phase change materials in cooling, heating and power generation in different temperature ranges. Appl. Energy 2018, 220, 242–273. [Google Scholar] [CrossRef]
- De Gracia, A.; Cabeza, L.F. Phase change materials and thermal energy storage for buildings. Energy Build. 2015, 103, 414–419. [Google Scholar] [CrossRef]
- Khan, M.; Khan, M.M.; Irfan, M.; Ahmad, N.; Haq, M.A.; Khan, I.; Mousa, M. Energy performance enhancement of residential buildings in Pakistan by integrating phase change materials in building envelopes. Energy Rep. 2022, 8, 9290–9307. [Google Scholar] [CrossRef]
- De Gracia, A. Dynamic building envelope with PCM for cooling purposes—Proof of concept. Appl. Energy 2019, 235, 1245–1253. [Google Scholar] [CrossRef]
- Tyagi, V.; Kaushik, S.; Tyagi, S.; Akiyama, T. Development of phase change materials based microencapsulated technology for buildings: A review. Renew. Sustain. Energy Rev. 2011, 15, 1373–1391. [Google Scholar] [CrossRef]
- Ručevskis, S.; Akishin, P.; Korjakins, A. Parametric analysis and design optimisation of PCM thermal energy storage system for space cooling of buildings. Energy Build. 2020, 224, 110288. [Google Scholar] [CrossRef]
- Baetens, R.; Jelle, B.P.; Gustavsen, A. Phase change materials for building applications: A state-of-the-art review. Energy Build. 2010, 42, 1361–1368. [Google Scholar] [CrossRef]
- Castell, A.; Martorell, I.; Medrano, M.; Pérez, G.; Cabeza, L.F. Experimental study of using PCM in brick constructive solutions for passive cooling. Energy Build. 2010, 42, 534–540. [Google Scholar] [CrossRef]
- Ascione, F.; Bianco, N.; De Masi, R.F.; Mastellone, M.; Vanoli, G.P. Phase Change Materials for Reducing Cooling Energy Demand and Improving Indoor Comfort: A Step-by-Step Retrofit of a Mediterranean Educational Building. Energies 2019, 12, 3661. [Google Scholar] [CrossRef]
- Xie, J.; Wang, W.; Liu, J.; Pan, S. Thermal performance analysis of PCM wallboards for building application based on numerical simulation. Sol. Energy 2018, 162, 533–540. [Google Scholar] [CrossRef]
- Saffari, M.; de Gracia, A.; Fernández, C.; Cabeza, L.F. Simulation-based optimization of PCM melting temperature to improve the energy performance in buildings. Appl. Energy 2017, 202, 420–434. [Google Scholar] [CrossRef]
- Bolteya, A.M.; Elsayad, M.A.; Belal, A.M. Thermal efficiency of PCM filled double glazing units in Egypt. Ain Shams Eng. J. 2021, 12, 1523–1534. [Google Scholar] [CrossRef]
- Oberndorfer, E.; Lundholm, J.; Bass, B.; Coffman, R.R.; Doshi, H.; Dunnett, N.; Gaffin, S.; Köhler, M.; Liu, K.K.Y.; Rowe, B. Green Roofs as Urban Ecosystems: Ecological Structures, Functions, and Services. Bioscience 2007, 57, 823–833. [Google Scholar] [CrossRef]
- Cairo Latitude Longitude. Available online: https://latitudelongitude.org/eg/cairo/ (accessed on 14 September 2022).
- Rubitherm GmbH. Available online: https://www.rubitherm.eu/en/index.php/productcategory/organische-pcm-rt (accessed on 10 September 2022).

















| Layers | Roof (cm) | Typical Slab (cm) | External Walls (cm) |
|---|---|---|---|
| Layer No. 1 | 5 concrete tiles | 5 concrete tiles | 3 plaster (light weight) |
| Layer No. 2 | 3 sand stone | 6 sand stone | 10 brick |
| Layer No. 3 | 5 extruded polystyrene | 25 concrete cast | 5 cavity |
| Layer No. 4 | 25 concrete cast | 3 gypsum plastering | 10 brick |
| Layer No. 5 | 3 gypsum plastering | - | 3 plaster (light weight) |
| U Value(w/m2 k) | 0.39 | 1.18 | 0.5 |
| Working h/Month | |
|---|---|
| Classes | 250 |
| Laboratories | 134 |
| Drawing Halls | 288 |
| Library | 192 |
| Offices | 192 |
| Cafeteria | 288 |
| T.A. Room | 208 |
| Conference Hall and Meeting Rooms | 64 |
| Property | Value |
|---|---|
| Melting/Congealing area | 27–29 °C |
| Latent heat capacity ± 7.5% | 250 kJ kg−1 |
| Specific heat capacity | 2 kJ kg−1 K−1 |
| Solid phase density | 880 kg m−3 |
| Liquid phase density | 770 kg m−3 |
| Thermal conductivity | 0.2 W m−1 K−1 |
| Volume expansion % | 12.5 |
| Flash point | 165 °C |
| Kinematic viscosity at 50 °C | 25.71 × 10−6 m s−1 |
Publisher’s Note: MDPI stays neutral with regard to jurisdictional claims in published maps and institutional affiliations. |
© 2022 by the authors. Licensee MDPI, Basel, Switzerland. This article is an open access article distributed under the terms and conditions of the Creative Commons Attribution (CC BY) license (https://creativecommons.org/licenses/by/4.0/).
Share and Cite
Bolteya, A.M.; Elsayad, M.A.; El Monayeri, O.D.; Belal, A.M. Impact of Phase Change Materials on Cooling Demand of an Educational Facility in Cairo, Egypt. Sustainability 2022, 14, 15956. https://doi.org/10.3390/su142315956
Bolteya AM, Elsayad MA, El Monayeri OD, Belal AM. Impact of Phase Change Materials on Cooling Demand of an Educational Facility in Cairo, Egypt. Sustainability. 2022; 14(23):15956. https://doi.org/10.3390/su142315956
Chicago/Turabian StyleBolteya, Ahmed M., Mohamed A. Elsayad, Ola D. El Monayeri, and Adel M. Belal. 2022. "Impact of Phase Change Materials on Cooling Demand of an Educational Facility in Cairo, Egypt" Sustainability 14, no. 23: 15956. https://doi.org/10.3390/su142315956
APA StyleBolteya, A. M., Elsayad, M. A., El Monayeri, O. D., & Belal, A. M. (2022). Impact of Phase Change Materials on Cooling Demand of an Educational Facility in Cairo, Egypt. Sustainability, 14(23), 15956. https://doi.org/10.3390/su142315956

