Experimental Research on Seismic Behavior of Haunched Concrete Beam–Column Joint Based on the Bolt Connection
Abstract
1. Introduction
2. Materials and Methods
2.1. Specimen Design
2.2. Test Loading Device and Loading System
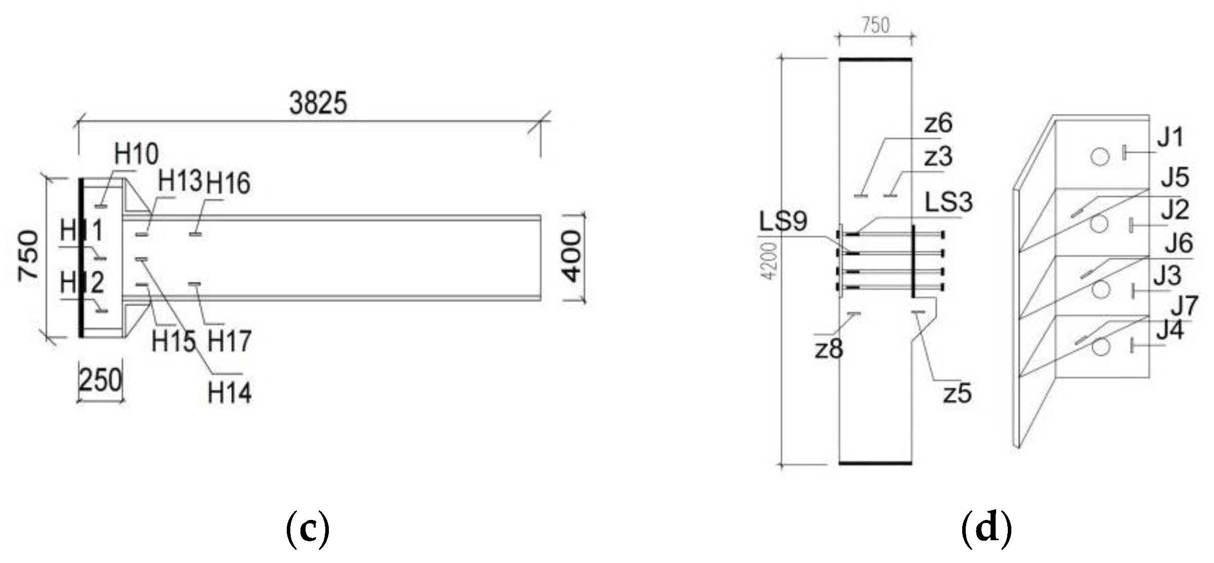
2.3. Arrangement and Selection of Test Points
3. Results and Discussion
3.1. Experimental Phenomenon
3.1.1. Specimen S1
3.1.2. Specimen S2
3.2. Failure Characteristics and Morphologies of Specimens
- Failure characteristics and morphology of Specimen S1
- Under the displacement effect, small-diameter initial cracks first show up at the bottom of prefabricated beams.
- The specimens eventually fail at the junctions due to the bending of the bolts as a result of the minor annular cracks that develop with increased loading at the stress concentration area of the T-shaped end area.
- No obvious failure appears to occur at the T-shaped end area during the loading process, which suggests that the bolts at the junction have low strength and cause a decline in the specimen’s overall stress performance.
- Failure characteristics and morphologies of Specimen S2
- Under the displacement effect, the upper beam surface—rather than the T-shaped end area of the joint—seems to be the location where the first cracks appear. The cracks lengthen and widen as the load increases, and more cracks also form and spread from the beam end to the beam tail. Concrete peels off in the grouting layer, the steel-made hunched plate and prefabricated beam interface develops cracks, and the specimen ultimately fails at the joint as a result of the bending of the bolts.
- From the crack initiation, propagation trend and final failure morphology of the prefabricated beam, it can be inferred that the failure mode of the prefabricated beam is ductile failure.
- In the whole test, no apparent cracks appear on the column or corbel, and the concrete at the T-shaped end area is not crushed, indicating that the introduction of a steel-made haunched plate greatly enhances the compressive capacity of joints. Specimen failure: there is clear bending deformation at the joint bolts, and there is apparent relative rotation between the beam and column, indicating that both bear the moment effect, which exhibits semi-rigid characteristics. These findings demonstrate the strong bearing capacity of this novel type of joint.
3.3. Hysteretic Curve Characteristics of Specimen
3.4. Skeleton Curve Characteristics of Specimens
3.5. Stiffness Degradation Curves of Specimen
3.6. Strain Analysis
3.7. Energy Consumption Capacity
4. Results and Recommendations
- Based on the observation of the failure mechanisms of two specimen groups, the specimen S1 with low strength bolt exhibits only bending deformation of the bolt and no other joint damage, while all of the specimens exhibit minor cracks on the concrete surface. While in specimen S2 with an ordinary strength bolt, the cracks are concentrated at the T-shaped end and middle of the beam, and the joint damage only consists of the deformation of the bolt, tension cracking of the concrete, and slight compressive peeling of the concrete; the cracks are more widely spaced throughout the specimen. In the subsequent experimental study, enlarging the T-shaped beam end can improve the joint property.
- This novel type of bolted precast beam−column specimen exhibits excellent rotational properties, large deformation, good overall ductility, and is well suited to resist some load-induced deformation. The bolts bent and deformed as a result of the low circumferential reciprocating load, and the pre-cast beam developed tiny cracks with a maximum crack width of only 0.22 mm. The longitudinal bars of the precast beam did not, however, experience any plastic deformation, and neither did the precast column and corbel. As a result, after an earthquake, the joints can be quickly restored to function by switching out the connecting bolts.
- Specimen S2’s maximum bearing capacity of 165 k during the loading process and its subsequent decrease to 59.2% when it reached the ultimate displacement show that the new assembled beam-column joint has a high bearing capacity and a strong plastic deformation capacity. It demonstrates the high bearing capacity and strong plastic deformation capacity of the new type of assembled beam column joint. The hysteresis loop curve displays an inverse S-shape under the low circumferential reciprocal load, indicating that the energy dissipation capacity is low. Researchers are urged to incorporate damping energy dissipation devices to increase the joint’s capacity for energy dissipation, control the node’s overall deformation, and effectively protect the node from earthquake-related damage.
- Only the test phenomena and specimen conclusions were described in this work. To further analyze the seismic mechanical properties of the suggested connection type of joint, finite element simulation should be compared in various working conditions and from various angles.
Author Contributions
Funding
Institutional Review Board Statement
Informed Consent Statement
Data Availability Statement
Conflicts of Interest
References
- Divyah, N.; Prakash, R.; Srividhya, S.; Sivakumar, A. Parametric study on lightweight concrete-encased short columns under axial compression-Comparison of design codes. Struct. Eng. Mech. 2022, 83, 387–400. [Google Scholar] [CrossRef]
- Prakash, R.; Thenmozhi, R.; Raman, S.N.; Subramanian, C. Characterization of eco-friendly steel fiber-reinforced concrete containing waste coconut shell as coarse aggregates and fly ash as partial cement replacement. Struct. Concr. 2019, 21, 437–447. [Google Scholar] [CrossRef]
- Prakash, R.; Thenmozhi, R.; Raman, S.N. Mechanical characterisation and flexural performance of eco-friendly concrete produced with fly ash as cement replacement and coconut shell coarse aggregate. Int. J. Environ. Sustain. Dev. 2019, 18, 131–148. [Google Scholar] [CrossRef]
- Prakash, R.; Thenmozhi, R.; Raman, S.N.; Subramanian, C. Fibre reinforced concrete containing waste coconut shell aggregate, fly ash and polypropylene fibre. Rev. Fac. Ing. Univ. Antioq. 2020, 94, 33–42. [Google Scholar] [CrossRef]
- Iverson, J.K.; Hawkins, N.M. Performance of Precast Concrete Building Structures During Northridge Earthquake. PCI J. 1994, 39, 38–55. [Google Scholar] [CrossRef]
- Priestley, M.J.N.; Macrae, G.A. Seismic tests of precast beam-to-column joint subassemblages with unbounded tendons. PCI J. 1996, 41, 64–81. [Google Scholar] [CrossRef]
- Al-Masni, M.A. Final Report “Earthquake Building Risk Assessment in Sana’a City, Yemen”; FY2012A; Asian Disaster Reduction Center, 2012; Available online: https://www.adrc.asia/aboutus/vrdata/finalreport/2012A_YEM_fr.pdf (accessed on 12 April 2022).
- Miranda, E.; Mosqueda, G.; Retamales, R.; Pekcan, G. Performance of Nonstructural Components during the 27 February 2010 Chile Earthquake. Earthq. Spectra 2012, 28, 453–471. [Google Scholar] [CrossRef]
- Torra-Bilal, I.; Mahamid, M.; Baran, E. Cyclic behaviour of precast beam-to-column connections: An experimental and numerical investigation. Structures 2022, 35, 939–957. [Google Scholar] [CrossRef]
- Naserabad, A.Z.; Ghasemi, M.R.; Shabakhty, N.; Ghohani Arab, H. Design of a Novel Prefabricated Bolted I-Beam to Box-Column Connection Using Numerical Analysis Under Cyclic Load. Int. J. Steel Struct. 2019, 19, 1431–1445. [Google Scholar] [CrossRef]
- Lee, D.J.; Lee, J.D.; Oh, T.S.; Kang, T.H.K. Seismic Experiment of Precast Concrete Exterior Beam-Column Joint Using Bolt Type Connection and Prestressing Method. J. Korea Concr. Inst. 2014, 26, 125–133. [Google Scholar] [CrossRef][Green Version]
- Oh, S.H.; Kim, Y.J.; Hong, S. Seismicperformance of steel structures with slit dampers. Eng. Struct. 2009, 31, 1997–2008. [Google Scholar] [CrossRef]
- Ding, K.W.; Liu, J.H.; Ma, W.; Liu, Y.L. Experimental study on seismic performance of new prefabricated semi-rigid joint. China Civ. Eng. J. 2021, 54, 1–7. [Google Scholar]
- Ertas, O.; Ozden, S.; Ozturan, T. Ductile connections in precast concrete moment resisting frames. PCI J. 2006, 51, 66–76. [Google Scholar] [CrossRef]
- Wang, P.; Wang, Z.; Pan, J.; Song, L. Experimental investigation on behavior of stiffened top and seat angle beam-to-column connections in steel frame. J. Build. Struct. 2017, 38, 21–28. (In Chinese) [Google Scholar] [CrossRef]
- Wang, H.S.; Marino, E.M.; Pan, P.; Liu, H.; Nie, X. Experimental study of a novel precast prestressed reinforced concrete beam-to-column joint. Eng. Struct. 2018, 156, 68–81. [Google Scholar] [CrossRef]
- Vidjeapriya, R.; Jaya, K.P. Experimental study on two simple mechanical precastbeam-column connections under reverse cyclic loading. J. Perform. Constr. Facil. 2013, 27, 402–414. [Google Scholar] [CrossRef]
- Lacerda, M.M.S.; da Silva, T.J.; Alva, G.M.S.; de Lima, M.C.V. Influence of the vertical grouting in the interface between corbel and beam in beam-to-column connections of precast concrete structures—An experimental analysis. Eng. Struct. 2018, 172, 201–213. [Google Scholar] [CrossRef]
- Vasconez, R.M.; Naaman, A.E.; Wight, J.K. Behavior of HPFRC Connections for Precast Concrete Frames under Reversed Cyclic Loading. PCI J. 1998, 43, 58–71. [Google Scholar] [CrossRef]
- Ngo, T.T.; Pham, T.M.; Hao, H. Ductile and dry exterior joints using CFRP bolts formoment-resisting frames. Structures 2020, 28, 668–684. [Google Scholar] [CrossRef]
- Kurama, Y.C.; Sritharan, S.; Fleischman, R.B.; Restrepo, J.I.; Henry, R.S.; Cleland, N.M.; Ghosh, S.K.; Bonelli, P. Seismic-resistant precast concrete structures: State of the art. Eng. Struct. 2018, 144, 03118001. [Google Scholar] [CrossRef]
- Ye, M.; Jiang, J.; Chen, H.M.; Zhou, H.; Song, D. Seismic behavior of an innovative hybrid beam-column connection for precast concrete structures. Eng. Struct. 2021, 227, 111436. [Google Scholar] [CrossRef]
- Vecchio, C.D.; Ludovico, M.D.; Balsamo, A.; Prota, A. Seismic retrofifit of real beam-column joints using fifiber-reinforced cement composites. Eng. Struct. 2018, 144, 04018026. [Google Scholar] [CrossRef]
- Parastesh, H.; Hajirasouliha, I.; Ramezani, R. A New ductile moment-resisting connection for precast concrete frames in seismic regions: An experimental investigation. Eng. Struct. 2014, 70, 144–157. [Google Scholar] [CrossRef]
- Yuksel, E.; Karadogan, H.F.; Bal, İ.E.; Ilki, A.; Bal, A.; Inci, P. Seismic behavior of two exterior beam–column connections made of normal-strength concrete developed for precast construction. Eng. Struct. 2015, 99, 157–172. [Google Scholar] [CrossRef]
- Lacerda, M.M.S. Analysis of the Inflfluence of Grouting and Reinforcing Bars Position on Beam-column Connection in Precast Concrete Structures. Master′s Dissertation, Faculty of Civil Engineering, Federal University of Uberlândia, Uberlândia, Brazil, 2018. [Google Scholar]
- Yang, D.; Jia, B.; Guo, R. Research on seismic behavior of GFRP-reinforced concrete interior beam-column joints. J. Build. Struct. 2021, 43, 225–236. [Google Scholar] [CrossRef]
- Zhang, J.; Li, C.; Rong, X.; Zhang, B. Experimental study on the mechanical performance of prefabricated concrete beam-column joints with different connection forms. J. Civ. Environ. Eng. 2021. [Google Scholar] [CrossRef]
- Li, Z.; Huang, Y.; Lu, W.; He, H. Seismic behavior of semi-rigid joints of precast concrete beam and column. J. Civ. Environ. Eng. 2021. [Google Scholar] [CrossRef]
- Li, H.; Du, Y.; Li, F. Experimental study and influential parameters analysis on seismic behavior of prefabricated concrete beam-column joints. J. Build. Struct. 2021, 42. [Google Scholar] [CrossRef]
- Li, Y.; Huang, B. Evaluation on Seismic Performance of Beam-Column Joints of Fabricated Steel Structure with Replaceable Energy-Dissipating Elements. Sustainability 2022, 14, 3350. [Google Scholar] [CrossRef]
- Yang, H.; Yang, B.; Wang, H.; Zhang, M.; Ni, S. Research on Dynamic Characteristics of Joint of RC Frame Structure with NES. Sustainability 2022, 14, 11229. [Google Scholar] [CrossRef]
- Wang, H.; Wu, Y.; Wei, M.; Wang, L.; Cheng, B. Hysteretic behavior of geopolymer concrete with active confinement subjected to monotonic and cyclic axial compression: An experimental study. Materials 2020, 13, 3997. [Google Scholar] [CrossRef] [PubMed]
- Wang, H.; Wu, Y.; Qin, X.; Li, L.; Chen, H.; Cheng, B. Behavior of cement concrete confined by fabric-reinforced geopolymer mortar under monotonic and cyclic compression. Structures 2021, 34, 4731–4744. [Google Scholar] [CrossRef]
- Abdelwahed, B.S.; Kaloop, M.R.; El-Demerdash, W.E. Nonlinear numerical assessment of exterior Beam-Column connections with Low-Strength concrete. Buildings 2021, 11, 562. [Google Scholar] [CrossRef]
- Cheng, B.; Huang, J.; Lu, K.; Li, J.; Gao, G.; Wang, T.; Chen, H. BIM-enabled life cycle assessment of concrete formwork waste reduction through prefabrication. Sustain. Energy Technol. Assess. 2022, 53, 102449. [Google Scholar] [CrossRef]
- GB 50010-2010; Code for Design of Concrete Structures. China Construction Industry Press: Beijing, China, 2015.
- JGJ/T 101-2015; Specificating of Testing Methods for Earthquake Resistant Building. China Construction Industry Press: Beijing, China, 2015.
- GB/T50152-2012; Standard for Test Method of Concrete Structures. China Construction Industry Press: Beijing, China, 2012.
- GB/T228.1-2010; Metallic Materials-Tensile Testing-Part 1: Method of Test at Room Temperature. China Standards Press: Beijing, China, 2010.















| Type | Diameter/mm | Yield Strength/MPa | Limit Strength/MPa | Elongation |
|---|---|---|---|---|
| Low strength bolt (Q235) | 24 | 297.1 | 504.7 | 20.9% |
| Ordinary bolt (Q345) | 24 | 436.2 | 764.5 | 36.6% |
| HRB400 | 12 | 465.2 | 577.3 | 21.6% |
| HRB400 | 14 | 447.4 | 567.6 | 23.2% |
| HRB400 | 25 | 456.6 | 605.7 | 20.2% |
| Concrete Grade | 3d (N/mm2) | 7d (N/mm2) | 28d (N/mm2) |
|---|---|---|---|
| C40 | 26.13 | 38.13 | 48.15 |
| C80 | 28.20 | 78.22 | 87.12 |
Publisher’s Note: MDPI stays neutral with regard to jurisdictional claims in published maps and institutional affiliations. |
© 2022 by the authors. Licensee MDPI, Basel, Switzerland. This article is an open access article distributed under the terms and conditions of the Creative Commons Attribution (CC BY) license (https://creativecommons.org/licenses/by/4.0/).
Share and Cite
Zhang, Y.; Ma, W.; Li, X.; Li, K. Experimental Research on Seismic Behavior of Haunched Concrete Beam–Column Joint Based on the Bolt Connection. Sustainability 2022, 14, 15644. https://doi.org/10.3390/su142315644
Zhang Y, Ma W, Li X, Li K. Experimental Research on Seismic Behavior of Haunched Concrete Beam–Column Joint Based on the Bolt Connection. Sustainability. 2022; 14(23):15644. https://doi.org/10.3390/su142315644
Chicago/Turabian StyleZhang, Yang, Wei Ma, Xin Li, and Kai Li. 2022. "Experimental Research on Seismic Behavior of Haunched Concrete Beam–Column Joint Based on the Bolt Connection" Sustainability 14, no. 23: 15644. https://doi.org/10.3390/su142315644
APA StyleZhang, Y., Ma, W., Li, X., & Li, K. (2022). Experimental Research on Seismic Behavior of Haunched Concrete Beam–Column Joint Based on the Bolt Connection. Sustainability, 14(23), 15644. https://doi.org/10.3390/su142315644

