Bird Flight Resistance Analysis and Planning Strategies in Urban Regeneration Areas: A Case Study of a Certain Area in Shenzhen, China
Abstract
:1. Introduction
2. Methods
2.1. Overview
2.2. Methodology
2.3. Bird Flight Resistance Analysis Based on the Minimum Resistance Model
2.3.1. Bird Species Selection
2.3.2. Identification of the “Source”
2.3.3. Determination of Flight Resistance Factors and Coefficients of Birds
2.3.4. Determination of the Resistance Surface
3. Results
3.1. The “Source” of Birds
3.2. Flight Resistance of Birds
3.2.1. Single Factor Resistance
3.2.2. Comprehensive Resistance
4. Discussion
4.1. Spatial Planning Strategy for Urban Regeneration
4.1.1. Birds’ Conservation Pattern Based on Flight Resistance
4.1.2. Planning Strategy of Green Space System
4.1.3. Building Planning Strategy
4.2. Verification
4.3. Replication
5. Conclusions
- (1)
- Through the study, the bird flight resistance analysis based on the minimum resistance model is selected as the main method for biodiversity conservation in the research region. By screening indicator species, identifying “sources” and determining bird flight resistance factors and coefficients, we finally obtain the flight resistance surface of birds in the research region and potential corridors from a three-dimensional perspective so as to establish the conservation pattern of birds in the research region.
- (2)
- The correlation between bird flight resistance, bird species richness and spatial elements of urban regeneration is found out. From the perspective of community structure of green space vegetation, sparse woodland and shrubland in the research region has low resistance and high richness, which are the most ideal green space forms for birds; from the perspective of architecture, bird flight resistance shows a negative correlation with building height and a positive correlation with building density.
- (3)
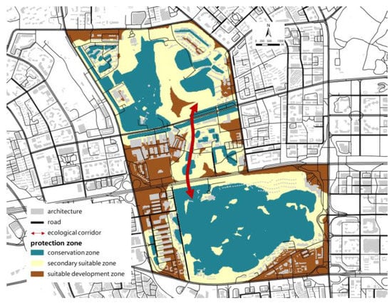
- The quantitative design strategies for the spatial elements of urban regeneration from the perspective of birds in the research region is determined. The main strategies are: the north of the research region is dominated by low-density buildings, the reservoir is ecologically transformed and wetlands are added; in the central part, a green ecological corridor with a width of 12–200 m is constructed by taking the low-resistance path as the carrier, and the building height and the distance to the ecological corridor are in a gradient increasing relationship; in the south, the current trees and water ponds are retained, and artificial lawn is transformed to increase shrubland or sparse woodland.
- (4)
- Based on the biodiversity index, the spatial element planning strategy is determined to lead to an increase in bird richness and species diversity in the research region, and the effectiveness of the method was verified.
Author Contributions
Funding
Institutional Review Board Statement
Informed Consent Statement
Data Availability Statement
Conflicts of Interest
References
- Roberts, P.; Sykes, H. Urban Regeneration: A Handbook; SAGE Publications: London, UK, 2000. [Google Scholar]
- Zhang, P.Y. Urban regeneration: Theory and practice in China’s new urbanization. City Plan. Rev. 2004, 28, 25–30. [Google Scholar]
- Miller, J.M. New Life for Cities Around the World: International Handbook on Urban Renewal; Books International: New York, NY, USA, 1959. [Google Scholar]
- Carmon, N. Neighborhood regeneration: The state of the art. J. Plan. Educ. Res. 1997, 17, 131–144. [Google Scholar] [CrossRef]
- Fang, K. The development course of Western urban renewal and its enlightenment. Urban Planning Forum. 1998, 1, 59–61. [Google Scholar]
- Dong, M.L.; Chen, T.; Wang, L.Y. Development course and policy evolution of urban renewal in western cities. Human Geog. 2009, 24, 42–46. [Google Scholar]
- Boussaa, D. Urban regeneration and the search for identity in historic cities. Sustainability 2017, 10, 48. [Google Scholar] [CrossRef]
- Western, J.S.; Weldon, P.D.; Haung, T.T. Poverty, urban renewal, and public housing in Singapore. Environ. Plan. A 1973, 5, 589–600. [Google Scholar] [CrossRef]
- Yan, R.G.; Zhou, S.H.; Yan, X.P. Research on urban regeneration. Prog. Geogr. 2011, 30, 947–955. [Google Scholar]
- Roberts, P. The Evolution, definition, and purpose of urban regeneration. Urban Regen. A Handb. 2000, 1, 9–36. [Google Scholar]
- Zhong, Y. Study on the problems and strategies of ecological environment construction in urban regeneration. Mod. Urban Res. 2013, 12, 84–88. [Google Scholar]
- Zhai, B.Q.; Wu, M.Q. The concept of urban regeneration and the reality of Chinese cities. Urban Plan. Forum 2009, 2, 75–82. [Google Scholar]
- Yang, J.Q. The status, characteristics, and tendency of urban renewal in China. City Plan. Rev. 2000, 4, 53–55. [Google Scholar]
- Chan, K.S.; Siu, Y.F.P. Urban governance, and social sustainability: Effects of urban renewal policies in Hong Kong and Macao. Asian Educ. Dev. Stud. 2015, 4, 330–342. [Google Scholar] [CrossRef]
- Berling, W.S.; Wu, J. Modeling urban landscape dynamics: A case study in Phoenix, USA. Urban Ecosyst. 2004, 7, 215–240. [Google Scholar] [CrossRef]
- Fang, C.L.; Zhou, C.H.; Gu, C.L.; Chen, L.D.; Li, S.C. Theoretical analysis of interactive coupled effects between urbanization and eco-environment in mega-urban agglomerations. Acta Geogr. Sin. 2016, 71, 531–550. [Google Scholar] [CrossRef]
- Yu, K.J. Security patterns and surface model in landscape ecological planning. Landsc. Urban Plan. 1996, 36, 1–17. [Google Scholar] [CrossRef]
- Jukka, J.; Marja-Liisa, K. Spatial similarity of urban bird communities: A multiscale approach. J. Biogeogr. 2003, 30, 1183–1193. [Google Scholar]
- Blondel, J.; Vuilleumer, F.; Marcus, L.F.; Terouanne, E. Is there ecomorphological convergency among Mediterranean bird communities in Chile, California and France? Evol. Biol. 1984, 18, 141–213. [Google Scholar]
- Grimm, N.B.; Faeth, S.H.; Golubiewski, N.E.; Redman, C.L.; Wu, J.G.; Bai, X.M.; Briggs, J.M. Global change and the ecology of cities. Science 2008, 319, 756–760. [Google Scholar] [CrossRef]
- Borgström, S.; Cousins, S.A.O.; Lindborg, R. Outside the boundary-Land use changes in the surroundings of urban nature reserves. Appl. Geogr. 2012, 32, 350–359. [Google Scholar] [CrossRef]
- Irvine, K.N.; Fuller, R.A.; Devine-Wright, P.; Tratalos, J.; Payne, S.R.; Warren, P.H.; Lomas, K.J.; Gaston, K.J.; Jenks, M.; Jones, C. Ecological and Psychological Value of UrbanGreen Space; Dimensions of the Sustainable City; Springer: Cham, The Netherlands, 2010; pp. 215–237. [Google Scholar]
- Huang, Y. The Methodology of Bird Habitats’ Making and Planning at Beijing Urban Green Spaces. Ph.D. Thesis, Tsinghua University, Beijing, China, 2015. [Google Scholar]
- Zhong, L.; Yang, R.; Xue, F. State of art on urban biodiversity conservation research. Chin. Landsc. Archit. 2021, 37, 25–30. [Google Scholar]
- Zaplata, M.K.; Dullau, S. Applying ecological succession theory to birds in solar parks: An approach to address protection and planning. Land 2022, 11, 718. [Google Scholar] [CrossRef]
- Melles, S.; Glenn, S.; Martin, K. Urban bird diversity and landscape complexity: Species-environment associations along a multiscale habitat gradient. Conserv. Ecol. 2003, 7, 5–8. [Google Scholar] [CrossRef]
- Bried, J.T.; Langwig, K.E.; Dewan, A.A.; Gifford, N.A. Habitat associations and survey effort for shrubland birds in an urban pine barrens preserve. Landsc. Urban Plan. 2011, 99, 218–225. [Google Scholar] [CrossRef]
- Savard, J.; Falls, B. Survey techniques and habitat relationships of breeding birds in residential areas of Toronto, Canada. In Avian Ecology and Conservation in an Urbanizing World; Springer: Boston, MA, USA, 2001; pp. 543–568. [Google Scholar]
- Shen, Q.J. The ecological thought of urban planning. Urban Plan. Forum 2000, 6, 7–12. [Google Scholar]
- Haumann, S. The transatlantic collapse of urban renewal: Postwar urbanism from New York to Berlin. Am. Hist. Rev. 2012, 117, 496–497. [Google Scholar] [CrossRef]
- Threlfall, C.G.; Williams, N.S.G.; Hahs, A.K.; Livesley, S.J. Approaches to urban vegetation management and the impacts on urban bird and bat assemblages. Landsc. Urban Plan. 2016, 153, 28–39. [Google Scholar] [CrossRef]
- Damschen, E.I.; Haddad, N.M.; Orrock, J.L.; Tewksbury, J.J.; Levey, D.J. Corridors increase plant species richness at large scales. Science 2006, 313, 1284–1286. [Google Scholar] [CrossRef]
- Liu, H.L. Biological conservation planning in urban areas from a process. Chin. J. Ecol. 2010, 29, 8–15. [Google Scholar]
- Dabelko, G.D.; Dabelko, D.D. Environmental security: Issues of conflict and redefinition. Environ. Change Secur. Proj. Rep. 1995, 1, 3–13. [Google Scholar]
- Peng, J.; Zhao, H.J.; Liu, Y.X.; Wu, J.S. Research progress and prospect of regional ecological security pattern construction. Geogr. Res. 2017, 36, 407–419. [Google Scholar]
- Yu, K.J.; Wang, S.S.; Li, D.H.; Li, C.B. The function of ecological security patterns as an urban growth framework in Beijing. Acta Ecol. Sin. 2009, 29, 1189–1204. [Google Scholar]
- Hansen, A.J.; Defries, R. Ecological mechanisms linking protected areas to surrounding lands. Ecol. Appl. 2007, 17, 974–988. [Google Scholar] [CrossRef] [PubMed]
- Li, J.S.; Gao, J.X.; Zhang, X.L.; Zheng, X.M. A review of studies on the impact of urbanization on biodiversity. Chin. J. Ecol. 2005, 24, 953–957. [Google Scholar]
- Lundholm, J.T.; Richardson, P.J. Mini review: Habitat analogues for reconciliation ecology in urban and industrial environments. J. Appl. Ecol. 2010, 47, 966–975. [Google Scholar] [CrossRef]
- Sadler, J.; Bates, A.; Donovan, R.G.; Bodnar, S.; Niemela, J.; Breuste, J.H.; Guntenspergen, G.; McIntyre, N.E.; Elmqvist, T.; James, P. Building for Biodiversity: Accommodating people and wildlife in cities. In Urban Ecology: Patterns Processes and Applications; Jari, N., Jürgen, H.B., Glenn, G., Nancy, E.M., Thomas, E., Philip, J., Eds.; OUP Oxford: Oxford, UK, 2011; pp. 392–395. [Google Scholar]
- Roberge, J.M.; Angelstam, P. Indicator species among resident forest birds-A cross-regional evaluation in northern Europe. Biol. Conserv. 2006, 130, 134–147. [Google Scholar] [CrossRef]
- Xu, Q.; Zhou, L.; Xia, S.; Zhou, J. Impact of Urbanization Intensity on Bird Diversity in River Wetlands around Chaohu Lake, China. Animals 2022, 12, 473. [Google Scholar] [CrossRef] [PubMed]
- Xu, X.; Xie, Y.; Qi, K.; Luo, Z.; Wang, X. Detecting the response of bird communities and biodiversity to habitat loss and fragmentation due to urbanization. Sci. Total Environ. 2018, 624, 1561–1576. [Google Scholar] [CrossRef]
- David, A.; Émile, O. Les Oiseaux de la Chine; Masson, G., Ed.; Libraire de l’Académie de Médecine: Paris, France, 1877. [Google Scholar]
- Fu, T.S.; Chen, P. The distribution and breeding habits of Emberiza Jankowskii. Acta Zool. Sin. 1966, 2, 195–198. [Google Scholar]
- Tilghman, N.G. Characteristics of urban woodlands affecting breeding bird diversity and abundance. Landsc. Urban Plan. 1987, 14, 481–495. [Google Scholar] [CrossRef]
- Liu, N.N.; Shou, D.Y.; Da, L.J. Biodiversity pattern and species group classification of park birds along urbanization gradient in Shanghai. Chin. J. Ecol. 2018, 37, 3676–3684. [Google Scholar]
- Fontana, S.; Sattler, T.; Bontadina, F.; Moretti, M. How to manage the urban green to improve bird diversity and community structure. Landsc. Urban Plan. 2011, 101, 278–285. [Google Scholar] [CrossRef]
- Pellissier, V.; Cohen, M.; Boulay, A.; Clergeau, P. Birds are also sensitive to landscape composition and configuration within the city centre. Landsc. Urban Plan. 2012, 104, 181–188. [Google Scholar] [CrossRef]
- Lin, Y.H.; Xu, P.; Liao, X.; Wang, Y.J.; Luan, S.J. Waterbird’s flight resistance pattern and spatial management strategies for coastal wetlands: A case study of Shenzhen Bay. Chin. J. Ecol. 2015, 34, 3182–3190. [Google Scholar]
- Zou, B. From physical expansion to built-up area improvement: Shenzhen master plan transition forces and paths. Planners 2013, 29, 5–10. [Google Scholar]
- Li, T. The Study of Wetland Park Design of the Pearl river Delta on the Purpose of Protecting Waterfowls. Master’s Thesis, South China University of Technology, Guangzhou, China, 2017. [Google Scholar]
- Luo, X.W.; Zheng, W.G.; Li, W.F.; Gong, Y.Z.; Yin, T.H. Ecological restoration of waterbird habitat in Futian Mangrove, Shenzhen. Subtrop. Soil Water Conserv. 2022, 33, 46–50. [Google Scholar]
- Chen, Z.P.; Hu, L.L.; Wang, H.; Yang, Q.; Hu, Y.; Zheng, X.C.; Wang, J.; Li, S.F. Investigation and population change of waterbirds in Futian Mangrove Reserve, Shenzhen. Resour. Econ. Environ. Prot. 2016, 12, 163–164. [Google Scholar]
- Leven, M.R.; Corlett, R.T. Invasive birds in Hong Kong, China. Ornithol. Sci. 2004, 3, 43–55. [Google Scholar] [CrossRef]
- Chen, G.Z.; Wang, Y.J.; Huang, Q.L. A study on the biodiversity and protection in Futian National Nature Reserve of mangroves and birds, Shenzhen. Chin. Biodivers. 1997, 5, 104–111. [Google Scholar]
- Tian, B.C.; Li, P.Q.; Huang, Q.D. Construction methods of urban ecological corridor for birds: A review. Chin. J. Appl. Ecol. 2021, 32, 3010–3022. [Google Scholar]
- Knaapen, J.P.; Scheffer, M.; Harms, B. Estimating habitat isolation in landscape planning. Landsc. Urban Plan. 1992, 23, 1–16. [Google Scholar] [CrossRef]
- Wade, A.A.; McKelvey, K.S.; Schwartz, M.K. Resistance-Surface-Based Wildlife Conservation Connectivity Modeling: Summary of Efforts in the United States and Guide for Practitioners; Gen. Tech. Rep. RMRS-GTR-333; US Department of Agriculture, Forest Service, Rocky Mountain Research Station: Fort Collins, CO, USA, 2015; p. 333.
- Liu, X.F.; Shu, J.M.; Zhang, L.B. Research on applying minimal cumulative resistance model in urban land ecological suitability assessment: As an example of Xiamen City. Acta Ecol. Sin. 2010, 30, 421–428. [Google Scholar]
- Darren, R.G.; Ron, C.; Gavin, M.S.; Kate, E.P. A bird’s eye view: Using circuit theory to study urban landscape connectivity for birds. Landsc. Ecol. 2017, 32, 1771–1787. [Google Scholar]
- Hilty, J.; Merenlender, A. Faunal indicator taxa selection for monitoring ecosystem health. Biol. Conserv. 2000, 92, 185–197. [Google Scholar] [CrossRef]
- Li, X.Y.; Zhang, L.; Fang, J.Y. Indicator, umbrella, and flagship species: Related concepts and their applications in conservation biology. Biodivers. Sci. 2002, 10, 72–79. [Google Scholar]
- Joshua, J.L.; Denis, W.; Jean, C.S.; Lawrence, L.M. Rare species and the use of indicator groups for conservation planning. Conserv. Biol. 2003, 17, 875–882. [Google Scholar]
- DeGraaf, R.; Tilghman, N.; Anderson, S. Foraging guilds of North American birds. Environ. Manag. 1985, 9, 493–536. [Google Scholar] [CrossRef]
- Yu, K.J.; Li, D.H. Landscape ecological model for urban and rural and regional planning. Urban Plan. Overseas 1997, 3, 27–31. [Google Scholar]
- Forman, R.T. Ecologically sustainable landscapes: The role of spatial configuration. In Changing Landscapes: An Ecological Perspective; Zonneveld, I.S., Forman, R.T., Eds.; Springer: New York, NY, USA, 1990; pp. 261–278. [Google Scholar]
- Yu, K.J. Landscape ecological security patterns in biological conservation. Acta Ecol. Sin. 1999, 19, 8–15. [Google Scholar]
- Yu, K.J.; Wang, S.S.; Li, D.H. Regional Ecological Security Pattern: A Case Study of Beijing; China Building Industry Press: Beijing, China, 2012. [Google Scholar]
- Ye, Y.Y.; Su, Y.X.; Zhang, H.O.; Wu, Q.T.; Liu, K. Ecological resistance surface model and its application in urban expansion simulations. Acta Geogr. Sin. 2014, 69, 485–496. [Google Scholar] [CrossRef]
- Deng, J.J.; Chen, L.X.; Yang, C.Y.; Xu, Z.B. Significance evaluation of ecological corridor in a highly-urbanized areas: A case study of Shenzhen. Geogr. Res. 2017, 36, 573–582. [Google Scholar]
- Wu, J.S.; Luo, K.Y.; Ma, H.K.; Wang, Z.Y. Ecological security and restoration pattern of Pearl River Delta, based on ecosystem service and gravity model. Acta Ecol. Sin. 2020, 40, 8417–8429. [Google Scholar]
- Loss, S.R.; Will, T.; Loss, S.S.; Marra, P.P. Bird–building collisions in the United States: Estimates of annual mortality and species vulnerability. Condor 2014, 116, 8–23. [Google Scholar] [CrossRef]
- Shi, D.Y.; Liao, S.Y.; Zhu, L.; Li, B.B. Review on bird-building collisions and the case study of a systematic survey in China. Biodivers. Sci. 2022, 30, 21321. [Google Scholar] [CrossRef]
- Forman, R.T.; Godron, M. Patches and structural components for a landscape ecology. BioScience 1981, 31, 733–740. [Google Scholar]
- Yu, K.J.; Li, D.H.; Liu, H.L. “Reversed planning” Approach; China Building Industry press: Beijing, China, 2005. [Google Scholar]
- Large, A.R.G.; Petts, G.E. Rehabilitation of river margins. River Restor. 1996, 71, 106–123. [Google Scholar]
- Chang, H.; Wang, Y.J.; Zhang, G.P.; Zhuang, P.T.; Yuan, X.C. Studies of the community biodiversity of summer birds in NeiLingDing Island, Guangdong. Chin. J. Zool. 2001, 36, 34–36. [Google Scholar]
- Fernández-Juricic, E. Avifaunal use of linear strips in an urban landscape. Conserv. Biol. 2000, 14, 513–521. [Google Scholar] [CrossRef]
- Fernández-Juricic, E.; Jokimäki, J. A habitat island approach to conserving birds in urban landscapes: Case studies from southern and northern Europe. Biodivers. Conserv. 2001, 10, 2023–2043. [Google Scholar] [CrossRef]
- Jokimaki, J.; Huhta, E. Effects of landscape matrix and habitat structure on a bird community in northern Finland: A multi-scale approach. Ornis Fenn 1996, 73, 97–113. [Google Scholar]
- Deng, M.Y.; Deng, C.F. Assessment of the implementation path of urban renewal from the perspective of interest coordination: A case study on guangzhou urban village redevelopment. Trop. Geogr. 2021, 41, 760–768. [Google Scholar]
- Kim, Y.H. Research on evaluation index of low-carbon community renewal. J. Korean Knowl. Inf. Soc. 2014, 16, 157–168. [Google Scholar]












| Species | Resident Type | Region | Conservation | Population Size |
|---|---|---|---|---|
| Egretta garzetta | Resident bird | Oriental | Provincial protected animal | Relatively small |
| Garrulax canorus | Resident bird | Oriental | Species listed in the Convention on International Trade in Endangered Species of Wild Fauna and Flora | Relatively large |
| Hirundo rustica | Summer resident | Wide-distributed | / | Relatively large |
| Anthus hodgsoni | Winter resident | Palaearctic | / | Relatively small |
| Resistance Factor | Resistance Coefficient (1–500) | ||
|---|---|---|---|
| Basic resistance (land cover type) | Woodland (shrubs and trees woodland, shrubbery) | 1 | |
| Lawn | 50 | ||
| Garden | 100 | ||
| Bare land | 300 | ||
| Water | 400 | ||
| Construction land | 500 | ||
| Additional resistance (human disturbance) | Building height | 0–50 | 200 |
| 51–100 | 100 | ||
| >100 | 50 | ||
| Building density | Low-density | 50 | |
| Medium density | 100 | ||
| High-density | 150 | ||
| Road | Urban roads >30 m wide | 90 | |
| Urban roads <30 m wide | 60 | ||
| PR | SHDI | |
|---|---|---|
| Current situation | 44 | 2.56 |
| Urban regeneration | 57 | 3.10 |
Publisher’s Note: MDPI stays neutral with regard to jurisdictional claims in published maps and institutional affiliations. |
© 2022 by the authors. Licensee MDPI, Basel, Switzerland. This article is an open access article distributed under the terms and conditions of the Creative Commons Attribution (CC BY) license (https://creativecommons.org/licenses/by/4.0/).
Share and Cite
Yang, X.; Cui, H.; Chen, C. Bird Flight Resistance Analysis and Planning Strategies in Urban Regeneration Areas: A Case Study of a Certain Area in Shenzhen, China. Sustainability 2022, 14, 12123. https://doi.org/10.3390/su141912123
Yang X, Cui H, Chen C. Bird Flight Resistance Analysis and Planning Strategies in Urban Regeneration Areas: A Case Study of a Certain Area in Shenzhen, China. Sustainability. 2022; 14(19):12123. https://doi.org/10.3390/su141912123
Chicago/Turabian StyleYang, Xudong, Honglei Cui, and Chen Chen. 2022. "Bird Flight Resistance Analysis and Planning Strategies in Urban Regeneration Areas: A Case Study of a Certain Area in Shenzhen, China" Sustainability 14, no. 19: 12123. https://doi.org/10.3390/su141912123
APA StyleYang, X., Cui, H., & Chen, C. (2022). Bird Flight Resistance Analysis and Planning Strategies in Urban Regeneration Areas: A Case Study of a Certain Area in Shenzhen, China. Sustainability, 14(19), 12123. https://doi.org/10.3390/su141912123
