Innovative Method for Seismic and Energy Retrofitting of Masonry Buildings
Abstract
1. Introduction
2. Properties of the Multilayer Retrofitting System
2.1. SFRM Coating Application
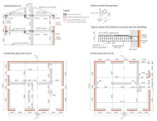
- Existing plaster must be removed from the wall surface to improve the adhesion of the strengthening overlay to the masonry surface. If connection deficiencies between walls are observed, proper interventions (e.g., the installation of steel ties, local dismantling and reconstruction of masonry) must be undertaken to provide continuity at wall intersections.
- As the wall surface is kept moist, a thin (about 5 mm thick) layer of mortar without steel fibers is applied on the wall to prepare a primer-bonding substratum. Masonry-to-coating connectors (i.e., about 6 connectors/m2, according to a previous study [18]) are then installed with a center-to-center spacing of about 400–500 mm. The properties of connectors must be chosen depending on the masonry typology. If masonry is made with solid clay bricks of good quality, the connector may consist of a steel self-tapping screw inserted in a pilot hole drilled in the bricks. On the contrary, when hollow units form the masonry texture, the steel screw can be anchored to the units by a nylon plug able to expand within the block holes. For usual applications, steel screws with a diameter of 6–8 mm can be generally adopted. The screw must be provided with a steel anchor plate that has the minimum dimensions of 50 × 50 × 1.8 (thickness) mm3 that is placed in the middle of the coating thickness.
- After installing the masonry-to-coating connectors, different layers of SFRM are applied to the wall until the required total thickness is obtained. Once the application procedure is completed, the wall surface is wet cured for about 3 days to mitigate shrinkage cracking.
2.2. Application of the Thermal Insulating Layer
3. Seismic Performance of SFRM Coating and Validation of the Numerical Model
3.1. Specimen Description and Material Properties
3.2. Numerical Analysis and Comparison Against Experimental Results
4. Thermal Characterization of Coating
- Bare wall + SFRM + N.1: hollow blocks (tm = 200 mm), SFRM coating (tcoat = 30 mm), aerogel layer (tth = 50 mm).
- Bare wall + SFRM + N.2: hollow blocks (tm = 200 mm), SFRM coating (tcoat = 30 mm), thermal layer (tth = 120 mm) formed by “light” wood fiber (80 mm) combined with “heavy” wood fiber (40 mm).
- Bare wall + SFRM + N.3: hollow blocks (tm = 200 mm), SFRM coating (tcoat = 30 mm), wood fiber layer (tth = 80 mm).
- a steady simulation imposing a difference of temperature ( T i– T e) of 20 K was carried out to determine the total resistance Rtot and the transmittance U of the wall;
- an unsteady simulation was carried out to determine the periodic thermal transmittance Yie, imposing:
5. Case Study
5.1. Seismic Verification of the Structure
5.1.1. Numerical Modelling
- a system of forces proportional to masses (i.e., typical of soft ground story response);
- a system of forces proportional to the first mode shape of the building (i.e., it is able to represent the structural dynamic amplification).
5.1.2. Discussion of Analysis Results
5.2. Energy Analysis
5.2.1. Numerical Modelling
- typical meteorological year 2005–2014 for L’Aquila extracted from EU Photovoltaic Geographical Information System [44];
- constant temperature of the surfaces in contact with the ground, equal to 18 °C;
- internal gains equal to 450 W in the zone Z1, as stated from UNI/TS 11300-1:2014 [45];
- air changes per hour equal to 0.5 h−1 in the zone Z1, as stated form UNI/TS 11300-1:2014 [45];
- temperature between 20 °C and 40 °C (thermostat constant heating and cooling set-points) to model an ideal heating system and no cooling system;
- calculation timesteps of 15 min.
5.2.2. Results and Discussion of the Thermal Analysis
6. Conclusions
Author Contributions
Funding
Institutional Review Board Statement
Informed Consent Statement
Data Availability Statement
Conflicts of Interest
References
- Economidou, M.; Atanasiu, B.; Despret, C.; Maio, J.; Nolte, I.; Rapf, O.; Laustsen, J.; Ruyssevelt, P.; Staniaszek, D.; Strong, D.; et al. Europe’s Buildings under the Microscope. A Country-by-Country Review of the Energy Performance of Buildings; Buildings Performance Institute Europe BPIE: Brussels, Belgium, 2011. [Google Scholar]
- Italian Ministry of Economic Development. DM 26 giugno 2015. Applicazione Delle Metodologie di Calcolo Delle Prestazioni Energetiche e Definizione Delle Prescrizioni e Dei Requisiti Minimi Degli Edifici; Supplement to the Official Gazette of the Italian Republic; Italian Ministry of Economic Development: Roma, Italy, 2015; n. 162 of 15 July 2015, Ordinary Supplement n. 39. (In Italian) [Google Scholar]
- European Parliament. 2010/31/EU Directive of the European Parliament and of the Council on the Energy Performance of Buildings (EPBD Recast); European Parliament: Brussels, Belgium, 2010. [Google Scholar]
- European Commission. Factsheet: Energy Performance in Buildings Directive. Available online: https://ec.europa.eu/energy/sites/default/files/documents/buildings_performance_factsheet.pdf (accessed on 4 May 2021).
- Oliveira, D.V.; Basilio, I.; Lourenço, P.B. Experimental bond behavior of FRP sheets glued on brick masonry. J. Compos. Constr. 2010, 15, 32–41. [Google Scholar] [CrossRef]
- Giaretton, M.; Dizhur, D.; Garbin, E.; Ingham, J.M.; da Porto, F. In-Plane Strengthening of Clay Brick and Block Masonry Walls Using Textile-Reinforced Mortar. J. Compos. Constr. 2018, 22, 04018028. [Google Scholar] [CrossRef]
- ElGawady, M.A.; Lestuzzi, P.; Badoux, M. Retrofitting of masonry walls using shotcrete. In Proceedings of the NZSEE Conference, Napier, New Zealand, 10–12 March 2006; Volume 45. [Google Scholar]
- Facconi, L.; Minelli, F.; Lucchini, S.; Plizzari, G. Experimental study of solid and hollow clay brick masonry walls retrofitted by steel fiber-reinforced mortar coating. J. Earthq. Eng. 2018, 24, 381–402. [Google Scholar] [CrossRef]
- European Parliament. 2018/844/EU Directive of the European Parliament and of the Council of 30 May 2018 amending Directive 2010/31/EU on the Energy Performance of Buildings and Directive 2012/27/EU on Energy Efficiency; European Parliament: Brussels, Belgium, 2018. [Google Scholar]
- European Parliament. 2012/27/EU Directive of the European Parliament and of the Council on Energy Efficiency, Amending Directives 2009/125/EC and 2010/30/EU and Repealing Directives 2004/8/EC and 2006/32/EC.; European Parliament: Brussels, Belgium, 2012. [Google Scholar]
- World Health Organization. WHO Guidelines for Indoor Air Quality: Dampness and Mould; World Health Organization: Geneva, Switzerland, 2009. [Google Scholar]
- Presidency of the Italian Republic. DPR 10 giugno 2020 n. 48. Attuazione della direttiva (UE) 2018/844 del Parlamento europeo e del Consiglio, del 30 maggio 2018, che modifica la direttiva 2010/31/UE sulla prestazione energetica nell'edilizia e la direttiva 2012/27/UE sull'efficienza energetica. In Official Gazette of the Italian Republic; Presidency of the Italian Republic: Rome, Italy, 2020; n. 146 of 10 June 2020. (In Italian) [Google Scholar]
- Bournas, D.A. Concurrent seismic and energy retrofitting of RC and masonry building envelopes using inorganic textile-based composites combined with insulation materials: A new concept. Compos. Part B Eng. 2018, 148, 166–179. [Google Scholar] [CrossRef]
- Karlos, K.; Tsantilis, A.; Triantafillou, T. Integrated Seismic and Energy Retrofitting System for Masonry Walls Using Textile-Reinforced Mortars Combined with Thermal Insulation: Experimental, Analytical, and Numerical Study. J. Compos. Sci. 2020, 4, 189. [Google Scholar] [CrossRef]
- Mistretta, F.; Stochino, F.; Sassu, M. Structural and thermal retrofitting of masonry walls: An integrated cost-analysis approach for the Italian context. Build. Environ. 2019, 155, 127–136. [Google Scholar] [CrossRef]
- Longo, F.; Cascardi, A.; Lassandro, P.; Aiello, M.A. Thermal and Seismic Capacity Improvements for Masonry Building Heritage: A Unified Retrofitting System. Sustainability 2021, 13, 1111. [Google Scholar] [CrossRef]
- EnergyPlus™, Version 9.4.0; U.S. Department of Energy’s (DOE) Building Technologies Office (BTO) and Managed by the National Renewable Energy Laboratory (NREL): Washington, DC, USA.
- Lucchini, S.S.; Facconi, L.; Minelli, F.; Plizzari, G.A. Cyclic Test on a Full-Scale Unreinforced Masonry Building Repaired with Steel Fiber-Reinforced Mortar Coating. J. Struct. Eng. 2021, 147, 04021059. [Google Scholar] [CrossRef]
- Lucchini, S.S.; Facconi, L.; Minelli, F.; Plizzari, G.A. Retrofitting a full-scale two-story hollow clay block masonry building by steel fiber reinforced mortar coating. In Proceedings of the 3rd FRC International Workshop Fibre Reinforced Concrete: From Design to Structural Applications, Lake Garda, Italy, 28–30 June 2018; Extended Abstract on pp. 114–115. ISBN 978-88-89252-44-4. [Google Scholar]
- UNI EN 14651:2007. Test Method for Metallic Fibre Concrete—Measuring the Flexural Tensile Strength (Limit of Proportionality (Lop), Residual); UNI EN: Milan, Italy, 2007. [Google Scholar]
- Midas FEA v1.1. Advanced Nonlinear and Detail FE Analysis System. Midas Information Technology Co. Ltd. Available online: https://www.cspfea.net/ (accessed on 15 July 2020).
- Rots, J.G. Computational Modeling of Concrete Fracture. Ph.D. Thesis, University of Technology of Delft, Delft, The Netherlands, 1988. [Google Scholar]
- Hordijk, D.A. Local Approach to Fatigue of Concrete. Ph.D. Thesis, University of Technology of Delft, Delft, The Netherlands, 1991. [Google Scholar]
- Feenstra, P.H. Computational Aspects of Biaxial Stress in Plain and Reinforced Concrete. Ph.D. Thesis, University of Technology of Delft, Delft, The Netherlands, 1993. [Google Scholar]
- Thorenfeldt, E.; Tomaszewicz, A.; Jensen, J.J. Mechanical properties of high-strength concrete and applications in design. In Proceedings of the Symposium on Utilization of High-Strength Concrete, Trondheim, Norway; 1987. [Google Scholar]
- International Federation for Structural Concrete. Fib Bulletin 65. Model Code 2010; Final Complete Draft; International Federation for Structural Concrete (fib): Lausanne, Switzerland, 2012. [Google Scholar]
- UNI/TR 11552:2014. Opaque Envelope Components of Buildings—Thermo-Physical Parameters; UNI EN: Milan, Italy, 2014. [Google Scholar]
- Neri, M.; Pilotelli, M.; Piana, E.A.; Lezzi, A.M. Prediction of the Acoustic and Thermal Performance of a Multilayer Partition. In Proceedings of the 4th IBPSA-Italy Conference on Building Simulation Applications, BSA 2019, Bolzano, Italy, 19–21 June 2020; pp. 275–282. [Google Scholar]
- ISO (International Organization for Standardization). ISO 6946 Building Components and Building Elements—Thermal Resistance and Thermal Transmittance—Calculation Methods; ISO: Geneva, Switzerland, 2017. [Google Scholar]
- ISO (International Organization for Standardization). ISO 13786 Thermal Performance of Building Components—Dynamic Thermal Characteristics—Calculation Methods; ISO: Geneva, Switzerland, 2017. [Google Scholar]
- Tenpierik, M.; van Der Spoel, W.; Cauberg, H. An Analytical Model for Calculating Thermal Bridge Effects in High Performance Building Enclosure. J. Build. Phys. 2008, 31, 361–387. [Google Scholar] [CrossRef]
- Luscietti, D.; Gervasio, P.; Lezzi, A.M. Computation of linear transmittance of thermal bridges in precast concrete sandwich panels. J. Phys. Conf. Ser. 2014, 547, 012014. [Google Scholar] [CrossRef]
- Benedetti, M.; Gervasio, P.; Luscietti, D.; Pilotelli, M.; Lezzi, A.M. Point Thermal Transmittance of Rib Intersections in Concrete Sandwich Wall Panels. Heat Transfer Eng. 2019, 40, 1075–1084. [Google Scholar] [CrossRef]
- COMSOL. Reference Manual, Version 5.6; COMSOL Corporation: Stockholm, Sweden, 2020. [Google Scholar]
- Circolare n. 617 del 2 febbraio 2009 del Ministero delle Infrastrutture e dei Trasporti. Istruzioni per l’applicazione delle Nuove Norme Tecniche delle Costruzioni di cui al DM 14 gennaio 2008; Ministero delle Infrastrutture e dei Trasporti (MIT): Rome, Italy, 2009. (In Italian)
- UNI EN 1998-3:2005. Eurocode 8: Design of Structures for Earthquake Resistance—Part 3: Assessment and Retrofitting of Buildings; UNI EN: Milan, Italy, 2005. [Google Scholar]
- NTC 2018: Decreto del Ministero delle Infrastrutture e dei Trasporti del 17 gennaio 2018. Aggiornamento delle Norme Tecniche per le Costruzioni; Ministero delle Infrastrutture e dei Trasporti (MIT): Rome, Italy, 2018. (In Italian) [Google Scholar]
- UNI EN 1998-1:2013. Eurocode 8: Design of Structures for Earthquake Resistance—Part 1: General Rules, Seismic Actions and Rules for Buildings; UNI EN: Milan, Italy, 2013. [Google Scholar]
- Fajfar, P.; Gašperšič, P. The N2 method for the seismic damage analysis of RC buildings. Earthq. Eng. Struct. Dyn. 1996, 25, 31–46. [Google Scholar] [CrossRef]
- Circolare, n. 7 del 21 gennaio 2019 del Ministero delle Infrastrutture e dei Trasporti. Istruzioni per l’applicazione dell’«Aggiornamento Delle “Norme Tecniche per le Costruzioni”» di Cui al DM 17 Gennaio 2018; Ministero delle Infrastrutture e dei Trasporti (MIT): Rome, Italy, 2019. (In Italian)
- Paulay, T.; Priestley, M.J.N. Seismic Design of Reinforced Concrete and Masonry Buildings; Wiley-Interscience: New York, NY, USA, 1992; 768p. [Google Scholar]
- Dickson, T.; Pavía, S. Energy Performance, Environmental Impact and Cost of a Range of Insulation Materials. Renew. Sustain. Energy Rev. 2021, 140, 110752. [Google Scholar] [CrossRef]
- Kumar, D.; Alam, M.; Zou, P.X.W.; Sanjayan, J.G.; Memon, R.A. Comparative Analysis of Building Insulation Material Properties and Performance. Renew. Sustain. Energy Rev. 2020, 131, 110038. [Google Scholar] [CrossRef]
- Photovoltaic Geographical Information System (PVGIS). Available online: https://ec.europa.eu/jrc/en/pvgis (accessed on 10 November 2020).
- UNI/TS 11300-1:2014. Prestazioni Energetiche Degli Edifici—Parte 1: Determinazione Del Fabbisogno Di Energia Termica Dell'edificio per La Climatizzazione Estiva Ed Invernale. Ente Nazionale Italiano di Unificazione (UNI): Milan, Italy; Rome, Italy. (In Italian)
- Gkournelos, P.D.; Bournas, D.A.; Triantafillou, T.C. Combined seismic and energy upgrading of existing reinforced concrete buildings using TRM jacketing and thermal insulation. Earthq. Struct. 2019, 16, 625–639. [Google Scholar]















| Material | γ [kg/m3] | E [MPa] | fc [MPa] | Gc [N/mm] | ft [MPa] | GIf [N/mm] | fFts [MPa] | fFtu [MPa] | w1 [mm] | wu [mm] |
|---|---|---|---|---|---|---|---|---|---|---|
| Masonry | 745 | 2100 | 2.3 | 3 | 0.1 | 0.01 | - | - | - | - |
| SFRM | 2040 | 21,000 | 29 | - | 2.3 | - | 2.4 | 2.1 | 0.5 | 2.0 |
| K+S [kN/mm] | ΔK+S [%] | K−S [kN/mm] | ΔK−S [%] | V+peak [kN] | ΔV+peak [%] | V−peak [kN] | ΔV−peak [%] | |
|---|---|---|---|---|---|---|---|---|
| MB-exp | 125 | - | 132 | - | 180 | - | 179 | - |
| MB-num | 132 | +6 | 138 | +5 | 169 | −6 | 154 | −14 |
| MBR-exp | 283 | +126 | 318 | +141 | 605 | +236 | 584 | +226 |
| MBR-num | 334 | +167 | 337 | +155 | 730 | +306 | 645 | +260 |
| γ [kg/m3] | c [J/ (kg K)] | k [W/ (m K)] | |
|---|---|---|---|
| Aerogel | 180 | 1030 | 0.016 |
| “Light” wood fiber | 110 | 2100 | 0.038 |
| “Heavy” wood fiber | 265 | 2100 | 0.048 |
| Wood fiber | 140 | 2100 | 0.040 |
| Package | ttot * [mm] | U (an) [W/m²K] | Yie (an) [W/m²K] | U (num) [W/m²K] | Yie (num) [W/m²K] |
|---|---|---|---|---|---|
| Bare wall | 200 | 1.038 | 0.643 | --- | --- |
| Bare wall + SFRM + N.1 | 280 | 0.242 | 0.038 | 0.246 | 0.030 |
| Bare wall + SFRM + N.2 | 350 | 0.254 | 0.029 | 0.256 | 0.024 |
| Bare wall + SFRM + N.3 | 310 | 0.335 | 0.042 | 0.336 | 0.042 |
| Material | γ [kg/m3] | E [MPa] | fc [MPa] | Gc [N/mm] | ft [MPa] | GIf [N/mm] | fFts [MPa] | fFtu [MPa] | wu [mm] |
|---|---|---|---|---|---|---|---|---|---|
| Masonry | 1200 | 600 | 1.1 | 0.12 | 0.05 | 0.005 | - | - | - |
| SFRM | 2040 | 21,000 | 22 | - | 1.7 | - | 1.5 | 1.4 | 2.0 |
| T1 [s] | T’1-NTC [s] | T’’1-NTC [s] | Mx [%] | Mx [kg] | Г [-] | T* [s] | M* [kg] | K* [kN/mm] | F*y [kN] | D*u [mm] | |
|---|---|---|---|---|---|---|---|---|---|---|---|
| CS | 0.073 | 0.117 | 0.196 | 59 | 130371 | 1.20 | 0.173 | 171280 | 227 | 760 | 9.8 |
| CS-R(20) | 0.058 | 0.119 | 0.196 | 66 | 151754 | 1.20 | 0.116 | 176190 | 517 | 1386 | 15.7 |
| du [mm] | dC-SLV [mm] | Se (T*) [g] | de,max [mm] | qu [-] | dD-SLV [mm] | αu/α1 [-] | μ [-] | qNTC [-] | qDUC [-] | |
|---|---|---|---|---|---|---|---|---|---|---|
| CS | 11.68 | 7.31 | 0.755 | 5.62 | 1.70 | 13.00 | 1.39 | 2.93 | 2.43 | 2.02 |
| CS-R(20) | 18.86 | 11.78 | 0.633 | 2.12 | 1.00 | 2.12 | 1.43 | 5.86 | 2.49 | 2.52 |
| Original | With Coating | With Coating + New Windows | |
|---|---|---|---|
| Energy needs, kWh/(m2 y) | 87.23 | 72.28 | 61.69 |
| Savings, % | --- | 17.1% | 29.3% |
Publisher’s Note: MDPI stays neutral with regard to jurisdictional claims in published maps and institutional affiliations. |
© 2021 by the authors. Licensee MDPI, Basel, Switzerland. This article is an open access article distributed under the terms and conditions of the Creative Commons Attribution (CC BY) license (https://creativecommons.org/licenses/by/4.0/).
Share and Cite
Facconi, L.; Lucchini, S.S.; Minelli, F.; Grassi, B.; Pilotelli, M.; Plizzari, G.A. Innovative Method for Seismic and Energy Retrofitting of Masonry Buildings. Sustainability 2021, 13, 6350. https://doi.org/10.3390/su13116350
Facconi L, Lucchini SS, Minelli F, Grassi B, Pilotelli M, Plizzari GA. Innovative Method for Seismic and Energy Retrofitting of Masonry Buildings. Sustainability. 2021; 13(11):6350. https://doi.org/10.3390/su13116350
Chicago/Turabian StyleFacconi, Luca, Sara S. Lucchini, Fausto Minelli, Benedetta Grassi, Mariagrazia Pilotelli, and Giovanni A. Plizzari. 2021. "Innovative Method for Seismic and Energy Retrofitting of Masonry Buildings" Sustainability 13, no. 11: 6350. https://doi.org/10.3390/su13116350
APA StyleFacconi, L., Lucchini, S. S., Minelli, F., Grassi, B., Pilotelli, M., & Plizzari, G. A. (2021). Innovative Method for Seismic and Energy Retrofitting of Masonry Buildings. Sustainability, 13(11), 6350. https://doi.org/10.3390/su13116350

