Energy Generation Performance of Window-Type Dye-Sensitized Solar Cells by Color and Transmittance
Abstract
1. Introduction
1.1. Background and Purpose of the Study
1.2. Method Analysis of Previous Research
1.2.1. Precedent DSSCs Efficiency Research on Building Application
1.2.2. Mock-Up Test Prior Research
2. Research Analysis Framework
2.1. Method and Scope of Research
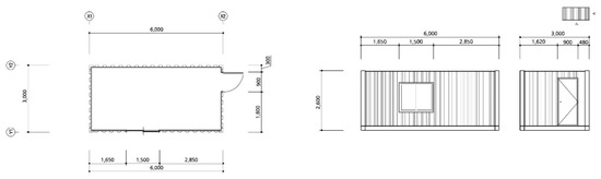
2.2. Test Configuration
2.2.1. Specimen Configuration
2.2.2. DSSCs Test Mock-Up Configuration
3. Test Progress and Analysis
3.1. Preliminary Test
3.2. RGB DSSCs Test
3.3. VLT DSSCs Test
4. Conclusions
Author Contributions
Funding
Acknowledgments
Conflicts of Interest
References
- New and Renewable/Green Energy Policy, Ministry of Trade, Industry and Energy of Korea: UCL. Available online: https://www.motie.go.kr/motie/py/fe/fe2/greenenergy2/greenenergy.jsp (accessed on 28 October 2020).
- New and Renewable Energy Supply Performance Survey: Energy Generation, KOIS, Korea Energy Agency (1995–2018): URL. Available online: http://kosis.kr/statHtml/statHtml.do?orgId=337&tblId=DT_337N_A002&vw_cd=MT_ZTITLE&list_id=337_33701_2&seqNo=&lang_mode=ko&language=kor&obj_var_id=&itm_id=&conn_path=MT_ZTITLE (accessed on 28 October 2020).
- HYPEBAE. Available online: https://hypebae.com/2018/5/balenciaga-new-flagship-store-miami-design-district (accessed on 28 October 2020).
- REAL. Available online: http://real.hanbat.ac.kr/ (accessed on 28 October 2020).
- Juan Bisquert’s Blog. Available online: https://juanbisquert.wordpress.com/2014/04/08/dye-solar-cell-facade-at-swisstech-covention-center-at-epfl-by-solaronix/ (accessed on 28 October 2020).
- Kim, J. A Study on Perovskite Solar Cell Characteristics of Photoelectrode Fabrication. Master’s Thesis, Gachon University, Gyeonggi-do, Korea, February 2017. [Google Scholar]
- Jeong, W. Visual Environment Assessment of Office Space Daylighted by Transparent BIPV Window System. Master’s Thesis, Hanbat National University, Daejeon, Korea, February 2013. [Google Scholar]
- Jo, H.; Han, S. An evaluation for the building aesthetics applied with facade-integrated solar cells based on analytical hierarchy process. Korea Inst. Ecol. Archit. Environ. J. 2018, 18, 21–27. [Google Scholar]
- Oh, M.; Yoon, J.; Lee, J.; Lee, J. A study on the optimal window-floor ratio considering glazing type for application of dye-sensitized solar cell in office building. Korean Sol. Energy Soc. 2010, 30, 303–308. [Google Scholar]
- Kim, J.; Han, S. A quantification procedure for interior performance of architectural openings associated with dye-sensitized solar cells. Sustainability 2019, 11, 6461. [Google Scholar] [CrossRef]
- Tsai, C.H.; Lin, C.M.; Liu, Y.C. Increasing the efficiency of dye-sensitized solar cells by adding nickel oxide nanoparticles to titanium dioxide working electrodes. Coatings 2020, 10, 195. [Google Scholar] [CrossRef]
- Huang, W.Y.; Hsieh, T.L. Dyes amount and light scattering influence on the photocurrent enhancement of titanium dioxide hierarchically structured photoanodes for dye-sensitized solar cells. Coatings 2020, 10, 13. [Google Scholar] [CrossRef]
- Kim, B. The energy performance analysis of dye sensitized solar cell installed in office building. Archit. Inst. Korea 2010, 26, 289–296. [Google Scholar]
- Boyce, P.; Eklund, N.; Mangum, S.; Saalfield, C.; Tang, L. Minimum acceptable transmittance of glazing. Light. Res. Technol. 1995, 27, 145–152. [Google Scholar] [CrossRef]
- Lee, J.S.; Kim, B.S. Development of the nomo-graph for evaluation on discomfort glare of windows. Sol. Energy 2007, 81, 799–808. [Google Scholar] [CrossRef]
- Kim, H.; Yoon, J. Domain for DSSC(Dye-Sensitized Solar Cell) window by analysis of daylighting performance and preferred color. Archit. Inst. Korea 2012, 18, 275–282. [Google Scholar]
- Ng, P.K.; Mithraratne, N.; Kua, H.W. Energy analysis of semi-transparent BIPV in Singapore buildings. Energy Build. 2013, 66, 274–281. [Google Scholar] [CrossRef]
- Park, B.; Choi, E.; Choi, Y.; Moon, J. Analysis of energy performance of DSSC BIPV applied to office building. Korea Inst. Ecol. Archit. Environ. J. 2019, 19, 134–135. [Google Scholar]
- Lee, S. Development of BIPV Power Generation Prediction Algorithm for Mock-Up Analysis. Ph.D. Thesis, University of Soeul, Soeul, Korea, February 2017. [Google Scholar]
- Lee, H.M.; Yoon, J.H. Power performance analysis of a transparent DSSC BIPV window based on 2 year measurement data in a full-scale mock-up. Appl. Energy 2018, 225, 1013–1021. [Google Scholar] [CrossRef]
- Kim, J.-H.; Han, S.-H. Analysis of standardized factor coefficient for building aesthetics by types of colored BIPV: Focused on the color factor. KIEAE J. 2020, 20, 135–141. [Google Scholar] [CrossRef]
- Choi, Y.; Kim, Y.; Kim, H.; Sin, M. A study on changes to the azimuth angle and tilt of a photovoltaic array and its influence on solar radiation. Korean Inst. Illum. Electr. Install. Eng. 2011, 2011, 337–338. [Google Scholar]
- Mehmood, U.; Malik, M.I.; Khan, A.U.H.; Hussein, I.A.; Harrabi, K.; Al-Ahmed, A. Effect of outdoor temperature on the power-conversion efficiency of newly synthesized organic photosensitizer based dye-sensitized solar cells. Mater. Lett. 2018, 220, 222–225. [Google Scholar] [CrossRef]
- Lee, H.; Yang, Y.; Yoon, J. The study on the power generation measurement of DSSC BIPV window according to cloud cover & irradiation. Korean Sol. Energy Soc. 2016, 36, 13. [Google Scholar]












| 1st Generation PV | 2nd Generation PV | 3rd Generation PV |
|---|---|---|
![]() | ![]() | ![]() |
| Balenciaga Store, Miami, Florida, USA [3] | Solar Cube, Hanbat National University, Daejeon, Korea [4] | Swiss Tech Convention Center, Ecblens, Swiss [5] |
| S. M. Lee’s Study (2017) | H. M. Lee’s Study (2018) |
|---|---|
![]() | ![]() |
| Mock-up with Crystalline and Amorphous Solar Cell [18] | Mock-up with Dye-Sensitized Solar cell [19] |
| Type | Color/VLT | Vmp | Imp | Voc | Isc |
|---|---|---|---|---|---|
![]() RD07 | Red/7% | 16 V | 1.1 A | ~25 V | 1.3 A |
![]() RD10 | Red/10% | 16 V | 0.9 A | ~25 V | 1.0 A |
![]() RD20 | Red/20% | 16 V | 0.7 A | ~25 V | 0.85 A |
![]() GD20 | Green/20% | 13~17 V | 0.2~0.4 A | ~23 V | 0.2~0.4 A |
![]() BD20 | Blue/20% | 13~17 V | 0.2~0.4 A | ~23 V | 0.2~0.4 A |
Publisher’s Note: MDPI stays neutral with regard to jurisdictional claims in published maps and institutional affiliations. |
© 2020 by the authors. Licensee MDPI, Basel, Switzerland. This article is an open access article distributed under the terms and conditions of the Creative Commons Attribution (CC BY) license (http://creativecommons.org/licenses/by/4.0/).
Share and Cite
Kim, J.-H.; Han, S.-H. Energy Generation Performance of Window-Type Dye-Sensitized Solar Cells by Color and Transmittance. Sustainability 2020, 12, 8961. https://doi.org/10.3390/su12218961
Kim J-H, Han S-H. Energy Generation Performance of Window-Type Dye-Sensitized Solar Cells by Color and Transmittance. Sustainability. 2020; 12(21):8961. https://doi.org/10.3390/su12218961
Chicago/Turabian StyleKim, Jae-Hyang, and Seung-Hoon Han. 2020. "Energy Generation Performance of Window-Type Dye-Sensitized Solar Cells by Color and Transmittance" Sustainability 12, no. 21: 8961. https://doi.org/10.3390/su12218961
APA StyleKim, J.-H., & Han, S.-H. (2020). Energy Generation Performance of Window-Type Dye-Sensitized Solar Cells by Color and Transmittance. Sustainability, 12(21), 8961. https://doi.org/10.3390/su12218961











