Evaluation of Thermal Comfort and Energy Consumption of Water Flow Glazing as a Radiant Heating and Cooling System: A Case Study of an Office Space
Abstract
1. Introduction
2. Materials and Methods
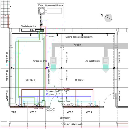
2.1. Description of the Facility
2.2. Description of the Sensors
3. Results
3.1. Analysis in Summer Conditions
3.2. Analysis in Winter Conditions
4. Discussion
4.1. Validation of Energy Management System
4.2. Estimation of Final Energy Consumption
4.3. Mean Radiant and Operative Temperatures
- Tmr = mean radiant temperature, °C,
- TN = surface temperature of surface N, °C (calculated or measured),
- AN = area of surface,
- Fp-N = is the angle factor between the person and surface N.
- γ = A+B(a/c),
- τ = C+D(b/c) + E(a/c).
- Top = operative temperature (°C),
- Ta = indoor air temperature (°C), and
- Tmr = mean radiant temperature (°C).
4.4. Predicted Mean Vote (PMV)
5. Conclusions
Author Contributions
Funding
Acknowledgments
Conflicts of Interest
References
- Kamilaris, A.; Kalluri, B.; Kondepudi, S.; Kwok Wai, T. A literature survey on measuring energy usage for miscellaneous electric loads in offices and commercial buildings. Renew. Sustain. Energy Rev. 2014, 34, 536–550. [Google Scholar] [CrossRef]
- Balaras, C.A.; Droutsa, K.; Argiriou, A.A.; Asimakopoulos, D.N. Potential for energy conservation in apartment building. Energy Build. 2000, 31, 143–154. [Google Scholar] [CrossRef]
- Del Ama Gonzalo, F.; Ferrandiz, J.; Fonseca, D.; Hernandez, J.A. Non-intrusive electric power monitoring system in multi-purpose educational buildings. Int. J. Power Electron. Drive Syst. 2019, 9, 51–62. [Google Scholar] [CrossRef]
- Menezes, A.C.; Cripps, A.; Buswellb, R.A.; Wright, J.; Bouchlaghem, D. Estimating the energy consumption and power demand of small power equipment in office buildings. Energy Build. 2014, 75, 199–209. [Google Scholar] [CrossRef]
- Europe 2020 Indicators—Climate Change and Energy. Available online: http://ec.europa.eu/ (accessed on 15 June 2020).
- Andreou, A.; Barrett, J.; Taylor, P.G.; Brockway, P.E.; Wadud, Z. Decomposing the drivers of residential space cooling energy consumption in EU-28 countries using a panel data approach. Energy Built Environ. 2020, 1, 432–442. [Google Scholar] [CrossRef]
- Bae, W.-B.; Mun, S.-H.; Huh, J.-H. Real-Time Occupant Based Plug-in Device Control Using ICT in Office Buildings. Energies 2016, 9, 143. [Google Scholar] [CrossRef]
- Masoso, O.T.; Grobler, L.J. The dark side of occupants’ behaviour on building energy use. Energy Build. 2010, 42, 173–177. [Google Scholar] [CrossRef]
- Muhammad, W.; Monjur, M.; David, M.; Mario, S.; Yacine, R. Building energy metering and environmental monitoring. A state-of-the-art review and directions for future research. Energy Build. 2016, 120, 85–102. [Google Scholar] [CrossRef]
- Komor, P. Space cooling demands from office plug loads. Ashrae J. 1997, 39, 41–44. [Google Scholar]
- BRECSU. Energy Consumption Guide 19: Energy Use in Offices; Building Research Energy Conservation Support Unit: Watford, UK, 2000. [Google Scholar]
- Dunn, G.; Knight, I. Small power equipment loads in UK office environments. Energy Build. 2005, 37, 87–91. [Google Scholar] [CrossRef]
- Izquierdo, M.; Moreno-Rodríguez, A.; González-Gil, A.; García-Hernando, N. Air conditioning in the region of Madrid, Spain: An approach to electricity consumption, economics and CO2 emissions. Energy 2011, 36, 1630–1639. [Google Scholar] [CrossRef]
- Menezes, A.C.; Cripps ABuswell, R.A.; Bouchlaghem, D. Benchmarking small power energy consumption in office buildings in the United Kingdom: A review of data published in CIBSE Guide F. Build. Serv. Eng. Res. Technol. 2013, 34, 73–86. [Google Scholar] [CrossRef]
- Pezzutto, S.; Fazeli, R.; De Felice, M.; Sparber, W. Future development of the air-conditioning market in Europe: An outlook until 2020. Wiley Interdiscip. Rev. Energy Environ. 2016, 5, 649–669. [Google Scholar] [CrossRef]
- Lanzisera, S.; Dawson-Haggertym, S.; Cheung, H.; Taneja, J.; Culler, D.; Brown, R. Methods for detailed energy data collection of miscellaneous and electronic loads in a commercial office building. Build. Environ. 2013, 65, 170–177. [Google Scholar] [CrossRef]
- Pezzutto, S.; De Felice, M.; Fazeli, R.; Kranzl, L.; Zambotti, S. Status quo of the air-conditioning market in Europe: Assessment of the building stock. Energies 2017, 10, 1253. [Google Scholar] [CrossRef]
- Li, D.H.W.; Wong, S.L.; Tsang CLCheung, G.H.W. A study of the daylighting performance and energy use in heavily obstructed residential buildings via computer simulation techniques. Energy Build. 2006, 38, 1343–1348. [Google Scholar] [CrossRef]
- Hermanns, M.; del Ama, F.; Hernández, J.A. Analytical solution to the one-dimensional non-uniform absorption of solar radiation in uncoated and coated single glass panes. Energy Build. 2012, 47, 561–571. [Google Scholar] [CrossRef]
- Taleghani, M.; Kleerekoper, L.; Tenpierik, M.; van den Dobbelsteen, A. Outdoor thermal comfort within five different urban forms in the Netherlans. Build. Environ. 2015, 83, 65–78. [Google Scholar] [CrossRef]
- Tullie Circle, N.E. (Ed.) Ashrae Handbook-Heating, Ventilating, and Air-Conditioning Systems and Equipment; ASHRAE: Atlanta, GA, USA, 2012; Available online: https://app.knovel.com/web/toc.v/cid:kpASHRAEA2/viewerType:toc/ (accessed on 15 June 2020).
- Europe 2020 Indicators—Electricity Price Statistics. Available online: https://ec.europa.eu/eurostat/statistics-explained/index.php?title=Electricity_price_statistics (accessed on 15 August 2020).
- Mikulik, J. Energy Demand Patterns in an Office Building: A Case Study in Kraków (Southern Poland). Sustainability 2018, 10, 2901. [Google Scholar] [CrossRef]
- Lee, S.H.; Jeon, Y.; Chung, H.J.; Cho, W.; Kim, Y. Simulation-based optimization of heating and cooling seasonal performances of an air-to-air heat pump considering operating and design parameters using genetic algorithm. Appl. Therm. Eng. 2018, 144, 362–370. [Google Scholar] [CrossRef]
- Priarone, A.; Silenzi, F.; Fossa, M. Modelling Heat Pumps with Variable EER and COP in EnergyPlus: A Case Study Applied to Ground Source and Heat Recovery Heat Pump Systems. Energies 2020, 13, 794. [Google Scholar] [CrossRef]
- Fanger, P.O. Thermal Comfort, Analysis and Application in Environmental Engineering; Danish Technical Press: Copenhagen, Denmark, 1970. [Google Scholar]
- ASHRAE-55. ANSI/ASHRAE Standard 55-2017: Thermal Environmental Conditions for Human Occupancy; ASHRAE: Atlanta, GA, USA, 2017. [Google Scholar]
- ISO 7730:2005. Ergonomics of the Thermal Environment-Analytical Determination and Interpretation of Thermal Comfort Using Calculation of the PMV and PPD Indices and Local Thermal Comfort Criteria; International Organization for Standardization (ISO): Geneva, Switzerland, 2005. [Google Scholar]
- Marino, C.; Nucara, A.; Pietrafesa, M. Mapping of the indoor comfort conditions considering the effect of solar radiation. Sol. Energy 2015, 113, 63–77. [Google Scholar] [CrossRef]
- Godbole, S. Investigating the relationship between Mean Radiant Temperature (MRT) and Predicted Mean Vote (PMV); A case study in a university building; School of Architecture and the Built Environment: Stockholm, Sweden, 2018. [Google Scholar]
- Chow, T.; Chunying, L.; Zhang, L. Thermal characteristics of water-flow double-pane window. Int. J. Therm. Sci. 2011, 50, 140–148. [Google Scholar] [CrossRef]
- Gueymard, C.; duPont, W. Spectral effects on the transmittance, solar heat gain, and performance rating of glazing systems. Sol. Energy 2009, 83, 940–953. [Google Scholar] [CrossRef]
- Chow, T.T.; Li, C. Liquid-filled solar glazing design for buoyant water-flow. Build. Environ. 2013, 60, 45–55. [Google Scholar] [CrossRef]
- Gil-Lopez, T.; Gimenez-Molina, C. Environmental, economic and energy analysis of double glazing with a circulating water chamber in residential buildings. Appl. Energy 2013, 101, 572–581. [Google Scholar] [CrossRef]
- Gutai, M.; Kheybari, A.G. Energy consumption of water-filled glass (WFG) hybrid building envelope. Energy Build. 2020, 218, 110050. [Google Scholar] [CrossRef]
- Moreno Santamaria, B.; del Ama Gonzalo, F.; Pinette, D.; Gonzalez-Lezcano, R.-A.; Lauret Aguirregabiria, B.; Hernandez Ramos, J.A. Application and Validation of a Dynamic Energy Simulation Tool: A Case Study with Water Flow Glazing Envelope. Energies 2020, 13, 3203. [Google Scholar] [CrossRef]
- Moreno Santamaria, B.; del Ama Gonzalo, F.; Lauret Aguirregabiria, B.; Hernandez Ramos, J.A. Experimental Validation of Water Flow Glazing: Transient Response in Real Test Rooms. Sustainability 2020, 12, 5734. [Google Scholar] [CrossRef]
- Spanish Ministry of Development. BasicDocument on Energy Saving of the Technical Building Code (Documento Básico de Ahorro de Energía del Código Técnico de la Edificación, CTE-DB-HE). 2019. Available online: https://www.codigotecnico.org/images/stories/pdf/ahorroEnergia/DBHE.pdf (accessed on 16 August 2020).
- European Union. Directive (EU) 2018/844 of the European Parliament and of the Council of 30 May 2018. Amending Directive 2010/31/EU on the Energy Performance of Buildings and Directive 2012/27/EU on Energy Efficiency. 2018. Available online: https://eur-lex.europa.eu/legal-content/EN/TXT/PDF/?uri=CELEX:32018L0844&from=EN (accessed on 16 August 2020).
- Spanish Regulation of Thermal Installations in Buildings (RITE). Factores de Emisión de CO2 y Coeficientes de Paso a Energía Primaria de Diferentes Fuentes de Energía Final Consumidas en el Sector de Edificios en España. Agencia Estatal Boletín Oficial del Estado: Madrid, Spain. 2016. Available online: https://energia.gob.es/desarrollo/EficienciaEnergetica/RITE/Reconocidos/Reconocidos/Otros%20documentos/Factores_emision_CO2.pdf (accessed on 16 August 2020).
- Saunier Duval. Manuel d’installation. Available online: https://www.saunierduval.fr/france/download/genia-air-1/genia-air-2/saunier-duval-genia-air-6-8-12-15-unite-exterieure-notice-installation-0020117808-03-12-2012-291831.pdf (accessed on 16 August 2020).
- Ventilación Técnica Para la Edificación. Available online: https://www.casals.com/es/productos-casals/ventilacion-tecnica-para-la-edificacion/ventiladores-in-line-y-en-caja-insonorizada/box-bd-plus// (accessed on 4 September 2020).
- Cannistmro, G.; Franzitta, G.; Giaconia, C.; Rizzo, G. Algorithms for the calculation of the view factors between human body and rectangular surfaces in parallelepiped environments. Energy Build. 1992, 19, 51–60. [Google Scholar] [CrossRef]

















| Thermal and Geometric Parameters | Roof | N-E Wall | N-E Window | Int Wall | Int Glass | Floor |
|---|---|---|---|---|---|---|
| U (W/m2K) 1 | 0.3 | 0.3 | 2.9 | 0.7 | 5.2 | 0.6 |
| A (m2) | 40 | 22.5 | 2.2 | 19.6 | 7.8 | 40 |
| ∑UA (W/K) | 12 | 6.75 | 6.38 | 13.72 | 40.56 | 24 |
| Operating Condition | T_int (°C) | T_ext (°C) 1 | T_ext_C (°C) | n | ∑UA(T_int-T_ext) (W) | ∑UA(T_int-T_ext_C) (W) | Vent (W) | IL (W) | SR (W) | Total (W) |
|---|---|---|---|---|---|---|---|---|---|---|
| Heating | 22 | 4 | 22 | 2 | 452.34 | - | 1620 | - | - | 2018.16 |
| Cooling | 23 | 35 | 30 | 6 | 301.56 | 379.26 | 1080 | 1400 | 82.5 | 3243.42 |
| Device | HP | AHX | WFG | WFG_HP |
|---|---|---|---|---|
| Condition 1 | T_int > 25 °C | - | T_int > 25 °C | |
| Condition 2 | (T_tank_top − T_ext) < 10 °C | (T_tank_top − T_ext) > 10 °C | (T_int − T_tank_bottom) > 10 °C | |
| 8:00 p.m.–7:00 a.m. | - | ON | ON | ON |
| 7:00 a.m.–8:00 p.m. | ON | - | ON | ON |
| Device | HP | AHX | WFG | WFG_HP |
|---|---|---|---|---|
| Condition 1 | T_int < 20 °C | T_int < 20 °C | ||
| Condition 2 | - | (T_tank_bottom − T_int) > 10 °C | ||
| 8:00 p.m.–7:00 a.m. | - | - | ON | ON |
| 7:00 a.m.–8:00 p.m. | ON | - | ON | ON |
| Sensor | Description |
|---|---|
| Tik | Inlet temperature of the transparent WFG 1 (°C) |
| Tok | Outlet temperature of the transparent WFG 1 (°C) |
| Ts_IN | Inlet temperature of the translucent WFG partitions (°C) |
| Ts_OUT | Outlet temperature of the translucent WFG partitions (°C) |
| T_ext | Outside temperature (°C) |
| T_int | Indoor air temperature (°C) |
| T_tank_bottom | Temperature at the bottom of the buffer tank (°C) |
| T_tank_middle | Temperature in the middle of the buffer tank (°C) |
| T_tank_top | Temperature at the top of the buffer tank (°C) |
| T _ext_C | Temperature of the corridor right outside the door (°C) |
| Tfloor | Surface temperature of the floor (°C) |
| Twall | Surface temperature of opaque walls (°C) |
| Tceiling | Surface temperature of the ceiling (°C) |
| TWFG | Surface temperature of transparent WFG (°C) |
| TWFG_TP | Surface temperature of WFG translucent partitions (°C) |
| Sun_rad | Solar irradiance on vertical surface (W/m2) |
| kWh_HP | Thermal heating/cooling energy by the heat pump (kWh) |
| kWh_AXH | Thermal cooling energy by the air heat exchanger (kWh) |
| kWh_WFG | Heating/cooling energy delivered by transparent WFG (kWh) |
| kWh_WFG_TP | Heating/cooling energy delivered by WFG translucent partitions (kWh) |
| RH | Indoor Relative Humidity (%) |
| Date | 10 July 2019 | 09 January 2020 | 14 January 2020 | 20 February 2020 | ||||||||
|---|---|---|---|---|---|---|---|---|---|---|---|---|
| hour | 0–7 | 7–20 | 20–24 | 0–7 | 7–20 | 20–24 | 0–7 | 7–20 | 20–24 | 0–7 | 7–20 | 20–24 |
| kWh_WFG 1 | −0.3 | −4.3 | −0.3 | 3.4 | - | - | - | 8.6 | - | - | −2.3 | - |
| kWhWFGTP 1 | −1.6 | −2.0 | −1.3 | 3.2 | 11.3 | 4.1 | 1.7 | 17.4 | 5.6 | −2.5 | −1.1 | −1.2 |
| kWh_HP 1 | - | −21 | - | - | 7.12 | - | - | 15.0 | - | - | −0.6 | - |
| kWh_AXH 1 | −0.7 | - | - | - | - | - | - | - | - | −0.1 | - | −0.3 |
| Hour | T_int (C) | T_ext (C) 1 | T_ext_C (C) 1 | n | ∑UA(T_int-T_ext) (Wh) | ∑UA(T_int-T_ext_C) (Wh) | Vent (Wh) | IL (Wh) | SR (Wh) | Total (Wh) |
|---|---|---|---|---|---|---|---|---|---|---|
| 7–8 | 23 | 18 | 24 | 0 | −125.65 | 54.18 | 0 | 800 | 0 | 728.53 |
| 8–9 | 23 | 20 | 23.8 | 2 | −75.39 | 43.34 | −90 | 1000 | 0 | 877.95 |
| 9–10 | 23 | 21.5 | 23.7 | 2 | −37.69 | 37.92 | −45 | 1000 | 0 | 955.23 |
| 10–11 | 23 | 28 | 23.9 | 2 | 125.65 | 48.76 | 150 | 1000 | 0 | 1324.41 |
| 11–12 | 23 | 36 | 24 | 6 | 326.69 | 54.18 | 1170 | 1400 | 0 | 2950.87 |
| 12–13 | 23 | 38 | 24.2 | 6 | 376.95 | 65.01 | 1350 | 1400 | 0 | 3191.96 |
| 13–14 | 23 | 38.5 | 26 | 2 | 389.51 | 162.54 | 465 | 1000 | 510 | 2527.05 |
| 14–15 | 23 | 39.7 | 28 | 2 | 419.67 | 270.9 | 501 | 1000 | 521.2 | 2712.82 |
| 15–16 | 23 | 39.8 | 30 | 2 | 422.18 | 379.26 | 504 | 1000 | 510 | 2815.44 |
| 16–17 | 23 | 35 | 34 | 6 | 301.56 | 595.98 | 1080 | 1400 | 390 | 3767.54 |
| 17–18 | 23 | 32 | 33 | 6 | 226.17 | 541.8 | 810 | 1400 | 281.2 | 3259.22 |
| 18–19 | 23 | 31 | 34 | 2 | 201.04 | 595.98 | 240 | 1000 | 202.5 | 2239.52 |
| 19–20 | 23 | 29.5 | 32 | 2 | 163.34 | 487.62 | 195 | 1000 | 82.5 | 1928.45 |
| Hour | T_int (C) | T_ext (C) 1 | T_ext_C (C) 1 | n | ∑UA(T_int-T_ext) (Wh) | ∑UA(T_int-T_ext_C) (Wh) | Vent (Wh) | Total (Wh) |
|---|---|---|---|---|---|---|---|---|
| 7–8 h | 22 | 4 | 14 | 0 | 452.34 | 433.44 | 0 | 885.78 |
| 8–9 h | 22 | 5 | 20 | 2 | 427.21 | 108.36 | 510 | 1045.57 |
| 9–10 h | 22 | 6 | 22 | 2 | 402.08 | 0 | 480 | 882.08 |
| 10–11 h | 22 | 7 | 23 | 2 | 376.95 | −54.18 | 450 | 772.77 |
| 11–12 h | 22 | 7 | 23 | 6 | 376.95 | −54.18 | 1350 | 1672.77 |
| 12–13 h | 22 | 8 | 24 | 6 | 351.82 | −54.18 | 1260 | 1557.64 |
| 13–14 h | 22 | 9 | 24 | 2 | 326.69 | −54.18 | 390 | 662.51 |
| 14–15 h | 22 | 10 | 24 | 2 | 301.56 | −54.18 | 360 | 607.38 |
| 15–16 h | 22 | 8 | 24 | 2 | 351.82 | −54.18 | 420 | 717.64 |
| 16–17 h | 22 | 4 | 24 | 6 | 452.34 | −54.18 | 1620 | 2018.16 |
| 17–18 h | 22 | 4 | 23 | 6 | 452.34 | −54.18 | 1620 | 2018.16 |
| 18–19 h | 22 | 5 | 21 | 2 | 427.21 | 54.18 | 510 | 991.39 |
| 19–20 h | 22 | 5 | 18 | 2 | 427.21 | 216.72 | 510 | 1153.93 |
| Date | 10 July (kWh) | 11 July (kWh) | 12 July (kWh) | 15 July (kWh) | 16 July (kWh) | Total (kWh) |
|---|---|---|---|---|---|---|
| Cooling loads (WFG) 1 | 21.60 | 31.13 | 23.90 | 29.40 | 27.6 | 133.63 |
| Cooling loads (Aid-to-Air) | 27.20 | 35.75 | 28.38 | 32.72 | 31.56 | 155.61 |
| Date | 08 January (kWh) | 09 January (kWh) | 10 January (kWh) | 13 January (kWh) | 14 January (kWh) | Total (kWh) |
|---|---|---|---|---|---|---|
| Heating loads (WFG) 1 | 6.93 | 7.15 | 6.79 | 20.05 | 15.01 | 55.93 |
| Heating loads (Ait-to-Air) | 8.72 | 9.11 | 8.39 | 18.27 | 16.53 | 61.02 |
| Air-to-Water Heat Pump | ||||
|---|---|---|---|---|
| T_ext_db (°C) | Cooling 35 °C | Heating 7 °C | ||
| Ts,i (°C) | 7 °C | 18 °C | 35 °C | 45 °C |
| Energy consumption (kWh) | 133.63 | 133.63 | 55.93 | 55.93 |
| EER 1/COP 2 | 2.90 1 | 3.62 1 | 4.50 2 | 3.50 2 |
| FE consumption (kWh) | 46.08 | 36.91 | 12.43 | 15.98 |
| NRFE consumption (kWh) | 90.04 | 72.13 | 24.29 | 31.22 |
| CO2 emissions (KgCO2) | 15.25 | 12.22 | 4.11 | 5.29 |
| Air-to-Air Heat Pump | ||
|---|---|---|
| Tri_db (°C) | Cooling 23 °C | Heating 22 °C |
| T_ext_db (°C) | 35 °C | 7 °C |
| Energy consumption (kWh) | 155.61 | 61.02 |
| EER 1/COP 2 | 3.25 1 | 3.72 2 |
| FE consumption (kWh) | 47.88 | 16.40 |
| NRFE consumption (kWh) | 93.56 | 32.05 |
| CO2 emissions (KgCO2) | 15.85 | 5.43 |
| Fmax | A | B | C | D | E | |
|---|---|---|---|---|---|---|
| Seated person (Wall/window facing person) | 0.118 | 1.216 | 0.169 | 0.717 | 0.087 | 0.052 |
| Seated person (Floor/ceiling facing person) | 0.116 | 1.396 | 0.130 | 0.951 | 0.080 | 0.055 |
| vr | <0.2 m/s | 0.2 to 0.6 m/s | >0.6 m/s |
|---|---|---|---|
| A | 0.5 | 0.6 | 0.7 |
| Cold | Cool | Slightly Cool | Neutral | Slightly Warm | Warm | Hot |
|---|---|---|---|---|---|---|
| −3 | −2 | −1 | 0 | +1 | +2 | +3 |
© 2020 by the authors. Licensee MDPI, Basel, Switzerland. This article is an open access article distributed under the terms and conditions of the Creative Commons Attribution (CC BY) license (http://creativecommons.org/licenses/by/4.0/).
Share and Cite
Moreno Santamaria, B.; Ama Gonzalo, F.d.; Aguirregabiria, B.L.; Hernandez Ramos, J.A. Evaluation of Thermal Comfort and Energy Consumption of Water Flow Glazing as a Radiant Heating and Cooling System: A Case Study of an Office Space. Sustainability 2020, 12, 7596. https://doi.org/10.3390/su12187596
Moreno Santamaria B, Ama Gonzalo Fd, Aguirregabiria BL, Hernandez Ramos JA. Evaluation of Thermal Comfort and Energy Consumption of Water Flow Glazing as a Radiant Heating and Cooling System: A Case Study of an Office Space. Sustainability. 2020; 12(18):7596. https://doi.org/10.3390/su12187596
Chicago/Turabian StyleMoreno Santamaria, Belen, Fernando del Ama Gonzalo, Benito Lauret Aguirregabiria, and Juan A. Hernandez Ramos. 2020. "Evaluation of Thermal Comfort and Energy Consumption of Water Flow Glazing as a Radiant Heating and Cooling System: A Case Study of an Office Space" Sustainability 12, no. 18: 7596. https://doi.org/10.3390/su12187596
APA StyleMoreno Santamaria, B., Ama Gonzalo, F. d., Aguirregabiria, B. L., & Hernandez Ramos, J. A. (2020). Evaluation of Thermal Comfort and Energy Consumption of Water Flow Glazing as a Radiant Heating and Cooling System: A Case Study of an Office Space. Sustainability, 12(18), 7596. https://doi.org/10.3390/su12187596

