Indoor Thermal Comfort Improvement through the Integrated BIM-Parametric Workflow-Based Sustainable Renovation of an Exemplary Apartment in Seoul, Korea
Abstract
1. Introduction
2. Materials and Methods
2.1. Description of the BIM-Parametric Integrated Building Renovation Framework and Simulation Processes
- (1)
- Energyplus Weather (EPW) data for the climate zone Seoul retrieved the Ladybug tools database of weather files for world cities. The climatic data includes, e.g., outside dry bulb temperature, mean radiant temperature, global radiation and wind speed.
- (2)
- Construction data for the building components of Korean apartments defining the materials utilized in common apartment buildings, their relative position in the envelope layers, and their quantities/thickness.
- (3)
- Operative schedules for technical heating and cooling systems (see Section 3.3) and relative preferential heating and cooling set-point temperatures for Korean apartment dwellers retrieved from the existing literature.
- (4)
- Ventilation schedules defined by the standard Energyplus library of schedules for mid-rise apartment buildings. The ventilation schedules have been altered for the case study of the reference apartment unit analyzed in this study to reflect changes in the opening of windows and natural ventilation due to local external and internal agents. External and internal agents include traffic particulate concentration, external temperatures, wind intensity and direction, as well as the spatial configuration of the apartment (enclosed decks on the south- and north-oriented façades, as well as window sizes).
- (1)
- Adaptive comfort graph for four selected rooms in the apartment unit: a comfort graph is generated by plotting hourly indoor temperature values against outdoor temperature values in a graph showing the comfort area allowed by the adaptive comfort model EN 15251 Class II adjusted for mixed active and passive heating and cooling systems. Accordingly, hourly values for indoor temperatures falling inside the marked comfort area in the graph are considered comfortable, whereas values lying outside the marked comfort areas are considered uncomfortable. The graph allows the amount of comfort hours per year in specific zones of the apartment unit analyzed to be calculated and specifies which association between indoor and outdoor hourly temperatures results in uncomfortable conditions.
- (2)
- Comfort chart of single reference zones in the apartment: the comfort chart shows the comfort condition of apartment’s occupants for each hour of the year (chronologically sorted from 1 January to 31 December), with a color map ranging from (−1 to +1) (too cold to too hot). Values showing a comfort index of 0 are considered comfortable. The comfort chart allows which hours in the year are uncomfortable for the apartment occupants to be identified.
- (3)
- Comfort map of the entire apartment for selected periods of the year: a comfort map showing the comfort hours for single subdivision of all apartment zones during specific selected periods of the year provides further insights into which areas of the apartment are more comfortable during the different seasons or particular time ranges. The subdivision of the apartment floor space in single 1 m × 1 m areas allows dependencies between indoor comfort and factors related to orientation and building components in the apartment to be determined, such as window g-values and extension, and the connection of apartment zones.
2.2. Simulation Model and Parameter Data Sources and Calibration
3. Results
3.1. Construction Components Characteristics and BIM Virtual Reconstuction of the Exemplary Apartment
3.2. Building Envelope Annual Cumulative Radiation Analysis and Selection of the Reference Apartment Unit
3.3. Description of Operative Schedules for Building Energy Simulation
3.4. Comfort Analysis of the Exisiting Reference Apartment Unit Condition
3.4.1. Comfort Maps for Four Representative Rooms in the Reference Apartment Unit
3.4.2. Comfort Charts of the Reference Apartment Unit Rooms
3.4.3. Thermal Comfort Maps for the Existing Condition of the Reference Apartment Unit
3.5. Apartment Renovation Strategies Defintion
- (1)
- Discrepancies between the mean radiant and indoor air operative temperatures: accordingly, a better performing insulation system is introduced into the enhanced building envelope, to reduce the temperature difference between the interior vertical surfaces of the apartment unit zones, and the air temperature of the indoors.
- (2)
- Excessive solar heat losses and gains: in particular for the indoor spaces oriented towards the south, the WWR has been reconfigured to prevent excessive heat losses panes during winter and solar gains in summer through the window glass. Accordingly, window systems integrated into the enhanced building envelope panels have been re-dimensioned to achieve a more balanced WWR, and specific glazing systems with low U-value have been selected on the basis of the available products in South Korea.
- (3)
- Buffer zones between indoors and outdoors: as solar gains and heating energy for south-oriented rooms are dispersed in the non-conditioned enclosed deck spaces, interior rooms of the reference apartment unit are expanded into the enclosed deck areas, allowing direct interfacing of the rooms with the outdoors.
- (1)
- Development of enhanced building envelope modules with increased insulation, to reduce the variation between the mean radiant temperature of vertical surfaces in indoor zones, and the air operative temperature.
- (2)
- Adjustment of the WWR for both the south and north-oriented façades of the apartment: reduction from 76 to 25% of the WWR of the south-oriented façade windows by installing improved window components in the modular façade panels of the enhanced building envelope system; increase of the WWR for the north-oriented façade from 15 to 18% to reach optimal balance between indirect solar gains and heat losses through the window glass. The reduction in terms of WWR in the south-oriented façade is due to two factors: the improved g-value of the windows, which increases the cumulative solar radiation penetrating through the window glazing (i) and the direct interface with the outdoors, which allows spaces in the indoors to receive an increased amount of natural daylight.
- (3)
- Decrease of the windows U-values from approximately 3.00 to 2.00 W/m2K, to reduce heat losses through the window glass.
- (4)
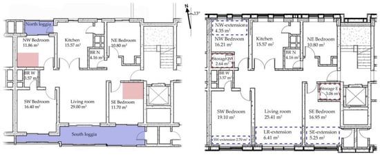
- Re-configuration of the interior apartment layout: extension of the indoor rooms to the front enclosed decks for south-oriented bedrooms and the living room, as well as the northwest-oriented bedroom (Figure 12). Accordingly, the reconfiguration of the apartment layout defines a direct interface of indoor zones with the outdoors and increases the amount of direct solar gains through the window glass in the south-oriented zones and indirect solar energy in the northwest-oriented bedroom. Accordingly, the technically heated and cooled apartment surface and the usable floor space of indoor zones of the apartment are expanded by approximately 17%. Since the apartment bedrooms are expanded into the enclosed deck spaces, the overall lengths of the southwestern, southeastern, and northwestern bedrooms are increased. Accordingly, interior spaces located near the inner core of the apartment could suffer from low solar access, and have their visual comfort reduced by the extension intervention. Therefore, to provide each bedroom with additional storage space, storage spaces enclosed in a prefabricated removable partition system are defined in the inner zones of both the southeastern and northwestern bedrooms.
- (5)
- Integration of an external passive solar shading system in the enhanced envelope system modules. The solar shading system is composed of vertical sliding blinds that can be operated manually by occupants by opening the windows and reaching to inward-oriented handles that operate the sliding rail-mechanism (Figure 13). Single blinds can be synchronously rotated. The shading system is installed behind the external cladding panels of the enhanced envelope modules positioned in front of all four south and north-oriented bedrooms of the apartment, and can be slid manually through a rail system from its encasement position in front of the window glass.is The shading system is activated to fulfill functional requirements, such as complete sunlight obstruction during the early morning to adapt to the rest schedule of occupants, and to prevent overheating in the zones of the apartment. Accordingly, the simulation for the operation of the solar shading system is integrated with the Energyplus simulation of the renovated apartment. The calculation of indoor temperatures included the reduction of solar gains due to the use of solar shadings according to an operative program based on conditional statements (Table 5). Accordingly, the temperature calculations for the zones of the renovated apartment condition allow analysis of the interior comfort, taking into account the adaptation of users to the energy introduced into the apartment by direct and indirect solar gains.
3.6. Comfort Analysis of the Renovated Reference Apartment Unit Condition
3.6.1. Comfort Maps for Four Representative Rooms in the Renovated Reference Apartment Unit
3.6.2. Adaptive Comfort Charts for Selected Rooms of the Renovated Reference Apartment Unit
3.6.3. Thermal Comfort Maps for the Renovated Condition of the Reference Apartment Unit
4. Discussion
5. Conclusions
Author Contributions
Funding
Acknowledgments
Conflicts of Interest
References
- Kim, J.I. Constructing a “Miracle”, Architecture, National Identity and Development of the Han River, A Critical Exploration of Architecture and Urbanism: Seoul 1968-1988; University of California: Berkeley, CA, USA, 2008. [Google Scholar]
- Lee, J.-W. Economic growth and human development in the Republic of Korea, 1945–1992. Reconstruction 2007, 1945, 61. [Google Scholar]
- Lee, S. Urban Housing Policy in Korea According to Paradigm Shift; Korea research Institute for Human Settlements: Sejong City, Korea, 2016. [Google Scholar]
- Kim, K.-H. Housing and the Korean economy. J. Hous. Econ. 2004, 13, 321–341. [Google Scholar] [CrossRef]
- La Grange, A.; Jung, H.N. The commodification of land and housing: The case of South Korea. Hous. Stud. 2004, 19, 557–580. [Google Scholar] [CrossRef]
- Chung, H.S.; Kim, J.H. Housing speculation and housing price bubble in Korea. KDI Sch. Pub Policy Manag. Pap. 2004. [Google Scholar] [CrossRef][Green Version]
- Choi, J. The traditional characteristics reflected in the plan of modern apartment houses in Korea. J. Archit. Plan. Res. 1999, 16, 65–77. [Google Scholar]
- Choi, K.-J.; Jihn, J. A Study on the Change of the Apartment Unit Plan in National Housing—Focused on Institutional and Social Changes. J. Korean Hous. Assoc. 2015, 26, 123–131. [Google Scholar] [CrossRef]
- Bak, C.C.; Son, C.B.; Shik, H.S. Study on the Analysis of Construction Period and Material Amount of Apartment, 1990; Architectural Institute Of Korea: Seoul, Korea, 1990; pp. 498–501. [Google Scholar]
- Choi, D.S.; Lee, M.E.; Lee, H.C. Energy Consumption Characteristics and Evaluation of Thermal Insulation Performance in Accordance with Built Year of Apartment Complex. Korea Inst. Ecol. Archit. Environ. 2014, 14, 79–86. [Google Scholar]
- Koh, S.-B. Temporal and Spatial Characteristics of Apartment Development by Types of Construction Policies—A Case Study Focusing on Apartments in Seoul. J. Urban Des. Inst. Korea Urban Des. 2014, 15, 61–79. [Google Scholar]
- Bang Shin, H. Living on the edge: Financing post-displacement housing in urban redevelopment projects in Seoul. Environ. Urban. 2008, 20, 411–426. [Google Scholar] [CrossRef]
- KOSTAT. Complete Enumeration Results of the 2016 Population and Housing Census; Ministry of Strategy and Finance: Sejong, Korea, 2016.
- KOsis Statistical Database —Environment. Available online: http://kosis.kr/eng/statisticsList/statisticsList_01List.jsp?vwcd=MT_ETITLE&parentId=101_E#SubCont (accessed on 12 July 2018).
- Chung, I.-U. The Current Status of Old Apartments and the Remodeling Policies in Korea; Land&Housing Corporation, World cities summit 2014: Singapore, 6 June 2014. [Google Scholar]
- Kang, B. History of Korean Apartment Housing Projects; Community Housing Study Committee: Seoul, Korea, 1999. [Google Scholar]
- Park, M.; Tae, S. Suggestions of Policy Direction to Improve the Housing Quality in South Korea. Sustainability 2016, 8, 438. [Google Scholar] [CrossRef]
- Yoon, J.D. Establishment of Strategy for Developing Housing Business According to Changing Environment; Seoul, Korea, 2010; pp. 5–8. [Google Scholar]
- Shin, H.B. Property-based redevelopment and gentrification: The case of Seoul, South Korea. Geoforum 2009, 40, 906–917. [Google Scholar] [CrossRef]
- Križnik, B. Changing approaches to urban development in South Korea. Int. Dev. Plan. Rev. 2013, 35, 395–418. [Google Scholar] [CrossRef]
- Jänicke, M. “Green growth”: From a growing eco-industry to economic sustainability. Energy Policy 2012, 48, 13–21. [Google Scholar] [CrossRef]
- Jung, H.G.; Shin, S.W.; Lee, B. Study of the Assessment Baseline of Carbon Dioxide Emissions based on the Analysis of Building Energy Efficiency Rating System. Korea Inst. Ecol. Archit. Environ. 2013, 13, 11–19. [Google Scholar]
- Lee, M.-K.; Kim, Y.-S.; Kang, S.-J.; Ryu, J.-C.; Kim, W.-D.; Han, K.-J.; Balmes, C.; Lee, Y.-H.; Kim, S.-J. Korea’s Green Growth Experience: Process, Outcomes and Lessons Learned; Global Green Growth Instittue: Seoul, Korea, 2015. [Google Scholar]
- Jones, R.S.; Yoo, B. Achieving the “Low Carbon, Green Growth” Vision in Korea; OECD: Paris, France, EU:; 2012. [Google Scholar]
- Kim, S.A.; Ah, P.J. Current Situation and Direction of the Long-life Apartment Housing in Korea, 2014; The Korean Housing Association: Seoul, Korea, 2014; pp. 98–103. [Google Scholar]
- Yeo, M.-S.; Yang, I.-H.; Kim, K.-W. Historical changes and recent energy saving potential of residential heating in Korea. Energy Build. 2003, 35, 715–727. [Google Scholar] [CrossRef]
- Ferreira, M.; Almeida, M. Benefits from energy related building renovation beyond costs, energy and emissions. Energy Procedia 2015, 78, 2397–2402. [Google Scholar] [CrossRef]
- Ferreira, M.; Almeida, M.; Rodrigues, A. Impact of co-benefits on the assessment of energy related building renovation with a nearly-zero energy target. Energy Build. 2017, 152, 587–601. [Google Scholar] [CrossRef]
- Michael, A.; Gregoriou, S.; Kalogirou, S.A. Environmental assessment of an integrated adaptive system for the improvement of indoor visual comfort of existing buildings. Renew. Energy 2018, 115, 620–633. [Google Scholar] [CrossRef]
- Manz, H.; Micallef, D.; Borg, S.P.; Buhagiar, V. A parametric building energy simulation case study on the potential and limitations of passive design in the Mediterranean climate of Malta. Sustain. Build. 2018, 3, 4. [Google Scholar] [CrossRef]
- Lee, Y.-J.; Leigh, S.-B.; Lee, K.-H. A Study on the Operational Strategy for Hybrid Ventilation System in Apartment unit focused on Indoor Air Quality. Korea Inst. Ecol. Archit. Environ. J. 2004, 4, 203–210. [Google Scholar]
- Kim, S.G. Study on Thermal Comfort in according to Rate of Opening Windows of Flat-type Apartment. Korea Inst. Ecol. Archit. Environ. J. 2013, 16, 93–98. [Google Scholar]
- Lee, S.-J.; Cheong, C.H.; Hwang, S.; Kim, T.; Leigh, S.-B. Evaluation of the Indoor Thermal Comfort in Naturally Ventilated Apartment During Summer. Korea Inst. Ecol. Archit. Environ. J. 2010, 10, 59–66. [Google Scholar]
- Chun, C.-Y.; Bae, N.-R. A Study on Acceptable Thermal Comfort Zone and Resident Behavior of Operating Cooling Devices in Apartments. Korean J. Air-Cond. Refrig. Eng. 2005, 17, 477–486. [Google Scholar]
- Lee, J.-W.; Hwang, H.-Y. An Investigation on the Effect of Duration of Sunshine on the Heating Energy of Apartment Houses. Korean J. Air-Cond. Refrig. Eng. 2005, 17, 277–284. [Google Scholar]
- Moon, S.Y.; Jang, D.H. A Study on the thermal comfort change according to the Planting Type in housing complex. Korea Inst. Ecol. Archit. Environ. J. 2012, 12, 65–75. [Google Scholar]
- Shin, H.-i. A Study on the Energy Consumption and their Patterns in Apartment Housing Units Size and Orientation. J. Archit. Inst. Korea Plan. Des. 2016, 32, 231–240. [Google Scholar] [CrossRef]
- Amoruso, F.; Dietrich, U.; Schuetze, T. Development of a Building Information Modeling-Parametric Workflow Based Renovation Strategy for an Exemplary Apartment Building in Seoul, Korea. Sustainability 2018, 10, 4494. [Google Scholar] [CrossRef]
- Amoruso, F.M.; Dietrich, U.; Schuetze, T. Integrated BIM-Parametric Workflow-Based Analysis of Daylight Improvement for Sustainable Renovation of an Exemplary Apartment in Seoul, Korea. Sustainability 2019, 11, 2699. [Google Scholar] [CrossRef]
- Khemlani, L. Autodesk Revit: Implementation in Practice; White Paper Autodesk: Mill Valley, California, 2004; Available online: https://www.aboutcivil.org/papers/autocad-Revit-Implementation-WP.pdf (accessed on 19 July 2018).
- McNeel, R. Rhino3D. Available online: https://www.rhino3d.com/ (accessed on 20 May 2019).
- McNeel, R. Grasshopper Generative Modeling for Rhino. Computer Software (2011b). Available online: http://www. grasshopper3d. com (accessed on 20 May 2019).
- Mostapha Sadeghipour Roudsari; Pak, M. Ladybug: A Parametric Environmental Plugin for Grasshopper to Help Designers Create an Environmentally Conscious Design. In Proceedings of the 13th International IBPSA Conference Lyon, France, 25–30 August 2013; IBPSA, Ed.; Available online: https://www.ibpsa.org/proceedings/bs2013/p_2499.pdf (accessed on 20 May 2019).
- Larson, G.W.; Shakespeare, R. Rendering with Radiance: The Art and Science of Lighting Visualization; Booksurge LLC.: Charleston, SC, USA, 2004. [Google Scholar]
- Mans, D. Bumblebee. Available online: https://www.grasshopper3d.com/group/bumblebee (accessed on 21 September 2018).
- Crawley, D.B.; Lawrie, L.K.; Winkelmann, F.C.; Buhl, W.F.; Huang, Y.J.; Pedersen, C.O.; Strand, R.K.; Liesen, R.J.; Fisher, D.E.; Witte, M.J.; et al. EnergyPlus: Creating a new-generation building energy simulation program. Energy Build. 2001, 33, 319–331. [Google Scholar] [CrossRef]
- Guglielmetti, R.; Macumber, D.; Long, N. OpenStudio: An Open Source Integrated Analysis platform. In Building Simulation 2011; National Renewable Energy Laboratory: Sydney, Australia, 2011. [Google Scholar]
- LBNL. LBNL, WINDOW 7beta: PC Program for Analyzing Window Thermal Per-formance; LBNL: Berkeley, CA, USA, 2012.
- ASHRAE. ASHRAE Standard 55-2007. Thermal Environment Conditions for Human Occupancy; ASHRAE Standing Standard Project Committee 55, Ed.; ASHRAE: Atlanta, GA, USA, 2007. [Google Scholar]
- Toe, D. Development of an Adaptive Thermal Comfort Equation for Naturally Ventilated Buildings in Hot and Humid Climates. Front. Archit. Res. 2018, 2, 145–154. [Google Scholar]
- Fanger, P.O. Thermal Comfort. Analysis and Applications in Environmental Engineering; Danish Technical Press: Copenhagen, Denmark, 1970. [Google Scholar]
- O’Brien, W.; Gunay, H.B. The contextual factors contributing to occupants’ adaptive comfort behaviors in offices—A review and proposed modeling framework. Build. Environ. 2014, 77, 77–87. [Google Scholar] [CrossRef]
- Deuble, M.P.; de Dear, R.J. Mixed-mode buildings: A double standard in occupants’ comfort expectations. Build. Environ. 2012, 54, 53–60. [Google Scholar] [CrossRef]
- De Dear, R. Recent Enhancements to the Adaptive Comfort Standard in ASHRAE 55-2010. In Proceedings of the 45th Annual Conference of the Architectural Science Association, Sydney, Australia, 16–19 November 2011; ANZAScA: Sydney, Australia, 2011. [Google Scholar]
- Van der Linden, A.C.; Boerstra, A.C.; Raue, A.K.; Kurvers, S.R.; de Dear, R.J. Adaptive temperature limits: A new guideline in The Netherlands: A new approach for the assessment of building performance with respect to thermal indoor climate. Energy Build. 2006, 38, 8–17. [Google Scholar] [CrossRef]
- Fabrizio, E.; Monetti, V. Methodologies and Advancements in the Calibration of Building Energy Models. Energies 2015, 8, 2548–2574. [Google Scholar] [CrossRef]
- Jang, H. Modelling of Existing High-Rise Apartment Buildings for Energy-Efficient Refurbishment in South Korea; University of Sheffield: Sheffield, UK, 2016. [Google Scholar]
- VV., A. Apartment Encyclopedia (Seoul and Bundang/Ilsan); Seijn Planning: Seoul, Korea, 1998. [Google Scholar]
- Kim, J.; Chun, J.; Lee, B. Study about Change of Insulation Standard in Apartment in Its Effect. J. Archit. Inst. Korea 2009, 11, 125–132. [Google Scholar]
- ASHRAE. ANSI/ASHRAE Standard 62.1-2010. Ventilation for Acceptable Indoor Air Quality; American Society of Heating, Refrigerating, and Air-Conditioning Engineers, Inc.: Altanta, GA, USA, 2010. [Google Scholar]
- O’Neill, Z.; Narayanan, S.; Brahme, R. Model-Based Thermal Load Estimation In Buildings. In Proceedings of the Fourth National Conference of IBPSA-US, New York, NY, USA, 11–13 August 2010. [Google Scholar]
- CEN. EN 15251—Indoor Environmental Input Parameters for Design and Assessment of Energy Performance of Buildingsaddressing Indoor Air Quality, Thermal Environment, Lighting and Acoustics; CEN: Brussels, Belgium, 2007. [Google Scholar]
- Seoul Monthly Climate Averages. Available online: https://www.worldweatheronline.com/seoul-weather-averages/kr.aspx (accessed on 20 August 2018).
- Konstantoglou, M.; Jonnson, J.C.; Lee, E.S. Simulating complex window systems using BSDF data. In 26th Conference on Passive and Low Energy Architecture (PLEA); PLEA-Arch: Quebec City, QC, Canada, 2009. Available online: https://facades.lbl.gov/publications/simulating-complex-window-systems (accessed on 20 May 2019).
















| Simulation Parameter | Data Source |
|---|---|
| Apartment building construction plans | Realtor catalogues of apartment buildings for the existing reference apartment construction |
| Building envelope and structural system composition | Scientific literature on the construction of apartment buildings in South Korea |
| Opaque construction components’ U-values | EnergyPlus simulation based on common material parameters retrieved from scientific literature |
| Transparent construction components’ U-values and g-values | Short-term survey of the building envelope and WINDOW simulation of transparent components’ U-values and transmission indexes |
| Heating and cooling set-point temperature schedules | Reference studies for average user preferences in terms of heating and cooling set-point temoperatures for South Korea |
| Ventilation schedule | Minimum ventilation standards according to the American Society for Heating, Refrigerating and Air-conditioning Engineers (ASHRAE) standards, wind rose analysis executed for the climatic zone of Seoul, indoor comfort thresholds for air speed according to the adaptive comfort model, time-based exterior traffic pollutants and particulate matter concentration |
| Infiltration through the building envelope | Qualitative analysis of the exterior building envelope and reference standard infiltration values defined by EnergyPlys (range of values for different building envelope conditions) |
| Occupation schedules | Analysis of average working hours/day for the Korean active population and average household composition retrieved from statistical data |
| Building Component | Description | Thickness (cm) | U-Value [W/(m2K)] |
| Insulated load bearing wall (northern exterior wall/southern wall between enclosed deck and interior rooms) | Double 125-mm reinforced concrete layer with core insulation (50 mm) in polystyrene panels, 5-mm interior and exterior mortar and finish layer | 34.50 | 0.63 |
| Exterior enclosed deck wall | 115-mm light concrete wall | 11.50 | 1.63 |
| Roof | 350-mm reinforced concrete slab and 70-mm insulation in polystyrene panels | 35.00 | 0.46 |
| Basement slab | 450-mm reinforced concrete layer with 70-mm insulation in polystyrene panels | 56.50 | 0.45 |
| Interior wall (nonstructural) | 125-mm light concrete layer | 12.00 | 1.57 |
| Interior wall (structural) | 250-mm reinforced concrete layer | 25.00 | 2.63 |
| Interior slab (ceiling and floor) | 250-mm reinforced concrete slab, 30-mm screed, and 10-mm floor cladding | 23.00 | 1.09 |
| Window Component | Description—Length× Height (mm) All windows have aluminum frames and double clear glazing systems | g-Value | U-Value [W/(m2K)] |
| Enclosed deck | 380 × 210 | 3.163 | 0.65 |
| Glass door | 200 × 200 | 3.224 | 0.65 |
| Southeast Bedroom | 250 × 110 | 3.019 | 0.65 |
| Northwest Bedroom | 250 × 110 | 3.019 | 0.72 |
| Northeast Bedroom | 130 × 100 | 3.153 | 0.72 |
| Kitchen | 90 × 50 | 3.432 | 0.72 |
| Heating and Cooling Schedule | Winter Period 1 January–31 May and 1 October–31 December | Summer Period 1 June–30 September | ||
|---|---|---|---|---|
| Hours of the day | Working day—heating set point in °C | Holiday—heating set point in °C | Working day—cooling set point in °C | Holiday—cooling set point |
| 1–7 | 21 | 22 | 30 | 25 |
| 8 | 22 | 22 | 26 | 25 |
| 9 | 22 | 22 | 26 | 25 |
| 10 | 22 | 22 | 25 | 25 |
| 11 | 22 | 22 | 25 | 25 |
| 12 | 22 | 22 | 24 | 25 |
| 13 | 22 | 22 | 24 | 25 |
| 14 | 22 | 22 | 25 | 25 |
| 15 | 22 | 22 | 25 | 25 |
| 16 | 22 | 22 | 25 | 25 |
| 17 | 22 | 22 | 24 | 25 |
| 18 | 22 | 22 | 24 | 25 |
| 19 | 22 | 22 | 25 | 25 |
| 20 | 22 | 22 | 25 | 25 |
| 21–24 | 21 | 22 | 30 | 25 |
| Ventilation Schedule | Winter Period 1 January–31 May and 1 October–31 December | Summer Period 1 June–30 September | ||
|---|---|---|---|---|
| Hours of the day | Working day—ventilation area (time) | Holiday—ventilation area (time) | Working day—ventilation area (time) | Holiday—ventilation area (time) |
| 1–6 | 0.00 (0 min.) | 0.00 (0 min.) | 0.40 (24 min.) | 0.35 (21 min.) |
| 7 | 0.04 (2.5 min.) | 0.03 (2 min.) | 0.75 (45 min.) | 0.35 (21 min.) |
| 8 | 0.00 (0 min.) | 0.00 (0 min.) | 0.75 (45 min.) | 0.35 (21 min.) |
| 9 | 0.03 (2 min.) | 0.03 (2 min.) | 0.75 (45 min.) | 0.35 (21 min.) |
| 10 | 0.00 (0 min.) | 0.00 (0 min.) | 0.50 (30 min.) | 0.35 (21 min.) |
| 11 | 0.04 (2.5 min.) | 0.03 (2 min.) | 0.50 (30 min.) | 0.35 (21 min.) |
| 12 | 0.00 (0 min.) | 0.00 (0 min.) | 0.10 (6 min.) | 0.35 (21 min.) |
| 13 | 0.03 (2 min.) | 0.03 (2 min.) | 0.10 (6 min.) | 0.35 (21 min.) |
| 14 | 0.00 (0 min.) | 0.00 (0 min.) | 0.10 (6 min.) | 0.35 (21 min.) |
| 15 | 0.04 (2.5 min.) | 0.03 (2 min.) | 0.10 (6 min.) | 0.35 (21 min.) |
| 16 | 0.00 (0 min.) | 0.00 (0 min.) | 0.20 (12 min.) | 0.35 (21 min.) |
| 17 | 0.03 (2 min.) | 0.03 (2 min.) | 0.20 (12 min.) | 0.35 (21 min.) |
| 18 | 0.00 (0 min) | 0.00 (0 min.) | 0.45 (27 min.) | 0.35 (21 min.) |
| 19 | 0.04 (2.5 min.) | 0.03 (2 min.) | 0.75 (45 min.) | 0.35 (21 min.) |
| 20 | 0.00 (0 min) | 0.00 (0 min.) | 0.75 (30 min.) | 0.35 (21 min.) |
| 21 | 0.05 (3 min.) | 0.03 (2 min.) | 0.50 (30 min.) | 0.35 (21 min.) |
| 22–24 | 0.00 (0 min.) | 0.00 (0 min.) | 0.40 (24 min.) | 0.35 (21 min.) |
| Shading System Parameters—Bedrooms | Value |
|---|---|
| Shading system type | Vertical blinds |
| Position | External |
| Shading material | Thickness: 0.55 mm, Sol. Refl.: 0.65; Sol. Trans.: 0; Sol. Emit.: 0.9; Conductivity: 221 W/mK |
| Shading control set point control logic for the activation of the shading system | Blinds are activated if the zone temperature exceeds the upper limit of acceptable temperatures according to the adaptive comfort model (average for winter: 23 °C; average for summer: 26.70 °C) |
| Distance from glass | 0.10 m |
| Number of shades | 10–12 (according to window width, single shades are 0.15 m wide in the horizontal plane) |
| Shading rotation angle | Southern façade: 30° south (left turn) |
| Northern façade: −30° south (left turn) |
| Reference Zone (Comfort Analysis According to EN 15251 Hybrid Comfort Class II) | Adaptive Comfort—Existing Apartment Condition Annual Comfort Hours (%) | Adaptive Comfort—Renovated Apartment Condition Annual Comfort Hours (%) | Adaptive Comfort—Renovated Apartment Condition Annual Comfort Hours Increase (%) | Adaptive Comfort Percentage of Annual Hours Too Hot/Too Cold (%/%) |
|---|---|---|---|---|
| Northeastern bedroom | 90.19 | 90.45 | +0.26 | 0/9.54 |
| Kitchen | 82.48 | 87.73 | +5.25 | 0/12.26 |
| Living room | 85.71 | 91.31 | +5.60 | 0/8.68 |
| Southwestern room | 89.21 | 93.57 | +4.36 | 0/6.42 |
| Values in italics are below the comfortable hours’ threshold of 90% of total hours. | ||||
© 2019 by the authors. Licensee MDPI, Basel, Switzerland. This article is an open access article distributed under the terms and conditions of the Creative Commons Attribution (CC BY) license (http://creativecommons.org/licenses/by/4.0/).
Share and Cite
Amoruso, F.M.; Dietrich, U.; Schuetze, T. Indoor Thermal Comfort Improvement through the Integrated BIM-Parametric Workflow-Based Sustainable Renovation of an Exemplary Apartment in Seoul, Korea. Sustainability 2019, 11, 3950. https://doi.org/10.3390/su11143950
Amoruso FM, Dietrich U, Schuetze T. Indoor Thermal Comfort Improvement through the Integrated BIM-Parametric Workflow-Based Sustainable Renovation of an Exemplary Apartment in Seoul, Korea. Sustainability. 2019; 11(14):3950. https://doi.org/10.3390/su11143950
Chicago/Turabian StyleAmoruso, Fabrizio M., Udo Dietrich, and Thorsten Schuetze. 2019. "Indoor Thermal Comfort Improvement through the Integrated BIM-Parametric Workflow-Based Sustainable Renovation of an Exemplary Apartment in Seoul, Korea" Sustainability 11, no. 14: 3950. https://doi.org/10.3390/su11143950
APA StyleAmoruso, F. M., Dietrich, U., & Schuetze, T. (2019). Indoor Thermal Comfort Improvement through the Integrated BIM-Parametric Workflow-Based Sustainable Renovation of an Exemplary Apartment in Seoul, Korea. Sustainability, 11(14), 3950. https://doi.org/10.3390/su11143950

