Effect of Mo and Cr on the Microstructure and Properties of Low-Alloy Wear-Resistant Steels
Abstract
1. Introduction
2. Materials and Methods
2.1. Experimental Materials
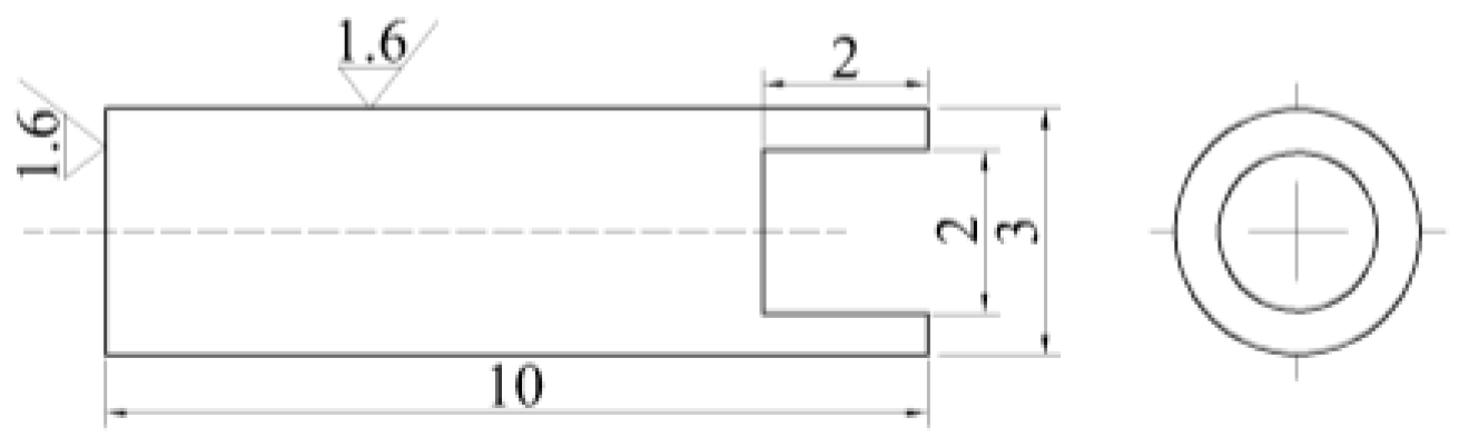
2.2. Experimental Procedures and Methods
3. Experimental Results
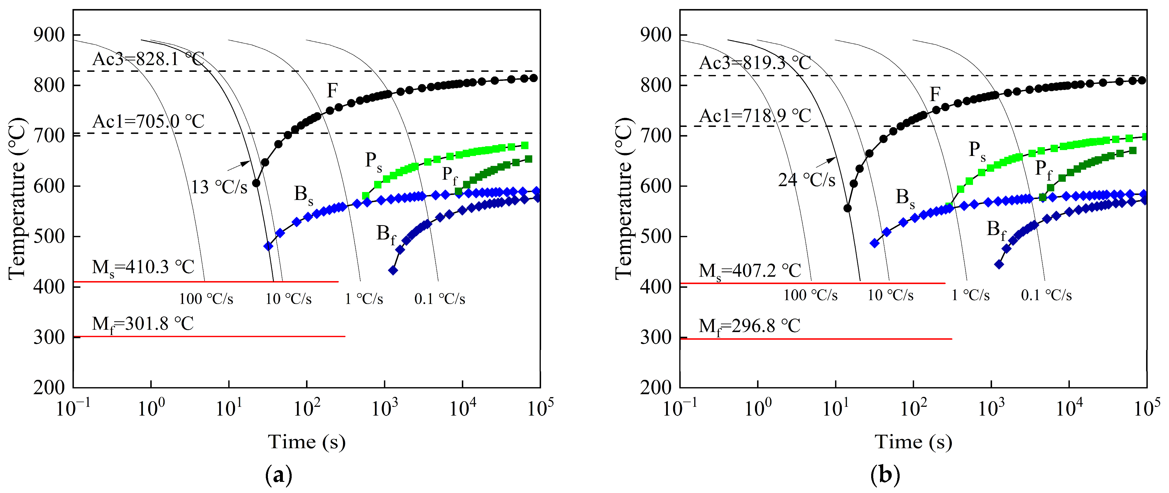
3.1. Phase Transition Temperature
3.2. CCT Curve and Phase Transition Laws
3.3. Microstructure Analysis
3.4. Mechanical Properties of Experimental Steel
3.5. Wear Performance
4. Analysis and Discussion
5. Conclusions
- (1)
- The transformation temperatures of the C-Mn-Mo steel and the C-Mn-Cr steel are close, with the Mo element exerting a greater promotion effect than the Cr element on the martensitic transformation rate. Among them, the Ac3 values are 828 °C and 819 °C, respectively, and the Ms values are 410 °C and 407 °C, respectively. The critical cooling rates for complete martensitic transformation are 13 °C/s and 24 °C/s, respectively.
- (2)
- The Mo element effectively inhibits the transformation of ferrite and pearlite, while the Cr element reduces the austenite transformation temperature and narrows the temperature range of austenite transformation. The Mo and Cr alloying elements can both effectively enhance the mechanical properties of experimental steel. The addition of the Mo element has a better effect on improving impact toughness and elongation at low temperatures, while the addition of the Cr element leads to more significant enhancements in strength and hardness.
- (3)
- With the increase in cooling rate, the martensitic structures of both the experimental steels gradually refined, and the lath characteristics gradually appear. The C-Mn-Mo steel exhibits a higher dislocation density, showing dislocation entanglement phenomenon, and contains a small amount of residual austenite, while in the C-Mn-Cr steel, the precipitation of granular ε-carbides is evident.
- (4)
- The C-Mn-Mo steel and the C-Mn-Cr steel achieve martensitic structures and optimal mechanical properties at cooling rates of 25 °C/s and 35 °C/s, respectively. Their tensile strengths reach 1295 MPa and 1310 MPa, respectively, with elongations of 12.5% and 11.3%. The impact toughness values at −40 °C are 34 J and 29 J, respectively, while the surface hardness values are 390 HB and 398 HB, respectively, with average hardness values along the thickness direction of 385 HB and 382 HB, respectively.
Author Contributions
Funding
Institutional Review Board Statement
Informed Consent Statement
Data Availability Statement
Conflicts of Interest
References
- Wang, G.; Zhao, H.; Zhang, Y.; Wang, J.; Zhao, G.; Ma, L. Friction and Wear Behavior of NM500 Wear-Resistant Steel in Different Environmental Media. Crystals 2023, 13, 770. [Google Scholar] [CrossRef]
- Wei, S.Z.; Xu, L.J. Review on research progress of steel and iron wear-resistant materials. Acta Metall. Sin. 2020, 56, 523–538. [Google Scholar]
- Jiang, S.N.; Zhang, S.S.; Lin, J.H.; Zhu, X.Y.; Li, S.S.; Sun, Y.; Xia, Y.H.; Liu, W.J.; Wang, C.F. Study on the microstructure and mechanical properties of martensitic wear-resistant steel. Crystals 2023, 13, 1210. [Google Scholar] [CrossRef]
- Pei, Z.; Song, R.; Ba, Q.; Feng, Y. Dimensionality wear analysis: Three-body impact abrasive wear behavior of a martensitic steel in comparison with Mn13Cr2. Wear 2018, 414–415, 341–351. [Google Scholar] [CrossRef]
- Saastamoinen, A.; Kaijalainen, A.; Heikkala, J.; Porter, D.; Suikkanen, P. The effect of tempering temperature on microstructure, mechanical properties and bendability of direct-quenched low-alloy strip steel. Mater. Sci. Eng. A 2018, 730, 284–294. [Google Scholar] [CrossRef]
- Valtonen, K.; Ojala, N.; Haiko, O.; Kuokkala, V.T. Comparison of various high-stress wear conditions and wear performance of martensitic steels. Wear 2019, 426–427, 3–13. [Google Scholar] [CrossRef]
- Trevisiol, C.; Jourani, A.; Bouvier, S. Effect of microstructures with the same chemical composition and similar hardness levels on tribological behavior of a low alloy steel. Tribol. Int. 2018, 127, 389–403. [Google Scholar] [CrossRef]
- Li, S.Y.; Yu, H.; Lu, Y.; Lu, J.; Wang, W.C.; Yang, S.F. Effects of titanium content on the impact wear properties of high-strength low-alloy steels. Wear 2021, 474–475, 203647. [Google Scholar] [CrossRef]
- Peng, S.G.; Song, R.B.; Sun, T.; Yang, F.Q.; Deng, P.; Wu, C.J. Surface failure behavior of 70Mn martensite steel under abrasive impact wear. Wear 2016, 362–363, 129–134. [Google Scholar] [CrossRef]
- Mondal, J.; Das, K.; Das, S. An investigation of mechanical property and sliding wear behaviour of 400Hv grade martensitic steels. Wear 2020, 458–459, 203436. [Google Scholar] [CrossRef]
- Chintha, A.R. Metallurgical aspects of steels designed to resist abrasion, and impact-abrasion wear. Mater. Sci. Technol. 2019, 35, 1133–1148. [Google Scholar] [CrossRef]
- Ojala, N.; Valtonen, K.; Heino, V.; Kallio, M.; Aaltonen, J.; Siitonen, P.; Kuokkala, V.-T. Effects of composition and microstructure on the abrasive wear performance of quenched wear resistant steels. Wear 2014, 317, 225–232. [Google Scholar] [CrossRef]
- Liu, W.; Zhao, H.-L.; Wang, B.-X.; Tian, Y. Impact of Mo/Ni alloying on microstructural modulation and low-temperature toughness of high-strength low-alloy steel. J. Iron Steel Res. Int. 2023, 1–7. [Google Scholar] [CrossRef]
- Rodriguez-Galeano, K.F.; Nutter, J.; Azakli, Y.; Slater, C.; Rainforth, W.M. Influence of Cr and Cr+Nb on the interphase precipitation and mechanical properties of V–Mo microalloyed steels. Mater. Sci. Eng. A 2024, 893, 146140. [Google Scholar] [CrossRef]
- Xue, H.; Peng, W.J.; Yu, L.; Ge, R.; Liu, D.; Zhang, W.Q.; Wang, Y. Effect of hardenability on microstructure and property of low alloy abrasion-resistant steel. Mater. Sci. Eng. A 2020, 793, 139901. [Google Scholar] [CrossRef]
- Chu, X.H.; Gao, P.F.; Chen, W.J.; Li, F.; Kang, T.; Zhao, Y.; Yin, X.D.; Zhao, Z.Z. Effect of Cr and isothermal holding temperature on microstructure and properties of complex phase steel with high formability (CH steel). J. Iron Steel Res. Int. 2023, 30, 328–337. [Google Scholar] [CrossRef]
- Tang, Y.; Li, B.; Shi, H.; Guo, Y.; Zhang, S.; Zhang, J.; Zhang, X.; Liu, R. Simultaneous improvement of corrosion and wear resistance of Fe–Mn–Al–C lightweight steels: The role of Cr/Mo. Mater. Charact. 2023, 205, 113274. [Google Scholar] [CrossRef]
- Park, S.G.; Kim, M.C.; Lee, B.S.; Wee, D.M. Correlation of the thermodynamic calculation and the experimental observation of Ni–Mo–Cr low alloy steel changing Ni, Mo, and Cr contents. J. Nucl. Mater. 2010, 407, 126–135. [Google Scholar] [CrossRef]
- Ayadi, S.; Hadji, A.; Hakan, K.; Selman, D. Microstructure and wear behavior of a Cr-Mo-Nb alloyed manganese steel. J. Mater. Res. Technol. 2020, 9, 11545–11562. [Google Scholar] [CrossRef]
- Schambron, T.; Chen, L.; Gooch, T.; Dehghan-Manshadi, A.; Pereloma, E.V. Effect of Mo concentration on dynamic recrystallization behavior of low carbon microalloyed steels. Steel Res. Int. 2013, 84, 1191–1195. [Google Scholar] [CrossRef]
- Wang, H.; Cao, L.; Li, Y.; Schneider, M.; Detemple, E.; Eggeler, G. Effect of cooling rate on the microstructure and mechanical properties of a low-carbon low-alloyed steel. J. Mater. Sci. 2021, 56, 11098–11113. [Google Scholar] [CrossRef]
- Zheng, Y.; Wang, F.; Li, C.; Lin, Y.; Cao, R. Effect of martensite structure and carbide precipitates on mechanical properties of Cr-Mo alloy steel with different cooling rate. High Temp. Mater. Process. 2018, 38, 113–124. [Google Scholar] [CrossRef]
- Ali, M.; Porter, D.; Kömi, J.; Eissa, M.; El Faramawy, H.; Mattar, T. Effect of cooling rate and composition on microstructure and mechanical properties of ultrahigh-strength steels. J. Iron Steel Res. Int. 2019, 26, 1350–1365. [Google Scholar] [CrossRef]
- Tian, Y.; Ju, J.; Fu, H.; Ma, S.; Lin, J.; Lei, Y. Effect of Chromium Content on Microstructure, Hardness, and Wear Resistance of As-Cast Fe-Cr-B Alloy. J. Mater. Eng. Perform. 2019, 28, 6428–6437. [Google Scholar] [CrossRef]
- Luo, K.; Bai, B. Microstructure, mechanical properties and high stress abrasive wear behavior of air-cooled MnCrB cast steels. Mater. Des. 2010, 31, 2510–2516. [Google Scholar] [CrossRef]
- Trzaska, J. Empirical formulas for calculating Continuous Cooling Transformation diagrams. J. Achiev. Mater. Manuf. Eng. 2019, 97, 21–30. [Google Scholar] [CrossRef]
- Trzaska, J. Calculation of critical temperatures by empirical formulae. Arch. Metall. Mater. 2016, 61, 981–986. [Google Scholar] [CrossRef]
- Kostryzhev, A.G.; Killmore, C.R.; Yu, D.; Pereloma, E.V. Martensitic wear resistant steels alloyed with titanium. Wear 2020, 446–447, 203203. [Google Scholar] [CrossRef]
- Calvo, J.; Jung, I.H.; Elwazri, A.M.; Bai, D.Q.; Yue, S. Influence of the chemical composition on transformation behaviour of low carbon microalloyed steels. Mater. Sci. Eng. A 2009, 520, 90–96. [Google Scholar] [CrossRef]
- Chen, J.; Tang, S.; Liu, Z.D.; Wang, G.D. Influence of molybdenum content on transformation behavior of high performance bridge steel during continuous cooling. Mater. Des. 2013, 49, 465–470. [Google Scholar] [CrossRef]
- Kešner, A.; Chotëborský, R.; Linda, M. The effect of microstructure on abrasive wear of steel. IOP Conf. Ser. Mater. Sci. Eng. 2017, 237, 012040. [Google Scholar] [CrossRef]
- Kleiner, L.M.; Larinin, D.M.; Spivak, L.V.; Shatsov, A.A. Phase and structural transformations in low-carbon martensitic steels. Phys. Met. Metallogr. 2009, 108, 153–160. [Google Scholar] [CrossRef]
- Tian, C.X.; Kirchlechner, C. The fracture toughness of martensite islands in dual-phase DP800 steel. J. Mater. Res. 2021, 36, 2495–2504. [Google Scholar] [CrossRef]
- Tkachev, E.; Borisov, S.; Belyakov, A.; Kniaziuk, T.; Vagina, O.; Gaidar, S.; Kaibyshev, R. Effect of quenching and tempering on structure and mechanical properties of a low-alloy 0.25C steel. Mater. Sci. Eng. A 2023, 868, 144757. [Google Scholar] [CrossRef]
- Wen, E.; Song, R.B.; Xiong, W.M. Effect of tempering temperature on microstructures and wear behavior of a 500 HB grade wear-resistant steel. Metals 2019, 9, 45. [Google Scholar] [CrossRef]
- Li, X.D.; Ma, X.P.; Subramanian, S.V.; Shang, C.; Misra, R.D.K. Influence of prior austenite grain size on martensite–austenite constituent and toughness in the heat affected zone of 700MPa high strength linepipe steel. Mater. Sci. Eng. A 2014, 616, 141–147. [Google Scholar] [CrossRef]
- Wang, C.F.; Wang, M.Q.; Shi, J.; Hui, W.J.; Dong, H. Effect of microstructural refinement on the toughness of low carbon martensitic steel. Scr. Mater. 2008, 58, 492–495. [Google Scholar] [CrossRef]
- Yao, Z.S.; Xu, G.; Jiang, Z.Y.; Tian, J.Y.; Yuan, Q.; Ma, H.W. Effects of Ni and Cr on cryogenic impact toughness of bainite/martensite multiphase steels. Met. Mater. Int. 2019, 25, 1151–1160. [Google Scholar] [CrossRef]
- Bracke, L.; Xu, W. Effect of the Cr content and coiling temperature on the properties of hot rolled high strength lower bainitic steel. ISIJ Int. 2015, 55, 2206–2211. [Google Scholar] [CrossRef]
- Li, C.R.; Deng, X.T.; Huang, L.; Jia, Y.; Wang, Z.D. Effect of temperature on microstructure, properties and sliding wear behavior of low alloy wear-resistant martensitic steel. Wear 2020, 442–443, 203125. [Google Scholar] [CrossRef]
- Schmiedl, T.; Gramlich, A.R.M.; Schönborn, S.; Melz, T. Behavior of forging steels under cyclic loading-the benefit of air-hardening martensites. Steel Res. Int. 2020, 91, 2000172. [Google Scholar] [CrossRef]
- Larzabal, G.; Isasti, N.; Rodriguez-Ibabe, J.M.; Uranga, P. Evaluating strengthening and impact toughness mechanisms for ferritic and bainitic microstructures in Nb, Nb-Mo and Ti-Mo microalloyed steels. Metals 2017, 7, 65–73. [Google Scholar] [CrossRef]












| Material | C | Si | Mn | P | S | Mo | Cr | Ti | Nb | B | Fe | 
|---|---|---|---|---|---|---|---|---|---|---|---|
| C-Mn-Mo steel | 0.172 | 0.36 | 1.36 | 0.015 | 0.002 | 0.20 | - | 0.016 | 0.022 | 0.0013 | Rest. | 
| C-Mn-Cr steel | 0.174 | 0.37 | 1.33 | 0.015 | 0.002 | - | 0.51 | 0.017 | 0.023 | 0.0012 | Rest. | 
| Material | Steel Plate Thickness, mm | Heating Temperature, °C | Rough Rolling Stage Temperature, °C | Intermediate Billet Thickness, mm | Finish Rolling Start Temperature, °C | Finishing Temperature, °C | Cooling Rate, (°C/s) | 
|---|---|---|---|---|---|---|---|
| C-Mn-Mo steel | 20.1 | 1080 | 1080–980 | 85.3 | 945 | 855 | 25 | 
| C-Mn-Cr steel | 20.0 | 1080 | 1080–980 | 84.5 | 949 | 853 | 25 | 
| Material | Empirical Formula to Calculate Ac3, °C | JMatPro Software to Calculate Ac3, °C | Experimental Test Ac3, °C | 
|---|---|---|---|
| C-Mn-Mo steel | 841 | 828 | 829 | 
| C-Mn-Cr steel | 839 | 819 | 820 | 
| Material | Cooling Rate, (°C/s) | Yield Strength, MPa | Tensile Strength, MPa | Elongation, % | −40 °C Impact Energy, J | Hardness, HB | 
|---|---|---|---|---|---|---|
| C-Mn-Mo steel | 20 | 1074 | 1269 | 12.8 | 33 | 375 | 
| 25 | 1100 | 1295 | 12.5 | 34 | 390 | |
| 30 | 1121 | 1324 | 12.1 | 31 | 399 | |
| C-Mn-Cr steel | 30 | 1075 | 1277 | 11.7 | 24 | 377 | 
| 35 | 1112 | 1310 | 11.3 | 29 | 398 | |
| 40 | 1150 | 1348 | 10.7 | 25 | 415 | 
| Material | Weight of Loss, mg | ||
|---|---|---|---|
| 100 N, 75 rpm/min | 150 N, 45 rpm/min | 200 N, 20 rpm/min | |
| C-Mn-Mo steel | 38.1 | 73.2 | 156.9 | 
| C-Mn-Cr steel | 30.8 | 79.5 | 177.6 | 
| Disclaimer/Publisher’s Note: The statements, opinions and data contained in all publications are solely those of the individual author(s) and contributor(s) and not of MDPI and/or the editor(s). MDPI and/or the editor(s) disclaim responsibility for any injury to people or property resulting from any ideas, methods, instructions or products referred to in the content. | 
© 2024 by the authors. Licensee MDPI, Basel, Switzerland. This article is an open access article distributed under the terms and conditions of the Creative Commons Attribution (CC BY) license (https://creativecommons.org/licenses/by/4.0/).
Share and Cite
Xia, T.; Ma, Y.; Zhang, Y.; Li, J.; Xu, H. Effect of Mo and Cr on the Microstructure and Properties of Low-Alloy Wear-Resistant Steels. Materials 2024, 17, 2408. https://doi.org/10.3390/ma17102408
Xia T, Ma Y, Zhang Y, Li J, Xu H. Effect of Mo and Cr on the Microstructure and Properties of Low-Alloy Wear-Resistant Steels. Materials. 2024; 17(10):2408. https://doi.org/10.3390/ma17102408
Chicago/Turabian StyleXia, Tian, Yuxi Ma, Yunshuang Zhang, Jialiang Li, and Hao Xu. 2024. "Effect of Mo and Cr on the Microstructure and Properties of Low-Alloy Wear-Resistant Steels" Materials 17, no. 10: 2408. https://doi.org/10.3390/ma17102408
APA StyleXia, T., Ma, Y., Zhang, Y., Li, J., & Xu, H. (2024). Effect of Mo and Cr on the Microstructure and Properties of Low-Alloy Wear-Resistant Steels. Materials, 17(10), 2408. https://doi.org/10.3390/ma17102408
 
        


 
       