Hydration Heat Control of Mass Concrete by Pipe Cooling Method and On-Site Monitoring-Based Influence Analysis of Temperature for a Steel Box Arch Bridge Construction
Abstract
1. Introduction
2. Project Overview
2.1. The Newly Built Dafeng River Bridge
2.2. Bridge Construction Based on Segmental Assembling Technique
2.3. Temperature Monitoring
3. Results and Discussion
3.1. Monitoring of Hydration Heat of Mass Concrete and Analysis of Early Temperature Control
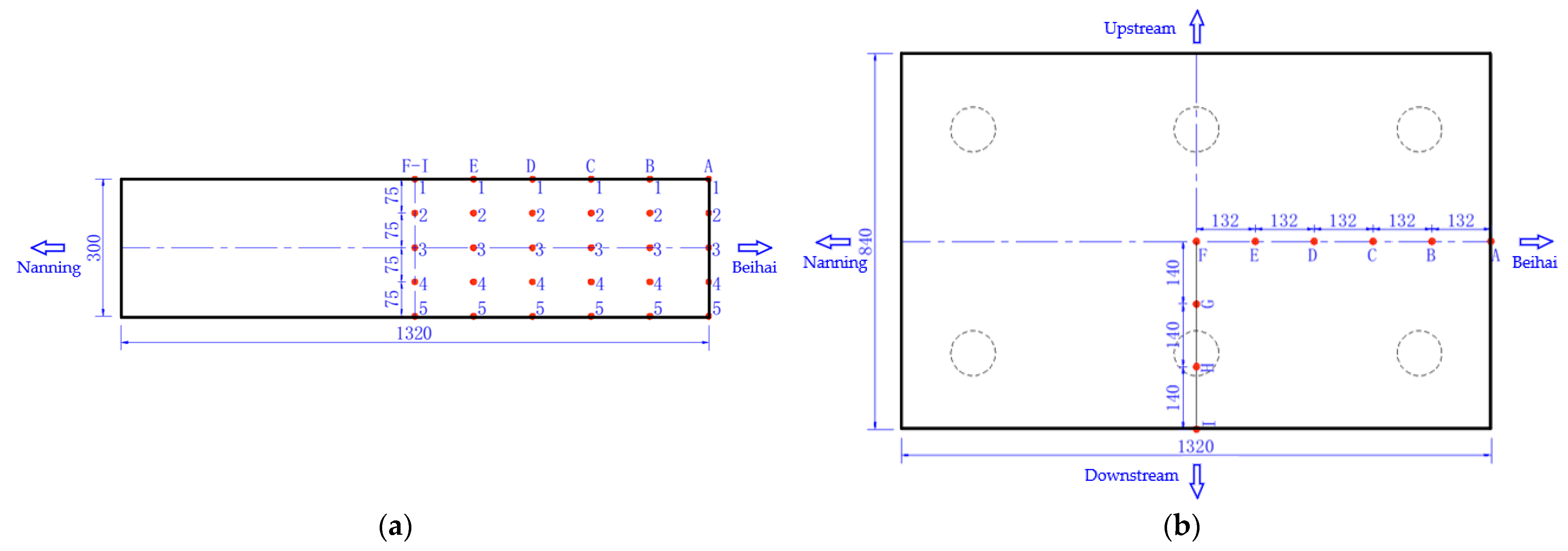
3.1.1. Hydration Heat of Mass Concrete in Cushion Cap
- (a)
- Arrangement of Temperature Monitoring Points and Cooling Pipe
- (b)
- Analysis of Hydration Heat and Cracking Based on Temperature Monitoring
3.1.2. Hydration Heat of Mass Concrete in Main Pier
- (c)
- Arrangement of Temperature Monitoring Points and Cooling Pipe
- (d)
- Analysis of Hydration Heat and Cracking Based on Temperature Monitoring
3.1.3. Hydration Heat of Mass Concrete in Arch Abutment
- (e)
- Arrangement of Temperature Monitoring Points and Cooling Pipe
- (f)
- Analysis of Hydration Heat and Cracking Based on Temperature Monitoring
3.2. Analysis of Influence Monitoring-Based Temperature Change on Bridge Deformation
3.2.1. Identification of Temperature Effect on Lattice Beam Deformation
3.2.2. Identification of Temperature Effect on Arch Rib Deformation
3.2.3. Determination of the Appropriate Closure Timing
4. Conclusions
- (1)
- The heat dissipation performance of concrete decreases with the increase in the thickness of a mass concrete structure. The temperature of the core area of the middle layer was the highest for the mass concrete structures, gradually decreasing to the outward surfaces. The average Tmax value of layer No. 3 was about 1.3, 1.2, and 1.1 times the average Tmax value of layer No. 1 for the mass concrete in the cushion cap, main pier and arch abutment, respectively.
- (2)
- The ambient temperature of concrete has a certain influence on its temperature field. The higher the molding temperature, the higher the maximum temperature value by the hydration heat effect. With each 5 °C increase in the Tmolding value, the Tmax value at the core area of layer No. 3 increased by about 4~5 °C for mass concrete. The pipe cooling method is conducive to the hydration heat control effect of mass concrete, and can effectively reduce the central temperature of concrete structures.
- (3)
- A temperature rise will cause the structure to have a certain camber in the longitudinal direction, and the longitudinal or transverse displacement value caused by the temperature change (temperature rise or drop) under the sunshine will be no less than the vertical displacement value. Due to the symmetrical construction on both sides of the river, the arch rib deformation on both sides will basically present symmetrically synchronous changes.
- (4)
- In view of the large structural temperature effect under the action of sunshine temperature change, the appropriate closure time of the arch rib is determined as 1:00~4:00 in the morning, during which the changing trends of arch back temperature and ambient temperature will be consistent, and the temperature difference is relatively small.
Author Contributions
Funding
Institutional Review Board Statement
Informed Consent Statement
Data Availability Statement
Conflicts of Interest
References
- Deng, N.C.; Yu, M.S.; Yao, X.Y. Intelligent Active Correction Technology and Application of Tower Displacement in Arch Bridge Cable Lifting Construction. Appl. Sci. 2021, 11, 9808. [Google Scholar] [CrossRef]
- Gao, H.Y.; Zhang, K.; Wu, X.Y.; Liu, H.J.; Zhang, L.Z. Application of BRB to Seismic Mitigation of Steel Truss Arch Bridge Subjected to Near-Fault Ground Motions. Buildings 2022, 12, 2147. [Google Scholar] [CrossRef]
- Anastasopoulos, D.; Maes, K.; De Roeck, G.; Lombaert, G.; Reynders, E.P.B. Influence of frost and local stiffness variations on the strain mode shapes of a steel arch bridge. Eng. Struct. 2022, 273, 115097. [Google Scholar] [CrossRef]
- Sun, J.P.; Li, J.B.; Jiang, Y.B.; Ma, X.G.; Tan, Z.H.; Zhufu, G.L. Key Construction Technology and Monitoring of Long-Span Steel Box Tied Arch Bridge. Int. J. Steel Struct. 2023, 23, 191–207. [Google Scholar] [CrossRef]
- Bobko, C.P.; Edwards, A.J.; Seracino, R.; Zia, P. Thermal Cracking of Mass Concrete Bridge Footings in Coastal Environments. J. Perform. Constr. Fac. 2015, 29, 04014171. [Google Scholar] [CrossRef]
- Gao, X.L.; Li, C.G.; Qiao, Y.H. Study on On-site Monitoring of Hydration Heat of Mass Concrete for Bridge Slab Based on Measured Data. Intell. Autom. Soft Comput. 2019, 25, 775–783. [Google Scholar] [CrossRef]
- Huang, Y.H.; Liu, G.X.; Huang, S.P.; Rao, R.; Hu, C.F. Experimental and finite element investigations on the temperature field of a massive bridge pier caused by the hydration heat of concrete. Constr. Build. Mater. 2018, 192, 240–252. [Google Scholar] [CrossRef]
- Hamid, H.; Chorzepa, M.G.; Sullivan, M.; Durham, S.; Kim, S.S. Novelties in Material Development for Massive Concrete Structures: Reduction in Heat of Hydration Observed in Ternary Replacement Mixtures. Infrastructures 2018, 3, 8. [Google Scholar] [CrossRef]
- Guo, C.; Lu, Z.R. Effect of temperature on CFST arch bridge ribs in harsh weather environments. Mech. Adv. Mater. Struc. 2022, 29, 732–747. [Google Scholar] [CrossRef]
- Lawrence, A.M.; Tia, M.; Ferraro, C.C.; Bergin, M. Effect of Early Age Strength on Cracking in Mass Concrete Containing Different Supplementary Cementitious Materials: Experimental and Finite-Element Investigation. J. Mater. Civ. Eng. 2012, 24, 362–372. [Google Scholar] [CrossRef]
- de Freitas, J.A.T.; Cuong, P.T.; Faria, R. Modeling of cement hydration in high performance concrete structures with hybrid finite elements. Int. J. Numer. Meth. Eng. 2015, 103, 364–390. [Google Scholar] [CrossRef]
- Honorio, T.; Bary, B.; Benboudjema, F. Factors affecting the thermo-chemo-mechanical behaviour of massive concrete structures at early-age. Mater. Struct. 2016, 49, 3055–3073. [Google Scholar] [CrossRef]
- Pepe, M.; Lima, C.; Martinelli, E. Early-Age Properties of Concrete Based on Numerical Hydration Modelling: A Parametric Analysis. Materials 2020, 13, 2112. [Google Scholar] [CrossRef]
- Cha, S.L.; Jin, S.S. Prediction of thermal stresses in mass concrete structures with experimental and analytical results. Constr. Build. Mater. 2020, 258, 120367. [Google Scholar] [CrossRef]
- Klemczak, B.; Zmij, A. Insight into Thermal Stress Distribution and Required Reinforcement Reducing Early-Age Cracking in Mass Foundation Slabs. Materials 2021, 14, 477. [Google Scholar] [CrossRef]
- Singh, P.R.; Rai, D.C. Effect of Piped Water Cooling on Thermal Stress in Mass Concrete at Early Ages. J. Eng. Mech. 2018, 144, 04017183. [Google Scholar] [CrossRef]
- Tasri, A.; Susilawati, A. Effect of material of post-cooling pipes on temperature and thermal stress in mass concrete. Structures 2019, 20, 204–212. [Google Scholar] [CrossRef]
- Tasri, A.; Susilawati, A. Effect of cooling water temperature and space between cooling pipes of post-cooling system on temperature and thermal stress in mass concrete. J. Build. Eng. 2019, 24, 100731. [Google Scholar] [CrossRef]
- Han, S.Y. Assessment of curing schemes for effectively controlling thermal behavior of mass concrete foundation at early ages. Constr. Build. Mater. 2020, 230, 117004. [Google Scholar] [CrossRef]
- Dong, F.; Li, X.L.; Xie, Q.M.; Ye, R.; Cao, S.C. The influence of weather and temperature on pedestrian walking characteristics on the zigzag bridge. Int. J. Biometeorol. 2022, 66, 2541–2552. [Google Scholar] [CrossRef]
- Fan, J.S.; Li, B.L.; Liu, C.; Liu, Y.F. An efficient model for simulation of temperature field of steel-concrete composite beam bridges. Structures 2022, 43, 1868–1880. [Google Scholar] [CrossRef]
- da Silva, S.; Figueiredo, E.; Moldovan, I. Damage Detection Approach for Bridges under Temperature Effects using Gaussian Process Regression Trained with Hybrid Data. J. Bridge Eng. 2022, 27, 04022107. [Google Scholar] [CrossRef]
- Xia, Y.; Chen, B.; Zhou, X.Q.; Xu, Y.L. Field monitoring and numerical analysis of Tsing Ma Suspension Bridge temperature behavior. Struct. Control Health Monit. 2013, 20, 560–575. [Google Scholar] [CrossRef]
- Xu, X.; Huang, Q.; Ren, Y.; Zhao, D.Y.; Yang, J.; Zhang, D.Y. Modeling and Separation of Thermal Effects from Cable-Stayed Bridge Response. J. Bridge Eng. 2019, 24, 04019028. [Google Scholar] [CrossRef]
- Wang, G.X.; Ding, Y.L.; Liu, X.W. The monitoring of temperature differences between steel truss members in long-span truss bridges compared with bridge design codes. Adv. Struct. Eng. 2019, 22, 1453–1466. [Google Scholar] [CrossRef]
- Lei, X.; Fan, X.T.; Jiang, H.W.; Zhu, K.N.; Zhan, H.Y. Temperature Field Boundary Conditions and Lateral Temperature Gradient Effect on a PC Box-Girder Bridge Based on Real-Time Solar Radiation and Spatial Temperature Monitoring. Sensors 2020, 20, 5261. [Google Scholar] [CrossRef]
- Fang, Z.Y.; Roy, K.; Liang, H.; Poologanathan, K.; Ghosh, K.; Mohamed, A.M.; Lim, J.B.P. Numerical Simulation and Design Recommendations for Web Crippling Strength of Cold-Formed Steel Channels with Web Holes under Interior-One-Flange Loading at Elevated Temperatures. Buildings 2021, 11, 666. [Google Scholar] [CrossRef]
- Fang, Z.; Roy, K.; Lakshmanan, D.; Pranomrum, P.; Li, F.; Lau, H.H.; Lim, J.B.P. Structural behaviour of back-to-back cold-formed steel channel sections with web openings under axial compression at elevated temperatures. J. Build. Eng. 2022, 54, 104512. [Google Scholar] [CrossRef]
- GB/T 51028-2015; Technical Code for Temperature Measurement and Controlof Mass Concrete. China Architecture Publishing & Media Co., Ltd.: Beijing, China, 2015.
















Disclaimer/Publisher’s Note: The statements, opinions and data contained in all publications are solely those of the individual author(s) and contributor(s) and not of MDPI and/or the editor(s). MDPI and/or the editor(s) disclaim responsibility for any injury to people or property resulting from any ideas, methods, instructions or products referred to in the content. |
© 2023 by the authors. Licensee MDPI, Basel, Switzerland. This article is an open access article distributed under the terms and conditions of the Creative Commons Attribution (CC BY) license (https://creativecommons.org/licenses/by/4.0/).
Share and Cite
Zhang, T.; Wang, H.; Luo, Y.; Yuan, Y.; Wang, W. Hydration Heat Control of Mass Concrete by Pipe Cooling Method and On-Site Monitoring-Based Influence Analysis of Temperature for a Steel Box Arch Bridge Construction. Materials 2023, 16, 2925. https://doi.org/10.3390/ma16072925
Zhang T, Wang H, Luo Y, Yuan Y, Wang W. Hydration Heat Control of Mass Concrete by Pipe Cooling Method and On-Site Monitoring-Based Influence Analysis of Temperature for a Steel Box Arch Bridge Construction. Materials. 2023; 16(7):2925. https://doi.org/10.3390/ma16072925
Chicago/Turabian StyleZhang, Tan, Hua Wang, Yuejing Luo, Ye Yuan, and Wensheng Wang. 2023. "Hydration Heat Control of Mass Concrete by Pipe Cooling Method and On-Site Monitoring-Based Influence Analysis of Temperature for a Steel Box Arch Bridge Construction" Materials 16, no. 7: 2925. https://doi.org/10.3390/ma16072925
APA StyleZhang, T., Wang, H., Luo, Y., Yuan, Y., & Wang, W. (2023). Hydration Heat Control of Mass Concrete by Pipe Cooling Method and On-Site Monitoring-Based Influence Analysis of Temperature for a Steel Box Arch Bridge Construction. Materials, 16(7), 2925. https://doi.org/10.3390/ma16072925

