Analysis of the Technical Condition of a Late 19th Century Public Building in Łódź
Abstract
:1. Introduction
2. Scope and Purpose of Research
3. Historical Analysis, Characteristics of the Structural Layout, and Technical Condition of the Building
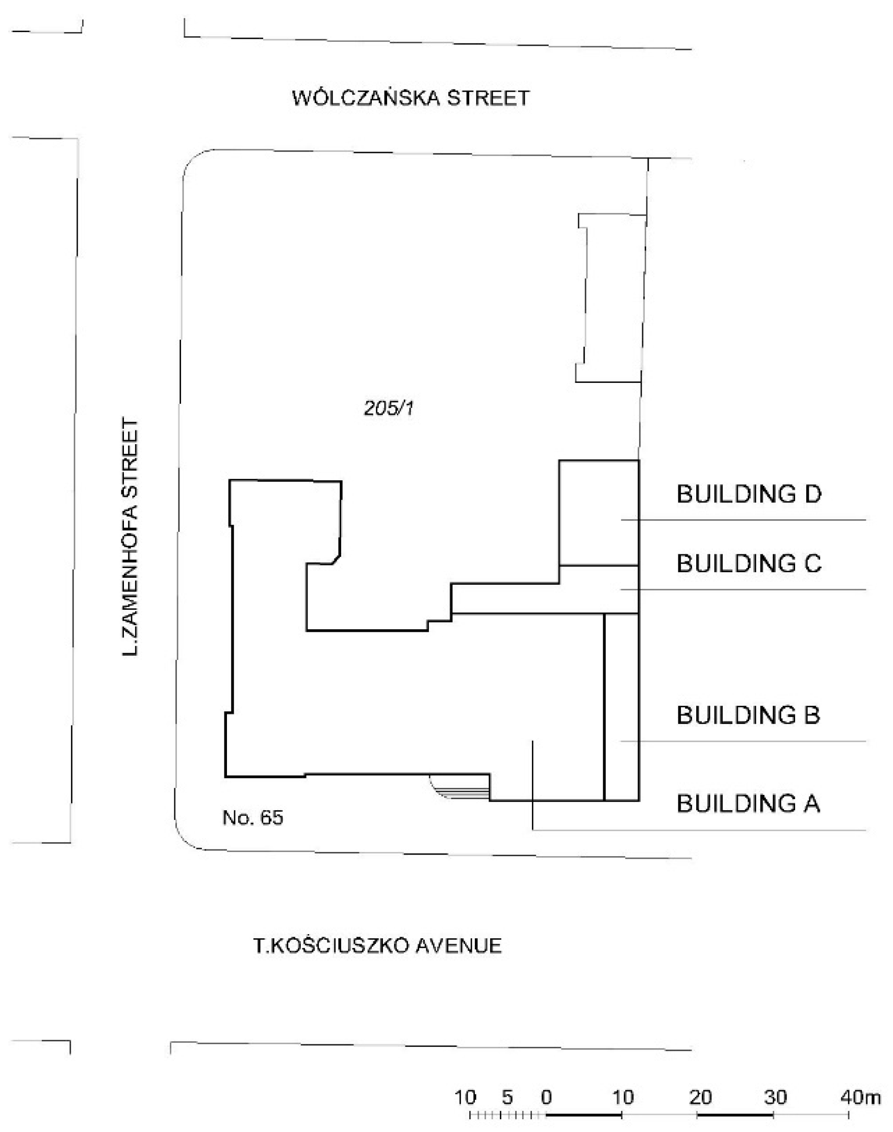
3.1. Historical Analysis
3.2. Characteristics of the Structural System
3.3. An Analysis of the Technical Condition of the Building
4. The Scope and Results of the Tests Performed on the Concrete from Floor Slabs
A Description of the Tests and the Methods
- —weight water absorption,
- —weight of the sample when saturated with water
- —dry mass of the sample
- —volumetric water absorption
- —mass of the sample saturated with water
- —weight of the sample dried to constant weight
- —volume of the sample
- —open porosity
- —mass of sample saturated with hot water after vacuuming,
- —weight of the sample dried to constant weight,
- —volume of the sample
5. Test Results
5.1. Tests of Physical and Mechanical Characteristics of Concrete
5.2. Assessment of the Corrosion Hazard
6. Summary and Conclusions
Author Contributions
Funding
Institutional Review Board Statement
Informed Consent Statement
Data Availability Statement
Conflicts of Interest
References
- Pereira, C.; Brito, J.; Silvestre, J.D.; Flores-Colen, I. Atlas of Defects within a Global Building Inspection System. Appl. Sci. 2020, 10, 5879. [Google Scholar] [CrossRef]
- Hoła, J.; Sadowski, Ł. Non-Destructive Testing in Civil Engineering. Appl. Sci. 2022, 12, 7187. [Google Scholar] [CrossRef]
- Hoła, A.; Sadowski, Ł. Verification of a Nondestructive Method for Assessing the Humidity of Saline Brick Walls in Historical Buildings. Appl. Sci. 2020, 10, 6926. [Google Scholar] [CrossRef]
- Hoła, B.; Hoła, A. The Latest Scientific Problems Related to the Implementation and Diagnostics of Construction Objects. Appl. Sci. 2021, 11, 6184. [Google Scholar] [CrossRef]
- Tworzewski, P.; Raczkiewicz, W.; Czapik, P.; Tworzewska, J. Diagnostics of Concrete and Steel in Elements of an Historic Reinforced Concrete Structure. Materials 2021, 14, 306. [Google Scholar] [CrossRef] [PubMed]
- Schabowicz, K. Testing of Materials and Elements in Civil Engineering. Materials 2021, 14, 3412. [Google Scholar] [CrossRef]
- Stępień, P.; Spychał, E.; Skowera, K. A Comparative Study on Hygric Properties and Compressive Strength of Ceramic Bricks. Materials 2022, 15, 7820. [Google Scholar] [CrossRef] [PubMed]
- PN-EN 13927:2009; Non-Destructive Testing. Visual Examination. Equipment Polish Committee for Standardization: Warsaw, Poland, 2009. (In Polish)
- PN-EN 13018:2016-04; Non-Destructive Testing. Visual Testing. General Principles. Polish Committee for Standardization: Warsaw, Poland, 2017. (In Polish)
- Piekarczyk, A. Location of the Defects of the Concrete Structure under Construction. In Proceedings of the XXIX Construction Designer Work Workshop, Szczyrk, Poland, 26–29 March 2014; pp. 1–83. [Google Scholar]
- Moczko, M.; Raszczuk, K. Analysis of the technical condition of historical concrete structure. J. Herit. Conserv. 2018, 54, 57–66. [Google Scholar]
- Jasieńko, J.; Bednarz, Ł.; Piechówka-Mielnik, M.; Łydżba, D.; Rajczakowska, M. Selected research on concrete of the Centennial Hall in Wroclaw (UNESCO site). J. Herit. Conserv. 2015, 18–32. [Google Scholar]
- Owsiak, Z.; Sobczyński, P. The microstructure and phase composition of mortars from the 17th century sacred buildings. Struct. Environ. 2020, 12, 153–158. [Google Scholar] [CrossRef]
- Owsiak, Z. Microscopic methods for analysis of mortars from historical masonry structures. Bull. Pol. Acad. Sci. 2021, 69, 1–8. [Google Scholar] [CrossRef]
- Available online: https://baedekerlodz.blogspot.com/search?q=NIEMIECKIE+GIMNAZJUM+REFORMOWANE (accessed on 20 February 2022).
- Available online: https://fotopolska.eu/679011,foto.html?s=1 (accessed on 28 December 2022).
- Available online: https://webcache.googleusercontent.com/search?q=cache:SijGRaWmZ8QJ:https://salodz.home.pl/upload/f/18/3/0/346_sa_opis_pw__po_zmianach_180329.pdf&cd=1&hl=pl&ct=clnk&gl=pl (accessed on 28 December 2022).
- Wyrwał, J. Movement of Moisture in Porous Materials and Building Partitions; Wydawnictwo Studia i Monografie b. 31; WSI: Opole, Poland, 1989. (In Polish) [Google Scholar]
- Bajorek, G.; Gruszczyński, M. Evaluation of concrete integrated into a structure in the event of doubts as to its quality. Build. Archit. 2020, 68–71. [Google Scholar]
- PN-EN 13791:2019-12; Assessment of In-Situ Compressive Strength in Structures and Precast Concrete Components. Polish Committee for Standardization: Warsaw, Poland, 2019. (In Polish)
- PN-EN 13791:2007; Assessment of In-Situ Compressive Strength in Structures and Precast Concrete Components. Committee for Standardization: Warsaw, Poland, 2007.
- PN-88/B-06250; Plain Concrete. Polish Committee for Standardization: Warsaw, Poland, 1988. (In Polish)
- PN-EN 1936:2010; Natural Stone Test Methods. Determination of Real Density and Apparent Density, and of Total and Open Porosity. Polish Committee for Standardization: Warsaw, Poland, 2010. (In Polish)
- PN-EN 14630:2007; Products and Systems for the Protection and Repair of Concrete Structures. Test Methods. Determination of Carbonation Depth in Hardened Concrete by the Phenolphthalein Method. Polish Committee for Standardization: Warsaw, Poland, 2007. (In Polish)
- CDD. PDF2 Release 2023; The International Centre for Diffraction Data (ICDD): Newtown Square, PA, USA, 2022.
- Wawrzeńczyk, J.; Molendowska, A.; Kłak, A. Results of concrete absorption test related to some particular factors. Build. Archit. 2013, 12, 239–246. [Google Scholar] [CrossRef]
- Glinicki, M.A. Absorption spectrum. Build. Archit. 2007, 3, 50–53. (In Polish) [Google Scholar]
- Kurdowski, W. The Chemistry of Cement and Concrete; Wydawnictwo Naukowe PWN: Warsaw, Poland, 2010. (In Polish) [Google Scholar]
- PN-EN 1992-1-1; Eurocode 2: Design of Concrete Structures. Polish Committee for Standardization: Warsaw, Poland, 1992.
- Karaś, S.; Miśkiewicz, R. Evaluation of concrete strength according to PN-EN 13791. Drogownictwo 2011, 2, 42–48. [Google Scholar]

















| No. Floor Slabs | Weight Absorbability [%] | Volumetric Absorption [%] | Open Porosity [%] | Bulk Density [kg/m3] |
|---|---|---|---|---|
| 1 | 3.06 | 7.43 | 11.49 | 2500 |
| 2 | 3.03 | 7.44 | 10.70 | 2528 |
| 3 | 3.26 | 8.00 | 12.04 | 2505 |
Disclaimer/Publisher’s Note: The statements, opinions and data contained in all publications are solely those of the individual author(s) and contributor(s) and not of MDPI and/or the editor(s). MDPI and/or the editor(s) disclaim responsibility for any injury to people or property resulting from any ideas, methods, instructions or products referred to in the content. |
© 2023 by the authors. Licensee MDPI, Basel, Switzerland. This article is an open access article distributed under the terms and conditions of the Creative Commons Attribution (CC BY) license (https://creativecommons.org/licenses/by/4.0/).
Share and Cite
Grzmil, W.; Zapała-Sławeta, J.; Juruś, J. Analysis of the Technical Condition of a Late 19th Century Public Building in Łódź. Materials 2023, 16, 1983. https://doi.org/10.3390/ma16051983
Grzmil W, Zapała-Sławeta J, Juruś J. Analysis of the Technical Condition of a Late 19th Century Public Building in Łódź. Materials. 2023; 16(5):1983. https://doi.org/10.3390/ma16051983
Chicago/Turabian StyleGrzmil, Wioletta, Justyna Zapała-Sławeta, and Jagoda Juruś. 2023. "Analysis of the Technical Condition of a Late 19th Century Public Building in Łódź" Materials 16, no. 5: 1983. https://doi.org/10.3390/ma16051983
APA StyleGrzmil, W., Zapała-Sławeta, J., & Juruś, J. (2023). Analysis of the Technical Condition of a Late 19th Century Public Building in Łódź. Materials, 16(5), 1983. https://doi.org/10.3390/ma16051983

