RC Structures Strengthened by an Iron-Based Shape Memory Alloy Embedded in a Shotcrete Layer—Nonlinear Finite Element Modeling
Abstract
1. Introduction
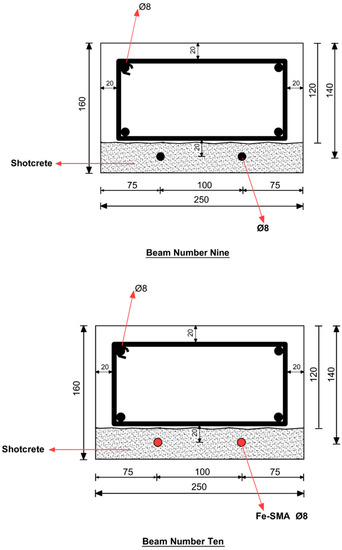
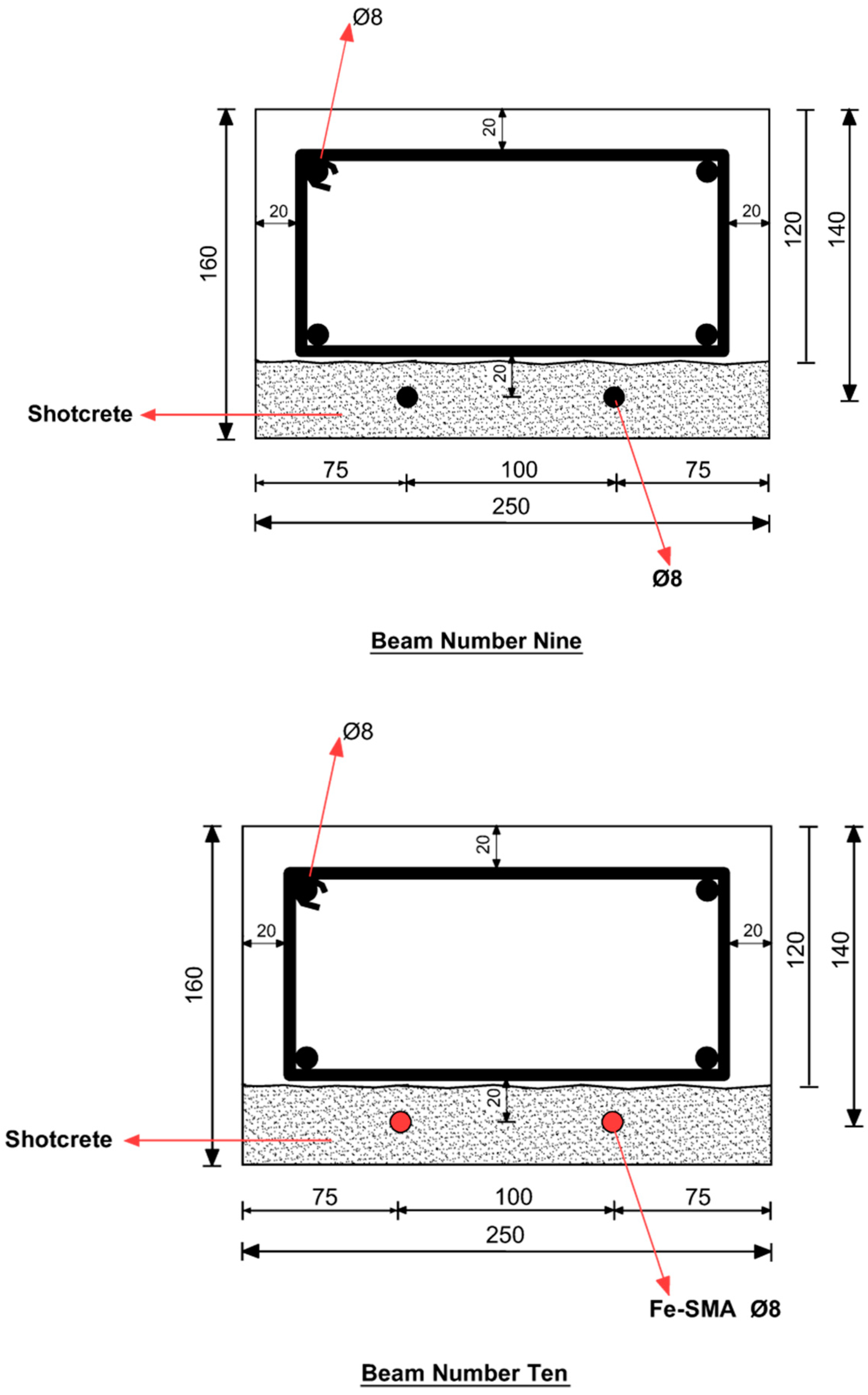
2. Experimental Program
3. Finite Element Simulation
3.1. Material Model for Concrete in ABAQUS
3.2. Modeling the Iron-Based Shape Memory Alloy in ABAQUS
3.3. Finite Element Model Implementation
4. Results and Discussion
4.1. Four-Point Bending Test on RC Beams Strengthened by Ribbed Fe-SMA Bars
4.1.1. Concrete Damaged Plasticity (CDP) Parameters
4.1.2. Load vs. Mid-Span Deflection Results
4.2. Parametric Studies
4.2.1. Effect of Fe-SMA Diameter
4.2.2. Effect of Pre-Stressing Force
4.2.3. Effect of Pre-Stressing Force Level
4.3. Case Study, Numerical Modeling of Bridge Girder Pre-Stressed by Fe-SMA Bars in a Shotcrete Layer
5. Conclusions
Author Contributions
Funding
Conflicts of Interest
References
- Janke, L. Applications of shape memory alloys in civil engineering structures—Overview, limits and new ideas. Mater. Struct. 2005, 38, 578–592. [Google Scholar] [CrossRef]
- Cladera, A.; Weber, B.; Leinenbach, C.; Czaderski, C.; Shahverdi, M.; Motavalli, M. Iron-based shape memory alloys for civil engineering structures: An overview. Constr. Build. Mater. 2014, 63, 281–293. [Google Scholar] [CrossRef]
- Schranz, B.; Czaderski, C.; Vogel, T.; Shahverdi, M. Bond behaviour of ribbed near-surface-mounted iron-based shape memory alloy bars with short bond lengths. Mater. Des. 2020, 191, 108647. [Google Scholar] [CrossRef]
- Schranz, B.; Czaderski, C.; Vogel, T.; Shahverdi, M. Bond investigations of prestressed, near-surface-mounted, ribbed memory-steel bars with full bond length. Mater. Des. 2020, 196, 109145. [Google Scholar] [CrossRef]
- Abouali, S.; Shahverdi, M.; Ghassemieh, M.; Motavalli, M. Nonlinear simulation of reinforced concrete beams retrofitted by near-surface mounted iron-based shape memory alloys. Eng. Struct. 2019, 187, 133–148. [Google Scholar] [CrossRef]
- Shahverdi, M.; Michels, J.; Czaderski, C.; Motavalli, M. Iron-based shape memory alloy strips for strengthening RC members: Material behavior and characterization. Constr. Build. Mater. 2018, 173, 586–599. [Google Scholar] [CrossRef]
- Michels, J.; Shahverdi, M.; Czaderski, C.; El-Hacha, R. Mechanical performance of iron-based shape-memory alloy ribbed bars for concrete prestressing. ACI Mater. J. 2018, 115, 877–886. [Google Scholar]
- Michels, J.; Shahverdi, M.; Czaderski, C. Flexural strengthening of structural concrete with iron-based shape memory alloy strips. Struct. Concr. 2018, 19, 876–891. [Google Scholar] [CrossRef]
- Czaderski, C.; Shahverdi, M.; Brönnimann, R.; Leinenbach, C.; Motavalli, M. Feasibility of iron-based shape memory alloy strips for prestressed strengthening of concrete structures. Constr. Build. Mater. 2014, 56, 94–105. [Google Scholar] [CrossRef]
- Ghafoori, E.; Neuenschwander, M.; Shahverdi, M.; Czaderski, C.; Fontana, M. Elevated temperature behavior of an iron-based shape memory alloy used for prestressed strengthening of civil structures. Constr. Build. Mater. 2019, 211, 437–452. [Google Scholar] [CrossRef]
- Yamauchi, K.; Ohkata, I.; Tsuchiya, K.; Miyazaki, S. Shape Memory and Superelastic Alloys: Technologies and Applications; Woodhead Publishing: Sawston, UK, 2011; pp. 1–208. [Google Scholar]
- Youssef, M.A.; Alam, M.S.; Nehdi, M. Experimental Investigation on the Seismic Behavior of Beam-Column Joints Reinforced with Superelastic Shape Memory Alloys. J. Earthq. Eng. 2008, 12, 1205–1222. [Google Scholar] [CrossRef]
- Shahverdi, M.; Czaderski, C.; Motavalli, M. Iron-based shape memory alloys for prestressed near-surface mounted strengthening of reinforced concrete beams. Constr. Build. Mater. 2016, 112, 28–38. [Google Scholar] [CrossRef]
- Shahverdi, M.; Czaderski, C.; Annen, P.; Motavalli, M. Strengthening of RC beams by iron-based shape memory alloy bars embedded in a shotcrete layer. Eng. Struct. 2016, 117, 263–273. [Google Scholar] [CrossRef]
- Ghassemieh, M.; Mostafazadeh, M.; Sadeh, M.S. Seismic control of concrete shear wall using shape memory alloys. J. Intell. Mater. Syst. Struct. 2012, 23, 535–543. [Google Scholar] [CrossRef]
- Ruiz-Pinilla, J.G.; Montoya-Coronado, L.A.; Ribas, C.; Cladera, A. Finite element modeling of RC beams externally strengthened with iron-based shape memory alloy (Fe-SMA) strips, including analytical stress-strain curves for Fe-SMA. Eng. Struct. 2020, 223, 111152. [Google Scholar] [CrossRef]
- Alam, M.; Youssef, M.; Nehdi, M. Analytical prediction of the seismic behaviour of superelastic shape memory alloy reinforced concrete elements. Eng. Struct. 2008, 30, 3399–3411. [Google Scholar] [CrossRef]
- Auricchio, F.; Taylor, R.L.; Lubliner, J. Shape-memory alloys: Macromodelling and numerical simulations of the superelastic behavior. Comput. Methods Appl. Mech. Eng. 1997, 146, 281–312. [Google Scholar] [CrossRef]
- Abdulridha, A.; Palermo, D.; Foo, S.; Vecchio, F.J. Behavior and modeling of superelastic shape memory alloy reinforced concrete beams. Eng. Struct. 2013, 49, 893–904. [Google Scholar] [CrossRef]
- Malagisi, S.; Marfia, S.; Sacco, E.; Toti, J. Modeling of smart concrete beams with shape memory alloy actuators. Eng. Struct. 2014, 75, 63–72. [Google Scholar] [CrossRef]
- Khalil, W.; Mikolajczak, A.; Bouby, C.; Ben Zineb, T. A constitutive model for Fe-based shape memory alloy considering martensitic transformation and plastic sliding coupling: Application to a finite element structural analysis. J. Intell. Mater. Syst. Struct. 2012, 23, 1143–1160. [Google Scholar] [CrossRef]
- Hibbitt, K.; Sorensen, I. ABAQUS/Standard User’s Manual; Dassault Systèmes Simulia Corp.: Providence, RI, USA, 2011. [Google Scholar]
- Rezazadeh, M.; Costa, I.; Barros, J.A.O. Influence of prestress level on NSM CFRP laminates for the flexural strengthening of RC beams. Compos. Struct. 2014, 116, 489–500. [Google Scholar] [CrossRef]
- Domingo, J.C.; Kuang-Han, C. Stress-Strain Relationship for Plain Concrete in Compression. ACI J. Proc. 1985, 82. [Google Scholar] [CrossRef]
- ACI. Building Code Requirements for Structural Concrete; ACI 318-08; ACI: Farmington Hills, MI, USA, 2008. [Google Scholar]
- Comité Euro-International Du Beton. CEB-FIP, Model Code 1990; Comité Euro-International Du Beton: Paris, France, 1991; pp. 87–109. [Google Scholar]
- Omran, H.Y.; El-Hacha, R. Nonlinear 3D finite element modeling of RC beams strengthened with prestressed NSM-CFRP strips. Constr. Build. Mater. 2012, 31, 74–85. [Google Scholar] [CrossRef]
- Hillerborg, A.; Modéer, M.; Petersson, P.-E. Analysis of crack formation and crack growth in concrete by means of fracture mechanics and finite elements. Cem. Concr. Res. 1976, 6, 773–781. [Google Scholar] [CrossRef]
- Gopalaratnam, V.S.; Shah, S.P. Softening Response of Plain Concrete in Direct Tension. ACI J. Proc. 1985, 82, 310–323. [Google Scholar] [CrossRef]
- Mercan, B.; Schultz, A.E.; Stolarski, H.K. Finite element modeling of prestressed concrete spandrel beams. Eng. Struct. 2010, 32, 2804–2813. [Google Scholar] [CrossRef]
- Szczecina, M.; Winnicki, A. Calibration of the CDP Model Parameters in Abaqus. In Proceedings of the 2015 World Congress on Advances in Structural Engineering and Mechanics (ASEM15), Incheon, Korea, 25–29 August 2015. [Google Scholar]
- Yapar, O.; Basu, P.; Nordendale, N. Accurate finite element modeling of pretensioned prestressed concrete beams. Eng. Struct. 2015, 101, 163–178. [Google Scholar] [CrossRef]
- Michels, J.; Staskiewicz, M.; Czaderski, C.; Kotynia, R.; Harmanci, Y.E.; Motavalli, M. Prestressed CFRP Strips for Concrete Bridge Girder Retrofitting: Application and Static Loading Test. J. Bridg. Eng. 2016, 21, 04016003. [Google Scholar] [CrossRef]

































| Fe-SMA Bar Diameter | Displacement Ductility Index |
|---|---|
| 6 mm | 6.6 |
| 8 mm | 4.9 |
| 10 mm | 4.4 |
| 12 mm | 3.6 |
| Parameter | Non-Activated Fe-SMA Bars | Activated Fe-SMA Bars |
|---|---|---|
| Cracking load (kN) | 5.6 | 9.2 |
| Load at 4 mm mid-span deflection (kN) | 7.5 | 11.3 |
| Bottom steel rebar yielding load (kN) | 10.7 | 16.3 |
| Ultimate load (kN) | 20.7 | 21.8 |
| Displacement ductility Index | 7.9 | 5 |
| Parameter | Value |
|---|---|
| Cubic compressive strength of concrete—girder (MPa) | 64.6 |
| Cubic compressive strength of concrete—slab (MPa) | 50.0 |
| Elastic modulus of concrete—girder (GPa) | 34.7 |
| Elastic modulus of concrete—slab (GPa) | 32.1 |
| Elastic modulus of steel rebar (GPa) | 200 |
| Elastic modulus of steel tendon (GPa) | 210.3 |
| Yield stress of steel rebar (MPa) | 462 |
| Yield stress of steel tendon (MPa) | 1660 |
| Tensile strength of steel rebar (MPa) | 545 |
| Tensile strength of steel tendon (MPa) | 1810 |
| Strain at failure of steel rebar (%) | 10.6 |
| Strain at failure of steel tendon (%) | 3.76 |
| Girder Name | Total Cross-Sectional Area of Fe-SMA Bars (mm2) |
|---|---|
| Reference | none |
| G1 | 235.6 |
| G2 | 339.3 |
| G3 | 461.8 |
| G4 | 615.8 |
| G5 | 804.2 |
Publisher’s Note: MDPI stays neutral with regard to jurisdictional claims in published maps and institutional affiliations. |
© 2020 by the authors. Licensee MDPI, Basel, Switzerland. This article is an open access article distributed under the terms and conditions of the Creative Commons Attribution (CC BY) license (http://creativecommons.org/licenses/by/4.0/).
Share and Cite
Dolatabadi, N.; Shahverdi, M.; Ghassemieh, M.; Motavalli, M. RC Structures Strengthened by an Iron-Based Shape Memory Alloy Embedded in a Shotcrete Layer—Nonlinear Finite Element Modeling. Materials 2020, 13, 5504. https://doi.org/10.3390/ma13235504
Dolatabadi N, Shahverdi M, Ghassemieh M, Motavalli M. RC Structures Strengthened by an Iron-Based Shape Memory Alloy Embedded in a Shotcrete Layer—Nonlinear Finite Element Modeling. Materials. 2020; 13(23):5504. https://doi.org/10.3390/ma13235504
Chicago/Turabian StyleDolatabadi, Neda, Moslem Shahverdi, Mehdi Ghassemieh, and Masoud Motavalli. 2020. "RC Structures Strengthened by an Iron-Based Shape Memory Alloy Embedded in a Shotcrete Layer—Nonlinear Finite Element Modeling" Materials 13, no. 23: 5504. https://doi.org/10.3390/ma13235504
APA StyleDolatabadi, N., Shahverdi, M., Ghassemieh, M., & Motavalli, M. (2020). RC Structures Strengthened by an Iron-Based Shape Memory Alloy Embedded in a Shotcrete Layer—Nonlinear Finite Element Modeling. Materials, 13(23), 5504. https://doi.org/10.3390/ma13235504

