Assessing the Effectiveness of Mycelium-Based Thermal Insulation in Reducing Domestic Cooling Footprint: A Simulation-Based Study
Abstract
1. Introduction
2. Literature Review
3. Material and Methods
3.1. Research Methodology
3.2. Building Modeling and Calibration
3.3. Site’s Climate
3.4. Building Characteristics
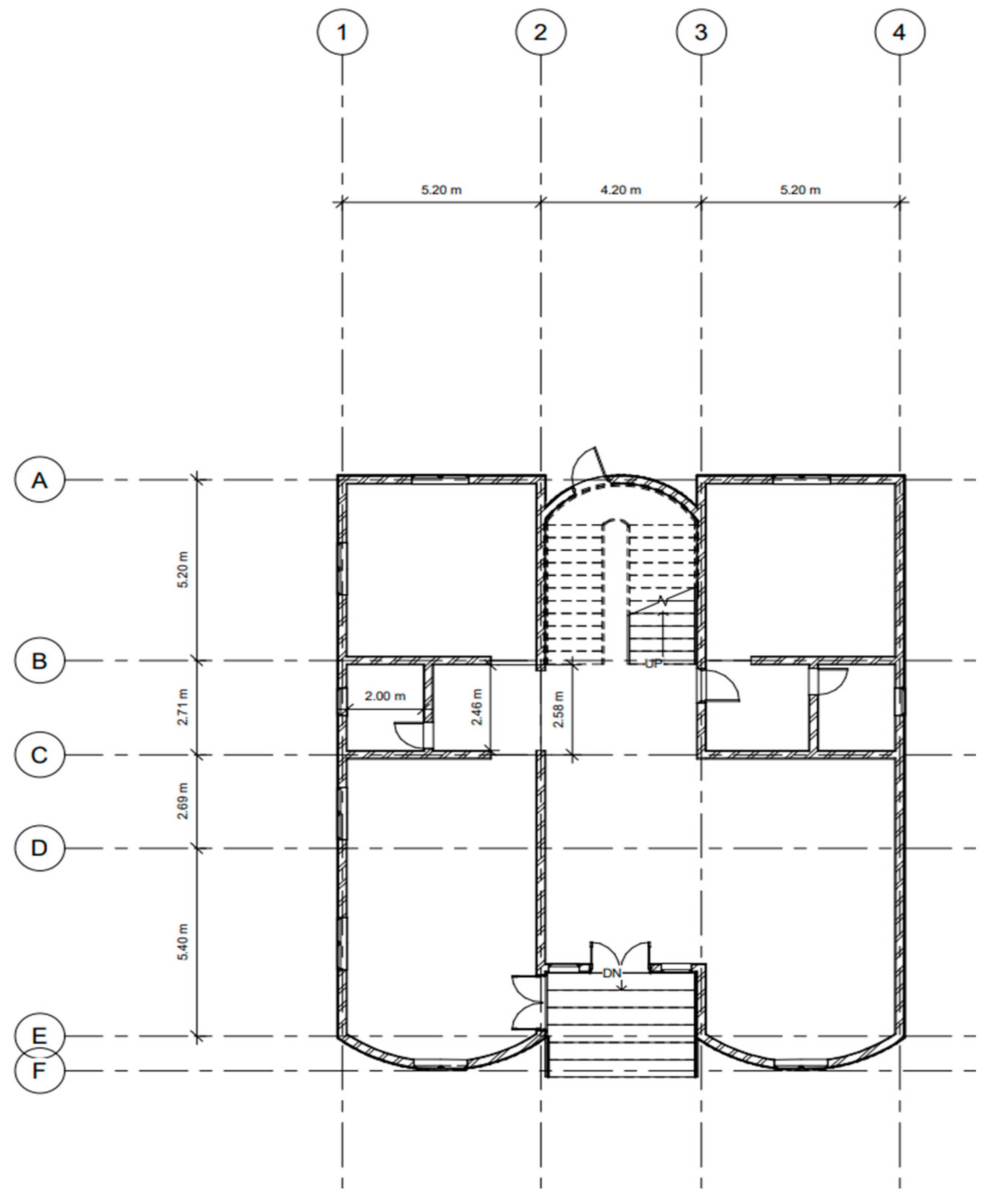
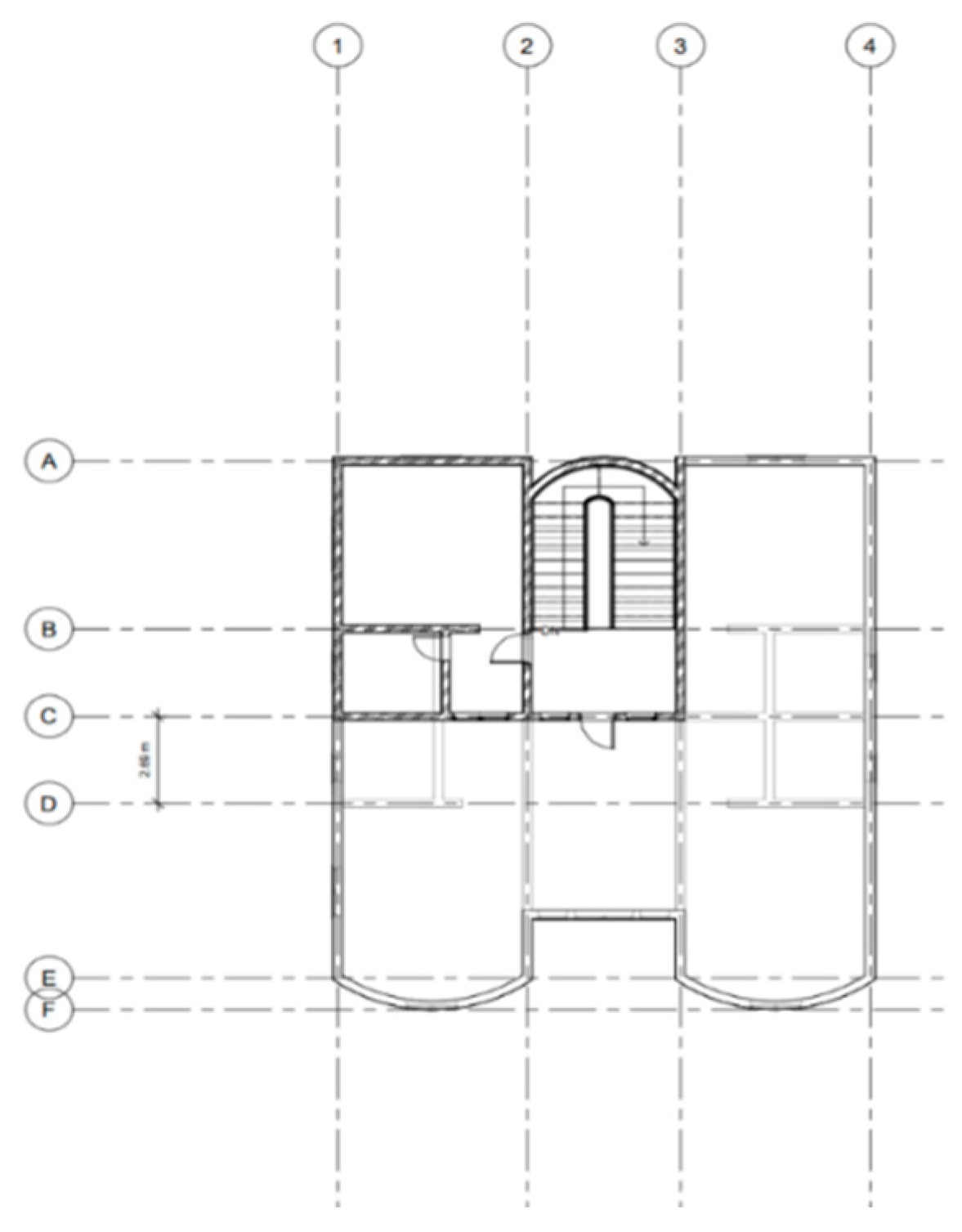
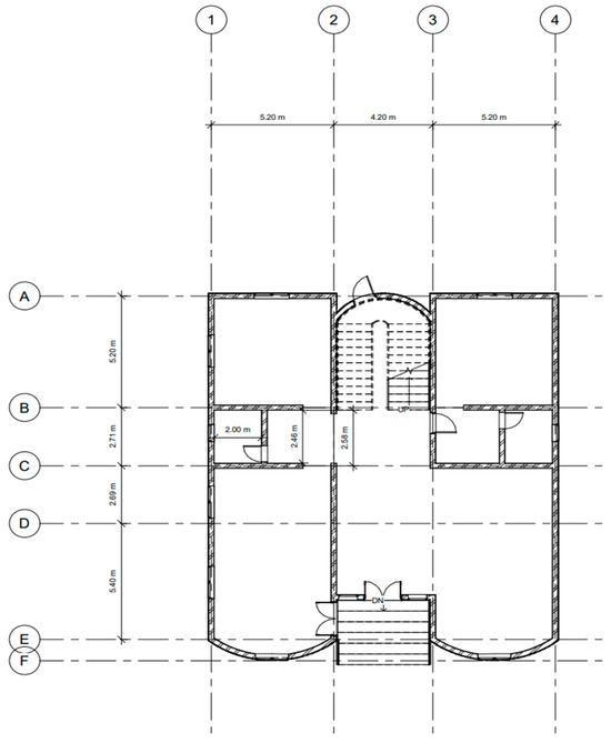
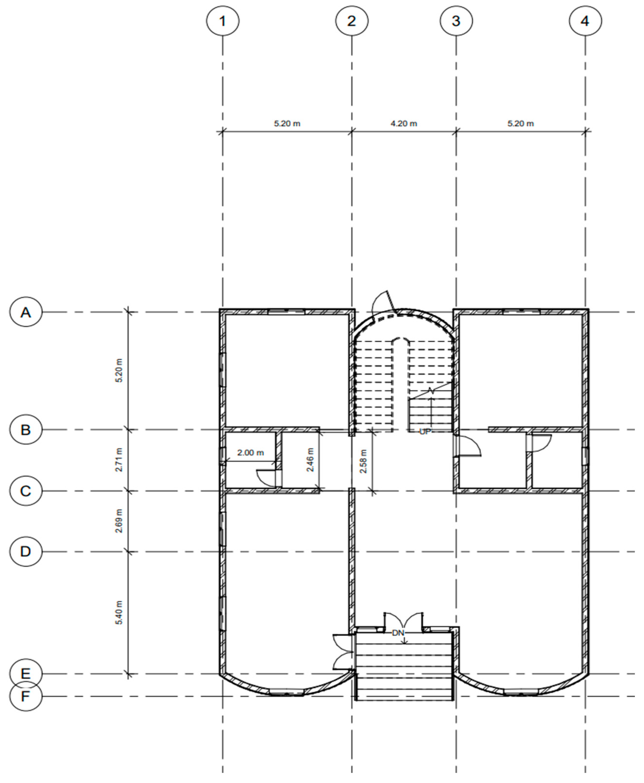
3.5. Case Study
3.6. Annual Thermal Energy Saving Calculations
- is the total annual thermal energy consumption savings due to thermal insulation in kWh.
- is the total number of Qatar housing units is 403,753 [46].
- is the baseline thermal energy consumption per house before the installation of thermal insulation.
- is the thermal energy consumption per house after the installation of thermal insulation.
4. Results and Discussion
4.1. Impact of Applying Thermal Insulation on CO2 Emission
4.2. Impact of Applying Thermal Insulation on Energy Consumption
4.3. Impact of Applying Thermal Insulation on Energy Savings
5. Conclusions
Author Contributions
Funding
Data Availability Statement
Conflicts of Interest
Abbreviations
| Abbreviation | Description |
| CFD | Computational Fluid Dynamics |
| HVAC | Heating, ventilation, and air conditioning |
| XPS | Extruded polystyrene |
| EPS | Expanded polystyrene |
| U-Value | Thermal transmittance |
| R-Value | Thermal resistance |
References
- Arumugam, P.; Ramalingam, V.; Vellaichamy, P. Optimal positioning of phase change material and insulation through numerical investigations to reduce cooling loads in office buildings. J. Energy Storage 2022, 52, 104946. [Google Scholar] [CrossRef]
- Isaifan, R.J.; Baranova, E.A. Catalytic electrooxidation of volatile organic compounds by oxygen-ion conducting ceramics in oxygen-free gas environment. Electrochem. Commun. 2013, 27, 164–167. [Google Scholar] [CrossRef]
- Isaifan, R.; Dole, H.; Obeid, E.; Lizarraga, L.; Baranova, E.A.; Vernoux, P. Catalytic CO Oxidation over Pt Nanoparticles Prepared from the Polyol Reduction Method Supported on Yttria-Stabilized Zirconia. ECS Trans. 2011, 35, 43–57. [Google Scholar] [CrossRef]
- Al-Qahtani, S.; Koç, M.; Isaifan, R.J. Mycelium-Based Thermal Insulation for Domestic Cooling Footprint Reduction: A Review. Sustainability 2023, 15, 13217. [Google Scholar] [CrossRef]
- International Energy Agency. Net Zero by 2050—A Roadmap for the Global Energy Sector. 2050. Available online: www.iea.org/t&c/ (accessed on 7 November 2023).
- Sustainable Buildings|UNEP—UN Environment Programme. Available online: https://www.unep.org/explore-topics/resource-efficiency/what-we-do/cities/sustainable-buildings (accessed on 11 November 2023).
- Qatar Statistics. Available online: https://www.psa.gov.qa/en/statistics1/Pages/default.aspx (accessed on 20 October 2023).
- Qatar General Electricity & Water Corporation ‘KAHRAMAA’. Annual Statistics Report 2022; Qatar General Electricity & Water Corporation ‘KAHRAMAA’: Doha, Qatar, 2022. [Google Scholar]
- Al-Tamimi, N. Building Envelope Retrofitting Strategies for Energy-Efficient Office Buildings in Saudi Arabia. Buildings 2022, 12, 1900. [Google Scholar] [CrossRef]
- Okokpujie, I.P.; Essien, V.; Ikumapayi, O.M.; Nnochiri, E.S.; Okokpujie, K.; Akinlabi, E.T. An Overview of Thermal Insulation Material for Sustainable Engineering Building Application. Int. J. Des. Nat. Ecodyn. 2022, 17, 831–841. [Google Scholar] [CrossRef]
- The Effect of Thermal Insulation on Building Energy Efficiency in Northern Upper Egypt. Available online: https://www.researchgate.net/publication/334971102_The_Effect_of_Thermal_Insulation_on_Building_Energy_Efficiency_in_Northern_Upper_Egypt (accessed on 8 November 2023).
- Mycelium—Definition and Functions|Structure and Reproduction. Available online: https://www.toppr.com/guides/biology/ecology/mycelium-definition-and-functions/ (accessed on 20 October 2023).
- Qatar National Vision 2030. 2008. Available online: https://www.gco.gov.qa/en/state-of-qatar/qatar-national-vision-2030/our-story/ (accessed on 7 November 2023).
- Al-Tamimi, N. Passive Design Strategies for Energy Efficient Buildings in the Arabian Desert. Front. Built Environ. 2022, 7, 805603. [Google Scholar] [CrossRef]
- Yarbrough, D.W. Thermal insulation for energy conservation. In Handbook of Climate Change Mitigation; Springer: Berlin/Heidelberg, Germany, 2012; Volume 2, pp. 649–668. [Google Scholar] [CrossRef]
- Building Envelope Thermal Insulation—Energy Efficiency | CTCN. Available online: https://www.ctc-n.org/technologies/building-envelope-thermal-insulation (accessed on 8 November 2023).
- Aktemur, C.; Atikol, U. Optimum Insulation Thickness for the Exterior Walls of Buildings in Turkey Based on Different Materials, Energy Sources and Climate Regions. Int. J. Eng. Technol.-IJET 2017, 3, 72–82. [Google Scholar] [CrossRef][Green Version]
- Paraschiv, S.; Paraschiv, L.S.; Serban, A. Increasing the energy efficiency of a building by thermal insulation to reduce the thermal load of the micro-combined cooling, heating and power system. Energy Rep. 2021, 7, 286–298. [Google Scholar] [CrossRef]
- Effect of Thermal Insulation on Energy Efficiency of the Building Envelope-Semi Dry Climates. Available online: https://www.researchgate.net/publication/322675843_Effect_of_thermal_insulation_on_energy_efficiency_of_the_building_envelope-semi_dry_climates (accessed on 8 November 2023).
- Alyami, M. The Impact of the Composition and Location of Thermal Insulation in the Building Envelope on Energy Consumption in Low-Rise Residential Buildings in Hot Climate Regions. Arab. J. Sci. Eng. 2023, 49, 5305–5351. [Google Scholar] [CrossRef]
- Kumar, D.; Alam, M.; Sanjayan, J.G. Retrofitting Building Envelope Using Phase Change Materials and Aerogel Render for Adaptation to Extreme Heatwave: A Multi-Objective Analysis Considering Heat Stress, Energy, Environment, and Cost. Sustainability 2021, 13, 10716. [Google Scholar] [CrossRef]
- He, Q.; Tapia, F.; Reith, A. Quantifying the influence of nature-based solutions on building cooling and heating energy demand: A climate specific review. Renew. Sustain. Energy Rev. 2023, 186, 113660. [Google Scholar] [CrossRef]
- Raimundo, A.M.; Sousa, A.M.; Oliveira, A.V.M. Assessment of Energy, Environmental and Economic Costs of Buildings’ Thermal Insulation–Influence of Type of Use and Climate. Buildings 2023, 13, 279. [Google Scholar] [CrossRef]
- Al-Sakkaf, A.; Mohammed Abdelkader, E.; Mahmoud, S.; Bagchi, A. Studying Energy Performance and Thermal Comfort Conditions in Heritage Buildings: A Case Study of Murabba Palace. Sustainability 2021, 13, 12250. [Google Scholar] [CrossRef]
- Lingard, J. Residential retrofit in the UK: The optimum retrofit measures necessary for effective heat pump use. Build. Serv. Eng. Res. Technol. 2021, 42, 279–292. [Google Scholar] [CrossRef]
- Mustafa, M.; Ali, S.; Snape, J.R.; Vand, B. Investigations towards lower cooling load in a typical residential building in Kurdistan (Iraq). Energy Rep. 2020, 6, 571–580. [Google Scholar] [CrossRef]
- Mousavi, S.N.; Gheibi, M.; Wacławek, S.; Behzadian, K. A novel smart framework for optimal design of green roofs in buildings conforming with energy conservation and thermal comfort. Energy Build. 2023, 291, 113111. [Google Scholar] [CrossRef]
- Thermal Performance of the Extensive GreenRoofs in Hot Dry Climate. Available online: https://www.researchgate.net/publication/336577895_Thermal_Performance_of_the_Extensive_GreenRoofs_in_Hot_Dry_Climate (accessed on 11 November 2023).
- Durakovic, B.; Yildiz, G.; Yahia, M.E. Comparative performance evaluation of conventional and renewable thermal insulation materials used in building envelops. Teh. Vjesn. 2020, 27, 283–289. [Google Scholar] [CrossRef]
- Glass Wool—Composition, Properties, Applications, Advantages and Disadvantages. Available online: https://expertcivil.com/glass-wool/ (accessed on 18 August 2023).
- Glass Wool | Properties, Price & Application | Material Properties. Available online: https://material-properties.org/glass-wool-properties-application-price/#google_vignette (accessed on 18 August 2023).
- Grazieschi, G.; Asdrubali, F.; Thomas, G. Embodied energy and carbon of building insulating materials: A critical review. Clean. Environ. Syst. 2021, 2, 100032. [Google Scholar] [CrossRef]
- Life Expectancy of Glass Wool Insulation—Knowledge—Beijing Fanryn Technology Ltd. Available online: https://www.fanryntech.com/info/life-expectancy-of-glass-wool-insulation-38641138.html (accessed on 18 August 2023).
- Glass Wool Moisture | Fiber Glass Insulation Moisture. Available online: https://www.moisttech.com/applications/textile-moisture-control/glass-wool-moisture/ (accessed on 18 August 2023).
- Thermal Conductivity Coefficient of Rock Wool. Available online: https://www.vilainsulgroup.com/thermal-conductivity-coefficient-of-rock-wool/?lang=en (accessed on 18 August 2023).
- Thermal Conductivity of Foam Glass. Available online: https://www.nuclear-power.com/nuclear-engineering/heat-transfer/heat-losses/insulation-materials/thermal-conductivity-of-foam-glass/ (accessed on 18 August 2023).
- Perlite: The Most Sustainable Insulation Solution for Buildings—Perlite Institute. Available online: https://www.perlite.org/perlite-the-most-sustainable-insulation-solution-for-buildings/ (accessed on 18 August 2023).
- Perlite Insulation. Available online: https://www.engineeringtoolbox.com/perlite-insulation-k-values-d_1173.html (accessed on 18 August 2023).
- Vermiculite Insulation | Cost, Uses, and Benefits Explained. Available online: https://www.buildingmaterials.co.uk/info-hub/insulation/vermiculite-insulation (accessed on 18 August 2023).
- What is Aerogel? | Aspen Aerogels. Available online: https://www.aerogel.com/about-aerogel/ (accessed on 9 May 2023).
- Hu, L.; He, R.; Lei, H.; Fang, D. Carbon Aerogel for Insulation Applications: A Review. Int. J. Thermophys. 2019, 40, 39. [Google Scholar] [CrossRef]
- Expanded Polystyrene—EPS—Thermal Insulation. Available online: https://www.nuclear-power.com/nuclear-engineering/heat-transfer/heat-losses/insulation-materials/expanded-polystyrene-eps/ (accessed on 19 August 2023).
- EPS vs. XPS for Below-Grade Applications. Available online: https://plastifab.wordpress.com/2019/08/13/the-great-debate-eps-vs-xps-for-below-grade-applications/ (accessed on 19 August 2023).
- Ossa, A.; Romo, M.P. Confining stress influence on EPS water absorption capability. Geotext. Geomembr. 2012, 35, 132–137. [Google Scholar] [CrossRef]
- Extruded Polystyrene—XPS—Thermal Insulation. Available online: https://www.nuclear-power.com/nuclear-engineering/heat-transfer/heat-losses/insulation-materials/extruded-polystyrene-xps/ (accessed on 19 August 2023).
- Polyurethane Insulation Panel. Available online: https://topolocfrt.com/polyurethane-insulation-panel/ (accessed on 2 June 2023).
- Pau, D.S.W.; Fleischmann, C.M.; Spearpoint, M.J.; Li, K.Y. Thermophysical properties of polyurethane foams and their melts. Fire Mater. 2014, 38, 433–450. [Google Scholar] [CrossRef]
- Reghunadhan, A.; Thomas, S. Polyurethanes: Structure, Properties, Synthesis, Characterization, and Applications. In Polyurethane Polymers: Blends and Interpenetrating Polymer Networks; Elsivier: Amsterdam, The Netherlands, 2017; pp. 1–16. [Google Scholar] [CrossRef]
- Thermal Insulation Materials Made of Rigid Polyurethane Foam (PUR/PIR). Available online: https://highperformanceinsulation.eu/wp-content/uploads/2016/08/Thermal_insulation_materials_made_of_rigid_polyurethane_foam.pdf (accessed on 27 August 2023).
- Elsacker, E.; Vandelook, S.; Damsin, B.; Van Wylick, A.; Peeters, E.; De Laet, L. Mechanical characteristics of bacterial cellulose-reinforced mycelium composite materials. Fungal Biol. Biotechnol. 2021, 8, 8. [Google Scholar] [CrossRef]
- Cellulose Insulation Moisture Content. Available online: https://srmi.biz/2016/04/15/cellulose-insulation-equilibrium-moisture-content-emc/ (accessed on 19 August 2023).
- What Is Thermal Conductivity of Cellulose Insulation—Definition. Available online: https://www.thermal-engineering.org/what-is-thermal-conductivity-of-cellulose-insulation-definition/ (accessed on 19 August 2023).
- Cork Insulation. Available online: https://thermalcorksolutions.com/cork-insulation-faqs/ (accessed on 2 June 2023).
- Cork Insulation: Applications, Properties, Advantages & Cost. Available online: https://www.insulation-info.co.uk/insulation-material/cork-insulation (accessed on 9 May 2023).
- Thermafleece British Sheeps Wool Insulation. Available online: https://thermafleece.com/ (accessed on 9 May 2023).
- Sheep’s Wool Insulation: Info, Applications and Prices. Available online: https://www.insulation-info.co.uk/insulation-material/sheep-wool (accessed on 19 August 2023).
- Things to Know About Sheep’s Wool Insulation. Available online: https://www.bobvila.com/articles/sheeps-wool-insulation/ (accessed on 9 May 2023).
- Romanovskiy, S.; Bakatovich, A. A Full-Scale Study of Flax Fiber-Based Thermal Insulating Slabs on the Attic Floor. In Sustainability and Automation in Smart Constructions; Advances in Science, Technology and Innovation; Springer: Cham, Switzerland, 2021; pp. 271–278. [Google Scholar] [CrossRef]
- Hemp Insulation. Available online: https://todayshomeowner.com/insulation/guides/hemp-insulation/ (accessed on 3 June 2023).
- Yang, Z.; Zhang, F.; Still, B.; White, M.; Amstislavski, P. Physical and Mechanical Properties of Fungal Mycelium-Based Biofoam. J. Mater. Civ. Eng. 2017, 29, 04017030. [Google Scholar] [CrossRef]
- Yang, L.; Park, D.; Qin, Z. Material Function of Mycelium-Based Bio-Composite: A Review. Front. Mater. 2021, 8, 737377. [Google Scholar] [CrossRef]
- DesignBuilder Software Ltd. Available online: https://designbuilder.co.uk/about-us (accessed on 3 October 2023).
- Jhumka, H.; Yang, E.; Gorse, C.; Wilkinson, S.; Yng, S.; He, B.-J.; Prasad, D.; Fiorito, F. Assessing heat transfer characteristics of building envelope deployed BIPV and resultant building energy consumption in a tropical climate. Energy Build. 2023, 298, 113540. [Google Scholar] [CrossRef]
- AlJalal, S.; Alshibani, A.; Al-Homoud, M.; Mazher, K. An integrated decision support framework for selecting envelope and AC systems in hot-humid climate. Build. Environ. 2023, 243, 110706. [Google Scholar] [CrossRef]
- Granados-López, D.; Gatt, D.; Yousif, C.; Díez-Mediavilla, M.; Alonso-Tristán, C. Exploitation of indoor illumination for typical flat dwellings in the Mediterranean area. Energy Rep. 2023, 9, 1473–1489. [Google Scholar] [CrossRef]
- Barone, G.; Vassiliades, C.; Elia, C.; Savvides, A.; Kalogirou, S. Design optimization of a solar system integrated double-skin façade for a clustered housing unit. Renew. Energy 2023, 215, 119023. [Google Scholar] [CrossRef]
- Roberts, F.; Yang, S.; Du, H.; Yang, R. Effect of semi-transparent a-Si PV glazing within double-skin façades on visual and energy performances under the UK climate condition. Renew. Energy 2023, 207, 601–610. [Google Scholar] [CrossRef]
- Qatar Latitude and Longitude Map. Available online: https://www.mapsofworld.com/lat_long/qatar-lat-long.html (accessed on 4 November 2023).
- Qatar: Country Data and Statistics. Available online: https://www.worlddata.info/asia/qatar/index.php (accessed on 4 November 2023).
- Doha Climate: Average Temperature. Available online: https://en.climate-data.org/asia/qatar/doha/doha-6368/ (accessed on 4 November 2023).
- Polyfoam Normal, General Purpose Polystyrene—Qatar Insulation Factory. Available online: https://qatar-insulation.com/products/polyfoam-normal/ (accessed on 10 November 2023).
- Khalid, H.; Thaheem, M.J.; Malik, M.S.A.; Musarat, M.A.; Alaloul, W.S. Reducing cooling load and lifecycle cost for residential buildings: A case of Lahore, Pakistan. Int. J. Life Cycle Assess. 2021, 26, 2355–2374. [Google Scholar] [CrossRef]
- Three Unlikely Materials Find Use in the Commercial Building Market. Available online: https://www.architectmagazine.com/technology/products/three-unlikely-materials-find-use-in-the-commercial-building-market_o (accessed on 10 November 2023).
- Greensulate—A Fungus-Based Insulation Material That’s Grown Rather Than Manufactured | BuildingGreen. Available online: https://www.buildinggreen.com/blog/greensulate---fungus-based-insulation-material-thats-grown-rather-manufactured (accessed on 10 November 2023).
- Sharma, R.; Sumbria, R. Mycelium bricks and composites for sustainable construction industry: A state-of-the-art review. Innov. Infrastruct. Solut. 2022, 7, 298. [Google Scholar] [CrossRef]
- Calculating Energy Savings|Climate and Energy Resources for State, Local, and Tribal Governments|US EPA. Available online: https://19january2017snapshot.epa.gov/statelocalclimate/calculating-energy-savings_.html (accessed on 31 October 2023).
- Qatar Census 2020 Detailed Results. Available online: https://www.psa.gov.qa/en/statistics1/StatisticsSite/Census/Census2020/results/pages/result.aspx?rpttitle=p6_143. (accessed on 3 October 2023).
- Akan, A.P.; Akan, A.E. Modeling of CO2 emissions via optimum insulation thickness of residential buildings. Clean Technol. Environ. Policy 2022, 24, 949–967. [Google Scholar] [CrossRef]
- Al-Tamimi, N. Cost Benefit Analysis of Applying Thermal Insulation Alternatives to Saudi Residential Buildings. JES. J. Eng. Sci. 2021, 49, 156–177. [Google Scholar] [CrossRef]
- Al-Tamimi, N. An optimum thermal insulation type and thickness for residential buildings in three different climatic regions of Saudi Arabia. Civ. Eng. Archit. 2021, 9, 317–327. [Google Scholar] [CrossRef]
- Zhang, X.; Hu, J.; Fan, X.; Yu, X. Naturally grown mycelium-composite as sustainable building insulation materials. J. Clean. Prod. 2022, 342, 130784. [Google Scholar] [CrossRef]







| Material | Specific Heat (kJ/kg · K) | Density kg m−3 | Thermal Conductivity W m−1 K−1 | Cost (EUR/m2) | Durability (years) | Water Absorption Rate (%) | Ref. |
|---|---|---|---|---|---|---|---|
| Glass Wool | 0.85 | 12–64 | 0.03–0.45 | 77.5–147 | 20–30 | 75 | [4,29,30,31,32,33,34] |
| Rock Wool | 0.7 | 20–64 | 0.03–0.040 | 102.08–179.5 | 30–50 | N/A | [4,35] |
| Foam Glass | N/A | N/A | 0.038–0.055 | 357.38–445.5 | 50–80 | N/A | [4,29,36] |
| Perlite | 0.9–1.0 | 30–400 | 0.040–0.055 | 207.89 | 50 | N/A | [4,37,38] |
| Vermiculite | 0.8–1.0 | 170 | 0.062–0.090 | 152.6 | N/A | N/A | [39] |
| Aerogel | 1.05 | 150–220 | 0.015–0.028 | 168.04 | 10 | 50 | [40,41] |
| EPS | 1.25 | 15–30 | 0.03–0.040 | 61.42–186.56 | 50 | 25 | [42,43,44] |
| XPS | 1.3–1.7 | 24–45 | 0.025–0.040 | 156–180 | 50 | N/A | [43,45] |
| Polyurethane | 1.3–1.45 | 31.5–35 | 0.021–0.040 | 303.78 | 30–50 | 30 | [46,47,48,49] |
| Cellulose | 1.3–2.0 | 30–80 | 0.035–0.042 | 175.71 | 20–30 | 60 | [50,51,52] |
| Cork | 1.5–1.7 | 80–115 | 0.035–0.050 | N/A | 50 | N/A | [53,54] |
| Sheep wool | 1.9–2.0 | 30 | 0.033–0.040 | 33.9 | 60–100 | 35 | [55,56,57] |
| Flax | 1.4–1.6 | 30–40 | 0.038–0.042 | 116.77 | N/A | 12.3 | [58] |
| Hemp | 1.6–1.7 | 38–41 | 0.039–0.06 | 108.1–138.93 | N/A | 20 | [59] |
| Mycelium | 7.4–10.2 | 51.098–1420 | 0.029–0.081 | 15.62–34.32 | 20 | 17.2–37.6 | [4,60,61] |
| Property | Mycelium | Conventional Materials | Comments |
|---|---|---|---|
| Specific Heat | x | Mycelium exhibits a superior specific heat capacity compared to traditional conventional materials. | |
| Density | x | Mycelium demonstrates a versatile range of densities, rendering it suitable for various applications. | |
| Thermal conductivities | x | x | Mycelium, along with other materials, exhibits comparable thermal conductivities. |
| Cost | x | Mycelium presents a considerably lower cost than most traditional conventional materials. | |
| Durability | x | On average, mycelium displays a lower level of durability than most conventional materials. | |
| Water absorption rate | x | x | Mycelium and conventional insulation materials exhibit acceptable water absorption properties. |
| Parameter | Value/Description |
|---|---|
| Number of Stories | 2 |
| Total Building Area | 499.69 m2 |
| Site Name | Doha |
| Latitude | 25.25° N |
| Longitude | 51.57° E |
| ASHRAE Climate Zone | 1A |
| Elevation | 28.0 m above sea level |
| Wind Exposure Level | 2 (categorized as “Normal”) |
| Height Variation | Ground (predominantly at ground level) |
| Time Zone | (GMT + 03:00) Doha |
| Heating Setpoint | 24 °C |
| Cooling Setpoint | 24 °C |
| Type of Glass | 13 mm Double Clear Glass |
| Property | Specifications |
|---|---|
| Thickness | 20 m |
| Density | 3 kg/m3 |
| R-Value | 0.89 (m2°K)/W |
| Thermal conductivity | 0.028 W/(m°K) 0.20 BTU |
| Compressive strength | 220 kPa |
| Water absorption by weight | ≤0.1% |
| Water vapor diffusion resistance factor | 150 μ |
| Water vapor resistivity | 750 MNs/gm |
| Water vapor permeability | 0.4 per |
| Maximum operating temperature | 70 °C |
| Reaction to fire | E Class B1 |
| Case. | Roof Layers | Wall Layers [41] |
|---|---|---|
| Case 1: Roof | 150 mm Concrete + 20 mm Polyfoam | 150 mm Concrete |
| Case 2: Roof + Mycelium | 150 mm Concrete + 150 mm Mycelium | |
| Case 3: Roof + Double-thick Concrete | 300 mm Concrete | |
| Case 4: Roof + Mycelium + Concrete + Mycelium | 150 mm Mycelium + 150 mm Concrete + 150 mm Mycelium | |
| Case 5: Roof + XPS | 150 mm Concrete + 100 mm XPS | |
| Case 6: Roof + EPS | 150 mm Concrete + 100 mm EPS | |
| Insulation Type | Polyfoam [40] | Mycelium [42,43,44] |
|---|---|---|
| Thermal Resistance | 0.89 m2 K/W | 4 m2 K/W |
| Thickness Applied | 20 mm | 150 mm |
| U-Value | 0.439 W/m2 K | 0.224 W/m2 K |
| Insulating Effect | Good | Very Good |
| Insulation Type | CO2 Production (kg/year) |
|---|---|
| Model 01: Roof Insulation Only | 38,311 |
| Model 02: Roof Insulation + Mycelium Wall Insulation | 27,252 |
| Model 03: Roof Insulation + Double-Thick Concrete Wall | 32,188 |
| Model 04: Roof Insulation + Mycelium Inner and Outer Surface | 25,621 |
| Model 05: Roof Insulation + XPS | 27,929 |
| Model 06: Roof Insulation + EPS | 46,454 |
Disclaimer/Publisher’s Note: The statements, opinions and data contained in all publications are solely those of the individual author(s) and contributor(s) and not of MDPI and/or the editor(s). MDPI and/or the editor(s) disclaim responsibility for any injury to people or property resulting from any ideas, methods, instructions or products referred to in the content. |
© 2025 by the authors. Licensee MDPI, Basel, Switzerland. This article is an open access article distributed under the terms and conditions of the Creative Commons Attribution (CC BY) license (https://creativecommons.org/licenses/by/4.0/).
Share and Cite
Al-Qahtani, S.; Koç, M.; Isaifan, R.J. Assessing the Effectiveness of Mycelium-Based Thermal Insulation in Reducing Domestic Cooling Footprint: A Simulation-Based Study. Energies 2025, 18, 980. https://doi.org/10.3390/en18040980
Al-Qahtani S, Koç M, Isaifan RJ. Assessing the Effectiveness of Mycelium-Based Thermal Insulation in Reducing Domestic Cooling Footprint: A Simulation-Based Study. Energies. 2025; 18(4):980. https://doi.org/10.3390/en18040980
Chicago/Turabian StyleAl-Qahtani, Shouq, Muammer Koç, and Rima J. Isaifan. 2025. "Assessing the Effectiveness of Mycelium-Based Thermal Insulation in Reducing Domestic Cooling Footprint: A Simulation-Based Study" Energies 18, no. 4: 980. https://doi.org/10.3390/en18040980
APA StyleAl-Qahtani, S., Koç, M., & Isaifan, R. J. (2025). Assessing the Effectiveness of Mycelium-Based Thermal Insulation in Reducing Domestic Cooling Footprint: A Simulation-Based Study. Energies, 18(4), 980. https://doi.org/10.3390/en18040980

