Next Article in Journal
Modelling, Simulation and Performance Analysis of Floating Photovoltaic Systems—A Systematic Review and Meta-Analysis
Previous Article in Journal
A Direct-Drive Rotary Actuator Based on Modular FSPM Topology for Large-Inertia Payload Transfer
 
 
Font Type:
Arial Georgia Verdana
Font Size:
Aa Aa Aa
Line Spacing:
Column Width:
Background:
Article

Heat Pipe Heating and Cooling Building Modules: Thermal Properties and Possibilities of Their Use in Polish Climatic Conditions

Department of Air Conditioning and Heating, Faculty of Environmental Engineering, Warsaw University of Technology, 00-653 Warszawa, Poland
*
Author to whom correspondence should be addressed.
Energies 2025, 18(19), 5274; https://doi.org/10.3390/en18195274 (registering DOI)
Submission received: 1 September 2025 / Revised: 19 September 2025 / Accepted: 30 September 2025 / Published: 4 October 2025

Abstract

The subject of this paper is an analysis of the use of wall heating and cooling modules with heat pipes for efficient space heating and cooling. The modules under consideration constitute a structural element installed in the room’s partition structure and consist of heat pipes embedded in a several-centimeter layer of concrete. Water-based central heating and chilled water systems were used as the heat and cooling source. The heat pipes are filled with a thermodynamic medium that changes state in repeated gas–liquid cycles. The advantage of this solution is the use of heat pipes as a heating and cooling element built into the wall, instead of a traditional water system. This solution offers many operational benefits, such as reduced costs for pumping the heat medium. This paper presents an analysis of the potential of using heat pipe modules for heating and cooling in real-world buildings in Poland. Taking into account the structural characteristics of the rooms under consideration (i.e., internal wall area, window area), an analysis was conducted to determine the potential use of the modules for space heating and cooling. The analysis was based on rooms where, according to the authors, the largest possible use of internal and external wall surfaces is possible, such as hotels and schools. Based on the simulations and calculations, it can be concluded that the modules can be effectively used in Poland as a real heating and cooling element: standalone, covering the entire heating and cooling demand of a room, e.g., a hotel room, or as a component working with an additional system, e.g., air cooling and heating in school buildings. The changes in outdoor air temperature, during the year analyzed in the article, were in the range of −24/+32 °C.

1. Introduction

Due to the continuous development of heating and cooling installation techniques, as well as new construction and architectural challenges, innovative installation solutions are sought that will maintain the thermal comfort of building occupants while minimizing the visibility of the installations. Furthermore, due to climate change, despite the lack of legal requirements, many investors are choosing to additionally equip buildings with cooling systems to increase occupant comfort and thus the building’s importance. Broadly understood surface heating and cooling technologies [1,2] fit very well into this trend. These solutions use the surfaces of horizontal and vertical building partitions as heating/cooling elements by placing a heating or cooling element in the structure of a given partition, e.g., an electric heating cable, central heating, or chilled water pipes [3,4]. This type of solution has a number of advantages, such as covering the thermal needs of a given space without visible installation elements [5], such as radiators, fan coil units, etc.; thermal storage; ensuring thermal comfort with lower installation parameters; and the possibility of cooperation with renewable energy sources. The main disadvantages of these solutions include limitations in the possibility of building partitions and relatively low energy efficiency, which in some cases requires additional supporting installations [6,7,8]. Another important aspect is the radiation asymmetry, which can lead to unfavorable thermal comfort sensations (PMV), mainly in the case of wall and ceiling cooling/heating [9,10,11].
In the case of surface heating/cooling, the most common is the water system, which uses water as a heat transfer medium through the even distribution of water installation pipes in the finishing layers of the building envelope, e.g., underfloor heating, or in ready-made plasterboards that can be used as a finishing element of walls or ceilings, as well as water systems placed directly in the building structure, i.e., ceilings/walls [3,4,12]. Unfortunately, the considerable lengths of water pipes distributing heat along the modules increase the consumption of external energy due to the increased pumping costs.
In recent years, a number of publications have been published [13,14,15,16,17] suggesting replacing the water medium in surface heating with another medium that does not require additional external energy for heat transfer. This solution involves the use of a heat pipe mechanism. A heat pipe is an enclosed space filled with a thermodynamic medium, which, thanks to phase changes, allows for heat transfer between its extreme points much more efficiently than by conduction. The structure of a classic heat pipe is divided into a heat uptake zone (due to liquid evaporation), adiabatic heat transfer, and heat release (during condensation) [18,19,20]. In the structure of a heat pipe used for heating and cooling, there is no adiabatic heat transfer zone. The heat release zone occurs immediately after the heat uptake zone. Various compounds are used as thermodynamic mediums, such as freons, nitrogen, ammonia, helium, alcohols, water, etc. [21,22,23]. Heat pipes, through the use of an appropriate thermodynamic medium, are characterized by high energy efficiency and allow for the transport of both heat and cold. These elements are widely used in the broader HVAC industry, e.g., in heat exchangers in air handling units and solar collectors [24,25,26], but there are scarce data regarding their use directly in space heating and cooling [27,28].
A particularly interesting solution is the combination of multiple functions in one structural element, i.e., the use of building modules that would perform a structural function, heating and cooling the rooms, and at the same time would be a finishing element ensuring the interior aesthetics of the rooms. These modules can be manufactured outside the construction site as prefabricated elements for direct assembly on the site. This further reduces the costs and shortens the construction time of the building, and also improves the aesthetics of the workmanship and energy efficiency of the product. This is an important advantage of such a solution.
This article aims to analyze the potential use of prefabricated heating and cooling modules in buildings for various purposes in Poland’s climatic conditions. Climatic conditions in Poland included a fairly wide range of outdoor air temperature variations. The lowest winter temperatures recommended in heating equipment design standards start at −24 °C, while the highest summer temperatures recommended in cooling equipment design standards reach 32 °C. This article presents the characteristics of the heating and cooling module, and simulation studies of the heating and cooling demand of various building types in Poland’s climatic conditions. Comparing the demand with the module output allowed us to determine the possible scope of their application and the limiting conditions.
For analysis, we selected the building module tested in the Air Conditioning and Heating Department of the Warsaw University of Technology, as part of the project No. RPMA.01.02.00-14-9558/17 “Innovative and ecological heating and cooling system with composite prefabricated wall elements”, supported by the Regional Operational Program of the Mazowieckie Voivodeship, and the research grant no. 2/ILGiT/2023 of the Warsaw University of Technology, supporting the scientific activity in the discipline of Civil Engineering, Geodesy, and Transport.

2. Description of the Analyzed Module

The heating and cooling module is a wall module with a thickness of 0.2 m—on the front side a 0.05 m thick reinforced concrete slab, inside 0.15m of polystyrene. The module is 2.7 m in height and 0.5 m in width. In front of reinforced concrete, a steel heat pipe filled with a phase-change thermodynamic medium is located vertically. Heat pipes are connected to the two feed water collectors (hot and cold), which are embedded horizontally in the front part—hot water at the bottom and chilled water at the top. Figure 1 shows a cross-section of the tested module, indicating the dimensions of the module and the location of the water collector and the heat pipe. The heat pipe embedded in the module is shaped approximately in the form of a sinusoid running between the collectors. The horizontal parts of the tube were arranged in the module at a distance of 10 cm from each other and 10 cm from the side edge. The horizontal parts of the heat pipe with a length of 4 × 10 cm are placed in the special design of the collector (Figure 1c). The heat pipes are made of stainless steel, with a smooth surface on the inside and outside. The heat pipes are filled with a thermodynamic medium, the composition of which is covered by a patent.
The main function of the tested building module is heating and cooling of the internal space—supplying the room with heat or cold as required to maintain thermal comfort (as a single source or as a supporting element of installation). Large heat exchange surfaces allow for the use of low-temperature heat sources. Module can be also used as an element which is filling the load-bearing structure of the building (as an external, internal partition) and for additional insulation, limiting heat loss from the room to the external environment (on the external side, the module has additional insulation—a 15 cm thick layer of polystyrene).
The possibility of performing different functions simultaneously is the main advantage of the analyzed module. It is achieved by placing two collectors in one module, which allows it to operate both in heating mode (after supplying the lower collector of the module with hot water) and in cooling mode (after supplying the upper collector of the module with cold water).
The research conducted within the project No. RPMA.01.02.00-14-9558/17 “Innovative and ecological heating and cooling system with composite prefabricated wall elements”, supported by the Regional Operational Program of the Mazowieckie Voivodeship, aimed to experimentally determine the thermal parameters of the module (its thermal and cooling power), as well as the value and range of changes in its control parameters as a control object (while maintaining thermal comfort in the room). In order to perform tests and measurements, a measuring station was built on which a wall module was mounted and connected to the heat and cooling source by means of a hydraulic installation. A detailed description of the research, the measuring devices used and their accuracy, and the methodology for obtaining the results, is provided in [13].
Based on the results of the conducted research, the following can be stated:
1.
Relatively low thermal efficiency of the module is observed, both in cooling and heating mode [13,29]. The most important factors that limit the power of the module in the tested design are as follows:
-
The high thermal resistance in the heat exchange process between the supply water from the heating/cooling system and the thermodynamic medium in the heat pipe;
-
The wrong proportion of the mixture used as the thermodynamic medium;
-
Improperly placed reinforcement in the reinforced concrete material of the module.
The current design can only be used in selected cases. This article examines the types of buildings and spaces in which the tested model can be used in its current form (structure). Ultimately, a change to the module’s design is required to improve its efficiency and expand its application area.
2.
Large changes in the module control parameters, including large values of time constants and a strong dependence of the gain coefficient on the direction of the change in the supply water temperature, require complex control algorithms. Standard control algorithms, or a cascade structure of the control system, may prove insufficient. It will be necessary to use predictive algorithms, with the prediction of the required thermal power of the module with a time horizon of at least 1–2 h. Of course, in this case, the simplest 2-state on–off control algorithm can also be used. However, such an algorithm is not used when maintaining thermal comfort in rooms due to the low quality of control.
A detailed description of the results of the research is provided in [13].

3. Simulation Studies

3.1. Selecting Objects for Simulation

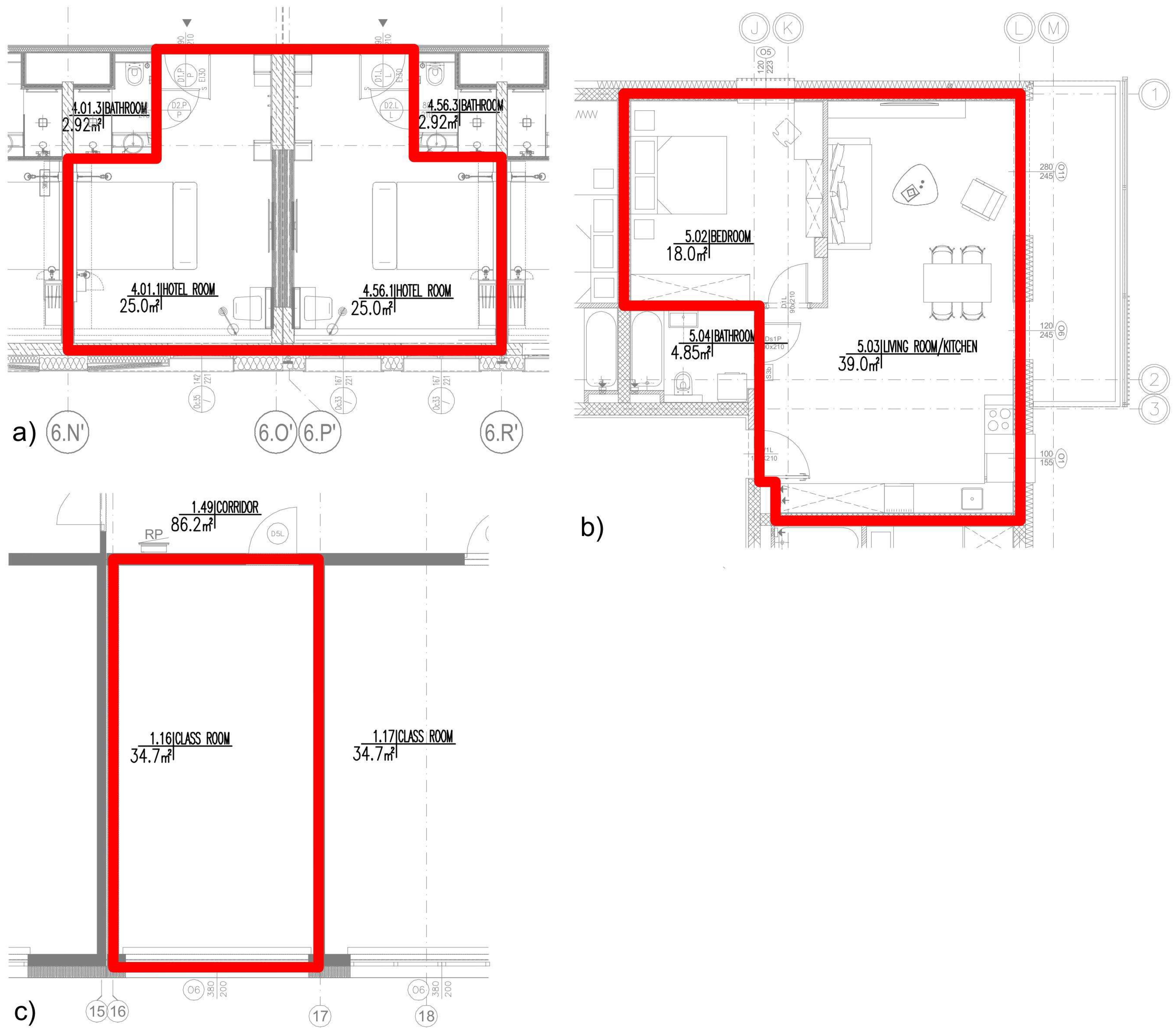
To determine the real potential of using the analyzed heat pipe modules for heating and cooling of buildings, a simulation of the annual heating and cooling demand was performed for typical rooms in buildings with various purposes. The maximum demand was then compared with the power of the modules that could be installed in these rooms. If the installed power of the modules exceeds the maximum demand (for both heating and cooling), it can be considered that the analyzed modules can be used. The selection of buildings for analysis was made based on the realistic possibilities of installing the panel systems and the magnitude of thermal loads. Given the general characteristics of surface heating and cooling systems, buildings characterized by high heat gains and losses, for example, resulting from extensive glazing of the external envelope, were excluded. An additional criterion was installation possibilities—that is, the maximum surface area of available external and internal walls for the panels. Therefore, the above-mentioned buildings were selected. Rooms from three groups of buildings with different purposes were selected for the analysis of the module usage possibilities:
  • Tooms in a hotel building—a two-person hotel room on a repeatable intermediate floor of a multi-story building; calculations were performed for a room with one and two external windows.
  • Apartments in a multi-family building—a two-person apartment on a repeatable intermediate floor of the building; calculations were performed for the living room with a kitchenette and a bedroom.
  • Classrooms in a school building—a classroom located on the ground floor of the building.
Figure 2 presents the floor plans of the analyzed rooms, and Table 1 presents the areas and thermal parameters of their partitions.

3.2. Calculations of Heating and Cooling Demand in the Analyzed Rooms

Calculations were performed for each of the above-mentioned building types, taking into account their specific use and finishing. The impact of the building’s location was also taken into account, meaning that for each room, calculations were performed in three variants based on meteorological data from weather stations in Zakopane, Warsaw, and Gdansk. Basic location information for these cities is included in Table 2.
For each location, heat gain calculations were simulated for four orientations (N, S, W, and E) of the main room walls. Heat gain calculations were performed using Hourly Analysis Program 6.2 [30]. Heat loss calculations were performed using Audytor OZC 7.0 [31]. The calculated internal temperature values in summer were assumed to be +24 °C and in winter +20 °C. The heat gain calculation results are presented in Table 3. The heat loss calculation results are presented in Table 4.

3.3. Tools (Programs) Used in the Simulation

Audytor OZC is a program that supports the calculation of a building’s design heat load, seasonal heating and cooling energy demand, and the calculation of energy certificates. Auditor OZC is used to support the calculation of the design heat load of buildings according to the [32] and seasonal energy consumption for heating and cooling according to the [33].
The Hourly Analysis Program (HAP) is manufactured by Carrier. HAP assists engineers in designing HVAC systems for commercial buildings. HAP is a tool for calculating peak loads and designing HVAC systems, as well as for modeling energy use and calculating energy costs. HAP uses the ASHRAE Heat Balance Method for load calculations and detailed hour-by-hour energy simulation techniques.
Detailed parameters and assumptions for calculations are included in Table 1.
Based on the analysis of the obtained results (Table 3), it can be concluded that in Polish conditions, location does not significantly affect the value of heat gains. The determining parameter is the orientation of the external partition relative to the cardinal directions. For this reason, only data for one city—Warsaw—were selected for further analysis. Furthermore, given the relatively small differences in heat gain values for the S, W, and E orientations (differences do not exceed 4%), only rooms with main walls facing south and north were considered for further analysis, as the highest and lowest values. For the variants selected for further analysis, heat gain indicator values per unit of room volume (W/m3) are additionally provided (in parentheses).
Based on the analysis of the heat loss results (Table 4), significant differences in heat demand are evident depending on the location. Therefore, all cities were included in the further analysis of the potential use of the modules under consideration for space heating.

3.4. Heating and Cooling Power That Can Be Achieved After Installing Heating and Cooling Modules in the Analyzed Rooms

The power that the installed modules can transfer to a room depends on their specific thermal output and the footprint, i.e., the area on which they can be installed. The specific thermal/cooling output of the modules was assumed based on publication [13] (for a wall module) and report [29] (for a ceiling module). The maximum cooling output at an initial temperature difference of 10 K for the wall module was 13 W/m2, and 22 W/m2 for the ceiling module. The maximum heating output of the wall module was 12 W/m2 at an initial temperature difference of 20 K (supplying a low-parameter refrigerant up to 40 °C) and 21 W/m2 at an initial temperature difference of 50 K (supplying a high-parameter refrigerant up to 70 °C). For each room, the available area of building partitions on which the modules could be installed and the possible cooling and heating outputs were determined. Taking into account assembly requirements and potential furniture installation, the following partition areas intended for modular installation were assumed for calculations:
  • For a hotel, approximately 70% of the wall area (usc = 0.70) and 80% of the ceiling area (usf = 0.80);
  • For an apartment, approximately 50% of the wall area (usc = 0.50) and 80% of the ceiling area (usf = 0.80);
  • For a school, approximately 60% of the wall area (usc = 0.60) and 80% of the ceiling area (usf = 0.80).
To summarize, the power of building modules that could be obtained in the analyzed rooms was determined from the following dependence:
Mch = usc × (Fe + Fi) × qchsc + usf × Fsf × qchsf
Mh = usc × (Fe + Fi) × qhsc
where qchsc = 13 W/m2 qchsf = 22 W/m2;
qhsc = 12 W/m2 or qhsc = 21 W/m2 for supplying low- or high-parameter medium.
The thermal power values of the modules were assumed based on measurements described in [12,28]:
-
qchsc = 13 W/m2, qchsf = 22 W/m2—cooling power of the wall module and the ceiling module obtained at an initial temperature difference of Δt0 = 10 K;
-
qhsc = 12 W/m2 or qhsc = 21 W/m2—thermal power of the wall module obtained at an initial temperature difference of Δt0 = 20 K and Δt0 = 50 K;
-
Δt0 = |ts − ti|—the initial temperature difference understood as the difference between the supply water temperature (ts) and the internal air temperature (ti) in cooling and heating mode (Δt0 = |ts − ti| [K]).
Table 5 presents the calculated partition areas used for the modules’ installation, as well as the maximum cooling and heating power values achievable from these modules for individual rooms. Considering the window configuration for the hotel room with two windows and the classroom, it was assumed that it was not possible to install the modules in the external partition.

4. Analysis of Results

The comparison of the cooling/heating demand of the analyzed rooms with the maximum power that can be obtained from the installed heating and cooling modules is presented in Table 6 (for cooling) and Table 7 (for heating).

4.1. Analysis of a Hotel Room

Analyzing the results obtained for a hotel room, it can be concluded that the decisive parameter for the use of modules is the number and size of windows in the room, as they determine the amount of heat gain and loss.
In the case of a room with a single external window, which constitutes 25% of the external walls area, the heating and cooling panels are able to meet the cooling and heating needs of the room with a safe surplus, regardless of orientation and location. With this surplus, the number and location of panels can even be optimized, for example, by maintaining only the ceiling cooling or reducing the number of wall panels.
In the case of a room with two windows, which, in the analyzed example, constitute approximately 50% of the external walls’ area, the panels are only able to meet the cooling needs of the room with a north-facing window. For other exposures and locations, the panels are unable to provide the required cooling and heating power. However, in such facilities, mechanical supply and exhaust ventilation is used, which, in winter, can supply air at a temperature higher than the room temperature, providing additional heating capacity. In the case of the analyzed double room, the supply air temperature would need to be increased by approximately 10 K above the room temperature. Due to the possible Coanda effect, the range of the supply air stream should be checked. Unfortunately, even using ventilation air at a temperature reduced by 10 K will not cover the maximum heat gains for the south façade. Therefore, additional simulations were performed to determine the limiting window area for which the panels would be able to cover the heat gains. Calculations showed that the limiting value is a window area of approximately 35% of the external wall area, at which the cooling capacity of the installed modules will be able to assimilate the heat gains for the hotel room, regardless of the window façade. Another solution to limit heat gain is the use of appropriate shading screens to reduce the inflow of low solar radiation (increasing the shading coefficient fC).

4.2. Analysis of a Multi-Family Residential Building

In the case of north-facing living spaces (and bedrooms), the panels are sufficient to meet the cooling needs of these rooms. For south-facing bedrooms, the panels are also sufficient to meet the cooling needs, but without excess heat. Therefore, the stated share of windows in the building envelope area (30%) should be assumed as the maximum. For all other exposures and locations of living spaces, the panels are unable to provide the required cooling and heating capacity. In these types of rooms, besides windows, the main source of heat gain is external infiltration air. In Poland, mechanical exhaust ventilation systems from kitchens and bathrooms are common for living spaces. This causes an inflow of external air into the remaining rooms of the apartment at an uncontrolled flow rate and uncontrolled infiltration air temperature, which typically increases heat gains in summer and heat losses in winter. The analysis of the impact of changing the window area on the thermal balance of the rooms did not yield any measurable results. To achieve thermal balance in this type of room, it is necessary to change the mechanical supply and exhaust ventilation system or use an additional (in addition to the modules) heating and cooling installation.

4.3. Analysis of a Classroom

For a classroom, regardless of its exposure or location, panels cannot provide the required cooling and heating capacity. In such facilities, the decisive parameter shaping heat gains is the number of occupants and the heat gains they generate. As with hotels, mechanical supply and exhaust ventilation should be installed in these facilities to maintain carbon dioxide concentrations below acceptable limits. This system, with the supply of warm or cold air, can balance the room’s thermal balance in both summer and winter. For heating, increasing the supply air temperature by a maximum of 5K above the required room temperature would be sufficient. For cooling, it can be assumed that for a 15-person classroom, the cooling capacity supplied by ventilation air is approximately 1206 W, which will balance cooling for a north-facing room. However, for a south-facing room, there will still be an approximately 20% deficit, which can be eliminated by increasing the ventilation airflow. However, it should be noted that the calculations for all analyzed rooms were made for maximum heat gain values throughout the year, while most school buildings are not used during the holiday months when maximum outside temperatures occur.

5. Summary and Conclusions

Based on the simulations and analysis carried out, it can be concluded that despite the low thermal power of the tested heating and cooling modules, they can be used for heating and cooling selected groups of buildings.
  • In hotel facilities, modules can constitute the primary heating and cooling system, supported by supply and exhaust ventilation. A critical parameter is the window area in the external partitions, which should not exceed 35%. The most important factors enabling the use of modules are the small degree of potential furniture enclosing the interior walls and the common use of air cooling in these types of facilities during the summer.
  • In multi-family residential buildings, panels alone cannot cover heat losses and gains. This is due to the high degree of furniture covering the interior walls and the widespread use of exhaust ventilation systems from kitchens and sanitary rooms, which leads to increased outside air infiltration. These buildings require the use of other heating and cooling systems, for which panels can serve as a support system.
  • In school buildings, panels alone do not cover heat losses and gains, but they can work as an effective system supporting cooling and heating with ventilation air. This is necessary to maintain CO2 concentrations within acceptable limits. It should also be noted that most school buildings are not used during the summer months, when maximum outdoor temperatures occur.
  • It should be emphasized that parallel research is being conducted to improve the energy efficiency of modules and increase their specific heating/cooling power. The most important factors in this regard include the following:
    • Increasing the efficiency of heat/cold transfer between the module’s supply water and the thermodynamic medium in the heat pipe;
    • Changing the proportions of the thermodynamic medium’s mixture;
    • Increasing the efficiency of heat transfer in the building module material.
It is expected that the results of this research will enable an increase in the unit heating and cooling power and thus extend the scope of application of heating and cooling modules to other segments of the construction industry.

Author Contributions

Writing—original draft, K.D.; Writing—review & editing, B.Z. All authors have read and agreed to the published version of the manuscript.

Funding

This paper was co-financed under the research grant of the Warsaw University of Technology supporting the scientific activity in the discipline of Civil Engineering, Geodesy, and Transport.

Data Availability Statement

The original contributions presented in this study are included in the article. Further inquiries can be directed to the corresponding author.

Conflicts of Interest

The authors declare no conflict of interest.

References

  1. Babiak, J.; Olesen, B.W.; Petras, D. Low Temperature Heating and High Temperature Cooling: Embedded Water Based Surface Heating and Cooling Systems; Rehva, Federation of European Heating and Air- Conditioning Associations: Brussels, Belgium, 2009. [Google Scholar]
  2. Pieńkowski, K.; Krawczyk, D.A.; Tumel, W. Heating; Scientific Papers No. 63; Białystok University of Technology: Białystok, Poland, 1999; Volume 1. [Google Scholar]
  3. PN-EN 1264-2+A1; Integrated Surface Water-Based Heating and Cooling Systems. All Parts. Slovenski Standard: Ljubljana, Slovenia, 2013.
  4. Hu, R.; Niu, J.L. A review of the application of radiant cooling and heating systems in Mainland China. Energy Build. 2012, 52, 11–19. [Google Scholar] [CrossRef]
  5. Ahmad, F.; Khan, A.; Cheema, T.A.; Mohib-Ur-Rehman, M.; Yildizhan, H. Hydrothermal Investigation of the Performance of Microchannel Heat Sink with Ribs Employed on Side Walls. J. Non-Equilib. Thermodyn. 2021, 46, 255–272. [Google Scholar] [CrossRef]
  6. Babiarz, B.; Szymański, W. Heating; Publishing House of the Rzeszów University of Technology: Rzeszow, Poland, 2024. [Google Scholar]
  7. Spik, Z.; Rosiński, M. Thermal Dynamic Properties of a Floor Heater. Doctoral Thesis, WUT Faculty of Environmental Engineering, Warsaw, Poland, 2009. [Google Scholar]
  8. Żukowski, M. Underfloor Heating; Publishing House of the Białystok University of Technology: Rzeszow, Poland, 2009. [Google Scholar]
  9. PN-EN ISO 7730:2006; Ergonomics of the Thermal Environment—Analytical Determination and Interpretation of Thermal Comfort Using Calculation of the PMV and PPD Indices and Local Thermal Comfort Criteria (ISO 7730:2005). Slovenski Standard: Ljubljana, Slovenia, 2013.
  10. Śliwowski, L. Asymmetric Radiation and Human Thermal Comfort in Rooms; Collective work (unpublished); series SPR nr 1-2/6/1985; Report of the Institute of Civil Engineering; Wrocław University of Science and Technology: Wrocław, Poland, 1985. [Google Scholar]
  11. Dudkiewicz, E.; Jeżowiecki, J. Thermal Comfort in View of Investigations Concerning Asymmetry of Radiant Temperature; Cieplownictwo, Ogrzewnictwo, Wentylacja: Warsaw, Poland, 2006. [Google Scholar]
  12. Muniak, D.P. Water Surface Heating—Wall and Ceiling Systems, Polish Installer 11-12. 2022. Available online: https://www.polskiinstalator.com.pl/artykuly/instalacje-grzewcze/3288-wodne-ogrzewanie-p%C5%82aszczyznowe-%E2%80%93-systemy-%C5%9Bcienne-i-sufitowe (accessed on 25 September 2025).
  13. Zawada, B.; Durczak, K.; Spik, Z. Control Parameters of a Wall Heating and Cooling Module with Heat Pipes—An Experimental Study. Energies 2025, 18, 487. [Google Scholar] [CrossRef]
  14. Amanowicz, Ł. Controlling the Thermal Power of a Wall Heating Panel with Heat Pipes by Changing the Mass Flowrate and Temperature of Supplying Water—Experimental Investigations. Energies 2020, 13, 6547. [Google Scholar] [CrossRef]
  15. Tan, R.; Zhang, Z. Heat pipe structure on heat transfer and energy saving performance of the wall implanted with heat pipes during the heating season. Appl. Therm. Eng. 2016, 102, 633–640. [Google Scholar] [CrossRef]
  16. Krajčík, M.; Šimko, M.; Šikula, O.; Szabó, D.; Petráš, D. Thermal performance of a radiant wall heating and cooling system with pipes attached to thermally insulating bricks. Energy Build. 2021, 246, 111122. [Google Scholar] [CrossRef]
  17. Zhang, Z.; Liu, Q.; Yao, W.; Zhang, W.; Cao, J.; He, H. Research on temperature distribution characteristics and energy saving potential of wall implanted with heat pipes in heating season. Renew. Energy 2022, 195, 1037–1049. [Google Scholar] [CrossRef]
  18. Reay, D.A.; Kew, P.A.; McGlen, R.J. Heat Pipes: Theory, Design and Applications, 6th ed.; Butterworth-Heinemann: Oxford, UK, 2014. [Google Scholar]
  19. Faghri, A. Review and Advances in Heat Pipe Science and Technology. J. Heat Transf. 2012, 134, 123001. [Google Scholar] [CrossRef]
  20. Zohuri, B. Heat Pipe Design and Technology: Modern Applications for Practical Thermal Management, 2nd ed.; Springer International Publishing: Cham, Switzerland, 2016. [Google Scholar]
  21. Cacua, K.; Buitrago-Sierra, R.; Herrera, B.; Pabón, E.; Murshed, S.M.S. Nanofluids’ stability effects on the thermal performance of heat pipes: A critical review. J. Therm. Anal. Calorim. 2019, 136, 1597–1614. [Google Scholar] [CrossRef]
  22. Gupta, N.K.; Tiwari, A.K.; Ghosh, S.K. Heat transfer mechanisms in heat pipes using nanofluids—A review. Exp. Therm. Fluid Sci. 2018, 90, 84–100. [Google Scholar] [CrossRef]
  23. Prado-Montes, P.; Mishkinis, D.; Kulakov, A.; Torres, A.; Pérez-Grande, I. Effects of non condensable gas in an ammonia loop heat pipe operating up to 125 °C. Appl. Therm. Eng. 2014, 66, 474–484. [Google Scholar] [CrossRef]
  24. Srimuang, W.; Amatachaya, P. A review of the applications of heat pipe heat exchangers for heat recovery. Renew. Sustain. Energy Rev. 2012, 16, 4303–4315. [Google Scholar] [CrossRef]
  25. Aghvami, M.; Faghri, A. Analysis of flat heat pipes with various heating and cooling configurations. Appl. Therm. Eng. 2011, 31, 2645–2655. [Google Scholar] [CrossRef]
  26. Werner, T.C.; Yan, Y.; Karayiannis, T.; Pickert, V.; Wrobel, R.; Law, R. Medium temperature heat pipes—Applications, challenges and future direction. Appl. Therm. Eng. 2024, 236, 121371. [Google Scholar] [CrossRef]
  27. Todorović, R.; Banjac, M.; Gojak, M. Theoretical and experimental study of heat transfer in wall heating panels. Energy Build. 2015, 98, 66–73. [Google Scholar] [CrossRef]
  28. Xu, S.; Ding, R.; Niu, J.; Ma, G. Investigation of air-source heat pump using heat pipes as heat radiator. Int. J. Refrig. 2018, 90, 91–98. [Google Scholar] [CrossRef]
  29. Zawada, B.; Durczak, K.; Sobieraj, M.; Ksionek, D.; Dzierzgowski, M. Report on the work carried out under task no. 2 “Construction of a station and measurements of the radiator’s step characteristics” within the project “Innovative and ecological heating and cooling system with composite prefabricated wall elements”, Warsaw. 2021. [Google Scholar]
  30. Carrier, Commercial Systems North America. Hourly Analysis Program 6.2. Available online: https://www.carrier.com/commercial/en/us/software/hvac-system-design/hourly-analysis-program/ (accessed on 1 June 2025).
  31. Audytor OZC, Sankom PL. Available online: https://pl.sankom.net (accessed on 1 June 2025).
  32. PN EN 12831-1:2017-08; Energy Performance of Buildings—Method for Calculation of the Design Heat Load—Part 1: Space Heating Load, Module M3-3. Polish Committee for Standardization: Warsaw, Poland, 2017.
  33. PN-EN ISO 52016-1:2017-09; Energy Performance of Buildings—Energy Needs for Heating and Cooling, Internal Temperatures and Sensible and Latent Head Loads—Part 1: Calculation Procedures. Polish Committee for Standardization: Warsaw, Poland, 2017.
Figure 1. The cross-section and details of the tested building module.
Figure 1. The cross-section and details of the tested building module.
Energies 18 05274 g001
Figure 2. Layout of (a) hotel rooms, (b) the apartment, (c) school rooms. The red line marks the rooms included in the calculations.
Figure 2. Layout of (a) hotel rooms, (b) the apartment, (c) school rooms. The red line marks the rooms included in the calculations.
Energies 18 05274 g002
Table 1. Technical parameters of the analyzed rooms: Fe—surface of the external partition; Fi—surface of the internal partition; Fs—surface of the ceiling/floor; V—room volume; Ufe—heat transfer coefficient of the external partition; Absorption—absorption of the inner surface of partitions; Fo—window area; Uok—heat transfer coefficient of the window; Tv—light transmission of window; gn—energy transmission of window.
Table 1. Technical parameters of the analyzed rooms: Fe—surface of the external partition; Fi—surface of the internal partition; Fs—surface of the ceiling/floor; V—room volume; Ufe—heat transfer coefficient of the external partition; Absorption—absorption of the inner surface of partitions; Fo—window area; Uok—heat transfer coefficient of the window; Tv—light transmission of window; gn—energy transmission of window.
ParameterUnitHotel Room with One WindowHotel Room with Two WindowsLiving Room with KitchenetteBedroomClassroom
Building partitions
Fem21082898
Fim24847383670
Fsm22525391835
Vm3686810524105
Fe/Fs%40.03271.850.022.9
Fi/Fs%192.0188.097.4200.0200.0
UfeW/(m2K)0.2
Absorption-Mean
Windows
Fom23.147.3811.352.687.6
Fo/Fs%12.629.529.114.921.7
Fo/Fe%31.492.240.529.895.0
UokW/(m2K)0.9
Tv-0.62
gn-0.36
Shading blinds-internal shading blinds, transparent
Type of ventilation-Mechanical supply and exhaustMechanical exhaustMechanical supply and exhaust
Table 2. Summary of external climate data: DB (dry bulb)—the temperature of air without taking into account evaporation/relative humidity in summer or winter; WB (wet bulb)—the temperature of the air with the evaporative effect of a “Wet Bulb” taken into account in summer.
Table 2. Summary of external climate data: DB (dry bulb)—the temperature of air without taking into account evaporation/relative humidity in summer or winter; WB (wet bulb)—the temperature of the air with the evaporative effect of a “Wet Bulb” taken into account in summer.
LocationPoland
Station NameGdansk PortWarsaw OkecieZakopane
Summer DB [°C]26.029.926.2
Summer WB [°C]19.520.317.6
Winter DB [°C]−16.0−20.0−24.0
Elevation [m]7.0110.3857.1
Latitude54.40 N52.17 N49.30 N
Longitude18.70 E20.97 E19.97 E
Day maximum solar fluxes for horizontal orientation [W/m2]842.9864.5891.2
Table 3. Summary of the results of heat gain calculations in the analyzed rooms (Qc).
Table 3. Summary of the results of heat gain calculations in the analyzed rooms (Qc).
LocationExposureTotal Heat Gains, QC [W, (W/m3)]
Hotel Room with One WindowHotel Room with Two WindowsLiving Room with KitchenetteBedroomClassroom
GdanskS699134116516073053
W693131016185963058
E681128915785832906
N3204817183012292
WarsawS696 (10.31)1327 (19.66)1636 (15.54)603 (24.81)3049 (29.04)
W689130216105933050
E670126415525742868
N316 (4.68)470 (6.96)709 (6.73)300 (12.35)2287 (21.78)
ZakopaneS689136015925813010
W670127915745803036
E652124415195602829
N2964346552802231
Table 4. Summary of heat loss calculation results for the analyzed rooms (QH).
Table 4. Summary of heat loss calculation results for the analyzed rooms (QH).
LocationHeat Loss, QH [W, (W/m3)]
Hotel Room with One WindowHotel Room with Two WindowsLiving Room with KitchenetteBedroomClassroom
Gdansk333 (4.93)461 (6.83)1694 (16.09)559 (23.00)814 (7.75)
Warsaw367 (5.44)509 (7.54)1853 (17.60)607 (24.98)904 (8.61)
Zakopane402 (5.96)556 (8.24)2012 (19.11)654 (26.91)994 (9.47)
Table 5. Summary of potential cooling and heating power in the analyzed rooms.
Table 5. Summary of potential cooling and heating power in the analyzed rooms.
DescriptionUnitHotel Room with One WindowHotel Room with Two WindowsLiving Room with KitchenetteBedroomClassroom
Area of room partitions [m2]
External wallm270144.50
Internal wallm233.632.9191842
Ceilingm2202031.214.428
Surface cooling power QSCP [W]
External wallW91018258.50
Internal wallW437427.7247234546
CeilingW440440686.4316.8616
Sum W96886811156091162
Surface heating power QSHP [W]
External wallW840168540
Internal wallW403395228216504
SumW487395396270504
Table 6. Summary of potential cooling capacity and actual heat gains for Warsaw: SFzab—potential module area; SF—partition surface.
Table 6. Summary of potential cooling capacity and actual heat gains for Warsaw: SFzab—potential module area; SF—partition surface.
ParameterHotel Room with One WindowHotel Room with Two WindowsLiving Room with KitchenetteBedroomClassroom
Total power of potential surface cooling
QSCP [W]96886811156091162
SFzab [m2]60.652.964.236.970
SF/V [m2/m3]0.890.780.611.540.67
Fok/Fe [m2/m2]0.310.920.410.300.95
Fok/SFzab [m2/m2]0.050.140.180.070.11
Calculated heat gains south orientation S
QC [W]696132716366033049
QC/V [W/m3]10.2419.5115.5825.1329.04
Deficit “−”/surplus “+” of cooling power in relation to heat gains orientation S
QSCP − QC [W]272−459−5216−1887
QSCP/(QSCP − QC) 39%−35%−32%1%−62%
Calculated heat gains north orientation N
QC [W]3164707093002287
QC/V [W/m3]4.656.916.7512.5021.78
Deficit “−”/surplus “+” of cooling power in relation to heat gains orientation N
QSCP − QC [W]652398406309−1125
QSCP/(QSCP − QC)206%85%57%103%−49%
Table 7. Summary of potential heating power and actual heat losses.
Table 7. Summary of potential heating power and actual heat losses.
ParameterHotel Room with One WindowHotel Room with Two WindowsLiving Room with KitchenetteBedroomClassroom
Total surface heating power
QSHP [W]487395396270504
SFzab [m2]40.632.93322.542
SF/V [m2/m3]0.600.480.310.940.40
Fok/Fe [m2/m2]0.310.920.410.30.95
Fok/SFzab [m2/m2]0.080.220.340.120.18
Calculated heat losses in Gdansk
QH [W]3334611694559814
QH/V [W/m3]4.906.7816.1323.297.75
Deficit “−”/surplus “+” of heating power in relation to heat losses in Gdansk
QSHP − QH [W]154.2−66.2−1298−289−310
QSHP/(QSHP − QH)46%−14%−77%−52%−38%
Calculated heat losses in Warsaw
QH [W]3675091853607904
QH/V [W/m3]5.407.4917.6525.298.61
Deficit “−”/surplus “+” of heating power in relation to heat losses in Warsaw
QSHP − QH [W]120.2−114.2−1457−337−400
QSHP/(QSHP − QH)33%−22%−79%−56%−44%
Calculated heat loss Zakopane
QH [W]4025562012654994
QH/V [W/m3]5.918.1819.1627.259.47
Deficit “−”/surplus “+” of heating power in relation to heat losses in Zakopane
QSHP − QH [W]85.2−161.2−1616−384−490
QSHP/(QSHP − QH)21%−29%−80%−59%−49%
Disclaimer/Publisher’s Note: The statements, opinions and data contained in all publications are solely those of the individual author(s) and contributor(s) and not of MDPI and/or the editor(s). MDPI and/or the editor(s) disclaim responsibility for any injury to people or property resulting from any ideas, methods, instructions or products referred to in the content.

Share and Cite

MDPI and ACS Style

Durczak, K.; Zawada, B. Heat Pipe Heating and Cooling Building Modules: Thermal Properties and Possibilities of Their Use in Polish Climatic Conditions. Energies 2025, 18, 5274. https://doi.org/10.3390/en18195274

AMA Style

Durczak K, Zawada B. Heat Pipe Heating and Cooling Building Modules: Thermal Properties and Possibilities of Their Use in Polish Climatic Conditions. Energies. 2025; 18(19):5274. https://doi.org/10.3390/en18195274

Chicago/Turabian Style

Durczak, Karolina, and Bernard Zawada. 2025. "Heat Pipe Heating and Cooling Building Modules: Thermal Properties and Possibilities of Their Use in Polish Climatic Conditions" Energies 18, no. 19: 5274. https://doi.org/10.3390/en18195274

APA Style

Durczak, K., & Zawada, B. (2025). Heat Pipe Heating and Cooling Building Modules: Thermal Properties and Possibilities of Their Use in Polish Climatic Conditions. Energies, 18(19), 5274. https://doi.org/10.3390/en18195274

Note that from the first issue of 2016, this journal uses article numbers instead of page numbers. See further details here.

Article Metrics

Back to TopTop