Improving the Energy Performance and Economic Benefits of Aged Residential Buildings by Retrofitting in Hot–Humid Regions of China
Abstract
1. Introduction
2. Materials and Methods
2.1. Multi-Objective Optimization
2.2. Building Energy Calculation and Optimization Method
2.3. Economic Benefit Calculation Method
2.4. Multi-Criteria Decision-Making Method
2.4.1. TOPSIS Method
2.4.2. VIKOR Method
3. Case Study
3.1. Weather Characteristics of Guangzhou
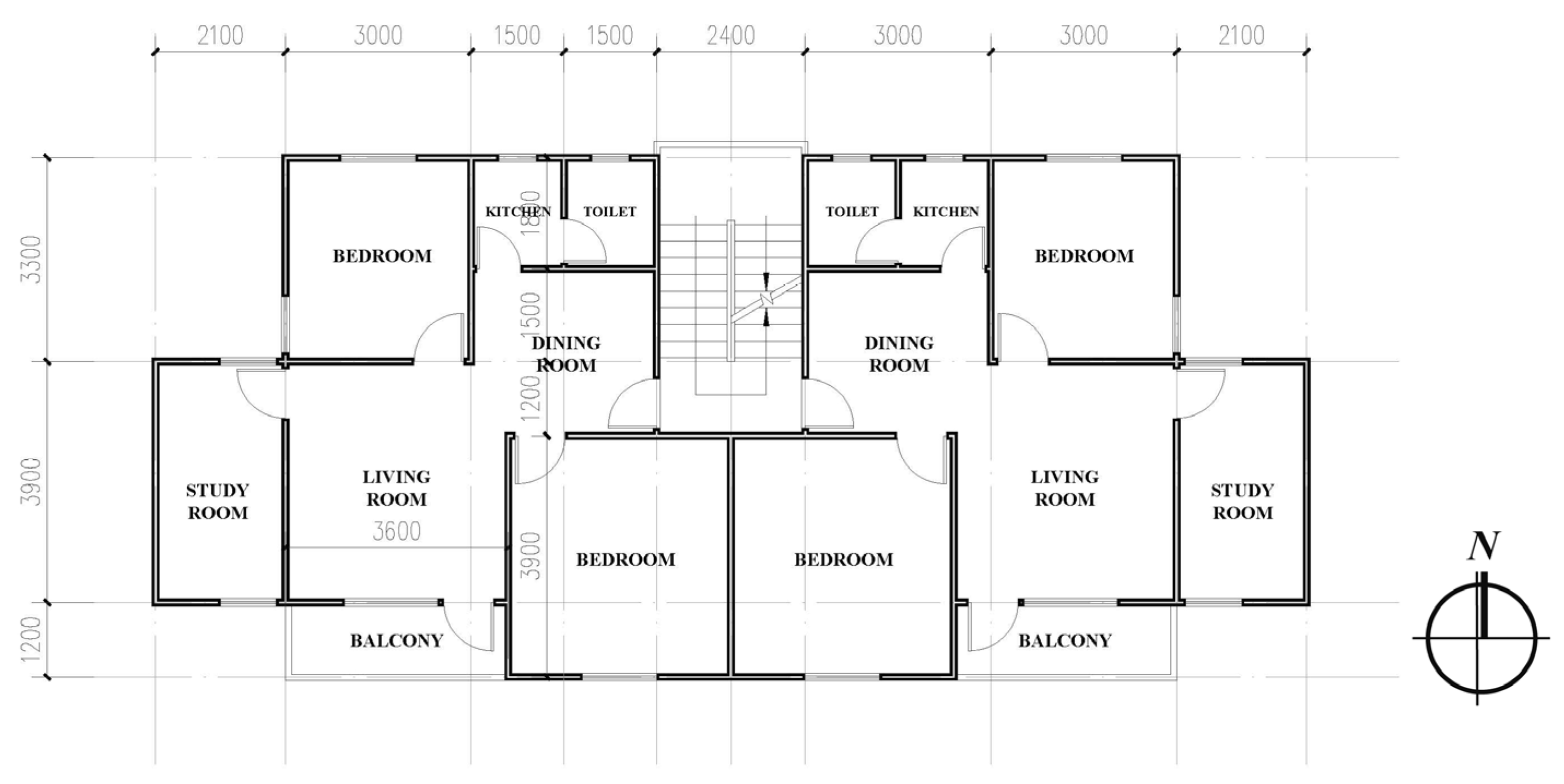
3.2. Baseline (As-Built)
3.3. Energy Retrofit Measures and Cost
4. Results
4.1. Building Performance and Energy Cost before Retrofit
4.2. Building Performance and Energy Cost before Retrofit
4.3. Relationship between Investment and the Objectives
4.4. The Preferred Solution of TOPSIS and VIKOR Method
4.5. The Optimized Retrofit Design
5. Discussion
6. Conclusions
Author Contributions
Funding
Data Availability Statement
Conflicts of Interest
References
- EIA. International Energy Outlook International Energy Outlook; U.S. Energy Information Administration: Washington, DC, USA, 2016.
- Berardi, U. A cross-country comparison of the building energy consumptions and their trends. Resour. Conserv. Recycl. 2017, 123, 230–241. [Google Scholar] [CrossRef]
- China Association of Building Energy Efficiency. China Building Energy Consumption Annual Report 2020. Build. Energy Effic. 2021, 49, 1–6. [Google Scholar] [CrossRef]
- Benachio, G.L.F.; Freitas, M.d.C.D.; Tavares, S.F. Circular economy in the construction industry: A systematic literature review. J. Clean. Prod. 2020, 260, 121046. [Google Scholar] [CrossRef]
- Tan, Y.; Liu, G.; Zhang, Y.; Shuai, C.; Shen, G.Q. Green retrofit of aged residential buildings in Hong Kong: A preliminary study. Build. Environ. 2018, 143, 89–98. [Google Scholar] [CrossRef]
- Zhang, J.; Liu, N.; Wang, S. A parametric approach for performance optimization of residential building design in Beijing. Build. Simul. 2020, 13, 223–235. [Google Scholar] [CrossRef]
- Zhang, J.; Liu, N.; Wang, S. Generative design and performance optimization of residential buildings based on parametric algorithm. Energy Build. 2021, 244, 111033. [Google Scholar] [CrossRef]
- Cao, X.; Yao, R.; Ding, C.; Zhou, N.; Yu, W.; Yao, J.; Xiong, J.; Xu, Q.; Pan, L.; Li, B. Energy-quota-based integrated solutions for heating and cooling of residential buildings in the Hot Summer and Cold Winter zone in China. Energy Build. 2021, 236, 110767. [Google Scholar] [CrossRef]
- Laetitia, M.; Jiyun, S.; Alan, S.C.; Shuqin, C.; Jindong, W.; Wei, Y.; Jie, X.; Qiulei, Z.; Jian, G.; Meng, L.; et al. The hot summer-cold winter region in China: Challenges in the low carbon adaptation of residential slab buildings to enhance comfort. Energy Build. 2020, 223, 110181. [Google Scholar] [CrossRef]
- Pachauri, R.K.; Mayer, L. (Eds.) Climate Change 2014: Synthesis Report; Intergovernmental Panel on Climate Change: Geneva, Switzerland, 2015; ISBN 9789291691432.
- He, Q.; Hossain, M.U.; Ng, S.T.; Augenbroe, G. Identifying practical sustainable retrofit measures for existing high-rise residential buildings in various climate zones through an integrated energy-cost model. Renew. Sustain. Energy Rev. 2021, 151, 111578. [Google Scholar] [CrossRef]
- Monna, S.; Juaidi, A.; Abdallah, R.; Albatayneh, A.; Dutournie, P.; Jeguirim, M. Towards Sustainable Energy Retrofitting, a Simulation for Potential Energy Use Reduction in Residential Buildings in Palestine. Energies 2021, 14, 3876. [Google Scholar] [CrossRef]
- Hart, R.; Selkowitz, S.; Curcija, C. Thermal performance and potential annual energy impact of retrofit thin-glass triple-pane glazing in US residential buildings. Build. Simul. 2019, 12, 79–86. [Google Scholar] [CrossRef]
- Pungercar, V.; Zhan, Q.; Xiao, Y.; Musso, F.; Dinkel, A.; Pflug, T. A new retrofitting strategy for the improvement of indoor environment quality and energy efficiency in residential buildings in temperate climate using prefabricated elements. Energy Build. 2021, 241, 110951. [Google Scholar] [CrossRef]
- Sarihi, S.; Mehdizadeh Saradj, F.; Faizi, M. A Critical Review of Façade Retrofit Measures for Minimizing Heating and Cooling Demand in Existing Buildings. Sustain. Cities Soc. 2021, 64, 102525. [Google Scholar] [CrossRef]
- Saretta, E.; Caputo, P.; Frontini, F. A review study about energy renovation of building facades with BIPV in urban environment. Sustain. Cities Soc. 2019, 44, 343–355. [Google Scholar] [CrossRef]
- Qu, K.; Chen, X.; Wang, Y.; Calautit, J.; Riffat, S.; Cui, X. Comprehensive energy, economic and thermal comfort assessments for the passive energy retrofit of historical buildings—A case study of a late nineteenth-century Victorian house renovation in the UK. Energy 2021, 220, 119646. [Google Scholar] [CrossRef]
- Cho, H.M.; Yang, S.; Wi, S.; Chang, S.J.; Kim, S. Hygrothermal and energy retrofit planning of masonry façade historic building used as museum and office: A cultural properties case study. Energy 2020, 201, 117607. [Google Scholar] [CrossRef]
- Hajare, A.; Elwakil, E. Integration of life cycle cost analysis and energy simulation for building energy-efficient strategies assessment. Sustain. Cities Soc. 2020, 61, 102293. [Google Scholar] [CrossRef]
- Sağlam, N.G.; Yılmaz, A.Z.; Becchio, C.; Corgnati, S.P. A comprehensive cost-optimal approach for energy retrofit of existing multi-family buildings: Application to apartment blocks in Turkey. Energy Build. 2017, 150, 224–238. [Google Scholar] [CrossRef]
- Ascione, F.; Bianco, N.; Mauro, G.M.; Napolitano, D.F. Knowledge and energy retrofitting of neighborhoods and districts. A comprehensive approach coupling geographical information systems, building simulations and optimization engines. Energy Convers. Manag. 2021, 230, 113786. [Google Scholar] [CrossRef]
- Prabatha, T.; Hewage, K.; Karunathilake, H.; Sadiq, R. To retrofit or not? Making energy retrofit decisions through life cycle thinking for Canadian residences. Energy Build. 2020, 226, 110393. [Google Scholar] [CrossRef]
- Tahsildoost, M.; Zomorodian, Z. Energy, carbon, and cost analysis of rural housing retrofit in different climates. J. Build. Eng. 2020, 30, 101277. [Google Scholar] [CrossRef]
- Liu, Y.; Liu, T.; Ye, S.; Liu, Y. Cost-benefit analysis for Energy Efficiency Retrofit of existing buildings: A case study in China. J. Clean. Prod. 2018, 177, 493–506. [Google Scholar] [CrossRef]
- Ahmed, W.; Asif, M. BIM-based techno-economic assessment of energy retrofitting residential buildings in hot humid climate. Energy Build. 2020, 227, 110406. [Google Scholar] [CrossRef]
- Shi, X.; Tian, Z.; Chen, W.; Si, B.; Jin, X. A review on building energy efficient design optimization rom the perspective of architects. Renew. Sustain. Energy Rev. 2016, 65, 872–884. [Google Scholar] [CrossRef]
- Wang, H.; Zhai, Z. Advances in building simulation and computational techniques: A review between 1987 and 2014. Energy Build. 2016, 128, 319–335. [Google Scholar] [CrossRef]
- Energyplus. Available online: https://energyplus.net/ (accessed on 6 March 2023).
- TRNSYS. Available online: http://www.trnsys.com/ (accessed on 6 March 2023).
- IDA ICE. Available online: https://www.equa.se/en/ida-ice (accessed on 6 March 2023).
- Taveres-Cachat, E.; Lobaccaro, G.; Goia, F.; Chaudhary, G. A methodology to improve the performance of PV integrated shading devices using multi-objective optimization. Appl. Energy 2019, 247, 731–744. [Google Scholar] [CrossRef]
- Giouri, E.D.; Tenpierik, M.; Turrin, M. Zero energy potential of a high-rise office building in a Mediterranean climate: Using multi-objective optimization to understand the impact of design decisions towards zero-energy high-rise buildings. Energy Build. 2020, 209, 109666. [Google Scholar] [CrossRef]
- Naderi, E.; Sajadi, B.; Behabadi, M.A.; Naderi, E. Multi-objective simulation-based optimization of controlled blind specifications to reduce energy consumption, and thermal and visual discomfort: Case studies in Iran. Build. Environ. 2020, 169, 106570. [Google Scholar] [CrossRef]
- Zhai, Y.; Wang, Y.; Huang, Y.; Meng, X. A multi-objective optimization methodology for window design considering energy consumption, thermal environment and visual performance. Renew. Energy 2019, 134, 1190–1199. [Google Scholar] [CrossRef]
- Salata, F.; Ciancio, V.; Dell’Olmo, J.; Golasi, I.; Palusci, O.; Coppi, M. Effects of local conditions on the multi-variable and multi-objective energy optimization of residential buildings using genetic algorithms. Appl. Energy 2020, 260, 114289. [Google Scholar] [CrossRef]
- Rosso, F.; Ciancio, V.; Dell’Olmo, J.; Salata, F. Multi-objective optimization of building retrofit in the Mediterranean climate by means of genetic algorithm application. Energy Build. 2020, 216, 109945. [Google Scholar] [CrossRef]
- Baldoni, E.; Coderoni, S.; D’Orazio, M.; Di Giuseppe, E.; Esposti, R. The role of economic and policy variables in energy-efficient retrofitting assessment. A stochastic Life Cycle Costing methodology. Energy Policy 2019, 129, 1207–1219. [Google Scholar] [CrossRef]
- Tavakolan, M.; Mostafazadeh, F.; Jalilzadeh Eirdmousa, S.; Safari, A.; Mirzaei, K. A parallel computing simulation-based multi-objective optimization framework for economic analysis of building energy retrofit: A case study in Iran. J. Build. Eng. 2022, 45, 103485. [Google Scholar] [CrossRef]
- Ascione, F.; Bianco, N.; Mauro, G.M.; Napolitano, D.F. Retrofit of villas on Mediterranean coastlines: Pareto optimization with a view to energy-efficiency and cost-effectiveness. Appl. Energy 2019, 254, 113705. [Google Scholar] [CrossRef]
- Ascione, F.; Bianco, N.; Iovane, T.; Mauro, G.M.; Napolitano, D.F.; Ruggiano, A.; Viscido, L. A real industrial building: Modeling, calibration and Pareto optimization of energy retrofit. J. Build. Eng. 2020, 29, 101186. [Google Scholar] [CrossRef]
- Panagiotidou, M.; Aye, L.; Rismanchi, B. Optimisation of multi-residential building retrofit, cost-optimal and net-zero emission targets. Energy Build. 2021, 252, 111385. [Google Scholar] [CrossRef]
- Zhang, H.; Hewage, K.; Prabatha, T.; Sadiq, R. Life cycle thinking-based energy retrofits evaluation framework for Canadian residences: A Pareto optimization approach. Build. Environ. 2021, 204, 108115. [Google Scholar] [CrossRef]
- Shaik, S.; Maduru, V.R.; Kontoleon, K.J.; Arıcı, M.; Gorantla, K.; Afzal, A. Building glass retrofitting strategies in hot and dry climates: Cost savings on cooling, diurnal lighting, color rendering, and payback timeframes. Energy 2022, 243, 123106. [Google Scholar] [CrossRef]
- Xia, D.; Lou, S.; Huang, Y.; Zhao, Y.; Li, D.H.W.; Zhou, X. A study on occupant behaviour related to air-conditioning usage in residential buildings. Energy Build. 2019, 203, 109446. [Google Scholar] [CrossRef]
- Li, H.; Huang, J.; Hu, Y.; Wang, S.; Liu, J.; Yang, L. A new TMY generation method based on the entropy-based TOPSIS theory for different climatic zones in China. Energy 2021, 231, 120723. [Google Scholar] [CrossRef]
- Zou, Y.; Guo, J.; Xia, D.; Lou, S.; Huang, Y.; Yang, X.; Zhong, Z. Quantitative analysis and enhancement on passive survivability of vernacular houses in the hot and humid region of China. J. Build. Eng. 2023, 71, 106431. [Google Scholar] [CrossRef]
- Xia, D.; Zhong, Z.; Huang, Y.; Zou, Y.; Lou, S.; Zhan, Q.; Guo, J.; Yang, J.; Guo, T. Impact of coupled heat and moisture transfer on indoor comfort and energy demand for residential buildings in hot-humid regions. Energy Build. 2023, 288, 113029. [Google Scholar] [CrossRef]
- Kheiri, F. A review on optimization methods applied in energy-efficient building geometry and envelope design. Renew. Sustain. Energy Rev. 2018, 92, 897–920. [Google Scholar] [CrossRef]
- Deb, K.; Pratap, A.; Agarwal, S.; Meyarivan, T. A fast and elitist multiobjective genetic algorithm: NSGA-II. IEEE Trans. Evol. Computat. 2002, 6, 182–197. [Google Scholar] [CrossRef]
- Tian, Z.; Zhang, X.; Jin, X.; Zhou, X.; Si, B.; Shi, X. Towards adoption of building energy simulation and optimization for passive building design: A survey and a review. Energy Build. 2018, 158, 1306–1316. [Google Scholar] [CrossRef]
- Queiroz, N.; Westphal, F.S.; Ruttkay Pereira, F.O. A performance-based design validation study on EnergyPlus for daylighting analysis. Build. Environ. 2020, 183, 107088. [Google Scholar] [CrossRef]
- Anđelković, A.S.; Mujan, I.; Dakić, S. Experimental validation of a EnergyPlus model: Application of a multi-storey naturally ventilated double skin façade. Energy Build. 2016, 118, 27–36. [Google Scholar] [CrossRef]
- Royapoor, M.; Roskilly, T. Building model calibration using energy and environmental data. Energy Build. 2015, 94, 109–120. [Google Scholar] [CrossRef]
- Mateus, N.M.; Pinto, A.; Da Graça, G.C. Validation of EnergyPlus thermal simulation of a double skin naturally and mechanically ventilated test cell. Energy Build. 2014, 75, 511–522. [Google Scholar] [CrossRef]
- Ellis, P.G.; Torcellini, P.A. Simulating Tall Buildings Using Energy Plus. In Proceedings of the Ninth International Building Performance Simulation Association Conference, Montréal, QC, Canada, 15–18 August 2005. [Google Scholar]
- Grasshopper. Available online: https://www.grasshopper3d.com/ (accessed on 6 March 2023).
- Ladybug Tools. Available online: https://www.ladybug.tools/ (accessed on 6 March 2023).
- Wallacei. Available online: https://www.wallacei.com/ (accessed on 6 March 2023).
- National Bureau of Statistics of China. Available online: http://www.stats.gov.cn/ (accessed on 6 March 2023).
- GB 50352-2019; Uniform Standard for Design of Civil Buildings. Ministry of Housing and Urban-Rural Development of the People’s Republic of China: Beijing, China, 2019.
- Zou, Y.; Deng, Y.; Xia, D.; Lou, S.; Yang, X.; Huang, Y.; Guo, J.; Zhong, Z. Comprehensive analysis on the energy resilience performance of urban residential sector in hot-humid area of China under climate change. Sustain. Cities Soc. 2023, 88, 104233. [Google Scholar] [CrossRef]
- Nabil, A.; Mardaljevic, J. Useful daylight illuminance: A new paradigm for assessing daylight in buildings. Light. Res. Technol. 2005, 37, 41–57. [Google Scholar] [CrossRef]
- Yu, F.; Wennersten, R.; Leng, J. A state-of-art review on concepts, criteria, methods and factors for reaching ‘thermal-daylighting balance’. Build. Environ. 2020, 186, 107330. [Google Scholar] [CrossRef]
- Liu, S.; Kwok, Y.-T.; Lau, K.; Ng, E. Applicability of different extreme weather datasets for assessing indoor overheating risks of residential buildings in a subtropical high-density city. Build. Environ. 2021, 194, 107711. [Google Scholar] [CrossRef]
- Fosas, D.; Coley, D.A.; Natarajan, S.; Herrera, M.; Fosas de Pando, M.; Ramallo-Gonzalez, A. Mitigation versus adaptation: Does insulating dwellings increase overheating risk? Build. Environ. 2018, 143, 740–759. [Google Scholar] [CrossRef]
- Hatvani-Kovacs, G.; Belusko, M.; Pockett, J.; Boland, J. Heat stress-resistant building design in the Australian context. Energy Build. 2018, 158, 290–299. [Google Scholar] [CrossRef]
- Lee, J.W.; Jung, H.J.; Park, J.Y.; Lee, J.B.; Yoon, Y. Optimization of building window system in Asian regions by analyzing solar heat gain and daylighting elements. Renew. Energy 2013, 50, 522–531. [Google Scholar] [CrossRef]
- Kent, M.G.; Jakubiec, J.A. An examination of range effects when evaluating discomfort due to glare in Singaporean buildings. Light. Res. Technol. 2022, 54, 514–528. [Google Scholar] [CrossRef]
- Wang, Z.; de Dear, R.; Luo, M.; Lin, B.; He, Y.; Ghahramani, A.; Zhu, Y. Individual difference in thermal comfort: A literature review. Build. Environ. 2018, 138, 181–193. [Google Scholar] [CrossRef]
- Lipczynska, A.; Schiavon, S.; Graham, L.T. Thermal comfort and self-reported productivity in an office with ceiling fans in the tropics. Build. Environ. 2018, 135, 202–212. [Google Scholar] [CrossRef]

















| Building Component | Construction Layer | Thickness (mm) | U-Value (W/m2·K) |
|---|---|---|---|
| Roof | Roof tile (solar absorptance: 0.7) | 10 | 2.97 |
| Mortar | 20 | ||
| Waterproofing | - | ||
| Mortar (leveling layer) | 30 | ||
| Mortar (sloping layer) | 20 | ||
| Concrete reinforcement | 100 | ||
| Gypsum plastering | 10 | ||
| Floor | Floor tile | 0.01 | 2.63 |
| Mortar | 10 | ||
| Concrete reinforcement | 100 | ||
| Gypsum plastering | 10 | ||
| External wall | Coating (solar absorptance: 0.4) | - | 1.88 |
| Mortar | 20 | ||
| Wall brick | 180 | ||
| Gypsum plastering | 10 | ||
| Interior wall | Gypsum plastering | 10 | 1.83 |
| Wall brick | 180 | ||
| Gypsum plastering | 10 | ||
| Window | - | - | 2.92 |
| Measures | Unit | Range | Investment | |
|---|---|---|---|---|
| 1 | Roof insulation thickness | m | [0, 0.12] | 15 + 800 × hickness CNY/m2 (thermal insulation) 165 CNY/m2 (other construction layer) 50 CNY/m2 (coating) |
| 2 | Roof solar absorptance | - | [0.1, 0.9] | |
| 3 | External wall insulation thickness | m | [0, 0.12] | 15 + 800 × thickness CNY/m2 (thermal insulation) 225 CNY/m2 (other construction layer) 50 CNY/m2 (coating) |
| 4 | External wall solar absorptance | - | [0.1, 0.9] | |
| 5 | South window type | - | 1, 2,…, 8 | Table 4 |
| 6 | South window overhang depth | m | [0, 1] | 300 CNY/m2 |
| 7 | Other window type | - | 1, 2,…, 8 | Table 4 |
| 8 | Other window overhang depth | m | [0, 1] | 300 CNY/m2 |
| 9 | Roof PV coverage | - | 0%, 25%, 50%, 75% | 650 CNY/m2 (monocrystalline) 1250 CNY/m2 (polycrystalline) |
| 10 | PV type | - | 0, 1 |
| Window Type | U-Value | Solar Heat Gain Coefficient | Visible Transmittance | Cost | |
|---|---|---|---|---|---|
| 1 | Single glazing | 5.80 | 0.86 | 0.90 | 0 CNY/m2 |
| 2 | Single glazing, low-e | 4.23 | 0.71 | 0.81 | 300 CNY/m2 |
| 3 | Double glazing | 2.76 | 0.7 | 0.81 | 525 CNY/m2 |
| 4 | Double glazing, low-e | 1.80 | 0.60 | 0.77 | 675 CNY/m2 |
| 5 | Double glazing, low-e, argon | 1.50 | 0.57 | 0.75 | 825 CNY/m2 |
| 6 | Triple glazing, low-e | 1.27 | 0.55 | 0.70 | 1025 CNY/m2 |
| 7 | Triple glazing, low-e, argon | 1.06 | 0.51 | 0.68 | 1200 CNY/m2 |
| 8 | Triple glazing, low-e, argon | 0.79 | 0.47 | 0.66 | 1350 CNY/m2 |
| Standard for Summer (kWh) | Standard for Winter (kWh) | Price (CNY/kWh) | |
|---|---|---|---|
| First level | 0–260 | 0–200 | 0.59 |
| Second level | 260–600 | 200–400 | 0.64 |
| Third level | More than 600 | More than 400 | 0.89 |
Disclaimer/Publisher’s Note: The statements, opinions and data contained in all publications are solely those of the individual author(s) and contributor(s) and not of MDPI and/or the editor(s). MDPI and/or the editor(s) disclaim responsibility for any injury to people or property resulting from any ideas, methods, instructions or products referred to in the content. |
© 2023 by the authors. Licensee MDPI, Basel, Switzerland. This article is an open access article distributed under the terms and conditions of the Creative Commons Attribution (CC BY) license (https://creativecommons.org/licenses/by/4.0/).
Share and Cite
Yang, X.; Chen, Z.; Zou, Y.; Wan, F. Improving the Energy Performance and Economic Benefits of Aged Residential Buildings by Retrofitting in Hot–Humid Regions of China. Energies 2023, 16, 4981. https://doi.org/10.3390/en16134981
Yang X, Chen Z, Zou Y, Wan F. Improving the Energy Performance and Economic Benefits of Aged Residential Buildings by Retrofitting in Hot–Humid Regions of China. Energies. 2023; 16(13):4981. https://doi.org/10.3390/en16134981
Chicago/Turabian StyleYang, Xiaolin, Zhuoxi Chen, Yukai Zou, and Fengdeng Wan. 2023. "Improving the Energy Performance and Economic Benefits of Aged Residential Buildings by Retrofitting in Hot–Humid Regions of China" Energies 16, no. 13: 4981. https://doi.org/10.3390/en16134981
APA StyleYang, X., Chen, Z., Zou, Y., & Wan, F. (2023). Improving the Energy Performance and Economic Benefits of Aged Residential Buildings by Retrofitting in Hot–Humid Regions of China. Energies, 16(13), 4981. https://doi.org/10.3390/en16134981
