Abstract
The existing building stock faces the challenge of low energy efficiency and requires renovation and upgrading to meet society′s goals of carbon reduction and sustainable development. This study presents an optimization framework utilizing genetic algorithms to develop robust retrofit plans that balance the need for improved energy efficiency, cost-effectiveness considerations for householders, and uncertainties regarding climate conditions. A case study of an aged residential building in a hot and humid region of China is used to demonstrate the proposed method. The optimization results show a potential energy demand reduction of 81.5%. However, due to the relatively long time required to realize economic benefits from high investments, short-term optimization tends to favor solutions with high energy demand and low primary costs. To effectively reduce carbon emissions, it is recommended to consider the long-term economic benefits of retrofits and prioritize solutions with high energy efficiency. However, it is important to acknowledge that the expensive nature of retrofit investments may pose barriers to residents. Society should provide adequate support and guidance to facilitate residential renovation efforts.
1. Introduction
The building sector plays a significant role in global energy consumption and carbon emissions [1,2]. Among various types of buildings, residential buildings are major energy consumers worldwide. In China, for instance, residential buildings accounted for 62% and 63% of the energy consumption and carbon emissions in the building sector in 2018 [3]. The circular economy principle is based on reducing, reusing, and recycling resources, which is fitting for the construction industry [4]. Many existing residential buildings have been in service for several decades and were constructed based on outdated energy codes. The renovation of these old buildings, rather than their replacement with new constructions, fits well with the principles of the circular economy. Such retrofits have proven to be both environmentally friendly and cost-effective [5]. Consequently, there has been a recent academic focus on improving the energy efficiency of existing residential buildings [6,7,8,9], as it is crucial for reducing carbon emissions and mitigating global warming [10].
The efficacy of retrofitting in reducing building energy consumption has been demonstrated in various global studies. For instance, He et al. [11] introduced 28 retrofit measures applicable to walls, windows, shading, and more for existing high-rise residential buildings in China. They discovered that the optimal solutions for achieving a 40% energy-saving target vary across different climatic zones. Monna et al. [12] posited that by implementing retrofit measures, an energy demand reduction of 71–80% could be realized for an apartment building in Palestine. Hart et al. [13] investigated the potential energy impact of thin-glass triple-pane glazing in Minneapolis, Washington, and Houston. Their findings indicated that such window installations could contribute significantly to energy savings in both heating- and cooling-dominant regions of America. Pungercar et al. [14] utilized prefabricated elements to renovate a house in Germany, resulting in a significant 77% decrease in heating energy consumption.
In addition to the pressing need for energy-saving measures in society, residential building users tend to prioritize the monetary costs associated with retrofitting and operation over energy and carbon issues, considering the financial implications they face. Therefore, it is crucial to strike a careful balance between energy savings and financial costs. Numerous previous studies have reported on the effectiveness of building retrofitting in terms of energy savings and operational cost reductions [15,16,17,18]. For instance, Hajare et al. [19] demonstrated that implementing retrofit measures in an American residential building resulted in a 13.5% reduction in life cycle costs. Sağlam et al. [20] proposed a cost-optimal approach for energy retrofitting in residential buildings and successfully applied it to a high-rise apartment building in Turkey, achieving over 70% energy savings without incurring additional costs. Ascione et al. [21] developed an integrated method for energy modeling and retrofit planning, which significantly optimized energy performance and overall costs for the community. However, it should be noted that not all energy retrofit measures guarantee economic benefits [22]. Identifying technically effective and economically attractive measures tailored to different needs can be challenging. Tahsildoost et al. [23] highlighted that the payback period for retrofitting rural buildings in Iran is not attractive to residents, suggesting the need for financial subsidies to encourage renovation. Likewise, Liu et al. [24] pointed out that many residential building renovation approaches in northern China lack attractiveness to investors from an economic perspective. This issue is also observed in existing residential buildings in Saudi Arabia, according to Ahmed and Asif [25]. Ultimately, it is up to building owners to decide whether and how to proceed with renovation. Therefore, the key challenge lies in ensuring that residential building owners can obtain sufficient economic benefits from retrofitting efforts.
Building design can be systematic and complicated because there are many combinations of design strategies, the needs of occupants and the standards of the building vary, and the objectives can sometimes conflict [21]. In this context, it may not be feasible to rely solely on architects’ experience to seek the “best” solution for a specific task amidst a multitude of potential design strategies. To this end, multi-objective optimizations have been recognized as a common and effective method to improve building performance for architects and building owners [26]. Furthermore, the development of building simulation tools in recent years has lowered the threshold for building design and performance evaluation [27]. Building energy and thermal performance can be estimated using building simulation tools, such as EnergyPlus [28], TRNSYS [29], and IDA ICE [30], under specific weather conditions and design preferences. The integration of optimization algorithms with building simulation tools is increasingly recognized as an effective method to improve building design [31,32,33,34].
The importance of a simulation-coupled framework has been demonstrated, particularly for upgrading buildings for energy efficiency [35]. Meanwhile, Rosso et al. [36] found that a building retrofit plan can significantly reduce both the annual energy consumption and monetary costs if the simulation-coupled optimization is properly implemented. However, the long-term global cost and the net present value (NPV) usually dominate the retrofitting plan and its corresponding energy performance, rather than the annual operating costs; economic factors such as inflation can also affect monetary revenues [37]. It is preferable to study the economic issues of retrofitting using the long-term global cost/NPV rather than the annual energy cost. The effectiveness of optimization in reducing both the global cost/NPV and energy consumption is demonstrated by case studies in cold [38], Mediterranean [39,40], and warm [41] climates, and at scales ranging from single buildings to entire communities [42]. The payback period, the time required to make the cumulative economic benefit equal to the initial investment cost, is another economic factor that investors are interested in. It can be used to describe how long it will take for energy-related economic savings to cover the cost of the building retrofit [38,43]. The building owners can make wise retrofit decisions based on a comprehensive analysis on both global cost/NPV and the payback period.
In the hot and humid conditions of southern China, particularly, many residential buildings constructed in the 1970s and 1980s were designed to operate under natural ventilation, with significant concerns about heat dissipation. Most of these local aged residential buildings are low-rise or middle-rise apartments. They may not meet current design standards due to the economic and technological limitations put in place decades ago when they were built. Therefore, there is a pressing need to adjust these older buildings to modern operational norms, which entails significant air conditioning, using appropriate retrofitting approaches [44].
Despite the numerous building retrofitting studies focusing on energy concerns, to the best of our knowledge, most previous studies, for computational efficiency, have calculated building energy performance using Typical Meteorological Year (TMY) weather conditions. TMY is synthetic weather data, constructed by extrapolating the ′typical′ situation from continuous weather records. TMY serves as a recognized basis for building performance calculation and plays a key role in building energy-saving design [45]. However, TMY ignores the uncertainties of climate and filters out extreme conditions. Thus, using TMY alone is insufficient for making representative building performance predictions [46,47]. Moreover, there is no evidence to suggest that the building operating cost calculated based on TMY is sufficiently accurate, given the complexity of energy bill calculations. For instance, in China, the electricity fee is tiered—the higher the monthly usage, the higher the unit price. In such cases, the difference between the actual cost and the cost estimated based on the average energy usage as calculated by TMY could be significant. Furthermore, regarding the residential buildings, the retrofit choice is almost entirely up to building owners. How the period duration used in calculations and decision strategies affect the retrofit choice remains to be studied.
In this study, we have established a low-threshold, simulation-based framework that can be used to optimize both the energy demand and cost efficiency of residential buildings, taking into account climate uncertainties. The framework runs on Grasshopper, a visual programming language that is widely used by architects and non-professionals alike. Within the framework, parallel computations can be performed with different climate data, taking into account climate uncertainties without additional time costs. The optimization was conducted in a 20-year and a 30-year period, respectively. Two multi-criteria decision-making (MCDM) methods, which are techniques for order preference by similarity to an ideal solution (TOPSIS), and the VIKOR method, were used to analyze the residential building owners’ retrofit preferences. We explored the energy-saving potential of economically preferred retrofit solutions for older residential buildings in hot–humid areas of China using the proposed framework. The results are expected to provide implications for retrofitting the local aged residential buildings.
The following sections are arranged as follows: Section 2 gives a brief introduction to the process and the tools in the optimization framework; Section 3 demonstrates the settings of the case study; the optimization results are presented in Section 4; and Section 5 summarizes the results of this study.
2. Materials and Methods
2.1. Multi-Objective Optimization
Multiple factors should be considered when retrofitting older buildings, including both the financial investments and benefits for the occupants, and the energy benefits and costs for society. There are usually trade-offs between objectives and constraints for the solutions, such that improving one objective might sacrifice the performance of another. In this case, it is unlikely that one optimal solution for a problem will be defined. The multi-objective optimization problem can be summarized as follows:
where describing the target of this problem, is called an objective function. There are two objective functions (m = 2) in this multi-objective optimization problem, namely the energy savings and the monetary costs, and the latter includes the investment and the power bill. A set of presents a certain solution in an n-dimensional vector representing the various settings of the retrofitting, such as the values of the wall insulation, wall absorptance, etc., which are named as decision variables. g(x) and h(x) are the inequality and equality constraints of the solutions, respectively. and are the lower and upper limits for a certain variable , respectively.
Because optimization inherently involves a trade-off process between different objectives, multiple optimization solutions should exist that balance the various aspects of the problem. In this case, the widely-acknowledged Pareto Front (Figure 1) was used in identifying the multi-objective optimization results, as have previous studies on the building sector and energy [31,32,33,34,35,36,39,40,41,42]. The optimization process is the search for the “nondominated” solutions and construction of the Pareto Front, where none of the objectives can be improved further without sacrificing another (i.e., the set of solutions is not “dominated” by a single objective). The Pareto Front is useful for intuitively displaying the optimal quantitative solutions, and decision-makers can select suitable solutions that balance various objectives for different purposes.
Figure 1.
Concepts of nondominated and dominated solutions, and the Pareto Front.
However, in most cases, the number of potential solutions for a problem can be vast, making it impractical to identify the Pareto Front using a brute-force search. Therefore, genetic algorithms are often used to solve multi-objective optimization problems [48]. The genetic algorithm was proposed based on the evolutionary laws of organisms in nature. It simulates the phenomena of replication, crossover, and mutation in natural selection and genetics. Starting with any initial population, through processes of random selection, crossover, and mutation, a group of individuals more suited to the environment is generated. This group continues to reproduce and evolve over generations and ultimately converges to form the best group of individuals—the most adaptable to the environment, also known as the nondominated solutions. NSGA-II, developed by Deb et al. [49], is a popular toolbox for building energy research. This algorithm simplifies the complexity of the nondominated sorting genetic algorithm and offers advantages such as rapid computing speed and reliable convergence. Therefore, it is adopted as the optimization algorithm of this study.
2.2. Building Energy Calculation and Optimization Method
Energy savings and operational power bills, both significantly impacted by retrofitting, should be accurately simulated as the foundation of multi-objective optimizations [50]. In this study, EnergyPlus was used as the simulation tool to solve the building energy performance. This software was developed by the United States Department of Energy and Lawrence Berkeley National Laboratory, and its accuracy has been well-acknowledged as a reliable building performance simulation tool, according to many studies [51,52,53,54,55]. EnergyPlus simulations require information about the building, including geometric properties and space loads, which are specified in the “.idf” file format. As open-source software, EnergyPlus provides coupling accesses with 3D modeling tools like Rhino and SketchUp, which opens opportunities for users who are not professionals in building energy engineering to use.
Grasshopper is a graphical script-editing platform associated with Rhino [56]. It is popular among architects for its advantages in parametric design, as the workflow on Grasshopper is basically visual programming. Another advantage of Grasshopper is its ability to perform computations using pre-defined logical calculation toolboxes and interfaces with various algorithms and software. Ladybug Tools [57], an interface of EnergyPlus, and Wallacei [58], a toolbox for multi-objective optimization, are Grasshopper plugins that were used in this study. These plugins encapsulate the required functions and are friendly to non-professionals. Additionally, the economic benefit results for the retrofit can be obtained by organizing the calculation function mathematically. The computing process on Grasshopper can be written in Python to perform complex calculations and analysis, allowing users to create their own toolboxes.
In this work, leveraging the aforementioned functions, Grasshopper repetitively ran building performance simulations based on the optimization outcomes. During each iteration, the program repeated the process of generating geometric models and setting up the simulation. Compared to other tools for building simulation-based optimization, Grasshopper′s advantage lies in its ability to easily modify spatial parameters within the simulation, such as the building′s geometry and shading context. The optimization process consists of the following steps: establish the geometric model of the target building in a parametric way; define the ranges of the studied design parameters; use Ladybug Tools to build the simulation models; write a function module on Grasshopper for an economic benefits calculation; set up multi-objective optimization with Wallacei; carry out optimization; and analyze results. For each case, the framework copies the simulation task generated by Ladybug Tools multiple times, matches different climate data to tasks, and makes parallel simulations run so that the performance of a design plan under different climate conditions can be obtained. The process of the optimization is shown in Figure 2. In this study, to ensure efficiency and effectiveness, the optimization was repeated across 50 generations, each with a population size of 50. The Pareto Front was derived from a total of 2500 solutions.
Figure 2.
The optimization process with parallel simulations under different climate conditions.
2.3. Economic Benefit Calculation Method
Whereas energy-related retrofitting reduces the energy demand of a building, benefiting society, householders are often more concerned about the monetary implications of such retrofitting. The total cost for a householder includes the initial investment in retrofitting and subsequent building operation costs. In this study, the NPV, as well as the discounted payback period (DPP), were evaluated for retrofit decision-making. The calculation process considers the impact of economic factors such as inflation and converts future operating costs into current values.
The NPV represents the difference between the net cash flow generated by the retrofit plan and the present value of the original building′s operating cost over a given period, which can be calculated as follows in Equation (2):
where is the number of years under investigation, which is 30 in this study; is the global cost over the period under consideration (CNY); IC represents the initial investment (CNY) of an in-dividable retrofitting whose energy and power bill savings are shared by j households; and stand for the operating cost before and after retrofit of year i (CNY), respectively. The operating cost can be calculated as Equation (3). is the actualization factor of year i, and can be calculated by Equations (4) and (5).
In Equation (3), Ec, Eh, El, Ed, and Er represent the annual cooling, heating, device lighting, and household appliances power demands and the renewable energy production (kWh), respectively, and Pe is the energy price at the beginning of the period (CNY/kWh). In Equations (4) and (5), Rr is the actual discount rate, R is the market interest rate, and RI is the inflation rate. In this study, the RI and R are set as 2% and 2.5% according to the local situation [59].
In addition to the net present value, the payback period is also important for building owners to choose a renovation plan. Since the payback period does not consider the time value of the investment, the DPP is used in this study. DPP refers to the number of years it takes to break even from undertaking the initial expenditure by converting the future income of an investment project into the present value. If the DPP is shorter than the benchmark investment payback period, the return on the investment is considered acceptable. The mathematical definition of DPP is as follows:
where is the number of the first year in which the NPV is positive; and are the present value of net cash flow of the first year and the previous year when NPV is positive, respectively.
2.4. Multi-Criteria Decision-Making Method
Given the private nature of residential buildings, it is ultimately the building owners′ decision whether and how to implement the retrofit. The decisions of building owners largely depend on the economic factors associated with building retrofitting, including NPV and DPP. However, these two objectives cannot be directly compared, as they are of inconsistent dimensions. Therefore, two MCDM methods were used to analyze the building owners’ preferences. Both methods can be used when decision-makers are unclear about how to express their preferences accurately, with conflicts between different targets.
2.4.1. TOPSIS Method
TOPSIS is a popular MCDM method of sorting according to the closeness of a limited number of evaluation targets to the idealized goal. By normalizing data, the optimal value and the worst value among the multiple objectives can be found. Subsequently, the distance is calculated between each objective of the nondominated solutions and the ideal, as well as anti-ideal targets, respectively. The comprehensive distance between them can be regarded as the basis for solution equality judgment.
Before normalizing data, objective such as DPP have to be positively processed:
where is the maximum value of the objective, and is the objective value for solution i before transfer. The normalization method is shown in Equation (8):
where and are the values before and after normalization for objective of solution . The TOPSIS score can be calculated by Equations (9)–(11):
where and are the best solution and worst target for objective , and and are the comprehensive distance for a solution. ranges from 0 to 1. The larger the value, the smaller the distance between the solution and the ideal optimal solution. According to the , it is possible to compare the overall performance of the solutions.
2.4.2. VIKOR Method
VIKOR is a sorting method that navigates through limited decision-making schemes by maximizing group utility and minimizing individual regret. The basic idea of the VIKOR method is to determine the positive ideal solution and the negative ideal solution, then compare the evaluation values of the alternatives and select the best solution according to their distance from the ideal value. In each evaluation criterion, the positive ideal solution corresponds to the optimal value, while the negative ideal solution corresponds to the worst value.
Similar to the TOPSIS method, the first step of VIKOR is to positively process and normalize data (Equations (7) to (8)). The group utility value and the individual regret value are calculated by Equations (12) to (13):
where and are the positive and negative ideal solutions for objective , respectively; is the objective for solution ; is the weighting factor. The NPV and DPP are equally important in this study, and is the same for these two objectives. The compromise value for solution can be quantified by the following equations:
where represents the risk preference. The larger is, the more biased the result’s focus toward group utility, and vice versa regarding individual regret. The was set to 0.5 in this study.
3. Case Study
3.1. Weather Characteristics of Guangzhou
The case study was carried out in Guangzhou (23.17° N, 113.33° E) in the hot summer and warm winter zone of China [60], with a hot and humid climate. This area is characterized by long summers with high air temperatures, short and warm winters, consistently high relative humidity throughout the year, and abundant solar radiation resources. The monthly distributions of dry bulb temperature for Guangzhou are depicted in Figure 3. The median temperature value stays above 25 °C from May to September, and the lowest value remains above 12 °C, typically in December. In June, July, and August, which are the hottest months, the median temperatures hover around 27.5 °C, and the upper quartiles in July and August exceed 30 °C. Because of the hot–humid climate characteristic, the local building energy is dominated by the cooling load [61].
Figure 3.
Distributions for hourly dry bulb temperature of 2010–2019.
Figure 4 shows the hourly dry bulb temperature in Guangzhou from 2010–2019 and the TMY for that period. The weather data in TMY represents a “typical” situation of a period of time. As observable, the TMY temperature largely fluctuates around the median of the possible range. Neglecting atypical conditions could result in deviations in estimates of energy demand and operating costs. Especially in the hottest month, the temperature of the TMY is closer to the lower limit than the upper limit, suggesting that cooling energy in summer may be underestimated by the TMY, as may the energy cost. Therefore, instead of using TMY, this study employs climate data from 2010–2019.
Figure 4.
Comparison of the dry bulb temperature between TMY and continuous years of 2010–2019.
3.2. Baseline (As-Built)
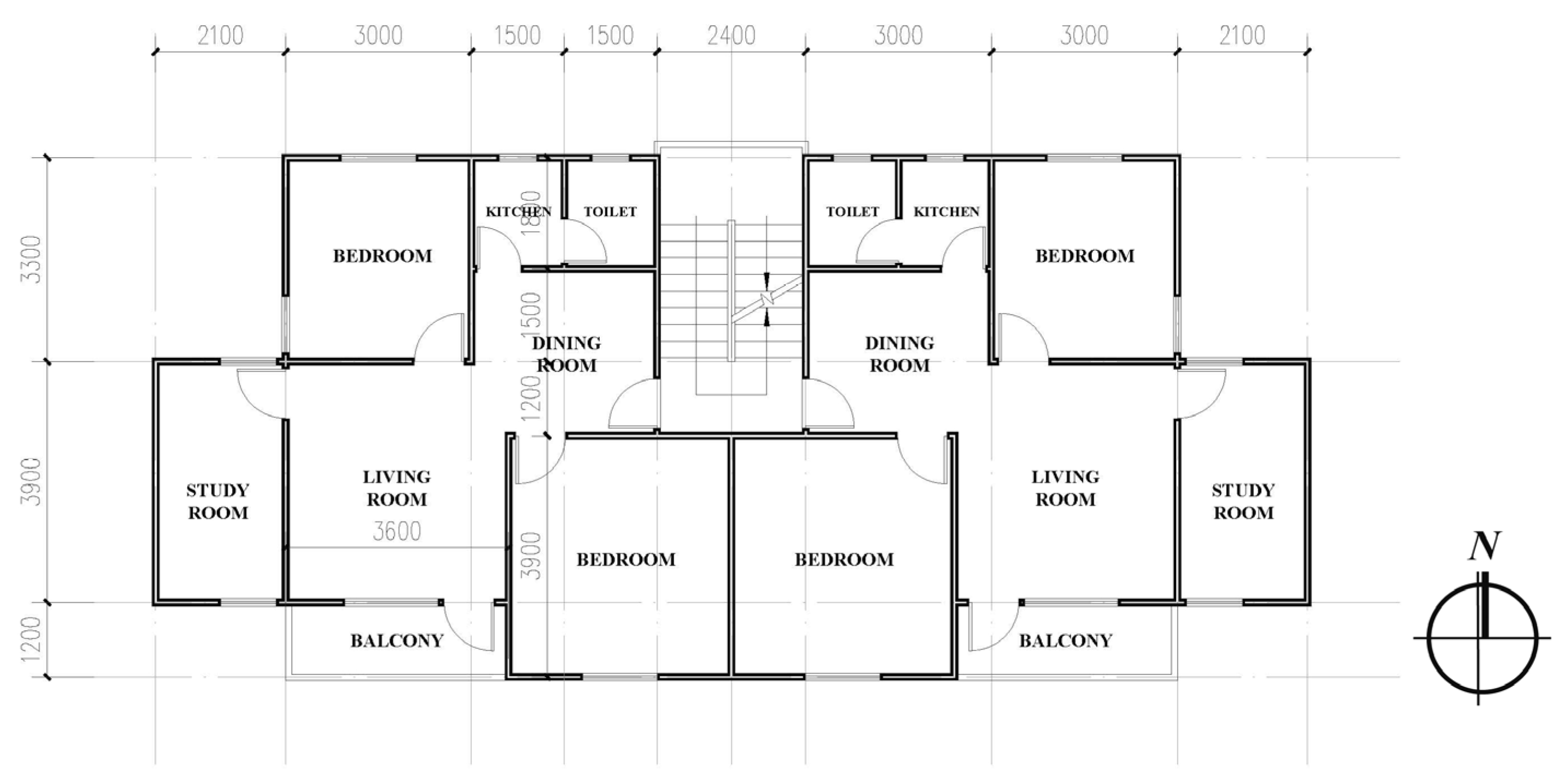
A representative residential building in Guangzhou, typical of those built in the 1980s, was selected for this study. The building has three floors, and each floor is composed of two apartments with a symmetrical plan. Figure 5 shows the standard plan of the building. The building was designed to accommodate families consisting of three to four members. For each apartment, the windows of the living room and a bedroom are designed to face the southern direction. The balcony is situated to the south of the living room. A bedroom, kitchen, and toilet face north. The study room has windows on both the north and south.
Figure 5.
Layout of the target building.
Whereas HVAC systems were rare at the time these buildings were initially constructed, they are now commonly used to improve the indoor environment. In the simulation model, the living room, dining room, bedrooms, and study room were equipped with HVAC systems set for their occupancy over hours. The cooling and heating setpoints were set at 26 °C and 18 °C, respectively. Artificial lighting was used when natural daylighting was insufficient. Artificial lighting was employed when the natural daylight fell below a threshold of 100 lux, which is the lower limit of the Useful Daylight Illuminance [62,63]. The illuminance metric was detected on the horizontal surface. The electricity demand of the household, except for cooling, heating, and lighting, was set to 5.3 kWh per day. The coefficient of performance (COP) was set as 2.5 for both cooling and heating conditions for simplicity in simulation. Details of the building construction are shown in Table 1.
Table 1.
Existing construction of the apartment building.
3.3. Energy Retrofit Measures and Cost
The thermal insulation performance of a building envelope can impose different impacts on heat exchange for buildings with and without HVAC. For naturally ventilated rooms in hot areas, accelerating heat dissipation effectively reduces the duration of indoor overheating [64]. There are studies that point out that overheating sometimes is more likely to occur in highly insulated buildings [65,66]. Since air conditioning was not widespread in Chinese homes when the apartment building was constructed, the insulation of the existing buildings in question was not significantly enhanced to facilitate sufficient heat dissipation. However, with the development of the economy and technology, HVAC systems are widely used in response to the constantly deteriorating natural ventilation conditions in the rapidly urbanizing city. In this case, the thermal insulation of the building is becoming an important issue.
Strategies for adapting existing buildings to HVAC-based daily occupancies often include enhancing the thermal performance of the envelope, minimizing solar heat gain, and utilizing photovoltaic (PV) power. Such energy retrofit measures and their corresponding costs are determined by recent local engineering projects, and specified in Table 2. Typically, retrofitting costs rise as insulation thickness increases and thermal performance improves. On the other hand, the solar absorptance of the external wall and roof can be changed by using different coatings. The thermal properties of windows are determined by the types of glazing as given in Table 3. The cost of PV panels includes all the necessary components of a PV system, such as the inverter, as well as a long-term warranty. Further, the PV system is grid-connected as a common practice thanks to the robust power grid, and the cost of a large battery is, thus, unnecessary. The revenue from renewable power covers a part of the electricity bill. This optimization considered two common types of PV systems, namely monocrystalline and polycrystalline, with assumed energy conversion efficiencies of 0.12 and 0.15, respectively. All costs in this study are denoted in Chinese Yuan Renminbi (CNY), the official currency of China.
Table 2.
Energy retrofit measures and cost.
Table 3.
Window types and cost.
In most places in China, to encourage energy saving, the monthly electricity fee for each household is charged in tiers according to usage. The more electricity is used, the higher the price per kilowatt-hour. Further, the electricity price in Guangzhou charged per unit varies with the seasons. See Table 4 for details.
Table 4.
Price for residential electricity in Guangzhou.
4. Results
4.1. Building Performance and Energy Cost before Retrofit
The monthly energy performance and the corresponding cost of the residential building before retrofit are illustrated in Figure 6. The building′s energy demand was predominantly influenced by cooling needs due to the region′s hot and humid climate. The highest energy demand was observed in July, which is also the hottest month of the year, resulting in the maximum energy expenditure. In the cooling season, it is noteworthy that the energy demand exhibited significant annual variation. For instance, the energy demand in May can exhibit as much as a twofold discrepancy across different years. In June, while the average energy demand is roughly 5 MWh, there have been records of energy consumption dipping below 3 MWh for the same month. Such fluctuations in energy demand can lead to substantial cost differentials. At times, the highest energy expenses in May, June, and October can be double that of the lowest in these months. Based on these findings, it is clear that both energy performance and cost are greatly affected by variable climate conditions. This underscores the importance of considering climate uncertainties when planning building retrofits.
Figure 6.
Average monthly cooling, heating, lighting demand, and energy cost of the building before retrofit during 2010–2019.
4.2. Building Performance and Energy Cost before Retrofit
Figure 7 and Figure 8 illustrate the convergence process and the resulting Pareto Fronts from the two optimization runs. The optimization process underwent 50 iterations, each containing 50 population members. This involved conducting a total of 2500 building performance calculations considering climate uncertainties to derive the Pareto Fronts in each optimization run.
Figure 7.
The Pareto Front for the 30-year period optimization.
Figure 8.
The Pareto Front for the 20-year period optimization.
The results reveal that the energy efficiency of the building can be significantly enhanced through retrofitting. The average annual energy demand for cooling, heating, and lighting in the existing building stood at approximately 28.7 MWh. Post-retrofit, the energy demand range of the Pareto optimal solutions lay between 5.3 MWh and 9.4 MWh, implying potential savings of up to 80%. All Pareto optimal solutions offered a discounted payback period (DPP) of under 11.1 years, with the shortest DPP being 7.9 years. This indicates that the economic benefits resulting from the retrofit are substantial and reasonably quick to materialize. However, there was a noticeable variance in the net present value (NPV) results of the two optimization approaches. For the 20-year optimization, the NPV fluctuated between 199.4 kCNY and 217.3 kCNY, whereas for the 30-year optimization, it ranged from 408 kCNY to 443.8 kCNY. Generally, the economic benefits of a retrofit take time to become apparent. It is noteworthy that NPV played a crucial role in influencing building owners’ decisions to undertake a retrofit. In the 20-year period calculation, the impact of NPV on the decision-making process was relatively smaller due to its narrow range. Therefore, it is suggested that the time frame for NPV calculation be carefully considered, as it forms a crucial part of the decision-making process.
4.3. Relationship between Investment and the Objectives
Figure 9 and Figure 10 present the relationship between retrofit investment and energy demand, net present value (NPV), and the discounted payback period (DPP) of the Pareto optimal solutions optimized over 20- and 30-year operation periods, respectively. As indicated by the figures, there was an inverse relationship between retrofit investment and energy demand, and a direct relationship with the overall cost. Although the energy efficiency of the Pareto optimal solutions was significantly improved compared to the existing building, variations in retrofit investment can still result in substantial differences in annual energy demand. If the retrofit cost was 140 kCNY, the annual energy demand exceeded 9 MWh, but it could decrease by about 3.5 MWh with an additional investment of 100 kCNY. Concerning the DPP, an increase in investment from 140 kCNY to 240 kCNY caused the payback period to lengthen by 3 years.
Figure 9.
The Pareto Front for the 30-year period optimization.
Figure 10.
The Pareto Front for the 20-year period optimization.
On the other hand, the relationship between NPV and investment depends on the duration of the period. For a 20-year period, the NPV of the retrofit diminishes as the initial cost increases. However, for the 30-year period, the NPV is directly proportional to the investment. Larger investments may be acceptable if the buildings are expected to operate for a sufficient number of years. In such cases, the energy costs rise, suggesting that the goals of energy and cost savings align better over longer post-retrofit operational periods. Generally, optimization based on a longer-term perspective is preferable from both financial and energy-saving standpoints.
4.4. The Preferred Solution of TOPSIS and VIKOR Method
The economic benefits of retrofitting residential buildings are of crucial interest to homeowners. Both NPV and DPP serve as important considerations in residential building retrofit decisions. The TOPSIS and VIKOR score of the nondominated solutions were calculated and are illustrated in Figure 11, Figure 12, Figure 13 and Figure 14. Scores of the Pareto optimal solutions were calculated and are illustrated in Figure 11, Figure 12, Figure 13 and Figure 14. With TOPSIS, a solution with a higher score is considered superior, whereas for VIKOR scores, the opposite is true.
Figure 11.
TOPSIS scores of nondominated solutions for 30-year period optimization.
Figure 12.
VIKOR scores of nondominated solutions for 30-year period optimization.
Figure 13.
TOPSIS scores of nondominated solutions for 20-year period optimization.
Figure 14.
VIKOR scores of nondominated solutions for 20-year period optimization.
In the 20-year optimization, both TOPSIS and VIKOR methods essentially ranked the Pareto optimal solutions in the same order. Since the economic benefits of retrofitting become evident over time, a retrofit plan may have a higher NPV and a shorter DPP. As a result, the solution selected by both methods is the one with the largest NPV and the shortest DPP. Given that the initial cost is inversely and directly related to the NPV and DPP, respectively, in the 20-year optimization, the investment amount of the chosen solution is the smallest among the Pareto optimal solutions. Hence, the energy efficiency of the selected solution is somewhat poorer compared to the other optimal solutions. The lower the energy demand of the solution, the less likely it is to be chosen by the multi-criteria decision-making (MCDM) methods.
For the 30-year optimization, the TOPSIS and VIKOR methods identified different preferred solutions. TOPSIS awarded the highest score to the same solution selected in the 20-year optimization, primarily because it examined the relative relationships of data features. Because the range of the NPV is narrow, TOPSIS scores were more influenced by the DPP. Therefore, the solution with the lowest DPP and the highest annual energy demand was chosen. Unlike TOPSIS, the VIKOR method allows users to define the importance of the objectives. In this study, NPV and DPP were treated equally. As a result, a solution that balances NPV and DPP received the lowest score from the VIKOR method, resulting in an annual energy demand of 9.5 MWh per year—the average of the Pareto optimal solutions.
These findings demonstrate that both the evaluation periods and the MCDM method influence occupants′ retrofit choices. To encourage more environmentally friendly solutions, the period for NPV calculation should be carefully considered.
Figure 15 provides a comparison of the building′s energy demand before and after the retrofit across the years 2010 to 2019. The annual energy demand for the pre-retrofit building oscillated between 20 and 27 MWh. The retrofit significantly curtailed this annual energy demand, most notably for the solution chosen by VIKOR in the 30-year optimization scenario. The record for the lowest annual energy demand with this approach was a little over 3 MWh in 2015, whereas the same record for the pre-retrofit building was approximately 25 MWh. Even though the other three selected solutions did not reach the same energy efficiency as the VIKOR-chosen 30-year optimization solution, they still managed to cap their maximum annual energy demands at around 12 MWh, which represents a reduction of over 50% compared to the pre-retrofit building.
Figure 15.
Energy performance of the preferred solutions during 2010–2019.
4.5. The Optimized Retrofit Design
Figure 16 and Figure 17 illustrate the optimal designs of the retrofit, including the configurations of the building envelope and renewable energy facilities. These figures reveal that the preferences for optimal designs (that is, the Pareto optimal solutions) can vary when taking into account different lengths of building operation.
Figure 16.
Design parameters of the nondominated solutions for the 30-year period optimization.
Figure 17.
Design parameters of the nondominated solutions for the 20-year period optimization.
When considering roof solar absorptance, most Pareto optimal solutions in the 30-year optimization selected a value of 0.4 or 0.5, whereas values ranging from 0.1 to 0.4 and 0.8 were chosen by the 20-year optimization solutions. All window types except for type 3 were selected by the 20-year optimization solutions, whereas only types 2, 4, 7, and 8 were preferred by the 30-year optimization solutions. Notably, none of the 30-year Pareto optimal solutions selected the original window type, even though accepting window types 1 as the optimal solution would not necessitate additional retrofit investment. This result suggests that particular attention should be given to retrofitting south-facing windows due to their significant solar exposure, which is greater than the other vertical orientations [67]. In terms of north-facing glazing type selection, type 4 was chosen by the majority of the 20-year Pareto optimal solutions, whereas types 1, 2, 4, and 5 were frequently chosen in the 30-year optimization. Both sets of Pareto optimal solutions tended to add overhangs to both southern and northern windows, with the average widths being greater for the 30-year optimization. This pattern′s complexity likely stems from the fact that while they reduce solar heat gain, they also curtail daylighting performance, particularly for windows facing directions without excessive solar heat gain. Nonetheless, an adequate overhang length remained a desirable feature.
Similar preferences emerged between the two optimizations. All the Pareto optimal solutions leaned towards not incorporating an insulation layer in the external walls, and opted for a solar absorptance value of 0.1. Similarly, the roof insulation thickness for the optimal solutions ranged from 0.02 to 0.08 for the 20-year operation period, and from 0.02 to 0.09 for the 30-year operation period.
Regarding renewable energy, all optimization methods unanimously advocated for maximizing rooftop PV coverage. This consensus suggests that, given the local climate and the cost of PV systems, the PV system is likely to yield a higher economic return than the initial investment within two decades. For the 20-year optimization, both the TOPSIS and VIKOR methods favored polycrystalline solar panels due to their lower cost and quick payback period. However, given the longer operational period for recouping the investment, the VIKOR solution for the 30-year optimization scenario opted for monocrystalline solar panels. Although they come with a longer payback period, they offer a substantial NPV value over an extended period of 30 years.
It is worth mentioning that the Pareto Front constitutes nondominated solutions that balance energy consumption and economic return. While some nondominated solutions may not reduce energy need significantly due to the high building retrofit investment, their energy consumption was reduced because part of the energy was covered by a PV system, which makes them acceptable choices in terms of the energy-saving goal.
5. Discussion
Given the substantial stock of existing residential buildings, significant energy efficiency improvements are crucial for sustainable development, and can greatly contribute towards meeting carbon emission targets. Therefore, for reasons of energy security and ecological preservation, it is recommended that long-term cost-effectiveness be considered when formulating renovation plans. Although economically beneficial in the long run, retrofit plans with better energy performance often come with high initial costs. This can make it challenging for residents to choose such plans, due to the sizeable one-time investment required. Not every household has the financial capacity to invest in extensive building renovations. Because building energy efficiency upgrades are not merely a private concern, but a societal issue, the economic burden of retrofitting buildings should not rest solely on the occupants. Society at large should provide adequate support to promote comprehensive renovation efforts for older residential buildings.
The financial benefits of retrofitting to residents are crucial to reducing energy demands and meeting carbon emission targets of existing buildings. While substantial retrofitting to reduce carbon emissions is preferable, residents can be deterred by the sizable initial investment and the uncertain future energy savings, particularly if their expected tenure in the building is limited and unlikely to yield substantial savings. This situation can vary significantly among different occupants within the same building, presenting a unique challenge for retrofits from an energy perspective. Beyond direct financial incentives, illustrating the long-term financial benefits of retrofitting is crucial to motivating residents. It is always recommended to include a long-term perspective in retrofit design optimization to improve building energy performance. Additionally, the choice of decision-making method can significantly impact the implementation of a retrofit plan. Respecting residents′ preferences, it is suggested to use an appropriate method to explain the long-term economic benefits of a highly energy-efficient building to them.
The parameters set in building performance assessments profoundly influence the results [68]. A notable limitation of our current study pertains to the omission of individual thermal adaptation differences and occupant adaptive behavior from our calculations. Prior research demonstrates significant variations in thermal comfort requirements among different occupant groups [69]. Moreover, studies have shown that adaptive behaviors, such as utilizing ceiling fans, can greatly enhance thermal comfort while conserving cooling energy in hot and humid regions [70]. These issues will be taken into consideration in our forthcoming research.
Another critical limitation to our study should be highlighted. We have predominantly investigated traditional retrofit measures. While these can yield a substantial 80% annual energy saving, they may not necessarily lead to significant short-term economic benefits. It is important to underscore that this research represents merely the inaugural effort in a broader series of studies dedicated to exploring energy conservation in residential buildings located within hot and humid climates through retrofitting. Future research endeavors will aim to examine the potential impacts of emerging technologies and materials on enhancing building energy efficiency.
6. Conclusions
In this study, we employed the NSGA-II algorithm to optimize the retrofitting of an existing residential building located in the hot–humid region of southern China, taking into account current climatic uncertainties. The optimization considered multiple objectives, including annual energy demand, net present value (NPV), and discounted payback period (DPP), along with economic factors such as inflation rates and market interest. Ten common retrofit strategies were integrated into the optimization, encompassing the enhancement of the building envelope′s thermal properties, shading installations, and the implementation of a PV system. The impacts of the anticipated operational period and the decision-making methodology used on the retrofit selection were also explored.
Our findings demonstrate that retrofitting can drastically enhance a building′s energy performance. The energy demand of all optimal solutions, ranging from 5.3 MWh to 9.4 MWh, significantly decreased compared to the pre-retrofit demand of approximately 28.7 MWh. Based on the NPV and DPP of the nondominated solutions, we conclude that retrofitting the building can both conserve energy and bring about economic benefits for residents, suggesting the alignment of social and private goals. However, due to the influence of retrofit investment on energy efficiency, the economic advantages of high-performance retrofitted buildings may take some time to manifest. Larger investments can be justified by lower operating costs if longer operational or dwelling periods are anticipated. Simultaneously, the choice of optimal design parameters fluctuated based on the length of the timespan under consideration. The decision-making methodology′s approach to balancing NPV and DPP objectives also impacted the energy demand analysis of the retrofitted building. Ultimately, we recommend societal and governmental support to facilitate an optimization that fulfills both the carbon reduction responsibilities of society and the cost-saving requirements of individual energy users.
Author Contributions
Conceptualization, X.Y. and Y.Z.; methodology, X.Y. and Y.Z.; software, Z.C.; validation, Z.C. and F.W.; investigation, Z.C.; resources, F.W.; writing—original draft preparation, X.Y.; writing—review and editing, X.Y. and Y.Z.; visualization, Z.C.; supervision, Y.Z. and F.W.; funding acquisition, Y.Z. and F.W. All authors have read and agreed to the published version of the manuscript.
Funding
This research was funded by Guangdong Basic and Applied Basic Research Foundation (grant No. 2023A1515011364), State Key Laboratory of Subtropical Building Science (Grant No. 2022ZB06), Guangzhou Municipal Science and Technology Bureau (grant No. SL2022A04J00345), Science, National Undergraduates′ Innovation and Entrepreneurship Training Program (grant No. S202311078012), and Technology Program of Guangzhou University (grant No. PT252022006).
Data Availability Statement
Data are available on request due to privacy restrictions.
Conflicts of Interest
The authors declare no conflict of interest.
References
- EIA. International Energy Outlook International Energy Outlook; U.S. Energy Information Administration: Washington, DC, USA, 2016.
- Berardi, U. A cross-country comparison of the building energy consumptions and their trends. Resour. Conserv. Recycl. 2017, 123, 230–241. [Google Scholar] [CrossRef]
- China Association of Building Energy Efficiency. China Building Energy Consumption Annual Report 2020. Build. Energy Effic. 2021, 49, 1–6. [Google Scholar] [CrossRef]
- Benachio, G.L.F.; Freitas, M.d.C.D.; Tavares, S.F. Circular economy in the construction industry: A systematic literature review. J. Clean. Prod. 2020, 260, 121046. [Google Scholar] [CrossRef]
- Tan, Y.; Liu, G.; Zhang, Y.; Shuai, C.; Shen, G.Q. Green retrofit of aged residential buildings in Hong Kong: A preliminary study. Build. Environ. 2018, 143, 89–98. [Google Scholar] [CrossRef]
- Zhang, J.; Liu, N.; Wang, S. A parametric approach for performance optimization of residential building design in Beijing. Build. Simul. 2020, 13, 223–235. [Google Scholar] [CrossRef]
- Zhang, J.; Liu, N.; Wang, S. Generative design and performance optimization of residential buildings based on parametric algorithm. Energy Build. 2021, 244, 111033. [Google Scholar] [CrossRef]
- Cao, X.; Yao, R.; Ding, C.; Zhou, N.; Yu, W.; Yao, J.; Xiong, J.; Xu, Q.; Pan, L.; Li, B. Energy-quota-based integrated solutions for heating and cooling of residential buildings in the Hot Summer and Cold Winter zone in China. Energy Build. 2021, 236, 110767. [Google Scholar] [CrossRef]
- Laetitia, M.; Jiyun, S.; Alan, S.C.; Shuqin, C.; Jindong, W.; Wei, Y.; Jie, X.; Qiulei, Z.; Jian, G.; Meng, L.; et al. The hot summer-cold winter region in China: Challenges in the low carbon adaptation of residential slab buildings to enhance comfort. Energy Build. 2020, 223, 110181. [Google Scholar] [CrossRef]
- Pachauri, R.K.; Mayer, L. (Eds.) Climate Change 2014: Synthesis Report; Intergovernmental Panel on Climate Change: Geneva, Switzerland, 2015; ISBN 9789291691432.
- He, Q.; Hossain, M.U.; Ng, S.T.; Augenbroe, G. Identifying practical sustainable retrofit measures for existing high-rise residential buildings in various climate zones through an integrated energy-cost model. Renew. Sustain. Energy Rev. 2021, 151, 111578. [Google Scholar] [CrossRef]
- Monna, S.; Juaidi, A.; Abdallah, R.; Albatayneh, A.; Dutournie, P.; Jeguirim, M. Towards Sustainable Energy Retrofitting, a Simulation for Potential Energy Use Reduction in Residential Buildings in Palestine. Energies 2021, 14, 3876. [Google Scholar] [CrossRef]
- Hart, R.; Selkowitz, S.; Curcija, C. Thermal performance and potential annual energy impact of retrofit thin-glass triple-pane glazing in US residential buildings. Build. Simul. 2019, 12, 79–86. [Google Scholar] [CrossRef]
- Pungercar, V.; Zhan, Q.; Xiao, Y.; Musso, F.; Dinkel, A.; Pflug, T. A new retrofitting strategy for the improvement of indoor environment quality and energy efficiency in residential buildings in temperate climate using prefabricated elements. Energy Build. 2021, 241, 110951. [Google Scholar] [CrossRef]
- Sarihi, S.; Mehdizadeh Saradj, F.; Faizi, M. A Critical Review of Façade Retrofit Measures for Minimizing Heating and Cooling Demand in Existing Buildings. Sustain. Cities Soc. 2021, 64, 102525. [Google Scholar] [CrossRef]
- Saretta, E.; Caputo, P.; Frontini, F. A review study about energy renovation of building facades with BIPV in urban environment. Sustain. Cities Soc. 2019, 44, 343–355. [Google Scholar] [CrossRef]
- Qu, K.; Chen, X.; Wang, Y.; Calautit, J.; Riffat, S.; Cui, X. Comprehensive energy, economic and thermal comfort assessments for the passive energy retrofit of historical buildings—A case study of a late nineteenth-century Victorian house renovation in the UK. Energy 2021, 220, 119646. [Google Scholar] [CrossRef]
- Cho, H.M.; Yang, S.; Wi, S.; Chang, S.J.; Kim, S. Hygrothermal and energy retrofit planning of masonry façade historic building used as museum and office: A cultural properties case study. Energy 2020, 201, 117607. [Google Scholar] [CrossRef]
- Hajare, A.; Elwakil, E. Integration of life cycle cost analysis and energy simulation for building energy-efficient strategies assessment. Sustain. Cities Soc. 2020, 61, 102293. [Google Scholar] [CrossRef]
- Sağlam, N.G.; Yılmaz, A.Z.; Becchio, C.; Corgnati, S.P. A comprehensive cost-optimal approach for energy retrofit of existing multi-family buildings: Application to apartment blocks in Turkey. Energy Build. 2017, 150, 224–238. [Google Scholar] [CrossRef]
- Ascione, F.; Bianco, N.; Mauro, G.M.; Napolitano, D.F. Knowledge and energy retrofitting of neighborhoods and districts. A comprehensive approach coupling geographical information systems, building simulations and optimization engines. Energy Convers. Manag. 2021, 230, 113786. [Google Scholar] [CrossRef]
- Prabatha, T.; Hewage, K.; Karunathilake, H.; Sadiq, R. To retrofit or not? Making energy retrofit decisions through life cycle thinking for Canadian residences. Energy Build. 2020, 226, 110393. [Google Scholar] [CrossRef]
- Tahsildoost, M.; Zomorodian, Z. Energy, carbon, and cost analysis of rural housing retrofit in different climates. J. Build. Eng. 2020, 30, 101277. [Google Scholar] [CrossRef]
- Liu, Y.; Liu, T.; Ye, S.; Liu, Y. Cost-benefit analysis for Energy Efficiency Retrofit of existing buildings: A case study in China. J. Clean. Prod. 2018, 177, 493–506. [Google Scholar] [CrossRef]
- Ahmed, W.; Asif, M. BIM-based techno-economic assessment of energy retrofitting residential buildings in hot humid climate. Energy Build. 2020, 227, 110406. [Google Scholar] [CrossRef]
- Shi, X.; Tian, Z.; Chen, W.; Si, B.; Jin, X. A review on building energy efficient design optimization rom the perspective of architects. Renew. Sustain. Energy Rev. 2016, 65, 872–884. [Google Scholar] [CrossRef]
- Wang, H.; Zhai, Z. Advances in building simulation and computational techniques: A review between 1987 and 2014. Energy Build. 2016, 128, 319–335. [Google Scholar] [CrossRef]
- Energyplus. Available online: https://energyplus.net/ (accessed on 6 March 2023).
- TRNSYS. Available online: http://www.trnsys.com/ (accessed on 6 March 2023).
- IDA ICE. Available online: https://www.equa.se/en/ida-ice (accessed on 6 March 2023).
- Taveres-Cachat, E.; Lobaccaro, G.; Goia, F.; Chaudhary, G. A methodology to improve the performance of PV integrated shading devices using multi-objective optimization. Appl. Energy 2019, 247, 731–744. [Google Scholar] [CrossRef]
- Giouri, E.D.; Tenpierik, M.; Turrin, M. Zero energy potential of a high-rise office building in a Mediterranean climate: Using multi-objective optimization to understand the impact of design decisions towards zero-energy high-rise buildings. Energy Build. 2020, 209, 109666. [Google Scholar] [CrossRef]
- Naderi, E.; Sajadi, B.; Behabadi, M.A.; Naderi, E. Multi-objective simulation-based optimization of controlled blind specifications to reduce energy consumption, and thermal and visual discomfort: Case studies in Iran. Build. Environ. 2020, 169, 106570. [Google Scholar] [CrossRef]
- Zhai, Y.; Wang, Y.; Huang, Y.; Meng, X. A multi-objective optimization methodology for window design considering energy consumption, thermal environment and visual performance. Renew. Energy 2019, 134, 1190–1199. [Google Scholar] [CrossRef]
- Salata, F.; Ciancio, V.; Dell’Olmo, J.; Golasi, I.; Palusci, O.; Coppi, M. Effects of local conditions on the multi-variable and multi-objective energy optimization of residential buildings using genetic algorithms. Appl. Energy 2020, 260, 114289. [Google Scholar] [CrossRef]
- Rosso, F.; Ciancio, V.; Dell’Olmo, J.; Salata, F. Multi-objective optimization of building retrofit in the Mediterranean climate by means of genetic algorithm application. Energy Build. 2020, 216, 109945. [Google Scholar] [CrossRef]
- Baldoni, E.; Coderoni, S.; D’Orazio, M.; Di Giuseppe, E.; Esposti, R. The role of economic and policy variables in energy-efficient retrofitting assessment. A stochastic Life Cycle Costing methodology. Energy Policy 2019, 129, 1207–1219. [Google Scholar] [CrossRef]
- Tavakolan, M.; Mostafazadeh, F.; Jalilzadeh Eirdmousa, S.; Safari, A.; Mirzaei, K. A parallel computing simulation-based multi-objective optimization framework for economic analysis of building energy retrofit: A case study in Iran. J. Build. Eng. 2022, 45, 103485. [Google Scholar] [CrossRef]
- Ascione, F.; Bianco, N.; Mauro, G.M.; Napolitano, D.F. Retrofit of villas on Mediterranean coastlines: Pareto optimization with a view to energy-efficiency and cost-effectiveness. Appl. Energy 2019, 254, 113705. [Google Scholar] [CrossRef]
- Ascione, F.; Bianco, N.; Iovane, T.; Mauro, G.M.; Napolitano, D.F.; Ruggiano, A.; Viscido, L. A real industrial building: Modeling, calibration and Pareto optimization of energy retrofit. J. Build. Eng. 2020, 29, 101186. [Google Scholar] [CrossRef]
- Panagiotidou, M.; Aye, L.; Rismanchi, B. Optimisation of multi-residential building retrofit, cost-optimal and net-zero emission targets. Energy Build. 2021, 252, 111385. [Google Scholar] [CrossRef]
- Zhang, H.; Hewage, K.; Prabatha, T.; Sadiq, R. Life cycle thinking-based energy retrofits evaluation framework for Canadian residences: A Pareto optimization approach. Build. Environ. 2021, 204, 108115. [Google Scholar] [CrossRef]
- Shaik, S.; Maduru, V.R.; Kontoleon, K.J.; Arıcı, M.; Gorantla, K.; Afzal, A. Building glass retrofitting strategies in hot and dry climates: Cost savings on cooling, diurnal lighting, color rendering, and payback timeframes. Energy 2022, 243, 123106. [Google Scholar] [CrossRef]
- Xia, D.; Lou, S.; Huang, Y.; Zhao, Y.; Li, D.H.W.; Zhou, X. A study on occupant behaviour related to air-conditioning usage in residential buildings. Energy Build. 2019, 203, 109446. [Google Scholar] [CrossRef]
- Li, H.; Huang, J.; Hu, Y.; Wang, S.; Liu, J.; Yang, L. A new TMY generation method based on the entropy-based TOPSIS theory for different climatic zones in China. Energy 2021, 231, 120723. [Google Scholar] [CrossRef]
- Zou, Y.; Guo, J.; Xia, D.; Lou, S.; Huang, Y.; Yang, X.; Zhong, Z. Quantitative analysis and enhancement on passive survivability of vernacular houses in the hot and humid region of China. J. Build. Eng. 2023, 71, 106431. [Google Scholar] [CrossRef]
- Xia, D.; Zhong, Z.; Huang, Y.; Zou, Y.; Lou, S.; Zhan, Q.; Guo, J.; Yang, J.; Guo, T. Impact of coupled heat and moisture transfer on indoor comfort and energy demand for residential buildings in hot-humid regions. Energy Build. 2023, 288, 113029. [Google Scholar] [CrossRef]
- Kheiri, F. A review on optimization methods applied in energy-efficient building geometry and envelope design. Renew. Sustain. Energy Rev. 2018, 92, 897–920. [Google Scholar] [CrossRef]
- Deb, K.; Pratap, A.; Agarwal, S.; Meyarivan, T. A fast and elitist multiobjective genetic algorithm: NSGA-II. IEEE Trans. Evol. Computat. 2002, 6, 182–197. [Google Scholar] [CrossRef]
- Tian, Z.; Zhang, X.; Jin, X.; Zhou, X.; Si, B.; Shi, X. Towards adoption of building energy simulation and optimization for passive building design: A survey and a review. Energy Build. 2018, 158, 1306–1316. [Google Scholar] [CrossRef]
- Queiroz, N.; Westphal, F.S.; Ruttkay Pereira, F.O. A performance-based design validation study on EnergyPlus for daylighting analysis. Build. Environ. 2020, 183, 107088. [Google Scholar] [CrossRef]
- Anđelković, A.S.; Mujan, I.; Dakić, S. Experimental validation of a EnergyPlus model: Application of a multi-storey naturally ventilated double skin façade. Energy Build. 2016, 118, 27–36. [Google Scholar] [CrossRef]
- Royapoor, M.; Roskilly, T. Building model calibration using energy and environmental data. Energy Build. 2015, 94, 109–120. [Google Scholar] [CrossRef]
- Mateus, N.M.; Pinto, A.; Da Graça, G.C. Validation of EnergyPlus thermal simulation of a double skin naturally and mechanically ventilated test cell. Energy Build. 2014, 75, 511–522. [Google Scholar] [CrossRef]
- Ellis, P.G.; Torcellini, P.A. Simulating Tall Buildings Using Energy Plus. In Proceedings of the Ninth International Building Performance Simulation Association Conference, Montréal, QC, Canada, 15–18 August 2005. [Google Scholar]
- Grasshopper. Available online: https://www.grasshopper3d.com/ (accessed on 6 March 2023).
- Ladybug Tools. Available online: https://www.ladybug.tools/ (accessed on 6 March 2023).
- Wallacei. Available online: https://www.wallacei.com/ (accessed on 6 March 2023).
- National Bureau of Statistics of China. Available online: http://www.stats.gov.cn/ (accessed on 6 March 2023).
- GB 50352-2019; Uniform Standard for Design of Civil Buildings. Ministry of Housing and Urban-Rural Development of the People’s Republic of China: Beijing, China, 2019.
- Zou, Y.; Deng, Y.; Xia, D.; Lou, S.; Yang, X.; Huang, Y.; Guo, J.; Zhong, Z. Comprehensive analysis on the energy resilience performance of urban residential sector in hot-humid area of China under climate change. Sustain. Cities Soc. 2023, 88, 104233. [Google Scholar] [CrossRef]
- Nabil, A.; Mardaljevic, J. Useful daylight illuminance: A new paradigm for assessing daylight in buildings. Light. Res. Technol. 2005, 37, 41–57. [Google Scholar] [CrossRef]
- Yu, F.; Wennersten, R.; Leng, J. A state-of-art review on concepts, criteria, methods and factors for reaching ‘thermal-daylighting balance’. Build. Environ. 2020, 186, 107330. [Google Scholar] [CrossRef]
- Liu, S.; Kwok, Y.-T.; Lau, K.; Ng, E. Applicability of different extreme weather datasets for assessing indoor overheating risks of residential buildings in a subtropical high-density city. Build. Environ. 2021, 194, 107711. [Google Scholar] [CrossRef]
- Fosas, D.; Coley, D.A.; Natarajan, S.; Herrera, M.; Fosas de Pando, M.; Ramallo-Gonzalez, A. Mitigation versus adaptation: Does insulating dwellings increase overheating risk? Build. Environ. 2018, 143, 740–759. [Google Scholar] [CrossRef]
- Hatvani-Kovacs, G.; Belusko, M.; Pockett, J.; Boland, J. Heat stress-resistant building design in the Australian context. Energy Build. 2018, 158, 290–299. [Google Scholar] [CrossRef]
- Lee, J.W.; Jung, H.J.; Park, J.Y.; Lee, J.B.; Yoon, Y. Optimization of building window system in Asian regions by analyzing solar heat gain and daylighting elements. Renew. Energy 2013, 50, 522–531. [Google Scholar] [CrossRef]
- Kent, M.G.; Jakubiec, J.A. An examination of range effects when evaluating discomfort due to glare in Singaporean buildings. Light. Res. Technol. 2022, 54, 514–528. [Google Scholar] [CrossRef]
- Wang, Z.; de Dear, R.; Luo, M.; Lin, B.; He, Y.; Ghahramani, A.; Zhu, Y. Individual difference in thermal comfort: A literature review. Build. Environ. 2018, 138, 181–193. [Google Scholar] [CrossRef]
- Lipczynska, A.; Schiavon, S.; Graham, L.T. Thermal comfort and self-reported productivity in an office with ceiling fans in the tropics. Build. Environ. 2018, 135, 202–212. [Google Scholar] [CrossRef]
Disclaimer/Publisher’s Note: The statements, opinions and data contained in all publications are solely those of the individual author(s) and contributor(s) and not of MDPI and/or the editor(s). MDPI and/or the editor(s) disclaim responsibility for any injury to people or property resulting from any ideas, methods, instructions or products referred to in the content. |
© 2023 by the authors. Licensee MDPI, Basel, Switzerland. This article is an open access article distributed under the terms and conditions of the Creative Commons Attribution (CC BY) license (https://creativecommons.org/licenses/by/4.0/).
















