Review of Underground Mining Methods in World-Class Base Metal Deposits: Experiences from Poland and Chile
Abstract
1. Introduction
2. Chilean and Polish World-Class Base Metal Deposits
3. Chilean Study Cases
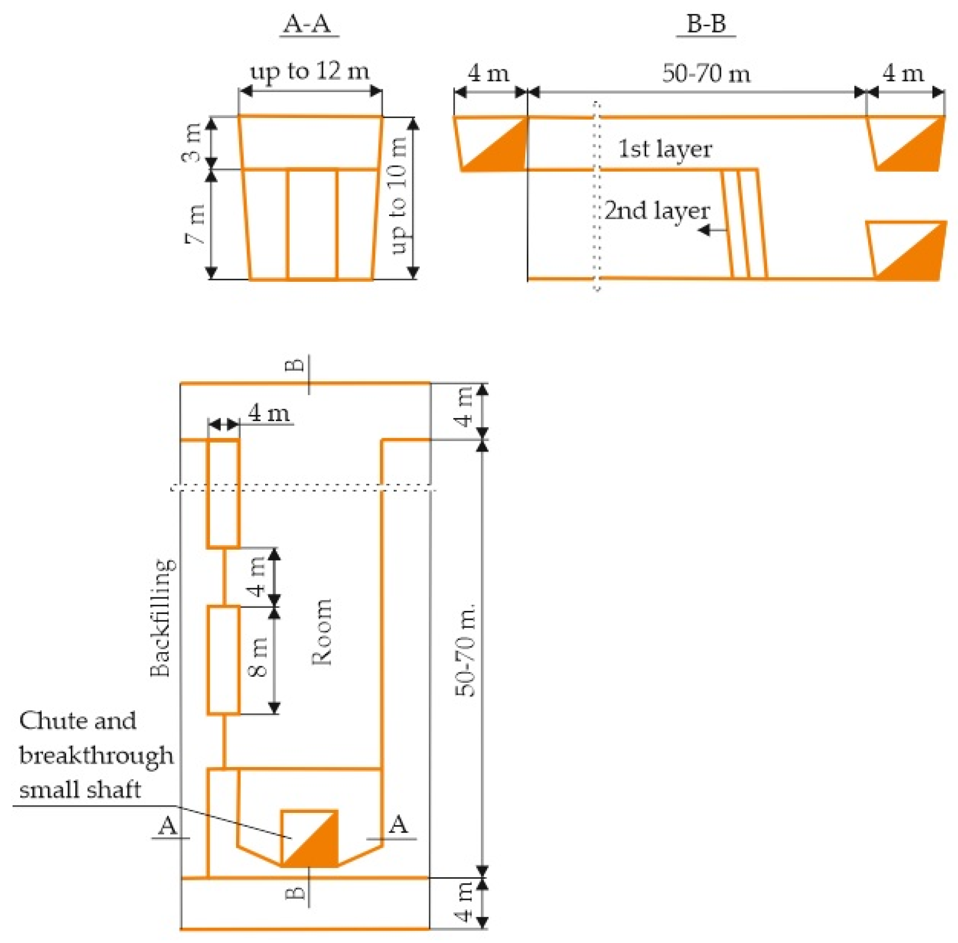
3.1. Copper Exploitation in the Coquimbo Region
3.1.1. Underground Mining Method
3.1.2. Mining Support
3.1.3. Equipment
3.2. Copper and Molybdenum Exploitation in the Antofagasta Region
3.2.1. Underground Mining Method
3.2.2. Mining Support
3.2.3. Equipment
3.3. Copper and Molybdenum Exploitation in the O’Higgins Region
3.3.1. Underground Mining Method
3.3.2. Mining Support
3.3.3. Equipment
4. Poland Study Cases
4.1. Zinc and Lead Exploitation in the Chrzanów Region
4.2. Zinc and Lead Exploitation in the Olkusz Region
4.3. Copper Exploitation in the Legnica–Głogów Copper District
5. Discussion
Author Contributions
Funding
Data Availability Statement
Conflicts of Interest
References
- Nordlund, E. Preface of Mass Min 2008 Proceedings. In Proceedings of the 5th Conference and Exhibition on Mass Mining, Luleå, Sweden, 9–11 June 2008. [Google Scholar]
- Ladinig, T.; Wimmer, M.; Wagner, H. Raise Caving: A Novel Mining Method for (Deep) Mass Mining. In Proceedings of the Fifth International Conference on Block and Sublevel Caving, Adelaide, SA, Australia, 30 August–1 September 2022; pp. 651–666. [Google Scholar]
- Rybak, J.M.; Kongar-Syuryun, C.; Tyulyaeva, Y.; Khayrutdinov, A.M.; Akinshin, I. Geomechanical substantiation of parameters of technology for mining salt deposits with a backfill. Min. Sci. 2021, 28, 19–32. [Google Scholar] [CrossRef]
- Khayrutdinov, A.M.; Kongar-Syuryun, C.B.; Kowalik, T.; Tyulyaeva, Y.S. Stress-strain behavior control in rock mass using different-strength backfill. Min. Inf. Anal. Bull. 2020, 10, 42–55. [Google Scholar] [CrossRef]
- Kongar-Syuryun, C.; Ubysz, A.; Faradzhov, V. Models and algorithms of choice of development technology of deposits when selecting the composition of the backfilling mixture. IOP Conf. Ser. Earth Environ. Sci. 2021, 684, 012008. [Google Scholar] [CrossRef]
- Singer, D.A. World class base and precious metal deposits; a quantitative analysis. Econ. Geol. 1995, 90, 88–104. [Google Scholar] [CrossRef]
- Laznicka, P. Quantitative relationships among giant deposits of metals. Econ. Geol. 1999, 94, 455–473. [Google Scholar] [CrossRef]
- Robert, F.; Poulsen, K.H. World-class Archean hydrothermal gold deposits: A Canadian perspective. Geol. Soc. Aust. Abstr. 1996, 41, 368. [Google Scholar]
- Yang, Z.M.; Cooke, D.R. Porphyry copper deposits in China. In Mineral Deposits of China, Society of Economic Geologists; Zhaoshan, C., Richards, G., Eds.; Society of Economic Geologists: Littleton, CO, USA, 2019; pp. 133–187. Available online: https://eprints.utas.edu.au/32587/ (accessed on 18 December 2022).
- Redwood, S.D. The mineral deposits of Panama: Arc metallogenesis on the trailing edge of the Caribbean large igneous province. Boletin de la Soc. Geol. Mex. 2020, 72, A130220. [Google Scholar] [CrossRef]
- Tabelin, C.B.; Park, I.; Phengsaart, T.; Jeon, S.; Villacorte-Tabelin, M.; Alonzo, D.; Yoo, K.; Ito, M.; Hiroyoshi, N. Copper and critical metals production from porphyry ores and E-wastes: A review of resource availability, processing/recycling challenges, socio-environmental aspects, and sustainability issues. Resour. Conserv. Recycl. 2021, 170, 105610. [Google Scholar] [CrossRef]
- Hao, H.; Park, J.-W.; Campbell, I.H. Role of magma differentiation depth in controlling the Au grade of giant porphyry deposits. Earth Planet. Sci. Lett. 2022, 593, 117640. [Google Scholar] [CrossRef]
- Chiaradia, M.; Caricchi, L. Supergiant porphyry copper deposits are failed large eruptions. Commun. Earth Environ. 2022, 3, 117864. [Google Scholar] [CrossRef]
- Brown, A.C. World-class sediment-hosted stratiform copper deposits: Characteristics, genetic concepts and metallotects. Aust. J. Earth Sci. 1997, 44, 317–328. [Google Scholar] [CrossRef]
- Sillitoe, R.H. Copper provinces. Soc. Econ. Geol. 2012, 16, 1–18. [Google Scholar]
- Cooke, D.R.; Hollings, P.; Walshe, J.L. Giant porphyry deposits: Characteristics, distribution, and tectonic controls. Econ. Geol. 2005, 100, 801–818. [Google Scholar] [CrossRef]
- del Real, I.; Thompson, J.; Simon, A.C.; Reich, M. Geochemical and Isotopic Signature of Pyrite as a Proxy for Fluid Source and Evolution in the Candelaria-Punta del Cobre Iron Oxide Copper-Gold District, Chile. Econ. Geol. 2020, 115, 1493–1518. [Google Scholar] [CrossRef]
- Zamora, A. Geología Proyecto Las Luces; Internal report; Compañía Minera Las Cenizas: Cabildo, Chile, 2011. [Google Scholar]
- Cabral, A.R.; Beaudoin, G. Volcanic red-bed copper mineralisation related to submarine basalt alteration, Mont Alexandre, Quebec Appalachians, Canada. Miner. Depos. 2007, 42, 901–912. [Google Scholar] [CrossRef]
- López, J. M Geología y Microtermometría del Yacimiento Estratoligado Don Gabriel. Comuna de Salamanca, Región de Coquimbo, Chile. Master’s Thesis, Universidad de Concepción, Concepción, Chile, 2010. [Google Scholar]
- Maksaev, V. Chilean Strata-Bound Cu-(Ag) Deposits: An Overview. In Hydrothermal Iron Oxide Copper-Gold and Related Deposits: A Global Perspective; Porter, T.M., Ed.; Publishers Group Canada: Vancouver, BC, Canada, 2002; pp. 185–205. [Google Scholar]
- MTV. Minera Tres Valles Copper Project, Salamanca, Coquimbo, Chile; NI43–101 Technical Report; Minera Tres Valles Sprott Resource Holdings Inc.: Coquimbo, Chile, 2018. [Google Scholar]
- Boric, R.; Holmgren, C.; Wilson, N.S.F. The Geology of the El Soldado Manto type Cu (Ag) Deposit, Central Chile. In Hydrothermal Iron Oxide Copper-Gold and Related Deposits: A global Perspective; Porter, T.M., Ed.; Publishers Group Canada: Vancouver, BC, Canada, 2002; pp. 163–184. [Google Scholar]
- Movahednia, M.; Maghfouri, S.; Fazli, N.; Rastad, E.; Ghaderi, M.; González, F.J. Metallogeny of Manto-type Cu-(Ag) mineralization in Iran: Relationship with Neo-Tethyan evolution and implications for future exploration. Ore Geol. Rev. 2022, 149, 105064. [Google Scholar] [CrossRef]
- Cox, D.P.; Lindsey, D.A.; Singer, D.A.; Moring, B.C.; Diggles, M.F. Sediment-Hosted Copper Deposits of the World: Deposit Models and Database. Sci. Chang. World 2003. Available online: http://pubs.usgs.gov/of/2003/of03-107/ (accessed on 18 December 2022).
- Hitzman, M.; Kirkham, R.; Broughton, D.; Thorson, J.; Selley, D. The Sediment-Hosted Stratiform Copper Ore System. Econ. Geol. 2005, 609–642. [Google Scholar] [CrossRef]
- Oszczepalski, S.; Speczik, S.; Zieliński, K.; Chmielewski, A. The Kupferschiefer Deposits and Prospects in SW Poland: Past, Present and Future. Minerals 2019, 9, 592. [Google Scholar] [CrossRef]
- De Vos, W.; Batista, M.J.; Demetriades, A.; Duris, M.; Lexa, J.; Lis, J.; Marsina, K.; O’Connor, P.J. Metallogenic mineral provinces and world class ore deposits in Europe. Geochem. Atlas Eur. 2005, 1, 43–49. [Google Scholar]
- Sass-Gustkiewicz, M.; Kwiecinska, B. Organic matter in the Upper Silesian (mississippi valley-type) deposits, Poland. Econ. Geol. 1999, 94, 981–992. [Google Scholar] [CrossRef]
- Paradis, S.; Hannigan, P.; Dewing, K. Mississippi Valley-Type Lead-Zinc Deposits. In Mineral Deposits of Canada: A Synthesis of Major Deposit-Types, District Metallogeny, the Evolution of Geological Provinces, and Exploration Methods; Goodfellow, W.D., Ed.; Geological Association of Canada, Mineral Deposit Division: St. John’s, NL, USA, 2007; pp. 185–203. [Google Scholar]
- Szuwarzyński, M. Ore bodies in the Silesian-Cracow Zn-Pb ore district, Poland. Pol. Geol. Inst. Spec. Pap. 1996, 154, 9–24. [Google Scholar]
- Kurek, S. Problems of modelling of Zn-Pb ores of the Mississippi Valley-type in the sediments of the Younger Paleozoic. Geol. Q. 1993, 37, 147–156. [Google Scholar]
- Gómez, R.; Labbé, E. Una opción para el paso a la minería subterránea masiva: La actual metodología aplicada en Chile del “block caving”. Bol. Inst. Geol. 2019, 130, 181–198. [Google Scholar] [CrossRef]
- Araneda, O. Codelco: Present, Future and Excellence in Projects. In Proceedings of the Eighth International Conference & Exhibition on Mass Mining 2020, Virtual, 9–11 December 2020; pp. 1–9. [Google Scholar]
- Arancibia, E.; Flores, G. Design for Underground Mining at Chuquicamata Orebody, Scoping Engineering Stage. In Proceedings of the International Conference & Exhibition on Mass Mining 2004, Santiago, Chile, 22–25 August 2004; pp. 603–608. [Google Scholar]
- Villa, D.; Baraqui, J.; Maass, S. Papomono Mine Modelled as an Inclined Cave. In Proceedings of the Eighth International Conference & Exhibition on Mass Mining 2020, Virtual, 9–11 December 2020; pp. 182–194. [Google Scholar]
- Laubscher, D.H. Cave mining-the state of the art. J. South. Afr. Inst. Min. Metall. 1994, 94, 279–293. [Google Scholar]
- Edwin, E.T.; Brown, T. Block Caving Geomechanics, 2nd ed.; Julius Kruttschnitt Mineral Research Centre: Indooroopilly, QL, Australia, 2007. [Google Scholar]
- Flores, G. Future Challenges and Why Cave Mining Must Change. In Proceedings of the 3rd International Symposium on Block and Sublevel Caving, Santiago, Chile, 5–6 June 2014; pp. 23–52. [Google Scholar]
- Fairhurst, C. Some challenges of deep mining. Engineering 2017, 3, 527–537. [Google Scholar] [CrossRef]
- Tshisens, J.N.; Moss, A.; Sullivan, M.; Yuniar, A.; Casten, T.; Zimmer, C. Organising for the Successful Management of Complex Underground Caving Mines. In Proceedings of the Fifth International Conference on Block and Sublevel Caving, Adelaide, SA, Australia, 30 August–1 September 2022; pp. 81–94. [Google Scholar]
- Sillitoe, R. Epochs of intrusion-related copper mineralization in the Andes. J. South Am. Earth Sci. 1988, 1, 89–108. [Google Scholar] [CrossRef]
- Barra, F.; Alcota, H.; Rivera, S.; Valencia, V.; Munizaga, F.; Maksaev, V. Timing and formation of porphyry Cu–Mo mineralization in the Chuquicamata district, northern Chile: New constraints from the Toki cluster. Miner. Deposita 2013, 48, 629–651. [Google Scholar] [CrossRef]
- Flores, G.; Catalan, A. A transition from a large open pit into a novel “macroblock variant” block caving geometry at Chuquicamata mine, Codelco Chile. J. Rock Mech. Geotech. Eng. 2018, 11, 549–561. [Google Scholar] [CrossRef]
- Arancibia, E.; Carrasco, F.; Fuentes, G.; Guarda, J. Design of Extraction Layout for the Chuquicamata Underground Mine Project. In Proceedings of the International Conference & Exhibition on Mass Mining 2008, Luleå Sweden, 9–11 June 2008; pp. 3–14. [Google Scholar]
- Mühlenbrock, K.; Silva, D.; Navarrete, R.; Mardonez, L. Construction of the First Macro Block at the Chuquicamata Underground Project. In Proceedings of the Eighth International Conference & Exhibition on Mass Mining, the Eighth International Conference & Exhibition on Mass Mining 2020, Virtual, 9–11 December 2020; pp. 127–139. [Google Scholar]
- Mülhembrock, K. Preparación Minera GRMD. Concepción 2022, 47. [Google Scholar]
- Cannell, J.; Cooke, D.R.; Walshe, J.L.; Stein, H. Geology, Mineralization, Alteration, and Structural Evolution of the El Teniente Porphyry Cu-Mo Deposit. Econ. Geol. 2005, 100, 979–1003. [Google Scholar] [CrossRef]
- Brzovic, A.; Villaescusa, E. Rock mass characterization and assessment of block-forming geological discontinuities during caving of primary copper ore at the El Teniente mine, Chile. Int. J. Rock Mech. Min. Sci. 2007, 44, 565–583. [Google Scholar] [CrossRef]
- Castro, R.; Garces, D.; Brzovic, A.; Armijo, F. Quantifying Wet Muck Entry Risk for Long-term Planning in Block Caving. Rock Mech. Rock Eng. 2018, 51, 2965–2978. [Google Scholar] [CrossRef]
- Pozo, R.; Díaz, G.; Medina, O. Centro Integrado de Construcción en Obras de Minería Subterránea, Proyecto Nuevo Nivel Mina El Teniente. In Proceedings of the UMining 2016, 1er Congreso Internacional en Minería Subterránea, Santiago, Chile, 19–21 October 2016; pp. 299–312. [Google Scholar]
- Ritter, C. Effect of Constructability in Underground Mining under High Stress Conditions. Ph.D. Thesis, Universidad de Concepción, Concepción, Chile, 2018. (In Spanish). [Google Scholar]
- Kurek, T. Perspectives of Development of Zn-Pb ore Exploitation in the Safety Pillars of ‘Trzebionka’ Mine’; AGH: Kraków, Poland, 1987. (In Polish) [Google Scholar]
- Piechota, S. Basic principles of the exploitation of thick ore deposits. Ores Non Ferr. Met. 1973, 18, 172–177. (In Polish) [Google Scholar]
- Roszkowski, J.; Piechota, S. About some problems of the exploitation of zinc-lead ore deposits. Ores Non Ferr. Met. 1979, 24, 472–478. [Google Scholar]
- Skrzypkowski, K. Decreasing Mining Losses for the Room and Pillar Method by Replacing the Inter-Room Pillars by the Construction of Wooden Cribs Filled with Waste Rocks. Energies 2020, 13, 3564. [Google Scholar] [CrossRef]
- Skrzypkowski, K. Comparative Analysis of the Mining Cribs Models Filled with Gangue. Energies 2020, 13, 5290. [Google Scholar] [CrossRef]
- Piechota, S. Development of copper ore mining methods in LGOM region. Bull. Polish Geol. Inst. 2007, 423, 23–43. (In Polish) [Google Scholar]
- Piechota, S.; Stopyra, M.; Poborska-Młynarska, K. Systemy Podziemnej Eksploatacji Złóż Węgla Kamiennego, Rud i Soli; AGH: Kraków, Poland, 2009. (In Polish) [Google Scholar]
- Burta, J. Eksploatacja Złoża Rud Miedzi w Warunkach Zagrożenia Tąpaniami i Zawałami; KGHM Cuprum sp. z o.o. Centrum Badawczo—Rozwojowe: Wrocław, Poland, 2010. [Google Scholar]
- Armijo, F.; Irribarra, S.; Castro, R. Experimental Study of Fines Migration for Caving Mines. In Proceedings of the 3rd International Symposium on Block and Sublevel Caving, Santiago, Chile, 5–6 June 2014; pp. 356–362. [Google Scholar]
- Paredes, P.; Popa, I.; Kline, P.; Sykes, M. Undercutless caving at Newcrest: Towards the Next Generation of Cave Mining. In Proceedings of the Eighth International Conference & Exhibition on Mass Mining 2020, Virtual, 9–11 December 2020; pp. 166–181. [Google Scholar]
- Le-Feaux, R.; Castro, R.; Cortez, D.; Gómez, R.; Silva, D. A hybrid extraction level layout design for block caving. Min. Technol. 2021, 131, 51–65. [Google Scholar] [CrossRef]
- Paredes, P. Evaluation of the Effect of Wider-Spaced Layouts in Recovery for High Column Block Caves. In Proceedings of the Caving 2022: Fifth International Conference on Block and Sublevel Caving, Adelaide, SA, Australia, 30 August–1 September 2022; pp. 393–416. [Google Scholar]
- Cornejo, J.; Meléndez, M.; Lasagna, G.; Bustamante, D.; Castro, R.; Arancibia, L.; Gúzman, D. Design at Drawpoint Spacing at Diamante Project—El Teniente Mine. In Proceedings of the Eighth International Conference & Exhibition on Mass Mining 2020, Virtual, 9–11 December 2020; pp. 761–772. [Google Scholar]



















| Parameter | Unit | Chile | Poland | ||
|---|---|---|---|---|---|
| Copper + Molybdenum (Chuquicamata) | Copper + Molybdenum (El Teniente) | Copper + Silver | Zinc + Lead | ||
| Depth of exploitation | (m) | 100–650 (current level 1) | ~1150 | 800–1300 | 80–120 |
| Annual production | (mln tonnes) | 50.4 (in regimen) | 48.6 | 30 | 1.435 |
| Metal content | (%); (g/Mg for silver) | 0.77 (copper); 450 (ppm Mo) | 0.86 (copper) | 1.28–2.3 (copper); 54.5–62.5 (silver) | 2.6 (zinc); 1.3 (lead) |
| Deposit thickness | (m) | 250 | ~1200 (porphyry diameter in surface) | Thin up to 2 m; medium form 2 to 7 m; Thick more than 7 m | up to 30 m |
| The form of the deposit | Massive | Massive with mineralized veins. | The deposit belongs to the type of stratoid deposits (pseudo-seam) | Lenses and nests | |
| Deposit inclination | (°) | - | - | about 8 | about 5 |
| Access | Tunnels | Tunnels | Vertical shafts | Decline and vertical shafts | |
| The shape of preparatory and mining excavations | Horseshoe | Horseshoe | Trapezoidal | Rectangular with a flat or oval roof | |
| Natural hazards | Rock burst; collapses; spalling | Rck burst; collapses; mudrushes | Rock burst; water; rock and gas outburst; roof falls; climatic (primary temperature of rock mass) | Water | |
| Mining methods | Block caving (Macroblocks) | Block/panel caving | Room and Pillar | Room and Pillar | |
| Liquidation of post-mining space | Subsidence | Subsidence | Bending of roor layers with further caving; hydraulic and dry backfilling | Hydraulic backfilling | |
| Type of explosives | ANFO and Emulsion | ANFO and emulsion | Cartridge (manually loaded); emulsion materials (mechanically loaded) | ||
| Support type | Shotcrete, cement grout rock bolt support, mesh | Shotcrete, cement grout rock bolt support (helical and split set), mesh | Mechanical and resin (full column) rock bolt support. | Resin (full column) rock bolt support. | |
| Additional support | Shotcrete with syntetic fiber, concrete walls, cable bolts, steel frames | Shotcrete over mesh, shotcrete with fibet, concrete walls, cable bolts, steel frames | Cable up to 8 m; wooden cribs; arch yieldig support; steel and wooden props; geosynthetic and steel grids | Wooden cribs; arch yieldig support; wooden props; steel grids | |
Disclaimer/Publisher’s Note: The statements, opinions and data contained in all publications are solely those of the individual author(s) and contributor(s) and not of MDPI and/or the editor(s). MDPI and/or the editor(s) disclaim responsibility for any injury to people or property resulting from any ideas, methods, instructions or products referred to in the content. |
© 2022 by the authors. Licensee MDPI, Basel, Switzerland. This article is an open access article distributed under the terms and conditions of the Creative Commons Attribution (CC BY) license (https://creativecommons.org/licenses/by/4.0/).
Share and Cite
Skrzypkowski, K.; Gómez, R.; Zagórski, K.; Zagórska, A.; Gómez-Espina, R. Review of Underground Mining Methods in World-Class Base Metal Deposits: Experiences from Poland and Chile. Energies 2023, 16, 148. https://doi.org/10.3390/en16010148
Skrzypkowski K, Gómez R, Zagórski K, Zagórska A, Gómez-Espina R. Review of Underground Mining Methods in World-Class Base Metal Deposits: Experiences from Poland and Chile. Energies. 2023; 16(1):148. https://doi.org/10.3390/en16010148
Chicago/Turabian StyleSkrzypkowski, Krzysztof, René Gómez, Krzysztof Zagórski, Anna Zagórska, and Roberto Gómez-Espina. 2023. "Review of Underground Mining Methods in World-Class Base Metal Deposits: Experiences from Poland and Chile" Energies 16, no. 1: 148. https://doi.org/10.3390/en16010148
APA StyleSkrzypkowski, K., Gómez, R., Zagórski, K., Zagórska, A., & Gómez-Espina, R. (2023). Review of Underground Mining Methods in World-Class Base Metal Deposits: Experiences from Poland and Chile. Energies, 16(1), 148. https://doi.org/10.3390/en16010148

