Next Article in Journal
Techno-Economic Analysis of Fluidized Bed Combustion of a Mixed Fuel from Sewage and Paper Mill Sludge
Previous Article in Journal
Data Analytics for Admittance Matrix Estimation of Poorly Monitored Distribution Grids
 
 
Font Type:
Arial Georgia Verdana
Font Size:
Aa Aa Aa
Line Spacing:
Column Width:
Background:
Article

Measurement and Diagnosis of Comfort in a Historic Building

by
Małgorzata Fedorczak-Cisak
*,
Alicja Kowalska-Koczwara
,
Krzysztof Nering
,
Filip Pachla
,
Elżbieta Radziszewska-Zielina
*,
Piotr Stecz
,
Tadeusz Tatara
and
Tomasz Jeleński
Faculty of Civil Engineering, Cracow University of Technology, Warszawska 24, 31-155 Cracow, Poland
*
Authors to whom correspondence should be addressed.
Energies 2022, 15(23), 8963; https://doi.org/10.3390/en15238963
Submission received: 30 September 2022 / Revised: 20 November 2022 / Accepted: 23 November 2022 / Published: 27 November 2022

Abstract

Historic buildings constitute a specific group of buildings where the possibilities of improving energy efficiency and comfort are significantly limited because of the existing construction features and heritage values. Each building has a different history so the scope of renovation and/or retrofitting must be determined individually for each building. This article presents the methodology of measurement and diagnosis of features of particular importance for energy performance and comfort improvements, based on the example of a historic masonry building located in southern Poland. The first research question was which of the comfort conditions have been exceeded according to measurements. The second issue concerned the necessary extension of the basic determinants of comfort, beyond measurable qualities. A multi-faceted approach to the comfort assessment is proposed, including qualitative research that applies the additional criterion of aesthetic comfort. During the case study diagnosis, the acceptable level was exceeded in thermal, acoustic and aesthetic comfort. The first two may be addressed by optimized technical measures whilst the latter through a research-through-design that addresses the complex relationship between the perceiver and what the environment affords. The solution reflects the need to meet demands for retrofits that are energy-efficient and aesthetically pleasing while minimizing any negative impacts on the heritage and the environment.

1. Introduction

Directive (EU) 2018/844 of the European Parliament and of the Council of 30 May 2018 [1] amending Directive 2010/31/EU on the energy performance of buildings [2] introduced for the first time a provision for improving the energy efficiency of heritage buildings. It reads: “Research into, and the testing of, new solutions for improving the energy performance of historical buildings and sites should be encouraged, while also safeguarding and preserving cultural heritage”. It is a very important approach to the subject of improving the energy efficiency of historic buildings, the more that such facilities are used and adapted to new utility functions. In the article, the author presented an innovative approach to the initial diagnosis of the comfort of using historic buildings, based on a survey method or an interview among users. Such a preliminary assessment of the needs and inconvenience of users due to the comfort of work in a historic building will allow the selection of the most needed “in situ” tests. Based on the research, quick remedial decisions can be made and guidelines for future design work can be formulated. At the same time, on the basis of discussions with users of this historic building, it was possible to define a new factor of multi-faceted comfort, the comfort of the aesthetics of the surroundings, which was very much needed by the users of the Wedding Palace to rest in the fresh air among the greenery.

1.1. The State of the Art

Radziszewska-Zielina and Śladowski [3] took up the subject of the renovation and adaptation of historic buildings in their publications, suggesting that during the initial feasibility analysis of the project, various scenarios for the performance of works and related costs should be analyzed. It has been noticed that the process of renovation and adaptation of historic buildings requires the involvement of conscious decision-makers, whose view of its benefits goes beyond the economic aspect [4], as these should be benefits related to sustainable development, including the importance of protecting cultural heritage.
In a series of publications, Fedorczak-Cisak and co-authors analyzed the parameters influencing the choice of renovation technology and the choice of a new form of use of a historic wooden villa in Zakopane. The first research in the series included the proposed criteria and the method of their evaluation in terms of the selection of the renovation variant and the selection of a new form of use [5]. The proposed criteria were of an interdisciplinary nature, related to thermal modernization, comfort of use, financial considerations, social aspects, and protection of cultural heritage, which emphasized the multidimensionality of the problem.
In the next work in the series, a hybrid decision model was proposed for the selection of the scope of renovation and the selection of the form of use for the same building [6]. The article focuses on the widely understood comfort of using the facility, with particular emphasis on thermal comfort. Next [7], the authors analyzed the possibilities of improving the energy performance of the building, which included the assessment of the technical condition using a non-invasive method, the identification of problem areas in the field of thermal modernization, and the use of internal wall insulation due to the historical value of the building elevations.
The thermal diagnostics algorithm of historic buildings was presented by Orlik-Kożdoń et al. [8], based on the example of a historic tenement house in Lviv. Troi and Zeno [9] present a comprehensive approach to modern energy efficiency solutions for historic buildings based on various case studies. They address the acoustic and thermal comfort as well as air quality when considering healthy and comfortable indoor conditions. Jeleński at al. [10] propose a method of systemic analysis of historical buildings and their elements in order to facilitate the decision-making processes involving various stakeholders in the processes of renovation and retrofitting aimed at improvement in energy performance and environmental qualities, well-being and comfort.
The concept of comfort is very broad [11] and in buildings, it covers many aspects including the most obvious thermal comfort [12], humidity [13], and air quality [14]. Increasingly often, it also includes noise [15], but very rarely vibrations propagating through the ground into the building. The relationship between vibration and comfort is mainly considered not in the built environment but in vehicles [16,17]. However, in more densely urbanized areas, buildings are closer to sources of vibration such as roads, railways or trams. This can potentially be disturbing or even harmful not only due to the noise but also the vibrations impacting nearby buildings. The authors [18] investigating the influence of traffic vibrations proved on the example of 12th-century masonry church that road traffic has a significant damaging effect. The causes of the damage to the building were potholes and fractures on the road surface which have increased the vibration to a harmful level.
There is also a certain conflict related to transport vibration in cities that revise their transport policies to be more pedestrian-friendly. On one hand, there is a clear trend toward improving road safety, introducing traffic-calming measures such as speed bumps, chicanes, elevated pedestrian crossings and roundabouts with different types of road surfaces [19]; on the other hand, such measures can increase vibrations [20]. Improving the safety and comfort of street users may impair comfort in adjacent buildings by exposing them to increased vibrations.
Even historic structures listed as UNESCO world heritage sites are subjected to vibrations induced by road traffic. A well-researched example of such a construction is the Roman Colosseum. The condition of heritage structures subject to dynamic influences is determined based on long-term measurements and the basis of numerical analyzes of their models. The results of in situ research are useful in building such models [21]. German standard DIN 4150-3 [22] provides vibration velocity guidelines for use in evaluating the effect of vibration on sensitive/heritage buildings. That standard gives vibration thresholds for structural damage as peak particle velocity at the foundation and uppermost level for frequency range.
Another source of discomfort may be increased moisture in historical masonry structures, which causes wall dampness and damage to the structures and architectural decorations [23] but is also harmful to people, causing fatigue, irritated mucous membranes, respiratory diseases, or frequent headaches. Wall moisture can be tested by non-invasive methods. These tests use tomography based on infrared radiation. An experimental fixture for simultaneous and reliable non-destructive monitoring of moisture, salts, and spontaneous electrical polarization in masonry walls has been proposed by Franzoni and Sandrolini [24]. The method can be used in historical and modern objects.
The problem of humidity comfort appears often in historical buildings. Many of them are characterized by great care in the construction and finishing of the interior. Their disadvantage, however, is the lack of anti-dampness protection [25]. Dampness causes increased energy losses through the building envelope. Thus, in historical masonry and timber buildings, thermal comfort is difficult to achieve, especially in cooler climates. The users of these buildings often use economical, localized or temporary heating that can be destructive to the building and still does not provide full thermal comfort.
A computational model was developed and verified by Sadłowska-Sałęga and Radoń [26] to predict the development of indoor climate in historic buildings, taking into account air temperature, humidity and solar radiation on external surfaces. However, the problem is much broader since old buildings often have leaky windows and doors, which do not provide thermal and acoustic comfort, and wooden floors that strongly respond to internal and external vibrations.

1.2. The Need for Broadening the Research Perspective

Since historic buildings are often subject to conservation protection, improving thermal, acoustic, and vibration comfort is a particular challenge.
The requirements for ensuring thermal comfort in the listed buildings have not been formulated neither in Polish regulations nor in most other countries. Only the above cited Amendment [1] to the Directive on the energy performance of buildings [27] introduced a non-specific provision on improving the energy efficiency of historic buildings. However, the analysis of energy consumption levels according to the age of the building leads to the conclusion that, generally, the older the building, the more energy-consuming it is, thus having a greater potential for improving energy efficiency and thermal comfort. This is evident in the case of European buildings built before 1960 [28] (with some exceptions regarding the ones built before 1890 [29]). They often have no thermal insulation of envelopes, very high U-values of external walls, leaky windows, and other technical deficiencies.
Another aspect, often overlooked by authors dealing with an improvement in the building users’ well-being, is aesthetics. That term fundamentally refers to qualities experienced through sensory perception. The aesthetic comfort depends both on the objective features of a useful and beautiful thing or scenery, and the subjective response of the observer. Aesthetic values apply to both the building itself and its surroundings. Many historical buildings, including our case study, are designed in a garden setting, which is an integral part of the architectural composition. It also needs to be considered an important comfort-related feature.

1.3. Hypotheses, New Approach, and Aims of the Work

This article, based on in situ research, presents the methodology of assessing the energy performance and comfort of a historical building to improve its sensory perception, and the overall comfort of use, which are features of key importance for extending the building’s longevity. We believe that the improved comfort of a building and its site significantly extends its long-term sustainability and helps preserve its heritage value.
We propose an innovative approach providing an integrated assessment of the building’s user comfort to inform the design for comfort improvement. It includes several aspects to study, including the thermal, acoustic, vibrational, microclimatic, and aesthetic value of the building itself and its surroundings.
We argue that in dealing with a historic building, the measurement and assessment of comfort needs to cover various aspects, and the above-mentioned ones are of particular importance. Such a comprehensive approach to the assessment of features improving comfort both inside and outside is an innovative research problem.
Our viewpoint is inspired by environmental aesthetics (EA) [29], the scientific movement toward more ecologically informed aesthetics, that has been developing in recent decades. It exhibits the strong influence of nature on human psychology [30]. Since the human brain and sensory system have been adapted to nature for a long period, most people perceive the natural environment as a comfort and pleasure value that play an important emotional role in enriching the quality of life. Many studies showed that experiencing greenery in urban areas can bring psychological comfort and an improvement in the overall sense of well-being, especially by relieving the level of stress and anxiety, which is an important factor for achieving psychological health and comfort [31].
Regarding garden and landscape features, many studies have also investigated and confirmed [32] the positive impact of greenery and water bodies on people’s thermal comfort [33]. The mechanism of their coupling was analyzed by Fei et al. [34]. Therefore, it is necessary to take into account the external amenities of historic properties when considering the comfort of use [35]. That is particularly important in the urban environments affected by the heat island effect.
Our innovative methodology is based on taking user experiences into account from the very beginning. It is a new approach that assumes that the most important user needs will be defined on the basis of surveys or interviews. On their basis, “in” situ research will be selected and carried out. On the basis of the research, ad hoc repair steps will be taken to the historic building, improving the comfort of use. At the same time, the method provides for the introduction of new aspects that improve comfort. During interviews with seven users of this historic building, discomfort related to the sensations of cold and drafts in the winter was indicated in the first place. In view of the above, a decision was made to test thermal comfort using thermovision tests combined with tightness tests. Another discomfort that the employees complained about was the noise and vibrations coming from a nearby railway line, which was often used by heavy freight trains. The noise also comes from the frequently used expressway from the south of the historic building. So, acoustic and vibration tests were carried out. Users did not complain about the air quality as being acceptable, so no air quality and mycological wall contamination studies were performed. Users assessed the lighting comfort as good. Large windows provided access to daylight. In additional interviews, it turned out that employees badly needed a place to rest during work. The aesthetic comfort of the surroundings has been added to the standard ratings. Figure 1 shows the tests of various comfort levels taken into account and those tests indicated by employees (grey).

2. Materials and Methods

2.1. Description of the Analyzed Building

The building (Figure 2) is a 19th century neogothic villa in Tarnów, Poland, owned by the Municipality. After renovation, it is to be used as a center supporting the activities of local artists, and a place for exchanging experiences and building cooperation between artists and business (Tarnów, Faculty of Social Communication 2020). The building is considered one of the architectural attractions of Tarnów. The aims of its renovation include preserving the historic values, increasing energy efficiency, and improving the aesthetics and comfort of use. The building is made of brick, with plastered walls, and a ceramic roof. It has a ground floor, an attic (first floor) and a basement. It is built on a rectangular plan, with two side avant-corps both at the front and back, and an octagonal corner turret from the east. Its “gothic” character is expressed in the use of pointed arches, crowning walls of the battlement, stepped gables and arcaded friezes. Its interior is complemented by “gothic” woodwork and terracotta decorative elements. At the time of testing the innovative methodology developed by the authors in 2020, there were still two years until the building’s renovation, during which the employees of this historic building had to work continuously. In the interviews conducted, the authors learned about a number of factors causing employee discomfort, which prompted the research team to develop a methodology to improve the comfort of the historic building even before renovation and thermal upgrading measures.
The historic building is located near an expressway and a railroad transportation line, as shown in Figure 3.

2.2. Measurement Methodology

2.2.1. Thermal Comfort Measurement Methodology

Thermal comfort has a direct impact on the health and well-being of users. It should be provided at an appropriate level for both newly designed buildings [36,37] and those subject to thermal modernization. The indoor climate, having a direct impact on energy efficiency and thermal comfort in the case of historic buildings, is extremely important. Over the years of operation, historic buildings have often undergone many transformations and functional changes. Aged elements such as walls, roofs, floors, and windows can be in disrepair, partitions damp and leaky.
All these damaged elements affect energy efficiency and thermal comfort. The proposed measurement method includes the selection of “in situ” tests important for an assessment of energy and thermal comfort. We developed an innovative method of testing and diagnosing historic buildings, based on the interior microclimate. The first phase is the assessment of the technical condition of the building envelope with the use of thermal imaging. The tests were carried out from the outside of the building, according to the standard PN-EN: 13,187—Thermal properties of buildings—qualitative detection of thermal defects in the building envelope—infrared method [38]. We used the Flir E75 thermal imaging camera. The specification of the device is presented in Table 1.
An additional test to locate leaks in the building envelope was the air leakage test of the enclosure. Polish legislation does not require a building envelope leak test. The values of the tightness test recommended in Polish law with a pressure difference of 50 Pa between the internal and external environment should not exceed: buildings with gravity ventilation: n50 ≤ 3.0 [1/h] buildings with mechanical ventilation: n50 ≤ 1.5 [1/h]. The test was performed using Bloower Door measuring equipment (Figure 4a). The measurement device accuracy was 1% of the pressure reading or 0.15 Pa, whichever was greater. The test was carried out in accordance with PN-EN 13,829 method A (testing of the building in use). All intentionally made openings in the tested building (windows, doors, and chimney openings) were closed (Figure 4b).
Another “in situ” study concerned thermal comfort and microclimate. The measuring set recorded temperature, relative humidity and airflow velocity. Based on these measurements, the system converts PMV and PPD values, which are comfort indicators calculated according to the Fanger methodology [39]. Figure 5 shows the measuring devices for testing thermal comfort.
The specification of the device is presented in Table 2.
The research was conducted according to the standards [40,41].

2.2.2. Acoustic Comfort Measurement Methodology

Assessment of noise effects on humans is based on measuring A-weighted sound levels. The measurement process consisted of obtaining equivalent A-weighted sound levels in the room during noise events (LAeq,T).
L A e q , T = 10 log ( 1 t 2 t 1 t 1 t 2 p A 2 p 0 2 d t ) , d B
T—time of observation with T = t2 − t1, pA—measured acoustic pressure with applied A-weighting, p0—reference pressure equal to 2 × 10−5 Pa.
Limits of the noise event are set by the drop of sound level with a slow time constant by −14 dB regarding its maximum value during pass by. Procedure is based on the literature [42,43,44,45,46]. In the tested room, there were 3 positions of sound level measurement located at least 1 m from internal walls and 1.5 m from the external wall with window. The height of the microphone position was set to 1.20 m [42].
It is not always necessary to measure the reverberation time when assessing acoustic comfort, but still, it is very useful. Only the perceived noise itself, which is de facto convolved with in-room response (reverberation), is sufficient [47,48] to assess comfort by means of the noise level. At the same time, the information about the reverberation time allows for prediction of changes in the noise level related to the change of furniture and finishing of the room. Reducing the reverberation time allows the noise perceived by the user to be reduced according to the formula [47], where k has to be added to the existing, measured level:
k = 10 log 10 ( T p r e d i c t e d T m e a s u r e d ) , [ d B ]
where:
Tpredicted—new or predicted reverberation time in room [s],
Tmeasured—current or measured reverberation time in room [s],
Another issue is the measurement of the normalized level difference carried out in this article. In the case of this difference, normalization with regard to the sound absorption of the room (a derivative of the reverberation time) is carried out. This normalization allows deconvolving the reverberation time from measurements of sound level difference [49].
In addition to the sound level of acoustic event measurements, airborne sound insulation of the external partition of the tested room was measured against transport noise according to the proper standard [49]:
D t r , 2 m , n = 10 log ( 1 k i = 1 k 10 0.1 D i , k )   k = 1 , 2
Dtr,2m,n—apparent inside–outside level difference from road traffic (tr) at a distance of 2 m in front of the façade (2m) normalized (n), k—number of measured events, and Di,k—the inside–outside level difference with sound absorption correction inside the room
The microphones diameter was ½” with the sensitivity of 50 mV/Pa, each equipped with preamplifier PRE21S. The sound analyzers were 01dB Solo. The whole measurement rig complied with the requirements of class 1 measuring devices [50]. Before and after measurements, calibration of the measurement chain was performed with a class 1 sound calibrator [51]. The 1/3 octave band filters met the requirements of proper standards [52]. The measurement microphone located in the tested room is presented in Figure 6.
An example of measured sound pressure level (SPL) of the acoustic event with slow and fast time constant is presented in Figure 7.
50 noise events were recorded, caused by single heavy vehicles passing by (bus, garbage truck, lorry, etc.).

2.2.3. Vibrational Comfort Measurement Methodology

There are three most common methods of assessing the effects of vibrations on people in buildings [53]: the root-mean-square method (RMS), the vibration dose value (VDV) and the maximum transient vibration value (MTVV) method. The RMS method is called the “base method” in the standard [20], while the VDV and MTVV methods are called the additional methods. The latter two methods, especially VDV, are recommended in situations of high crest factor.
The RMS method averages the acceleration values over the duration of the vibrations:
a w = [ 1 T 0 T a w 2 ( t ) d t ] 1 2
where aw(t)is the weighted value of vibration acceleration as a function of time [m/s2],a and T—is the measurement time [s].
The MTVV method also averages the acceleration values, but it is more sensitive to occasional shocks and transient vibrations due to the use of a short integration time constant:
a w ( t 0 ) = [ 1 τ t 0 τ t 0 a w 2 ( t ) d t ] 1 2
M T V V = max [ a w ( t 0 ) ]
where τ—is the integration time; it is recommended to use τ = 1 s; t0—is the observation time (instantaneous time).
The VDV method is the best to use in the case of the so-called peaks in the recorded signal because it uses the fourth power instead of averaging as used in RMS and MTVV:
V D V = [ 0 T a w 4 ( t ) d t ] 1 4
In the practice of measuring the impact of vibrations on people, the average values of vibration accelerations are presented in 1/3 octave bands. As a result, information is obtained not only about the exceedance of the threshold values but also about the frequency band in which the exceedance occurred. It is especially useful at the building design stage because it is then possible to “fine-tune” the structure of the ceiling or even the building in such a way that there are no exceedances in individual bands.
The RMS method seems to be the most useful method which is why this method was chosen for analysis in our case study. To assess the level of free-field and building vibrations and the impact of vibrations on people, in situ vibration measurements should be performed. A proper choice of measuring equipment and their proper location on the structure is important. Thus, appropriately selected measuring equipment was used together with a signal analysis system.
The instrumental system consists of PCB accelerometers, a digital analyzer LMS Mobile Scadas, equipped with an analogue low-pass Butterworth filter 0–100 Hz. The measuring set was designed to measure the low-frequency vibrations that occur in such situations. The linearity deviation of the instrumental system PCB sensor signal does not exceed 2.3%. The instrumental system and analysis of the records do not exceed ±11.61%.
The most important aspect is establishing the influence of vibrations on people. Perception of vibrations by people is one of the essential factors in designing vibroisolation, e.g., in metro tunnels, railways, etc. It also was important in the context of our study where comfort is the main subject. Modal hammers and actuators are easy-to-use tools that allow imposing a force impulse on the test object and providing an electrical signal with information about the amplitude and frequency of the force set.
The choice of the monitoring equipment depends on the type of the investigated structure, monitoring parameters, and dynamic characteristics of a building. For example, using modal hammers and actuators is limited in historical buildings due to the disadvantageous effect on the historical structures. Sensors with high resolution are used in the structural health monitoring of diverse buildings. These sensors are useful in building measurements because of the range of natural frequencies of investigated structures.
Piezoelectric accelerometers are commonly used [54]. Servo velocity-meter sensors are expensive and heavy but ideal for precision measurement applications [55]. They have a low-frequency range, small size and weight. Recently, sensors based on MEMS technology are becoming more and more common due to their characteristics and wireless operation [56,57]. The advantage of digital MEMS accelerometers is the use of pulse width modulation, which produces a square wave at a certain frequency.
High-resolution seismic sensors type 393B12 by PCB Piezotronics (Figure 2), with a nominal sensitivity of 10 V/g, a measuring range of ±0.5 g and a frequency of 0.1 Hz to 1 kHz, were used for the measurements. To record the signal, the LMS Scadas Mobile recorder was used with the signal conditioning system integrated for each channel in the ICP® standard. The use of ICP® conditioners enables the use of cables of virtually unlimited length, which greatly facilitates measurement work in buildings of large dimensions and/or when measurements require considerable distances between the measuring points and the registration station. This analyzer provides real-time recording for each channel while maintaining high dynamics of the signal in the full frequency range. The measurement for the assessment of the impact of vibrations on people is carried out with the use of a special 30 kg disk (Figure 8), which simulates human weight sufficiently.
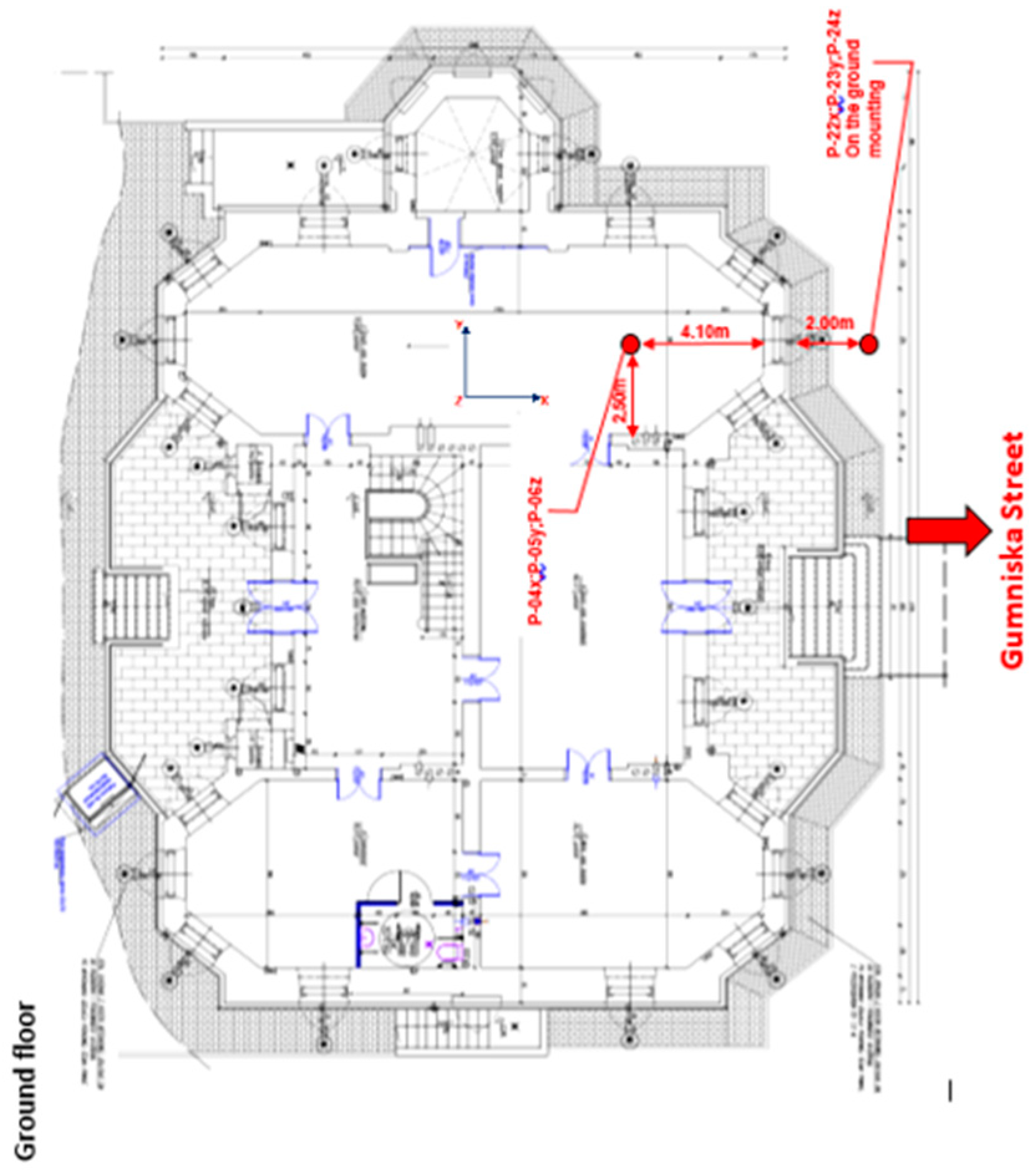
The measurement was made at 7 points simultaneously in real-time. Measurement point refers to three sensors in mutually perpendicular directions, two horizontal and one vertical (x, y, and z). Five measurement points were selected inside the building to assess the impact of vibrations on people in the building (vibration comfort) (see Figure 9), one to assess the impact of vibrations on the building structure and one on the ground. At the attic level, the measurement points were examined to determine the place with the highest level of received vibrations. The heavy vehicles passing in the vicinity were the main source of the vibration of the analyzed building. The edge of the nearest road (side A) was located approx. 22 m from the building frontage. During the tests, the speed of passing vehicles was measured; their type and the side of the building they moved along were recorded too.
During the measurements, a total of 27 passages of various types of vehicles (including heavy ones, such as buses, trucks, etc.) were recorded. Passages of passenger cars were omitted, as the signal generated by them was not visible above the recorded dynamic background level, except for two cases of a passenger car moving near the building.

2.3. Qualitative Research

Attention was paid, in our research, to the methodology of quantifying all measurable features affecting comfort, their integrated analysis, and the influence of the results on the renovation, retrofit, and landscape design concepts. However, since not all objective features of the indoor and outdoor environment can be measured on account of their qualitative character, the research-through-design (RtD) method was adopted too.
RtD is a type of academic investigation through which design is explored as a method of inquiry and testing. It allows exploring different features by the same tools as the design analyses are carried out, including sketches and mapping. RtD was introduced by an architect and mathematician Ch. Alexander [58,59], then has been adopted mainly in interaction design research (e.g., in human–computer interaction) [60] but is also increasingly applied as a method of analysis in projects concerning complex environmental relations and challenges of the built environment [61].
The evidence on aesthetic values was also gained from documents, particularly “Program of Renovation and Conservation Works” [62]—an unpublished manuscript regarding the architectural (formal, historic, and aesthetic) values of the property that need to be preserved.

3. Measurement Results and Analysis

3.1. Thermal Measurements

Due to the large number of thermograms made, only some of them are presented below. The photos were taken on 14 January 2020 at 8.15 am under a cloudless sky. The outside temperature was −1.5 °C. The inside of the building was heated. The internal temperature was 19.5 °C. The thermal images were taken with a Flir E8xt camera with a measuring accuracy of 2 °C. Figure 10 shows thermal images in the basement of the building.
Figure 11 shows the detail of the inner corner of the wall (Figure 11a). There is a significant heat transfer observed there (Figure 11b).
Thermal imaging shows the location of the greatest heat outflow. In diagnostics of historic buildings, thermography is rarely used. Given its informational potential, we argue that it should be one of the basic methods of analysis in heritage building conservation.
Figure 12a,b show the results of thermal comfort measurements. They were carried out in the period of 2–14 January 2020. This research period is in line with the PN-EN 15,251 EN 15251: 2007 standard Indoor environmental input parameters for design and assessment of energy performance of buildings addressing indoor air quality, thermal environment, lighting and acoustics, “It is recommended that the measurement period for all parameters be long enough to be representative, for example 10 days” (Point 9 of the standard—Inspection and measurement of indoor environmental parameters in existing buildings) [63].
The temperature of the inside air ranges from 18.06 to 20.63 °C. Such low temperatures in winter are the result of the poor technical condition of the building, large leaks, and the old and inefficient heating system. Temperature requirements in work rooms are regulated by the provisions of the Ordinance of the Minister of Labor and Social Policy on general health and safety at work regulations. In offices and in rooms where light manual work is performed, the temperature in the work room must not be lower than 18 °C. According to specialists from the Institute of Occupational Medicine, comfortable ambient temperatures for light work in a sitting position in winter should be 20–22.8 °C. The PMV comfort index ranges from −1.13 to −0.43. The indicator showing the percentage of dissatisfied persons, which corresponds to the PMV indicator, ranges from 10 to about 40%.
The comfort levels given in the ISO standard [63] are presented in Table 3.
The results of thermal comfort tests qualify the analyzed object to categories II–IV. Such instability in indoor conditions may be caused by the fact that the measuring device was installed in a room with large, leaky windows. The condition of the building (uninsulated walls and leaks in the housing) and the poor technical condition of the installation also have a large impact on the poor conditions of thermal comfort.
The microclimate in historical buildings will be the subject of further research and the development of a specialized method of assessing the condition of historical structures based on “in situ” research. Diagnostics based on studies of the actual microclimate will ensure that appropriate thermal insulation measures are taken without deteriorating the condition of the heritage buildings through inappropriate retrofit design.

3.2. Acoustic Measurements

Figure 13 presents averaged results of sound pressure level (SPL) in the tested room with the upper and lower envelope of SPL in every 1/3 octave band. The average value of sound level is equal to 38.4 dBA. The results are presented in Table 4.
The reverberation time measured in evaluated room is presented in Figure 14.
The interior noise from external acoustic events is in most cases caused by insufficient sound insulation of the façade. Figure 13 presents the normalized sound level difference between the tested room and external space with the weighted value of normalized level difference Dtr,2m,n,w (C,Ctr) = 31(−2;−5) dB. Worth mentioning is that the method using traffic noise as the main source of noise may give an underestimated value of designed sound insulation. It comes from specific characteristics of traffic noise, which tend to have lower levels in higher frequencies (above the 2000 Hz band). On the other hand, the difference in equivalent sound levels LAeq is equal to 27 dB, which complies well with Dtr,2m,n,A2 = 26 dB. It means that the underestimation might be negligible. Marked with a grey color, 1/3 octave bands were excluded from analysis, due to the fact mentioned earlier and due to the methodology given in ISO 16283-3:2016 [49].
Insufficient existing external sound insulation is caused by the poor condition of windows in the façade of the building shown in Figure 15. Lack of airtightness and the relatively low mass of glazing are the main reasons for insufficient sound insulation.
In the analyzed location, the observed traffic intensity was estimated [64] with the following values: 400 heavy vehicles per daytime, 50 heavy vehicles per nighttime. Daytime was defined as a period from 6 a.m. to 10 p.m. and nighttime aspersion from 10 p.m. to 6 a.m. Figure 16 presents the estimated value of predicted equivalent sound level LAeq,T (dB) in the analyzed room. The following assumptions were made: equivalent sound level from single heavy traffic event LAeq = 38.4 dB, background noise level for daytime LA,bn,D = 20 dB and for nighttime LA,bn,N = 15 dB. The timespan of a single event was assumed to be t = 18 s, which was the average time of the measured events.
Depending on the designed function of the analyzed room, different values of the long-term equivalent sound level can be proposed based on [63,65,66], presented in Table 3.
To provide proper acoustic comfort, the following means can be applied:
Heavy traffic control—external regulations by the road administrator are needed. The necessary limits are given in Table 3.
Improvement in sound insulation of the façade—it helps to reduce the external noise level in the room by reducing noise emission that can affect the users of the room. The values of sound insulation are given in Table 5.
Worth noticing is that even though long-term noise levels can be somehow controlled, there must also be control of single noise events. To provide such protection against noise, only an increase in façade sound insulation can be carried out.

3.3. Vibrational Measurements

During the conducted measurements, the time histories of vibrations from vehicle passes were recorded. An example of the recorded waveforms of vibrations for a run by a garbage truck is shown in Figure 17.
Table 6 presents the maximum values of vibration acceleration from each pass for sensors located at the foundation level and in the middle of the span of the floor on the first floor.
For each waveform, a third-octave analysis was performed in the frequency range from 1 to 80 Hz (following [53]). Vibrograms were the basis for the RMS analysis, which is presented for this particular passage in Figure 18.
The dimensionless WODL index was used for determining the vibration comfort for people in the building, which is defined as follows [66]:
W O D L = m a x ( a R M S a z )
where aRMSacceleration RMS value obtained from the analysis; azacceleration RMS value equivalent to the threshold for the perception of vibration in a z-direction in the same 1/3 octave band as in aRMS.
WODL is the maximum ratio of the acceleration RMS value obtained from the analysis to the acceleration RMS value equivalent to the threshold for human perception of vibration (in the same 1/3 octave band) chosen from each 1/3 octave band. The advantage of such a coefficient is that the result of the analysis from the frequency band is not independent because the WODL clearly shows how many times the threshold for human vibration has been exceeded.
The vibration comfort analysis applies only to sensors that are located in rooms intended for the permanent stay of people in the building. It is not performed for points placed on the building structure or the ground. Table 7 presents the results of the WODL analysis for all measurements made in the building.
The maximum WODL values (with the corresponding frequency (Hz)) for a given sensor are marked in green in the table. The yellow color marks the only exceeding of the WODL value—corresponding to exceeding the threshold of perceptibility of vibrations by people in the building (WODL ≥ 1). The exceedance was recorded for the sensor in the vertical direction Z, located in the middle of the ceiling of the attic room from the passage of the garbage truck along lane B at a speed of 45 km/h. For other points located on the attic floor, for the same extortion, no exceedances were recorded.

3.4. Research-through-Design: Integrated Methodology and Results for Aesthetic Comfort

Without studying aesthetics, the study of comfort would not be complete. Since people’s views of beauty depend on many factors and beauty is not one of those qualities that can be objectively determined and measured, definitions of beauty have varied greatly. Classical conceptions emphasize the objective side of beauty; thus, in our case, it was crucial that the elements of the building and site composed—like in classical formations—an integrated harmonious whole.
Other conceptions of beauty include defining objectively beautiful objects in terms of their value or their function. Therefore, the availability of and applicability for the site of nature-based systems to produce clean and renewable energy and provide sustainable stormwater management were researched. In addition to contributions such as energy production and climate regulation, holding rainwater and cleaning the air, the potential of the garden to provide comfort-related functions such as restoration from stress and attention fatigue was analyzed.
The research-through-design (RtD) method was applied. It is an innovative way to research complex problems, especially those related to environmental and aesthetic issues. The RtD generates new knowledge by understanding the current state and then suggesting an improved future state using empirical knowledge aligned with pragmatist indicators of qualitative nature. Therefore, it supports the assessment of and discussions on quality. Alongside the aesthetic qualities, our enquiry addressed the comfort, health and well-being perspectives.
The aesthetic comfortability of a garden depends highly on the richness of the vegetation. In our RtD, all big trees have been preserved and supplemented with new plantings. They optimize air quality and major climatic factors such as air temperature, wind speed, solar radiation, and humidity, improving climatic comfort with minimum energy consumption. They also support relaxation, a sense of security and overall psychological comfort. Informed users would appreciate their further positive impact on the environment as they remove toxic substances from the environment. Since the phytoremediation potential of plants is very different, it was important to optimize the choice of climbers, shrubs, and other plants that make up the lower tiers of the garden. The choice of plants, including physalis, lilacs, barberry, hydrangeas, and spiraea/meadowsweet, was dictated by their aesthetic qualities, settling in local ecosystems, and exceptional ability to clean the air from particulate matter (PM).
Various kinds of more formal and informal furniture in the garden (benches, chairs, stones, and tree trunks) provide a choice of places to sit in comfort. They are located both in the sun and shade; alone to contemplate and reflect; and in groups to facilitate social interaction. A diversity of facilities has the encouraging effect to spend more time in the garden and increases the number of benefits that could be felt, giving the effect of refreshing rest and reinvigoration.
Figure 19 presents the design scheme including several key elements:
  • Preservation of the heritage value embodied in the building in its aesthetically pleasing, traditional form. The retrofit design has been adjusted so the image of the building is spoiled neither by thermal insulation nor energy-saving/harvesting systems on its elevations or roof.
  • Reorganizing parking space to free the central part of the garden (2.1) from cars and concrete surfaces. Two parking places are proposed (2.2) and for people with special needs (2.3). Thermal and humidity comfort have been improved as they highly depend on the presence of vegetation.
  • The former parking has been transformed into a lawn (2.1).
  • Clear spatial layout of the garden is underlined by a new axis of a central alley that runs towards a fountain (4).
  • Curvy and meandering paths are important landscaping elements for enjoyment and contemplation. The paths are wheelchair-accessible.
  • Behind the fountain, the children playground/sports zone for pétanque, mini golf, etc., has been designed (6.1). Surveillance space (6.2) is provided near the playground to increase children safety and comfort.
  • Two more water features are designed on the eastern side of the site: a rain garden (7.1) and a bio pool (7.2) that is a smart hydroponic rainwater treatment system with a three-level filtration/purification installation consisting of a sand filter and biological filter of submerged oxygenating plants and marsh plants. The fountain, rain garden, and bio pool are elements of one rainwater collection system for capturing, treatment, and reusing water harvested from the roof of the building and the PV canopies (8).
  • The bio pool and the parking space are shaded with photovoltaic (PV) canopies consisting of, respectively, 25 (8.1) and 42 (8.2) solar panels. The third PV canopy consisting of 42 panels is designed at the northern edge of the garden (8.3). The total installed power of the three PV installations is exceeding 43 kWp.

4. Discussion

The Constitution of the Republic of Poland (Article 5) includes the provision: “The Republic of Poland (…) protects the national heritage and the environment, guided by the principle of sustainable development”. The concept of sustainable development includes both limiting the consumption of energy resources, protection of the natural environment, and the protection of monuments.
Many historic buildings in Poland need to be renovated and/or adapted to extend their usability and sustainability. According to the assumptions of Poland’s Long-term Renovation Strategy, by 2050, 66% of buildings in Poland will be brought to a very low-energy building standard (VLEB; UE15; 15 kWh/m2/a), and 21% to a low-energy standard (LEB; UE40; 40 kWh/m2/a). The remaining 13% of buildings that cannot be so deeply modernized for technical or economic reasons will be in the efficiency range of UE = 90–150 kWh/m2/a [67]. From the conservation point of view, renovation or adaptation permission of a historic (listed) building is conditional to the preservation of all the characteristic features of the fabric and structure of the monument, which carry artistic and historical values.

4.1. Energy Renovation of Historic Structures

Not all solutions improving a building’s energy performance can be applied to historic buildings. Each building has a different history; therefore, the scope of renovation or retrofitting must be determined individually for each building, with applied conservation knowledge. During the renovation or retrofitting of historic buildings, a number of interdependent applied measures, elements, materials and technologies will require a very broad analysis of their impact on human health, building physics and performance, preservation of historical substance and cultural heritage. In this article, we present a methodology to diagnose some of these various issues from several perspectives.
In Poland, energy renovation, more popularly known as ‘thermal modernization’, is often mistakenly associated with façade insulation. The legal concept of ‘thermal modernization’ is, however, much broader and means an investment aimed at reducing primary energy consumption for heating and hot water [68]. This can be accomplished through a series of interrelated activities improving the thermal and humidity parameters of the building structure and the efficiency of its systems while ensuring the optimal level of comfort for future users.
An example of successful adaptation is the change of the function of the historic wooden villa “Stara Polana” in southern Poland into a hostel [6]. The improvement in its energy efficiency was supported by thorough analyzes. However, if such serious renovation, retrofit or adaptation works are not supported by any previous research, they may lead to deterioration of the monument instead of improving its condition.
The researched building has a masonry construction. The walls of such buildings, especially those built before the 20th century, are thicker, which increases their thermal resistance R (K/W) (this depends on the thickness of the material), and have a high thermal capacity. Old buildings with wall thicknesses exceeding 40 cm do not necessarily require thermal insulation of the external walls. However, the possibility of energy renovation of the remaining elements of the building envelope should be considered: revamping windows and sealing their embedment in the wall, insulation of the roof and basement ceiling or floor.

4.2. Thermal and Acoustic Comfort

Every renovation or retrofit concept for a historic building should be based on the analyses of potential improvements in energy performance and thermal comfort while maintaining the architectural and aesthetic value of the building. Renovating and retrofitting historic buildings is usually much more difficult than standard renovations due to the preservation requirements [3,4,7,9,10]. This fact makes the analyses and design more demanding, but also creates challenges and may trigger the creation of innovative solutions. Such approaches can develop model assessment methods and solutions for similarly restricted objects. It is particularly important to consider improving energy efficiency simultaneously with improvement in thermal and air quality comfort and the enhancement of lighting, shading and acoustics. Comprehensive testing should be conducted during the design process and after the implementation of energy-saving restoration measures [9].
We argue that the methodology of thermal comfort assessment presented in this article should be one of the basic methods of analysis in heritage building conservation and renovation. Thermal imaging shows precisely the location of the greatest heat outflow whilst thermal comfort measurements focused on instabilities of the microclimate may ensure that appropriate insulation measures are taken without deteriorating the historic substance and with no threats for well-being and comfort.
The acoustics in historic buildings are part of their individual characteristics. They are strongly influenced by both building envelope and the absorption characteristics of all materials and surfaces in the interiors. In the case of historic buildings, covering surfaces with sound absorbers is usually not acceptable or not suitable. Troi and Zeno [9] propose vertically suspended absorbers prototyped in the 3ENCULT project, which also work well in combination with the daylight redirection, reducing energy use and improving visual comfort (daylight coefficient and artificial light distribution). However, implementation of such solutions in the context of specific interiors would require separate analyses, considering acoustic, visual and aesthetic qualities of interiors.

4.3. Nature-Based Solutions: A Qualitative Approach to Comfort Improvements

An important, often underestimated element improving the comfort as well as the energy performance of buildings is greenery—integrated with buildings and their sites [10].
Green solutions have the potential to improve both the outdoor and indoor climate without disturbing the heritage values of buildings. In the context of progressing urbanization and climate change, the mitigation and adaptation potential of greenery and its ability to improve the quality of life in the urbanized environment are exceptionally valuable, which is increasingly confirmed by the science and urban management practice [69].
There are many publications available on nature-based solutions (NBS), including a large collection of scientific sources and guides published by Sendzimir Foundation [70]. NBS support the functions and services of ecosystems in urbanized areas. They promote phytoremediation, urban biodiversity, and natural water management, limiting or delaying the discharge of rainwater to the collectors reducing stormwater runoff and flood hazards. Greenery improves quality of life, physical and mental health, and may improve the appearance of a building and its climate resilience [69].
There are various blue-green solutions that may be integrated with historical buildings and sites [71]. Some of them have been used for centuries and therefore go well with the heritage structures. They usually, if well maintained, carry significant aesthetic values. That was the reason behind including NBS in this research on diagnosis of comfort in a historic building. Since a quantitative approach does not reflect all the benefits from NBS, we proposed a qualitative diagnosis based on the research-through-design methodology, which takes into account the quality of ecosystem services as well as aesthetic benefits.

4.4. The Concept of Aesthetic Comfort

Aesthetic values are often expressed through judgments of taste. Taste is a result of an education process and awareness. Since people’s views of beauty depend on many factors and definitions of beauty have varied greatly, beauty is not one of those qualities that can be objectively determined and measured. However, aesthetic comfort depends not only on subjective sensory and emotional response but also on the objective features of the environment as well as intellectual judgement of design values. According to Tatarkiewicz, aesthetic judgements may be conditioned, among others, by form, representation, and innovation [72]. According to Holm, aesthetic value of architecture and design can also be linked to judgments of economic, political, or moral value [73].
Especially if the environmental aesthetic is discussed, judgments might be based on the senses, emotions, subconscious behavior and preference, but also conscious decision, values, intellectual opinion, culture, training, sociological institution, and some complex combination of these.
In our approach, what is emphasized, is the dynamic and reciprocal relationship between perceiver and what the environment affords. Our ambition is that the comfort of the building and the garden will reflect complex intentions and produce variable attractions to cultural objects and practices therein. Considering the raising of pro-ecological awareness of the society, we argue that aesthetically comfortable environment comes from an integrated approach to meet demands for renovated facilities that are visually pleasing but also accessible, secure, healthy and productive, while minimizing any negative impacts upon the environment, society, and economy.
Figure 19 is an important element of the study not as a design proposal but as a scheme allowing for presenting the use of the RtD methodology in the studied case. It is an innovative way to research complex problems, especially those related to environmental and aesthetic issues. The method generates new knowledge by understanding the current state and then suggesting an improved future state using empirical knowledge aligned with pragmatist indicators of qualitative nature. Therefore, it supports the assessment of and discussions on quality.

4.5. Ambient Energy Gains

Striving to reduce the primary energy used for heating and cooling, renewable energy systems (RES) can be applied within retrofit projects to defray the high energy consumption with energy from sustainable sources. One of the most challenging problems with the integration of RES with a listed building is preserving the original form of the building and the heritage value of the landscape. Therefore, the extent of substitution of conventional energy sources should be considered alongside a study of the impact of available RES on the aesthetic forms of the property, as has been proposed in our RtD enquiry.
The strategy for the renovation of a historic property includes increasing energy performance, preserving historic values, and improving the aesthetics and comfort of use. The objective value of the environmental features analyzed here is addressed through both artistic and intellectual judgement. Only through such an integrated understanding of the energy, heritage, climatic, and ecosystem contexts of the property, it is possible to grasp its full potential to inform the future design for comfort improvement.
Proposed photovoltaics has significant advantages as an energy source. Once installed, its operation generates no pollution and no greenhouse gas emissions. Solar electric generation has the highest power density among renewable energy sources [74], which makes it the most appropriate for urban areas. Its efficiency is quickly rising while mass-production costs are rapidly falling. PV installations could ideally operate for 100 years or even more [75], with little maintenance or intervention after their initial setup, so after the initial cost of building a solar installation, operating costs are extremely low compared to other power technologies.
However, PV applications in heritage buildings and sites face serious limitations. The main elevations and dominant roof lines of historical buildings need to be avoided when installing standard PV panels to reduce their visual impact. Sometimes, the panels may have to be located beside the building if there are regulations that require maintaining its historic appearance and there is a suitable place on the site to place the PV installation without disturbing the view. Such a solution is proposed for the property analyzed in this article.

5. Conclusions

The subject of the case study was a diagnosis of the historic property to inform the decisions on the scope of necessary interventions and selection of measures to improve the energy performance of the building and the site, alongside acoustic, thermal, and aesthetic comfort. Where quantitative measurements could not be made, qualitative parameters were taken into account in the heritage, climatic, and ecosystem contexts of the property.
The standard permissible level of vibrations in the studied building was not exceeded in any of the registered vibrograms. In one case, i.e., when a garbage truck ran over, the threshold of vibration sensibility was exceeded.
Depending on the method of noise protection evaluation, for the long-term approach, noise from heavy traffic is controlled. Considering the short-term approach, it can be seen that façade sound insulation is not sufficient to protect against transient noise events. Lack of airtightness and the relatively low mass of glazing are the main reasons for insufficient sound insulation.
The temperature of the inside air ranges from 18.06 to 20.63 C. Such low temperatures in winter are the result of the poor technical condition of the building, large leaks and the old and inefficient heating system. Temperature requirements in work rooms are regulated by the provisions of the Ordinance of the Minister of Labor and Social Policy on general health and safety at work regulations. In offices and in rooms where light manual work is performed, the temperature in the work room must not be lower than 18 °C. According to specialists from the Institute of Occupational Medicine, comfortable ambient temperatures for light work in a sitting position in winter should be 20–22.8 °C. The PMV comfort index ranges from −1.13 to −0.43. The indicator showing the percentage of dissatisfied persons, which corresponds to the PMV indicator, ranges from 10 to about 40%.
Thermal imaging studies have shown where the greatest heat losses occur in the building envelope. Based on the case study, it was diagnosed that the greatest thermal bridges occur on the ground floor, in the places where windows and doors are installed, as well as in leaks and poor thermal insulation of window frames.
The diagnoses of sound insulation and thermal conditions lead to the joint conclusion that the lack of acoustic and climatic comfort can be to a large extent solved by the renovation of the woodwork and the glazing, and re-embedding of the windows with the use of insulating tapes. No insulation of brick walls is needed to improve acoustic and thermal comfort in the studied building and improvements in woodwork and its embedding can be implemented without any damage to the historic substance, as recommended by Dziurawiec [62].
Since there is no need to significantly interfere with the historic substance of the building, its original appearance, so highly valued by the local community, can be rehabilitated. This, combined with the improvement in the aesthetic and environmental values of the garden, would significantly improve the aesthetic comfort. The research-through-design method used to explore and draft the strategy for the design of the building’s surroundings allowed the definition of needs and propose solutions beneficial for aesthetics, energy, and water management.
Considering the climate crisis and raising environmental awareness of society, we argue that an aesthetically comfortable environment comes from an integrated approach to meet demands for renovated heritage objects that are not only free from thermal and acoustic stress but are also healthy and productive while minimizing any negative impacts on the environment.

Author Contributions

Conceptualization: M.F.-C., A.K.-K., T.T. and T.J.; Methodology, M.F.-C., A.K.-K., K.N. and T.J.; Software, M.F.-C., F.P.; Validation, M.F.-C., A.K.-K.; Formal analysis, M.F.-C., A.K.-K., K.N. and E.R.-Z.; Investigation, M.F.-C., A.K.-K. and T.T.; Resources, M.F.-C.; Data curation, M.F.-C., K.N., F.P. and P.S.; Writing—original draft, M.F.-C., A.K.-K., K.N., F.P., E.R.-Z. and T.J.; Writing—review & editing, M.F.-C., E.R.-Z., P.S. and T.T.; Visualization, M.F.-C., T.J.; Supervision, M.F.-C., A.K.-K., E.R.-Z. and T.T.; Project administration, M.F.-C. All authors have read and agreed to the published version of the manuscript.

Funding

This research received no external funding.

Data Availability Statement

Not applicable.

Acknowledgments

Thanks to the Mayor of Tarnów, Roman Ciepiela, for making the historic building available for scientific research.

Conflicts of Interest

The authors declare no conflict of interest.

References

  1. EU. Directive (EU) 2018/844 of the European Parliament and of the Council of 30 May 2018 Amending Directive 2010/31/EU on the Energy Performance of Buildings and Directive 2012/27/EU on Energy Efficiency (Text with EEA Relevance); EU: Brussels, Belgium, 2019. [Google Scholar]
  2. EU. Directive 2010/31/EU of the European Parliament and of the Council of 19 May 2010 on the Energy Performance of Buildings; EU: Brussels, Belgium, 2010. [Google Scholar]
  3. Radziszewska-Zielina, E.; Śladowski, G. Proposal of the Use of a Fuzzy Stochastic Network for the Preliminary Evaluation of the Feasibility of the Process of the Adaptation of a Historical Building to a Particular Form of Use. In IOP Conference Series: Materials Science and Engineering; Institute of Physics Publishing: Bristol, UK, 2017; Volume 245. [Google Scholar]
  4. Radziszewska-Zielina, E.; Śladowski, G. Supporting the selection of a variant of the adaptation of a historical building with the use of fuzzy modelling and structural analysis. J. Cult. Herit. 2017, 26, 53–63. [Google Scholar] [CrossRef]
  5. Fedorczak-Cisak, M.; Kowalska-Koczwara, A.; Nering, K.; Pachla, F.; Radziszewska-Zielina, E.; Śladowski, G.; Tatara, T.; Ziarko, B. Evaluation of the criteria for selecting proposed variants of utility functions in the adaptation of historic regional architecture. Sustainability 2019, 11, 1094. [Google Scholar] [CrossRef]
  6. Fedorczak-Cisak, M.; Kowalska, A.; Radziszewska –Zielina, E.; Śladowski, G.; Pachla, F.; Tatara, T. A multi-criteria approach for selecting the utility function of the historical building “Stara Polana” located in Zakopane. MATEC Web Conf. 2019, 262, 07002. [Google Scholar] [CrossRef]
  7. Fedorczak-Cisak, M.; Radziszewska-Zielina, E.; Orlik-Kozdoń, B.; Steidl, T.; Tatara, T. Analysis of the thermal retrofitting potential of the external walls of podhale’s historical timber buildings in the aspect of the non-deterioration of their technical condition. Energies 2020, 13, 4610. [Google Scholar] [CrossRef]
  8. Orlik-Kożdoń, B.; Radziszewska-Zielina, E.; Fedorczak-Cisak, M.; Steidl, T.; Białkiewicz, A.; Żychowska, M.; Muzychak, A. Historic building thermal diagnostics algorithm presented for the example of a townhouse in Lviv. Energies 2020, 13, 5374. [Google Scholar] [CrossRef]
  9. Troi, A.; Bastian, Z. (Eds.) Energy Efficiency Solutions for Historic Buildings: A Handbook; Birkhäuser: Basel, Switzerland, 2015. [Google Scholar]
  10. Jeleński, T. Rewaloryzacja i Modernizacja Budynków Historycznych w Dobie Kry-Zysu Klimatycznego; Croatia Green Building Council: Zagreb, Croatia.
  11. Del Mar Castilla, M.; Álvarez, J.D.; Rodríguez, F.; Berenguel, M. Comfort Control in Buildings; Springer: Berlin/Heidelberg, Germany, 2014. [Google Scholar]
  12. Jha, B. An Introduction to Thermal Comfort in Buildings. In Proceedings of the Conference: Intelligent Buildings 2020; Amity School of Architecture & Planning: Noida, India, July 2020. [Google Scholar]
  13. Kong, D.; Liu, H.; Wu, Y.; Li, B.; Wei, S.; Yuan, M. Effects of indoor humidity on building occupants’ thermal comfort and evidence in terms of climate adaptation. Build. Environ. 2019, 155, 298–307. [Google Scholar] [CrossRef]
  14. Morsli, S.; Sabeur, A.; Ramenah, H.; El Ganaoui, M.; Bennacer, R. Thermo-Fluid Simulation for Indoor Air Quality and Buildings Thermal Comfort. MATEC Web Conf. 2020, 307, 01032. [Google Scholar] [CrossRef][Green Version]
  15. Perrin Jegen, N.; Chevret, P. Effect of noise on comfort in open-plan offices: Application of an assessment questionnaire. Ergonomics 2017, 60, 6–17. [Google Scholar] [CrossRef]
  16. Griffin, M.J.; Whitham, E.M.; Parsons, K.C. Vibration and comfort I. Translational seat vibration. Ergonomics 2007, 25, 603–630. [Google Scholar] [CrossRef]
  17. Parizet, E.; Amari, M.; Roussarie, V. Contribution of Noise and Vertical Vibration to Comfort in a Driving Car; EuroRegio: Ljubljana, Slovenia, 2010; p. 1. [Google Scholar]
  18. Tucholka, P.; Kielbasiński, K.; Mieszkowski, R. Tracing seismic surface waves induced by road traffic in urban environment: Example of st. Catherine’s church hill in Warsaw. Geologija 2008, 50 (Suppl. P), S79–S84. [Google Scholar] [CrossRef]
  19. Hultkrantz, L.; Lindberg, G.; Andersson, C. The value of improved road safety. J. Risk Uncertain. 2006, 32, 151–170. [Google Scholar] [CrossRef]
  20. Corbridge, C.; Griffin, M.J.; Harborough, P.R. Seat Dynamics and Passenger Comfort. Proc. Inst. Mech. Eng. Part F J. Rail Rapid Transit 1989, 203, 57–64. [Google Scholar] [CrossRef]
  21. Pau, A.; Vestroni, F. Vibration analysis and dynamic characterization of the Colosseum. Struct. Control Health Monit. 2008, 15, 1105–1121. [Google Scholar] [CrossRef]
  22. DIN 4150-3; Structural Vibration Part 3: Effects of Vibration on Structures. Deutches Institut für Normung: Berlin, Germany, 1999.
  23. Szczotka, J. Non-invasive methods in diagnosis of wall dampness degree in sacral buildings. Diagnostyka 2018, 19, 63–69. [Google Scholar] [CrossRef]
  24. Franzoni, E.; Sandrolini, F.; Bandini, S. An experimental fixture for continuous monitoring of electrical effects in moist masonry walls. Constr. Build. Mater. 2011, 25, 2023–2029. [Google Scholar] [CrossRef]
  25. Kulas, T.; Kapela, M. Rewitalizacja zabytkowych obiektów sakralnych o konstrukcji drewnianej na Mazowszu. Mater. Bud. 2013, 5, 16–17, 79. [Google Scholar]
  26. Sadłowska-Sałęga, A.; Radoń, J. Feasibility and limitation of calculative determination of hygrothermal conditions in historical buildings: Case study of st. Martin church in Wiśniowa. Build. Environ. 2020, 186, 107361. [Google Scholar] [CrossRef]
  27. EU. Directives Directive 2012/27/EU of the European Parliament and of the Council of 25 October 2012 on Energy Efficiency, Amending Directives 2009/125/EC and 2010/30/EU and Repealing Directives 2004/8/EC and 2006/32/EC; EU: Brussels, Belgium, 2012. [Google Scholar]
  28. Fedorczak-Cisak, M. Classification of historical buildings based on energy efficiency tests and comfort tests. In Proceedings of the 6th World Multidisciplinary Civil Engineering-Architecture-Urban Planning Symposium—WMCAUS, Prague, Czech Republic, 4–18 June 2021. [Google Scholar]
  29. Jagodzińska, K.; Sanetra-Szeliga, J.; Purchla, J.; Van Balen, K.; Thys, C.; Vandesande, A.; Van der Auwera, S. Cultural Heritage Counts for Europe Full Report; International Cultural Centre: Cracow, Poland, 2015. [Google Scholar]
  30. Nasar, J.L. (Ed.) Environmental Aesthetics: Theory, Research, and Application; Cambridge University Press: Cambridge, UK, 1992. [Google Scholar]
  31. Van den Berg, M.; Wendel-Vos, W.; van Poppel, M.; Kemper, H.; van Mechelen, W.; Maas, J. Health benefits of green spaces in the living environment: A systematic review of epidemiological studies. Urban For. Urban Green. 2015, 14, 806–816. [Google Scholar] [CrossRef]
  32. Bak, J.; Radziszewska-Zielina, E.; Zielina, M. Analysis of the Spatial Structure of Green Building in the Aspect of Selected Environmental Issues on the Example of the City of Cracow (Poland). IOP Conf. Ser. Mater. Sci. Eng. 2019, 603, 042099. [Google Scholar] [CrossRef]
  33. Liu, Z.; Cheng, W.; Jim, C.Y.; Morakinyo, T.E.; Shi, Y.; Ng, E. Heat mitigation benefits of urban green and blue infrastructures: A systematic review of modeling techniques, validation and scenario simulation in ENVI-met V4. Build. Environ. 2021, 200, 107939. [Google Scholar] [CrossRef]
  34. Fei, F.; Wang, Y.; Yao, W.; Gao, W.; Wang, L. Coupling mechanism of water and greenery on summer thermal environment of waterfront space in China’s cold regions. Build. Environ. 2022, 214, 108912. [Google Scholar] [CrossRef]
  35. Bielski, A.; Zielina, M.; Młyńska, A. Analysis of heavy metals leaching from internal pipe cement coating into potable water. J. Clean. Prod. 2020, 265, 121425. [Google Scholar] [CrossRef]
  36. Kisilewicz, T.; Dudzińska, A. Summer overheating of a passive sports hall building. Arch. Civ. Mech. Eng. 2015, 15, 1193–1201. [Google Scholar] [CrossRef]
  37. Kisilewicz, T. Passive control of indoor climate conditions in low energy buildings. Energy Procedia 2015, 78, 49–54. [Google Scholar] [CrossRef][Green Version]
  38. PN-EN 13187; Thermal Performance of Buildings—Qualitative Detection of Thermal Defects in Building Envelope—Infrared Method. European Committee for Standardization: Brussels, Belgium, 2001.
  39. Fanger, P.O. Thermal Comfort: Analysis and Applications in Environmental Engineering; McGraw-Hill: New York, NY, USA, 1972; ISBN 9780070199156. [Google Scholar]
  40. PN-EN ISO 7726:2002; Ergonomics of the Thermal Environment—Instruments for Measuring Physical Quantities (ISO 7726:1998). ISO: Geneva, Switzerland, 1998.
  41. PN-EN ISO 7730:2006; Ergonomics of The thermal Environment—Analytical Determination and Interpretation of Thermal Comfort Using the Calculation of PMV and PPD Indicators and Criteria of Local Thermal Comfort. Polish Standardization Committee: Warsaw, Poland, 2005.
  42. Okokon, E.O.; Yli-Tuomi, T.; Turunen, A.W.; Tiittanen, P.; Juutilainen, J.; Lanki, T. Traffic noise, noise annoyance and psychotropic medication use. Environ. Int. 2018, 119, 287–294. [Google Scholar] [CrossRef]
  43. Beranek, L.L. Acoustic Measurements; American Institute of Physics: New York, NY, USA, 1949; ISBN 088-318590-3. [Google Scholar]
  44. Bruel & Kjaer. Environmental Noise Measurement; Bruel & Kjaer: Nærum, Denmark, 2001. [Google Scholar]
  45. Malchaire, J. Sound Measuring Instruments; WHO: Brussels, Belgium, 1994. [Google Scholar]
  46. Costa, J.J.L.; Nascimento, E.O.D.; Oliveira, L.N.D.; Caldas, L.V.E. Pressure sound level measurements at an educational environment in Goiânia, Goiás. J. Phys. Conf. Ser. 2017, 975, 012055. [Google Scholar] [CrossRef]
  47. Kowalska-Koczwara, A.; Pachla, F.; Nering, K. Environmental protection against noise and vibration. IOP Conf. Ser. Mater. Sci. Eng. 2021, 1203, 032026. [Google Scholar] [CrossRef]
  48. Nering, K.; Kowalska-Koczwara, A.; Stypuła, K. Annoyance Based Vibro-Acoustic Comfort Evaluation of as Summation of Stimuli Annoyance in the Context of Human Exposure to Noise and Vibration in Buildings. Sustainability 2020, 12, 9876. [Google Scholar] [CrossRef]
  49. ISO 16283-3:2016; Acoustics—Field Measurement of Sound Insulation in Buildings and of Building Elements—Part 3: Façade Sound Insulation. ISO: Geneva, Switzerland, 2016.
  50. IEC 61672-1:2013; Electroacoustics—Sound Level Meters—Part 1: Specifications. IEC: Geneva, Switzerland, 2013.
  51. IEC 60942:2017; Electroacoustics—Sound Calibrators. IEC: Geneva, Switzerland, 2017.
  52. IEC 61260-1:2014; Electroacoustics—Octave-Band and Fractional-Octave-Band Filters—Part 1: Specifications. IEC: Geneva, Switzerland, 2014.
  53. ISO 2631-1; Evaluation of Human Exposure to Whole-Body Vibration Part 1: General Requirements. International Organization for Standardization: Geneva, Switzerland, 1997.
  54. Lepidi, M.; Gattulli, V.; Foti, D. Swinging-bell resonances and their cancellation identified by dynamical testing in a modern 489 bell tower. Eng. Struct. 2009, 31, 1486–1500. [Google Scholar] [CrossRef]
  55. Tokyo Sokushin. Available online: http://www.to-soku.co.jp/en/ (accessed on 28 September 2021).
  56. Dumont, M.; Wolf, D. Usage of MEMS capacitive acceleration sensors for structural monitoring. Dyn. Civ. Struct. 2019, 2, 77–89. [Google Scholar]
  57. Sabato, A.; Niezrecki, C.; Fortino, G. Wireless MEMS-based accelerometer sensor boards for structural vibration monitoring: A 468 review. IEEE Sens. J. 2016, 17, 226–235. [Google Scholar] [CrossRef]
  58. Zimmerman, J.; Forlizzi, J.; Evenson, S. Research through design as a method for interaction design research in HCI. In Proceedings of the 2007 Conference on Human Factors in Computing Systems, San Jose, CA, USA, 28 April–3 May 2007; pp. 493–502. [Google Scholar]
  59. Alexander, C. Notes on the Synthesis of Form; Harvard University Press: Cambridge, MA, USA, 1964. [Google Scholar]
  60. Alexander, C.; Ishikawa, S.; Silverstein, M.; Jacobson, M.; Fiksdahl-King, I.; Angel, S. A Pattern Language: Towns, Buildings, Construction; Oxford University Press: Oxford, UK, 1977. [Google Scholar]
  61. Roggema, R. Research by Design: Proposition for a Methodological Approach. Urban Sci. 2016, 1, 2. [Google Scholar] [CrossRef]
  62. Program Prac Remontowo Konserwatorskich (Programme of Renova-tion and Conservation Works). A Study Commissioned by the Municipality of Tarnów, Internal Report. 2007; Unpublished.
  63. EN 15251:2007; Indoor Environmental Input Parameters for Design and Assessment of Energy Performance of Buildings Addressing Indoor Air Quality, Thermal Environment, Lighting and Acoustics. European Committee for Standardization: Brussels, Belgium, 2007.
  64. Makarewicz, R.; Gołȩbiewski, R. Estimation of the long term average sound level from hourly average sound levels. Appl. Acoust. 2016, 111, 116–120. [Google Scholar] [CrossRef]
  65. PN-B-02151-2: 2018-01; Building Acoustics—Noise Protection in Buildings—Part 2: Requirements for Acceptable Sound Level in Rooms. Polish Standardization Committee: Warsaw, Poland, 2018.
  66. PN-B-02171: 2017-06; Evaluation of Human Exposure to Vibration in Buildings. Polish Standardization Committee: Warsaw, Poland, 2017.
  67. BIP. Projekt Uchwały Rady Ministrów w Sprawie Przyjęcia “Długoterminowej Strategii Renowacji Budynków”, MRPiT, Warszawa 09.06.2021. Available online: https://archiwum.bip.kprm.gov.pl/kpr/form/r57519716,Projekt-uchwaly-Rady-Ministrow-w-sprawie-przyjecia-quotDlugoterminowej- (accessed on 16 September 2022).
  68. Dz.U. 2008 nr 223 poz. 1459—Ustawa z Dnia 21 Listopada 2008 r. o Wspieraniu ter-Momodernizacji i Remontów oraz o Centralnej Ewidencji Emisyjności Budynków (Dz.U. z 2018 r. poz. 966). Available online: https://isap.sejm.gov.pl/isap.nsf/DocDetails.xsp?id=wdu20082231459 (accessed on 16 September 2022).
  69. Jeleński, T. (Ed.) Addressing Climate Change in Cities. Policy Instruments to Promote Urban Nature-Based Solutions; Sendzimir Foundation: Berlin, Germany; Kraków, Poland, 2020. [Google Scholar]
  70. Sendzimir Foundation. Publications. Available online: https://sendzimir.org.pl/en/publications (accessed on 12 June 2022).
  71. Iwaszuk, E. Catalogue of Urban Nature-Based Solutions; Sendzimir Foundation: Berlin, Germany; Kraków, Poland, 2019. [Google Scholar]
  72. Tatarkiewicz, W. A History of Six Ideas: An Essay in Aesthetics; PWN (Polish Scientific Publishers): Warszawa, Poland; Martinus Nijhoff: The Hague, The Netherlands; Boston, UK; London, UK, 1980. [Google Scholar]
  73. Holm, I. Ideas and Beliefs in Architecture and Industrial Design: How Attitudes, Orientations, and Underlying Assumptions Shape the Built Environment; School of Architecture and Design: Oslo, Norway, 2006. [Google Scholar]
  74. Smil, V. Energy at the Crossroads: Global Perspectives and Uncertainties; MIT Press: Cambridge, MA, USA, 2003. [Google Scholar]
  75. Chianese, D.; Realini, A.; Cereghetti, N. Analysis of weathered c-Si PV modules. In Proceedings of the 3rd World Conference on Photovoltaic Energy Conversion, Osaka, Japan, 11–18 May 2013; Volume 3, pp. 2922–2926. Available online: https://www.researchgate.net/publication/224749017_Analysis_of_weathered_c-Si_PV_modules (accessed on 1 June 2021).
Figure 1. A diagram of the selection of “in situ” research based on questionnaires or interviews with users of historic buildings.
Figure 1. A diagram of the selection of “in situ” research based on questionnaires or interviews with users of historic buildings.
Energies 15 08963 g001
Figure 2. Façade of the building.
Figure 2. Façade of the building.
Energies 15 08963 g002
Figure 3. Location of the historic building.
Figure 3. Location of the historic building.
Energies 15 08963 g003
Figure 4. (a) Historic building tightness test; (b) Preparation of the building for leak testing.
Figure 4. (a) Historic building tightness test; (b) Preparation of the building for leak testing.
Energies 15 08963 g004
Figure 5. Measuring devices for testing thermal comfort.
Figure 5. Measuring devices for testing thermal comfort.
Energies 15 08963 g005
Figure 6. Measurement microphone located in the tested room.
Figure 6. Measurement microphone located in the tested room.
Energies 15 08963 g006
Figure 7. Sound pressure level A-weighted of the single event with the fast and slow time constant in the tested room.
Figure 7. Sound pressure level A-weighted of the single event with the fast and slow time constant in the tested room.
Energies 15 08963 g007
Figure 8. Measuring disc with sensors.
Figure 8. Measuring disc with sensors.
Energies 15 08963 g008
Figure 9. Location of sensors in the building on the 1st floor level. Due to the size of the drawings, the other locations are not included. Two sensors were located on the ground floor level and one sensor for vibration measurements was located on the cellar level.
Figure 9. Location of sensors in the building on the 1st floor level. Due to the size of the drawings, the other locations are not included. Two sensors were located on the ground floor level and one sensor for vibration measurements was located on the cellar level.
Energies 15 08963 g009
Figure 10. The basement of the building (a) and its thermal image (b).
Figure 10. The basement of the building (a) and its thermal image (b).
Energies 15 08963 g010
Figure 11. Corner detail (a) and the heat transfer in the corner (b) and through the windows.
Figure 11. Corner detail (a) and the heat transfer in the corner (b) and through the windows.
Energies 15 08963 g011
Figure 12. (a) Comfort index PMV [-] and indoor air temperature. (b) Comfort index PPD [-].
Figure 12. (a) Comfort index PMV [-] and indoor air temperature. (b) Comfort index PPD [-].
Energies 15 08963 g012aEnergies 15 08963 g012b
Figure 13. Sound pressure level presented as time and space average with upper and lower envelopes in every 1/3 octave bands.
Figure 13. Sound pressure level presented as time and space average with upper and lower envelopes in every 1/3 octave bands.
Energies 15 08963 g013
Figure 14. Reverberation time measured inside evaluated room in every 1/3 octave bands.
Figure 14. Reverberation time measured inside evaluated room in every 1/3 octave bands.
Energies 15 08963 g014
Figure 15. Normalized level difference (sound insulation of the façade) measured with traffic noise as the sound source. Marked with grey color, 1/3 octave bands were excluded from analysis, due to the fact of specific noise characteristics of traffic noise and due to the methodology given in ISO 16283-3:2016 [46].
Figure 15. Normalized level difference (sound insulation of the façade) measured with traffic noise as the sound source. Marked with grey color, 1/3 octave bands were excluded from analysis, due to the fact of specific noise characteristics of traffic noise and due to the methodology given in ISO 16283-3:2016 [46].
Energies 15 08963 g015
Figure 16. Predicted equivalent sound level in the room LAeq,T [dB] as a function of heavy traffic events.
Figure 16. Predicted equivalent sound level in the room LAeq,T [dB] as a function of heavy traffic events.
Energies 15 08963 g016
Figure 17. Example vibrograms for the passage of the garbage truck.
Figure 17. Example vibrograms for the passage of the garbage truck.
Energies 15 08963 g017aEnergies 15 08963 g017b
Figure 18. RMS analysis for garbage truck passage on the first floor.
Figure 18. RMS analysis for garbage truck passage on the first floor.
Energies 15 08963 g018
Figure 19. The RtD scheme for aesthetic comfortability.
Figure 19. The RtD scheme for aesthetic comfortability.
Energies 15 08963 g019
Table 1. Test device parameters.
Table 1. Test device parameters.
NoParameterValue
1Type of sensor:Thermal imaging camera 640 × 480
2Measurement Range:20 °C ÷ + 650 °C
3Scale: NETD: <0.03 °C
4Accuracy: from ±2 °C or ±2%
Table 2. Test device parameters.
Table 2. Test device parameters.
NoParameterValue
1Type of Sensor:Temperature Sensors (EHA)
2Measurement Range:−20 °C–+50 °C (wet thermometer 0 °C–+50 °C)
3Scale:0.01 °C
4Accuracy:±0.40 °C
5Type of Sensor:Humidity Sensor
6Measurement Range:0–100%
7Scale:0.1 RH (relative humidity)
8Accuracy: ±2% RH (relative humidity)
9Type of Sensor: Air Velocity Sensor
10Measurement Range: 0–5 m/s
11Scale: 0.01 m/s
12Accuracy:For 0–1 m/s +/0.05 +0.0.5 × Va m/s for 1–5 m/s ± 5%
13Type of Sensor:Black ball temperature probe
14Measurement Range:−20 + 60 °C
15Accuracy:±0.40 °C
Table 3. Comfort levels given in ISO 15251.
Table 3. Comfort levels given in ISO 15251.
Classification/CategoryMaximum Parameter Values
PPD [%]PMV [-]
I<6−0.2 < PMV < +0.2
II<10−0.5 < PMV < +0.5
III<15−0.7 < PMV < +0.7
IV>15PMV < −0.7 lub PMV > +0.7
Table 4. Results of sound levels measurement in the room.
Table 4. Results of sound levels measurement in the room.
Equivalent Sound Level LAeq [dB]
FAST Time ConstantSLOW Time Constant
Average (log.)40.738.4
Minimum35.033.5
Maximum46.542.9
Table 5. Long-term equivalent sound level LAeq,T [dB] for different room functions, heavy-traffic-control necessary sound insulation of external wall for calming long-term noise level, and short-term acoustic events.
Table 5. Long-term equivalent sound level LAeq,T [dB] for different room functions, heavy-traffic-control necessary sound insulation of external wall for calming long-term noise level, and short-term acoustic events.
Room FunctionLong-Term Equivalent Sound Level LAeq,T (dB)
DaytimeNighttime
Hotel room/living room3525
Restaurant40-
Office room40-
Heavy traffic events (vehicles/timespan)
Hotel room/living room140765
Restaurant4551-
Office room4551-
Sound insulation R’A2 (dB)
Long-term sound levelShort-term events
Hotel room/living room3750
Restaurant2235
Office room2235
Table 6. Maximum values of acceleration of vibration for each sensor.
Table 6. Maximum values of acceleration of vibration for each sensor.
Name of MeasurementP-13xP-14xP-15x
Disc 4 First Floor (Attic)
[cm/s2][cm/s2][cm/s2]
1—Heavy truck lane B 46 km/h0.860.981.50
2—Delivery car lane A 44 km/h0.470.480.77
3—Heavy truck 3-axial lane B 42 km/h1.291.421.86
4—Crane car lane A 30 km/h0.370.360.79
5—Bus lane B 45 km/h1.941.131.85
6—Bus lane A 60 km/h8.616.6718.09
7—Short bus lane B 35 km/h4.371.816.12
8—Garbage truck lane 45 km/h3.523.5710.82
Table 7. WODL indicator analysis for each recorded measurement for each sensor mounted on the floor inside the building.
Table 7. WODL indicator analysis for each recorded measurement for each sensor mounted on the floor inside the building.
Name of MeasurementP-13xP-14xP-15x
Disc 4 First Floor (Attic)
f [Hz]WODLf [Hz]WODLf [Hz]WODL
1—Heavy truck lane B 46 km/h63.000.024.000.0116.000.25
2—Delivery car lane A 44 km/h63.000.014.000.0116.000.07
3—Heavy truck 3-axial lane B 42 km/h16.000.014.000.0316.000.55
4—Crane car lane A 30 km/h5.000.014.000.0116.000.11
5—Bus lane B 45 km/h63.000.0610.000.0116.000.19
6—Bus lane A 60 km/h63.000.0680.000.0616.000.30
7—Short bus lane B 35 km/h63.000.0763.000.0280.000.16
8—Garbage truck lane 45 km/h4.000.0663.000.0316.001.07
Maximum value 0.07 0.06 1.07
Publisher’s Note: MDPI stays neutral with regard to jurisdictional claims in published maps and institutional affiliations.

Share and Cite

MDPI and ACS Style

Fedorczak-Cisak, M.; Kowalska-Koczwara, A.; Nering, K.; Pachla, F.; Radziszewska-Zielina, E.; Stecz, P.; Tatara, T.; Jeleński, T. Measurement and Diagnosis of Comfort in a Historic Building. Energies 2022, 15, 8963. https://doi.org/10.3390/en15238963

AMA Style

Fedorczak-Cisak M, Kowalska-Koczwara A, Nering K, Pachla F, Radziszewska-Zielina E, Stecz P, Tatara T, Jeleński T. Measurement and Diagnosis of Comfort in a Historic Building. Energies. 2022; 15(23):8963. https://doi.org/10.3390/en15238963

Chicago/Turabian Style

Fedorczak-Cisak, Małgorzata, Alicja Kowalska-Koczwara, Krzysztof Nering, Filip Pachla, Elżbieta Radziszewska-Zielina, Piotr Stecz, Tadeusz Tatara, and Tomasz Jeleński. 2022. "Measurement and Diagnosis of Comfort in a Historic Building" Energies 15, no. 23: 8963. https://doi.org/10.3390/en15238963

APA Style

Fedorczak-Cisak, M., Kowalska-Koczwara, A., Nering, K., Pachla, F., Radziszewska-Zielina, E., Stecz, P., Tatara, T., & Jeleński, T. (2022). Measurement and Diagnosis of Comfort in a Historic Building. Energies, 15(23), 8963. https://doi.org/10.3390/en15238963

Note that from the first issue of 2016, this journal uses article numbers instead of page numbers. See further details here.

Article Metrics

Back to TopTop