Next Article in Journal
Sustainable Transition from Fossil Fuel to Geothermal Energy: A Multi-Level Perspective Approach
Previous Article in Journal
Hydropower in the Energy Market in Poland and the Baltic States in the Light of the Challenges of Sustainable Development-An Overview of the Current State and Development Potential
 
 
Font Type:
Arial Georgia Verdana
Font Size:
Aa Aa Aa
Line Spacing:
Column Width:
Background:
Article

On the Possibility of Cleaning Producer Gas Laden with Large Quantities of Tars through Using a Simple Fixed-Bed Activated Carbon Adsorption Process

1
Institute for Energy and Fuel Processing Technology (ITPE), Zamkowa 1, 41-803 Zabrze, Poland
2
ENET Centre, VSB-Technical University of Ostrava, 17. listopadu 2172/15, 708 00 Ostrava, Czech Republic
*
Author to whom correspondence should be addressed.
Energies 2022, 15(19), 7433; https://doi.org/10.3390/en15197433
Submission received: 7 September 2022 / Revised: 29 September 2022 / Accepted: 9 October 2022 / Published: 10 October 2022

Abstract

The study presents the results of research on using fixed-bed, activated carbon (AC) adsorbers in the cleaning of heavily tar-laden producer gas from the gasification of biomass. The efficiency of removal of organic compounds as well as the remaining adsorption capacity of the bed were determined using a spectrum of commonly applied diagnostic methods, including qualitative and quantitative analyses of the adsorbed compounds and changes in the pore volume of the bed material (IN, MN). The authors compare these lab quantifications with a simple technique which is based on the analysis of the changes in the position of temperature front in the bed. The main benefit of the latter is the possibility of performing the diagnostics of the bed “online” and using low-cost temperature measurements. The test was performed using a commercially available AC Desotec AIRPEL 10-3 and real producer gas obtained through the gasification of alder chips. For tar, VOC and C2–C5 compounds, the removal efficiencies reached respectively 74.5%-wt., 52.8%-wt., and 85.5%-wt. Obtained results indicate that depending on the final application of the gas, the use of dry adsorption systems is an interesting alternative to the well-established but complicated, cumbersome, and costly wet scrubbers. Moreover, a concept for in situ regeneration of the adsorbent, coupled with direct reforming of the tars, is presented and discussed.

1. Introduction

Growing public awareness on environmental and climate protection is currently one of the most important factors influencing the direction of change observed worldwide in energy and heavy industries. The search for ecological solutions and minimizing their harmful impact on the human environment is supported by the energy policy of the European Union. The EU imposes changes in the energy market through legal acts and regulatory works, such as, e.g., The Paris Agreement as well as RED II, LCP, and Waste Directives, changing emission standards and reducing the allowed use of primary energy carriers [1]. The reduction of CO2 emissions is sought in every aspect of human activity. For Poland, one of the solutions that is stipulated as beneficial for the energy transformation is the thermal conversion of biomass, which is classified as a renewable energy source and thus takes no part in the CO2 emission cycle [2,3,4]. Due to the specific physicochemical properties of biomass and the variability of its physicochemical properties, a competitive and more flexible solution for combustion processes is the gasification technology. It allows for the conversion of chemical energy contained in the renewable feedstock, into useful chemical energy of the combustible producer gas. The composition and physicochemical properties of the producer gas obtained in the process of biomass gasification make it a convenient utility for the decarbonization of a large number of industrial processes. One of the most often proposed application routes for biomass is decentralized, combined heat and power production with the use of a piston engine or a gas turbine. However, the gasification of biomass can also be used as a feedstock pretreatment step before direct combustion or co-combustion with other fuels. Finally, also gasification of biomass can be used for the production of chemicals and fuels through the upgrading of producer gas to syngas and potential synthesis of liquid fuels in the Fisher–Tropsch process [5,6,7,8,9,10], methanol or higher alcohols [11,12,13,14,15], SNG [16,17,18,19,20,21], and hydrogen [22,23,24,25,26].
The raw gas obtained during the gasification process is often called producer gas. The gas contains a great variety of compounds and impurities; hence, it is only after the producer gas is converted so that its main constituents remain H2 and CO, it can be called syngas. The necessity and severity of producer gas cleaning are dictated by the final application of the gas, current legal requirements, and economic considerations. Its use for the production of heat and electricity in a gas engine does not require particularly deep cleaning. Aside from the removal of solids (<5 mg Nm−3) and moisture (water dew point < 30–40 °C), the content of organic substances (tars) remains the major technical difficulty. The limit to the number of tars that are acceptable for gas engines is often said to be <100 mg Nm−3. However, to ensure the safe operation of gas engines, the gas needs to be kept dry—condensation of any constituent of the gas within the gas train of the engine or at its intake is undesired and can be detrimental. Hence, a precise limit on the content of the tars and their dew point can be determined only based on the speciation of hydrocarbons forming the tar [27]. Furthermore, the producer gas can also be used as a feedstock for the production of liquid fuels or chemicals. These processes are performed using catalysts; hence, prior to synthesis, the gas should be almost completely deprived of tars as well as S and N compounds (to the level of ppm or ppb) [28].
There are several common strategies for purifying the process gas for biomass gasification systems, where the gas is used for the firing of gas engines. The complexity of the system and the choice of unit processes is a derivative of the type and quality of the fuel, the design of the gasification reactor and the requirements of the manufacturer of the CHP unit. One of the simplest process gas cleaning configurations is the dry-cleaning method with gas cooling and dedusting. In such systems, dedusting is usually carried out using bag filters or cartridge filters. A solution of this type is proposed by, e.g., Burkhart GmbH [29,30] and Spanner Re2 GmbH [30,31,32]. The advantage of such systems is their low complexity and capital investments (CAPEX) and operational costs (OPEX) because the gas engines used in such installations are deliberately modified to allow for the combustion of hot gases. While from the perspective of the thermodynamic cycle efficiency of the engine, it is not beneficial to combust hot gaseous fuels, it cannot be overlooked that in such systems no wastewaters are generated. Moreover, if the condition of condensation of the gas is kept, it is positive that the whole stream of the organic fraction of the gas is used for firing of the engine, which in turn allows for the recovery of the chemical energy of the tars. It is also one of the reasons why it is not uncommon that micro-scale (<300 kWth), well-integrated gasification-CHP units present overall electricity (>27%) and heat (>53%) generation efficiencies at levels exceeding the efficiencies of other small-scale installations (1000–5000 kWth). The disadvantage of this type of solution is its sensitivity to varying characteristics of the fuel, especially its moisture content. Because the temperature of the process gas at the intake to the engine cannot surpass 80–85 °C—representing the maximum dew point of the gas—this method is not suitable for gases with a high pollutant load.
Another common strategy for cleaning producer gases is based on the use of absorption methods (scrubbers/wet methods), where water or organic liquids are used as the scrubbing liquid. Scrubbing towers in this method are usually complemented by dust collectors, which can be used both upstream as well as downstream of the scrubbers. These systems can clean gases down to very low levels of contaminants but at the expense of generating streams of liquid wastes. In addition, due to the higher complexity, wet methods are characterized by higher CAPEX and OPEX. Wet treatment of producer gases has been demonstrated, i.e., at a biomass gasification plant in Güssing, which has successfully operated for >80,000 h [33,34,35]. The 8 MWth gasifier was a dual-fluidized bed system based on the Fast Internal Circulating Fluidized Bed concept (FICFB). The raw hot gas from the reactor was firstly cooled and then cleaned in a two-stage system consisting of a bag filter and RME (Rapeseed Methyl Ester) scrubber. A similar concept for gas cleaning is proposed by Syncraft GmbH. However, in the system of Syncraft, the gas cleaning island comprises a ceramic hot gas filter, a heat exchanger, and a water scrubber [36,37,38]. Another commercial solution for the gas cleaning system for biomass gasification plants is represented by the concept from ReGaWatt GmbH [39,40]. This concept should be regarded as one of the dry methods. Herein, downstream from an updraft gasifier, the raw process gas is cooled in a two-stage heat exchanger, in which the condensation of tar and water vapor occurs. Subsequently, the saturated gas is demisted using a wet electrostatic precipitator. This very simple system can be attractive because the stream of the produced liquid has high chemical enthalpy, and hence after treatment can be utilized in a combustion chamber, where the energy from the contaminants can be recovered in the form of hot water, steam, or electricity. An interesting alternative to the above-mentioned concept is presented by MEVA ENERGY AB [41,42] who base their technology for biomass gasification on a cyclonic gasifier (vortex reactor). The conditioning of the producer gas is performed here through the following steps: cooling of the gas < 100 °C, and removal of tars, water, and particulates in a two-stage process consisting of a venturi scrubber and a wet electrostatic precipitator.
All configurations discussed above were dedicated to the CHP applications. However, the potential for wet scrubbing of producer gas is much greater as typically, these are one of the most efficient methods for the removal of tars and organic compounds. Single-stage scrubbing systems achieve efficiencies of tar removal in the range of 60–95% [43,44,45,46]. However, by using a multi-stage gas scrubbing, much higher tar removal efficiencies are also attainable. For example, the total efficiency of tar removal in OLGA technology reaches up to 100%. One downside of the wet methods is their high complexity, related to the necessary recycles, regeneration, make-up, and final management of the scrubbing liquid. Often, they also generate a liquid stream, which can be difficult to treat.
In this light, the potential of using alternative methods to wet systems stands out, primarily the ones that are based on carbon adsorbents. Adsorption-based methods present themselves with a list of advantages. Particularly interesting seem their potential for high cleaning efficiencies, lower investment and operating costs, low complexity, and ease of operation. On the other hand, their main disadvantage is that the drop in purification efficiency can stand out when used for treating streams laden with high amounts of contaminants.
Al-Dury [47] in his dissertation conducted a study concerning the adsorptive removal of tars from producer gas generated through gasification of woodchips. The tests were conducted on a 150 kWth pilot gasification plant. Three different carbon-bearing materials with different porosity were used, namely charcoal, coke, and AC. The tests were conducted at temperatures in the range of 70–200 °C. The following tar removal efficiencies were indicated: charcoal (66–75%), coke (46–55%), and AC (95–98%). The results for AC show that it is possible to achieve high tar removal efficiencies, especially concerning class 2, 4, and 5 tars (class 2: heterocyclic components (such as phenol, pyridine, and cresol); class 4: aromatic (1 ring) components; class 4: light polyaromatic hydrocarbons (2–3-ring PAHs)). Loipersböck et al. [48] conducted a syngas purification study using a laboratory TSA system. The study used commercially available AC of average quality parameters (BET surface area 890–940 m2 g−1). The studies confirmed the feasibility of replacing “cold” RME scrubber with an AC adsorber. The gas used in the study was 40 °C with an inlet tar concentration of 25 g Nm−3. The tar removal efficiency was no less than 95% for all of the TSA cycles performed. It was shown that the use of the TSA system was effective in extending the operating time of the bed, while only a slight drop in removal efficiency was noticed between cycles. Furthermore, Hu et al. [49] performed a study using synthetic gas mixtures. In their work, the authors performed experiments on the removal of model compounds (tars representative for gasification of biomass: phenol, o-cresol, naphthalene, and 1-methylnaphthalene) using five different ACs in the temperature range of 150–300 °C. They indicated that the removal efficiency varied in the following order: phenol < o-cresol < naphthalene < 1-methylnaphthalene, while the capacity of the adsorbents varied in the range of 10.5–32.6 g tar per 100 g AC. Paethanom et al. [43] in their work compared three different methods for tar removal from producer gas using low-cost or waste sorbents. The tests included absorption using a vegetable oil scrubber and used cooking oil, adsorption using a bed of rice husk adsorbent and rice husk char, and a combination of the above-mentioned sorption methods. The study was carried out on real gas. The results showed that the absorption method was effective in removing both heavy and light tars. The combination of both methods removed gravimetric tars with an efficiency of 95.4%. Dafiqurrohman et al. [50] performed tar removal studies using a fixed bed adsorber. The experiments were done using real producer gas obtained from gasification of biomass performed in a down-draft reactor, and by using three different porous materials. The tar removal efficiencies of the tested sorbents were as follows: biochar (59.45%), rice straw (52.38%), and rice husk (56.65%).
The research presented in this paper was designed to confirm the feasibility of replacing or supplementing the wet method of producer gas cleaning using an oil scrubber, with a dry process realized using a fixed bed adsorber. The primary function of the adsorber was to remove heavy tar from the gas, hence during the experiments, AC was used as the bed material. The producer gas used in the research was produced through the gasification of alder chips in a fixed-bed GazEla reactor, located at the ITPE research facility in Zabrze (Poland). In addition to the herein presented experimental results concerning the efficiency of gas cleaning using the fixed bed adsorber, the authors also discuss methods for evaluation of the state of the bed and its remaining capacity. In comparison to standard measurements of the concentration of contaminants downstream of the adsorber, the analysis of the changes in temperature front is suggested as a low-cost, continuous method allowing for control and diagnostics of fixed-bed adsorbers.

2. Materials and Methods

2.1. Characteristic of Adsorbent Used

Commercially available Desotec AIRPEL 10-3 AC (CAS no: 7440-44-0), produced from bituminous coal by physical steam activation, was used for this study. It is a molded AC with average adsorption performance and a well-developed microporous structure; thus, it finds common application in processes carried out in the gas phase. The physical and chemical properties of the AC used in this study are presented in Table 1.
The results of analyses of AC bed samples presented herein refer to 3 following states of the bed material and its respective sampling points:
  • 1—fresh AC, sampled directly as received from the producer,
  • 2—AC after the experiment, extracted from the adsorber bed at the height of 100–200 mm,
  • 3—AC after the experiment, extracted from the adsorber bed at the height of 1000 mm.
Determination of total moisture was performed according to method B1 described in PN-ISO 589:2006. Moisture content in the analytical state and ash content was performed according to PN-ISO 1171:2002. Volatile matter content was performed according to ISO 562:2010. Combustion heat and calorific values were determined according to ISO 1928:2009. The sulfur content was measured according to ISO 19579:2006, while carbon, hydrogen, and nitrogen content were measured according to ISO 29541:2010.
The methylene number (MN) was determined following PN-82/C-97555/03. Iodine number (IN) was determined following PN-EN 12902:2005, while BET-specific surface area and pore volume were performed following ISO 9277:2010.
Activated carbon was used in the study due to its hydrophobic surface characterized by preferential removal of organic matter and low water vapor adsorption at a low relative humidity of the gas. During the selection of the bed material, important factors were also relatively high capacity for adsorption of organic species, low cost, and high availability of the AC.

2.2. Research Plant

2.2.1. Gasification Plant

The experimental research was carried out using a gasification plant located in the Clean Coal Technology Center—part of the Institute for Energy and Fuel Processing Technology (Zabrze, Poland). The main element of the installation is a pilot gasification reactor, GazEla, which is a fixed-bed reactor, characterized by a mixed-flow, and 60 kWth power (in fuel). A mixture of the gasification agent is introduced into three characteristic zones of the bed and the reactor offers the possibility to draw producer gas directly from its gasification zone, through a height-adjustable, vertical pipe located at the axis of the apparatus. Such a solution produces high-temperature producer gas with lower tar content than classical counter-flow reactors, while still allowing the use of fuels with high moisture contents. The gasification plant has a dedicated producer gas cleaning system equipped with two process lines, namely a dry and a wet cleaning route. The construction of the installation allows for an online changing between the two systems without intrusion into the operation of the reactor. The reactor, gas cleaning routes, and their auxiliaries have been described in detail in previous publications of the authors [51,52,53]. The dry-cleaning system was used in this research and a schematic diagram of the installation is presented in Figure 1.

2.2.2. Adsorption Process Test Rig

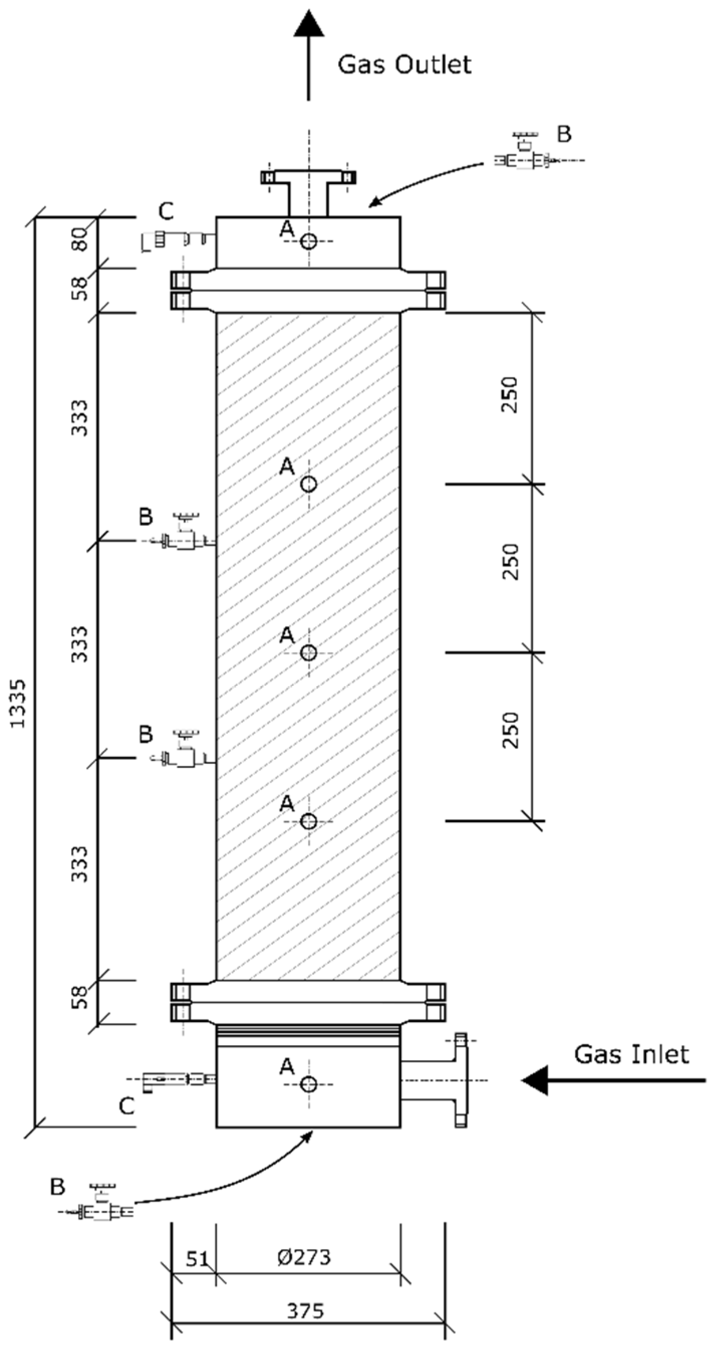
The adsorber used in this study is a device consisting of several structural elements. The main part of the reactor is a cylindrical steel tank that is filled with the adsorbent. The tank is made of a stainless-steel pipe with a nominal diameter of DN250 and a height of 1 m. The intake of the producer gas is located in the bottom part of the vessel, perpendicularly to the vertical axis, while the outlet of the producer gas is located in the top cover, at the axis of the adsorber. The design of the adsorber allows for its simple disassembly and replacement of the spent adsorbent. The structural element that supports the carbon bed is a perforated plate, which at the same time acts as a distributor for the producer gas. The use of a perforated plate ensures the rigidity of the structure, while a woven mesh fixed on its top ensures that AC does not fall through the grate.
The adsorber is equipped with 5 thermocouples distributed along its vertical axis as well as a measurement of the differential pressure of the bed. The temperature is measured at the inlet and outlet of the producer gas as well as at evenly distributed levels of the reactor. The location of the thermocouples thus enables observation of the change in temperature distribution (profile) in the carbon bed. The temperature fluctuations in the bed provide feedback on the intensity of adsorption and the position of the reaction front. The adsorber is also equipped with four gas sampling ports. Two of them are located respectively at the gas inlet and outlet of the device, while the following two are evenly distributed along the vertical axis of the bed. Such a solution allows for the extraction of gas for analysis, before and after cleaning on an AC bed, and allows for optional analysis of the efficiency of the device at different heights of the bed. The adsorber unit is shown in Figure 2.

3. Research Methodology

Intentionally, the adsorption test was carried out under conditions of high contamination of the producer gas. These conditions were induced by maximizing the impurities contained in the producer gas, i.e., through the use of wood chips with high moisture content and a simplified setup of the gas cleaning system.
The cleaning system was limited to the dry method using a high-temperature ceramic filter that was pre-coated with calcined halloysite and a producer gas heat-exchanger, which function was to cool the gas to 30–40 °C, and thus condense most of the water and organics. In such a setup, a major part of water and heavy tars is condensed out of the gas; however, the thus produced water-tar aerosol (mist) cannot be efficiently separated without the use of subsequent demisting, e.g., using spraying towers, electrostatic precipitators, or coalescing filters. Here, separation of the aforementioned aerosol was performed using a coalescing filter. Afterwards, the gas was transferred directly to the adsorber. The main objectives of the experiment are presented below:
  • confirmation of the possibility for cleaning of highly contaminated producer gas through adsorption on an AC bed,
  • determination of the efficiency of producer gas cleaning from individual contaminants or classes of compounds,
  • evaluation of the degree of use of the bed material by means of various diagnostic methods,
  • evaluation of the possibility of replacing or supplementing the wet producer gas cleaning system with an AC adsorber system.

3.1. Measurement Methodology

Prior to the test, the adsorber vessel was filled with fresh AC, in an amount necessary to reach the bed height of 1000 mm. From a batch of AC used during the adsorption test, a 3 kg sample was taken for laboratory analyses. After a test, AC samples were also taken from different heights of the bed, using a sampling probe. A sample of AC representative for the upper layer of the bed (i.e., at a height of 1000 mm) was taken after the removal of a thin top layer of about 10 mm to avoid errors resulting from accidental contamination of the bed by external factors (e.g., dust in the air, moisture).

3.2. Determination of Producer Gas Composition

3.2.1. Basic Composition, Sulfur Compounds, Energetic Parameters

The VARIAN CP-3800 chromatograph with FID/TCD/PFPD detector was used to determine the gas composition. The basic composition was determined by TCD and FID detectors, while sulfur compounds (H2S, COS, CH3SH) were determined using a PFPD detector. Based on the determined composition of the producer gas, its calorific value, combustion heat and density were calculated according to the PN-EN ISO 6976:2016-11 standard. The samples of producer gas were taken for analysis into Tedlar bags collected from a sampling point located downstream of the adsorber. To protect the sampling bags against condensation of water and organic pollutants (especially tars), prior to sampling the gas was cooled down to 4 °C and washed in impinger bottles filled with water.

3.2.2. Water, Dust, Tar, Volatile Organic Compounds

Gas samples for determination of the concentration of contaminants were taken simultaneously before and after the adsorber according to a modified tar-protocol method. The procedure is based on absorption in isopropyl alcohol and its details can be found in the literature [51,54].
Three groups of organic compounds were distinguished during the analysis: C2–C5, VOC, and tar C2–C5 is understood as the sum of hydrocarbons: C2H4, C2H6, C3H6, C3H8, C4H10, and C5H12. Tar is understood as organic compounds that do not evaporate at 0.1 bar, 80 °C (often referred to as gravimetric tar). VOC is understood as the sum of all organic substances that evaporate at 0.1 bar, 80 °C.

4. Results and Discussion

4.1. Operation of the Reactor and Characteristics of Raw Gas

Wood chips from alder wood were used for the gasification test. Before feeding to the reactor, the wood chips were crushed and sieved to obtain a homogenous fuel fraction (about 5–20 mm). Table 2 shows the results of the proximate and ultimate analysis of the fuel.
This lowers the temperature of the gasification process and this subsequently leads to a decrease in reactor efficiency and an increase in the flux of tars generated. Average parameters of the gasification process are shown in Table 3.
From previous experiments, it is known that during air gasification of biomass this reactor is able to produce gas with LHV in the range of 3.0–5.5 MJ Nm−3 [52]. The high moisture content of the fuel and the use of steam as a gasifying agent both lower the temperature of the gasification process, thus affecting the amount of tar generated and the calorific value of the gas. Typical production of organic contaminants (VOC+tar) contained in the gas from the biomass gasification process ranges from 1 to 150 g Nm−3 producer gas [55].
For the sake of this research, it was paramount to produce gas with a large quantity of contaminants as its cleaning using AC relates to an intensification of the adsorption process, which allows for more precise observation of the position of the adsorption front. The composition and basic parameters of the raw producer gas are presented in Table 4, while Table 5 presents the content of the main contaminants present in the raw gas. During this test, the concentration of VOC and tar at the outlet from the reactor was 27.9 g Nm−3.

4.2. Gas Cleaning Prior to the Adsorber

Downstream from the reactor, hot producer gas firstly undergoes dedusting performed using a high-temperature ceramic filter. This method allows for the removal of PM from the gas below the lower detection limit, often described as <5 mg Nm−3. This step is vitally important for further purification of the gas using AC. The dust particles consist of a mixture of organic and inorganic components, characterized by their own porous structure. Their surface properties can make the particles exhibit some degree of activity in the adsorption of gas components. This phenomenon is beneficial for the operation of the high-temperature filter because its efficiency increases as a consequence of the filtration/adsorption of impurities from the gas on the surface of the filter cake; however, the same solids can lead to clogging and deactivation of fixed-bed adsorbers. At least two types of phenomena can stand behind the alteration of the porous structure of the AC and thus its deactivation, i.e., masking or plugging. Deactivation of the AC can happen not only due to an action of solid particulates but also can occur in the presence of organic matter (especially polyaromatic hydrocarbons). Some organic pollutants are also known to be removed from the gas due to adhesion on the outer surface of AC, thus forming a filter cake. The adhered layer of organics can introduce a temporary increase in the efficiency of the removal of pollutants, however, in the longer perspective, it is undesired as can lead to a decrease in the specific adsorption capacity of the sorbent and a rise in pressure drop on the bed.
Downstream from the filter, the gas was passed through a shell-and-tube heat exchanger where it was cooled down to 30–40 °C in order to condense out most of the water and organic matter contained. For separation of the tar–water aerosol from the gas, a coalescing filter was applied.
The system described above was used in this study to represent dry gas cleaning methods applied in commercial, small-scale biomass gasification plants integrated with gas engines. [30,36] In the case of larger scales of installations, an oil scrubber connected with heat exchangers and a highly efficient demisting of the gas would be the next step providing higher efficiency for the removal of water and tars.

4.3. The Efficiency of Tar Removal from Heavily Contaminated Producer Gas with the Use of the Adsorption Process

The dedusted, cooled, and demisted gas was then directed to the adsorption column. Figure 3 shows the concentration of each measured pollutant present in the gas upstream and downstream of the adsorber, along with the calculated removal efficiency of each component.
The producer gas directed to the adsorber contained water in a concentration close to its saturation point. For this reason, condensation of small amounts of water in the lower part of the bed was possible. In the upper layers of the bed, the likelihood of water condensation was significantly lower because the temperature of the gas increased alongside the height of the reactor. As the functional groups on the surface of AC are predominantly non-polar in nature and express hydrophobic properties, for relative pressures p p0−1 < 0.4, the adsorption of water on the surface of AC occurs only in trace amounts. For this reason, the herein measured removal efficiency for water was low (3.0%). Importantly though, for continuous operation in an industrial environment, it still would be advisable to pre-dry the gas. This can be done using adsorbents with hydrophilic surfaces such as active alumina, molecular sieves (3A, 4A, 13X), or water-resistant silica gels. It is beneficial that the above-mentioned sorbents are mainly targeted for the removal of water and their affinity for the removal of other gas components (including tars) is very limited.
The herein measured concentration of tars in the gas at the outlet of the adsorber remained high and was equal to 0.9 g Nm−3. For application in gas engines, this value would need to be reduced to approximately the level of 50 mg Nm−3. This can be achieved i.e., through extending the length of the adsorption bed, changing the AC to an adsorbent with higher adsorption capacity, or lowering the tar concentration at the inlet to the adsorber. Gravimetric tars are mainly composed of molecules having a high molecular weight and high boiling point. In most cases, these contaminants will also present the best affinity and capacity for adsorption on the surface of ACs.
At the other end of the spectrum should lie the C2–C5 hydrocarbons, which during this trial also presented a clear affinity for removal. Light hydrocarbons tend to be the first to desorb from the adsorbent as a consequence of the shifting of the mass transport zone. In multicomponent adsorption, the less strongly adsorbed compounds are displaced from successive layers of the bed by compounds, with higher affinity to the adsorbent surface. Adsorbates that are desorbed from the upper layer of the bed are carried away with the flowing gas, which is the reason behind the higher measured concentration of these components at the outlet than at the inlet of the adsorber (c c0−1 > 1).
In the light of multicomponent competition for active sites of the AC, and if the application of the gas is energetic use, e.g., for driving gas engines, the removal of the light VOCs and C2–C5 from the producer gas is disadvantageous. In such cases, adsorption of VOC leads to a decrease in the calorific value of the gas and represents an energy loss for the system. At the same time, the removal of VOCs leads also to faster degradation of the adsorbent and thus increases the operational cost of the whole system. Table 6 presents the change in the adsorption efficiency of C2–C5 over the course of the experiment.
The results clearly show a change in the adsorption capacity of the individual hydrocarbons as the bed became more saturated. At the initial stage of the experiment, the adsorbent bed was free of contaminants. After the first instance of feeding producer gas (P1), the flux of adsorbed compounds is the highest, and its total value for C2–C5 hydrocarbons was 234.7 g h−1 (85.5% adsorption efficiency). This observation was true for most of the measured light hydrocarbons and their streams were reduced to <10 g h−1. The exception was C2H4, which was the hydrocarbon with the lowest molar mass, while its content in the gas was the highest. After about 170 min process time (P2), a clear signal of the release of C2H4, C3H8, and C3H6 compounds was observed. These compounds reached a c c0−1 value > 1, thus indicating not only their breakthrough, but also their release from the bed due to replacement with adsorbates having higher sorption affinity.
The herein presented data should be analyzed in comparison to other configuration of sorption-based gas cleaning concepts. Table 7 collates the results obtained in the herein discussed experiment (1) with a set of data measured for the GazEla reactor but for gas cleaning in an RME scrubber (2), and two literature results for fixed bed gasifiers coupled with gas cleaning in fixed bed adsorbers (3) and (4).
For removal of tars, Nakamura et al. [46] in (3) applied the char from gasification of biomass, a side product obtained from the same installation. The reactor was an updraft fixed bed gasifier. Although in the first moments a tar removal efficiency of 81.5% was obtained, authors indicated rapid saturation of the bed. After 10 h of experiment the measured efficiency of tar removal dropped to 15.7%. Finally, in (4), Hanaoka et al. [56] conducted experiment aimed to show the potential for removal of tar, particulates, and sulfur compounds. Although the tests were done on a lab-scale, gas cleaning was performed using a real producer gas obtained from a downdraft gasifier. The installation consisted of a cyclone and a set of two fixed-bed absorbers, installed in series and filled with Fe-impregnated activated carbon. Temperatures of the beds were kept at 320–350 °C and 60–170 °C, respectively, and the total tar removal efficiency of 95.8% was indicated. Despite the fact that these experiments were performed using gas from a downdraft reactor, which is the type of reactor that produces one of the cleanest producer gases, and the installation did not have all the necessary unit operations which would be necessary for an industrial-scale installation, the obtained high efficiency for removal of tars supports the potential of using the adsorption-based methods for cleaning of raw producer gases.

4.4. Comparison Methods and Tools for Diagnosis and Prediction of the State of the Fixed-Bed Adsorption Reactor

As indicated before, during the experiment, the possibility for observation of the progress of the adsorption process through temperature measurements was sought. This goal was successfully achieved because large amounts of potential adsorbates in the gas caused a significant rise in temperature in the successive layers of the bed. An analysis of the movement of the temperature front along the height of the bed is shown in Figure 4.
First, the information gathered from the temperature measurement indicates the so-called dead zone of the adsorber (0–100 mm). Determination of its length can be used as an input parameter for the development of kinetic models of the adsorption process. Followingly, the analysis of the changes in temperatures of the bed gives information about the progress of the adsorption process itself. The observed movement of the position of the maximum bed temperature was correlated with the location of the mass transfer front (MTF) and is a consequence of the increasing level of saturation of successive bed layers with compounds removed from the gas. The saturated adsorbent remains in equilibrium with the contaminants transferred from and back to the gas phase, hence, the heat flux in the given layer stops varying. This can be observed through the attained pseudo-steady state equilibrium of the lower portion of the bed (a decline in its temperature). The limit of the process occurs at the moment when the temperature of the bottom part of the bed reached the temperature of the intake gas.
As mentioned before, the magnitude of the temperature gradient of the adsorber bed depends on the intensity of the process. During the first moments of the experiment (t = +20 min), the most intense gain in the temperatures of the bed was observed (dT dt−1). At this point the differences between the temperature of the inlet gas and the highest temperature point measured within the bed reached 13.5 °C. During the following stages of the experiment, the adsorption front travelled up the height of the AC bed. At P2, an increase in temperature of the top layer of the bed was noticed, indicating its potential breakthrough. This was confirmed by measuring the concentration of C2–C5 compounds, and the change in adsorption efficiency c c0−1 for C2–C3 compounds.
The highest temperature in the bed equaled 51.3 °C (with dT of the bed f 17.9 °C) and was measured at a bed height of 750 mm at 4 h and 50 min from the start of the experiment. This moment was also the inflexion point for the temperature rise of the bed. At this moment, the whole volume of the reactor attained a pseudo-steady state, hence theoretically the efficiency of the gas cleaning reached zero.
The total amount of compounds removed on the AC bed equaled 161 g per kg of applied AC, which translates to 22.34 g per Nm3 of cleaned gas. These values were determined gravimetrically via measurement of the weight of the bed before and after the experiment, hence they correspond not only to adsorbed compounds but also to the contaminants removed via filtration and coating of the outer surface of the AC.
To evaluate the actual state of the bed resulting only from the adsorption process, as well as to compare the observations made through the analysis of the temperature front, also determinations of IN and MN were carried out. Their results are collated in Table 8.
IN is an adsorption parameter that describes the microporous structure of a material (<2 nm), while the MN determines primarily the volume of mesopores (2–50 nm), which is the reason why it is correlated with the ability of a sorbent for adsorption of larger compounds. The most part of the organic compounds (VOC+tar) removed from the producer gas is adsorbed within the micropores. However, the mesoporous structure of a sorbent affects the intramolecular diffusion and hence the kinetics of the process. Both parameters influence the width of the MTF. The values of IN and MN of the spent sorbent, recovered from the 100–200 mm layer of the bed, decreased respectively by 29.9% and 50%. At the same time, IN and MN for the top layer of the bed (1000 mm) decreased by respectively 3.7% and 14.7%. This indicates that the MTZ moved towards the top layer of the bed and its breakthrough occurred.
It is known that IN and MN can be applied for the estimation of the specific area of the sorbent [57,58]. As shown by this experiment, IN can also indicate the wear level of AC. The value of IN measured for the bottom layer of the bed (D10-3/2) should be treated as the reference of this AC in its saturated condition (the temperature gradient for this layer was constant). The ratio of IN for the saturated and fresh sorbent equaled 0.7. For this setup, this value can be treated as a limit and a standard reference point. To follow the changes in the state of the bed and the position of the MTF by following the changes of IN, it would be necessary to perpetually determine the IN of samples taken at several cross-sections of the bed. The moment when the IN of the top layer starts to decrease even by a small degree (3% measured for the D10-3/3 sample), the breakthrough of the bed occurs. The drawback of this method is that when different batches of the same type of AC or different ACs will be used, the reference value of the IN needs to be determined once again. Moreover, the measurement of IN cannot be used as a continuous and pre-emptive method. In addition, IN is non-specific, and in the case of this experiment could not indicate the breakthrough of C2–C5 hydrocarbons. Due to the characteristic features of the MN as well as the physicochemical properties of the organic species contaminating producer gases, its usefulness for the assessment of the state of fixed bed adsorbers is less pronounced.
The experiment supported the thesis that a simple temperature measurement can be used to online assess the state of the bed. For evaluation of the necessity for exchange or regeneration of the bed material, a temperature measurement located at, e.g., 75% height of the bed can be used. The regeneration should be started when the temperature measurement at the specified level reaches inflexion point dT/dt = 0. For this installation, such setup would result in 140 min of the adsorption phase, while 30 min of safe operation time would remain until the breakthrough of the column. Importantly, the location of the set point measurement can be shifted accordingly to the level of process safety required, however at a cost of an increased number of necessary adsorbers and power used for their regeneration.

4.5. Strategy for Regeneration of Fixed-Bed Tar Adsorbers

For the application of the adsorption system to be a viable option for cleaning producer gases highly laden with organic contaminants, the use of in situ regeneration is paramount. Typically, regeneration of adsorbers is conducted through changing the temperature, pressure, or volume of the system (respectively, TSA, PSA, or VSA); however, hybrid systems also start to find more frequent uses. Because the herein presented application the main contaminants removed from the producer gases are organic compounds, it is energetically beneficial to recover and recycle the adsorbates back into the process. A TSA method with cyclic regeneration using 150–250 °C steam is hence proposed, as the stream of desorbed contaminants as well as the steam can be directly recycled to the gasifier or fed to a combustion chamber/boiler. Increasing the efficiency of conversion of the organic contaminants, e.g., through recycling the tars back to the gasification process, positively influences its total efficiency. In such a case, energetic losses of a gasification system drop because the VOC and tars can be gasified to simpler compounds, thus increasing the yield and calorific value of the producer gas. For this experiment, the enthalpy of the VOC+tar adsorbed in the single-stage fixed-bed reactor reached 13% of the enthalpy of the gasified feedstock. However, if a standard two-step adsorption process would be used, the amount of recovered chemical energy could increase to 16.5%.
Further experiments performed using this system are proposed to be conducted in a TSA mode. Such an adsorption system should consist of two columns working interchangeably in a cycle consisting of 5 steps: adsorption, desorption, drying, cooling, and finally the second stage of adsorption. In the fifth step of the cycle, the second column is used in series, after the first adsorber, and thus acts as a second-stage reactor. Thus, for a portion of the cycle, such a setup could operate with two columns in series, while for the rest of the time the adsorption process would remain single-stage. To operate the system continuously as two-staged adsorption, a third column would be needed. Schematic diagram of the TSA cyclic operation is shown in Figure 5.
As presented above, theoretically, a TSA system could be operated only based on the observation of dT/dt and set times of the regeneration steps. However, during future tests, this method will need to be validated against online measurements of the concentration of C2–C3 hydrocarbons (c c0−1). At this stage of the research, the demand for media for a two-column TSA unit was approximated to be the following [59]:
  • steam: 2–5 kg steam kg−1 adsorbate,
  • electricity: 50–600 kWh Mg−1 adsorbate,
  • cooling water 30–100 m3 Mg−1 adsorbate.

5. Conclusions

The article presents the results of a pilot study of cleaning a real producer gas from gasification of biomass realized through using a fixed-bed adsorber where a commercially available AC of average sorption properties was used as sorption material. The study showed the extent to which a load of pollutants at the inlet to the adsorber affects the efficiency of the cleaning and decreases the maximum operation time of the bed. The average efficiency of removal of VOC and tar equaled 52.8% and 74.5%, respectively. The resulting concentration of heavy gravimetric tars at the outlet of the adsorber was equal to 0.9 g Nm−3, which is insufficient to ensure a safe and reliable operation of a gas engine. The high concentration of the sum of potential adsorbates in the producer gas at the inlet to the adsorber resulted in rapid overloading of the AC surface and incomplete usage of its sorption capacity. During the test, an adsorption capacity of 161 g kg−1 was measured for the tested AC (D10-3/1). However, in static adsorption tests, its maximum sorption capacity reaches 300–400 g kg−1 AC. One of the reasons for the incomplete usage of the AC may be sought in the rise in the adsorber temperature which occurs during cleaning of producer gases highly laden with adsorbates. The second reason can occur due to competition for active sites with gas compounds of much higher concentrations (adsorption efficiency of C2–C5 compounds reached 84.5%). However, the most important may influence may have the covering of the AC, and thus plugging of its pores, with the mist of tar-water aerosol. Further optimization of this method is necessary, however, in comparison to the results from the removal of tars in a single-stage hot RME scrubber, the results indicate that the herein presented adsorption-based dry gas cleaning system can be an alternative.
The paper compares the usefulness of various methods for assessing the state of the process: (1) based on the measurement of concentrations of specific compounds (c c0−1), (2) based on IN or MN as well as (3) the measurement of the temperature of the bed. The temperature-measurement-based method showed that it is possible to effectively assess and follow the condition of the bed online, only by following the rate of change of the temperature in successive layers of the reactor. The described method is simple to implement and cheap to operate, thus in many applications can be an alternative to typical diagnostic procedures. Limitations of the temperature measurement can become noticeable when the cleaned producer gas will have a lower concentration of impurities or contain impurities with very low adsorption kinetics. In comparison, the measurements necessary to follow methods (1) and (2) are labor-intensive, can be impractical, and are much more expensive.
The cumulative concentration of VOC and tar removed in the herein presented adsorption process was equal to 8.57 g Nm−3. This represents about 5.1% of the chemical enthalpy of the gasified fuel and thus is an important component of the energy balance of the complete gasification system. From a technical perspective, it is crucial to remove the tars from the process gas before its usage. However, from the point of view of the efficiency of the process, the recovery of the organic species and their recycling back into the process should also be seen as valuable. Through recycling to the gasification reactor, the conversion of tars can be increased resulting in an increased yield of producer gas. A less appealing perspective for management of the tar stream is its feeding to a combustion chamber, as here only the recovery of their chemical enthalpy in the form of heat is possible. One of the possibilities to realize a process of producer gas cleaning allowing for recovery of the tars is to use a system of fixed-bed adsorbers working sequentially in continuous adsorption/desorption cycles. In TSA systems, the substances absorbed on the bed are periodically desorbed by increasing the temperature of the bed. In this application, steam is a particularly suitable stripping media, as it negates the hazard of potential spontaneous ignition during the regeneration and can be used in the reactor as a gasifying agent. The concept proposed in this work enables the recovery of 13% and 16.5% of chemical enthalpy of the gasified fuel respectively for a single-stage and a two-stage adsorption system.

6. Prospects for Future Work

  • Increasing the adsorption efficiency of the heavy gravimetric tars to bring down their concentration at the outlet of the adsorber < 50 mg Nm−3.
  • Testing the possibility to run the system in TSA mode controlled by the proposed temperature measurement method.

Author Contributions

Conceptualization, M.K. and T.I.; Data curation, M.K.; Formal analysis, M.K. and M.S.; Methodology, M.K., M.S. and T.I.; Resources, M.K. and J.N.; Supervision, T.I.; Visualization, M.K.; Writing—original draft, M.K., M.S. and J.N. All authors have read and agreed to the published version of the manuscript.

Funding

This research was funded by the Polish Ministry of Science and Higher-Education (Ministerstwo Nauki i Szkolnictwa Wyższego) for the research project entitled Improvement of biomass and waste gasification technology in fixed and fluidized bed reactors (GazEla, IZPS, IZOP) grant number 11.18.018/11.19.018. This result was supported by project LTI20004 “Environmental Research and Development Information Centre” funded by Ministry of Education, Youth and Sports of the Czech Republic, program INTER-EXCELLENCE, subprogram INTER-INFORM.

Data Availability Statement

Not applicable.

Conflicts of Interest

The authors declare no conflict of interest.

Abbreviations

Hheight (m)
Ttemperature (°C)
mmass flow rate (kg h−1)
Vvolume flow (Nm3 h−1)
ppressure (Pa)
cconcentration (g Nm−3)
aadsorption capacity (g kg−1)
ttime
c c0−1the ratio of the concentration at the outlet and inlet from the adsorber (%)
Nm3normal cubic meter, (T = 0 °C, p = 101,325 Pa)
HHVhigher heating value (MJ kg−1)
LHVlower heating value (MJ kg−1)
Xmoister content (%)
Qenthalpy stream (kW)
VOCvolatile organic carbon
TSAtemperature swing adsorption
PSApressure swing adsorption
VSAvacuum swing adsorption
ACactivated carbon
BETspecific surface area measured with Brunauer, Emmett, and Teller method
INiodine number
MNmethylene number
RMErapeseed methyl esters
PGproducer gas
MTFmass transfer front
SNGsynthetic natural gas
PAHpolyaromatic hydrocarbons
D10-3Desotec Airpel-3
aanalytical state
ddry state
aras received
dafdry and ash free
wt.weight total
ththermal

References

  1. Nikas, A.; Elia, A.; Boitier, B.; Koasidis, K.; Doukas, H.; Cassetti, G.; Anger-Kraavi, A.; Bui, H.; Campagnolo, L.; De Miglio, R.; et al. Where Is the EU Headed given Its Current Climate Policy? A Stakeholder-Driven Model Inter-Comparison. Sci. Total Environ. 2021, 793, 148549. [Google Scholar] [CrossRef] [PubMed]
  2. Dzikuć, M.; Piwowar, A. Ecological and Economic Aspects of Electric Energy Production Using the Biomass Co-Firing Method: The Case of Poland. Renew. Sustain. Energy Rev. 2016, 55, 856–862. [Google Scholar] [CrossRef]
  3. Piwowar, A.; Dzikuć, M. Outline of the Economic and Technical Problems Associated with the Co-Combustion of Biomass in Poland. Renew. Sustain. Energy Rev. 2016, 54, 415–420. [Google Scholar] [CrossRef]
  4. Cutz, L.; Berndes, G.; Johnsson, F. A Techno-Economic Assessment of Biomass Co-Firing in Czech Republic, France, Germany and Poland. Biofuels Bioprod. Biorefining 2019, 13, 1289–1305. [Google Scholar] [CrossRef]
  5. Tijmensen, M.J.; Faaij, A.P.; Hamelinck, C.N.; Hardeveld, M.R. Exploration of the possibilities for production of Fischer Tropsch liquids and power via biomass gasification. Biomass Bioenergy 2002, 23, 129–152. [Google Scholar] [CrossRef]
  6. Dos Santos, R.G.; Alencar, A.C. Biomass-Derived Syngas Production via Gasification Process and Its Catalytic Conversion into Fuels by Fischer Tropsch Synthesis: A Review. Int. J. Hydrog. Energy 2020, 45, 18114–18132. [Google Scholar] [CrossRef]
  7. Gruber, H.; Groß, P.; Rauch, R.; Reichhold, A.; Zweiler, R.; Aichernig, C.; Müller, S.; Ataimisch, N.; Hofbauer, H. Fischer-Tropsch Products from Biomass-Derived Syngas and Renewable Hydrogen. Biomass Convers. Biorefinery 2021, 11, 2281–2292. [Google Scholar] [CrossRef]
  8. Sonal; Ahmad, E.; Upadhyayula, S.; Pant, K.K. Biomass-Derived CO2 Rich Syngas Conversion to Higher Hydrocarbon via Fischer-Tropsch Process over Fe–Co Bimetallic Catalyst. Int. J. Hydrog. Energy 2019, 44, 27741–27748. [Google Scholar] [CrossRef]
  9. Roshan Kumar, T.; Mattisson, T.; Rydén, M.; Stenberg, V. Process Analysis of Chemical Looping Gasification of Biomass for Fischer–Tropsch Crude Production with Net-Negative CO2 Emissions: Part 1. Energy Fuels 2022, 36, 9687–9705. [Google Scholar] [CrossRef]
  10. Marchese, M.; Chesta, S.; Santarelli, M.; Lanzini, A. Techno-Economic Feasibility of a Biomass-to-X Plant: Fischer-Tropsch Wax Synthesis from Digestate Gasification. Energy 2021, 228, 120581. [Google Scholar] [CrossRef]
  11. Bai, Z.; Liu, Q.; Gong, L.; Lei, J. Investigation of a Solar-Biomass Gasification System with the Production of Methanol and Electricity: Thermodynamic, Economic and off-Design Operation. Appl. Energy 2019, 243, 91–101. [Google Scholar] [CrossRef]
  12. Mohanty, P.; Singh, P.K.; Adhya, T.K.; Pattnaik, R.; Mishra, S. A Critical Review on Prospects and Challenges in Production of Biomethanol from Lignocellulose Biomass. Biomass Convers. Biorefinery 2022, 12, 1835–1849. [Google Scholar] [CrossRef]
  13. Gautam, P.; Neha; Upadhyay, S.N.; Dubey, S.K. Bio-Methanol as a Renewable Fuel from Waste Biomass: Current Trends and Future Perspective. Fuel 2020, 273, 117783. [Google Scholar] [CrossRef]
  14. Liu, Y.; Li, G.; Chen, Z.; Shen, Y.; Zhang, H.; Wang, S.; Qi, J.; Zhu, Z.; Wang, Y.; Gao, J. Comprehensive Analysis of Environmental Impacts and Energy Consumption of Biomass-to-Methanol and Coal-to-Methanol via Life Cycle Assessment. Energy 2020, 204, 117961. [Google Scholar] [CrossRef]
  15. Harris, K.; Grim, R.G.; Huang, Z.; Tao, L. A Comparative Techno-Economic Analysis of Renewable Methanol Synthesis from Biomass and CO2: Opportunities and Barriers to Commercialization. Appl. Energy 2021, 303, 117637. [Google Scholar] [CrossRef]
  16. Thunman, H.; Seemann, M.; Berdugo Vilches, T.; Maric, J.; Pallares, D.; Ström, H.; Berndes, G.; Knutsson, P.; Larsson, A.; Breitholtz, C.; et al. Advanced Biofuel Production via Gasification—Lessons Learned from 200 Man-Years of Research Activity with Chalmers’ Research Gasifier and the GoBiGas Demonstration Plant. Energy Sci. Eng. 2018, 6, 6–34. [Google Scholar] [CrossRef]
  17. Cui, X.; Song, G.; Yao, A.; Wang, H.; Wang, L.; Xiao, J. Technical and Economic Assessments of a Novel Biomass-to-Synthetic Natural Gas (SNG) Process Integrating O2-Enriched Air Gasification. Process Saf. Environ. Prot. 2021, 156, 417–428. [Google Scholar] [CrossRef]
  18. Clausen, L.R.; Butera, G.; Jensen, S.H. High Efficiency SNG Production from Biomass and Electricity by Integrating Gasification with Pressurized Solid Oxide Electrolysis Cells. Energy 2019, 172, 1117–1131. [Google Scholar] [CrossRef]
  19. Barbuzza, E.; Buceti, G.; Pozio, A.; Santarelli, M.; Tosti, S. Gasification of Wood Biomass with Renewable Hydrogen for the Production of Synthetic Natural Gas. Fuel 2019, 242, 520–531. [Google Scholar] [CrossRef]
  20. Ren, J.; Liu, Y.-L.; Zhao, X.-Y.; Cao, J.-P. Methanation of Syngas from Biomass Gasification: An Overview. Int. J. Hydrog. Energy 2020, 45, 4223–4243. [Google Scholar] [CrossRef]
  21. Abagnale, M.G. Experimental Investigation on SNG Production from Biomass Gasification. Diploma Thesis, Technische Universität Wien, Vienna, Austria, 2021. [Google Scholar] [CrossRef]
  22. Marcantonio, V.; De Falco, M.; Capocelli, M.; Bocci, E.; Colantoni, A.; Villarini, M. Process Analysis of Hydrogen Production from Biomass Gasification in Fluidized Bed Reactor with Different Separation Systems. Int. J. Hydrog. Energy 2019, 44, 10350–10360. [Google Scholar] [CrossRef]
  23. Ishaq, H.; Dincer, I. A New Energy System Based on Biomass Gasification for Hydrogen and Power Production. Energy Rep. 2020, 6, 771–781. [Google Scholar] [CrossRef]
  24. Cao, L.; Yu, I.K.M.; Xiong, X.; Tsang, D.C.W.; Zhang, S.; Clark, J.H.; Hu, C.; Ng, Y.H.; Shang, J.; Ok, Y.S. Biorenewable Hydrogen Production through Biomass Gasification: A Review and Future Prospects. Environ. Res. 2020, 186, 109547. [Google Scholar] [CrossRef]
  25. Hoang, A.T.; Huang, Z.; Nižetić, S.; Pandey, A.; Nguyen, X.P.; Luque, R.; Ong, H.C.; Said, Z.; Le, T.H.; Pham, V.V. Characteristics of Hydrogen Production from Steam Gasification of Plant-Originated Lignocellulosic Biomass and Its Prospects in Vietnam. Int. J. Hydrog. Energy 2022, 47, 4394–4425. [Google Scholar] [CrossRef]
  26. Hu, Q.; Shen, Y.; Chew, J.W.; Ge, T.; Wang, C.-H. Chemical Looping Gasification of Biomass with Fe2O3/CaO as the Oxygen Carrier for Hydrogen-Enriched Syngas Production. Chem. Eng. J. 2020, 379, 122346. [Google Scholar] [CrossRef]
  27. Xu, D.; Yang, L.; Ding, K.; Zhang, Y.; Gao, W.; Huang, Y.; Sun, H.; Hu, X.; Syed-Hassan, S.S.A.; Zhang, S.; et al. Mini-Review on Char Catalysts for Tar Reforming during Biomass Gasification: The Importance of Char Structure. Energy Fuels 2020, 34, 1219–1229. [Google Scholar] [CrossRef]
  28. Shahbeik, H.; Peng, W.; Kazemi Shariat Panahi, H.; Dehhaghi, M.; Guillemin, G.J.; Fallahi, A.; Amiri, H.; Rehan, M.; Raikwar, D.; Latine, H.; et al. Synthesis of Liquid Biofuels from Biomass by Hydrothermal Gasification: A Critical Review. Renew. Sustain. Energy Rev. 2022, 167, 112833. [Google Scholar] [CrossRef]
  29. Wood Gasification with Wood Pellets: Our Technology. Burkhardt Energy. Available online: https://burkhardt-gruppe.de/en/power-engineering/heat-and-power-from-wood/wood-gas-generator/ (accessed on 23 September 2022).
  30. Federal Biomass Association (BBE). Industry Guide Thermochemical Biomass Gasification 2018 Sustainable Electricity and Heat from Wood—The Cornerstone of Your Decentralized Energy Concept. Available online: https://fee-ev.de/11_Branchenguide/2018_Industry_Guide_Biomass_Gasification_EN.pdf (accessed on 23 September 2022).
  31. Seidel, S. Spanner Re2—Biomass Power Plant—Overview. Available online: https://www.holz-kraft.com/en/products/biomass-chp.html (accessed on 23 September 2022).
  32. Lesche, S.; Kuptz, D.; Zeng, T.; Pollex, A.; Kuffer, G.; Mühlenberg, J.; Hartmann, H. Evaluation of Screening and Drying as Process Steps to Improve Fuel Properties of Low Quality Wood Chips for the Use in Small-Scale Gasifier-CHP Plants. In Proceedings of the 27th European Biomass Conference and Exhibition, Lisbon, Portugal, 27–30 May 2019. [Google Scholar]
  33. Hermann, H.; Reinhard, R.; Klaus, B.; Reinhard, K.; Christian, A. Biomass CHP Plant Güssing—A Success Story; CiteSeerX: State College, PA, USA, 2002; p. 14. [Google Scholar]
  34. Güssing Renewable Energy, Technology. Available online: https://www.gussingrenewable.com/technology.html (accessed on 22 September 2022).
  35. Pröll, T.; Rauch, R.; Aichernig, C.; Hofbauer, H. Performance Characteristics of an 8 MW(th) Combined Heat and Power Plant Based on Dual Fluidized Bed Steam Gasification of Solid Biomass; ECI Digital Archives: New York, NY, USA, 2007; pp. 937–944. [Google Scholar]
  36. Allesina, G.; Pedrazzi, S. Barriers to Success: A Technical Review on the Limits and Possible Future Roles of Small Scale Gasifiers. Energies 2021, 14, 6711. [Google Scholar] [CrossRef]
  37. Klinar, D.; Huber, M.; Belšak Šel, N.; Rižnar, K. Universal Model for the Cogeneration of Heat, Power and Char in a Decoupled Pyrolysis and Gasification Process for Techno-Economic Assessment. Processes 2021, 9, 1442. [Google Scholar] [CrossRef]
  38. SYNCRAFT®—Das Holzkraftwerk. Available online: https://en.syncraft.at/ (accessed on 22 September 2022).
  39. Referencje—ReGaWatt GmbH. Available online: https://regawatt.de/references/ (accessed on 22 September 2022).
  40. Hrbek, D.J. Status Report on Thermal Gasification of Biomass and Waste 2021; Start up 97; IEA Bioenergy: Paris, France, 2022. [Google Scholar]
  41. Jafri, Y.; Waldheim, L.; Lundgren, J. Emerging Gasification Technologies for Waste & Biomass; IEA Bioenergy: Paris, France, 2020; Volume 33, p. 83. [Google Scholar]
  42. Meva Energy. Our Technology. Available online: https://mevaenergy.com/our-technology/ (accessed on 23 September 2022).
  43. Paethanom, A.; Nakahara, S.; Kobayashi, M.; Prawisudha, P.; Yoshikawa, K. Performance of Tar Removal by Absorption and Adsorption for Biomass Gasification. Fuel Process. Technol. 2012, 104, 144–154. [Google Scholar] [CrossRef]
  44. Balas, M.; Lisy, M.; Skala, Z.; Pospisil, J. Wet Scrubber for Cleaning of Syngas from Biomass Gasification. In Proceedings of the Advances in Environmental Sciences, Development and Chemistry, Santorini Island, Greece, 17–21 July 2014; pp. 195–201. [Google Scholar]
  45. Ozturk, B.; Yilmaz, D. Absorptive Removal of Volatile Organic Compounds from Flue Gas Streams. Process Saf. Environ. Prot. 2006, 84, 391–398. [Google Scholar] [CrossRef]
  46. Nakamura, S.; Kitano, S.; Yoshikawa, K. Biomass Gasification Process with the Tar Removal Technologies Utilizing Bio-Oil Scrubber and Char Bed. Appl. Energy 2016, 170, 186–192. [Google Scholar] [CrossRef]
  47. Al-Dury, S.S.K. Purification of Producer Gas in Biomass Gasification Using Carbon Materials. Ph.D. Thesis, Technical University Brno, Brno, Czech Republic, 2010. Available online: http://hdl.handle.net/11012/4386 (accessed on 6 September 2022).
  48. Loipersböck, J.; Weber, G.; Rauch, R.; Hofbauer, H. Developing an adsorption-based gas cleaning system for a dual fluidized bed gasification process. Biomass Convers. Biorefinery 2021, 11, 85–94. [Google Scholar] [CrossRef]
  49. Hu, X.; Hanaoka, T.; Sakanishi, K.; Shinagawa, T.; Matsui, S.; Tada, M.; Iwasaki, T. Removal of Tar Model Compounds Produced from Biomass Gasification Using Activated Carbons. J. Jpn. Inst. Energy 2007, 86, 707–711. [Google Scholar] [CrossRef]
  50. Dafiqurrohman, H.; Kosasih, D.; Putra, A.; Setyawan, M.I.B.; Adi, S. Improvement of Tar Removal Performance in Biomass Gasification Using Fixed-Bed Biomass Filtration. J. Eng. Technol. Sci. 2020, 52, 546. [Google Scholar] [CrossRef]
  51. Szul, M.; Iluk, T.; Sobolewski, A. High-Temperature, Dry Scrubbing of Syngas with Use of Mineral Sorbents and Ceramic Rigid Filters. Energies 2020, 13, 1528. [Google Scholar] [CrossRef]
  52. Kotowicz, J.; Sobolewski, A.; Iluk, T. Energetic Analysis of a System Integrated with Biomass Gasification. Energy 2013, 52, 265–278. [Google Scholar] [CrossRef]
  53. Sobolewski, A.; Iluk, T.; Szul, M. SRF Gasification in GazEla Pilot Fixed Bed Gas Generator for CHP Units. J. Power Technol. 2017, 97, 158–162. [Google Scholar]
  54. Szul, M.; Głód, K.; Iluk, T. Influence of Pressure and CO2 in Fluidized Bed Gasification of Waste Biomasses. Biomass Convers. Biorefinery 2021, 11, 69–81. [Google Scholar] [CrossRef]
  55. Zhou, B.; Dichiara, A.; Zhang, Y.; Zhang, Q.; Zhou, J. Tar Formation and Evolution during Biomass Gasification: An Experimental and Theoretical Study. Fuel 2018, 234, 944–953. [Google Scholar] [CrossRef]
  56. Hanaoka, T.; Matsunaga, K.; Miyazawa, T.; Hirata, S.; Sakanishi, K. Hot and Dry Cleaning of Biomass-Gasified Gas Using Activated Carbons with Simultaneous Removal of Tar, Particles, and Sulfur Compounds. Catalysts 2012, 2, 281–298. [Google Scholar] [CrossRef]
  57. Nunes, C.A.; Guerreiro, M.C. Estimation of Surface Area and Pore Volume of Activated Carbons by Methylene Blue and Iodine Numbers. Química Nova 2011, 34, 472–476. [Google Scholar] [CrossRef]
  58. Mianowski, A.; Owczarek, M.; Marecka, A. Surface Area of Activated Carbon Determined by the Iodine Adsorption Number. Energy Sources Part A Recovery Util. Environ. Eff. 2007, 29, 839–850. [Google Scholar] [CrossRef]
  59. Wypych, G. (Ed.) Solvent Recycling, Removal, and Degradation. In Handbook of Solvents; Elsevier: Amsterdam, The Netherlands, 2014; pp. 787–861. ISBN 978-1-895198-65-2. [Google Scholar]
Figure 1. Schematic diagram of the pilot gasification installation with the fixed-bed GazEla reactor and the dry gas cleaning unit.
Figure 1. Schematic diagram of the pilot gasification installation with the fixed-bed GazEla reactor and the dry gas cleaning unit.
Energies 15 07433 g001
Figure 2. Diagram of the fixed-bed AC adsorber integrated with GazEla gasification installation. (A—thermocouple, B—gas sampling, C—pressure transducer).
Figure 2. Diagram of the fixed-bed AC adsorber integrated with GazEla gasification installation. (A—thermocouple, B—gas sampling, C—pressure transducer).
Energies 15 07433 g002
Figure 3. The concentration of pollutants in producer gas at inlet and outlet of the adsorber.
Figure 3. The concentration of pollutants in producer gas at inlet and outlet of the adsorber.
Energies 15 07433 g003
Figure 4. Change of temperature distribution in the adsorber referred to adsorption time.
Figure 4. Change of temperature distribution in the adsorber referred to adsorption time.
Energies 15 07433 g004
Figure 5. Schematic diagram of the TSA cyclic operation of a producer gas adsorber operated with two columns.
Figure 5. Schematic diagram of the TSA cyclic operation of a producer gas adsorber operated with two columns.
Energies 15 07433 g005
Table 1. Physicochemical parameters of the adsorbent used in the research.
Table 1. Physicochemical parameters of the adsorbent used in the research.
ParameterD10-3/1Unit
Particle size
>5.00.2wt. %
5.0–4.00.2wt. %
4.0–3.1572.6wt. %
3.15–2.026.9wt. %
<2.00.1wt. %
Proximate analysis
Moisture H2Oar1.9wt. %
Moisture H2Oa2.3wt. %
Aa10.5wt. %
Va0.9wt. %
HHVa29,178J g−1
LHVa29,042J g−1
Ultimate analysis
Ca85.00wt. %
Ha0.37wt. %
Na0.63wt. %
Sa0.35wt. %
Adsorption parameters
Methylene number, MN34cm3 g−1
Iodine number, IN962mg g−1
Specific surface area, BET1005m2 g−1
Pore volume (p p0−1 = 0.99)0.480cm3 g−1
Macropore volume0.0054cm3 g−1
Mesopore volume 0.180cm3 g−1
Micropore volume (p p0−1 = 0.01)0.290cm3 g−1
(A—ash content, V—volatile matter content, HHV—higher heating value, LHV—lower heating value, a—analytical state, ar—as received).
Table 2. Ultimate and proximate analysis of alder chips used as the feedstock in the gasification process.
Table 2. Ultimate and proximate analysis of alder chips used as the feedstock in the gasification process.
Ultimate AnalysisProximate Analysis
CaHaNaSaMoisture H2OaMoisture H2OarAaVaHHVaLHVa
wt. %wt. %wt. %wt. %wt. %wt. %wt. %wt. %J g−1J g−1
48.505.000.400.036.7022.400.6076.6018,25617,000
(a—analytical state, ar—as receive, HHV—higher heating value, LHV—lower heating value).
Table 3. Parameters of the gasification process.
Table 3. Parameters of the gasification process.
ParameterValueUnit
Fuel, mar17.60kg h−1
Moisture content, Xar22.40vol.%
Fuel lower heating value, LHVar13.73MJ kg−1
Gasifying agent, steam, mH2O2.80Kg h−1
Gasifying agent, air, Vair18.80Nm3 h−1
Vol. flow rate of gas, VPG wet33.50Nm3 h−1
Table 4. The basic composition of the raw producer gas from gasification together with its energetic parameters.
Table 4. The basic composition of the raw producer gas from gasification together with its energetic parameters.
ParameterValueUnit
H27.77vol. %
O20.00vol. %
N259.54vol. %
CO16.89vol. %
CH42.27vol. %
CO212.71vol. %
C2H50.83vol. %
HHVar4.61MJ Nm−3
LHVar4.32MJ Nm−3
Density1.24Kg Nm−3
Table 5. The basic contamination of the raw producer gas.
Table 5. The basic contamination of the raw producer gas.
ParameterValueUnit
Water, CH2O226.64g Nm−3
Particulate matter, CPM2.41g Nm−3
Tar, CTar5.57g Nm−3
VOC, CVOC22.31g Nm−3
Table 6. Changes in the efficiency of adsorption of C2–C5 compounds over the course of the experiment. P1—start of the adsorption, P2—after 170 min of on-line time.
Table 6. Changes in the efficiency of adsorption of C2–C5 compounds over the course of the experiment. P1—start of the adsorption, P2—after 170 min of on-line time.
CompoundP1P2
InletOutlet InletOutlet
m (g h−1)m (g h−1)c c0−1m (g h−1)m (g h−1)c c0−1
C2H4147.8527.590.19259.30287.471.11
C2H642.020.880.0282.2776.330.93
C3H88.551.100.1310.4415.161.45
C3H650.341.470.0396.31135.291.40
C4H106.251.570.251.270.000.00
C5H1219.417.160.370.390.000.00
Table 7. Comparison of the gas cleaning efficiency of the tested adsorption method.
Table 7. Comparison of the gas cleaning efficiency of the tested adsorption method.
123 [46]4 [56]
ReactorGazElaGazElaUpdraftDowndraft
Gas cleaning unitHot-gas filter, heat exchanger, fixed-bed adsorberHot-gas filter, RME scrubber, heat exchangerHeat-exchanger, scrubber, centrifuge, fixed-bed adsorberCyclone, heat-exchanger, fixed-bed adsorber
Sorption materialAC-Char from gasification of cedarwoodAC impregnated with Fe (9% wt.)
Concentration of tars at outlet from the gasifier/outlet from the gas cleaning unit3530/9004500/9902530/4702428/102
Efficiency of tar removal74.5%78.0%81.5%95.8%
Table 8. Adsorption parameters of the bed material before and after the experiment (at two levels of the bed).
Table 8. Adsorption parameters of the bed material before and after the experiment (at two levels of the bed).
D10-3/1D10-3/2D10-3/3Unit
Height of the bed, H-100–2001000mm
Methylene number, MN341729cm3
Iodine number, IN962674926mg g−1
Publisher’s Note: MDPI stays neutral with regard to jurisdictional claims in published maps and institutional affiliations.

Share and Cite

MDPI and ACS Style

Kochel, M.; Szul, M.; Iluk, T.; Najser, J. On the Possibility of Cleaning Producer Gas Laden with Large Quantities of Tars through Using a Simple Fixed-Bed Activated Carbon Adsorption Process. Energies 2022, 15, 7433. https://doi.org/10.3390/en15197433

AMA Style

Kochel M, Szul M, Iluk T, Najser J. On the Possibility of Cleaning Producer Gas Laden with Large Quantities of Tars through Using a Simple Fixed-Bed Activated Carbon Adsorption Process. Energies. 2022; 15(19):7433. https://doi.org/10.3390/en15197433

Chicago/Turabian Style

Kochel, Mateusz, Mateusz Szul, Tomasz Iluk, and Jan Najser. 2022. "On the Possibility of Cleaning Producer Gas Laden with Large Quantities of Tars through Using a Simple Fixed-Bed Activated Carbon Adsorption Process" Energies 15, no. 19: 7433. https://doi.org/10.3390/en15197433

APA Style

Kochel, M., Szul, M., Iluk, T., & Najser, J. (2022). On the Possibility of Cleaning Producer Gas Laden with Large Quantities of Tars through Using a Simple Fixed-Bed Activated Carbon Adsorption Process. Energies, 15(19), 7433. https://doi.org/10.3390/en15197433

Note that from the first issue of 2016, this journal uses article numbers instead of page numbers. See further details here.

Article Metrics

Back to TopTop