Acquiring the Foremost Window Allocation Strategy to Achieve the Best Trade-Off among Energy, Environmental, and Comfort Criteria in a Building
Abstract
:1. Introduction
1.1. Considered Building Aspects and Employed Software Programs in the Literature
1.2. The Stages at Which the Evaluation Was Done in the Literature
1.3. The Novelty of the Current Work
- This paper provides a comparative method to find the best building considering the interaction between the top four most used building aspects, including energy consumption, environmental impact, and thermal and visual comfort. The best building is selected based on a systematic decision-making method called the technique for order preference by similarity to the ideal solution, also known as TOPSIS.
- The framework is presented for the selection stage, in which instead of one, a number of buildings are evaluated, and the best of them is introduced as the winning alternative for a customer.
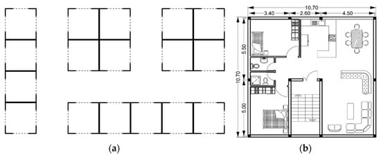
- A number of buildings with the same characteristics, such as floor area and wall construction, but different orientations, numbers, and combinations of façades have been taken into account as the alternatives. The best one is then found in a comprehensive comparative analysis. In this way, the foremost window allocation strategy for a building is found.
- If a customer is going to buy a new building among a set of alternatives with the same architectural plans but different window allocation strategies, which building will provide the most benefits to them? Is having the highest number of façades, which is usually thought to be the best condition, really the optimal condition in terms of different building aspects?
- Is the optimal orientation the same for different buildings with the same architectural plans and located in the same climatic region, but with different window allocation strategies? Or does the optimal orientation vary as the number and combination of façades changes in buildings?
2. Methodology
2.1. Working Principle Description
- Some building alternatives are selected among the existing choices. Some factors, including the customer’s preferences and budget, also play a significant role in choosing the appropriate alternatives.
- Depending on the differences between the considered alternatives, some decision criteria are taken into account.
- A set of objective functions that contribute to the four building aspects are specified to conduct the comparison based on them.
- The EnergyPlus building simulation tool is used to evaluate the performance of each alternative based on the considered objectives.
- The Decision-making method is developed to prioritize the alternatives according to their similarity to the ideal performance.
- The final winning alternative is presented.
2.2. EnergyPlus Simulation Tool
2.3. Decision-Making Method
3. Case Study
3.1. Description of the Case Study
3.2. Location of the Considered Case Study
3.3. Decision Criteria
3.4. Definition of the Considered Objectives
3.4.1. Energy Consumption
3.4.2. Environmental Impact
3.4.3. Thermal Comfort
3.4.4. Visual Comfort
4. Results
4.1. Optimal Orientation of the Buildings Type A
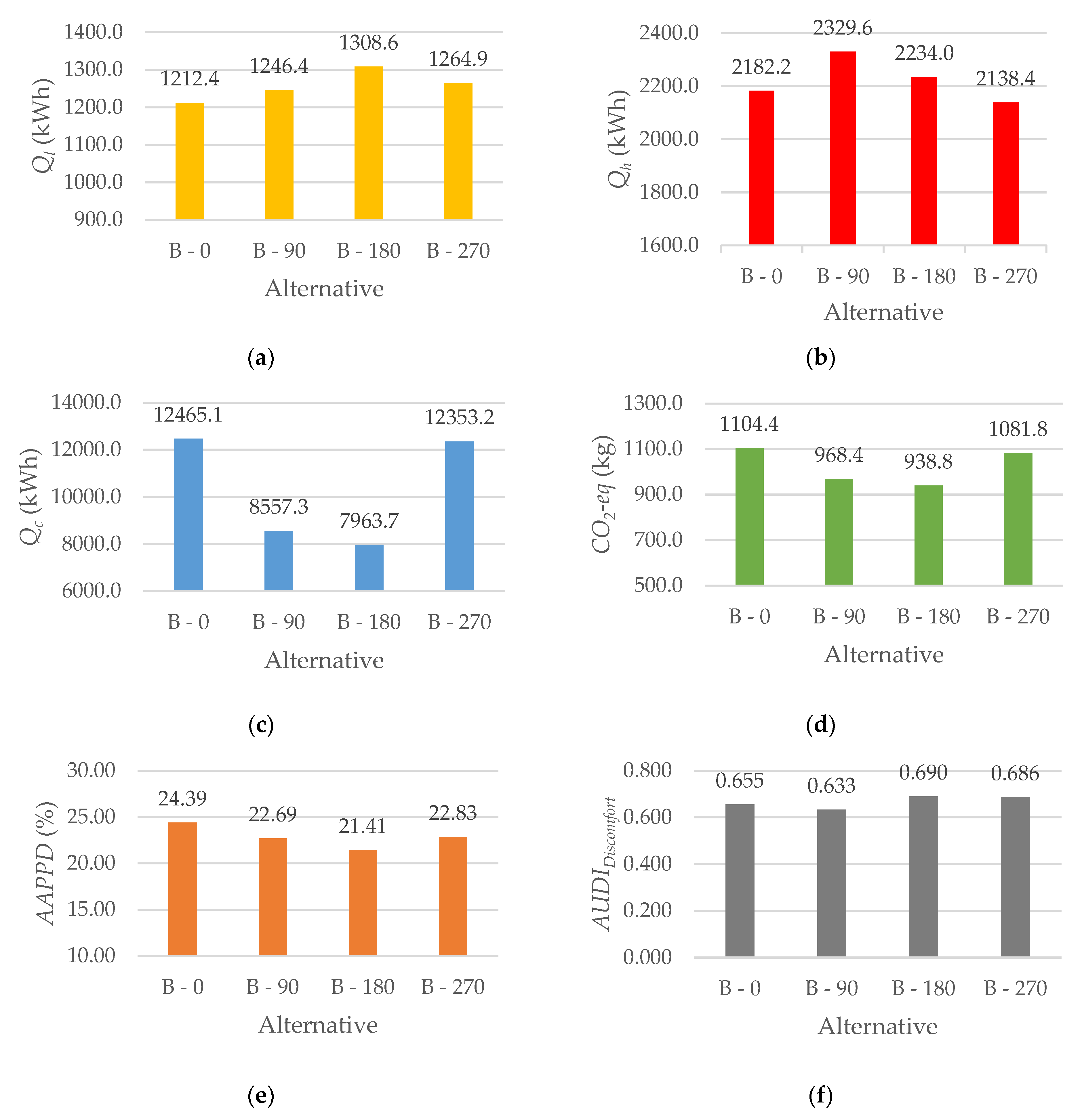
4.2. Optimal Orientation of the Buildings Type B
4.3. Optimal Orientation of the Buildings Type C
4.4. The Winning Alternative
5. Conclusions
Author Contributions
Funding
Institutional Review Board Statement
Informed Consent Statement
Data Availability Statement
Acknowledgments
Conflicts of Interest
Nomenclature
| d+i | the ith answer in Pareto optimal front distance from the ideal point |
| d−i | the ith answer in Pareto optimal front distance from the nonideal point |
| F | normalized objective functions |
| Obj | objective functions |
| Num | number |
| Cli | decision making parameter in TOPSIS method for the ith answer in Pareto optimal front |
| Qc | cooling energy demand (kWh) |
| Qh | heating energy demand (kWh) |
| Ql | lighting energy demand (kWh) |
| Q | total annual energy use (kWh) |
| EF | primary greenhouse gas emission factor (kgCO2·(kWh)−1) |
| η | average annual efficiency of the system |
| fcl | area of clothing surface factor |
| Icl | clothing insulation (W·m−2·K−1)−1 |
| Tcl | clothing surface temperature (K) |
| Tr | mean radiant temperature (K) |
| M | metabolic rate |
| Vrel | relative air velocity (m·s−1) |
| hc | convective heat transfer coefficient (W·m−2·K−1) |
| Tair | air temperature (K) |
| Pa | the partial pressure of water vapor (Pa) |
Abbreviations
| TOPSIS | technique for order preference by similarity to the ideal solution |
| DOE | department of energy |
| PTHP | packaged terminal heat pump |
| COP | coefficient of performance |
| WWR | window-to-wall ratio |
| TEC | total energy consumption |
| CO2-eq | carbon dioxide equivalent |
| PMV | predicted mean vote |
| PPD | percentage of people dissatisfied |
| EW | external work |
| AAPPD | annual average PPD |
| MAPPD | monthly average PPD |
| UDI | useful daylight illuminance |
| AUDI | average UDI |
| Scripts | |
| c | cooling |
| h | heating |
| l | lighting |
| air | air |
| cl | clothing |
| rel | relative |
| Discomfort | discomfort |
| Underlit | underlit |
| Upperlit | upperlit |
| Daylight | daylight |
| Lower limit | lower limit |
| Upper limit | upper limit |
| Superscripts | |
| Ideal | ideal |
| Nonideal | nonideal |
References
- Delgarm, N.; Sajadi, B.; Delgarm, S. Multi-objective optimization of building energy performance and indoor thermal comfort: A new method using artificial bee colony (ABC). Energy Build. 2016, 131, 42–53. [Google Scholar] [CrossRef]
- Manigandan, S.; Gunasekar, P.; Devipriya, J.; Saravanan, W. Reduction of greenhouse gases by the effect of window position and its size in isolated building. J. Chem. Pharm. Sci. 2016, 9, 3304–3307. [Google Scholar]
- Manigandan, S.; Gunasekar, P.; Devipriya, J.; Anderson, A.; Nithya, S. Energy-saving potential by changing window position and size in an isolated building. Int. J. Ambient Energy 2018, 39, 462–466. [Google Scholar] [CrossRef]
- Misiopecki, C.; Bouquin, M.; Gustavsen, A.; Jelle, B.P. Thermal modeling and investigation of the most energy-efficient window position. Energy Build. 2018, 158, 1079–1086. [Google Scholar] [CrossRef]
- Azmy, N.Y.; Ashmawy, R.E. Effect of the window position in the building envelope on energy consumption. Int. J. Eng. Technol 2018, 7, 1861. [Google Scholar] [CrossRef]
- Jafari, A.; Valentin, V. Selection of optimization objectives for decision-making in building energy retrofits. Build. Environ. 2018, 130, 94–103. [Google Scholar] [CrossRef]
- Senel Solmaz, A.; Halicioglu, F.H.; Gunhan, S. An approach for making optimal decisions in building energy efficiency retrofit projects. Indoor Built Environ. 2018, 27, 348–368. [Google Scholar] [CrossRef]
- Xue, P.; Li, Q.; Xie, J.; Zhao, M.; Liu, J. Optimization of window-to-wall ratio with sunshades in China low latitude region considering daylighting and energy saving requirements. Appl. Energy 2019, 233, 62–70. [Google Scholar] [CrossRef]
- Zhai, Y.; Wang, Y.; Huang, Y.; Meng, X. A multi-objective optimization methodology for window design considering energy consumption, thermal environment and visual performance. Renew. Energy 2019, 134, 1190–1199. [Google Scholar] [CrossRef]
- Troup, L.; Phillips, R.; Eckelman, M.J.; Fannon, D. Effect of window-to-wall ratio on measured energy consumption in US office buildings. Energy Build. 2019, 203, 109434. [Google Scholar] [CrossRef]
- Feng, K.; Lu, W.; Wang, Y. Assessing environmental performance in early building design stage: An integrated parametric design and machine learning method. Sustain. Cities Soc. 2019, 50, 101596. [Google Scholar] [CrossRef]
- Ashrafian, T.; Moazzen, N. The impact of glazing ratio and window configuration on occupants’ comfort and energy demand: The case study of a school building in Eskisehir, Turkey. Sustain. Cities Soc. 2019, 47, 101483. [Google Scholar] [CrossRef]
- Hart, R.; Selkowitz, S.; Curcija, C. Thermal performance and potential annual energy impact of retrofit thin-glass triple-pane glazing in US residential buildings. Build. Simul. 2019, 12, 79–86. [Google Scholar] [CrossRef]
- Rizal, Y.; Robandi, I.; Yuniarno, E.M. Optimization of daylight factor distribution using standard deviations based on shifting window position. J. Ilm. Kursor 2020, 10. [Google Scholar] [CrossRef]
- Kunwar, N.; Bhandari, M. A Comprehensive analysis of energy and daylighting impact of window shading systems and control strategies on commercial buildings in the United States. Energies 2020, 13, 2401. [Google Scholar] [CrossRef]
- Elghamry, R.; Hassan, H. Impact of window parameters on the building envelope on the thermal comfort, energy consumption and cost and environment. Int. J. Vent. 2020, 19, 233–259. [Google Scholar] [CrossRef]
- Kaasalainen, T.; Mäkinen, A.; Lehtinen, T.; Moisio, M.; Vinha, J. Architectural window design and energy efficiency: Impacts on heating, cooling and lighting needs in Finnish climates. J. Build. Eng. 2020, 27, 100996. [Google Scholar] [CrossRef]
- Al-Saggaf, A.; Nasir, H.; Taha, M. Quantitative approach for evaluating the building design features impact on cooling energy consumption in hot climates. Energy Build. 2020, 211, 109802. [Google Scholar] [CrossRef]
- Ascione, F.; Bianco, N.; Iovane, T.; Mauro, G.M.; Napolitano, D.F.; Ruggiano, A.; Viscido, L. A real industrial building: Modeling, calibration and Pareto optimization of energy retrofit. J. Build. Eng. 2020, 29, 101186. [Google Scholar] [CrossRef]
- Zhao, J.; Du, Y. Multi-objective optimization design for windows and shading configuration considering energy consumption and thermal comfort: A case study for office building in different climatic regions of China. Sol. Energy 2020, 206, 997–1017. [Google Scholar] [CrossRef]
- Mousavi Motlagh, S.F.F.M.; Sohani, A.; Djavad Saghafi, M.D.; Sayyaadi, H.; Nastasi, B. The Road to developing economically feasible plans for green, comfortable and energy efficient buildings. Energies 2021, 14, 636. [Google Scholar] [CrossRef]
- Crawley, D.B.; Lawrie, L.K.; Pedersen, C.O.; Winkelmann, F.C. Energy plus: Energy simulation program. ASHRAE J. 2000, 42, 49–56. [Google Scholar]
- Hwang, C.-L.; Yoon, K. Methods for multiple attribute decision making. In Multiple Attribute Decision Making; Springer: Berlin/Heidelberg, Germany, 1981; pp. 58–191. [Google Scholar]
- Assari, A.; Mahesh, T.; Assari, E. Role of public participation in sustainability of historical city: Usage of TOPSIS method. Indian J. Sci. Technol. 2012, 5, 2289–2294. [Google Scholar] [CrossRef]
- Sohani, A.; Sayyaadi, H. Design and retrofit optimization of the cellulose evaporative cooling pad systems at diverse climatic conditions. Appl. Therm. Eng. 2017, 123, 1396–1418. [Google Scholar] [CrossRef]
- Sohani, A.; Sayyaadi, H.; Hoseinpoori, S. Modeling and multi-objective optimization of an M-cycle cross-flow indirect evaporative cooler using the GMDH type neural network. Int. J. Refrig. 2016, 69, 186–204. [Google Scholar] [CrossRef]
- Naderi, E.; Sajadi, B.; Behabadi, M.A.; Naderi, E. Multi-objective simulation-based optimization of controlled blind specifications to reduce energy consumption, and thermal and visual discomfort: Case studies in Iran. Build. Environ. 2020, 169, 106570. [Google Scholar] [CrossRef]
- Hasani Balyani, H.; Sohani, A.; Sayyaadi, H.; Karami, R. Acquiring the best cooling strategy based on thermal comfort and 3E analyses for small scale residential buildings at diverse climatic conditions. Int. J. Refrig. 2015, 57, 112–137. [Google Scholar] [CrossRef]
- Abbasi, M.H.; Sayyaadi, H.; Tahmasbzadebaie, M. A methodology to obtain the foremost type and optimal size of the prime mover of a CCHP system for a large-scale residential application. Appl. Therm. Eng. 2018, 135, 389–405. [Google Scholar] [CrossRef]
- Si, B.; Wang, J.; Yao, X.; Shi, X.; Jin, X.; Zhou, X. Multi-objective optimization design of a complex building based on an artificial neural network and performance evaluation of algorithms. Adv. Eng. Inform. 2019, 40, 93–109. [Google Scholar] [CrossRef]
- Li, Z.; Chen, H.; Lin, B.; Zhu, Y. Fast bidirectional building performance optimization at the early design stage. Build. Simul. 2018, 11, 647–661. [Google Scholar] [CrossRef]
- Sohani, A.; Sayyaadi, H.; Azimi, M. Employing static and dynamic optimization approaches on a desiccant-enhanced indirect evaporative cooling system. Energy Convers. Manag. 2019, 199, 112017. [Google Scholar] [CrossRef]
- Mostavi, E.; Asadi, S.; Boussaa, D. Development of a new methodology to optimize building life cycle cost, environmental impacts, and occupant satisfaction. Energy 2017, 121, 606–615. [Google Scholar] [CrossRef]
- Hamdy, M.; Mauro, G.M. Multi-objective optimization of building energy design to reconcile collective and private perspectives: CO2-eq vs. Discounted payback time. Energies 2017, 10, 1016. [Google Scholar] [CrossRef]
- Sohani, A.; Sayyaadi, H.; Mohammadhosseini, N. Comparative study of the conventional types of heat and mass exchangers to achieve the best design of dew point evaporative coolers at diverse climatic conditions. Energy Convers. Manag. 2018, 158, 327–345. [Google Scholar] [CrossRef]
- Sohani, A.; Sayyaadi, H.; Zeraatpisheh, M. Optimization strategy by a general approach to enhance improving potential of dew-point evaporative coolers. Energy Convers. Manag. 2019, 188, 177–213. [Google Scholar] [CrossRef]
- Carlucci, S.; Cattarin, G.; Causone, F.; Pagliano, L. Multi-objective optimization of a nearly zero-energy building based on thermal and visual discomfort minimization using a non-dominated sorting genetic algorithm (NSGA-II). Energy Build. 2015, 104, 378–394. [Google Scholar] [CrossRef] [Green Version]















| Study | Year | Discussed in Section 1.1. | Discussed in Section 1.2. | ||
|---|---|---|---|---|---|
| Employed Software Program | Considered Building Aspects | The Stage at Which the Improvements Have Been Applied | Considered Window Parameters | ||
| Delgarm et al. [1] | 2016 | EnergyPlus | Energy consumption Thermal comfort | Early design stage | Window size and glazing material |
| Manigandan et al. [2] | 2016 | Computational Fluid Dynamics approach | Natural ventilation | N.A. | Orientation and size of windows |
| Manigandan et al. [3] | 2017 | Computational Fluid Dynamics approach | Natural ventilation | N.A. | Orientation and size of windows |
| Misiopecki et al. [4] | 2018 | THERM | Energy consumption | N.A. | Window position in the window opening |
| Azmy and Ashmawy [5] | 2018 | EnergyPlus | Energy consumption Visual comfort | Early design stage | Window position in the building envelope |
| Jafari and Valentin [6] | 2018 | eQuest | N.A. | Retrofitting stage | Replacement of windows |
| Selen Solmaz et al. [7] | 2018 | EnergyPlus | Energy consumption Economic benefits | Retrofitting stage | Window properties and configuration of shading system |
| Xue et al. [8] | 2019 | EnergyPlus, Radiance | Energy consumption Visual comfort | Early design stage | Window-to wall ratio (WWR) and sunshade configuration |
| Zhai et al. [9] | 2019 | EnergyPlus | Energy consumption Thermal comfort Visual comfort | Early design stage | WWR and glazing material |
| Troup et al. [10] | 2019 | N.A. | Energy consumption | Early design stage | WWR |
| Feng et al. [11] | 2019 | Autodesk® Dynamo and Revit | Environmental impact | Early design stage | Window size |
| Ashrafian and Moazzen [12] | 2019 | DIALux Evo, DesignBuilder, and EnergyPlus | Energy consumption Occupants’ comfort | Early design stage | WWR and window configuration |
| Hart et al. [13] | 2019 | EnergyPlus | Energy consumption | Retrofitting stage | Replacement of windows |
| Rizal et al. [14] | 2020 | N.A. | Visual comfort | N.A. | Window position |
| Kunwar and Bhandari [15] | 2020 | EnergyPlus, DIVA-for-Rhino | Energy consumption Visual comfort | N.A. | Window shading systems and control strategies |
| Elghamry and Hassan [16] | 2020 | DesignBuilder | Energy consumption Thermal comfort Economic benefits Environmental impact | Early design stage | WWR and position on the wall |
| Kaasalainen et al. [17] | 2020 | IDA Indoor Climate and Energy (IDA ICE) | Energy consumption | Early design stage | Window area, proportions, horizontal position, external shading, and glazing properties |
| Al-Saggaf et al. [18] | 2020 | Revit and Ecotect | Energy consumption | Early design stage | Glazing area and percentage |
| Ascione et al. [19] | 2020 | EnergyPlus | Energy consumption Economic benefits | Retrofitting stage | Replacement of windows |
| Zhao and Du [20] | 2020 | DesignBuilder | Energy consumption Thermal comfort | Early design stage | Configuration of windows and shading system |
| The current work | 2021 | EnergyPlus | Energy consumption Environmental impact Thermal comfort Visual comfort | Selection stage | Number and combination of building façades |
| Parameter | Value | Unit |
|---|---|---|
| Net conditioned building area | 86.69 | m2 |
| Building height | 2.8 | m |
| WWR | 30 for each zone’s external walls | % |
| External walls’ U-value | 0.7 | W/m2K |
| Internal walls’ U-value | 2.58 | W/m2K |
| Floors/ceilings’ U-value | 1.45 | W/m2K |
| Double-glazed windows’ U-value | 2.67 | W/m2K |
| City | Climatic Type | Dry Bulb Temperature (°C) | Wet Bulb Temperature (°C) | Latitude (°N) | Elevation (m) | |
|---|---|---|---|---|---|---|
| Summer | Winter | Summer | ||||
| Tehran | Hot Semidesert | 37.8 | −4.4 | 19.4 | 35.68 | 1190.0 |
| Alternative | Normalized Objective Functions (F) | d+ | d− | Cl | Rank | |||||
|---|---|---|---|---|---|---|---|---|---|---|
| Ql | Qh | Qc | CO2-eq | AAPPD | AUDIDiscomfort | |||||
| A-0 | 0.5009 | 0.5123 | 0.4439 | 0.4720 | 0.4987 | 0.4750 | 0.0272 | 0.1224 | 0.8181 | 1 |
| A-90 | 0.4990 | 0.4866 | 0.5466 | 0.5227 | 0.4900 | 0.5126 | 0.1206 | 0.0342 | 0.2211 | 3 |
| A-180 | 0.5009 | 0.5098 | 0.4527 | 0.4785 | 0.5125 | 0.5032 | 0.0443 | 0.1053 | 0.7037 | 2 |
| A-270 | 0.4991 | 0.4908 | 0.5470 | 0.5244 | 0.4985 | 0.5083 | 0.1207 | 0.0260 | 0.1771 | 4 |
| Alternative | Normalized Objective Functions (F) | d+ | d− | Cl | Rank | |||||
|---|---|---|---|---|---|---|---|---|---|---|
| Ql | Qh | Qc | CO2-eq | AAPPD | AUDIDiscomfort | |||||
| B-0 | 0.4817 | 0.4910 | 0.5911 | 0.5383 | 0.5335 | 0.4912 | 0.2381 | 0.0570 | 0.1932 | 4 |
| B-90 | 0.4952 | 0.5242 | 0.4058 | 0.4720 | 0.4965 | 0.4751 | 0.0619 | 0.2062 | 0.7692 | 2 |
| B-180 | 0.5199 | 0.5027 | 0.3777 | 0.4576 | 0.4683 | 0.5175 | 0.0610 | 0.2383 | 0.7962 | 1 |
| B-270 | 0.5025 | 0.4811 | 0.5858 | 0.5273 | 0.4995 | 0.5150 | 0.2263 | 0.0589 | 0.2065 | 3 |
| Alternative | Normalized Objective Functions (F) | d+ | d− | Cl | Rank | |||||
|---|---|---|---|---|---|---|---|---|---|---|
| Ql | Qh | Qc | CO2-eq | AAPPD | AUDIDiscomfort | |||||
| C-0 | 0.5005 | 0.5110 | 0.4727 | 0.4907 | 0.5085 | 0.4838 | 0.0336 | 0.1288 | 0.7934 | 2 |
| C-90 | 0.4995 | 0.4973 | 0.4552 | 0.4831 | 0.4905 | 0.4812 | 0.0071 | 0.1493 | 0.9546 | 1 |
| C-180 | 0.5010 | 0.5012 | 0.4802 | 0.4837 | 0.4994 | 0.5030 | 0.0361 | 0.1205 | 0.7697 | 3 |
| C-270 | 0.4991 | 0.4902 | 0.5821 | 0.5402 | 0.5015 | 0.5304 | 0.1480 | 0.0220 | 0.1295 | 4 |
| Alternative | Normalized Objective Functions (F) | d+ | d− | Cl | Rank | |||||
|---|---|---|---|---|---|---|---|---|---|---|
| Ql | Qh | Qc | CO2-eq | AAPPD | AUDIDiscomfort | |||||
| A-0 | 0.5596 | 0.5264 | 0.5390 | 0.5361 | 0.5677 | 0.5149 | 0.1672 | 0.3567 | 0.6809 | 2 |
| B-180 | 0.6141 | 0.4208 | 0.4275 | 0.4811 | 0.5311 | 0.6399 | 0.1377 | 0.4948 | 0.7824 | 1 |
| C-90 | 0.5565 | 0.7388 | 0.7258 | 0.6937 | 0.6290 | 0.5704 | 0.4979 | 0.0903 | 0.1535 | 3 |
Publisher’s Note: MDPI stays neutral with regard to jurisdictional claims in published maps and institutional affiliations. |
© 2021 by the authors. Licensee MDPI, Basel, Switzerland. This article is an open access article distributed under the terms and conditions of the Creative Commons Attribution (CC BY) license (https://creativecommons.org/licenses/by/4.0/).
Share and Cite
Mousavi Motlagh, S.F.; Sohani, A.; Djavad Saghafi, M.; Sayyaadi, H.; Nastasi, B. Acquiring the Foremost Window Allocation Strategy to Achieve the Best Trade-Off among Energy, Environmental, and Comfort Criteria in a Building. Energies 2021, 14, 3962. https://doi.org/10.3390/en14133962
Mousavi Motlagh SF, Sohani A, Djavad Saghafi M, Sayyaadi H, Nastasi B. Acquiring the Foremost Window Allocation Strategy to Achieve the Best Trade-Off among Energy, Environmental, and Comfort Criteria in a Building. Energies. 2021; 14(13):3962. https://doi.org/10.3390/en14133962
Chicago/Turabian StyleMousavi Motlagh, Seyedeh Farzaneh, Ali Sohani, Mohammad Djavad Saghafi, Hoseyn Sayyaadi, and Benedetto Nastasi. 2021. "Acquiring the Foremost Window Allocation Strategy to Achieve the Best Trade-Off among Energy, Environmental, and Comfort Criteria in a Building" Energies 14, no. 13: 3962. https://doi.org/10.3390/en14133962
APA StyleMousavi Motlagh, S. F., Sohani, A., Djavad Saghafi, M., Sayyaadi, H., & Nastasi, B. (2021). Acquiring the Foremost Window Allocation Strategy to Achieve the Best Trade-Off among Energy, Environmental, and Comfort Criteria in a Building. Energies, 14(13), 3962. https://doi.org/10.3390/en14133962

