Lattice and Tubular Steel Wind Turbine Towers. Comparative Structural Investigation †
Abstract
1. Introduction
2. Materials and Methods
2.1. Tubular Tower Configuration
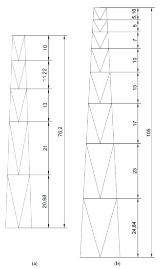
2.2. Lattice Tower Configuration
2.3. Material
3. Results
3.1. Tubular Tower Results
3.1.1. Initial Bifurcation Analysis
3.1.2. Non-Linear Analysis
3.2. Lattice Tower Results
3.2.1. Analysis of 76 m Tower
3.2.2. Analysis of 105 m Tower
4. Discussion
5. Conclusions
- the lattice tower is 40% lighter in both 76 and 105 m towers;
- the total initial construction cost is minimized by almost 15% when adopting the lattice solution.
Author Contributions
Funding
Conflicts of Interest
References
- IRENA. Future of Wind: Deployment, Investment, Technology, Grid Integration and Socio-Economic Aspects; International Renewable Energy Agency: Abu Dhabi, UAE, 2019. [Google Scholar]
- European Commission. Communication from the Commissionto the European Parliament, the Council, the European Economicand Social Committee and the Committee of the Regions: A Policy Framework for Climate and Energy in the Period from 2020 to2030; European Commission: Brussels, Belgium, 2014. [Google Scholar]
- Wind Europe. Wind Energy in Europe in 2018: Trends and Statistics; Wind Europe: Brussels, Belgium, 2019. [Google Scholar]
- Pineda, I.; Tandieu, P. Wind in Power; Wind Europe: Brussels, Belgium, 2016. [Google Scholar]
- Varun Bhat, I.K.; Prakash, R. LCA of a renewable energy for electricity generation systems—A review. Renew. Sustain. Energ. Rev. 2009, 13, 1067–1073. [Google Scholar] [CrossRef]
- Blanco, M.I. The economics of wind energy. Renew. Sustain. Energ. Rev. 2009, 13, 1372–1382. [Google Scholar] [CrossRef]
- Wind Europe. Wind Energy in Europe in 2019: Trends and Statistics; Wind Europe: Brussels, Belgium, 2020. [Google Scholar]
- Lavassas, I.; Nikolaidis, G.; Zervas, P.; Efthimiou, E.; Doudoumis, I.N.; Baniotopoulos, C.C. Analysis and design of the prototype of a steel 1-MW wind turbine tower. Eng. Struct. 2003, 25, 1097–1106. [Google Scholar] [CrossRef]
- Timoshenko, S.; Gere, J. Theory of Elastic Stability; Tata McGraw-Hill Education: New York, NY, USA, 1961. [Google Scholar]
- Bazant, Z.; Cedolin, L. Stability of Structures: Elastic, Inelastic, Fracture and Damage Theories; World Scientific Publishing: Singapore, 2010. [Google Scholar]
- Teng, J.; Rotter, J. Buckling of Thin Metal Shells; Taylor and Francis: London, UK, 2004. [Google Scholar]
- Baniotopoulos, C.C.; Borri, C.; Stathopoulos, T. Environmental Wind Engineering and Design of Wind Energy Structures; Springer: Vienna, Austria, 2010. [Google Scholar]
- Lee, K.; Bang, H. A study on the prediction of lateral buckling load for wind turbine tower structures. Int. J. Eng. Manuf. 2013, 13, 1829–1836. [Google Scholar] [CrossRef]
- Dimopoulos, C.; Gantes, C. Experimental investigation of buckling of wind turbine tower cylindrical shells with opening and stiffening under bending. Thin Walled Struct. 2012, 54, 140–155. [Google Scholar] [CrossRef]
- Dimopoulos, C.; Gantes, C. Comparison of stiffening types of the cutout in tubular wind turbine towers. J. Construct. Steel Res. 2013, 83, 62–74. [Google Scholar] [CrossRef]
- Rebelo, C.; Veljkovic, M.; Simoes da Silva, L.; Simoes, R.; Henriques, J. Structural monitoring of a wind turbine steel tower—Part I: System description and calibration. Wind Struct. 2012, 12, 285–299. [Google Scholar] [CrossRef]
- Rebelo, C.; Veljkovic, M.; Simoes da Silva, L.; Simoes, R.; Henriques, J. Structural monitoring of a wind turbine steel tower—Part II: Monitoring results. Wind Struct. 2012, 12, 301–311. [Google Scholar] [CrossRef]
- Stavridou, N.; Efthymiou, E.; Gerasimidis, S.; Baniotopoulos, C.C. Investigation of stiffening scheme effectiveness towards buckling stability enhancement in tubular steel wind turbine towers. Steel Comp. Struct. 2015, 19, 1115–1144. [Google Scholar] [CrossRef]
- Stavridou, N.; Efthymiou, E.; Gerasimidis, S.; Baniotopoulos, C.C. Modelling of the structural response of wind energy towers stiffened by internal rings. In Proceedings of the 10th HSTAM International Congress on Mechanics, Chania, Greece, 25–27 May 2013; Technical University of Crete Publishing House: Chania, Greece, 2013; p. 190. [Google Scholar]
- Carril, C.F., Jr.; Isyumov, N.; Brasil, R.M. Experimental study of the wind forces on rectangular latticed communication towers with antennas. J. Wind Eng. Ind. Aerodyn. 2003, 91, 1007–1022. [Google Scholar] [CrossRef]
- Harikrishna, P.; Sanmugasundaram, J.; Gomathinayagam, S.; Lakshmanan, N. Analytical and experimental studies on the gust response of a 52 m tall steel lattice tower under wind loading. Comp. Struct. 1999, 70, 149–160. [Google Scholar] [CrossRef]
- Holmes, J.D. Along-wind response of lattice towers: Part I–derivation of expressions for gust response factors. Eng. Struct. 1994, 16, 287–292. [Google Scholar] [CrossRef]
- Holmes, J.D. Along-wind response of lattice towers: Part II–Aerodynamic damping and deflections. Eng. Struct. 1996, 18, 483–488. [Google Scholar] [CrossRef]
- Holmes, J.D. Along-wind response of lattice towers: Part III–Effective load distributions. Eng. Struct. 1996, 18, 489–494. [Google Scholar] [CrossRef]
- Khedr, M.A.H. Seismic Analysis of Lattice Towers. Ph.D. Thesis, McGill University, Montreal, QC, Canada, 1998. [Google Scholar]
- Khedr, M.A.H.; McClure, G. A simplified method for seismic analysis of lattice telecommunication towers. Can. J. Civ. Eng. 2000, 27, 533–542. [Google Scholar] [CrossRef]
- Madugula, M.K. Dynamic Response of Lattice Towers and Guyed Masts; American Society of Civil Engineers: Reston, VA, USA, 2001. [Google Scholar]
- Gencturk, B.; Attar, A.; Tort, C. Optimal design of lattice wind turbine towers. In Proceedings of the 15th World Conference on Earthquake Engineering, Lisbon, Portugal, 24–28 September 2012; Sociedade Portuguesa de Engenharia Sísmica: Lisbon, Portugal, 2012; pp. 24–28. [Google Scholar]
- Long, H.; Moe, G. Preliminary design of bottom-fixed lattice offshore wind turbine towers in the fatigue limit state by the frequency domain method. J. Offshore Mech. Arct. Eng. 2012, 134, 031902. [Google Scholar] [CrossRef]
- Long, H.; Moe, G.; Fischer, T. Lattice towers for bottom-fixed offshore wind turbines in the ultimate limit state: Variation of some geometric parameters. J. Offshore Mech. Arct. Eng. 2012, 134, 021202. [Google Scholar] [CrossRef]
- Zwick, D.; Muskulus, M.; Moe, G. Iterative optimization approach for the design of full-height lattice towers for offshore wind turbines. Energy Procedia 2012, 24, 297–304. [Google Scholar] [CrossRef][Green Version]
- Hibbitt, Karlsson and Sorensen Inc. ABAQUS/Standard User’s Manual and ABAQUS CAE Manual, Version 6.12; Hibbitt, Karlsson and Sorensen Inc., ABAQUS: Pawtucket, RI, USA, 2014. [Google Scholar]
- Wolfram, S. The Mathematica; Cambridge University Press: Cambridge, UK, 1999. [Google Scholar]
- Veljkovic, M.; Heistermann, C.; Husson, W.; Limam, M.; Feldmann, M.; Naumes, J.; Pak, D.; Faber, T.; Klose, M.; Fruhner, K.U.; et al. High-Strength Tower in Steel for Wind Turbines (HISTWIN); European Commission Joint Research Center: Ispra, Italy, 2012. [Google Scholar]
- Koiter, W.T. On the Stability of Elastic Equilibrium. Ph.D. Thesis, Delft University, Delft, The Netherlands, 1945. [Google Scholar]
- Speicher, G.; Saal, H. Numerical calculation of limit loads for shells of revolution with particular regard to the applying equivalent initial imperfection. In Buckling of Shell Structures, on Land, in the Sea, and in the Air; Taylor and Francis Group: London, UK, 1991; pp. 466–475. [Google Scholar]
- European Commission. EN 1993-1-6: Eurocode 3: Design of Steel Structures. Part 1-6: Strength and Stability of Shell Structures; European Commission: Brussels, Belgium, 2007. [Google Scholar]
- European Commission. EN 1993-1-1: Eurocode 3: Design of Steel Structures. Part 1-1: General Rules and Rules for Buildings; European Commission: Brussels, Belgium, 2005. [Google Scholar]

















| Tower Segment Heights: m | |||||
|---|---|---|---|---|---|
| Height | S-1 | S-2 | S-3 | S-4 | S-5 |
| Segment height | 34.45 | 55.53 | 68.19 | 75.64 | 76.20 |
| Diameter and Shell Thickness of Tower Cross-Sections: mm | |||||
|---|---|---|---|---|---|
| Legs | S-1 | S-2 | S-3 | S-4 | S-5 |
| Diameter | 411 | 371 | 352 | 340 | 286 |
| Thickness | 8 | 8 | 7 | 7 | 5 |
| V-brace diagonals | |||||
| Diameter | 413 | 385 | 375 | 363 | 253 |
| Thickness | 7 | 7 | 7 | 7 | 5 |
| V-brace horizontals | |||||
| Diameter | 342 | 282 | 240 | 216 | 214 |
| Thickness | 6 | 5 | 5 | 4 | 4 |
| Tower Segment Heights: m | ||||||||
|---|---|---|---|---|---|---|---|---|
| Height | S-1 | S-2 | S-3 | S-4 | S-5 | S-6 | S-7 | S-8 |
| Segment height | 29.46 | 52.11 | 69.35 | 82.34 | 92.02 | 99.14 | 104.30 | 105.00 |
| Diameter and Shell Thickness of Tower Cross-Sections: mm | ||||||||
|---|---|---|---|---|---|---|---|---|
| Legs | S-1 | S-2 | S-3 | S-4 | S-5 | S-6 | S-7 | S-8 |
| Diameter | 479 | 457 | 439 | 427 | 421 | 411 | 410 | 344 |
| Thickness | 9 | 8 | 8 | 8 | 8 | 8 | 8 | 7 |
| V-brace diagonals | ||||||||
| Diameter | 422 | 415 | 409 | 413 | 419 | 420 | 432 | 266 |
| Thickness | 8 | 7 | 7 | 7 | 8 | 8 | 8 | 5 |
| V-brace horizontals | ||||||||
| Diameter | 351 | 311 | 279 | 254 | 236 | 224 | 216 | 215 |
| Thickness | 6 | 6 | 5 | 5 | 4 | 4 | 4 | 4 |
Publisher’s Note: MDPI stays neutral with regard to jurisdictional claims in published maps and institutional affiliations. |
© 2020 by the authors. Licensee MDPI, Basel, Switzerland. This article is an open access article distributed under the terms and conditions of the Creative Commons Attribution (CC BY) license (http://creativecommons.org/licenses/by/4.0/).
Share and Cite
Stavridou, N.; Koltsakis, E.; C. Baniotopoulos, C. Lattice and Tubular Steel Wind Turbine Towers. Comparative Structural Investigation. Energies 2020, 13, 6325. https://doi.org/10.3390/en13236325
Stavridou N, Koltsakis E, C. Baniotopoulos C. Lattice and Tubular Steel Wind Turbine Towers. Comparative Structural Investigation. Energies. 2020; 13(23):6325. https://doi.org/10.3390/en13236325
Chicago/Turabian StyleStavridou, Nafsika, Efthymios Koltsakis, and Charalampos C. Baniotopoulos. 2020. "Lattice and Tubular Steel Wind Turbine Towers. Comparative Structural Investigation" Energies 13, no. 23: 6325. https://doi.org/10.3390/en13236325
APA StyleStavridou, N., Koltsakis, E., & C. Baniotopoulos, C. (2020). Lattice and Tubular Steel Wind Turbine Towers. Comparative Structural Investigation. Energies, 13(23), 6325. https://doi.org/10.3390/en13236325

