You are currently viewing a new version of our website. To view the old version click .
Energies
  • Article
  • Open Access

5 December 2019

Green Performance Evaluation System for Energy-Efficiency-Based Planning for Construction Site Layout

,
,
,
and
1
Faculty of Built Environment, University of New South Wales, Sydney NSW 2052, Australia
2
School of Civil Engineering and Mechanics, Huazhong University of Science and Technology, Wuhan 430074, China
3
School of Investment & Construction Management, Dongbei University of Finance and Economics, Dalian 116025, China
*
Author to whom correspondence should be addressed.
This article belongs to the Special Issue Low Carbon and Resilient Planning, Design, and Construction of the Built Environment: Mitigation and Adaptation Achievements and Future Directions

Abstract

The location of temporary facilities in a construction project and the entire site layout plan directly affect project objectives such as time, labor cost, and material transportation and handling. The layout of construction sites also affects entrainment factors such as energy consumption, carbon footprints, and overall construction operation productivity. While site layout planning has been intensively investigated from a project objectives perspective, there have been very few studies of energy-efficiency-based planning, or of the sustainability performance of site layouts. This study developed a green performance evaluation system aimed at improving the sustainability of construction site layouts. The identified factors include six sustainable evaluation categories covering energy conservation and environmental protection, people-oriented principles, construction efficiency, intensity of economic growth, intensity of space use, and the overall control of process. An analytic hierarchy process (AHP) was adopted to determine the weight of each attribute and a fuzzy comprehensive evaluation method was established to carry out the evaluation. The 23 attributes adopted in this paper were identified in the literature; however, the major contribution of this paper is the development of a green performance evaluation system. This system integrates both qualitative and quantitative attributes and provides an overall evaluation of the environmental effectiveness of a construction site layout. The proposed evaluation system was validated with a commercial building project. The average utilization ratio of the case study site was calculated as 94%, and lessons learned are discussed in this paper. The case study analysis identified available site spaces around the building and examined how the arrangement of resources and facilities ensures effective connection between construction activities. The findings showed that the facility’s layout plays a crucial role in energy consumption and green performance. The proposed system will support construction project managers to create high-performance construction site layouts in more scientific and systematic ways.

1. Introduction

The construction industry has a significant environmental impact. The industry consumes large amounts of resources and produces considerable amounts of waste [1,2,3]. Most research on energy efficiency and green performance of building projects has focused on the embodied energy of building materials and energy consumption during a building’s operational phase. The construction phase has not been widely considered by researchers. In particular, there has been a lack of research into ways to minimize energy consumption through site layout planning and operational strategies.
This type of research is significant, because the environmental impacts from the construction stage are estimated to be large on a national and global scale [4,5]. The building and construction industry is responsible for well over 30% of global energy consumption, including building operation and construction operation [6,7]. Chang and Ries [8] investigated energy and emission units of a common type of high-rise building in China, finding that resource and energy consumption in the building sector is high. Planning and operational phases of construction require attention and investment, since construction significantly affects energy consumption, carbon emissions, and climate adaptation and resilience.
Construction site layout planning significantly affects the energy efficiency and pollution production in construction projects. Site layout involves designing and planning where facilities are to be located, including construction workshops, material warehouses, machinery and heavy equipment parking, on-site staff offices, and administration during the construction phase. This is a fundamental task in the construction stage, including not only determination of the movement of construction machinery, but also the regulation of noise pollution in the surrounding environment [9]. Site layout planning is also a decision-making process involving problem identification, solution development, and selecting and optimizing alternatives [10]. In this process, emissions and environmental pollutants such as dust, water pollution, and greenhouse gases need to be considered [11,12,13]. In order to have truly green star buildings and to minimize environmental impacts during the construction phase, the current approach to construction site layout planning must shift to energy-based planning [14].
Early research on construction site layout focused on the methods and general approaches considered for site layout planning. Many studies treated site layout planning as an optimization problem, and different objective functions were used to plan site layout [15,16]. As pointed out by Ning and Lam [17], most of these studies used the objective function to reduce construction costs and improve site safety [17]. Few studies considered overall green performance from the perspective of construction site layout planning. This study aimed to resolve this gap, identifying the relationship between green performance and construction site layout by developing a green performance evaluation system which introduces sustainable development concepts into construction site layout planning. The proposed evaluation system contains various categories and attributes that can guide construction project managers to improve the green performance of the construction site layout.
This paper first systematically discusses the importance of construction site layout planning in green building projects, and reviews the literature evaluating and promoting the green performance of construction site layout planning. The research gap is identified and discussed in relation to this research. The attributes for green performance evaluation of construction site layout planning were identified from previous studies, covering the three classic dimensions of sustainability—environmental, economic, and social. The important contribution of this study is categorizing these items according to their relevance to the aspects of sustainability, measuring these items quantitatively and/or qualitatively according to the nature of the attributes, and then integrating them into a comprehensive evaluation system. A case study was used to illustrate how the evaluation can be carried out.

2. Literature Review

2.1. Green Building and Energy-Efficiency-Based Planning

Green building is a form of environmentally friendly building invoking the principles of sustainable development [18]. Green building aims to provide better economic, environmental, and social performance over the course of a construction project’s life span [19]. Green building principles should be applied throughout a building’s entire life cycle [20,21], including the design, construction, operation, maintenance, and demolition stages [22,23,24].
Construction site layout planning is a crucial part of the construction stage in a building’s life cycle, involving the coordination and movement of large quantities of materials, people, and building products. Heavy equipment used during the construction stage can produce considerable emissions, from the excavation process to the demolition phase [25,26]. The traveling time of heavy equipment when working in a construction project is related to the distance between car parks from the main areas of construction, and this directly affects carbon emissions during construction [27,28]. Implementing green goals at the construction phase could improve environmental performance [29], and is considered to be a key feature of the next generation of green performance evaluation models [30]. Furthermore, it is well-known that appropriate planning for green building can be done at a low cost in the early stages of construction with enormous savings later [31].
Previous studies have discussed how construction techniques and methods affect energy efficiency. For example, off-site construction has been employed as an energy-efficient solution and a convenient method in the UK [32]. Energy and emission management strategies depend on the assembly area, the material storage location, on-site concrete creation methods, and cast in situ conditions, which all are affected by the layout plan, topography, accessibility, and handling equipment available on site. Therefore, site layout planning provides the greatest opportunity for implementing green concepts early in the construction phase and could have considerable beneficial impacts on the building project’s overall green performance [30,33,34,35,36].
Construction site layout planning has been evaluated by many green building rating tools [30,37,38,39]. Huo and Ann [37] carried out a comprehensive investigation to evaluate the effectiveness of five international green building rating tools from site planning and design perspectives. The comparative study revealed that each rating tool emphasizes different aspects of site planning in green buildings, and identified the main variables for effective site planning and design. Their research laid a theoretical foundation for promoting comprehensive evaluation of the green performance of site layout planning.

2.2. Green Performance Evaluation of Site Layout Planning

The construction stage provides considerable potential to control a variety of environmental impacts [40]. Because of this, green construction should aim to reduce disturbances on site, and minimize construction waste from buildings and sites [38]. To establish a sustainable construction site, an appropriate green performance evaluation system should be established for site layout planning.
Site layout planning is a fundamental task in the construction stage, involving assigning temporal spaces to static, moving, and movable objects. Site planning plays a very important role in construction, as it helps to ensure effective spatial arrangement and ideal space utilization.
An efficient site layout can have a significant impact on the productivity, cost, and safety of a construction site [41]. Therefore, many previous studies have focused on producing an efficient site plan using optimization methods. Most of this earlier research was concerned with cost reduction and site safety improvement [42,43,44,45]. While ensuring site safety and reducing construction cost are related to a project’s sustainability, very little research explicitly links optimization methods to improving site sustainability. The few research projects that have explored this link are summarized below.
Some studies have investigated different policies of handling materials on site, loading policies, and transportation strategies to save energy and reduce cost over the construction phase [46,47]. These studies have been concerned with construction operations and argue that the energy consumption, emission units, and associated costs are variable in different sites and can also be affected by construction site layout and operation strategies. However, the literature on energy-efficiency-based planning is scarce. In some large projects in particular, earthmoving operations involve repeated hauling between loading and dumping points, and handling materials located in storage on site to the construction area. For example, Carmichael and Mustaffa [46] investigated emissions, production, and cost of heavy equipment operations in different scenarios, finding that optimum emissions and cost savings are related to fleet size and loading strategies and policies.
Lam and Ning’s [48] research constitutes an early attempt to consider the environmental impacts of site layout. In Ning’s [43] research, optimization was carried out on the effectiveness and efficiency of the operations on the construction site. The study considered minimum travel distance, reduction of handling materials, avoiding material obstacles, and movement of the plants, and the ways an optimized plan could reduce the environmental impacts of construction activities on site. Likewise, Sanad and Ammar [49] developed an optimization model for solving site layout planning problems considering safety and environmental issues, and the distance traveled between facilities. Both optimization techniques and heuristic methods were employed in Sanad and Ammar’s [49] research. Similarly, Andayesh and Sadeghpour [41] used an innovative dynamic model to generate layouts that were optimized over the construction duration, utilizing the minimum total potential energy concept. Hammad and Akbarnezhad’s [50] research focused on minimizing noise pollution and transportation costs using a multi-objective mixed integer nonlinear programming model. These optimization papers focused on developing mathematical models and genetic algorithms to produce optimal solutions. While various optimization objectives have been met, they do not provide a comprehensive analysis of the items and critical factors for sustainable site planning and design.
Huo et al. [12,37,51] suggested a wider range of proposed factors relate to project site planning for green buildings based on the current rating tools including the Assessment Standard for Green Building (ASGB), Building Environmental Assessment Method (BEAM), Green Mark (GM), BREEAM, LEED. They also examined selected participants’ perceptions about the propose factors. However, they encouraged future studies to continue examining different factors and introduce a more effective plan for site layouts addressing green building criteria.
Huo et al. [12,51] conducted a pioneer study identifying the critical factors of site planning and design in green buildings. In their research, a comprehensive list of 13 variables and 38 items in site planning and design were provided. Although they identified individual items and variables relevant to green building and site planning, no systematic analysis was carried out to integrate all of the identified items into a green performance evaluation of the site’s layout.
Likewise, Abduh and Ervianto [52] found that the Indonesian government had developed an assessment model for benchmarking sustainable practices based on three aspects of green construction: green behavior and practices, green construction process, and green supply chains, and seven sustainable principles were used for the development of indicators for each aspect of green construction. Yan [53] also established an evaluation index and model to analyze the function of a green construction scheme, but the model only specifically applies to the green construction of pile foundations.
Although this earlier research established green evaluation schemes for the construction stage, little research has used a holistic approach covering the three key areas of sustainability: environmental, economic, and social domains. Some of the identified items can be measured using quantitative values while others cannot, and there is no comprehensive system to integrate qualitative and quantitative items so an overall evaluation of the green performance of site layout planning can be carried out. This research embraced the attributes of sustainable development and site layout planning from previous studies in an attempt to fill this gap. Based on the inherent nature of the attributes, categories were developed to classify these attributes for an AHP structure, which is the basic structure for the evaluation system [54]. Quantitative and qualitative standards were integrated to provide a comprehensive evaluation.

2.3. Green Performance Attributes Identified from Previous Research

Green construction site layout is an application of sustainable development in the site management field. Employing the principles of sustainable development, the categories and attributes in green performance evaluation systems for site layout are derived from economic needs, environmental stewardship, and social inclusion [55]. In this paper, green performance attributes were identified from the literature. Table 1 gives a summary of all the identified attributes (the category index is explained in the next section). As presented in Section 2.2, the attributes adopted by Huo et al. [12,37], listed in the last column of Table 1, were selected from the green building rating tools. This research enhanced the list with additional attributes proposed by other previous researchers (refer to Table 1).
Table 1. Green performance evaluation attributes identified from the literature. (Note: indicates whether an attribute is included in the selected resources).
These identified attributes were categorized based on factors including energy consumption, construction efficiency, economic efficiency, space utilization, human-centered, and project life-cycle considerations. These are discussed in detail in the following section.

3. Categories and Attributes in the Green Performance Evaluation System

3.1. Definitions of Categories and Attributes

In total, 23 attributes were identified from previous studies (as shown in Table 1), and they were summarized into six categories. The six categories were energy conservation and environmental protection (C1), construction efficiency (C2), economic intensity (C3), space intensity (C4), people-orientation (C5), and total process control (C6). Category C1 is concerned with environmental stewardship and category C5 is focused on social inclusion. The remaining categories, i.e., C2, C3, C4, and C6 are related to financial viability, which is linked to the economic aspect of the site layout. The six categories and the attributes they covered are explained in detail as follows:

Category 1 (C1): Energy Conservation and Environmental Protection

The green construction site layout should be arranged in accordance with the requirements of energy conservation and environmental protection [59]. The site manager should design the construction site with goals of preventing soil erosion, avoiding water pollution, decreasing air pollution, adopting effective disposal measures for construction demolition waste, and conserving energy.
Lu and Cai [57] and Xu and Song [58] discussed the characteristics of construction site layouts and the arrangement of temporary facilities, then proposed a list of the relevant attributes. This involved an energy optimization ratio (A11), utilization ratio of resource saving facilities (A12), effectiveness of sewage disposal and solid waste collection (A13), green coverage ratio (A14), and effectiveness of dust control (A15), which are explained as follows:
A11: Energy optimization ratio
This ratio is used to evaluate the utilization of cleaner energy and renewable energy, as shown in Equation (1).
E n e r g y   o p t i m i z a t i o n   r a t i o = U t i l i z a t i o n   o f   c l e a n   e n e r g y   a n d   r e n e w a b l e   e n e r g y E n e r g y   c o n s u m e d   i n   t h e   c o n s t r u c t i o n   s i t e × 100 %
A12: Utilization ratio of resource saving facilities
Facilities for resource saving, e.g., water and electricity saving, need to be set up within the construction site. Equation (2) is used to calculate the proportion of facilities devoted to resource saving to all temporary facilities needed during the process of construction.
U t i l i z a t i o n   r a t i o   o f   r e s o u r c e   s a v i n g   f a c i l i t i e s =   R e s o u r c e   s a v i n g   f a c i l i t i e s   A l l   t e m p o r a r y   f a c i l i t i e s × 100 %
A13: Effectiveness of sewage disposal and solid waste collection
As pointed out by Huo et al. [51], adequate measures to reduce water pollution should be undertaken on construction sites. Controlling water pollution was also identified by Tam et al. [60] as a requirement for green buildings. There are sewage disposal facilities and solid waste collection facilities on a construction site to prevent on-site pollution. In addition, some facilities are needed for the centralized treatment of solid waste. This attribute is to monitor whether there are appropriate sewage disposal measures, facilities, and solid waste collection procedures on the construction site, which can be calculated by Equation (3).
E f f e c t i v e n e s s   o f   s e w a g e   d i s p o s a l   a n d   s o l i d   w a s t e   c o l l e c t i o n =     S e w a g e   d i s p o s a l   a n d   s o l i d   w a s t e   c o l l e c t i o n   f a c i l i t i e s   T e m p o r a r y   f a c i l i t i e s   × 100 %
A14: Green coverage ratio
Green coverage ratio is the green area occupied to the total area of the construction site, which can be calculated by Equation (4).
G r e e n   c o v e r a g e   r a t i o =   T h e   g r e e n   a r e a   o f   c o n s t r u c t i o n   s i t e   T h e   a r e a   o f   t h e   c o n s t u c t i o n   s i t e   × 100 %
Sufficient green space was one of the five most important factors in the site layout planning of green buildings identified by Huo et al. [51]. However, their research did not provide any quantified standard to measure what “sufficient” means. The green coverage ratio can provide a quantified measure for this attribute.
A15: Effectiveness of dust control
Dust and air emission mitigation was the third most important item identified by Huo et al. [51] in the site layout planning of green buildings. The attribute of dust control effectiveness monitors whether the particulate matter generated is in closed storage, and whether there are appropriate facilities for reducing dust. Dust may also be controlled by setting up hoarding surrounding a construction site or arranging a water spray device on the dust-generating area of the site.

Category 2 (C2): Construction Efficiency

A green construction site layout needs to satisfy many requirements for increasing construction efficiency, including producing construction outputs in a timely manner, placing temporary facilities at appropriate locations, avoiding material re-handling, and shortening on-site transportation distances [61]. According to the research on optimizing construction site facilities’ layout to improve construction efficiency [62,63], the following attributes were considered:
A21: Effectiveness of temporary road layout
This attribute is used to measure whether a circumferential road has been installed at the construction site to prevent internal traffic congestion. A good road layout allows relevant temporary facilities to be directly linked together, such as storage buildings and yards.
A22: Layout integration of facilities
Using a similar principle as for road layout, related facilities such as the material storage yard and workshop, or rebar bending yard and rebar laydown area, should be placed close to each other. A well-integrated facility layout can provide efficient space usage.
A23: Effectiveness of temporary drainage facilities
Effective temporary drainage facilities are vital to construction efficiency, as the ponding area in the rainy season may block vehicle access to and circulation within the construction site. It is necessary to set up drainage facilities on both sides of the traffic road.
A24: Location rationality of machinery
All construction machinery should be arranged to have easy access to other machinery and satisfy its functional requirements. For example, the service radius for the tower crane should cover the entire construction area.

Category 3 (C3): Economic Intensity Degree

Being economically intensive is an important requirement for construction management and a basic element of sustainable development. In order to reduce transportation costs, temporary facilities should be placed in appropriate locations for the effective movement of personnel, materials, and equipment [64]. According to the principle of systematic layout planning [65] and more recent research by Li and Liu [66], Aboutaleb et al. [16], and Wu et al. [67], the following attributes can be used to measure the degree of economic intensity:
A31: The ratio of existing resource utilization
Installation, re-establishment, and removal of facilities will lead to greater construction expenditure. In order to reduce construction cost, existing buildings and roads on the site should be reused to avoid additional expenditure during various stages of the construction. This dynamic attribute can be evaluated by Equation (5).
T h e     r a t i o   o f   o r i g i n a l   r e s o u r c e   u t i l i z a t i o n =   T h e   a r e a   o c c u p i e d   b y   t h e   o r i g i n a l   b u i l d i n g   o r   r o a d   T h e   a r e a   o f   t h e   c o n s t u c t i o n   s i t e   × 100 %
A32: The cost saving of temporary facilities
In order to reduce the construction cost of temporary facilities, it is beneficial to take the whole project into account when assigning temporary facilities. It would be best to meet the basic standard of the mandatory national standard and requirements of construction quality and safety.
A33: Total transportation cost saving
Total transportation cost saving is the sum of transportation cost savings in different project stages. The dynamic attribute is the ratio of cost saving for resource transportation in comparison with the budgeted cost, as shown in Equation (6).
T h e   r a t i o   o f   r e s o u r c e   t r a n s p o r t a t i o n   s a v i n g =   T h e   b u d g e t e d   c o s t   o f   r e s o u r c e   t r a n s p o r t a t i o n T h e   a c t u a l   c o s t   o f   r e s o u r c e   t r a n s p o r t a t i o n     T h e   b u d g e t e d   c o s t   o f   r e s o u r c e   t r a n s p o r t a t i o n   × 100 %

Category 4 (C4): Space Intensity

The space intensity category measures the efficient use of space. Ideally, the smaller the construction area occupied by temporary facilities, the more space is left for facility movement and layout changes [29]. Li and Liu [66], Abotaleb et al. [16], and Chakraborty and Banik [68] studied the optimal layout design and presented attributes for space intensity. The attributes are explained as follows:
A41: The flexibility of site space
The construction site layout needs to respond to the construction process. In order to facilitate efficient construction operations, there should be unused or lightly used space left to allow adaptation to any changes made on the construction site.
A42: Degree of space utilized
This attribute measures whether site space is used in efficient manner, which is a dynamic attribute that changes with different project stages.
A43: Average proportion of site occupied by site facilities
The average proportion can be expressed by Equation (7), where i represents different stages and n is the total number of construction stages.
A v e r a g e   p r o p o r t i o n   o f   s i t e   o c c u p i e d   b y   s i t e   f a c i l i t i e s = i = 1 n ( S i t e   f a c i l i t i e s   o c c u p i e d   a r e a ) i n C o n s t r u c t i o n   s i t e   a r e a   × 100 %

Category 5 (C5): People-Oriented Principles

The people-oriented category for green construction layout considers the degree of satisfaction labor and staff display while on site, and includes attention to the arrangement of fire facilities for the health and safety of the employees [69]. Human health protection and construction noise mitigation have also been identified by Huo et al. [51] as two out of the five most important items in site planning of green buildings. Health protection and noise mitigation are related items, as noise has detrimental impacts on health. The five attributes identified by Chakraborty and Banik [68], Sjøbakk and Skjelstad [62], and Cambron and Evans [70] under the people-oriented category were considered appropriate and are listed below:
A51: Noise emissions
Noise pollution on site cannot be ignored during construction, as it is usually the main reason for neighbor complaints and has an impact on human health. The evaluation of noise emissions is confined to the main structure stage, owing to the operation of a great quantity of construction equipment. The structure stage accounts for a large proportion of the whole construction project. This attribute measures the difference in decibels between actual construction site noise and the national standard of environmental noise.
A52: Effectiveness of noise reduction measures
This attribute measures whether low-noise and -vibration equipment used in the construction operations and whether there actions have been taken for sound insulation and vibration isolation.
Noise not only causes hearing damage, but also leads to high blood pressure, heart disease, and other diseases [71]. More seriously, noise distracts workers, and this can lead to a variety of safety concerns [72]. Thus, the attributes of A51 and A52 are included in category C5.
A53: Employee satisfaction
Welfare facilities, such as canteens and labor huts, must be properly placed to bring convenience and satisfaction to the employees.
A54: Separation of living area from construction area
Living areas should be separated adequately from construction areas to guarantee the health and safety of construction workers.
A55: Status of safety management measures
The construction site layout should be designed according to the requirements in the safety regulations or safety standards, such as installing safety warning signs and fire hydrants, and inflammable and explosive material storage areas should be separated from the boiler room. This attribute is used to evaluate the status of safety management on construction site in compliance with the safety regulations and standards.

Category 6 (C6): Total Control of Process

The construction site layout varies with the stages of the construction process, since different site facilities and construction methods are needed for different construction stages. A green construction site layout plan should consider the dynamic nature of site activities and prepare a balanced plan for different construction stages to guarantee smooth transitions across the entire construction project period [73].
In order to measure how adaptive a green construction site layout can be to the different construction stages, Abotaleb et al. [16] and Chakraborty and Banik [68] proposed the following attributes.
A61: The ability of the site layout to respond to the construction process
This attribute evaluates whether the site layout is capable of adjusting the location of facilities in a timely manner in order to satisfy the requirements of a particular stage. Professional construction experts could evaluate this attribute using their own experience, since they are familiar with the whole construction process.
A62: The effectiveness of the resource schedule plans
The labor plan, material laydown area, and equipment should be arranged bearing in mind the different construction stages to avoid congestion in the construction area and ensure adequate space to store and process construction material.
A63: The efficiency of the transition of operational equipment
A good site layout plan can ensure efficient equipment transitions between different construction operations and stages and minimize the transition time.

3.2. Hierarchy Structure for a Green Performance Evaluation System

Six categories cover the three dimensions of sustainability: environmental, economic, and social aspects. Energy conservation and environmental protection (C1) are clearly related to environmental sustainability, and category C5 is focused on social inclusion. The four remaining categories, i.e., C2, C3, C4, and C6, are related to financial viability. The construction site layout plan involves the effective utilization of space (category C4) to smooth and facilitate construction operations (category C2 and C6) and satisfy management goals. In this case, construction cost reduction (category C3) is a critical requirement for construction management.
Twenty-three attributes were developed for the six categories, and the hierarchy in the green performance evaluation system is shown in Figure 1.
Figure 1. Hierarchy in the green performance evaluation system.
In the following section, the requirements of categories and the definition of attributes are introduced to clarify the classification of attributes.

3.3. Attributes Classification

The attributes in the green performance evaluation system were divided into qualitative and quantitative categories and are summarized in Table 2.
Table 2. The category of attributes.
The quantitative attributes can be determined by an actual value, which are calculated using records and data in the construction site layout; they are objective attributes. However, the qualitative factors can only be evaluated in a subjective way according to personnel knowledge, experience, and preferences. In order to establish the caliber of green performance of the construction site layout, a standard evaluation rule for the qualitative and quantitative attributes should be established.
As the construction site layout evolves with construction progress, some attributes, such as the flexibility of site space (A41), the degree of utilization of site space (A42), and the effectiveness of the resources schedule (A61) are dynamic and will need to be evaluated with the changing construction site layout plan in different construction stages. Therefore, in the case study, more than one site layout plan was adopted to show the impact of these attributes on the green performance of the layout.

4. Development of the Green Performance Evaluation System

In this section, the evaluation rule of all attributes will be introduced first, then the weights of the categories and attributes will be derived by the AHP process. The overall performance score for different construction site layout alternatives can then be determined.

4.1. Evaluation Rule for Attributes by the Fuzzy Set

In order to determine the green evaluation grade for the quantitative and qualitative attributes, “fuzzy set” theory was adopted. Fuzzy set theory was introduced by Zadeh [74] to solve vague, imprecise, and uncertain problems. Fuzzy set theory allows people to make decisions in terms of their experience and knowledge, based on the solutions of similar problems solved in the past. The degree of membership of the element u for the fuzzy set A is defined as membership function uA(u) and can be any number in the interval [0, 1]. Thus, a fuzzy set A may be represented by Equation (8).
A = { ( u ,   μ A ( u ) ) | u X }
Fuzzy sets are expressed as linguistic variables, which are words or sentences in a natural or artificial language, but not numbers, with associated degrees of membership in the set [74,75]. According to relevant rules and regulations, construction industry standards and databases in China, such as the “Administrative Regulation on Safety Production of Construction Projects” (State Council of the People’s Republic of China, 2003. Administrative Regulation on Safety Production of Construction Projects [S].), “Evaluation Standard on Green Construction of Construction Project” (Ministry of Housing and Urban-Rural Development of the People’s Republic of China, 2014. Evaluation Standard on Green Construction of Construction Projects [S].), “Standard for Setting of Environmental Sanitation Facilities” (Ministry of Housing and Urban-Rural Development of the People’s Republic of China, 2014. Standard for Setting of Environmental Sanitation Facilities [S].), and the “Emission Standard of Environment Noise for Boundary of Construction Site” (Environmental Protection Department of the People’s Republic of China, 2012. Emission Standard of Environment Noise for Boundary of Construction Site [S].), the fuzzy set of evaluation standards (S) can be divided into “Excellent” (E), “Good” (G), “Pass” (P), or “Failed” (F). They can then be denoted as in Equation (9).
S = [ E x c e l l e n t   G o o d   P a s s   F a i l e d ] = [ E   G   P   F ]
The linguistic term set for the linguistic variable of qualitative attributes are the evaluation standards of “E”, “G”, “P”, and “F”, which are derived by expert assessors according to the attributes’ performance.
The membership function for qualitative attributes evaluated as “E”, “G”, “P”, and “F”, i.e., the green performance evaluation vector for the qualitative attributes, can be calculated by Equation (10).
μ A ( u ) = [ f 1 / N E f 2 / N G f 3 / N P f 4 / N F ]
where N represents the total number of experts assessing the attribute, and f1, f2, f3, and f4 are the numbers of experts who selected each evaluation standard of “E”, “G”, “P”, and “F”, respectively, and f1 + f2 + f3 + f4 = N.
Quantitative attributes were calculated using the equations defined in Section 3. According to the rules and regulations mentioned above, the four grades of evaluation standard are “E”, “G”, “P”, and “F”. For the quantitative attributes, the threshold values and the attributes belonging to each evaluation standard are expressed in Table 3
Table 3. Quantitative attributes converted to fuzzy evaluation standards “Excellent” (E), “Good” (G), “Pass” (P), or “Failed” (F).

4.2. Derivation of Green Performance Evaluation Using AHP

Since the evaluation of the green construction layout is conducted based on a subjective, practice-based perspective, the weight of the attributes and categories cannot be calculated objectively. Therefore, AHP was used to determine the weight coefficient. The procedure for using AHP to calculate the weights for the criteria contained three steps: First, the development of a pair-wise comparison matrix; second, the calculation of the weight of each category affecting the decision-target to derive a weight vector; and third, a consistency check [76,77,78].
For each attribute Aik in the evaluation system, the green performance evaluation vector EAik can be expressed by Equation (11). EAi is shown in Equation (12), which is the green performance evaluation matrix affecting the categories in the hierarchy, which also consists of the green performance evaluation vector of each attribute under the category.
E A i k = μ A ( A i k ) ,   i = 1 ,   2 ,   3 ,   ,   n ,   k = 1 ,   2 ,   ,   m
E A i = [ E A i 1 ,   E A i 2 ,   ,   E A i m ] T = [ u A ( A i 1 ) ,   u A ( A i 2 ) ,   ,   u A ( A i m ) ] T
where n is the number of categories, and m is the number of attributes under each category in the hierarchy. Thus, combined with the green performance evaluation matrix of attributes in the hierarchy EAi and the weights vector Wai for attributes, the green performance evaluation vector Ci of the categories in the hierarchy can be calculated using Equation (13). Accordingly, the green performance evaluation matrix C affecting the target hierarchy can be denoted as Equation (14).
C i = W a i E A i ,   i = 1 ,   2 ,   ,   n
C = [ C 1 ,   C 2 ,   ,   C n ] T
The green performance evaluation vector T of the target hierarchy is solved by Equation (15):
T = W c   C = [ u 1 E   u 2 G   u 3 P   u 4 F ]
where Wc is the weights vector for the categories in the hierarchy.
According to the expert assessment and the relevant rules and regulations on green building, the outcome of the green performance evaluation is the level which has the maximum number, shown in Equation (16).
T h e   g r e e n   p e r f o r m a n c e   l e v e l   S + = { S x | f ( S x ) = m a x x M   u x }
where [S1 S2 S3 S4] = [E G P F], and M = 1, 2, 3, 4.

5. System Verification of the Construction Site Layout Planning

5.1. Description of Site Layout Plans

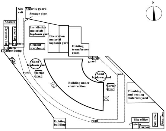
In order to verify the proposed evaluation system, the site layout of a commercial building project was selected as a case study. This commercial building is located in Dalian City, China. With a total 12 floors, it has a building area of about 40,000 m2, and the temporary construction site area is 2586 m2. The construction cost was about 90 million Chinese yuan. The building floor plan is similar to the shape of a fan, and the site is adjacent to an expressway to the west and an urban green area to the southwest. The site layout of this project was developed in two phases, superstructure construction (Stage 1), and fit-out, electrical and mechanical installations, and external works (Stage 2), as shown in Figure 2 and Figure 3, respectively.
Figure 2. The construction layout plan for Stage 1.
Figure 3. The construction layout plan for Stage 2.

5.2. Results of the Case Study

In order to assess the green performance evaluation matrix, 10 experts were invited to conduct the evaluation. Among them, six experienced engineers were selected randomly from the engineer expert database; their wide experience enabled them to evaluate the project fairly based on technical expertise; two were staff from a local government agency who brought knowledge of relevant government regulations; and the remaining two were project managers from the client side, who knew the project specifications and objectives well. Inevitably, all experts had some subjective opinions. This evaluation team tried to cover all relevant aspects of the project and maximize the possibility that the project was objectively evaluated.
The values of the quantitative attributes and their corresponding green performance evaluation vectors are shown in Table 4. The performance evaluation vectors of the qualitative attributes are shown in Table 5. For the qualitative attributes, the evaluation vectors were calculated according to the experts’ opinions. Using A15 (effectiveness of dust control) as example, out of the 10 experts, 6 of them rated it as “Excellent”, four of them rated it as “Good”, and none rated it as “Pass” or “Fail”. Therefore 6/10 (0.6), 4/10 (0.4), 0/10 (0), and 0/10 (0) formed the evaluation vector [0.6 0.4 0 0].
Table 4. Rating scale of the quantitative attributes.
Table 5. Rating scale of the qualitative attributes.
Thus, the green performance evaluation matrix EA1 under categories Ci (i = 1, 2, …, 6) with the pre-determined quantitative and qualitative attributes was obtained by Equation (17).
E G P F E A 1 = A 11 A 12 A 13 A 14 A 15   [ 0 1 0 0 0 0 0 1 0 0 0 1 0 0 0 1 0.6 0.4 0 0 ]
The remainder of the green performance evaluation matrix EAi (i = 2, …, 6) was obtained in the same way. In the meantime, the AHP method was used to calculate the weights for categories and attributes. From the scores given by the experts, the weights were acquired through developing a “judgment matrix” for the categories and attributes. The results are shown in Table 6.
Table 6. The weights for categories and attributes in the case study.
With the weights and green performance evaluation matrix for attributes, the green performance evaluation matrix for hierarchy categories C was constructed using the following Equation (18).
E G P F C = [ C 1 C 2 C 3 C 4 C 5 C 6 ] = [ 0.216 0.294 0 0.48 0.599 0.354 0.047 0 0.43 0.57 0 0 0.63 0.23 0.108 0.032 0.136 0.106 0.635 0.123 0.429 0.45 0.105 0.016 ]
The overall green performance evaluation vector T to the target level is shown in Equation (19).
T = W c *   C = [ 0.366 E   0.322 G   0.086 P   0.221 F ]
Therefore, according to the principle of maximum membership degree (one of the basic principles of fuzzy mathematics), the overall green performance level for this construction site layout was 0.366, and its evaluation level in the case was “Excellent” based on Equation (16).

5.3. Case Discussion

Through the above calculations and analysis, the grade for the green construction site layout for this project was classified as “Excellent”. However, the score of the “Excellent” grade was not much higher than that of the other grades; thus, there is still much room to improve the caliber of this green construction site. The evaluation standard of green performance category hierarchy is shown in Figure 4.
Figure 4. The evaluation standard of green performance for the hierarchy categories. Note: C1: energy conservation and environmental protection, C2: construction efficiency, C3: economic intensity, C4: space intensive, C5: people-oriented, and C6: total process control.
Through the above calculation, the performance of each category was evaluated and analyzed as follows. In terms of the categories that received “Excellent”, C2 (construction efficiency) was higher than any other grades, which means the project performed well in terms of improving energy efficiency. Regarding C4 (space intensity), there are two main factors explaining this performance. First, some of the temporary facilities, such as the materials laydown area and rebar processing shed, were arranged compactly to support smooth site processes. As a result, the average utilization ratio of the site was calculated to be 94% (see Table 4). Second, the construction site had the potential to be expanded because there was still available site space around the building in Stage 2 (see Figure 3). For C6 (total process control), the arrangement of resources and temporary facilities ensured effective connection between construction activities. For example, switching between different equipment on site was efficient on account of the adjacent locations of the rebar bending yard and rebar processing shed on the site. Meanwhile, the construction layout plan was flexible and could be adjusted with the construction schedule.
It is also worth mentioning that the cost of temporary facilities can be reduced through the effective utilization of original site resources. The result of A32 (cost saving of temporary facilities) was “Excellent”. However, the materials laydown yards and the cement warehouse were remote from the two material hoists in Stage 2 (see Figure 4), which was inefficient due to the high transportation frequency between these temporary facilities. Thus, total transportation cost saving was only 3.28%. Moreover, the attribute weight of A33 (total transportation cost saving) was much higher than the other attributes, which led to a decrease in the green performance evaluation grade of C3 (economic intensive degree) to “Good”. Better control is needed over the total transportation cost.
For the construction site layout in Stage 1 (see Figure 2), it was observed that the construction area and living areas (such as the labor hut, carpentry hut, site office, and shower) were on both sides of the temporary road. The attribute to measure the separation between the living area and the construction area received a low score due to the close distance between them. According to Table 4, the evaluation result for attribute A51 (noise emissions) was 0.68, which reached only a “Pass” grade. Attribute A53 (employee satisfaction) was also low since there were no available site spaces for employees in leisure time. Moreover, owing to the distance between the living area and site offices, the case study site was not convenient for workers to communicate with site managers. Thus, the green performance grade of C5 (people-oriented) was rated as a "Pass", indicating that more attention should be paid to improve the site workers’ living environment and reduce site noise levels.
Notably, sewage disposal and solid waste collection measures, such as oil separation tanks, sedimentation tanks, sewage wells, and refuse dumps were quite limited during the process of construction in Figure 2 and Figure 3. This led to a “Fail” grade for attribute A13 (effectiveness of sewage disposal and solid waste collection). Furthermore, it is well known that a great quantity of dust is produced by construction activities. Dust generated at the case study site could not be effectively controlled due to lack of water spraying facilities. In addition, greening measures such as planting trees and using equipment to reduce emissions were not effectively installed on the construction site. Moreover, resource-saving facilities were not used for the construction work, so the evaluation results of both A12 (utilization ratio of resource saving facilities) and A14 (green coverage ratio) were 0. Based on the analysis of the construction site layout plan, the green performance grade of C1 (energy conservation and environmental protection) was equivalent to "Fail". Thus, in order to improve the green performance of the construction project, improvement to the number and location of temporary facilities to the construction site is required.

6. Conclusions

Construction site layout plays an important role in improving energy efficiency during the construction phase. To explore sustainable development potential in construction site layouts, this study proposed a green performance evaluation system with six categories, including energy conservation and environmental protection, construction efficiency, economic intensity, space intensity, people-oriented principles, and total process control. There were also 23 attributes. The evaluation standards in this system were identified in terms of regulations, codes, and standards related to construction site layouts in China. To include both qualitative and quantitative attributes, an evaluation rule based on the membership function of a “fuzzy” set was applied to determine green evaluation vectors. The vectors were then combined with weights established by the analytic hierarchy process, and the overall green performance grade of the construction site layout plan was derived. The construction site layout planning of an existing commercial building was used to verify the applicability and feasibility of the proposed evaluation model. The results showed the performance level of each category in the selected case study and offer insights that site managers could use to enhance sustainability from the current evaluation outcomes. For example, the categories receiving “Excellent” could maintain their current status and be a prototype for other similar construction sites, while the categories that received a “Fail” need much more attention in order to improve their current performance.
This study enriches the application of sustainable development in construction by introducing a new concept into construction site layout planning and developing a green performance evaluation system to implement sustainability in the design and planning stage. The findings of this study offer valuable insights for construction managers at the project level, and for sustainability practitioners for planning and associated decisions during site mobilization and before construction operations begin. In particular, the system applied to the case study is expected to assist construction site managers to develop an efficient and sustainable site layout plan.
The limitations of this research mainly lay with the evaluation of the qualitative items. There were many more qualitative than quantitative items and as the evaluation of qualitative items was carried out by invited experts, the standard could be subjective and vary according to each individual. This will have reduced the accuracy and objectiveness of the final evaluation results. Future research could focus on developing a more objective approach to evaluating the qualitative items. This study integrated the attributes presented by previous researchers, although as the research in this area further develops in different contexts, more attributes may be identified, resulting in a different series of categories. It is also recommended that an international rating system, similar to LEED, be developed to evaluate green performance levels of construction site layouts. Future studies also need to specifically measure and identify the correlation of energy efficiency and consumption and site layout plans during the construction phase. Various case studies could be examined to identify factors in a wider range of projects such as roads, tunneling, and hospital construction, which would probably lead to a more comprehensive evaluation system being established.

Author Contributions

Literature review, conceptualization, methodology, supervision, writing original draft, editing and review, C.C.W. and S.M.E.S.; collecting data, data analysis, preparing table and figures, M.W.; investigation, data analysis, review and editing, J.S.; investigation, project administration, funding acquisition, X.N.

Funding

This work was supported by the National Natural Science Foundation of China (grant number 71501029).

Conflicts of Interest

The authors declare no conflicts of interest.

References

  1. Cong, X.; Mu, H.; Li, H.; Liu, C. Analysis on CO2 Emissions of Construction Industry in China Based on Life Cycle Assessment. In Proceedings of the 8th International Symposium on Heating, Ventilation and Air Conditioning; Springer: Berlin/Heidelberg, Germany, 2014. [Google Scholar]
  2. Bakar, N.N.A.; Hassan, M.Y.; Abdullah, H.; Rahman, H.A.; Abdullah, M.P.; Hussin, F.; Bandi, M. Energy efficiency index as an indicator for measuring building energy performance: A review. Renew. Sustain. Energy Rev. 2015, 44, 1–11. [Google Scholar] [CrossRef]
  3. Horta, I.M.; Camanho, A.S.; Dias, T.G. Residential building resource consumption: A comparison of Portuguese municipalities’ performance. Cities 2016, 50, 54–61. [Google Scholar] [CrossRef]
  4. Wang, C.C.; Tan, X. Estimating Carbon Footprint in the Construction Process of A Green Educational Building. In Proceedings of the 2012 International Conference on Construction and Real Estate Management; China Architecture and Building Press: Kansas City, MO, USA, 2012. [Google Scholar]
  5. Heravi, G.; Nafisi, T.; Mousavi, R. Evaluation of energy consumption during production and construction of concrete and steel frames of residential buildings. Energy Build. 2016, 130, 244–252. [Google Scholar] [CrossRef]
  6. Singh, R.; Lazarus, I.J. Energy-Efficient Building Construction and Embodied Energy. In Sustainability through Energy-Efficient Buildings; CRC Press: Boca Raton, FL, USA, 2018; pp. 89–107. [Google Scholar]
  7. Macias, J.; Iturburu, L.; Rodriguez, C.; Agdas, D.; Boero, A.; Soriano, G. Embodied and operational energy assessment of different construction methods employed on social interest dwellings in Ecuador. Energy Build. 2017, 151, 107–120. [Google Scholar] [CrossRef]
  8. Chang, Y.; Ries, R.J.; Lei, S. The embodied energy and emissions of a high-rise education building: A quantification using process-based hybrid life cycle inventory model. Energy Build. 2012, 55, 790–798. [Google Scholar] [CrossRef]
  9. Wu, J.; Lv, J.-Y.; Ye, Z.-K.; Miao, R. Optimization Design of Facilities Layout in a Certain Machining Shop. DEStech Trans. Comput. Sci. Eng. 2017. [Google Scholar] [CrossRef]
  10. Ning, X.; Lam, K.; Lam, M.C.K. A decision-Making System for Construction Site Layout Planning. Autom. Constr. 2011, 20, 459–473. [Google Scholar] [CrossRef]
  11. Wang, L.; Bao, H. Construction Pollution and Green Construction Technology. Appl. Mech. Mater. 2013, 438, 1751–1754. [Google Scholar] [CrossRef]
  12. Huo, X.; Ann, T.; Wu, Z. An empirical study of the variables affecting site planning and design in green buildings. J. Clean. Prod. 2018, 175, 314–323. [Google Scholar] [CrossRef]
  13. Wu, Z.; Zhang, X.; Wu, M. Mitigating construction dust pollution: State of the art and the way forward. J. Clean. Prod. 2016, 112, 1658–1666. [Google Scholar] [CrossRef]
  14. Farmakis, P.M.; Chassiakos, A.P. Dynamic multi-objective layout planning of construction sites. Procedia Eng. 2017, 196, 674–681. [Google Scholar] [CrossRef]
  15. Huang, C.; Wong, C. Optimisation of site layout planning for multiple construction stages with safety considerations and requirements. Autom. Constr. 2015, 53, 58–68. [Google Scholar] [CrossRef]
  16. Abotaleb, I.; Nassar, K.; Hosny, O. Layout optimization of construction site facilities with dynamic freeform geometric representations. Autom. Constr. 2016, 66, 15–28. [Google Scholar] [CrossRef]
  17. Ning, X.; Lam, K.C. Cost–safety trade-off in unequal-area construction site layout planning. Autom. Constr. 2013, 32, 96–103. [Google Scholar] [CrossRef]
  18. Kibert, C.J. Sustainable Construction: Green Build. Design and Delivery, 3rd ed.; John Wiley & Sons: New York, NY, USA, 2012. [Google Scholar]
  19. Caiado, R.G.G.; de Freitas Dias, R.; Mattos, L.V.; Quelhas, O.L.G.; Leal Filho, W. Towards sustainable development through the perspective of eco-efficiency-A systematic literature review. J. Clean. Prod. 2017, 165, 890–904. [Google Scholar] [CrossRef]
  20. Henry, A.; Frascaria-Lacoste, N. Comparing green structures using life cycle assessment: A potential risk for urban biodiversity homogenization? International J. Life Cycle Assess. 2012, 17, 949–950. [Google Scholar] [CrossRef]
  21. Zuo, J.; Zhao, Z.-Y. Green building research–current status and future agenda: A review. Renew. Sustain. Energy Rev. 2014, 30, 271–281. [Google Scholar] [CrossRef]
  22. Darko, A.; Chan, A.P. Critical analysis of green building research trend in construction journals. Habitat Int. 2016, 57, 53–63. [Google Scholar] [CrossRef]
  23. Kumanayake, R.; Luo, H. A tool for assessing life cycle CO2 emissions of buildings in Sri Lanka. Build. Environ. 2018, 128, 272–286. [Google Scholar] [CrossRef]
  24. Kumanayake, R.; Luo, H. Life cycle carbon emission assessment of a multi-purpose university building: A case study of Sri Lanka. Front. Eng. Manag. 2018, 5, 381–393. [Google Scholar] [CrossRef]
  25. Sandanayake, M.; Zhang, G.; Setunge, S. Environmental emissions at foundation construction stage of buildings–Two case studies. Build. Environ. 2016, 95, 189–198. [Google Scholar] [CrossRef]
  26. Sepasgozar, S.M.; Li, H.; Shirowzhan, S.; Tam, V.W. Methods for monitoring construction off-road vehicle emissions: A critical review for identifying deficiencies and directions. Environ. Sci. Pollut. Res. 2019, 26, 15779–15794. [Google Scholar] [CrossRef] [PubMed]
  27. Avetisyan, H.; Skibniewski, M.; Mozaffarpour, M. Analyzing sustainability of construction equipment in the state of California. Front. Eng. Manag. 2017, 4, 138–145. [Google Scholar] [CrossRef][Green Version]
  28. Lu, M.; Diaz, N.; Hasan, M. Proposing a “lean and green” framework for equipment cost analysis in construction. Front. Eng. Manag. 2019, 6, 384–394. [Google Scholar] [CrossRef]
  29. You, W.; Xiao, X. Study on the Development Situation and Prospects for Green Construction. In Proceedings of the International Conference on Construction and Real Estate Management (ICCREM), Lulea, Sweden, 11–12 August 2015; pp. 272–281. [Google Scholar]
  30. Khan, M.A.; Sepasgozar, S.; Wang, C. Evolution of Building Rating Tools: A next generation Rating Model. In Proceedings of the 42nd AUBEA Conference 2018: Educating Building Professionals for the future in the Globalised World, Singapore, 26–28 September 2018; pp. 285–293. [Google Scholar]
  31. Heralova, R.S. Life cycle costing as an important contribution to feasibility study in construction projects. Procedia Eng. 2017, 196, 565–570. [Google Scholar] [CrossRef]
  32. Fifield, L.-J.; Lomas, K.J.; Giridharan, R.; Allinson, D. Hospital wards and off-site modular construction: Summertime overheating and energy efficiency. Build. Environ. 2018, 141, 28–44. [Google Scholar] [CrossRef]
  33. Wang, W.; Zmeureanu, R.; Rivard, H. Applying multi-objective genetic algorithms in green building design optimization. Build. Environ. 2005, 40, 1512–1525. [Google Scholar] [CrossRef]
  34. Wang, W.; Rivard, H.; Zmeureanu, R. Floor shape optimization for green building design. Adv. Eng. Inform. 2006, 20, 363–378. [Google Scholar] [CrossRef]
  35. Robichaud, L.B.; Anantatmula, V.S. Greening project management practices for sustainable construction. J. Manag. Eng. 2010, 27, 48–57. [Google Scholar] [CrossRef]
  36. Assad, M.; Hosny, O.; Elhakeem, A.; El Haggar, S. Green building design in Egypt from cost and energy perspectives. Archit. Eng. Des. Manag. 2015, 11, 21–40. [Google Scholar] [CrossRef]
  37. Huo, X.; Ann, T.; Wu, Z. A comparative analysis of site planning and design among green building rating tools. J. Clean. Prod. 2017, 147, 352–359. [Google Scholar] [CrossRef]
  38. Montoya, M. Green Build. Fundamentals: A Practical Guide to Understanding and Applying Fundamental Sustainable Constr. Practices and the LEED Green Build. Rating System; Prentice Hall: New Jersey, NY, USA, 2010. [Google Scholar]
  39. Khan, M.A.; Sepasgozar, S.; Wang, C. Comparative evaluation of building rating tools in different contexts: Cases of LEED and SEED. In Proceedings of the 42nd AUBEA Conference 2018, Curtin University, Singapore, 26–28 September 2018. [Google Scholar]
  40. Guggemos, A.A.; Horvath, A. Decision-support tool for assessing the environmental effects of constructing commercial buildings. J. Archit. Eng. 2006, 12, 187–195. [Google Scholar] [CrossRef]
  41. Andayesh, M.; Sadeghpour, F. Dynamic site layout planning through minimization of total potential energy. Autom. Constr. 2013, 31, 92–102. [Google Scholar] [CrossRef]
  42. Xu, J.; Li, Z. Multi-objective dynamic construction site layout planning in fuzzy random environment. Autom. Constr. 2012, 27, 155–169. [Google Scholar] [CrossRef]
  43. Yahya, M.; Saka, M. Construction site layout planning using multi-objective artificial bee colony algorithm with Levy flights. Autom. Constr. 2014, 38, 14–29. [Google Scholar] [CrossRef]
  44. Li, Z.; Shen, W.; Xu, J.; Lev, B. Bilevel and multi-objective dynamic construction site layout and security planning. Autom. Constr. 2015, 57, 1–16. [Google Scholar] [CrossRef]
  45. Papadaki, I.N.; Chassiakos, A.P. Multi-objective construction site layout planning using genetic algorithms. Procedia Eng. 2016, 164, 20–27. [Google Scholar] [CrossRef]
  46. Carmichael, D.G.; Mustaffa, N.K. Emissions and production penalties/bonuses associated with non-standard earthmoving loading policies. Constr. Innov. 2018, 18. [Google Scholar] [CrossRef]
  47. Sepasgozar, S.M.; Blair, J. Measuring non-road diesel emissions in the construction industry: A synopsis of the literature. Int. J. Constr. Manag. 2019, 1–16. [Google Scholar] [CrossRef]
  48. Lam, K.C.; Ning, X.; Ng, T. The application of the ant colony optimization algorithm to the construction site layout planning problem. Constr. Manag. Econ. 2007, 25, 359–374. [Google Scholar] [CrossRef]
  49. Sanad, H.M.; Ammar, M.A.; Ibrahim, M.E. Optimal construction site layout considering safety and environmental aspects. J. Constr. Eng. Manag. 2008, 134, 536–544. [Google Scholar] [CrossRef]
  50. Hammad, A.; Akbarnezhad, A.; Rey, D. A multi-objective mixed integer nonlinear programming model for construction site layout planning to minimise noise pollution and transport costs. Autom. Constr. 2016, 61, 73–85. [Google Scholar] [CrossRef]
  51. Huo, X.; Ann, T.W.; Darko, A.; Wu, Z. Critical factors in site planning and design of green buildings: A case of China. J. Clean. Prod. 2019, 222, 685–694. [Google Scholar] [CrossRef]
  52. Abduh, M.; Ervianto, W.I.; Chomistriana, D.; Rahardjo, A. Green construction assessment model for improving sustainable practices of the Indonesian Government construction projects. In Proceedings of the 22nd Conference of the International Group for Lean Construction, Oslo, Norway, 25–27 June 2014. [Google Scholar]
  53. Yan, J. The Evaluation Model of the Pile Foundation Green Construction Scheme Based on the Improved Value Engineering Theory. In Proceedings of the 2015 8th IEEE International Conference on Intelligent Computation Technology and Automation (ICICTA), Nanchang, China, 14–15 June 2015. [Google Scholar]
  54. Sepasgozar, S.M.E.; Loosemore, M. The role of customers and vendors in modern construction equipment technology diffusion. Eng. Constr. Archit. Manag. 2017, 24, 1203–1221. [Google Scholar] [CrossRef]
  55. Li, Y.; Oberheitmann, A. Challenges of rapid economic growth in China: Reconciling sustainable energy use, environmental stewardship and social development. Energy Policy 2009, 37, 1412–1422. [Google Scholar] [CrossRef]
  56. Ministry of Construction of the People’s Republic of China. Green Constr. Guideline [S]; 2007. Available online: http://www.mohurd.gov.cn/wjfb/200709/t20070914_158260.html (accessed on 4 December 2019).
  57. Lu, J.; Cai, X. Projects Evaluation of Mining Area’s Industry Square Layout Design Based on Grey Incidence Analysis Method. Coal Technol. 2011, 1, 71–73. [Google Scholar]
  58. Xu, J.; Song, X. Suggestions for temporary construction facilities’ layout problems in large-scale construction projects. J. Constr. Eng. Manag. 2014, 140, 06014001. [Google Scholar] [CrossRef]
  59. Zhang, X.; Wu, Y.; Shen, L. Embedding “green” in project-based organizations: The way ahead in the construction industry? J. Clean. Prod. 2015, 107, 420–427. [Google Scholar] [CrossRef]
  60. Tam, C.; Tam, V.W.; Tsui, W. Green construction assessment for environmental management in the construction industry of Hong Kong. Int. J. Proj. Manag. 2004, 22, 563–571. [Google Scholar] [CrossRef]
  61. Su, X.; rahman Andoh, A.; Cai, H.; Pan, J.; Kandil, A.; Said, H.M. GIS-based dynamic construction site material layout evaluation for building renovation projects. Autom. Constr. 2012, 27, 40–49. [Google Scholar] [CrossRef]
  62. Sjøbakk, B.; Skjelstad, L. Proposing a standard template for construction site layout: A case study of a Norwegian contractor. In Proceedings of the IFIP International Conference on Advances in Production Management Systems, Tokyo, Japan, 7–9 September 2015; Springer: Cham, Switzerland, 2015. [Google Scholar]
  63. Tompkins, J.A. Facilities Planning, 4th ed.; Wiley: New Delhi, India, 2013. [Google Scholar]
  64. Dunker, T.; Radons, G.; Westkämper, E. Combining evolutionary computation and dynamic programming for solving a dynamic facility layout problem. Eur. J. Oper. Res. 2005, 165, 55–69. [Google Scholar] [CrossRef]
  65. Muther, R. Systematic Layout Planning; CBI publishing company: Boston, MA, USA, 1973. [Google Scholar]
  66. Li, Q.; Liu, H. Workshop Facility Layout Optimization Design Based on SLP and Flexsim. Int. J. Simul. Syst. Sci. Technol. 2016, 17, 8.1–8.7. [Google Scholar]
  67. Wu, L.; Feng, Y.; Li, G. The evaluation of layout scheme in the construction sites based on the Analytic Hierarchy Process (AHP). J. Zhejiang Univ. Technol. 2010, 38, 111–118. [Google Scholar]
  68. Chakraborty, S.; Banik, B. An analytic hierarchy process (AHP) based approach for optimal facility layout design. J. Inst. Eng. (India) Part PR Prod. Eng. Div. 2007, 88, 12–18. [Google Scholar]
  69. Paul, W.L.; Taylor, P.A. A comparison of occupant comfort and satisfaction between a green building and a conventional building. Build. Environ. 2008, 43, 1858–1870. [Google Scholar] [CrossRef]
  70. Cambron, K.E.; Evans, G.W. Layout design using the analytic hierarchy process. Comput. Ind. Eng. 1991, 20, 211–229. [Google Scholar] [CrossRef]
  71. Li, X.; Song, Z.; Wang, T.; Zheng, Y.; Ning, X. Health impacts of construction noise on workers: A quantitative assessment model based on exposure measurement. J. Clean. Prod. 2016, 135, 721–731. [Google Scholar] [CrossRef]
  72. Kwon, N.; Park, M.; Lee, H.S.; Ahn, J.; Shin, M. Construction noise management using active noise control techniques. J. Constr. Eng. Manag. 2016, 142, 04016014. [Google Scholar] [CrossRef]
  73. Elbeltagi, E.; Hegazy, T.; Eldosouky, A. Dynamic layout of construction temporary facilities considering safety. J. Constr. Eng. Manag. 2004, 130, 534–541. [Google Scholar] [CrossRef]
  74. Zadeh, L.A. The concept of a linguistic variable and its application to approximate reasoning. Inf. Sci. 1975, 8, 199–249. [Google Scholar] [CrossRef]
  75. Liao, H.; Xu, Z.; Zeng, X. Distance and similarity measures for hesitant fuzzy linguistic term sets and their application in multi-criteria decision making. Inf. Sci. 2014, 271, 125–142. [Google Scholar] [CrossRef]
  76. Thanki, S.; Govindan, K.; Thakkar, J. An investigation on lean-green implementation practices in Indian SMEs using analytical hierarchy process (AHP) approach. J. Clean. Prod. 2016, 135, 284–298. [Google Scholar] [CrossRef]
  77. Saaty, R.W. The analytic hierarchy process-what it is and how it is used. Math. Model. 1987, 9, 161–176. [Google Scholar] [CrossRef]
  78. Saaty, T.L. The Analytic Hierarchy Process; McGraw-Hill: New York, NY, USA, 1980. [Google Scholar]

Article Metrics

Citations

Article Access Statistics

Multiple requests from the same IP address are counted as one view.