Experimental Investigation of Ventilation Performance of Different Air Distribution Systems in an Office Environment—Heating Mode
Abstract
1. Introduction
2. Theory and Mathematical Models
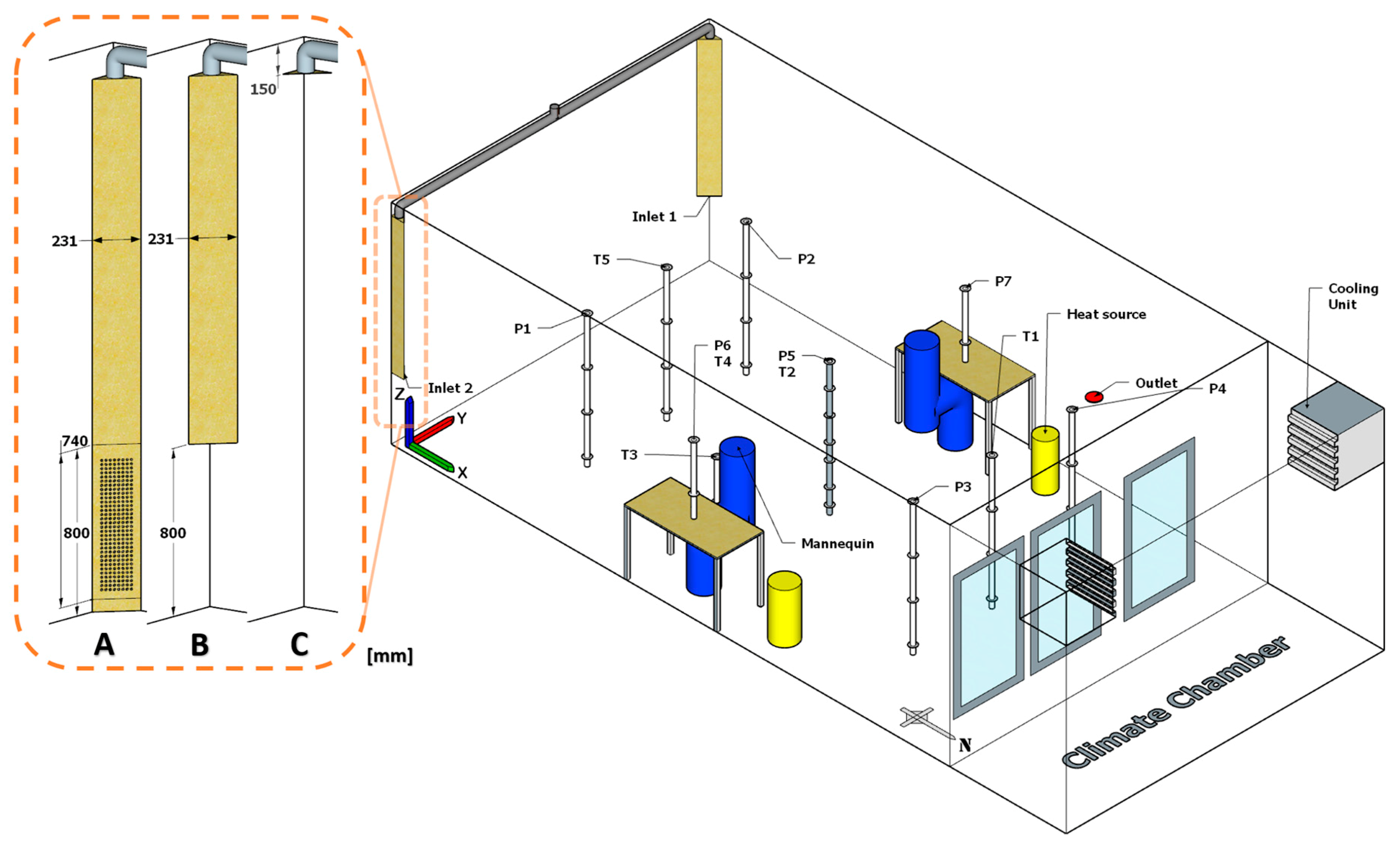
3. Experimental Set-Up
4. Results and Discussion
4.1. Flow Pattern and Thermal Conditions
4.2. Ventilation Effectiveness
5. Conclusions
- CIJV and HDV perform similar to a mixing ventilation in terms of ventilation effectiveness close to the workstations.
- CIJV performs slightly better that the other systems regarding local thermal comfort close to the workstations
Author Contributions
Funding
Acknowledgments
Conflicts of Interest
Nomenclature
| ACE | air change effectiveness [-] |
| ACEavg | average spatial air change effectiveness in a region [-] |
| ACEp | local air change effectiveness [-] |
| AEE | air exchange effectiveness [-] |
| Ari | inlet Archimedes number [-] |
| CIJV | corner impinging jet ventilation |
| CMV | corner mixing ventilation |
| DR | draught rate [%] |
| DRmax | maximum draught rate between 0.1 m and 1.7 m above floor level [%] |
| DV | displacement ventilation |
| HDV | hybrid displacement ventilation |
| IAQ | indoor air quality |
| IJV | impinging jet ventilation |
| MV | mixing ventilation |
| PD | percentage dissatisfied due to vertical air temperature difference [%] |
| arithmetic mean air temperature based on the values at height 0.1, 0.6 and 1.1 m [°C] | |
| Ti | mean supply air temperature [°C] |
| To | mean outlet air temperature [°C] |
| vertical air temperature gradient between 0.1 m and 1.1 m above floor level [°C] | |
| maximum air temperature gradient between 0.1 m and 1.7 m above floor level [°C] | |
| uin | nominal inlet air velocity [m/s] |
| maximum air velocity between 0.1 m and 1.7 m above floor level [m/s] | |
| W | power [kg⋅m2⋅s−3] |
| temperature effectiveness [–] |
References
- Etheridge, D.W.; Sandberg, M. Building Ventilation: Theory and Measurement; John Wiley & Sons: Chichester, UK, 1996; ISBN 978-0-471-96087-4. [Google Scholar]
- Awbi, H.B. Ventilation of Buildings; Routledge: New York, NY, USA, 2002; ISBN 1135817413. [Google Scholar]
- Larsson, U.; Moshfegh, B. Comparison of ventilation performance of three different air supply devices: A measurement study. Int. J. Vent. 2017, 16, 244–254. [Google Scholar] [CrossRef]
- Cho, Y.; Awbi, H.; Karimipanah, T. A comparison between four different ventilation systems. In Proceedings of the 8th International Conference on Air Distribution in Rooms (Roomvent 2002), Copenhagen, Denmark, 8–11 September 2002; pp. 181–184. [Google Scholar]
- Amai, H.; Novoselac, A. Experimental study on air change effectiveness in mixing ventilation. Build. Environ. 2016, 109, 101–111. [Google Scholar] [CrossRef]
- Serra, N.; Semiao, V. Comparing displacement ventilation and mixing ventilation as HVAC strategies through CFD. Eng. Comput. 2009, 26, 950–971. [Google Scholar] [CrossRef]
- He, G.; Yang, X.; Srebric, J. Removal of contaminants released from room surfaces by displacement and mixing ventilation: Modeling and validation. Indoor Air 2005, 15, 367–380. [Google Scholar] [CrossRef] [PubMed]
- Lin, Z.; Chow, T.; Fong, K.; Tsang, C.; Wang, Q. Comparison of performances of displacement and mixing ventilations. Part II: Indoor air quality. Int. J. Refrig. 2005, 28, 288–305. [Google Scholar] [CrossRef]
- Awbi, H.B. Ventilation Systems: Design and Performance; Routledge: New York, NY, USA, 2007; ISBN 1135815313. [Google Scholar]
- Cao, G.; Awbi, H.; Yao, R.; Fan, Y.; Sirén, K.; Kosonen, R.; Zhang, J.J. A review of the performance of different ventilation and airflow distribution systems in buildings. Build. Environ. 2014, 73, 171–186. [Google Scholar] [CrossRef]
- Chen, H.; Janbakhsh, S.; Larsson, U.; Moshfegh, B. Numerical investigation of ventilation performance of different air supply devices in an office environment. Build. Environ. 2015, 90, 37–50. [Google Scholar] [CrossRef]
- Awbi, H.B. Ventilation for good indoor air quality and energy efficiency. Energy Procedia 2017, 112, 277–286. [Google Scholar] [CrossRef]
- Chen, H.; Moshfegh, B.; Cehlin, M. Numerical investigation of the flow behavior of an isothermal impinging jet in a room. Build. Environ. 2012, 49, 154–166. [Google Scholar] [CrossRef]
- Chen, H.; Moshfegh, B.; Cehlin, M. Investigation on the flow and thermal behavior of impinging jet ventilation systems in an office with different heat loads. Build. Environ. 2013, 59, 127–144. [Google Scholar] [CrossRef]
- Kobayashi, T.; Sugita, K.; Umemiya, N.; Kishimoto, T.; Sandberg, M. Numerical investigation and accuracy verification of indoor environment for an impinging jet ventilated room using computational fluid dynamics. Build. Environ. 2017, 115, 251–268. [Google Scholar] [CrossRef]
- Karimipanah, T.; Awbi, H. Theoretical and experimental investigation of impinging jet ventilation and comparison with wall displacement ventilation. Build. Environ. 2002, 37, 1329–1342. [Google Scholar] [CrossRef]
- Ye, X.; Zhu, H.; Kang, Y.; Zhong, K. Heating energy consumption of impinging jet ventilation and mixing ventilation in large-height spaces: A comparison study. Energy Build. 2016, 130, 697–708. [Google Scholar] [CrossRef]
- Ye, X.; Kang, Y.; Yang, X.; Zhong, K. Temperature distribution and energy consumption in impinging jet and mixing ventilation heating rooms with intermittent cold outside air invasion. Energy Build. 2018, 158, 1510–1522. [Google Scholar] [CrossRef]
- Ameen, A.; Cehlin, M.; Larsson, U.; Karimipanah, T. Experimental investigation of ventilation performance of different air distribution systems in an office environment—Cooling mode. Energies 2019, 12, 1354. [Google Scholar] [CrossRef]
- Mandin, C.; Trantallidi, M.; Cattaneo, A.; Canha, N.; Mihucz, V.G.; Szigeti, T.; Mabilia, R.; Perreca, E.; Spinazzè, A.; Fossati, S. Assessment of indoor air quality in office buildings across Europe–The OFFICAIR study. Sci. Total Environ. 2017, 579, 169–178. [Google Scholar] [CrossRef]
- Baldi, S.; Michailidis, I.; Ravanis, C.; Kosmatopoulos, E.B. Model-based and model-free “plug-and-play” building energy efficient control. Appl. Energy 2015, 154, 829–841. [Google Scholar] [CrossRef]
- Michailidis, I.T.; Baldi, S.; Pichler, M.F.; Kosmatopoulos, E.B.; Santiago, J.R. Proactive control for solar energy exploitation: A german high-inertia building case study. Appl. Energy 2015, 155, 409–420. [Google Scholar] [CrossRef]
- Kong, X.; Xi, C.; Li, H.; Lin, Z. A comparative experimental study on the performance of mixing ventilation and stratum ventilation for space heating. Build. Environ. 2019. [Google Scholar] [CrossRef]
- Rabani, M.; Madessa, H.B.; Nord, N.; Schild, P.; Mysen, M. Performance assessment of all-air heating in an office cubicle equipped with an active supply diffuser in a cold climate. Build. Environ. 2019. [Google Scholar] [CrossRef]
- ISO 7730—Ergonomics of the Thermal Environment-Analytical Determination and Interpretation of Thermal Comfort Using Calculation of the PMV and PPD Indices and Local Thermal Comfort Criteria; ISO: Geneva, Switzerland, 2005.
- ASHRAE Standard 129-1997 (RA 2002)—Measuring Air Change Effectiveness; ASHRAE: Atlanta, GA, USA, 2002.
- Mundt, M.; Mathisen, H.M.; Moser, M.; Nielsen, P.V. Ventilation Effectiveness; REHVA: Brussels, Belgium, 2004; ISBN 978-29-6004-680-9. [Google Scholar]
- Breum, N. Ventilation efficiency in an occupied office with displacement ventilation—A laboratory study. Environ. Int. 1992, 18, 353–361. [Google Scholar] [CrossRef]
- Cehlin, M.; Karimipanah, T.; Larsson, U.; Ameen, A. Comparing thermal comfort and air quality performance of two active chilled beam systems in an open-plan office. J. Build. Eng. 2019, 22, 56–65. [Google Scholar] [CrossRef]
- Sandberg, M.; Blomqvist, C. A quantitative estimate of the accuracy of tracer gas methods for the determination of the ventilation flow rate in buildings. Build. Environ. 1985, 20, 139–150. [Google Scholar] [CrossRef]
- Krajčík, M.; Simone, A.; Olesen, B.W. Air distribution and ventilation effectiveness in an occupied room heated by warm air. Energy Build. 2012, 55, 94–101. [Google Scholar] [CrossRef]
- Both, B.; Szánthó, Z. Objective investigation of discomfort due to draught in a tangential air distribution system: Influence of air diffuser’s offset ratio. Indoor Built Environ. 2018, 27, 1105–1118. [Google Scholar] [CrossRef]
- Cehlin, M. Visualization of Air Flow, Temperature and Concentration Indoors: Whole-Field Measuring Methods and CFD; KTH: Stockholm, Sweden, 2006. [Google Scholar]
- Ge, H.; Fazio, P. Experimental investigation of cold draft induced by two different types of glazing panels in metal curtain walls. Build. Environ. 2004, 39, 115–125. [Google Scholar] [CrossRef]
- Manz, H.; Frank, T. Analysis of thermal comfort near cold vertical surfaces by means of computational fluid dynamics. Indoor Built Environ. 2004, 13, 233–242. [Google Scholar] [CrossRef]
- Jurelionis, A.; Isevičius, E. CFD predictions of indoor air movement induced by cold window surfaces. J. Civ. Eng. Manag. 2008, 14, 29–38. [Google Scholar] [CrossRef]
- Heiselberg, P. Draught risk from cold vertical surfaces. Build. Environ. 1994, 29, 297–301. [Google Scholar] [CrossRef]








| Case | Ventilation System | Supply Flow Rate [L/s] | Occupant [W] | Equipment [W] | Inlet Temp. [°C] | uin [m/s] | Ari × 10−4 |
|---|---|---|---|---|---|---|---|
| C1-HDV | HDV | 2 × 15 | 2 × 100 | 2 × 75 | 25.2 | 0.50 | −317 |
| C1-CIJV | CIJV | 2 × 15 | 2 × 100 | 2 × 75 | 25.2 | 1.13 | −49 |
| C1-CMV | CMV | 2 × 15 | 2 × 100 | 2 × 75 | 25.1 | 2.98 | −5 |
| C2-HDV | HDV | 2 × 20 | 2 × 100 | 2 × 75 | 24.8 | 0.67 | −140 |
| C2-CIJV | CIJV | 2 × 20 | 2 × 100 | 2 × 75 | 24.8 | 1.51 | −19 |
| C2-CMV | CMV | 2 × 20 | 2 × 100 | 2 × 75 | 24.8 | 3.98 | −2 |
| Case | Internal H. Generation 1 [W] | Ventilation 2 [W] | External Wall 3 [W] |
|---|---|---|---|
| C1-HDV | 389 | 49.9 | −417.2 |
| C1-CIJV | 389 | 52.7 | −411.3 |
| C1-CMV | 389 | 54.2 | −426.7 |
| C2- HDV | 389 | 48.5 | −419.2 |
| C2-CIJV | 389 | 48.6 | −424.5 |
| C2-CMV | 389 | 58.6 | −411.3 |
| Case | Position | C1-HDV | C1-CIJV | C1-CMV | C2-HDV | C2-CIJV | C2-CMV |
|---|---|---|---|---|---|---|---|
| PD | P1 | 0.8% | 0.7% | 0.4% | 0.9% | 0.4% | 0.3% |
| P2 | 0.8% | 0.7% | 0.3% | 0.8% | 0.4% | 0.3% | |
| P3 | 1.2% | 1.3% | 1.2% | 1.2% | 1.4% | 1.3% | |
| P4 | 1.0% | 1.2% | 1.0% | 1.0% | 1.2% | 0.9% | |
| P5 | 0.8% | 0.8% | 0.6% | 0.8% | 0.7% | 0.6% |
| Case | Position | C1-HDV | C1-CIJV | C1-CMV | C2-HDV | C2-CIJV | C2-CMV |
|---|---|---|---|---|---|---|---|
| ACEp | T1 | 1.05 | 1.02 | 1.03 | 1.04 | 1.01 | 1.03 |
| T2 | 1.09 | 1.05 | 1.07 | 1.09 | 1.06 | 1.07 | |
| T3 1 | 1.05 | 1.06 | 1.01 | 1.02 | 0.98 | 1.02 | |
| T4 | 1.01 | 1.06 | 1.06 | 1.03 | 1.00 | 1.00 | |
| T5 | 1.15 | 1.14 | 1.13 | 1.19 | 1.12 | 1.08 | |
| ACEavg 2 | 1.07 | 1.07 | 1.06 | 1.07 | 1.03 | 1.04 | |
| AEE | 0.51 | 0.51 | 0.52 | 0.51 | 0.49 | 0.51 |
| Case | Position | C1-HDV | C1-CIJV | C1-CMV | C2-HDV | C2-CIJV | C2-CMV |
|---|---|---|---|---|---|---|---|
| 1 | P1 | 0.66 | 0.70 | 0.87 | 0.61 | 0.70 | 0.93 |
| P2 | 0.66 | 0.69 | 0.84 | 0.59 | 0.67 | 0.88 | |
| P3 | 0.53 | 0.53 | 0.56 | 0.46 | 0.44 | 0.52 | |
| P4 | 0.58 | 0.58 | 0.60 | 0.50 | 0.49 | 0.58 | |
| P5 | 0.69 | 0.69 | 0.67 | 0.61 | 0.58 | 0.63 | |
| 2 | P6 | 1.07 | 1.24 | 1.15 | 1.13 | 1.11 | 1.24 |
| P7 | 0.93 | 1.01 | 1.00 | 0.95 | 0.95 | 1.04 |
© 2019 by the authors. Licensee MDPI, Basel, Switzerland. This article is an open access article distributed under the terms and conditions of the Creative Commons Attribution (CC BY) license (http://creativecommons.org/licenses/by/4.0/).
Share and Cite
Ameen, A.; Cehlin, M.; Larsson, U.; Karimipanah, T. Experimental Investigation of Ventilation Performance of Different Air Distribution Systems in an Office Environment—Heating Mode. Energies 2019, 12, 1835. https://doi.org/10.3390/en12101835
Ameen A, Cehlin M, Larsson U, Karimipanah T. Experimental Investigation of Ventilation Performance of Different Air Distribution Systems in an Office Environment—Heating Mode. Energies. 2019; 12(10):1835. https://doi.org/10.3390/en12101835
Chicago/Turabian StyleAmeen, Arman, Mathias Cehlin, Ulf Larsson, and Taghi Karimipanah. 2019. "Experimental Investigation of Ventilation Performance of Different Air Distribution Systems in an Office Environment—Heating Mode" Energies 12, no. 10: 1835. https://doi.org/10.3390/en12101835
APA StyleAmeen, A., Cehlin, M., Larsson, U., & Karimipanah, T. (2019). Experimental Investigation of Ventilation Performance of Different Air Distribution Systems in an Office Environment—Heating Mode. Energies, 12(10), 1835. https://doi.org/10.3390/en12101835

