Abstract
The technical and economic features of a patented V-shape roof guide vane (VRGV) with a solar and wind power generation system mounted on an eco-roof system are presented in this paper. Moreover, this innovative VRGV was investigated on for the purpose of improving the performance of a vertical axis wind turbine (VAWT), which was installed on an eco-roof system to solve the low-efficiency power generation problem of the wind turbines under the condition of a low wind speed. This paper proposes a preliminary study for the performance of the VAWT with the VRGV on a building. This research used a mock-up building with a double slope roof, where a five straight-bladed VAWT was mounted and tested under two conditions, with and without the VRGV. From the comparative experiments, the self-starting performance and rotational speed of the VAWT mounted above a double slope roof with the VRGV have been significantly improved compared to the VAWT without the VRGV. Further, the power coefficient (Cp) of the VAWT can be augmented to about 71.2% increment due to the VRGV design. In addition, numerical simulations by computational fluid dynamics (CFD) were proposed to verify the augmented effect of the Cp of the VAWT under the influence of the VRGV in the experiment. Besides, economic estimation of the VRGV was conducted.
1. Introduction
The consumption of fossil fuels has become a major cause of environmental pollution in the world. Improvement in living standards has led to a significant growing demand for energy. This increase in energy has caused an increment in the demand for fossil fuels, which has been known as the main cause of global warming issues. In order to prevent global warming, many countries have reached a consensus on inhibiting carbon dioxide emissions [1,2]. One effective strategy is to use renewable energy that generates electricity without pollution. A relevant research report shows that renewable energy only contributes about 22.8% of global electricity, and the rest is obtained from fossil fuels and nuclear energy [3,4].
In the current renewable energy arena, the utilization of wind energy is increasing and becoming a major player in the renewable energy market throughout the world, thereby possessing a kind nature of low cost and carbon emissions in the power generation process [5,6,7]. Wind power generation has been greatly developed all over the world in the last two decades [8,9]. The Global Wind Energy council reported that more than 3% of global electricity supply comes from wind energy [10] and wind energy could generate more than 18% of the global electricity demand by 2050 [11,12]. Interestingly, wind energy utilization is one of the effective means to solve the greenhouse gas (GHG) emissions. Kabir et al. [13] proposed the evaluation of energy generation, GHG emissions and economic profit of the wind turbines based on the principle of comparative life cycle assessment (LCA). The GHG emission reduction, power production and economic benefits of a small-scale horizontal axis wind turbine were estimated according to the LCA method by Wang et al. [14].
Various wind turbines are applied to generate electricity around the world, from offshore wind farms to smaller scale residential electricity equipment [15]. However, the adoption of small and micro-wind power generator is the upcoming trend of the global wind energy industry due to the characteristics of small and micro-scale wind turbines (e.g., low environmental impact, low noise, low cost, flexible operation, easy installation, etc.). The small wind turbine industry has started to focus on the development of a smaller (<1.5 kW) building integrated turbine market, especially on the rooftop small-scale wind turbine in the urban environment [16]. Small-scale wind generation systems have been widely investigated as a part of a hybrid energy system for residential areas comparing to large-scale wind energy systems [17,18]. Li et al. conducted a review on the micro wind turbines research in the built environment domain which is comprised of configuration forms, key technical issues and the application prospect [19]. Ayhan and Sağlam used CFD to predict the potential of small wind turbines installed in a built environment for the full utilization of wind resources and the avoidance of turbulent areas [20]. A testing model was developed by Bianchini et al. for predicting the performance of a small wind power generation system with H-Darrieus rotor under a skewed flow [21]. A small wind energy portable turbine (SWEPT) designed by Kishore et al. achieved the target to operate at a wind speed below 5 m/s [22]. In addition to the application of a small wind turbine in the built environment, small wind turbine also can be used in other areas. Furthermore, Daniele Vitali developed an innovative wind-solar lighting system, in which a series of micro-scale wind turbines were adopted due to their low starting wind speed and its vertical geometry [23]. Moreover, Chong et al. presented an exhaust air energy recovery system, where two small-scale vertical axis wind turbines were installed above an exhaust outlet to harvest the discharged wind energy [24].
The research on small and medium-sized wind turbines applied in the building environment is mainly focused on horizontal axis wind turbines (HAWTs), but some recent studies have shown that vertical axis wind turbines (VAWTs) are actually more suitable for buildings in cities [25,26,27,28]. Some recent studies have shown that VAWT is increasingly recognized as the most promising solution for the problem of wind energy application in the urban building environment due to its features of low noise level and low sensitivity to wind turbulence [29]. However, VAWTs possess some advantages: omni-directionality without yaw control; better architectural aesthetics; more efficiency in turbulent conditions; and less operating noise. Moreover, the power generation and control equipment of a VAWT can be installed near the ground level, making VAWTs easier to operate and maintain than HAWTs [30]. Therefore the application of VAWTs in urban environments can fill the lack of HAWTs to a certain degree. Although the rotor of a VAWT has difficulty for its self-starting [31,32], recent research on self-starting performance of H-rotor VAWT has shown that an H-rotor VAWT has a good self-starting performance by applying a fixed guide vane [33] and some symmetrical airfoils [34].
Handling wind energy technologies on the roof plays an important role in the green building design. A recent study shows that buildings are able to provide the wind turbine with flow acceleration and higher placement to increase the power generation [20]. And it is generally believed that the shape of a building roof significantly affects the wind speed as the wind flows through a building [35]. A sloped roof has good performance in increasing wind speed, thus, a building with slope roof is more suitable for rooftop wind turbine to utilize wind energy in the areas with low wind speeds [36]. Recent studies on the application of wind energy (wind turbine) on a double slope have been proposed. Nightingale et al. proposed a wind energy conversion system with a double-layered slope roof structure that was mounted on a building including a plurality of HAWTs. The cover acting as a second slope roof structure was installed above the wind turbines. Both of the gabled slope roofs of the building and the cover structure constituted a cowling that was designed according to the aerodynamics to concentrate air flow through the wind turbines [37], as shown in Figure 1. Miller proposed a wind power generation system for capturing wind energy on a double slope roof that comprised of cylindrical impellers and a plurality of vanes being located near the edge of the radius of the cylindrical impellers. The system further included an inlet duct that directed the wind flow perpendicularly to the impeller and an outlet duct that directed the wind flow out [38], as shown in Figure 2. The obvious differences between the present eco roof with VRGV and Nightingale et al. as well as the Miller’s roof wind energy utilization system mentioned above are the adoption of an inverted cover waveguide and utilization of the hybrid wind, solar and rain.
Figure 1.
Wind energy conversion system for pitched roof. Reprint with permission [37]; 2012, United States Patent.
Figure 2.
Wind power generation system on double slope roof. Reprint with permission [38]; 2011, United States Patent Application Publication.
The amount of electricity generation by a wind turbine is strongly constrained by local wind conditions, the right installation position is critical to achieve economic viability [39]. Malaysia is located in the equatorial region, most areas in the Malaysian mainland experiences low wind speeds and unsteady turbulence throughout a whole year [40]. As a result, there are some difficulties in wind power generation, that is, the wind speed is relatively low and unstable. Many attempts to directly place wind turbines on top of a building have not led to expected higher power performance [41]. In order to solve this problem, there is a need to combine a special centralized structure with a building to improve the efficiency of wind energy usage. Takao et al.’s study showed that the geometry of a guide vane has a significant effect on the performance of a straight bladed VAWT, the result showed that the peak power coefficient of the VAWT with the guide vane was obviously higher than the one without a guide vane [42]. Chong et al. designed an effective power augmented guide vane (PAGV) around a vertical axis wind turbine which could significantly increase the power generation efficiency and the torque of the wind turbine [40]. A high-performance wind energy converter with a cylindrical shape was proposed by Müller et al., which has been demonstrated by a series of experiments and numerical simulations [40,43]. Similarly, the optimized performance of a hydrokinetic turbine with a wind diffuser was studied by Kirke through a series of experiments [44].
In this paper, a patented roof structure with VRGV to integrate VAWTs, solar photovoltaic (PV) panels, rainwater collection and utilization system, natural ventilation system, and skylights is introduced, refer to Figure 3. It can be built on a building with a double slope roof as a standard system to provide green energy and savings on artificial energy for the building, which has been cited by Asia Research News 2017 named “Taking Energy Efficiency Up to the Roof”. The overall schematic diagram of the VRGV integrated in a building is presented in Figure 4. The most notable highlight of this roof structure is a new V-shape roof guide vane that was designed for VAWTs to improve the self-start behavior and power generation performance especially in low wind speed areas.
Figure 3.
Artistic expression of an eco-roof system with V-shape roof guide vane (VRGV) for a building.
Figure 4.
Overall structure layout.
2. Concept Design of an Eco-Roof System with V-Shape Roof Guide Vane (VRGV)
The eco-roof system consists of a two-layered roof, where the top V-shape accessorial roof is designed as the VRGV to be installed above the ridge of the building without negative visual impact to solve the low wind speed and turbulence issues in urban area and the lower gabled double slope roof covers the entire building area. Table 1 lists the design parameters for this eco-roof system with the VRGV.
Table 1.
General parameters of the roof.
The design of this eco-roof system comprises both electricity production and recovery system. Electricity production system applies wind and solar energy to generate electricity for the building’s usage. A plurality of the vertical axis wind turbines are arranged in between the gable roof and the V-shape roof to harness wind energy where the wind turbines convert the kinetic energy from the wind to mechanical rotational energy, hence producing electrical energy by the generator. In addition, solar photovoltaic panels installed on the two layers of roof structures (V-shape accessorial roof and double slope roof) absorb daylight for the electrical power generation, as shown in Figure 4. Electricity recovery system is composed of rainwater collection and utilization system, daylight harvester and heat dissipation air vent. Rainwater collection and utilization system with water storage tanks and water spray pipes are designed to cool and clean the PV panel and household usage. Two skylights are installed on the upper edge of the double slope roof for daylight harvesting. Heat dissipation air vents are mounted on the edge of the double slope roof and under the wind turbines for promoting the indoor air circulation and reducing indoor temperature.
The main novelties of this roof system are as follows:
- To offer the possibility for a building’s roof to produce and save electricity by the use of hybrid natural renewable resources (wind, solar and rain).
- VRGV can improve the starting behavior and power generation efficiency of the wind turbine installed in between a two-layer roof in low wind speed areas.
- Rainwater harvester system for solar PV panel cooling and cleaning is applied for the purpose of improving the generation efficiency of solar power.
- The warm air indoor can be exhausted through the air vent by the pressure difference produced by the running of the wind turbine between the two layers of the roof structure.
In addition, this eco-roof system with the VAWTs does not require a large tower and can be installed on any building with a double slope roof, refer to Figure 5. Moreover, the eco-roof system can be adjusted to fit a variety of roofs with different inclination angles without prejudice to the building structure.
Figure 5.
Eco-roof system with the VRGV as a standard system for installation.
3. Features of the V-Shape Roof Guide Vane (VRGV)
The VRGV can concentrate the wind flow from a larger area and augment the wind velocity before the touching of the wind with the wind turbines. Apart from helping to improve the power generation performance of the rooftop VAWT in the areas with low wind speeds, the VRGV also serves as a mounting bracket for the placement of solar PV panels, refer to Figure 6.
Figure 6.
Structural features of the eco-roof system with VRGV.
At the same time, the VRGV also acts as the flow path for collecting and leading rainwater towards the water storage tanks. The rainwater stored was mainly channeled to an automated cooling and cleaning system that washes solar panels embedded in the sloped roof to keep them efficient. Thus, it is not necessary to have an extra structure to harvest solar energy and rainwater due to the multipurpose feature of the VRGV design which has higher efficiency in energy production. The installation of this VRGV on a double slope roof to collect wind, solar and rainwater can give a full play to Malaysia’s climate advantage (i.e., strong solar radiation and rainfall), which would maximize the energy production and savings [40].
In addition, two transparent panels are located on the pitched roof, near to the roof ridge and under the projection area of the VRGV to reduce the lamps power consumption during the daytime, as shown in Figure 6. The transparent panel can be made of energy saving glass. Meanwhile the VRGV can also prevent direct sunlight into the room at noon time. Thus, diffused light is allowed to enter the building through the transparent panels.
The air vents along the ridge of the roof are provided to ventilate heat out from the building, as shown in Figure 7. When the wind flows through the region between the upper wall duct of the VRGV and the pitched roof, the wind is accelerated and creates a relatively low-pressure area at the roof ridge. The warm air indoor possesses higher pressure, hence, natural convection happens due to the pressure difference between indoor and outdoor, refer to Figure 8a,b. Moreover, side louvers are provided to prevent rainwater from entering the building through the air vent.
Figure 7.
Air ventilation schematic diagram.

Figure 8.
(a) Vertical Pressure distribution along the centre line on top of the gable roof; (b) Vertical Pressure distribution along the Y axis (yellow line).
Through a series of CFD numerical simulations and lab verification experiments, a tilt angle of 19.5° [46] is determined as the optimum geometric parameter for the present VRGV to enhance wind speed and lead to a lower turbulence intensity between the two-layered roof structure, refer to Figure 9 and Figure 10.
Figure 9.
Wind velocity contour distribution for the VRGV with pitch angle 19.5°. Reprint with permission [46]; 2018, Springer.
Figure 10.
Wind speed distribution along the central vertical line between the two-layers of the roof structure at different tilt angles of the VRGV [46].
Apart from guiding a relative higher wind speed into the VAWT due to the VRGV design, it is recommended to use the lighter rotating parts of VAWT with the same power output, which means less load and less moment of inertia of wind turbine bearings for a better starting performance. Besides, the vibration caused by the rotation of the rooftop wind turbine is expected to be reduced since the installation was completed with a proactive design, which includes adding a damping system underground at the base of the building. Meanwhile, a multi-stage generator was employed to the VAWT in this eco-roof system, which allowed the generator to work at different stages depending on the different wind speed thresholds. Also, a high wind speed cut-off system was used to protect the generator from strong winds.
4. Methodology: Experiment, Simulation and Economic Estimation
The research methodology of this study was conducted via two parts which are as follows:
- (1)
- Performance analysis of the VAWT embedded in the double slope roof and VRGV by lab experiment and CFD;
- (2)
- Economic estimation of the VRGV (with solar photovoltaic system and wind power system).
In the lab test experiment, the wind speed augmented effect of the VRGV, the rotation performance (self-starting and rotational speed) and the optimized power performance (Cτ and Cp) of the VAWT embedded in the double slope roof and VRGV were investigated. In this experiment, a 5-bladed H-rotor VAWT with FX63-137 airfoil mounted on a central shaft together with a supporting arm was applied. To verify the result of the power performance (Cp) of the VAWT with VRGV in the lab experiment, computational fluid dynamics (CFD) was conducted. For the economic estimation of the VRGV with solar photovoltaic generation system and the wind power system installed on a double slope roof, the life cycle cost (LCC) method was adopted and the complete range of cost-effectiveness was considered and the cash flow time-equivalent was made.
4.1. Lab Experiments
4.1.1. Prototype Fabrication
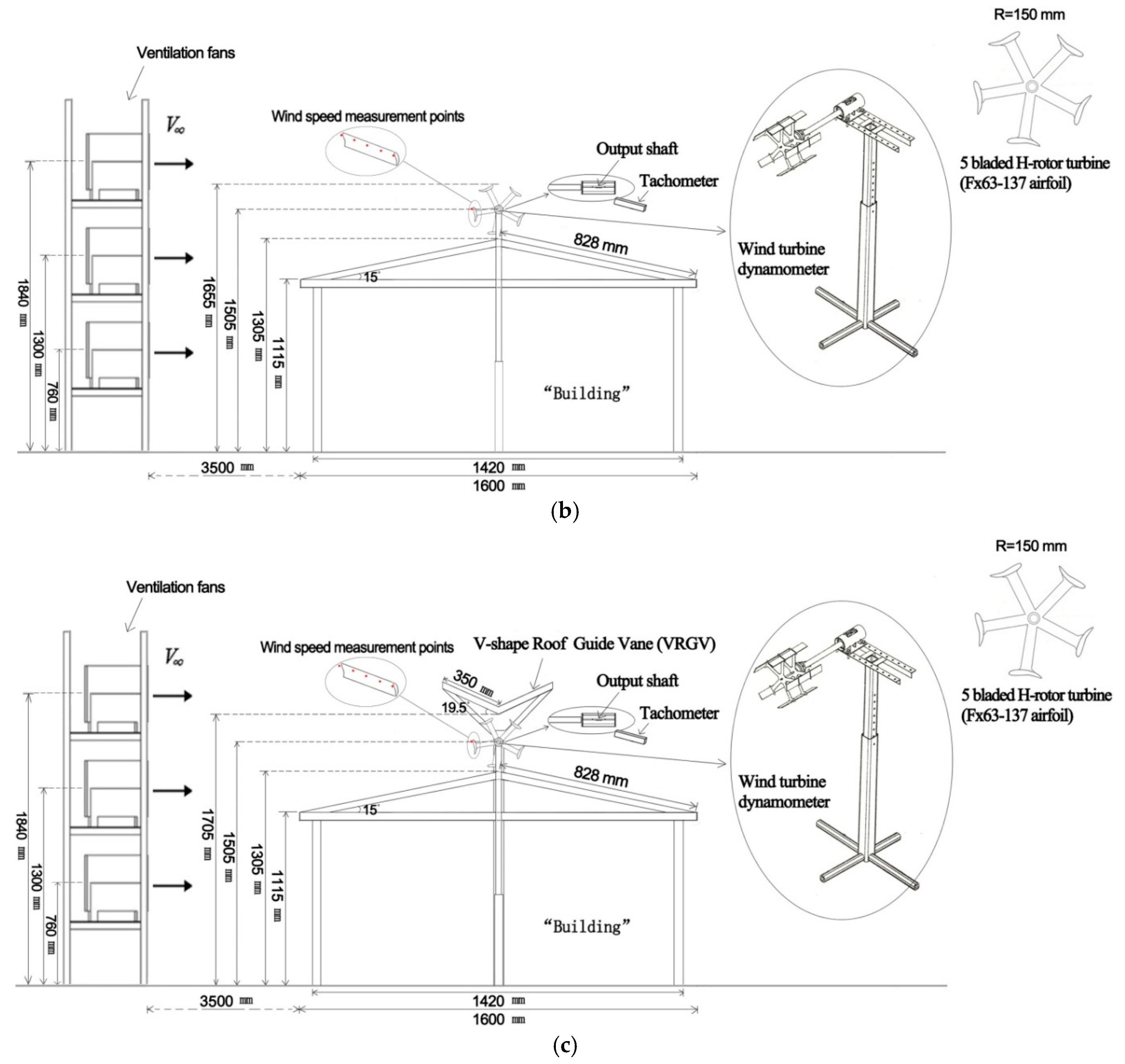
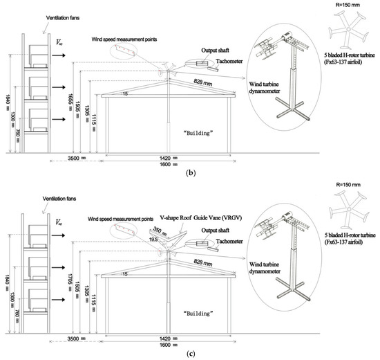
The experimental setup mainly consists of a mock-up building with a double slope roof, a 5-bladed H-rotor VAWT, VRGV structure, an anemometer, a dynamometer controller system and ventilation fans. The dimensions of the mock-up building are 1600 mm (length) × 1420 mm (width) × 1305 mm (height), which are 1 to 10 ratio reduced to the actual size of the building. The VRGV structure has a length of 1600 mm, a width of 660 mm and a height of 1821.8 mm. The inclination angles of the VRGV and the gable roof is 19.5° and 15°, respectively. A value of 19.5° is the optimum tilt angle for the VRGV to augment the wind speed as wind passes through the wind turbine between two-layers of the roof structure [47]. Furthermore, 15° is the optimum roof inclination angle for solar PV panels obtaining the most solar radiation in Malaysia [45]. In this experiment, the wind flow was produced by a series of ventilation fans that were arranged in a 3 × 3 equally spaced configurations, refer to Figure 11a. The wind direction is set to be parallel to the ground and perpendicular to the building model [48]. The air blown by these ventilation fans can reproduce similar turbulence and swirling flow in the field environment. In the present experiment, a 5-blade FX63-137 airfoil H-rotor VAWT with a diameter of 0.3 m was chosen and mounted on a experimental mockup. Figure 12 shows the detailed parameters of the lab experiment setup.
Figure 11.
(a) Ventilation fans; (b) Indoor experimental set-up of a VAWT integrated with VRGV on top of a double slope roof.

Figure 12.
(a) Detail dimensions of the experiment set-up for an open rotor VAWT; (b) Detail dimensions of the experiment set-up for a VAWT installed on a double slope roof; (c) Detail dimensions of the experiment set-up for a VAWT embedded in the double slope roof and VRGV.
4.1.2. Experiment Set-Up for Testing Wind Turbine Rotational Performance Without Load
The experiment was undertaken to study the wind speed augmented effect of the VRGV, self-starting performance and augmented effect of the rotational speed (RPM) of the VAWT in the presence of the VRGV by using the prototype mentioned in Section 4.1.1. The method of a comparative study was adopted in this experiment, which was conducted in three configurations as follows:
Since the wind flow wasn’t precisely controlled, the wind speeds were measured at five touch points which were equidistantly distributed on the horizontal direction along one blade of the VAWT (refer to Figure 12). The measurement position was set at 4150 mm downstream of the ventilation fans and the height of 1505 mm (the location of the front edge of the VAWT towards the ventilation fans).
In this experiment, the rotor of the VAWT was in a free-running condition, only the bearing friction and inertial were considered. The on-coming wind velocity was increased gradually from 0 m/s to 6.5 m/s until the rotor started to run to obtain the self-start wind speed. The wind speed measurements were conducted by using a vane anemometer. The accuracy of the airflow measurement was ensured by repeating measurements five times at the same measurement point. The RPM of the free running VAWT at an oncoming wind speed of 6.5 m/s under the condition of an open rotor VAWT, with and without the VRGV, were recorded by a dynamometer controller system (Figure 13) after the rotational speed of the rotor was stabilized. According to this comparison experiment, it was found out that the wind speed passing through the region between the double slope roof and the VRGV can be augmented, and that the self-starting performance as well as the rotation speed of the VAWT can be preliminarily optimized by the VRGV design.
Figure 13.
Dynamometer controller system.
4.1.3. Experimental Set-Up for Testing Power Performance of Wind Turbine with Load
The experiment was undertaken to study the power performance, Cp of the VAWT embedded in the double slope roof and VRGV by using the prototype mentioned in Section 4.1.1. The experiment was conducted in three configurations as mentioned in Section 4.1.2.
The measurement was conducted using a dynamometer controller (Figure 13) [48]. The alternating current (AC) from the generator is rectified into a direct current (DC) for the current measurement in this experiment. In the present experiment, the frictional loss caused by the generator is negligible [48]. In this study, the rotor shaft was connected by a tapered roller bearing and a deep groove ball bearing [49].
In the present experiment, a wind speed of 6.5 m/s was employed as an on-coming wind speed for the measurement of the torque, τ which was produced by the rotor of the VAWT mounted on the double slope roof with the VRGV and the RPM of the VAWT. The torque applied to the rotor of the VAWT was changed by manually adjusting the load on the rotor shaft [49]. The torque experienced by the rotor of the VAWT and the corresponding RPM of the rotor at a particular load on the rotor shaft were recorded directly by the dynamometer controller system after the RPM of the rotor was stable. In the calculation process, the angular speed, ω of the VAWT rotor was calculated by Equation (1), Tip speed ratio (TSR) of the VAWT at a particular angular speed was calculated by using Equation (2). The power output (P) of the VAWT was estimated by Equation (3), and the Cp of the VAWT was obtained by Equation (4). In the test process, seven different loads (equivalent to seven different rotational speeds (TSRs)) between load 0% and load 100% were employed on the rotor shaft by a manual control in order to draw the power coefficient curve of the VAWT versus seven different rotational speeds (TSRs is 0.83, 0.75, 0.68, 0.63, 0.58, 0.51, 0.45):
where, TSR (λ) is tip speed ratio; R is radius of blades sweeping area (m); ω is angular speed (rad/s); is mean incident wind speed (m/s); τ is torque (Nm); P is power output of the VAWT (kW); ρ is air density (kg/m3); A is swept area of wind turbine blade (m2); Cp is power coefficient of the VAWT.
4.2. Computational Fluid Dynamics (CFD) Simulation
4.2.1. Computational Domain and Meshing
In the present study, 2D computational fluid dynamics simulation was performed to support the result of the power performance of the wind turbine due to the VRGV design in the experiment. Also, a preliminary understanding of the relevant aerodynamic issues in the operation of the wind turbine can be obtained through the CFD simulation.
This 2D computational domain consists of two different domains: a fixed rectangular outer domain including a circular aperture, a double-sloped geometry aperture and a V-shaped geometry aperture, as well as a circular internal domain to adapt to the circular aperture. The circular internal domain was defined as the rotor domain of the wind turbine [50]. Interface boundary condition was selected on the surface shared by the fixed circular aperture in the rectangular outer domain and the inner rotor domain. The dimensions of the building and the wind turbine models used in this computational simulation were the same as the experimental prototype in Section 4.1.1. In this CFD simulation, the inlet boundary as a velocity inlet, was set at a distance of 40 rotor diameters on the upwind side and the outlet boundary as a pressure outlet with a relative pressure of 0 Pa was set at a distance of 50 rotor diameters on the downwind side to monitor the wake transformation during the wind turbine operation [51].
In this 2D numerical study, the consideration was limited on the wind velocity, rather than pressure distribution and wind multi-directionality. Moreover, the effects of the supporting arm, bearing and torque shaft were not considered and the surface roughness level of the double slope roof and V-shape roof was ignored [50]. The fluid used in the simulation is air with a density of 1.225 kg/m3. However, the uniform oncoming flow velocity of 6.5 m/s was assumed at 40 rotor diameters upstream of the wind turbine and the pressure returned to its baseline value at 50 rotor diameters downstream of the wind turbine in the simulation. Similar to most cases with low wind speeds, a non-slip condition was assumed for the surfaces of the blades in this 2D numerical analysis. Symmetry boundary conditions were employed to the top and bottom wall regions of the fixed rectangular outer domain to ensure fluid continuity and rapid results convergence [50].
A structured mesh was adopted in the fixed rectangular outer domain for reducing computational time [50]. The unstructured mesh was used for the rotor domain, as they can follow complicated aero-foil geometries. The rotor blade airfoil geometries were modeled in Autodesk Inventor 2017 (Autodesk, San Rafael, CA, USA) and imported into ANSYS Fluent 16.0 (ANSYS, Pittsburgh, PA, USA).
4.2.2. Turbulence Model
Direct numerical simulation (DNS), large eddy simulation (LES) and Reynolds average Navier-Stokes (RANS) are considered as the three most commonly used turbulence simulation methods in CFD [28]. DNS is the most advanced computational approach, which solves the turbulence equations directly without simplification, however DNS method consumes a lot of computing resources and time [52]. LES is an alternative method to model turbulence where a time-dependent simulation using the filtered Navier Stokes equations explicitly computes large eddies [53], which is appropriate for 3D simulation, however, the LES method is still computationally expensive to simulate a 3D complicated unsteady dynamic phenomenon. RANS is based on the theory of reducing computational resource by time averaging the flow quantities for a whole range of turbulence scales [53], which is the most appropriate method for a 2D dynamic flow simulation due to its low computational cost and relatively high accuracy. According to Sodja et al.’s research, RANS method only has about 5% computing time of the LES [54].
The k-ω shear stress transport (SST), standard k-ε, re-Normalization Group (RNG) k-ε and realizable k-ε are considered as classical turbulence models based on RANS equations (two equation models). k-ω SST is a two-equation eddy-viscosity model, which is the combination of k-ω and k-ε turbulence models: the k-ω model in the inner parts of the boundary layer, and the k-ε model in the free flow region [50]. Standard k-ε is a model based on the model transport equations for the turbulence kinetic energy (k) and its dissipation rate (ε) [55]. The RNG k-ε model is developed using the re-normalization group methods to renormalize the Navier-Stokes equations in order to improve the accuracy and reliability for a wider flow [56]. The realizable k-ε model is derived from an exact equation for the transport of the mean square vorticity fluctuation and involves an alternative formulation for turbulent viscosity [57]. The contrast between the k-ω SST, standard k-ε, the RNG k-ε and the realizable k-ε was carried out by Wong et al. to choose a proper turbulence model in the CFD simulation, as shown in Figure 14. It is shown that the k-ω SST model efficiently blends the robust k-ω model near the wall area and shifts to a standard k-ε model at the far flow to process a complex flow with the adverse gradient [58,59,60]. Therefore, the k-ω SST model is selected as the turbulence model in the numerical simulations in this research. Figure 15 shows the domain with the boundary condition used and the velocity contour for the VAWT.
Figure 14.
Comparison of Cp for different turbulence model versus azimuthal angles for a complete revolution. Reprint with permission [61]; 2018, Elsevier.

Figure 15.
(a) Boundary condition and the domain size of the VAWT with the VRGV used in this numerical simulation; (b) Velocity contour for the VAWT embedded in the double slope roof and VRGV.
4.2.3. Validation of the Simulation Methodology
In order to validate the simulation methodology mentioned above (boundary condition, mesh and turbulence model), a 2D CFD simulation of an open rotor VAWT for the coefficient of torque versus the azimuth angle was conducted. The parameters from Oler’s experimental, i.e., inlet velocity, rotor tip speed (TSR = 5.1), rotor diameter, airfoil type and domain size were used in the CFD simulation for this verification. The simulation parameters are listed in Table 2 based on Oler’s experiment [49]. The simulation result was compared with the experimental data published by Oler et al. [62]. As a result, the torque coefficient obtained from Oler’s experiment and the CFD simulation was plotted in Figure 16. According to the figure, there is a similar trend between Oler’s experiment and the simulation. However, an over-predicted torque coefficient appears in the simulation result between azimuth angle 40° to 260°.
Table 2.
Simulation parameters.
Figure 16.
Diagram of the comparison of the coefficient of torque versus azimuth angle in Oler’s experiment and the simulation (TSR = 5.1). Reprint with permission [63]; 2012, University of Malaya.
The variation between the simulation and Oler’s experiment was affected by the low Reynolds number, which increased the drag and obviously decreased the lift of the blade [64]. Therefore, the force generated from the upwind path was high while the simulated normal force was low, due to the reduction of the wind speed in the downwind pass. Another reason is that the blade Oler et al. [62] employed in the experiment was a low aspect ratio blade that might need a 3D method, while the CFD simulation involved 2D only.
4.2.4. Computational Grid Sensitivity Study
Computational grid sensitivity study was conducted to choose the suitable grid number that can guarantee not only a low computational cost but also a relatively accurate result. In the current study, the computational domain, boundary condition and turbulence model mentioned in Section 4.2.1. and Section 4.2.2. were employed. This case was based on a 5-bladed H-rotor VAWT with the FX63-137 airfoil, a diameter of 0.3 m, which was the same VAWT in the experiment. Furthermore, this mesh sensitivity study was performed by re-simulating the above experiment for an open rotor VAWT at an inlet wind speed of U∞ = 6.5 m/s and TSR = 0.49. Tip speed ratio 0.49 was chosen because the power performance of the open rotor VAWT was expected to be the best at the TSR in the above experiment. Figure 17 shows the example of the geometry, boundary conditions and mesh used for the model. Three different meshes (coarse, medium and fine) were built for the grid sensitivity study, as shown in Table 3. The azimuth angle of 0° was set as the initial rotation position for one blade of the open rotor. All the 360 sets of data obtained from the above three simulations (coarse, medium and fine mesh) were plotted after the completion of one cycle of the open rotor. The comparison was carried out on the torque coefficient between the three cases.
Figure 17.
Geometry, boundary conditions and mesh used for the simulation model (open rotor VAWT).
Table 3.
Three different mesh numbers and the corresponding simulation time.
Figure 18 shows the instantaneous torque coefficient of one blade versus the azimuth angle. There is a little dissimilarity in the azimuth angle of 0° to 60° and 255° to 360° among the three cases, and the maximum torque coefficient is generated at the value around 100° for the three cases in the windward side. The solution of the coarse and fine (medium) meshes is different between the azimuth angle of 60–255°, while there is almost no obvious difference in the simulation results between the medium mesh and the fine mesh in all the 360 azimuth angles.
Figure 18.
Diagram of the torque coefficient versus azimuth angles in the case of the coarse, medium and fine mesh.
According to Table 3 and Figure 18, it shows that the time spent in the simulation mainly depends on the mesh number employed in the simulation. It seems that the medium mesh is a better choice considering the result accuracy and calculation time. Thus, the medium mesh was adopted for the subsequent simulations in this paper.
4.2.5. Method of CFD Validation
In this section, CFD simulations are conducted to verify the accuracy of the experimental power performance of the VAWT embedded in the double slope roof and VRGV structure in Section 4.1.3. The CFD simulations were carried out based on the computational domain, boundary condition, turbulence model and mesh mentioned in Section 4.2.1., Section 4.2.2. and Section 4.2.4. The double slope roof, vertical axis wind turbine and the VRGV for this simulation are modeled with the same dimensions as the experimental prototype which as described in Section 4.1.1. The simulations were performed for a 5-bladed VAWT with FX63-137 airfoil mounted on a double slope roof with the VRGV at an inlet wind speed U∞ = 6.5 m/s and at seven different TSRs by repeating the above experiment mentioned in Section 4.1.3. Figure 19 shows the example of the geometry, boundary conditions and the mesh used for the model. In these simulations, one time step was set to one degree of the blade rotation and residual convergence was set to 0.0001. Also, in this study, the torque coefficient value of the VAWT was captured in a non-dimensional form at each degree of the rotational azimuth angle. After one blade completed one rotational cycle at a particular TSR (λ), all the 360 sets of the torque coefficient data of one blade were obtained and the power coefficients of one blade was calculated by Equation (5). In the process, the distribution of the power coefficient (Cp) of one blade of the VAWT versus the azimuth angle (0–360°) at a particular TSR was obtained. Moreover, the average power coefficient of the VAWT at a particular TSR (λ) can be calculated as follows:
where, Cτ is the torque coefficient of the VAWT.
Figure 19.
Geometry, boundary conditions and mesh used for the simulation model (VAWT integrated double slope roof with VRGV).
4.3. Economic Estimation
The VRGV with a solar photovoltaic system and wind power system installed on a building with a double slope roof is important to help the building to be able to solve the issues of power generation and environmental pollution. Thus, the cost-effectiveness analysis of the VRGV installed on a building should be considered during the period of operation. In this economic estimation, the life cycle cost (LCC) method is conducted to estimate the investment cost and economic profits over the whole life cycle time, furthermore make cash flows time-equivalent, including payback period for the capital and operating expenses over the life cycle time and the net present value (NPV). The LCC analysis needs to consider the fluctuation of operation and maintenance costs, discount rates, tariff rate and currency present value, etc. In this study, only the cost-effectiveness of the solar photovoltaic system and the wind power system of the VRGV were analyzed, the cost-effectiveness of the rainwater collection & utilization system as well as the heat dissipation air vent of the VRGV was not considered.
4.3.1. Cost-Effectiveness of Solar Photovoltaic System
The solar radiation data, originated from the meteorological station in Subang city of Malaysia, support the estimation of the power generation of the solar PV system. The power generation of the solar PV system on an actual size building with the VRGV can be calculated as follows:
where, Gs is the annual mean global radiation (kWhm−2), As is the array active area (m2), K is the shadow factor, εPV is the influential factor of surface inclination and direction in terms of solar PV panel power output, ηPS is the module energy conversion efficiency, PR is the influential factor of surface inclination and direction in terms of the performance ratio. Table 4 shows the specific parameters of the solar PV panels. Table 5 shows the monthly solar radiation from 2012 to 2014 in Subang city.
Table 4.
Specific parameters of the solar PV panel.
Table 5.
The solar radiation from 2012 to 2014 in Subang city (kWhm−2).
Annual cash flow of solar photovoltaic power generation is given as:
where, E1 is the annual cash flow of the solar photovoltaic power generation ($); Gsolar is the annual power generation of the solar photovoltaic system (kWh); Pr is the local solar power tariff ($/kWh). The parameters for estimating the economic profit of the solar PV power generation are shown in Table 6.
E1 = Gsolar Pr
Table 6.
Parameters for estimating cash flow of solar photovoltaic power generation.
The economic cost of the solar photovoltaic system (E2) mainly refers to the sum of the initial capital cost, operation and maintenance costs for the solar photovoltaic system. The detailed economic parameters are included in Table 7.
Table 7.
Parameters of costs and maintenance of solar photovoltaic system.
4.3.2. Cost-Effectiveness of Wind Power Generation System
The power generation of the wind turbines installed on an actual size building with the VRGV at the selected location was calculated by the Betz law given below:
where, ρ is the atmospheric density (kg/m3), Cp is the efficiency factor of the rotor, ηg is the efficiency factor of the generator, ηWD is the factor of wind direction loss, A is the swept area of the turbine blade (m2), V′ is the augmented wind speed due to the VRGV design (m/s). In this case, a 300 W VAWT (R = 0.6 m) was selected to match the actual building, because the VAWT with a rated power of 300 W is quite common and inexpensive in the market and the size is appropriate to the present building ratio. The parameters of the VAWT are shown in Table 8. The mean wind speed in Subang city, Malaysia is shown in Table 9.
Table 8.
Parameters of the wind turbine. Reprint with permission [47]; 2016, Elsevier.
Table 9.
The mean wind speed in Subang city, Malaysia (m/s).
According to a series of CFD simulations and experiments, a wind speed augmented factor (f = 1.63) due to the VRGV was determined [46]. The augmented wind speed due to the VRGV design at the location of the eco-roof system (Subang city, Malaysia) is shown in Table 10.
Table 10.
The augmented wind speed due to VRGV design at the location of the eco-roof system (m/s).
Annual cash flow of wind power generation is given as:
where, E3 is the annual cash flow of the wind power generation ($), Gwind is the annual power generation of the wind turbines embedded in the double slope roof and VRGV (kWh); Pr is the local wind power tariff ($/kWh). The parameters for estimating the economic profit of the wind power generation are shown in Table 11.
E3 = Gwind Pr
Table 11.
Parameters for estimating cash flow of wind power generation.
The economic cost of the wind power system (E4) mainly refers to the sum of the initial capital cost, as well as the operation and maintenance costs for wind power system. Details of the economic parameters are shown in Table 12.
Table 12.
Economic parameters of wind power system.
4.3.3. NPV of the VRGV
In Malaysia, the fluctuation of energy price is affected by two factors- market and government regulation. According to the trends of the electricity tariff, the tariff rate is estimated to increase by 10% annually [68]. The extra property tax and discount factor is predicted to be 2% and 8% respectively [68,72]. The price for operation and maintenance is estimated to increase by 4% per year based on the price trends in operation and maintenance [73]. The specific economic parameters used in the calculation are included in Table 13.
Table 13.
Economic parameters.
The calculation of the savings regarding the solar PV system and wind power system refers to the following equation:
where, ECET is the commercial electricity tariff, Ecost is the cost of energy production.
The present worth factor (PWF) is introduced to define the benefits of the entire system. Hypothesizing a payment replicates each year and inflates at a rate of i per year, the PWF of the payments is calculated as follows:
where, N denotes the period of economic evaluation, i denotes the inflation rate, and d denotes the discount rate.
The following equation demonstrates the present value (PV) of payment or revenue for the Nth year.
Therefore, the resultant of NPV is obtained from the aforementioned calculations and shows the sum of present values in a given period.
5. Results and Discussion
5.1. Result and Discussion of the Experiment Without Load
From the experiment without load, the presence of the VRGV was able to use the Venturi effect to augment the wind velocity at the location of the wind turbine between the two-layer roof, refer to Figure 20. The maximum wind speed at the front touch point of the wind turbine in the presence of the VRGV was found to be around 7.8 m/s when the wind speed data displayed in the anemometer became steady, compared to 6.5 m/s as the incoming wind speed, which was approximately 20% speed increment due to the VRGV design. The maximum wind speed at the front touch point of the wind turbine under the condition of a double slope roof without VRGV was found to be around 6.95 m/s, which was a 6.92% speed increment than the incoming wind speed.
Figure 20.
Rotational speed comparison between the open rotor VAWT, VAWT with double slope roof, VAWT with double slope roof and VRGV at initial wind speed of 6.5 m/s.
The design of the VRGV can also improve the self-start behavior of the wind turbine installed on the double slope roof. The start-up wind speed of the VAWT in the presence of VRGV was 3.34 m/s, which is lower than the start-up wind speed of the VAWT without the VRGV, 3.8 m/s and an open rotor, 4.05 m/s, obtaining a self-starting speed optimization of 13.78% and 21.26% respectively, refer to Figure 20. Thus, longer running hours and a wider application range can be expected by the application of the VAWT with the VRGV [40]. Rotational speed comparison between the cases of an open rotor VAWT, a VAWT with a double slope roof and a VAWT embedded in the double slope roof and VRGV is shown in Figure 20. The VAWT with VRGV can achieve a maximum rotational speed of 396.27 RPM at the initial incoming wind speed of 6.5 m/s. The rotational speed of the VAWT with the VRGV obtained an increment of 38.2% and 42.67% compared to a VAWT without the VRGV and an open rotor VAWT at the initial incoming wind speed of 6.5 m/s. The details of the performance comparison in the experiment without load are listed in Table 14.
Table 14.
Performance comparison in the experiment without load.
5.2. Result and Discussion of the Experiment with Load
Three sets of experiments with load were conducted for testing the wind turbine power performance using a dynamometer controller system, which were carried out under the same conditions, i.e., one for an open rotor (VAWT), another for a VAWT installed on a double slope roof and the third for a VAWT embedded in the double slope roof and VRGV were conducted.
In the present study, the variables monitored on the performance of the wind turbine from the above three cases were evaluated based on the power coefficient, Cp versus the tip speed ratio, λ. Figure 21 shows the Cp versus the tip speed ratio for the experimental tests, where the correspondence between the Cp and TSR (λ) can be identified. The result shows that the VAWT embedded in the double slope roof and VRGV has the highest average power coefficient values compared to others, the highest power coefficient value is about 0.107 at a TSR of 0.68. The average power coefficient value of the VAWT installed on a double slope roof was lower. Again, in the case of the open rotor VAWT, the overall power performance of the VAWT further decreases, even if the power performance is slightly higher than that of the VAWT integrated with a double slope roof at low TSRs (below 0.44). In the presence of the VRGV, the flow along the blades can effectively increase the lift force which increases the torque, thus improves the power output of the wind turbine [48]. This experiment shows that the design of a VRGV has a significant effect on improving the power performance of the VAWT mounted on a double slope roof.
Figure 21.
Coefficient of power, Cp versus TSRs for an open rotor VAWT, VAWT with double slope roof, VAWT with double slope roof and VRGV.
5.3. CFD Validation with Experiment Result
The distribution of the power coefficient, Cp of the VAWT at seven different TSRs versus the azimuth angle was obtained through the simulation in Section 4.2.5. Figure 22 shows the Cp of a single blade of the VAWT at seven different TSRs versus the azimuth angle. Figure 23 shows the Cp of a 5-bladed VAWT at seven different TSRs versus the azimuth angle. According to the CFD simulation, the maximum average power coefficient of the 5-bladed VAWT was captured at TSR = 0.68. A visualization image of flow velocity contours of the VAWT in the presence of a double slope roof and VRGV was captured in the CFD simulation process, refer to Figure 24.
Figure 22.
Power coefficient of a single blade of the VAWT versus azimuth angle.
Figure 23.
Power coefficient of a 5-bladed VAWT versus azimuth angle.
Figure 24.
Flow vector visualization for a 5-bladed VAWT with the VRGV.
Figure 25 shows the Cp versus TSRs for the VAWT with FX63-137 airfoil mounted on a double slope roof with VRGV in the CFD simulation and experiment respectively. It shows that these two curves, 2D numerical simulation and lab experiment, have similar trends.
Figure 25.
Comparison of power coefficient between the experimental and CFD numerical data.
The maximum power coefficient for a 5-bladed VAWT in the CFD simulation and the experiment occurred at TSR of 0.68, and the maximum power coefficient values are 0.124 in the CFD simulation and 0.107 in the lab experiment. The comparison result shows that the maximum power coefficient in the CFD simulation is about 1.16 times higher than the maximum power coefficient obtained from the experiment. By comparing the power coefficient between the simulation and the experiment, the error is approximately 15.98%. The following are the observations and analysis about this comparison:
- Quantitative differences occurred in the contrast of the CFD simulation and the experiment, but the overall trends of the simulation and experimental results are similar.
- The simulation result has over-predicted the power coefficient value than the experimental result. The reason for the variation is that the blade tip losses and the drag from the spoke are not evaluated in the simulation analysis [74].
- Another reason might be associated with the geometrical simplification in the 2D CFD analysis, e.g., the impact of the supporting and connecting structures of the VAWT are not considered in the CFD simulations. However, the CFD simulations involved 2D cases only, while the experiment was conducted in a 3D environment, the wind loss of the experimental model and the laboratory environment can affect the results.
- The CFD result has lower-predicted the value of the power coefficient at low tip speed ratios. Such underestimation might be related to the inability of 2D Unsteady Reynolds-Averaged Navier-Stokes (URANS) to precisely simulate the complex intrinsic 3D flow associated with dynamic stall and blade-wake interactions [75].
5.4. Economic Estimation of the VRGV with a Solar PV System and Wind Power System Mounted on an Eco-Roof System
Economic estimation of the VRGV with a solar PV system and wind power system indicates that cash flow breakeven occurs in the seventh year (20-years life cycle), refer to Figure 26.
Figure 26.
20 years cost-effectiveness analysis of the VRGV with solar PV system and wind power system.
- The annual power generation by the solar photovoltaic system and wind power system installed on this eco-roof system with the VRGV in Subang city, Malaysia is estimated to be 21,129.98 kWh.
- The cumulative NPV of the VRGV system during a 20-year period is $88,071.066 in the premise of the market discount rate of 8%.
- Total cash flow of generated electricity by the VRGV with solar PV system and wind power system is $346,122.804 in 20 years of the life cycle.
- Total cost of the VRGV with solar PV system and wind power system is $52,020.702 in 20 years of the life cycle.
- The cash flow breakeven time is expected to be shorter and the NPV will be higher if the economic estimation for the rainwater collection & utilization system and heat dissipation air vent of the VRGV was considered.
6. Conclusions
A VAWT integrated with a VRGV mounted on an eco-roof system has been designed and tested. The VRGV can be installed onto an existing building without a negative visual impact. This VAWT-enabled eco-roof system integrated with VRGV can effectively maximize the house electricity generation compared to a conventional eco-roof.
The results obtained from a none load experimental study shows that the presence of the VRGV is able to augment the wind speed by 12.23% and 20% respectively compared to the one without the VRGV and an open rotor VAWT, when the wind passes through the wind turbine that is located between the two-layers roof and can improve the self-start behavior of the VAWT by 13.78% and 21.26% respectively compared to the one without the VRGV and an open rotor VAWT. The VRGV can also effectively increase the RPM of the VAWT installed on a double slope rooftop by 38.2% and 42.67% compared to a VAWT integrated on the double slope roof without the VRGV and an open rotor VAWT respectively at an oncoming wind speed of 6.5 m/s. Furthermore, the results obtained from the load experimental test showed that the VAWT integrated with the VRGV can achieve higher Cp values (maximum 0.107) than the case without the VRGV (maximum 0.063) and an open rotor (maximum 0.051). Hence, the VRGV design is able to improve the power coefficient of the wind turbine mounted on a double slope roof.
CFD simulation was conducted to verify the result of the experimental power performance of the VAWT in the presence of the VRGV. Similar curve trends of the Cp was achieved for both the lab experiment and CFD simulation. From the simulation result, it is shown that the Cp of a 5-bladed VAWT with FX63-137 airfoil mounted on the double slope roof with the employment of the VRGV has been increased by 15.98% compared to the experimental result. The maximum Cp is about 0.124 at a TSR value of 0.68 in the simulation.
The wind speed data and solar irradiance values for the economic estimation were obtained from Subang City, Malaysia. Moreover, the position of the building was assumed to face towards North-northwest in the fourth quadrant (300°–320°), where the dominant wind frequency occurs in Subang. As a means of driving at an economic conclusion, the annual power generation by the solar photovoltaic system and the wind power system installed on this eco-roof system with the VRGV is approximately 21,129.98 kWh. The investment cost of the VRGV system can be recovered at the 7th year, and the cumulative NPV ($88,071.066) can be achieved during a period of 20 years. More power generation and payback in a shorter period can be anticipated when the building with the VRGV is in a location with higher wind speeds.
For future study, a 3D numerical simulation will be conducted to study the power performance of the wind turbine in the presence of the VRGV. A wind tunnel test will be carried out to study the effect of the turbulence on the power performance of the wind turbine, where higher Reynolds number flow regime and higher accuracy can be achieved. Additionally, future studies will also include a field test on a prototype to investigate the pressure distribution at the ridge of a gable roof to optimize ventilation system in this hybrid eco-roof system.
7. Patent
A Malaysian invention patent named “Wind Harvester Installation On A Building” (PI 2016703622) resulting from the work reported in this manuscript has been obtained (Figure 27).
Figure 27.
Patent “Harvester Installation on a Building”.
Supplementary Materials
The following are available online at http://www.mdpi.com/1996-1073/11/10/2846/s1, This research project was cited by Asia Research News 2017 named “Taking Energy Efficiency Up to the Roof”.
Author Contributions
Conceptualization, X.W. and W.C.; Methodology, X.W. and K.W.; Software, X.W. and K.W.; Data Curation, L.S.; Writing-Original Draft Preparation, X.W.; Writing-Review & Editing, S.P. and C.-T.W.; Supervision, W.C. and S.L.
Funding
This research was funded by University of Malaya for the UMRG grant (RP043A-17AET) and the RU Grant (ST013-2017), as well as the Malaysian Ministry of Higher Education for the Fundamental Research Grant Scheme (FP053-2017A).
Acknowledgments
The acknowledgment will be expressed by the authors to Guangxi Department of Education for the research grant allocated (KY2016LX422) and Qin Zhou University for the research grant allocated (2014PY-SJ09).
Conflicts of Interest
The authors declare no conflict of interest.
Nomenclature
| AC | Alternating current |
| CFD | Computational fluid dynamics |
| DC | Direct current |
| DNS | Direct numerical simulation |
| GHG | Greenhouse gas |
| HAWT | Horizontal axis wind turbine |
| LCA | Life cycle assessment |
| LCC | Life cycle cost |
| LES | Large eddy simulation |
| NPV | Net present value |
| PAGV | Power augmentation guide vane |
| PV | Photovoltaic |
| PWF | Present worth factor |
| RANS | Reynolds averaged Navier Stokes |
| RNG | Re- Normalization Group |
| RPM | Revolutions per minute |
| SST | Shear stress transport |
| SWEPT | Small wind energy portable turbine |
| TSR | Tip speed ratio |
| URANS | Unsteady Reynolds-Averaged Navier-Stokes |
| VAWT | Vertical axis wind turbine |
| VRGV | V-shape roof guide vane |
| CP | Power coefficient |
| Cτ | Torque coefficient |
| P | Power output |
| E1 | Annual cash flow of solar photovoltaic power generation, USD |
| E2 | Economic cost of solar photovoltaic system, USD |
| E3 | Annual cash flow of wind power generation, USD |
| E4 | Economic cost of wind power system, USD |
| En | Annual net present value of the V-shape roof guide vane, USD |
| τ | Torque, Nm |
| ω | Angular speed, rad/s |
| ρ | Air density, kg/m3 |
| U∞ | Mean incident wind speed, m/s |
| ε | Dissipation rate |
| k | Turbulence kinetic energy |
| Gs | Annual mean global radiation (kWhm−2) |
| As | Array active area (m2) |
| K | Shadow factor |
| εPV | Effect of surface inclination and orientation on the PV output |
| ηPS | Module conversion efficiency |
| PR | Effect of surface inclination and orientation on the performance ratio |
| ηg | Efficiency of the generator |
| ηWD | Wind direction loss |
| V′ | Augmented wind speed due to the VRGV design (m/s) |
| R | Radius of blades swept area, m |
| A | Swept area of the turbine blade (m2) |
| ECTR | Commercial tariff rate |
| Ecost | Cost of produced energy |
| Gsolar | Annual power generation of solar photovoltaic system, kWh |
| Gwind | Annual power generation of the wind turbines, kWh |
| Pr | Local solar (wind) power tariff, $/kWh |
| N | Period of economic evaluation |
| i | Inflation rate |
| d | Discount rate |
References
- Shezan, S.A.; Julai, S.; Kibria, M.A.; Ullah, K.R.; Saidur, R.; Chong, W.T.; Akikur, R.K. Performance analysis of an off-grid wind-PV (photovoltaic)-diesel-battery hybrid energy system feasible for remote areas. J. Clean. Prod. 2016, 125, 121–132. [Google Scholar] [CrossRef]
- Yew, M.C.; Ramli Sulong, N.H.; Chong, W.T.; Poh, S.C.; Ang, B.C.; Tan, K.H. Integration of thermal insulation coating and moving-air-cavity in a cool roof system for attic temperature reduction. Energy Convers. Manag. 2013, 75, 241–248. [Google Scholar] [CrossRef]
- Hossain, M.; Mekhilef, S.; Olatomiwa, L. Performance evaluation of a stand-alone PV-wind-diesel-battery hybrid system feasible for a large resort center in South China Sea, Malaysia. Sustain. Cities Soc. 2017, 28, 358–366. [Google Scholar] [CrossRef]
- Renewables Global Status Report. Available online: http://www.ren21.net/wp-content/uploads/2015/07/REN12-GSR2015_Onlinebook_low1.pdf (accessed on 15 August 2018).
- Connolly, D.; Lund, H.; Mathiesen, B.V.; Leahy, M. A review of computer tools for analysing the integration of renewable energy into various energy systems. Appl. Energy 2010, 87, 1059–1082. [Google Scholar] [CrossRef]
- De Jonghe, C.; Delarue, E.; Belmans, R.; D’haeseleer, W. Determining optimal electricity technology mix with high level of wind power penetration. Appl. Energy 2011, 88, 2231–2238. [Google Scholar] [CrossRef]
- Korsavi, S.S.; Zomorodian, Z.S.; Tahsildoost, M. Energy and economic performance of rooftop PV panels in the hot and dry climate of Iran. J. Clean. Prod. 2018, 174, 1204–1214. [Google Scholar] [CrossRef]
- Novaes Menezes, E.J.; Araújo, A.M.; Bouchonneau da Silva, N.S. A review on wind turbine control and its associated methods. J. Clean. Prod. 2018, 174, 945–953. [Google Scholar] [CrossRef]
- Yang, Y.; Guo, Z.; Zhang, Y.; Jinyama, H.; Li, Q. Numerical Investigation of the Tip Vortex of a Straight-Bladed Vertical Axis Wind Turbine with Double-Blades. Energies 2017, 10, 1721. [Google Scholar] [CrossRef]
- The World Wind Energy Association 2012 Annual Report. Available online: http://large.stanford.edu/courses/2014/ph240/kalick1/docs/WorldWindEnergyReport2011.pdf (accessed on 15 August 2018).
- Bonou, A.; Skelton, K.; Olsen, S.I. Ecodesign framework for developing wind turbines. J. Clean. Prod. 2016, 126, 643–653. [Google Scholar] [CrossRef]
- Technology Roadmap-Wind Energy. Available online: https://www.iea.org/publications/freepublications/publication/Wind_2013_Roadmap.pdf (accessed on 15 August 2018).
- Kabir, M.R.; Rooke, B.; Dassanayake, G.M.; Fleck, B.A. Comparative life cycle energy, emission, and economic analysis of 100 kW nameplate wind power generation. Renew. Energy 2012, 37, 133–141. [Google Scholar] [CrossRef]
- Wang, W.-C.; Teah, H.-Y. Life cycle assessment of small-scale horizontal axis wind turbines in Taiwan. J. Clean. Prod. 2017, 141, 492–501. [Google Scholar] [CrossRef]
- Cao, W.; Xie, Y.; Tan, Z. Wind Turbine Generator Technologies. In Advances in Wind Power; Rupp, C., Ed.; Intech Open: London, UK, 2012; pp. 177–204. ISBN 978-953-51-0863-4. [Google Scholar]
- Peacock, A.; Jenkins, D.; Ahadzi, M.; Berry, A.; Turan, S. Micro wind turbines in the UK domestic sector. Energy Build. 2008, 40, 1324–1333. [Google Scholar] [CrossRef]
- Bahaj, A.; Myers, L.; James, P. Urban energy generation: Influence of micro-wind turbine output on electricity consumption in buildings. Energy Build. 2007, 39, 154–165. [Google Scholar] [CrossRef]
- Beyer, H.G.; Langer, C. A method for the identification of configurations of PV/wind hybrid systems for the reliable supply of small loads. Solar Energy 1996, 57, 381–391. [Google Scholar] [CrossRef]
- Li, D.; Wang, S.; Yuan, P. A review of micro wind turbines in the built environment. In Proceedings of the Asia-Pacific Power and Energy Engineering Conference, Energy and Power Engineering, Chengdu, China, 28 March 2010; pp. 1–4. [Google Scholar]
- Ayhan, D.; Sağlam, Ş. A technical review of building-mounted wind power systems and a sample simulation model. Renew. Sustain. Energy Rev. 2012, 16, 1040–1049. [Google Scholar] [CrossRef]
- Bianchini, A.; Ferrara, G.; Ferrari, L.; Magnani, S. An improved model for the performance estimation of an H-Darrieus wind turbine in skewed flow. Wind Eng. 2012, 36, 667–686. [Google Scholar] [CrossRef]
- Kishore, R.A.; Coudron, T.; Priya, S. Small-scale wind energy portable turbine (SWEPT). J. Wind Eng. Ind. Aerodyn. 2013, 116, 21–31. [Google Scholar] [CrossRef]
- Design, Testing and Simulation of Hybrid Wind-Solar Energy Systems. Available online: https://www.ingegneria.univpm.it/sites/www.ingegneria.univpm.it/files/ingegneria/Abstract%20PhD%20Theses/PhD_XI/Daniele_Vitali.pdf (accessed on 11 September 2018).
- Chong, W.T.; Poh, S.C.; Fazlizan, A.; Yip, S.Y.; Koay, M.H.; Hew, W.P. Exhaust air energy recovery system for electrical power generation in future green cities. Int. J. Precis. Eng. Manuf. 2013, 14, 1029–1035. [Google Scholar] [CrossRef]
- Mertens, S. Wind Energy in the Built Environment: Concentrator Effects of Buildings. Ph.D. Thesis, Technische Universiteit, Delf, The Netherlands, 2006. [Google Scholar]
- Stankovic, S.; Campbell, N.; Harries, A. Urban Wind Energy; Earthscan: London, UK, 2009; pp. 145–175. ISBN 978-1-84407-282-8. [Google Scholar]
- Ferreira, C.S.A.; Bussel, G.V.; Kuik, G.V. 2D CFD simulation of dynamic stall on a vertical axis wind turbine: Verification and validation with PIV measurements. In Proceedings of the 45th AIAA Aerospace Sciences Meeting and Exhibit, Reno, NV, USA, 8 January 2007; American Institute of Aeronautics and Astronautics (AIAA): Reston, VA, USA, 2007; pp. 1–11. [Google Scholar]
- Nobile, R.; Vahdati, M.; Barlow, J.; Mewburn-Crook, A. Dynamic stall for a vertical axis wind turbine in a two-dimensional study. Wind Energy Appl. 2011, 4225–4232. [Google Scholar] [CrossRef]
- Balduzzi, F.; Bianchini, A.; Carnevale, E.; Chesi, A.; Ferrari, L. Influence of the building geometry on microeolic installations in the urban context. In Proceedings of the World Renewable Energy Congress (WREC) XI, Abu Dhabi, UAE, 25–30 September 2010. [Google Scholar]
- Eriksson, S.; Bernhoff, H.; Leijon, M. Evaluation of different turbine concepts for wind power. Renew. Sustain. Energy Rev. 2008, 12, 1419–1434. [Google Scholar] [CrossRef]
- Ackermann, T.; SoÈder, L. Wind energy technology and current status: A review. Renew. Sustain. Energy Rev. 2000, 4, 315–374. [Google Scholar] [CrossRef]
- Hyun, B.-S.; Choi, D.-H.; Han, J.-S.; Jin, J.-Y. Performance Analysis and Design of Vertical Axis Tidal Stream Turbine. J. Shipp. Ocean Eng. 2012, 2, 191–200. [Google Scholar]
- Dominy, R.; Lunt, P.; Bickerdyke, A.; Dominy, J. Self-starting capability of a Darrieus turbine. Proc. IME J. Power Energy 2007, 221, 111–120. [Google Scholar] [CrossRef]
- Hill, N.; Dominy, R.; Ingram, G.; Dominy, J. Darrieus turbines: The physics of self-starting. Proc. IME J. Power Energy 2008, 223, 21–29. [Google Scholar] [CrossRef]
- Guirguisa, N.; El-Aziz, A.A.; Nassief, M. Study of wind effects on different buildings of pitched roofs. Desalination 2007, 209, 190–198. [Google Scholar] [CrossRef]
- Tabrizi, A.B.; Whale, J.; Lyons, T.; Urmee, T. Performance and safety of rooftop wind turbines: Use of CFD to gain insight into inflow conditions. Renew. Energy 2014, 67, 242–251. [Google Scholar] [CrossRef]
- Nightingale, C.G.E. Wind Energy Conversion System for Pitched Roof Building. U.S. Patent 8,120,193, 21 February 2012. [Google Scholar]
- Miller, R.S. Crossflow Wind Turbine. U.S. Patent No. 7,189,050, 13 May 2011. [Google Scholar]
- Kanyako, F.; Janajreh, I. Implementation and economical study of HAWT under different wind scenarios. Sustain. Cities Soc. 2015, 15, 153–160. [Google Scholar] [CrossRef]
- Chong, W.T.; Fazlizan, A.; Poh, S.C.; Pan, K.C.; Ping, H.W. Early development of an innovative building integrated wind, solar and rain water harvester for urban high rise application. Energy Build. 2012, 47, 201–207. [Google Scholar] [CrossRef]
- Krishnan, A.; Paraschivoiu, M. 3D analysis of building mounted VAWT with diffuser shaped shroud. Sustain. Cities Soc. 2016, 27, 160–166. [Google Scholar] [CrossRef]
- Takao, M.; Kuma, H.; Maeda, T.; Kamada, Y.; Oki, M.; Minoda, A. A straight-bladed vertical axis wind turbine with a directed guide vane row—Effect of guide vane geometry on the performance. J. Therm. Sci. 2009, 18, 54–57. [Google Scholar] [CrossRef]
- Müller, G.; Jentsch, M.F.; Stoddart, E. Vertical axis resistance type wind turbines for use in buildings. Renew. Energy 2009, 34, 1407–1412. [Google Scholar] [CrossRef]
- Kirke, B.K. Tests on ducted and bare helical and straight blade Darrieus hydrokinetic turbines. Renew. Energy 2011, 36, 3013–3022. [Google Scholar] [CrossRef]
- Siow, W.S. Formulation of Empirical Models for Solar Module by Optimisation of Its Tilt-Angle under Natural Conditions. Master’s Thesis, Universiti Putra Malaysia, Seri Kembangan, Malaysia, 2001. [Google Scholar]
- Wang, X.H.; Chong, W.T.; Wong, K.H.; Wang, C.-T.; Saw, L.H.; Poh, S.C.; Lai, S.H. Preliminary Assessment of Optimized Accessorial Roof Shape for Performance of Wind Turbine Mounted on Eco-Roof System. Int. J. Precis. Eng. Manuf.-Green Technol. 2018, 5, 375–385. [Google Scholar] [CrossRef]
- Chong, W.T.; Wang, X.H.; Wong, K.H.; Mojumder, J.C.; Poh, S.C.; Saw, L.H.; Lai, S.H. Performance assessment of a hybrid solar-wind-rain eco-roof system for buildings. Energy Build. 2016, 127, 1028–1042. [Google Scholar] [CrossRef]
- Chong, W.T.; Gwani, M.; Tan, C.J.; Muzammil, W.K.; Poh, S.C.; Wong, K.H. Design and Testing of a Novel Building Integrated Cross Axis Wind Turbine. Appl. Sci. 2017, 7, 251–272. [Google Scholar] [CrossRef]
- Chong, W.; Fazlizan, A.; Poh, S.; Pan, K.; Hew, W.; Hsiao, F. The design, simulation and testing of an urban vertical axis wind turbine with the omni-direction-guide-vane. Appl. Energy 2013, 112, 601–609. [Google Scholar] [CrossRef]
- Nobile, R.; Vahdati, M.; Barlow, J.F.; Mewburn-Crook, A. Unsteady flow simulation of a vertical axis augmented wind turbine: A two-dimensional study. J. Wind Eng. Ind. Aerodyn. 2014, 125, 168–179. [Google Scholar] [CrossRef]
- Ferreira, C.J.S.; Bijl, H.; Bussel, G.V.; Kuik, G.V. Simulating Dynamic Stall in a 2D VAWT: Modeling strategy, verification and validation with Particle Image Velocimetry data. J. Phys. Conf. Ser. 2007, 75, 012023. [Google Scholar] [CrossRef]
- Wang, S.; Ingham, D.B.; Ma, L.; Pourkashanian, M.; Tao, Z. Numerical investigations on dynamic stall of low Reynolds number flow around oscillating airfoils. Comput. Fluid. 2010, 39, 1529–1541. [Google Scholar] [CrossRef]
- Cable, M. An Evaluation of Turbulence Models for the Numerical Study of Forced and Natural Convective Flow in Atria. Master’s Thesis, Queen’s University, Kingston, ON, Canada, 2009. [Google Scholar]
- Sodja, J. Turbulence Models in CFD; Seminar Paper; University of Ljubljana: Ljubljana, Slovenia, 2007. [Google Scholar]
- Rodi, W. Turbulence Models and Their Application in Hydraulics, 3rd ed.; Routledge: New York, NY, USA, 2017; pp. 26–34. ISBN 1351406582. [Google Scholar]
- Orszag, S.A.; Staroselsky, I.; Flannery, W.; Zhang, Y. Introduction to renormalization group modeling of turbulence. In Simulation and Modeling of Turbulent Flows; Thomas, B., Gatski, M., Eds.; Oxford University Press: New York, NY, USA, 1996; pp. 155–183. ISBN 0-19-510643-1. [Google Scholar]
- Shih, T.-H.; Liou, W.W.; Shabbir, A.; Yang, Z.; Zhu, J. A new k-ϵ eddy viscosity model for high reynolds number turbulent flows. Comput. Fluids 1995, 24, 227–238. [Google Scholar] [CrossRef]
- Lam, H.F.; Peng, H.Y. Study of wake characteristics of a vertical axis wind turbine by two- and three-dimensional computational fluid dynamics simulations. Renew. Energy 2016, 90, 386–398. [Google Scholar] [CrossRef]
- Bedon, G.; De Betta, S.; Benini, E. A computational assessment of the aerodynamic performance of a tilted Darrieus wind turbine. J. Wind Eng. Ind. Aerodyn. 2015, 145 (Suppl. C), 263–269. [Google Scholar] [CrossRef]
- Chowdhury, A.M.; Akimoto, H.; Hara, Y. Comparative CFD analysis of Vertical Axis Wind Turbine in upright and tilted configuration. Renew. Energy 2016, 85, 327–337. [Google Scholar] [CrossRef]
- Wong, K.H.; Chong, W.T.; Poh, S.C.; Shiah, Y.-C.; Sukiman, N.L.; Wang, C.-T. 3D CFD simulation and parametric study of a flat plate deflector for vertical axis wind turbine. Renew. Energy 2018, 129, 32–55. [Google Scholar] [CrossRef]
- Oler, J.; Strickland, J.; Im, B.; Graham, G. Dynamic Stall Regulation of the Darrieus Turbine; Sandia National Laboratories: Albuquerque, NM, USA, 1983. [Google Scholar]
- Pan, K.C. The Design and Testing of a Power Augmented Wind Turbine System for Urban High Rise Application. Master’s Thesis, University of Malaya, Kuala Lumpur, Malaysia, 2012. [Google Scholar]
- Deglaire, P.; Engblom, S.; Ågren, O.; Bernhoff, H. Analytical solutions for a single blade in vertical axis turbine motion in two-dimensions. Eur. J. Mech. B Fluid 2009, 28, 506–520. [Google Scholar] [CrossRef]
- Mondol, J.D.; Yohanis, Y.G.; Norton, B. The impact of array inclination and orientation on the performance of a grid-connected photovoltaic system. Renew. Energy 2007, 32, 118–140. [Google Scholar] [CrossRef]
- Decker, B.; Jahn, U. Performance of 170 grid connected PV plants in northern Germany—Analysis of yields and optimization potentials. Sol. Energy 1997, 59, 127–133. [Google Scholar] [CrossRef]
- FiT Rates for Renewable Sources (Solar PV) (21 years from FiT Commencement Date), Sustainable Energy Development Authority Malaysia. Available online: http://www.seda.gov.my/ (accessed on 15 August 2018).
- Chong, W.T.; Naghavi, M.S.; Poh, S.C.; Mahlia, T.M.I.; Pan, K.C. Techno-economic analysis of a wind–solar hybrid renewable energy system with rainwater collection feature for urban high-rise application. Appl. Energy 2011, 88, 4067–4077. [Google Scholar] [CrossRef]
- Photovoltaic Economics. PVresources. Available online: http://www.pvresources.com/ (accessed on 15 August 2018).
- Wind Energy—The Facts, Cost and Prices. European Wind Energy Association. Available online: http://www.ewea.org/fileadmin/ewea_documents/documents/publications/WETF/Facts_Volume_2.pdf (accessed on 15 August 2018).
- PV O&M Cost Model and Cost Reduction. Available online: https://www.nrel.gov/docs/fy17osti/68023.pdf (accessed on 13 September 2018).
- Life-Cycle Thinking for the Oil and Gas Exploration and Production Industry. Available online: www.evs.anl.gov/pub/dsp_detail.cfm?PubID=2154 (accessed on 13 September 2018).
- Malaysia Inflation Rate. Trading Economics. Available online: http://www.tradingeconomics.com/economics/inflation-cpi.aspx?symbol=myr (accessed on 13 September 2018).
- Castelli, M.R.; Englaro, A.; Benini, E. The Darrieus wind turbine: Proposal for a new performance prediction model based on CFD. Energy 2011, 36, 4919–4934. [Google Scholar] [CrossRef]
- Rezaeiha, A.; Kalkman, I.; Blocken, B. Effect of pitch angle on power performance and aerodynamics of a vertical axis wind turbine. Appl. Energy 2017, 197, 132–150. [Google Scholar] [CrossRef]
© 2018 by the authors. Licensee MDPI, Basel, Switzerland. This article is an open access article distributed under the terms and conditions of the Creative Commons Attribution (CC BY) license (http://creativecommons.org/licenses/by/4.0/).