Streamline Intelligent Crowd Monitoring with IoT Cloud Computing Middleware
Abstract
1. Introduction
- Environment layer: to monitor the resources and capabilities of computing systems, suggesting extensions or modifications of existing properties and capabilities.
- Environment management layer: to oversee all relevant resources and enhance the reliability and continuity of operations.
- Task management layer: to manage the tasks, content, and requirements of services and dependencies of objects.
2. Aims, Objectives, and Technical Contribution
3. Related Work
4. Materials and Methods
4.1. MapReduce
- map (k1, v1) → list (k2, v2)and
- reduce (k2, list (v2)) → list (v2))
- JobTracker: Acts as the leader, overseeing the complete execution of the submitted job.
- Multiple TaskTrackers: Function as followers, each executing a portion of the job.
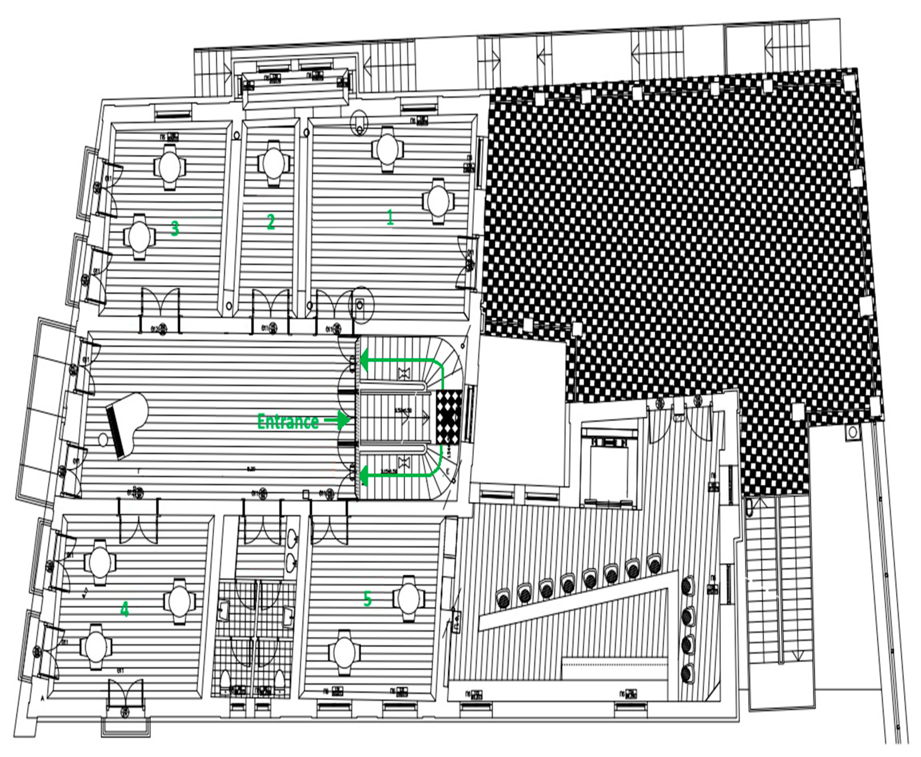
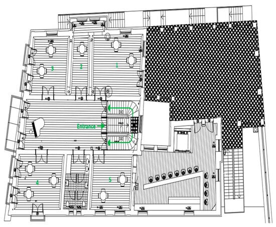
4.2. Case Study: Historical Building in Greece
4.3. Case Study: Experimental Setup
4.4. Fault-Tolerant WSN Algorithm and MapReduce Implementation
4.4.1. Fault Tolerance Algorithm
| Algorithm 1. Figure 3’s algorithmic steps of the proposed solution using a generic software description of each state. |
| # Function: run_wsn_monitoring_system() def run_wsn_Middleware_system(): # Initialize variables node_id = register_node() # Register node and get ID server_id = get_server_id() # Get current server ID while True: # Check server availability every 20 min if not is_server_available(server_id): server_id = elect_leader() # Trigger leader election # Generate and transmit sensor data every 20 min data = generate_sensor_data() send_data_to_server(server_id, data) # Receive processing instructions from the server instructions = receive_instructions_from_server() # Process data based on instructions (e.g., map-reduce) processed_data = process_data(instructions) # Send processed data back to the server send_data_to_server(server_id, processed_data) # Receive and display a success message message = receive_message_from_server() print(message) # Wait for the next cycle time.sleep(20 × 60) # Sleep for 20 min # Helper functions def register_node(): # … registers node and returns ID def get_server_id(): # … retrieves current server ID def is_server_available(server_id): # … checks server availability def elect_leader(): # … conducts leader election def generate_sensor_data(): # … generates visitor and room measurements data def send_data_to_server(server_id, data): # … sends data to server using UDP def receive_instructions_from_server(): # … waits and receives server instructions def process_data(instructions): # … processes data based on received instructions def receive_message_from_server(): # … waits for and receives a message from the server |
4.4.2. Map Reduce Visitor Count Rationale
4.5. Storage Properties (DB and Information)
4.6. Middleware Architecture Proposed
- Environment Layer: This layer oversees the system’s capabilities and properties, ensuring optimal performance and resource utilization.
- Physical Layer: Comprises the actual mini-computers, such as Raspberry Pis, utilized for data storage, inter-device connectivity, and interaction with the remote database. These computers form the hardware foundation of our middleware.
- Environment Management Layer: Concentrates on the reliability and continuous operation of the system:
- Network Layer: Encompasses cloud computing functionalities and communication processes, including establishing connections, performing CRUD (Create, Read, Update, Delete) operations with the database, and managing server–client IP addresses and port information. Communication is facilitated through UDP (User Datagram Protocol) via a WebSocket protocol, ensuring efficient message exchange.
- Task Management Layer: Targets the execution of tasks and management of system dependencies:
- Application Layer: Contains the core implementation of our middleware, encompassing algorithm services, endpoints for interaction and connectivity, and the execution of the MapReduce method in both visitor and room count modes, along with the analysis of the resulting data.
- Data Layer: Responsible for the local storage of sensor measurements and the aggregation of server results in the event of system interruptions or errors. This layer plays a crucial role in performing ETL (Extract, Transform, Load) operations, ensuring data integrity and availability.
5. Results
- The placement of sensory devices and the study of the blueprints for placing these devices are similar to the methodology used in monitoring the structure of heritage buildings [95]. Additionally, we studied the implementation of a WSN for pet location monitoring, which provided valuable insights into how to track visitors [96]. Furthermore, we examined the application layer for smart environments on a service middleware for users of public and mediated spaces as a means to track crowds and monitor their activities [97].
- Interesting research that aligns with our perspective on how to count and inspect the information loaded on a system is presented in [98]. Although this research specializes in using the Kafka and Redis frameworks, we have managed to achieve similar behavior for fewer than 1000 users (clients in our case). The results presented in their study are superior, but they leverage three web services and use JSON to process the messages/responses of each client. As such, our approach could be used for testing or validating the ground truth of an application. Similarly, our research can be compared with edge-based monitoring and can be used to achieve similar processes to the one presented for edge-based crowd monitoring using Wi-Fi Beacons [99]. Regarding detailed metrics from other research projects that also use the same mini-device, we achieved similar network delay to [100], which specializes in public transport systems using low-cost IoT devices, and similar results to [101], which proposed a crowd density system.
- We managed to approach the network time delay of [98,102], without using the DBSCAN method or clustering/AI techniques and using less-capable hardware, mainly mini-computers, through the flow of our application. While our approach does not match their optimal workflow, we assert that in the early usage and development stages, their application ground truth validation can use our middleware approach to achieve similar results. This allows for testing with minimal effort and on a tight budget.
| Visitors | CPU Usage [%] | RAM Consumption [MB] | Power Consumption [A] |
|---|---|---|---|
| 50 | 43.8 | 846 | 0.80 |
| 100 | 44.4 | 850 | |
| 300 | 54.4 | 870 | 0.81 |
| 500 | 66.8 | 900 | 0.83 |
| 1000 | 74.6 | 999 | 0.84 |

6. Conclusions
Author Contributions
Funding
Institutional Review Board Statement
Informed Consent Statement
Data Availability Statement
Acknowledgments
Conflicts of Interest
References
- Culduz, M. The 4th Industrial Revolution and Its Impact on Entrepreneurial Education. In Reshaping Entrepreneurial Education Within an Industry 4.0 Context; IGI Global: Hershey, PA, USA, 2024; pp. 166–188. [Google Scholar] [CrossRef]
- Srivastava, G.; Sapra, D.; Sinha, A.; Anup, M.; Sinwar, D. Artificial Intelligence and IoT-Assisted Sustainable Manufacturing for Industry 4.0. In Computational Intelligence Based Optimization of Manufacturing Process for Sustainable Materials; CRC Press: Boca Raton, FL, USA, 2024; pp. 15–34. Available online: https://www.taylorfrancis.com/chapters/edit/10.1201/9781003257714-2/artificial-intelligence-iot-assisted-sustainable-manufacturing-industry-4-0-gaurav-srivastava-devika-sapra-akruti-sinha-mahin-anup-deepak-sinwar (accessed on 20 May 2024).
- Jagatheesaperumal, S.K.; Ahmad, K.; Al-Fuqaha, A.; Qadir, J. Advancing Education through Extended Reality and Internet of Everything Enabled Metaverses: Applications, Challenges, and Open Issues. IEEE Trans. Learn. Technol. 2024, 17, 1120–1139. [Google Scholar] [CrossRef]
- Siddharth, D.; Saini, D.J.; Ramchandra, M.; Loganathan, S. Conversational Artificial Intelligence at Industrial Internet of Things. In Conversational Artificial Intelligence; Wiley Online Library: Hoboken, NJ, USA, 2024; pp. 169–183. [Google Scholar] [CrossRef]
- Gazis, A. What is IoT? The Internet of Things Explained. Acad. Lett. 2021, 1003. [Google Scholar] [CrossRef]
- Dev, D.R.; Biradar, V.S.; Chandrasekhar, V.; Sahni, V.; Negi, P. Uncertainty Determination and Reduction through Novel Approach for Industrial IoT. Meas. Sens. 2024, 31, 100995. [Google Scholar] [CrossRef]
- Venkatachalam, N.; Shanmugam, L.; Parkavi, K.; Satheeswari, D. IoT Next Gen and the World of Big Data Computing. In Big Data Computing; CRC Press: Boca Raton, FL, USA, 2024; pp. 1–16. Available online: https://www.taylorfrancis.com/chapters/edit/10.1201/9781032634050-1/iot-next-gen-world-big-data-computing-nirmala-venkatachalam-leninisha-shanmugam-parkavi-satheeswari (accessed on 20 May 2024).
- Subramanian, R. Web 3.0: The Evolution. ITNOW 2022, 64, 44–45. [Google Scholar] [CrossRef]
- Janakova, M. Big Data in Changes: Is Big Data Bigger than Sustainable Development and Research Design? Available online: https://wseas.com/journals/computers/2015/b625805-096.pdf (accessed on 20 May 2024).
- Bojkovic, Z.; Milovanovic, D. Mobile cloud analytics in Big data era. WSEAS Trans. Comput. Res. 2022, 10, 25–28. [Google Scholar] [CrossRef]
- Abgaz, Y.; McCarren, A.; Elger, P.; Solan, D.; Lapuz, N.; Bivol, M.; Jackson, G.; Yilmaz, M.; Buckley, J.; Clarke, P. Decomposition of Monolith Applications into Microservices Architectures: A Systematic Review. IEEE Trans. Softw. Eng. 2023, 49, 4213–4242. [Google Scholar] [CrossRef]
- Zhang, Y.; Zhou, Y. Transparent computing: A new paradigm for pervasive computing. In International Conference on Ubiquitous Intelligence and Computing; Springer: Berlin/Heidelberg, Germany, 2006; pp. 1–11. [Google Scholar] [CrossRef]
- Padmanabhan, P.; Sampath Kumar, K.; John, A. Quality of Service through Path Selecting Algorithm in Pervasive and IoT Computing. Int. J. Electr. Eng. Comput. Sci. 2021, 83–91. Available online: https://wseas.com/journals/eeacs/2021/eeacs2021-012.pdf (accessed on 20 May 2024).
- Huang, A.C.; Ling, B.C.; Ponnekanti, S. Pervasive Computing: What is it good for? In Proceedings of the 1st ACM International Workshop on Data Engineering for Wireless and Mobile Access, Seattle, WA, USA, 20 August 1999; pp. 84–91. [Google Scholar]
- Leiserson, C.E.; Thompson, N.C.; Emer, J.S.; Kuszmaul, B.C.; Lampson, B.W.; Sanchez, D.; Schardl, T.B. There’s plenty of room at the Top: What will drive computer performance after Moore’s law? Science 2020, 368, eaam9744. [Google Scholar] [CrossRef] [PubMed]
- Shalf, J. The future of computing beyond Moore’s Law. Philos. Trans. R. Soc. A 2020, 378, 20190061. [Google Scholar] [CrossRef]
- Perry, T.S. Move over, Moore’s law. Make way for Huang’s law [Spectral Lines]. IEEE Spectrum 2018, 55, 7. [Google Scholar] [CrossRef]
- Gazis, A.; Katsiri, E. Smart Home IoT Sensors: Principles and Applications a Review of Low-Cost and Low-Power Solutions. Int. J. Eng. Technol. Inform. 2021, 2, 19–23. [Google Scholar] [CrossRef]
- Chu, K.M. Understanding IoHT and Edge/Fog Computing Solutions for Smart In-Home Remote Healthcare. Fog Comput. Solut. Smart-Home Remote Healthc. 2022, 21. [Google Scholar] [CrossRef]
- Janković, Z.; Vesin, B. Clean Genetic Algorithm Architecture for Improved Modularity and Extensibility. In Proceedings of the 2023 4th International Conference on Communications, Information, Electronic and Energy Systems (CIEES), Plovdiv, Bulgaria, 23–25 November 2023; pp. 1–4. [Google Scholar] [CrossRef]
- Hu, C. Essentials of Object-Oriented Design. In An Introduction to Software Design: Concepts, Principles, Methodologies, and Techniques; Springer International Publishing: Cham, Switzerland, 2023; pp. 37–73. [Google Scholar] [CrossRef]
- Hähnle, R.; Kamburjan, E.; Scaletta, M. Context-Aware Trace Contracts. In Active Object Languages: Current Research Trends; Springer Nature Switzerland: Cham, Switzerland, 2024; pp. 289–322. [Google Scholar] [CrossRef]
- Ojeda, F.; Mendez, D.; Fajardo, A.; Ellinger, F. On Wireless Sensor Network Models: A Cross-Layer Systematic Review. J. Sens. Actuat. Netw. 2023, 12, 50. [Google Scholar] [CrossRef]
- Gazis, A.; Katsiri, E. Middleware 101: What to Know Now and for the Future. Queue 2022, 20, 10–23. [Google Scholar] [CrossRef]
- Lehmann, G.; Rieger, A.; Blumendorf, M.; Albayrak, S. A 3-Layer Architecture for Smart Environment Models. In Proceedings of the 2010 8th IEEE International Conference on Pervasive Computing and Communications Workshops (PERCOM Workshops), Mannheim, Germany, 29 March–2 April 2010; pp. 636–641. [Google Scholar] [CrossRef]
- Xiao, L.; Zhuang, Z.; Liu, Y. Dynamic Layer Management in Superpeer Architectures. IEEE Trans. Parallel Distrib. Syst. 2005, 16, 1078–1091. [Google Scholar] [CrossRef]
- Agarwal, A.; Dev, A. A Data Prediction Model Based on Extended Cosine Distance for Maximizing Network Lifetime of WSN. WSEAS Trans. Comput. Res. 2019, 7, 23–28. [Google Scholar]
- Bulbul, A.A.; Jibon, R.H.; Rahaman, H.; Biswas, S.; Hossain, M.B.; Abdul Awal, M. Application of WSN in Smart Grid: Present and Future Perspectives. Int. J. Sens. Wirel. Commun. Control 2021, 11, 649–665. [Google Scholar] [CrossRef]
- Oluwashola, A.; Azeez, B.A. Effect of Energy-Efficient Routing for Packet Splitting using Chinese Remainder Theorem (CRT) for Wireless Sensor Networks (WSNS). WSEAS Trans. Commun. 2023, 22, 142–151. [Google Scholar] [CrossRef]
- Li, F.; Wang, L. Application of Data Visualization Technology Under the Background of Big Data. WSEAS Trans. Adv. Eng. Educ. 2022, 19, 175–181. [Google Scholar] [CrossRef]
- Perwej, Y.; Omer, M.K.; Sheta, O.E.; Harb, H.A.; Adrees, M.S. The Future of Internet of Things (IoT) and Its Empowering Technology. Int. J. Eng. Sci. 2019, 9. Available online: https://www.researchgate.net/publication/332060553_The_Future_of_Internet_of_Things_IoT_and_Its_Empowering_Technology (accessed on 20 May 2024).
- Gazis, A. The Advancement of Microsensors in the Age of IoT and Industry 4.0. Microsensors 2023, 1, 122. Available online: https://www.researchgate.net/publication/373719315_The_advancement_of_microsensors_in_the_age_of_IoT_and_Industry_40 (accessed on 20 May 2024). [CrossRef]
- Kobo, H.I.; Abu-Mahfouz, A.M.; Hancke, G.P. A Survey on Software-Defined Wireless Sensor Networks: Challenges and Design Requirements. IEEE Access 2017, 5, 1872–1899. [Google Scholar] [CrossRef]
- Gazis, A.; Katsiri, E. A Wireless Sensor Network for Underground Passages: Remote Sensing and Wildlife Monitoring. Eng. Rep. 2020, 2, e12170. [Google Scholar] [CrossRef]
- Gazis, A.; Katsiri, E. Middleware 101. Commun. ACM 2022, 65, 38–42. [Google Scholar] [CrossRef]
- Champaneria, T.; Jardosh, S.; Makwana, A. Microservices in IoT Middleware Architectures: Architecture, Trends, and Challenges. In IOT with Smart Systems: Proceedings of ICTIS 2022; Springer: Singapore, 2022; Volume 2, pp. 381–395. [Google Scholar] [CrossRef]
- Ali, Z.; Mahmood, A.; Khatoon, S.; Alhakami, W.; Ullah, S.S.; Iqbal, J.; Hussain, S. A Generic Internet of Things (IoT) Middleware for Smart City Applications. Sustainability 2022, 15, 743. [Google Scholar] [CrossRef]
- Sciacco, M. Integrating IoT Devices in 3rd-Party Smart-Home Ecosystems: Local vs. Remote Middleware Solutions. 2022. Available online: https://thesis.unipd.it/handle/20.500.12608/34968 (accessed on 20 May 2024).
- Faris, M.; Mahmud, M.N.; Salleh, M.F.; Alnoor, A. Wireless Sensor Network Security: A Recent Review Based on State-of-the-Art Works. Int. J. Eng. Bus. Manag. 2023, 15, 18479790231157220. [Google Scholar] [CrossRef]
- Rashid, B.; Rehmani, M.H. Applications of Wireless Sensor Networks for Urban Areas: A Survey. J. Netw. Comput. Appl. 2016, 60, 192–219. [Google Scholar] [CrossRef]
- Hussain, R.; Sahgal, J.L.; Mishra, P.; Sharma, B. Application of WSN in Rural Development, Agriculture Water Management. Int. J. Soft Comput. Eng. 2012, 2, 68–72. [Google Scholar]
- Gharghan, S.K.; Nordin, R.; Jawad, A.M.; Jawad, H.M.; Ismail, M. Adaptive Neural Fuzzy Inference System for Accurate Localization of Wireless Sensor Network in Outdoor and Indoor Cycling Applications. IEEE Access 2018, 6, 38475–38489. [Google Scholar] [CrossRef]
- Razavi, H.; Amindavar, H.; Aghaeinia, H. Indoor Tracking Using Auxiliary Particle Filter and Deep Learning in Wireless Sensor Networks. Ad Hoc Netw. 2024, 156, 103441. [Google Scholar] [CrossRef]
- Banga, I.; Paul, A.; Poudyal, D.C.; Muthukumar, S.; Prasad, S. Recent Advances in Gas Detection Methodologies with a Special Focus on Environmental Sensing and Health Monitoring Applications—A Critical Review. ACS Sens. 2023, 8, 3307–3319. [Google Scholar] [CrossRef]
- Chen, D.; Zhang, Y.; Pang, G.; Gao, F.; Duan, L. A Hybrid Scheme for Disaster-Monitoring Applications in Wireless Sensor Networks. Sensors 2023, 23, 5068. [Google Scholar] [CrossRef] [PubMed]
- Batsi, S.; Tennina, S. Wireless Technologies and Network Planning for Water Quality Monitoring: The AQUASENSE Approach. Procedia Comput. Sci. 2024, 231, 63–71. [Google Scholar] [CrossRef]
- More, A.; Wagh, S.; Joshi, K. A Test-Bed for Habitat Monitoring System Using Wi-Fi in Wireless Sensor Networks. In Proceedings of the 2015 IEEE International Conference on Computational Intelligence and Computing Research (ICCIC), Madurai, India, 10–12 December 2015; pp. 1–6. [Google Scholar] [CrossRef]
- Alssaheli, O.; Zainal Abidin, Z.; Zakaria, N.; Abal Abas, Z. Implementation of Network Traffic Monitoring Using Software Defined Networking Ryu Controller. WSEAS Trans. Syst. Control 2021, 16, 270–277. [Google Scholar] [CrossRef]
- Noor, A.Z.; Jasni, M.H.; Yusoff, M.K.; Ghazali, M.M.; Fadzil, A.A.; Nasir, N.H.; Fauadi, M.H. Earthquake Monitoring and Detection Using the Internet of Things as Communication Protocol. In IT Applications for Sustainable Living; Springer Nature: Cham, Switzerland, 2023; pp. 35–41. [Google Scholar] [CrossRef]
- Hidayatullah, N.A.; Putra, R.G.; Atmaja, A.P.; Sudirman, D.E.; Faizin, K.N.; Subkhan, M.F.; Kalam, A. Volcano Multiparameter Monitoring System Based on Internet of Things (IoT). Aust. J. Electr. Electron. Eng. 2020, 17, 228–238. [Google Scholar] [CrossRef]
- Haseeb, K.; Ud Din, I.; Almogren, A.; Islam, N. An Energy Efficient and Secure IoT-Based WSN Framework: An Application to Smart Agriculture. Sensors 2020, 20, 2081. [Google Scholar] [CrossRef] [PubMed]
- Kilaru, A.S.; Madishetty, P.; Yamala, H.V.; Giriraja, C.V. Automatic Remote Farm Irrigation System with WSN and Weather Forecasting; Journal of Physics: Conference Series; IOP Publishing: Bristol, UK, 2022; Volume 2161, p. 012075. [Google Scholar] [CrossRef]
- Manoharan, H.; Basha, A.R.; Teekaraman, Y.; Manoharan, A. Smart Home Autonomous Water Management System for Agricultural Applications. World J. Eng. 2020, 17, 445–455. [Google Scholar] [CrossRef]
- El-Fouly, F.H.; Kachout, M.; Alharbi, Y.; Alshudukhi, J.S.; Alanazi, A.; Ramadan, R.A. Environment-Aware Energy Efficient and Reliable Routing in Real-Time Multi-Sink Wireless Sensor Networks for Smart Cities Applications. Appl. Sci. 2023, 13, 605. [Google Scholar] [CrossRef]
- Chanak, P.; Banerjee, I. Congestion Free Routing Mechanism for IoT-Enabled Wireless Sensor Networks for Smart Healthcare Applications. IEEE Trans. Consum. Electron. 2020, 66, 223–232. [Google Scholar] [CrossRef]
- Saleem, M.U.; Shakir, M.; Usman, M.R.; Bajwa, M.H.; Shabbir, N.; Shams Ghahfarokhi, P.; Daniel, K. Integrating Smart Energy Management System with Internet of Things and Cloud Computing for Efficient Demand Side Management in Smart Grids. Energies 2023, 16, 4835. [Google Scholar] [CrossRef]
- Hilmani, A.; Maizate, A.; Hassouni, L. Automated Real-Time Intelligent Traffic Control System for Smart Cities Using Wireless Sensor Networks. Wirel. Commun. Mob. Comput. 2020, 2020, 1–28. [Google Scholar] [CrossRef]
- Nazaralipoorsoomali, M.; Asghari, P.; Javadi, S.H. Performance Improvement of Routing Protocol for Low-Power and Lossy Networks Protocol in an Internet of Things-Based Smart Retail System. Int. J. Commun. Syst. 2022, 35, e5166. [Google Scholar] [CrossRef]
- Bhola, J.; Soni, S.; Cheema, G.K. Recent Trends for Security Applications in Wireless Sensor Networks–A Technical Review. In Proceedings of the 2019 6th International Conference on Computing for Sustainable Global Development (INDIACom), New Delhi, India, 13–15 March 2019; pp. 707–712. Available online: https://ieeexplore.ieee.org/abstract/document/8991249 (accessed on 20 May 2024).
- Murugesan, S.; Ramalingam, S.; Kanimozhi, P. Theoretical Modelling and Fabrication of Smart Waste Management System for Clean Environment Using WSN and IoT. Mater. Today Proc. 2021, 45, 1908–1913. [Google Scholar] [CrossRef]
- Ilchev, S. Design Considerations, Architecture and Implementation of a Wireless Sensor Network for Use in Smart Education. In International Conference in Methodologies and Intelligent Systems for Technology Enhanced Learning; Springer Nature: Cham, Switzerland, 2023; pp. 182–191. [Google Scholar] [CrossRef]
- Vikash; Mishra, L.; Varma, S. Middleware Technologies for Smart Wireless Sensor Networks Towards Internet of Things: A Comparative Review. Wirel. Pers. Commun. 2021, 116, 1539–1574. [Google Scholar] [CrossRef]
- Mohamed, M.H.; Khafagy, M.H.; Ibrahim, M.H. From Two-Way to Multi-Way: A Comparative Study for Map-Reduce Join Algorithms. WSEAS Trans. Commun. 2018, 17, 129–141. [Google Scholar]
- Sumithra, R.; Paul, S.; Latha, D.P. A Hybrid Algorithm Combining Weighted and Hash T Apriori Algorithms in Map Reduce Model Using Eucalyptus Cloud Platform. WSEAS Trans. Comput. 2015, 14. Available online: https://wseas.com/journals/computers/2015/a765705-814.pdf (accessed on 20 May 2024).
- Hedayati, S.; Maleki, N.; Olsson, T.; Ahlgren, F.; Seyednezhad, M.; Berahmand, K. MapReduce Scheduling Algorithms in Hadoop: A Systematic Study. J. Cloud Comput. 2023, 12, 143. [Google Scholar] [CrossRef]
- Dean, J.; Ghemawat, S. MapReduce: Simplified Data Processing on Large Clusters. Commun. ACM 2008, 51, 107–113. [Google Scholar] [CrossRef]
- Kumar, V.; Kushwaha, S. Map-Reduce Task Scheduling Optimization Techniques: A Comparative Study. In Proceedings of the 2023 7th International Conference on Trends in Electronics and Informatics (ICOEI), Tirunelveli, India, 11–13 April 2023; pp. 729–736. [Google Scholar] [CrossRef]
- Navimipour, S.N. MapReduce and Its Applications, Challenges, and Architecture: A Comprehensive Review and Directions for Future Research. J. Grid Comput. 2017, 295–322. [Google Scholar] [CrossRef]
- Sarkar, A. MapReduce: A Comprehensive Study on Applications, Scope and Challenges. Int. J. Adv. Res. Comput. Sci. Manag. Stud. 2015, 3, 256–272. [Google Scholar]
- Ma, C.; Zhao, M.; Zhao, Y. An Overview of Hadoop Applications in Transportation Big Data. J. Traffic Transp. Eng. 2023, 10, 900–917. [Google Scholar] [CrossRef]
- Ibtisum, S.; Bazgir, E.; Rahman, S.A.; Hossain, S.S. A Comparative Analysis of Big Data Processing Paradigms: MapReduce vs. Apache Spark. World J. Adv. Res. Rev. 2023, 20, 1089–1098. [Google Scholar] [CrossRef]
- Sharafeldeen, A.; Alrahmawy, M.; Elmougy, S. Graph Partitioning MapReduce-Based Algorithms for Counting Triangles in Large-Scale Graphs. Sci. Rep. 2023, 13, 166. [Google Scholar] [CrossRef] [PubMed]
- Leung, C.K. Big Data Mining and Analytics with MapReduce. In Encyclopedia of Data Science and Machine Learning; IGI Global: Hershey, PA, USA, 2023; pp. 156–172. [Google Scholar] [CrossRef]
- Wedashwara, W.; Irmawati, B.; Wijayanto, H.; Arimbawa, I.W.; Widartha, V.P. Text Classification Using Genetic Programming with Implementation of Map Reduce and Scraping. JOIV Int. J. Inform. Vis. 2023, 7, 384–390. [Google Scholar] [CrossRef]
- Qi, F. A MapReduce-Based Approach to Social Network Big Data Mining. J. Comput. Methods Sci. Eng. 2023, 1–3. [Google Scholar] [CrossRef]
- Al-Khasawneh, M.A.; Faheem, M.; Aldhahri, E.A.; Alzahrani, A.; Alarood, A.A. A MapReduce Based Approach for Secure Batch Satellite Image Encryption. IEEE Access 2023, 11, 62865–62878. [Google Scholar] [CrossRef]
- Liu, C.; Liu, S.; Osmani, A. An Ensemble Clustering Method Based on Consistency Cluster Consensus Approach and MapReduce Model. Trans. Emerg. Telecommun. Technol. 2023, 34, e4695. [Google Scholar] [CrossRef]
- Hashem, I.A.; Anuar, N.B.; Gani, A.; Yaqoob, I.; Xia, F.; Khan, S.U. MapReduce: Review and Open Challenges. Scientometrics 2016, 109, 389–422. [Google Scholar] [CrossRef]
- Li, F.; Ooi, B.C.; Özsu, M.T.; Wu, S. Distributed Data Management Using MapReduce. ACM Comput. Surv. (CSUR) 2014, 46, 1–42. [Google Scholar] [CrossRef]
- Gazis, A.; Katsiri, E. Crowd Tracking and Monitoring Middleware via Map-Reduce. Int. J. Parallel Emergent Distrib. Syst. 2022, 37, 333–343. [Google Scholar] [CrossRef]
- Manjaly, J.S.; Chooralil, V.S. Tasktracker Aware Scheduling for Hadoop MapReduce. In Proceedings of the 2013 Third International Conference on Advances in Computing and Communications, Cochin, India, 29–31 August 2013; pp. 278–281. [Google Scholar] [CrossRef]
- Mittal, M.; Singh, H.; Paliwal, K.K.; Goyal, L.M. Efficient Random Data Accessing in MapReduce. In Proceedings of the 2017 International Conference on Infocom Technologies and Unmanned Systems (Trends and Future Directions) (ICTUS), Dubai, United Arab Emirates, 18–20 December 2017; pp. 552–556. [Google Scholar] [CrossRef]
- Kanellopoulos, P.A. An “Impossible” Place: The Creative Antinomies of Manos Hadjidakis’ Modernism. In Made in Greece; Routledge: London, UK, 2018; pp. 65–82. Available online: https://www.taylorfrancis.com/chapters/edit/10.4324/9781315749075-8/impossible-place-panagiotis-kanellopoulos (accessed on 20 May 2024).
- McDowell, M.A.; Fryar, C.D.; Ogden, C.L. Anthropometric Reference Data for Children and Adults: United States, 1988–1994. In Vital Health Stat; Series 11, Data from the National Health Survey; Europe PMC: Cambridge, UK, 2009; Volume 249, pp. 1–68. Available online: http://europepmc.org/abstract/MED/19642512 (accessed on 20 May 2024).
- Süzen, A.A.; Duman, B.; Şen, B. Benchmark Analysis of Jetson TX2, Jetson Nano and Raspberry Pi Using Deep-CNN. In Proceedings of the 2020 International Congress on Human-Computer Interaction, Optimization and Robotic Applications (HORA), Ankara, Turkey, 26–28 June 2020; pp. 1–5. [Google Scholar] [CrossRef]
- Ruiz, E.; Ortiz, M.; Vinces, L. A Computational Comparative Analysis Between Nvidia Jetson Nano and Raspberry Pi CM4 for the Classification of White Asparagus with SVM. In Brazilian Technology Symposium; Springer International Publishing: Cham, Switzerland, 2021; pp. 506–513. [Google Scholar] [CrossRef]
- Kumari, P.; Nandal, R. A Research Paper on Website Development Optimization Using Xampp/PHP. Int. J. Adv. Res. Comput. Sci. 2017, 8. Available online: https://openurl.ebsco.com/EPDB%3Agcd%3A16%3A3282592/detailv2?sid=ebsco%3Aplink%3Ascholar&id=ebsco%3Agcd%3A124636585&crl=c (accessed on 20 May 2024).
- db4free-MySQL Database for Free [Internet]. db4free.net. 2024. Available online: https://www.db4free.net (accessed on 20 May 2024).
- Knoche, H.; Eichelberger, H. Using the Raspberry Pi and docker for replicable performance experiments: Experience paper. In Proceedings of the 2018 ACM/SPEC International Conference on Performance Engineering, Berlin, Germany, 9–13 April 2018; ACM: New York, NY, USA, 2018; pp. 305–316. Available online: https://dl.acm.org/doi/abs/10.1145/3184407.3184431 (accessed on 31 May 2024).
- Gamess, E.; Hernandez, S. Performance evaluation of different Raspberry Pi models for a broad spectrum of interests. Int. J. Adv. Comput. Sci. Appl. 2022, 13, 2. [Google Scholar] [CrossRef]
- Graham, A.G.; Legault, J.P.; Soontiens, H.; Brown, J.; MacKay, S.A.; Dueck, G.W.; Maier, D. Evaluating the Performance of the Eclipse OpenJ9 JVM JIT Compiler on AArch64. In Proceedings of the 2022 IEEE Canadian Conference on Electrical and Computer Engineering (CCECE), Halifax, NS, Canada, 18–20 September 2022; IEEE: Piscataway, NJ, USA, 2022; pp. 411–418. [Google Scholar] [CrossRef]
- Suganuma, T.; Yasue, T.; Kawahito, M.; Komatsu, H.; Nakatani, T. A dynamic optimization framework for a Java just-in-time compiler. ACM Sigplan Not. 2001, 36, 180–195. [Google Scholar] [CrossRef]
- Du, Y.; Issarny, V.; Sailhan, F. When the power of the crowd meets the intelligence of the middleware: The mobile phone sensing case. ACM Sigops Oper. Syst. Rev. 2019, 53, 85–90. [Google Scholar] [CrossRef]
- Lefèvre, B.; Agarwal, R.; Issarny, V.; Mallet, V. Mobile crowd-sensing as a resource for contextualized urban public policies: A study using three use cases on noise and soundscape monitoring. Cities Health 2021, 5, 179–197. [Google Scholar] [CrossRef]
- Ceriotti, M.; Mottola, L.; Picco, G.P.; Murphy, A.L.; Guna, S.; Corra, M.; Zanon, P. Monitoring heritage buildings with wireless sensor networks: The Torre Aquila deployment. In Proceedings of the 2009 International Conference on Information Processing in Sensor Networks, San Francisco, CA, USA, 13–16 April 2009; IEEE: Piscataway, NJ, USA, 2009; pp. 277–288. Available online: https://ieeexplore.ieee.org/abstract/document/5211924 (accessed on 31 May 2024).
- Aguirre, E.; Lopez-Iturri, P.; Azpilicueta, L.; Astrain, J.J.; Villadangos, J.; Santesteban, D.; Falcone, F. Implementation and analysis of a wireless sensor network-based pet location monitoring system for domestic scenarios. Sensors 2016, 16, 1384. [Google Scholar] [CrossRef] [PubMed]
- Chen, Q.C.; Narasimhan, V.; Lee, H. The potential of IoT-based smart environment in reaction to COVID-19 pandemic. In Projections—Proceedings of the 26th International Conference of the Association for Computer-Aided Architectural Design Research in Asia, CAADRIA 2021, Hong Kong, 29 March–1 April 2021; Globa, A., van Ameijde, J., Fingrut, A., Kim, N., Lo, T.T.S., Eds.; The Association for Computer-Aided Architectural Design Research in Asia (CAADRIA): Hong Kong, China, 2021; Volume 2, pp. 709–718. Available online: https://yonsei.elsevierpure.com/en/publications/the-potential-of-iot-based-smart-environment-in-reaction-to-covid (accessed on 31 May 2024).
- Ji, Z.; Ganchev, I.; O’Droma, M.; Zhao, L.; Zhang, X. A cloud-based car parking middleware for IoT-based smart cities: Design and implementation. Sensors 2014, 14, 22372–22393. [Google Scholar] [CrossRef] [PubMed]
- Gebru, K.; Rapelli, M.; Rusca, R.; Casetti, C.; Chiasserini, C.F.; Giaccone, P. Edge-based passive crowd monitoring through WiFi Beacons. Comput. Commun. 2022, 192, 163–170. [Google Scholar] [CrossRef]
- Vidyasagaran, S.; Devi, S.R.; Varma, A.; Rajesh, A.; Charan, H. A low-cost IoT-based crowd management system for public transport. In Proceedings of the 2017 International Conference on Inventive Computing and Informatics (ICICI), Coimbatore, India, 23–24 November 2017; IEEE: Piscataway, NJ, USA, 2017; pp. 222–225. [Google Scholar] [CrossRef]
- Li, K.; Yuen, C.; Kanhere, S.S.; Hu, K.; Zhang, W.; Jiang, F.; Liu, X. Understanding crowd density with a smartphone sensing system. In Proceedings of the 2018 IEEE 4th World Forum on Internet of Things (WF-IoT), Singapore, 5–8 February 2018; IEEE: Piscataway, NJ, USA, 2018; pp. 517–522. [Google Scholar] [CrossRef]
- Syafrudin, M.; Alfian, G.; Fitriyani, N.L.; Rhee, J. Performance analysis of IoT-based sensor, big data processing, and machine learning model for real-time monitoring system in automotive manufacturing. Sensors 2018, 18, 2946. [Google Scholar] [CrossRef]






| $Client >> man = 1, man = 3, man = 4, man = 2, woman = 3, other = 3, other = 4, other = 3, other = 2, woman = 1, woman = 4, woman = 2, woman = 2, woman = 3, woman = 2, woman = 4 $Server >> {<man, 10>}, {<woman, 21>}, {<other, 12>} |
| $Client >> man = 1, man = 3, man = 4, man = 2, woman = 3, other = 3, other = 4, other = 3, other = 2, woman= 1, woman = 4, woman = 2, woman = 2, woman = 3, woman = 2, woman = 4 $Server >> {<Room1, 2>}, {< Room2, 5>}, {< Room3, 4>}, {< Room4, 5>} |
| Server | Client | |
|---|---|---|
| RAM [MB] | 235 | 195 |
| CPU [%] | 64 | 46 |
| Power [A] | 0.52 | |
| Network Time [ms] | Latency = 64 | TTFB = 520.29 |
Disclaimer/Publisher’s Note: The statements, opinions and data contained in all publications are solely those of the individual author(s) and contributor(s) and not of MDPI and/or the editor(s). MDPI and/or the editor(s) disclaim responsibility for any injury to people or property resulting from any ideas, methods, instructions or products referred to in the content. |
© 2024 by the authors. Licensee MDPI, Basel, Switzerland. This article is an open access article distributed under the terms and conditions of the Creative Commons Attribution (CC BY) license (https://creativecommons.org/licenses/by/4.0/).
Share and Cite
Gazis, A.; Katsiri, E. Streamline Intelligent Crowd Monitoring with IoT Cloud Computing Middleware. Sensors 2024, 24, 3643. https://doi.org/10.3390/s24113643
Gazis A, Katsiri E. Streamline Intelligent Crowd Monitoring with IoT Cloud Computing Middleware. Sensors. 2024; 24(11):3643. https://doi.org/10.3390/s24113643
Chicago/Turabian StyleGazis, Alexandros, and Eleftheria Katsiri. 2024. "Streamline Intelligent Crowd Monitoring with IoT Cloud Computing Middleware" Sensors 24, no. 11: 3643. https://doi.org/10.3390/s24113643
APA StyleGazis, A., & Katsiri, E. (2024). Streamline Intelligent Crowd Monitoring with IoT Cloud Computing Middleware. Sensors, 24(11), 3643. https://doi.org/10.3390/s24113643

