Electrochemical Deposition Treatment (EDT) as a Comprehensive Rehabilitation Method for Corrosion-Induced Deterioration in Concrete with Various Severity Levels
Abstract
:1. Introduction
2. Experimental Methods
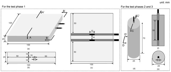
2.1. Preparation of Solid Concrete Specimens
2.2. Preparation of Deteriorated Concrete Specimens
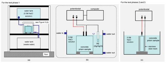
2.3. Rehabiliation of the Deteriorated Concrete Samples by EDT
2.4. Electrochemcial Impedance Spectroscopy (EIS)
3. Results and Discussion
3.1. Test Phase 1: Recovery of Corrosion Protection Performance in the Corrosion Initiation Phase
3.2. Test Phase 2: Recovery of Corrosion-Resistant Performance in the Rust Propagation Phase
3.3. Test Phase 3: Crack-Filling Capability of EDT
4. Conclusions
- (1)
- It was observed from test phase 1 that EDT was an effective method to improve corrosion-resistant properties of the concrete specimens in the initiation phase of corrosion. After EDT using a 0.3 M MgCl2 solution in an electrolyte by applying a constant current −2 µAcm−2 for 24 h, impedance of the steel-and-concrete interface (i.e., charge transfer resistance and solution resistance) increased to prevent de-passivation of steel, even when the concrete specimen was exposed to harsh corrosive environment. The corrosion protection performance is attributed to precipitates on the steel surface that impeded charge transfer rate for the steel corrosion reaction (Fe → Fe2+ + 2e−) and reduction rate of dissolved oxygen (O2+2H2O +4e− → 4OH−) in the rust layer. The use of higher concentration of MgCl2 solutions (i.e., 1M and 3M in this study) was effective for further decreasing the corrosion rate of steel in concrete compared to the use of 0.3M MgCl2 solution.
- (2)
- Furthermore, EDT successfully suppressed the corrosion rate of concrete specimens under high corrosion activity. It was observed that the corrosion rate decreased as the polarization duration in EDT increased. The speed of corrosion rate decrement appears to be slower as the duration of EDT increases. However, it is not clear based on the limited data in this study how much the deteriorated reinforced concrete can be recovered by EDT. More systematic studies are still needed to investigate the corrosion recovery capability of EDT for concrete with various degree of corrosion levels.
- (3)
- From the experimental results of test phase 3, EDT was effective for repairing (closing and filling) a corrosion-induced surface-breaking crack in concrete. From the visual inspection based on optical microscopic and SEM images, precipitation of magnesium ions formed at the mouth of a surface-breaking crack and continued to the crack interface and rust products, eventually reaching the crack tip rooted on the steel-and-concrete interface. One interesting finding in this study is that the post-treatment with a NaOH solution significantly reduced the time for repairing a surface-breaking crack using an EDT process.
- (4)
- Experiments in this study were performed using reduced concrete samples and deteriorated by accelerated corrosion tests in the laboratory. More systematic studies are still needed to better understand the rehabilitation performance EDT for the deteriorated concrete in actual reinforced concrete structures.
Author Contributions
Funding
Institutional Review Board Statement
Informed Consent Statement
Data Availability Statement
Conflicts of Interest
References
- Chen, F.; Baji, H.; Li, C.-Q. A comparative study on factors affecting time to cover cracking as a service life indicator. Constr. Build. Mater. 2018, 163, 681–694. [Google Scholar] [CrossRef]
- Alexander, M.; Beushausen, H. Durability, service life prediction, and modelling for reinforced concrete structures—Review and critique. Cem. Concr. Res. 2019, 122, 17–29. [Google Scholar] [CrossRef]
- Bezuidenhout, S.R.; van Zijl, G.P.A.G. Corrosion propagation in cracked reinforced concrete, toward determining residual service life. Struct. Concr. 2019, 20, 2183–2193. [Google Scholar] [CrossRef]
- Hussain, R.R. Passive Layer Development and Corrosion of Steel in Concrete at the Nano-scale. J. Civ. Environ. Eng. Fract. Mech. 2014, 4, 1000e116. [Google Scholar] [CrossRef] [Green Version]
- Gucunski, N.; National Research Council. Nondestructive Testig to Identify Concrete Bridge Deck Deterioration; SHRP 2 Report S2-R06A-RR-1; Transportation Research Board: Washington, DC, USA, 2013. [Google Scholar]
- Angst, U.M. Challenges and opportunities in corrosion of steel in concrete. Mater. Struct. 2018, 51, 1–20. [Google Scholar] [CrossRef] [Green Version]
- Sohail, M.G.; Kahraman, R.; Alnuaimi, N.A.; Gencturk, B.; Alnahhal, W.; Dawood, M.; Belarbi, A. Electrochemical behavior of mild and corrosion resistant concrete reinforcing steels. Constr. Build. Mater. 2020, 232, 117205. [Google Scholar] [CrossRef]
- Hou, B.; Li, X.; Ma, X.; Du, C.; Zhang, D.; Zheng, M.; Xu, W.; Lu, D.; Ma, F. The cost of corrosion in China. NPJ Mater. Degrad. 2017, 1, 1–10. [Google Scholar] [CrossRef]
- Dunn, C.R.; Ross, R.A.; Davis, G.D. Corrosion Monitoring of Steel Reinforced Concrete Structures Using Embedded Instrumentation. In Proceedings of the NACE Corrosion 2010 Conference and Expo, San Antonio, TX, USA, 14–18 March 2010. [Google Scholar]
- Kim, Y.S.; Lim, H.K.; Kim, J.J.; Hwang, W.S.; Park, Y.S. Corrosion Cost and Corrosion Map of Korea—Based on the Data from 2005 to 2010. Corros. Sci. Technol. 2011, 10, 52–59. [Google Scholar]
- Goyal, A.; Pouya, H.S.; Ganjian, E.; Claisse, P. A Review of Corrosion and Protection of Steel in Concrete. Arab. J. Sci. Eng. 2018, 43, 5035–5055. [Google Scholar] [CrossRef]
- Yokoda, M.; Sasaki, H.; Fukute, T. Rehabilitation and protection of marine concrete member using electrodeposition method. In Proceedings of the International RILEM/CSIRO/ACRA Conference on Rehabilitation of Concrete Members, RILEM, Melbourne, Australia, 31 December 1992. [Google Scholar]
- Sasaki, H.; Yokoda, M. Repair method of marine reinforced concrete by electrodeposition technique. In Proceedings of the Annual Conference of the Japan Concrete Institute; 1992. [Google Scholar]
- Chu, H.; Liang, Y.; Guo, M.Z.; Zhu, Z.; Zhao, S.; Song, Z.; Wang, L.; Jiang, L. Effect of electro-deposition on repair of cracks in reinforced concrete. Constr. Build. Mater. 2020, 238, 117725. [Google Scholar] [CrossRef]
- Chang, J.J.; Yeih, W.C.; Hsu, H.M.; Huang, N.M. Performance Evaluation of Using Electrochemical Deposition as a Repair Method for Reinforced Concrete Beams. Struct. Longev. 2009, 1, 75–93. [Google Scholar]
- Jiang, Z.; Xing, F.; Sun, Z.; Wang, P. Healing Effectiveness of Cracks Rehabilitation in Reinforced Concrete Using Electrodeposition Method. J. Wuhan Univ. Technol. Mater. Sci. Ed. 2008, 23, 917–922. [Google Scholar] [CrossRef]
- Ryu, J.-S.; Otsuki, N. Application of electrochemical techniques for the control of cracks and steel corrosion in concrete. J. Appl. Electrochem. 2002, 32, 635–639. [Google Scholar] [CrossRef]
- Ryou, J.S.; Monteiro, P. Electrodeposition as a rehabilitation method for concrete materials. Can. J. Civ. Eng. 2002, 31, 776–781. [Google Scholar] [CrossRef]
- Otsuki, N.; Ryu, J.-S. Use of Electrodeposition for Repair of Concrete with Shrinkage cracks. J. Mater. Civ. Eng. 2001, 13, 136–142. [Google Scholar] [CrossRef]
- Lima, T.T.; Ann, K.Y. Efficiency of Different Electrolytes on Electrochemical Chloride Extraction to Recover Concrete Structures under Chloride-Induced Corrosion. Adv. Mater. Sci. Eng. 2020, 2020, 6715283. [Google Scholar]
- Ryua, J.-S.; Otsukib, N. Crack closure of reinforced concrete by electrodeposition technique. Cem. Concr. Res. 2002, 32, 159–164. [Google Scholar] [CrossRef]
- Lee, C.-H.; Song, H.-W. Experimental Study on Artificial Crack Healing for Concrete Using Electrochemical Deposition Method. J. Korea Concr. Inst. 2009, 21, 409–417. [Google Scholar] [CrossRef]
- Chu, H.; Jiang, L.; Xiong, C.; You, L.; Xu, N. Use of electrochemical method for repair of concrete cracks. Constr. Build. Mater. 2014, 73, 58–66. [Google Scholar] [CrossRef]
- Nishida, T.; Otsuki, N.; Saito, A. Development of Improved Electrodeposition Method for Repair of Reinforced Concrete Structures. In Proceedings of the 4th International Conference on the Durability of Concrete Structures, Purdue University, West Lafayette, IN, USA, 24–26 July 2014. [Google Scholar]
- Chu, H.; Jiang, L.; Song, Z.; Xu, Y.; Zhao, S.; Xiong, C. Repair of concrete crack by pulse electro-deposition technique. Constr. Build. Mater. 2017, 148, 241–248. [Google Scholar] [CrossRef]
- Meng, Z.; Liu, Q.F.; She, W.; Cai, Y.; Yang, J.; Iqbal, M.F. Electrochemical deposition method for load-induced crack repair of reinforced concrete structures: A numerical study. Eng. Struct. 2021, 246, 112903. [Google Scholar] [CrossRef]
- Zhou, Y.; Liu, W.; Chen, Q.; Li, H.; Zhu, H.; Ju, J. Multiphysics coupling model for the crack repairing process using electrochemical deposition. Constr. Build. Mater. 2020, 264, 120625. [Google Scholar] [CrossRef]
- Chen, Q.; Jiang, Z.; Zhu, H.; Ju, J.; Yan, Z.; Wang, Y. An Improved Micromechanical Framework for Saturated Concrete Repaired by the Electrochemical Deposition Method considering the Imperfect Bonding. J. Eng. 2016, 2016, 1894027. [Google Scholar] [CrossRef] [Green Version]
- Zhu, H.; Chen, Q.; Yan, Z.; Ju, J.W.; Zhou, S. Micromechanical models for saturated concrete repaired by the electrochemical deposition method. Mater. Struct. 2014, 47, 1067–1082. [Google Scholar] [CrossRef]
- Yan, Z.; Chen, Q.; Zhu, H.; Ju, J.W.; Zhou, S.; Jiang, Z. A multi-phase micromechanical model for unsaturated concrete repaired using the electrochemical deposition method. Int. J. Solids Struct. 2013, 50, 3875–3885. [Google Scholar] [CrossRef] [Green Version]
- Maaddawy, T.A.E.; Soudki, K.A. Effectiveness of Impressed Current Technique to Simulate Corrosion of Steel Reinforcement in Concrete. J. Mater. Civ. Eng. 2003, 15, 41–47. [Google Scholar] [CrossRef]
- Jones, D.A. Principles and Prevention of Corrosion, 2nd ed.; Prentice-Hall, Inc.: New York, NY, USA, 1996. [Google Scholar]
- Kim, J.-K.; Kee, S.-H.; Yee, J.-J. EIS monitoring on corroded reinforcing steel in cement mortar aftr calcium electro-deposition treatment. J. Korea Inst. Struct. Maint. Insp. 2019, 23, 1–8. [Google Scholar]
- Kim, J.K.; Kee, S.H.; Futalan, C.M.; Yee, J.J. Corrosion Monitoring of Reinforced Steel Embedded in Cement Mortar under Wet-And-Dry Cycles by Electrochemical Impedance Spectroscopy. Sensors 2019, 2020, 199. [Google Scholar] [CrossRef] [PubMed] [Green Version]
- Establishment, B.R. Corrosion of Steel in Concrete: Investigation and Assessment; BRE Electronic Publications: Watford, UK, 2001. [Google Scholar]
- Xia, D.-H.; Song, S.; Qin, Z.; Hu, W.; Behnamia, Y. Review—Electrochemical Probes and Sensors Designed for TimeDependent Atmospheric Corrosion Monitoring: Fundamentals, Progress, and Challenges. J. Electrochem. Soc. 2020, 167, 037513. [Google Scholar] [CrossRef]
- John, D.G.; Searson, P.C.; Dawson, J.L. Use of AC Impedance Technique in Studies on Steel in Concrete in Immersed Conditions. Br. Corros. J. 1981, 16, 102–106. [Google Scholar] [CrossRef]
- Andrade, C.; Alonso, C. Test methods for on-site corrosion rate measurement of steel reinforcement in concrete by means of the polarization resistance method. Mater. Struct. 2004, 37, 623–643. [Google Scholar] [CrossRef]
- Nishikata, A.; Zhu, Q.; Tada, E. Long-term monitoring of atmospheric corrosion at weathering steel bridges by an electrochemical impedance method. Corros. Sci. 2014, 87, 80–88. [Google Scholar] [CrossRef]
- Lvovich, V.F. Impedance Spectroscopy: Applications to Electrochemical and Dielectric Phenomena; John Wiley & Sons, Inc.: Hoboken, NJ, USA, 2012. [Google Scholar]
- Dong, C.; He, G.; Zheng, W.; Bian, T.; Li, M.; Zhang, D. Study on antibacterial mechanism of Mg(OH)2 nanoparticles. Mater. Lett. 2014, 134, 286–289. [Google Scholar] [CrossRef]















| Test Phase | Specimen No. | Method | Impressed Current | Simulated Corrosion Phase (Target Damage) | |
|---|---|---|---|---|---|
| Density | Duration | ||||
| TP1 | TP1-1 | Exposing specimens to 45 cycles of wetting-and-drying environment | X | X | Initiation phase (de-passivation of steel and low corrosion activity) |
| TP1-2 | |||||
| TP1-3 | |||||
| TP1-4 | |||||
| TP2 | TP2-1 | Using the impressed current technique | X | X | Solid |
| TP2-2 | 0.5 μA/cm2 | 24 h | Rust propagation phase (high corrosion activity) | ||
| TP2-3 | |||||
| TP2-4 | |||||
| TP3 | TP3-1 | 1 mA/cm2 | 24 h | Damage acceleration phase (formation of a surface-breaking crack) | |
| TP3-2 | |||||
| TP3-3 | |||||
| TP3-4 | |||||
| Test Phase | Specimen No. | Pre-Treatment | Deposition | Post-Treatment | Deposition | Post-Treatment | Baking | ||
|---|---|---|---|---|---|---|---|---|---|
| Electrolyte | Current | Duration | |||||||
| ① | ② | ③ | ④ | ⑤ | ⑥ | ||||
| TP1 | TP1-1 | X | X | X | X | X | X | X | 60 °C 5 h |
| TP1-2 | 0.3 M MgCl2 | −2 μA/cm2 | 24 h | X | X | X | |||
| TP1-3 | 1.0 M MgCl2 | ||||||||
| TP1-4 | 3.0 M MgCl2 | ||||||||
| TP2 | TP2-1 | X | X | X | X | X | X | X | |
| TP2-2 | X | X | X | ||||||
| TP2-3 | 2.0 M MgCl2 | −2 μA/cm2 | 48 h | ||||||
| TP2-4 | 168 h | ||||||||
| TP3 | TP3-1 | X | 2.0 M MgCl2 | −2 μA/cm2 | 240 h (10 days) | NaOH (pH 13) | X | X | |
| TP3-2 | O | X | |||||||
| TP3-3 | O | O | |||||||
| TP3-4 | NaOH (pH 13) | X | X | ||||||
| Specimen No. | Fitting Parameters | Two-Frequency Values | ||||||||||
|---|---|---|---|---|---|---|---|---|---|---|---|---|
| R0 kΩcm2 | C1 μFcm−2 | α1 | Rf kΩcm2 | C2 μFcm−2 | α2 | Rc kΩcm2 | W | Rp kΩcm2 | Zlow kΩcm2 | Zhigh kΩcm2 | ||
| TP2-1 | 5.23 × 10−2 | 1.13 × 10−7 | 0.91 | 2.62 × 10−2 | 3.10 × 10−4 | 0.85 | 2.06 × 109 | - | 8.37 × 1014 | 244.09 | 0.07 | 244.02 |
| TP2-2 | 7.85 × 10−2 | 5.40 × 10−7 | 0.66 | 7.28 × 10−2 | 5.20 × 10−4 | 0.78 | 19.5 | 1.59 × 100 | 14.7 | 15.24 | 0.06 | 15.18 |
| TP2-3 | 1.45 × 10−2 | 3.76 × 10−7 | 0.73 | 7.02 × 10−2 | 1.10 × 10−3 | 0.71 | 38.5 | 1.34 × 10−6 | 37.56 | 29.82 | 0.10 | 29.72 |
| TP2-4 | 0.80 × 10−2 | 7.07 × 10−9 | 0.83 | 1.82 × 100 | 5.10 × 10−4 | 0.77 | 165.10 | 2.60 × 10−4 | 135.72 | 92.23 | 1.59 | 90.64 |
Publisher’s Note: MDPI stays neutral with regard to jurisdictional claims in published maps and institutional affiliations. |
© 2021 by the authors. Licensee MDPI, Basel, Switzerland. This article is an open access article distributed under the terms and conditions of the Creative Commons Attribution (CC BY) license (https://creativecommons.org/licenses/by/4.0/).
Share and Cite
Kim, J.-K.; Yee, J.-J.; Kee, S.-H. Electrochemical Deposition Treatment (EDT) as a Comprehensive Rehabilitation Method for Corrosion-Induced Deterioration in Concrete with Various Severity Levels. Sensors 2021, 21, 6287. https://doi.org/10.3390/s21186287
Kim J-K, Yee J-J, Kee S-H. Electrochemical Deposition Treatment (EDT) as a Comprehensive Rehabilitation Method for Corrosion-Induced Deterioration in Concrete with Various Severity Levels. Sensors. 2021; 21(18):6287. https://doi.org/10.3390/s21186287
Chicago/Turabian StyleKim, Je-Kyoung, Jurng-Jae Yee, and Seong-Hoon Kee. 2021. "Electrochemical Deposition Treatment (EDT) as a Comprehensive Rehabilitation Method for Corrosion-Induced Deterioration in Concrete with Various Severity Levels" Sensors 21, no. 18: 6287. https://doi.org/10.3390/s21186287
APA StyleKim, J.-K., Yee, J.-J., & Kee, S.-H. (2021). Electrochemical Deposition Treatment (EDT) as a Comprehensive Rehabilitation Method for Corrosion-Induced Deterioration in Concrete with Various Severity Levels. Sensors, 21(18), 6287. https://doi.org/10.3390/s21186287

