The Architectural Documentation of British Colonial Prefabricated Wooden Heritage: A Case Study of a Nigerian National Monument
Abstract
1. Introduction
2. Research Methodology
2.1. Data Set 1: Historical Data
2.1.1. Archival Research and Ethnography
- Past Drawings and Sketches
- Historic Texts Review
- Historic Photographs and Multimedia
2.1.2. Oral Histories and Semi-Structured Interviews
2.2. Data Set 2: Geometric Data
- Manual Survey
- Photogrammetric Scan
2.3. Data Analysis for Qualitative and Quantitative Data
2.3.1. Data Analysis and Historical Data
- Descriptive Analysis
- Content Analysis
- Narrative Analysis
2.3.2. Geometric Data Analysis
2.3.3. Data Triangulation and Cross Verification
2.3.4. Quality Control for the Parametric Model
3. Introduction to Calabar and the Advent of Foreign Prefabricated Architectural Heritage
3.1. Colonial Contact, the Transatlantic Slave Trade, and the Economic Transformation of Old Calabar
3.2. Transition to the Palm Oil Economy and Its Impact on Old Calabar
3.3. Rise of Middlemen Traders and the Continuity of Elite Dominance
3.4. The Socio-Material Culture of Old Calabar’s Trading Elite
- Chief Egbo Egbo Bassey House (1886)
- Old Residency (1884)
- Hope Waddell Training Institute (1894)
- King Eyamba V’s Iron Palace
- Standard Bank for West Africa, Calabar (1890s)
- The African Association Factory, Fort Stuart, Calabar (1891)
- The Old Consulate (1883)
- Antony Brother’s House, Marina, Calabar (1912)
4. The Chief Egbo Egbo Bassey House
4.1. Note on Chief Egbo Egbo Bassey—The Owner
4.2. The History of the Chief Egbo Egbo Bassey House
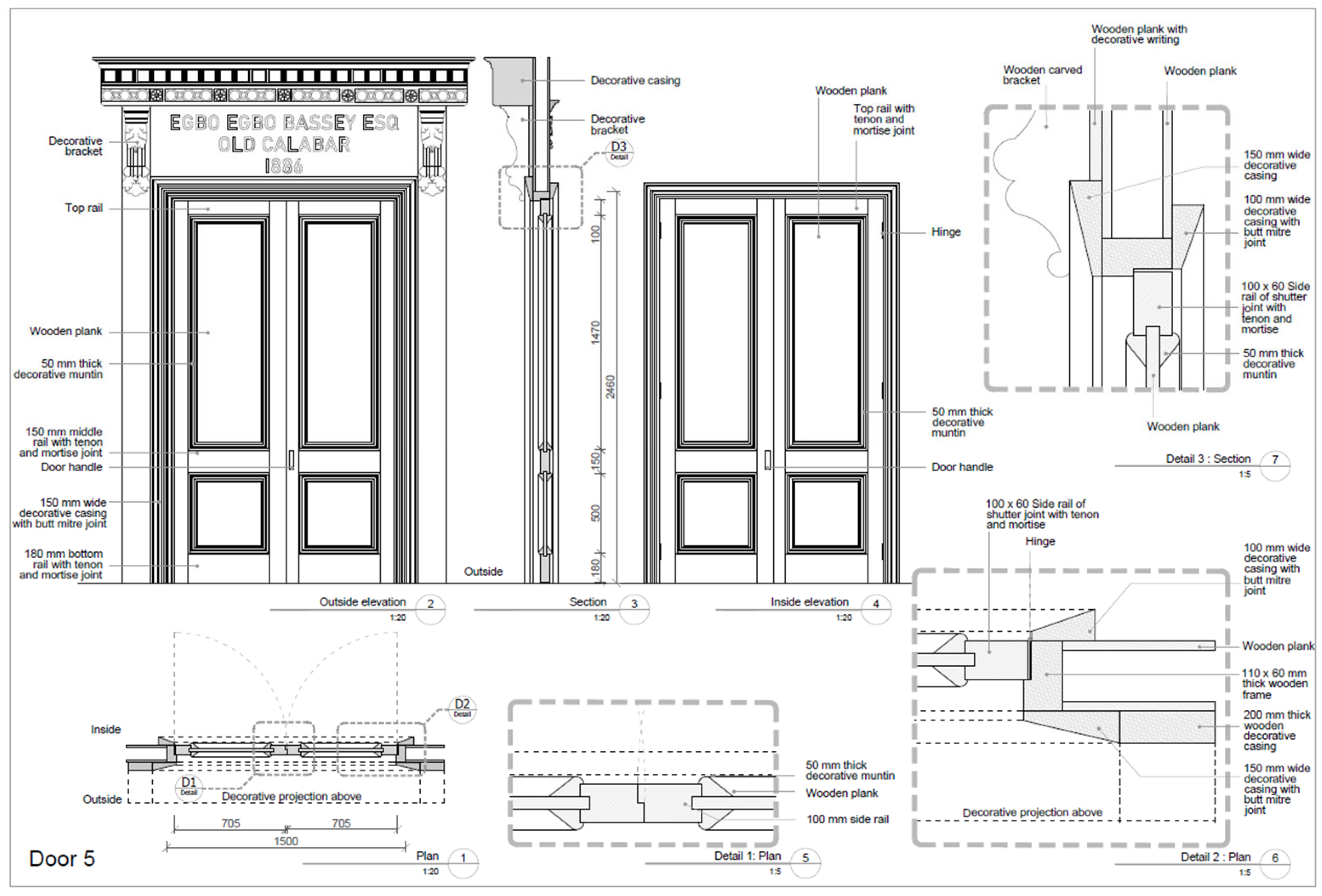
“[…] Chief Egbo Bassey was also an influential trader also followed the footsteps of others, and in the year 1886 he imported a prefabricated building now declared as monument from Europe through the white contractor called Holms and erected it at Cobham town. The cost of the building was estimated to be 300 puncheons of oil. A puncheon of oil then was estimated at 10 pounds (£10). So the cost of the building was about (£3000) three thousand pounds. To show that the house was his bona-fide property, he caused his name to be inscribed on the top entrances to the parlor as follows:- “EGBO EGBO BASSEY ESQR OLD CALABAR 1886”On the first arrival of the Catholic Mission at Calabar in 1903 they resided in this house and after their work in it, free of rent. As a teon of respect and gratitude by the Catholic Mission on the celebration of their Golden Jubilee 1903–1953, they choose to commence the function in no.19 Boko Street, Calabar. After the short service and the sprinkling of Holy Water over the grave of the chief’s at downstair, they requested me as the son of the owner to lead procession from 19 Boko Street, to the present premises now occupied by the Mission.”[46], (p. 19).
“[…] is a fine example of a prefabricated story building, imported by an Efik trader of Old Calabar river, through his trading contacts with British traders in 1886. In the words of Consul E. Hewett “The traders in the Oil Rivers have mostly houses sent from England. The houses are built on iron columns 12 or 14 feet high—the framework is made of single iron. The roofs of corrugated iron—the walls and bull head of red or pitch pine.” (Memo on houses in the Oil Rivers, 1884, FO 2/98, Public Records Office, London). The house is of similar structure as other imported Chief’s houses and government buildings of the late 19th century in Old Calabar.The name of the owner, date and place are inscribed on the wooden cornice over the front door, leading to the central hall. The decorative cast iron columns, supporting the building, carry the stamp of their producers “McFarlane and Co, Glasgow (Scotland)”, who had also supplied the cast-iron supports for the Old Residency, Supreme Court and the Hope Waddell Training Institute buildings in Calabar among other prefabricated houses of the same period […]According to the family lore, the house was specially ordered and paid for by 300 puncheons of palm oil (equivalent to about £3000 at the time) by its owner Obong Egbo Ebo Bassey, alias “Ekpo Ekpriwong”, who was an outstanding figure in the Efik community. and a wealthy merchant of his time. Though a dependent of the Ekpo Abasi family of Duke Town, Egbo Egbo Bassey, through his commercial aptitude and trading abilities, became a prominent trader with the Western Cameroons, Creek Town and Oron and exported ivory, ebony, palm oil, palm kernel etc. through European merchants in exchange for European manufactured trade goods.The house was imported in parts, together with the furnishing; as was customary at the time, and was erected on land given by the master’s family (Ekpo Abasi House of the Lower Cobham Section of Duke Town—an Efik trading settlement on the estuary of the Old Calabar River). […] It is said that the first Roman Catholic Holy mass in Calabar was held in the central hall of the building circa 1902 or 1903 in the presence of Rev. Father (later Bishop) O’Conon and Father Healey (later Catholic Bishop of Onitsha). The Roman Catholic worship was conducted there until the Church service was moved to the present site of the Sacred Heart Cathedral.[…] The building (“the house and compound”) was declared as a National Monument by the Federal Council of Ministers on 14 August 1959 after Nigerian Federal Gazette publications of 5 February 1959 and 7 May 1959 […]”.[46], (p. 20)
4.3. From a Colonial Prefabricated Building to a National Architectural Heritage of Nigeria: Historical Aspects
History of the Acquisition of the Building as a National Monument
- 29 November 1958
- 5 February 1959
- 17 February 1959
- 17 March 1959
- 8 May 1959
- 14 August 1959
- The statue in Opobo representing King Jaja and the land lying within a radius of one hundred feet thereof
- The house and compound in Calabar known as the “Old Residency”, together with the contents thereof
- The house and compound in Calabar known as Old Consulate

- 2 September 1959
- 14 October 1959
“HISTORIC MONUMENT:Chief Egbo Bassey’s House No. 19, Duke Street, Cobham Town.This fine example of a prefabricated house was the property of Chief Egbo Bassey, otherwise known as Ekpo Ekpriwang Ekpo Abasi, who was one of the most important traders in Calabar at the close of the nineteenth century. The component parts of the house were made in England and shipped to Calabar, where the house was erected in 1886. The house was paid for with three hundred puncheons of palm oil, a puncheon in those days being worth about ten pounds”
4.4. Official Handover of the Building to the NCMM: The Centenary Year—1986
4.5. Historical State of Conservation and Damages
4.6. Geometric Data
4.6.1. Architectural Data of Chief Egbo Egbo Bassey House
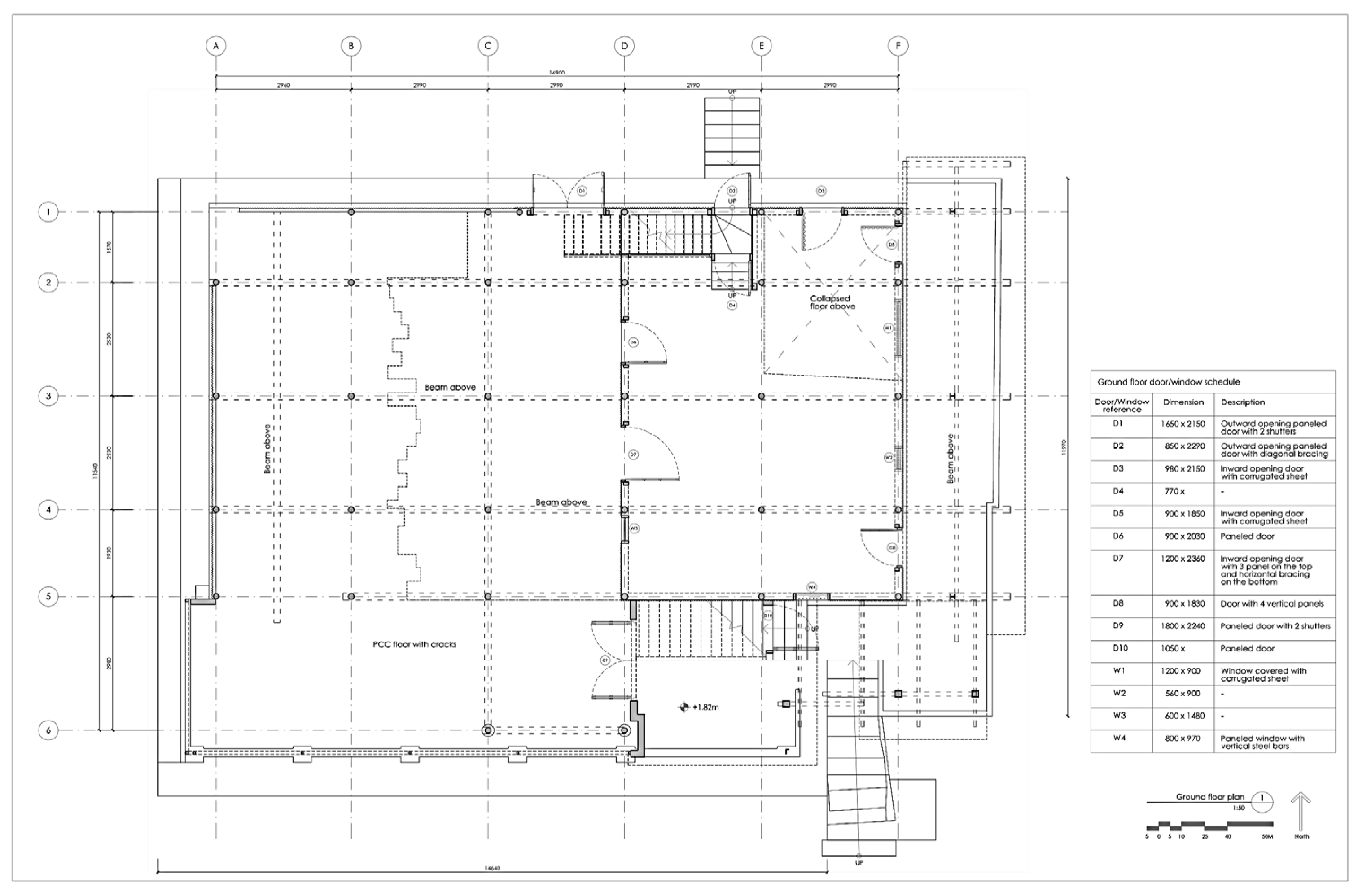
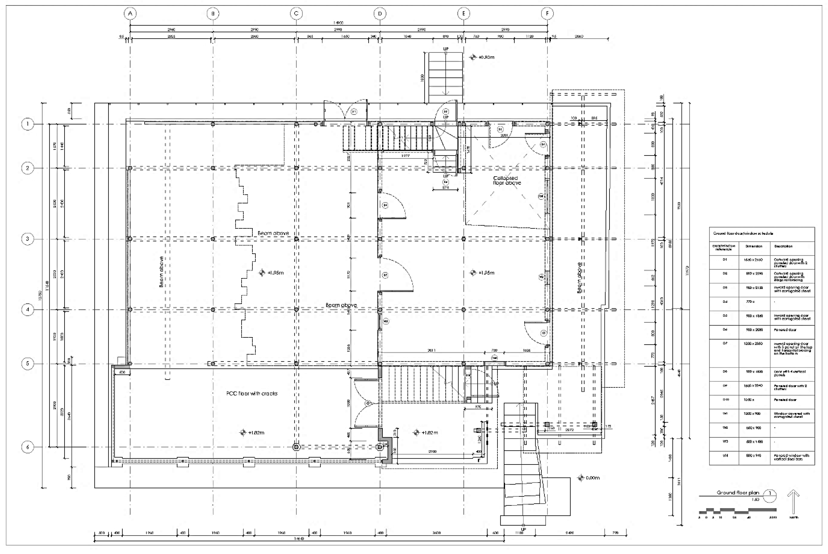
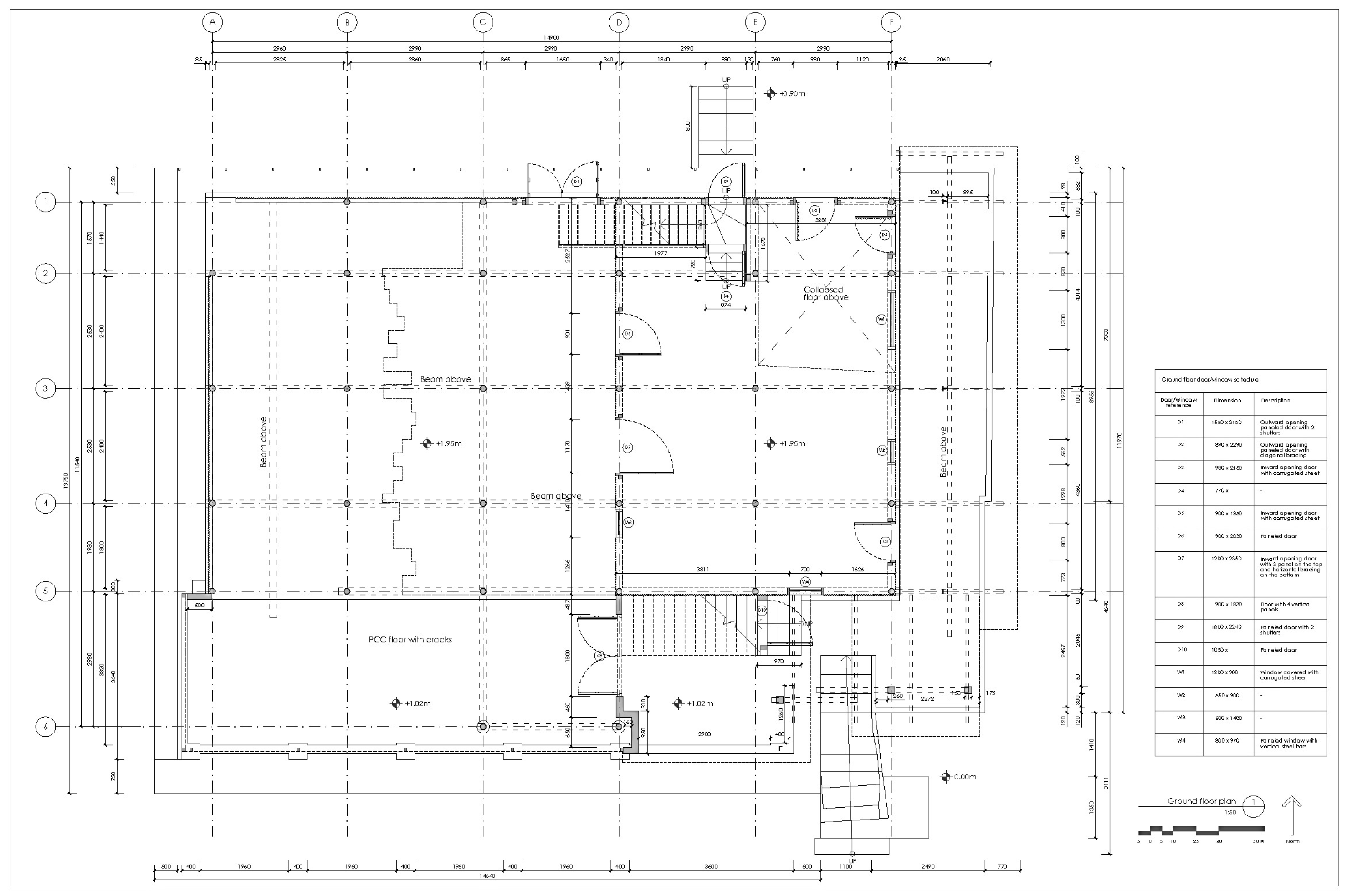
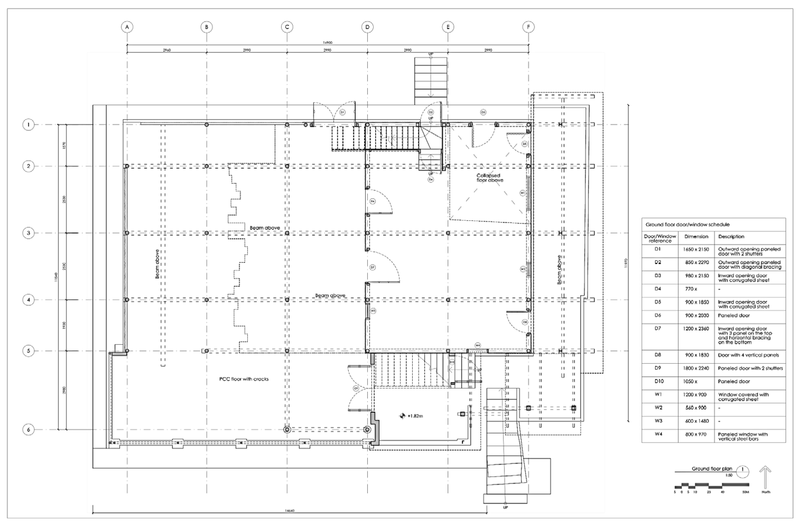
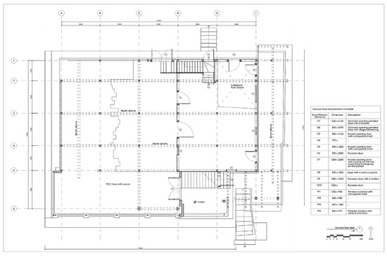
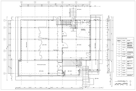
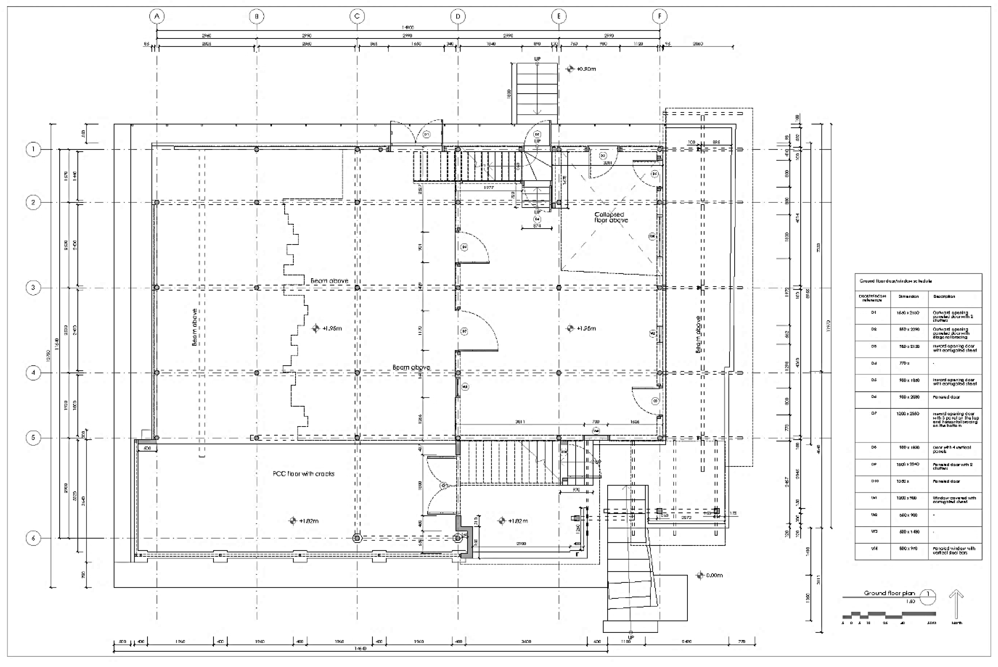
- The Ground Floor
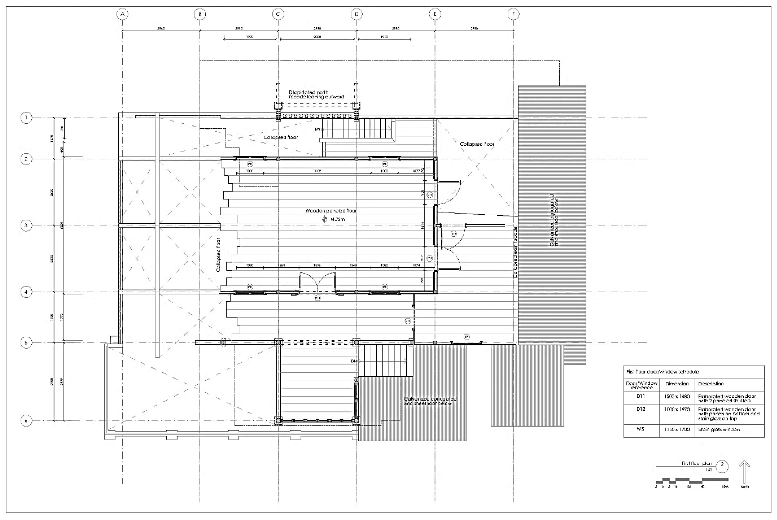
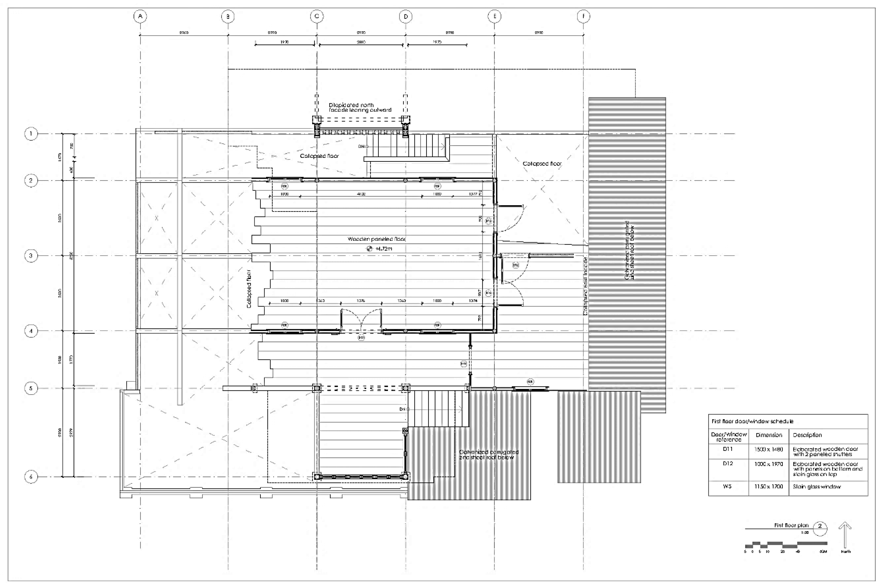
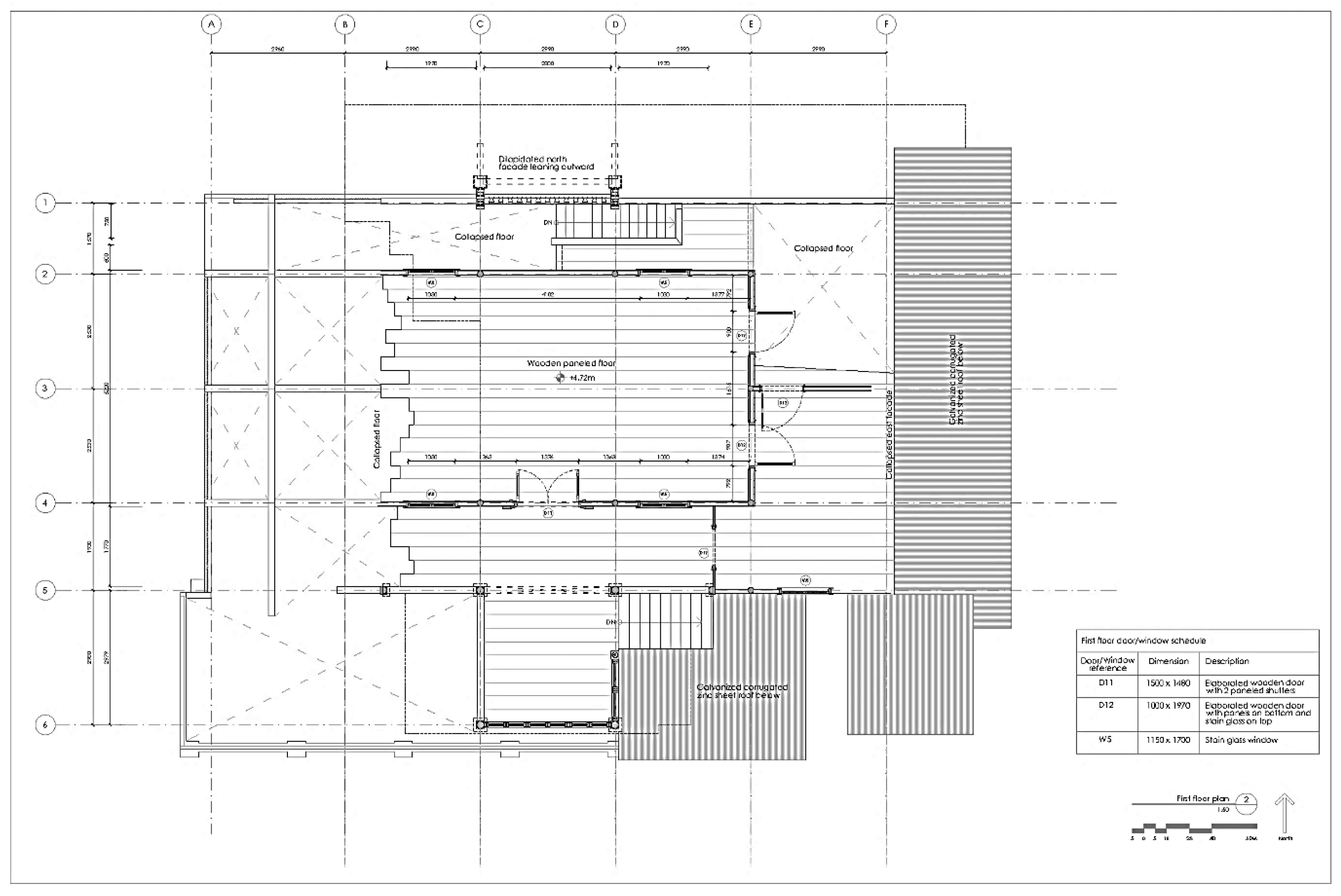
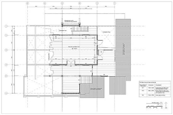
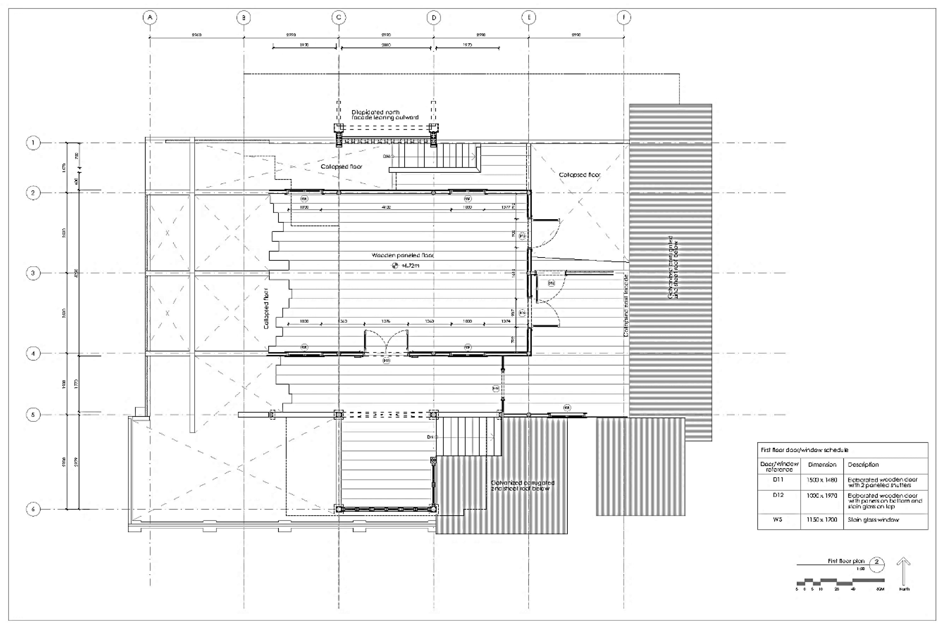
- The First Floor
4.6.2. Modularity as the Foundation of Structural Strength
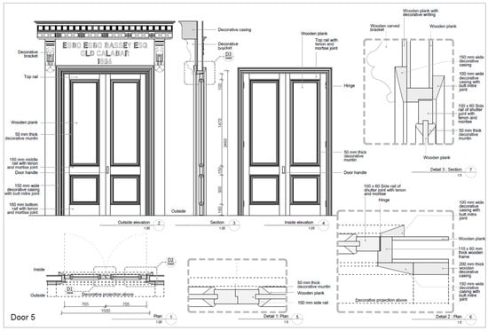
4.6.3. Wooden Joineries and Supports
- Mortise-and-Tenon Joints
- Scarf Joints
- Rabbet Joint
- Dado Joint
4.6.4. Cast Iron Support
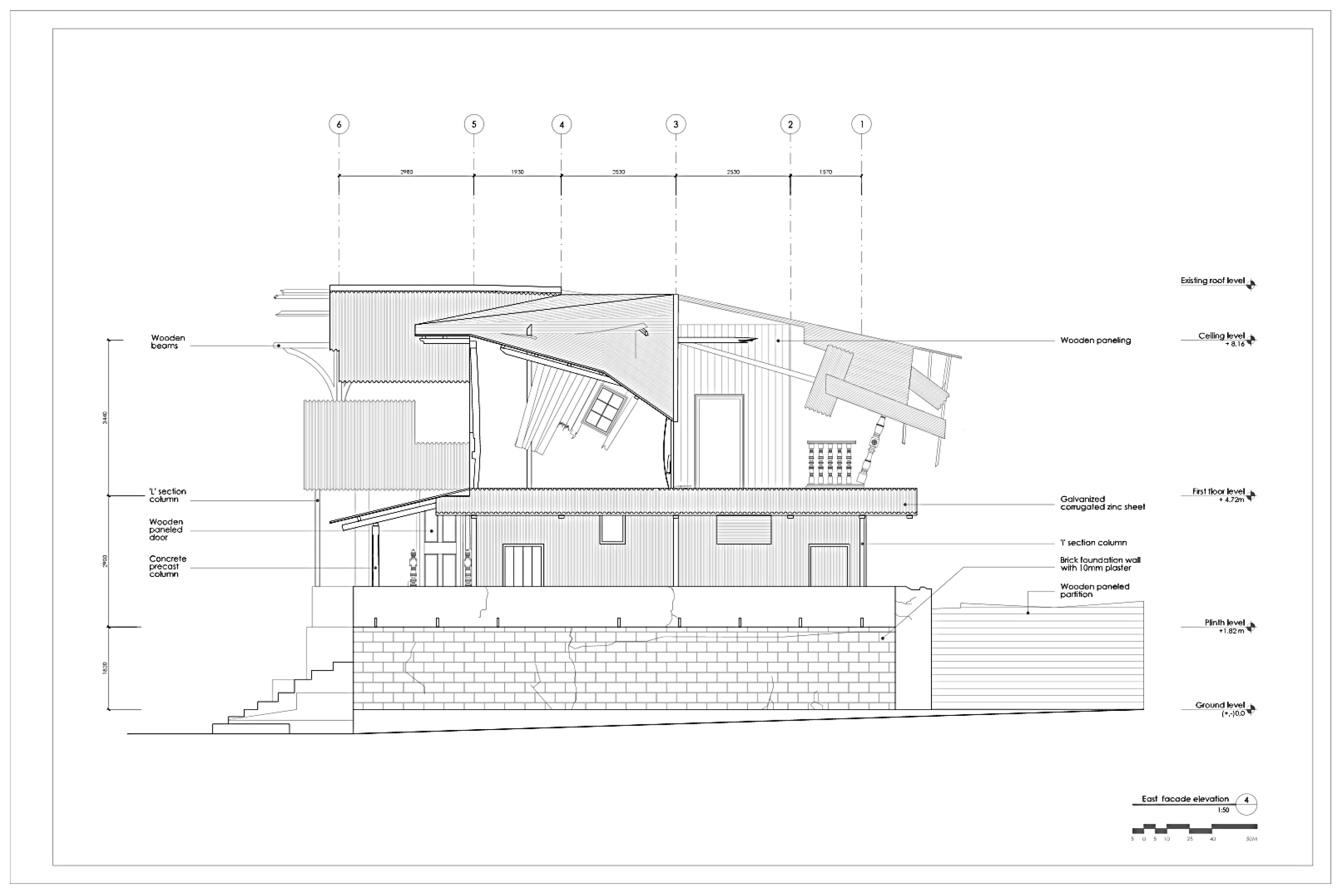
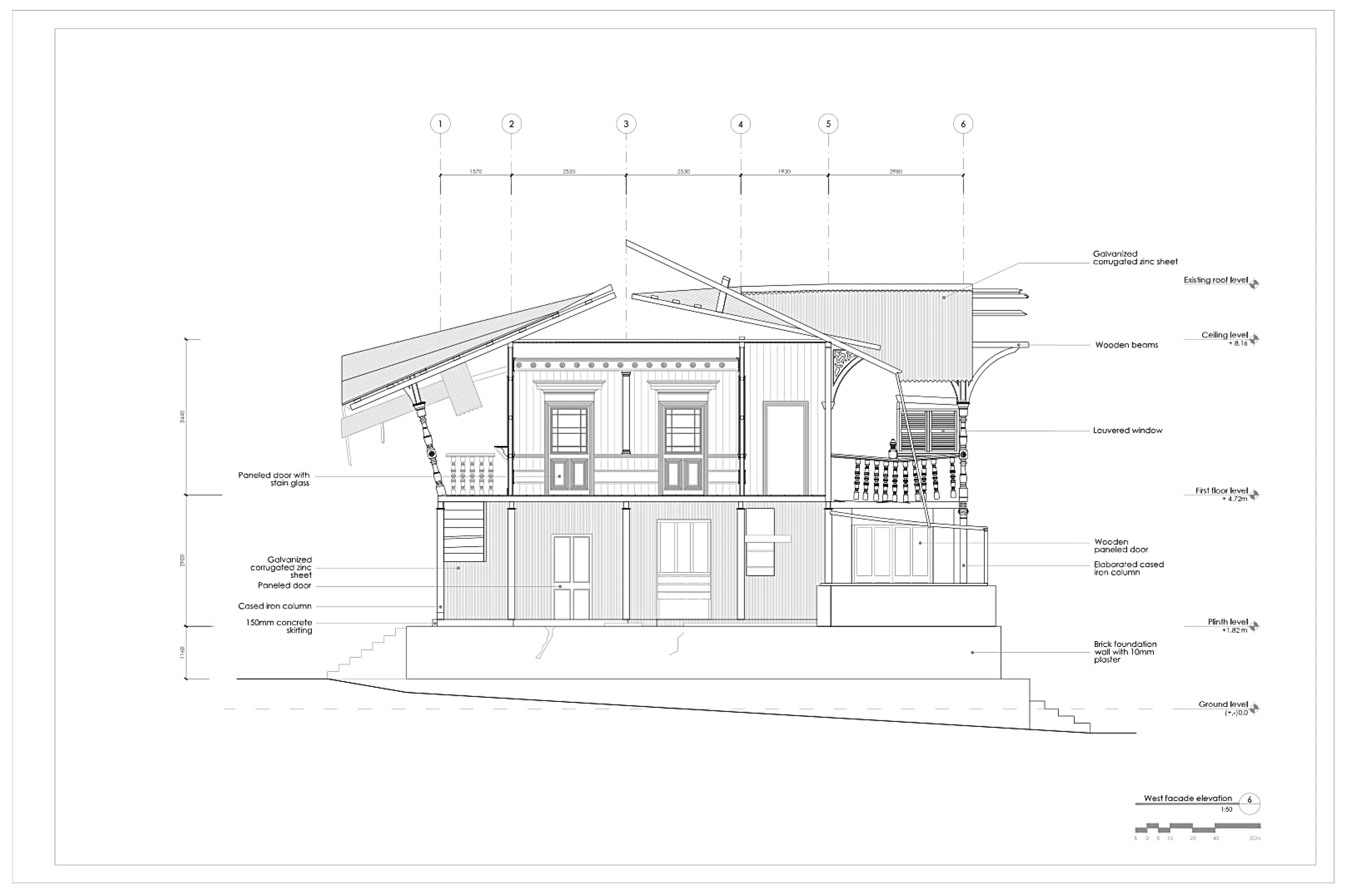
4.6.5. Wooden Wall Panels and Corrugated Sheet Walls
- The Ground Floor
- First-Floor Wall Material
4.6.6. Ornamentation in Late Baroque Manner
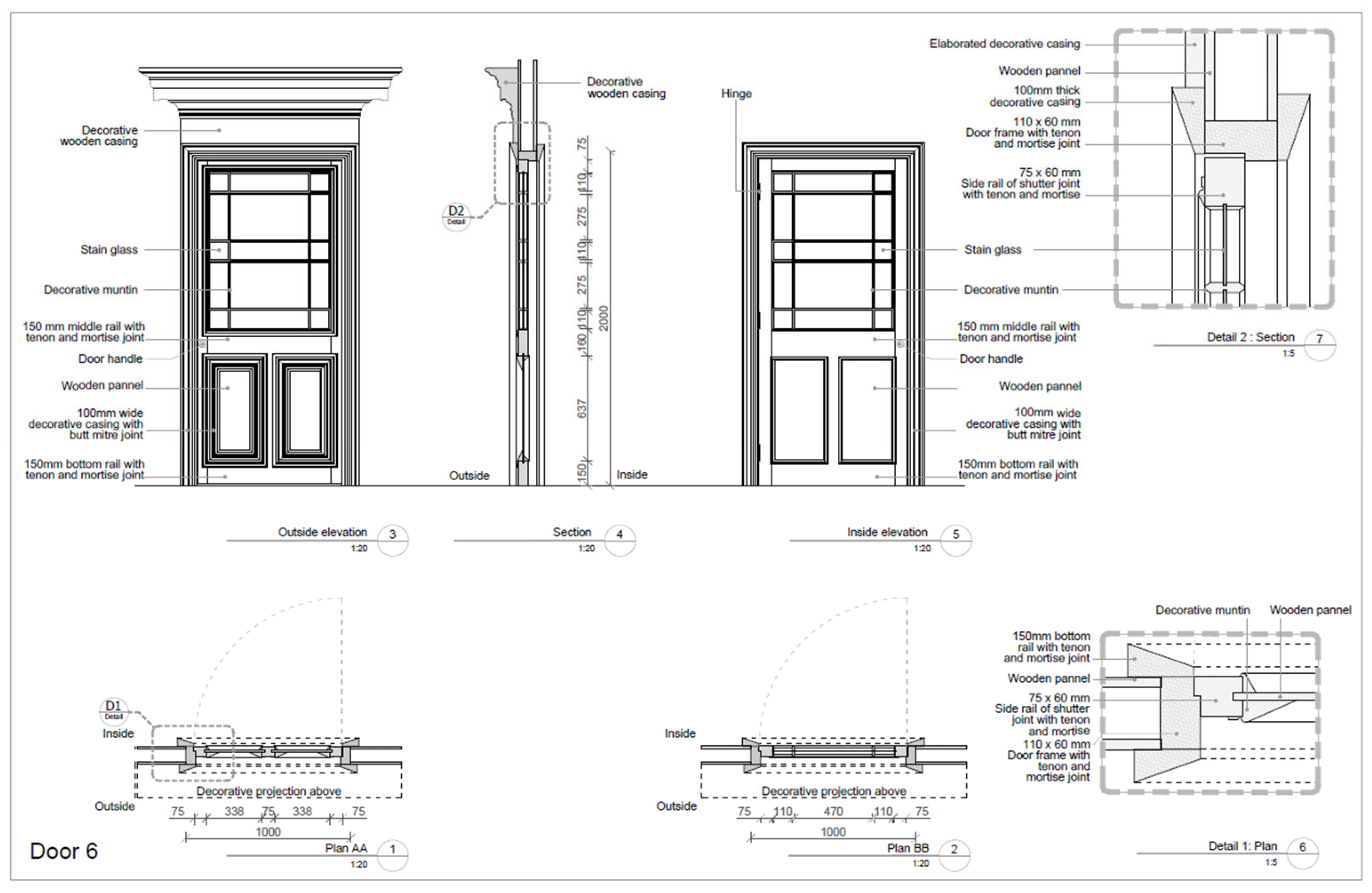
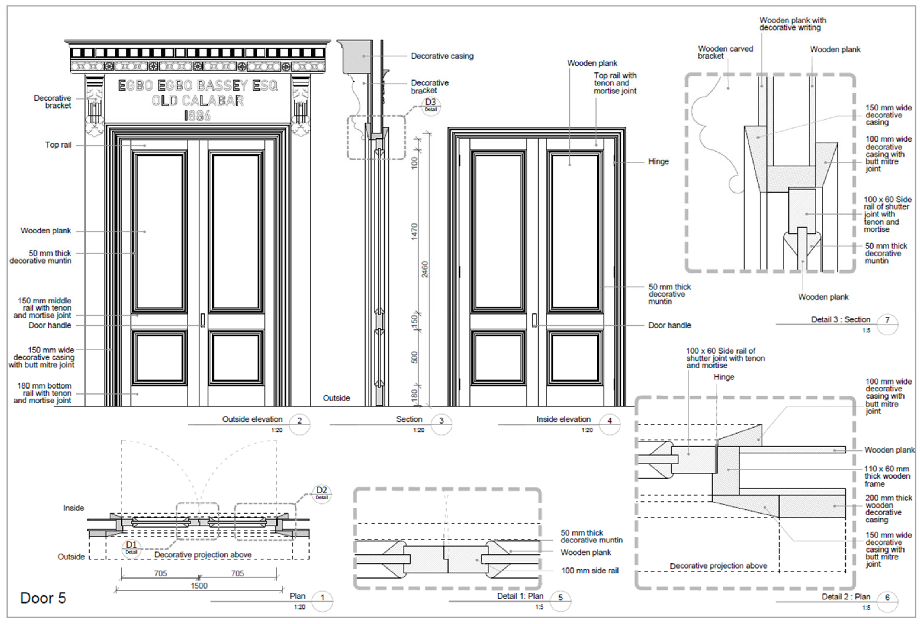
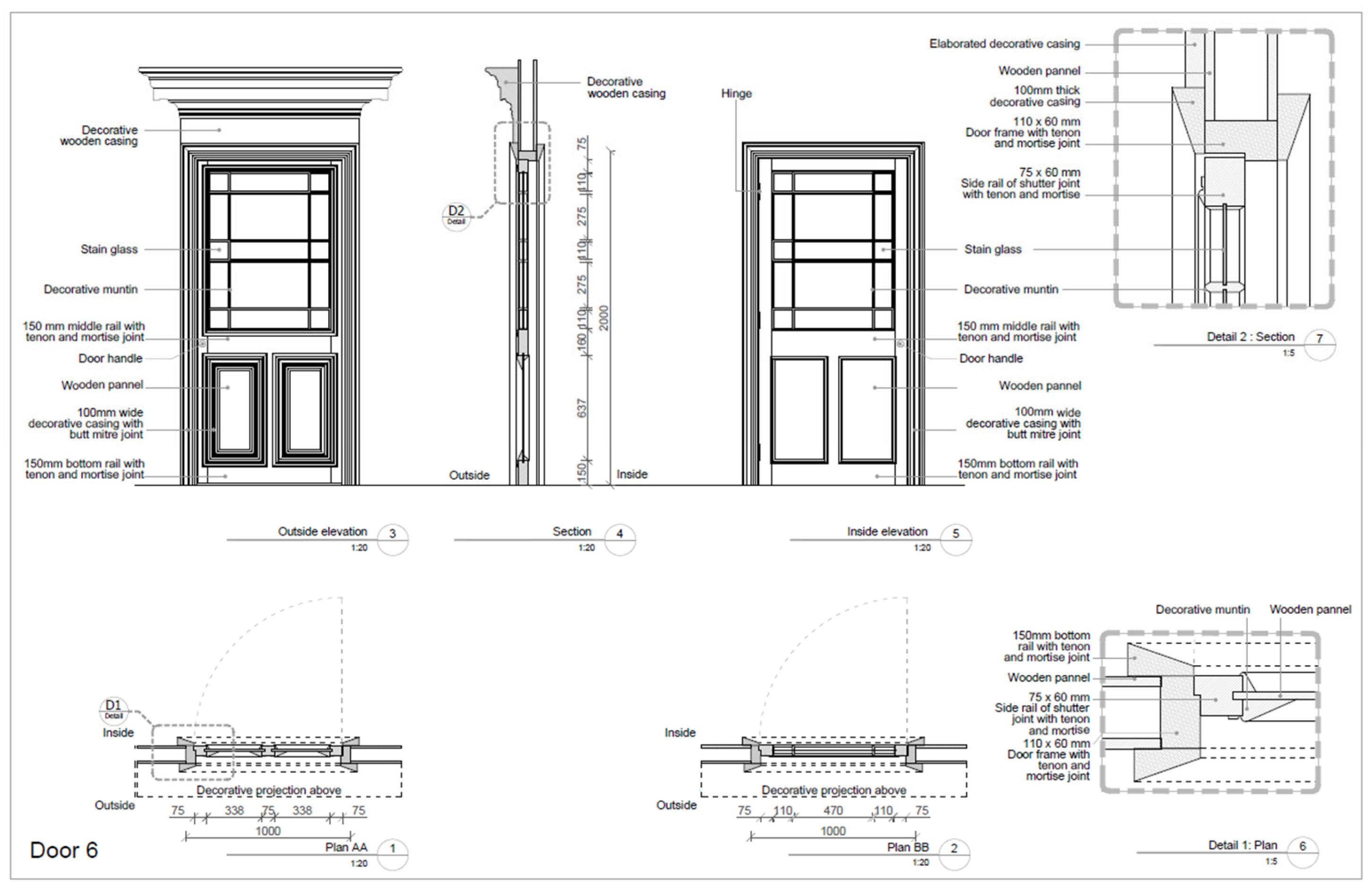
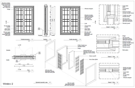
- Victorian-style stained glass windows and doors
- The Corinthian Order Decorative Column
- Cornices and Architraves
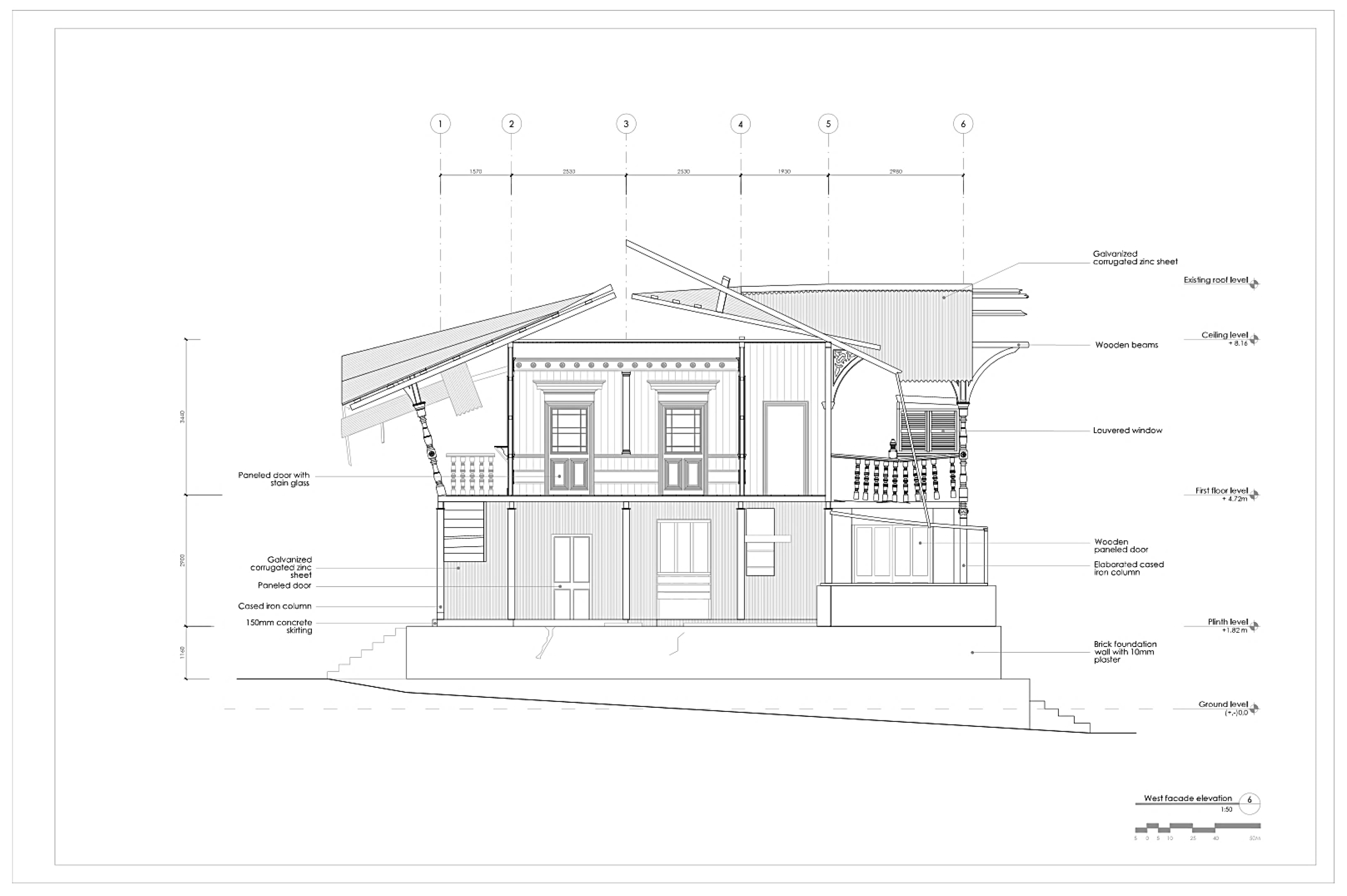
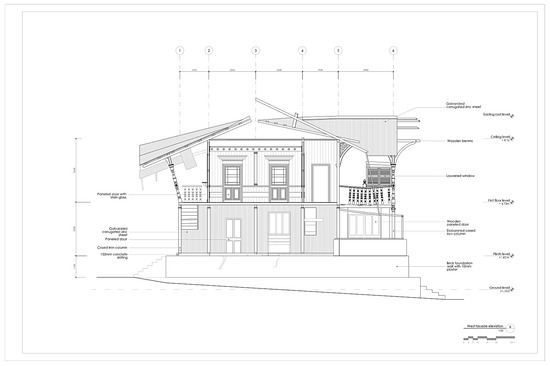
4.6.7. Roofing Systems: Zinc Sheet and Structural Typologies
4.6.8. Doors and Window Schedule
4.6.9. The As-Is Architectural Data of Egbo Egbo Bassey House
4.6.10. Wider Implication of Documentation Exercise
5. Conclusions
Author Contributions
Funding
Institutional Review Board Statement
Informed Consent Statement
Data Availability Statement
Acknowledgments
Conflicts of Interest
References
- Timberlake, J. Preface. In Prefab Architecture: A Guide to Modular Design and Construction, 1st ed.; Smith, R.E., Ed.; John Wiley & Sons: Hoboken, NJ, USA, 2011; pp. 1–8. [Google Scholar]
- Piroozfar, P.A.E.; Farr, E.R.P. Evolution of Non-traditional Methods of Construction: 21st-Century Pragmatic Viewpoint. J. Archit. Eng. 2013, 19, 119–133. [Google Scholar] [CrossRef]
- Gibb, A.G. Off-Site Fabrication: Prefabrication, Pre-Assembly and Modularisation; John Wiley & Sons: Hoboken, NJ, USA, 1999; pp. 109–112. [Google Scholar]
- Allison, A. Prefab; Gibbs Smith: Layton, UT, USA, 2002. [Google Scholar]
- Marquit, A.; Limandri, R.D. From Sears & Roebuck to Skyscrapers: A History of Prefabricated and Modular Housing; Inter-American Development Bank: New York, NY, USA, 2013. [Google Scholar]
- Smith, R.E. History of Prefabrication: A Cultural Survey. In Proceedings of the 3rd International Congress on Construction History, Cottbus, Germany, 20–24 May 2009; Brandenburg University of Technology: Cottbus, Germany, 2009. [Google Scholar]
- Cooke, A.; Friedman, A. Ahead of Their Time: The Sears Catalogue Prefabricated Houses. J. Des. Hist. 2001, 14, 53–70. [Google Scholar] [CrossRef]
- Herbert, G. Pioneers of Prefabrication: The British Contribution in the Nineteenth Century; Johns Hopkins University Press: Baltimore, MD, USA, 1978. [Google Scholar]
- Godlewski, J. The Architecture of the Bight of Biafra: Spatial Entanglements; Routledge: London, UK, 2024. [Google Scholar]
- Latham, A.J.H. Old Calabar, 1600–1891: The Impact of the International Economy upon a Traditional Society; Clarendon Press: Oxford, UK, 1973. [Google Scholar]
- Afigbo, E.E. Efik Origin and Migrations Reconsidered. Nigeria 1965, 87, 275–277. [Google Scholar]
- Ardener, E. Documentary and Linguistic Evidence for the Rise of the Trading Polities between Rio del Rey and Cameroons, 1500–1650. In History and Social Anthropology; Lewis, I.M., Ed.; Routledge: London, UK, 1968; p. 106. [Google Scholar]
- De Marecs, P. Description et Récit du Riche Royaume d’Or de Guinée; Gallica: Amsterdam, The Netherlands, 1605; p. 93. [Google Scholar]
- Lovejoy, P.; Richardson, D. Trust, Pawnship, and Atlantic History: The Institutional Foundations of the Old Calabar Slave Trade. Am. Hist. Rev. 1999, 104, 333–355. [Google Scholar] [CrossRef]
- Northrup, D. Trade Without Rulers: Pre-Colonial Economic Development in South-Eastern Nigeria; Clarendon Press: Oxford, UK, 1978. [Google Scholar]
- Sparks, R.J. The Two Princes of Calabar: An Eighteenth-Century Atlantic Odyssey; Harvard University Press: Cambridge, MA, USA, 2004. [Google Scholar]
- Mbah, N.L. The Black Englishmen of Old Calabar: Freedom and Mobility in the Age of Abolition in West Africa. Radic. Hist. Rev. 2022, 144, 45–75. [Google Scholar] [CrossRef]
- Nair, K.K. Politics and Society in South-Eastern Nigeria, 1841–1906: A Study of Power, Diplomacy, and Commerce in Old Calabar; Frank Cass; Routledge: London, UK, 1972. [Google Scholar]
- Behrendt, D.S.; Latham, A.J.H.; Northrup, D. The Diary of Antera Duke, an Eighteenth-Century African Slave Trader; Oxford University Press: New York, NY, USA, 2010. [Google Scholar]
- ICOMOS. International Charter for the Conservation and Restoration of Monuments and Sites (The Venice Charter); ICOMOS: Venice, Italy, 1964. [Google Scholar]
- Heritage Canada Foundation. The Appleton Charter for the Protection and Enhancement of the Built Environment; Heritage Canada Foundation: Ottawa, ON, Canada, 1983. [Google Scholar]
- ICOMOS. Charter on the Built Vernacular Heritage; ICOMOS: Mexico City, Mexico, 1999. [Google Scholar]
- ICOMOS. The Nara Document on Authenticity; ICOMOS: Nara, Japan, 1994. [Google Scholar]
- Fai, S.; Graham, K.; Duckworth, T.; Wood, N.; Attar, R. Building Information Modelling and Heritage Documentation. In Proceedings of the 23rd CIPA International Symposium, Prague, Czech Republic, 12–16 September 2011; pp. 12–16. [Google Scholar]
- Di Mascio, D.; Pauwels, P.; De Meyer, R. Improving the Knowledge and Management of the Historical Built Environment with BIM and Ontologies: The Case Study of the Book Tower. In Proceedings of the 13th International Conference on Construction Applications of Virtual Reality, London, UK, 30–31 October 2013; Dawood, N., Kassem, M., Eds.; ResearchGate: London, UK, 2013. [Google Scholar]
- Khalil, A.; Stravoravdis, S.; Backes, D. Categorisation of Building Data in the Digital Documentation of Heritage Buildings. Appl. Geom. 2021, 13, 29–54. [Google Scholar] [CrossRef]
- Matthews, N.A. Aerial and Close-Range Photogrammetric Technology: Providing Resource Documentation, Interpretation, and Preservation; U.S. Department of the Interior, Bureau of Land Management, National Operations Center: Denver, CO, USA, 2008.
- Dore, C.; Murphy, M. Current State of the Art: Historic Building Information Modelling. Int. Arch. Photogramm. Remote Sens. Spat. Inf. Sci. 2017, XLII-2/W5, 185–192. [Google Scholar] [CrossRef]
- Polit, D.F.; Beck, C.T. Nursing Research: Generating and Assessing Evidence for Nursing Practice; Lippincott Williams & Wilkins: Philadelphia, PA, USA, 2012. [Google Scholar]
- Patton, M.Q. Enhancing the quality and credibility of qualitative analysis. Health Sci. Res. 1999, 34, 1189–1208. [Google Scholar]
- Ahmed, A.; Pereira, L.; Kimberly, J. Mixed Methods Research: Combining Both Qualitative and Quantitative Approaches; ResearchGate: London, UK, 2024. [Google Scholar]
- Eze, E.B.; Efiong, J. Morphometric parameters of the Calabar River Basin: Implication for hydrologic processes. J. Geogr. Geol. 2010, 2, 18–26. [Google Scholar] [CrossRef]
- Efiong, J. Changing pattern of land use in the Calabar River catchment, southeastern Nigeria. J. Sustain. Dev. 2011, 4, 92–102. [Google Scholar] [CrossRef]
- Obianuju, E.A.; Efiong, J. Implication of open dumpsite on groundwater quality in Calabar Metropolis, Nigeria. J. Geogr. Environ. Earth Sci. Int. 2015, 2, 117–125. [Google Scholar] [CrossRef] [PubMed]
- Nigerian Meteorological Agency (NIMET). Daily Measurements of Meteorological Parameters; NIMET Office: Abuja, Nigeria, 2008.
- Donnan, E. Documents Illustrative of the History of the Slave Trade to America; U.S. Government Printing Office: Washington, DC, USA; Volume 1, 1930; p. 193.
- Fage, J.D. A History of West Africa; Cambridge University Press: Cambridge, UK, 1969; pp. 65–70. [Google Scholar]
- Curtin, P.D. The Atlantic Slave Trade: A Census; University of Wisconsin Press: Madison, WI, USA, 1969; pp. 116–126. [Google Scholar]
- Nwokeji, G.U. The Slave Trade and Culture in the Bight of Biafra: An African Society in the Atlantic World; Cambridge University Press: Cambridge, UK, 2010. [Google Scholar]
- Ryder, A. Benin and the Europeans 1485–1897; Longman: London, UK, 1969; p. 56. [Google Scholar]
- Hakluyt, R. The Principal Navigations, Voyages, Traffiques & Discoveries of the English Nation; MacLehose: Glasgow, UK, 1904; Volume 6, pp. 457–467. [Google Scholar]
- Messrs, L.B.; (Liverpool Maritime Archives, Liverpool, UK). Letter to C. Lawson of Ship Enterprise. Unpublished correspondence, 18 July 1803.
- Goldie, H. Calabar and Its Mission; Morrison & Gibb: Edinburgh, UK, 1890; pp. 197–201. [Google Scholar]
- Iloje, N.P. A New Geography of Nigeria; Longman: Lagos, Nigeria, 1991. [Google Scholar]
- Marwick, W. William and Louisa Anderson: A Record of Their Life and Work in Jamaica and Old Calabar; Andrew Elliot: Edinburgh, UK, 1897. [Google Scholar]
- National Museum Archives. Chief Egbo Egbo Bassey House, Calabar (File No. TF128/C.25/A). Records Collection. National Museum: Calabar, Nigeria, (unpublished archival material).
- Mitchell, D.S. Macfarlane’s Castings: Walter Macfarlane & Co., Saracen Foundry, Glasgow: Catalogue, 6th ed.; Historic Scotland: Edinburgh, UK, 2009; Volume 1, ISBN 978-1-84917-006-2. [Google Scholar]
- Frenkel, S.; Western, J. Pretext or prophylaxis? Racial segregation and malarial mosquitos in a British tropical colony: Sierra Leone. Ann. Assoc. Am. Geogr. 1988, 78, 211–228. [Google Scholar] [CrossRef] [PubMed]
- Mitchell, M. The forest and the city: Interpretative mapping as an aid to urban practice in sub-Saharan Africa. J. Urban Des. 2018, 23, 558–580. [Google Scholar] [CrossRef]
- Transnational Architecture Group. Hill Station: Colonial Period Housing in Freetown, Sierra Leone. 11 January 2023. Available online: https://transnationalarchitecture.group/2023/01/11/hill-station-colonial-period-housing-in-freetown-sierra-leone/ (accessed on 4 November 2025).
- Iyengar, R. The Finest Hotel in Bombay Now Lies in a Shambles. 20 January 2021. Available online: http://radhikaiyengar.squarespace.com/work/watsonshotelbombay (accessed on 4 November 2025).
- Clarke, J. Watson’s Hotel, Bombay: The first prefabricated cast iron structure in India. Constr. Hist. 2019, 34, 45–63. [Google Scholar]
- Tan, Y.H.I. The Iron Skeleton and the Imperial Skin: Iron and the Construction of Modernity in Colonial Port Cities. Ph.D. Thesis, University of Hong Kong, Pokfulam, Hong Kong, 2023. [Google Scholar]






























































| Participant | Role in Documentation | Stakeholder Group |
|---|---|---|
| P1 | Granddaughter 1 of Chief Egbo Egbo Bassey | Family of owner and former building occupant |
| P2 | Granddaughter 2 of Chief Egbo Egbo Bassey | Family of owner and former building occupant |
| P3 | Youth Leader, Cobham Town | Community member |
| P4 | Secretary, Youth Association | Community member |
| P5 | Etubom, Ekpo Abasi Royal House | Community member |
| P6 | Descendant of King Eyamba | Community member |
| P7 | Head of Ekpe Society | Community member |
| P8 | Curator, National Museum | Expert in charge of building |
| P9 | Family of younger brother to Chief Egbo Egbo Bassey | Community member |
| P10 | Former Resident of the building | Authority in charge of building |
| P11 | Resident of Boko Street | Facility Manager |
| P12 | Chief Heritage Officer, NCMM | History expert in charge of building |
| P13 | Asst. Director, NCMM | Authority in charge of building |
| P14 | Director, NCMM | Authority in charge of building |
| P15 | Resident of Boko Street | Community member |
| P16 | Staff, NCMM | Heritage officer |
Disclaimer/Publisher’s Note: The statements, opinions and data contained in all publications are solely those of the individual author(s) and contributor(s) and not of MDPI and/or the editor(s). MDPI and/or the editor(s) disclaim responsibility for any injury to people or property resulting from any ideas, methods, instructions or products referred to in the content. |
© 2025 by the authors. Licensee MDPI, Basel, Switzerland. This article is an open access article distributed under the terms and conditions of the Creative Commons Attribution (CC BY) license (https://creativecommons.org/licenses/by/4.0/).
Share and Cite
Olukoya, O.A.P.; Olukoya, O.; Haruna, R.G. The Architectural Documentation of British Colonial Prefabricated Wooden Heritage: A Case Study of a Nigerian National Monument. Architecture 2025, 5, 113. https://doi.org/10.3390/architecture5040113
Olukoya OAP, Olukoya O, Haruna RG. The Architectural Documentation of British Colonial Prefabricated Wooden Heritage: A Case Study of a Nigerian National Monument. Architecture. 2025; 5(4):113. https://doi.org/10.3390/architecture5040113
Chicago/Turabian StyleOlukoya, Obafemi A. P., Oluwaseun Olukoya, and Rahina Garba Haruna. 2025. "The Architectural Documentation of British Colonial Prefabricated Wooden Heritage: A Case Study of a Nigerian National Monument" Architecture 5, no. 4: 113. https://doi.org/10.3390/architecture5040113
APA StyleOlukoya, O. A. P., Olukoya, O., & Haruna, R. G. (2025). The Architectural Documentation of British Colonial Prefabricated Wooden Heritage: A Case Study of a Nigerian National Monument. Architecture, 5(4), 113. https://doi.org/10.3390/architecture5040113

