Abstract
The cultural theory of heritage assets that was consolidated throughout the 20th century, and is still in force today, lies in the modulation of the concept of authenticity. It is a nomadic, controversial concept that has adapted to the spirit of the times. This review of the concept, drawing on international reference texts and charters in the field of heritage, allows us to specify a working process that facilitates its consideration in characterisation processes. To do so, case studies of significant cultural assets in terms of scale and complexity will be presented as resources. Through the implementation of the Theory of Value, the keys will be provided: criteria and methodology for intervening in heritage. This journey will be reflected more slowly in the study of the Palace of San Telmo (Seville, 17th–21st century). This is a building with a controversial material history, in which a series of attributions of value have been transmitted that correlate both with the theory of the conservation of cultural assets and with social appreciation and the criteria. This is the way to materially undertake a reflection on the authenticity of this heritage. This study provides the keys to intervening, conserving the values identified, and recognising authenticity as a reality that is constructed through the process and through the passage of time. A methodology that allows us to consider the capacity to continue and replace heritage as a project strategy in which what is yet to come can take place.
1. Challenges for a New Cultural Policy: From the World Heritage Convention to the Value Theory
More than 50 years after the World Heritage Convention (1972), the processes for heritage conservation that have been put in place through cultural policies have sufficiently matured [1]. As a result, practitioners and researchers in the field have sufficiently tried and tested the tools to ensure quality results in a sustainable context [2,3].
The broader considerations of the concept of heritage, from the object to the landscape, as well as the importance of planning, the holistic perspective, and interdisciplinarity, characterise the current moment, a moment in which the heritage debate focuses on the importance of cultural value for communities, as was perfectly formulated in the Faro Convention [4].
Many authors have focused heritage conservation theory on the modulation of the concept of authenticity [5]. In a way, it is understood that this has constituted the key on which most of the criteria for intervention are based. The review of this concept through the content of the different international reference texts and charters in the field of heritage highlights, once again, the importance of agreeing on terminology and its meaning. The evolution of concepts over time responds to their necessary updating in the cultural, social, and economic contexts in which they are applied [6].
The cultural theory surrounding heritage has developed, fundamentally, in the 20th and 21st centuries, accompanied by a theoretical corpus that has not ceased to evolve nomadic concepts, like heritage itself, that have adapted to the spirit of the times [7].
Not all the reference documents have addressed the significance of the concept of authenticity, a question that emerges from a detailed reading of them that allows us to point out which of them contribute to a genealogy of the term [8]. In this sense, it is the Krakow Charter which, in 2000, defined the term in its final glossary (Annex. Definitions C), clarifying its changing condition and introducing the temporal component and even the future perspective:
“Authenticity means the sum of substantial, historically ascertained characteristics: from the original up to the current state, as an outcome of the various transformations that have occurred over time” [9] (p. 5).
This definition was produced to resolve the controversy that characterised the heritage debate on conservation in the last quarter of the 20th century, where the emphasis was placed on the recovery of the authentic, understood from the reference “to the original”. This was a somewhat reductionist way of understanding intervention in heritage which, however, did not serve to facilitate/improve the processes, nor to simplify a complex problem. A way of proceeding was determined that coexisted with the beginnings of the understanding of the monument as a reflection of all its times, a commitment to the management of historicity that today is beginning to bear fruit. (Figure 1).
Figure 1.
The theory of value in between 19th and 21st centuries. On the bottom: charts and texts of reference in the field of heritage; in orange, Andalusian laws and policies. On the top: the main intervention projects and value reports in Andalucía. In blue, the characterization of the values along the century. Source: own elaboration.
2. Updating Concepts and Procedures: Understanding Authenticity
Looking back, it is possible to identify, in this corpus of texts under review, those that are monographically devoted to authenticity. Two documents dating from the mid-1990s, a period that could be defined as a period of transit, of the closing of late modernity and the opening up of new horizons, serve as a turning points to situate the debate in a dynamic and changing context, symbolized by the social turn and the projective perspective inherent to architecture. The Nara Document on Authenticity (1994) [10] and the Charter of Brasilia (1995) [11] introduce perceptive dimensions in the consideration of heritage, a subjective charge that will modify the way heritage conservation is approached.
If the Venice Charter (1964) spoke of transmitting monumental works in their complete authenticity [12], the Nara Document limits itself exclusively to taking authenticity into consideration, emphasising the difficulty of the task. The proposal finally aims to understand authenticity: an exercise of comprehensive but also interpretative reading that was to characterise conservation theories, especially from the last quarter of the 20th century onwards. This methodology will then be materialised through the work processes: multidisciplinary collaboration, representative values of a culture, importance of documentation, and the need to update authenticity assessments.
It is the Charter of Brasilia (1995) that takes up the challenge and, in its first sections, indicates how the theme of authenticity then passes through that of identity, which is changing and dynamic, making it very difficult to establish unique and invariable criteria for what is “authentic”. The content structure of the Brasilia Charter shows the shift to which the term authenticity is subjected, stressing the importance of meaning as opposed to material consideration, as well as the breadth of openings for the term and the need to graduate it:
- Authenticity and identity
- Authenticity and message
- Authenticity and context (quality of life)
- Authenticity and materiality
- Gradation of authenticity (qualification of authenticities)
- Authenticity Conservation (or of authenticities)
In order to define authenticity in the current context, the non-linear condition of time in architecture is assumed [13], as well as the need to understand the temporality of heritage as a way to be able to define its qualities and evaluate them. Authenticity is not reproduced, nor is it preserved, in the strict sense of the term conservation. Authenticity has to do with the recognition of a message that is transformed over time and that has to be transmitted to society: “Authenticity, then, is more than a finite quality. It is a relational, dynamic, practice-related condition that emerges when individuals engage with the world around them” [14] (p. 161). It is a project process in which a modifying proposal is launched forward. In this way, the project becomes the instrument of heritage work capable of defining and writing the version of the object today, a “new object” that is inserted into the game of successive representations that constitutes heritage conservation as a discipline.
In this context, Andalusian cultural policies have been aligned with international guidelines, implementing methodologically rigorous procedures in which consensual decision-making is based on knowledge of the property. To this end, the drafting of conservation projects has been implemented, for which the Andalusian Historical Heritage Law 14/2007 defines the minimum requirements in article 22 [15]:
- Study of the property and its cultural values
- Diagnosis of its condition
- Description of the methodology
- Proposal for action (theoretical, technical, and economic)
- Impact on the protected values
- Maintenance programme
This methodological application takes into account well-known guidelines but emphasises the importance of showing the impact on the protected values as a consequence of the proposed actions. This task is particularly complex in the case of large-scale buildings and monumental ensembles where numerous transformations have taken place, directly affecting the consideration of their authenticity. “With the traditional emphasis on originality, later additions have tended to be regarded as less authentic than original materials” [16] (p. 184).
Methodologically, this work focuses on understanding the concept of authenticity through the review of reference documents in the field, including examples of good practice in particularly complex heritage sites in the Andalusian context. The experience in the identification of values, the cornerstone of the processes that characterise heritage conservation, will complement the way of proceeding to guarantee the result of the intervention carried out in the Palace of San Telmo in Seville (Spain). This will serve as an example in which the evaluation of the impact of the intervention on the identified values is tested in an innovative way; justifying the project strategy on the basis of the cultural values of the building was the fundamental objective of the interdisciplinary commission of experts appointed in 2002.
If the intervention in the Monastery of Santa María de las Cuevas on the Isla de la Cartuja (Seville, 1989–1992) is a benchmark action in the Andalusian context in which the heritage project is put into practice [17], San Telmo is the first occasion in which the discourse of value applies not only to justify the demolitions and the intervention strategy but also as an exercise in surplus value [18]. Now, the heritage research associated with the intervention project is not only the basis for knowledge and reflection for the enhancement of value, but also the support from which to make project decisions.
The methodology of the work is focused on the importance of the characterisation of the building, in coherence with its material history, the identification of values in different moments of the building, and the evaluation of the project decisions to measure the impact in the heritage attributes of the building [19].
3. Identification of Values in the Palace of San Telmo (Seville. Spain)
The project for the Palacio de San Telmo in Seville is an enlightening example of the dilemmas about the authenticity and identity of monuments and the problems faced by the diversity of views, temporal, historical, and social, in order to reach a consensus through the processes of restoration and rehabilitation, on the new layer of its historicity (Figure 2). The project is thus understood as a critical and rigorous transformation process, planned, which bases decision-making on multidisciplinary knowledge and from an integrating perspective. A general methodology that requires specific application to the cultural property being intervened [17] (p. 59):
Figure 2.
San Telmo Palace. (Seville). Source: IAPH, J.M. Santos.
Originally designed as a Navigation School (1681) at the epilogue of the economic and political predominance of the city of Seville, built at the end of the Baroque period and at the beginning of the decline of a great empire, the Palace of San Telmo actually corresponds to three construction periods. By 1725, the Figueroa family had given it its late Baroque imprint: the main monumental façade and the dividing axis of the great college with the outline of the staircase, the courtyard, and the chapel as definitive distinctive elements. The navigation school soon emigrated from the city of Seville and the planned and unfinished building became the palatial residence of the Montpensier court, a political alternative to the Spanish throne and opposition to Isabella II during the second half of the 19th century. It was then that its façades were formally shaped by the Enlightenment architect Balbino Marrón who, through his work, gave the building and its gardens the palatial identity that still prevails today. A third moment, the transfer of the building complex to the Archbishopric of Seville in 1901, brought with it a new use as a Metropolitan Seminary, which led to successive spatial transformations and the filling of built-up areas in the internal fabric of the Palace. This use lasted until 1989, when it was ceded to the Andalusian Regional Government, which recovered its representative role by using it as the seat of the Presidency of the Autonomous Government of Andalusia (Figure 3).
Figure 3.
Diagrams depicting the evolution and transformation of the ground plan of the San Telmo Palace. Source: [20].
After a first phase of preliminary refurbishment of the Figueroa elements of the façade bay for the 1992 Universal Exhibition, in 2001, the comprehensive refurbishment of the rest of the building began (project 2001–2004, works 2005–2010). Both projects were directed by the Sevillian architect Guillermo Vázquez Consuegra [21]. In the planning process for this refurbishment, the Andalusian Institute of Historical Heritage (IAPH) was commissioned to set up an interdisciplinary commission of experts to analyse the persistence of these values in the architectural solutions to be proposed based on the heritage values, which were the result of in-depth humanistic and social studies [22].
This interdisciplinary collaboration reveals a need to understand the authenticity of the building that is very different from the global vision of the monuments of the Charter of Venice 1964. In contrast to the unidirectional historical reading of San Telmo that had been promoted until then, the commission proposed a reading of the representative values of three moments in history, each with responses based on their own capacities, to which the intervention of the 21st century now had to be added. This showed the need to document each of these periods of the monument perfectly, interpreting the social and cultural sphere of each one of the times that had shaped both the materiality of the building and the immaterial identity ideology that the palace represents socially.
In this sense, the identification of values in the San Telmo Palace allowed the implementation of a series of tools that, based on knowledge, provided criteria for intervention. In accordance with the provisions of the Venice Charter, they would justify, through critical reasoning, the presence of a recovered building stratigraphy:
- -
- origin and first buildings.
- -
- development of buildings and uses in the 18th, 19th, and 20th centuries.
- -
- architectural settlement and uses in the 20th century.
This decision making is supported by article 11 of the Venetian charter, from which it is possible to justify, after a critical value judgement, the elimination of stages with no architectural, documentary, or aesthetic value: “Article 11. The valid contributions of all periods to the building of a monument must be respected, since unity of style is not the aim of a restoration. When a building includes the superimposed work of different periods, the revealing of the underlying state can only be justified in exceptional circumstances and when what is removed is of little interest and the material which is brought to light is of great historical, archaeological or aesthetic value, and its state of preservation good enough to justify the action. Evaluation of the importance of the elements involved and the decision as to what may be destroyed cannot rest solely on the individual in charge of the work.” [12].
The project, by means of a contemporary intervention, highlights a series of contrasting elements that highlight the material history of the property: the disposition of the courtyards of the original layout that were partially hidden before the intervention, the archaeological elements of the original layout that concealed or supported the interventions of the 20th century that undermined the values of the monument, and the disposition of courtyards, corridors, and spaces that had been indiscriminately superimposed, concealing the evolution of the 18th and 19th centuries in the northern part of San Telmo.
The three moments (or ages, or material phases) identified corresponded to three times in our closest culture, to which answers had been provided with ways of conceiving architecture in the face of three needs of use. Interestingly, socially, the Palace of San Telmo (not the original tidewater college, nor the seminary that survived until the end of the 20th century) became the main idea. Even though the building had only been used as a palace for half a century, the spatial conformation of its four fronts was to provide perceptual information of the exterior that still survives today. With its perimeter enclosure in the 19th century, the building became an urban landmark outside the city walls in the southern part of the city. Compared with no less a building than the Tobacco Factory (1728–1760), its expansion into semi-public gardens and the planning of the Cristina Gardens at the end of the 19th century is one of the few examples of modern European urban development in Seville, hence the importance of this urban (material) value, which is so closely linked to values of identity [23] (pp. 30–34) (Figure 4).
Figure 4.
San Telmo Palace. Location near the Guadalquivir River (Sevilla). Source: Estudio Guillermo Vázquez Consuegra.
One of the main challenges in validating the methodology for the commission in charge of assessing the values of San Telmo was to document and demonstrate in the monument itself each of the three moments or periods in which it had been transformed. Thus, thanks to the cross-referencing and interpretation of the sources, it was established that in 1681 a large building was designed to house the Colegio de San Telmo, and almost a century later, it became clear from the first preserved plan (Pizarro, 1781) that, apart from the works on the main axis and the exterior layout, only ⅖ of the building had been built. It was even easier to make present in the monument those elements of that first cultural period in the building, especially the main bay and façade, the courtyard, and the chapel, with the latter being conceived as an authentic transcript of the shaping of the arts at the service of a doctrinal idea, that of the spiritual formation of the sailors. In contrast, the interior spaces built in this first age of the Palace are marked by the grandiosity of the spaces of representation on a domestic scale, very close to the compartmentalisation of the enclosures of the convents of the 18th century. These spaces, built in the southern area, showed a series of differences with the rectangular floor plan of the original layout of the building, something that led to a poor rational understanding of the building from the 19th century onwards.
The second stage of the palace was its perimeter enclosure on the outlines, already marked out for urban planning at the end of the 17th century. This work was carried out under the patronage of the Dukes of Montpensier, although the formal and material differentiation is difficult to distinguish due to the deliberate decision to build, as had been done in previous centuries. Despite this, Balbino Marrón had to adapt the conceptual austerity of the school to accommodate a small bourgeois court: devotionally fitting out the chapel; finishing and decorating areas of the staircase; providing the gardens with a French salon gallery; and fitting out the kitchens, toilets, and bedrooms on a different scale which, to a large extent, transformed the less monumental spatial remains of the navigation school.
This second stage is also a way of interpreting the authenticity of the whole. In keeping with the architectural production of the time (neos, revival), a physical and formal closure (already traced) is pursued in a language close to the inherited Baroque.
The documentary value of the third period of construction of San Telmo, on the other hand, shows an important break with this way of interpreting and reading the previous inherited architecture. The need for greater occupation density (the building was recovering its doctrinal function, now full of students) led to serious transformations of the building in which the importance of rationalising the spaces with new architecture prevailed. The readings of the inherited San Telmo then become a struggle to balance a symmetry of distribution on both sides of the axis (façade–staircase–patio–chapel) that is imposed on the timescale of the building of the Colegio de San Telmo and its palatial structure. In contrast to an initial approach to the building by the architects of the regionalist period at the dawn of the Ibero-American Exhibition, whose language and compartmentalisation work was related to the materiality of the complex, this dialogue was broken with the appearance of the architects Basterra and Amánn in 1926. On the south side of the axis, the remotest remains of the College were demolished [24]. A series of rational courtyards were now built to provide a succession of classrooms and dormitories necessary for the Seminary. Advancing even further, in 1962, the architect José Galnares Sagastizábal built three floors of “chambers” in the back bay of the building to house dormitories, thus creating a break in scale, materials, and technology compared with what had been inherited from the Palace.
Analysing it from our time, the history of the building is understood from a partial disregard and a real ignorance of the values present in the architecture of the whole (restricting it to its most monumental parts) and to the materiality of the property (which is exchanged for 20th century materials and technology). The rationalism or the technologisation of 20th century architecture are here understood as an imposition on a factory that will never be able to assimilate these spaces due to the lack of both architectural quality and materiality.
At the end of the 20th century, the building changed ownership. With the refurbishment proposal that included in its decision-making process the experience of the reading of values that was methodologically defended by the IAPH (2003), a fourth stage of San Telmo began, in a fourth age of its own time (Table 1).
Table 1.
Table of values identified in the Palace of San Telmo. Seville. Source: own elaboration.
This imposition and the value of innovation, which could have become elements of dialogue and improvement, end up confronting the architecture of the 17th–19th centuries with that of the 20th.
4. Identifying Values for the Design of Heritage Sites
As mentioned above, the concept of authenticity has underpinned restoration theories and has led the debate up to the present moment where, situated and immersed in the theory of value, it is a question of identifying the attributes of cultural property. The difficulty lies not only in the identification of what has value and its justification, but also in the challenge of measuring, in terms of monitoring its impact, how the proposed actions affect it. Value is understood as a learning process in which diversity is an inherent characteristic [25].
Cultural studies and the identification of values are the breeding ground for justifying project decisions, a working model compatible with the methodological proposal of the conservation project proposed by Andalusian legislation in line with current international guidelines (Figure 5). This is a way of approaching heritage conservation which, in recent years, especially in the first quarter of the 21st century, has emerged with strength and interest, facilitating the justification of processes for the enhancement of particularly complex and large-scale heritage.
Figure 5.
The Conservation Project as a tool for proposing heritage actions: identifying values, understanding authenticity, monitoring impact, and working hand in hand with local communities. Source: own elaboration.
The result of the intervention on the San Telmo Palace reflects a set of decisions in which, based on the values identified, a series of proposals for architectural solutions are argued, in which, beyond the new use of the complex, the issues to be emphasised from the different periods of the building are clearly highlighted.
Firstly, the intervention on the San Telmo complex highlights both the need to respect the layout and the elements of architectural, artistic, and social representativeness that weighed most heavily. The façade bay, the courtyard, and the chapel, here approached from the IAPH’s experience in the integral treatment of all the supports of movable assets, are unquestionable elements of prevailing value throughout all the times of San Telmo. The same applies to those elements that completed the original layout (the rest of the façades, from the 19th century) and that still remain from the Montpensier palace, even altered, as they were considered to be spaces for public representations of the interior (halls of the main corridor, ballroom, etc.). This intervention is conservative in the strict sense of the word, providing possible technological solutions, but respect the inherited materiality. Some of these solutions are even completed with new ornamental programmes, as a result of the evolution of uses, such as the stairwell in which an installation by the contemporary painter Carmen Laffón is inserted.
Other interventions become more controversial, perhaps due to the lack of access to the information that justified them. The misunderstood symmetry of the south side generated a series of demolitions that came into conflict with the level of protection, but which were based on the contemporary analysis of the value of the architecture provided in the 20th century. These demolitions, far from being subdued by the new (administrative) uses of the refurbishment, sought an almost archaeological settlement by recovering two of the seven courtyards that appeared in Pizarro’s plan, specifically the one that preceded the ballroom (Patio de San Jerónimo, for which some of its original columns are reused) and the one adjacent to the sacristy of the College Chapel. By means of documentary tracking, research, and archaeological prospection (wall of the old refectory), this southern area recovered part of this more remote compartmentalisation that was silenced in the architectural operations of the 20th century. Other demolitions, which were in conflict with the original architecture of the building itself, such as those of the famous chambers at the back of the north side, allowed, in addition to the establishment of a new architecture (the fourth half), to solve the main problems of use that San Telmo demanded [26] (Figure 6).
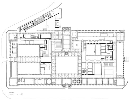
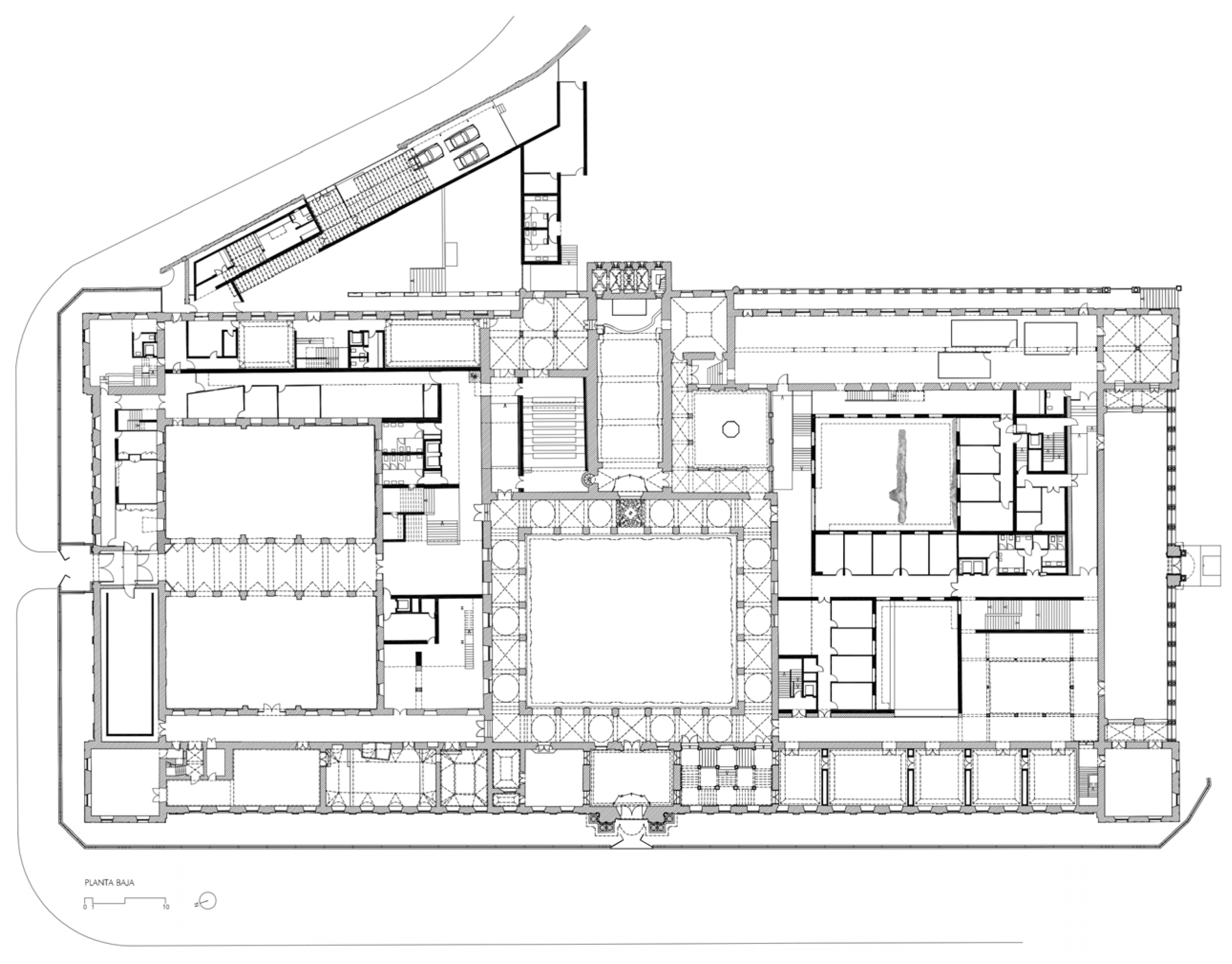
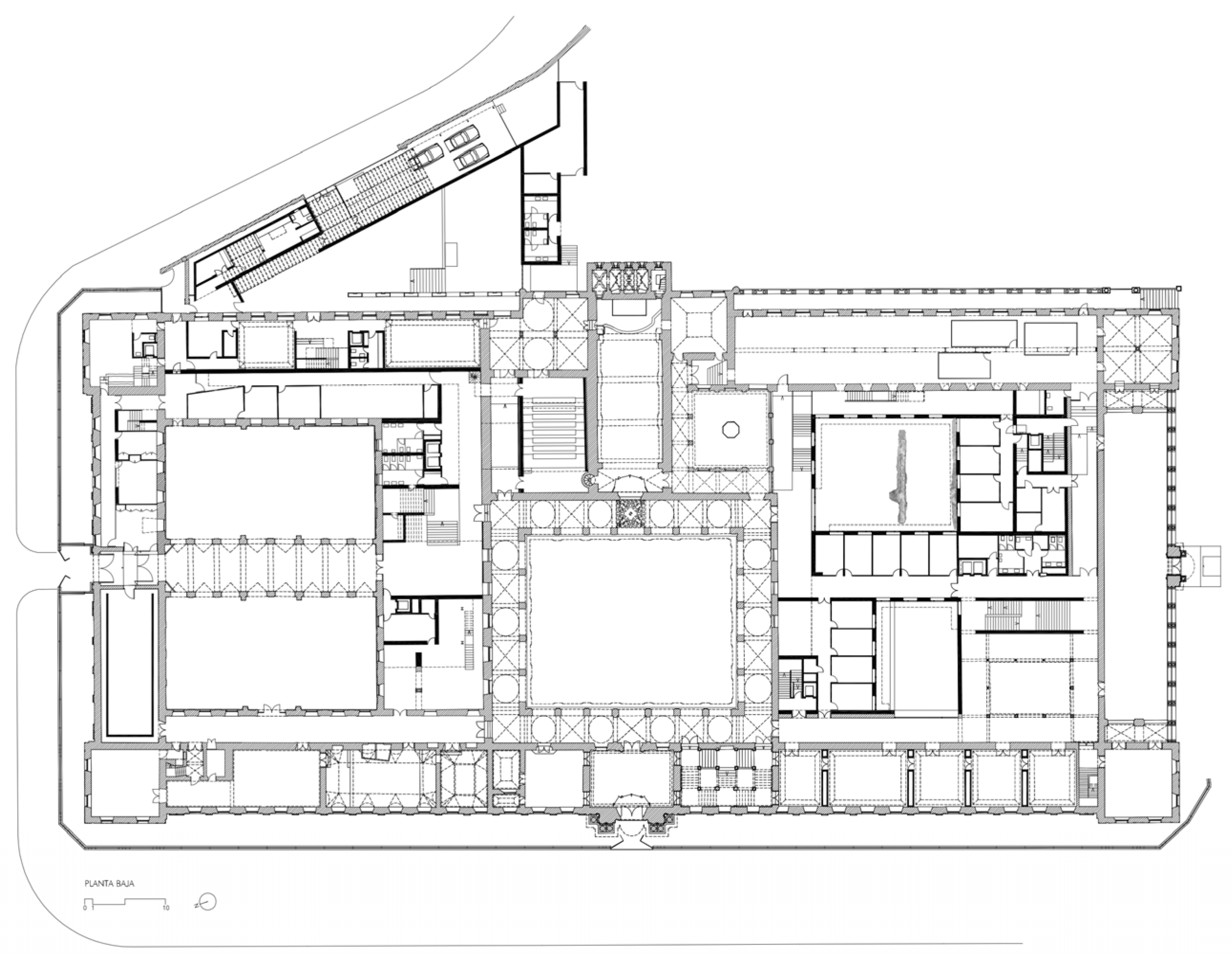
Figure 6.
Plan of the project. Ground Floor. Source: Estudio Guillermo Vázquez Consuegra.
Additionally, it is possible to recognize a model to manage heritage intervention:
- -
- Identifying values based on the characterisation of the building, in coherence with its material history, providing the recognition of valuable layers.
- -
- Using a methodology that has its continuity in the intervention criteria applied, diverse according to the richness and complexity (in terms of the entity of the cultural asset) of the values identified.
- -
- Making the project decisions based on the cultural assessment carried out by a committee of experts who are supporting the architectural project.
The report on the values of the Palacio de San Telmo carried out by the group of experts accompanied the process of drafting and implementing the intervention projects, a stage that took a long time (beginning in the early 1990s and ending in 2011) [27]. A work that, put in perspective, acquires special relevance, as it represents a milestone in Andalusian cultural policies. It rehearses a model that the IAPH will argue in the frame of reference in other actions, especially the most recent ones that have been carried out in the city of Seville, which are patrimonial by definition: the viability study of the Reales Atarazanas (2008) [28], the report on the values of the old Altadis tobacco factory (2016) [29], and the report on the values of the urban port district (2021).
A working model is needed that resolves the gap between urban planning, accompanied by heritage legislation, and the drafting of intervention projects. To do this, it will be necessary to redefine the role of history, now understood as a process of making and unmaking, because the time of heritage is not a linear time either. This is a task in which it is a question of reading what has never been written [30], providing the keys to intervene in heritage spaces with rigour and guarantees, while at the same time implementing mechanisms to involve citizens.
Author Contributions
Conceptualization, J.-L.G.-V., M.G.-C. and E.M.-A.; methodology, J.-L.G.-V., M.G.-C. and E.M.-A.; software, J.-L.G.-V., M.G.-C. and E.M.-A.; validation, J.-L.G.-V., M.G.-C. and E.M.-A.; formal analysis J.-L.G.-V., M.G.-C. and E.M.-A.; investigation, J.-L.G.-V., M.G.-C. and E.M.-A.; resources, J.-L.G.-V., M.G.-C. and E.M.-A.; data curation, J.-L.G.-V., M.G.-C. and E.M.-A.; writing—original draft preparation, J.-L.G.-V., M.G.-C. and E.M.-A.; writing—review and editing, J.-L.G.-V., M.G.-C. and E.M.-A.; visualization, J.-L.G.-V., M.G.-C. and E.M.-A.; supervision, J.-L.G.-V., M.G.-C. and E.M.-A.; project administration, J.-L.G.-V., M.G.-C. and E.M.-A.; funding acquisition J.-L.G.-V., M.G.-C. and E.M.-A. All authors have read and agreed to the published version of the manuscript.
Funding
This research received no external funding.
Institutional Review Board Statement
Not applicable.
Informed Consent Statement
Not applicable.
Data Availability Statement
Data are contained within the article.
Acknowledgments
The authors would like to thank the work of Andalusian Historical Heritage Institute as the institution which coordinated the interdisciplinary commission of experts and the different value reports development.
Conflicts of Interest
The authors declare no conflict of interest.
References
- World Heritage Convention. Convention Concerning the Protection of the World Cultural and Natural Heritage. 1972. Available online: https://whc.unesco.org/archive/convention-en.pdf (accessed on 10 October 2023).
- Fernández Salinas, V. Coord. 50 años de la Convención del Patrimonio Mundial de la Unesco. In PH: Boletín del Instituto Andaluz del Patrimonio Histórico 107; IAPH: Seville, Spain, 2022. [Google Scholar] [CrossRef]
- González-Varas, I. Coord. Buenas prácticas en conservación y revitalización del patrimonio cultural desde los ODS. In PH: Boletín del Instituto Andaluz del Patrimonio Histórico 104; IAPH: Seville, Spain, 2021. [Google Scholar] [CrossRef]
- Convention on the Value of Cultural Heritage for Society (Faro Convention, Portugal 2005). Available online: https://www.coe.int/en/web/conventions/full-list?module=treaty-detail&treatynum=199 (accessed on 19 September 2023).
- Rivera Blanco, J. De Varia Restauratione. Teoría e Historia de la Restauración Arquitectónica; Abada Editores: Madrid, Spain, 2008. [Google Scholar]
- Stanley-Price, N.; King, J. (Eds.) Conserving the Authentic: Essays in Honour of Jukka Jokilehto; ICCROM Conservation Studies; ICCROM: Rome, Italy, 2009; Available online: https://www.iccrom.org/sites/default/files/publications/2019-11/iccrom_ics10_jukkafestchrift_en.pdf (accessed on 31 October 2023).
- Choay, F. The Invention of the Historic Monument; Cambridge University Press: Cambridge, UK, 1999. [Google Scholar]
- García-Casasola, M. Memoria, Tiempo y Autenticidad Tres Ficciones Para Interpretar e Intervenir el Patrimonio. Ph.D. Thesis, University of Seville, Seville, Spain, 2012. Available online: https://idus.us.es/handle/11441/24261 (accessed on 31 October 2023).
- ICOMOS. The Cracow Charter, Principles for Conservation and Restoration of Built Heritage; ICOMOS: Cracow, Poland, 2000; Available online: https://icomosubih.ba/pdf/medjunarodni_dokumenti/2000%20Krakovska%20povelja.pdf (accessed on 25 September 2023).
- Larsen, K.E. (Ed.) Nara Conference on Authenticity—Conférence de Nara Sur L’authenticité, Japan; Proceedings, UNESCO World Heritage Centre/Agency for Cultural Affairs (Japan)/ICCROM/ICOMOS; Tapir Publishers: Trondheim, Norway, 1994; Available online: https://www.icomos.org/en/about-the-centre/publicationsdoc/other-publications-3/116-english-categories/resources/publications/321-nara-conference-on-authenticity (accessed on 10 October 2023).
- Southern Cone Regional Authenticity Document. Charter of Brasilia, Brazil. 1995. Available online: http://portal.iphan.gov.br/uploads/ckfinder/arquivos/Carta%20Brasilia%201995.pdf (accessed on 10 October 2023).
- ICOMOS. International Charter for the Conservation and Restoration of Monuments and Sites. the Venice Charter; ICOMOS: Venice, Italy, 1964; Available online: https://www.icomos.org/en/participer/179-articles-en-francais/ressources/charters-and-standards/157-thevenice-charter (accessed on 10 October 2023).
- Vela Castillo, J. Ruina, archivo, fecha. (Y el tiempo) de la Arquitectura. In Iluminaciones. Revista de Arquitectura y Pensamiento 3; Fundación Arquitectura y Sociedad; Círculo de Bellas Artes: Madrid, Spain, 2011. [Google Scholar]
- Piazzoni, M.F. Authenticity Makes the City. How “the Authentic” Affects the Production of Space. In Planning for Authenticities; Tate, L., Shannon, B., Eds.; Routledge: New York, NY, USA; London, UK, 2018; pp. 154–169. [Google Scholar]
- Law 14/2007, of November 26, 2007, on the Historical Heritage of Andalusia. Available online: https://www.boe.es/buscar/act.php?id=BOE-A-2008-2494 (accessed on 9 November 2023).
- Jones, S. Negotiating Authentic Objects and Authentic Selves, Beyond the Deconstruction of Authenticity. J. Mater. Cult. 2010, 15, 181–203. [Google Scholar] [CrossRef]
- Guía Básica Para el Uso, La Gestión y la Intervención en el Patrimonio Cultural de Andalucía. VV.AA. Sevilla: IAPH. Junta de Andalucía. 2022. Available online: https://www.juntadeandalucia.es/organismos/iaph/servicios/publicaciones/detalle/391729.html (accessed on 19 September 2023).
- Sierra Delgado, J.R. Arquitectura, Programa y plusvalía: El Proyecto Patrimonial. In Revista Neutra 11; COAS: Seville, Spain, 2004; pp. 14–21. [Google Scholar]
- Herb, S. (Ed.) Authenticity in conservation decision-making: The World Heritage perspective. J. Res. Archit. Plan. 2004, 3, 1–8. Available online: https://api.semanticscholar.org/CorpusID:147431965 (accessed on 31 October 2023).
- Coronado, E.; Medina, G.; Rodríguez, E. 4th Year Student Work at the School of Architecture; University of Seville: Seville, Spain, 2021. [Google Scholar]
- Mosquera Adell, E.; Malagamba, D. El Palacio de San Telmo Recuperado; Consejería de Hacienda y Administración Pública: Seville, Spain, 2010.
- PH: Boletín del Instituto Andaluz del Patrimonio Histórico 51; IAPH: Seville, Spain, 2004; Available online: https://www.iaph.es/revistaph/index.php/revistaph/issue/view/50 (accessed on 19 September 2023).
- González Cordón, A. Vivienda y Ciudad: Sevilla 1849–1929; Ayuntamiento de Sevilla, Centro Municipal de Documentación Histórica: Seville, Spain, 1985. [Google Scholar]
- Mosquera-Adell, E. Sobre des-restauraciones en intervenciones contemporáneas: El caso del Palacio de San Telmo de Sevilla. In Actas de la III Bienal de Restauración Monumental. Sobre la Des-Restauración; IAPH: Sevilla, Spain, 2006; Available online: https://www.academiadelpartal.org/files/actas_3_bienal_restauracion_monumental.pdf (accessed on 26 September 2023).
- Jokilehto, J. Heritage values and valuation. CONVER 2017, 7–18. Available online: https://revistas.inah.gob.mx/index.php/conversaciones/article/view/10884 (accessed on 25 September 2023).
- Torres Ridruejo, A. La pretensión cautelar de suspensión de la obra de reforma del palacio de San Telmo y la importancia de los informes periciales. In PH: Boletín del Instituto Andaluz del Patrimonio Histórico 82; IAPH: Sevilla, Spain, 2012; pp. 24–29. [Google Scholar] [CrossRef]
- Mosquera-Adell, E.; Pérez-Cano, T. La historiografía ante la intervención arquitectónica: La experiencia del palacio de San telno In Otra Historia: Estudios Sobre Arquitectura y Urbanismo en Honor de Carlos Sambricio; Calatrava Escobar, J., Ed.; Lampreave: Madrid, Spain, 2015; pp. 467–477. [Google Scholar]
- IAPH. Estudio de Viabilidad y Adecuación Como Generador de Usos Para Las Reales Atarazanas de Sevilla. 2008. Available online: https://repositorio.iaph.es/handle/11532/332657 (accessed on 25 September 2023).
- IAPH. Informe Sobre Los Valores Patrimoniales de la Antigua Fábrica de Tabacos de Altadis en Sevilla. 2016. Available online: https://repositorio.iaph.es/handle/11532/331246 (accessed on 25 September 2023).
- Cuesta Abad, J.M. Juegos de Duelo: La Historia Según Walter Benjamin; Abada: Madrid, Spain, 2004. [Google Scholar]
Disclaimer/Publisher’s Note: The statements, opinions and data contained in all publications are solely those of the individual author(s) and contributor(s) and not of MDPI and/or the editor(s). MDPI and/or the editor(s) disclaim responsibility for any injury to people or property resulting from any ideas, methods, instructions or products referred to in the content. |
© 2023 by the authors. Licensee MDPI, Basel, Switzerland. This article is an open access article distributed under the terms and conditions of the Creative Commons Attribution (CC BY) license (https://creativecommons.org/licenses/by/4.0/).





